
Teatterirakennukset 1945–2000
Aino Niskanen
Näyttämötaiteella on Suomessa lempilapsen asema. Teatteriharrastuksen juuret ovat kaupunkien työväenliikkeessä ja maaseudun nuorisoseura-aatteessa. Kaupungistumisen myötä rakennettiin näkyville paikoille taajamiin uusi teatteritalo, jonka lähiympäristökin huoliteltiin. Suunnittelusta järjestettiin usein arkkitehtikilpailu. Kävijämäärät kasvoivat. Teatteri otti kantaa kulttuuripolitiikkaan ja 1960-luvulla alkanut kriittinen keskustelu teatteritaiteesta ulottui myös suurten laitosteattereiden rakennushankkeisiin. Kysyttiin, mitä teatteritilalta toivotaan. Keskustelun tuloksena esitystilojen ja -tilanteiden kirjo monipuolistui. Uudisrakennusten sijaan olemassa olevia rakennuksia alettiin ottaa teatterikäyttöön ja aiemmin valmistuneita teatteritaloja muutettiin moninäyttämöisiksi. Vuosisadan viimeinen uusi suuri teatterirakennus on 1993 valmistunut Oopperatalo.
Teatterirakennukset 1945–2000
Aino Niskanen
Näyttämötaiteella on Suomessa lempilapsen asema. Teatteriharrastuksen juuret ovat kaupunkien työväenliikkeessä ja maaseudun nuorisoseura-aatteessa. Kaupungistumisen myötä rakennettiin näkyville paikoille taajamiin uusi teatteritalo, jonka lähiympäristökin huoliteltiin. Suunnittelusta järjestettiin usein arkkitehtikilpailu. Kävijämäärät kasvoivat. Teatteri otti kantaa kulttuuripolitiikkaan ja 1960-luvulla alkanut kriittinen keskustelu teatteritaiteesta ulottui myös suurten laitosteattereiden rakennushankkeisiin. Kysyttiin, mitä teatteritilalta toivotaan. Keskustelun tuloksena esitystilojen ja -tilanteiden kirjo monipuolistui. Uudisrakennusten sijaan olemassa olevia rakennuksia alettiin ottaa teatterikäyttöön ja aiemmin valmistuneita teatteritaloja muutettiin moninäyttämöisiksi. Vuosisadan viimeinen uusi suuri teatterirakennus on 1993 valmistunut Oopperatalo.
Katsomon ja näyttämön välinen suhde
Teattereissa sovelletaan yhä antiikin teattereista periytyviä näyttämön ja katsomon muotoja, kuten areenan ja puoliareenan muotoa. Antiikin kreikkalaisissa teattereissa esitys tapahtui orkhestralla.[1] Tanssijoille ja laulajille varattua pyöreää näyttämöä kiersi nouseva, hieman yli puoliympyrän levyinen katsomo. Roomalaiset kehittivät puoliareenan, jossa oli korkea näyttämön taustarakennelma.[2]
Barokkiajasta, 1600-luvulta pitkälti 1900-luvun puoliväliin teattereissa käytettiin tirkistyslaatikko-mallia (ylin kuva). Siinä on peräkkäin kaksi huonetilaa: toisessa katsojat ja toisessa näyttelijät. Kehystetty näyttämön aukko tarjoaa katsomoon lavastetun näkymän. Uudemmissa teattereissa mallia on muunnettu leventämällä näyttämöaukon suhdetta katsomoon. Tirkistyslaatikkonäyttämöä muunnellaan myös etunäyttämön (keskikuva) avulla. Siinä näyttelijä siirtyy samaan tilaan katsojien kanssa.[3] Orkesterisyvennys on suurissa teattereissa yleensä etunäyttämön kohdalla, jossa orkesterisyvennys voidaan tarvittaessa kattaa.
1960-luvulta alkaen otettiin käyttöön myös neutraalitilan malli, jossa katsomo ja näyttämö ovat samassa huonetilassa.
Teräsbetonirakenteiden suuret jännevälit mahdollistavat avarat sali- ja näyttämötilat. Katsomolta odotetaan hyvää näkyvyyttä, kuuluvutta sekä puheäänen että musiikin suhteen ja istumismukavuutta. Katsojat haluavat mielellään nähdä myös toisensa. Esityksen kannalta tärkeitä ovat katsomon muuntelumahdollisuudet.
02_ AB
02_ CD
02_ EF [Katso näiden sijoittelusta mallia pdf-versiosta. Jos näyttää hassulta tai on ongelma, mietitään pitääkö kuvia yhdistää ]
Teatterirakennuksen tilat ja tekniikka
Teattereissa lämpiöt, katsomot ja näyttämöt palvelevat yleisöä. Samoin lippukassat, vaatesäilytys-, wc- ja tarjoilutilat. Yleisötilojen viimeistely ja luonne vaihtelevat juhlavasta epäseremonialliseen. Eteistiloista yleisövirrat ohjataan mutkattomasti lämpiön kautta katsomoon. Lämpiöt ovat yleisön kohtaamispaikkoja tarjoilupisteineen ja istumapaikkoineen. Lämpiöt tarjoavat usein kiinnostavia näkymiä sekä talon sisällä että sieltä ulos.
Henkilökunnan tiloja ovat näyttämö ja siihen liittyvät tekniset tilat, varastot, toimistot, pukuhuoneet, harjoitus- ja sosiaalitilat.[4]
03_
Monen teatterin päänäyttämön voi erottaa kaupunkikuvasta jykevän näyttämötornin ansiosta. Näyttämötorni on raskaan tekniikan ja koneistuksen vaatima tila. Yläkoneistukseen kuuluvat lavastenostimet, esiriput ratoineen ja koneistoineen, taustat, valaistusansaat ja sillat. Alakoneistoihin kuuluvat pyörönäyttämöt ja- lavat, tasonostimet, orkesterinostimet, näyttämövaunut ja katsomovaunut.[5] Käsikäyttöinen koneistus on vaiheittain muutettu tietotekniikka-avusteiseksi. Näyttämötorneissa riiputetaan samanaikaisesti usean esityksen fondeja eli taustakuvia, lavastus- ja seinäelementtejä sekä valkokankaita.
45_
Kun päänäyttämöön liittyvät sen molemmin puolin olevat sivunäyttämöt ja takana on takanäyttämö, näyttämöä kutsutaan muotonsa mukaan ristinäyttämöksi. Näissä päänäyttämön aputiloissa säilytetään sekä meneillään olevien että tulevien esitysten tarpeistoa. Suuriin teatteritaloihin tehtiin yleensä sekä suuri näyttämö että pienempi muunneltava studio. Sivunäyttämöiden joustava yhteys samassa lattiatasossa suureen näyttämöön, pieneen näyttämöön sekä työpajoihin on toiminnallisesti edullinen ominaisuus esimerkiksi lavastusten vaihtojen kannalta. Tällaisia ratkaisuja ei kaikkiin suuriinkaan laitosteattereihin heti rakennettu. Malleja näyttämötekniikan ratkaisuihin ja koneistukseen haettiin Länsi-Saksasta, jossa oli yleistynyt ristinäyttämö, jossa sivu- ja takanäyttämö liittyvät kurkistuslaatikkonäyttämöön.[6]
22_
Suunnittelijan oli luotava joustavat puitteet näyttelijän, ohjaajaan, lavastajan, valaistusmestarin ja näyttämöteknikon työlle.[7] Teknisiin tiloihin lukeutuvat puvustamo, ompelimo, puutyöpaja, lavastamo, maalaamo. Teattereissa henkilökunnan käyttämät väliovet ovat värikoodattuja. Väreillä viestitetään ja varoitetaan mikä ovista avautuu suoraan näyttämölle, mikä teknisiin tiloihin tai taiteilijoiden tiloihin.
Kun teattereiden ohjelmistoon operettien tilalle tulivat musikaalit 1950-60-luvuilla, ne loivat tarpeen levittää lavaa ja käyttää laajempia etunäyttämöitä.[8] Musikaalissa voitiin pienentää orkesteria tai sijoittaa soittajia näyttämölle, jolloin orkesterisyvennykset voitiin kattaa näyttämötilaksi.
Koska teatterit ovat suunnittelutehtävinä haastavia, muutamat uuden teatteritalon jo piirtäneet suunnittelijat saivat suunnitella toisenkin. Suunnitteluun osallistui usein eri alojen erikoisasiantuntijoita, kuten akustiikan, valaistuksen sekä sähkö- ja näyttämötekniikan alalta.
Teatterien talous
Valtio sisällytti taidebudjettiin määrärahan teatteritilojen korjaamiseen ja uusien teatteritalojen suunnitteluun vuodesta 1959 alkaen. Kaupungistumisen, työviikon lyhenemisen ja vaurastumisen myötä vapaa-ajan tilojen tarve kasvoi. Laki taiteen edistämisestä 1968 tähtäsi aiemman kulttuuritarjonnan vakiinnuttamiseen ja tarjonnan ulottamiseen tasa-arvoisesti koko maahan. Se merkitsi uusia teatteri- ja konserttitaloja, kirjastoja, kulttuuritaloja sekä urheilu- ja uimahalleja.
Kaupunkien verotulojen kasvaessa poliittiset päättäjät sijoittivat teatteriin. Kun yleisötutkimus 1966 osoitti suurimman teatterissakävijöiden ryhmän olevan kaupunkilaista keskiluokkaa, järjestettiin työ- ja maaseutuväestölle ryhmäkäyntejä. Alueteattereita ryhdyttiin ajamaan 1960-luvun lopulla.[9]
Suurten rakennushankkeiden valvomisessa on opetusministeriöllä ollut tärkeä rooli. Teattereiden rahoitukseen valtionapumalli muutostarpeiden ja parlamentaaristen voimasuhteiden pohjalta muodostettiin 1972. Teatterikenttä jäsentyi sen mukaan yli 40 vuotta. Kansallisiksi päänäyttämöiksi määritellyt Suomen kansallisteatteri, Ruotsalainen teatteri ja Tampereen Työväen Teatteri ovat saaneet korotettua tukea. 1990-luvun alusta harkinnanvaraisuudesta päästiin pois, kun alettiin jakaa ns. teatteri- ja orkesterilain avulla vakinaisen henkilöstön määrään sidottua avustusta. Useat 1970-luvulla perustetut teatteriryhmät saivat säännöllistä valtionapua, mutta 1990-luvun alussa syntyneet uudemmat ryhmät eivät.[10]
Kuntien ja kaupunkien määrärahat ovat teattereille valtionapua merkittävämmät tukimuodot. Teatterilaitosten rahoitusta ovat vaikeuttaneet kaupunkien talouden suhdanteet.[11]
Teatterialan koulutus
Teatterikoulutusta on annettu yli sata vuotta. Koulutettu näyttelijäkunta vakiintui 1970-80-luvuilla ja pysyvät kiinnitykset lisääntyivät. Vielä 1960-luvun alussa monissa teattereissa osa näyttelijöistä oli ammattilaisia, osa harrastajia.
Suomenkielinen ja ruotsinkielinen teatterialan koulu yhdistettiin valtiolliseksi, kaksikieliseksi Teatterikorkeakouluksi 1979. 1900-luvun loppuun mennessä koulutus oli vakiintunut monialaiseksi. Ohjaajien ja dramaturgien korkeakoulutus aloitettiin 1962, ja seuraavalla vuosikymmenellä vakiintui näyttelijöiden, ohjaajien ja dramaturgien yhteiskoulutus. Tanssitaiteen, valo- ja äänisuunnittelun koulutukset käynnistyivät 1980-luvulla ja musiikkiteatterin koulutusohjelma 1996.[12]
19_
Kansallisteatterin Pieni näyttämö modernismin esikuvaksi - 1950-luvun teatterit
”Sota päättyi ja rajat aukenivat. Maahan tuli esittämättömiä näytelmiä. Kun tulva iski, kotimaiselle näytelmäkirjallisuudelle jäi entistä vähemmän tilaa. Tässä oli yksi heräte Kansallisteatterin pienen näyttämön rakentamiselle … Jalansijan sai siellä uusi kotimainen dramatiikka.” - Jack Witikka.[13]
1950-luvun alussa näyteltiin vanhemmissa teatteritaloissa, kuten Porin teatteri, Åbo Svenska Teatern, Aleksanterin teatteri, Kansallisteatteri, Svenska Teatern ja Tampereen Teatteri. Ympäri Suomea harrastajat näyttelivät seurantaloissa.
Uudentyyppisen teatteritilan malliksi muodostui Kansallisteatterin laajennus Pieni näyttämö, joka valmistui 1954 Kaija ja Heikki Sirenin suunnittelemana.[14] Laajennus oli ensimmäinen pieni näyttämö suuren rinnalle. Ne vakiintuivat seuraavilla vuosikymmenillä.
Heikki Siren totesi 1940-luvun lopulla, ettei Helsingissä ollut ainuttakaan teknisesti täydellistä ja modernin virtauksia edustavaa teatteritaloa. Tulevaisuuden teattereissa olisi monta erityyppistä näyttämöä. Näkyvyys olisi ykköstekijä katsomossa, ei sosiaaliluokka. Teatterisali olisi entistä paljon teknisempi tila, jopa projisioitavine lavasteineen.[15]
04_ 05_
Kansallisteatterin lisärakennus on modernistinen. Julkisivun geometrisessa kentässä keraamiset laatat, lasipinnat ja suuret ikkunat heijastuvat edessä olevaan Kaisaniemen lampeen. Minimalistisen elegantti lämpiö väliajan viettäjineen näkyy puistoon. Lämpiöön liittyi teatteriravintola. Pohjamuodoltaan suora katsomo aukeaa leveästi näyttämölle, millä korostettiin näyttämön ja katsomon muodostamaa tilakokonaisuutta.
Teatterihenkilökunta käytti vanhemman puolen pukuhuoneita, kulissivarastoja ja näyttämöntaustatiloja.[16] Näyttämön mataluus, näyttelijöiden hankala pääsy lavalle kellarin kautta ja muunnettavuuden puute ovat olleet käytön rajoituksia.[17] Vähäiset taustatilat kertovat pyrkimyksestä irrottautua raskaasta lavastekäytännöstä.[18]
Muita uusia teatteritaloja 1950-luvun lopulla:
- Wasa Teatern paloi 1953 ja uusi rakennus saatiin 1955 arkkitehteina Bertel Liljequist ja Sam Salvesen. Puulla paneloitu nouseva katsomo (270 paikkaa) avautuu leveästi kohden päänäyttämöä samaan tapaan kuin Kansallisen Pieni näyttämö.[19]
- Kokkola sai uuden teatteritalon 1960: katsomo on nouseva, penkkirivit väljästi sijoitetut ja näyttämöaukko leveä.[20]
SUURTEN LAITOSTEATTEREIDEN 1960-1990-LUVUT
1900-luvun alun vuosikymmenillä monissa kaupungeissa oli kaksi teatterilaitosta, työväen ja porvariston. 1940–50-luvuilla ne yhdistyivät monissa kaupungeissa ja taloudellinen vastuu siirtyi pitkälti kaupungeille. Katsojamäärät kaksinkertaistuivat 1953–73. Teatteritaloista tuli kaupungeille statussymboleja.[21]
Suunnittelu- ja rakentamisbuumin tuloksena valmistuivat:
- Kouvolan teatteri sivistys- ja urheilutalon laajennusosana 1960,[22]
- Turun kaupunginteatteri 1962 sai ensimmäisenä oman uudisrakennuksen,
- Kuopion Yhteisteatteri 1963,
- Helsingin kaupunginteatteri 1967,
- Oulun kaupunginteatteri 1972,
- Rovaniemen Lappia-talon kaupunginteatteri 1975,
- Jyväskylän kaupunginteatteri 1982,
- Lahden kaupunginteatteri 1983,[23]
- Tampereen työväenteatteri 1985,
- Seinäjoen kaupunginteatteri 1987,
- Kansallisooppera Helsinkiin 1993.
Turun kaupunginteatteri 1962
Turun Suomalainen Teatteri ja Turun Työväen Teatteri yhdistyivät täyskunnalliseksi teatteriksi 1946.[24] Suunnittelukilpailun Turun kaupunginteatterista voittivat 1955 arkkitehdit Helmer Stenros ja Risto-Veikko Luukkonen. Talo valmistui 1962. Teatteri näyttämötorneineen kohoaa Aurajoen itärannalla.[25] Lämpiö tarjoaa näkymiä Turun linnaan, Tuomiokirkolle ja joelle. Suuri näyttämö on katutasossa.
Takanäyttämöä täydensi yksi sivunäyttämö. Etunäyttämö levittäytyy katsomon sivuille. Sektorin mallisen, kohden näyttämöä kapenevan, parvellisen katsomon muotoilu viittaa barokkiteattereihin: punaiset tuolit ja esirippu, kullatut seinälistat. Kulissivarasto ja muut aputilat upotettiin osittain rinteeseen.[26]
Näyttämötaiteen yhteiskunnallinen suuntaus alkoi 1960-luvun jälkipuolella. Turussa se näkyi erityisesti pääohjaaja Kalle Holmbergin ja teatterinjohtaja Ralf Långbackan ohjaustöissä 1971–1977.
06_ 07 _
Kuopion Yhteisteatteri 1963
Kuopion kaupunginteatteri, alun perin nimeltään Kuopion Yhteisteatteri, vihittiin käyttöön 1963. Sen arkkitehdit ovat Stenros ja Luukkonen, Turun kaupunginteatterin suunnittelijat.
Rakennuksen kompaktia muotoa suunnittelijat kuvasivat pyrkimykseksi luoda kustannuksiltaan edullinen rakennustyyppi. Kuutiomaisen rakennuksen keskeltä kohoaa massiivinen näyttämötorni. Matalat tilat sijoitettiin pohjakerrokseen, pääkerros on julkisivultaan tiilipintainen ja lämpiön suuret ikkunat avautuvat kadulle ja puistoon. Lievästi kaartuvine penkkiriveineen sali laskeutuu jyrkästi ja käsittää 426 paikkaa. Kolmannen kerroksen harjoitustilat muutettiin sittemmin studioksi.[27]
08 _09 _
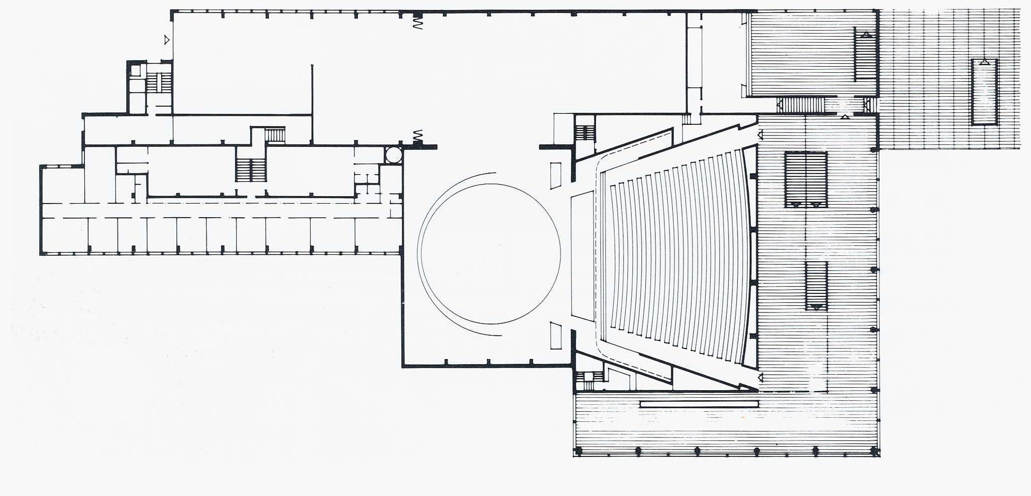
Helsingin kaupunginteatteri 1967
Helsingin Kansanteatterin ja Helsingin Työväenteatterin vaiheittaisesta yhdistämisestä syntyi lopullisesti Helsingin kaupunginteatteri 1965. Arkkitehtuurikilpailu oli viritetty jo tätä ennen, 1961. Voittaneeseen Arlecchino-ehdotukseen perustunut kaupunginteatteri valmistui 1967.[28]
Arkkitehti Timo Penttilä sijoitti rakennuksen Eläintarhanlahden rantapuistoon siten, että hallinto, näyttelijöiden tilat ja tekniset tilat upotettiin kallion sisään. Eduskuntatalon kokoinen massa, Suomen suurin teatterirakennus, piilotettiin taitavasti osittain maastoon.[29]
Talo kohoaa puiston suuntaan kolmikerroksisena, mutta on takasivultaan yksikerroksinen. Veistoksellisissa muodoissa on vaikutteita amerikkalaisen Frank Lloyd Wrightin arkkitehtuurista. Sisäänkäyntijulkisivun vaakalinjojen vastaparina ovat edustan puiston puunrungot.[30]
Päälämpiöön noustaan leveää portaikkoa. Vaikuttavan tilasarjan viimeistelty sisustus ja materiaalit, kuten marmori, jalopuu ja musta nahka, korostavat juhlavuutta. Suuren salin katsomo kaartuu etunäyttämön ympärille virtaviivaisin, syvän punaisin penkkirivein. Istumapaikoille tullaan sivukäytäviltä. Väljä riviväli helpottaa pääsyä istumapaikoille.[31]
10_ 11_
Suurelle näyttämölle tehtiin 920 paikkaa, joista parvelle 303. Näyttämötilat ja niitä palvelevat verstas- ja varastotilat sijoitettiin samaan lattiatasoon, mikä mahdollistaa materiaalikuljetusten ja lavastuksen nopeat vaihdot. Suuren näyttämön ristinäyttämöperiaatetta laajennettiin hallimaisella taustatilalla, joka palveli suurta ja pientä näyttämöä.[32] Katsomon kattoa kannattavat 29 metrin pituiset teräsristikot.[33]
Pienen näyttämön esitykset perustuvat yhteen näyttämökuvaan. Katsomon kokoa voidaan säätää katsomovaunujen avulla 1/4 - 3/4 areenaksi. Pienen näyttämön tumma ja suljetun tuntuinen lämpiö on luonteeltaan intiimi ja vastakohta suuren näyttämön puistoon avautuvalle lämpiölle.
Kaupunginteatterin laajennus Studio Elsa (1989) käsittää harjoitussalin, toimistoja ja työpajatilat.[34]
Oulun kaupunginteatteri 1972
Oulun kaupunginteatteri kohoaa ruutukaavakeskustan edustalla, merenlahden saarella, osana kaupungin näyttävää kulttuurikeskusta. Arkkitehtipari Marjatta ja Martti Jaatinen voitti hallinto- ja kulttuurikeskuksen suunnittelukilpailun 1962. Heidän ehdotuksensa käsitti Rantakadun puutalokorttelien täydellisen raivaamisen,[35] mutta toteutus supistui, eikä kaupungintalotornia sommitelman kolmantena osana toteutettu. Jäljelle jäi selkeä modernismi: rinnakkaiset kuutiomaiset kirjasto- ja teatteritalot. Teatterin näyttämötorni kohoaa kaartuvana.
Katsomo on kaarevaseinäinen muuten suorakulmaisessa rakennuksessa. Ristinäyttämöt mahdollistavat usean näytelmän lavastuksien pitämisen yhtä aikaa esityskunnossa. Pienempi näyttämö on muunneltava tila.[36] Vinttikamariksi nimetty harjoitustila toimi satunnaisena näyttämönä. Suuri näyttämö ja pieni näyttämö ovat olleet käytössä vuodesta 1972 lähtien.
14_ 15_
Lahden kaupunginteatteri 1983
Tilavuudeltaan ja paikkaluvultaan suuri kunnallinen teatteritalo rakennettiin ydinkeskustan laidalle. Ympäristö kasvoi kulttuurikeskukseksi kirjastotalon (1990) ja aikuisopiston myötä. Teatterisuunnitelma perustui arkkitehtuurikilpailunvoittoon 1973 ja valmistui arkkitehtitoimisto Pekka Salminen Ky:n nimissä 1983.[37] Salminen avusti jo Helsingin kaupunginteatterin suunnittelussa.[38]
Teatterirakennusta sivuaa puistomainen Kirkkokatu. Sisään tullaan harmailla ja punaisilla graniittikivillä kuvioidulta aukiolta, jossa on Olavi Lanun muhkea betoniveistos.
Rakennushahmossa erottuvat näyttämötorni, suuren näyttämön katsomo, kulissivarastot ja verstastilat sekä pukuhuone- ja hallintotilat.[39] Kokonaisuutta hallitsee modulaarisuus: teräsrakenteiset kimppupilarit ja ristikot sekä betonielementit. Rakenteellinen korostus jatkuu sisätiloissa alakattojen betonisina kupuina diagonaaliripoineen.[40]
Näyttämöitä on kolme, joista kaksi suurinta samassa tasossa. Kaikki keskeiset työtilat ovat suuren ja pienen näyttämön suhteen samassa tasossa, mikä tekee niiden välisistä siirroista ja liikenteestä mutkatonta. Yleisö-, esitys- ja työtilat on eristetty toisistaan äänisuluilla, rakenteiden välisellä ilmaraolla.
16_ 17_
Suurella Juhani-näyttämöllä oli alun perin 765 paikkaa. Näyttämöaukko on suurimmillaan 24 metrin levyinen. Katsomon reunapaikkoja on vähennetty 650:een, jottei katsomosta näe sivunäyttämöille.[41] Pääsy suureen katsomoon ja ylälämpiöön on järjestetty kuudella portaikolla toisin kuin tavanomaisella, yhdellä leveällä portaikolla. Salin porrastettua kattoa valaistaan alapuolisilta teräsristikkosilloilta. Haluttaessa intiimimpää valaistusta, sali valaistaan ainoastaan alaspäin silloilta.
Näyttämöllä on hydraulisia nostimia. Lisäksi mihin tahansa kohtaan näyttämöä voidaan tuoda ilmatyynyillä kulkeva pyörönäyttämölevy, halkaisijaltaan 12 metriä. Koska suurella näyttämöllä esitetään myös musikaaleja, on orkesteritila akustisista syistä sijoitettu kokonaan katsomon puolelle.[42] Kattamalla orkesterisyvennys saadaan useampi tuolirivi.
18_ 21_
Eero-näyttämö on 200-250-paikkainen. Ensimmäisen kerroksen keskellä olevan sisäpihan alla oleva pieni, 81-paikkainen Aino-näyttämö muodostettiin 1980-luvulla tanssi-harjoitussalista. Alalämpiön teatterimaisessa syvennyksessä järjestetään lasten satuhetkiä.
Eteis- ja lämpiötilat ovat sisäänkäyntitorin puolella. Torin tasolla teräskannattimien sateenvarjokatos muodostaa poimuilevan seinämän lasiprismojen kanssa. Vastapäinen aaltoileva vaatesäilytystiski toimii tehokkaasti yleisövirtojen suhteen. Lämpiötilojen tunnelma on kodikas, lähes vastakohta talon ulkoiselle ilmeelle. Tiloja on jäsennetty pienemmille ja suuremmille ryhmille. Materiaalit, värit ja monet taideteokset tuovat lämpöä. Yrjö Kukkapuron kalusteet ovat pääosin säilyneet.
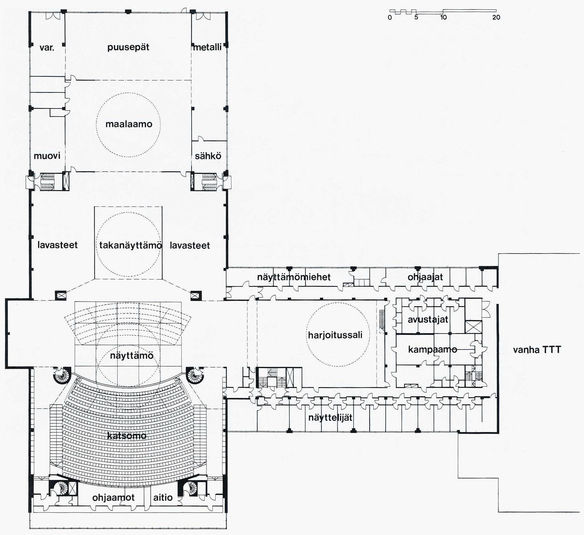
Tampereen Työväen Teatteri 1985
Työväenteatteri on maan ainut edelleen toimiva, hallinnoltaan työväenyhdistykseen kytkeytyvä teatteri. Työväenteatterin vanha, lähes 400-paikkainen Eino Salmelaisen näyttämö sijaitsee työväentalon 1900-luvun alussa rakennetussa kivilinnassa.[43] Työväentaloon liitettiin 1985 valmistunut uusi teatterirakennus. Sen kutsukilpailun voitti arkkitehtipari Marjatta ja Martti Jaatinen 1974. Kummallakin teatterilla, vanhalla ja uudella, on omat eteis- ja lämpiötilat, mutta ne hyödyntävät samoja työtiloja,[44] joskaan lavasteiden ja tarpeiston siirrot näyttämölle eivät tapahdu aina yhdessä tasossa.
Tampereen työväentalon entisestä painisalista muokattu, 160-paikkainen Kellariteatteri avattiin 1965. Esirippu ja ramppi oli poistettu, joten näyttämö ja katsomo sulautuivat yhteen. Tunnelma kaarevassa katsomossa ja kaarevareunaisella näyttämöllä koetiin intiimiksi ja lämpimäksi. Tilassa tehtiin korkeatasoisia ja tuoreita esityksiä ja siitä tuli esikuva muille teattereille.[45]
Teräsbetonirunkoinen uudisrakennus on jaettu kolmeen rakennushahmoon: massiiviseen lämpiö-, katsomo- ja näyttämötilojen kuutioon liittyy kaksi matalampaa siipeä. Siivissä ovat verstaat ja varastot sekä toimisto- ja pukuhuoneosa, jota korotettiin 2012-13 rakentamalla suuri harjoitussali päänäyttämön tarpeisiin. Tämä nivelosa yhdistää uudisrakennuksen ja vanhan työväentalon.[46]
27_ 23_
1985 valmistuneen rakennuksen tiloissa tähdättiin muunneltavuuteen. Sisään näytöksiin tullaan kadulta tummasävyisiin, mataliin eteistiloihin. Vastakohtana ovat portaikon ja lämpiöiden korkeat, valoisat tilat. Syvä ja aukoltaan 22 metriä leveä suuri näyttämö on ristinäyttämö. Verstas- ja varastotilat ovat samassa tasossa näyttämön kanssa. Näyttämön lattialla hyödynnetään joko pyörönäyttämöä tai nostomekanismeja.[47]
Katsomossa on 816 paikkaa. Tila ja tuolirivistöt kaartuvat, mitä tehostavat parvien alakattojen lamppurivistöt. Katsomon väritys on lämmin: seinissä tummanruskea tiili, alakatoissa tumman punertava sävy ja tuoleissa syvän keltainen verhoilu. Katsomoon liittyy kaksi sivuaitiota ja kaksi taka-aitiota.
25_26_
Sekä vanhan että uuden teatterirakennuksen pääjulkisivut suuntautuvat Hämeenpuistoon. Uudempaa rakennusosaa hallitseva tiili jatkuu ulkoseinien punatiiliverhouksesta sisälle katsomoon, jossa on tummaksi poltettua tiiltä ja tiililaattoja. Tiilijulkisivusta ulkoneva lasiosa tuo luonnonvaloa lämpiöön ja avaa näkymän Hämeenpuistoon. Tiilen käytöllä Jaatiset halusivat viitata Tampereen teollisuusrakennusten perinteeseen.[48]
Oopperatalo 1993
Kansallisoopperan rakennus valmistui Töölönlahden rannalle Helsinkiin 1993 vuosikymmenien ponnistusten jälkeen. Sen kaksivaiheinen suunnittelukilpailu ratkaistiin jo 1977. Arkkitehteina olivat Eero Hyvämäki, Jukka Karhunen ja Risto Parkkinen. Oopperatalohankkeen voimahahmo oli oopperanjohtaja Alfons Almi. Ooppera toimi 1911–1918 Kansallisteatterissa ja sen jälkeen oman rakennuksen valmistumiseen asti Helsingin venäläisessä Aleksanterin teatterissa vuodelta 1870.[49]
Oopperatalolle oli varattu paikka Alvar Aallon Helsingin keskustasuunnitelmassa (1961–1972). Paikaksi valikoitui entisen Sokeritehtaan tontti osana julkisten rakennusten sarjaa sekä puistoa. Talon vehreässä ympäristössä on vanhaa puustoa täydennetty nurmialueilla ja istutuksilla kaupunkipuistoksi.
46_44_
Koska esitystilat yhdistävät teatterin, tanssin ja musiikin tarpeet, on rakennuskompleksin laajuus neljä hehtaaria, josta suuri osa on maan alla. Massiivisen rakennuksen paljastaa teatteritaloksi jykevä näyttämötorni. Julkisivuja hallitsevat suorakulmaiset muodot, neliömäisten ikkunoiden rivistöt ja kaareutuvat lasigalleriat.
Mannerheimintien suunnasta rakennusta lähestytään seremoniallisessa akselissa, ensin astutaan edusaukiolle portin alta ja edelleen katettuun ja valaistuun pääsisäänkäyntiin kuvanveistäjä Kain Tapperin moniosaisen Alkunäytös-kiviveistoksen lomitse.
Pääsisäänkäynnin lisäksi on sisäänkäynti Töölönlahden puolella. Vaatimattomampi sisäänkäynti on muun muassa pienelle näyttämölle Alminsaliin. Sujuva sisäinen liikenne oli keskeinen suunnittelutehtävä. Talo jakaantuu toiminnallisiin vyöhykkeisiin: työ- ja harjoitustilojen ulkomaailmalta sulkeutuvat osat, lasiseinäisinä ympäristöönsä avautuvat aula- ja lämpiötilat, ytimessä 1340-paikkainen päänäyttämö.
47_ 48_
Sävyiltään neutraalin aulan kautta kuljetaan Töölönlahdelle suunnattuihin lämpiötiloihin ja astutaan päänäyttämön hehkuvaan väriskaalaan. Hevosenkengän muotoinen katsomo on punapyökillä verhoiltuine parvineen elegantti versio klassisesta oopperakatsomosta. Näyttämö on ristinäyttämö. Takanäyttämö mahdollistaa syvät lavastukset. Suuren näyttämön 20 metrin syvyys hallitsee talon perusmitoitusta. Näyttämön leveys on 25 metriä.[50]
Talon ensimmäisessä kerroksessa Alminsali on 300-450 -paikkainen. Suorakaiteisessa ja mustalla verhotussa salissa esitetään kamarioopperoita, nykytanssia, konsertteja, lasten teoksia, vierailuja. Sen näyttämö on päänäyttämön kokoinen, joten sitä voidaan käyttää harjoitussalina. Suuri osa aputiloista kätkeytyy maanalaisiin kerroksiin ja sisääntulotorin alle.
Alvar Aallon toimiston suunnittelemat teatterit osana hallinto- ja kulttuurikeskusta
Arkkitehti Alvar Aalto puhui jo 1920-luvulla kulttuurirakennuksista osana länsimaista kulttuuritraditiota, jonka eräs etappi on ollut Ateenan Akropolis.[51] Kulttuurirakennukset toimisivat Aallon mukaan kaupunkisuunnittelun lähtökohtana. Ne loisivat kaupungille identiteetin 1960-luvun kaupunkikeskustoihin.[52]
Aallon 1970- ja 80-luvuilla valmistuneet teatteritalot on rakennettu osaksi hänen suunnittelemiaan hallinto- ja kulttuurikeskuksia Rovaniemellä, Jyväskylässä ja Seinäjoella. Näiden keskusten lähtökohtana oli kansalaisille tarkoitettu kokoontumispaikka, tori, jonne myös teatteri lukeutuu. Seinäjoen ja Rovaniemen kulttuurirakennusten muodostamat keskukset ovat erillään kaupunkikeskustoista. Jyväskylässä keskus toteutui osittain.[53]
Aallon toimiston suunnittelemissa teattereissa näyttämötorni pyrittiin muotoilemaan rakennuksen kokonaishahmon osaksi niin, että teatterille tarpeelliset tuotantotilat pienenivät kaupunkikuvan kustannuksella.[54]
Jyväskylän, Rovaniemen ja Seinäjoen teatterien suunnitteluaika kesti parikymmentä vuotta. Aallon kuoltua 1976 oli arkkitehti Elissa Aallon rooli keskeinen Seinäjoen teatterin suunnittelussa, Aallon piirustusten uudistamisessa ja rakennuksen toteuttamisessa.
Aallon mukaan teatterin arkkitehtuurin tuli irrottaa katsoja arjesta. Sisätilojen arkkitehtuurin tulisi vaihe vaiheelta nostaa odotuksen tunnetta ennen esitystä.[55] Samalla tavalla ajatteli ja kirjoitti Timo Penttiläkin, kenties Aallon vanavedessä. Aallon teatteritaloissa on klassisia elementtejä sisäänkäyntipylväikköjen ja katsomon muodoissa. Lämpiöt ovat väljiä ja vapaamuotoisia, toimistohuoneet muodoltaan säännöllisiä suorakulmaisia tiloja ja toiseen kerrokseen nostetut katsomot pohjaltaan epäsymmetrisiä. Aallon teattereiden katsomot mitoitettiin 400-600 hengelle.[56] Sisustuksissa käytettiin pääosin Aallon toimiston erikoispiirustusten mukaisia ja Artekin kalusteita sekä Aallon eri kohteisiin suunnittelemia valaisimia ja näiden muunnelmia.
Lappia-talo Rovaniemi 1975
Aalto sai Rovaniemen kaupungilta tehtävän suunnitella Lappia-talon osaksi hallinto- ja kulttuurikeskusta. Taloon varattiin tilat teatterin lisäksi maakuntamuseolle, musiikkiopistolle ja yleisradiolle. Kahdessa vaiheessa valmistunut rakennus saatiin kaupunginteatterin, ainoan Lapin alueella toimineen ammattiteatterin käyttöön 1975. Teatteri on toisessa kerroksessa ja näyttämötornin muoto kaartuu ylöspäin tunturin tapaan. Saliin noustaan seremoniallisesti aukion, eteisen ja lämpiön kautta.[57]
28_ 29_
445-paikkainen sali suunniteltiin teatteri-, konsertti- ja kongressikäyttöön. Sali oli yhdistettävissä 145-paikkaiseen studionäyttämöön paljeovella. Tämä on ollut akustinen ongelma, sillä rinnakkaisissa tiloissa ei ole voitu järjestää samanaikaisia esityksiä. Lavastajille katsomon epäsymmetrisyys suhteessa näyttämöön on myös ollut haaste.[58] Suuren salin ja studion takana on vielä kamarimusiikkisali.
Paikalla muuratut ulkoseinät verhoiltiin vaaleilla keraamisilla sauvoilla ja sokkelit mustalla graniitilla. Eteishallin ja lämpiöiden lattioissa käytettiin rovaniemeläisten toiveesta paikallista materiaalia, Lapin marmoria.[59]
30_ 31_
Jyväskylän kaupunginteatteri 1982
Jyväskylän 1961 perustettu kaupunginteatteri esiintyi pitkään Aallon suunnittelemassa työväentalossa vuodelta 1925. Se oli ammattiteatterille vaikea toimintaympäristö. Kaupunki järjesti suunnittelukilpailun teatteritalosta.[60] Vaikka Aalto ei kilpailuun ilmeisesti osallistunut, hän sai kaupungilta toimeksiannon 1964 teatterin käsittävän hallintokeskuksen suunnittelusta.[61] Aalto suunnitteli Jyväskylän hallintokeskusta kahteen kertaan, 1964 ja 1972. Teatteritalo valmistui 1982 Elissa Aallon johdolla.[62]
Rakennuksen pitkää julkisivua Kilpisenkadulle leimaavat toimistojen ikkunarivit. Kansalaistorin suuntaan kohoavat ikkunattomat katsomo ja näyttämötorni. Sisäänkäynti ja lämpiön suuret ikkunat suuntautuvat Kirkkopuistoon, ja tällä sivulla on näyttämötorni peitetty katonlappein. Julkisivuissa on vaaleita keraamisia sauvoja, joita Aallon toimisto kehitteli 1950-luvun alkupuolelta alkaen sisä- ja ulkopintojen edustaviksi materiaaleiksi.
32_ 33_
Kulkuyhteyksien järjestelyä ja salin epäsymmetristä muotoa on rinnastettu Aallon Essenin oopperataloon, jota suunniteltiin ja rakennettiin samanaikaisesti.[63] Pääportaita noustaan hämärähköstä eteishallista korkeaan ja valoisaan lämpiöön. Tilasarjan huipentaa 550-paikkainen sektorin muotoinen, kohden näyttämöä kapeneva sali valkoisine seinineen ja tummine tuoleineen. Akustoiva seinäelementti ja sinivalkoinen väritys muistuttavat Finlandia-talon (1971) salista. Salin sinisävyisen tunnelman viimeisteli Irma Kukkasjärven esirippu.[64] Näyttämöaukko ulottuu sivuseiniin asti; vaikutelmaa on verrattu kreikkalaiseen teatteriin avoimen taivaan alla.[65] Kellarissa on 120-paikkainen studionäyttämö.
34_
Seinäjoen kaupunginteatteri 1987
Seinäjoen kulttuuri- ja hallintokeskus syntyi kahden erillisen Aallon toimistolle tulleen arkkitehtikilpailuvoiton tuloksena. Kauppalantaloa koskevassa arkkitehtikilpailussa 1958 Aalto esitti teatteritalon sijainnin ja muodon.
Vaikka Seinäjoella ei ollut ammattimaista teatteritoimintaa 1960-luvun alussa, tilattiin Aallon arkkitehtitoimistolta teatterin luonnospiirustukset.[66] Seinäjoelle kasvoi ammattiteatteri 1970-luvun alkuun mennessä,[67] lisäksi kaupungissa vietettiin vuotuista harrastajateatterin festivaalia.
Teatterin suunnittelua jatkettiin 1960-luvun ajan painotuksen vaihdellessa teatteri-, konsertti- ja kongressikäytön välillä. Rakennus valmistui Elissa Aallon johdolla 1987 teatterikäyttöön.[68] Teatteritalo valmistui Aalto-keskukseen viimeisenä ja se sulkee aukion, jonka huipentaa toisessa päässä kirkko. Rakennuksen runko on betonia ja ulkoseinissä on kiinnitetty klinkkerisauvoja tiilimuuraukseen. Näyttämötorni on verhoiltu kuparilla.[69]
35_
Alalämpiöstä, jossa on kahvila-ravintola, noustaan leveää porrasta ylälämpiöön. Sieltä avautuu näkymä kohden kaupungintaloa. Alvar-salissa on 429 katsojapaikkaa. Etunäyttämö on muunnettavissa orkesterisyvennykseksi. Kellarikerroksessa on 100–110 paikkainen Elissa-sali ja 60-paikkainen Verstasteatteri.[70] Sisääntulohallin ja lämpiön päämateriaalit ovat kalkkikivi ja tammi. Teatterisali on sävyiltään hillitty, vastakohtana sille on Juhana Blomstedtin suunnittelema voimakas Daidalos-esirippu.[71]
JUHLAVUUTTA VAI RENTOUTTA - SUURISTA SALEISTA HUONETEATTEREIHIN
Vasemmistolainen kulttuuripolitiikka vahvistui sosiaalidemokraattien vaalivoiton jälkeen 1966. Toisen maailmansodan jälkeen syntyneet suuret ikäluokat tulivat aikuisikään. He asuivat kaupungeissa. Heillä oli vapaa-aikaa ja varaa käydä teatterissa. Teatteri uudistui dynaamisesti ja katsojaluvut nousivat. Uuden sukupolven esiinmarssi oli vallankumouksellisena pidetty musiikkinäytelmä Lapualaisooppera (1966), jonka kirjoitti Arvo Salo ja sävelsi Kaj Chydenius.[72]
Sekä teatteriväki että arkkitehdit keskustelivat teatterin olemuksesta 1960-luvun lopulle ominaiseen poliittiseen sävyyn. Kysyttiin, miten taide löytäisi tiensä suurten talojen eliittikukkuloilta kansan tykö. Suomesta puuttuivat pienet, intiimit, tule sellaisina kuin olet, vaikkapa villapaidassa -tyyliset teatterit.[73] Niitä syntyi Euroopan kaupunkeihin jo 1890-luvulla, mutta Suomeen vasta seuraavina vuosikymmeninä.[74]
Monumentaalisia ja juhlavia teatteritaloja verrattiin teknisen varustuksensa ja näyttämökoneistuksensa puolesta tehtaisiin, vaikka ne poikkesivat tehtaista arkkitehti Timo Penttilän sanoin täydellisen kannattamattomuutensa kautta.[75]
Teatterinjohtajien mukaan oli helppoa löytää ohjelmistoa pienelle näyttämölle, muttei suurelle, joka ratkaisee toiminnan taloudellisen kannattavuuden.[76] Suuret näyttämöiden klassikoita, uutuusteoksia ja musikaaleja jotkut arvostelivat viihteelliseksi kunnallispalveluksi.[77] Samojen laitosten pienillä näyttämöillä otettiin taloudellisia riskejä taiteellisesti kokeellisella ohjelmistolla.[78]
Mustat laatikot
Arkkitehti Walter Gropius oli luonnostellut Saksassa 1927 Totaaliteatteria, joka salli näyttämön ja katsomon muodon ja keskinäisen aseman joustavan muuntamisen erilaisiin esitystilanteisiin.[79] Siitä inspiroiduttiin 1960-luvulla, ja toivottiin muunneltavaa suhdetta näyttämön ja katsomon välillä. Syntyi ajatus neutraalitilasta, jonka muoto on yleensä suorakaide.
1960-luvun lopulla virinneeseen keskusteluun teatterin muodosta osallistui intensiivisesti arkkitehti Pentti Piha. Hän korosti kirjoituksissaan teatteritilan muunneltavuutta ja vastusti ylimitoitettua näyttämötekniikkaa. Olisi kumottava barokkiteatterin keskeisperspektiivi ja mahdollistettava esitystilanteet katsojien keskellä. [80]
Piha ja hengenheimolaiset ihailivat Gropiuksen teknisesti haastavaa, muunneltavaa totaaliteatteria. Pihan suunnittelemassa Intimiteatterissa (sittemmin teatteri Pienessä Suomessa) 1981 Itä-Pasilassa tila oli mustaksi verhottu musta laatikko ja sen muunneltavasta studio- eli neutraalitilasta tuli muissa teattereissa toistettu ratkaisu. Katsomomuotoa muunnellaan kuitenkin harvoin, sillä se on työlästä.[81]
Piha suunnitteli myös 1984 valmistuneen Helsingin Itäkeskuksen monitoimitalo Stoan kahden muunneltavan teatterisalin tekniikan, tilaohjelman ja ulkoasun. Teatteritilat eivät erotu monitoimitalon ulkoarkkitehtuurissa eikä niissä ole näyttämötornia. Sisään tullaan samasta eteistilasta kuin monitoimitalon muihinkin tiloihin. Salit ovat kuutiomaisia eikä niissä ole erotettu esitys- ja yleisötiloja arkkitehtonisesti toisistaan. Nousevien katsomoiden tuolirivejä voidaan muunnella siirrettävien vaunujen avulla, mutta näyttämötornin pois jättäminen rajoittaa lavastusmahdollisuuksia.[82]
42_
Intiimit pikkunäyttämöt
Uusia pieniä näyttämöitä ja studioita eli taskunäyttämöitä rakennettiin jo valmiisiin suuriin teatteritaloihin.[83] Esimerkiksi Turun kaupunginteatteriin tehtiin muunneltava Sopukka. Kansallisteatterissa Pienen näyttämön ravintola Teatterigrilli muutettiin 1976 Willensauna-studioksi. Siitä tuli Kansallisteatterin vanhimman päänäyttämön ja Pienen näyttämön jälkeen kolmas näyttämö. Neljäs ja pienin Omapohja-studio avattiin 1987 kadun toiselle puolelle.[84]
Konsepteiltaan erikoistuneita pikkuteattereita syntyi Ruotsiin ja Keski-Eurooppaan 1900-luvun alussa. Kamari- tai huoneteatterissa näyttelijän ja katsojan yhteys on välitön. Suomessa ne yleistyvät 1960-luvun alusta lähtien.[85] Yksi ensimmäisistä oli Helsingissä Lilla Teatern, joka perustettiin 1940-luvun lopulla.[86]
TEATTERIT KULTTUURIKESKUKSISSA
Monitoimitaloihin ja kulttuurikeskuksiin haluttiin keskittää erilaisia toimintoja ja julkisia palveluja. Eri kulttuurimuotojen väliset raja-aidat haluttiin häivyttää. Monitoimitaloihin tehtiin usein konsertti-, teatteri- ja kongressisaleja, opetustiloja, kirjasto ja näyttelytilaa. Kulttuurikeskuksia rakennettiin huippukautena 1980-luvulla yli 20.
Kulttuurikeskusten teattereissa hyödynnetään usein koko rakennukselle yhteisiä aulapalveluita. Erillisiä lämpiötiloja ei aina ole. Teatterisaleissa on suosittu neutraalitilaa.[87] Joskus kulttuurikeskuksessa toimii laitosteatteri, mutta pienissä kaupungeissa yleistä on ollut ammattijohtoisen harrastajateatterin malli.[88]
Kulttuurikeskuksia ja monitoimitaloja rakennettiin joka puolelle maata, kuten Iisalmelle, Lieksaan, Nurmekselle, Outokumpuun, Järvenpäähän, Hyvinkäälle ja Vantaalle.[89]
Kemin kulttuurikeskus 1980
Kemin kulttuurikeskuksen suunnittelivat arkkitehdit Jan Söderlund ja Erkki Valovirta. Taloon suunniteltiin tilat laitosteatterille. Massiivisen eleettömästä tiilirakennuksesta nousevat voimakkaina muotoina korkea näyttämötorni ja taka- ja sivunäyttämöt. Kulttuurikeskus ja kaupunginteatterin sisäänkäynti osoitetaan pohjakerroksen pylväiköllä, mikä erottaa rakennuksen ympäristön liike- ja asuinrakennuksista. Suunnittelussa korostettiin arkisuutta ja käytännöllisyyttä, esimerkiksi lämpiö korvattiin samassa talossa olevan kauppaoppilaitoksen ruokasalilla. Teatterisalissa on 300-paikkainen nouseva katsomo kaartuvine tuoliriveineen.[90]
36_
Kuusankoski-talo 1985
Kuusankosken kaakkoisuomalainen teollisuusyhdyskunta teki ”historiansa mittavimman investoinnin” ja rakensi kulttuurin monitoimitalon kaupungin keskeiselle tontille Kymijoen varteen. Vuonna 1980 käydyn arkkitehtuurikilpailun voitti arkkitehtitoimisto Brunow & Maunula ja talo valmistui 1985. Materiaalien ja muotojen vaihtelu tekee rakennuksesta rytmiltään eloisan. Julkisivut on vuorattu punatiilellä ja vaaleilla laatoilla. Aulasta avautuvat näkymät Kymijoelle. Teatterin 220-paikkainen katsomo on neljännesareenan mallinen ja seinät puulla paneloidut.[91] Teatterisali on tunnelmaltaan intiimi ja lämmin.[92]
37_
Pieksämäen Kulttuurikeskus Poleeni 1989
1980-luvun postmoderni arkkitehtuuri pyrki karttamaan monumentaalisuutta ja
viittasi mielellään historiaan. Kulttuurikeskus Poleenin 1989 suunnittelija, arkkitehti Kristian Gullichsen esitteli rakennuksen kontekstuaalisena, käsiteellisenä ja tilallisena leikkinä.[93] Valkea yleisilme sitoo talon Pieksämäen keskustan funkisarkkitehtuuriin.
Postmoderneja piirteitä ovat katuseinämän aaltoilu, pylväät, parvekeaiheet ja portaikko sisätiloissa. Kapean viuhkan muotoinen 342-paikkainen monitoimisali palvelee teatteria, konsertteja, luentoja ja elokuvia. Tilaa muunnellaan akustoivilla levyillä. Teatteria käyttävät ammattilaiset ja harrastajat, ja sillä on oma lämpiönsä, pukutilansa, puvustamonsa ja pieni lavastamonsa. 50-paikkainen kellariteatteri on pääosin harrastajien ja taiteen perusopetuksen käytössä.[94]
39_40_
Arto Sipisen suunnittelemien kulttuurikeskusten sarja
Arkkitehti Arto Sipinen suunnitteli näyttävän sarjan kulttuurikeskuksia: Imatran talo valmistui 1986, Mikkelin 1988, Espoon 1989 ja Kuusamon 1994. Sipisen kulttuurikeskukset ovat kuin valkeista kuutioista rakentuvia ulkonevine saliosineen. Valoisista ja juhlavista lämpiöistä tarjoutuu näkymiä puistoon ja vesiaiheisiin. Kaavaillut teatterit jäivät monin osin rakentamatta. Tapiolassa Espoon kaupunginteatteri esiintyy Louhi-salissa, joka on muunneltavissa 227–400 -paikkaiseksi pienimuotoisiin teatteriesityksiin, konsertteihin, kokous- ja elokuvateatterikäyttöön.[95]
41_
TEATTERIA TEHTAISSA JA ARJEN KESKELLÄ
Teatterintekijät halusivat 1960-luvun lopulta lähtien esiintyä muuallakin kuin teatteritaloissa. Näytöksiä vietiin työpaikoille, kouluihin ja päiväkoteihin, myöhemmin tehdashalleihin ja kaduille. 1970-luvulta alkaen näyttelijäryhmät hakivat esityksiinsä ”arjen patinaa, rähinää ja särmää”.[96] Esiintymistiloja löytyi entisistä elokuvateattereista, kuten Tampereen Ahaa Teatteri (1971) sekä oppilaitoksista ja kirjastoista.[97] Arkkitehtuurin vaatimattomuutta kompensoi tilanteen välittömyys ja hyvä näyttämö-katsomo -suhde.
43_
Kun teollisuus alkoi muuttaa pois kaupunkikeskustoista, jäi mittavia teollisuustiloja tyhjäksi. Teatteriesityksiä toteutettiin teollisuustiloissa ja isoissa halleissa. Yleisöä saatettiin kuljettaa esityksiin hämärien, mutkikkaiden tilojen läpi ja näin valmistaa heitä kokemukseen. KOM-teatterin Kullervon esitys Helsingin Suvilahden vanhassa voimalassa 1980-luvulla oli uranuurtaja.
50_
Satunnaisten näytösten lisäksi tehtiin tehdaskiinteistöihin pysyviä teatteritiloja. Niistä mainittakoon 1913 valmistuneen Tampereen teatterin lisänäyttämö Frenckell Satakunnan sillan viereisessä tehdaskiinteistössä (1982), Manilla-tehtaan teatteritilat entisessä köysitehtaassa Turussa (1991), Teatteri Vantaa Silkkitehtaalla (1995) ja Tryckeri teatern Karjaalla vanhassa painotalossa (1995).[98]
Vaikutteiden reitit ovat 1980-luvulta lähtien laajentuneet festivaalien ja kansainvälisten yhteistöiden myötä. Lajityyppien rajat ja lähestymistavat ovat monipuolistuneet. Teatterilaiset ovat jalkautuneet lähiöihin esityksin ja työpajoin, yksittäiset näyttelijät ovat esiintyneet vankiloissa ja sairaaloissa.[99]
OSALLISTAMISTA JA LUMOAMISTA
Suomalaisiin lomarituaaleihin kuuluu kesäteatteri. Viileä sää, puupenkki ja väliaikakahvi pahvimukista ovat osa elämystä ja esitystä.[100] Pyynikin vuonna 1959 valmistunut Kesäteatteri Tampereella sai ensimmäisenä pyörivän katsomon. Sadat tuhannet ovat siellä nähneet Tuntemattoman sotilaan esityksen. Linnoissa ja linnoituksissa toimii usein kesäteatteri: Turun linnassa ja Raaseporissa on näytelty, Suomenlinnan Hyvän Omatunnon linnake ja Olavinlinna on katettu esitysten tarpeisiin. Olavinlinna on kesäisin perinteinen oopperamiljöö.
Teatterirakennusten ja –esitysten moninaisuus ulottuu vanhoista 1800-luvun lopun ja 1900-luvun alun teattereista nuorempiin, suuriin laitosteattereihin, pieniin studionäyttämöihin ja tehtaisiin rakennettuihin tiloihin.
51_
Kirjoittaja
Tekniikan tohtori arkkitehti Aino Niskanen on tehnyt pitkän uran arkkitehtuurin historian opettajana ja professorina Teknillisessä korkeakoulussa (Aalto yliopisto vuodesta 2010). Ansioituneen kirjoittajan artikkeli Kulttuurin ja vapaa-ajan tiloja koko kansalle on julkaistu teoksessa Rakennetun Suomen tarina.
Artikkeli on julkaistu 2020.
KIRJALLISUUS
Aalto, Elissa 1987: Seinäjoen teatteri, Seinäjoki. Arkkitehtitoimisto Alvar Aalto & Co. Arkkitehti 7/1987, 45–50.
von Bagh, Peter 2007: Sininen laulu. Itsenäisen Suomen taiteiden tarina. Helsinki: WSOY.
Dahlström, Eila - Grönberg, Anita 1967: Teatteriyleisö sosiaaliryhmittäin. Arkkitehti 10-11 1967, 46.
Edström, Mats - Piha, Pentti 1976: Rum och teater. Oslo: Gyldendals Norsk Förlag.
Grönholm, Birger 1988: Tekniikkaa näyttämöllä. Helsinki: Valtion painatuskeskus.
Hyvämäki, Eero 1995: Arkkitehtoniset ratkaisut. Oopperatalo. The Operahouse, das Opernhaus Helsinki. Toim. Tapani Eskola. Helsinki: Kustannus Oy Projektilehti, 104.
Jaatinen, Marjatta ja Martti 1967: Oulun monumentaalikeskus. Arkkitehti 3-4/1967, 30-34.
Jaatinen, Marjatta ja Martti 1967: Oulun kaupunginteatteri. Arkkitehti 10-11/967, 30-33.
Jaatinen, Marjatta 1985: Tampereen Työväen teatteri. Arkkitehti 8/1985, 58–65.
Jaatinen, Martti 1986: Tampereen työväen teatteri. Muoto 1/1986, 50–51.
Kemppinen, Kullervo 1993: Uusi oopperatalo - Toiveet uusiksi. Det nya operahuset - En dröm blir verklighet. Ooppera ja näyttelykeskussäätiö r.s.
Koho, Timo 1991: Teatteriarkkitehtuurin merkitysarvot: teatterirakentamisen suhde yhteiskunnan arvomaailmaan kaupungistuvassa Suomessa. Helsinki: Suomen Muinaismuistoyhdistys.
Korsberg, Hanna – Lylykangas, Kimmo 2007: Helsingin Kaupunginteatterin rakennus. Kansaa teatterissa. Toim. Pirkko Koski. Like 2007, 52–66.
Kulttuurikeskus Poleeni, Pieksämäki. Gullichsen – Kairamo - Vormala Arkkitehdit KY. Arkkitehti 8/1989, 44–51.
Lahden teatteritalo, Arkkitehtitoimisto Pekka Salminen KY KSS. Arkkitehti 5-6/1983, 54-64.
Linko, Jukka 1985: Teatteritila monikäyttöisissä rakennuksissa: opas kulttuuri- vapaa-aika- ja koulutilojen suunnittelijoille ja peruskorjaajille. Helsinki: Taiteen keskustoimikunta.
Luukkonen, Risto-Veikko - Stenroos, Helmer 1963: Turun teatteritalo. Arkkitehdit Risto Veikko Luukkonen ja Helmer Stenroos. Arkkitehti 9/1963, 183–197.
Maunula, Jussi 1985: Kuusankoski-talo. Arkkitehti 8/1985, 46–57.
Oopperatalo. The Operahouse, das Opernhaus Helsinki. 1995. Toim. Tapani Eskola. Helsinki: Kustannus Oy Projektilehti.
Paavolainen, Pentti 1992: Teatteri ja suuri muutto. Ohjelmistot sosiaalisen murroksen osana 1959–1971. (diss. HY) Suomen Teatterijärjestöjen Keskusliiton 50-vuotisjuhlakirja. Helsinki: Kustannus Oy Teatteri.
Penttilä, Timo 1967 A: Helsingin kaupunginteatteri. Arkkitehti 10-11/ 1967, 9-21.
Penttilä Timo 1967 B: Teatterisuunnittelun lähtökohdista. Arkkitehti 10-11/ 1967, 27.
Piha, Pentti 1981: Intiimiteatteri. Ratamestarinkatu 5, Helsinki. Arkkitehti 8/1981, 46–49.
Salminen, Pekka 1983: Lahden teatteritalo, Lahti. Arkkitehtitoimisto Pekka Salminen & Ky KSS. Arkkitehti 5-6/1983, 54-64.
Sipinen, Arto 1989: Espoon kulttuurikeskus. Arkkitehti 2/1989/2, 44–51.
Sirén, Heikki 1947: Teatteritaloehdotus Helsinkiin, Arkkitehti 1-2/1947, Liite 5-7.
Wasastjerna, Rurik 2011: Sivistys- ja urheilutalo. Muutakin kuin rautatieristeys – Kouvolan keskustaajaman kaavoitus- ja rakennusperintö. Kouvolan kaupunginmuseo, 244–247.
Wegelius, Marja-Leena 1989: Linnunpesiä vai kultasia häkkejä. Teatteri tilassa. Theatre in space. FONDI. Teatterimuseon vuosikirja n:o 3. Helsinki: Teatterimuseo, 49–55.
Witikka, Jack 1989: Ei tila vaan ihmiset. Teatteri tilassa. Theatre in space. FONDI. teatterimuseon vuosikirja n:o 3. Helsinki: Teatterimuseo, 11–13.
RAKENNUSHISTORIASELVITYKSET
Arkkitehtitoimisto Freese & Schulman 2018: Kansallisteatteri. Pieni näyttämö. Rakennushistoriaselvitys 15.6.2018.
Haavisto, Heli 2012: Tampereen Työväen Teatterin rakennusinventointi. Painamaton raportti. Tampereen museot, Kulttuuriympäristöyksikön arkisto.
Kati Salonen ja Mona Schalin Arkkitehdit Oy 2013: Helsingin kaupunginteatteri. Rakennushistorian selvitys ja inventointi 10.2.2013.
Lukkarinen, Päivi ja Pöysälä, Hannu 2005: Rovaniemen kulttuuri- ja hallintokeskuksen sekä Lappia-talon rakennushistoriaselvitys.
Malmberg, Jonas 2014: Rakennushistoriaa ja säilyttämisen tavoitteita. Jyväskylän kaupunginteatteri. Arkkitehtitoimisto Alvar Aalto & Co, 1982. Alvar Aalto -säätiö.
Penttilä, Jaakko 2004 A: Seinäjoen teatteri, säilyneisyyskartoitus. Alvar Aalto -säätiö, 2003–2004.
Penttilä, Jaakko 2004 B: Seinäjoen kulttuuri- ja hallintokeskus, rakennushistoriallinen selvitys. Alvar Aalto -säätiö 2003–2004.
VERKKOJULKAISUT
Korsberg, Hanna 2005: Suomen kansallisteatterin Pieni näyttämö ja Huomenna hän tulee 1954. Ennen ja nyt 3/2005 http://www.ennenjanyt.net/2005_3/referee/korsberg.html (haettu 23.1.2020).
Wasa Teater. https://fi.wikipedia.org/wiki/Wasa_Teater (haettu 23.1.2020).
Paavolainen, Pentti: Suomen teatterihistoria. Teatterikorkeakoulun julkaisusarja 53. Taideyliopisto. https://disco.teak.fi/teatteri/ (haettu 23.1.2020).
Teatterikorkeakoulun historia https://www.uniarts.fi/teatterikorkeakoulu/historia (haettu 23.1.2020).
https://www.tieteentermipankki.fi (haettu 23.1.2020).
HAASTATTELUT JA SÄHKÖPOSTIT
Almi, Heidi, sidosryhmäpäällikkö, Kansallisooppera, haastattelu 17.10.2019, e-mail 6.11.2019.
Högström, Hilkka, Teatterit maakunnissa, maakuntamuseoiden vastauskooste, Museovirasto 2019.
Korsberg, Hanna, teatteritieteen professori HY, haastattelu 21.6.2016.
Laasonen, Ilkka teatterinjohtaja ja Toivonen, Jukka, teatterin ent. käyttöpäällikkö, Lahden teatteri, haastattelu 14.10.2019.
Majoinen, Päivi, Kulttuurikeskus Poleenin johtaja, e-mail 28.9.2019.
Malmberg, Jonas, Alvar Aalto säätiö, arkkitehti. e-mail 18.10.2019.
Paavolainen, Pentti, professori haastattelu 17.10.2019 ja e-mail 23.10.2019.
Rehtilä, Antti, tekninen johtaja, Helsingin kaupunginteatteri, haastattelu 1.10.2019.
Salmi, Pekka, toimitusjohtaja ja Lehtinen, Mika tekninen päällikkö, Tampereen työväenyhdistys ja Tampereen Työväen Teatteri, haastattelu ja vierailu talossa 10.10.2019.
Seilo, Raija-Liisa, Suomen teatterimuseon johtaja, haastattelu 24.5.2016.
Valtari, Anna, e-mail 24.10.2019.
LÄHDEVIITTEET
[1] Antiikin Kreikassa alun perin ympyrän-, sittemmin puoliympyrän muotoinen tanner, jossa tanssittiin ja laulettiin. Kreikkalaisessa teatterissa kuoro ja näyttelijät esiintyivät alun perin orkhestrassa, jonka keskellä sijaitsi Dionysoksen alttari. Myöhemmin näyttelijöitä varten rakennettiin koroke, ja kun kuoro jäi käytöstä, arvokkaimmat katsojat sijoitettiin orkhestraan. tieteentermipankki.fi.
[2] Linko 1985, 14–15.
[3] Linko 1985, 12–13.
[4] Teatterirakennukseen soveltuu arkkitehti Louis Kahnin määritelmä rakennuksen jakautumisesta palveltaviin ja palveleviin tiloihin.
[5] Grönholm 1986, 24.
[6] Koho 1991, 11. Esim. Turun kaupunginteatterissa näyttelytila muokattiin jälkikäteen pieneksi studionäyttämöksi.
[7] Heikkilä 1967, 41.
[8] Paavolainen 17.10.2019.
[9] Paavolainen 1992, 21–66.
[10] Paavolainen luku 6.1. https://disco.teak.fi › teatteri Suomessa
[11] Paavolainen haastattelu 17.10.2019.
[12] https://www.uniarts.fi/teatterikorkeakoulu/historia
[13] Jack Witikka (1916–2002), teatterinjohtaja ja ohjaaja. Witikka 1989,11.
[14] Kansallisteatterin taloa laajennettiin Kaisaniemen puiston suuntaan jo 1926 ja uudestaan 1954.
[15] Koho 1991, 42–45; Siren nimesi ihanteeksi Gropiuksen totaaliteatterin. Siren 1947, 5–7.
[16] Laajempi kuvaus Pienestä näyttämöstä rakennushistoriaselvityksessä Arkkitehtitoimisto Freese & Schulman 2018.
[17] Paavolainen 17.10.2019.
[18] Koho 1991, 45.
[19] Paavolainen, luku 6.1 https://disco.teak.fi › teatteri Suomessa; Wasa Teater https://fi.wikipedia.org/wiki/Wasa_Teater.
[20] Paavolainen, luku 6.1 https://disco.teak.fi › teatteri Suomessa.
[21] v. Bagh 2007, 377.
[22] Wasastjerna 2011, 244.
[23] Teatterien rakennusmäärärahan vireille paneminen 1958 aiheutti boomin. Laitosteatterien yhteyteen syntyi 1970-luvulla alueteatteritoiminta.
[24] Se oli toiminut pitkään tilapäisissä tiloissa, vuodesta 1946 Aallon suunnittelemassa Turun Maalaistentalon 500-paikkaisessa teatterissa, joka 1954 tuhoutui tulipalossa. Palon jälkeen ryhdyttiin ajamaan uuden teatteritalon rakentamista.
[25] Toteutus perustui osittain kilpailuvoittoon: tontti lyheni ja sen takaa vedettiin katu, rakennusta lyhennettiin ja kerroslukua lisättiin. Luukkonen - Stenroos 1963, 187.
[26] Koho 1991, 53–54.
[27] Koho 1991, 55, 59.
[28] Helsingin kansanteatteri ja Helsingin työväenteatteri yhdistyivät Helsingin Kansanteatteri-Työväenteatteriksi 1948 ja tästä syntyi Kaupunginteatteri 1965. Arkkitehtuurikilpailu järjestettiin 1959, voittajina Timo Penttilä ja Kari Virta 1961. Suunnitteluun osallistuivat Timo Penttilän rinnalla arkkitehdit Pekka Salminen ja Juhani Sivula. Sisustussuunnittelijana sisustusarkkitehti Maija Ruoslahti. Penttilä Timo 1967 A, 11.
[29] Korsberg - Lylykangas 2007, 64.
[30] Salonen - Schalin 2013,35, 73.
[31] Salonen - Schalin 2013, 55.
[32] Koho 1991, 69.
[33] Salonen - Schalin 2013, 22.
[34] Laajennuksen suunnittelivat Timo Penttilä, Kari Lind ja Sakari Tilanterä. Salonen - Schalin 2013, 109.
[35] Jaatinen Marjatta ja Martti 1967: Oulun monumentaalikeskus.
[36] Jaatinen Marjatta ja Martti 1967: Oulun Kaupunginteatteri; Koho 1991, 79–83.
[37] Voittaneen ehdotuksen laati Koivisto - Salminen - Siivola. Luottamusmieskäsittelyn jälkeen suunnitelmaa jouduttiin muokkaamaan tuntuvasti. Talo suunniteltiin 1976–1983. Salminen, Pekka 1983, 54.
[38] Penttilä 1967 A, 9.
[39] Koho 1991, 125.
[40] Salminen, Pekka 1983, 63.
[41] Tämä tehtiin korjauksessa 2007, jossa myös salin alkuperäinen vaaleahko puna-vihreä väritys muutettiin tummaksi ja automatisoitiin nostinjärjestelmä. Vierailu teatterissa 14.10.2019
[42] Salminen, Pekka 1983, 59, 62.
[43] Tampereen työväentalo valmistui 1900. Se sai 1905 kokous- ja juhlasalirakennuksen, jonne tuli teatteri. Rakennusta laajennettiin 1930, jolloin lisättiin pohjoissiipi ja Hämeenpuiston kulmaosa korotettiin kahdensankerroksiseksi. Haavisto 2012, 7.
[44] Jaatinen Marjatta ja Martti 1985, 58–65.
[45] Paavolainen, e-mail 23.10.2019.
[46] Vierailu talossa 10.10.2019.
[47] Koho 1991,84.
[48] Jaatinen, Martti 1986, 50.
[49] Talon syntyprosessista kts. Kemppinen 1993.
[50] Hyvämäki 1995.
[51] Wegelius 1989, 53. Ensimmäiset teatterinsa Aalto suunnitteli Jyväskylän Työväentaloon 1924 ja Turun Maalaistentaloon 1927–28. Aalto suunnitteli kreikkalaisittain porrastettuja ulkoilmateattereita useaan kohteeseen (Tiilimäen studio, Aalborgin taidemuseo, Jyväskylän yliopisto). Toteutumattomista suunnitelmista kiinnostava oli viuhkanmuotoisen katsomon ehdotus kilpailussa Kuopion teatterista 1951. Kts. Göran Schildt: Alvar Aalto a Life´s Work. Helsinki: Otava Publishing Company, 102-103.
[52] Koho 1991,90.
[53] Koho 1991,90, 97.
[54] Koho 1991, 90.
[55] Koho 1991,91.
[56] Koho 1991, 90.
[57] Koho 1991, 93.
[58] Laasonen, haastattelu 14.10.2019.
[59] Lappia-talon rakennushistoriaselvitys 2005, 35.
[60] Malmberg 2014, 11–12.
[61] Malmberg 2014, 9.
[62] Koho 1991, 97.
[63] Malmberg 2014, 24.
[64] Esirippu on poistettu, ainakin toistaiseksi varastoitu. Malmberg 18.10.2010.
[65] Koho 1991, 100 viittaa Göran Schildtin näkemykseen suomalaisesta antiikin teatterin metaforasta. Kts. Göran Schildt: Valkoinen Pöytä. Helsinki: Kustannusosakeyhtiö Otava, 1982, 227–230.
[66] Penttilä, Jaakko, 2004 B, 59.
[67] Eri suunnissa juuriaan kasvattanut teatteritoiminta johti lopulta Seinäjoen kaupunginteatterin kannatusyhdistyksen perustamiseen 1963 ja ensimmäiseen kaupunginteatterin ensi-iltaan 1964. e-mail Valtari 24.10.2019.
[68] Pääpiirustukset valmistuivat 1968, niissä talo oli vain teatterikäytössä. 1979 jatkui toteutussuunnittelu arkkitehtitoimisto Alvar Aalto & Co:ssa Elissa Aallon johdolla. Julkisivumateriaalista virinneen kiistan vuoksi pääpiirustukset valmistuivat 1984. Aalto, Elissa 1987, 45–46.
[69] Penttilä Jaakko 2004 A, 71.
[70] Valtari, Anna, e-mail 24.10.2019.
[71] Aalto, Elissa 1987, 46-
[72] Paavolainen luku 6.4 https://disco.teak.fi › teatteri Suomessa.
[73] Dahlström - Grönberg 1967, 46–47.
[74] Koho 1991, 30, 60–61.
[75] Penttilä Timo 1967 B, 27.
[76] Paavolainen 1992.
[77] Jussi Parviainen keskustelussa nykyteatterista. v. Bagh 2007, 64.
[78] Paavolainen, e-mail 23.10.2019.
[79] Mallissa esitettiin kolme vaihtoehtoa tilan muunteluun: etunäyttämöön, areenaan ja tirkistyslaatikkoon perustuva. Suomessa Pauli Blomstedt suunnitteli 1934–35 Helsingin Hakanimen torille Kansanteatteria, jossa oli vaikutteita Totaaliteatterista ja neuvostokonstruktivismista. Se ei toteutunut. Ks. Standertskjöld, Elina 1996: P.E. Blomstedt 1900–1935. Helsinki: Suomen rakennustaiteen museo, 66–72.
[80] Edström - Piha 1965; Piha 1981, 46–49; Mäkiö - Piha 1973, 44–45.
[81] Rehtijärvi 30.9.2019.
[82] Koho 1991,112.
[83] Paavolainen haastattelu 17.10.2019.
[84] Koho 1991, 47.
[85] Paavolainen Luku 6.1 https://disco.teak.fi › teatteri Suomessa. Myös Intiimiteatteri ja Teatteri Jurkka olivat varhaisia, maineikkaita huoneteattereita.
[86] Paavolainen haastattelu 17.10.2019. Myös Intiimiteatteri ja Teatteri Jurkka olivat varhaisia ja maineikkaita
[87] Koho 1991, 112.
[88] Ammattiohjaajan ja harrastajien yhdistelmä on mm. Kuusankoski-talossa, Salossa ja Valkeakoskella. Paavolainen haastattelu 17.10.2019.
[89] Teatterit maakunnissa, vastauskooste Högström 2019.
[90] Koho 1991, 120–121.
[91] Maunula 1985, 48.
[92] Paavolainen, haastattelu 17.10.2019.
[93] Gullichsen 1989, 44.
[94] Majoinen sähköposti 28.9.2019. Näyttämömekaniikka uusittiin kesinä 2016–2018.
[95] Sipinen 1989, 44.
[96] Seilo, haastattelu 24.5.2016
[97] Elokuvateattereita on teatterikäytössä. Helsingissä useita, Turussa, Vehmaalla ja Outokumussa. Entisiä kouluja ja kirjastotaloja on käytössä mm. Rääkkylässä ja Raumalla. Entisiä suojeluskuntataloja on käytössä mm. Kokkolassa. Teatterit maakunnissa, vastauskooste Högström 2019.
[98] Seilo haastattelu 24.5.2016; Tampereella ja Turussa on käytetty ja käytetään teollisuustiloja samoin Hämeenlinnassa ja Haapavedellä. Teatterit maakunnissa, vastauskooste Högström 2019.
[99] Seilo haastattelu 24.5.2016.
[100] Kesäteatteri on yhä voimissaan: Helsingin Sanomat listasi 2016 yhteensä 66 erilaista kesäteatteria ympäri maata HS.fi/kulttuuri.
_Oik.: Tirkistyslaatikkonäyttämö.
_Oik.: U-teatteri.
_Oik.: Täysareenateatteri. Kuvalähde: Linko 1985.
Teatterirakennuksen tilat ja tekniikka
Teattereissa lämpiöt, katsomot ja näyttämöt palvelevat yleisöä. Samoin lippukassat, vaatesäilytys-, wc- ja tarjoilutilat. Yleisötilojen viimeistely ja luonne vaihtelevat juhlavasta epäseremonialliseen. Eteistiloista yleisövirrat ohjataan mutkattomasti lämpiön kautta katsomoon. Lämpiöt ovat yleisön kohtaamispaikkoja tarjoilupisteineen ja istumapaikkoineen. Lämpiöt tarjoavat usein kiinnostavia näkymiä sekä talon sisällä että sieltä ulos.
Henkilökunnan tiloja ovat näyttämö ja siihen liittyvät tekniset tilat, varastot, toimistot, pukuhuoneet, harjoitus- ja sosiaalitilat.[4]
03_
Monen teatterin päänäyttämön voi erottaa kaupunkikuvasta jykevän näyttämötornin ansiosta. Näyttämötorni on raskaan tekniikan ja koneistuksen vaatima tila. Yläkoneistukseen kuuluvat lavastenostimet, esiriput ratoineen ja koneistoineen, taustat, valaistusansaat ja sillat. Alakoneistoihin kuuluvat pyörönäyttämöt ja- lavat, tasonostimet, orkesterinostimet, näyttämövaunut ja katsomovaunut.[5] Käsikäyttöinen koneistus on vaiheittain muutettu tietotekniikka-avusteiseksi. Näyttämötorneissa riiputetaan samanaikaisesti usean esityksen fondeja eli taustakuvia, lavastus- ja seinäelementtejä sekä valkokankaita.
45_
Kun päänäyttämöön liittyvät sen molemmin puolin olevat sivunäyttämöt ja takana on takanäyttämö, näyttämöä kutsutaan muotonsa mukaan ristinäyttämöksi. Näissä päänäyttämön aputiloissa säilytetään sekä meneillään olevien että tulevien esitysten tarpeistoa. Suuriin teatteritaloihin tehtiin yleensä sekä suuri näyttämö että pienempi muunneltava studio. Sivunäyttämöiden joustava yhteys samassa lattiatasossa suureen näyttämöön, pieneen näyttämöön sekä työpajoihin on toiminnallisesti edullinen ominaisuus esimerkiksi lavastusten vaihtojen kannalta. Tällaisia ratkaisuja ei kaikkiin suuriinkaan laitosteattereihin heti rakennettu. Malleja näyttämötekniikan ratkaisuihin ja koneistukseen haettiin Länsi-Saksasta, jossa oli yleistynyt ristinäyttämö, jossa sivu- ja takanäyttämö liittyvät kurkistuslaatikkonäyttämöön.[6]
22_
Suunnittelijan oli luotava joustavat puitteet näyttelijän, ohjaajaan, lavastajan, valaistusmestarin ja näyttämöteknikon työlle.[7] Teknisiin tiloihin lukeutuvat puvustamo, ompelimo, puutyöpaja, lavastamo, maalaamo. Teattereissa henkilökunnan käyttämät väliovet ovat värikoodattuja. Väreillä viestitetään ja varoitetaan mikä ovista avautuu suoraan näyttämölle, mikä teknisiin tiloihin tai taiteilijoiden tiloihin.
Kun teattereiden ohjelmistoon operettien tilalle tulivat musikaalit 1950-60-luvuilla, ne loivat tarpeen levittää lavaa ja käyttää laajempia etunäyttämöitä.[8] Musikaalissa voitiin pienentää orkesteria tai sijoittaa soittajia näyttämölle, jolloin orkesterisyvennykset voitiin kattaa näyttämötilaksi.
Koska teatterit ovat suunnittelutehtävinä haastavia, muutamat uuden teatteritalon jo piirtäneet suunnittelijat saivat suunnitella toisenkin. Suunnitteluun osallistui usein eri alojen erikoisasiantuntijoita, kuten akustiikan, valaistuksen sekä sähkö- ja näyttämötekniikan alalta.
Teatterien talous
Valtio sisällytti taidebudjettiin määrärahan teatteritilojen korjaamiseen ja uusien teatteritalojen suunnitteluun vuodesta 1959 alkaen. Kaupungistumisen, työviikon lyhenemisen ja vaurastumisen myötä vapaa-ajan tilojen tarve kasvoi. Laki taiteen edistämisestä 1968 tähtäsi aiemman kulttuuritarjonnan vakiinnuttamiseen ja tarjonnan ulottamiseen tasa-arvoisesti koko maahan. Se merkitsi uusia teatteri- ja konserttitaloja, kirjastoja, kulttuuritaloja sekä urheilu- ja uimahalleja.
Kaupunkien verotulojen kasvaessa poliittiset päättäjät sijoittivat teatteriin. Kun yleisötutkimus 1966 osoitti suurimman teatterissakävijöiden ryhmän olevan kaupunkilaista keskiluokkaa, järjestettiin työ- ja maaseutuväestölle ryhmäkäyntejä. Alueteattereita ryhdyttiin ajamaan 1960-luvun lopulla.[9]
Suurten rakennushankkeiden valvomisessa on opetusministeriöllä ollut tärkeä rooli. Teattereiden rahoitukseen valtionapumalli muutostarpeiden ja parlamentaaristen voimasuhteiden pohjalta muodostettiin 1972. Teatterikenttä jäsentyi sen mukaan yli 40 vuotta. Kansallisiksi päänäyttämöiksi määritellyt Suomen kansallisteatteri, Ruotsalainen teatteri ja Tampereen Työväen Teatteri ovat saaneet korotettua tukea. 1990-luvun alusta harkinnanvaraisuudesta päästiin pois, kun alettiin jakaa ns. teatteri- ja orkesterilain avulla vakinaisen henkilöstön määrään sidottua avustusta. Useat 1970-luvulla perustetut teatteriryhmät saivat säännöllistä valtionapua, mutta 1990-luvun alussa syntyneet uudemmat ryhmät eivät.[10]
Kuntien ja kaupunkien määrärahat ovat teattereille valtionapua merkittävämmät tukimuodot. Teatterilaitosten rahoitusta ovat vaikeuttaneet kaupunkien talouden suhdanteet.[11]
Teatterialan koulutus
Teatterikoulutusta on annettu yli sata vuotta. Koulutettu näyttelijäkunta vakiintui 1970-80-luvuilla ja pysyvät kiinnitykset lisääntyivät. Vielä 1960-luvun alussa monissa teattereissa osa näyttelijöistä oli ammattilaisia, osa harrastajia.
Suomenkielinen ja ruotsinkielinen teatterialan koulu yhdistettiin valtiolliseksi, kaksikieliseksi Teatterikorkeakouluksi 1979. 1900-luvun loppuun mennessä koulutus oli vakiintunut monialaiseksi. Ohjaajien ja dramaturgien korkeakoulutus aloitettiin 1962, ja seuraavalla vuosikymmenellä vakiintui näyttelijöiden, ohjaajien ja dramaturgien yhteiskoulutus. Tanssitaiteen, valo- ja äänisuunnittelun koulutukset käynnistyivät 1980-luvulla ja musiikkiteatterin koulutusohjelma 1996.[12]
19_
Kansallisteatterin Pieni näyttämö modernismin esikuvaksi - 1950-luvun teatterit
”Sota päättyi ja rajat aukenivat. Maahan tuli esittämättömiä näytelmiä. Kun tulva iski, kotimaiselle näytelmäkirjallisuudelle jäi entistä vähemmän tilaa. Tässä oli yksi heräte Kansallisteatterin pienen näyttämön rakentamiselle … Jalansijan sai siellä uusi kotimainen dramatiikka.” - Jack Witikka.[13]
1950-luvun alussa näyteltiin vanhemmissa teatteritaloissa, kuten Porin teatteri, Åbo Svenska Teatern, Aleksanterin teatteri, Kansallisteatteri, Svenska Teatern ja Tampereen Teatteri. Ympäri Suomea harrastajat näyttelivät seurantaloissa.
Uudentyyppisen teatteritilan malliksi muodostui Kansallisteatterin laajennus Pieni näyttämö, joka valmistui 1954 Kaija ja Heikki Sirenin suunnittelemana.[14] Laajennus oli ensimmäinen pieni näyttämö suuren rinnalle. Ne vakiintuivat seuraavilla vuosikymmenillä.
Heikki Siren totesi 1940-luvun lopulla, ettei Helsingissä ollut ainuttakaan teknisesti täydellistä ja modernin virtauksia edustavaa teatteritaloa. Tulevaisuuden teattereissa olisi monta erityyppistä näyttämöä. Näkyvyys olisi ykköstekijä katsomossa, ei sosiaaliluokka. Teatterisali olisi entistä paljon teknisempi tila, jopa projisioitavine lavasteineen.[15]
04_ 05_
Kansallisteatterin lisärakennus on modernistinen. Julkisivun geometrisessa kentässä keraamiset laatat, lasipinnat ja suuret ikkunat heijastuvat edessä olevaan Kaisaniemen lampeen. Minimalistisen elegantti lämpiö väliajan viettäjineen näkyy puistoon. Lämpiöön liittyi teatteriravintola. Pohjamuodoltaan suora katsomo aukeaa leveästi näyttämölle, millä korostettiin näyttämön ja katsomon muodostamaa tilakokonaisuutta.
Teatterihenkilökunta käytti vanhemman puolen pukuhuoneita, kulissivarastoja ja näyttämöntaustatiloja.[16] Näyttämön mataluus, näyttelijöiden hankala pääsy lavalle kellarin kautta ja muunnettavuuden puute ovat olleet käytön rajoituksia.[17] Vähäiset taustatilat kertovat pyrkimyksestä irrottautua raskaasta lavastekäytännöstä.[18]
Muita uusia teatteritaloja 1950-luvun lopulla:
- Wasa Teatern paloi 1953 ja uusi rakennus saatiin 1955 arkkitehteina Bertel Liljequist ja Sam Salvesen. Puulla paneloitu nouseva katsomo (270 paikkaa) avautuu leveästi kohden päänäyttämöä samaan tapaan kuin Kansallisen Pieni näyttämö.[19]
- Kokkola sai uuden teatteritalon 1960: katsomo on nouseva, penkkirivit väljästi sijoitetut ja näyttämöaukko leveä.[20]
SUURTEN LAITOSTEATTEREIDEN 1960-1990-LUVUT
1900-luvun alun vuosikymmenillä monissa kaupungeissa oli kaksi teatterilaitosta, työväen ja porvariston. 1940–50-luvuilla ne yhdistyivät monissa kaupungeissa ja taloudellinen vastuu siirtyi pitkälti kaupungeille. Katsojamäärät kaksinkertaistuivat 1953–73. Teatteritaloista tuli kaupungeille statussymboleja.[21]
Suunnittelu- ja rakentamisbuumin tuloksena valmistuivat:
- Kouvolan teatteri sivistys- ja urheilutalon laajennusosana 1960,[22]
- Turun kaupunginteatteri 1962 sai ensimmäisenä oman uudisrakennuksen,
- Kuopion Yhteisteatteri 1963,
- Helsingin kaupunginteatteri 1967,
- Oulun kaupunginteatteri 1972,
- Rovaniemen Lappia-talon kaupunginteatteri 1975,
- Jyväskylän kaupunginteatteri 1982,
- Lahden kaupunginteatteri 1983,[23]
- Tampereen työväenteatteri 1985,
- Seinäjoen kaupunginteatteri 1987,
- Kansallisooppera Helsinkiin 1993.
Turun kaupunginteatteri 1962
Turun Suomalainen Teatteri ja Turun Työväen Teatteri yhdistyivät täyskunnalliseksi teatteriksi 1946.[24] Suunnittelukilpailun Turun kaupunginteatterista voittivat 1955 arkkitehdit Helmer Stenros ja Risto-Veikko Luukkonen. Talo valmistui 1962. Teatteri näyttämötorneineen kohoaa Aurajoen itärannalla.[25] Lämpiö tarjoaa näkymiä Turun linnaan, Tuomiokirkolle ja joelle. Suuri näyttämö on katutasossa.
Takanäyttämöä täydensi yksi sivunäyttämö. Etunäyttämö levittäytyy katsomon sivuille. Sektorin mallisen, kohden näyttämöä kapenevan, parvellisen katsomon muotoilu viittaa barokkiteattereihin: punaiset tuolit ja esirippu, kullatut seinälistat. Kulissivarasto ja muut aputilat upotettiin osittain rinteeseen.[26]
Näyttämötaiteen yhteiskunnallinen suuntaus alkoi 1960-luvun jälkipuolella. Turussa se näkyi erityisesti pääohjaaja Kalle Holmbergin ja teatterinjohtaja Ralf Långbackan ohjaustöissä 1971–1977.
06_ 07 _
Kuopion Yhteisteatteri 1963
Kuopion kaupunginteatteri, alun perin nimeltään Kuopion Yhteisteatteri, vihittiin käyttöön 1963. Sen arkkitehdit ovat Stenros ja Luukkonen, Turun kaupunginteatterin suunnittelijat.
Rakennuksen kompaktia muotoa suunnittelijat kuvasivat pyrkimykseksi luoda kustannuksiltaan edullinen rakennustyyppi. Kuutiomaisen rakennuksen keskeltä kohoaa massiivinen näyttämötorni. Matalat tilat sijoitettiin pohjakerrokseen, pääkerros on julkisivultaan tiilipintainen ja lämpiön suuret ikkunat avautuvat kadulle ja puistoon. Lievästi kaartuvine penkkiriveineen sali laskeutuu jyrkästi ja käsittää 426 paikkaa. Kolmannen kerroksen harjoitustilat muutettiin sittemmin studioksi.[27]
08 _09 _
Helsingin kaupunginteatteri 1967
Helsingin Kansanteatterin ja Helsingin Työväenteatterin vaiheittaisesta yhdistämisestä syntyi lopullisesti Helsingin kaupunginteatteri 1965. Arkkitehtuurikilpailu oli viritetty jo tätä ennen, 1961. Voittaneeseen Arlecchino-ehdotukseen perustunut kaupunginteatteri valmistui 1967.[28]
Arkkitehti Timo Penttilä sijoitti rakennuksen Eläintarhanlahden rantapuistoon siten, että hallinto, näyttelijöiden tilat ja tekniset tilat upotettiin kallion sisään. Eduskuntatalon kokoinen massa, Suomen suurin teatterirakennus, piilotettiin taitavasti osittain maastoon.[29]
Talo kohoaa puiston suuntaan kolmikerroksisena, mutta on takasivultaan yksikerroksinen. Veistoksellisissa muodoissa on vaikutteita amerikkalaisen Frank Lloyd Wrightin arkkitehtuurista. Sisäänkäyntijulkisivun vaakalinjojen vastaparina ovat edustan puiston puunrungot.[30]
Päälämpiöön noustaan leveää portaikkoa. Vaikuttavan tilasarjan viimeistelty sisustus ja materiaalit, kuten marmori, jalopuu ja musta nahka, korostavat juhlavuutta. Suuren salin katsomo kaartuu etunäyttämön ympärille virtaviivaisin, syvän punaisin penkkirivein. Istumapaikoille tullaan sivukäytäviltä. Väljä riviväli helpottaa pääsyä istumapaikoille.[31]
10_ 11_
Suurelle näyttämölle tehtiin 920 paikkaa, joista parvelle 303. Näyttämötilat ja niitä palvelevat verstas- ja varastotilat sijoitettiin samaan lattiatasoon, mikä mahdollistaa materiaalikuljetusten ja lavastuksen nopeat vaihdot. Suuren näyttämön ristinäyttämöperiaatetta laajennettiin hallimaisella taustatilalla, joka palveli suurta ja pientä näyttämöä.[32] Katsomon kattoa kannattavat 29 metrin pituiset teräsristikot.[33]
Pienen näyttämön esitykset perustuvat yhteen näyttämökuvaan. Katsomon kokoa voidaan säätää katsomovaunujen avulla 1/4 - 3/4 areenaksi. Pienen näyttämön tumma ja suljetun tuntuinen lämpiö on luonteeltaan intiimi ja vastakohta suuren näyttämön puistoon avautuvalle lämpiölle.
Kaupunginteatterin laajennus Studio Elsa (1989) käsittää harjoitussalin, toimistoja ja työpajatilat.[34]
Oulun kaupunginteatteri 1972
Oulun kaupunginteatteri kohoaa ruutukaavakeskustan edustalla, merenlahden saarella, osana kaupungin näyttävää kulttuurikeskusta. Arkkitehtipari Marjatta ja Martti Jaatinen voitti hallinto- ja kulttuurikeskuksen suunnittelukilpailun 1962. Heidän ehdotuksensa käsitti Rantakadun puutalokorttelien täydellisen raivaamisen,[35] mutta toteutus supistui, eikä kaupungintalotornia sommitelman kolmantena osana toteutettu. Jäljelle jäi selkeä modernismi: rinnakkaiset kuutiomaiset kirjasto- ja teatteritalot. Teatterin näyttämötorni kohoaa kaartuvana.
Katsomo on kaarevaseinäinen muuten suorakulmaisessa rakennuksessa. Ristinäyttämöt mahdollistavat usean näytelmän lavastuksien pitämisen yhtä aikaa esityskunnossa. Pienempi näyttämö on muunneltava tila.[36] Vinttikamariksi nimetty harjoitustila toimi satunnaisena näyttämönä. Suuri näyttämö ja pieni näyttämö ovat olleet käytössä vuodesta 1972 lähtien.
14_ 15_
Lahden kaupunginteatteri 1983
Tilavuudeltaan ja paikkaluvultaan suuri kunnallinen teatteritalo rakennettiin ydinkeskustan laidalle. Ympäristö kasvoi kulttuurikeskukseksi kirjastotalon (1990) ja aikuisopiston myötä. Teatterisuunnitelma perustui arkkitehtuurikilpailunvoittoon 1973 ja valmistui arkkitehtitoimisto Pekka Salminen Ky:n nimissä 1983.[37] Salminen avusti jo Helsingin kaupunginteatterin suunnittelussa.[38]
Teatterirakennusta sivuaa puistomainen Kirkkokatu. Sisään tullaan harmailla ja punaisilla graniittikivillä kuvioidulta aukiolta, jossa on Olavi Lanun muhkea betoniveistos.
Rakennushahmossa erottuvat näyttämötorni, suuren näyttämön katsomo, kulissivarastot ja verstastilat sekä pukuhuone- ja hallintotilat.[39] Kokonaisuutta hallitsee modulaarisuus: teräsrakenteiset kimppupilarit ja ristikot sekä betonielementit. Rakenteellinen korostus jatkuu sisätiloissa alakattojen betonisina kupuina diagonaaliripoineen.[40]
Näyttämöitä on kolme, joista kaksi suurinta samassa tasossa. Kaikki keskeiset työtilat ovat suuren ja pienen näyttämön suhteen samassa tasossa, mikä tekee niiden välisistä siirroista ja liikenteestä mutkatonta. Yleisö-, esitys- ja työtilat on eristetty toisistaan äänisuluilla, rakenteiden välisellä ilmaraolla.
16_ 17_
Suurella Juhani-näyttämöllä oli alun perin 765 paikkaa. Näyttämöaukko on suurimmillaan 24 metrin levyinen. Katsomon reunapaikkoja on vähennetty 650:een, jottei katsomosta näe sivunäyttämöille.[41] Pääsy suureen katsomoon ja ylälämpiöön on järjestetty kuudella portaikolla toisin kuin tavanomaisella, yhdellä leveällä portaikolla. Salin porrastettua kattoa valaistaan alapuolisilta teräsristikkosilloilta. Haluttaessa intiimimpää valaistusta, sali valaistaan ainoastaan alaspäin silloilta.
Näyttämöllä on hydraulisia nostimia. Lisäksi mihin tahansa kohtaan näyttämöä voidaan tuoda ilmatyynyillä kulkeva pyörönäyttämölevy, halkaisijaltaan 12 metriä. Koska suurella näyttämöllä esitetään myös musikaaleja, on orkesteritila akustisista syistä sijoitettu kokonaan katsomon puolelle.[42] Kattamalla orkesterisyvennys saadaan useampi tuolirivi.
18_ 21_
Eero-näyttämö on 200-250-paikkainen. Ensimmäisen kerroksen keskellä olevan sisäpihan alla oleva pieni, 81-paikkainen Aino-näyttämö muodostettiin 1980-luvulla tanssi-harjoitussalista. Alalämpiön teatterimaisessa syvennyksessä järjestetään lasten satuhetkiä.
Eteis- ja lämpiötilat ovat sisäänkäyntitorin puolella. Torin tasolla teräskannattimien sateenvarjokatos muodostaa poimuilevan seinämän lasiprismojen kanssa. Vastapäinen aaltoileva vaatesäilytystiski toimii tehokkaasti yleisövirtojen suhteen. Lämpiötilojen tunnelma on kodikas, lähes vastakohta talon ulkoiselle ilmeelle. Tiloja on jäsennetty pienemmille ja suuremmille ryhmille. Materiaalit, värit ja monet taideteokset tuovat lämpöä. Yrjö Kukkapuron kalusteet ovat pääosin säilyneet.
Tampereen Työväen Teatteri 1985
Työväenteatteri on maan ainut edelleen toimiva, hallinnoltaan työväenyhdistykseen kytkeytyvä teatteri. Työväenteatterin vanha, lähes 400-paikkainen Eino Salmelaisen näyttämö sijaitsee työväentalon 1900-luvun alussa rakennetussa kivilinnassa.[43] Työväentaloon liitettiin 1985 valmistunut uusi teatterirakennus. Sen kutsukilpailun voitti arkkitehtipari Marjatta ja Martti Jaatinen 1974. Kummallakin teatterilla, vanhalla ja uudella, on omat eteis- ja lämpiötilat, mutta ne hyödyntävät samoja työtiloja,[44] joskaan lavasteiden ja tarpeiston siirrot näyttämölle eivät tapahdu aina yhdessä tasossa.
Tampereen työväentalon entisestä painisalista muokattu, 160-paikkainen Kellariteatteri avattiin 1965. Esirippu ja ramppi oli poistettu, joten näyttämö ja katsomo sulautuivat yhteen. Tunnelma kaarevassa katsomossa ja kaarevareunaisella näyttämöllä koetiin intiimiksi ja lämpimäksi. Tilassa tehtiin korkeatasoisia ja tuoreita esityksiä ja siitä tuli esikuva muille teattereille.[45]
Teräsbetonirunkoinen uudisrakennus on jaettu kolmeen rakennushahmoon: massiiviseen lämpiö-, katsomo- ja näyttämötilojen kuutioon liittyy kaksi matalampaa siipeä. Siivissä ovat verstaat ja varastot sekä toimisto- ja pukuhuoneosa, jota korotettiin 2012-13 rakentamalla suuri harjoitussali päänäyttämön tarpeisiin. Tämä nivelosa yhdistää uudisrakennuksen ja vanhan työväentalon.[46]
27_ 23_
1985 valmistuneen rakennuksen tiloissa tähdättiin muunneltavuuteen. Sisään näytöksiin tullaan kadulta tummasävyisiin, mataliin eteistiloihin. Vastakohtana ovat portaikon ja lämpiöiden korkeat, valoisat tilat. Syvä ja aukoltaan 22 metriä leveä suuri näyttämö on ristinäyttämö. Verstas- ja varastotilat ovat samassa tasossa näyttämön kanssa. Näyttämön lattialla hyödynnetään joko pyörönäyttämöä tai nostomekanismeja.[47]
Katsomossa on 816 paikkaa. Tila ja tuolirivistöt kaartuvat, mitä tehostavat parvien alakattojen lamppurivistöt. Katsomon väritys on lämmin: seinissä tummanruskea tiili, alakatoissa tumman punertava sävy ja tuoleissa syvän keltainen verhoilu. Katsomoon liittyy kaksi sivuaitiota ja kaksi taka-aitiota.
25_26_
Sekä vanhan että uuden teatterirakennuksen pääjulkisivut suuntautuvat Hämeenpuistoon. Uudempaa rakennusosaa hallitseva tiili jatkuu ulkoseinien punatiiliverhouksesta sisälle katsomoon, jossa on tummaksi poltettua tiiltä ja tiililaattoja. Tiilijulkisivusta ulkoneva lasiosa tuo luonnonvaloa lämpiöön ja avaa näkymän Hämeenpuistoon. Tiilen käytöllä Jaatiset halusivat viitata Tampereen teollisuusrakennusten perinteeseen.[48]
Oopperatalo 1993
Kansallisoopperan rakennus valmistui Töölönlahden rannalle Helsinkiin 1993 vuosikymmenien ponnistusten jälkeen. Sen kaksivaiheinen suunnittelukilpailu ratkaistiin jo 1977. Arkkitehteina olivat Eero Hyvämäki, Jukka Karhunen ja Risto Parkkinen. Oopperatalohankkeen voimahahmo oli oopperanjohtaja Alfons Almi. Ooppera toimi 1911–1918 Kansallisteatterissa ja sen jälkeen oman rakennuksen valmistumiseen asti Helsingin venäläisessä Aleksanterin teatterissa vuodelta 1870.[49]
Oopperatalolle oli varattu paikka Alvar Aallon Helsingin keskustasuunnitelmassa (1961–1972). Paikaksi valikoitui entisen Sokeritehtaan tontti osana julkisten rakennusten sarjaa sekä puistoa. Talon vehreässä ympäristössä on vanhaa puustoa täydennetty nurmialueilla ja istutuksilla kaupunkipuistoksi.
46_44_
Koska esitystilat yhdistävät teatterin, tanssin ja musiikin tarpeet, on rakennuskompleksin laajuus neljä hehtaaria, josta suuri osa on maan alla. Massiivisen rakennuksen paljastaa teatteritaloksi jykevä näyttämötorni. Julkisivuja hallitsevat suorakulmaiset muodot, neliömäisten ikkunoiden rivistöt ja kaareutuvat lasigalleriat.
Mannerheimintien suunnasta rakennusta lähestytään seremoniallisessa akselissa, ensin astutaan edusaukiolle portin alta ja edelleen katettuun ja valaistuun pääsisäänkäyntiin kuvanveistäjä Kain Tapperin moniosaisen Alkunäytös-kiviveistoksen lomitse.
Pääsisäänkäynnin lisäksi on sisäänkäynti Töölönlahden puolella. Vaatimattomampi sisäänkäynti on muun muassa pienelle näyttämölle Alminsaliin. Sujuva sisäinen liikenne oli keskeinen suunnittelutehtävä. Talo jakaantuu toiminnallisiin vyöhykkeisiin: työ- ja harjoitustilojen ulkomaailmalta sulkeutuvat osat, lasiseinäisinä ympäristöönsä avautuvat aula- ja lämpiötilat, ytimessä 1340-paikkainen päänäyttämö.
47_ 48_
Sävyiltään neutraalin aulan kautta kuljetaan Töölönlahdelle suunnattuihin lämpiötiloihin ja astutaan päänäyttämön hehkuvaan väriskaalaan. Hevosenkengän muotoinen katsomo on punapyökillä verhoiltuine parvineen elegantti versio klassisesta oopperakatsomosta. Näyttämö on ristinäyttämö. Takanäyttämö mahdollistaa syvät lavastukset. Suuren näyttämön 20 metrin syvyys hallitsee talon perusmitoitusta. Näyttämön leveys on 25 metriä.[50]
Talon ensimmäisessä kerroksessa Alminsali on 300-450 -paikkainen. Suorakaiteisessa ja mustalla verhotussa salissa esitetään kamarioopperoita, nykytanssia, konsertteja, lasten teoksia, vierailuja. Sen näyttämö on päänäyttämön kokoinen, joten sitä voidaan käyttää harjoitussalina. Suuri osa aputiloista kätkeytyy maanalaisiin kerroksiin ja sisääntulotorin alle.
Alvar Aallon toimiston suunnittelemat teatterit osana hallinto- ja kulttuurikeskusta
Arkkitehti Alvar Aalto puhui jo 1920-luvulla kulttuurirakennuksista osana länsimaista kulttuuritraditiota, jonka eräs etappi on ollut Ateenan Akropolis.[51] Kulttuurirakennukset toimisivat Aallon mukaan kaupunkisuunnittelun lähtökohtana. Ne loisivat kaupungille identiteetin 1960-luvun kaupunkikeskustoihin.[52]
Aallon 1970- ja 80-luvuilla valmistuneet teatteritalot on rakennettu osaksi hänen suunnittelemiaan hallinto- ja kulttuurikeskuksia Rovaniemellä, Jyväskylässä ja Seinäjoella. Näiden keskusten lähtökohtana oli kansalaisille tarkoitettu kokoontumispaikka, tori, jonne myös teatteri lukeutuu. Seinäjoen ja Rovaniemen kulttuurirakennusten muodostamat keskukset ovat erillään kaupunkikeskustoista. Jyväskylässä keskus toteutui osittain.[53]
Aallon toimiston suunnittelemissa teattereissa näyttämötorni pyrittiin muotoilemaan rakennuksen kokonaishahmon osaksi niin, että teatterille tarpeelliset tuotantotilat pienenivät kaupunkikuvan kustannuksella.[54]
Jyväskylän, Rovaniemen ja Seinäjoen teatterien suunnitteluaika kesti parikymmentä vuotta. Aallon kuoltua 1976 oli arkkitehti Elissa Aallon rooli keskeinen Seinäjoen teatterin suunnittelussa, Aallon piirustusten uudistamisessa ja rakennuksen toteuttamisessa.
Aallon mukaan teatterin arkkitehtuurin tuli irrottaa katsoja arjesta. Sisätilojen arkkitehtuurin tulisi vaihe vaiheelta nostaa odotuksen tunnetta ennen esitystä.[55] Samalla tavalla ajatteli ja kirjoitti Timo Penttiläkin, kenties Aallon vanavedessä. Aallon teatteritaloissa on klassisia elementtejä sisäänkäyntipylväikköjen ja katsomon muodoissa. Lämpiöt ovat väljiä ja vapaamuotoisia, toimistohuoneet muodoltaan säännöllisiä suorakulmaisia tiloja ja toiseen kerrokseen nostetut katsomot pohjaltaan epäsymmetrisiä. Aallon teattereiden katsomot mitoitettiin 400-600 hengelle.[56] Sisustuksissa käytettiin pääosin Aallon toimiston erikoispiirustusten mukaisia ja Artekin kalusteita sekä Aallon eri kohteisiin suunnittelemia valaisimia ja näiden muunnelmia.
Lappia-talo Rovaniemi 1975
Aalto sai Rovaniemen kaupungilta tehtävän suunnitella Lappia-talon osaksi hallinto- ja kulttuurikeskusta. Taloon varattiin tilat teatterin lisäksi maakuntamuseolle, musiikkiopistolle ja yleisradiolle. Kahdessa vaiheessa valmistunut rakennus saatiin kaupunginteatterin, ainoan Lapin alueella toimineen ammattiteatterin käyttöön 1975. Teatteri on toisessa kerroksessa ja näyttämötornin muoto kaartuu ylöspäin tunturin tapaan. Saliin noustaan seremoniallisesti aukion, eteisen ja lämpiön kautta.[57]
28_ 29_
445-paikkainen sali suunniteltiin teatteri-, konsertti- ja kongressikäyttöön. Sali oli yhdistettävissä 145-paikkaiseen studionäyttämöön paljeovella. Tämä on ollut akustinen ongelma, sillä rinnakkaisissa tiloissa ei ole voitu järjestää samanaikaisia esityksiä. Lavastajille katsomon epäsymmetrisyys suhteessa näyttämöön on myös ollut haaste.[58] Suuren salin ja studion takana on vielä kamarimusiikkisali.
Paikalla muuratut ulkoseinät verhoiltiin vaaleilla keraamisilla sauvoilla ja sokkelit mustalla graniitilla. Eteishallin ja lämpiöiden lattioissa käytettiin rovaniemeläisten toiveesta paikallista materiaalia, Lapin marmoria.[59]
30_ 31_
Jyväskylän kaupunginteatteri 1982
Jyväskylän 1961 perustettu kaupunginteatteri esiintyi pitkään Aallon suunnittelemassa työväentalossa vuodelta 1925. Se oli ammattiteatterille vaikea toimintaympäristö. Kaupunki järjesti suunnittelukilpailun teatteritalosta.[60] Vaikka Aalto ei kilpailuun ilmeisesti osallistunut, hän sai kaupungilta toimeksiannon 1964 teatterin käsittävän hallintokeskuksen suunnittelusta.[61] Aalto suunnitteli Jyväskylän hallintokeskusta kahteen kertaan, 1964 ja 1972. Teatteritalo valmistui 1982 Elissa Aallon johdolla.[62]
Rakennuksen pitkää julkisivua Kilpisenkadulle leimaavat toimistojen ikkunarivit. Kansalaistorin suuntaan kohoavat ikkunattomat katsomo ja näyttämötorni. Sisäänkäynti ja lämpiön suuret ikkunat suuntautuvat Kirkkopuistoon, ja tällä sivulla on näyttämötorni peitetty katonlappein. Julkisivuissa on vaaleita keraamisia sauvoja, joita Aallon toimisto kehitteli 1950-luvun alkupuolelta alkaen sisä- ja ulkopintojen edustaviksi materiaaleiksi.
32_ 33_
Kulkuyhteyksien järjestelyä ja salin epäsymmetristä muotoa on rinnastettu Aallon Essenin oopperataloon, jota suunniteltiin ja rakennettiin samanaikaisesti.[63] Pääportaita noustaan hämärähköstä eteishallista korkeaan ja valoisaan lämpiöön. Tilasarjan huipentaa 550-paikkainen sektorin muotoinen, kohden näyttämöä kapeneva sali valkoisine seinineen ja tummine tuoleineen. Akustoiva seinäelementti ja sinivalkoinen väritys muistuttavat Finlandia-talon (1971) salista. Salin sinisävyisen tunnelman viimeisteli Irma Kukkasjärven esirippu.[64] Näyttämöaukko ulottuu sivuseiniin asti; vaikutelmaa on verrattu kreikkalaiseen teatteriin avoimen taivaan alla.[65] Kellarissa on 120-paikkainen studionäyttämö.

Kun päänäyttämöön liittyvät sen molemmin puolin olevat sivunäyttämöt ja takana on takanäyttämö, näyttämöä kutsutaan muotonsa mukaan ristinäyttämöksi. Näissä päänäyttämön aputiloissa säilytetään sekä meneillään olevien että tulevien esitysten tarpeistoa. Suuriin teatteritaloihin tehtiin yleensä sekä suuri näyttämö että pienempi muunneltava studio. Sivunäyttämöiden joustava yhteys samassa lattiatasossa suureen näyttämöön, pieneen näyttämöön sekä työpajoihin on toiminnallisesti edullinen ominaisuus esimerkiksi lavastusten vaihtojen kannalta. Tällaisia ratkaisuja ei kaikkiin suuriinkaan laitosteattereihin heti rakennettu. Malleja näyttämötekniikan ratkaisuihin ja koneistukseen haettiin Länsi-Saksasta, jossa oli yleistynyt ristinäyttämö, jossa sivu- ja takanäyttämö liittyvät kurkistuslaatikkonäyttämöön.[6]
22_
Suunnittelijan oli luotava joustavat puitteet näyttelijän, ohjaajaan, lavastajan, valaistusmestarin ja näyttämöteknikon työlle.[7] Teknisiin tiloihin lukeutuvat puvustamo, ompelimo, puutyöpaja, lavastamo, maalaamo. Teattereissa henkilökunnan käyttämät väliovet ovat värikoodattuja. Väreillä viestitetään ja varoitetaan mikä ovista avautuu suoraan näyttämölle, mikä teknisiin tiloihin tai taiteilijoiden tiloihin.
Kun teattereiden ohjelmistoon operettien tilalle tulivat musikaalit 1950-60-luvuilla, ne loivat tarpeen levittää lavaa ja käyttää laajempia etunäyttämöitä.[8] Musikaalissa voitiin pienentää orkesteria tai sijoittaa soittajia näyttämölle, jolloin orkesterisyvennykset voitiin kattaa näyttämötilaksi.
Koska teatterit ovat suunnittelutehtävinä haastavia, muutamat uuden teatteritalon jo piirtäneet suunnittelijat saivat suunnitella toisenkin. Suunnitteluun osallistui usein eri alojen erikoisasiantuntijoita, kuten akustiikan, valaistuksen sekä sähkö- ja näyttämötekniikan alalta.
Teatterien talous
Valtio sisällytti taidebudjettiin määrärahan teatteritilojen korjaamiseen ja uusien teatteritalojen suunnitteluun vuodesta 1959 alkaen. Kaupungistumisen, työviikon lyhenemisen ja vaurastumisen myötä vapaa-ajan tilojen tarve kasvoi. Laki taiteen edistämisestä 1968 tähtäsi aiemman kulttuuritarjonnan vakiinnuttamiseen ja tarjonnan ulottamiseen tasa-arvoisesti koko maahan. Se merkitsi uusia teatteri- ja konserttitaloja, kirjastoja, kulttuuritaloja sekä urheilu- ja uimahalleja.
Kaupunkien verotulojen kasvaessa poliittiset päättäjät sijoittivat teatteriin. Kun yleisötutkimus 1966 osoitti suurimman teatterissakävijöiden ryhmän olevan kaupunkilaista keskiluokkaa, järjestettiin työ- ja maaseutuväestölle ryhmäkäyntejä. Alueteattereita ryhdyttiin ajamaan 1960-luvun lopulla.[9]
Suurten rakennushankkeiden valvomisessa on opetusministeriöllä ollut tärkeä rooli. Teattereiden rahoitukseen valtionapumalli muutostarpeiden ja parlamentaaristen voimasuhteiden pohjalta muodostettiin 1972. Teatterikenttä jäsentyi sen mukaan yli 40 vuotta. Kansallisiksi päänäyttämöiksi määritellyt Suomen kansallisteatteri, Ruotsalainen teatteri ja Tampereen Työväen Teatteri ovat saaneet korotettua tukea. 1990-luvun alusta harkinnanvaraisuudesta päästiin pois, kun alettiin jakaa ns. teatteri- ja orkesterilain avulla vakinaisen henkilöstön määrään sidottua avustusta. Useat 1970-luvulla perustetut teatteriryhmät saivat säännöllistä valtionapua, mutta 1990-luvun alussa syntyneet uudemmat ryhmät eivät.[10]
Kuntien ja kaupunkien määrärahat ovat teattereille valtionapua merkittävämmät tukimuodot. Teatterilaitosten rahoitusta ovat vaikeuttaneet kaupunkien talouden suhdanteet.[11]
Teatterialan koulutus
Teatterikoulutusta on annettu yli sata vuotta. Koulutettu näyttelijäkunta vakiintui 1970-80-luvuilla ja pysyvät kiinnitykset lisääntyivät. Vielä 1960-luvun alussa monissa teattereissa osa näyttelijöistä oli ammattilaisia, osa harrastajia.
Suomenkielinen ja ruotsinkielinen teatterialan koulu yhdistettiin valtiolliseksi, kaksikieliseksi Teatterikorkeakouluksi 1979. 1900-luvun loppuun mennessä koulutus oli vakiintunut monialaiseksi. Ohjaajien ja dramaturgien korkeakoulutus aloitettiin 1962, ja seuraavalla vuosikymmenellä vakiintui näyttelijöiden, ohjaajien ja dramaturgien yhteiskoulutus. Tanssitaiteen, valo- ja äänisuunnittelun koulutukset käynnistyivät 1980-luvulla ja musiikkiteatterin koulutusohjelma 1996.[12]
19_
Kansallisteatterin Pieni näyttämö modernismin esikuvaksi - 1950-luvun teatterit
”Sota päättyi ja rajat aukenivat. Maahan tuli esittämättömiä näytelmiä. Kun tulva iski, kotimaiselle näytelmäkirjallisuudelle jäi entistä vähemmän tilaa. Tässä oli yksi heräte Kansallisteatterin pienen näyttämön rakentamiselle … Jalansijan sai siellä uusi kotimainen dramatiikka.” - Jack Witikka.[13]
1950-luvun alussa näyteltiin vanhemmissa teatteritaloissa, kuten Porin teatteri, Åbo Svenska Teatern, Aleksanterin teatteri, Kansallisteatteri, Svenska Teatern ja Tampereen Teatteri. Ympäri Suomea harrastajat näyttelivät seurantaloissa.
Uudentyyppisen teatteritilan malliksi muodostui Kansallisteatterin laajennus Pieni näyttämö, joka valmistui 1954 Kaija ja Heikki Sirenin suunnittelemana.[14] Laajennus oli ensimmäinen pieni näyttämö suuren rinnalle. Ne vakiintuivat seuraavilla vuosikymmenillä.
Heikki Siren totesi 1940-luvun lopulla, ettei Helsingissä ollut ainuttakaan teknisesti täydellistä ja modernin virtauksia edustavaa teatteritaloa. Tulevaisuuden teattereissa olisi monta erityyppistä näyttämöä. Näkyvyys olisi ykköstekijä katsomossa, ei sosiaaliluokka. Teatterisali olisi entistä paljon teknisempi tila, jopa projisioitavine lavasteineen.[15]
04_ 05_
_Oik.: Näkymä Pienen näyttämön lämpiöstä puistoon. Kuva: Siren Arkkitehdit.
Kansallisteatterin lisärakennus on modernistinen. Julkisivun geometrisessa kentässä keraamiset laatat, lasipinnat ja suuret ikkunat heijastuvat edessä olevaan Kaisaniemen lampeen. Minimalistisen elegantti lämpiö väliajan viettäjineen näkyy puistoon. Lämpiöön liittyi teatteriravintola. Pohjamuodoltaan suora katsomo aukeaa leveästi näyttämölle, millä korostettiin näyttämön ja katsomon muodostamaa tilakokonaisuutta.
Teatterihenkilökunta käytti vanhemman puolen pukuhuoneita, kulissivarastoja ja näyttämöntaustatiloja.[16] Näyttämön mataluus, näyttelijöiden hankala pääsy lavalle kellarin kautta ja muunnettavuuden puute ovat olleet käytön rajoituksia.[17] Vähäiset taustatilat kertovat pyrkimyksestä irrottautua raskaasta lavastekäytännöstä.[18]
Muita uusia teatteritaloja 1950-luvun lopulla:
- Wasa Teatern paloi 1953 ja uusi rakennus saatiin 1955 arkkitehteina Bertel Liljequist ja Sam Salvesen. Puulla paneloitu nouseva katsomo (270 paikkaa) avautuu leveästi kohden päänäyttämöä samaan tapaan kuin Kansallisen Pieni näyttämö.[19]
- Kokkola sai uuden teatteritalon 1960: katsomo on nouseva, penkkirivit väljästi sijoitetut ja näyttämöaukko leveä.[20]
SUURTEN LAITOSTEATTEREIDEN 1960-1990-LUVUT
1900-luvun alun vuosikymmenillä monissa kaupungeissa oli kaksi teatterilaitosta, työväen ja porvariston. 1940–50-luvuilla ne yhdistyivät monissa kaupungeissa ja taloudellinen vastuu siirtyi pitkälti kaupungeille. Katsojamäärät kaksinkertaistuivat 1953–73. Teatteritaloista tuli kaupungeille statussymboleja.[21]
Suunnittelu- ja rakentamisbuumin tuloksena valmistuivat:
- Kouvolan teatteri sivistys- ja urheilutalon laajennusosana 1960,[22]
- Turun kaupunginteatteri 1962 sai ensimmäisenä oman uudisrakennuksen,
- Kuopion Yhteisteatteri 1963,
- Helsingin kaupunginteatteri 1967,
- Oulun kaupunginteatteri 1972,
- Rovaniemen Lappia-talon kaupunginteatteri 1975,
- Jyväskylän kaupunginteatteri 1982,
- Lahden kaupunginteatteri 1983,[23]
- Tampereen työväenteatteri 1985,
- Seinäjoen kaupunginteatteri 1987,
- Kansallisooppera Helsinkiin 1993.
Turun kaupunginteatteri 1962
Turun Suomalainen Teatteri ja Turun Työväen Teatteri yhdistyivät täyskunnalliseksi teatteriksi 1946.[24] Suunnittelukilpailun Turun kaupunginteatterista voittivat 1955 arkkitehdit Helmer Stenros ja Risto-Veikko Luukkonen. Talo valmistui 1962. Teatteri näyttämötorneineen kohoaa Aurajoen itärannalla.[25] Lämpiö tarjoaa näkymiä Turun linnaan, Tuomiokirkolle ja joelle. Suuri näyttämö on katutasossa.
Takanäyttämöä täydensi yksi sivunäyttämö. Etunäyttämö levittäytyy katsomon sivuille. Sektorin mallisen, kohden näyttämöä kapenevan, parvellisen katsomon muotoilu viittaa barokkiteattereihin: punaiset tuolit ja esirippu, kullatut seinälistat. Kulissivarasto ja muut aputilat upotettiin osittain rinteeseen.[26]
Näyttämötaiteen yhteiskunnallinen suuntaus alkoi 1960-luvun jälkipuolella. Turussa se näkyi erityisesti pääohjaaja Kalle Holmbergin ja teatterinjohtaja Ralf Långbackan ohjaustöissä 1971–1977.
06_ 07 _
Kuopion Yhteisteatteri 1963
Kuopion kaupunginteatteri, alun perin nimeltään Kuopion Yhteisteatteri, vihittiin käyttöön 1963. Sen arkkitehdit ovat Stenros ja Luukkonen, Turun kaupunginteatterin suunnittelijat.
Rakennuksen kompaktia muotoa suunnittelijat kuvasivat pyrkimykseksi luoda kustannuksiltaan edullinen rakennustyyppi. Kuutiomaisen rakennuksen keskeltä kohoaa massiivinen näyttämötorni. Matalat tilat sijoitettiin pohjakerrokseen, pääkerros on julkisivultaan tiilipintainen ja lämpiön suuret ikkunat avautuvat kadulle ja puistoon. Lievästi kaartuvine penkkiriveineen sali laskeutuu jyrkästi ja käsittää 426 paikkaa. Kolmannen kerroksen harjoitustilat muutettiin sittemmin studioksi.[27]
08 _09 _
Helsingin kaupunginteatteri 1967
Helsingin Kansanteatterin ja Helsingin Työväenteatterin vaiheittaisesta yhdistämisestä syntyi lopullisesti Helsingin kaupunginteatteri 1965. Arkkitehtuurikilpailu oli viritetty jo tätä ennen, 1961. Voittaneeseen Arlecchino-ehdotukseen perustunut kaupunginteatteri valmistui 1967.[28]
Arkkitehti Timo Penttilä sijoitti rakennuksen Eläintarhanlahden rantapuistoon siten, että hallinto, näyttelijöiden tilat ja tekniset tilat upotettiin kallion sisään. Eduskuntatalon kokoinen massa, Suomen suurin teatterirakennus, piilotettiin taitavasti osittain maastoon.[29]
Talo kohoaa puiston suuntaan kolmikerroksisena, mutta on takasivultaan yksikerroksinen. Veistoksellisissa muodoissa on vaikutteita amerikkalaisen Frank Lloyd Wrightin arkkitehtuurista. Sisäänkäyntijulkisivun vaakalinjojen vastaparina ovat edustan puiston puunrungot.[30]
Päälämpiöön noustaan leveää portaikkoa. Vaikuttavan tilasarjan viimeistelty sisustus ja materiaalit, kuten marmori, jalopuu ja musta nahka, korostavat juhlavuutta. Suuren salin katsomo kaartuu etunäyttämön ympärille virtaviivaisin, syvän punaisin penkkirivein. Istumapaikoille tullaan sivukäytäviltä. Väljä riviväli helpottaa pääsyä istumapaikoille.[31]
10_ 11_
Suurelle näyttämölle tehtiin 920 paikkaa, joista parvelle 303. Näyttämötilat ja niitä palvelevat verstas- ja varastotilat sijoitettiin samaan lattiatasoon, mikä mahdollistaa materiaalikuljetusten ja lavastuksen nopeat vaihdot. Suuren näyttämön ristinäyttämöperiaatetta laajennettiin hallimaisella taustatilalla, joka palveli suurta ja pientä näyttämöä.[32] Katsomon kattoa kannattavat 29 metrin pituiset teräsristikot.[33]
Pienen näyttämön esitykset perustuvat yhteen näyttämökuvaan. Katsomon kokoa voidaan säätää katsomovaunujen avulla 1/4 - 3/4 areenaksi. Pienen näyttämön tumma ja suljetun tuntuinen lämpiö on luonteeltaan intiimi ja vastakohta suuren näyttämön puistoon avautuvalle lämpiölle.
Kaupunginteatterin laajennus Studio Elsa (1989) käsittää harjoitussalin, toimistoja ja työpajatilat.[34]
Oulun kaupunginteatteri 1972
Oulun kaupunginteatteri kohoaa ruutukaavakeskustan edustalla, merenlahden saarella, osana kaupungin näyttävää kulttuurikeskusta. Arkkitehtipari Marjatta ja Martti Jaatinen voitti hallinto- ja kulttuurikeskuksen suunnittelukilpailun 1962. Heidän ehdotuksensa käsitti Rantakadun puutalokorttelien täydellisen raivaamisen,[35] mutta toteutus supistui, eikä kaupungintalotornia sommitelman kolmantena osana toteutettu. Jäljelle jäi selkeä modernismi: rinnakkaiset kuutiomaiset kirjasto- ja teatteritalot. Teatterin näyttämötorni kohoaa kaartuvana.
Katsomo on kaarevaseinäinen muuten suorakulmaisessa rakennuksessa. Ristinäyttämöt mahdollistavat usean näytelmän lavastuksien pitämisen yhtä aikaa esityskunnossa. Pienempi näyttämö on muunneltava tila.[36] Vinttikamariksi nimetty harjoitustila toimi satunnaisena näyttämönä. Suuri näyttämö ja pieni näyttämö ovat olleet käytössä vuodesta 1972 lähtien.
14_ 15_
Lahden kaupunginteatteri 1983
Tilavuudeltaan ja paikkaluvultaan suuri kunnallinen teatteritalo rakennettiin ydinkeskustan laidalle. Ympäristö kasvoi kulttuurikeskukseksi kirjastotalon (1990) ja aikuisopiston myötä. Teatterisuunnitelma perustui arkkitehtuurikilpailunvoittoon 1973 ja valmistui arkkitehtitoimisto Pekka Salminen Ky:n nimissä 1983.[37] Salminen avusti jo Helsingin kaupunginteatterin suunnittelussa.[38]
Teatterirakennusta sivuaa puistomainen Kirkkokatu. Sisään tullaan harmailla ja punaisilla graniittikivillä kuvioidulta aukiolta, jossa on Olavi Lanun muhkea betoniveistos.
Rakennushahmossa erottuvat näyttämötorni, suuren näyttämön katsomo, kulissivarastot ja verstastilat sekä pukuhuone- ja hallintotilat.[39] Kokonaisuutta hallitsee modulaarisuus: teräsrakenteiset kimppupilarit ja ristikot sekä betonielementit. Rakenteellinen korostus jatkuu sisätiloissa alakattojen betonisina kupuina diagonaaliripoineen.[40]
Näyttämöitä on kolme, joista kaksi suurinta samassa tasossa. Kaikki keskeiset työtilat ovat suuren ja pienen näyttämön suhteen samassa tasossa, mikä tekee niiden välisistä siirroista ja liikenteestä mutkatonta. Yleisö-, esitys- ja työtilat on eristetty toisistaan äänisuluilla, rakenteiden välisellä ilmaraolla.
16_ 17_
Suurella Juhani-näyttämöllä oli alun perin 765 paikkaa. Näyttämöaukko on suurimmillaan 24 metrin levyinen. Katsomon reunapaikkoja on vähennetty 650:een, jottei katsomosta näe sivunäyttämöille.[41] Pääsy suureen katsomoon ja ylälämpiöön on järjestetty kuudella portaikolla toisin kuin tavanomaisella, yhdellä leveällä portaikolla. Salin porrastettua kattoa valaistaan alapuolisilta teräsristikkosilloilta. Haluttaessa intiimimpää valaistusta, sali valaistaan ainoastaan alaspäin silloilta.
Näyttämöllä on hydraulisia nostimia. Lisäksi mihin tahansa kohtaan näyttämöä voidaan tuoda ilmatyynyillä kulkeva pyörönäyttämölevy, halkaisijaltaan 12 metriä. Koska suurella näyttämöllä esitetään myös musikaaleja, on orkesteritila akustisista syistä sijoitettu kokonaan katsomon puolelle.[42] Kattamalla orkesterisyvennys saadaan useampi tuolirivi.
18_ 21_
Eero-näyttämö on 200-250-paikkainen. Ensimmäisen kerroksen keskellä olevan sisäpihan alla oleva pieni, 81-paikkainen Aino-näyttämö muodostettiin 1980-luvulla tanssi-harjoitussalista. Alalämpiön teatterimaisessa syvennyksessä järjestetään lasten satuhetkiä.
Eteis- ja lämpiötilat ovat sisäänkäyntitorin puolella. Torin tasolla teräskannattimien sateenvarjokatos muodostaa poimuilevan seinämän lasiprismojen kanssa. Vastapäinen aaltoileva vaatesäilytystiski toimii tehokkaasti yleisövirtojen suhteen. Lämpiötilojen tunnelma on kodikas, lähes vastakohta talon ulkoiselle ilmeelle. Tiloja on jäsennetty pienemmille ja suuremmille ryhmille. Materiaalit, värit ja monet taideteokset tuovat lämpöä. Yrjö Kukkapuron kalusteet ovat pääosin säilyneet.
Tampereen Työväen Teatteri 1985
Työväenteatteri on maan ainut edelleen toimiva, hallinnoltaan työväenyhdistykseen kytkeytyvä teatteri. Työväenteatterin vanha, lähes 400-paikkainen Eino Salmelaisen näyttämö sijaitsee työväentalon 1900-luvun alussa rakennetussa kivilinnassa.[43] Työväentaloon liitettiin 1985 valmistunut uusi teatterirakennus. Sen kutsukilpailun voitti arkkitehtipari Marjatta ja Martti Jaatinen 1974. Kummallakin teatterilla, vanhalla ja uudella, on omat eteis- ja lämpiötilat, mutta ne hyödyntävät samoja työtiloja,[44] joskaan lavasteiden ja tarpeiston siirrot näyttämölle eivät tapahdu aina yhdessä tasossa.
Tampereen työväentalon entisestä painisalista muokattu, 160-paikkainen Kellariteatteri avattiin 1965. Esirippu ja ramppi oli poistettu, joten näyttämö ja katsomo sulautuivat yhteen. Tunnelma kaarevassa katsomossa ja kaarevareunaisella näyttämöllä koetiin intiimiksi ja lämpimäksi. Tilassa tehtiin korkeatasoisia ja tuoreita esityksiä ja siitä tuli esikuva muille teattereille.[45]
Teräsbetonirunkoinen uudisrakennus on jaettu kolmeen rakennushahmoon: massiiviseen lämpiö-, katsomo- ja näyttämötilojen kuutioon liittyy kaksi matalampaa siipeä. Siivissä ovat verstaat ja varastot sekä toimisto- ja pukuhuoneosa, jota korotettiin 2012-13 rakentamalla suuri harjoitussali päänäyttämön tarpeisiin. Tämä nivelosa yhdistää uudisrakennuksen ja vanhan työväentalon.[46]
27_ 23_
1985 valmistuneen rakennuksen tiloissa tähdättiin muunneltavuuteen. Sisään näytöksiin tullaan kadulta tummasävyisiin, mataliin eteistiloihin. Vastakohtana ovat portaikon ja lämpiöiden korkeat, valoisat tilat. Syvä ja aukoltaan 22 metriä leveä suuri näyttämö on ristinäyttämö. Verstas- ja varastotilat ovat samassa tasossa näyttämön kanssa. Näyttämön lattialla hyödynnetään joko pyörönäyttämöä tai nostomekanismeja.[47]
Katsomossa on 816 paikkaa. Tila ja tuolirivistöt kaartuvat, mitä tehostavat parvien alakattojen lamppurivistöt. Katsomon väritys on lämmin: seinissä tummanruskea tiili, alakatoissa tumman punertava sävy ja tuoleissa syvän keltainen verhoilu. Katsomoon liittyy kaksi sivuaitiota ja kaksi taka-aitiota.
25_26_
Sekä vanhan että uuden teatterirakennuksen pääjulkisivut suuntautuvat Hämeenpuistoon. Uudempaa rakennusosaa hallitseva tiili jatkuu ulkoseinien punatiiliverhouksesta sisälle katsomoon, jossa on tummaksi poltettua tiiltä ja tiililaattoja. Tiilijulkisivusta ulkoneva lasiosa tuo luonnonvaloa lämpiöön ja avaa näkymän Hämeenpuistoon. Tiilen käytöllä Jaatiset halusivat viitata Tampereen teollisuusrakennusten perinteeseen.[48]
Oopperatalo 1993
Kansallisoopperan rakennus valmistui Töölönlahden rannalle Helsinkiin 1993 vuosikymmenien ponnistusten jälkeen. Sen kaksivaiheinen suunnittelukilpailu ratkaistiin jo 1977. Arkkitehteina olivat Eero Hyvämäki, Jukka Karhunen ja Risto Parkkinen. Oopperatalohankkeen voimahahmo oli oopperanjohtaja Alfons Almi. Ooppera toimi 1911–1918 Kansallisteatterissa ja sen jälkeen oman rakennuksen valmistumiseen asti Helsingin venäläisessä Aleksanterin teatterissa vuodelta 1870.[49]
Oopperatalolle oli varattu paikka Alvar Aallon Helsingin keskustasuunnitelmassa (1961–1972). Paikaksi valikoitui entisen Sokeritehtaan tontti osana julkisten rakennusten sarjaa sekä puistoa. Talon vehreässä ympäristössä on vanhaa puustoa täydennetty nurmialueilla ja istutuksilla kaupunkipuistoksi.
46_44_
Koska esitystilat yhdistävät teatterin, tanssin ja musiikin tarpeet, on rakennuskompleksin laajuus neljä hehtaaria, josta suuri osa on maan alla. Massiivisen rakennuksen paljastaa teatteritaloksi jykevä näyttämötorni. Julkisivuja hallitsevat suorakulmaiset muodot, neliömäisten ikkunoiden rivistöt ja kaareutuvat lasigalleriat.
Mannerheimintien suunnasta rakennusta lähestytään seremoniallisessa akselissa, ensin astutaan edusaukiolle portin alta ja edelleen katettuun ja valaistuun pääsisäänkäyntiin kuvanveistäjä Kain Tapperin moniosaisen Alkunäytös-kiviveistoksen lomitse.
Pääsisäänkäynnin lisäksi on sisäänkäynti Töölönlahden puolella. Vaatimattomampi sisäänkäynti on muun muassa pienelle näyttämölle Alminsaliin. Sujuva sisäinen liikenne oli keskeinen suunnittelutehtävä. Talo jakaantuu toiminnallisiin vyöhykkeisiin: työ- ja harjoitustilojen ulkomaailmalta sulkeutuvat osat, lasiseinäisinä ympäristöönsä avautuvat aula- ja lämpiötilat, ytimessä 1340-paikkainen päänäyttämö.
47_ 48_
Sävyiltään neutraalin aulan kautta kuljetaan Töölönlahdelle suunnattuihin lämpiötiloihin ja astutaan päänäyttämön hehkuvaan väriskaalaan. Hevosenkengän muotoinen katsomo on punapyökillä verhoiltuine parvineen elegantti versio klassisesta oopperakatsomosta. Näyttämö on ristinäyttämö. Takanäyttämö mahdollistaa syvät lavastukset. Suuren näyttämön 20 metrin syvyys hallitsee talon perusmitoitusta. Näyttämön leveys on 25 metriä.[50]
Talon ensimmäisessä kerroksessa Alminsali on 300-450 -paikkainen. Suorakaiteisessa ja mustalla verhotussa salissa esitetään kamarioopperoita, nykytanssia, konsertteja, lasten teoksia, vierailuja. Sen näyttämö on päänäyttämön kokoinen, joten sitä voidaan käyttää harjoitussalina. Suuri osa aputiloista kätkeytyy maanalaisiin kerroksiin ja sisääntulotorin alle.
Alvar Aallon toimiston suunnittelemat teatterit osana hallinto- ja kulttuurikeskusta
Arkkitehti Alvar Aalto puhui jo 1920-luvulla kulttuurirakennuksista osana länsimaista kulttuuritraditiota, jonka eräs etappi on ollut Ateenan Akropolis.[51] Kulttuurirakennukset toimisivat Aallon mukaan kaupunkisuunnittelun lähtökohtana. Ne loisivat kaupungille identiteetin 1960-luvun kaupunkikeskustoihin.[52]
Aallon 1970- ja 80-luvuilla valmistuneet teatteritalot on rakennettu osaksi hänen suunnittelemiaan hallinto- ja kulttuurikeskuksia Rovaniemellä, Jyväskylässä ja Seinäjoella. Näiden keskusten lähtökohtana oli kansalaisille tarkoitettu kokoontumispaikka, tori, jonne myös teatteri lukeutuu. Seinäjoen ja Rovaniemen kulttuurirakennusten muodostamat keskukset ovat erillään kaupunkikeskustoista. Jyväskylässä keskus toteutui osittain.[53]
Aallon toimiston suunnittelemissa teattereissa näyttämötorni pyrittiin muotoilemaan rakennuksen kokonaishahmon osaksi niin, että teatterille tarpeelliset tuotantotilat pienenivät kaupunkikuvan kustannuksella.[54]
Jyväskylän, Rovaniemen ja Seinäjoen teatterien suunnitteluaika kesti parikymmentä vuotta. Aallon kuoltua 1976 oli arkkitehti Elissa Aallon rooli keskeinen Seinäjoen teatterin suunnittelussa, Aallon piirustusten uudistamisessa ja rakennuksen toteuttamisessa.
Aallon mukaan teatterin arkkitehtuurin tuli irrottaa katsoja arjesta. Sisätilojen arkkitehtuurin tulisi vaihe vaiheelta nostaa odotuksen tunnetta ennen esitystä.[55] Samalla tavalla ajatteli ja kirjoitti Timo Penttiläkin, kenties Aallon vanavedessä. Aallon teatteritaloissa on klassisia elementtejä sisäänkäyntipylväikköjen ja katsomon muodoissa. Lämpiöt ovat väljiä ja vapaamuotoisia, toimistohuoneet muodoltaan säännöllisiä suorakulmaisia tiloja ja toiseen kerrokseen nostetut katsomot pohjaltaan epäsymmetrisiä. Aallon teattereiden katsomot mitoitettiin 400-600 hengelle.[56] Sisustuksissa käytettiin pääosin Aallon toimiston erikoispiirustusten mukaisia ja Artekin kalusteita sekä Aallon eri kohteisiin suunnittelemia valaisimia ja näiden muunnelmia.
Lappia-talo Rovaniemi 1975
Aalto sai Rovaniemen kaupungilta tehtävän suunnitella Lappia-talon osaksi hallinto- ja kulttuurikeskusta. Taloon varattiin tilat teatterin lisäksi maakuntamuseolle, musiikkiopistolle ja yleisradiolle. Kahdessa vaiheessa valmistunut rakennus saatiin kaupunginteatterin, ainoan Lapin alueella toimineen ammattiteatterin käyttöön 1975. Teatteri on toisessa kerroksessa ja näyttämötornin muoto kaartuu ylöspäin tunturin tapaan. Saliin noustaan seremoniallisesti aukion, eteisen ja lämpiön kautta.[57]
28_ 29_
445-paikkainen sali suunniteltiin teatteri-, konsertti- ja kongressikäyttöön. Sali oli yhdistettävissä 145-paikkaiseen studionäyttämöön paljeovella. Tämä on ollut akustinen ongelma, sillä rinnakkaisissa tiloissa ei ole voitu järjestää samanaikaisia esityksiä. Lavastajille katsomon epäsymmetrisyys suhteessa näyttämöön on myös ollut haaste.[58] Suuren salin ja studion takana on vielä kamarimusiikkisali.
Paikalla muuratut ulkoseinät verhoiltiin vaaleilla keraamisilla sauvoilla ja sokkelit mustalla graniitilla. Eteishallin ja lämpiöiden lattioissa käytettiin rovaniemeläisten toiveesta paikallista materiaalia, Lapin marmoria.[59]
30_ 31_
Jyväskylän kaupunginteatteri 1982
Jyväskylän 1961 perustettu kaupunginteatteri esiintyi pitkään Aallon suunnittelemassa työväentalossa vuodelta 1925. Se oli ammattiteatterille vaikea toimintaympäristö. Kaupunki järjesti suunnittelukilpailun teatteritalosta.[60] Vaikka Aalto ei kilpailuun ilmeisesti osallistunut, hän sai kaupungilta toimeksiannon 1964 teatterin käsittävän hallintokeskuksen suunnittelusta.[61] Aalto suunnitteli Jyväskylän hallintokeskusta kahteen kertaan, 1964 ja 1972. Teatteritalo valmistui 1982 Elissa Aallon johdolla.[62]
Rakennuksen pitkää julkisivua Kilpisenkadulle leimaavat toimistojen ikkunarivit. Kansalaistorin suuntaan kohoavat ikkunattomat katsomo ja näyttämötorni. Sisäänkäynti ja lämpiön suuret ikkunat suuntautuvat Kirkkopuistoon, ja tällä sivulla on näyttämötorni peitetty katonlappein. Julkisivuissa on vaaleita keraamisia sauvoja, joita Aallon toimisto kehitteli 1950-luvun alkupuolelta alkaen sisä- ja ulkopintojen edustaviksi materiaaleiksi.
32_ 33_
Kulkuyhteyksien järjestelyä ja salin epäsymmetristä muotoa on rinnastettu Aallon Essenin oopperataloon, jota suunniteltiin ja rakennettiin samanaikaisesti.[63] Pääportaita noustaan hämärähköstä eteishallista korkeaan ja valoisaan lämpiöön. Tilasarjan huipentaa 550-paikkainen sektorin muotoinen, kohden näyttämöä kapeneva sali valkoisine seinineen ja tummine tuoleineen. Akustoiva seinäelementti ja sinivalkoinen väritys muistuttavat Finlandia-talon (1971) salista. Salin sinisävyisen tunnelman viimeisteli Irma Kukkasjärven esirippu.[64] Näyttämöaukko ulottuu sivuseiniin asti; vaikutelmaa on verrattu kreikkalaiseen teatteriin avoimen taivaan alla.[65] Kellarissa on 120-paikkainen studionäyttämö.
Kuopion Yhteisteatteri 1963
Kuopion kaupunginteatteri, alun perin nimeltään Kuopion Yhteisteatteri, vihittiin käyttöön 1963. Sen arkkitehdit ovat Stenros ja Luukkonen, Turun kaupunginteatterin suunnittelijat.
Rakennuksen kompaktia muotoa suunnittelijat kuvasivat pyrkimykseksi luoda kustannuksiltaan edullinen rakennustyyppi. Kuutiomaisen rakennuksen keskeltä kohoaa massiivinen näyttämötorni. Matalat tilat sijoitettiin pohjakerrokseen, pääkerros on julkisivultaan tiilipintainen ja lämpiön suuret ikkunat avautuvat kadulle ja puistoon. Lievästi kaartuvine penkkiriveineen sali laskeutuu jyrkästi ja käsittää 426 paikkaa. Kolmannen kerroksen harjoitustilat muutettiin sittemmin studioksi.[27]
08 _09 _
_Oik.: Monumentaalisia ”pyramidiportaita” noustaan eteistilasta lämpiön kautta teatterisaliin. Kuva: Sirkkaliisa Jetsonen 2017.
Helsingin kaupunginteatteri 1967
Helsingin Kansanteatterin ja Helsingin Työväenteatterin vaiheittaisesta yhdistämisestä syntyi lopullisesti Helsingin kaupunginteatteri 1965. Arkkitehtuurikilpailu oli viritetty jo tätä ennen, 1961. Voittaneeseen Arlecchino-ehdotukseen perustunut kaupunginteatteri valmistui 1967.[28]
Arkkitehti Timo Penttilä sijoitti rakennuksen Eläintarhanlahden rantapuistoon siten, että hallinto, näyttelijöiden tilat ja tekniset tilat upotettiin kallion sisään. Eduskuntatalon kokoinen massa, Suomen suurin teatterirakennus, piilotettiin taitavasti osittain maastoon.[29]
Talo kohoaa puiston suuntaan kolmikerroksisena, mutta on takasivultaan yksikerroksinen. Veistoksellisissa muodoissa on vaikutteita amerikkalaisen Frank Lloyd Wrightin arkkitehtuurista. Sisäänkäyntijulkisivun vaakalinjojen vastaparina ovat edustan puiston puunrungot.[30]
Päälämpiöön noustaan leveää portaikkoa. Vaikuttavan tilasarjan viimeistelty sisustus ja materiaalit, kuten marmori, jalopuu ja musta nahka, korostavat juhlavuutta. Suuren salin katsomo kaartuu etunäyttämön ympärille virtaviivaisin, syvän punaisin penkkirivein. Istumapaikoille tullaan sivukäytäviltä. Väljä riviväli helpottaa pääsyä istumapaikoille.[31]
10_ 11_
Suurelle näyttämölle tehtiin 920 paikkaa, joista parvelle 303. Näyttämötilat ja niitä palvelevat verstas- ja varastotilat sijoitettiin samaan lattiatasoon, mikä mahdollistaa materiaalikuljetusten ja lavastuksen nopeat vaihdot. Suuren näyttämön ristinäyttämöperiaatetta laajennettiin hallimaisella taustatilalla, joka palveli suurta ja pientä näyttämöä.[32] Katsomon kattoa kannattavat 29 metrin pituiset teräsristikot.[33]
Pienen näyttämön esitykset perustuvat yhteen näyttämökuvaan. Katsomon kokoa voidaan säätää katsomovaunujen avulla 1/4 - 3/4 areenaksi. Pienen näyttämön tumma ja suljetun tuntuinen lämpiö on luonteeltaan intiimi ja vastakohta suuren näyttämön puistoon avautuvalle lämpiölle.
Kaupunginteatterin laajennus Studio Elsa (1989) käsittää harjoitussalin, toimistoja ja työpajatilat.[34]
Oulun kaupunginteatteri 1972
Oulun kaupunginteatteri kohoaa ruutukaavakeskustan edustalla, merenlahden saarella, osana kaupungin näyttävää kulttuurikeskusta. Arkkitehtipari Marjatta ja Martti Jaatinen voitti hallinto- ja kulttuurikeskuksen suunnittelukilpailun 1962. Heidän ehdotuksensa käsitti Rantakadun puutalokorttelien täydellisen raivaamisen,[35] mutta toteutus supistui, eikä kaupungintalotornia sommitelman kolmantena osana toteutettu. Jäljelle jäi selkeä modernismi: rinnakkaiset kuutiomaiset kirjasto- ja teatteritalot. Teatterin näyttämötorni kohoaa kaartuvana.
Katsomo on kaarevaseinäinen muuten suorakulmaisessa rakennuksessa. Ristinäyttämöt mahdollistavat usean näytelmän lavastuksien pitämisen yhtä aikaa esityskunnossa. Pienempi näyttämö on muunneltava tila.[36] Vinttikamariksi nimetty harjoitustila toimi satunnaisena näyttämönä. Suuri näyttämö ja pieni näyttämö ovat olleet käytössä vuodesta 1972 lähtien.
14_ 15_
_Oik.: Kaupunginteatterin suuri näyttämö. Kuva: Journalistinen kuva-arkisto, Museovirasto.
Lahden kaupunginteatteri 1983
Tilavuudeltaan ja paikkaluvultaan suuri kunnallinen teatteritalo rakennettiin ydinkeskustan laidalle. Ympäristö kasvoi kulttuurikeskukseksi kirjastotalon (1990) ja aikuisopiston myötä. Teatterisuunnitelma perustui arkkitehtuurikilpailunvoittoon 1973 ja valmistui arkkitehtitoimisto Pekka Salminen Ky:n nimissä 1983.[37] Salminen avusti jo Helsingin kaupunginteatterin suunnittelussa.[38]
Teatterirakennusta sivuaa puistomainen Kirkkokatu. Sisään tullaan harmailla ja punaisilla graniittikivillä kuvioidulta aukiolta, jossa on Olavi Lanun muhkea betoniveistos.
Rakennushahmossa erottuvat näyttämötorni, suuren näyttämön katsomo, kulissivarastot ja verstastilat sekä pukuhuone- ja hallintotilat.[39] Kokonaisuutta hallitsee modulaarisuus: teräsrakenteiset kimppupilarit ja ristikot sekä betonielementit. Rakenteellinen korostus jatkuu sisätiloissa alakattojen betonisina kupuina diagonaaliripoineen.[40]
Näyttämöitä on kolme, joista kaksi suurinta samassa tasossa. Kaikki keskeiset työtilat ovat suuren ja pienen näyttämön suhteen samassa tasossa, mikä tekee niiden välisistä siirroista ja liikenteestä mutkatonta. Yleisö-, esitys- ja työtilat on eristetty toisistaan äänisuluilla, rakenteiden välisellä ilmaraolla.
16_ 17_
Suurella Juhani-näyttämöllä oli alun perin 765 paikkaa. Näyttämöaukko on suurimmillaan 24 metrin levyinen. Katsomon reunapaikkoja on vähennetty 650:een, jottei katsomosta näe sivunäyttämöille.[41] Pääsy suureen katsomoon ja ylälämpiöön on järjestetty kuudella portaikolla toisin kuin tavanomaisella, yhdellä leveällä portaikolla. Salin porrastettua kattoa valaistaan alapuolisilta teräsristikkosilloilta. Haluttaessa intiimimpää valaistusta, sali valaistaan ainoastaan alaspäin silloilta.
Näyttämöllä on hydraulisia nostimia. Lisäksi mihin tahansa kohtaan näyttämöä voidaan tuoda ilmatyynyillä kulkeva pyörönäyttämölevy, halkaisijaltaan 12 metriä. Koska suurella näyttämöllä esitetään myös musikaaleja, on orkesteritila akustisista syistä sijoitettu kokonaan katsomon puolelle.[42] Kattamalla orkesterisyvennys saadaan useampi tuolirivi.
18_ 21_
Eero-näyttämö on 200-250-paikkainen. Ensimmäisen kerroksen keskellä olevan sisäpihan alla oleva pieni, 81-paikkainen Aino-näyttämö muodostettiin 1980-luvulla tanssi-harjoitussalista. Alalämpiön teatterimaisessa syvennyksessä järjestetään lasten satuhetkiä.
Eteis- ja lämpiötilat ovat sisäänkäyntitorin puolella. Torin tasolla teräskannattimien sateenvarjokatos muodostaa poimuilevan seinämän lasiprismojen kanssa. Vastapäinen aaltoileva vaatesäilytystiski toimii tehokkaasti yleisövirtojen suhteen. Lämpiötilojen tunnelma on kodikas, lähes vastakohta talon ulkoiselle ilmeelle. Tiloja on jäsennetty pienemmille ja suuremmille ryhmille. Materiaalit, värit ja monet taideteokset tuovat lämpöä. Yrjö Kukkapuron kalusteet ovat pääosin säilyneet.
Tampereen Työväen Teatteri 1985
Työväenteatteri on maan ainut edelleen toimiva, hallinnoltaan työväenyhdistykseen kytkeytyvä teatteri. Työväenteatterin vanha, lähes 400-paikkainen Eino Salmelaisen näyttämö sijaitsee työväentalon 1900-luvun alussa rakennetussa kivilinnassa.[43] Työväentaloon liitettiin 1985 valmistunut uusi teatterirakennus. Sen kutsukilpailun voitti arkkitehtipari Marjatta ja Martti Jaatinen 1974. Kummallakin teatterilla, vanhalla ja uudella, on omat eteis- ja lämpiötilat, mutta ne hyödyntävät samoja työtiloja,[44] joskaan lavasteiden ja tarpeiston siirrot näyttämölle eivät tapahdu aina yhdessä tasossa.
Tampereen työväentalon entisestä painisalista muokattu, 160-paikkainen Kellariteatteri avattiin 1965. Esirippu ja ramppi oli poistettu, joten näyttämö ja katsomo sulautuivat yhteen. Tunnelma kaarevassa katsomossa ja kaarevareunaisella näyttämöllä koetiin intiimiksi ja lämpimäksi. Tilassa tehtiin korkeatasoisia ja tuoreita esityksiä ja siitä tuli esikuva muille teattereille.[45]
Teräsbetonirunkoinen uudisrakennus on jaettu kolmeen rakennushahmoon: massiiviseen lämpiö-, katsomo- ja näyttämötilojen kuutioon liittyy kaksi matalampaa siipeä. Siivissä ovat verstaat ja varastot sekä toimisto- ja pukuhuoneosa, jota korotettiin 2012-13 rakentamalla suuri harjoitussali päänäyttämön tarpeisiin. Tämä nivelosa yhdistää uudisrakennuksen ja vanhan työväentalon.[46]
27_ 23_
1985 valmistuneen rakennuksen tiloissa tähdättiin muunneltavuuteen. Sisään näytöksiin tullaan kadulta tummasävyisiin, mataliin eteistiloihin. Vastakohtana ovat portaikon ja lämpiöiden korkeat, valoisat tilat. Syvä ja aukoltaan 22 metriä leveä suuri näyttämö on ristinäyttämö. Verstas- ja varastotilat ovat samassa tasossa näyttämön kanssa. Näyttämön lattialla hyödynnetään joko pyörönäyttämöä tai nostomekanismeja.[47]
Katsomossa on 816 paikkaa. Tila ja tuolirivistöt kaartuvat, mitä tehostavat parvien alakattojen lamppurivistöt. Katsomon väritys on lämmin: seinissä tummanruskea tiili, alakatoissa tumman punertava sävy ja tuoleissa syvän keltainen verhoilu. Katsomoon liittyy kaksi sivuaitiota ja kaksi taka-aitiota.
25_26_
Sekä vanhan että uuden teatterirakennuksen pääjulkisivut suuntautuvat Hämeenpuistoon. Uudempaa rakennusosaa hallitseva tiili jatkuu ulkoseinien punatiiliverhouksesta sisälle katsomoon, jossa on tummaksi poltettua tiiltä ja tiililaattoja. Tiilijulkisivusta ulkoneva lasiosa tuo luonnonvaloa lämpiöön ja avaa näkymän Hämeenpuistoon. Tiilen käytöllä Jaatiset halusivat viitata Tampereen teollisuusrakennusten perinteeseen.[48]
Oopperatalo 1993
Kansallisoopperan rakennus valmistui Töölönlahden rannalle Helsinkiin 1993 vuosikymmenien ponnistusten jälkeen. Sen kaksivaiheinen suunnittelukilpailu ratkaistiin jo 1977. Arkkitehteina olivat Eero Hyvämäki, Jukka Karhunen ja Risto Parkkinen. Oopperatalohankkeen voimahahmo oli oopperanjohtaja Alfons Almi. Ooppera toimi 1911–1918 Kansallisteatterissa ja sen jälkeen oman rakennuksen valmistumiseen asti Helsingin venäläisessä Aleksanterin teatterissa vuodelta 1870.[49]
Oopperatalolle oli varattu paikka Alvar Aallon Helsingin keskustasuunnitelmassa (1961–1972). Paikaksi valikoitui entisen Sokeritehtaan tontti osana julkisten rakennusten sarjaa sekä puistoa. Talon vehreässä ympäristössä on vanhaa puustoa täydennetty nurmialueilla ja istutuksilla kaupunkipuistoksi.
46_44_
Koska esitystilat yhdistävät teatterin, tanssin ja musiikin tarpeet, on rakennuskompleksin laajuus neljä hehtaaria, josta suuri osa on maan alla. Massiivisen rakennuksen paljastaa teatteritaloksi jykevä näyttämötorni. Julkisivuja hallitsevat suorakulmaiset muodot, neliömäisten ikkunoiden rivistöt ja kaareutuvat lasigalleriat.
Mannerheimintien suunnasta rakennusta lähestytään seremoniallisessa akselissa, ensin astutaan edusaukiolle portin alta ja edelleen katettuun ja valaistuun pääsisäänkäyntiin kuvanveistäjä Kain Tapperin moniosaisen Alkunäytös-kiviveistoksen lomitse.
Pääsisäänkäynnin lisäksi on sisäänkäynti Töölönlahden puolella. Vaatimattomampi sisäänkäynti on muun muassa pienelle näyttämölle Alminsaliin. Sujuva sisäinen liikenne oli keskeinen suunnittelutehtävä. Talo jakaantuu toiminnallisiin vyöhykkeisiin: työ- ja harjoitustilojen ulkomaailmalta sulkeutuvat osat, lasiseinäisinä ympäristöönsä avautuvat aula- ja lämpiötilat, ytimessä 1340-paikkainen päänäyttämö.
47_ 48_
Sävyiltään neutraalin aulan kautta kuljetaan Töölönlahdelle suunnattuihin lämpiötiloihin ja astutaan päänäyttämön hehkuvaan väriskaalaan. Hevosenkengän muotoinen katsomo on punapyökillä verhoiltuine parvineen elegantti versio klassisesta oopperakatsomosta. Näyttämö on ristinäyttämö. Takanäyttämö mahdollistaa syvät lavastukset. Suuren näyttämön 20 metrin syvyys hallitsee talon perusmitoitusta. Näyttämön leveys on 25 metriä.[50]
Talon ensimmäisessä kerroksessa Alminsali on 300-450 -paikkainen. Suorakaiteisessa ja mustalla verhotussa salissa esitetään kamarioopperoita, nykytanssia, konsertteja, lasten teoksia, vierailuja. Sen näyttämö on päänäyttämön kokoinen, joten sitä voidaan käyttää harjoitussalina. Suuri osa aputiloista kätkeytyy maanalaisiin kerroksiin ja sisääntulotorin alle.
Alvar Aallon toimiston suunnittelemat teatterit osana hallinto- ja kulttuurikeskusta
Arkkitehti Alvar Aalto puhui jo 1920-luvulla kulttuurirakennuksista osana länsimaista kulttuuritraditiota, jonka eräs etappi on ollut Ateenan Akropolis.[51] Kulttuurirakennukset toimisivat Aallon mukaan kaupunkisuunnittelun lähtökohtana. Ne loisivat kaupungille identiteetin 1960-luvun kaupunkikeskustoihin.[52]
Aallon 1970- ja 80-luvuilla valmistuneet teatteritalot on rakennettu osaksi hänen suunnittelemiaan hallinto- ja kulttuurikeskuksia Rovaniemellä, Jyväskylässä ja Seinäjoella. Näiden keskusten lähtökohtana oli kansalaisille tarkoitettu kokoontumispaikka, tori, jonne myös teatteri lukeutuu. Seinäjoen ja Rovaniemen kulttuurirakennusten muodostamat keskukset ovat erillään kaupunkikeskustoista. Jyväskylässä keskus toteutui osittain.[53]
Aallon toimiston suunnittelemissa teattereissa näyttämötorni pyrittiin muotoilemaan rakennuksen kokonaishahmon osaksi niin, että teatterille tarpeelliset tuotantotilat pienenivät kaupunkikuvan kustannuksella.[54]
Jyväskylän, Rovaniemen ja Seinäjoen teatterien suunnitteluaika kesti parikymmentä vuotta. Aallon kuoltua 1976 oli arkkitehti Elissa Aallon rooli keskeinen Seinäjoen teatterin suunnittelussa, Aallon piirustusten uudistamisessa ja rakennuksen toteuttamisessa.
Aallon mukaan teatterin arkkitehtuurin tuli irrottaa katsoja arjesta. Sisätilojen arkkitehtuurin tulisi vaihe vaiheelta nostaa odotuksen tunnetta ennen esitystä.[55] Samalla tavalla ajatteli ja kirjoitti Timo Penttiläkin, kenties Aallon vanavedessä. Aallon teatteritaloissa on klassisia elementtejä sisäänkäyntipylväikköjen ja katsomon muodoissa. Lämpiöt ovat väljiä ja vapaamuotoisia, toimistohuoneet muodoltaan säännöllisiä suorakulmaisia tiloja ja toiseen kerrokseen nostetut katsomot pohjaltaan epäsymmetrisiä. Aallon teattereiden katsomot mitoitettiin 400-600 hengelle.[56] Sisustuksissa käytettiin pääosin Aallon toimiston erikoispiirustusten mukaisia ja Artekin kalusteita sekä Aallon eri kohteisiin suunnittelemia valaisimia ja näiden muunnelmia.
Lappia-talo Rovaniemi 1975
Aalto sai Rovaniemen kaupungilta tehtävän suunnitella Lappia-talon osaksi hallinto- ja kulttuurikeskusta. Taloon varattiin tilat teatterin lisäksi maakuntamuseolle, musiikkiopistolle ja yleisradiolle. Kahdessa vaiheessa valmistunut rakennus saatiin kaupunginteatterin, ainoan Lapin alueella toimineen ammattiteatterin käyttöön 1975. Teatteri on toisessa kerroksessa ja näyttämötornin muoto kaartuu ylöspäin tunturin tapaan. Saliin noustaan seremoniallisesti aukion, eteisen ja lämpiön kautta.[57]
28_ 29_
445-paikkainen sali suunniteltiin teatteri-, konsertti- ja kongressikäyttöön. Sali oli yhdistettävissä 145-paikkaiseen studionäyttämöön paljeovella. Tämä on ollut akustinen ongelma, sillä rinnakkaisissa tiloissa ei ole voitu järjestää samanaikaisia esityksiä. Lavastajille katsomon epäsymmetrisyys suhteessa näyttämöön on myös ollut haaste.[58] Suuren salin ja studion takana on vielä kamarimusiikkisali.
Paikalla muuratut ulkoseinät verhoiltiin vaaleilla keraamisilla sauvoilla ja sokkelit mustalla graniitilla. Eteishallin ja lämpiöiden lattioissa käytettiin rovaniemeläisten toiveesta paikallista materiaalia, Lapin marmoria.[59]
30_ 31_
Jyväskylän kaupunginteatteri 1982
Jyväskylän 1961 perustettu kaupunginteatteri esiintyi pitkään Aallon suunnittelemassa työväentalossa vuodelta 1925. Se oli ammattiteatterille vaikea toimintaympäristö. Kaupunki järjesti suunnittelukilpailun teatteritalosta.[60] Vaikka Aalto ei kilpailuun ilmeisesti osallistunut, hän sai kaupungilta toimeksiannon 1964 teatterin käsittävän hallintokeskuksen suunnittelusta.[61] Aalto suunnitteli Jyväskylän hallintokeskusta kahteen kertaan, 1964 ja 1972. Teatteritalo valmistui 1982 Elissa Aallon johdolla.[62]
Rakennuksen pitkää julkisivua Kilpisenkadulle leimaavat toimistojen ikkunarivit. Kansalaistorin suuntaan kohoavat ikkunattomat katsomo ja näyttämötorni. Sisäänkäynti ja lämpiön suuret ikkunat suuntautuvat Kirkkopuistoon, ja tällä sivulla on näyttämötorni peitetty katonlappein. Julkisivuissa on vaaleita keraamisia sauvoja, joita Aallon toimisto kehitteli 1950-luvun alkupuolelta alkaen sisä- ja ulkopintojen edustaviksi materiaaleiksi.
32_ 33_
Kulkuyhteyksien järjestelyä ja salin epäsymmetristä muotoa on rinnastettu Aallon Essenin oopperataloon, jota suunniteltiin ja rakennettiin samanaikaisesti.[63] Pääportaita noustaan hämärähköstä eteishallista korkeaan ja valoisaan lämpiöön. Tilasarjan huipentaa 550-paikkainen sektorin muotoinen, kohden näyttämöä kapeneva sali valkoisine seinineen ja tummine tuoleineen. Akustoiva seinäelementti ja sinivalkoinen väritys muistuttavat Finlandia-talon (1971) salista. Salin sinisävyisen tunnelman viimeisteli Irma Kukkasjärven esirippu.[64] Näyttämöaukko ulottuu sivuseiniin asti; vaikutelmaa on verrattu kreikkalaiseen teatteriin avoimen taivaan alla.[65] Kellarissa on 120-paikkainen studionäyttämö.
Suurella Juhani-näyttämöllä oli alun perin 765 paikkaa. Näyttämöaukko on suurimmillaan 24 metrin levyinen. Katsomon reunapaikkoja on vähennetty 650:een, jottei katsomosta näe sivunäyttämöille.[41] Pääsy suureen katsomoon ja ylälämpiöön on järjestetty kuudella portaikolla toisin kuin tavanomaisella, yhdellä leveällä portaikolla. Salin porrastettua kattoa valaistaan alapuolisilta teräsristikkosilloilta. Haluttaessa intiimimpää valaistusta, sali valaistaan ainoastaan alaspäin silloilta.
Näyttämöllä on hydraulisia nostimia. Lisäksi mihin tahansa kohtaan näyttämöä voidaan tuoda ilmatyynyillä kulkeva pyörönäyttämölevy, halkaisijaltaan 12 metriä. Koska suurella näyttämöllä esitetään myös musikaaleja, on orkesteritila akustisista syistä sijoitettu kokonaan katsomon puolelle.[42] Kattamalla orkesterisyvennys saadaan useampi tuolirivi.
18_ 21_
Eero-näyttämö on 200-250-paikkainen. Ensimmäisen kerroksen keskellä olevan sisäpihan alla oleva pieni, 81-paikkainen Aino-näyttämö muodostettiin 1980-luvulla tanssi-harjoitussalista. Alalämpiön teatterimaisessa syvennyksessä järjestetään lasten satuhetkiä.
Eteis- ja lämpiötilat ovat sisäänkäyntitorin puolella. Torin tasolla teräskannattimien sateenvarjokatos muodostaa poimuilevan seinämän lasiprismojen kanssa. Vastapäinen aaltoileva vaatesäilytystiski toimii tehokkaasti yleisövirtojen suhteen. Lämpiötilojen tunnelma on kodikas, lähes vastakohta talon ulkoiselle ilmeelle. Tiloja on jäsennetty pienemmille ja suuremmille ryhmille. Materiaalit, värit ja monet taideteokset tuovat lämpöä. Yrjö Kukkapuron kalusteet ovat pääosin säilyneet.
Tampereen Työväen Teatteri 1985
Työväenteatteri on maan ainut edelleen toimiva, hallinnoltaan työväenyhdistykseen kytkeytyvä teatteri. Työväenteatterin vanha, lähes 400-paikkainen Eino Salmelaisen näyttämö sijaitsee työväentalon 1900-luvun alussa rakennetussa kivilinnassa.[43] Työväentaloon liitettiin 1985 valmistunut uusi teatterirakennus. Sen kutsukilpailun voitti arkkitehtipari Marjatta ja Martti Jaatinen 1974. Kummallakin teatterilla, vanhalla ja uudella, on omat eteis- ja lämpiötilat, mutta ne hyödyntävät samoja työtiloja,[44] joskaan lavasteiden ja tarpeiston siirrot näyttämölle eivät tapahdu aina yhdessä tasossa.
Tampereen työväentalon entisestä painisalista muokattu, 160-paikkainen Kellariteatteri avattiin 1965. Esirippu ja ramppi oli poistettu, joten näyttämö ja katsomo sulautuivat yhteen. Tunnelma kaarevassa katsomossa ja kaarevareunaisella näyttämöllä koetiin intiimiksi ja lämpimäksi. Tilassa tehtiin korkeatasoisia ja tuoreita esityksiä ja siitä tuli esikuva muille teattereille.[45]
Teräsbetonirunkoinen uudisrakennus on jaettu kolmeen rakennushahmoon: massiiviseen lämpiö-, katsomo- ja näyttämötilojen kuutioon liittyy kaksi matalampaa siipeä. Siivissä ovat verstaat ja varastot sekä toimisto- ja pukuhuoneosa, jota korotettiin 2012-13 rakentamalla suuri harjoitussali päänäyttämön tarpeisiin. Tämä nivelosa yhdistää uudisrakennuksen ja vanhan työväentalon.[46]
27_ 23_
1985 valmistuneen rakennuksen tiloissa tähdättiin muunneltavuuteen. Sisään näytöksiin tullaan kadulta tummasävyisiin, mataliin eteistiloihin. Vastakohtana ovat portaikon ja lämpiöiden korkeat, valoisat tilat. Syvä ja aukoltaan 22 metriä leveä suuri näyttämö on ristinäyttämö. Verstas- ja varastotilat ovat samassa tasossa näyttämön kanssa. Näyttämön lattialla hyödynnetään joko pyörönäyttämöä tai nostomekanismeja.[47]
Katsomossa on 816 paikkaa. Tila ja tuolirivistöt kaartuvat, mitä tehostavat parvien alakattojen lamppurivistöt. Katsomon väritys on lämmin: seinissä tummanruskea tiili, alakatoissa tumman punertava sävy ja tuoleissa syvän keltainen verhoilu. Katsomoon liittyy kaksi sivuaitiota ja kaksi taka-aitiota.
25_26_
Sekä vanhan että uuden teatterirakennuksen pääjulkisivut suuntautuvat Hämeenpuistoon. Uudempaa rakennusosaa hallitseva tiili jatkuu ulkoseinien punatiiliverhouksesta sisälle katsomoon, jossa on tummaksi poltettua tiiltä ja tiililaattoja. Tiilijulkisivusta ulkoneva lasiosa tuo luonnonvaloa lämpiöön ja avaa näkymän Hämeenpuistoon. Tiilen käytöllä Jaatiset halusivat viitata Tampereen teollisuusrakennusten perinteeseen.[48]
Oopperatalo 1993
Kansallisoopperan rakennus valmistui Töölönlahden rannalle Helsinkiin 1993 vuosikymmenien ponnistusten jälkeen. Sen kaksivaiheinen suunnittelukilpailu ratkaistiin jo 1977. Arkkitehteina olivat Eero Hyvämäki, Jukka Karhunen ja Risto Parkkinen. Oopperatalohankkeen voimahahmo oli oopperanjohtaja Alfons Almi. Ooppera toimi 1911–1918 Kansallisteatterissa ja sen jälkeen oman rakennuksen valmistumiseen asti Helsingin venäläisessä Aleksanterin teatterissa vuodelta 1870.[49]
Oopperatalolle oli varattu paikka Alvar Aallon Helsingin keskustasuunnitelmassa (1961–1972). Paikaksi valikoitui entisen Sokeritehtaan tontti osana julkisten rakennusten sarjaa sekä puistoa. Talon vehreässä ympäristössä on vanhaa puustoa täydennetty nurmialueilla ja istutuksilla kaupunkipuistoksi.
46_44_
Koska esitystilat yhdistävät teatterin, tanssin ja musiikin tarpeet, on rakennuskompleksin laajuus neljä hehtaaria, josta suuri osa on maan alla. Massiivisen rakennuksen paljastaa teatteritaloksi jykevä näyttämötorni. Julkisivuja hallitsevat suorakulmaiset muodot, neliömäisten ikkunoiden rivistöt ja kaareutuvat lasigalleriat.
Mannerheimintien suunnasta rakennusta lähestytään seremoniallisessa akselissa, ensin astutaan edusaukiolle portin alta ja edelleen katettuun ja valaistuun pääsisäänkäyntiin kuvanveistäjä Kain Tapperin moniosaisen Alkunäytös-kiviveistoksen lomitse.
Pääsisäänkäynnin lisäksi on sisäänkäynti Töölönlahden puolella. Vaatimattomampi sisäänkäynti on muun muassa pienelle näyttämölle Alminsaliin. Sujuva sisäinen liikenne oli keskeinen suunnittelutehtävä. Talo jakaantuu toiminnallisiin vyöhykkeisiin: työ- ja harjoitustilojen ulkomaailmalta sulkeutuvat osat, lasiseinäisinä ympäristöönsä avautuvat aula- ja lämpiötilat, ytimessä 1340-paikkainen päänäyttämö.
47_ 48_
Sävyiltään neutraalin aulan kautta kuljetaan Töölönlahdelle suunnattuihin lämpiötiloihin ja astutaan päänäyttämön hehkuvaan väriskaalaan. Hevosenkengän muotoinen katsomo on punapyökillä verhoiltuine parvineen elegantti versio klassisesta oopperakatsomosta. Näyttämö on ristinäyttämö. Takanäyttämö mahdollistaa syvät lavastukset. Suuren näyttämön 20 metrin syvyys hallitsee talon perusmitoitusta. Näyttämön leveys on 25 metriä.[50]
Talon ensimmäisessä kerroksessa Alminsali on 300-450 -paikkainen. Suorakaiteisessa ja mustalla verhotussa salissa esitetään kamarioopperoita, nykytanssia, konsertteja, lasten teoksia, vierailuja. Sen näyttämö on päänäyttämön kokoinen, joten sitä voidaan käyttää harjoitussalina. Suuri osa aputiloista kätkeytyy maanalaisiin kerroksiin ja sisääntulotorin alle.
Alvar Aallon toimiston suunnittelemat teatterit osana hallinto- ja kulttuurikeskusta
Arkkitehti Alvar Aalto puhui jo 1920-luvulla kulttuurirakennuksista osana länsimaista kulttuuritraditiota, jonka eräs etappi on ollut Ateenan Akropolis.[51] Kulttuurirakennukset toimisivat Aallon mukaan kaupunkisuunnittelun lähtökohtana. Ne loisivat kaupungille identiteetin 1960-luvun kaupunkikeskustoihin.[52]
Aallon 1970- ja 80-luvuilla valmistuneet teatteritalot on rakennettu osaksi hänen suunnittelemiaan hallinto- ja kulttuurikeskuksia Rovaniemellä, Jyväskylässä ja Seinäjoella. Näiden keskusten lähtökohtana oli kansalaisille tarkoitettu kokoontumispaikka, tori, jonne myös teatteri lukeutuu. Seinäjoen ja Rovaniemen kulttuurirakennusten muodostamat keskukset ovat erillään kaupunkikeskustoista. Jyväskylässä keskus toteutui osittain.[53]
Aallon toimiston suunnittelemissa teattereissa näyttämötorni pyrittiin muotoilemaan rakennuksen kokonaishahmon osaksi niin, että teatterille tarpeelliset tuotantotilat pienenivät kaupunkikuvan kustannuksella.[54]
Jyväskylän, Rovaniemen ja Seinäjoen teatterien suunnitteluaika kesti parikymmentä vuotta. Aallon kuoltua 1976 oli arkkitehti Elissa Aallon rooli keskeinen Seinäjoen teatterin suunnittelussa, Aallon piirustusten uudistamisessa ja rakennuksen toteuttamisessa.
Aallon mukaan teatterin arkkitehtuurin tuli irrottaa katsoja arjesta. Sisätilojen arkkitehtuurin tulisi vaihe vaiheelta nostaa odotuksen tunnetta ennen esitystä.[55] Samalla tavalla ajatteli ja kirjoitti Timo Penttiläkin, kenties Aallon vanavedessä. Aallon teatteritaloissa on klassisia elementtejä sisäänkäyntipylväikköjen ja katsomon muodoissa. Lämpiöt ovat väljiä ja vapaamuotoisia, toimistohuoneet muodoltaan säännöllisiä suorakulmaisia tiloja ja toiseen kerrokseen nostetut katsomot pohjaltaan epäsymmetrisiä. Aallon teattereiden katsomot mitoitettiin 400-600 hengelle.[56] Sisustuksissa käytettiin pääosin Aallon toimiston erikoispiirustusten mukaisia ja Artekin kalusteita sekä Aallon eri kohteisiin suunnittelemia valaisimia ja näiden muunnelmia.
Lappia-talo Rovaniemi 1975
Aalto sai Rovaniemen kaupungilta tehtävän suunnitella Lappia-talon osaksi hallinto- ja kulttuurikeskusta. Taloon varattiin tilat teatterin lisäksi maakuntamuseolle, musiikkiopistolle ja yleisradiolle. Kahdessa vaiheessa valmistunut rakennus saatiin kaupunginteatterin, ainoan Lapin alueella toimineen ammattiteatterin käyttöön 1975. Teatteri on toisessa kerroksessa ja näyttämötornin muoto kaartuu ylöspäin tunturin tapaan. Saliin noustaan seremoniallisesti aukion, eteisen ja lämpiön kautta.[57]
28_ 29_
445-paikkainen sali suunniteltiin teatteri-, konsertti- ja kongressikäyttöön. Sali oli yhdistettävissä 145-paikkaiseen studionäyttämöön paljeovella. Tämä on ollut akustinen ongelma, sillä rinnakkaisissa tiloissa ei ole voitu järjestää samanaikaisia esityksiä. Lavastajille katsomon epäsymmetrisyys suhteessa näyttämöön on myös ollut haaste.[58] Suuren salin ja studion takana on vielä kamarimusiikkisali.
Paikalla muuratut ulkoseinät verhoiltiin vaaleilla keraamisilla sauvoilla ja sokkelit mustalla graniitilla. Eteishallin ja lämpiöiden lattioissa käytettiin rovaniemeläisten toiveesta paikallista materiaalia, Lapin marmoria.[59]
30_ 31_
Jyväskylän kaupunginteatteri 1982
Jyväskylän 1961 perustettu kaupunginteatteri esiintyi pitkään Aallon suunnittelemassa työväentalossa vuodelta 1925. Se oli ammattiteatterille vaikea toimintaympäristö. Kaupunki järjesti suunnittelukilpailun teatteritalosta.[60] Vaikka Aalto ei kilpailuun ilmeisesti osallistunut, hän sai kaupungilta toimeksiannon 1964 teatterin käsittävän hallintokeskuksen suunnittelusta.[61] Aalto suunnitteli Jyväskylän hallintokeskusta kahteen kertaan, 1964 ja 1972. Teatteritalo valmistui 1982 Elissa Aallon johdolla.[62]
Rakennuksen pitkää julkisivua Kilpisenkadulle leimaavat toimistojen ikkunarivit. Kansalaistorin suuntaan kohoavat ikkunattomat katsomo ja näyttämötorni. Sisäänkäynti ja lämpiön suuret ikkunat suuntautuvat Kirkkopuistoon, ja tällä sivulla on näyttämötorni peitetty katonlappein. Julkisivuissa on vaaleita keraamisia sauvoja, joita Aallon toimisto kehitteli 1950-luvun alkupuolelta alkaen sisä- ja ulkopintojen edustaviksi materiaaleiksi.
32_ 33_
_Oik.: Lämpiö. Kuva: Marjo Holma, Alvar Aalto –museo.
Kulkuyhteyksien järjestelyä ja salin epäsymmetristä muotoa on rinnastettu Aallon Essenin oopperataloon, jota suunniteltiin ja rakennettiin samanaikaisesti.[63] Pääportaita noustaan hämärähköstä eteishallista korkeaan ja valoisaan lämpiöön. Tilasarjan huipentaa 550-paikkainen sektorin muotoinen, kohden näyttämöä kapeneva sali valkoisine seinineen ja tummine tuoleineen. Akustoiva seinäelementti ja sinivalkoinen väritys muistuttavat Finlandia-talon (1971) salista. Salin sinisävyisen tunnelman viimeisteli Irma Kukkasjärven esirippu.[64] Näyttämöaukko ulottuu sivuseiniin asti; vaikutelmaa on verrattu kreikkalaiseen teatteriin avoimen taivaan alla.[65] Kellarissa on 120-paikkainen studionäyttämö.
Seinäjoen kaupunginteatteri 1987
Seinäjoen kulttuuri- ja hallintokeskus syntyi kahden erillisen Aallon toimistolle tulleen arkkitehtikilpailuvoiton tuloksena. Kauppalantaloa koskevassa arkkitehtikilpailussa 1958 Aalto esitti teatteritalon sijainnin ja muodon.
Vaikka Seinäjoella ei ollut ammattimaista teatteritoimintaa 1960-luvun alussa, tilattiin Aallon arkkitehtitoimistolta teatterin luonnospiirustukset.[66] Seinäjoelle kasvoi ammattiteatteri 1970-luvun alkuun mennessä,[67] lisäksi kaupungissa vietettiin vuotuista harrastajateatterin festivaalia.
Teatterin suunnittelua jatkettiin 1960-luvun ajan painotuksen vaihdellessa teatteri-, konsertti- ja kongressikäytön välillä. Rakennus valmistui Elissa Aallon johdolla 1987 teatterikäyttöön.[68] Teatteritalo valmistui Aalto-keskukseen viimeisenä ja se sulkee aukion, jonka huipentaa toisessa päässä kirkko. Rakennuksen runko on betonia ja ulkoseinissä on kiinnitetty klinkkerisauvoja tiilimuuraukseen. Näyttämötorni on verhoiltu kuparilla.[69]
35_
Alalämpiöstä, jossa on kahvila-ravintola, noustaan leveää porrasta ylälämpiöön. Sieltä avautuu näkymä kohden kaupungintaloa. Alvar-salissa on 429 katsojapaikkaa. Etunäyttämö on muunnettavissa orkesterisyvennykseksi. Kellarikerroksessa on 100–110 paikkainen Elissa-sali ja 60-paikkainen Verstasteatteri.[70] Sisääntulohallin ja lämpiön päämateriaalit ovat kalkkikivi ja tammi. Teatterisali on sävyiltään hillitty, vastakohtana sille on Juhana Blomstedtin suunnittelema voimakas Daidalos-esirippu.[71]
JUHLAVUUTTA VAI RENTOUTTA - SUURISTA SALEISTA HUONETEATTEREIHIN
Vasemmistolainen kulttuuripolitiikka vahvistui sosiaalidemokraattien vaalivoiton jälkeen 1966. Toisen maailmansodan jälkeen syntyneet suuret ikäluokat tulivat aikuisikään. He asuivat kaupungeissa. Heillä oli vapaa-aikaa ja varaa käydä teatterissa. Teatteri uudistui dynaamisesti ja katsojaluvut nousivat. Uuden sukupolven esiinmarssi oli vallankumouksellisena pidetty musiikkinäytelmä Lapualaisooppera (1966), jonka kirjoitti Arvo Salo ja sävelsi Kaj Chydenius.[72]
Sekä teatteriväki että arkkitehdit keskustelivat teatterin olemuksesta 1960-luvun lopulle ominaiseen poliittiseen sävyyn. Kysyttiin, miten taide löytäisi tiensä suurten talojen eliittikukkuloilta kansan tykö. Suomesta puuttuivat pienet, intiimit, tule sellaisina kuin olet, vaikkapa villapaidassa -tyyliset teatterit.[73] Niitä syntyi Euroopan kaupunkeihin jo 1890-luvulla, mutta Suomeen vasta seuraavina vuosikymmeninä.[74]
Monumentaalisia ja juhlavia teatteritaloja verrattiin teknisen varustuksensa ja näyttämökoneistuksensa puolesta tehtaisiin, vaikka ne poikkesivat tehtaista arkkitehti Timo Penttilän sanoin täydellisen kannattamattomuutensa kautta.[75]
Teatterinjohtajien mukaan oli helppoa löytää ohjelmistoa pienelle näyttämölle, muttei suurelle, joka ratkaisee toiminnan taloudellisen kannattavuuden.[76] Suuret näyttämöiden klassikoita, uutuusteoksia ja musikaaleja jotkut arvostelivat viihteelliseksi kunnallispalveluksi.[77] Samojen laitosten pienillä näyttämöillä otettiin taloudellisia riskejä taiteellisesti kokeellisella ohjelmistolla.[78]
Mustat laatikot
Arkkitehti Walter Gropius oli luonnostellut Saksassa 1927 Totaaliteatteria, joka salli näyttämön ja katsomon muodon ja keskinäisen aseman joustavan muuntamisen erilaisiin esitystilanteisiin.[79] Siitä inspiroiduttiin 1960-luvulla, ja toivottiin muunneltavaa suhdetta näyttämön ja katsomon välillä. Syntyi ajatus neutraalitilasta, jonka muoto on yleensä suorakaide.
1960-luvun lopulla virinneeseen keskusteluun teatterin muodosta osallistui intensiivisesti arkkitehti Pentti Piha. Hän korosti kirjoituksissaan teatteritilan muunneltavuutta ja vastusti ylimitoitettua näyttämötekniikkaa. Olisi kumottava barokkiteatterin keskeisperspektiivi ja mahdollistettava esitystilanteet katsojien keskellä. [80]
Piha ja hengenheimolaiset ihailivat Gropiuksen teknisesti haastavaa, muunneltavaa totaaliteatteria. Pihan suunnittelemassa Intimiteatterissa (sittemmin teatteri Pienessä Suomessa) 1981 Itä-Pasilassa tila oli mustaksi verhottu musta laatikko ja sen muunneltavasta studio- eli neutraalitilasta tuli muissa teattereissa toistettu ratkaisu. Katsomomuotoa muunnellaan kuitenkin harvoin, sillä se on työlästä.[81]
Piha suunnitteli myös 1984 valmistuneen Helsingin Itäkeskuksen monitoimitalo Stoan kahden muunneltavan teatterisalin tekniikan, tilaohjelman ja ulkoasun. Teatteritilat eivät erotu monitoimitalon ulkoarkkitehtuurissa eikä niissä ole näyttämötornia. Sisään tullaan samasta eteistilasta kuin monitoimitalon muihinkin tiloihin. Salit ovat kuutiomaisia eikä niissä ole erotettu esitys- ja yleisötiloja arkkitehtonisesti toisistaan. Nousevien katsomoiden tuolirivejä voidaan muunnella siirrettävien vaunujen avulla, mutta näyttämötornin pois jättäminen rajoittaa lavastusmahdollisuuksia.[82]
42_
Intiimit pikkunäyttämöt
Uusia pieniä näyttämöitä ja studioita eli taskunäyttämöitä rakennettiin jo valmiisiin suuriin teatteritaloihin.[83] Esimerkiksi Turun kaupunginteatteriin tehtiin muunneltava Sopukka. Kansallisteatterissa Pienen näyttämön ravintola Teatterigrilli muutettiin 1976 Willensauna-studioksi. Siitä tuli Kansallisteatterin vanhimman päänäyttämön ja Pienen näyttämön jälkeen kolmas näyttämö. Neljäs ja pienin Omapohja-studio avattiin 1987 kadun toiselle puolelle.[84]
Konsepteiltaan erikoistuneita pikkuteattereita syntyi Ruotsiin ja Keski-Eurooppaan 1900-luvun alussa. Kamari- tai huoneteatterissa näyttelijän ja katsojan yhteys on välitön. Suomessa ne yleistyvät 1960-luvun alusta lähtien.[85] Yksi ensimmäisistä oli Helsingissä Lilla Teatern, joka perustettiin 1940-luvun lopulla.[86]
TEATTERIT KULTTUURIKESKUKSISSA
Monitoimitaloihin ja kulttuurikeskuksiin haluttiin keskittää erilaisia toimintoja ja julkisia palveluja. Eri kulttuurimuotojen väliset raja-aidat haluttiin häivyttää. Monitoimitaloihin tehtiin usein konsertti-, teatteri- ja kongressisaleja, opetustiloja, kirjasto ja näyttelytilaa. Kulttuurikeskuksia rakennettiin huippukautena 1980-luvulla yli 20.
Kulttuurikeskusten teattereissa hyödynnetään usein koko rakennukselle yhteisiä aulapalveluita. Erillisiä lämpiötiloja ei aina ole. Teatterisaleissa on suosittu neutraalitilaa.[87] Joskus kulttuurikeskuksessa toimii laitosteatteri, mutta pienissä kaupungeissa yleistä on ollut ammattijohtoisen harrastajateatterin malli.[88]
Kulttuurikeskuksia ja monitoimitaloja rakennettiin joka puolelle maata, kuten Iisalmelle, Lieksaan, Nurmekselle, Outokumpuun, Järvenpäähän, Hyvinkäälle ja Vantaalle.[89]
Kemin kulttuurikeskus 1980
Kemin kulttuurikeskuksen suunnittelivat arkkitehdit Jan Söderlund ja Erkki Valovirta. Taloon suunniteltiin tilat laitosteatterille. Massiivisen eleettömästä tiilirakennuksesta nousevat voimakkaina muotoina korkea näyttämötorni ja taka- ja sivunäyttämöt. Kulttuurikeskus ja kaupunginteatterin sisäänkäynti osoitetaan pohjakerroksen pylväiköllä, mikä erottaa rakennuksen ympäristön liike- ja asuinrakennuksista. Suunnittelussa korostettiin arkisuutta ja käytännöllisyyttä, esimerkiksi lämpiö korvattiin samassa talossa olevan kauppaoppilaitoksen ruokasalilla. Teatterisalissa on 300-paikkainen nouseva katsomo kaartuvine tuoliriveineen.[90]
36_
Kuusankoski-talo 1985
Kuusankosken kaakkoisuomalainen teollisuusyhdyskunta teki ”historiansa mittavimman investoinnin” ja rakensi kulttuurin monitoimitalon kaupungin keskeiselle tontille Kymijoen varteen. Vuonna 1980 käydyn arkkitehtuurikilpailun voitti arkkitehtitoimisto Brunow & Maunula ja talo valmistui 1985. Materiaalien ja muotojen vaihtelu tekee rakennuksesta rytmiltään eloisan. Julkisivut on vuorattu punatiilellä ja vaaleilla laatoilla. Aulasta avautuvat näkymät Kymijoelle. Teatterin 220-paikkainen katsomo on neljännesareenan mallinen ja seinät puulla paneloidut.[91] Teatterisali on tunnelmaltaan intiimi ja lämmin.[92]
37_
Pieksämäen Kulttuurikeskus Poleeni 1989
1980-luvun postmoderni arkkitehtuuri pyrki karttamaan monumentaalisuutta ja
viittasi mielellään historiaan. Kulttuurikeskus Poleenin 1989 suunnittelija, arkkitehti Kristian Gullichsen esitteli rakennuksen kontekstuaalisena, käsiteellisenä ja tilallisena leikkinä.[93] Valkea yleisilme sitoo talon Pieksämäen keskustan funkisarkkitehtuuriin.
Postmoderneja piirteitä ovat katuseinämän aaltoilu, pylväät, parvekeaiheet ja portaikko sisätiloissa. Kapean viuhkan muotoinen 342-paikkainen monitoimisali palvelee teatteria, konsertteja, luentoja ja elokuvia. Tilaa muunnellaan akustoivilla levyillä. Teatteria käyttävät ammattilaiset ja harrastajat, ja sillä on oma lämpiönsä, pukutilansa, puvustamonsa ja pieni lavastamonsa. 50-paikkainen kellariteatteri on pääosin harrastajien ja taiteen perusopetuksen käytössä.[94]
39_40_
Arto Sipisen suunnittelemien kulttuurikeskusten sarja
Arkkitehti Arto Sipinen suunnitteli näyttävän sarjan kulttuurikeskuksia: Imatran talo valmistui 1986, Mikkelin 1988, Espoon 1989 ja Kuusamon 1994. Sipisen kulttuurikeskukset ovat kuin valkeista kuutioista rakentuvia ulkonevine saliosineen. Valoisista ja juhlavista lämpiöistä tarjoutuu näkymiä puistoon ja vesiaiheisiin. Kaavaillut teatterit jäivät monin osin rakentamatta. Tapiolassa Espoon kaupunginteatteri esiintyy Louhi-salissa, joka on muunneltavissa 227–400 -paikkaiseksi pienimuotoisiin teatteriesityksiin, konsertteihin, kokous- ja elokuvateatterikäyttöön.[95]
41_
TEATTERIA TEHTAISSA JA ARJEN KESKELLÄ
Teatterintekijät halusivat 1960-luvun lopulta lähtien esiintyä muuallakin kuin teatteritaloissa. Näytöksiä vietiin työpaikoille, kouluihin ja päiväkoteihin, myöhemmin tehdashalleihin ja kaduille. 1970-luvulta alkaen näyttelijäryhmät hakivat esityksiinsä ”arjen patinaa, rähinää ja särmää”.[96] Esiintymistiloja löytyi entisistä elokuvateattereista, kuten Tampereen Ahaa Teatteri (1971) sekä oppilaitoksista ja kirjastoista.[97] Arkkitehtuurin vaatimattomuutta kompensoi tilanteen välittömyys ja hyvä näyttämö-katsomo -suhde.
43_
Kun teollisuus alkoi muuttaa pois kaupunkikeskustoista, jäi mittavia teollisuustiloja tyhjäksi. Teatteriesityksiä toteutettiin teollisuustiloissa ja isoissa halleissa. Yleisöä saatettiin kuljettaa esityksiin hämärien, mutkikkaiden tilojen läpi ja näin valmistaa heitä kokemukseen. KOM-teatterin Kullervon esitys Helsingin Suvilahden vanhassa voimalassa 1980-luvulla oli uranuurtaja.
50_
Satunnaisten näytösten lisäksi tehtiin tehdaskiinteistöihin pysyviä teatteritiloja. Niistä mainittakoon 1913 valmistuneen Tampereen teatterin lisänäyttämö Frenckell Satakunnan sillan viereisessä tehdaskiinteistössä (1982), Manilla-tehtaan teatteritilat entisessä köysitehtaassa Turussa (1991), Teatteri Vantaa Silkkitehtaalla (1995) ja Tryckeri teatern Karjaalla vanhassa painotalossa (1995).[98]
Vaikutteiden reitit ovat 1980-luvulta lähtien laajentuneet festivaalien ja kansainvälisten yhteistöiden myötä. Lajityyppien rajat ja lähestymistavat ovat monipuolistuneet. Teatterilaiset ovat jalkautuneet lähiöihin esityksin ja työpajoin, yksittäiset näyttelijät ovat esiintyneet vankiloissa ja sairaaloissa.[99]
OSALLISTAMISTA JA LUMOAMISTA
Suomalaisiin lomarituaaleihin kuuluu kesäteatteri. Viileä sää, puupenkki ja väliaikakahvi pahvimukista ovat osa elämystä ja esitystä.[100] Pyynikin vuonna 1959 valmistunut Kesäteatteri Tampereella sai ensimmäisenä pyörivän katsomon. Sadat tuhannet ovat siellä nähneet Tuntemattoman sotilaan esityksen. Linnoissa ja linnoituksissa toimii usein kesäteatteri: Turun linnassa ja Raaseporissa on näytelty, Suomenlinnan Hyvän Omatunnon linnake ja Olavinlinna on katettu esitysten tarpeisiin. Olavinlinna on kesäisin perinteinen oopperamiljöö.
Teatterirakennusten ja –esitysten moninaisuus ulottuu vanhoista 1800-luvun lopun ja 1900-luvun alun teattereista nuorempiin, suuriin laitosteattereihin, pieniin studionäyttämöihin ja tehtaisiin rakennettuihin tiloihin.
51_
Kirjoittaja
Tekniikan tohtori arkkitehti Aino Niskanen on tehnyt pitkän uran arkkitehtuurin historian opettajana ja professorina Teknillisessä korkeakoulussa (Aalto yliopisto vuodesta 2010). Ansioituneen kirjoittajan artikkeli Kulttuurin ja vapaa-ajan tiloja koko kansalle on julkaistu teoksessa Rakennetun Suomen tarina.
Artikkeli on julkaistu 2020.
KIRJALLISUUS
Aalto, Elissa 1987: Seinäjoen teatteri, Seinäjoki. Arkkitehtitoimisto Alvar Aalto & Co. Arkkitehti 7/1987, 45–50.
von Bagh, Peter 2007: Sininen laulu. Itsenäisen Suomen taiteiden tarina. Helsinki: WSOY.
Dahlström, Eila - Grönberg, Anita 1967: Teatteriyleisö sosiaaliryhmittäin. Arkkitehti 10-11 1967, 46.
Edström, Mats - Piha, Pentti 1976: Rum och teater. Oslo: Gyldendals Norsk Förlag.
Grönholm, Birger 1988: Tekniikkaa näyttämöllä. Helsinki: Valtion painatuskeskus.
Hyvämäki, Eero 1995: Arkkitehtoniset ratkaisut. Oopperatalo. The Operahouse, das Opernhaus Helsinki. Toim. Tapani Eskola. Helsinki: Kustannus Oy Projektilehti, 104.
Jaatinen, Marjatta ja Martti 1967: Oulun monumentaalikeskus. Arkkitehti 3-4/1967, 30-34.
Jaatinen, Marjatta ja Martti 1967: Oulun kaupunginteatteri. Arkkitehti 10-11/967, 30-33.
Jaatinen, Marjatta 1985: Tampereen Työväen teatteri. Arkkitehti 8/1985, 58–65.
Jaatinen, Martti 1986: Tampereen työväen teatteri. Muoto 1/1986, 50–51.
Kemppinen, Kullervo 1993: Uusi oopperatalo - Toiveet uusiksi. Det nya operahuset - En dröm blir verklighet. Ooppera ja näyttelykeskussäätiö r.s.
Koho, Timo 1991: Teatteriarkkitehtuurin merkitysarvot: teatterirakentamisen suhde yhteiskunnan arvomaailmaan kaupungistuvassa Suomessa. Helsinki: Suomen Muinaismuistoyhdistys.
Korsberg, Hanna – Lylykangas, Kimmo 2007: Helsingin Kaupunginteatterin rakennus. Kansaa teatterissa. Toim. Pirkko Koski. Like 2007, 52–66.
Kulttuurikeskus Poleeni, Pieksämäki. Gullichsen – Kairamo - Vormala Arkkitehdit KY. Arkkitehti 8/1989, 44–51.
Lahden teatteritalo, Arkkitehtitoimisto Pekka Salminen KY KSS. Arkkitehti 5-6/1983, 54-64.
Linko, Jukka 1985: Teatteritila monikäyttöisissä rakennuksissa: opas kulttuuri- vapaa-aika- ja koulutilojen suunnittelijoille ja peruskorjaajille. Helsinki: Taiteen keskustoimikunta.
Luukkonen, Risto-Veikko - Stenroos, Helmer 1963: Turun teatteritalo. Arkkitehdit Risto Veikko Luukkonen ja Helmer Stenroos. Arkkitehti 9/1963, 183–197.
Maunula, Jussi 1985: Kuusankoski-talo. Arkkitehti 8/1985, 46–57.
Oopperatalo. The Operahouse, das Opernhaus Helsinki. 1995. Toim. Tapani Eskola. Helsinki: Kustannus Oy Projektilehti.
Paavolainen, Pentti 1992: Teatteri ja suuri muutto. Ohjelmistot sosiaalisen murroksen osana 1959–1971. (diss. HY) Suomen Teatterijärjestöjen Keskusliiton 50-vuotisjuhlakirja. Helsinki: Kustannus Oy Teatteri.
Penttilä, Timo 1967 A: Helsingin kaupunginteatteri. Arkkitehti 10-11/ 1967, 9-21.
Penttilä Timo 1967 B: Teatterisuunnittelun lähtökohdista. Arkkitehti 10-11/ 1967, 27.
Piha, Pentti 1981: Intiimiteatteri. Ratamestarinkatu 5, Helsinki. Arkkitehti 8/1981, 46–49.
Salminen, Pekka 1983: Lahden teatteritalo, Lahti. Arkkitehtitoimisto Pekka Salminen & Ky KSS. Arkkitehti 5-6/1983, 54-64.
Sipinen, Arto 1989: Espoon kulttuurikeskus. Arkkitehti 2/1989/2, 44–51.
Sirén, Heikki 1947: Teatteritaloehdotus Helsinkiin, Arkkitehti 1-2/1947, Liite 5-7.
Wasastjerna, Rurik 2011: Sivistys- ja urheilutalo. Muutakin kuin rautatieristeys – Kouvolan keskustaajaman kaavoitus- ja rakennusperintö. Kouvolan kaupunginmuseo, 244–247.
Wegelius, Marja-Leena 1989: Linnunpesiä vai kultasia häkkejä. Teatteri tilassa. Theatre in space. FONDI. Teatterimuseon vuosikirja n:o 3. Helsinki: Teatterimuseo, 49–55.
Witikka, Jack 1989: Ei tila vaan ihmiset. Teatteri tilassa. Theatre in space. FONDI. teatterimuseon vuosikirja n:o 3. Helsinki: Teatterimuseo, 11–13.
RAKENNUSHISTORIASELVITYKSET
Arkkitehtitoimisto Freese & Schulman 2018: Kansallisteatteri. Pieni näyttämö. Rakennushistoriaselvitys 15.6.2018.
Haavisto, Heli 2012: Tampereen Työväen Teatterin rakennusinventointi. Painamaton raportti. Tampereen museot, Kulttuuriympäristöyksikön arkisto.
Kati Salonen ja Mona Schalin Arkkitehdit Oy 2013: Helsingin kaupunginteatteri. Rakennushistorian selvitys ja inventointi 10.2.2013.
Lukkarinen, Päivi ja Pöysälä, Hannu 2005: Rovaniemen kulttuuri- ja hallintokeskuksen sekä Lappia-talon rakennushistoriaselvitys.
Malmberg, Jonas 2014: Rakennushistoriaa ja säilyttämisen tavoitteita. Jyväskylän kaupunginteatteri. Arkkitehtitoimisto Alvar Aalto & Co, 1982. Alvar Aalto -säätiö.
Penttilä, Jaakko 2004 A: Seinäjoen teatteri, säilyneisyyskartoitus. Alvar Aalto -säätiö, 2003–2004.
Penttilä, Jaakko 2004 B: Seinäjoen kulttuuri- ja hallintokeskus, rakennushistoriallinen selvitys. Alvar Aalto -säätiö 2003–2004.
VERKKOJULKAISUT
Korsberg, Hanna 2005: Suomen kansallisteatterin Pieni näyttämö ja Huomenna hän tulee 1954. Ennen ja nyt 3/2005 http://www.ennenjanyt.net/2005_3/referee/korsberg.html (haettu 23.1.2020).
Wasa Teater. https://fi.wikipedia.org/wiki/Wasa_Teater (haettu 23.1.2020).
Paavolainen, Pentti: Suomen teatterihistoria. Teatterikorkeakoulun julkaisusarja 53. Taideyliopisto. https://disco.teak.fi/teatteri/ (haettu 23.1.2020).
Teatterikorkeakoulun historia https://www.uniarts.fi/teatterikorkeakoulu/historia (haettu 23.1.2020).
https://www.tieteentermipankki.fi (haettu 23.1.2020).
HAASTATTELUT JA SÄHKÖPOSTIT
Almi, Heidi, sidosryhmäpäällikkö, Kansallisooppera, haastattelu 17.10.2019, e-mail 6.11.2019.
Högström, Hilkka, Teatterit maakunnissa, maakuntamuseoiden vastauskooste, Museovirasto 2019.
Korsberg, Hanna, teatteritieteen professori HY, haastattelu 21.6.2016.
Laasonen, Ilkka teatterinjohtaja ja Toivonen, Jukka, teatterin ent. käyttöpäällikkö, Lahden teatteri, haastattelu 14.10.2019.
Majoinen, Päivi, Kulttuurikeskus Poleenin johtaja, e-mail 28.9.2019.
Malmberg, Jonas, Alvar Aalto säätiö, arkkitehti. e-mail 18.10.2019.
Paavolainen, Pentti, professori haastattelu 17.10.2019 ja e-mail 23.10.2019.
Rehtilä, Antti, tekninen johtaja, Helsingin kaupunginteatteri, haastattelu 1.10.2019.
Salmi, Pekka, toimitusjohtaja ja Lehtinen, Mika tekninen päällikkö, Tampereen työväenyhdistys ja Tampereen Työväen Teatteri, haastattelu ja vierailu talossa 10.10.2019.
Seilo, Raija-Liisa, Suomen teatterimuseon johtaja, haastattelu 24.5.2016.
Valtari, Anna, e-mail 24.10.2019.
LÄHDEVIITTEET
[1] Antiikin Kreikassa alun perin ympyrän-, sittemmin puoliympyrän muotoinen tanner, jossa tanssittiin ja laulettiin. Kreikkalaisessa teatterissa kuoro ja näyttelijät esiintyivät alun perin orkhestrassa, jonka keskellä sijaitsi Dionysoksen alttari. Myöhemmin näyttelijöitä varten rakennettiin koroke, ja kun kuoro jäi käytöstä, arvokkaimmat katsojat sijoitettiin orkhestraan. tieteentermipankki.fi.
[2] Linko 1985, 14–15.
[3] Linko 1985, 12–13.
[4] Teatterirakennukseen soveltuu arkkitehti Louis Kahnin määritelmä rakennuksen jakautumisesta palveltaviin ja palveleviin tiloihin.
[5] Grönholm 1986, 24.
[6] Koho 1991, 11. Esim. Turun kaupunginteatterissa näyttelytila muokattiin jälkikäteen pieneksi studionäyttämöksi.
[7] Heikkilä 1967, 41.
[8] Paavolainen 17.10.2019.
[9] Paavolainen 1992, 21–66.
[10] Paavolainen luku 6.1. https://disco.teak.fi › teatteri Suomessa
[11] Paavolainen haastattelu 17.10.2019.
[12] https://www.uniarts.fi/teatterikorkeakoulu/historia
[13] Jack Witikka (1916–2002), teatterinjohtaja ja ohjaaja. Witikka 1989,11.
[14] Kansallisteatterin taloa laajennettiin Kaisaniemen puiston suuntaan jo 1926 ja uudestaan 1954.
[15] Koho 1991, 42–45; Siren nimesi ihanteeksi Gropiuksen totaaliteatterin. Siren 1947, 5–7.
[16] Laajempi kuvaus Pienestä näyttämöstä rakennushistoriaselvityksessä Arkkitehtitoimisto Freese & Schulman 2018.
[17] Paavolainen 17.10.2019.
[18] Koho 1991, 45.
[19] Paavolainen, luku 6.1 https://disco.teak.fi › teatteri Suomessa; Wasa Teater https://fi.wikipedia.org/wiki/Wasa_Teater.
[20] Paavolainen, luku 6.1 https://disco.teak.fi › teatteri Suomessa.
[21] v. Bagh 2007, 377.
[22] Wasastjerna 2011, 244.
[23] Teatterien rakennusmäärärahan vireille paneminen 1958 aiheutti boomin. Laitosteatterien yhteyteen syntyi 1970-luvulla alueteatteritoiminta.
[24] Se oli toiminut pitkään tilapäisissä tiloissa, vuodesta 1946 Aallon suunnittelemassa Turun Maalaistentalon 500-paikkaisessa teatterissa, joka 1954 tuhoutui tulipalossa. Palon jälkeen ryhdyttiin ajamaan uuden teatteritalon rakentamista.
[25] Toteutus perustui osittain kilpailuvoittoon: tontti lyheni ja sen takaa vedettiin katu, rakennusta lyhennettiin ja kerroslukua lisättiin. Luukkonen - Stenroos 1963, 187.
[26] Koho 1991, 53–54.
[27] Koho 1991, 55, 59.
[28] Helsingin kansanteatteri ja Helsingin työväenteatteri yhdistyivät Helsingin Kansanteatteri-Työväenteatteriksi 1948 ja tästä syntyi Kaupunginteatteri 1965. Arkkitehtuurikilpailu järjestettiin 1959, voittajina Timo Penttilä ja Kari Virta 1961. Suunnitteluun osallistuivat Timo Penttilän rinnalla arkkitehdit Pekka Salminen ja Juhani Sivula. Sisustussuunnittelijana sisustusarkkitehti Maija Ruoslahti. Penttilä Timo 1967 A, 11.
[29] Korsberg - Lylykangas 2007, 64.
[30] Salonen - Schalin 2013,35, 73.
[31] Salonen - Schalin 2013, 55.
[32] Koho 1991, 69.
[33] Salonen - Schalin 2013, 22.
[34] Laajennuksen suunnittelivat Timo Penttilä, Kari Lind ja Sakari Tilanterä. Salonen - Schalin 2013, 109.
[35] Jaatinen Marjatta ja Martti 1967: Oulun monumentaalikeskus.
[36] Jaatinen Marjatta ja Martti 1967: Oulun Kaupunginteatteri; Koho 1991, 79–83.
[37] Voittaneen ehdotuksen laati Koivisto - Salminen - Siivola. Luottamusmieskäsittelyn jälkeen suunnitelmaa jouduttiin muokkaamaan tuntuvasti. Talo suunniteltiin 1976–1983. Salminen, Pekka 1983, 54.
[38] Penttilä 1967 A, 9.
[39] Koho 1991, 125.
[40] Salminen, Pekka 1983, 63.
[41] Tämä tehtiin korjauksessa 2007, jossa myös salin alkuperäinen vaaleahko puna-vihreä väritys muutettiin tummaksi ja automatisoitiin nostinjärjestelmä. Vierailu teatterissa 14.10.2019
[42] Salminen, Pekka 1983, 59, 62.
[43] Tampereen työväentalo valmistui 1900. Se sai 1905 kokous- ja juhlasalirakennuksen, jonne tuli teatteri. Rakennusta laajennettiin 1930, jolloin lisättiin pohjoissiipi ja Hämeenpuiston kulmaosa korotettiin kahdensankerroksiseksi. Haavisto 2012, 7.
[44] Jaatinen Marjatta ja Martti 1985, 58–65.
[45] Paavolainen, e-mail 23.10.2019.
[46] Vierailu talossa 10.10.2019.
[47] Koho 1991,84.
[48] Jaatinen, Martti 1986, 50.
[49] Talon syntyprosessista kts. Kemppinen 1993.
[50] Hyvämäki 1995.
[51] Wegelius 1989, 53. Ensimmäiset teatterinsa Aalto suunnitteli Jyväskylän Työväentaloon 1924 ja Turun Maalaistentaloon 1927–28. Aalto suunnitteli kreikkalaisittain porrastettuja ulkoilmateattereita useaan kohteeseen (Tiilimäen studio, Aalborgin taidemuseo, Jyväskylän yliopisto). Toteutumattomista suunnitelmista kiinnostava oli viuhkanmuotoisen katsomon ehdotus kilpailussa Kuopion teatterista 1951. Kts. Göran Schildt: Alvar Aalto a Life´s Work. Helsinki: Otava Publishing Company, 102-103.
[52] Koho 1991,90.
[53] Koho 1991,90, 97.
[54] Koho 1991, 90.
[55] Koho 1991,91.
[56] Koho 1991, 90.
[57] Koho 1991, 93.
[58] Laasonen, haastattelu 14.10.2019.
[59] Lappia-talon rakennushistoriaselvitys 2005, 35.
[60] Malmberg 2014, 11–12.
[61] Malmberg 2014, 9.
[62] Koho 1991, 97.
[63] Malmberg 2014, 24.
[64] Esirippu on poistettu, ainakin toistaiseksi varastoitu. Malmberg 18.10.2010.
[65] Koho 1991, 100 viittaa Göran Schildtin näkemykseen suomalaisesta antiikin teatterin metaforasta. Kts. Göran Schildt: Valkoinen Pöytä. Helsinki: Kustannusosakeyhtiö Otava, 1982, 227–230.
[66] Penttilä, Jaakko, 2004 B, 59.
[67] Eri suunnissa juuriaan kasvattanut teatteritoiminta johti lopulta Seinäjoen kaupunginteatterin kannatusyhdistyksen perustamiseen 1963 ja ensimmäiseen kaupunginteatterin ensi-iltaan 1964. e-mail Valtari 24.10.2019.
[68] Pääpiirustukset valmistuivat 1968, niissä talo oli vain teatterikäytössä. 1979 jatkui toteutussuunnittelu arkkitehtitoimisto Alvar Aalto & Co:ssa Elissa Aallon johdolla. Julkisivumateriaalista virinneen kiistan vuoksi pääpiirustukset valmistuivat 1984. Aalto, Elissa 1987, 45–46.
[69] Penttilä Jaakko 2004 A, 71.
[70] Valtari, Anna, e-mail 24.10.2019.
[71] Aalto, Elissa 1987, 46-
[72] Paavolainen luku 6.4 https://disco.teak.fi › teatteri Suomessa.
[73] Dahlström - Grönberg 1967, 46–47.
[74] Koho 1991, 30, 60–61.
[75] Penttilä Timo 1967 B, 27.
[76] Paavolainen 1992.
[77] Jussi Parviainen keskustelussa nykyteatterista. v. Bagh 2007, 64.
[78] Paavolainen, e-mail 23.10.2019.
[79] Mallissa esitettiin kolme vaihtoehtoa tilan muunteluun: etunäyttämöön, areenaan ja tirkistyslaatikkoon perustuva. Suomessa Pauli Blomstedt suunnitteli 1934–35 Helsingin Hakanimen torille Kansanteatteria, jossa oli vaikutteita Totaaliteatterista ja neuvostokonstruktivismista. Se ei toteutunut. Ks. Standertskjöld, Elina 1996: P.E. Blomstedt 1900–1935. Helsinki: Suomen rakennustaiteen museo, 66–72.
[80] Edström - Piha 1965; Piha 1981, 46–49; Mäkiö - Piha 1973, 44–45.
[81] Rehtijärvi 30.9.2019.
[82] Koho 1991,112.
[83] Paavolainen haastattelu 17.10.2019.
[84] Koho 1991, 47.
[85] Paavolainen Luku 6.1 https://disco.teak.fi › teatteri Suomessa. Myös Intiimiteatteri ja Teatteri Jurkka olivat varhaisia, maineikkaita huoneteattereita.
[86] Paavolainen haastattelu 17.10.2019. Myös Intiimiteatteri ja Teatteri Jurkka olivat varhaisia ja maineikkaita
[87] Koho 1991, 112.
[88] Ammattiohjaajan ja harrastajien yhdistelmä on mm. Kuusankoski-talossa, Salossa ja Valkeakoskella. Paavolainen haastattelu 17.10.2019.
[89] Teatterit maakunnissa, vastauskooste Högström 2019.
[90] Koho 1991, 120–121.
[91] Maunula 1985, 48.
[92] Paavolainen, haastattelu 17.10.2019.
[93] Gullichsen 1989, 44.
[94] Majoinen sähköposti 28.9.2019. Näyttämömekaniikka uusittiin kesinä 2016–2018.
[95] Sipinen 1989, 44.
[96] Seilo, haastattelu 24.5.2016
[97] Elokuvateattereita on teatterikäytössä. Helsingissä useita, Turussa, Vehmaalla ja Outokumussa. Entisiä kouluja ja kirjastotaloja on käytössä mm. Rääkkylässä ja Raumalla. Entisiä suojeluskuntataloja on käytössä mm. Kokkolassa. Teatterit maakunnissa, vastauskooste Högström 2019.
[98] Seilo haastattelu 24.5.2016; Tampereella ja Turussa on käytetty ja käytetään teollisuustiloja samoin Hämeenlinnassa ja Haapavedellä. Teatterit maakunnissa, vastauskooste Högström 2019.
[99] Seilo haastattelu 24.5.2016.
[100] Kesäteatteri on yhä voimissaan: Helsingin Sanomat listasi 2016 yhteensä 66 erilaista kesäteatteria ympäri maata HS.fi/kulttuuri.
Mustat laatikot
Arkkitehti Walter Gropius oli luonnostellut Saksassa 1927 Totaaliteatteria, joka salli näyttämön ja katsomon muodon ja keskinäisen aseman joustavan muuntamisen erilaisiin esitystilanteisiin.[79] Siitä inspiroiduttiin 1960-luvulla, ja toivottiin muunneltavaa suhdetta näyttämön ja katsomon välillä. Syntyi ajatus neutraalitilasta, jonka muoto on yleensä suorakaide.
1960-luvun lopulla virinneeseen keskusteluun teatterin muodosta osallistui intensiivisesti arkkitehti Pentti Piha. Hän korosti kirjoituksissaan teatteritilan muunneltavuutta ja vastusti ylimitoitettua näyttämötekniikkaa. Olisi kumottava barokkiteatterin keskeisperspektiivi ja mahdollistettava esitystilanteet katsojien keskellä. [80]
Piha ja hengenheimolaiset ihailivat Gropiuksen teknisesti haastavaa, muunneltavaa totaaliteatteria. Pihan suunnittelemassa Intimiteatterissa (sittemmin teatteri Pienessä Suomessa) 1981 Itä-Pasilassa tila oli mustaksi verhottu musta laatikko ja sen muunneltavasta studio- eli neutraalitilasta tuli muissa teattereissa toistettu ratkaisu. Katsomomuotoa muunnellaan kuitenkin harvoin, sillä se on työlästä.[81]
Piha suunnitteli myös 1984 valmistuneen Helsingin Itäkeskuksen monitoimitalo Stoan kahden muunneltavan teatterisalin tekniikan, tilaohjelman ja ulkoasun. Teatteritilat eivät erotu monitoimitalon ulkoarkkitehtuurissa eikä niissä ole näyttämötornia. Sisään tullaan samasta eteistilasta kuin monitoimitalon muihinkin tiloihin. Salit ovat kuutiomaisia eikä niissä ole erotettu esitys- ja yleisötiloja arkkitehtonisesti toisistaan. Nousevien katsomoiden tuolirivejä voidaan muunnella siirrettävien vaunujen avulla, mutta näyttämötornin pois jättäminen rajoittaa lavastusmahdollisuuksia.[82]
42_
Intiimit pikkunäyttämöt
Uusia pieniä näyttämöitä ja stutdioita eli taskunäyttämöitä rakennettiin jo valmiisiin suuriin teatteritaloihin.[83] Esimerkiksi Turun kaupunginteatteriin tehtiin muunneltava Sopukka. Kansallisteatterissa Pienen näyttämön ravintola Teatterigrilli muutettiin 1976 Willensauna-studioksi. Siitä tuli Kansallisteatterin vanhimman päänäyttämön ja Pienen näyttämön jälkeen kolmas näyttämö. Neljäs ja pienin Omapohja-studio avattiin 1987 kadun toiselle puolelle.[84]
Konsepteiltaan erikoistuneita pikkuteattereita syntyi Ruotsiin ja Keski-Eurooppaan 1900-luvun alussa. Kamari- tai huoneteatterissa näyttelijän ja katsojan yhteys on välitön. Suomessa ne yleistyvät 1960-luvun alusta lähtien.[85] Yksi ensimmäisistä oli Helsingissä Lilla Teatern, joka perustettiin 1940-luvun lopulla.[86]
TEATTERIT KULTTUURIKESKUKSISSA
Monitoimitaloihin ja kulttuurikeskuksiin haluttiin keskittää erilaisia toimintoja ja julkisia palveluja. Eri kulttuurimuotojen väliset raja-aidat haluttiin häivyttää. Monitoimitaloihin tehtiin usein konsertti-, teatteri- ja kongressisaleja, opetustiloja, kirjasto ja näyttelytilaa. Kulttuurikeskuksia rakennettiin huippukautena 1980-luvulla yli 20.
Kulttuurikeskusten teattereissa hyödynnetään usein koko rakennukselle yhteisiä aulapalveluita. Erillisiä lämpiötiloja ei aina ole. Teatterisaleissa on suosittu neutraalitilaa.[87] Joskus kulttuurikeskuksessa toimii laitosteatteri, mutta pienissä kaupungeissa yleistä on ollut ammattijohtoisen harrastajateatterin malli.[88]
Kulttuurikeskuksia ja monitoimitaloja rakennettiin joka puolelle maata, kuten Iisalmelle, Lieksaan, Nurmekselle, Outokumpuun, Järvenpäähän, Hyvinkäälle ja Vantaalle.[89]
Kemin kulttuurikeskus 1980
Kemin kulttuurikeskuksen suunnittelivat arkkitehdit Jan Söderlund ja Erkki Valovirta. Taloon suunniteltiin tilat laitosteatterille. Massiivisen eleettömästä tiilirakennuksesta nousevat voimakkaina muotoina korkea näyttämötorni ja taka- ja sivunäyttämöt. Kulttuurikeskus ja kaupunginteatterin sisäänkäynti osoitetaan pohjakerroksen pylväiköllä, mikä erottaa rakennuksen ympäristön liike- ja asuinrakennuksista. Suunnittelussa korostettiin arkisuutta ja käytännöllisyyttä, esimerkiksi lämpiö korvattiin samassa talossa olevan kauppaoppilaitoksen ruokasalilla. Teatterisalissa on 300-paikkainen nouseva katsomo kaartuvine tuoliriveineen.[90]
36_
Kuusankoski-talo 1985
Kuusankosken kaakkoisuomalainen teollisuusyhdyskunta teki ”historiansa mittavimman investoinnin” ja rakensi kulttuurin monitoimitalon kaupungin keskeiselle tontille Kymijoen varteen. Vuonna 1980 käydyn arkkitehtuurikilpailun voitti arkkitehtitoimisto Brunow & Maunula ja talo valmistui 1985. Materiaalien ja muotojen vaihtelu tekee rakennuksesta rytmiltään eloisan. Julkisivut on vuorattu punatiilellä ja vaaleilla laatoilla. Aulasta avautuvat näkymät Kymijoelle. Teatterin 220-paikkainen katsomo on neljännesareenan mallinen ja seinät puulla paneloidut.[91] Teatterisali on tunnelmaltaan intiimi ja lämmin.[92]
37_
Pieksämäen Kulttuurikeskus Poleeni 1989
1980-luvun postmoderni arkkitehtuuri pyrki karttamaan monumentaalisuutta ja
viittasi mielellään historiaan. Kulttuurikeskus Poleenin 1989 suunnittelija, arkkitehti Kristian Gullichsen esitteli rakennuksen kontekstuaalisena, käsiteellisenä ja tilallisena leikkinä.[93] Valkea yleisilme sitoo talon Pieksämäen keskustan funkisarkkitehtuuriin.
Postmoderneja piirteitä ovat katuseinämän aaltoilu, pylväät, parvekeaiheet ja portaikko sisätiloissa. Kapean viuhkan muotoinen 342-paikkainen monitoimisali palvelee teatteria, konsertteja, luentoja ja elokuvia. Tilaa muunnellaan akustoivilla levyillä. Teatteria käyttävät ammattilaiset ja harrastajat, ja sillä on oma lämpiönsä, pukutilansa, puvustamonsa ja pieni lavastamonsa. 50-paikkainen kellariteatteri on pääosin harrastajien ja taiteen perusopetuksen käytössä.[94]
39_40_
Arto Sipisen suunnittelemien kulttuurikeskusten sarja
Arkkitehti Arto Sipinen suunnitteli näyttävän sarjan kulttuurikeskuksia: Imatran talo valmistui 1986, Mikkelin 1988, Espoon 1989 ja Kuusamon 1994. Sipisen kulttuurikeskukset ovat kuin valkeista kuutioista rakentuvia ulkonevine saliosineen. Valoisista ja juhlavista lämpiöistä tarjoutuu näkymiä puistoon ja vesiaiheisiin. Kaavaillut teatterit jäivät monin osin rakentamatta. Tapiolassa Espoon kaupunginteatteri esiintyy Louhi-salissa, joka on muunneltavissa 227–400 -paikkaiseksi pienimuotoisiin teatteriesityksiin, konsertteihin, kokous- ja elokuvateatterikäyttöön.[95]
41_
TEATTERIA TEHTAISSA JA ARJEN KESKELLÄ
Teatterintekijät halusivat 1960-luvun lopulta lähtien esiintyä muuallakin kuin teatteritaloissa. Näytöksiä vietiin työpaikoille, kouluihin ja päiväkoteihin, myöhemmin tehdashalleihin ja kaduille. 1970-luvulta alkaen näyttelijäryhmät hakivat esityksiinsä ”arjen patinaa, rähinää ja särmää”.[96] Esiintymistiloja löytyi entisistä elokuvateattereista, kuten Tampereen Ahaa Teatteri (1971) sekä oppilaitoksista ja kirjastoista.[97] Arkkitehtuurin vaatimattomuutta kompensoi tilanteen välittömyys ja hyvä näyttämö-katsomo -suhde.
43_
Kun teollisuus alkoi muuttaa pois kaupunkikeskustoista, jäi mittavia teollisuustiloja tyhjäksi. Teatteriesityksiä toteutettiin teollisuustiloissa ja isoissa halleissa. Yleisöä saatettiin kuljettaa esityksiin hämärien, mutkikkaiden tilojen läpi ja näin valmistaa heitä kokemukseen. KOM-teatterin Kullervon esitys Helsingin Suvilahden vanhassa voimalassa 1980-luvulla oli uranuurtaja.
50_
Satunnaisten näytösten lisäksi tehtiin tehdaskiinteistöihin pysyviä teatteritiloja. Niistä mainittakoon 1913 valmistuneen Tampereen teatterin lisänäyttämö Frenckell Satakunnan sillan viereisessä tehdaskiinteistössä (1982), Manilla-tehtaan teatteritilat entisessä köysitehtaassa Turussa (1991), Teatteri Vantaa Silkkitehtaalla (1995) ja Tryckeri teatern Karjaalla vanhassa painotalossa (1995).[98]
Vaikutteiden reitit ovat 1980-luvulta lähtien laajentuneet festivaalien ja kansainvälisten yhteistöiden myötä. Lajityyppien rajat ja lähestymistavat ovat monipuolistuneet. Teatterilaiset ovat jalkautuneet lähiöihin esityksin ja työpajoin, yksittäiset näyttelijät ovat esiintyneet vankiloissa ja sairaaloissa.[99]
OSALLISTAMISTA JA LUMOAMISTA
Suomalaisiin lomarituaaleihin kuuluu kesäteatteri. Viileä sää, puupenkki ja väliaikakahvi pahvimukista ovat osa elämystä ja esitystä.[100] Pyynikin vuonna 1959 valmistunut Kesäteatteri Tampereella sai ensimmäisenä pyörivän katsomon. Sadat tuhannet ovat siellä nähneet Tuntemattoman sotilaan esityksen. Linnoissa ja linnoituksissa toimii usein kesäteatteri: Turun linnassa ja Raaseporissa on näytelty, Suomenlinnan Hyvän Omatunnon linnake ja Olavinlinna on katettu esitysten tarpeisiin. Olavinlinna on kesäisin perinteinen oopperamiljöö.
Teatterirakennusten ja –esitysten moninaisuus ulottuu vanhoista 1800-luvun lopun ja 1900-luvun alun teattereista nuorempiin, suuriin laitosteattereihin, pieniin studionäyttämöihin ja tehtaisiin rakennettuihin tiloihin.
51_
Kirjoittaja
Tekniikan tohtori arkkitehti Aino Niskanen on tehnyt pitkän uran arkkitehtuurin historian opettajana ja professorina Teknillisessä korkeakoulussa (Aalto yliopisto vuodesta 2010). Ansioituneen kirjoittajan artikkeli Kulttuurin ja vapaa-ajan tiloja koko kansalle on julkaistu teoksessa Rakennetun Suomen tarina.
Artikkeli on julkaistu 2020.
Kirjallisuus
Aalto, Elissa 1987: Seinäjoen teatteri, Seinäjoki. Arkkitehtitoimisto Alvar Aalto & Co. Arkkitehti 7/1987, 45–50.
von Bagh, Peter 2007: Sininen laulu. Itsenäisen Suomen taiteiden tarina. Helsinki: WSOY.
Dahlström, Eila - Grönberg, Anita 1967: Teatteriyleisö sosiaaliryhmittäin. Arkkitehti 10-11 1967, 46.
Edström, Mats - Piha, Pentti 1976: Rum och teater. Oslo: Gyldendals Norsk Förlag.
Grönholm, Birger 1988: Tekniikkaa näyttämöllä. Helsinki: Valtion painatuskeskus.
Hyvämäki, Eero 1995: Arkkitehtoniset ratkaisut. Oopperatalo. The Operahouse, das Opernhaus Helsinki. Toim. Tapani Eskola. Helsinki: Kustannus Oy Projektilehti, 104.
Jaatinen, Marjatta ja Martti 1967: Oulun monumentaalikeskus. Arkkitehti 3-4/1967, 30-34.
Jaatinen, Marjatta ja Martti 1967: Oulun kaupunginteatteri. Arkkitehti 10-11/967, 30-33.
Jaatinen, Marjatta 1985: Tampereen Työväen teatteri. Arkkitehti 8/1985, 58–65.
Jaatinen, Martti 1986: Tampereen työväen teatteri. Muoto 1/1986, 50–51.
Kemppinen, Kullervo 1993: Uusi oopperatalo - Toiveet uusiksi. Det nya operahuset - En dröm blir verklighet. Ooppera ja näyttelykeskussäätiö r.s.
Koho, Timo 1991: Teatteriarkkitehtuurin merkitysarvot: teatterirakentamisen suhde yhteiskunnan arvomaailmaan kaupungistuvassa Suomessa. Helsinki: Suomen Muinaismuistoyhdistys.
Korsberg, Hanna – Lylykangas, Kimmo 2007: Helsingin Kaupunginteatterin rakennus. Kansaa teatterissa. Toim. Pirkko Koski. Like 2007, 52–66.
Kulttuurikeskus Poleeni, Pieksämäki. Gullichsen – Kairamo - Vormala Arkkitehdit KY. Arkkitehti 8/1989, 44–51.
Lahden teatteritalo, Arkkitehtitoimisto Pekka Salminen KY KSS. Arkkitehti 5-6/1983, 54-64.
Linko, Jukka 1985: Teatteritila monikäyttöisissä rakennuksissa: opas kulttuuri- vapaa-aika- ja koulutilojen suunnittelijoille ja peruskorjaajille. Helsinki: Taiteen keskustoimikunta.
Luukkonen, Risto-Veikko - Stenroos, Helmer 1963: Turun teatteritalo. Arkkitehdit Risto Veikko Luukkonen ja Helmer Stenroos. Arkkitehti 9/1963, 183–197.
Maunula, Jussi 1985: Kuusankoski-talo. Arkkitehti 8/1985, 46–57.
Oopperatalo. The Operahouse, das Opernhaus Helsinki. 1995. Toim. Tapani Eskola. Helsinki: Kustannus Oy Projektilehti.
Paavolainen, Pentti 1992: Teatteri ja suuri muutto. Ohjelmistot sosiaalisen murroksen osana 1959–1971. (diss. HY) Suomen Teatterijärjestöjen Keskusliiton 50-vuotisjuhlakirja. Helsinki: Kustannus Oy Teatteri.
Penttilä, Timo 1967 A: Helsingin kaupunginteatteri. Arkkitehti 10-11/ 1967, 9-21.
Penttilä Timo 1967 B: Teatterisuunnittelun lähtökohdista. Arkkitehti 10-11/ 1967, 27.
Piha, Pentti 1981: Intiimiteatteri. Ratamestarinkatu 5, Helsinki. Arkkitehti 8/1981, 46–49.
Salminen, Pekka 1983: Lahden teatteritalo, Lahti. Arkkitehtitoimisto Pekka Salminen & Ky KSS. Arkkitehti 5-6/1983, 54-64.
Sipinen, Arto 1989: Espoon kulttuurikeskus. Arkkitehti 2/1989/2, 44–51.
Sirén, Heikki 1947: Teatteritaloehdotus Helsinkiin, Arkkitehti 1-2/1947, Liite 5-7.
Wasastjerna, Rurik 2011: Sivistys- ja urheilutalo. Muutakin kuin rautatieristeys – Kouvolan keskustaajaman kaavoitus- ja rakennusperintö. Kouvolan kaupunginmuseo, 244–247.
Wegelius, Marja-Leena 1989: Linnunpesiä vai kultasia häkkejä. Teatteri tilassa. Theatre in space. FONDI. Teatterimuseon vuosikirja n:o 3. Helsinki: Teatterimuseo, 49–55.
Witikka, Jack 1989: Ei tila vaan ihmiset. Teatteri tilassa. Theatre in space. FONDI. teatterimuseon vuosikirja n:o 3. Helsinki: Teatterimuseo, 11–13.
RAKENNUSHISTORIASELVITYKSET
Arkkitehtitoimisto Freese & Schulman 2018: Kansallisteatteri. Pieni näyttämö. Rakennushistoriaselvitys 15.6.2018.
Haavisto, Heli 2012: Tampereen Työväen Teatterin rakennusinventointi. Painamaton raportti. Tampereen museot, Kulttuuriympäristöyksikön arkisto.
Kati Salonen ja Mona Schalin Arkkitehdit Oy 2013: Helsingin kaupunginteatteri. Rakennushistorian selvitys ja inventointi 10.2.2013.
Lukkarinen, Päivi ja Pöysälä, Hannu 2005: Rovaniemen kulttuuri- ja hallintokeskuksen sekä Lappia-talon rakennushistoriaselvitys.
Malmberg, Jonas 2014: Rakennushistoriaa ja säilyttämisen tavoitteita. Jyväskylän kaupunginteatteri. Arkkitehtitoimisto Alvar Aalto & Co, 1982. Alvar Aalto -säätiö.
Penttilä, Jaakko 2004 A: Seinäjoen teatteri, säilyneisyyskartoitus. Alvar Aalto -säätiö, 2003–2004.
Penttilä, Jaakko 2004 B: Seinäjoen kulttuuri- ja hallintokeskus, rakennushistoriallinen selvitys. Alvar Aalto -säätiö 2003–2004.
Verkkojulkaisut
Korsberg, Hanna 2005: Suomen kansallisteatterin Pieni näyttämö ja Huomenna hän tulee 1954. Ennen ja nyt 3/2005 http://www.ennenjanyt.net/2005_3/referee/korsberg.html (haettu 23.1.2020).
Wasa Teater. https://fi.wikipedia.org/wiki/Wasa_Teater (haettu 23.1.2020).
Paavolainen, Pentti: Suomen teatterihistoria. Teatterikorkeakoulun julkaisusarja 53. Taideyliopisto. https://disco.teak.fi/teatteri/ (haettu 23.1.2020).
Teatterikorkeakoulun historia https://www.uniarts.fi/teatterikorkeakoulu/historia (haettu 23.1.2020).
https://www.tieteentermipankki.fi (haettu 23.1.2020).
Haastattelut ja sähköpostit
Almi, Heidi, sidosryhmäpäällikkö, Kansallisooppera, haastattelu 17.10.2019, e-mail 6.11.2019.
Högström, Hilkka, Teatterit maakunnissa, maakuntamuseoiden vastauskooste, Museovirasto 2019.
Korsberg, Hanna, teatteritieteen professori HY, haastattelu 21.6.2016.
Laasonen, Ilkka teatterinjohtaja ja Toivonen, Jukka, teatterin ent. käyttöpäällikkö, Lahden teatteri, haastattelu 14.10.2019.
Majoinen, Päivi, Kulttuurikeskus Poleenin johtaja, e-mail 28.9.2019.
Malmberg, Jonas, Alvar Aalto säätiö, arkkitehti. e-mail 18.10.2019.
Paavolainen, Pentti, professori haastattelu 17.10.2019 ja e-mail 23.10.2019.
Rehtilä, Antti, tekninen johtaja, Helsingin kaupunginteatteri, haastattelu 1.10.2019.
Salmi, Pekka, toimitusjohtaja ja Lehtinen, Mika tekninen päällikkö, Tampereen työväenyhdistys ja Tampereen Työväen Teatteri, haastattelu ja vierailu talossa 10.10.2019.
Seilo, Raija-Liisa, Suomen teatterimuseon johtaja, haastattelu 24.5.2016.
Valtari, Anna, e-mail 24.10.2019.
Lähdeviitteet
[1] Antiikin Kreikassa alun perin ympyrän-, sittemmin puoliympyrän muotoinen tanner, jossa tanssittiin ja laulettiin. Kreikkalaisessa teatterissa kuoro ja näyttelijät esiintyivät alun perin orkhestrassa, jonka keskellä sijaitsi Dionysoksen alttari. Myöhemmin näyttelijöitä varten rakennettiin koroke, ja kun kuoro jäi käytöstä, arvokkaimmat katsojat sijoitettiin orkhestraan. tieteentermipankki.fi.
[2] Linko 1985, 14–15.
[3] Linko 1985, 12–13.
[4] Teatterirakennukseen soveltuu arkkitehti Louis Kahnin määritelmä rakennuksen jakautumisesta palveltaviin ja palveleviin tiloihin.
[5] Grönholm 1986, 24.
[6] Koho 1991, 11. Esim. Turun kaupunginteatterissa näyttelytila muokattiin jälkikäteen pieneksi studionäyttämöksi.
[7] Heikkilä 1967, 41.
[8] Paavolainen 17.10.2019.
[9] Paavolainen 1992, 21–66.
[10] Paavolainen luku 6.1. https://disco.teak.fi › teatteri Suomessa
[11] Paavolainen haastattelu 17.10.2019.
[12] https://www.uniarts.fi/teatterikorkeakoulu/historia
[13] Jack Witikka (1916–2002), teatterinjohtaja ja ohjaaja. Witikka 1989,11.
[14] Kansallisteatterin taloa laajennettiin Kaisaniemen puiston suuntaan jo 1926 ja uudestaan 1954.
[15] Koho 1991, 42–45; Siren nimesi ihanteeksi Gropiuksen totaaliteatterin. Siren 1947, 5–7.
[16] Laajempi kuvaus Pienestä näyttämöstä rakennushistoriaselvityksessä Arkkitehtitoimisto Freese & Schulman 2018.
[17] Paavolainen 17.10.2019.
[18] Koho 1991, 45.
[19] Paavolainen, luku 6.1 https://disco.teak.fi › teatteri Suomessa; Wasa Teater https://fi.wikipedia.org/wiki/Wasa_Teater.
[20] Paavolainen, luku 6.1 https://disco.teak.fi › teatteri Suomessa.
[21] v. Bagh 2007, 377.
[22] Wasastjerna 2011, 244.
[23] Teatterien rakennusmäärärahan vireille paneminen 1958 aiheutti boomin. Laitosteatterien yhteyteen syntyi 1970-luvulla alueteatteritoiminta.
[24] Se oli toiminut pitkään tilapäisissä tiloissa, vuodesta 1946 Aallon suunnittelemassa Turun Maalaistentalon 500-paikkaisessa teatterissa, joka 1954 tuhoutui tulipalossa. Palon jälkeen ryhdyttiin ajamaan uuden teatteritalon rakentamista.
[25] Toteutus perustui osittain kilpailuvoittoon: tontti lyheni ja sen takaa vedettiin katu, rakennusta lyhennettiin ja kerroslukua lisättiin. Luukkonen - Stenroos 1963, 187.
[26] Koho 1991, 53–54.
[27] Koho 1991, 55, 59.
[28] Helsingin kansanteatteri ja Helsingin työväenteatteri yhdistyivät Helsingin Kansanteatteri-Työväenteatteriksi 1948 ja tästä syntyi Kaupunginteatteri 1965. Arkkitehtuurikilpailu järjestettiin 1959, voittajina Timo Penttilä ja Kari Virta 1961. Suunnitteluun osallistuivat Timo Penttilän rinnalla arkkitehdit Pekka Salminen ja Juhani Sivula. Sisustussuunnittelijana sisustusarkkitehti Maija Ruoslahti. Penttilä Timo 1967 A, 11.
[29] Korsberg - Lylykangas 2007, 64.
[30] Salonen - Schalin 2013,35, 73.
[31] Salonen - Schalin 2013, 55.
[32] Koho 1991, 69.
[33] Salonen - Schalin 2013, 22.
[34] Laajennuksen suunnittelivat Timo Penttilä, Kari Lind ja Sakari Tilanterä. Salonen - Schalin 2013, 109.
[35] Jaatinen Marjatta ja Martti 1967: Oulun monumentaalikeskus.
[36] Jaatinen Marjatta ja Martti 1967: Oulun Kaupunginteatteri; Koho 1991, 79–83.
[37] Voittaneen ehdotuksen laati Koivisto - Salminen - Siivola. Luottamusmieskäsittelyn jälkeen suunnitelmaa jouduttiin muokkaamaan tuntuvasti. Talo suunniteltiin 1976–1983. Salminen, Pekka 1983, 54.
[38] Penttilä 1967 A, 9.
[39] Koho 1991, 125.
[40] Salminen, Pekka 1983, 63.
[41] Tämä tehtiin korjauksessa 2007, jossa myös salin alkuperäinen vaaleahko puna-vihreä väritys muutettiin tummaksi ja automatisoitiin nostinjärjestelmä. Vierailu teatterissa 14.10.2019
[42] Salminen, Pekka 1983, 59, 62.
[43] Tampereen työväentalo valmistui 1900. Se sai 1905 kokous- ja juhlasalirakennuksen, jonne tuli teatteri. Rakennusta laajennettiin 1930, jolloin lisättiin pohjoissiipi ja Hämeenpuiston kulmaosa korotettiin kahdensankerroksiseksi. Haavisto 2012, 7.
[44] Jaatinen Marjatta ja Martti 1985, 58–65.
[45] Paavolainen, e-mail 23.10.2019.
[46] Vierailu talossa 10.10.2019.
[47] Koho 1991,84.
[48] Jaatinen, Martti 1986, 50.
[49] Talon syntyprosessista kts. Kemppinen 1993.
[50] Hyvämäki 1995.
[51] Wegelius 1989, 53. Ensimmäiset teatterinsa Aalto suunnitteli Jyväskylän Työväentaloon 1924 ja Turun Maalaistentaloon 1927–28. Aalto suunnitteli kreikkalaisittain porrastettuja ulkoilmateattereita useaan kohteeseen (Tiilimäen studio, Aalborgin taidemuseo, Jyväskylän yliopisto). Toteutumattomista suunnitelmista kiinnostava oli viuhkanmuotoisen katsomon ehdotus kilpailussa Kuopion teatterista 1951. Kts. Göran Schildt: Alvar Aalto a Life´s Work. Helsinki: Otava Publishing Company, 102-103.
[52] Koho 1991,90.
[53] Koho 1991,90, 97.
[54] Koho 1991, 90.
[55] Koho 1991,91.
[56] Koho 1991, 90.
[57] Koho 1991, 93.
[58] Laasonen, haastattelu 14.10.2019.
[59] Lappia-talon rakennushistoriaselvitys 2005, 35.
[60] Malmberg 2014, 11–12.
[61] Malmberg 2014, 9.
[62] Koho 1991, 97.
[63] Malmberg 2014, 24.
[64] Esirippu on poistettu, ainakin toistaiseksi varastoitu. Malmberg 18.10.2010.
[65] Koho 1991, 100 viittaa Göran Schildtin näkemykseen suomalaisesta antiikin teatterin metaforasta. Kts. Göran Schildt: Valkoinen Pöytä. Helsinki: Kustannusosakeyhtiö Otava, 1982, 227–230.
[66] Penttilä, Jaakko, 2004 B, 59.
[67] Eri suunnissa juuriaan kasvattanut teatteritoiminta johti lopulta Seinäjoen kaupunginteatterin kannatusyhdistyksen perustamiseen 1963 ja ensimmäiseen kaupunginteatterin ensi-iltaan 1964. e-mail Valtari 24.10.2019.
[68] Pääpiirustukset valmistuivat 1968, niissä talo oli vain teatterikäytössä. 1979 jatkui toteutussuunnittelu arkkitehtitoimisto Alvar Aalto & Co:ssa Elissa Aallon johdolla. Julkisivumateriaalista virinneen kiistan vuoksi pääpiirustukset valmistuivat 1984. Aalto, Elissa 1987, 45–46.
[69] Penttilä Jaakko 2004 A, 71.
[70] Valtari, Anna, e-mail 24.10.2019.
[71] Aalto, Elissa 1987, 46-
[72] Paavolainen luku 6.4 https://disco.teak.fi › teatteri Suomessa.
[73] Dahlström - Grönberg 1967, 46–47.
[74] Koho 1991, 30, 60–61.
[75] Penttilä Timo 1967 B, 27.
[76] Paavolainen 1992.
[77] Jussi Parviainen keskustelussa nykyteatterista. v. Bagh 2007, 64.
[78] Paavolainen, e-mail 23.10.2019.
[79] Mallissa esitettiin kolme vaihtoehtoa tilan muunteluun: etunäyttämöön, areenaan ja tirkistyslaatikkoon perustuva. Suomessa Pauli Blomstedt suunnitteli 1934–35 Helsingin Hakanimen torille Kansanteatteria, jossa oli vaikutteita Totaaliteatterista ja neuvostokonstruktivismista. Se ei toteutunut. Ks. Standertskjöld, Elina 1996: P.E. Blomstedt 1900–1935. Helsinki: Suomen rakennustaiteen museo, 66–72.
[80] Edström - Piha 1965; Piha 1981, 46–49; Mäkiö - Piha 1973, 44–45.
[81] Rehtijärvi 30.9.2019.
[82] Koho 1991,112.
[83] Paavolainen haastattelu 17.10.2019.
[84] Koho 1991, 47.
[85] Paavolainen Luku 6.1 https://disco.teak.fi › teatteri Suomessa. Myös Intiimiteatteri ja Teatteri Jurkka olivat varhaisia, maineikkaita huoneteattereita.
[86] Paavolainen haastattelu 17.10.2019. Myös Intiimiteatteri ja Teatteri Jurkka olivat varhaisia ja maineikkaita
[87] Koho 1991, 112.
[88] Ammattiohjaajan ja harrastajien yhdistelmä on mm. Kuusankoski-talossa, Salossa ja Valkeakoskella. Paavolainen haastattelu 17.10.2019.
[89] Teatterit maakunnissa, vastauskooste Högström 2019.
[90] Koho 1991, 120–121.
[91] Maunula 1985, 48.
[92] Paavolainen, haastattelu 17.10.2019.
[93] Gullichsen 1989, 44.
[94] Majoinen sähköposti 28.9.2019. Näyttämömekaniikka uusittiin kesinä 2016–2018.
[95] Sipinen 1989, 44.
[96] Seilo, haastattelu 24.5.2016
[97] Elokuvateattereita on teatterikäytössä. Helsingissä useita, Turussa, Vehmaalla ja Outokumussa. Entisiä kouluja ja kirjastotaloja on käytössä mm. Rääkkylässä ja Raumalla. Entisiä suojeluskuntataloja on käytössä mm. Kokkolassa. Teatterit maakunnissa, vastauskooste Högström 2019.
[98] Seilo haastattelu 24.5.2016; Tampereella ja Turussa on käytetty ja käytetään teollisuustiloja samoin Hämeenlinnassa ja Haapavedellä. Teatterit maakunnissa, vastauskooste Högström 2019.
[99] Seilo haastattelu 24.5.2016.
[100] Kesäteatteri on yhä voimissaan: Helsingin Sanomat listasi 2016 yhteensä 66 erilaista kesäteatteria ympäri maata HS.fi/kulttuuri.