
Museorakennukset 1900-luvun jälkipuolella
Marja-Liisa Rönkkö
Suomessa on yli tuhat museota. Se on väkilukuun nähden ja muihin maihin verrattuna paljon. Maan itsenäistyessä museoita oli 45. Museoidemme kulttuurihistorian pohjana ovat kansalaisten keräämät aineistot. Muualla museot perustuvat ruhtinaiden ja rikkaiden keräilijöiden hankkimille kokoelmille. Toisen maailmansodan jälkeen Suomen museokokoelmia oli jaettava uudelleen. Tämä kaikki on vaikuttanut museotiloihin ja -arkkitehtuuriin. Meillä julkisten museoiden perustaminen alkoi satakunta vuotta myöhemmin kuin muualla Euroopassa. Alan kasvu ja ammatillinen organisoituminen kesti koko 1900-luvun, kunnes 2000-luvun vaihteessa valtakunnallinen vastuu jakaantui kolmen keskusmuseon, 22 maakuntamuseon, 16 aluetaidemuseon ja 16 erikoismuseon kesken. Ammatillisesti hoidettuja valtionosuutta saavia museoita oli 154 vuonna 2012 ja niiden ylläpitämiä museokohteita 325. Museotiloista 95 prosenttia on alkuperäisestä käytöstään poistuneita rakennuksia. Uudisrakennuksia ovat saaneet useimmin taidemuseot.
Museon universaali määritelmä
”Museo on pysyvä, taloudellista hyötyä tavoittelematon, yhteiskuntaa ja sen kehitystä palveleva laitos, joka on avoinna yleisölle ja joka tutkimusta ja opetusta edistääkseen ja mielihyvää tuottaakseen hankkii, säilyttää, tutkii, käyttää tiedonvälitykseen ja pitää näytteillä aineellisia ja aineettomia todisteita ihmisestä ja hänen ympäristöstään.” Kansainvälisen museoneuvoston – International Council of Museums ICOM:in määritelmä.
Museorakennuksen merkitys ja viesti
Rakennus on museolle välttämätön, mutta oikeanlaisten ja riittävien tilojen saaminen saattaa kestää vuosikymmeniä. Vanha rakennus jää usein lopulliseksi ratkaisuksi. Talo tiloineen ja tyyleineen vaikuttaa museon sisältöön ja määrittelee museonäyttelyä. Rakennus itsessään on viesti: näyttely alkaa jo ulkoa, ennen sisään astumista. Kokoelmat ja rakennus on sovitettava yhteen, riippuen myös siitä, minkälainen mielikuva museosta halutaan antaa ja mikä kulloinkin katsotaan museon tehtäväksi.[1]
Nimenomaan museoiksi suunniteltuja uusia rakennuksia oli alettu kaivata vasta 1700-luvun lopulla. Silloin näyttelytiloihin ilmestyivät päivänvaloa antavat kattoikkunat,[2] joista tuli merkittävä ja pysyvä museoarkkitehtuurin ominaispiirre. Kyse ei ole valaistuksen määrästä, vaan kokoelmien säilymisen kannalta haitallisen ikkunoista tulevan sivuvalon pois suodattamisesta.
Yleisiä yhä päteviä suunnitteluohjeita laadittiin 1800-luvun puolimaista lähtien:
- tontti vakaalla maalla hyvien liikenneyhteyksien päässä,
- mieluiten puistoympäristössä, jossa mahdollisuus laajentaa,
- sisäänkäynti ja tuloaula ulkoasultaan kutsuvia ja kulkemisen kannalta selkeitä,
- maalauksille kattoikkunat, veistoksille ja grafiikalle sivuvalo pohjoisesta,
- työhuoneet ja varastot sivummalla ja kellarissa.
Museorakennuksen muotoutuminen
Museoiden pohjana olevia kokoelmia on alun perin säilytetty niiden kerääjien omissa tiloissa: antiikin temppeleiden ja aukioiden pylväiköissä, keskiajan kirkkojen holvien alla, yliopistojen saleissa ja tutkijankammioissa, samoin kuin hallitsijoiden linnojen eri osia yhdistävien galleriakäytävien seinämillä ja ylimystön asuinpalatsien kokoelmakabineteissa.
Varhaisimmilta ajoilta periytyy nimi museo, joka tulee muusille, taiteiden ja tieteiden haltijattarille pyhitettyä rakennusta merkitsevästä kreikan sanasta museion. Se yleistyi 1800-luvulla, kun suurten kokoelmien valtiollistaminen alkoi ja Euroopan pääkaupunkeihin ryhdyttiin perustamaan kansallismuseoita. Vanhan ja uuden käännekohtana voidaan pitää Pariisin Louvren avaamista kaikelle kansalle 1793. Ensimmäisenä avattiin kansallismuseo Unkarissa 1802 ja viimeisenä Suomessa 1916.
02_Altes_MLR
Kokonaan uutta ajattelua toi New Yorkin pilvenpiirtäjäalueella vuonna 1939 avattu Museum of Modern Art MoMA (Philip L. Goodwin ja Edward Durell Stone). Sen ulkoasussa ei ole perinteisiä museopiirteitä, vaan rakennus muistuttaa nykyaikaista toimistotaloa.[3]
Eri aikojen tyylilajien elementtejä elää alitajunnassamme, ja niitä kätkeytyy nykyiseenkin museoarkkitehtuuriin.[4]
Suomalaisen museon lähtökohtia
Museoita oli alettu perustaa eri puolille maata 1800-luvun jälkipuoliskolla,[5] kaupunginmuseoita kiihtyvään tahtiin 1880-luvulta lähtien. Vuosisadan loppuun mennessä kolmasosa silloisista kaupungeista oli saanut oman kaupunkihistoriallisen museonsa. Vanhin uudisrakennus on vuonna 1887 avattu, maamme ainoa ns. palatsiarkkitehtuuria edustava koulu- ja museotalo Ateneum (kansainvälinen suunnittelukilpailu: Theodor Höijer; keskusmuseo Kansallisgalleria Helsinki).
1900-luvun alussa valmistuneet museot
- Turun taidemuseon anglo-amerikkalaisvaikutteinen graniittilinna piirustuskouluineen (kilpailu: Gustaf Nyström, 1904),
- Kuopion rapattu linnamainen museo- ja kirjastotalo (J. Strömberg, 1907),
- vuonna 1893 perustettu Valtion historiallinen museo (kilpailu: Herman Gesellius, Armas Lindgren ja Eliel Saarinen, 1910; keskusmuseo Kansallismuseo Helsinki),
- 1909 avattu, Ruotsista ideansa saanut ulkomuseo Seurasaari, loivat yhdessä paikallismuseoiden kanssa kivijalan itsenäiselle museolaitokselle ja sen arkkitehtuurille,[6]
- Luonnontieteellisen keskusmuseon barokkipiirteinen rakennus (Lev Šiško, 1913 Helsinki), oli alkujaan venäläinen poikakoulu. Se on vuodesta 1923 toiminut yliopiston luonnontieteellisten kokoelmien suojana ja museokäytön kannalta se on liki uudisrakennus.
Maailmansotien väliset vuodet olivat järjestäytymisen aikaa. Vuonna 1915 pohjoismaista yhteistyötä edistämään perustettiin Skandinaavinen Museoliitto ruotsalaisten, norjalaisten ja tanskalaisten toimesta.[7] Suomi liittyi jäseneksi 1923. Samana vuonna perustettiin Kansallismuseoon Muinaistieteellisen toimikunnan rinnalle Suomen museoliitto erityisesti Helsingin ulkopuolisten museoiden yhteistyöelimeksi ja neuvonantajaksi.[8]
Museolle klassinen vai moderni rakennus?
Modernismin uudistusvaatimukset kohdistuivat maailmalla museoarkkitehtuuriin. Loputtomat salijonot (enfilade), joissa maalaukset kullatuissa kehyksissä ulottuivat lattiasta kattoon, olivat kriitikoiden mielestä sairastuttaneet yleisön museoväsymykseen (museum fatigue). New Yorkin Metropolitan Museum of Artin perustajiin kuulunut arkkitehti ja kriitikko Russell Sturgis totesi jo 1901, että museotilan tuli olla tausta näyttelylle. Paras museorakennus olisi ”suojakatos”, jonka sisätiloja voisi vapaasti järjestellä ja jossa arkkitehtoniset rakennusosat, detaljit ja koristeet eivät olisi vaikeuttamassa kokoelmien esillepanoa ja valaistuksen järjestämistä. Arkkitehtien oli suunniteltava neutraaleja tiloja, suhteiltaan kauniita pintoja.[9]
Museosisustus on tärkeä erityisesti esinemuseoiden näyttelyrakenteiden osalta. Museot vastaavat paitsi tiedon oikeellisuudesta, sivistävyydestä ja kiinnostavuudesta, myös näyttelyiden laadullisesta ja esteettisestä tasosta. Taidemuseoille tämä on ollut erityisen tärkeää.
Kokoelmien kasvu ja uudet tarpeet, kuten henkilökunnan työhuoneet, yleisön kokoontumisalueet, kahvilat ja myymälät, oli saatava mahtumaan näyttelyrakennukseen. Lisäksi oli päätettävä, keskittyykö museo pysyvämpään perusnäyttelyyn vai tilapäisnäyttelytoimintaan.
04_pohjat_MLR 05a ja 05b_kiertosuunnat_MLR
Vuonna 1934 järjestettiin Madridissa kansainvälinen museoarkkitehtuuriseminaari, jonka esitelmät on julkaistu. Museoammattilaiset ja arkkitehdit keskittyivät seminaarissa sisätilojen käyttökelpoisuuteen, toimivuuteen, valaistukseen ja muihin teknisiin seikkoihin. Erityisesti mietittiin kokoelmien esittelyjärjestyksen sekä näyttelykierron ja sen eri vaihtoehtojen vaikutusta pohjakaavaan ja arkkitehtuuriin. Pelkistettyjen näyttelysalien toivottiin noudattavan inhimillistä mittakaavaa. Rakennuksen ja sisällön yhteensopivuutta pidettiin tärkeänä, samoin suhdetta lähiympäristöön.[10]
Ideaalimuseon etsintää 1920- ja 1930-luvuilla
Suomessakin oli jo ryhdytty karsimaan vanhojen näyttelyiden esine- ja teosmääriä ja vaalentamaan seinien väritystä, samalla kun uusia rakennuksia nousi 1920- ja 30-luvuilla. Muinaistieteellisen toimikunnan arkkitehti Arne Wilhelm Rancken edusti monumentaalista mutta maltillista linjaa: ”Ei ole luotava kirkkoa eikä savupirttiä, vaan radikaalista vastusta välttäen pieni museorakennus, jolla on oman aikansa selvä leima”.[11]
Perustamisvaiheissa oli eri puolilla maata mukana yliopistoväen lisäksi taiteilijoita ja arkkitehtejä. Ranckenin rinnalle voi nostaa Raaseporin linnanraunioiden korjausta johtaneen arkkitehti Toivo Anttilan. Nämä kaksi neuvoivat museoita ja tekivät ehdotuksia uusissa rakennushankkeissa. Neuvontaa tehtiin erillisrahoituksella Muinaistieteellisessä toimikunnassa ja Museoliitossa, jotka toimivat tuolloin rinnakkain Kansallismuseossa. Museoliitto päätti 1937 tuottaa maaseutumuseoiden käyttöön rakennusoppaan mallipiirustuksineen sekä myöntänyt Anttilalle asian selvittelyyn ja ulkomaanmatkaan tarvittavat varat. Vuonna 1941 esimerkeiksi valittiin Anttilan piirtämä Peuran museo Rautalammilla sekä Tyrväälle suunnitteilla ollut uusi museotalo.[12] Kirja ei ehtinyt valmistua.
1920- ja 1930-lukujen uudet museorakennukset
- Helsingin Taidehalli (Hilding Ekelund, 1928),
- Pohjanmaan museon renessanssivaikutteinen tornillinen linna, Vaasa (Eino Forsman, 1929),
- Viipurin taidemuseo, pohjoismaisen klassisismin merkkiteoksena pidetty rakennus (Uno Ullberg, 1930),
- Perniön museo,[13] 1700-luvun pappilan piirustusten pohjalta (A. W. Rancken, 1930),
- Museo-, arkisto- ja kirjastotalo Ainola, Oulu (Oiva Kallio, 1931, Jorma Teppo, 1984),
- Vetelin museo, betoniharkoista ladottu ”1600-luvun kirkko” (Ilmari Wirkkala, 1932),
- Mustialan maatalousmuseon tiilirakennus, Tammela (J. Peltonen, 1935),
- Emil Cedercreutzin ateljee, Harjavalta (A. Eränen, 1936, laajennus Toivo Anttila, 1954),
- Helsingin yliopiston maatalousmuseo, Viikki (Jussi Paatela, 1937, avattiin 1945),
- Aina ja Heikki Peuran rahoittama museo, Rautalampi (Toivo Anttila, 1938)[14],
- Urheilumuseo, Olympiastadion (Yrjö Lindegren ja Toivo Jäntti, 1938, avattiin 1943),
- Käkisalmen museo (Toivo Anttila, 1939, tuhoutui pommituksessa 1939).
06_Viipuri_MLR.jpg
Museoiden uudisrakentaminen 1944 jälkeen käynnistyy vaisusti
Maatalousmuseo Helsingin Viikissä avattiin puolivalmiina 1945. Sen kiitosta keränneestä ja havainnollisesta näyttelystä tuli esikuva monille kotiseutumuseoille. Rakennus on arkkitehtuuriltaan moderni, avara tila kahden kerroksen läpi ulottuva tila sitä kehystävine lehtereineen ja looseineen sekä katonrajaa myötäilevine nauhaikkunoineen.
Museoliitto sai vuonna 1946 valtiolta varat vakituisen museoneuvojan palkkaamiseen, joten toiminta jatkui entistä tehokkaammin ja jäsentyneemmin.[15] Samana vuonna perustettiin Pariisissa Unescon alaisuuteen kansainvälinen museoneuvosto, International Council of Museums ICOM,[16] kulttuuriperinnön suojelun ja valtakuntien rajat ylittävän tiedonkulun ja yhteistyön edistämiseksi. Sen komiteoista museorakennuksiin on erikoistunut International Committee for Architecture and Museum Techniques ICAMT.
Eurooppalaisen kokoelmakeskeisen museorunsauden sijasta katseet käännettiin Yhdysvaltoihin. Käyttäjä- ja toimintavetoisesta USA:sta tuli meille mallimaa. Käynnistäjänä toimi Amerikka rakentaa -näyttely Ateneumissa 1945. Tämä istui nopeasti kehittyvän maamme nuoreen museokulttuuriin. Museoalan johtohenkilöt tutustuivat matkoillaan ajankohtaisiin kohteisiin niin Euroopassa kuin Yhdysvalloissa ja julkaisivat kirjoituksia alan lehdissä ja vuosijulkaisuissa.
1940- ja 1950-lukujen uudet museorakennukset
Aktiivisesta toiminnasta huolimatta uudisrakennuksia nousi ennen 1960-lukua vain muutama.
- Ålands sjöfartsmuseum – Ahvenanmaan merenkulkumuseo, joka oli museon ja klubitalon yhdistelmä (Jonas Cedercreutz, 1949),
- Joensuun Karjala-taloon sijoitettu Pohjois-Karjalan museo (Einari Teräsvirta, 1954).
- Emil Cedercreutzin museon näyttelyhalli (Toivo Anttila, 1956)
Museo maatilan talousrakennuksessa – museo joka pitäjään
Erilaiset seurat ja yhdistykset olivat perustaneet museoita kotiseuduntutkimukseen liittyen jo 1900-luvun vaihteesta lähtien. Varsinainen buumi seurasi, kun Suomen kotiseutuliitto perustettiin 1949. Tavoitteena oli saada museo joka pitäjään, mikä liki onnistui 1950-luvun loppuun mennessä: maamme museoista puolet eli viitisen sataa kuuluu tähän ryhmään.
Suurin osa koostuu 1700- ja 1800-lukujen maalaistaloista pihapiireineen, jonne on saatettu siirtää rakennuksia myös muualta, kuin pieniksi ulkomuseoiksi. Sisustus on ollut vaihtelevaa ja käyttö moninaista, kokous- ja juhlatilaisuuksista aina työnäytöksiin ja kesäteattereihin saakka. Pari sataa on sijoitettu käytöstä pois jääneisiin, pitäjien ja kruunun puisiin tai kivisiin viljamakasiineihin, joista osaan on pystytty sijoittamaan oikeaoppinen,[17] pitäjän historiaa valaiseva näyttely.
Museo makasiinissa
Kokemäki-seuran maatalousmuseo kolmikerroksisessa harmaakivimakasiinissa oli ensimmäinen laatuaan, kun se avautui kirkonmäellä 1938. Makasiinin muuttamista museoksi avaa arkkitehti Toivo Anttila vuonna 1951 Museoliiton tiedotuslehdessä julkaisemassaan artikkelissa. Hän esitti, että jyvälaarien purkaminen riittäisi, ellei laareja voinut käyttää näyttelyseinäminä, ja valaistukseksi yleisvaloina tuttuja valkoisia pallolamppuja. Museoliiton runsaan neuvonnan tuloksena syntyi suuri joukko pieniä samankaltaisia museoita.[18]
07c_tampereen taidemuseo_MV
”Makasiinimuseoiden” eliittiä edustavat Tampereen (1931) ja Hämeenlinnan (1952) taidemuseot: kaksi C. L. Engelin allekirjoittamien piirustusten mukaan 1838–39 rakennettua kruununmakasiinia kaksikerroksisissa rakennuksissa. Niitä leimaavat näyttävät portaalit, pienikokoiset ikkunat ja nelilappeinen telttakatto, jonka huipulla on sisätiloihin päivänvaloa tuova lyhtymäinen rakennelma, lanterniini.
Hämeenlinnan vuonna 1952 avatun taidemuseon asema on poikkeuksellinen, sillä se perustui Viipurin taidemuseon kokoelmille ehdolla, että kaupunki antoi tilat. Viipurin kokoelmista syntyi Suomeen kaksi muutakin taidemuseota: Lahteen ja Lappeenrantaan.
Viimeisin makasiiniin perustettu museo lienee Savonlinnan maakuntamuseo, joka on vuonna 1984 saanut suojakseen Riihisaarella sijaitsevan E. B. Lohrmannin suunnitteleman punatiilisen kaksoismakasiinin vuodelta 1852.
Museo navetassa
Tyrvään seudun museo- ja kotiseutuyhdistyksen (perustettu 1932) uudisrakennushanke kariutui. Museokäyttöön saatiin 1951 Tyrvään pappilan 56 lehmän kivinavetta (suunnittelu: piirilääkäri Otto Stenbäck, 1890) Vammalan kauppalan (Sastamalan kaupunki) keskustassa.
Arkkitehti Toivo Anttila teki navetan muutospiirustukset, ja näyttely (600 m²) rakennettiin Museoliiton henkisellä ja aineellisella tuella. Esineistöstä haluttiin rakentaa kulttuurihistoriallinen kokonaisuus, selkeä kertomus paikkakunnan menneisyydestä. Museo avattiin elokuussa 1958 ympärivuotiseen käyttöön ja projekti esiteltiin Museoliiton vuosikirjassa.[19]
07a_Tyrvää_MLR
Tähän museorakennusryhmään kuuluvat muutkin maaseudulla käytöstä poistuneet kiviset talous- ja huoltorakennukset kuten tallit, maneesit, myllyt, meijerit, saunat, vesitornit, muuntamot ja paloasemat. Näille kivirakennuksille on tyypillistä, että niiden vanhat sisärakenteet on purettu kokonaan ja tilalle on rakennettu uudet museotilat.
Tukevatekoisissa kivirakennuksissa oli omana aikanaan säilytetty arvo-omaisuutta. Museokäytössä rakennuksissa ja museoesineissä tallentuivat esi-isien työ ja muistot. Museorakennuksina niillä on symboliarvo, joka kertoo sekä seudun vauraudesta että paikkakunnan kaupungistumisprosessista. Rakennukset ovat ympäristönsä vanhimpia. Sijaintiensa ansiosta ne ovat merkittävillä paikoilla ja määrittelevät lähiympäristöään.
Navettaan sijoitettuja museoita
- Pappilan navetta, Tyrvää,
- Emil Halosen museo Lapinlahti,
- Pedersörenejdens museum Pietarsaari,
- Önningebymuseum Ahvenanmaa,
- Arkeologiakeskus Untamala Laitila,
- Lepaan puutarhamuseo Hattula,
- Designmuseo Iittala,
- Etelä-Pohjanmaan maakuntamuseo Seinäjoki,
- Vilppulan museo.
07b_Et Pohj maakuntamuseo HHö
Taidemuseon prototyyppi syntyy
Tallinnan taidemuseon kutsukilpailu järjestettiin vuosina 1936–37. Arkkitehti Alvar Aallon modernistinen kilpailuehdotus esiteltiin tuoreeltaan yhdessä virolaisten voittajien kanssa Päevalehden etusivulla sekä Arkkitehti-lehdessä.[20] Aallon suunnitelma on Vanhankaupungin ja sataman väliseen puistoon vapaasti sijoitettu, ulkoasultaan yksinkertainen, valkeaksi rapattu, matala ja suoraviivainen rakennus.
Uutta oli sisätilan rikas ja herkkä jäsentely. Sen pohjakaava on ydin ja satelliitit -ratkaisu. Jo aulasta saa selkeän kuvan museon kokonaisuudesta. Aulasta on pääsy suoraan kaikkiin näyttelytiloihin, jotka kohoavat portaiden kytkeminä terassimaisesti – Aalto puhuu ”skala-motiivista”. Koko museon läpi on mahdollista kulkea myös johdonmukaisessa järjestyksessä. Pieni sisäpiha avautuu suoraan ympäröivään puistoon. Ylävalo on ratkaistu tiheään sijoitetuin heijastavin lasikartioin, joiden kautta valo jakautuu tasaisesti koko tilaan. Veistossaleissa on myös sivuvaloa antavat lasiseinät.[21]
Aalto loi perusidean museolle, joka on suunniteltu sekä kokoelmien että kävijän tarpeisiin. Kilpailuehdotuksen ratkaisu jäi elämään ihannemuseona, johon on toistuvasti viitattu. Muinaistieteellisen toimikunnan arkkitehti Heikki Havas esitteli sitä ”pohjoismaisen museoarkkitehtuurin edelläkävijänä” vuoden 1963 museopäivillä, jotka järjestettiin Aallon suunnittelemassa Jyväskylän uudessa museotalossa. Tallinnan toteutumaton ehdotus toimi kuin muistilistana uuden museorakennuksen suunnittelussa. Aalto toteutti ideoita myöhemmissä museosuunnitelmissaan.
08_Tallinna_MLR.jpg
Taidemuseot itsenäistyvät Ateneumin taidemuseon johdolla 1950- ja 60-luvuilla
Museoliitto oli perustettu 1923 kulttuurihistoriallisten museoiden yhteistyöelimeksi, mutta alusta lähtien keskusteluissa olivat mukana myös taide ja luonnontiede.[22] Taiteiden asema yhteiskunnallisessa vaikuttamisessa vahvistui 1960-luvulla. Taidemuseotasoisten näyttelytilojen määrä oli vuoteen 2000 mennessä noussut 80:een.
Yhteydenpidon taidemuseoiden kesken aloitti Ateneumin taidemuseon intendentti[23] Aune Lindström, joka kutsui vuonna 1953 koolle silloiset kymmenen taidemuseoita ylläpitävää tahoa.[24] Hän oli laatinut ja painattanut seikkaperäiset taidenäyttelyn ripustusohjeet. Lindström päivitti myös museon rakennusohjeet. Hän asetti tärkeimmäksi museon keskeisen sijainnin yhdyskunnassa. Lindströmin aikana alkoi Ateneumissa kansainvälisten Ars-näyttelyiden sarja, ensimmäinen yhdessä Nykytaide ry:n kanssa 1961.[25]
Helsinkiin valmistui vuonna 1948 järjestetyn ideakilpailun pohjalta ”keskusalueen asemakaavaehdotus” 1954. Ideakilpailun palkintolautakuntaan kuulunut Alvar Aalto kutsuttiin 1959 laatimaan keskustalle edelleenkehittämissuunitelma, joka kohdistui Eduskuntatalon ja Töölönlahden alueisiin. Vuonna 1961 julkistettu ehdotus piti sisällään lahden länsirantaa seurailevan rivin pylväillä seisovia, veteen kuvastuvia kulttuurirakennuksia, kuten kongressi- ja konserttitalon, oopperan, taidemuseon ja kirjaston.
Tästä alkoi kiivas museoväittely: uusi ”keskustaidemuseo” haluttiin Töölönlahden rannalle ja nykytaide irti Ateneumin suojista. Keskustelun aloitti vuonna 1960 perustettu Taide-lehti, joka esitteli niin kotimaisia kuin ulkomaisiakin uusia museorakennuksia. Tulevasta taidemuseosta käytettiinkin nimeä taidekeskus, jolla tarkoitettiin nykytaiteen, arkkitehtuurin ja taideteollisuuden yhdistävää museota.
Keskustelu tasaantui pitkäksi aikaa, kun purkamisuhan allakin ollut Ateneum jäi edelleen taidemuseotoiminnalle, mutta kiihtyi taas, kun museo valtiollistettiin 1990 ja sen alaisuuteen perustettiin Nykytaiteen museo.[26]
Museo yliopistokampuksen yhteydessä - Jyväskylän museot (1961, 1973 ja laajennus 1990)
Museoarkkitehtuuri siirtyi modernismiin viimeistään arkkitehti Alvar Aallon ensimmäisen museorakennuksen toteuduttua Jyväskylään vuonna 1961. Keski-Suomen museoyhdistys oli perustettu 1931, ja 1953 perustettiin sen taideosasto. Uudisrakennukseen tähdättiin alusta pitäen. Paikaksi osoitettiin Seminaarinmäen kampuksen jyrkähköllä etelärinteellä sijaitseva historiallinen Ruusupuisto. Museon johtaja Sirkka Valjakka laati tilaohjelman (3–4 kerrosta, 2000 m²), Alvar Aalto suunnitteli ja antoi pääpiirustukset lahjana.
Keski-Suomen museo (rakennettu 1959–61) on kolmikerroksinen ja pohjakaavaltaan vapaamuotoinen. Ulkoarkkitehtuurissa näkyy kerrosten terassimainen jäsentely. Keskikerroksen alkuperäisestä sisääntulosta ja aulasta päästiin kahvilaan, joka ulostyöntyvine pitkine terassiparvekkeineen avautui Jyväsjärven suuntaan. Perältä oli käynti kahteen isoon näyttelysaliin, kolmannessa kerroksessa oli pienempi, kattokorkeudeltaan vaihteleva ”taidehalli” ja luentosali, johon museoyhdistys oli saanut toivomansa Viipurin kirjaston tapaan aaltoilevan sälekaton. Pohjakerroksessa olivat työhuoneet, kirjasto, kokoelmatiloja sekä ulos avautuva pieni pylväshalli.
09_Keski-Suomi_MLR
Kaikki oli rapattu ja slammattu valkoiseksi, taidemuseon sisätilojen tunnusvärillä. Sisustus oli teetetty ja kalusteet hankittu Artekin kautta. Vaikutelma oli ilmava. Talonpoikaisesineitäkin kohdeltiin itsenäisinä taideteoksina. Näyttelyrakenteet olivat kevyitä siirrettäviä seinäkkeitä ja vitriinejä. Esitystapa oli omaksuttu Milanon Suomelle menestyksekkäistä muotoilutriennaaleista.[27]
Aallolle itselleen omistettu Alvar Aalto -museo perustettiin 1966. Sen suunnitelmaan yhdistettiin Keski-Suomen museon laajennussuunnitelma. Alvar Aalto -museo valmistui 1973 rinteen juureen, ja sieltä sai Aallon ystävä Jalo Sihtola ensimmäisen pysyvän sijan kotimaista ja ulkomaista taidetta sisältävälle kokoelmalleen. Keski-Suomen museon laajennus valmistui vasta 1990, jolloin sisäänkäynti ja luentosali siirtyivät pohjakerrokseen järven puolelle. Museoiden väliin varattiin mahdollisuus rakentaa yhdyskäytävä.
10_AAMpohja_MLR 11_AAMnäyttely_MLR.jpg
Alvar Aalto -museon kaksikerroksisen rakennuksen pohjakaava on vapaamuotoinen monikulmio. Sisääntulojulkisivu on ikkunaton ja muodostaa loivasti koveran kulman, jossa on kolmiosainen pronssiovi. Pohjakerroksessa on aula, kahvio, luentosali, kirjasto, toimistotilat ja tauluvarasto, toisessa kerroksessa 700 neliön suuruinen yhtenäinen näyttelytila, jota rytmittävät sileät valkoiset pylväät ja siirreltävät seinäkkeet. Seinät ovat molemmissa museoissa valkoiset, aulojen lattiat punaruskeaa tiiltä, näyttelytiloissa vaalean harmaata linoleumi- tai muovimattoa. Aalto-museon yläkerran taustana on ”revontuliseinä” muistona New Yorkin maailmannäyttelystä (1939).
Julkisivun tekstuuri on karhea: pohja on Arabian hallatiiltä, jonka päällä on tiheä posliinisauvoista rakennettu ”pystyrimoitus”. Pihan ulkovalaistus on Aallon suunnittelema, ja museoiden välissä virrannut puro päätyy istutusten ympäröimäksi kaskadilammikoksi. Kokonaisuus on Alvar Aallon museosuunnitelmien erilaisten elementtien kokoelma.[28]
”Louisiana-entusiasmi”[29]
Koko 1900-luvun jälkipuolen ajan suomalaisia innosti Kööpenhaminan lähellä Humlebaekissa kesällä 1958 avattu modernin taiteen museo Louisiana, jonka syntysanat lausui suurliikemies-keräilijä Knut W. Jensen 1945. Lähtökohta oli 1855 valmistunut kartano ja sitä ympäröivä merellinen kulttuurimaisema.
Louisianan taidemuseo on esimerkki orgaanisen kasvun museosta (Jørgen Bo ja Wilhelm Wohlert, 1956–91). Kuudessa vaiheessa rakennettu museo on sijoitettu maastoon niin, että maisema on säilynyt mahdollisimman koskemattomana. Ulkoapäin matalilta näyttävät rakennukset muodostavat nauhamaisen, osittain maanalaisen lenkin, jonka kiertämällä näkee koko näyttelyn (10 800 m²). Seinämateriaaleja ovat valkoinen tiili ja lasi, lattioissa klinkkeri ja katoissa mänty. Paviljonkeja yhdistävät läpinäkyvät lasikäytävät, joista avautuu näkymiä luontoon ja ympärillä levittäytyvään veistospuistoon.[30]
Museo taiteilijan tuotannolle - Wäinö Aaltosen museo, Turku (1967) ja Eero Nelimarkan museo, Alajärvi (1964)
Kuvanveistäjä Wäinö Aaltosen museo avattiin 1967. Muutamat yksityishenkilöt olivat vuonna 1940 ryhtyneet ostamaan Aaltosen töitä museon aikaansaamiseksi. Sijoituspaikaksi taiteilija ajatteli kotiaan Helsingin Kulosaaressa, toiset pitivät Tamperetta jo hänen ulkoilmamuseonaan, mutta kun Aaltonen aikoi muuttaa Turkuun, päätti kaupunki tarjota museolle paikkaa Turusta taiteilijan 70-vuotispäivänsä kunniaksi 1964.
Wäinö Aaltonen lupasi lahjoittaa ja tallettaa sovitut teokset sekä arkistomateriaalin, kaupunki lupasi rakentaa talon. Aaltonen edellytti, että hänet nimettäisiin kymmeneksi vuodeksi museon intendentiksi, ja mikäli hän sitä ennen kuolisi, hänen poikansa jatkaisi. Aluksi oli tarkoitus, että Wäinö Aaltonen olisi saanut työtilat rakennuksesta. Tontti osoitettiin Aurajoen rannasta, teatteritalon ja valtion virastotalon rintamaan. Aaltonen suunnitteli museon poikansa, Oulun yliopiston asemakaavaopin professori Matti Aaltosen toimiston kanssa. Yhteistyötä koordinoi Turun kaupunginarkkitehti A. S. Sandelin.[31]
13_WAMpohja_MLR 14_W Aaltonen_MLR 16_WAM veistossali Volker von Bonin
Arkkitehtisuunnittelun lähtökohtana on Alvar Aallon Tallinnan taidemuseon kilpailuehdotus (1936-37). Berliinissä rakenteilla ollut, arkkitehti Ludwig Mies van der Rohen suunnittelema Neue Nationalgalerie innoitti ajanmukaistamaan suunnittelua.
Vaalea suoraviivainen rakennus on ahtaalla rinnetontilla porrastetusti, ylimpänä kohoaa 11 metriä korkea veistossali. Sisääntulo jäsentyy ”aaltomaisesti”: terasseittain kohoaviin näyttelytiloihin (1 100 m²) siirrytään ulko-ovea vastapäätä lähteviä porrasaskelmia pitkin. Aulasta vasemmalla lasiseinän takana aukeaa sisäpiha veistoskoristeisine vesialtaineen.
Ensimmäinen suunnitelma oli lopputulosta modernimpi. Jykevän ulkoterassin lisäksi arkkitehdit olisivat halunneet julkisivuun betonielementtejä (Sibelius-museossa tämä toteutui) tai uurrettuja mineriittilevyjä. Tavoitteena oli luoda ”huomaamatonta, ekonomista arkkitehtuuria”.[32] Tilaajat halusivat arvokkaampaa: pääjulkisivuun käytettiin travertiinia ja sivuihin kalkkihiekkatiiltä sekä lattioihin klinkkerin sijasta kalkkikiveä. Eniten suunnittelua ohjasi veistoskokoelma, jonka laajuus oli tiedossa.
19_Nelimarkka_MLR
Nelimarkka-museo avattiin 1964. Hanke oli syntynyt taidemaalari Eero Nelimarkan toiveesta luoda taidekoulu, jota varten hän oli perustanut säätiön 1945. Vuonna 1961 ostettiin Alajärveltä Nelimarkan suvun vanha kantatila. Puretun navetan paikalle valmistui 1964 Nelimarkan ystävän arkkitehti Hilding Ekelundin piirustusten mukaan pääjulkisivultaan klassisistinen koulu- ja museorakennus, muilta osin 1960-luvun kouluarkkitehtuuria. Nelimarkka korjasi vaikutelmaa haluamaansa klassiseen suuntaan piirtämällä itse laajennusosan 1972–74. Museota laajennettiin vielä 1997 (Käpy ja Simo Paavilainen). Nelimarkka-museo on 1900-luvun lopulla viimeinen aluetaidemuseo.[33]
1960-luvun muita uusia museorakennuksia
Arkkitehtuurin käänne 1960-luvulla käynnisti keskustelun ammattikunnan sisällä. Nuoremman polven yksinkertaista ja anonyymiä rakentamista vaativille suunnittelijoille oli tärkeää muunneltavuus ja laajennettavuus. Esikuvana voi pitää saksalais-amerikkalaista arkkitehtiä Mies van der Rohea.[34] Betonin valupinnan ja rakenteiden näkyville jättämistä on kutsuttu myös betonibrutalismiksi. 1970-luvulla alkoi mittavampi vanhojen rakennusten muuttaminen museoiksi, mikä toi mukaan rakennussuojelukysymykset.[35]
18a Sibelius-museo js Mikkoau 2016 WLM 18b_Sibelius_MLR 18d Sibelius Hhö 2013
- Turun linnan korjaus ja suuri näyttelyhalli ullakolle (Erik / Carin Bryggman, 1961–87),
- Tornionjokilaakson maakuntamuseo, Tornio (Jouko V. Ylihannu, 1962, Matti Porkka, 1981),
- Tammisaaren museon näyttelyhalli (Ola Hansson, 1963),
- Emil Cedercreutzin museon ”Maahengen Temppeli” Harjavalta (Jonas / Mariana Cedercreutz, 1963–97),
- Didrichsenin taidemuseon näyttelysiipi Helsinki (Viljo Revell, 1965),
- Sibelius-museo (Woldemar Baeckman, 1968) Åbo Akademin puutarha-alueelle Turkuun,
- Pohjanmaan museon näyttelysiipi, Vaasa (Erik Kråkström, 1968),
- Helsingin taidemuseon Kluuvin galleria (Aarno Ruusuvuori, 1968),
- Ortodoksinen kirkkomuseo, kirkkokunnan Kuopion keskustalossa (Dag Englund, 1969),
- Yrjö Liipolan museo, Koski Tl (Eero Ponkala, 1970).
20_Didrichsen_MLR.jpg
Museo taidekokoelmalle - Meilahden taidemuseo, Helsinki (1967) ja Sara Hildénin taidemuseo, Tampere (1979)
Taiteen keräilijöille tärkeintä on ollut saada pysyvä paikka ja omalle kokoelmalle sopivat näyttelytilat.
Helsingin kaupungin taidemuseo nousi Meilahteen Tamminiementielle 1967. Kaupunki osti Meilahden kartanon kantatilan vanhat rakennukset, jolloin kypsyi ajatus yhdistää tuolloin innostusta herättänyt ja komiteatyöskentelyn tuloksena määritelty ”monitoiminnallinen taidekeskus” tähän.[36] Kun kaupungilla oli jo tiedossa useita lahjoituksia, päätettiin kunnollisten näyttelytilojen rakentamisesta omia kokoelmia varten, samalla kun otettiin vastaan Leonard ja Katarina Bäcksbackan perikunnan lahjoittama vanhemman kotimaisen taiteen kokoelma.
Kokonaista museota – taidekeskuksesta puhumattakaan – ei kuitenkaan tehty, vaan kyseessä on yksistään näyttelyrakennus. Suunnittelutehtävä annettiin kaupungin arkkitehdeistä Tero Aaltoselle.
22_Meilahti2_MLR 23_Meilahtipohja_MLR. jpg
Tanskalaisen Louisianan taidemuseon vaikutusta voi nähdä näyttelyrakennuksen paikanvalinnassa ja itse rakennuksessa. Tontti on loivassa rinteessä, joka avautuu merenlahdelle. Perikunnan edustajalla Ingjald Bäcksbackalla oli mielessään ripustussuunnitelma ja kokoelman vaatimat juoksumetrit, jotka sitten ”juostiin” maastossa arkkitehdin ja mittanauhan kanssa. Alvar Aalto -museota käytiin katsomassa. Intendentti Marja-Liisa Bell laski muiden tilojen tarpeen ja toimi neuvonantajana.
Kartanon lehtevään puistoon 1976 valmistunut valkoisella kahitiilellä verhottu rakennus (1 560 m²) on yksinkertainen. Sisäänkäynti on itäpäädyssä, jossa on avara klinkkerilattiainen aula kartanon puistoon avautuvine lasiseinineen. Aulaa oli mahdollista käyttää myös luentosalina. Näyttelytilat koostuvat viidestä suorakaiteen muotoisesta salista, jotka noudattavat huoneesta huoneeseen -mallia silmukkana, mistä muodostuu niin sanottu ”pakkokierto”. Ensimmäinen sali on suurin ja muita korkeampi. Kunkin salin keskivaiheilla on vastakkain lyhyet seinäkkeet, jotka jakavat ne ikään kuin kahteen pienempään huoneeseen.
Salien väliset ovet on sijoitettu kauas toisistaan, tukemaan johdonmukaista kiertoa. Saleihin päivänvaloa tulee kattoikkunoiden välityksellä seinänvieriä kiertävien valokuilujen kautta. Lattioita peitti aluksi sisalmatto ja seinät oli verhottu tärkätyllä juuttikankaalla, kuten taidegallerioissa oli tapana. Salien alla oli varasto ja ikkunallisia teknisiä tiloja.[37]
Tilat toimivat hyvin ja Meilahden museo oli pitkään kaupungin parhaita näyttelypaikkoja. Kahvilaa rakennukseen ei tullut, sitä varten korjattiin viereinen kartanon puinen päärakennus 1800-luvun alkupuolelta. Puistossa on ollut näytteillä veistoksia ja siellä on järjestetty taidetapahtumia, mutta suunniteltuja laajennuksia ei toteutettu.
24_Hilden ilmakuva Teuvo Kanerva 25_Hildenleikkaus_MLR.jpg
Sara Hildénin 1979 avattu taidemuseo perustuu niin kotimaiselle kuin ulkomaiselle modernismille ja nykytaiteelle. Ensimmäiset teokset Hildén osti vuoden 1961 Ars-näyttelystä. Hän lahjoitti kokoelmansa nimeään kantavalle säätiölle, joka solmi 1975 sopimuksen Tampereen kaupungin kanssa uuden museon rakentamisesta ja teosten pysyvästä sijoittamisesta sinne. Kaupunki vastaa museon ylläpidosta ja säätiö kartuttaa kokoelmaa.
Paikkaa valittaessa Hildén mieltyi rakenteilla olleen Särkänniemen huvipuiston läheisyydessä sijainneen vanhan huvilan Näsijärvelle avautuvaan rinnetonttiin ja rakennusten jäännöksiin, jotka loivat perustan veistospuistolle. Tärkein lähtökohta oli juuri tämä paikka, jota voi luonnehtia jopa välimerelliseksi.
Tavoite oli sama kuin Helsingissä: rakentaa yksityiselle kokoelmalle ihanteelliset olosuhteet. Suunnittelijaksi valittiin tamperelaisen Pekka Ilveskosken arkkitehtitoimisto, joka konsultoi myös Meilahden taidemuseon suunnitellutta Tero Aaltosta. Paikan lisäksi lähtökohdiksi otettiin näyttelysalien tarkoituksenmukainen liittyminen toisiinsa sekä teoksille sopivan valaistuksen luominen. Maalaussalit ovat ikkunattomia, mutta tärkeitä näköalaikkunoita on salien liitoskohdissa. Arkkitehtuuriin suoraan vaikuttanut ero oli siinä, että nykytaiteen teokset ovat suurikokoisempia, väreiltään kirkkaampia, usein ääntä, valoa ja liikettä sisältäviä.
Hildén oli luonut kokoelmansa yhteistyössä Ateneumin asiantuntijoiden kanssa ja tutustunut matkoillaan keskeisiin eurooppalaisiin museoihin. Amerikkalaisia museoita puolestaan tunsi suunnittelussa mukana ollut Asko Rasinperä, joka oli opiskellut Yhdysvalloissa. Ulkomaisia rakennuksia, joihin on viitattu, ovat Nizzan lähelle 1964 valmistunut yksityinen nykytaiteen museo Fondation Maeght (Josep Lluis Sert), etenkin veistospuiston osalta, Berliinin Brücke-Museum (Werner Düttmann, 1967) sekä ”monoliittista ekspressionismia” edustava Emerson Museum of Art (I. M. Pei, Syracuse N. Y., 1968).
Kaksikerroksisen rakennuksen pohjakaava edustaa neliapila-tyyppiä (ydin ja satelliitit). Sisäänkäynti on suoraan toiseen kerrokseen, jossa on toimistosiipi, luentosali ja maalausgalleriat. Keskisalista laskeudutaan pohjakerroksen veistostiloihin, joissa on välitasanne, ja edelleen kahvioon ulkoterasseineen. Kaikki näyttelytilat ovat luonteeltaan avoimia ja niissä voi liikkua vapaasti, haluamassaan järjestyksessä. Alakerrassa on järven suuntaan, pohjoiseen ja länteen suuret ikkunaseinät.
26a_Hilden_SJE 26_Hilden_HHö 26b_Hilden_SJE
Ulkoseinät ovat vaalearouheista pesubetonia, sisällä kantavat seinät on jätetty betonivalun jälkeen käsittelemättä. Näyttelyseinät on verhottu valkeaksi maalatulla kangaspinnoitteella, ja tilojen jakamiseksi pienempiin osiin on käytössä ollut irtoseiniä. Lattiat ovat kivilaattaa. Rakennus oli valmistuessaan maan suurin taidemuseo (2 500 brm²)[38]
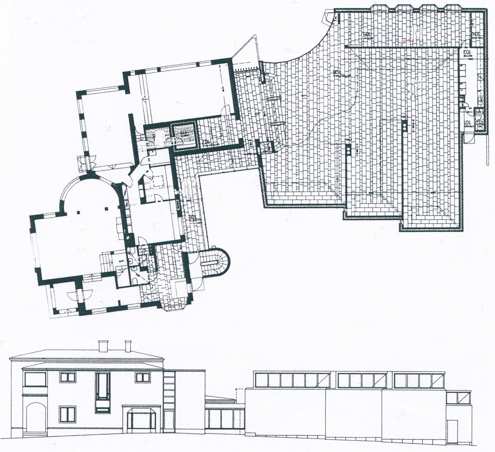
Satakunnan kulttuurihistoriallinen museo, Pori (1973)
Porissa avattiin Satakunnan museon uudisrakennus 1973. Samana vuonna valmistui Alvar Aalto -museo Jyväskylään. Satakunnan museo oli perustettu 1888. Kokoelmat oli kerännyt ja järjestänyt opettaja Matti Kauppinen, joka toimi aktiivisesti myös Museoliitossa sen perustamisesta lähtien. Vaihtuvissa vuokratiloissa majaillut museo oli saanut pysyvämmän sijan monenlaisessa käytössä kuluneesta, rapatusta ”Iltaman talosta” vuonna 1903.
Ajatusta oikeasta museorakennuksesta pidettiin yllä, ja kopin otti vuonna 1958 museonjohtajaksi valittu Unto Salo, museon ensimmäinen ammattilainen ja tuolloin myös Museoliiton puheenjohtaja. Ennen Turun arkeologian professoriksi siirtymistä hänen viimeiseksi tehtäväkseen jäi uuden museon tilaohjelman laatiminen.[39] Tontiksi osoitettiin pieni kolmiomainen puisto Hallituskadun päästä, jokirannan ja oluttehtaan välistä, ja suunnittelijaksi valittiin kaupunginarkkitehti Olaf Küttner. Suojelukiistaa tai kilpailua ei näin vaikeasta paikasta syntynyt.
Sisäänkäynti on etelästä, Hallituskadun puolelta, josta vaaleanharmaa pesubetonipintainen rakennus (4 603 brm²) näyttäytyy ajan tavan mukaan yksikerroksisena. Aulasta oikealla on toimistosiipi kadulle suuntautuvine ikkunariveineen ja luentosaleineen, vasemmalla yhtenäinen ikkunaton tilapäisnäyttelytila (400 m²) ja suoraan edessä kahvila, josta avautuvat pohjoispuolen ainoat ikkunat Jazzkadun (Eteläranta) yli joelle.[40] Toimistotilojen takana on perusnäyttelytilojen suuri kolmikerroksinen blokki, johon päivänvaloa saadaan kaikkien kerrosten läpi ulottuvan kulmikkaan valopihan kautta.
28b_Satakunnan museo_MLR 28_SatMsisältä_MLR.jpg
Alun perin vaaleahkoja avaria sisätiloja jäsentävät lehtereitä kannattelevat pylväät ja niitä yhdistävät umpilaitaiset betoniportaikot. Ruskeasävyisissä näyttelytiloissa oli ritiläkatot ja kokolattiamatot. Sisustuksen suunnitteli Tauno Kivinen.
Kokonaisvaikutelmaltaan museo on sukua Kalifornian Berkeley-yliopiston taidemuseolle (Mario J. Ciampi, 1970), ja Amsterdamin saman aikainen Van Gogh -museo (Gerrit Rietvelt, 1973) tunnettiin.[41]
Big Bang – museot haluavat uudistua
Vuoden 1970 tienoilla alkoi kehityskulku, jota museologisessa kirjallisuudessa kutsutaan alkuräjähdykseksi. Se lähti liikkeelle ekomuseo-ajatteluna, joka pyrki häivyttämään rajat museon ja sitä ympäröivän yhteisön väliltä. Painopiste haluttiin siirtää laitosajattelusta aktiviteetteihin, iskusanoina ”elävä museo” ja pontimena mahdollisuus vaikuttaa tulevaisuuteen. Tavoitteena oli asettaa museo laajaan sosiokulttuuriseen yhteyteen, jossa luonnontiede, historia, taide ja teknologia muodostaisivat kokonaisuuden.[42]
Tähän vaiheeseen sijoittuu Museoviraston perustaminen 1972 museoinstituution kokonaisvaltaiseksi kehittämiseksi. Suomen museoliitto oli itsenäistynyt 1957 muuttamalla Kansallismuseosta omiin tiloihin Cygnaeuksenkadulle.
Ammatillistuminen vauhdittui, näyttelyitä järjestettiin 1970-luvulla ennätyksellinen määrä sekä museoissa että ulkopuolisissa tiloissa, yleisömäärät moninkertaistuivat. Erityisesti alettiin ottaa huomioon lapset: ensimmäiset museolehtorit aloittivat Ateneumissa ja Kansallismuseossa 1970-luvun alkuvuosina.
Näyttelysuunnittelusta tuli museoissa kriittinen tekijä. Suomen museoliitto ryhtyi järjestämään kursseja tästä tematiikasta. Teknisistä kysymyksistä, kuten museoiden murto- ja paloturvallisuudesta, esineistön oikeista säilytysolosuhteista ja rakennusten suojelusta, tuotettiin ohjekirjoja ja suosituksia. Erikoismuseokenttä alkoi hahmottua. Aika oli kypsä laajemmalle keskustelulle museorakennuksista.[43]
Museoarkkitehtuuriseminaari 1979
Museoliitto järjesti museoarkkitehtuuriseminaarin 26.–27.11.1979 Espoon Hanasaaressa. Sen aiheuttivat Porin taidemuseon, Helsingissä Taideteollisuusmuseon (Designmuseo) ja Sinebrychoffin taidemuseon avaamiset sekä satavuotiaan Ateneumin lähestyvä korjaus. Siitä oli käynnistetty hankesuunnittelu 1978 (Laiho – Pulkkinen – Raunio, toteutus 1985–91).
Seminaariin osallistui 140 henkeä. Esiteltäväksi koottiin kaikki tieto ja kokemukset, mitä siihen mennessä oli saatu uudistiloista ja vanhojen rakennusten korjaamisesta. Museoasiainsihteeri Jorma Heinonen oli paneutunut niin museoarkkitehtuurin historiaan ja estetiikkaan kuin viimeisimpään tekniikkaankin.[44] Hän esitteli Aallon Tallinnan taidemuseon nerokkaana pitämänsä ehdotuksen. Parinkymmenen vuoden aikana valmistuneita museohankkeita esiteltiin esimerkein.
Alueellinen museoverkosto syntyy – 1980-luvulla liki 200 uutta museota
Valtioneuvosto teki 1979 päätöksen alueellisen museoverkoston muodostamisesta. Sitä koskeva valtionavustuslaki säädettiin 1988. Vuonna 1992 säädettiin Museolaki ja asetus, jonka piiriin pääsivät kaikki ammatillisesti hoidetut museot.[45] Laskennallisena pohjana olivat henkilötyövuodet. Lakiin lisättiin museoiden yhteiskunnallinen tehtävä 1996.
Maakuntamuseot ja aluetaidemuseot nimettiin suurimpien kaupunkien olemassa olevien museoiden pohjalta vuosina 1980–1995. Erikoismuseokenttää vahvistettiin vielä muutamilla museoilla, jotta kaikille tärkeiksi katsotuille osa-alueille saatiin oma vastuumuseonsa, jotka vahvistettiin 1993–2010.
Uusia museoita oli toisen maailmansodan jälkeen perustettu noin 15-20 museon vuosivauhtia. Lakipiste saavutettiin 1980-luvulla, jolloin museoita syntyi kaikkiaan liki 200. Kasvu oli samanlaista kansainvälisestikin. Sitten seurasi nopea lasku niin, että viimeisellä vuosikymmenellä ennen vuosituhannen vaihdetta museoita perustettiin meillä enää parikymmentä.
Arkkitehtuurissa Oulun kouluksi kutsuttu postmoderni suuntaus tavoitteli elämyksellisyyttä.
Kaupunginmuseoiden ja kotiseututalojen rinnalla ovat paikallismuseot. Niihin kuuluvat historiallisten henkilöiden, valtiomiesten, kulttuuripersoonien ja urheilijoiden museoidut kodit, paikkakunnalle luonteenomaisten ammattien ja ilmiöiden museot sekä yksittäisten keräilijöiden moninaiset kokoelmat ja kohteet.[46]
27_Ainola_WLM 27b_Yli_laurosela_MV
Museo vanhassa rakennuksessa
”Vanhat rakennukset museokäytössä” oli Museoliiton museoarkkitehtuuriseminaarissa 1979 toisen pääpuhujan, Teknillisen korkeakoulun arkkitehtuurihistorian professori Henrik Liliuksen teema. Lilius puolusti voimakkaasti alkuperäisiä rakenteita ja kritisoi historiallisten rakennusten sisätilojen uudistamista. Liliuksen mielestä uuden käytön tarpeet eivät saisi kokonaan ohittaa rakennuksen omaa historiaa, vaan näiden välille pitäisi etsiä tasapaino. Keskustelu jatkui vilkkaana Ateneum-rakennuksen korjauksen alkaessa ja uudistamisen edetessä (1985-91).[47]
29_Pori_MLR.jpg
Henrik Liliuksen seminaarialustuksen taustalla olivat seuraavat silloin ajankohtaiset museohankkeet:
- Brobergska Samskolanin (Gustaf Nyström, 1894 / Olli Borg, 1978) muutos Taideteollisuusmuseoksi,
- Sinebrychoffin patriisitalon (Jean Wik, 1842 / Sirkka-Liisa Tarumaa, 1979) muuttaminen taidemuseoksi,
- Porin pakka- ja vaakahuoneen (C. J. von Heideken, 1858 / Kristian Gullichsen, 1979) muutos Maire Gullichsenin taidekokoelman tiloiksi.
Museo teollisuusrakennuksessa
Luontevimmin museoiksi on taipunut teollisuusarkkitehtuuri. Teollisuusrakennusten houkuttavuuteen vaikuttavat niiden avarat, vapaasti muunneltavat hallitilat. Teollisuustuotannosta tyhjeneviä tehtaita on otettu museokäyttöön satakunta. 1900-luvun loppua kohti teollisuusrakennusten ja kokonaisten alueiden käyttö kulttuuritiloina vielä lisääntyi.
30_Vapriikki Tiia Monto WLM 2017
- Riihimäen kaupungin vuonna 1975 hankkima, lasitehtaan 1910-luvulla valmistunut rakennus, josta Tapio Wirkkala suunnitteli Suomen lasimuseon (näyttely 1 762 m²),
- Vuonna 1898 perustettu Suomen rautatiemuseo muutti Helsingin asemalta Hyvinkäälle 1973–74,
- 1969 perustettu Tekniikan museo asettui vuodesta 1970 lähtien Helsingin vesilaitoksen sata vuotta vanhoihin tiloihin Vantaanjoen suulle.
- Kaapelitehdas Helsingissä (W.G. Palmqvist, 1939–1954) on 1990-luvun alusta ollut kaupungin omistama kiinteistöyhtiö. Entisen Nokian kaapelitehtaan suurimman hallin (2 700 m²) itäpäähän muuttivat 1990-luvun alussa Suomen Valokuvataiteen museo (perustettu 1969), Teatterimuseo (perustettu 1962) ja Hotelli- ja ravintolamuseo (perustettu 1971) päällekkäisiin tiloihin, joiden museotilat viimeisteltiin 2000.
- Tampellan tiloissa avattiin 1996 Tampereen museokeskus Vapriikki (14 000 m²) lukuisine museoineen.
- Hämeenlinnan taidemuseon (perustettu 1952) viisi rakennusta sisältyvät Verkatehtaan (1895) kokonaisuuteen, joka oli pääosin oppilaitoskäytössä 1980- ja 90-luvuilla, kunnes se päätettiin suunnitella kokonaisuutena erilaisia kulttuuripalveluita varten 2001 (avaus 2007).
- Lapuan patruunatehtaan (perustettu 1923) tiloihin on 1990-luvulta lähtien kasvanut Kulttuurikeskus Vanha Paukku, jossa on muun muassa useita museoita kuten tehtaanmuseo (perustettu 1993), taidemuseo (perustettu 1998) ja Pyhälahden valokuvaamomuseo.
Taidemuseo kulttuurikeskuksessa - Kemi (1977), Tornio (1985) ja Kouvola (1987)
Joidenkin kaupunkien uusiin kulttuurikeskuksiin tehtiin tilat museolle. Kemin taidemuseo sai pysyvät tilat jo kulttuurikeskuksen ensimmäisessä rakennusvaiheessa 1977 (Arkkitehtitoimisto Jan Söderlund) ja lopullisen paikkansa 1990, kun koko kulttuurikeskus valmistui. Kemin vuonna 1947 alkunsa saanut taidemuseo oli ensimmäinen aluemuseokokeiluun osallistunut, ja siitä tuli maakunnallinen taidemuseo vuonna 1981 toiminta-alueenaan koko Lapin lääni.
Taidemuseon osuus kulttuurikeskuksesta on vajaa kymmenes. Nykytaiteelle soveltuvaa näyttelytilaa on 551 m². Suoraviivaista punatiilistä rakennuskokonaisuutta jäsentävät nauhaikkunat ja eri tilojen korkeuserot. Sisätilojen suoraviivaisuuden murtaa museon näyttelytilan ja kirjaston välinen diagonaalinen kantava seinä. Valmistuessaan rakennus tarjosi tilat kaupunginkirjastolle, kaupunginteatterille, kauppaoppilaitokselle ja työväenopistolle, joilla on torin puolelta yhteinen sisäänkäynti kahviloineen, ravintoloineen ja kaksine auditorioineen.[48]
37_Kemisali_MLR 37b_Kemi_MLR
Torniolainen kauppaneuvos Veli Aine toivoi, että hänen kotimaista 1800- ja 1900-luvun taidetta sisältävä taidekokoelmansa tulisi esiin kotikaupungissa. Ajankohdalle tyypilliseen tapaan pyrittiin taidemuseo perustamaan ”kulttuurikeskukseen veden äärelle”. Siinä maakuntamuseon, taidemuseon ja kirjaston tilatarpeet yhdistyisivät. Tuloksena oli päätös laajentaa maakuntamuseota omalla tontillaan ja rakentaa taidemuseolle sekä kirjastolle uusi yhteinen toimitalo.
Taidemuseon vuonna 1979 sovittu toimintamalli oli sama kuin Sara Hildénin museossa: kaupunki vastasi rakennuksesta ja museon ylläpidosta, Aineen Kuvataidesäätiö kokoelmien kartuttamisesta. Vuonna 1985 valmistunut, Rajakartanoksi nimetty talo nousi aiemmin tornitaloille kaavaillulle tontille. Arkkitehdiksi valittiin paikallinen Matti Porkka, joka suunnitteli myös maakuntamuseon laajennuksen. Porkka ei ollut suunnitellut museotiloja, mutta osallistui museoarkkitehtuuriseminaariin ja tutustui Helsingin kaupungin taidemuseoon, Sara Hildénin taidemuseoon ja Lapinlahden taidemuseoon (Esa Koivuniemi ja Georg Bystroff, 1977).
Torniossa Aineen museon ja kirjaston rinnakkaiset Torikadun suuntaiset tilat ovat suunnilleen samankokoiset. Rakennusmassat ovat kuitenkin toisiinsa nähden hieman vinottain ja kummallakin on oma luonteensa. Julkisivut on muurattu valkoisesta kahitiilestä. Sen päällä on ikkunatonta museonäyttelyaluetta korostava pystysuuntainen hiekanruskea marmoriharkotus, kirjaston ikkunoissa vastaavasti ritiläverhous. Yhteinen sisäänkäynti on rakennusten välissä toisessa kerroksessa, kahvila ja auditorio museon puolella. Museokäytössä on 1 576 m².
Sisäseinät ovat valkoiset, portaat ja käytävät on päällystetty Lapin louhemarmorilla, kahvila ja näyttelytilat sisal-laattamatolla. Näyttelysaleja on viisi, ja niihin Aine halusi Helsingin Meilahden taidemuseon tapaisen pakkokierron, jotta kaikki teokset tulisivat nähdyiksi. Ulkona oli tilaa veistospuistolle. Veli Aine sai toiveensa toteutumaan ja toimi museolautakunnan ensimmäisenä puheenjohtajana.[49]
38_Kouvola_MLR
Kouvola-talon (kilpailu: Erkki Valovirta, 1982) kotimaiselle nykytaiteelle omistettu museo perustettiin 1986 ja avattiin 1987 ”koulutus- ja kulttuurikeskuksessa”. Taidemuseon (1 000 m²) lisäksi siinä oli konserttisali sekä musiikkiopiston, kansalaisopiston ja taideharrastajien tiloja, samoin kaupungin toimistoja.
Puistomaisessa ympäristössä on hiekanvaalea kaksikerroksinen postmoderni rakennuskokonaisuus, yhteisen sisäänkäynnin ympärille rypälemäisesti kiertyvine pohjakaavoineen ja tummine aumakattoineen. Kaupunkien monitoimitaloissa tilojen käyttäjät voivat vaihtua, museo yleensä jää ja laajenee.[50]
Taide- ja kulttuurihistoriallinen museo, Saarijärvi (1989)
Saarijärven museo (Laila Niemioja / Heikki Uusitalo, 1989) avattiin 1989 saarijärveläisen kuvanveistäjä Kain Tapperin tuotantoa esittelevällä näyttelyllä. Ajatus museosta konkretisoitui, kun saarijärveläissyntyinen Toivi Järvinen määräsi testamentissaan 1982 omaisuutensa käytettäväksi taidemuseon rakentamiseen. Museoon koottiin yhteen Toivi ja Osmo Järvisen 1900-luvun alun kotimaisen taiteen kokoelma, Saarijärven kaupungin omistamat teokset ja Saarijärvi-seuran kulttuurihistoriallinen esineistö.
Vuonna 1948 perustettu Saarijärvi-seura vaali Saarijärven ja sen lähialueiden taiteilijoiden tuotantoa ja kulttuuriperintöä. Keskeisessä roolissa oli Tapperien kotitalo Juhola ja neljän taiteilijaveljeksen, kuvanveistäjä Kain Tapperin, kirjailijoiden Harri Tapperin ja Marko Tapion sekä lavastaja Yrjö Tapperin elämä ja tuotanto.[51]
Helsingissä työuransa tehneiden Toivi ja Osmo Järvisen omakotitalon tontille rakennettiin vaaleasta tiilestä puhtaaksi muurattu rakennus (1 150 m²). Saarijärven museonjohtaja Kari Kotilainen laati tilaohjelman, ja Jyväskylän museoiden kollegat työskentelivät rakennustoimikunnassa, joka osallistui Museoliiton Saksan-matkalle 1987. Frankfurtissa huomioitiin Main-joen molemmille rannoille nouseva vanhaa ja uutta arkkitehtuuria yhdistävä Museumsufer ja amerikkalaisarkkitehti Richard Meierin suunnittelema taideteollisuusmuseo.[52]
Saarijärvellä sisäänkäynti on suoraan näyttelykerrokseen, sen alapuolella ovat työ- ja varastotilat sekä sisääntulopäädyssä aulakahvio terasseineen. Muuta korkeampi keskiosa – ”valkoinen kuutio” – klinkkerilattioineen ja komeine järvinäkymineen – on tarkoitettu taiteelle ja erikoisnäyttelyille, itäpään matalampi ”musta kuutio” kulttuurihistoriallisille kokoelmille.[53]
34_Saarijärvi_MLR
Muita uusia museoita 1980- ja 1990-luvuilla
- Hyvinkään taidemuseo Jussintorin liikekeskuksessa (Ilmo ja Raimo Valjakka, 1981),
- Ahvenanmaan museot ja kaupunginkirjasto, Maarianhamina (Helmer Stenros, 1981),
- Skärgårdsmuseet i Lappo (Folke Wikström, 1981),
- Tampereen taidemuseon maanalainen näyttelytila (Antti Ilveskoski, 1984),
- Etelä-Karjalan museon sijoittaminen 1700-luvun linnoitukseen (Lappeenrannan kaupunki, 1984, 1989),
- Villa Gyllenbergin näyttelysiipi Helsingin Kuusisaaressa (Ålander Packalen Korsström, 1985),
- Rovaniemen taidemuseo postiautovarikkoon (Juhani Pallasmaa, 1986),
- Hiihtomuseo, Lahden Urheilukeskus (Esko Hämäläinen, 1989),
- Suomen metsästysmuseo muutti Porvoosta Riihimäelle (Osmo Lappo, 1990),
- Oulun taidemuseo liimatehtaan kiinteistöön (Birger Federley 1922, Jorma Teppo, 1991),
- Kalevala-talo, Talvisotamuseo, Kuhmo (Heikki Kukkonen 1991/1994),
- Mobilia auto- ja tiemuseo, Kangasala (Lindqvist & Uosukainen, 1992–94),
- Aboa Vetus & Ars Nova, Rettigin palatsin laajennus (Frank Schauman, 1995),
- Salon taidemuseo Veturitallin uudisosa (Lauri Hollmén, 1998).
39_Hyvinkää_MLR.jpg 42b_Lappeenranta Et karj museo WLM
40_Gberg_MLR 42_Lahden hiihtomuseo HHö
Tiedekeskus Heureka, Vantaa (1989) ja Arktinen instituutti Arktikum, Rovaniemi (1992)
Museoiden painopisteet ovat siirtyneet tutkimuksen suuntaan ammatillisuuden ja resurssien lisääntymisen myötä. Voitaneen jo puhua tiedemuseoista taidemuseoiden rinnalla.
Tiedekeskus Heurekan rakentaminen Vantaan Tikkurilaan oli 1980-luvun saavutus (kilpailu: Heikkinen ja Komonen, 1985). Säätiöpohjainen Heureka avattiin yleisölle 1989. Juuret ovat Helsingin yliopistossa, idean esittivät professorit Tapio Markkanen, Hannu I. Miettinen ja Heikki Oja. Kutsukirje oli lähtenyt Helsingin, Espoon ja Vantaan kaupungeille, joista Vantaa tarttui mahdollisuuteen tarjoten tontin ja merkittävää rahoitusta.
43_Heureka_MLR
Tiedekeskukset ovat museoiden rinnakkaisilmiö. Tieteen popularisointi, pedagoginen ote ja elämyksellisyys ovat yhteisiä tavoitteita, pääasiallisena erona se, ettei tiedekeskuksilla ole omia kokoelmia vartioitavanaan. Yleisötiloiltaan tiedekeskus muistuttaa avointa museota, uutuutena planetaario. Vapaus näkyy rakennuksen ulkoasussa, jota avaruusaiheineen voitaneen pitää uutta kokeilevan wau-arkkitehtuurin ensiesiintymisenä meillä.
44_Arktikum_MLR
Ajatus Arktisesta instituutista ja museosta virisi 1970-luvulla Oulussa ja Rovaniemellä. Konkreettinen aloite tuli Euroopan Kulttuurisäätiön Suomen osastolta. Vuosina 1983–84 järjestettiin arktisille maille suunnattu arkkitehtuurikilpailu, johon tuli 184 ehdotusta. Toteutus sidottiin Suomen itsenäisyyden 75-vuotisjuhlintaan, ja siitä kasvoi kansallinen hanke. Valtion talousarvioon varattiin varoja vuodelle 1988. Rovaniemen kaupunki tuli toiseksi maksajaksi ehdolla, että Aallon Lappia-talossa sijainnut maakuntamuseo sai keskuksesta uudet tilat.
Rakennus valmistui 1992, siinä toimivat näyttelyineen Lapin maakuntamuseo sekä Lapin yliopiston Arktinen keskus. Voittaneen tanskalaisen Claus Bonderupin työryhmän ehdotus on yhdistelmä klassisen museorakennuksen osia uudella tavalla yhdisteltynä. Valmiin rakennuksen julkisivu kaupunkiin päin muistuttaa temppelin päätyä pylväikköineen, oven takaa avautuu valkoiseksi maalattu kaksikerroksinen moderni hallimainen tila. Sen keskikäytävää kattaa lasinen galleria, joka valaistuna putkena jatkuu ulos ja Ounasjoen törmään upotettuna rantaan saakka.
1990-luvun viimeiset valtakunnalliset erikoismuseot – Lusto Savonlinnaan (1994), Siida Inariin (1998) ja Sarka Loimaalle (2005)
Uusiksi vastuumuseoiksi 1990-luvulla määriteltiin metsä-, saamelais- ja maatalousmuseo. Maan ensimmäiset kaupunkien museot olivat syntyneet 1800-luvulla rannikkokaupunkeihin. Sen jälkeen museoita rakennettiin myös sisämaahan niin, että kaupunkien museot ylsivät myös Keski- ja Itä-Suomeen, kunnes lopulta kotiseutu- ja pitäjänmuseoiden tiheä verkosto kattoi koko maan.
Pohjois-Suomi ja Lappi olivat olleet aktiivisia 1970-luvulta lähtien, erityisesti taidemuseoiden osalta. Yliopistojen lisäksi kaupungit kunnostautuivat: Oulun ja Rovaniemen kaupunginjohtajat Matti Rossi ja Matti Pelttari johtivat Suomen museoliiton hallitusta vuoron perään. Museot ja tiedekeskukset alkoivat hakeutua yhteen, kun viimeisiä valtakunnallisia museoita perustettiin. Niistä päätettäessä hajautuspolitiikka oli voimissaan, lisäksi valintaa tukivat matkailunäkökohdat.
45_Lusto_MLR 45a_Lusto_SLJe
Suomen metsämuseo Lusto Savonlinnan Punkaharjulla on metsäalan ja metsäkulttuurin erikoismuseo, joka avattiin tervalla ja pellavaöljyllä kyllästetyllä lehtikuusilaudalla vuoratussa betonirakennuksessa 1994. Vuonna 1988 perustettu säätiö järjesti yhdessä maa- ja metsätalousministeriön ja Punkaharjun kunnan kanssa avoimen arkkitehtuurikilpailun Suomalaisen metsätietokeskuksen rakentamiseksi vuonna 1990. Kokoelman painopiste on metsäkoneissa. Näyttelyt kertovat ihmisen ja metsän välisestä vuorovaikutuksesta.
Arkkitehtikilpailuun tuli 103 ehdotusta, ja voittaneet arkkitehdit Rainer Mahlamäki ja Ilmari Lahdelma suunnittelivat ”suomalaista modernismia” edustavan rakennuksen metsämaisemaan. Harjulta museon sisäänkäynnille johtaa katettu silta. Päänäyttely on museon pyöreässä osassa, jonka kalusteet ovat kiinteä osa arkkitehtuuria. Nimi Lusto tulee näyttelytilan (1 500 m²) muodosta ja merkitsee puun vuosikasvua, mutta siinä voi nähdä muistuman antiikin pyörötemppelistä.
46_Siida Nemo bis WLM 46a_Siida Nemo bis WLM
Saamelaismuseo oli perustettu ulkomuseona Inariin 1959. Jonkin aikaa sen jälkeen oli julistettu suunnittelukilpailu Oulun yliopiston arkkitehtiosaston opiskelijoille. Voittaja valittiin jatkokehittelyn pohjaksi, mutta asia hautautui ja herätettiin henkiin 1984. Hanke alkoi rahoituksen puolesta toteutua, kun museoon yhdistettiin Metsähallituksen Ylä-Lapin luontokeskus. Juhani Pallasmaan suunnittelema näyttelyrakennus Siida (merkitsee saamelaiskylää) valmistui metsäiseen rinteeseen museoalueen reunassa olleen sorakuopan paikalle vuonna 1998.
Sisäänkäynti on pohjakerroksessa, josta pääkerrokseen noustaan loivaa ramppia pitkin. Rakennus on istutettu ”pienipiirteiseen maisemaan” sen muotoja seuraten. Runko on teräsbetonia ja terästä, julkisivut puuta. Rakennuksen keskelle on koko pituudelta avattu ”luonnonvalorailo”.
Rakennussuunnittelu tapahtui rinnakkain näyttelysuunnittelun kanssa. Johdantonäyttely esittelee pohjoisen luonnon ja kulttuurin kehitysvaiheita jääkaudesta tähän päivään. Näyttelytilat ovat yönsinisiä, muut tilat yleisväritykseltään valkoisia. Museosta tuli kokonaistaideteos, jossa tavoitteena oli ”yhdistää tieteellinen sisältö teatterin tai taidenäyttelyn kaltaiseen elämyksellisyyteen”. Esineiden ja kuvien taustalla on eri vuodenaikoja ja luonnontapahtumia kuvaava äänimaisema.[54]
Suomen maatalousmuseo Sarka Loimaalla on viimeinen 1990-luvulla alkunsa saanut erikoismuseo. Suomen maatalouskonemuseosäätiö perustettiin 1992. ”Suomalaisen maatalouden 3000-vuotisen tarinan” kertova museo avattiin 2005 (arkkitehti Sarlotta Narjus).
Uudelle vuosituhannelle siirryttyä järjestettiin arkkitehtuurikilpailu Kotkan Merikeskus Vellamosta vuonna 2004 ja rakennus avattiin 2008 (Arkkitehtitoimisto Lahdelma & Mahlamäki Oy).[55]
Nykytaiteen museo Kiasma, Helsinki (1998)
Keskustelu museoarkkitehtuurista alkoi 1960-luvun vaihteessa Helsingin keskustasuunnitelmasta. Siihen oli merkitty paikka museolle, ja tänne uusi rakennus liki 40 vuotta myöhemmin nousikin. Nykytaiteen museon perustamisvuonna 1990 ilmestyi amerikkalaisen taidehistorioitsijan Douglas Crimpin pamfletti Museon raunioilla, jossa tämä pohti museon roolia ja vastuita, erityisesti nykytaiteen määrittelyssä ja ohjailussa.
47_Kiasma_MLR.jpg 48_leikkaus_MLR.jpg
Nykytaiteen museon rakennushanke lähti rivakasti käyntiin, lamasta oli etua. Kaupungin rakennuskoneistolta loppuivat työt, joten tehtiin sopimus, jonka mukaan valtio tilasi työn kaupungilta ja rakennuksen valmistuttua maksoi sen luovuttamalla museotalon arvoa vastaavan määrän rakennusmaata toisaalta.
Pohjoismaiden ja Baltian arkkitehdeille suunnattu suunnittelukilpailu käytiin 1993. Lisäksi oli kutsuttu mukaan neljä kansainvälisesti tunnettua arkkitehtiä. Ehdotuksia tuli 516, joista voittajaksi nousi yhdysvaltalaisen Steven Hollin[56] ehdotus Chiasma (silmistä aivoihin johtavien näköhermojen risteys).
Ehdotusta laatiessaan Holl kävi Helsingissä. Hän asui museotontin viereisen Vaakuna-hotellin ylimmässä kerroksessa, josta tutkiskeli tonttia ja sitä ympäröivää kaupunkinäkymää. Myöhemmin hän tutustui suomalaiseen rakennusperintöön kuten Petäjäveden kirkkoon. Rakennustyön käynnistyttyä suunnittelun Suomen tukikohtana toimi arkkitehti Juhani Pallasmaan toimisto.
49b_Kiasma_Sakari Kiuru MV 49_Kiasma_Tirri MV
Arkkitehtuurikilpailun voittajasta syntyi kohu. Arkkitehdit pitivät tonttia ahtaana ja rakennusta mahdottomana, koska sitä ei voisi muuttaa tai laajentaa, mikä oli ollut ihanne. Syytettiin myös amerikkalaisuuden palvonnasta. Kovin vastustus tuli Mannerheimin ratsastajapatsaan suojelijoiden taholta. Patsas jäi paikalleen, ja Holl otti sen huomioon etsiessään muotoa, joka nivoisi yhteen ristiriitaisetkin elementit tonttia ympäröivässä rakennus- ja puistomaisemassa. Rakennus valmistui 1998. Se huipensi 1900-luvun jälkipuolen museorakentamisen.
Kiasman viisi kerrosta ovat toisiinsa nähden hieman limittäin ja kaarevien seinäpintojen vuoksi eri suuruisia. Museotilaa on 9 100 m². Runko on terästä, ja betoni kaartuu kauniisti. Ulkoseinät ja katto on päällystetty sinkki-, alumiini-, messinki- ja lasilevyillä, sisäpuoli on valkoinen. Pohjakerroksen yleisötiloissa on myös puuta ja voimakkaita värejä. Rakennus on avoimen ja suljetun tilan yhdistelmä. Holl pitää taloaan avoimena, koska siellä on portaikkoja, hissejä ja oviaukkoja, jotka mahdollistavat vapaan liikkumisen. Sisään tullessa avautuu näkymä talon läpi, sekä päästä päähän, että alhaalta ylös valokattoon saakka.
Portaikon sijasta museoon noustaan kaarevaa ramppia pitkin. Sen molemmin puolin seinien takana on huoneesta huoneeseen kuljettavia näyttelysaleja, ylimpänä kattoikkunoin varustettu muita korkeampi sali. Luonnonvalon käyttö on Hollille tärkeää, sen vuoksi molemmissa päädyissä sekä länsisivulla on isot panoraamaikkunat. Näyttelysalien seinät ovat valkeat, lattiat tummanharmaata betonia. Tekniikka on upotettu, eikä arkkitehtonisia elementtejä ole korostettu. Tavoitteena on tila, jossa katsoja voi kohdata teoksen häiriöttä.
Lopputulos on paikkaansa sopeutuva talo, jonka kaartuva harmaa ulkokuori on kuin kotilo tai simpukka, joka suojelee helmenhohtoista sisältöään: ulkoa pieneltä vaikuttava rakennus avautuu sisääntulijalle juhlavan avarana. Valkoisen tarkoitus on pyhittää taide. Amerikkalainen arkkitehtuurintutkija Victoria Newhouse kirjoitti jo ennen Kiasman valmistumista kirjassaan Towards a New Museum näkevänsä Kiasman ”pyhänä tilana”.[57]
Museorakennuksen ikuisuuskysymyksiä
Museorakentamisen rinnalla on laaja kysymys: millaista historiakäsitystä museot ylläpitävät, kenen tarinoita kertovat. Vaikka museorakennukset muuttuvat, museorakentamisessa on edelleen ratkaistava samoja kysymyksiä. Halutaanko uudisrakennus vai korjataanko jokin vanha. Halutaanko luonnonrauhaan vai kaupungin ytimeen. Miten rakennus suhteutuu sisältöönsä, miten ympäristöönsä. Painotetaanko pysyvää näyttelyä vai vaihtuvaa ohjelmistoa. Onko näyttelykierto avoin vai suljettu ja miksi niin on. Mikä on luonnonvalon ja keinovalon suhde. Tehdäänkö temppeli vai toivotaanko toria.
Kirjoittaja
Filosofian tohtori, dosentti, tietokirjailija Marja-Liisa Rönkkö on toiminut eri tehtävissä lukuisissa museoissa, kuten museonjohtajana Helsingin kaupunginmuseossa 1978–1990 ja ylijohtajana Valtion taidemuseossa 1990–2000. Artikkeli perustuu tekijän väitöskirjaan Louvren ja Louisianan perilliset. Suomalainen taidemuseo sekä artikkeleihin teoksissa Museologia tänään ja Suomen museohistoria.
Artikkeli on julkaistu 2020.
VIITTEET
[1] Kirjoitus pohjautuu kirjoittajan väitöskirjaan Suomalainen taidemuseo sekä artikkeleihin teoksissa Museologia tänään ja Suomen museohistoria, ilman että niihin joka kohdassa erikseen viitataan.
[2] Salokorpi 1998. Ensimmäiset kattoikkunat: Sir John Soane, Fonthill Housen yksityinen taidegalleria 1787. Pevsner 1997, 123.
[3] Ks. Smeds 1996; Pevsner 1997, 138; Hunter 1991, 9-41.
[4] Ks. Aurasmaa 1999.
[5] Ensimmäisen museon perusti piirilääkäri Carl Robert Ehrström Raaheen 1862.
[6] Kaikkien Suomen museoiden perustamisvuodet: Pettersson & Kinanen 2010, 400-412.
[7] Adriansen 2015. Satavuotisjuhlassaan liitto muutti nimensä Pohjoismaiseksi museoliitoksi.
[8] Vilkuna 1998, 15-17, 26, 38-39, 49.
[9] Penttilä 1970, 68, 71, 81, 85.
[10] Metsäranta 2005, 110-113.
[11] Rancken 1934, 113-114, 153-155.
[12] Vilkuna 1998, 55, 79.
[13] Alvar Aalto hävisi tämän kilvan Ranckenille.
[14] Ks. Takala 2010. Rautalammin museo toimi sodan aikana evakuoitujen kokoelmien varastona.
[15] Vuosina 1945–62 Niilo Valonen toimi maatalousmuseon hoitajana, mistä 1949–52 myös liiton neuvojana. Vuosina 1946–58 neuvoja annettiin vuosittain 30-60 museolle. Kinanen 2010, 84.
[16] Suomen osasto merkittiin yhdistysrekisteriin 1976.
[17] Näyttely etenee kronologisesti, typologisesti ja/tai alakohtaisesti, mukana pedagoginen periaate.
[18] Anttila 1951; Härö 2010, 134–138; Heinonen (Jouko) 2010, 153–167; Rönkkö 2010, 234-237.
[19] Arvion teki Valonen. Osma 1958–59; Piilonen 1982; Museo kunnallistettiin 1974, siirtynyt Suomen Kirjainstituutin säätiön alaisuuteen.
[20] Päewaleht 28.2.1937; Arkkitehti 1937, 66–70.
[21] Malmisalo-Lensu, 38-60; valaistuksesta ks. Nurmento, 118, 149.
[22] Vilkuna 1988, 57.
[23] Taidemuseoiden johtajat käyttivät vanhaa titteliä intendentti ainakin 90-luvun vaihteeseen saakka.
[24] Vilkuna 1988, 57: taidemuseot 1952 olivat Turku, Tampere, Vaasa, Lahti, Imatra, Mänttä (Serlachius), Hämeenlinna, Kemi, Joensuu ja Varkaus. Tekniikan museopäiviä ja luonnontieteellisten museoiden päiviä on järjestetty vuodesta 1974. Taidemuseopäivien järjestäminen siirtyi Museoliitolle 1981.
[25] Ars-näyttelyistä ks. Kastemaa 2009. Nykytaide ry:n perustajat olivat Alvar Aalto, Maire Gullichsen, Nils-Gustav Hahl ja Bertel Hintze ja se toimi 1939–1990.
[26] Rönkkö 1999, 37-43.
[27] Rönkkö 1999, 198-206. Artek perustettiin 1935. Ks. esim. Tulevaisuuden rakentajat.
[28] Kolmas toteutunut museo on Aalborgin taidemuseo Tanskassa.
[29] ”Suomalaiset valtasi Louisiana-entusiasmi, jolla oli unelman siivet”, kirjoitti Seppo Niinivaara Taide-lehdessä 4/68.
[30] Rönkkö 1999, 125–126.
[31] Rönkkö 1999, 189-197.
[32] Samaan aikaan rakennettu Sibelius-museo (Woldmear Baeckman, 1968) sai rouheamman asun.
[33] Rönkkö 1999, 151-153.
[34] Koho 1994, 6; Helander ja Rista 1989, 99, 113. ”Miesiläiseksi” on tunnustautunut mm. Juhani Pallasmaa.
[35] Ks. Koho 1994; Ylimaula 1993; Helander ja Rista 1989, 110.
[36] Juhani Pallasmaa teki lopputyönsä Meilahden museosta 1966.
[37] Rönkkö 1999, 207-213. Rakennus peruskorjattiin 1998, jolloin näyttelytoiminta siirtyi Tennispalatsiin.
[38] Rönkkö 1999, 214-220.
[39] Kauppinen kutsuttiin liiton kunniajäseneksi ensimmäisten joukossa 1934. Salo oli Museoliiton hallituksen jäsen 1959–80 ja puheenjohtaja 1972 alkaen, kunniajäsen 1998. Porin kaupunginjohtajana toimi 1970–75 Heikki Koski.
[40] Porin taidemuseo on korttelin päässä tästä.
[41] Kirjoittaja oli töissä Satakunnan Museossa uudisrakennuksen valmistuessa.
[42] Ensimmäinen holistinen museo on Uuden-Seelannin kansallismuseo Te Papa Tongarewa, johon yhdistettiin kaikki kansalliset kokoelmat ja joka avattiin wau-arkkitehtuuria edustavassa uudisrakennuksessaan 2008.
[43] Rakennussuojelulaki astui voimaan 1965. Ensimmäisen kerran museoarkkitehtuuria oli käsitelty vuoden 1926 museopäivillä, perusteellisesti myös ”museoteknisillä neuvottelupäivillä” 1959. Ks. Museoarkkitehtuuria 1981.
[44] Jorma Heinosen luokitus 1968, bruttoneliöt / näyttelyala: suuri museo (maakunnallinen) 5 000 / 3 750, keskisuuri museo 3 000 / 2 200, pienehkö museo 2 000 / 1200 ja pikkumuseo (pikkukaupungin museo) 1 500 / 900 m².
[45] Alunperin varsinaisiksi museoaineiksi luettiin ns. esinetieteet arkeologia, kansatiede ja taidehistoria. Ainevalikoima on laajentunut, mutta tueksi tarvitaan museologian perusopintoja. Palviainen 2010, 315-331.
[46] Ensimmäisenä avattiin J.L. Runebergin koti Porvoossa 1880. Heinonen (Jouko) 2010, 153-167.
[47] Kirjoittaja osallistui seminaariin.
[48] Rönkkö 1999, 233-236.
[49] Rönkkö 1999, 221-225.
[50] Kouvola perusti vuoden 2009 kuntaliitoksen jälkeen kaupunginmuseon entisten pitäjänmuseoiden tilalle, mikä vaikutti Poikilo-museoiden syntyyn Kouvola-talossa. Rönkkö 1999, 237-238.
[51] Yrjö, Marko, Harri ja Kain Tapperin Taideseura perustettiin 1993.
[52] Meierin tunnetuin suunnitelma on Akropolis-vaikutelmaa tavoitteleva Getty Center (1984–96) museoineen Los Angelesin rinteillä. Getty-keskus lienee maailman rikkain museo, erityisesti se tukee konservointitutkimusta. Jodidio 1993, 98-107.
[53] Rönkkö 1999, 226-231.
[54] Pallasmaa 1998, 4-6.
[55] Eskola 2016, 6-13.
[56] Jodidio 1993, 82-89.
[57] Newhouse 1998, 47-55; Salokorpi 1998. Tilan kokemisesta ks. Järvinen 2008.
Museoiden uudisrakentaminen 1944 jälkeen käynnistyy vaisusti
Maatalousmuseo Helsingin Viikissä avattiin puolivalmiina 1945. Sen kiitosta keränneestä ja havainnollisesta näyttelystä tuli esikuva monille kotiseutumuseoille. Rakennus on arkkitehtuuriltaan moderni, avara tila kahden kerroksen läpi ulottuva tila sitä kehystävine lehtereineen ja looseineen sekä katonrajaa myötäilevine nauhaikkunoineen.
Museoliitto sai vuonna 1946 valtiolta varat vakituisen museoneuvojan palkkaamiseen, joten toiminta jatkui entistä tehokkaammin ja jäsentyneemmin.[15] Samana vuonna perustettiin Pariisissa Unescon alaisuuteen kansainvälinen museoneuvosto, International Council of Museums ICOM,[16] kulttuuriperinnön suojelun ja valtakuntien rajat ylittävän tiedonkulun ja yhteistyön edistämiseksi. Sen komiteoista museorakennuksiin on erikoistunut International Committee for Architecture and Museum Techniques ICAMT.
Eurooppalaisen kokoelmakeskeisen museorunsauden sijasta katseet käännettiin Yhdysvaltoihin. Käyttäjä- ja toimintavetoisesta USA:sta tuli meille mallimaa. Käynnistäjänä toimi Amerikka rakentaa -näyttely Ateneumissa 1945. Tämä istui nopeasti kehittyvän maamme nuoreen museokulttuuriin. Museoalan johtohenkilöt tutustuivat matkoillaan ajankohtaisiin kohteisiin niin Euroopassa kuin Yhdysvalloissa ja julkaisivat kirjoituksia alan lehdissä ja vuosijulkaisuissa.
1940- ja 1950-lukujen uudet museorakennukset
Aktiivisesta toiminnasta huolimatta uudisrakennuksia nousi ennen 1960-lukua vain muutama.
- Ålands sjöfartsmuseum – Ahvenanmaan merenkulkumuseo, joka oli museon ja klubitalon yhdistelmä (Jonas Cedercreutz, 1949),
- Joensuun Karjala-taloon sijoitettu Pohjois-Karjalan museo (Einari Teräsvirta, 1954).
- Emil Cedercreutzin museon näyttelyhalli (Toivo Anttila, 1956)
Museo maatilan talousrakennuksessa – museo joka pitäjään
Erilaiset seurat ja yhdistykset olivat perustaneet museoita kotiseuduntutkimukseen liittyen jo 1900-luvun vaihteesta lähtien. Varsinainen buumi seurasi, kun Suomen kotiseutuliitto perustettiin 1949. Tavoitteena oli saada museo joka pitäjään, mikä liki onnistui 1950-luvun loppuun mennessä: maamme museoista puolet eli viitisen sataa kuuluu tähän ryhmään.
Suurin osa koostuu 1700- ja 1800-lukujen maalaistaloista pihapiireineen, jonne on saatettu siirtää rakennuksia myös muualta, kuin pieniksi ulkomuseoiksi. Sisustus on ollut vaihtelevaa ja käyttö moninaista, kokous- ja juhlatilaisuuksista aina työnäytöksiin ja kesäteattereihin saakka. Pari sataa on sijoitettu käytöstä pois jääneisiin, pitäjien ja kruunun puisiin tai kivisiin viljamakasiineihin, joista osaan on pystytty sijoittamaan oikeaoppinen,[17] pitäjän historiaa valaiseva näyttely.
Museo makasiinissa
Kokemäki-seuran maatalousmuseo kolmikerroksisessa harmaakivimakasiinissa oli ensimmäinen laatuaan, kun se avautui kirkonmäellä 1938. Makasiinin muuttamista museoksi avaa arkkitehti Toivo Anttila vuonna 1951 Museoliiton tiedotuslehdessä julkaisemassaan artikkelissa. Hän esitti, että jyvälaarien purkaminen riittäisi, ellei laareja voinut käyttää näyttelyseinäminä, ja valaistukseksi yleisvaloina tuttuja valkoisia pallolamppuja. Museoliiton runsaan neuvonnan tuloksena syntyi suuri joukko pieniä samankaltaisia museoita.[18]
07c_tampereen taidemuseo_MV
”Makasiinimuseoiden” eliittiä edustavat Tampereen (1931) ja Hämeenlinnan (1952) taidemuseot: kaksi C. L. Engelin allekirjoittamien piirustusten mukaan 1838–39 rakennettua kruununmakasiinia kaksikerroksisissa rakennuksissa. Niitä leimaavat näyttävät portaalit, pienikokoiset ikkunat ja nelilappeinen telttakatto, jonka huipulla on sisätiloihin päivänvaloa tuova lyhtymäinen rakennelma, lanterniini.
Hämeenlinnan vuonna 1952 avatun taidemuseon asema on poikkeuksellinen, sillä se perustui Viipurin taidemuseon kokoelmille ehdolla, että kaupunki antoi tilat. Viipurin kokoelmista syntyi Suomeen kaksi muutakin taidemuseota: Lahteen ja Lappeenrantaan.
Viimeisin makasiiniin perustettu museo lienee Savonlinnan maakuntamuseo, joka on vuonna 1984 saanut suojakseen Riihisaarella sijaitsevan E. B. Lohrmannin suunnitteleman punatiilisen kaksoismakasiinin vuodelta 1852.
Museo navetassa
Tyrvään seudun museo- ja kotiseutuyhdistyksen (perustettu 1932) uudisrakennushanke kariutui. Museokäyttöön saatiin 1951 Tyrvään pappilan 56 lehmän kivinavetta (suunnittelu: piirilääkäri Otto Stenbäck, 1890) Vammalan kauppalan (Sastamalan kaupunki) keskustassa.
Arkkitehti Toivo Anttila teki navetan muutospiirustukset, ja näyttely (600 m²) rakennettiin Museoliiton henkisellä ja aineellisella tuella. Esineistöstä haluttiin rakentaa kulttuurihistoriallinen kokonaisuus, selkeä kertomus paikkakunnan menneisyydestä. Museo avattiin elokuussa 1958 ympärivuotiseen käyttöön ja projekti esiteltiin Museoliiton vuosikirjassa.[19]
07a_Tyrvää_MLR
Tähän museorakennusryhmään kuuluvat muutkin maaseudulla käytöstä poistuneet kiviset talous- ja huoltorakennukset kuten tallit, maneesit, myllyt, meijerit, saunat, vesitornit, muuntamot ja paloasemat. Näille kivirakennuksille on tyypillistä, että niiden vanhat sisärakenteet on purettu kokonaan ja tilalle on rakennettu uudet museotilat.
Tukevatekoisissa kivirakennuksissa oli omana aikanaan säilytetty arvo-omaisuutta. Museokäytössä rakennuksissa ja museoesineissä tallentuivat esi-isien työ ja muistot. Museorakennuksina niillä on symboliarvo, joka kertoo sekä seudun vauraudesta että paikkakunnan kaupungistumisprosessista. Rakennukset ovat ympäristönsä vanhimpia. Sijaintiensa ansiosta ne ovat merkittävillä paikoilla ja määrittelevät lähiympäristöään.
Navettaan sijoitettuja museoita
- Pappilan navetta, Tyrvää,
- Emil Halosen museo Lapinlahti,
- Pedersörenejdens museum Pietarsaari,
- Önningebymuseum Ahvenanmaa,
- Arkeologiakeskus Untamala Laitila,
- Lepaan puutarhamuseo Hattula,
- Designmuseo Iittala,
- Etelä-Pohjanmaan maakuntamuseo Seinäjoki,
- Vilppulan museo.
07b_Et Pohj maakuntamuseo HHö
Taidemuseon prototyyppi syntyy
Tallinnan taidemuseon kutsukilpailu järjestettiin vuosina 1936–37. Arkkitehti Alvar Aallon modernistinen kilpailuehdotus esiteltiin tuoreeltaan yhdessä virolaisten voittajien kanssa Päevalehden etusivulla sekä Arkkitehti-lehdessä.[20] Aallon suunnitelma on Vanhankaupungin ja sataman väliseen puistoon vapaasti sijoitettu, ulkoasultaan yksinkertainen, valkeaksi rapattu, matala ja suoraviivainen rakennus.
Uutta oli sisätilan rikas ja herkkä jäsentely. Sen pohjakaava on ydin ja satelliitit -ratkaisu. Jo aulasta saa selkeän kuvan museon kokonaisuudesta. Aulasta on pääsy suoraan kaikkiin näyttelytiloihin, jotka kohoavat portaiden kytkeminä terassimaisesti – Aalto puhuu ”skala-motiivista”. Koko museon läpi on mahdollista kulkea myös johdonmukaisessa järjestyksessä. Pieni sisäpiha avautuu suoraan ympäröivään puistoon. Ylävalo on ratkaistu tiheään sijoitetuin heijastavin lasikartioin, joiden kautta valo jakautuu tasaisesti koko tilaan. Veistossaleissa on myös sivuvaloa antavat lasiseinät.[21]
Aalto loi perusidean museolle, joka on suunniteltu sekä kokoelmien että kävijän tarpeisiin. Kilpailuehdotuksen ratkaisu jäi elämään ihannemuseona, johon on toistuvasti viitattu. Muinaistieteellisen toimikunnan arkkitehti Heikki Havas esitteli sitä ”pohjoismaisen museoarkkitehtuurin edelläkävijänä” vuoden 1963 museopäivillä, jotka järjestettiin Aallon suunnittelemassa Jyväskylän uudessa museotalossa. Tallinnan toteutumaton ehdotus toimi kuin muistilistana uuden museorakennuksen suunnittelussa. Aalto toteutti ideoita myöhemmissä museosuunnitelmissaan.
08_Tallinna_MLR.jpg
Taidemuseot itsenäistyvät Ateneumin taidemuseon johdolla 1950- ja 60-luvuilla
Museoliitto oli perustettu 1923 kulttuurihistoriallisten museoiden yhteistyöelimeksi, mutta alusta lähtien keskusteluissa olivat mukana myös taide ja luonnontiede.[22] Taiteiden asema yhteiskunnallisessa vaikuttamisessa vahvistui 1960-luvulla. Taidemuseotasoisten näyttelytilojen määrä oli vuoteen 2000 mennessä noussut 80:een.
Yhteydenpidon taidemuseoiden kesken aloitti Ateneumin taidemuseon intendentti[23] Aune Lindström, joka kutsui vuonna 1953 koolle silloiset kymmenen taidemuseoita ylläpitävää tahoa.[24] Hän oli laatinut ja painattanut seikkaperäiset taidenäyttelyn ripustusohjeet. Lindström päivitti myös museon rakennusohjeet. Hän asetti tärkeimmäksi museon keskeisen sijainnin yhdyskunnassa. Lindströmin aikana alkoi Ateneumissa kansainvälisten Ars-näyttelyiden sarja, ensimmäinen yhdessä Nykytaide ry:n kanssa 1961.[25]
Helsinkiin valmistui vuonna 1948 järjestetyn ideakilpailun pohjalta ”keskusalueen asemakaavaehdotus” 1954. Ideakilpailun palkintolautakuntaan kuulunut Alvar Aalto kutsuttiin 1959 laatimaan keskustalle edelleenkehittämissuunitelma, joka kohdistui Eduskuntatalon ja Töölönlahden alueisiin. Vuonna 1961 julkistettu ehdotus piti sisällään lahden länsirantaa seurailevan rivin pylväillä seisovia, veteen kuvastuvia kulttuurirakennuksia, kuten kongressi- ja konserttitalon, oopperan, taidemuseon ja kirjaston.
Tästä alkoi kiivas museoväittely: uusi ”keskustaidemuseo” haluttiin Töölönlahden rannalle ja nykytaide irti Ateneumin suojista. Keskustelun aloitti vuonna 1960 perustettu Taide-lehti, joka esitteli niin kotimaisia kuin ulkomaisiakin uusia museorakennuksia. Tulevasta taidemuseosta käytettiinkin nimeä taidekeskus, jolla tarkoitettiin nykytaiteen, arkkitehtuurin ja taideteollisuuden yhdistävää museota.
Keskustelu tasaantui pitkäksi aikaa, kun purkamisuhan allakin ollut Ateneum jäi edelleen taidemuseotoiminnalle, mutta kiihtyi taas, kun museo valtiollistettiin 1990 ja sen alaisuuteen perustettiin Nykytaiteen museo.[26]
Museo yliopistokampuksen yhteydessä - Jyväskylän museot (1961, 1973 ja laajennus 1990)
Museoarkkitehtuuri siirtyi modernismiin viimeistään arkkitehti Alvar Aallon ensimmäisen museorakennuksen toteuduttua Jyväskylään vuonna 1961. Keski-Suomen museoyhdistys oli perustettu 1931, ja 1953 perustettiin sen taideosasto. Uudisrakennukseen tähdättiin alusta pitäen. Paikaksi osoitettiin Seminaarinmäen kampuksen jyrkähköllä etelärinteellä sijaitseva historiallinen Ruusupuisto. Museon johtaja Sirkka Valjakka laati tilaohjelman (3–4 kerrosta, 2000 m²), Alvar Aalto suunnitteli ja antoi pääpiirustukset lahjana.
Keski-Suomen museo (rakennettu 1959–61) on kolmikerroksinen ja pohjakaavaltaan vapaamuotoinen. Ulkoarkkitehtuurissa näkyy kerrosten terassimainen jäsentely. Keskikerroksen alkuperäisestä sisääntulosta ja aulasta päästiin kahvilaan, joka ulostyöntyvine pitkine terassiparvekkeineen avautui Jyväsjärven suuntaan. Perältä oli käynti kahteen isoon näyttelysaliin, kolmannessa kerroksessa oli pienempi, kattokorkeudeltaan vaihteleva ”taidehalli” ja luentosali, johon museoyhdistys oli saanut toivomansa Viipurin kirjaston tapaan aaltoilevan sälekaton. Pohjakerroksessa olivat työhuoneet, kirjasto, kokoelmatiloja sekä ulos avautuva pieni pylväshalli.
09_Keski-Suomi_MLR
Kaikki oli rapattu ja slammattu valkoiseksi, taidemuseon sisätilojen tunnusvärillä. Sisustus oli teetetty ja kalusteet hankittu Artekin kautta. Vaikutelma oli ilmava. Talonpoikaisesineitäkin kohdeltiin itsenäisinä taideteoksina. Näyttelyrakenteet olivat kevyitä siirrettäviä seinäkkeitä ja vitriinejä. Esitystapa oli omaksuttu Milanon Suomelle menestyksekkäistä muotoilutriennaaleista.[27]
Aallolle itselleen omistettu Alvar Aalto -museo perustettiin 1966. Sen suunnitelmaan yhdistettiin Keski-Suomen museon laajennussuunnitelma. Alvar Aalto -museo valmistui 1973 rinteen juureen, ja sieltä sai Aallon ystävä Jalo Sihtola ensimmäisen pysyvän sijan kotimaista ja ulkomaista taidetta sisältävälle kokoelmalleen. Keski-Suomen museon laajennus valmistui vasta 1990, jolloin sisäänkäynti ja luentosali siirtyivät pohjakerrokseen järven puolelle. Museoiden väliin varattiin mahdollisuus rakentaa yhdyskäytävä.
10_AAMpohja_MLR 11_AAMnäyttely_MLR.jpg
Alvar Aalto -museon kaksikerroksisen rakennuksen pohjakaava on vapaamuotoinen monikulmio. Sisääntulojulkisivu on ikkunaton ja muodostaa loivasti koveran kulman, jossa on kolmiosainen pronssiovi. Pohjakerroksessa on aula, kahvio, luentosali, kirjasto, toimistotilat ja tauluvarasto, toisessa kerroksessa 700 neliön suuruinen yhtenäinen näyttelytila, jota rytmittävät sileät valkoiset pylväät ja siirreltävät seinäkkeet. Seinät ovat molemmissa museoissa valkoiset, aulojen lattiat punaruskeaa tiiltä, näyttelytiloissa vaalean harmaata linoleumi- tai muovimattoa. Aalto-museon yläkerran taustana on ”revontuliseinä” muistona New Yorkin maailmannäyttelystä (1939).
Julkisivun tekstuuri on karhea: pohja on Arabian hallatiiltä, jonka päällä on tiheä posliinisauvoista rakennettu ”pystyrimoitus”. Pihan ulkovalaistus on Aallon suunnittelema, ja museoiden välissä virrannut puro päätyy istutusten ympäröimäksi kaskadilammikoksi. Kokonaisuus on Alvar Aallon museosuunnitelmien erilaisten elementtien kokoelma.[28]
”Louisiana-entusiasmi”[29]
Koko 1900-luvun jälkipuolen ajan suomalaisia innosti Kööpenhaminan lähellä Humlebaekissa kesällä 1958 avattu modernin taiteen museo Louisiana, jonka syntysanat lausui suurliikemies-keräilijä Knut W. Jensen 1945. Lähtökohta oli 1855 valmistunut kartano ja sitä ympäröivä merellinen kulttuurimaisema.
Louisianan taidemuseo on esimerkki orgaanisen kasvun museosta (Jørgen Bo ja Wilhelm Wohlert, 1956–91). Kuudessa vaiheessa rakennettu museo on sijoitettu maastoon niin, että maisema on säilynyt mahdollisimman koskemattomana. Ulkoapäin matalilta näyttävät rakennukset muodostavat nauhamaisen, osittain maanalaisen lenkin, jonka kiertämällä näkee koko näyttelyn (10 800 m²). Seinämateriaaleja ovat valkoinen tiili ja lasi, lattioissa klinkkeri ja katoissa mänty. Paviljonkeja yhdistävät läpinäkyvät lasikäytävät, joista avautuu näkymiä luontoon ja ympärillä levittäytyvään veistospuistoon.[30]
Museo taiteilijan tuotannolle - Wäinö Aaltosen museo, Turku (1967) ja Eero Nelimarkan museo, Alajärvi (1964)
Kuvanveistäjä Wäinö Aaltosen museo avattiin 1967. Muutamat yksityishenkilöt olivat vuonna 1940 ryhtyneet ostamaan Aaltosen töitä museon aikaansaamiseksi. Sijoituspaikaksi taiteilija ajatteli kotiaan Helsingin Kulosaaressa, toiset pitivät Tamperetta jo hänen ulkoilmamuseonaan, mutta kun Aaltonen aikoi muuttaa Turkuun, päätti kaupunki tarjota museolle paikkaa Turusta taiteilijan 70-vuotispäivänsä kunniaksi 1964.
Wäinö Aaltonen lupasi lahjoittaa ja tallettaa sovitut teokset sekä arkistomateriaalin, kaupunki lupasi rakentaa talon. Aaltonen edellytti, että hänet nimettäisiin kymmeneksi vuodeksi museon intendentiksi, ja mikäli hän sitä ennen kuolisi, hänen poikansa jatkaisi. Aluksi oli tarkoitus, että Wäinö Aaltonen olisi saanut työtilat rakennuksesta. Tontti osoitettiin Aurajoen rannasta, teatteritalon ja valtion virastotalon rintamaan. Aaltonen suunnitteli museon poikansa, Oulun yliopiston asemakaavaopin professori Matti Aaltosen toimiston kanssa. Yhteistyötä koordinoi Turun kaupunginarkkitehti A. S. Sandelin.[31]
13_WAMpohja_MLR 14_W Aaltonen_MLR 16_WAM veistossali Volker von Bonin
Arkkitehtisuunnittelun lähtökohtana on Alvar Aallon Tallinnan taidemuseon kilpailuehdotus (1936-37). Berliinissä rakenteilla ollut, arkkitehti Ludwig Mies van der Rohen suunnittelema Neue Nationalgalerie innoitti ajanmukaistamaan suunnittelua.
Vaalea suoraviivainen rakennus on ahtaalla rinnetontilla porrastetusti, ylimpänä kohoaa 11 metriä korkea veistossali. Sisääntulo jäsentyy ”aaltomaisesti”: terasseittain kohoaviin näyttelytiloihin (1 100 m²) siirrytään ulko-ovea vastapäätä lähteviä porrasaskelmia pitkin. Aulasta vasemmalla lasiseinän takana aukeaa sisäpiha veistoskoristeisine vesialtaineen.
Ensimmäinen suunnitelma oli lopputulosta modernimpi. Jykevän ulkoterassin lisäksi arkkitehdit olisivat halunneet julkisivuun betonielementtejä (Sibelius-museossa tämä toteutui) tai uurrettuja mineriittilevyjä. Tavoitteena oli luoda ”huomaamatonta, ekonomista arkkitehtuuria”.[32] Tilaajat halusivat arvokkaampaa: pääjulkisivuun käytettiin travertiinia ja sivuihin kalkkihiekkatiiltä sekä lattioihin klinkkerin sijasta kalkkikiveä. Eniten suunnittelua ohjasi veistoskokoelma, jonka laajuus oli tiedossa.
19_Nelimarkka_MLR
Nelimarkka-museo avattiin 1964. Hanke oli syntynyt taidemaalari Eero Nelimarkan toiveesta luoda taidekoulu, jota varten hän oli perustanut säätiön 1945. Vuonna 1961 ostettiin Alajärveltä Nelimarkan suvun vanha kantatila. Puretun navetan paikalle valmistui 1964 Nelimarkan ystävän arkkitehti Hilding Ekelundin piirustusten mukaan pääjulkisivultaan klassisistinen koulu- ja museorakennus, muilta osin 1960-luvun kouluarkkitehtuuria. Nelimarkka korjasi vaikutelmaa haluamaansa klassiseen suuntaan piirtämällä itse laajennusosan 1972–74. Museota laajennettiin vielä 1997 (Käpy ja Simo Paavilainen). Nelimarkka-museo on 1900-luvun lopulla viimeinen aluetaidemuseo.[33]
1960-luvun muita uusia museorakennuksia
Arkkitehtuurin käänne 1960-luvulla käynnisti keskustelun ammattikunnan sisällä. Nuoremman polven yksinkertaista ja anonyymiä rakentamista vaativille suunnittelijoille oli tärkeää muunneltavuus ja laajennettavuus. Esikuvana voi pitää saksalais-amerikkalaista arkkitehtiä Mies van der Rohea.[34] Betonin valupinnan ja rakenteiden näkyville jättämistä on kutsuttu myös betonibrutalismiksi. 1970-luvulla alkoi mittavampi vanhojen rakennusten muuttaminen museoiksi, mikä toi mukaan rakennussuojelukysymykset.[35]
18a Sibelius-museo js Mikkoau 2016 WLM 18b_Sibelius_MLR 18d Sibelius Hhö 2013
- Turun linnan korjaus ja suuri näyttelyhalli ullakolle (Erik / Carin Bryggman, 1961–87),
- Tornionjokilaakson maakuntamuseo, Tornio (Jouko V. Ylihannu, 1962, Matti Porkka, 1981),
- Tammisaaren museon näyttelyhalli (Ola Hansson, 1963),
- Emil Cedercreutzin museon ”Maahengen Temppeli” Harjavalta (Jonas / Mariana Cedercreutz, 1963–97),
- Didrichsenin taidemuseon näyttelysiipi Helsinki (Viljo Revell, 1965),
- Sibelius-museo (Woldemar Baeckman, 1968) Åbo Akademin puutarha-alueelle Turkuun,
- Pohjanmaan museon näyttelysiipi, Vaasa (Erik Kråkström, 1968),
- Helsingin taidemuseon Kluuvin galleria (Aarno Ruusuvuori, 1968),
- Ortodoksinen kirkkomuseo, kirkkokunnan Kuopion keskustalossa (Dag Englund, 1969),
- Yrjö Liipolan museo, Koski Tl (Eero Ponkala, 1970).
20_Didrichsen_MLR.jpg
Museo taidekokoelmalle - Meilahden taidemuseo, Helsinki (1967) ja Sara Hildénin taidemuseo, Tampere (1979)
Taiteen keräilijöille tärkeintä on ollut saada pysyvä paikka ja omalle kokoelmalle sopivat näyttelytilat.
Helsingin kaupungin taidemuseo nousi Meilahteen Tamminiementielle 1967. Kaupunki osti Meilahden kartanon kantatilan vanhat rakennukset, jolloin kypsyi ajatus yhdistää tuolloin innostusta herättänyt ja komiteatyöskentelyn tuloksena määritelty ”monitoiminnallinen taidekeskus” tähän.[36] Kun kaupungilla oli jo tiedossa useita lahjoituksia, päätettiin kunnollisten näyttelytilojen rakentamisesta omia kokoelmia varten, samalla kun otettiin vastaan Leonard ja Katarina Bäcksbackan perikunnan lahjoittama vanhemman kotimaisen taiteen kokoelma.
Kokonaista museota – taidekeskuksesta puhumattakaan – ei kuitenkaan tehty, vaan kyseessä on yksistään näyttelyrakennus. Suunnittelutehtävä annettiin kaupungin arkkitehdeistä Tero Aaltoselle.
22_Meilahti2_MLR 23_Meilahtipohja_MLR. jpg
Tanskalaisen Louisianan taidemuseon vaikutusta voi nähdä näyttelyrakennuksen paikanvalinnassa ja itse rakennuksessa. Tontti on loivassa rinteessä, joka avautuu merenlahdelle. Perikunnan edustajalla Ingjald Bäcksbackalla oli mielessään ripustussuunnitelma ja kokoelman vaatimat juoksumetrit, jotka sitten ”juostiin” maastossa arkkitehdin ja mittanauhan kanssa. Alvar Aalto -museota käytiin katsomassa. Intendentti Marja-Liisa Bell laski muiden tilojen tarpeen ja toimi neuvonantajana.
Kartanon lehtevään puistoon 1976 valmistunut valkoisella kahitiilellä verhottu rakennus (1 560 m²) on yksinkertainen. Sisäänkäynti on itäpäädyssä, jossa on avara klinkkerilattiainen aula kartanon puistoon avautuvine lasiseinineen. Aulaa oli mahdollista käyttää myös luentosalina. Näyttelytilat koostuvat viidestä suorakaiteen muotoisesta salista, jotka noudattavat huoneesta huoneeseen -mallia silmukkana, mistä muodostuu niin sanottu ”pakkokierto”. Ensimmäinen sali on suurin ja muita korkeampi. Kunkin salin keskivaiheilla on vastakkain lyhyet seinäkkeet, jotka jakavat ne ikään kuin kahteen pienempään huoneeseen.
Salien väliset ovet on sijoitettu kauas toisistaan, tukemaan johdonmukaista kiertoa. Saleihin päivänvaloa tulee kattoikkunoiden välityksellä seinänvieriä kiertävien valokuilujen kautta. Lattioita peitti aluksi sisalmatto ja seinät oli verhottu tärkätyllä juuttikankaalla, kuten taidegallerioissa oli tapana. Salien alla oli varasto ja ikkunallisia teknisiä tiloja.[37]
Tilat toimivat hyvin ja Meilahden museo oli pitkään kaupungin parhaita näyttelypaikkoja. Kahvilaa rakennukseen ei tullut, sitä varten korjattiin viereinen kartanon puinen päärakennus 1800-luvun alkupuolelta. Puistossa on ollut näytteillä veistoksia ja siellä on järjestetty taidetapahtumia, mutta suunniteltuja laajennuksia ei toteutettu.
24_Hilden ilmakuva Teuvo Kanerva 25_Hildenleikkaus_MLR.jpg
Sara Hildénin 1979 avattu taidemuseo perustuu niin kotimaiselle kuin ulkomaiselle modernismille ja nykytaiteelle. Ensimmäiset teokset Hildén osti vuoden 1961 Ars-näyttelystä. Hän lahjoitti kokoelmansa nimeään kantavalle säätiölle, joka solmi 1975 sopimuksen Tampereen kaupungin kanssa uuden museon rakentamisesta ja teosten pysyvästä sijoittamisesta sinne. Kaupunki vastaa museon ylläpidosta ja säätiö kartuttaa kokoelmaa.
Paikkaa valittaessa Hildén mieltyi rakenteilla olleen Särkänniemen huvipuiston läheisyydessä sijainneen vanhan huvilan Näsijärvelle avautuvaan rinnetonttiin ja rakennusten jäännöksiin, jotka loivat perustan veistospuistolle. Tärkein lähtökohta oli juuri tämä paikka, jota voi luonnehtia jopa välimerelliseksi.
Tavoite oli sama kuin Helsingissä: rakentaa yksityiselle kokoelmalle ihanteelliset olosuhteet. Suunnittelijaksi valittiin tamperelaisen Pekka Ilveskosken arkkitehtitoimisto, joka konsultoi myös Meilahden taidemuseon suunnitellutta Tero Aaltosta. Paikan lisäksi lähtökohdiksi otettiin näyttelysalien tarkoituksenmukainen liittyminen toisiinsa sekä teoksille sopivan valaistuksen luominen. Maalaussalit ovat ikkunattomia, mutta tärkeitä näköalaikkunoita on salien liitoskohdissa. Arkkitehtuuriin suoraan vaikuttanut ero oli siinä, että nykytaiteen teokset ovat suurikokoisempia, väreiltään kirkkaampia, usein ääntä, valoa ja liikettä sisältäviä.
Hildén oli luonut kokoelmansa yhteistyössä Ateneumin asiantuntijoiden kanssa ja tutustunut matkoillaan keskeisiin eurooppalaisiin museoihin. Amerikkalaisia museoita puolestaan tunsi suunnittelussa mukana ollut Asko Rasinperä, joka oli opiskellut Yhdysvalloissa. Ulkomaisia rakennuksia, joihin on viitattu, ovat Nizzan lähelle 1964 valmistunut yksityinen nykytaiteen museo Fondation Maeght (Josep Lluis Sert), etenkin veistospuiston osalta, Berliinin Brücke-Museum (Werner Düttmann, 1967) sekä ”monoliittista ekspressionismia” edustava Emerson Museum of Art (I. M. Pei, Syracuse N. Y., 1968).
Kaksikerroksisen rakennuksen pohjakaava edustaa neliapila-tyyppiä (ydin ja satelliitit). Sisäänkäynti on suoraan toiseen kerrokseen, jossa on toimistosiipi, luentosali ja maalausgalleriat. Keskisalista laskeudutaan pohjakerroksen veistostiloihin, joissa on välitasanne, ja edelleen kahvioon ulkoterasseineen. Kaikki näyttelytilat ovat luonteeltaan avoimia ja niissä voi liikkua vapaasti, haluamassaan järjestyksessä. Alakerrassa on järven suuntaan, pohjoiseen ja länteen suuret ikkunaseinät.
26a_Hilden_SJE 26_Hilden_HHö 26b_Hilden_SJE
Ulkoseinät ovat vaalearouheista pesubetonia, sisällä kantavat seinät on jätetty betonivalun jälkeen käsittelemättä. Näyttelyseinät on verhottu valkeaksi maalatulla kangaspinnoitteella, ja tilojen jakamiseksi pienempiin osiin on käytössä ollut irtoseiniä. Lattiat ovat kivilaattaa. Rakennus oli valmistuessaan maan suurin taidemuseo (2 500 brm²)[38]
Satakunnan kulttuurihistoriallinen museo, Pori (1973)
Porissa avattiin Satakunnan museon uudisrakennus 1973. Samana vuonna valmistui Alvar Aalto -museo Jyväskylään. Satakunnan museo oli perustettu 1888. Kokoelmat oli kerännyt ja järjestänyt opettaja Matti Kauppinen, joka toimi aktiivisesti myös Museoliitossa sen perustamisesta lähtien. Vaihtuvissa vuokratiloissa majaillut museo oli saanut pysyvämmän sijan monenlaisessa käytössä kuluneesta, rapatusta ”Iltaman talosta” vuonna 1903.
Ajatusta oikeasta museorakennuksesta pidettiin yllä, ja kopin otti vuonna 1958 museonjohtajaksi valittu Unto Salo, museon ensimmäinen ammattilainen ja tuolloin myös Museoliiton puheenjohtaja. Ennen Turun arkeologian professoriksi siirtymistä hänen viimeiseksi tehtäväkseen jäi uuden museon tilaohjelman laatiminen.[39] Tontiksi osoitettiin pieni kolmiomainen puisto Hallituskadun päästä, jokirannan ja oluttehtaan välistä, ja suunnittelijaksi valittiin kaupunginarkkitehti Olaf Küttner. Suojelukiistaa tai kilpailua ei näin vaikeasta paikasta syntynyt.
Sisäänkäynti on etelästä, Hallituskadun puolelta, josta vaaleanharmaa pesubetonipintainen rakennus (4 603 brm²) näyttäytyy ajan tavan mukaan yksikerroksisena. Aulasta oikealla on toimistosiipi kadulle suuntautuvine ikkunariveineen ja luentosaleineen, vasemmalla yhtenäinen ikkunaton tilapäisnäyttelytila (400 m²) ja suoraan edessä kahvila, josta avautuvat pohjoispuolen ainoat ikkunat Jazzkadun (Eteläranta) yli joelle.[40] Toimistotilojen takana on perusnäyttelytilojen suuri kolmikerroksinen blokki, johon päivänvaloa saadaan kaikkien kerrosten läpi ulottuvan kulmikkaan valopihan kautta.
28b_Satakunnan museo_MLR 28_SatMsisältä_MLR.jpg
Alun perin vaaleahkoja avaria sisätiloja jäsentävät lehtereitä kannattelevat pylväät ja niitä yhdistävät umpilaitaiset betoniportaikot. Ruskeasävyisissä näyttelytiloissa oli ritiläkatot ja kokolattiamatot. Sisustuksen suunnitteli Tauno Kivinen.
Kokonaisvaikutelmaltaan museo on sukua Kalifornian Berkeley-yliopiston taidemuseolle (Mario J. Ciampi, 1970), ja Amsterdamin saman aikainen Van Gogh -museo (Gerrit Rietvelt, 1973) tunnettiin.[41]
Big Bang – museot haluavat uudistua
Vuoden 1970 tienoilla alkoi kehityskulku, jota museologisessa kirjallisuudessa kutsutaan alkuräjähdykseksi. Se lähti liikkeelle ekomuseo-ajatteluna, joka pyrki häivyttämään rajat museon ja sitä ympäröivän yhteisön väliltä. Painopiste haluttiin siirtää laitosajattelusta aktiviteetteihin, iskusanoina ”elävä museo” ja pontimena mahdollisuus vaikuttaa tulevaisuuteen. Tavoitteena oli asettaa museo laajaan sosiokulttuuriseen yhteyteen, jossa luonnontiede, historia, taide ja teknologia muodostaisivat kokonaisuuden.[42]
Tähän vaiheeseen sijoittuu Museoviraston perustaminen 1972 museoinstituution kokonaisvaltaiseksi kehittämiseksi. Suomen museoliitto oli itsenäistynyt 1957 muuttamalla Kansallismuseosta omiin tiloihin Cygnaeuksenkadulle.
Ammatillistuminen vauhdittui, näyttelyitä järjestettiin 1970-luvulla ennätyksellinen määrä sekä museoissa että ulkopuolisissa tiloissa, yleisömäärät moninkertaistuivat. Erityisesti alettiin ottaa huomioon lapset: ensimmäiset museolehtorit aloittivat Ateneumissa ja Kansallismuseossa 1970-luvun alkuvuosina.
Näyttelysuunnittelusta tuli museoissa kriittinen tekijä. Suomen museoliitto ryhtyi järjestämään kursseja tästä tematiikasta. Teknisistä kysymyksistä, kuten museoiden murto- ja paloturvallisuudesta, esineistön oikeista säilytysolosuhteista ja rakennusten suojelusta, tuotettiin ohjekirjoja ja suosituksia. Erikoismuseokenttä alkoi hahmottua. Aika oli kypsä laajemmalle keskustelulle museorakennuksista.[43]
Museoarkkitehtuuriseminaari 1979
Museoliitto järjesti museoarkkitehtuuriseminaarin 26.–27.11.1979 Espoon Hanasaaressa. Sen aiheuttivat Porin taidemuseon, Helsingissä Taideteollisuusmuseon (Designmuseo) ja Sinebrychoffin taidemuseon avaamiset sekä satavuotiaan Ateneumin lähestyvä korjaus. Siitä oli käynnistetty hankesuunnittelu 1978 (Laiho – Pulkkinen – Raunio, toteutus 1985–91).
Seminaariin osallistui 140 henkeä. Esiteltäväksi koottiin kaikki tieto ja kokemukset, mitä siihen mennessä oli saatu uudistiloista ja vanhojen rakennusten korjaamisesta. Museoasiainsihteeri Jorma Heinonen oli paneutunut niin museoarkkitehtuurin historiaan ja estetiikkaan kuin viimeisimpään tekniikkaankin.[44] Hän esitteli Aallon Tallinnan taidemuseon nerokkaana pitämänsä ehdotuksen. Parinkymmenen vuoden aikana valmistuneita museohankkeita esiteltiin esimerkein.
Alueellinen museoverkosto syntyy – 1980-luvulla liki 200 uutta museota
Valtioneuvosto teki 1979 päätöksen alueellisen museoverkoston muodostamisesta. Sitä koskeva valtionavustuslaki säädettiin 1988. Vuonna 1992 säädettiin Museolaki ja asetus, jonka piiriin pääsivät kaikki ammatillisesti hoidetut museot.[45] Laskennallisena pohjana olivat henkilötyövuodet. Lakiin lisättiin museoiden yhteiskunnallinen tehtävä 1996.
Maakuntamuseot ja aluetaidemuseot nimettiin suurimpien kaupunkien olemassa olevien museoiden pohjalta vuosina 1980–1995. Erikoismuseokenttää vahvistettiin vielä muutamilla museoilla, jotta kaikille tärkeiksi katsotuille osa-alueille saatiin oma vastuumuseonsa, jotka vahvistettiin 1993–2010.
Uusia museoita oli toisen maailmansodan jälkeen perustettu noin 15-20 museon vuosivauhtia. Lakipiste saavutettiin 1980-luvulla, jolloin museoita syntyi kaikkiaan liki 200. Kasvu oli samanlaista kansainvälisestikin. Sitten seurasi nopea lasku niin, että viimeisellä vuosikymmenellä ennen vuosituhannen vaihdetta museoita perustettiin meillä enää parikymmentä.
Arkkitehtuurissa Oulun kouluksi kutsuttu postmoderni suuntaus tavoitteli elämyksellisyyttä.
Kaupunginmuseoiden ja kotiseututalojen rinnalla ovat paikallismuseot. Niihin kuuluvat historiallisten henkilöiden, valtiomiesten, kulttuuripersoonien ja urheilijoiden museoidut kodit, paikkakunnalle luonteenomaisten ammattien ja ilmiöiden museot sekä yksittäisten keräilijöiden moninaiset kokoelmat ja kohteet.[46]
27_Ainola_WLM 27b_Yli_laurosela_MV
Museo vanhassa rakennuksessa
”Vanhat rakennukset museokäytössä” oli Museoliiton museoarkkitehtuuriseminaarissa 1979 toisen pääpuhujan, Teknillisen korkeakoulun arkkitehtuurihistorian professori Henrik Liliuksen teema. Lilius puolusti voimakkaasti alkuperäisiä rakenteita ja kritisoi historiallisten rakennusten sisätilojen uudistamista. Liliuksen mielestä uuden käytön tarpeet eivät saisi kokonaan ohittaa rakennuksen omaa historiaa, vaan näiden välille pitäisi etsiä tasapaino. Keskustelu jatkui vilkkaana Ateneum-rakennuksen korjauksen alkaessa ja uudistamisen edetessä (1985-91).[47]
29_Pori_MLR.jpg
Henrik Liliuksen seminaarialustuksen taustalla olivat seuraavat silloin ajankohtaiset museohankkeet:
- Brobergska Samskolanin (Gustaf Nyström, 1894 / Olli Borg, 1978) muutos Taideteollisuusmuseoksi,
- Sinebrychoffin patriisitalon (Jean Wik, 1842 / Sirkka-Liisa Tarumaa, 1979) muuttaminen taidemuseoksi,
- Porin pakka- ja vaakahuoneen (C. J. von Heideken, 1858 / Kristian Gullichsen, 1979) muutos Maire Gullichsenin taidekokoelman tiloiksi.
Museo teollisuusrakennuksessa
Luontevimmin museoiksi on taipunut teollisuusarkkitehtuuri. Teollisuusrakennusten houkuttavuuteen vaikuttavat niiden avarat, vapaasti muunneltavat hallitilat. Teollisuustuotannosta tyhjeneviä tehtaita on otettu museokäyttöön satakunta. 1900-luvun loppua kohti teollisuusrakennusten ja kokonaisten alueiden käyttö kulttuuritiloina vielä lisääntyi.
30_Vapriikki Tiia Monto WLM 2017
- Riihimäen kaupungin vuonna 1975 hankkima, lasitehtaan 1910-luvulla valmistunut rakennus, josta Tapio Wirkkala suunnitteli Suomen lasimuseon (näyttely 1 762 m²),
- Vuonna 1898 perustettu Suomen rautatiemuseo muutti Helsingin asemalta Hyvinkäälle 1973–74,
- 1969 perustettu Tekniikan museo asettui vuodesta 1970 lähtien Helsingin vesilaitoksen sata vuotta vanhoihin tiloihin Vantaanjoen suulle.
- Kaapelitehdas Helsingissä (W.G. Palmqvist, 1939–1954) on 1990-luvun alusta ollut kaupungin omistama kiinteistöyhtiö. Entisen Nokian kaapelitehtaan suurimman hallin (2 700 m²) itäpäähän muuttivat 1990-luvun alussa Suomen Valokuvataiteen museo (perustettu 1969), Teatterimuseo (perustettu 1962) ja Hotelli- ja ravintolamuseo (perustettu 1971) päällekkäisiin tiloihin, joiden museotilat viimeisteltiin 2000.
- Tampellan tiloissa avattiin 1996 Tampereen museokeskus Vapriikki (14 000 m²) lukuisine museoineen.
- Hämeenlinnan taidemuseon (perustettu 1952) viisi rakennusta sisältyvät Verkatehtaan (1895) kokonaisuuteen, joka oli pääosin oppilaitoskäytössä 1980- ja 90-luvuilla, kunnes se päätettiin suunnitella kokonaisuutena erilaisia kulttuuripalveluita varten 2001 (avaus 2007).
- Lapuan patruunatehtaan (perustettu 1923) tiloihin on 1990-luvulta lähtien kasvanut Kulttuurikeskus Vanha Paukku, jossa on muun muassa useita museoita kuten tehtaanmuseo (perustettu 1993), taidemuseo (perustettu 1998) ja Pyhälahden valokuvaamomuseo.
Taidemuseo kulttuurikeskuksessa - Kemi (1977), Tornio (1985) ja Kouvola (1987)
Joidenkin kaupunkien uusiin kulttuurikeskuksiin tehtiin tilat museolle. Kemin taidemuseo sai pysyvät tilat jo kulttuurikeskuksen ensimmäisessä rakennusvaiheessa 1977 (Arkkitehtitoimisto Jan Söderlund) ja lopullisen paikkansa 1990, kun koko kulttuurikeskus valmistui. Kemin vuonna 1947 alkunsa saanut taidemuseo oli ensimmäinen aluemuseokokeiluun osallistunut, ja siitä tuli maakunnallinen taidemuseo vuonna 1981 toiminta-alueenaan koko Lapin lääni.
Taidemuseon osuus kulttuurikeskuksesta on vajaa kymmenes. Nykytaiteelle soveltuvaa näyttelytilaa on 551 m². Suoraviivaista punatiilistä rakennuskokonaisuutta jäsentävät nauhaikkunat ja eri tilojen korkeuserot. Sisätilojen suoraviivaisuuden murtaa museon näyttelytilan ja kirjaston välinen diagonaalinen kantava seinä. Valmistuessaan rakennus tarjosi tilat kaupunginkirjastolle, kaupunginteatterille, kauppaoppilaitokselle ja työväenopistolle, joilla on torin puolelta yhteinen sisäänkäynti kahviloineen, ravintoloineen ja kaksine auditorioineen.[48]
37_Kemisali_MLR 37b_Kemi_MLR
Torniolainen kauppaneuvos Veli Aine toivoi, että hänen kotimaista 1800- ja 1900-luvun taidetta sisältävä taidekokoelmansa tulisi esiin kotikaupungissa. Ajankohdalle tyypilliseen tapaan pyrittiin taidemuseo perustamaan ”kulttuurikeskukseen veden äärelle”. Siinä maakuntamuseon, taidemuseon ja kirjaston tilatarpeet yhdistyisivät. Tuloksena oli päätös laajentaa maakuntamuseota omalla tontillaan ja rakentaa taidemuseolle sekä kirjastolle uusi yhteinen toimitalo.
Taidemuseon vuonna 1979 sovittu toimintamalli oli sama kuin Sara Hildénin museossa: kaupunki vastasi rakennuksesta ja museon ylläpidosta, Aineen Kuvataidesäätiö kokoelmien kartuttamisesta. Vuonna 1985 valmistunut, Rajakartanoksi nimetty talo nousi aiemmin tornitaloille kaavaillulle tontille. Arkkitehdiksi valittiin paikallinen Matti Porkka, joka suunnitteli myös maakuntamuseon laajennuksen. Porkka ei ollut suunnitellut museotiloja, mutta osallistui museoarkkitehtuuriseminaariin ja tutustui Helsingin kaupungin taidemuseoon, Sara Hildénin taidemuseoon ja Lapinlahden taidemuseoon (Esa Koivuniemi ja Georg Bystroff, 1977).
Torniossa Aineen museon ja kirjaston rinnakkaiset Torikadun suuntaiset tilat ovat suunnilleen samankokoiset. Rakennusmassat ovat kuitenkin toisiinsa nähden hieman vinottain ja kummallakin on oma luonteensa. Julkisivut on muurattu valkoisesta kahitiilestä. Sen päällä on ikkunatonta museonäyttelyaluetta korostava pystysuuntainen hiekanruskea marmoriharkotus, kirjaston ikkunoissa vastaavasti ritiläverhous. Yhteinen sisäänkäynti on rakennusten välissä toisessa kerroksessa, kahvila ja auditorio museon puolella. Museokäytössä on 1 576 m².
Sisäseinät ovat valkoiset, portaat ja käytävät on päällystetty Lapin louhemarmorilla, kahvila ja näyttelytilat sisal-laattamatolla. Näyttelysaleja on viisi, ja niihin Aine halusi Helsingin Meilahden taidemuseon tapaisen pakkokierron, jotta kaikki teokset tulisivat nähdyiksi. Ulkona oli tilaa veistospuistolle. Veli Aine sai toiveensa toteutumaan ja toimi museolautakunnan ensimmäisenä puheenjohtajana.[49]
38_Kouvola_MLR
Kouvola-talon (kilpailu: Erkki Valovirta, 1982) kotimaiselle nykytaiteelle omistettu museo perustettiin 1986 ja avattiin 1987 ”koulutus- ja kulttuurikeskuksessa”. Taidemuseon (1 000 m²) lisäksi siinä oli konserttisali sekä musiikkiopiston, kansalaisopiston ja taideharrastajien tiloja, samoin kaupungin toimistoja.
Puistomaisessa ympäristössä on hiekanvaalea kaksikerroksinen postmoderni rakennuskokonaisuus, yhteisen sisäänkäynnin ympärille rypälemäisesti kiertyvine pohjakaavoineen ja tummine aumakattoineen. Kaupunkien monitoimitaloissa tilojen käyttäjät voivat vaihtua, museo yleensä jää ja laajenee.[50]
Taide- ja kulttuurihistoriallinen museo, Saarijärvi (1989)
Saarijärven museo (Laila Niemioja / Heikki Uusitalo, 1989) avattiin 1989 saarijärveläisen kuvanveistäjä Kain Tapperin tuotantoa esittelevällä näyttelyllä. Ajatus museosta konkretisoitui, kun saarijärveläissyntyinen Toivi Järvinen määräsi testamentissaan 1982 omaisuutensa käytettäväksi taidemuseon rakentamiseen. Museoon koottiin yhteen Toivi ja Osmo Järvisen 1900-luvun alun kotimaisen taiteen kokoelma, Saarijärven kaupungin omistamat teokset ja Saarijärvi-seuran kulttuurihistoriallinen esineistö.
Vuonna 1948 perustettu Saarijärvi-seura vaali Saarijärven ja sen lähialueiden taiteilijoiden tuotantoa ja kulttuuriperintöä. Keskeisessä roolissa oli Tapperien kotitalo Juhola ja neljän taiteilijaveljeksen, kuvanveistäjä Kain Tapperin, kirjailijoiden Harri Tapperin ja Marko Tapion sekä lavastaja Yrjö Tapperin elämä ja tuotanto.[51]
Helsingissä työuransa tehneiden Toivi ja Osmo Järvisen omakotitalon tontille rakennettiin vaaleasta tiilestä puhtaaksi muurattu rakennus (1 150 m²). Saarijärven museonjohtaja Kari Kotilainen laati tilaohjelman, ja Jyväskylän museoiden kollegat työskentelivät rakennustoimikunnassa, joka osallistui Museoliiton Saksan-matkalle 1987. Frankfurtissa huomioitiin Main-joen molemmille rannoille nouseva vanhaa ja uutta arkkitehtuuria yhdistävä Museumsufer ja amerikkalaisarkkitehti Richard Meierin suunnittelema taideteollisuusmuseo.[52]
Saarijärvellä sisäänkäynti on suoraan näyttelykerrokseen, sen alapuolella ovat työ- ja varastotilat sekä sisääntulopäädyssä aulakahvio terasseineen. Muuta korkeampi keskiosa – ”valkoinen kuutio” – klinkkerilattioineen ja komeine järvinäkymineen – on tarkoitettu taiteelle ja erikoisnäyttelyille, itäpään matalampi ”musta kuutio” kulttuurihistoriallisille kokoelmille.[53]
34_Saarijärvi_MLR
Muita uusia museoita 1980- ja 1990-luvuilla
- Hyvinkään taidemuseo Jussintorin liikekeskuksessa (Ilmo ja Raimo Valjakka, 1981),
- Ahvenanmaan museot ja kaupunginkirjasto, Maarianhamina (Helmer Stenros, 1981),
- Skärgårdsmuseet i Lappo (Folke Wikström, 1981),
- Tampereen taidemuseon maanalainen näyttelytila (Antti Ilveskoski, 1984),
- Etelä-Karjalan museon sijoittaminen 1700-luvun linnoitukseen (Lappeenrannan kaupunki, 1984, 1989),
- Villa Gyllenbergin näyttelysiipi Helsingin Kuusisaaressa (Ålander Packalen Korsström, 1985),
- Rovaniemen taidemuseo postiautovarikkoon (Juhani Pallasmaa, 1986),
- Hiihtomuseo, Lahden Urheilukeskus (Esko Hämäläinen, 1989),
- Suomen metsästysmuseo muutti Porvoosta Riihimäelle (Osmo Lappo, 1990),
- Oulun taidemuseo liimatehtaan kiinteistöön (Birger Federley 1922, Jorma Teppo, 1991),
- Kalevala-talo, Talvisotamuseo, Kuhmo (Heikki Kukkonen 1991/1994),
- Mobilia auto- ja tiemuseo, Kangasala (Lindqvist & Uosukainen, 1992–94),
- Aboa Vetus & Ars Nova, Rettigin palatsin laajennus (Frank Schauman, 1995),
- Salon taidemuseo Veturitallin uudisosa (Lauri Hollmén, 1998).
39_Hyvinkää_MLR.jpg 42b_Lappeenranta Et karj museo WLM
40_Gberg_MLR 42_Lahden hiihtomuseo HHö
Tiedekeskus Heureka, Vantaa (1989) ja Arktinen instituutti Arktikum, Rovaniemi (1992)
Museoiden painopisteet ovat siirtyneet tutkimuksen suuntaan ammatillisuuden ja resurssien lisääntymisen myötä. Voitaneen jo puhua tiedemuseoista taidemuseoiden rinnalla.
Tiedekeskus Heurekan rakentaminen Vantaan Tikkurilaan oli 1980-luvun saavutus (kilpailu: Heikkinen ja Komonen, 1985). Säätiöpohjainen Heureka avattiin yleisölle 1989. Juuret ovat Helsingin yliopistossa, idean esittivät professorit Tapio Markkanen, Hannu I. Miettinen ja Heikki Oja. Kutsukirje oli lähtenyt Helsingin, Espoon ja Vantaan kaupungeille, joista Vantaa tarttui mahdollisuuteen tarjoten tontin ja merkittävää rahoitusta.
43_Heureka_MLR
Tiedekeskukset ovat museoiden rinnakkaisilmiö. Tieteen popularisointi, pedagoginen ote ja elämyksellisyys ovat yhteisiä tavoitteita, pääasiallisena erona se, ettei tiedekeskuksilla ole omia kokoelmia vartioitavanaan. Yleisötiloiltaan tiedekeskus muistuttaa avointa museota, uutuutena planetaario. Vapaus näkyy rakennuksen ulkoasussa, jota avaruusaiheineen voitaneen pitää uutta kokeilevan wau-arkkitehtuurin ensiesiintymisenä meillä.
44_Arktikum_MLR
Ajatus Arktisesta instituutista ja museosta virisi 1970-luvulla Oulussa ja Rovaniemellä. Konkreettinen aloite tuli Euroopan Kulttuurisäätiön Suomen osastolta. Vuosina 1983–84 järjestettiin arktisille maille suunnattu arkkitehtuurikilpailu, johon tuli 184 ehdotusta. Toteutus sidottiin Suomen itsenäisyyden 75-vuotisjuhlintaan, ja siitä kasvoi kansallinen hanke. Valtion talousarvioon varattiin varoja vuodelle 1988. Rovaniemen kaupunki tuli toiseksi maksajaksi ehdolla, että Aallon Lappia-talossa sijainnut maakuntamuseo sai keskuksesta uudet tilat.
Rakennus valmistui 1992, siinä toimivat näyttelyineen Lapin maakuntamuseo sekä Lapin yliopiston Arktinen keskus. Voittaneen tanskalaisen Claus Bonderupin työryhmän ehdotus on yhdistelmä klassisen museorakennuksen osia uudella tavalla yhdisteltynä. Valmiin rakennuksen julkisivu kaupunkiin päin muistuttaa temppelin päätyä pylväikköineen, oven takaa avautuu valkoiseksi maalattu kaksikerroksinen moderni hallimainen tila. Sen keskikäytävää kattaa lasinen galleria, joka valaistuna putkena jatkuu ulos ja Ounasjoen törmään upotettuna rantaan saakka.
1990-luvun viimeiset valtakunnalliset erikoismuseot – Lusto Savonlinnaan (1994), Siida Inariin (1998) ja Sarka Loimaalle (2005)
Uusiksi vastuumuseoiksi 1990-luvulla määriteltiin metsä-, saamelais- ja maatalousmuseo. Maan ensimmäiset kaupunkien museot olivat syntyneet 1800-luvulla rannikkokaupunkeihin. Sen jälkeen museoita rakennettiin myös sisämaahan niin, että kaupunkien museot ylsivät myös Keski- ja Itä-Suomeen, kunnes lopulta kotiseutu- ja pitäjänmuseoiden tiheä verkosto kattoi koko maan.
Pohjois-Suomi ja Lappi olivat olleet aktiivisia 1970-luvulta lähtien, erityisesti taidemuseoiden osalta. Yliopistojen lisäksi kaupungit kunnostautuivat: Oulun ja Rovaniemen kaupunginjohtajat Matti Rossi ja Matti Pelttari johtivat Suomen museoliiton hallitusta vuoron perään. Museot ja tiedekeskukset alkoivat hakeutua yhteen, kun viimeisiä valtakunnallisia museoita perustettiin. Niistä päätettäessä hajautuspolitiikka oli voimissaan, lisäksi valintaa tukivat matkailunäkökohdat.
45_Lusto_MLR 45a_Lusto_SLJe
Suomen metsämuseo Lusto Savonlinnan Punkaharjulla on metsäalan ja metsäkulttuurin erikoismuseo, joka avattiin tervalla ja pellavaöljyllä kyllästetyllä lehtikuusilaudalla vuoratussa betonirakennuksessa 1994. Vuonna 1988 perustettu säätiö järjesti yhdessä maa- ja metsätalousministeriön ja Punkaharjun kunnan kanssa avoimen arkkitehtuurikilpailun Suomalaisen metsätietokeskuksen rakentamiseksi vuonna 1990. Kokoelman painopiste on metsäkoneissa. Näyttelyt kertovat ihmisen ja metsän välisestä vuorovaikutuksesta.
Arkkitehtikilpailuun tuli 103 ehdotusta, ja voittaneet arkkitehdit Rainer Mahlamäki ja Ilmari Lahdelma suunnittelivat ”suomalaista modernismia” edustavan rakennuksen metsämaisemaan. Harjulta museon sisäänkäynnille johtaa katettu silta. Päänäyttely on museon pyöreässä osassa, jonka kalusteet ovat kiinteä osa arkkitehtuuria. Nimi Lusto tulee näyttelytilan (1 500 m²) muodosta ja merkitsee puun vuosikasvua, mutta siinä voi nähdä muistuman antiikin pyörötemppelistä.
46_Siida Nemo bis WLM 46a_Siida Nemo bis WLM
Saamelaismuseo oli perustettu ulkomuseona Inariin 1959. Jonkin aikaa sen jälkeen oli julistettu suunnittelukilpailu Oulun yliopiston arkkitehtiosaston opiskelijoille. Voittaja valittiin jatkokehittelyn pohjaksi, mutta asia hautautui ja herätettiin henkiin 1984. Hanke alkoi rahoituksen puolesta toteutua, kun museoon yhdistettiin Metsähallituksen Ylä-Lapin luontokeskus. Juhani Pallasmaan suunnittelema näyttelyrakennus Siida (merkitsee saamelaiskylää) valmistui metsäiseen rinteeseen museoalueen reunassa olleen sorakuopan paikalle vuonna 1998.
Sisäänkäynti on pohjakerroksessa, josta pääkerrokseen noustaan loivaa ramppia pitkin. Rakennus on istutettu ”pienipiirteiseen maisemaan” sen muotoja seuraten. Runko on teräsbetonia ja terästä, julkisivut puuta. Rakennuksen keskelle on koko pituudelta avattu ”luonnonvalorailo”.
Rakennussuunnittelu tapahtui rinnakkain näyttelysuunnittelun kanssa. Johdantonäyttely esittelee pohjoisen luonnon ja kulttuurin kehitysvaiheita jääkaudesta tähän päivään. Näyttelytilat ovat yönsinisiä, muut tilat yleisväritykseltään valkoisia. Museosta tuli kokonaistaideteos, jossa tavoitteena oli ”yhdistää tieteellinen sisältö teatterin tai taidenäyttelyn kaltaiseen elämyksellisyyteen”. Esineiden ja kuvien taustalla on eri vuodenaikoja ja luonnontapahtumia kuvaava äänimaisema.[54]
Suomen maatalousmuseo Sarka Loimaalla on viimeinen 1990-luvulla alkunsa saanut erikoismuseo. Suomen maatalouskonemuseosäätiö perustettiin 1992. ”Suomalaisen maatalouden 3000-vuotisen tarinan” kertova museo avattiin 2005 (arkkitehti Sarlotta Narjus).
Uudelle vuosituhannelle siirryttyä järjestettiin arkkitehtuurikilpailu Kotkan Merikeskus Vellamosta vuonna 2004 ja rakennus avattiin 2008 (Arkkitehtitoimisto Lahdelma & Mahlamäki Oy).[55]
Nykytaiteen museo Kiasma, Helsinki (1998)
Keskustelu museoarkkitehtuurista alkoi 1960-luvun vaihteessa Helsingin keskustasuunnitelmasta. Siihen oli merkitty paikka museolle, ja tänne uusi rakennus liki 40 vuotta myöhemmin nousikin. Nykytaiteen museon perustamisvuonna 1990 ilmestyi amerikkalaisen taidehistorioitsijan Douglas Crimpin pamfletti Museon raunioilla, jossa tämä pohti museon roolia ja vastuita, erityisesti nykytaiteen määrittelyssä ja ohjailussa.
47_Kiasma_MLR.jpg 48_leikkaus_MLR.jpg
Nykytaiteen museon rakennushanke lähti rivakasti käyntiin, lamasta oli etua. Kaupungin rakennuskoneistolta loppuivat työt, joten tehtiin sopimus, jonka mukaan valtio tilasi työn kaupungilta ja rakennuksen valmistuttua maksoi sen luovuttamalla museotalon arvoa vastaavan määrän rakennusmaata toisaalta.
Pohjoismaiden ja Baltian arkkitehdeille suunnattu suunnittelukilpailu käytiin 1993. Lisäksi oli kutsuttu mukaan neljä kansainvälisesti tunnettua arkkitehtiä. Ehdotuksia tuli 516, joista voittajaksi nousi yhdysvaltalaisen Steven Hollin[56] ehdotus Chiasma (silmistä aivoihin johtavien näköhermojen risteys).
Ehdotusta laatiessaan Holl kävi Helsingissä. Hän asui museotontin viereisen Vaakuna-hotellin ylimmässä kerroksessa, josta tutkiskeli tonttia ja sitä ympäröivää kaupunkinäkymää. Myöhemmin hän tutustui suomalaiseen rakennusperintöön kuten Petäjäveden kirkkoon. Rakennustyön käynnistyttyä suunnittelun Suomen tukikohtana toimi arkkitehti Juhani Pallasmaan toimisto.
49b_Kiasma_Sakari Kiuru MV 49_Kiasma_Tirri MV
Arkkitehtuurikilpailun voittajasta syntyi kohu. Arkkitehdit pitivät tonttia ahtaana ja rakennusta mahdottomana, koska sitä ei voisi muuttaa tai laajentaa, mikä oli ollut ihanne. Syytettiin myös amerikkalaisuuden palvonnasta. Kovin vastustus tuli Mannerheimin ratsastajapatsaan suojelijoiden taholta. Patsas jäi paikalleen, ja Holl otti sen huomioon etsiessään muotoa, joka nivoisi yhteen ristiriitaisetkin elementit tonttia ympäröivässä rakennus- ja puistomaisemassa. Rakennus valmistui 1998. Se huipensi 1900-luvun jälkipuolen museorakentamisen.
Kiasman viisi kerrosta ovat toisiinsa nähden hieman limittäin ja kaarevien seinäpintojen vuoksi eri suuruisia. Museotilaa on 9 100 m². Runko on terästä, ja betoni kaartuu kauniisti. Ulkoseinät ja katto on päällystetty sinkki-, alumiini-, messinki- ja lasilevyillä, sisäpuoli on valkoinen. Pohjakerroksen yleisötiloissa on myös puuta ja voimakkaita värejä. Rakennus on avoimen ja suljetun tilan yhdistelmä. Holl pitää taloaan avoimena, koska siellä on portaikkoja, hissejä ja oviaukkoja, jotka mahdollistavat vapaan liikkumisen. Sisään tullessa avautuu näkymä talon läpi, sekä päästä päähän, että alhaalta ylös valokattoon saakka.
Portaikon sijasta museoon noustaan kaarevaa ramppia pitkin. Sen molemmin puolin seinien takana on huoneesta huoneeseen kuljettavia näyttelysaleja, ylimpänä kattoikkunoin varustettu muita korkeampi sali. Luonnonvalon käyttö on Hollille tärkeää, sen vuoksi molemmissa päädyissä sekä länsisivulla on isot panoraamaikkunat. Näyttelysalien seinät ovat valkeat, lattiat tummanharmaata betonia. Tekniikka on upotettu, eikä arkkitehtonisia elementtejä ole korostettu. Tavoitteena on tila, jossa katsoja voi kohdata teoksen häiriöttä.
Lopputulos on paikkaansa sopeutuva talo, jonka kaartuva harmaa ulkokuori on kuin kotilo tai simpukka, joka suojelee helmenhohtoista sisältöään: ulkoa pieneltä vaikuttava rakennus avautuu sisääntulijalle juhlavan avarana. Valkoisen tarkoitus on pyhittää taide. Amerikkalainen arkkitehtuurintutkija Victoria Newhouse kirjoitti jo ennen Kiasman valmistumista kirjassaan Towards a New Museum näkevänsä Kiasman ”pyhänä tilana”.[57]
Museorakennuksen ikuisuuskysymyksiä
Museorakentamisen rinnalla on laaja kysymys: millaista historiakäsitystä museot ylläpitävät, kenen tarinoita kertovat. Vaikka museorakennukset muuttuvat, museorakentamisessa on edelleen ratkaistava samoja kysymyksiä. Halutaanko uudisrakennus vai korjataanko jokin vanha. Halutaanko luonnonrauhaan vai kaupungin ytimeen. Miten rakennus suhteutuu sisältöönsä, miten ympäristöönsä. Painotetaanko pysyvää näyttelyä vai vaihtuvaa ohjelmistoa. Onko näyttelykierto avoin vai suljettu ja miksi niin on. Mikä on luonnonvalon ja keinovalon suhde. Tehdäänkö temppeli vai toivotaanko toria.
Kirjoittaja
Filosofian tohtori, dosentti, tietokirjailija Marja-Liisa Rönkkö on toiminut eri tehtävissä lukuisissa museoissa, kuten museonjohtajana Helsingin kaupunginmuseossa 1978–1990 ja ylijohtajana Valtion taidemuseossa 1990–2000. Artikkeli perustuu tekijän väitöskirjaan Louvren ja Louisianan perilliset. Suomalainen taidemuseo sekä artikkeleihin teoksissa Museologia tänään ja Suomen museohistoria.
Artikkeli on julkaistu 2020.
1940- ja 1950-lukujen uudet museorakennukset
Aktiivisesta toiminnasta huolimatta uudisrakennuksia nousi ennen 1960-lukua vain muutama.
- Ålands sjöfartsmuseum – Ahvenanmaan merenkulkumuseo, joka oli museon ja klubitalon yhdistelmä (Jonas Cedercreutz, 1949),
- Joensuun Karjala-taloon sijoitettu Pohjois-Karjalan museo (Einari Teräsvirta, 1954).
- Emil Cedercreutzin museon näyttelyhalli (Toivo Anttila, 1956)
Museo maatilan talousrakennuksessa – museo joka pitäjään
Erilaiset seurat ja yhdistykset olivat perustaneet museoita kotiseuduntutkimukseen liittyen jo 1900-luvun vaihteesta lähtien. Varsinainen buumi seurasi, kun Suomen kotiseutuliitto perustettiin 1949. Tavoitteena oli saada museo joka pitäjään, mikä liki onnistui 1950-luvun loppuun mennessä: maamme museoista puolet eli viitisen sataa kuuluu tähän ryhmään.
Suurin osa koostuu 1700- ja 1800-lukujen maalaistaloista pihapiireineen, jonne on saatettu siirtää rakennuksia myös muualta, kuin pieniksi ulkomuseoiksi. Sisustus on ollut vaihtelevaa ja käyttö moninaista, kokous- ja juhlatilaisuuksista aina työnäytöksiin ja kesäteattereihin saakka. Pari sataa on sijoitettu käytöstä pois jääneisiin, pitäjien ja kruunun puisiin tai kivisiin viljamakasiineihin, joista osaan on pystytty sijoittamaan oikeaoppinen,[17] pitäjän historiaa valaiseva näyttely.
Museo makasiinissa
Kokemäki-seuran maatalousmuseo kolmikerroksisessa harmaakivimakasiinissa oli ensimmäinen laatuaan, kun se avautui kirkonmäellä 1938. Makasiinin muuttamista museoksi avaa arkkitehti Toivo Anttila vuonna 1951 Museoliiton tiedotuslehdessä julkaisemassaan artikkelissa. Hän esitti, että jyvälaarien purkaminen riittäisi, ellei laareja voinut käyttää näyttelyseinäminä, ja valaistukseksi yleisvaloina tuttuja valkoisia pallolamppuja. Museoliiton runsaan neuvonnan tuloksena syntyi suuri joukko pieniä samankaltaisia museoita.[18]
07c_tampereen taidemuseo_MV
”Makasiinimuseoiden” eliittiä edustavat Tampereen (1931) ja Hämeenlinnan (1952) taidemuseot: kaksi C. L. Engelin allekirjoittamien piirustusten mukaan 1838–39 rakennettua kruununmakasiinia kaksikerroksisissa rakennuksissa. Niitä leimaavat näyttävät portaalit, pienikokoiset ikkunat ja nelilappeinen telttakatto, jonka huipulla on sisätiloihin päivänvaloa tuova lyhtymäinen rakennelma, lanterniini.
Hämeenlinnan vuonna 1952 avatun taidemuseon asema on poikkeuksellinen, sillä se perustui Viipurin taidemuseon kokoelmille ehdolla, että kaupunki antoi tilat. Viipurin kokoelmista syntyi Suomeen kaksi muutakin taidemuseota: Lahteen ja Lappeenrantaan.
Viimeisin makasiiniin perustettu museo lienee Savonlinnan maakuntamuseo, joka on vuonna 1984 saanut suojakseen Riihisaarella sijaitsevan E. B. Lohrmannin suunnitteleman punatiilisen kaksoismakasiinin vuodelta 1852.
Museo navetassa
Tyrvään seudun museo- ja kotiseutuyhdistyksen (perustettu 1932) uudisrakennushanke kariutui. Museokäyttöön saatiin 1951 Tyrvään pappilan 56 lehmän kivinavetta (suunnittelu: piirilääkäri Otto Stenbäck, 1890) Vammalan kauppalan (Sastamalan kaupunki) keskustassa.
Arkkitehti Toivo Anttila teki navetan muutospiirustukset, ja näyttely (600 m²) rakennettiin Museoliiton henkisellä ja aineellisella tuella. Esineistöstä haluttiin rakentaa kulttuurihistoriallinen kokonaisuus, selkeä kertomus paikkakunnan menneisyydestä. Museo avattiin elokuussa 1958 ympärivuotiseen käyttöön ja projekti esiteltiin Museoliiton vuosikirjassa.[19]
07a_Tyrvää_MLR
Tähän museorakennusryhmään kuuluvat muutkin maaseudulla käytöstä poistuneet kiviset talous- ja huoltorakennukset kuten tallit, maneesit, myllyt, meijerit, saunat, vesitornit, muuntamot ja paloasemat. Näille kivirakennuksille on tyypillistä, että niiden vanhat sisärakenteet on purettu kokonaan ja tilalle on rakennettu uudet museotilat.
Tukevatekoisissa kivirakennuksissa oli omana aikanaan säilytetty arvo-omaisuutta. Museokäytössä rakennuksissa ja museoesineissä tallentuivat esi-isien työ ja muistot. Museorakennuksina niillä on symboliarvo, joka kertoo sekä seudun vauraudesta että paikkakunnan kaupungistumisprosessista. Rakennukset ovat ympäristönsä vanhimpia. Sijaintiensa ansiosta ne ovat merkittävillä paikoilla ja määrittelevät lähiympäristöään.
Navettaan sijoitettuja museoita
- Pappilan navetta, Tyrvää,
- Emil Halosen museo Lapinlahti,
- Pedersörenejdens museum Pietarsaari,
- Önningebymuseum Ahvenanmaa,
- Arkeologiakeskus Untamala Laitila,
- Lepaan puutarhamuseo Hattula,
- Designmuseo Iittala,
- Etelä-Pohjanmaan maakuntamuseo Seinäjoki,
- Vilppulan museo.
07b_Et Pohj maakuntamuseo HHö
Taidemuseon prototyyppi syntyy
Tallinnan taidemuseon kutsukilpailu järjestettiin vuosina 1936–37. Arkkitehti Alvar Aallon modernistinen kilpailuehdotus esiteltiin tuoreeltaan yhdessä virolaisten voittajien kanssa Päevalehden etusivulla sekä Arkkitehti-lehdessä.[20] Aallon suunnitelma on Vanhankaupungin ja sataman väliseen puistoon vapaasti sijoitettu, ulkoasultaan yksinkertainen, valkeaksi rapattu, matala ja suoraviivainen rakennus.
Uutta oli sisätilan rikas ja herkkä jäsentely. Sen pohjakaava on ydin ja satelliitit -ratkaisu. Jo aulasta saa selkeän kuvan museon kokonaisuudesta. Aulasta on pääsy suoraan kaikkiin näyttelytiloihin, jotka kohoavat portaiden kytkeminä terassimaisesti – Aalto puhuu ”skala-motiivista”. Koko museon läpi on mahdollista kulkea myös johdonmukaisessa järjestyksessä. Pieni sisäpiha avautuu suoraan ympäröivään puistoon. Ylävalo on ratkaistu tiheään sijoitetuin heijastavin lasikartioin, joiden kautta valo jakautuu tasaisesti koko tilaan. Veistossaleissa on myös sivuvaloa antavat lasiseinät.[21]
Aalto loi perusidean museolle, joka on suunniteltu sekä kokoelmien että kävijän tarpeisiin. Kilpailuehdotuksen ratkaisu jäi elämään ihannemuseona, johon on toistuvasti viitattu. Muinaistieteellisen toimikunnan arkkitehti Heikki Havas esitteli sitä ”pohjoismaisen museoarkkitehtuurin edelläkävijänä” vuoden 1963 museopäivillä, jotka järjestettiin Aallon suunnittelemassa Jyväskylän uudessa museotalossa. Tallinnan toteutumaton ehdotus toimi kuin muistilistana uuden museorakennuksen suunnittelussa. Aalto toteutti ideoita myöhemmissä museosuunnitelmissaan.
08_Tallinna_MLR.jpg
Taidemuseot itsenäistyvät Ateneumin taidemuseon johdolla 1950- ja 60-luvuilla
Museoliitto oli perustettu 1923 kulttuurihistoriallisten museoiden yhteistyöelimeksi, mutta alusta lähtien keskusteluissa olivat mukana myös taide ja luonnontiede.[22] Taiteiden asema yhteiskunnallisessa vaikuttamisessa vahvistui 1960-luvulla. Taidemuseotasoisten näyttelytilojen määrä oli vuoteen 2000 mennessä noussut 80:een.
Yhteydenpidon taidemuseoiden kesken aloitti Ateneumin taidemuseon intendentti[23] Aune Lindström, joka kutsui vuonna 1953 koolle silloiset kymmenen taidemuseoita ylläpitävää tahoa.[24] Hän oli laatinut ja painattanut seikkaperäiset taidenäyttelyn ripustusohjeet. Lindström päivitti myös museon rakennusohjeet. Hän asetti tärkeimmäksi museon keskeisen sijainnin yhdyskunnassa. Lindströmin aikana alkoi Ateneumissa kansainvälisten Ars-näyttelyiden sarja, ensimmäinen yhdessä Nykytaide ry:n kanssa 1961.[25]
Helsinkiin valmistui vuonna 1948 järjestetyn ideakilpailun pohjalta ”keskusalueen asemakaavaehdotus” 1954. Ideakilpailun palkintolautakuntaan kuulunut Alvar Aalto kutsuttiin 1959 laatimaan keskustalle edelleenkehittämissuunitelma, joka kohdistui Eduskuntatalon ja Töölönlahden alueisiin. Vuonna 1961 julkistettu ehdotus piti sisällään lahden länsirantaa seurailevan rivin pylväillä seisovia, veteen kuvastuvia kulttuurirakennuksia, kuten kongressi- ja konserttitalon, oopperan, taidemuseon ja kirjaston.
Tästä alkoi kiivas museoväittely: uusi ”keskustaidemuseo” haluttiin Töölönlahden rannalle ja nykytaide irti Ateneumin suojista. Keskustelun aloitti vuonna 1960 perustettu Taide-lehti, joka esitteli niin kotimaisia kuin ulkomaisiakin uusia museorakennuksia. Tulevasta taidemuseosta käytettiinkin nimeä taidekeskus, jolla tarkoitettiin nykytaiteen, arkkitehtuurin ja taideteollisuuden yhdistävää museota.
Keskustelu tasaantui pitkäksi aikaa, kun purkamisuhan allakin ollut Ateneum jäi edelleen taidemuseotoiminnalle, mutta kiihtyi taas, kun museo valtiollistettiin 1990 ja sen alaisuuteen perustettiin Nykytaiteen museo.[26]
Museo yliopistokampuksen yhteydessä - Jyväskylän museot (1961, 1973 ja laajennus 1990)
Museoarkkitehtuuri siirtyi modernismiin viimeistään arkkitehti Alvar Aallon ensimmäisen museorakennuksen toteuduttua Jyväskylään vuonna 1961. Keski-Suomen museoyhdistys oli perustettu 1931, ja 1953 perustettiin sen taideosasto. Uudisrakennukseen tähdättiin alusta pitäen. Paikaksi osoitettiin Seminaarinmäen kampuksen jyrkähköllä etelärinteellä sijaitseva historiallinen Ruusupuisto. Museon johtaja Sirkka Valjakka laati tilaohjelman (3–4 kerrosta, 2000 m²), Alvar Aalto suunnitteli ja antoi pääpiirustukset lahjana.
Keski-Suomen museo (rakennettu 1959–61) on kolmikerroksinen ja pohjakaavaltaan vapaamuotoinen. Ulkoarkkitehtuurissa näkyy kerrosten terassimainen jäsentely. Keskikerroksen alkuperäisestä sisääntulosta ja aulasta päästiin kahvilaan, joka ulostyöntyvine pitkine terassiparvekkeineen avautui Jyväsjärven suuntaan. Perältä oli käynti kahteen isoon näyttelysaliin, kolmannessa kerroksessa oli pienempi, kattokorkeudeltaan vaihteleva ”taidehalli” ja luentosali, johon museoyhdistys oli saanut toivomansa Viipurin kirjaston tapaan aaltoilevan sälekaton. Pohjakerroksessa olivat työhuoneet, kirjasto, kokoelmatiloja sekä ulos avautuva pieni pylväshalli.
09_Keski-Suomi_MLR
Kaikki oli rapattu ja slammattu valkoiseksi, taidemuseon sisätilojen tunnusvärillä. Sisustus oli teetetty ja kalusteet hankittu Artekin kautta. Vaikutelma oli ilmava. Talonpoikaisesineitäkin kohdeltiin itsenäisinä taideteoksina. Näyttelyrakenteet olivat kevyitä siirrettäviä seinäkkeitä ja vitriinejä. Esitystapa oli omaksuttu Milanon Suomelle menestyksekkäistä muotoilutriennaaleista.[27]
Aallolle itselleen omistettu Alvar Aalto -museo perustettiin 1966. Sen suunnitelmaan yhdistettiin Keski-Suomen museon laajennussuunnitelma. Alvar Aalto -museo valmistui 1973 rinteen juureen, ja sieltä sai Aallon ystävä Jalo Sihtola ensimmäisen pysyvän sijan kotimaista ja ulkomaista taidetta sisältävälle kokoelmalleen. Keski-Suomen museon laajennus valmistui vasta 1990, jolloin sisäänkäynti ja luentosali siirtyivät pohjakerrokseen järven puolelle. Museoiden väliin varattiin mahdollisuus rakentaa yhdyskäytävä.
10_AAMpohja_MLR 11_AAMnäyttely_MLR.jpg
Alvar Aalto -museon kaksikerroksisen rakennuksen pohjakaava on vapaamuotoinen monikulmio. Sisääntulojulkisivu on ikkunaton ja muodostaa loivasti koveran kulman, jossa on kolmiosainen pronssiovi. Pohjakerroksessa on aula, kahvio, luentosali, kirjasto, toimistotilat ja tauluvarasto, toisessa kerroksessa 700 neliön suuruinen yhtenäinen näyttelytila, jota rytmittävät sileät valkoiset pylväät ja siirreltävät seinäkkeet. Seinät ovat molemmissa museoissa valkoiset, aulojen lattiat punaruskeaa tiiltä, näyttelytiloissa vaalean harmaata linoleumi- tai muovimattoa. Aalto-museon yläkerran taustana on ”revontuliseinä” muistona New Yorkin maailmannäyttelystä (1939).
Julkisivun tekstuuri on karhea: pohja on Arabian hallatiiltä, jonka päällä on tiheä posliinisauvoista rakennettu ”pystyrimoitus”. Pihan ulkovalaistus on Aallon suunnittelema, ja museoiden välissä virrannut puro päätyy istutusten ympäröimäksi kaskadilammikoksi. Kokonaisuus on Alvar Aallon museosuunnitelmien erilaisten elementtien kokoelma.[28]
”Louisiana-entusiasmi”[29]
Koko 1900-luvun jälkipuolen ajan suomalaisia innosti Kööpenhaminan lähellä Humlebaekissa kesällä 1958 avattu modernin taiteen museo Louisiana, jonka syntysanat lausui suurliikemies-keräilijä Knut W. Jensen 1945. Lähtökohta oli 1855 valmistunut kartano ja sitä ympäröivä merellinen kulttuurimaisema.
Louisianan taidemuseo on esimerkki orgaanisen kasvun museosta (Jørgen Bo ja Wilhelm Wohlert, 1956–91). Kuudessa vaiheessa rakennettu museo on sijoitettu maastoon niin, että maisema on säilynyt mahdollisimman koskemattomana. Ulkoapäin matalilta näyttävät rakennukset muodostavat nauhamaisen, osittain maanalaisen lenkin, jonka kiertämällä näkee koko näyttelyn (10 800 m²). Seinämateriaaleja ovat valkoinen tiili ja lasi, lattioissa klinkkeri ja katoissa mänty. Paviljonkeja yhdistävät läpinäkyvät lasikäytävät, joista avautuu näkymiä luontoon ja ympärillä levittäytyvään veistospuistoon.[30]
Museo taiteilijan tuotannolle - Wäinö Aaltosen museo, Turku (1967) ja Eero Nelimarkan museo, Alajärvi (1964)
Kuvanveistäjä Wäinö Aaltosen museo avattiin 1967. Muutamat yksityishenkilöt olivat vuonna 1940 ryhtyneet ostamaan Aaltosen töitä museon aikaansaamiseksi. Sijoituspaikaksi taiteilija ajatteli kotiaan Helsingin Kulosaaressa, toiset pitivät Tamperetta jo hänen ulkoilmamuseonaan, mutta kun Aaltonen aikoi muuttaa Turkuun, päätti kaupunki tarjota museolle paikkaa Turusta taiteilijan 70-vuotispäivänsä kunniaksi 1964.
Wäinö Aaltonen lupasi lahjoittaa ja tallettaa sovitut teokset sekä arkistomateriaalin, kaupunki lupasi rakentaa talon. Aaltonen edellytti, että hänet nimettäisiin kymmeneksi vuodeksi museon intendentiksi, ja mikäli hän sitä ennen kuolisi, hänen poikansa jatkaisi. Aluksi oli tarkoitus, että Wäinö Aaltonen olisi saanut työtilat rakennuksesta. Tontti osoitettiin Aurajoen rannasta, teatteritalon ja valtion virastotalon rintamaan. Aaltonen suunnitteli museon poikansa, Oulun yliopiston asemakaavaopin professori Matti Aaltosen toimiston kanssa. Yhteistyötä koordinoi Turun kaupunginarkkitehti A. S. Sandelin.[31]
13_WAMpohja_MLR 14_W Aaltonen_MLR 16_WAM veistossali Volker von Bonin
Arkkitehtisuunnittelun lähtökohtana on Alvar Aallon Tallinnan taidemuseon kilpailuehdotus (1936-37). Berliinissä rakenteilla ollut, arkkitehti Ludwig Mies van der Rohen suunnittelema Neue Nationalgalerie innoitti ajanmukaistamaan suunnittelua.
Vaalea suoraviivainen rakennus on ahtaalla rinnetontilla porrastetusti, ylimpänä kohoaa 11 metriä korkea veistossali. Sisääntulo jäsentyy ”aaltomaisesti”: terasseittain kohoaviin näyttelytiloihin (1 100 m²) siirrytään ulko-ovea vastapäätä lähteviä porrasaskelmia pitkin. Aulasta vasemmalla lasiseinän takana aukeaa sisäpiha veistoskoristeisine vesialtaineen.
Ensimmäinen suunnitelma oli lopputulosta modernimpi. Jykevän ulkoterassin lisäksi arkkitehdit olisivat halunneet julkisivuun betonielementtejä (Sibelius-museossa tämä toteutui) tai uurrettuja mineriittilevyjä. Tavoitteena oli luoda ”huomaamatonta, ekonomista arkkitehtuuria”.[32] Tilaajat halusivat arvokkaampaa: pääjulkisivuun käytettiin travertiinia ja sivuihin kalkkihiekkatiiltä sekä lattioihin klinkkerin sijasta kalkkikiveä. Eniten suunnittelua ohjasi veistoskokoelma, jonka laajuus oli tiedossa.
19_Nelimarkka_MLR
Nelimarkka-museo avattiin 1964. Hanke oli syntynyt taidemaalari Eero Nelimarkan toiveesta luoda taidekoulu, jota varten hän oli perustanut säätiön 1945. Vuonna 1961 ostettiin Alajärveltä Nelimarkan suvun vanha kantatila. Puretun navetan paikalle valmistui 1964 Nelimarkan ystävän arkkitehti Hilding Ekelundin piirustusten mukaan pääjulkisivultaan klassisistinen koulu- ja museorakennus, muilta osin 1960-luvun kouluarkkitehtuuria. Nelimarkka korjasi vaikutelmaa haluamaansa klassiseen suuntaan piirtämällä itse laajennusosan 1972–74. Museota laajennettiin vielä 1997 (Käpy ja Simo Paavilainen). Nelimarkka-museo on 1900-luvun lopulla viimeinen aluetaidemuseo.[33]
1960-luvun muita uusia museorakennuksia
Arkkitehtuurin käänne 1960-luvulla käynnisti keskustelun ammattikunnan sisällä. Nuoremman polven yksinkertaista ja anonyymiä rakentamista vaativille suunnittelijoille oli tärkeää muunneltavuus ja laajennettavuus. Esikuvana voi pitää saksalais-amerikkalaista arkkitehtiä Mies van der Rohea.[34] Betonin valupinnan ja rakenteiden näkyville jättämistä on kutsuttu myös betonibrutalismiksi. 1970-luvulla alkoi mittavampi vanhojen rakennusten muuttaminen museoiksi, mikä toi mukaan rakennussuojelukysymykset.[35]
18a Sibelius-museo js Mikkoau 2016 WLM 18b_Sibelius_MLR 18d Sibelius Hhö 2013
- Turun linnan korjaus ja suuri näyttelyhalli ullakolle (Erik / Carin Bryggman, 1961–87),
- Tornionjokilaakson maakuntamuseo, Tornio (Jouko V. Ylihannu, 1962, Matti Porkka, 1981),
- Tammisaaren museon näyttelyhalli (Ola Hansson, 1963),
- Emil Cedercreutzin museon ”Maahengen Temppeli” Harjavalta (Jonas / Mariana Cedercreutz, 1963–97),
- Didrichsenin taidemuseon näyttelysiipi Helsinki (Viljo Revell, 1965),
- Sibelius-museo (Woldemar Baeckman, 1968) Åbo Akademin puutarha-alueelle Turkuun,
- Pohjanmaan museon näyttelysiipi, Vaasa (Erik Kråkström, 1968),
- Helsingin taidemuseon Kluuvin galleria (Aarno Ruusuvuori, 1968),
- Ortodoksinen kirkkomuseo, kirkkokunnan Kuopion keskustalossa (Dag Englund, 1969),
- Yrjö Liipolan museo, Koski Tl (Eero Ponkala, 1970).
20_Didrichsen_MLR.jpg
Museo taidekokoelmalle - Meilahden taidemuseo, Helsinki (1967) ja Sara Hildénin taidemuseo, Tampere (1979)
Taiteen keräilijöille tärkeintä on ollut saada pysyvä paikka ja omalle kokoelmalle sopivat näyttelytilat.
Helsingin kaupungin taidemuseo nousi Meilahteen Tamminiementielle 1967. Kaupunki osti Meilahden kartanon kantatilan vanhat rakennukset, jolloin kypsyi ajatus yhdistää tuolloin innostusta herättänyt ja komiteatyöskentelyn tuloksena määritelty ”monitoiminnallinen taidekeskus” tähän.[36] Kun kaupungilla oli jo tiedossa useita lahjoituksia, päätettiin kunnollisten näyttelytilojen rakentamisesta omia kokoelmia varten, samalla kun otettiin vastaan Leonard ja Katarina Bäcksbackan perikunnan lahjoittama vanhemman kotimaisen taiteen kokoelma.
Kokonaista museota – taidekeskuksesta puhumattakaan – ei kuitenkaan tehty, vaan kyseessä on yksistään näyttelyrakennus. Suunnittelutehtävä annettiin kaupungin arkkitehdeistä Tero Aaltoselle.
22_Meilahti2_MLR 23_Meilahtipohja_MLR. jpg
Tanskalaisen Louisianan taidemuseon vaikutusta voi nähdä näyttelyrakennuksen paikanvalinnassa ja itse rakennuksessa. Tontti on loivassa rinteessä, joka avautuu merenlahdelle. Perikunnan edustajalla Ingjald Bäcksbackalla oli mielessään ripustussuunnitelma ja kokoelman vaatimat juoksumetrit, jotka sitten ”juostiin” maastossa arkkitehdin ja mittanauhan kanssa. Alvar Aalto -museota käytiin katsomassa. Intendentti Marja-Liisa Bell laski muiden tilojen tarpeen ja toimi neuvonantajana.
Kartanon lehtevään puistoon 1976 valmistunut valkoisella kahitiilellä verhottu rakennus (1 560 m²) on yksinkertainen. Sisäänkäynti on itäpäädyssä, jossa on avara klinkkerilattiainen aula kartanon puistoon avautuvine lasiseinineen. Aulaa oli mahdollista käyttää myös luentosalina. Näyttelytilat koostuvat viidestä suorakaiteen muotoisesta salista, jotka noudattavat huoneesta huoneeseen -mallia silmukkana, mistä muodostuu niin sanottu ”pakkokierto”. Ensimmäinen sali on suurin ja muita korkeampi. Kunkin salin keskivaiheilla on vastakkain lyhyet seinäkkeet, jotka jakavat ne ikään kuin kahteen pienempään huoneeseen.
Salien väliset ovet on sijoitettu kauas toisistaan, tukemaan johdonmukaista kiertoa. Saleihin päivänvaloa tulee kattoikkunoiden välityksellä seinänvieriä kiertävien valokuilujen kautta. Lattioita peitti aluksi sisalmatto ja seinät oli verhottu tärkätyllä juuttikankaalla, kuten taidegallerioissa oli tapana. Salien alla oli varasto ja ikkunallisia teknisiä tiloja.[37]
Tilat toimivat hyvin ja Meilahden museo oli pitkään kaupungin parhaita näyttelypaikkoja. Kahvilaa rakennukseen ei tullut, sitä varten korjattiin viereinen kartanon puinen päärakennus 1800-luvun alkupuolelta. Puistossa on ollut näytteillä veistoksia ja siellä on järjestetty taidetapahtumia, mutta suunniteltuja laajennuksia ei toteutettu.
24_Hilden ilmakuva Teuvo Kanerva 25_Hildenleikkaus_MLR.jpg
Sara Hildénin 1979 avattu taidemuseo perustuu niin kotimaiselle kuin ulkomaiselle modernismille ja nykytaiteelle. Ensimmäiset teokset Hildén osti vuoden 1961 Ars-näyttelystä. Hän lahjoitti kokoelmansa nimeään kantavalle säätiölle, joka solmi 1975 sopimuksen Tampereen kaupungin kanssa uuden museon rakentamisesta ja teosten pysyvästä sijoittamisesta sinne. Kaupunki vastaa museon ylläpidosta ja säätiö kartuttaa kokoelmaa.
Paikkaa valittaessa Hildén mieltyi rakenteilla olleen Särkänniemen huvipuiston läheisyydessä sijainneen vanhan huvilan Näsijärvelle avautuvaan rinnetonttiin ja rakennusten jäännöksiin, jotka loivat perustan veistospuistolle. Tärkein lähtökohta oli juuri tämä paikka, jota voi luonnehtia jopa välimerelliseksi.
Tavoite oli sama kuin Helsingissä: rakentaa yksityiselle kokoelmalle ihanteelliset olosuhteet. Suunnittelijaksi valittiin tamperelaisen Pekka Ilveskosken arkkitehtitoimisto, joka konsultoi myös Meilahden taidemuseon suunnitellutta Tero Aaltosta. Paikan lisäksi lähtökohdiksi otettiin näyttelysalien tarkoituksenmukainen liittyminen toisiinsa sekä teoksille sopivan valaistuksen luominen. Maalaussalit ovat ikkunattomia, mutta tärkeitä näköalaikkunoita on salien liitoskohdissa. Arkkitehtuuriin suoraan vaikuttanut ero oli siinä, että nykytaiteen teokset ovat suurikokoisempia, väreiltään kirkkaampia, usein ääntä, valoa ja liikettä sisältäviä.
Hildén oli luonut kokoelmansa yhteistyössä Ateneumin asiantuntijoiden kanssa ja tutustunut matkoillaan keskeisiin eurooppalaisiin museoihin. Amerikkalaisia museoita puolestaan tunsi suunnittelussa mukana ollut Asko Rasinperä, joka oli opiskellut Yhdysvalloissa. Ulkomaisia rakennuksia, joihin on viitattu, ovat Nizzan lähelle 1964 valmistunut yksityinen nykytaiteen museo Fondation Maeght (Josep Lluis Sert), etenkin veistospuiston osalta, Berliinin Brücke-Museum (Werner Düttmann, 1967) sekä ”monoliittista ekspressionismia” edustava Emerson Museum of Art (I. M. Pei, Syracuse N. Y., 1968).
Kaksikerroksisen rakennuksen pohjakaava edustaa neliapila-tyyppiä (ydin ja satelliitit). Sisäänkäynti on suoraan toiseen kerrokseen, jossa on toimistosiipi, luentosali ja maalausgalleriat. Keskisalista laskeudutaan pohjakerroksen veistostiloihin, joissa on välitasanne, ja edelleen kahvioon ulkoterasseineen. Kaikki näyttelytilat ovat luonteeltaan avoimia ja niissä voi liikkua vapaasti, haluamassaan järjestyksessä. Alakerrassa on järven suuntaan, pohjoiseen ja länteen suuret ikkunaseinät.
26a_Hilden_SJE 26_Hilden_HHö 26b_Hilden_SJE
Ulkoseinät ovat vaalearouheista pesubetonia, sisällä kantavat seinät on jätetty betonivalun jälkeen käsittelemättä. Näyttelyseinät on verhottu valkeaksi maalatulla kangaspinnoitteella, ja tilojen jakamiseksi pienempiin osiin on käytössä ollut irtoseiniä. Lattiat ovat kivilaattaa. Rakennus oli valmistuessaan maan suurin taidemuseo (2 500 brm²)[38]
Satakunnan kulttuurihistoriallinen museo, Pori (1973)
Porissa avattiin Satakunnan museon uudisrakennus 1973. Samana vuonna valmistui Alvar Aalto -museo Jyväskylään. Satakunnan museo oli perustettu 1888. Kokoelmat oli kerännyt ja järjestänyt opettaja Matti Kauppinen, joka toimi aktiivisesti myös Museoliitossa sen perustamisesta lähtien. Vaihtuvissa vuokratiloissa majaillut museo oli saanut pysyvämmän sijan monenlaisessa käytössä kuluneesta, rapatusta ”Iltaman talosta” vuonna 1903.
Ajatusta oikeasta museorakennuksesta pidettiin yllä, ja kopin otti vuonna 1958 museonjohtajaksi valittu Unto Salo, museon ensimmäinen ammattilainen ja tuolloin myös Museoliiton puheenjohtaja. Ennen Turun arkeologian professoriksi siirtymistä hänen viimeiseksi tehtäväkseen jäi uuden museon tilaohjelman laatiminen.[39] Tontiksi osoitettiin pieni kolmiomainen puisto Hallituskadun päästä, jokirannan ja oluttehtaan välistä, ja suunnittelijaksi valittiin kaupunginarkkitehti Olaf Küttner. Suojelukiistaa tai kilpailua ei näin vaikeasta paikasta syntynyt.
Sisäänkäynti on etelästä, Hallituskadun puolelta, josta vaaleanharmaa pesubetonipintainen rakennus (4 603 brm²) näyttäytyy ajan tavan mukaan yksikerroksisena. Aulasta oikealla on toimistosiipi kadulle suuntautuvine ikkunariveineen ja luentosaleineen, vasemmalla yhtenäinen ikkunaton tilapäisnäyttelytila (400 m²) ja suoraan edessä kahvila, josta avautuvat pohjoispuolen ainoat ikkunat Jazzkadun (Eteläranta) yli joelle.[40] Toimistotilojen takana on perusnäyttelytilojen suuri kolmikerroksinen blokki, johon päivänvaloa saadaan kaikkien kerrosten läpi ulottuvan kulmikkaan valopihan kautta.
28b_Satakunnan museo_MLR 28_SatMsisältä_MLR.jpg
Alun perin vaaleahkoja avaria sisätiloja jäsentävät lehtereitä kannattelevat pylväät ja niitä yhdistävät umpilaitaiset betoniportaikot. Ruskeasävyisissä näyttelytiloissa oli ritiläkatot ja kokolattiamatot. Sisustuksen suunnitteli Tauno Kivinen.
Kokonaisvaikutelmaltaan museo on sukua Kalifornian Berkeley-yliopiston taidemuseolle (Mario J. Ciampi, 1970), ja Amsterdamin saman aikainen Van Gogh -museo (Gerrit Rietvelt, 1973) tunnettiin.[41]
Big Bang – museot haluavat uudistua
Vuoden 1970 tienoilla alkoi kehityskulku, jota museologisessa kirjallisuudessa kutsutaan alkuräjähdykseksi. Se lähti liikkeelle ekomuseo-ajatteluna, joka pyrki häivyttämään rajat museon ja sitä ympäröivän yhteisön väliltä. Painopiste haluttiin siirtää laitosajattelusta aktiviteetteihin, iskusanoina ”elävä museo” ja pontimena mahdollisuus vaikuttaa tulevaisuuteen. Tavoitteena oli asettaa museo laajaan sosiokulttuuriseen yhteyteen, jossa luonnontiede, historia, taide ja teknologia muodostaisivat kokonaisuuden.[42]
Tähän vaiheeseen sijoittuu Museoviraston perustaminen 1972 museoinstituution kokonaisvaltaiseksi kehittämiseksi. Suomen museoliitto oli itsenäistynyt 1957 muuttamalla Kansallismuseosta omiin tiloihin Cygnaeuksenkadulle.
Ammatillistuminen vauhdittui, näyttelyitä järjestettiin 1970-luvulla ennätyksellinen määrä sekä museoissa että ulkopuolisissa tiloissa, yleisömäärät moninkertaistuivat. Erityisesti alettiin ottaa huomioon lapset: ensimmäiset museolehtorit aloittivat Ateneumissa ja Kansallismuseossa 1970-luvun alkuvuosina.
Näyttelysuunnittelusta tuli museoissa kriittinen tekijä. Suomen museoliitto ryhtyi järjestämään kursseja tästä tematiikasta. Teknisistä kysymyksistä, kuten museoiden murto- ja paloturvallisuudesta, esineistön oikeista säilytysolosuhteista ja rakennusten suojelusta, tuotettiin ohjekirjoja ja suosituksia. Erikoismuseokenttä alkoi hahmottua. Aika oli kypsä laajemmalle keskustelulle museorakennuksista.[43]
Museoarkkitehtuuriseminaari 1979
Museoliitto järjesti museoarkkitehtuuriseminaarin 26.–27.11.1979 Espoon Hanasaaressa. Sen aiheuttivat Porin taidemuseon, Helsingissä Taideteollisuusmuseon (Designmuseo) ja Sinebrychoffin taidemuseon avaamiset sekä satavuotiaan Ateneumin lähestyvä korjaus. Siitä oli käynnistetty hankesuunnittelu 1978 (Laiho – Pulkkinen – Raunio, toteutus 1985–91).
Seminaariin osallistui 140 henkeä. Esiteltäväksi koottiin kaikki tieto ja kokemukset, mitä siihen mennessä oli saatu uudistiloista ja vanhojen rakennusten korjaamisesta. Museoasiainsihteeri Jorma Heinonen oli paneutunut niin museoarkkitehtuurin historiaan ja estetiikkaan kuin viimeisimpään tekniikkaankin.[44] Hän esitteli Aallon Tallinnan taidemuseon nerokkaana pitämänsä ehdotuksen. Parinkymmenen vuoden aikana valmistuneita museohankkeita esiteltiin esimerkein.
Alueellinen museoverkosto syntyy – 1980-luvulla liki 200 uutta museota
Valtioneuvosto teki 1979 päätöksen alueellisen museoverkoston muodostamisesta. Sitä koskeva valtionavustuslaki säädettiin 1988. Vuonna 1992 säädettiin Museolaki ja asetus, jonka piiriin pääsivät kaikki ammatillisesti hoidetut museot.[45] Laskennallisena pohjana olivat henkilötyövuodet. Lakiin lisättiin museoiden yhteiskunnallinen tehtävä 1996.
Maakuntamuseot ja aluetaidemuseot nimettiin suurimpien kaupunkien olemassa olevien museoiden pohjalta vuosina 1980–1995. Erikoismuseokenttää vahvistettiin vielä muutamilla museoilla, jotta kaikille tärkeiksi katsotuille osa-alueille saatiin oma vastuumuseonsa, jotka vahvistettiin 1993–2010.
Uusia museoita oli toisen maailmansodan jälkeen perustettu noin 15-20 museon vuosivauhtia. Lakipiste saavutettiin 1980-luvulla, jolloin museoita syntyi kaikkiaan liki 200. Kasvu oli samanlaista kansainvälisestikin. Sitten seurasi nopea lasku niin, että viimeisellä vuosikymmenellä ennen vuosituhannen vaihdetta museoita perustettiin meillä enää parikymmentä.
Arkkitehtuurissa Oulun kouluksi kutsuttu postmoderni suuntaus tavoitteli elämyksellisyyttä.
Kaupunginmuseoiden ja kotiseututalojen rinnalla ovat paikallismuseot. Niihin kuuluvat historiallisten henkilöiden, valtiomiesten, kulttuuripersoonien ja urheilijoiden museoidut kodit, paikkakunnalle luonteenomaisten ammattien ja ilmiöiden museot sekä yksittäisten keräilijöiden moninaiset kokoelmat ja kohteet.[46]
27_Ainola_WLM 27b_Yli_laurosela_MV
Museo vanhassa rakennuksessa
”Vanhat rakennukset museokäytössä” oli Museoliiton museoarkkitehtuuriseminaarissa 1979 toisen pääpuhujan, Teknillisen korkeakoulun arkkitehtuurihistorian professori Henrik Liliuksen teema. Lilius puolusti voimakkaasti alkuperäisiä rakenteita ja kritisoi historiallisten rakennusten sisätilojen uudistamista. Liliuksen mielestä uuden käytön tarpeet eivät saisi kokonaan ohittaa rakennuksen omaa historiaa, vaan näiden välille pitäisi etsiä tasapaino. Keskustelu jatkui vilkkaana Ateneum-rakennuksen korjauksen alkaessa ja uudistamisen edetessä (1985-91).[47]
29_Pori_MLR.jpg
Henrik Liliuksen seminaarialustuksen taustalla olivat seuraavat silloin ajankohtaiset museohankkeet:
- Brobergska Samskolanin (Gustaf Nyström, 1894 / Olli Borg, 1978) muutos Taideteollisuusmuseoksi,
- Sinebrychoffin patriisitalon (Jean Wik, 1842 / Sirkka-Liisa Tarumaa, 1979) muuttaminen taidemuseoksi,
- Porin pakka- ja vaakahuoneen (C. J. von Heideken, 1858 / Kristian Gullichsen, 1979) muutos Maire Gullichsenin taidekokoelman tiloiksi.
Museo teollisuusrakennuksessa
Luontevimmin museoiksi on taipunut teollisuusarkkitehtuuri. Teollisuusrakennusten houkuttavuuteen vaikuttavat niiden avarat, vapaasti muunneltavat hallitilat. Teollisuustuotannosta tyhjeneviä tehtaita on otettu museokäyttöön satakunta. 1900-luvun loppua kohti teollisuusrakennusten ja kokonaisten alueiden käyttö kulttuuritiloina vielä lisääntyi.
30_Vapriikki Tiia Monto WLM 2017
- Riihimäen kaupungin vuonna 1975 hankkima, lasitehtaan 1910-luvulla valmistunut rakennus, josta Tapio Wirkkala suunnitteli Suomen lasimuseon (näyttely 1 762 m²),
- Vuonna 1898 perustettu Suomen rautatiemuseo muutti Helsingin asemalta Hyvinkäälle 1973–74,
- 1969 perustettu Tekniikan museo asettui vuodesta 1970 lähtien Helsingin vesilaitoksen sata vuotta vanhoihin tiloihin Vantaanjoen suulle.
- Kaapelitehdas Helsingissä (W.G. Palmqvist, 1939–1954) on 1990-luvun alusta ollut kaupungin omistama kiinteistöyhtiö. Entisen Nokian kaapelitehtaan suurimman hallin (2 700 m²) itäpäähän muuttivat 1990-luvun alussa Suomen Valokuvataiteen museo (perustettu 1969), Teatterimuseo (perustettu 1962) ja Hotelli- ja ravintolamuseo (perustettu 1971) päällekkäisiin tiloihin, joiden museotilat viimeisteltiin 2000.
- Tampellan tiloissa avattiin 1996 Tampereen museokeskus Vapriikki (14 000 m²) lukuisine museoineen.
- Hämeenlinnan taidemuseon (perustettu 1952) viisi rakennusta sisältyvät Verkatehtaan (1895) kokonaisuuteen, joka oli pääosin oppilaitoskäytössä 1980- ja 90-luvuilla, kunnes se päätettiin suunnitella kokonaisuutena erilaisia kulttuuripalveluita varten 2001 (avaus 2007).
- Lapuan patruunatehtaan (perustettu 1923) tiloihin on 1990-luvulta lähtien kasvanut Kulttuurikeskus Vanha Paukku, jossa on muun muassa useita museoita kuten tehtaanmuseo (perustettu 1993), taidemuseo (perustettu 1998) ja Pyhälahden valokuvaamomuseo.
Taidemuseo kulttuurikeskuksessa - Kemi (1977), Tornio (1985) ja Kouvola (1987)
Joidenkin kaupunkien uusiin kulttuurikeskuksiin tehtiin tilat museolle. Kemin taidemuseo sai pysyvät tilat jo kulttuurikeskuksen ensimmäisessä rakennusvaiheessa 1977 (Arkkitehtitoimisto Jan Söderlund) ja lopullisen paikkansa 1990, kun koko kulttuurikeskus valmistui. Kemin vuonna 1947 alkunsa saanut taidemuseo oli ensimmäinen aluemuseokokeiluun osallistunut, ja siitä tuli maakunnallinen taidemuseo vuonna 1981 toiminta-alueenaan koko Lapin lääni.
Taidemuseon osuus kulttuurikeskuksesta on vajaa kymmenes. Nykytaiteelle soveltuvaa näyttelytilaa on 551 m². Suoraviivaista punatiilistä rakennuskokonaisuutta jäsentävät nauhaikkunat ja eri tilojen korkeuserot. Sisätilojen suoraviivaisuuden murtaa museon näyttelytilan ja kirjaston välinen diagonaalinen kantava seinä. Valmistuessaan rakennus tarjosi tilat kaupunginkirjastolle, kaupunginteatterille, kauppaoppilaitokselle ja työväenopistolle, joilla on torin puolelta yhteinen sisäänkäynti kahviloineen, ravintoloineen ja kaksine auditorioineen.[48]
37_Kemisali_MLR 37b_Kemi_MLR
Torniolainen kauppaneuvos Veli Aine toivoi, että hänen kotimaista 1800- ja 1900-luvun taidetta sisältävä taidekokoelmansa tulisi esiin kotikaupungissa. Ajankohdalle tyypilliseen tapaan pyrittiin taidemuseo perustamaan ”kulttuurikeskukseen veden äärelle”. Siinä maakuntamuseon, taidemuseon ja kirjaston tilatarpeet yhdistyisivät. Tuloksena oli päätös laajentaa maakuntamuseota omalla tontillaan ja rakentaa taidemuseolle sekä kirjastolle uusi yhteinen toimitalo.
Taidemuseon vuonna 1979 sovittu toimintamalli oli sama kuin Sara Hildénin museossa: kaupunki vastasi rakennuksesta ja museon ylläpidosta, Aineen Kuvataidesäätiö kokoelmien kartuttamisesta. Vuonna 1985 valmistunut, Rajakartanoksi nimetty talo nousi aiemmin tornitaloille kaavaillulle tontille. Arkkitehdiksi valittiin paikallinen Matti Porkka, joka suunnitteli myös maakuntamuseon laajennuksen. Porkka ei ollut suunnitellut museotiloja, mutta osallistui museoarkkitehtuuriseminaariin ja tutustui Helsingin kaupungin taidemuseoon, Sara Hildénin taidemuseoon ja Lapinlahden taidemuseoon (Esa Koivuniemi ja Georg Bystroff, 1977).
Torniossa Aineen museon ja kirjaston rinnakkaiset Torikadun suuntaiset tilat ovat suunnilleen samankokoiset. Rakennusmassat ovat kuitenkin toisiinsa nähden hieman vinottain ja kummallakin on oma luonteensa. Julkisivut on muurattu valkoisesta kahitiilestä. Sen päällä on ikkunatonta museonäyttelyaluetta korostava pystysuuntainen hiekanruskea marmoriharkotus, kirjaston ikkunoissa vastaavasti ritiläverhous. Yhteinen sisäänkäynti on rakennusten välissä toisessa kerroksessa, kahvila ja auditorio museon puolella. Museokäytössä on 1 576 m².
Sisäseinät ovat valkoiset, portaat ja käytävät on päällystetty Lapin louhemarmorilla, kahvila ja näyttelytilat sisal-laattamatolla. Näyttelysaleja on viisi, ja niihin Aine halusi Helsingin Meilahden taidemuseon tapaisen pakkokierron, jotta kaikki teokset tulisivat nähdyiksi. Ulkona oli tilaa veistospuistolle. Veli Aine sai toiveensa toteutumaan ja toimi museolautakunnan ensimmäisenä puheenjohtajana.[49]
38_Kouvola_MLR
Kouvola-talon (kilpailu: Erkki Valovirta, 1982) kotimaiselle nykytaiteelle omistettu museo perustettiin 1986 ja avattiin 1987 ”koulutus- ja kulttuurikeskuksessa”. Taidemuseon (1 000 m²) lisäksi siinä oli konserttisali sekä musiikkiopiston, kansalaisopiston ja taideharrastajien tiloja, samoin kaupungin toimistoja.
Puistomaisessa ympäristössä on hiekanvaalea kaksikerroksinen postmoderni rakennuskokonaisuus, yhteisen sisäänkäynnin ympärille rypälemäisesti kiertyvine pohjakaavoineen ja tummine aumakattoineen. Kaupunkien monitoimitaloissa tilojen käyttäjät voivat vaihtua, museo yleensä jää ja laajenee.[50]
Taide- ja kulttuurihistoriallinen museo, Saarijärvi (1989)
Saarijärven museo (Laila Niemioja / Heikki Uusitalo, 1989) avattiin 1989 saarijärveläisen kuvanveistäjä Kain Tapperin tuotantoa esittelevällä näyttelyllä. Ajatus museosta konkretisoitui, kun saarijärveläissyntyinen Toivi Järvinen määräsi testamentissaan 1982 omaisuutensa käytettäväksi taidemuseon rakentamiseen. Museoon koottiin yhteen Toivi ja Osmo Järvisen 1900-luvun alun kotimaisen taiteen kokoelma, Saarijärven kaupungin omistamat teokset ja Saarijärvi-seuran kulttuurihistoriallinen esineistö.
Vuonna 1948 perustettu Saarijärvi-seura vaali Saarijärven ja sen lähialueiden taiteilijoiden tuotantoa ja kulttuuriperintöä. Keskeisessä roolissa oli Tapperien kotitalo Juhola ja neljän taiteilijaveljeksen, kuvanveistäjä Kain Tapperin, kirjailijoiden Harri Tapperin ja Marko Tapion sekä lavastaja Yrjö Tapperin elämä ja tuotanto.[51]
Helsingissä työuransa tehneiden Toivi ja Osmo Järvisen omakotitalon tontille rakennettiin vaaleasta tiilestä puhtaaksi muurattu rakennus (1 150 m²). Saarijärven museonjohtaja Kari Kotilainen laati tilaohjelman, ja Jyväskylän museoiden kollegat työskentelivät rakennustoimikunnassa, joka osallistui Museoliiton Saksan-matkalle 1987. Frankfurtissa huomioitiin Main-joen molemmille rannoille nouseva vanhaa ja uutta arkkitehtuuria yhdistävä Museumsufer ja amerikkalaisarkkitehti Richard Meierin suunnittelema taideteollisuusmuseo.[52]
Saarijärvellä sisäänkäynti on suoraan näyttelykerrokseen, sen alapuolella ovat työ- ja varastotilat sekä sisääntulopäädyssä aulakahvio terasseineen. Muuta korkeampi keskiosa – ”valkoinen kuutio” – klinkkerilattioineen ja komeine järvinäkymineen – on tarkoitettu taiteelle ja erikoisnäyttelyille, itäpään matalampi ”musta kuutio” kulttuurihistoriallisille kokoelmille.[53]
34_Saarijärvi_MLR
Muita uusia museoita 1980- ja 1990-luvuilla
- Hyvinkään taidemuseo Jussintorin liikekeskuksessa (Ilmo ja Raimo Valjakka, 1981),
- Ahvenanmaan museot ja kaupunginkirjasto, Maarianhamina (Helmer Stenros, 1981),
- Skärgårdsmuseet i Lappo (Folke Wikström, 1981),
- Tampereen taidemuseon maanalainen näyttelytila (Antti Ilveskoski, 1984),
- Etelä-Karjalan museon sijoittaminen 1700-luvun linnoitukseen (Lappeenrannan kaupunki, 1984, 1989),
- Villa Gyllenbergin näyttelysiipi Helsingin Kuusisaaressa (Ålander Packalen Korsström, 1985),
- Rovaniemen taidemuseo postiautovarikkoon (Juhani Pallasmaa, 1986),
- Hiihtomuseo, Lahden Urheilukeskus (Esko Hämäläinen, 1989),
- Suomen metsästysmuseo muutti Porvoosta Riihimäelle (Osmo Lappo, 1990),
- Oulun taidemuseo liimatehtaan kiinteistöön (Birger Federley 1922, Jorma Teppo, 1991),
- Kalevala-talo, Talvisotamuseo, Kuhmo (Heikki Kukkonen 1991/1994),
- Mobilia auto- ja tiemuseo, Kangasala (Lindqvist & Uosukainen, 1992–94),
- Aboa Vetus & Ars Nova, Rettigin palatsin laajennus (Frank Schauman, 1995),
- Salon taidemuseo Veturitallin uudisosa (Lauri Hollmén, 1998).
39_Hyvinkää_MLR.jpg 42b_Lappeenranta Et karj museo WLM
40_Gberg_MLR 42_Lahden hiihtomuseo HHö
Tiedekeskus Heureka, Vantaa (1989) ja Arktinen instituutti Arktikum, Rovaniemi (1992)
Museoiden painopisteet ovat siirtyneet tutkimuksen suuntaan ammatillisuuden ja resurssien lisääntymisen myötä. Voitaneen jo puhua tiedemuseoista taidemuseoiden rinnalla.
Tiedekeskus Heurekan rakentaminen Vantaan Tikkurilaan oli 1980-luvun saavutus (kilpailu: Heikkinen ja Komonen, 1985). Säätiöpohjainen Heureka avattiin yleisölle 1989. Juuret ovat Helsingin yliopistossa, idean esittivät professorit Tapio Markkanen, Hannu I. Miettinen ja Heikki Oja. Kutsukirje oli lähtenyt Helsingin, Espoon ja Vantaan kaupungeille, joista Vantaa tarttui mahdollisuuteen tarjoten tontin ja merkittävää rahoitusta.
43_Heureka_MLR
Tiedekeskukset ovat museoiden rinnakkaisilmiö. Tieteen popularisointi, pedagoginen ote ja elämyksellisyys ovat yhteisiä tavoitteita, pääasiallisena erona se, ettei tiedekeskuksilla ole omia kokoelmia vartioitavanaan. Yleisötiloiltaan tiedekeskus muistuttaa avointa museota, uutuutena planetaario. Vapaus näkyy rakennuksen ulkoasussa, jota avaruusaiheineen voitaneen pitää uutta kokeilevan wau-arkkitehtuurin ensiesiintymisenä meillä.
44_Arktikum_MLR
Ajatus Arktisesta instituutista ja museosta virisi 1970-luvulla Oulussa ja Rovaniemellä. Konkreettinen aloite tuli Euroopan Kulttuurisäätiön Suomen osastolta. Vuosina 1983–84 järjestettiin arktisille maille suunnattu arkkitehtuurikilpailu, johon tuli 184 ehdotusta. Toteutus sidottiin Suomen itsenäisyyden 75-vuotisjuhlintaan, ja siitä kasvoi kansallinen hanke. Valtion talousarvioon varattiin varoja vuodelle 1988. Rovaniemen kaupunki tuli toiseksi maksajaksi ehdolla, että Aallon Lappia-talossa sijainnut maakuntamuseo sai keskuksesta uudet tilat.
Rakennus valmistui 1992, siinä toimivat näyttelyineen Lapin maakuntamuseo sekä Lapin yliopiston Arktinen keskus. Voittaneen tanskalaisen Claus Bonderupin työryhmän ehdotus on yhdistelmä klassisen museorakennuksen osia uudella tavalla yhdisteltynä. Valmiin rakennuksen julkisivu kaupunkiin päin muistuttaa temppelin päätyä pylväikköineen, oven takaa avautuu valkoiseksi maalattu kaksikerroksinen moderni hallimainen tila. Sen keskikäytävää kattaa lasinen galleria, joka valaistuna putkena jatkuu ulos ja Ounasjoen törmään upotettuna rantaan saakka.
1990-luvun viimeiset valtakunnalliset erikoismuseot – Lusto Savonlinnaan (1994), Siida Inariin (1998) ja Sarka Loimaalle (2005)
Uusiksi vastuumuseoiksi 1990-luvulla määriteltiin metsä-, saamelais- ja maatalousmuseo. Maan ensimmäiset kaupunkien museot olivat syntyneet 1800-luvulla rannikkokaupunkeihin. Sen jälkeen museoita rakennettiin myös sisämaahan niin, että kaupunkien museot ylsivät myös Keski- ja Itä-Suomeen, kunnes lopulta kotiseutu- ja pitäjänmuseoiden tiheä verkosto kattoi koko maan.
Pohjois-Suomi ja Lappi olivat olleet aktiivisia 1970-luvulta lähtien, erityisesti taidemuseoiden osalta. Yliopistojen lisäksi kaupungit kunnostautuivat: Oulun ja Rovaniemen kaupunginjohtajat Matti Rossi ja Matti Pelttari johtivat Suomen museoliiton hallitusta vuoron perään. Museot ja tiedekeskukset alkoivat hakeutua yhteen, kun viimeisiä valtakunnallisia museoita perustettiin. Niistä päätettäessä hajautuspolitiikka oli voimissaan, lisäksi valintaa tukivat matkailunäkökohdat.
45_Lusto_MLR 45a_Lusto_SLJe
Suomen metsämuseo Lusto Savonlinnan Punkaharjulla on metsäalan ja metsäkulttuurin erikoismuseo, joka avattiin tervalla ja pellavaöljyllä kyllästetyllä lehtikuusilaudalla vuoratussa betonirakennuksessa 1994. Vuonna 1988 perustettu säätiö järjesti yhdessä maa- ja metsätalousministeriön ja Punkaharjun kunnan kanssa avoimen arkkitehtuurikilpailun Suomalaisen metsätietokeskuksen rakentamiseksi vuonna 1990. Kokoelman painopiste on metsäkoneissa. Näyttelyt kertovat ihmisen ja metsän välisestä vuorovaikutuksesta.
Arkkitehtikilpailuun tuli 103 ehdotusta, ja voittaneet arkkitehdit Rainer Mahlamäki ja Ilmari Lahdelma suunnittelivat ”suomalaista modernismia” edustavan rakennuksen metsämaisemaan. Harjulta museon sisäänkäynnille johtaa katettu silta. Päänäyttely on museon pyöreässä osassa, jonka kalusteet ovat kiinteä osa arkkitehtuuria. Nimi Lusto tulee näyttelytilan (1 500 m²) muodosta ja merkitsee puun vuosikasvua, mutta siinä voi nähdä muistuman antiikin pyörötemppelistä.
46_Siida Nemo bis WLM 46a_Siida Nemo bis WLM
Saamelaismuseo oli perustettu ulkomuseona Inariin 1959. Jonkin aikaa sen jälkeen oli julistettu suunnittelukilpailu Oulun yliopiston arkkitehtiosaston opiskelijoille. Voittaja valittiin jatkokehittelyn pohjaksi, mutta asia hautautui ja herätettiin henkiin 1984. Hanke alkoi rahoituksen puolesta toteutua, kun museoon yhdistettiin Metsähallituksen Ylä-Lapin luontokeskus. Juhani Pallasmaan suunnittelema näyttelyrakennus Siida (merkitsee saamelaiskylää) valmistui metsäiseen rinteeseen museoalueen reunassa olleen sorakuopan paikalle vuonna 1998.
Sisäänkäynti on pohjakerroksessa, josta pääkerrokseen noustaan loivaa ramppia pitkin. Rakennus on istutettu ”pienipiirteiseen maisemaan” sen muotoja seuraten. Runko on teräsbetonia ja terästä, julkisivut puuta. Rakennuksen keskelle on koko pituudelta avattu ”luonnonvalorailo”.
Rakennussuunnittelu tapahtui rinnakkain näyttelysuunnittelun kanssa. Johdantonäyttely esittelee pohjoisen luonnon ja kulttuurin kehitysvaiheita jääkaudesta tähän päivään. Näyttelytilat ovat yönsinisiä, muut tilat yleisväritykseltään valkoisia. Museosta tuli kokonaistaideteos, jossa tavoitteena oli ”yhdistää tieteellinen sisältö teatterin tai taidenäyttelyn kaltaiseen elämyksellisyyteen”. Esineiden ja kuvien taustalla on eri vuodenaikoja ja luonnontapahtumia kuvaava äänimaisema.[54]
Suomen maatalousmuseo Sarka Loimaalla on viimeinen 1990-luvulla alkunsa saanut erikoismuseo. Suomen maatalouskonemuseosäätiö perustettiin 1992. ”Suomalaisen maatalouden 3000-vuotisen tarinan” kertova museo avattiin 2005 (arkkitehti Sarlotta Narjus).
Uudelle vuosituhannelle siirryttyä järjestettiin arkkitehtuurikilpailu Kotkan Merikeskus Vellamosta vuonna 2004 ja rakennus avattiin 2008 (Arkkitehtitoimisto Lahdelma & Mahlamäki Oy).[55]
Nykytaiteen museo Kiasma, Helsinki (1998)
Keskustelu museoarkkitehtuurista alkoi 1960-luvun vaihteessa Helsingin keskustasuunnitelmasta. Siihen oli merkitty paikka museolle, ja tänne uusi rakennus liki 40 vuotta myöhemmin nousikin. Nykytaiteen museon perustamisvuonna 1990 ilmestyi amerikkalaisen taidehistorioitsijan Douglas Crimpin pamfletti Museon raunioilla, jossa tämä pohti museon roolia ja vastuita, erityisesti nykytaiteen määrittelyssä ja ohjailussa.
47_Kiasma_MLR.jpg 48_leikkaus_MLR.jpg
Nykytaiteen museon rakennushanke lähti rivakasti käyntiin, lamasta oli etua. Kaupungin rakennuskoneistolta loppuivat työt, joten tehtiin sopimus, jonka mukaan valtio tilasi työn kaupungilta ja rakennuksen valmistuttua maksoi sen luovuttamalla museotalon arvoa vastaavan määrän rakennusmaata toisaalta.
Pohjoismaiden ja Baltian arkkitehdeille suunnattu suunnittelukilpailu käytiin 1993. Lisäksi oli kutsuttu mukaan neljä kansainvälisesti tunnettua arkkitehtiä. Ehdotuksia tuli 516, joista voittajaksi nousi yhdysvaltalaisen Steven Hollin[56] ehdotus Chiasma (silmistä aivoihin johtavien näköhermojen risteys).
Ehdotusta laatiessaan Holl kävi Helsingissä. Hän asui museotontin viereisen Vaakuna-hotellin ylimmässä kerroksessa, josta tutkiskeli tonttia ja sitä ympäröivää kaupunkinäkymää. Myöhemmin hän tutustui suomalaiseen rakennusperintöön kuten Petäjäveden kirkkoon. Rakennustyön käynnistyttyä suunnittelun Suomen tukikohtana toimi arkkitehti Juhani Pallasmaan toimisto.
49b_Kiasma_Sakari Kiuru MV 49_Kiasma_Tirri MV
Arkkitehtuurikilpailun voittajasta syntyi kohu. Arkkitehdit pitivät tonttia ahtaana ja rakennusta mahdottomana, koska sitä ei voisi muuttaa tai laajentaa, mikä oli ollut ihanne. Syytettiin myös amerikkalaisuuden palvonnasta. Kovin vastustus tuli Mannerheimin ratsastajapatsaan suojelijoiden taholta. Patsas jäi paikalleen, ja Holl otti sen huomioon etsiessään muotoa, joka nivoisi yhteen ristiriitaisetkin elementit tonttia ympäröivässä rakennus- ja puistomaisemassa. Rakennus valmistui 1998. Se huipensi 1900-luvun jälkipuolen museorakentamisen.
Kiasman viisi kerrosta ovat toisiinsa nähden hieman limittäin ja kaarevien seinäpintojen vuoksi eri suuruisia. Museotilaa on 9 100 m². Runko on terästä, ja betoni kaartuu kauniisti. Ulkoseinät ja katto on päällystetty sinkki-, alumiini-, messinki- ja lasilevyillä, sisäpuoli on valkoinen. Pohjakerroksen yleisötiloissa on myös puuta ja voimakkaita värejä. Rakennus on avoimen ja suljetun tilan yhdistelmä. Holl pitää taloaan avoimena, koska siellä on portaikkoja, hissejä ja oviaukkoja, jotka mahdollistavat vapaan liikkumisen. Sisään tullessa avautuu näkymä talon läpi, sekä päästä päähän, että alhaalta ylös valokattoon saakka.
Portaikon sijasta museoon noustaan kaarevaa ramppia pitkin. Sen molemmin puolin seinien takana on huoneesta huoneeseen kuljettavia näyttelysaleja, ylimpänä kattoikkunoin varustettu muita korkeampi sali. Luonnonvalon käyttö on Hollille tärkeää, sen vuoksi molemmissa päädyissä sekä länsisivulla on isot panoraamaikkunat. Näyttelysalien seinät ovat valkeat, lattiat tummanharmaata betonia. Tekniikka on upotettu, eikä arkkitehtonisia elementtejä ole korostettu. Tavoitteena on tila, jossa katsoja voi kohdata teoksen häiriöttä.
Lopputulos on paikkaansa sopeutuva talo, jonka kaartuva harmaa ulkokuori on kuin kotilo tai simpukka, joka suojelee helmenhohtoista sisältöään: ulkoa pieneltä vaikuttava rakennus avautuu sisääntulijalle juhlavan avarana. Valkoisen tarkoitus on pyhittää taide. Amerikkalainen arkkitehtuurintutkija Victoria Newhouse kirjoitti jo ennen Kiasman valmistumista kirjassaan Towards a New Museum näkevänsä Kiasman ”pyhänä tilana”.[57]
Museorakennuksen ikuisuuskysymyksiä
Museorakentamisen rinnalla on laaja kysymys: millaista historiakäsitystä museot ylläpitävät, kenen tarinoita kertovat. Vaikka museorakennukset muuttuvat, museorakentamisessa on edelleen ratkaistava samoja kysymyksiä. Halutaanko uudisrakennus vai korjataanko jokin vanha. Halutaanko luonnonrauhaan vai kaupungin ytimeen. Miten rakennus suhteutuu sisältöönsä, miten ympäristöönsä. Painotetaanko pysyvää näyttelyä vai vaihtuvaa ohjelmistoa. Onko näyttelykierto avoin vai suljettu ja miksi niin on. Mikä on luonnonvalon ja keinovalon suhde. Tehdäänkö temppeli vai toivotaanko toria.
Kirjoittaja
Filosofian tohtori, dosentti, tietokirjailija Marja-Liisa Rönkkö on toiminut eri tehtävissä lukuisissa museoissa, kuten museonjohtajana Helsingin kaupunginmuseossa 1978–1990 ja ylijohtajana Valtion taidemuseossa 1990–2000. Artikkeli perustuu tekijän väitöskirjaan Louvren ja Louisianan perilliset. Suomalainen taidemuseo sekä artikkeleihin teoksissa Museologia tänään ja Suomen museohistoria.
Artikkeli on julkaistu 2020.
Museo maatilan talousrakennuksessa – museo joka pitäjään
Erilaiset seurat ja yhdistykset olivat perustaneet museoita kotiseuduntutkimukseen liittyen jo 1900-luvun vaihteesta lähtien. Varsinainen buumi seurasi, kun Suomen kotiseutuliitto perustettiin 1949. Tavoitteena oli saada museo joka pitäjään, mikä liki onnistui 1950-luvun loppuun mennessä: maamme museoista puolet eli viitisen sataa kuuluu tähän ryhmään.
Suurin osa koostuu 1700- ja 1800-lukujen maalaistaloista pihapiireineen, jonne on saatettu siirtää rakennuksia myös muualta, kuin pieniksi ulkomuseoiksi. Sisustus on ollut vaihtelevaa ja käyttö moninaista, kokous- ja juhlatilaisuuksista aina työnäytöksiin ja kesäteattereihin saakka. Pari sataa on sijoitettu käytöstä pois jääneisiin, pitäjien ja kruunun puisiin tai kivisiin viljamakasiineihin, joista osaan on pystytty sijoittamaan oikeaoppinen,[17] pitäjän historiaa valaiseva näyttely.
Museo makasiinissa
Kokemäki-seuran maatalousmuseo kolmikerroksisessa harmaakivimakasiinissa oli ensimmäinen laatuaan, kun se avautui kirkonmäellä 1938. Makasiinin muuttamista museoksi avaa arkkitehti Toivo Anttila vuonna 1951 Museoliiton tiedotuslehdessä julkaisemassaan artikkelissa. Hän esitti, että jyvälaarien purkaminen riittäisi, ellei laareja voinut käyttää näyttelyseinäminä, ja valaistukseksi yleisvaloina tuttuja valkoisia pallolamppuja. Museoliiton runsaan neuvonnan tuloksena syntyi suuri joukko pieniä samankaltaisia museoita.[18]
07c_tampereen taidemuseo_MV
”Makasiinimuseoiden” eliittiä edustavat Tampereen (1931) ja Hämeenlinnan (1952) taidemuseot: kaksi C. L. Engelin allekirjoittamien piirustusten mukaan 1838–39 rakennettua kruununmakasiinia kaksikerroksisissa rakennuksissa. Niitä leimaavat näyttävät portaalit, pienikokoiset ikkunat ja nelilappeinen telttakatto, jonka huipulla on sisätiloihin päivänvaloa tuova lyhtymäinen rakennelma, lanterniini.
Hämeenlinnan vuonna 1952 avatun taidemuseon asema on poikkeuksellinen, sillä se perustui Viipurin taidemuseon kokoelmille ehdolla, että kaupunki antoi tilat. Viipurin kokoelmista syntyi Suomeen kaksi muutakin taidemuseota: Lahteen ja Lappeenrantaan.
Viimeisin makasiiniin perustettu museo lienee Savonlinnan maakuntamuseo, joka on vuonna 1984 saanut suojakseen Riihisaarella sijaitsevan E. B. Lohrmannin suunnitteleman punatiilisen kaksoismakasiinin vuodelta 1852.
Museo navetassa
Tyrvään seudun museo- ja kotiseutuyhdistyksen (perustettu 1932) uudisrakennushanke kariutui. Museokäyttöön saatiin 1951 Tyrvään pappilan 56 lehmän kivinavetta (suunnittelu: piirilääkäri Otto Stenbäck, 1890) Vammalan kauppalan (Sastamalan kaupunki) keskustassa.
Arkkitehti Toivo Anttila teki navetan muutospiirustukset, ja näyttely (600 m²) rakennettiin Museoliiton henkisellä ja aineellisella tuella. Esineistöstä haluttiin rakentaa kulttuurihistoriallinen kokonaisuus, selkeä kertomus paikkakunnan menneisyydestä. Museo avattiin elokuussa 1958 ympärivuotiseen käyttöön ja projekti esiteltiin Museoliiton vuosikirjassa.[19]
07a_Tyrvää_MLR
Tähän museorakennusryhmään kuuluvat muutkin maaseudulla käytöstä poistuneet kiviset talous- ja huoltorakennukset kuten tallit, maneesit, myllyt, meijerit, saunat, vesitornit, muuntamot ja paloasemat. Näille kivirakennuksille on tyypillistä, että niiden vanhat sisärakenteet on purettu kokonaan ja tilalle on rakennettu uudet museotilat.
Tukevatekoisissa kivirakennuksissa oli omana aikanaan säilytetty arvo-omaisuutta. Museokäytössä rakennuksissa ja museoesineissä tallentuivat esi-isien työ ja muistot. Museorakennuksina niillä on symboliarvo, joka kertoo sekä seudun vauraudesta että paikkakunnan kaupungistumisprosessista. Rakennukset ovat ympäristönsä vanhimpia. Sijaintiensa ansiosta ne ovat merkittävillä paikoilla ja määrittelevät lähiympäristöään.
Navettaan sijoitettuja museoita
- Pappilan navetta, Tyrvää,
- Emil Halosen museo Lapinlahti,
- Pedersörenejdens museum Pietarsaari,
- Önningebymuseum Ahvenanmaa,
- Arkeologiakeskus Untamala Laitila,
- Lepaan puutarhamuseo Hattula,
- Designmuseo Iittala,
- Etelä-Pohjanmaan maakuntamuseo Seinäjoki,
- Vilppulan museo.
07b_Et Pohj maakuntamuseo HHö
Taidemuseon prototyyppi syntyy
Tallinnan taidemuseon kutsukilpailu järjestettiin vuosina 1936–37. Arkkitehti Alvar Aallon modernistinen kilpailuehdotus esiteltiin tuoreeltaan yhdessä virolaisten voittajien kanssa Päevalehden etusivulla sekä Arkkitehti-lehdessä.[20] Aallon suunnitelma on Vanhankaupungin ja sataman väliseen puistoon vapaasti sijoitettu, ulkoasultaan yksinkertainen, valkeaksi rapattu, matala ja suoraviivainen rakennus.
Uutta oli sisätilan rikas ja herkkä jäsentely. Sen pohjakaava on ydin ja satelliitit -ratkaisu. Jo aulasta saa selkeän kuvan museon kokonaisuudesta. Aulasta on pääsy suoraan kaikkiin näyttelytiloihin, jotka kohoavat portaiden kytkeminä terassimaisesti – Aalto puhuu ”skala-motiivista”. Koko museon läpi on mahdollista kulkea myös johdonmukaisessa järjestyksessä. Pieni sisäpiha avautuu suoraan ympäröivään puistoon. Ylävalo on ratkaistu tiheään sijoitetuin heijastavin lasikartioin, joiden kautta valo jakautuu tasaisesti koko tilaan. Veistossaleissa on myös sivuvaloa antavat lasiseinät.[21]
Aalto loi perusidean museolle, joka on suunniteltu sekä kokoelmien että kävijän tarpeisiin. Kilpailuehdotuksen ratkaisu jäi elämään ihannemuseona, johon on toistuvasti viitattu. Muinaistieteellisen toimikunnan arkkitehti Heikki Havas esitteli sitä ”pohjoismaisen museoarkkitehtuurin edelläkävijänä” vuoden 1963 museopäivillä, jotka järjestettiin Aallon suunnittelemassa Jyväskylän uudessa museotalossa. Tallinnan toteutumaton ehdotus toimi kuin muistilistana uuden museorakennuksen suunnittelussa. Aalto toteutti ideoita myöhemmissä museosuunnitelmissaan.
08_Tallinna_MLR.jpg
Taidemuseot itsenäistyvät Ateneumin taidemuseon johdolla 1950- ja 60-luvuilla
Museoliitto oli perustettu 1923 kulttuurihistoriallisten museoiden yhteistyöelimeksi, mutta alusta lähtien keskusteluissa olivat mukana myös taide ja luonnontiede.[22] Taiteiden asema yhteiskunnallisessa vaikuttamisessa vahvistui 1960-luvulla. Taidemuseotasoisten näyttelytilojen määrä oli vuoteen 2000 mennessä noussut 80:een.
Yhteydenpidon taidemuseoiden kesken aloitti Ateneumin taidemuseon intendentti[23] Aune Lindström, joka kutsui vuonna 1953 koolle silloiset kymmenen taidemuseoita ylläpitävää tahoa.[24] Hän oli laatinut ja painattanut seikkaperäiset taidenäyttelyn ripustusohjeet. Lindström päivitti myös museon rakennusohjeet. Hän asetti tärkeimmäksi museon keskeisen sijainnin yhdyskunnassa. Lindströmin aikana alkoi Ateneumissa kansainvälisten Ars-näyttelyiden sarja, ensimmäinen yhdessä Nykytaide ry:n kanssa 1961.[25]
Helsinkiin valmistui vuonna 1948 järjestetyn ideakilpailun pohjalta ”keskusalueen asemakaavaehdotus” 1954. Ideakilpailun palkintolautakuntaan kuulunut Alvar Aalto kutsuttiin 1959 laatimaan keskustalle edelleenkehittämissuunitelma, joka kohdistui Eduskuntatalon ja Töölönlahden alueisiin. Vuonna 1961 julkistettu ehdotus piti sisällään lahden länsirantaa seurailevan rivin pylväillä seisovia, veteen kuvastuvia kulttuurirakennuksia, kuten kongressi- ja konserttitalon, oopperan, taidemuseon ja kirjaston.
Tästä alkoi kiivas museoväittely: uusi ”keskustaidemuseo” haluttiin Töölönlahden rannalle ja nykytaide irti Ateneumin suojista. Keskustelun aloitti vuonna 1960 perustettu Taide-lehti, joka esitteli niin kotimaisia kuin ulkomaisiakin uusia museorakennuksia. Tulevasta taidemuseosta käytettiinkin nimeä taidekeskus, jolla tarkoitettiin nykytaiteen, arkkitehtuurin ja taideteollisuuden yhdistävää museota.
Keskustelu tasaantui pitkäksi aikaa, kun purkamisuhan allakin ollut Ateneum jäi edelleen taidemuseotoiminnalle, mutta kiihtyi taas, kun museo valtiollistettiin 1990 ja sen alaisuuteen perustettiin Nykytaiteen museo.[26]
Museo yliopistokampuksen yhteydessä - Jyväskylän museot (1961, 1973 ja laajennus 1990)
Museoarkkitehtuuri siirtyi modernismiin viimeistään arkkitehti Alvar Aallon ensimmäisen museorakennuksen toteuduttua Jyväskylään vuonna 1961. Keski-Suomen museoyhdistys oli perustettu 1931, ja 1953 perustettiin sen taideosasto. Uudisrakennukseen tähdättiin alusta pitäen. Paikaksi osoitettiin Seminaarinmäen kampuksen jyrkähköllä etelärinteellä sijaitseva historiallinen Ruusupuisto. Museon johtaja Sirkka Valjakka laati tilaohjelman (3–4 kerrosta, 2000 m²), Alvar Aalto suunnitteli ja antoi pääpiirustukset lahjana.
Keski-Suomen museo (rakennettu 1959–61) on kolmikerroksinen ja pohjakaavaltaan vapaamuotoinen. Ulkoarkkitehtuurissa näkyy kerrosten terassimainen jäsentely. Keskikerroksen alkuperäisestä sisääntulosta ja aulasta päästiin kahvilaan, joka ulostyöntyvine pitkine terassiparvekkeineen avautui Jyväsjärven suuntaan. Perältä oli käynti kahteen isoon näyttelysaliin, kolmannessa kerroksessa oli pienempi, kattokorkeudeltaan vaihteleva ”taidehalli” ja luentosali, johon museoyhdistys oli saanut toivomansa Viipurin kirjaston tapaan aaltoilevan sälekaton. Pohjakerroksessa olivat työhuoneet, kirjasto, kokoelmatiloja sekä ulos avautuva pieni pylväshalli.
09_Keski-Suomi_MLR
Kaikki oli rapattu ja slammattu valkoiseksi, taidemuseon sisätilojen tunnusvärillä. Sisustus oli teetetty ja kalusteet hankittu Artekin kautta. Vaikutelma oli ilmava. Talonpoikaisesineitäkin kohdeltiin itsenäisinä taideteoksina. Näyttelyrakenteet olivat kevyitä siirrettäviä seinäkkeitä ja vitriinejä. Esitystapa oli omaksuttu Milanon Suomelle menestyksekkäistä muotoilutriennaaleista.[27]
Aallolle itselleen omistettu Alvar Aalto -museo perustettiin 1966. Sen suunnitelmaan yhdistettiin Keski-Suomen museon laajennussuunnitelma. Alvar Aalto -museo valmistui 1973 rinteen juureen, ja sieltä sai Aallon ystävä Jalo Sihtola ensimmäisen pysyvän sijan kotimaista ja ulkomaista taidetta sisältävälle kokoelmalleen. Keski-Suomen museon laajennus valmistui vasta 1990, jolloin sisäänkäynti ja luentosali siirtyivät pohjakerrokseen järven puolelle. Museoiden väliin varattiin mahdollisuus rakentaa yhdyskäytävä.
10_AAMpohja_MLR 11_AAMnäyttely_MLR.jpg
Alvar Aalto -museon kaksikerroksisen rakennuksen pohjakaava on vapaamuotoinen monikulmio. Sisääntulojulkisivu on ikkunaton ja muodostaa loivasti koveran kulman, jossa on kolmiosainen pronssiovi. Pohjakerroksessa on aula, kahvio, luentosali, kirjasto, toimistotilat ja tauluvarasto, toisessa kerroksessa 700 neliön suuruinen yhtenäinen näyttelytila, jota rytmittävät sileät valkoiset pylväät ja siirreltävät seinäkkeet. Seinät ovat molemmissa museoissa valkoiset, aulojen lattiat punaruskeaa tiiltä, näyttelytiloissa vaalean harmaata linoleumi- tai muovimattoa. Aalto-museon yläkerran taustana on ”revontuliseinä” muistona New Yorkin maailmannäyttelystä (1939).
Julkisivun tekstuuri on karhea: pohja on Arabian hallatiiltä, jonka päällä on tiheä posliinisauvoista rakennettu ”pystyrimoitus”. Pihan ulkovalaistus on Aallon suunnittelema, ja museoiden välissä virrannut puro päätyy istutusten ympäröimäksi kaskadilammikoksi. Kokonaisuus on Alvar Aallon museosuunnitelmien erilaisten elementtien kokoelma.[28]
”Louisiana-entusiasmi”[29]
Koko 1900-luvun jälkipuolen ajan suomalaisia innosti Kööpenhaminan lähellä Humlebaekissa kesällä 1958 avattu modernin taiteen museo Louisiana, jonka syntysanat lausui suurliikemies-keräilijä Knut W. Jensen 1945. Lähtökohta oli 1855 valmistunut kartano ja sitä ympäröivä merellinen kulttuurimaisema.
Louisianan taidemuseo on esimerkki orgaanisen kasvun museosta (Jørgen Bo ja Wilhelm Wohlert, 1956–91). Kuudessa vaiheessa rakennettu museo on sijoitettu maastoon niin, että maisema on säilynyt mahdollisimman koskemattomana. Ulkoapäin matalilta näyttävät rakennukset muodostavat nauhamaisen, osittain maanalaisen lenkin, jonka kiertämällä näkee koko näyttelyn (10 800 m²). Seinämateriaaleja ovat valkoinen tiili ja lasi, lattioissa klinkkeri ja katoissa mänty. Paviljonkeja yhdistävät läpinäkyvät lasikäytävät, joista avautuu näkymiä luontoon ja ympärillä levittäytyvään veistospuistoon.[30]
Museo taiteilijan tuotannolle - Wäinö Aaltosen museo, Turku (1967) ja Eero Nelimarkan museo, Alajärvi (1964)
Kuvanveistäjä Wäinö Aaltosen museo avattiin 1967. Muutamat yksityishenkilöt olivat vuonna 1940 ryhtyneet ostamaan Aaltosen töitä museon aikaansaamiseksi. Sijoituspaikaksi taiteilija ajatteli kotiaan Helsingin Kulosaaressa, toiset pitivät Tamperetta jo hänen ulkoilmamuseonaan, mutta kun Aaltonen aikoi muuttaa Turkuun, päätti kaupunki tarjota museolle paikkaa Turusta taiteilijan 70-vuotispäivänsä kunniaksi 1964.
Wäinö Aaltonen lupasi lahjoittaa ja tallettaa sovitut teokset sekä arkistomateriaalin, kaupunki lupasi rakentaa talon. Aaltonen edellytti, että hänet nimettäisiin kymmeneksi vuodeksi museon intendentiksi, ja mikäli hän sitä ennen kuolisi, hänen poikansa jatkaisi. Aluksi oli tarkoitus, että Wäinö Aaltonen olisi saanut työtilat rakennuksesta. Tontti osoitettiin Aurajoen rannasta, teatteritalon ja valtion virastotalon rintamaan. Aaltonen suunnitteli museon poikansa, Oulun yliopiston asemakaavaopin professori Matti Aaltosen toimiston kanssa. Yhteistyötä koordinoi Turun kaupunginarkkitehti A. S. Sandelin.[31]
13_WAMpohja_MLR 14_W Aaltonen_MLR 16_WAM veistossali Volker von Bonin
Arkkitehtisuunnittelun lähtökohtana on Alvar Aallon Tallinnan taidemuseon kilpailuehdotus (1936-37). Berliinissä rakenteilla ollut, arkkitehti Ludwig Mies van der Rohen suunnittelema Neue Nationalgalerie innoitti ajanmukaistamaan suunnittelua.
Vaalea suoraviivainen rakennus on ahtaalla rinnetontilla porrastetusti, ylimpänä kohoaa 11 metriä korkea veistossali. Sisääntulo jäsentyy ”aaltomaisesti”: terasseittain kohoaviin näyttelytiloihin (1 100 m²) siirrytään ulko-ovea vastapäätä lähteviä porrasaskelmia pitkin. Aulasta vasemmalla lasiseinän takana aukeaa sisäpiha veistoskoristeisine vesialtaineen.
Ensimmäinen suunnitelma oli lopputulosta modernimpi. Jykevän ulkoterassin lisäksi arkkitehdit olisivat halunneet julkisivuun betonielementtejä (Sibelius-museossa tämä toteutui) tai uurrettuja mineriittilevyjä. Tavoitteena oli luoda ”huomaamatonta, ekonomista arkkitehtuuria”.[32] Tilaajat halusivat arvokkaampaa: pääjulkisivuun käytettiin travertiinia ja sivuihin kalkkihiekkatiiltä sekä lattioihin klinkkerin sijasta kalkkikiveä. Eniten suunnittelua ohjasi veistoskokoelma, jonka laajuus oli tiedossa.
19_Nelimarkka_MLR
Nelimarkka-museo avattiin 1964. Hanke oli syntynyt taidemaalari Eero Nelimarkan toiveesta luoda taidekoulu, jota varten hän oli perustanut säätiön 1945. Vuonna 1961 ostettiin Alajärveltä Nelimarkan suvun vanha kantatila. Puretun navetan paikalle valmistui 1964 Nelimarkan ystävän arkkitehti Hilding Ekelundin piirustusten mukaan pääjulkisivultaan klassisistinen koulu- ja museorakennus, muilta osin 1960-luvun kouluarkkitehtuuria. Nelimarkka korjasi vaikutelmaa haluamaansa klassiseen suuntaan piirtämällä itse laajennusosan 1972–74. Museota laajennettiin vielä 1997 (Käpy ja Simo Paavilainen). Nelimarkka-museo on 1900-luvun lopulla viimeinen aluetaidemuseo.[33]
1960-luvun muita uusia museorakennuksia
Arkkitehtuurin käänne 1960-luvulla käynnisti keskustelun ammattikunnan sisällä. Nuoremman polven yksinkertaista ja anonyymiä rakentamista vaativille suunnittelijoille oli tärkeää muunneltavuus ja laajennettavuus. Esikuvana voi pitää saksalais-amerikkalaista arkkitehtiä Mies van der Rohea.[34] Betonin valupinnan ja rakenteiden näkyville jättämistä on kutsuttu myös betonibrutalismiksi. 1970-luvulla alkoi mittavampi vanhojen rakennusten muuttaminen museoiksi, mikä toi mukaan rakennussuojelukysymykset.[35]
18a Sibelius-museo js Mikkoau 2016 WLM 18b_Sibelius_MLR 18d Sibelius Hhö 2013
- Turun linnan korjaus ja suuri näyttelyhalli ullakolle (Erik / Carin Bryggman, 1961–87),
- Tornionjokilaakson maakuntamuseo, Tornio (Jouko V. Ylihannu, 1962, Matti Porkka, 1981),
- Tammisaaren museon näyttelyhalli (Ola Hansson, 1963),
- Emil Cedercreutzin museon ”Maahengen Temppeli” Harjavalta (Jonas / Mariana Cedercreutz, 1963–97),
- Didrichsenin taidemuseon näyttelysiipi Helsinki (Viljo Revell, 1965),
- Sibelius-museo (Woldemar Baeckman, 1968) Åbo Akademin puutarha-alueelle Turkuun,
- Pohjanmaan museon näyttelysiipi, Vaasa (Erik Kråkström, 1968),
- Helsingin taidemuseon Kluuvin galleria (Aarno Ruusuvuori, 1968),
- Ortodoksinen kirkkomuseo, kirkkokunnan Kuopion keskustalossa (Dag Englund, 1969),
- Yrjö Liipolan museo, Koski Tl (Eero Ponkala, 1970).
20_Didrichsen_MLR.jpg
Museo taidekokoelmalle - Meilahden taidemuseo, Helsinki (1967) ja Sara Hildénin taidemuseo, Tampere (1979)
Taiteen keräilijöille tärkeintä on ollut saada pysyvä paikka ja omalle kokoelmalle sopivat näyttelytilat.
Helsingin kaupungin taidemuseo nousi Meilahteen Tamminiementielle 1967. Kaupunki osti Meilahden kartanon kantatilan vanhat rakennukset, jolloin kypsyi ajatus yhdistää tuolloin innostusta herättänyt ja komiteatyöskentelyn tuloksena määritelty ”monitoiminnallinen taidekeskus” tähän.[36] Kun kaupungilla oli jo tiedossa useita lahjoituksia, päätettiin kunnollisten näyttelytilojen rakentamisesta omia kokoelmia varten, samalla kun otettiin vastaan Leonard ja Katarina Bäcksbackan perikunnan lahjoittama vanhemman kotimaisen taiteen kokoelma.
Kokonaista museota – taidekeskuksesta puhumattakaan – ei kuitenkaan tehty, vaan kyseessä on yksistään näyttelyrakennus. Suunnittelutehtävä annettiin kaupungin arkkitehdeistä Tero Aaltoselle.
22_Meilahti2_MLR 23_Meilahtipohja_MLR. jpg
Tanskalaisen Louisianan taidemuseon vaikutusta voi nähdä näyttelyrakennuksen paikanvalinnassa ja itse rakennuksessa. Tontti on loivassa rinteessä, joka avautuu merenlahdelle. Perikunnan edustajalla Ingjald Bäcksbackalla oli mielessään ripustussuunnitelma ja kokoelman vaatimat juoksumetrit, jotka sitten ”juostiin” maastossa arkkitehdin ja mittanauhan kanssa. Alvar Aalto -museota käytiin katsomassa. Intendentti Marja-Liisa Bell laski muiden tilojen tarpeen ja toimi neuvonantajana.
Kartanon lehtevään puistoon 1976 valmistunut valkoisella kahitiilellä verhottu rakennus (1 560 m²) on yksinkertainen. Sisäänkäynti on itäpäädyssä, jossa on avara klinkkerilattiainen aula kartanon puistoon avautuvine lasiseinineen. Aulaa oli mahdollista käyttää myös luentosalina. Näyttelytilat koostuvat viidestä suorakaiteen muotoisesta salista, jotka noudattavat huoneesta huoneeseen -mallia silmukkana, mistä muodostuu niin sanottu ”pakkokierto”. Ensimmäinen sali on suurin ja muita korkeampi. Kunkin salin keskivaiheilla on vastakkain lyhyet seinäkkeet, jotka jakavat ne ikään kuin kahteen pienempään huoneeseen.
Salien väliset ovet on sijoitettu kauas toisistaan, tukemaan johdonmukaista kiertoa. Saleihin päivänvaloa tulee kattoikkunoiden välityksellä seinänvieriä kiertävien valokuilujen kautta. Lattioita peitti aluksi sisalmatto ja seinät oli verhottu tärkätyllä juuttikankaalla, kuten taidegallerioissa oli tapana. Salien alla oli varasto ja ikkunallisia teknisiä tiloja.[37]
Tilat toimivat hyvin ja Meilahden museo oli pitkään kaupungin parhaita näyttelypaikkoja. Kahvilaa rakennukseen ei tullut, sitä varten korjattiin viereinen kartanon puinen päärakennus 1800-luvun alkupuolelta. Puistossa on ollut näytteillä veistoksia ja siellä on järjestetty taidetapahtumia, mutta suunniteltuja laajennuksia ei toteutettu.
24_Hilden ilmakuva Teuvo Kanerva 25_Hildenleikkaus_MLR.jpg
Sara Hildénin 1979 avattu taidemuseo perustuu niin kotimaiselle kuin ulkomaiselle modernismille ja nykytaiteelle. Ensimmäiset teokset Hildén osti vuoden 1961 Ars-näyttelystä. Hän lahjoitti kokoelmansa nimeään kantavalle säätiölle, joka solmi 1975 sopimuksen Tampereen kaupungin kanssa uuden museon rakentamisesta ja teosten pysyvästä sijoittamisesta sinne. Kaupunki vastaa museon ylläpidosta ja säätiö kartuttaa kokoelmaa.
Paikkaa valittaessa Hildén mieltyi rakenteilla olleen Särkänniemen huvipuiston läheisyydessä sijainneen vanhan huvilan Näsijärvelle avautuvaan rinnetonttiin ja rakennusten jäännöksiin, jotka loivat perustan veistospuistolle. Tärkein lähtökohta oli juuri tämä paikka, jota voi luonnehtia jopa välimerelliseksi.
Tavoite oli sama kuin Helsingissä: rakentaa yksityiselle kokoelmalle ihanteelliset olosuhteet. Suunnittelijaksi valittiin tamperelaisen Pekka Ilveskosken arkkitehtitoimisto, joka konsultoi myös Meilahden taidemuseon suunnitellutta Tero Aaltosta. Paikan lisäksi lähtökohdiksi otettiin näyttelysalien tarkoituksenmukainen liittyminen toisiinsa sekä teoksille sopivan valaistuksen luominen. Maalaussalit ovat ikkunattomia, mutta tärkeitä näköalaikkunoita on salien liitoskohdissa. Arkkitehtuuriin suoraan vaikuttanut ero oli siinä, että nykytaiteen teokset ovat suurikokoisempia, väreiltään kirkkaampia, usein ääntä, valoa ja liikettä sisältäviä.
Hildén oli luonut kokoelmansa yhteistyössä Ateneumin asiantuntijoiden kanssa ja tutustunut matkoillaan keskeisiin eurooppalaisiin museoihin. Amerikkalaisia museoita puolestaan tunsi suunnittelussa mukana ollut Asko Rasinperä, joka oli opiskellut Yhdysvalloissa. Ulkomaisia rakennuksia, joihin on viitattu, ovat Nizzan lähelle 1964 valmistunut yksityinen nykytaiteen museo Fondation Maeght (Josep Lluis Sert), etenkin veistospuiston osalta, Berliinin Brücke-Museum (Werner Düttmann, 1967) sekä ”monoliittista ekspressionismia” edustava Emerson Museum of Art (I. M. Pei, Syracuse N. Y., 1968).
Kaksikerroksisen rakennuksen pohjakaava edustaa neliapila-tyyppiä (ydin ja satelliitit). Sisäänkäynti on suoraan toiseen kerrokseen, jossa on toimistosiipi, luentosali ja maalausgalleriat. Keskisalista laskeudutaan pohjakerroksen veistostiloihin, joissa on välitasanne, ja edelleen kahvioon ulkoterasseineen. Kaikki näyttelytilat ovat luonteeltaan avoimia ja niissä voi liikkua vapaasti, haluamassaan järjestyksessä. Alakerrassa on järven suuntaan, pohjoiseen ja länteen suuret ikkunaseinät.
26a_Hilden_SJE 26_Hilden_HHö 26b_Hilden_SJE
Ulkoseinät ovat vaalearouheista pesubetonia, sisällä kantavat seinät on jätetty betonivalun jälkeen käsittelemättä. Näyttelyseinät on verhottu valkeaksi maalatulla kangaspinnoitteella, ja tilojen jakamiseksi pienempiin osiin on käytössä ollut irtoseiniä. Lattiat ovat kivilaattaa. Rakennus oli valmistuessaan maan suurin taidemuseo (2 500 brm²)[38]
Satakunnan kulttuurihistoriallinen museo, Pori (1973)
Porissa avattiin Satakunnan museon uudisrakennus 1973. Samana vuonna valmistui Alvar Aalto -museo Jyväskylään. Satakunnan museo oli perustettu 1888. Kokoelmat oli kerännyt ja järjestänyt opettaja Matti Kauppinen, joka toimi aktiivisesti myös Museoliitossa sen perustamisesta lähtien. Vaihtuvissa vuokratiloissa majaillut museo oli saanut pysyvämmän sijan monenlaisessa käytössä kuluneesta, rapatusta ”Iltaman talosta” vuonna 1903.
Ajatusta oikeasta museorakennuksesta pidettiin yllä, ja kopin otti vuonna 1958 museonjohtajaksi valittu Unto Salo, museon ensimmäinen ammattilainen ja tuolloin myös Museoliiton puheenjohtaja. Ennen Turun arkeologian professoriksi siirtymistä hänen viimeiseksi tehtäväkseen jäi uuden museon tilaohjelman laatiminen.[39] Tontiksi osoitettiin pieni kolmiomainen puisto Hallituskadun päästä, jokirannan ja oluttehtaan välistä, ja suunnittelijaksi valittiin kaupunginarkkitehti Olaf Küttner. Suojelukiistaa tai kilpailua ei näin vaikeasta paikasta syntynyt.
Sisäänkäynti on etelästä, Hallituskadun puolelta, josta vaaleanharmaa pesubetonipintainen rakennus (4 603 brm²) näyttäytyy ajan tavan mukaan yksikerroksisena. Aulasta oikealla on toimistosiipi kadulle suuntautuvine ikkunariveineen ja luentosaleineen, vasemmalla yhtenäinen ikkunaton tilapäisnäyttelytila (400 m²) ja suoraan edessä kahvila, josta avautuvat pohjoispuolen ainoat ikkunat Jazzkadun (Eteläranta) yli joelle.[40] Toimistotilojen takana on perusnäyttelytilojen suuri kolmikerroksinen blokki, johon päivänvaloa saadaan kaikkien kerrosten läpi ulottuvan kulmikkaan valopihan kautta.
28b_Satakunnan museo_MLR 28_SatMsisältä_MLR.jpg
Alun perin vaaleahkoja avaria sisätiloja jäsentävät lehtereitä kannattelevat pylväät ja niitä yhdistävät umpilaitaiset betoniportaikot. Ruskeasävyisissä näyttelytiloissa oli ritiläkatot ja kokolattiamatot. Sisustuksen suunnitteli Tauno Kivinen.
Kokonaisvaikutelmaltaan museo on sukua Kalifornian Berkeley-yliopiston taidemuseolle (Mario J. Ciampi, 1970), ja Amsterdamin saman aikainen Van Gogh -museo (Gerrit Rietvelt, 1973) tunnettiin.[41]
Big Bang – museot haluavat uudistua
Vuoden 1970 tienoilla alkoi kehityskulku, jota museologisessa kirjallisuudessa kutsutaan alkuräjähdykseksi. Se lähti liikkeelle ekomuseo-ajatteluna, joka pyrki häivyttämään rajat museon ja sitä ympäröivän yhteisön väliltä. Painopiste haluttiin siirtää laitosajattelusta aktiviteetteihin, iskusanoina ”elävä museo” ja pontimena mahdollisuus vaikuttaa tulevaisuuteen. Tavoitteena oli asettaa museo laajaan sosiokulttuuriseen yhteyteen, jossa luonnontiede, historia, taide ja teknologia muodostaisivat kokonaisuuden.[42]
Tähän vaiheeseen sijoittuu Museoviraston perustaminen 1972 museoinstituution kokonaisvaltaiseksi kehittämiseksi. Suomen museoliitto oli itsenäistynyt 1957 muuttamalla Kansallismuseosta omiin tiloihin Cygnaeuksenkadulle.
Ammatillistuminen vauhdittui, näyttelyitä järjestettiin 1970-luvulla ennätyksellinen määrä sekä museoissa että ulkopuolisissa tiloissa, yleisömäärät moninkertaistuivat. Erityisesti alettiin ottaa huomioon lapset: ensimmäiset museolehtorit aloittivat Ateneumissa ja Kansallismuseossa 1970-luvun alkuvuosina.
Näyttelysuunnittelusta tuli museoissa kriittinen tekijä. Suomen museoliitto ryhtyi järjestämään kursseja tästä tematiikasta. Teknisistä kysymyksistä, kuten museoiden murto- ja paloturvallisuudesta, esineistön oikeista säilytysolosuhteista ja rakennusten suojelusta, tuotettiin ohjekirjoja ja suosituksia. Erikoismuseokenttä alkoi hahmottua. Aika oli kypsä laajemmalle keskustelulle museorakennuksista.[43]
Museoarkkitehtuuriseminaari 1979
Museoliitto järjesti museoarkkitehtuuriseminaarin 26.–27.11.1979 Espoon Hanasaaressa. Sen aiheuttivat Porin taidemuseon, Helsingissä Taideteollisuusmuseon (Designmuseo) ja Sinebrychoffin taidemuseon avaamiset sekä satavuotiaan Ateneumin lähestyvä korjaus. Siitä oli käynnistetty hankesuunnittelu 1978 (Laiho – Pulkkinen – Raunio, toteutus 1985–91).
Seminaariin osallistui 140 henkeä. Esiteltäväksi koottiin kaikki tieto ja kokemukset, mitä siihen mennessä oli saatu uudistiloista ja vanhojen rakennusten korjaamisesta. Museoasiainsihteeri Jorma Heinonen oli paneutunut niin museoarkkitehtuurin historiaan ja estetiikkaan kuin viimeisimpään tekniikkaankin.[44] Hän esitteli Aallon Tallinnan taidemuseon nerokkaana pitämänsä ehdotuksen. Parinkymmenen vuoden aikana valmistuneita museohankkeita esiteltiin esimerkein.
Alueellinen museoverkosto syntyy – 1980-luvulla liki 200 uutta museota
Valtioneuvosto teki 1979 päätöksen alueellisen museoverkoston muodostamisesta. Sitä koskeva valtionavustuslaki säädettiin 1988. Vuonna 1992 säädettiin Museolaki ja asetus, jonka piiriin pääsivät kaikki ammatillisesti hoidetut museot.[45] Laskennallisena pohjana olivat henkilötyövuodet. Lakiin lisättiin museoiden yhteiskunnallinen tehtävä 1996.
Maakuntamuseot ja aluetaidemuseot nimettiin suurimpien kaupunkien olemassa olevien museoiden pohjalta vuosina 1980–1995. Erikoismuseokenttää vahvistettiin vielä muutamilla museoilla, jotta kaikille tärkeiksi katsotuille osa-alueille saatiin oma vastuumuseonsa, jotka vahvistettiin 1993–2010.
Uusia museoita oli toisen maailmansodan jälkeen perustettu noin 15-20 museon vuosivauhtia. Lakipiste saavutettiin 1980-luvulla, jolloin museoita syntyi kaikkiaan liki 200. Kasvu oli samanlaista kansainvälisestikin. Sitten seurasi nopea lasku niin, että viimeisellä vuosikymmenellä ennen vuosituhannen vaihdetta museoita perustettiin meillä enää parikymmentä.
Arkkitehtuurissa Oulun kouluksi kutsuttu postmoderni suuntaus tavoitteli elämyksellisyyttä.
Kaupunginmuseoiden ja kotiseututalojen rinnalla ovat paikallismuseot. Niihin kuuluvat historiallisten henkilöiden, valtiomiesten, kulttuuripersoonien ja urheilijoiden museoidut kodit, paikkakunnalle luonteenomaisten ammattien ja ilmiöiden museot sekä yksittäisten keräilijöiden moninaiset kokoelmat ja kohteet.[46]
27_Ainola_WLM 27b_Yli_laurosela_MV
Museo vanhassa rakennuksessa
”Vanhat rakennukset museokäytössä” oli Museoliiton museoarkkitehtuuriseminaarissa 1979 toisen pääpuhujan, Teknillisen korkeakoulun arkkitehtuurihistorian professori Henrik Liliuksen teema. Lilius puolusti voimakkaasti alkuperäisiä rakenteita ja kritisoi historiallisten rakennusten sisätilojen uudistamista. Liliuksen mielestä uuden käytön tarpeet eivät saisi kokonaan ohittaa rakennuksen omaa historiaa, vaan näiden välille pitäisi etsiä tasapaino. Keskustelu jatkui vilkkaana Ateneum-rakennuksen korjauksen alkaessa ja uudistamisen edetessä (1985-91).[47]
29_Pori_MLR.jpg
Henrik Liliuksen seminaarialustuksen taustalla olivat seuraavat silloin ajankohtaiset museohankkeet:
- Brobergska Samskolanin (Gustaf Nyström, 1894 / Olli Borg, 1978) muutos Taideteollisuusmuseoksi,
- Sinebrychoffin patriisitalon (Jean Wik, 1842 / Sirkka-Liisa Tarumaa, 1979) muuttaminen taidemuseoksi,
- Porin pakka- ja vaakahuoneen (C. J. von Heideken, 1858 / Kristian Gullichsen, 1979) muutos Maire Gullichsenin taidekokoelman tiloiksi.
Museo teollisuusrakennuksessa
Luontevimmin museoiksi on taipunut teollisuusarkkitehtuuri. Teollisuusrakennusten houkuttavuuteen vaikuttavat niiden avarat, vapaasti muunneltavat hallitilat. Teollisuustuotannosta tyhjeneviä tehtaita on otettu museokäyttöön satakunta. 1900-luvun loppua kohti teollisuusrakennusten ja kokonaisten alueiden käyttö kulttuuritiloina vielä lisääntyi.
30_Vapriikki Tiia Monto WLM 2017
- Riihimäen kaupungin vuonna 1975 hankkima, lasitehtaan 1910-luvulla valmistunut rakennus, josta Tapio Wirkkala suunnitteli Suomen lasimuseon (näyttely 1 762 m²),
- Vuonna 1898 perustettu Suomen rautatiemuseo muutti Helsingin asemalta Hyvinkäälle 1973–74,
- 1969 perustettu Tekniikan museo asettui vuodesta 1970 lähtien Helsingin vesilaitoksen sata vuotta vanhoihin tiloihin Vantaanjoen suulle.
- Kaapelitehdas Helsingissä (W.G. Palmqvist, 1939–1954) on 1990-luvun alusta ollut kaupungin omistama kiinteistöyhtiö. Entisen Nokian kaapelitehtaan suurimman hallin (2 700 m²) itäpäähän muuttivat 1990-luvun alussa Suomen Valokuvataiteen museo (perustettu 1969), Teatterimuseo (perustettu 1962) ja Hotelli- ja ravintolamuseo (perustettu 1971) päällekkäisiin tiloihin, joiden museotilat viimeisteltiin 2000.
- Tampellan tiloissa avattiin 1996 Tampereen museokeskus Vapriikki (14 000 m²) lukuisine museoineen.
- Hämeenlinnan taidemuseon (perustettu 1952) viisi rakennusta sisältyvät Verkatehtaan (1895) kokonaisuuteen, joka oli pääosin oppilaitoskäytössä 1980- ja 90-luvuilla, kunnes se päätettiin suunnitella kokonaisuutena erilaisia kulttuuripalveluita varten 2001 (avaus 2007).
- Lapuan patruunatehtaan (perustettu 1923) tiloihin on 1990-luvulta lähtien kasvanut Kulttuurikeskus Vanha Paukku, jossa on muun muassa useita museoita kuten tehtaanmuseo (perustettu 1993), taidemuseo (perustettu 1998) ja Pyhälahden valokuvaamomuseo.
Taidemuseo kulttuurikeskuksessa - Kemi (1977), Tornio (1985) ja Kouvola (1987)
Joidenkin kaupunkien uusiin kulttuurikeskuksiin tehtiin tilat museolle. Kemin taidemuseo sai pysyvät tilat jo kulttuurikeskuksen ensimmäisessä rakennusvaiheessa 1977 (Arkkitehtitoimisto Jan Söderlund) ja lopullisen paikkansa 1990, kun koko kulttuurikeskus valmistui. Kemin vuonna 1947 alkunsa saanut taidemuseo oli ensimmäinen aluemuseokokeiluun osallistunut, ja siitä tuli maakunnallinen taidemuseo vuonna 1981 toiminta-alueenaan koko Lapin lääni.
Taidemuseon osuus kulttuurikeskuksesta on vajaa kymmenes. Nykytaiteelle soveltuvaa näyttelytilaa on 551 m². Suoraviivaista punatiilistä rakennuskokonaisuutta jäsentävät nauhaikkunat ja eri tilojen korkeuserot. Sisätilojen suoraviivaisuuden murtaa museon näyttelytilan ja kirjaston välinen diagonaalinen kantava seinä. Valmistuessaan rakennus tarjosi tilat kaupunginkirjastolle, kaupunginteatterille, kauppaoppilaitokselle ja työväenopistolle, joilla on torin puolelta yhteinen sisäänkäynti kahviloineen, ravintoloineen ja kaksine auditorioineen.[48]
37_Kemisali_MLR 37b_Kemi_MLR
Torniolainen kauppaneuvos Veli Aine toivoi, että hänen kotimaista 1800- ja 1900-luvun taidetta sisältävä taidekokoelmansa tulisi esiin kotikaupungissa. Ajankohdalle tyypilliseen tapaan pyrittiin taidemuseo perustamaan ”kulttuurikeskukseen veden äärelle”. Siinä maakuntamuseon, taidemuseon ja kirjaston tilatarpeet yhdistyisivät. Tuloksena oli päätös laajentaa maakuntamuseota omalla tontillaan ja rakentaa taidemuseolle sekä kirjastolle uusi yhteinen toimitalo.
Taidemuseon vuonna 1979 sovittu toimintamalli oli sama kuin Sara Hildénin museossa: kaupunki vastasi rakennuksesta ja museon ylläpidosta, Aineen Kuvataidesäätiö kokoelmien kartuttamisesta. Vuonna 1985 valmistunut, Rajakartanoksi nimetty talo nousi aiemmin tornitaloille kaavaillulle tontille. Arkkitehdiksi valittiin paikallinen Matti Porkka, joka suunnitteli myös maakuntamuseon laajennuksen. Porkka ei ollut suunnitellut museotiloja, mutta osallistui museoarkkitehtuuriseminaariin ja tutustui Helsingin kaupungin taidemuseoon, Sara Hildénin taidemuseoon ja Lapinlahden taidemuseoon (Esa Koivuniemi ja Georg Bystroff, 1977).
Torniossa Aineen museon ja kirjaston rinnakkaiset Torikadun suuntaiset tilat ovat suunnilleen samankokoiset. Rakennusmassat ovat kuitenkin toisiinsa nähden hieman vinottain ja kummallakin on oma luonteensa. Julkisivut on muurattu valkoisesta kahitiilestä. Sen päällä on ikkunatonta museonäyttelyaluetta korostava pystysuuntainen hiekanruskea marmoriharkotus, kirjaston ikkunoissa vastaavasti ritiläverhous. Yhteinen sisäänkäynti on rakennusten välissä toisessa kerroksessa, kahvila ja auditorio museon puolella. Museokäytössä on 1 576 m².
Sisäseinät ovat valkoiset, portaat ja käytävät on päällystetty Lapin louhemarmorilla, kahvila ja näyttelytilat sisal-laattamatolla. Näyttelysaleja on viisi, ja niihin Aine halusi Helsingin Meilahden taidemuseon tapaisen pakkokierron, jotta kaikki teokset tulisivat nähdyiksi. Ulkona oli tilaa veistospuistolle. Veli Aine sai toiveensa toteutumaan ja toimi museolautakunnan ensimmäisenä puheenjohtajana.[49]
38_Kouvola_MLR
Kouvola-talon (kilpailu: Erkki Valovirta, 1982) kotimaiselle nykytaiteelle omistettu museo perustettiin 1986 ja avattiin 1987 ”koulutus- ja kulttuurikeskuksessa”. Taidemuseon (1 000 m²) lisäksi siinä oli konserttisali sekä musiikkiopiston, kansalaisopiston ja taideharrastajien tiloja, samoin kaupungin toimistoja.
Puistomaisessa ympäristössä on hiekanvaalea kaksikerroksinen postmoderni rakennuskokonaisuus, yhteisen sisäänkäynnin ympärille rypälemäisesti kiertyvine pohjakaavoineen ja tummine aumakattoineen. Kaupunkien monitoimitaloissa tilojen käyttäjät voivat vaihtua, museo yleensä jää ja laajenee.[50]
Taide- ja kulttuurihistoriallinen museo, Saarijärvi (1989)
Saarijärven museo (Laila Niemioja / Heikki Uusitalo, 1989) avattiin 1989 saarijärveläisen kuvanveistäjä Kain Tapperin tuotantoa esittelevällä näyttelyllä. Ajatus museosta konkretisoitui, kun saarijärveläissyntyinen Toivi Järvinen määräsi testamentissaan 1982 omaisuutensa käytettäväksi taidemuseon rakentamiseen. Museoon koottiin yhteen Toivi ja Osmo Järvisen 1900-luvun alun kotimaisen taiteen kokoelma, Saarijärven kaupungin omistamat teokset ja Saarijärvi-seuran kulttuurihistoriallinen esineistö.
Vuonna 1948 perustettu Saarijärvi-seura vaali Saarijärven ja sen lähialueiden taiteilijoiden tuotantoa ja kulttuuriperintöä. Keskeisessä roolissa oli Tapperien kotitalo Juhola ja neljän taiteilijaveljeksen, kuvanveistäjä Kain Tapperin, kirjailijoiden Harri Tapperin ja Marko Tapion sekä lavastaja Yrjö Tapperin elämä ja tuotanto.[51]
Helsingissä työuransa tehneiden Toivi ja Osmo Järvisen omakotitalon tontille rakennettiin vaaleasta tiilestä puhtaaksi muurattu rakennus (1 150 m²). Saarijärven museonjohtaja Kari Kotilainen laati tilaohjelman, ja Jyväskylän museoiden kollegat työskentelivät rakennustoimikunnassa, joka osallistui Museoliiton Saksan-matkalle 1987. Frankfurtissa huomioitiin Main-joen molemmille rannoille nouseva vanhaa ja uutta arkkitehtuuria yhdistävä Museumsufer ja amerikkalaisarkkitehti Richard Meierin suunnittelema taideteollisuusmuseo.[52]
Saarijärvellä sisäänkäynti on suoraan näyttelykerrokseen, sen alapuolella ovat työ- ja varastotilat sekä sisääntulopäädyssä aulakahvio terasseineen. Muuta korkeampi keskiosa – ”valkoinen kuutio” – klinkkerilattioineen ja komeine järvinäkymineen – on tarkoitettu taiteelle ja erikoisnäyttelyille, itäpään matalampi ”musta kuutio” kulttuurihistoriallisille kokoelmille.[53]
34_Saarijärvi_MLR
Muita uusia museoita 1980- ja 1990-luvuilla
- Hyvinkään taidemuseo Jussintorin liikekeskuksessa (Ilmo ja Raimo Valjakka, 1981),
- Ahvenanmaan museot ja kaupunginkirjasto, Maarianhamina (Helmer Stenros, 1981),
- Skärgårdsmuseet i Lappo (Folke Wikström, 1981),
- Tampereen taidemuseon maanalainen näyttelytila (Antti Ilveskoski, 1984),
- Etelä-Karjalan museon sijoittaminen 1700-luvun linnoitukseen (Lappeenrannan kaupunki, 1984, 1989),
- Villa Gyllenbergin näyttelysiipi Helsingin Kuusisaaressa (Ålander Packalen Korsström, 1985),
- Rovaniemen taidemuseo postiautovarikkoon (Juhani Pallasmaa, 1986),
- Hiihtomuseo, Lahden Urheilukeskus (Esko Hämäläinen, 1989),
- Suomen metsästysmuseo muutti Porvoosta Riihimäelle (Osmo Lappo, 1990),
- Oulun taidemuseo liimatehtaan kiinteistöön (Birger Federley 1922, Jorma Teppo, 1991),
- Kalevala-talo, Talvisotamuseo, Kuhmo (Heikki Kukkonen 1991/1994),
- Mobilia auto- ja tiemuseo, Kangasala (Lindqvist & Uosukainen, 1992–94),
- Aboa Vetus & Ars Nova, Rettigin palatsin laajennus (Frank Schauman, 1995),
- Salon taidemuseo Veturitallin uudisosa (Lauri Hollmén, 1998).
39_Hyvinkää_MLR.jpg 42b_Lappeenranta Et karj museo WLM
40_Gberg_MLR 42_Lahden hiihtomuseo HHö
Tiedekeskus Heureka, Vantaa (1989) ja Arktinen instituutti Arktikum, Rovaniemi (1992)
Museoiden painopisteet ovat siirtyneet tutkimuksen suuntaan ammatillisuuden ja resurssien lisääntymisen myötä. Voitaneen jo puhua tiedemuseoista taidemuseoiden rinnalla.
Tiedekeskus Heurekan rakentaminen Vantaan Tikkurilaan oli 1980-luvun saavutus (kilpailu: Heikkinen ja Komonen, 1985). Säätiöpohjainen Heureka avattiin yleisölle 1989. Juuret ovat Helsingin yliopistossa, idean esittivät professorit Tapio Markkanen, Hannu I. Miettinen ja Heikki Oja. Kutsukirje oli lähtenyt Helsingin, Espoon ja Vantaan kaupungeille, joista Vantaa tarttui mahdollisuuteen tarjoten tontin ja merkittävää rahoitusta.
43_Heureka_MLR
Tiedekeskukset ovat museoiden rinnakkaisilmiö. Tieteen popularisointi, pedagoginen ote ja elämyksellisyys ovat yhteisiä tavoitteita, pääasiallisena erona se, ettei tiedekeskuksilla ole omia kokoelmia vartioitavanaan. Yleisötiloiltaan tiedekeskus muistuttaa avointa museota, uutuutena planetaario. Vapaus näkyy rakennuksen ulkoasussa, jota avaruusaiheineen voitaneen pitää uutta kokeilevan wau-arkkitehtuurin ensiesiintymisenä meillä.
44_Arktikum_MLR
Ajatus Arktisesta instituutista ja museosta virisi 1970-luvulla Oulussa ja Rovaniemellä. Konkreettinen aloite tuli Euroopan Kulttuurisäätiön Suomen osastolta. Vuosina 1983–84 järjestettiin arktisille maille suunnattu arkkitehtuurikilpailu, johon tuli 184 ehdotusta. Toteutus sidottiin Suomen itsenäisyyden 75-vuotisjuhlintaan, ja siitä kasvoi kansallinen hanke. Valtion talousarvioon varattiin varoja vuodelle 1988. Rovaniemen kaupunki tuli toiseksi maksajaksi ehdolla, että Aallon Lappia-talossa sijainnut maakuntamuseo sai keskuksesta uudet tilat.
Rakennus valmistui 1992, siinä toimivat näyttelyineen Lapin maakuntamuseo sekä Lapin yliopiston Arktinen keskus. Voittaneen tanskalaisen Claus Bonderupin työryhmän ehdotus on yhdistelmä klassisen museorakennuksen osia uudella tavalla yhdisteltynä. Valmiin rakennuksen julkisivu kaupunkiin päin muistuttaa temppelin päätyä pylväikköineen, oven takaa avautuu valkoiseksi maalattu kaksikerroksinen moderni hallimainen tila. Sen keskikäytävää kattaa lasinen galleria, joka valaistuna putkena jatkuu ulos ja Ounasjoen törmään upotettuna rantaan saakka.
1990-luvun viimeiset valtakunnalliset erikoismuseot – Lusto Savonlinnaan (1994), Siida Inariin (1998) ja Sarka Loimaalle (2005)
Uusiksi vastuumuseoiksi 1990-luvulla määriteltiin metsä-, saamelais- ja maatalousmuseo. Maan ensimmäiset kaupunkien museot olivat syntyneet 1800-luvulla rannikkokaupunkeihin. Sen jälkeen museoita rakennettiin myös sisämaahan niin, että kaupunkien museot ylsivät myös Keski- ja Itä-Suomeen, kunnes lopulta kotiseutu- ja pitäjänmuseoiden tiheä verkosto kattoi koko maan.
Pohjois-Suomi ja Lappi olivat olleet aktiivisia 1970-luvulta lähtien, erityisesti taidemuseoiden osalta. Yliopistojen lisäksi kaupungit kunnostautuivat: Oulun ja Rovaniemen kaupunginjohtajat Matti Rossi ja Matti Pelttari johtivat Suomen museoliiton hallitusta vuoron perään. Museot ja tiedekeskukset alkoivat hakeutua yhteen, kun viimeisiä valtakunnallisia museoita perustettiin. Niistä päätettäessä hajautuspolitiikka oli voimissaan, lisäksi valintaa tukivat matkailunäkökohdat.
45_Lusto_MLR 45a_Lusto_SLJe
Suomen metsämuseo Lusto Savonlinnan Punkaharjulla on metsäalan ja metsäkulttuurin erikoismuseo, joka avattiin tervalla ja pellavaöljyllä kyllästetyllä lehtikuusilaudalla vuoratussa betonirakennuksessa 1994. Vuonna 1988 perustettu säätiö järjesti yhdessä maa- ja metsätalousministeriön ja Punkaharjun kunnan kanssa avoimen arkkitehtuurikilpailun Suomalaisen metsätietokeskuksen rakentamiseksi vuonna 1990. Kokoelman painopiste on metsäkoneissa. Näyttelyt kertovat ihmisen ja metsän välisestä vuorovaikutuksesta.
Arkkitehtikilpailuun tuli 103 ehdotusta, ja voittaneet arkkitehdit Rainer Mahlamäki ja Ilmari Lahdelma suunnittelivat ”suomalaista modernismia” edustavan rakennuksen metsämaisemaan. Harjulta museon sisäänkäynnille johtaa katettu silta. Päänäyttely on museon pyöreässä osassa, jonka kalusteet ovat kiinteä osa arkkitehtuuria. Nimi Lusto tulee näyttelytilan (1 500 m²) muodosta ja merkitsee puun vuosikasvua, mutta siinä voi nähdä muistuman antiikin pyörötemppelistä.
46_Siida Nemo bis WLM 46a_Siida Nemo bis WLM
Saamelaismuseo oli perustettu ulkomuseona Inariin 1959. Jonkin aikaa sen jälkeen oli julistettu suunnittelukilpailu Oulun yliopiston arkkitehtiosaston opiskelijoille. Voittaja valittiin jatkokehittelyn pohjaksi, mutta asia hautautui ja herätettiin henkiin 1984. Hanke alkoi rahoituksen puolesta toteutua, kun museoon yhdistettiin Metsähallituksen Ylä-Lapin luontokeskus. Juhani Pallasmaan suunnittelema näyttelyrakennus Siida (merkitsee saamelaiskylää) valmistui metsäiseen rinteeseen museoalueen reunassa olleen sorakuopan paikalle vuonna 1998.
Sisäänkäynti on pohjakerroksessa, josta pääkerrokseen noustaan loivaa ramppia pitkin. Rakennus on istutettu ”pienipiirteiseen maisemaan” sen muotoja seuraten. Runko on teräsbetonia ja terästä, julkisivut puuta. Rakennuksen keskelle on koko pituudelta avattu ”luonnonvalorailo”.
Rakennussuunnittelu tapahtui rinnakkain näyttelysuunnittelun kanssa. Johdantonäyttely esittelee pohjoisen luonnon ja kulttuurin kehitysvaiheita jääkaudesta tähän päivään. Näyttelytilat ovat yönsinisiä, muut tilat yleisväritykseltään valkoisia. Museosta tuli kokonaistaideteos, jossa tavoitteena oli ”yhdistää tieteellinen sisältö teatterin tai taidenäyttelyn kaltaiseen elämyksellisyyteen”. Esineiden ja kuvien taustalla on eri vuodenaikoja ja luonnontapahtumia kuvaava äänimaisema.[54]
Suomen maatalousmuseo Sarka Loimaalla on viimeinen 1990-luvulla alkunsa saanut erikoismuseo. Suomen maatalouskonemuseosäätiö perustettiin 1992. ”Suomalaisen maatalouden 3000-vuotisen tarinan” kertova museo avattiin 2005 (arkkitehti Sarlotta Narjus).
Uudelle vuosituhannelle siirryttyä järjestettiin arkkitehtuurikilpailu Kotkan Merikeskus Vellamosta vuonna 2004 ja rakennus avattiin 2008 (Arkkitehtitoimisto Lahdelma & Mahlamäki Oy).[55]
Nykytaiteen museo Kiasma, Helsinki (1998)
Keskustelu museoarkkitehtuurista alkoi 1960-luvun vaihteessa Helsingin keskustasuunnitelmasta. Siihen oli merkitty paikka museolle, ja tänne uusi rakennus liki 40 vuotta myöhemmin nousikin. Nykytaiteen museon perustamisvuonna 1990 ilmestyi amerikkalaisen taidehistorioitsijan Douglas Crimpin pamfletti Museon raunioilla, jossa tämä pohti museon roolia ja vastuita, erityisesti nykytaiteen määrittelyssä ja ohjailussa.
47_Kiasma_MLR.jpg 48_leikkaus_MLR.jpg
Nykytaiteen museon rakennushanke lähti rivakasti käyntiin, lamasta oli etua. Kaupungin rakennuskoneistolta loppuivat työt, joten tehtiin sopimus, jonka mukaan valtio tilasi työn kaupungilta ja rakennuksen valmistuttua maksoi sen luovuttamalla museotalon arvoa vastaavan määrän rakennusmaata toisaalta.
Pohjoismaiden ja Baltian arkkitehdeille suunnattu suunnittelukilpailu käytiin 1993. Lisäksi oli kutsuttu mukaan neljä kansainvälisesti tunnettua arkkitehtiä. Ehdotuksia tuli 516, joista voittajaksi nousi yhdysvaltalaisen Steven Hollin[56] ehdotus Chiasma (silmistä aivoihin johtavien näköhermojen risteys).
Ehdotusta laatiessaan Holl kävi Helsingissä. Hän asui museotontin viereisen Vaakuna-hotellin ylimmässä kerroksessa, josta tutkiskeli tonttia ja sitä ympäröivää kaupunkinäkymää. Myöhemmin hän tutustui suomalaiseen rakennusperintöön kuten Petäjäveden kirkkoon. Rakennustyön käynnistyttyä suunnittelun Suomen tukikohtana toimi arkkitehti Juhani Pallasmaan toimisto.
49b_Kiasma_Sakari Kiuru MV 49_Kiasma_Tirri MV
Arkkitehtuurikilpailun voittajasta syntyi kohu. Arkkitehdit pitivät tonttia ahtaana ja rakennusta mahdottomana, koska sitä ei voisi muuttaa tai laajentaa, mikä oli ollut ihanne. Syytettiin myös amerikkalaisuuden palvonnasta. Kovin vastustus tuli Mannerheimin ratsastajapatsaan suojelijoiden taholta. Patsas jäi paikalleen, ja Holl otti sen huomioon etsiessään muotoa, joka nivoisi yhteen ristiriitaisetkin elementit tonttia ympäröivässä rakennus- ja puistomaisemassa. Rakennus valmistui 1998. Se huipensi 1900-luvun jälkipuolen museorakentamisen.
Kiasman viisi kerrosta ovat toisiinsa nähden hieman limittäin ja kaarevien seinäpintojen vuoksi eri suuruisia. Museotilaa on 9 100 m². Runko on terästä, ja betoni kaartuu kauniisti. Ulkoseinät ja katto on päällystetty sinkki-, alumiini-, messinki- ja lasilevyillä, sisäpuoli on valkoinen. Pohjakerroksen yleisötiloissa on myös puuta ja voimakkaita värejä. Rakennus on avoimen ja suljetun tilan yhdistelmä. Holl pitää taloaan avoimena, koska siellä on portaikkoja, hissejä ja oviaukkoja, jotka mahdollistavat vapaan liikkumisen. Sisään tullessa avautuu näkymä talon läpi, sekä päästä päähän, että alhaalta ylös valokattoon saakka.
Portaikon sijasta museoon noustaan kaarevaa ramppia pitkin. Sen molemmin puolin seinien takana on huoneesta huoneeseen kuljettavia näyttelysaleja, ylimpänä kattoikkunoin varustettu muita korkeampi sali. Luonnonvalon käyttö on Hollille tärkeää, sen vuoksi molemmissa päädyissä sekä länsisivulla on isot panoraamaikkunat. Näyttelysalien seinät ovat valkeat, lattiat tummanharmaata betonia. Tekniikka on upotettu, eikä arkkitehtonisia elementtejä ole korostettu. Tavoitteena on tila, jossa katsoja voi kohdata teoksen häiriöttä.
Lopputulos on paikkaansa sopeutuva talo, jonka kaartuva harmaa ulkokuori on kuin kotilo tai simpukka, joka suojelee helmenhohtoista sisältöään: ulkoa pieneltä vaikuttava rakennus avautuu sisääntulijalle juhlavan avarana. Valkoisen tarkoitus on pyhittää taide. Amerikkalainen arkkitehtuurintutkija Victoria Newhouse kirjoitti jo ennen Kiasman valmistumista kirjassaan Towards a New Museum näkevänsä Kiasman ”pyhänä tilana”.[57]
Museorakennuksen ikuisuuskysymyksiä
Museorakentamisen rinnalla on laaja kysymys: millaista historiakäsitystä museot ylläpitävät, kenen tarinoita kertovat. Vaikka museorakennukset muuttuvat, museorakentamisessa on edelleen ratkaistava samoja kysymyksiä. Halutaanko uudisrakennus vai korjataanko jokin vanha. Halutaanko luonnonrauhaan vai kaupungin ytimeen. Miten rakennus suhteutuu sisältöönsä, miten ympäristöönsä. Painotetaanko pysyvää näyttelyä vai vaihtuvaa ohjelmistoa. Onko näyttelykierto avoin vai suljettu ja miksi niin on. Mikä on luonnonvalon ja keinovalon suhde. Tehdäänkö temppeli vai toivotaanko toria.
Kirjoittaja
Filosofian tohtori, dosentti, tietokirjailija Marja-Liisa Rönkkö on toiminut eri tehtävissä lukuisissa museoissa, kuten museonjohtajana Helsingin kaupunginmuseossa 1978–1990 ja ylijohtajana Valtion taidemuseossa 1990–2000. Artikkeli perustuu tekijän väitöskirjaan Louvren ja Louisianan perilliset. Suomalainen taidemuseo sekä artikkeleihin teoksissa Museologia tänään ja Suomen museohistoria.
Artikkeli on julkaistu 2020.
”Makasiinimuseoiden” eliittiä edustavat Tampereen (1931) ja Hämeenlinnan (1952) taidemuseot: kaksi C. L. Engelin allekirjoittamien piirustusten mukaan 1838–39 rakennettua kruununmakasiinia kaksikerroksisissa rakennuksissa. Niitä leimaavat näyttävät portaalit, pienikokoiset ikkunat ja nelilappeinen telttakatto, jonka huipulla on sisätiloihin päivänvaloa tuova lyhtymäinen rakennelma, lanterniini.
Hämeenlinnan vuonna 1952 avatun taidemuseon asema on poikkeuksellinen, sillä se perustui Viipurin taidemuseon kokoelmille ehdolla, että kaupunki antoi tilat. Viipurin kokoelmista syntyi Suomeen kaksi muutakin taidemuseota: Lahteen ja Lappeenrantaan.
Viimeisin makasiiniin perustettu museo lienee Savonlinnan maakuntamuseo, joka on vuonna 1984 saanut suojakseen Riihisaarella sijaitsevan E. B. Lohrmannin suunnitteleman punatiilisen kaksoismakasiinin vuodelta 1852.
Museo navetassa
Tyrvään seudun museo- ja kotiseutuyhdistyksen (perustettu 1932) uudisrakennushanke kariutui. Museokäyttöön saatiin 1951 Tyrvään pappilan 56 lehmän kivinavetta (suunnittelu: piirilääkäri Otto Stenbäck, 1890) Vammalan kauppalan (Sastamalan kaupunki) keskustassa.
Arkkitehti Toivo Anttila teki navetan muutospiirustukset, ja näyttely (600 m²) rakennettiin Museoliiton henkisellä ja aineellisella tuella. Esineistöstä haluttiin rakentaa kulttuurihistoriallinen kokonaisuus, selkeä kertomus paikkakunnan menneisyydestä. Museo avattiin elokuussa 1958 ympärivuotiseen käyttöön ja projekti esiteltiin Museoliiton vuosikirjassa.[19]
Tähän museorakennusryhmään kuuluvat muutkin maaseudulla käytöstä poistuneet kiviset talous- ja huoltorakennukset kuten tallit, maneesit, myllyt, meijerit, saunat, vesitornit, muuntamot ja paloasemat. Näille kivirakennuksille on tyypillistä, että niiden vanhat sisärakenteet on purettu kokonaan ja tilalle on rakennettu uudet museotilat.
Tukevatekoisissa kivirakennuksissa oli omana aikanaan säilytetty arvo-omaisuutta. Museokäytössä rakennuksissa ja museoesineissä tallentuivat esi-isien työ ja muistot. Museorakennuksina niillä on symboliarvo, joka kertoo sekä seudun vauraudesta että paikkakunnan kaupungistumisprosessista. Rakennukset ovat ympäristönsä vanhimpia. Sijaintiensa ansiosta ne ovat merkittävillä paikoilla ja määrittelevät lähiympäristöään.
Navettaan sijoitettuja museoita
- Pappilan navetta, Tyrvää,
- Emil Halosen museo Lapinlahti,
- Pedersörenejdens museum Pietarsaari,
- Önningebymuseum Ahvenanmaa,
- Arkeologiakeskus Untamala Laitila,
- Lepaan puutarhamuseo Hattula,
- Designmuseo Iittala,
- Etelä-Pohjanmaan maakuntamuseo Seinäjoki,
- Vilppulan museo.
Taidemuseon prototyyppi syntyy
Tallinnan taidemuseon kutsukilpailu järjestettiin vuosina 1936–37. Arkkitehti Alvar Aallon modernistinen kilpailuehdotus esiteltiin tuoreeltaan yhdessä virolaisten voittajien kanssa Päevalehden etusivulla sekä Arkkitehti-lehdessä.[20] Aallon suunnitelma on Vanhankaupungin ja sataman väliseen puistoon vapaasti sijoitettu, ulkoasultaan yksinkertainen, valkeaksi rapattu, matala ja suoraviivainen rakennus.
Uutta oli sisätilan rikas ja herkkä jäsentely. Sen pohjakaava on ydin ja satelliitit -ratkaisu. Jo aulasta saa selkeän kuvan museon kokonaisuudesta. Aulasta on pääsy suoraan kaikkiin näyttelytiloihin, jotka kohoavat portaiden kytkeminä terassimaisesti – Aalto puhuu ”skala-motiivista”. Koko museon läpi on mahdollista kulkea myös johdonmukaisessa järjestyksessä. Pieni sisäpiha avautuu suoraan ympäröivään puistoon. Ylävalo on ratkaistu tiheään sijoitetuin heijastavin lasikartioin, joiden kautta valo jakautuu tasaisesti koko tilaan. Veistossaleissa on myös sivuvaloa antavat lasiseinät.[21]
Aalto loi perusidean museolle, joka on suunniteltu sekä kokoelmien että kävijän tarpeisiin. Kilpailuehdotuksen ratkaisu jäi elämään ihannemuseona, johon on toistuvasti viitattu. Muinaistieteellisen toimikunnan arkkitehti Heikki Havas esitteli sitä ”pohjoismaisen museoarkkitehtuurin edelläkävijänä” vuoden 1963 museopäivillä, jotka järjestettiin Aallon suunnittelemassa Jyväskylän uudessa museotalossa. Tallinnan toteutumaton ehdotus toimi kuin muistilistana uuden museorakennuksen suunnittelussa. Aalto toteutti ideoita myöhemmissä museosuunnitelmissaan.
08_Tallinna_MLR.jpg
Taidemuseot itsenäistyvät Ateneumin taidemuseon johdolla 1950- ja 60-luvuilla
Museoliitto oli perustettu 1923 kulttuurihistoriallisten museoiden yhteistyöelimeksi, mutta alusta lähtien keskusteluissa olivat mukana myös taide ja luonnontiede.[22] Taiteiden asema yhteiskunnallisessa vaikuttamisessa vahvistui 1960-luvulla. Taidemuseotasoisten näyttelytilojen määrä oli vuoteen 2000 mennessä noussut 80:een.
Yhteydenpidon taidemuseoiden kesken aloitti Ateneumin taidemuseon intendentti[23] Aune Lindström, joka kutsui vuonna 1953 koolle silloiset kymmenen taidemuseoita ylläpitävää tahoa.[24] Hän oli laatinut ja painattanut seikkaperäiset taidenäyttelyn ripustusohjeet. Lindström päivitti myös museon rakennusohjeet. Hän asetti tärkeimmäksi museon keskeisen sijainnin yhdyskunnassa. Lindströmin aikana alkoi Ateneumissa kansainvälisten Ars-näyttelyiden sarja, ensimmäinen yhdessä Nykytaide ry:n kanssa 1961.[25]
Helsinkiin valmistui vuonna 1948 järjestetyn ideakilpailun pohjalta ”keskusalueen asemakaavaehdotus” 1954. Ideakilpailun palkintolautakuntaan kuulunut Alvar Aalto kutsuttiin 1959 laatimaan keskustalle edelleenkehittämissuunitelma, joka kohdistui Eduskuntatalon ja Töölönlahden alueisiin. Vuonna 1961 julkistettu ehdotus piti sisällään lahden länsirantaa seurailevan rivin pylväillä seisovia, veteen kuvastuvia kulttuurirakennuksia, kuten kongressi- ja konserttitalon, oopperan, taidemuseon ja kirjaston.
Tästä alkoi kiivas museoväittely: uusi ”keskustaidemuseo” haluttiin Töölönlahden rannalle ja nykytaide irti Ateneumin suojista. Keskustelun aloitti vuonna 1960 perustettu Taide-lehti, joka esitteli niin kotimaisia kuin ulkomaisiakin uusia museorakennuksia. Tulevasta taidemuseosta käytettiinkin nimeä taidekeskus, jolla tarkoitettiin nykytaiteen, arkkitehtuurin ja taideteollisuuden yhdistävää museota.
Keskustelu tasaantui pitkäksi aikaa, kun purkamisuhan allakin ollut Ateneum jäi edelleen taidemuseotoiminnalle, mutta kiihtyi taas, kun museo valtiollistettiin 1990 ja sen alaisuuteen perustettiin Nykytaiteen museo.[26]
Museo yliopistokampuksen yhteydessä - Jyväskylän museot (1961, 1973 ja laajennus 1990)
Museoarkkitehtuuri siirtyi modernismiin viimeistään arkkitehti Alvar Aallon ensimmäisen museorakennuksen toteuduttua Jyväskylään vuonna 1961. Keski-Suomen museoyhdistys oli perustettu 1931, ja 1953 perustettiin sen taideosasto. Uudisrakennukseen tähdättiin alusta pitäen. Paikaksi osoitettiin Seminaarinmäen kampuksen jyrkähköllä etelärinteellä sijaitseva historiallinen Ruusupuisto. Museon johtaja Sirkka Valjakka laati tilaohjelman (3–4 kerrosta, 2000 m²), Alvar Aalto suunnitteli ja antoi pääpiirustukset lahjana.
Keski-Suomen museo (rakennettu 1959–61) on kolmikerroksinen ja pohjakaavaltaan vapaamuotoinen. Ulkoarkkitehtuurissa näkyy kerrosten terassimainen jäsentely. Keskikerroksen alkuperäisestä sisääntulosta ja aulasta päästiin kahvilaan, joka ulostyöntyvine pitkine terassiparvekkeineen avautui Jyväsjärven suuntaan. Perältä oli käynti kahteen isoon näyttelysaliin, kolmannessa kerroksessa oli pienempi, kattokorkeudeltaan vaihteleva ”taidehalli” ja luentosali, johon museoyhdistys oli saanut toivomansa Viipurin kirjaston tapaan aaltoilevan sälekaton. Pohjakerroksessa olivat työhuoneet, kirjasto, kokoelmatiloja sekä ulos avautuva pieni pylväshalli.
09_Keski-Suomi_MLR
Kaikki oli rapattu ja slammattu valkoiseksi, taidemuseon sisätilojen tunnusvärillä. Sisustus oli teetetty ja kalusteet hankittu Artekin kautta. Vaikutelma oli ilmava. Talonpoikaisesineitäkin kohdeltiin itsenäisinä taideteoksina. Näyttelyrakenteet olivat kevyitä siirrettäviä seinäkkeitä ja vitriinejä. Esitystapa oli omaksuttu Milanon Suomelle menestyksekkäistä muotoilutriennaaleista.[27]
Aallolle itselleen omistettu Alvar Aalto -museo perustettiin 1966. Sen suunnitelmaan yhdistettiin Keski-Suomen museon laajennussuunnitelma. Alvar Aalto -museo valmistui 1973 rinteen juureen, ja sieltä sai Aallon ystävä Jalo Sihtola ensimmäisen pysyvän sijan kotimaista ja ulkomaista taidetta sisältävälle kokoelmalleen. Keski-Suomen museon laajennus valmistui vasta 1990, jolloin sisäänkäynti ja luentosali siirtyivät pohjakerrokseen järven puolelle. Museoiden väliin varattiin mahdollisuus rakentaa yhdyskäytävä.
10_AAMpohja_MLR 11_AAMnäyttely_MLR.jpg
Alvar Aalto -museon kaksikerroksisen rakennuksen pohjakaava on vapaamuotoinen monikulmio. Sisääntulojulkisivu on ikkunaton ja muodostaa loivasti koveran kulman, jossa on kolmiosainen pronssiovi. Pohjakerroksessa on aula, kahvio, luentosali, kirjasto, toimistotilat ja tauluvarasto, toisessa kerroksessa 700 neliön suuruinen yhtenäinen näyttelytila, jota rytmittävät sileät valkoiset pylväät ja siirreltävät seinäkkeet. Seinät ovat molemmissa museoissa valkoiset, aulojen lattiat punaruskeaa tiiltä, näyttelytiloissa vaalean harmaata linoleumi- tai muovimattoa. Aalto-museon yläkerran taustana on ”revontuliseinä” muistona New Yorkin maailmannäyttelystä (1939).
Julkisivun tekstuuri on karhea: pohja on Arabian hallatiiltä, jonka päällä on tiheä posliinisauvoista rakennettu ”pystyrimoitus”. Pihan ulkovalaistus on Aallon suunnittelema, ja museoiden välissä virrannut puro päätyy istutusten ympäröimäksi kaskadilammikoksi. Kokonaisuus on Alvar Aallon museosuunnitelmien erilaisten elementtien kokoelma.[28]
”Louisiana-entusiasmi”[29]
Koko 1900-luvun jälkipuolen ajan suomalaisia innosti Kööpenhaminan lähellä Humlebaekissa kesällä 1958 avattu modernin taiteen museo Louisiana, jonka syntysanat lausui suurliikemies-keräilijä Knut W. Jensen 1945. Lähtökohta oli 1855 valmistunut kartano ja sitä ympäröivä merellinen kulttuurimaisema.
Louisianan taidemuseo on esimerkki orgaanisen kasvun museosta (Jørgen Bo ja Wilhelm Wohlert, 1956–91). Kuudessa vaiheessa rakennettu museo on sijoitettu maastoon niin, että maisema on säilynyt mahdollisimman koskemattomana. Ulkoapäin matalilta näyttävät rakennukset muodostavat nauhamaisen, osittain maanalaisen lenkin, jonka kiertämällä näkee koko näyttelyn (10 800 m²). Seinämateriaaleja ovat valkoinen tiili ja lasi, lattioissa klinkkeri ja katoissa mänty. Paviljonkeja yhdistävät läpinäkyvät lasikäytävät, joista avautuu näkymiä luontoon ja ympärillä levittäytyvään veistospuistoon.[30]
Museo taiteilijan tuotannolle - Wäinö Aaltosen museo, Turku (1967) ja Eero Nelimarkan museo, Alajärvi (1964)
Kuvanveistäjä Wäinö Aaltosen museo avattiin 1967. Muutamat yksityishenkilöt olivat vuonna 1940 ryhtyneet ostamaan Aaltosen töitä museon aikaansaamiseksi. Sijoituspaikaksi taiteilija ajatteli kotiaan Helsingin Kulosaaressa, toiset pitivät Tamperetta jo hänen ulkoilmamuseonaan, mutta kun Aaltonen aikoi muuttaa Turkuun, päätti kaupunki tarjota museolle paikkaa Turusta taiteilijan 70-vuotispäivänsä kunniaksi 1964.
Wäinö Aaltonen lupasi lahjoittaa ja tallettaa sovitut teokset sekä arkistomateriaalin, kaupunki lupasi rakentaa talon. Aaltonen edellytti, että hänet nimettäisiin kymmeneksi vuodeksi museon intendentiksi, ja mikäli hän sitä ennen kuolisi, hänen poikansa jatkaisi. Aluksi oli tarkoitus, että Wäinö Aaltonen olisi saanut työtilat rakennuksesta. Tontti osoitettiin Aurajoen rannasta, teatteritalon ja valtion virastotalon rintamaan. Aaltonen suunnitteli museon poikansa, Oulun yliopiston asemakaavaopin professori Matti Aaltosen toimiston kanssa. Yhteistyötä koordinoi Turun kaupunginarkkitehti A. S. Sandelin.[31]
13_WAMpohja_MLR 14_W Aaltonen_MLR 16_WAM veistossali Volker von Bonin
Arkkitehtisuunnittelun lähtökohtana on Alvar Aallon Tallinnan taidemuseon kilpailuehdotus (1936-37). Berliinissä rakenteilla ollut, arkkitehti Ludwig Mies van der Rohen suunnittelema Neue Nationalgalerie innoitti ajanmukaistamaan suunnittelua.
Vaalea suoraviivainen rakennus on ahtaalla rinnetontilla porrastetusti, ylimpänä kohoaa 11 metriä korkea veistossali. Sisääntulo jäsentyy ”aaltomaisesti”: terasseittain kohoaviin näyttelytiloihin (1 100 m²) siirrytään ulko-ovea vastapäätä lähteviä porrasaskelmia pitkin. Aulasta vasemmalla lasiseinän takana aukeaa sisäpiha veistoskoristeisine vesialtaineen.
Ensimmäinen suunnitelma oli lopputulosta modernimpi. Jykevän ulkoterassin lisäksi arkkitehdit olisivat halunneet julkisivuun betonielementtejä (Sibelius-museossa tämä toteutui) tai uurrettuja mineriittilevyjä. Tavoitteena oli luoda ”huomaamatonta, ekonomista arkkitehtuuria”.[32] Tilaajat halusivat arvokkaampaa: pääjulkisivuun käytettiin travertiinia ja sivuihin kalkkihiekkatiiltä sekä lattioihin klinkkerin sijasta kalkkikiveä. Eniten suunnittelua ohjasi veistoskokoelma, jonka laajuus oli tiedossa.
19_Nelimarkka_MLR
Nelimarkka-museo avattiin 1964. Hanke oli syntynyt taidemaalari Eero Nelimarkan toiveesta luoda taidekoulu, jota varten hän oli perustanut säätiön 1945. Vuonna 1961 ostettiin Alajärveltä Nelimarkan suvun vanha kantatila. Puretun navetan paikalle valmistui 1964 Nelimarkan ystävän arkkitehti Hilding Ekelundin piirustusten mukaan pääjulkisivultaan klassisistinen koulu- ja museorakennus, muilta osin 1960-luvun kouluarkkitehtuuria. Nelimarkka korjasi vaikutelmaa haluamaansa klassiseen suuntaan piirtämällä itse laajennusosan 1972–74. Museota laajennettiin vielä 1997 (Käpy ja Simo Paavilainen). Nelimarkka-museo on 1900-luvun lopulla viimeinen aluetaidemuseo.[33]
1960-luvun muita uusia museorakennuksia
Arkkitehtuurin käänne 1960-luvulla käynnisti keskustelun ammattikunnan sisällä. Nuoremman polven yksinkertaista ja anonyymiä rakentamista vaativille suunnittelijoille oli tärkeää muunneltavuus ja laajennettavuus. Esikuvana voi pitää saksalais-amerikkalaista arkkitehtiä Mies van der Rohea.[34] Betonin valupinnan ja rakenteiden näkyville jättämistä on kutsuttu myös betonibrutalismiksi. 1970-luvulla alkoi mittavampi vanhojen rakennusten muuttaminen museoiksi, mikä toi mukaan rakennussuojelukysymykset.[35]
18a Sibelius-museo js Mikkoau 2016 WLM 18b_Sibelius_MLR 18d Sibelius Hhö 2013
- Turun linnan korjaus ja suuri näyttelyhalli ullakolle (Erik / Carin Bryggman, 1961–87),
- Tornionjokilaakson maakuntamuseo, Tornio (Jouko V. Ylihannu, 1962, Matti Porkka, 1981),
- Tammisaaren museon näyttelyhalli (Ola Hansson, 1963),
- Emil Cedercreutzin museon ”Maahengen Temppeli” Harjavalta (Jonas / Mariana Cedercreutz, 1963–97),
- Didrichsenin taidemuseon näyttelysiipi Helsinki (Viljo Revell, 1965),
- Sibelius-museo (Woldemar Baeckman, 1968) Åbo Akademin puutarha-alueelle Turkuun,
- Pohjanmaan museon näyttelysiipi, Vaasa (Erik Kråkström, 1968),
- Helsingin taidemuseon Kluuvin galleria (Aarno Ruusuvuori, 1968),
- Ortodoksinen kirkkomuseo, kirkkokunnan Kuopion keskustalossa (Dag Englund, 1969),
- Yrjö Liipolan museo, Koski Tl (Eero Ponkala, 1970).
20_Didrichsen_MLR.jpg
Museo taidekokoelmalle - Meilahden taidemuseo, Helsinki (1967) ja Sara Hildénin taidemuseo, Tampere (1979)
Taiteen keräilijöille tärkeintä on ollut saada pysyvä paikka ja omalle kokoelmalle sopivat näyttelytilat.
Helsingin kaupungin taidemuseo nousi Meilahteen Tamminiementielle 1967. Kaupunki osti Meilahden kartanon kantatilan vanhat rakennukset, jolloin kypsyi ajatus yhdistää tuolloin innostusta herättänyt ja komiteatyöskentelyn tuloksena määritelty ”monitoiminnallinen taidekeskus” tähän.[36] Kun kaupungilla oli jo tiedossa useita lahjoituksia, päätettiin kunnollisten näyttelytilojen rakentamisesta omia kokoelmia varten, samalla kun otettiin vastaan Leonard ja Katarina Bäcksbackan perikunnan lahjoittama vanhemman kotimaisen taiteen kokoelma.
Kokonaista museota – taidekeskuksesta puhumattakaan – ei kuitenkaan tehty, vaan kyseessä on yksistään näyttelyrakennus. Suunnittelutehtävä annettiin kaupungin arkkitehdeistä Tero Aaltoselle.
22_Meilahti2_MLR 23_Meilahtipohja_MLR. jpg
Tanskalaisen Louisianan taidemuseon vaikutusta voi nähdä näyttelyrakennuksen paikanvalinnassa ja itse rakennuksessa. Tontti on loivassa rinteessä, joka avautuu merenlahdelle. Perikunnan edustajalla Ingjald Bäcksbackalla oli mielessään ripustussuunnitelma ja kokoelman vaatimat juoksumetrit, jotka sitten ”juostiin” maastossa arkkitehdin ja mittanauhan kanssa. Alvar Aalto -museota käytiin katsomassa. Intendentti Marja-Liisa Bell laski muiden tilojen tarpeen ja toimi neuvonantajana.
Kartanon lehtevään puistoon 1976 valmistunut valkoisella kahitiilellä verhottu rakennus (1 560 m²) on yksinkertainen. Sisäänkäynti on itäpäädyssä, jossa on avara klinkkerilattiainen aula kartanon puistoon avautuvine lasiseinineen. Aulaa oli mahdollista käyttää myös luentosalina. Näyttelytilat koostuvat viidestä suorakaiteen muotoisesta salista, jotka noudattavat huoneesta huoneeseen -mallia silmukkana, mistä muodostuu niin sanottu ”pakkokierto”. Ensimmäinen sali on suurin ja muita korkeampi. Kunkin salin keskivaiheilla on vastakkain lyhyet seinäkkeet, jotka jakavat ne ikään kuin kahteen pienempään huoneeseen.
Salien väliset ovet on sijoitettu kauas toisistaan, tukemaan johdonmukaista kiertoa. Saleihin päivänvaloa tulee kattoikkunoiden välityksellä seinänvieriä kiertävien valokuilujen kautta. Lattioita peitti aluksi sisalmatto ja seinät oli verhottu tärkätyllä juuttikankaalla, kuten taidegallerioissa oli tapana. Salien alla oli varasto ja ikkunallisia teknisiä tiloja.[37]
Tilat toimivat hyvin ja Meilahden museo oli pitkään kaupungin parhaita näyttelypaikkoja. Kahvilaa rakennukseen ei tullut, sitä varten korjattiin viereinen kartanon puinen päärakennus 1800-luvun alkupuolelta. Puistossa on ollut näytteillä veistoksia ja siellä on järjestetty taidetapahtumia, mutta suunniteltuja laajennuksia ei toteutettu.
24_Hilden ilmakuva Teuvo Kanerva 25_Hildenleikkaus_MLR.jpg
Sara Hildénin 1979 avattu taidemuseo perustuu niin kotimaiselle kuin ulkomaiselle modernismille ja nykytaiteelle. Ensimmäiset teokset Hildén osti vuoden 1961 Ars-näyttelystä. Hän lahjoitti kokoelmansa nimeään kantavalle säätiölle, joka solmi 1975 sopimuksen Tampereen kaupungin kanssa uuden museon rakentamisesta ja teosten pysyvästä sijoittamisesta sinne. Kaupunki vastaa museon ylläpidosta ja säätiö kartuttaa kokoelmaa.
Paikkaa valittaessa Hildén mieltyi rakenteilla olleen Särkänniemen huvipuiston läheisyydessä sijainneen vanhan huvilan Näsijärvelle avautuvaan rinnetonttiin ja rakennusten jäännöksiin, jotka loivat perustan veistospuistolle. Tärkein lähtökohta oli juuri tämä paikka, jota voi luonnehtia jopa välimerelliseksi.
Tavoite oli sama kuin Helsingissä: rakentaa yksityiselle kokoelmalle ihanteelliset olosuhteet. Suunnittelijaksi valittiin tamperelaisen Pekka Ilveskosken arkkitehtitoimisto, joka konsultoi myös Meilahden taidemuseon suunnitellutta Tero Aaltosta. Paikan lisäksi lähtökohdiksi otettiin näyttelysalien tarkoituksenmukainen liittyminen toisiinsa sekä teoksille sopivan valaistuksen luominen. Maalaussalit ovat ikkunattomia, mutta tärkeitä näköalaikkunoita on salien liitoskohdissa. Arkkitehtuuriin suoraan vaikuttanut ero oli siinä, että nykytaiteen teokset ovat suurikokoisempia, väreiltään kirkkaampia, usein ääntä, valoa ja liikettä sisältäviä.
Hildén oli luonut kokoelmansa yhteistyössä Ateneumin asiantuntijoiden kanssa ja tutustunut matkoillaan keskeisiin eurooppalaisiin museoihin. Amerikkalaisia museoita puolestaan tunsi suunnittelussa mukana ollut Asko Rasinperä, joka oli opiskellut Yhdysvalloissa. Ulkomaisia rakennuksia, joihin on viitattu, ovat Nizzan lähelle 1964 valmistunut yksityinen nykytaiteen museo Fondation Maeght (Josep Lluis Sert), etenkin veistospuiston osalta, Berliinin Brücke-Museum (Werner Düttmann, 1967) sekä ”monoliittista ekspressionismia” edustava Emerson Museum of Art (I. M. Pei, Syracuse N. Y., 1968).
Kaksikerroksisen rakennuksen pohjakaava edustaa neliapila-tyyppiä (ydin ja satelliitit). Sisäänkäynti on suoraan toiseen kerrokseen, jossa on toimistosiipi, luentosali ja maalausgalleriat. Keskisalista laskeudutaan pohjakerroksen veistostiloihin, joissa on välitasanne, ja edelleen kahvioon ulkoterasseineen. Kaikki näyttelytilat ovat luonteeltaan avoimia ja niissä voi liikkua vapaasti, haluamassaan järjestyksessä. Alakerrassa on järven suuntaan, pohjoiseen ja länteen suuret ikkunaseinät.
26a_Hilden_SJE 26_Hilden_HHö 26b_Hilden_SJE
Ulkoseinät ovat vaalearouheista pesubetonia, sisällä kantavat seinät on jätetty betonivalun jälkeen käsittelemättä. Näyttelyseinät on verhottu valkeaksi maalatulla kangaspinnoitteella, ja tilojen jakamiseksi pienempiin osiin on käytössä ollut irtoseiniä. Lattiat ovat kivilaattaa. Rakennus oli valmistuessaan maan suurin taidemuseo (2 500 brm²)[38]
Satakunnan kulttuurihistoriallinen museo, Pori (1973)
Porissa avattiin Satakunnan museon uudisrakennus 1973. Samana vuonna valmistui Alvar Aalto -museo Jyväskylään. Satakunnan museo oli perustettu 1888. Kokoelmat oli kerännyt ja järjestänyt opettaja Matti Kauppinen, joka toimi aktiivisesti myös Museoliitossa sen perustamisesta lähtien. Vaihtuvissa vuokratiloissa majaillut museo oli saanut pysyvämmän sijan monenlaisessa käytössä kuluneesta, rapatusta ”Iltaman talosta” vuonna 1903.
Ajatusta oikeasta museorakennuksesta pidettiin yllä, ja kopin otti vuonna 1958 museonjohtajaksi valittu Unto Salo, museon ensimmäinen ammattilainen ja tuolloin myös Museoliiton puheenjohtaja. Ennen Turun arkeologian professoriksi siirtymistä hänen viimeiseksi tehtäväkseen jäi uuden museon tilaohjelman laatiminen.[39] Tontiksi osoitettiin pieni kolmiomainen puisto Hallituskadun päästä, jokirannan ja oluttehtaan välistä, ja suunnittelijaksi valittiin kaupunginarkkitehti Olaf Küttner. Suojelukiistaa tai kilpailua ei näin vaikeasta paikasta syntynyt.
Sisäänkäynti on etelästä, Hallituskadun puolelta, josta vaaleanharmaa pesubetonipintainen rakennus (4 603 brm²) näyttäytyy ajan tavan mukaan yksikerroksisena. Aulasta oikealla on toimistosiipi kadulle suuntautuvine ikkunariveineen ja luentosaleineen, vasemmalla yhtenäinen ikkunaton tilapäisnäyttelytila (400 m²) ja suoraan edessä kahvila, josta avautuvat pohjoispuolen ainoat ikkunat Jazzkadun (Eteläranta) yli joelle.[40] Toimistotilojen takana on perusnäyttelytilojen suuri kolmikerroksinen blokki, johon päivänvaloa saadaan kaikkien kerrosten läpi ulottuvan kulmikkaan valopihan kautta.
28b_Satakunnan museo_MLR 28_SatMsisältä_MLR.jpg
Alun perin vaaleahkoja avaria sisätiloja jäsentävät lehtereitä kannattelevat pylväät ja niitä yhdistävät umpilaitaiset betoniportaikot. Ruskeasävyisissä näyttelytiloissa oli ritiläkatot ja kokolattiamatot. Sisustuksen suunnitteli Tauno Kivinen.
Kokonaisvaikutelmaltaan museo on sukua Kalifornian Berkeley-yliopiston taidemuseolle (Mario J. Ciampi, 1970), ja Amsterdamin saman aikainen Van Gogh -museo (Gerrit Rietvelt, 1973) tunnettiin.[41]
Big Bang – museot haluavat uudistua
Vuoden 1970 tienoilla alkoi kehityskulku, jota museologisessa kirjallisuudessa kutsutaan alkuräjähdykseksi. Se lähti liikkeelle ekomuseo-ajatteluna, joka pyrki häivyttämään rajat museon ja sitä ympäröivän yhteisön väliltä. Painopiste haluttiin siirtää laitosajattelusta aktiviteetteihin, iskusanoina ”elävä museo” ja pontimena mahdollisuus vaikuttaa tulevaisuuteen. Tavoitteena oli asettaa museo laajaan sosiokulttuuriseen yhteyteen, jossa luonnontiede, historia, taide ja teknologia muodostaisivat kokonaisuuden.[42]
Tähän vaiheeseen sijoittuu Museoviraston perustaminen 1972 museoinstituution kokonaisvaltaiseksi kehittämiseksi. Suomen museoliitto oli itsenäistynyt 1957 muuttamalla Kansallismuseosta omiin tiloihin Cygnaeuksenkadulle.
Ammatillistuminen vauhdittui, näyttelyitä järjestettiin 1970-luvulla ennätyksellinen määrä sekä museoissa että ulkopuolisissa tiloissa, yleisömäärät moninkertaistuivat. Erityisesti alettiin ottaa huomioon lapset: ensimmäiset museolehtorit aloittivat Ateneumissa ja Kansallismuseossa 1970-luvun alkuvuosina.
Näyttelysuunnittelusta tuli museoissa kriittinen tekijä. Suomen museoliitto ryhtyi järjestämään kursseja tästä tematiikasta. Teknisistä kysymyksistä, kuten museoiden murto- ja paloturvallisuudesta, esineistön oikeista säilytysolosuhteista ja rakennusten suojelusta, tuotettiin ohjekirjoja ja suosituksia. Erikoismuseokenttä alkoi hahmottua. Aika oli kypsä laajemmalle keskustelulle museorakennuksista.[43]
Museoarkkitehtuuriseminaari 1979
Museoliitto järjesti museoarkkitehtuuriseminaarin 26.–27.11.1979 Espoon Hanasaaressa. Sen aiheuttivat Porin taidemuseon, Helsingissä Taideteollisuusmuseon (Designmuseo) ja Sinebrychoffin taidemuseon avaamiset sekä satavuotiaan Ateneumin lähestyvä korjaus. Siitä oli käynnistetty hankesuunnittelu 1978 (Laiho – Pulkkinen – Raunio, toteutus 1985–91).
Seminaariin osallistui 140 henkeä. Esiteltäväksi koottiin kaikki tieto ja kokemukset, mitä siihen mennessä oli saatu uudistiloista ja vanhojen rakennusten korjaamisesta. Museoasiainsihteeri Jorma Heinonen oli paneutunut niin museoarkkitehtuurin historiaan ja estetiikkaan kuin viimeisimpään tekniikkaankin.[44] Hän esitteli Aallon Tallinnan taidemuseon nerokkaana pitämänsä ehdotuksen. Parinkymmenen vuoden aikana valmistuneita museohankkeita esiteltiin esimerkein.
Alueellinen museoverkosto syntyy – 1980-luvulla liki 200 uutta museota
Valtioneuvosto teki 1979 päätöksen alueellisen museoverkoston muodostamisesta. Sitä koskeva valtionavustuslaki säädettiin 1988. Vuonna 1992 säädettiin Museolaki ja asetus, jonka piiriin pääsivät kaikki ammatillisesti hoidetut museot.[45] Laskennallisena pohjana olivat henkilötyövuodet. Lakiin lisättiin museoiden yhteiskunnallinen tehtävä 1996.
Maakuntamuseot ja aluetaidemuseot nimettiin suurimpien kaupunkien olemassa olevien museoiden pohjalta vuosina 1980–1995. Erikoismuseokenttää vahvistettiin vielä muutamilla museoilla, jotta kaikille tärkeiksi katsotuille osa-alueille saatiin oma vastuumuseonsa, jotka vahvistettiin 1993–2010.
Uusia museoita oli toisen maailmansodan jälkeen perustettu noin 15-20 museon vuosivauhtia. Lakipiste saavutettiin 1980-luvulla, jolloin museoita syntyi kaikkiaan liki 200. Kasvu oli samanlaista kansainvälisestikin. Sitten seurasi nopea lasku niin, että viimeisellä vuosikymmenellä ennen vuosituhannen vaihdetta museoita perustettiin meillä enää parikymmentä.
Arkkitehtuurissa Oulun kouluksi kutsuttu postmoderni suuntaus tavoitteli elämyksellisyyttä.
Kaupunginmuseoiden ja kotiseututalojen rinnalla ovat paikallismuseot. Niihin kuuluvat historiallisten henkilöiden, valtiomiesten, kulttuuripersoonien ja urheilijoiden museoidut kodit, paikkakunnalle luonteenomaisten ammattien ja ilmiöiden museot sekä yksittäisten keräilijöiden moninaiset kokoelmat ja kohteet.[46]
27_Ainola_WLM 27b_Yli_laurosela_MV
Museo vanhassa rakennuksessa
”Vanhat rakennukset museokäytössä” oli Museoliiton museoarkkitehtuuriseminaarissa 1979 toisen pääpuhujan, Teknillisen korkeakoulun arkkitehtuurihistorian professori Henrik Liliuksen teema. Lilius puolusti voimakkaasti alkuperäisiä rakenteita ja kritisoi historiallisten rakennusten sisätilojen uudistamista. Liliuksen mielestä uuden käytön tarpeet eivät saisi kokonaan ohittaa rakennuksen omaa historiaa, vaan näiden välille pitäisi etsiä tasapaino. Keskustelu jatkui vilkkaana Ateneum-rakennuksen korjauksen alkaessa ja uudistamisen edetessä (1985-91).[47]
29_Pori_MLR.jpg
Henrik Liliuksen seminaarialustuksen taustalla olivat seuraavat silloin ajankohtaiset museohankkeet:
- Brobergska Samskolanin (Gustaf Nyström, 1894 / Olli Borg, 1978) muutos Taideteollisuusmuseoksi,
- Sinebrychoffin patriisitalon (Jean Wik, 1842 / Sirkka-Liisa Tarumaa, 1979) muuttaminen taidemuseoksi,
- Porin pakka- ja vaakahuoneen (C. J. von Heideken, 1858 / Kristian Gullichsen, 1979) muutos Maire Gullichsenin taidekokoelman tiloiksi.
Museo teollisuusrakennuksessa
Luontevimmin museoiksi on taipunut teollisuusarkkitehtuuri. Teollisuusrakennusten houkuttavuuteen vaikuttavat niiden avarat, vapaasti muunneltavat hallitilat. Teollisuustuotannosta tyhjeneviä tehtaita on otettu museokäyttöön satakunta. 1900-luvun loppua kohti teollisuusrakennusten ja kokonaisten alueiden käyttö kulttuuritiloina vielä lisääntyi.
30_Vapriikki Tiia Monto WLM 2017
- Riihimäen kaupungin vuonna 1975 hankkima, lasitehtaan 1910-luvulla valmistunut rakennus, josta Tapio Wirkkala suunnitteli Suomen lasimuseon (näyttely 1 762 m²),
- Vuonna 1898 perustettu Suomen rautatiemuseo muutti Helsingin asemalta Hyvinkäälle 1973–74,
- 1969 perustettu Tekniikan museo asettui vuodesta 1970 lähtien Helsingin vesilaitoksen sata vuotta vanhoihin tiloihin Vantaanjoen suulle.
- Kaapelitehdas Helsingissä (W.G. Palmqvist, 1939–1954) on 1990-luvun alusta ollut kaupungin omistama kiinteistöyhtiö. Entisen Nokian kaapelitehtaan suurimman hallin (2 700 m²) itäpäähän muuttivat 1990-luvun alussa Suomen Valokuvataiteen museo (perustettu 1969), Teatterimuseo (perustettu 1962) ja Hotelli- ja ravintolamuseo (perustettu 1971) päällekkäisiin tiloihin, joiden museotilat viimeisteltiin 2000.
- Tampellan tiloissa avattiin 1996 Tampereen museokeskus Vapriikki (14 000 m²) lukuisine museoineen.
- Hämeenlinnan taidemuseon (perustettu 1952) viisi rakennusta sisältyvät Verkatehtaan (1895) kokonaisuuteen, joka oli pääosin oppilaitoskäytössä 1980- ja 90-luvuilla, kunnes se päätettiin suunnitella kokonaisuutena erilaisia kulttuuripalveluita varten 2001 (avaus 2007).
- Lapuan patruunatehtaan (perustettu 1923) tiloihin on 1990-luvulta lähtien kasvanut Kulttuurikeskus Vanha Paukku, jossa on muun muassa useita museoita kuten tehtaanmuseo (perustettu 1993), taidemuseo (perustettu 1998) ja Pyhälahden valokuvaamomuseo.
Taidemuseo kulttuurikeskuksessa - Kemi (1977), Tornio (1985) ja Kouvola (1987)
Joidenkin kaupunkien uusiin kulttuurikeskuksiin tehtiin tilat museolle. Kemin taidemuseo sai pysyvät tilat jo kulttuurikeskuksen ensimmäisessä rakennusvaiheessa 1977 (Arkkitehtitoimisto Jan Söderlund) ja lopullisen paikkansa 1990, kun koko kulttuurikeskus valmistui. Kemin vuonna 1947 alkunsa saanut taidemuseo oli ensimmäinen aluemuseokokeiluun osallistunut, ja siitä tuli maakunnallinen taidemuseo vuonna 1981 toiminta-alueenaan koko Lapin lääni.
Taidemuseon osuus kulttuurikeskuksesta on vajaa kymmenes. Nykytaiteelle soveltuvaa näyttelytilaa on 551 m². Suoraviivaista punatiilistä rakennuskokonaisuutta jäsentävät nauhaikkunat ja eri tilojen korkeuserot. Sisätilojen suoraviivaisuuden murtaa museon näyttelytilan ja kirjaston välinen diagonaalinen kantava seinä. Valmistuessaan rakennus tarjosi tilat kaupunginkirjastolle, kaupunginteatterille, kauppaoppilaitokselle ja työväenopistolle, joilla on torin puolelta yhteinen sisäänkäynti kahviloineen, ravintoloineen ja kaksine auditorioineen.[48]
37_Kemisali_MLR 37b_Kemi_MLR
Torniolainen kauppaneuvos Veli Aine toivoi, että hänen kotimaista 1800- ja 1900-luvun taidetta sisältävä taidekokoelmansa tulisi esiin kotikaupungissa. Ajankohdalle tyypilliseen tapaan pyrittiin taidemuseo perustamaan ”kulttuurikeskukseen veden äärelle”. Siinä maakuntamuseon, taidemuseon ja kirjaston tilatarpeet yhdistyisivät. Tuloksena oli päätös laajentaa maakuntamuseota omalla tontillaan ja rakentaa taidemuseolle sekä kirjastolle uusi yhteinen toimitalo.
Taidemuseon vuonna 1979 sovittu toimintamalli oli sama kuin Sara Hildénin museossa: kaupunki vastasi rakennuksesta ja museon ylläpidosta, Aineen Kuvataidesäätiö kokoelmien kartuttamisesta. Vuonna 1985 valmistunut, Rajakartanoksi nimetty talo nousi aiemmin tornitaloille kaavaillulle tontille. Arkkitehdiksi valittiin paikallinen Matti Porkka, joka suunnitteli myös maakuntamuseon laajennuksen. Porkka ei ollut suunnitellut museotiloja, mutta osallistui museoarkkitehtuuriseminaariin ja tutustui Helsingin kaupungin taidemuseoon, Sara Hildénin taidemuseoon ja Lapinlahden taidemuseoon (Esa Koivuniemi ja Georg Bystroff, 1977).
Torniossa Aineen museon ja kirjaston rinnakkaiset Torikadun suuntaiset tilat ovat suunnilleen samankokoiset. Rakennusmassat ovat kuitenkin toisiinsa nähden hieman vinottain ja kummallakin on oma luonteensa. Julkisivut on muurattu valkoisesta kahitiilestä. Sen päällä on ikkunatonta museonäyttelyaluetta korostava pystysuuntainen hiekanruskea marmoriharkotus, kirjaston ikkunoissa vastaavasti ritiläverhous. Yhteinen sisäänkäynti on rakennusten välissä toisessa kerroksessa, kahvila ja auditorio museon puolella. Museokäytössä on 1 576 m².
Sisäseinät ovat valkoiset, portaat ja käytävät on päällystetty Lapin louhemarmorilla, kahvila ja näyttelytilat sisal-laattamatolla. Näyttelysaleja on viisi, ja niihin Aine halusi Helsingin Meilahden taidemuseon tapaisen pakkokierron, jotta kaikki teokset tulisivat nähdyiksi. Ulkona oli tilaa veistospuistolle. Veli Aine sai toiveensa toteutumaan ja toimi museolautakunnan ensimmäisenä puheenjohtajana.[49]
38_Kouvola_MLR
Kouvola-talon (kilpailu: Erkki Valovirta, 1982) kotimaiselle nykytaiteelle omistettu museo perustettiin 1986 ja avattiin 1987 ”koulutus- ja kulttuurikeskuksessa”. Taidemuseon (1 000 m²) lisäksi siinä oli konserttisali sekä musiikkiopiston, kansalaisopiston ja taideharrastajien tiloja, samoin kaupungin toimistoja.
Puistomaisessa ympäristössä on hiekanvaalea kaksikerroksinen postmoderni rakennuskokonaisuus, yhteisen sisäänkäynnin ympärille rypälemäisesti kiertyvine pohjakaavoineen ja tummine aumakattoineen. Kaupunkien monitoimitaloissa tilojen käyttäjät voivat vaihtua, museo yleensä jää ja laajenee.[50]
Taide- ja kulttuurihistoriallinen museo, Saarijärvi (1989)
Saarijärven museo (Laila Niemioja / Heikki Uusitalo, 1989) avattiin 1989 saarijärveläisen kuvanveistäjä Kain Tapperin tuotantoa esittelevällä näyttelyllä. Ajatus museosta konkretisoitui, kun saarijärveläissyntyinen Toivi Järvinen määräsi testamentissaan 1982 omaisuutensa käytettäväksi taidemuseon rakentamiseen. Museoon koottiin yhteen Toivi ja Osmo Järvisen 1900-luvun alun kotimaisen taiteen kokoelma, Saarijärven kaupungin omistamat teokset ja Saarijärvi-seuran kulttuurihistoriallinen esineistö.
Vuonna 1948 perustettu Saarijärvi-seura vaali Saarijärven ja sen lähialueiden taiteilijoiden tuotantoa ja kulttuuriperintöä. Keskeisessä roolissa oli Tapperien kotitalo Juhola ja neljän taiteilijaveljeksen, kuvanveistäjä Kain Tapperin, kirjailijoiden Harri Tapperin ja Marko Tapion sekä lavastaja Yrjö Tapperin elämä ja tuotanto.[51]
Helsingissä työuransa tehneiden Toivi ja Osmo Järvisen omakotitalon tontille rakennettiin vaaleasta tiilestä puhtaaksi muurattu rakennus (1 150 m²). Saarijärven museonjohtaja Kari Kotilainen laati tilaohjelman, ja Jyväskylän museoiden kollegat työskentelivät rakennustoimikunnassa, joka osallistui Museoliiton Saksan-matkalle 1987. Frankfurtissa huomioitiin Main-joen molemmille rannoille nouseva vanhaa ja uutta arkkitehtuuria yhdistävä Museumsufer ja amerikkalaisarkkitehti Richard Meierin suunnittelema taideteollisuusmuseo.[52]
Saarijärvellä sisäänkäynti on suoraan näyttelykerrokseen, sen alapuolella ovat työ- ja varastotilat sekä sisääntulopäädyssä aulakahvio terasseineen. Muuta korkeampi keskiosa – ”valkoinen kuutio” – klinkkerilattioineen ja komeine järvinäkymineen – on tarkoitettu taiteelle ja erikoisnäyttelyille, itäpään matalampi ”musta kuutio” kulttuurihistoriallisille kokoelmille.[53]
34_Saarijärvi_MLR
Muita uusia museoita 1980- ja 1990-luvuilla
- Hyvinkään taidemuseo Jussintorin liikekeskuksessa (Ilmo ja Raimo Valjakka, 1981),
- Ahvenanmaan museot ja kaupunginkirjasto, Maarianhamina (Helmer Stenros, 1981),
- Skärgårdsmuseet i Lappo (Folke Wikström, 1981),
- Tampereen taidemuseon maanalainen näyttelytila (Antti Ilveskoski, 1984),
- Etelä-Karjalan museon sijoittaminen 1700-luvun linnoitukseen (Lappeenrannan kaupunki, 1984, 1989),
- Villa Gyllenbergin näyttelysiipi Helsingin Kuusisaaressa (Ålander Packalen Korsström, 1985),
- Rovaniemen taidemuseo postiautovarikkoon (Juhani Pallasmaa, 1986),
- Hiihtomuseo, Lahden Urheilukeskus (Esko Hämäläinen, 1989),
- Suomen metsästysmuseo muutti Porvoosta Riihimäelle (Osmo Lappo, 1990),
- Oulun taidemuseo liimatehtaan kiinteistöön (Birger Federley 1922, Jorma Teppo, 1991),
- Kalevala-talo, Talvisotamuseo, Kuhmo (Heikki Kukkonen 1991/1994),
- Mobilia auto- ja tiemuseo, Kangasala (Lindqvist & Uosukainen, 1992–94),
- Aboa Vetus & Ars Nova, Rettigin palatsin laajennus (Frank Schauman, 1995),
- Salon taidemuseo Veturitallin uudisosa (Lauri Hollmén, 1998).
39_Hyvinkää_MLR.jpg 42b_Lappeenranta Et karj museo WLM
40_Gberg_MLR 42_Lahden hiihtomuseo HHö
Tiedekeskus Heureka, Vantaa (1989) ja Arktinen instituutti Arktikum, Rovaniemi (1992)
Museoiden painopisteet ovat siirtyneet tutkimuksen suuntaan ammatillisuuden ja resurssien lisääntymisen myötä. Voitaneen jo puhua tiedemuseoista taidemuseoiden rinnalla.
Tiedekeskus Heurekan rakentaminen Vantaan Tikkurilaan oli 1980-luvun saavutus (kilpailu: Heikkinen ja Komonen, 1985). Säätiöpohjainen Heureka avattiin yleisölle 1989. Juuret ovat Helsingin yliopistossa, idean esittivät professorit Tapio Markkanen, Hannu I. Miettinen ja Heikki Oja. Kutsukirje oli lähtenyt Helsingin, Espoon ja Vantaan kaupungeille, joista Vantaa tarttui mahdollisuuteen tarjoten tontin ja merkittävää rahoitusta.
43_Heureka_MLR
Tiedekeskukset ovat museoiden rinnakkaisilmiö. Tieteen popularisointi, pedagoginen ote ja elämyksellisyys ovat yhteisiä tavoitteita, pääasiallisena erona se, ettei tiedekeskuksilla ole omia kokoelmia vartioitavanaan. Yleisötiloiltaan tiedekeskus muistuttaa avointa museota, uutuutena planetaario. Vapaus näkyy rakennuksen ulkoasussa, jota avaruusaiheineen voitaneen pitää uutta kokeilevan wau-arkkitehtuurin ensiesiintymisenä meillä.
44_Arktikum_MLR
Ajatus Arktisesta instituutista ja museosta virisi 1970-luvulla Oulussa ja Rovaniemellä. Konkreettinen aloite tuli Euroopan Kulttuurisäätiön Suomen osastolta. Vuosina 1983–84 järjestettiin arktisille maille suunnattu arkkitehtuurikilpailu, johon tuli 184 ehdotusta. Toteutus sidottiin Suomen itsenäisyyden 75-vuotisjuhlintaan, ja siitä kasvoi kansallinen hanke. Valtion talousarvioon varattiin varoja vuodelle 1988. Rovaniemen kaupunki tuli toiseksi maksajaksi ehdolla, että Aallon Lappia-talossa sijainnut maakuntamuseo sai keskuksesta uudet tilat.
Rakennus valmistui 1992, siinä toimivat näyttelyineen Lapin maakuntamuseo sekä Lapin yliopiston Arktinen keskus. Voittaneen tanskalaisen Claus Bonderupin työryhmän ehdotus on yhdistelmä klassisen museorakennuksen osia uudella tavalla yhdisteltynä. Valmiin rakennuksen julkisivu kaupunkiin päin muistuttaa temppelin päätyä pylväikköineen, oven takaa avautuu valkoiseksi maalattu kaksikerroksinen moderni hallimainen tila. Sen keskikäytävää kattaa lasinen galleria, joka valaistuna putkena jatkuu ulos ja Ounasjoen törmään upotettuna rantaan saakka.
1990-luvun viimeiset valtakunnalliset erikoismuseot – Lusto Savonlinnaan (1994), Siida Inariin (1998) ja Sarka Loimaalle (2005)
Uusiksi vastuumuseoiksi 1990-luvulla määriteltiin metsä-, saamelais- ja maatalousmuseo. Maan ensimmäiset kaupunkien museot olivat syntyneet 1800-luvulla rannikkokaupunkeihin. Sen jälkeen museoita rakennettiin myös sisämaahan niin, että kaupunkien museot ylsivät myös Keski- ja Itä-Suomeen, kunnes lopulta kotiseutu- ja pitäjänmuseoiden tiheä verkosto kattoi koko maan.
Pohjois-Suomi ja Lappi olivat olleet aktiivisia 1970-luvulta lähtien, erityisesti taidemuseoiden osalta. Yliopistojen lisäksi kaupungit kunnostautuivat: Oulun ja Rovaniemen kaupunginjohtajat Matti Rossi ja Matti Pelttari johtivat Suomen museoliiton hallitusta vuoron perään. Museot ja tiedekeskukset alkoivat hakeutua yhteen, kun viimeisiä valtakunnallisia museoita perustettiin. Niistä päätettäessä hajautuspolitiikka oli voimissaan, lisäksi valintaa tukivat matkailunäkökohdat.
45_Lusto_MLR 45a_Lusto_SLJe
Suomen metsämuseo Lusto Savonlinnan Punkaharjulla on metsäalan ja metsäkulttuurin erikoismuseo, joka avattiin tervalla ja pellavaöljyllä kyllästetyllä lehtikuusilaudalla vuoratussa betonirakennuksessa 1994. Vuonna 1988 perustettu säätiö järjesti yhdessä maa- ja metsätalousministeriön ja Punkaharjun kunnan kanssa avoimen arkkitehtuurikilpailun Suomalaisen metsätietokeskuksen rakentamiseksi vuonna 1990. Kokoelman painopiste on metsäkoneissa. Näyttelyt kertovat ihmisen ja metsän välisestä vuorovaikutuksesta.
Arkkitehtikilpailuun tuli 103 ehdotusta, ja voittaneet arkkitehdit Rainer Mahlamäki ja Ilmari Lahdelma suunnittelivat ”suomalaista modernismia” edustavan rakennuksen metsämaisemaan. Harjulta museon sisäänkäynnille johtaa katettu silta. Päänäyttely on museon pyöreässä osassa, jonka kalusteet ovat kiinteä osa arkkitehtuuria. Nimi Lusto tulee näyttelytilan (1 500 m²) muodosta ja merkitsee puun vuosikasvua, mutta siinä voi nähdä muistuman antiikin pyörötemppelistä.
46_Siida Nemo bis WLM 46a_Siida Nemo bis WLM
Saamelaismuseo oli perustettu ulkomuseona Inariin 1959. Jonkin aikaa sen jälkeen oli julistettu suunnittelukilpailu Oulun yliopiston arkkitehtiosaston opiskelijoille. Voittaja valittiin jatkokehittelyn pohjaksi, mutta asia hautautui ja herätettiin henkiin 1984. Hanke alkoi rahoituksen puolesta toteutua, kun museoon yhdistettiin Metsähallituksen Ylä-Lapin luontokeskus. Juhani Pallasmaan suunnittelema näyttelyrakennus Siida (merkitsee saamelaiskylää) valmistui metsäiseen rinteeseen museoalueen reunassa olleen sorakuopan paikalle vuonna 1998.
Sisäänkäynti on pohjakerroksessa, josta pääkerrokseen noustaan loivaa ramppia pitkin. Rakennus on istutettu ”pienipiirteiseen maisemaan” sen muotoja seuraten. Runko on teräsbetonia ja terästä, julkisivut puuta. Rakennuksen keskelle on koko pituudelta avattu ”luonnonvalorailo”.
Rakennussuunnittelu tapahtui rinnakkain näyttelysuunnittelun kanssa. Johdantonäyttely esittelee pohjoisen luonnon ja kulttuurin kehitysvaiheita jääkaudesta tähän päivään. Näyttelytilat ovat yönsinisiä, muut tilat yleisväritykseltään valkoisia. Museosta tuli kokonaistaideteos, jossa tavoitteena oli ”yhdistää tieteellinen sisältö teatterin tai taidenäyttelyn kaltaiseen elämyksellisyyteen”. Esineiden ja kuvien taustalla on eri vuodenaikoja ja luonnontapahtumia kuvaava äänimaisema.[54]
Suomen maatalousmuseo Sarka Loimaalla on viimeinen 1990-luvulla alkunsa saanut erikoismuseo. Suomen maatalouskonemuseosäätiö perustettiin 1992. ”Suomalaisen maatalouden 3000-vuotisen tarinan” kertova museo avattiin 2005 (arkkitehti Sarlotta Narjus).
Uudelle vuosituhannelle siirryttyä järjestettiin arkkitehtuurikilpailu Kotkan Merikeskus Vellamosta vuonna 2004 ja rakennus avattiin 2008 (Arkkitehtitoimisto Lahdelma & Mahlamäki Oy).[55]
Nykytaiteen museo Kiasma, Helsinki (1998)
Keskustelu museoarkkitehtuurista alkoi 1960-luvun vaihteessa Helsingin keskustasuunnitelmasta. Siihen oli merkitty paikka museolle, ja tänne uusi rakennus liki 40 vuotta myöhemmin nousikin. Nykytaiteen museon perustamisvuonna 1990 ilmestyi amerikkalaisen taidehistorioitsijan Douglas Crimpin pamfletti Museon raunioilla, jossa tämä pohti museon roolia ja vastuita, erityisesti nykytaiteen määrittelyssä ja ohjailussa.
47_Kiasma_MLR.jpg 48_leikkaus_MLR.jpg
Nykytaiteen museon rakennushanke lähti rivakasti käyntiin, lamasta oli etua. Kaupungin rakennuskoneistolta loppuivat työt, joten tehtiin sopimus, jonka mukaan valtio tilasi työn kaupungilta ja rakennuksen valmistuttua maksoi sen luovuttamalla museotalon arvoa vastaavan määrän rakennusmaata toisaalta.
Pohjoismaiden ja Baltian arkkitehdeille suunnattu suunnittelukilpailu käytiin 1993. Lisäksi oli kutsuttu mukaan neljä kansainvälisesti tunnettua arkkitehtiä. Ehdotuksia tuli 516, joista voittajaksi nousi yhdysvaltalaisen Steven Hollin[56] ehdotus Chiasma (silmistä aivoihin johtavien näköhermojen risteys).
Ehdotusta laatiessaan Holl kävi Helsingissä. Hän asui museotontin viereisen Vaakuna-hotellin ylimmässä kerroksessa, josta tutkiskeli tonttia ja sitä ympäröivää kaupunkinäkymää. Myöhemmin hän tutustui suomalaiseen rakennusperintöön kuten Petäjäveden kirkkoon. Rakennustyön käynnistyttyä suunnittelun Suomen tukikohtana toimi arkkitehti Juhani Pallasmaan toimisto.
49b_Kiasma_Sakari Kiuru MV 49_Kiasma_Tirri MV
Arkkitehtuurikilpailun voittajasta syntyi kohu. Arkkitehdit pitivät tonttia ahtaana ja rakennusta mahdottomana, koska sitä ei voisi muuttaa tai laajentaa, mikä oli ollut ihanne. Syytettiin myös amerikkalaisuuden palvonnasta. Kovin vastustus tuli Mannerheimin ratsastajapatsaan suojelijoiden taholta. Patsas jäi paikalleen, ja Holl otti sen huomioon etsiessään muotoa, joka nivoisi yhteen ristiriitaisetkin elementit tonttia ympäröivässä rakennus- ja puistomaisemassa. Rakennus valmistui 1998. Se huipensi 1900-luvun jälkipuolen museorakentamisen.
Kiasman viisi kerrosta ovat toisiinsa nähden hieman limittäin ja kaarevien seinäpintojen vuoksi eri suuruisia. Museotilaa on 9 100 m². Runko on terästä, ja betoni kaartuu kauniisti. Ulkoseinät ja katto on päällystetty sinkki-, alumiini-, messinki- ja lasilevyillä, sisäpuoli on valkoinen. Pohjakerroksen yleisötiloissa on myös puuta ja voimakkaita värejä. Rakennus on avoimen ja suljetun tilan yhdistelmä. Holl pitää taloaan avoimena, koska siellä on portaikkoja, hissejä ja oviaukkoja, jotka mahdollistavat vapaan liikkumisen. Sisään tullessa avautuu näkymä talon läpi, sekä päästä päähän, että alhaalta ylös valokattoon saakka.
Portaikon sijasta museoon noustaan kaarevaa ramppia pitkin. Sen molemmin puolin seinien takana on huoneesta huoneeseen kuljettavia näyttelysaleja, ylimpänä kattoikkunoin varustettu muita korkeampi sali. Luonnonvalon käyttö on Hollille tärkeää, sen vuoksi molemmissa päädyissä sekä länsisivulla on isot panoraamaikkunat. Näyttelysalien seinät ovat valkeat, lattiat tummanharmaata betonia. Tekniikka on upotettu, eikä arkkitehtonisia elementtejä ole korostettu. Tavoitteena on tila, jossa katsoja voi kohdata teoksen häiriöttä.
Lopputulos on paikkaansa sopeutuva talo, jonka kaartuva harmaa ulkokuori on kuin kotilo tai simpukka, joka suojelee helmenhohtoista sisältöään: ulkoa pieneltä vaikuttava rakennus avautuu sisääntulijalle juhlavan avarana. Valkoisen tarkoitus on pyhittää taide. Amerikkalainen arkkitehtuurintutkija Victoria Newhouse kirjoitti jo ennen Kiasman valmistumista kirjassaan Towards a New Museum näkevänsä Kiasman ”pyhänä tilana”.[57]
Museorakennuksen ikuisuuskysymyksiä
Museorakentamisen rinnalla on laaja kysymys: millaista historiakäsitystä museot ylläpitävät, kenen tarinoita kertovat. Vaikka museorakennukset muuttuvat, museorakentamisessa on edelleen ratkaistava samoja kysymyksiä. Halutaanko uudisrakennus vai korjataanko jokin vanha. Halutaanko luonnonrauhaan vai kaupungin ytimeen. Miten rakennus suhteutuu sisältöönsä, miten ympäristöönsä. Painotetaanko pysyvää näyttelyä vai vaihtuvaa ohjelmistoa. Onko näyttelykierto avoin vai suljettu ja miksi niin on. Mikä on luonnonvalon ja keinovalon suhde. Tehdäänkö temppeli vai toivotaanko toria.
Kirjoittaja
Filosofian tohtori, dosentti, tietokirjailija Marja-Liisa Rönkkö on toiminut eri tehtävissä lukuisissa museoissa, kuten museonjohtajana Helsingin kaupunginmuseossa 1978–1990 ja ylijohtajana Valtion taidemuseossa 1990–2000. Artikkeli perustuu tekijän väitöskirjaan Louvren ja Louisianan perilliset. Suomalainen taidemuseo sekä artikkeleihin teoksissa Museologia tänään ja Suomen museohistoria.
Artikkeli on julkaistu 2020.
Taidemuseot itsenäistyvät Ateneumin taidemuseon johdolla 1950- ja 60-luvuilla
Museoliitto oli perustettu 1923 kulttuurihistoriallisten museoiden yhteistyöelimeksi, mutta alusta lähtien keskusteluissa olivat mukana myös taide ja luonnontiede.[22] Taiteiden asema yhteiskunnallisessa vaikuttamisessa vahvistui 1960-luvulla. Taidemuseotasoisten näyttelytilojen määrä oli vuoteen 2000 mennessä noussut 80:een.
Yhteydenpidon taidemuseoiden kesken aloitti Ateneumin taidemuseon intendentti[23] Aune Lindström, joka kutsui vuonna 1953 koolle silloiset kymmenen taidemuseoita ylläpitävää tahoa.[24] Hän oli laatinut ja painattanut seikkaperäiset taidenäyttelyn ripustusohjeet. Lindström päivitti myös museon rakennusohjeet. Hän asetti tärkeimmäksi museon keskeisen sijainnin yhdyskunnassa. Lindströmin aikana alkoi Ateneumissa kansainvälisten Ars-näyttelyiden sarja, ensimmäinen yhdessä Nykytaide ry:n kanssa 1961.[25]
Helsinkiin valmistui vuonna 1948 järjestetyn ideakilpailun pohjalta ”keskusalueen asemakaavaehdotus” 1954. Ideakilpailun palkintolautakuntaan kuulunut Alvar Aalto kutsuttiin 1959 laatimaan keskustalle edelleenkehittämissuunitelma, joka kohdistui Eduskuntatalon ja Töölönlahden alueisiin. Vuonna 1961 julkistettu ehdotus piti sisällään lahden länsirantaa seurailevan rivin pylväillä seisovia, veteen kuvastuvia kulttuurirakennuksia, kuten kongressi- ja konserttitalon, oopperan, taidemuseon ja kirjaston.
Tästä alkoi kiivas museoväittely: uusi ”keskustaidemuseo” haluttiin Töölönlahden rannalle ja nykytaide irti Ateneumin suojista. Keskustelun aloitti vuonna 1960 perustettu Taide-lehti, joka esitteli niin kotimaisia kuin ulkomaisiakin uusia museorakennuksia. Tulevasta taidemuseosta käytettiinkin nimeä taidekeskus, jolla tarkoitettiin nykytaiteen, arkkitehtuurin ja taideteollisuuden yhdistävää museota.
Keskustelu tasaantui pitkäksi aikaa, kun purkamisuhan allakin ollut Ateneum jäi edelleen taidemuseotoiminnalle, mutta kiihtyi taas, kun museo valtiollistettiin 1990 ja sen alaisuuteen perustettiin Nykytaiteen museo.[26]
Museo yliopistokampuksen yhteydessä - Jyväskylän museot (1961, 1973 ja laajennus 1990)
Museoarkkitehtuuri siirtyi modernismiin viimeistään arkkitehti Alvar Aallon ensimmäisen museorakennuksen toteuduttua Jyväskylään vuonna 1961. Keski-Suomen museoyhdistys oli perustettu 1931, ja 1953 perustettiin sen taideosasto. Uudisrakennukseen tähdättiin alusta pitäen. Paikaksi osoitettiin Seminaarinmäen kampuksen jyrkähköllä etelärinteellä sijaitseva historiallinen Ruusupuisto. Museon johtaja Sirkka Valjakka laati tilaohjelman (3–4 kerrosta, 2000 m²), Alvar Aalto suunnitteli ja antoi pääpiirustukset lahjana.
Keski-Suomen museo (rakennettu 1959–61) on kolmikerroksinen ja pohjakaavaltaan vapaamuotoinen. Ulkoarkkitehtuurissa näkyy kerrosten terassimainen jäsentely. Keskikerroksen alkuperäisestä sisääntulosta ja aulasta päästiin kahvilaan, joka ulostyöntyvine pitkine terassiparvekkeineen avautui Jyväsjärven suuntaan. Perältä oli käynti kahteen isoon näyttelysaliin, kolmannessa kerroksessa oli pienempi, kattokorkeudeltaan vaihteleva ”taidehalli” ja luentosali, johon museoyhdistys oli saanut toivomansa Viipurin kirjaston tapaan aaltoilevan sälekaton. Pohjakerroksessa olivat työhuoneet, kirjasto, kokoelmatiloja sekä ulos avautuva pieni pylväshalli.
09_Keski-Suomi_MLR
Kaikki oli rapattu ja slammattu valkoiseksi, taidemuseon sisätilojen tunnusvärillä. Sisustus oli teetetty ja kalusteet hankittu Artekin kautta. Vaikutelma oli ilmava. Talonpoikaisesineitäkin kohdeltiin itsenäisinä taideteoksina. Näyttelyrakenteet olivat kevyitä siirrettäviä seinäkkeitä ja vitriinejä. Esitystapa oli omaksuttu Milanon Suomelle menestyksekkäistä muotoilutriennaaleista.[27]
Aallolle itselleen omistettu Alvar Aalto -museo perustettiin 1966. Sen suunnitelmaan yhdistettiin Keski-Suomen museon laajennussuunnitelma. Alvar Aalto -museo valmistui 1973 rinteen juureen, ja sieltä sai Aallon ystävä Jalo Sihtola ensimmäisen pysyvän sijan kotimaista ja ulkomaista taidetta sisältävälle kokoelmalleen. Keski-Suomen museon laajennus valmistui vasta 1990, jolloin sisäänkäynti ja luentosali siirtyivät pohjakerrokseen järven puolelle. Museoiden väliin varattiin mahdollisuus rakentaa yhdyskäytävä.
10_AAMpohja_MLR 11_AAMnäyttely_MLR.jpg
Alvar Aalto -museon kaksikerroksisen rakennuksen pohjakaava on vapaamuotoinen monikulmio. Sisääntulojulkisivu on ikkunaton ja muodostaa loivasti koveran kulman, jossa on kolmiosainen pronssiovi. Pohjakerroksessa on aula, kahvio, luentosali, kirjasto, toimistotilat ja tauluvarasto, toisessa kerroksessa 700 neliön suuruinen yhtenäinen näyttelytila, jota rytmittävät sileät valkoiset pylväät ja siirreltävät seinäkkeet. Seinät ovat molemmissa museoissa valkoiset, aulojen lattiat punaruskeaa tiiltä, näyttelytiloissa vaalean harmaata linoleumi- tai muovimattoa. Aalto-museon yläkerran taustana on ”revontuliseinä” muistona New Yorkin maailmannäyttelystä (1939).
Julkisivun tekstuuri on karhea: pohja on Arabian hallatiiltä, jonka päällä on tiheä posliinisauvoista rakennettu ”pystyrimoitus”. Pihan ulkovalaistus on Aallon suunnittelema, ja museoiden välissä virrannut puro päätyy istutusten ympäröimäksi kaskadilammikoksi. Kokonaisuus on Alvar Aallon museosuunnitelmien erilaisten elementtien kokoelma.[28]
”Louisiana-entusiasmi”[29]
Koko 1900-luvun jälkipuolen ajan suomalaisia innosti Kööpenhaminan lähellä Humlebaekissa kesällä 1958 avattu modernin taiteen museo Louisiana, jonka syntysanat lausui suurliikemies-keräilijä Knut W. Jensen 1945. Lähtökohta oli 1855 valmistunut kartano ja sitä ympäröivä merellinen kulttuurimaisema.
Louisianan taidemuseo on esimerkki orgaanisen kasvun museosta (Jørgen Bo ja Wilhelm Wohlert, 1956–91). Kuudessa vaiheessa rakennettu museo on sijoitettu maastoon niin, että maisema on säilynyt mahdollisimman koskemattomana. Ulkoapäin matalilta näyttävät rakennukset muodostavat nauhamaisen, osittain maanalaisen lenkin, jonka kiertämällä näkee koko näyttelyn (10 800 m²). Seinämateriaaleja ovat valkoinen tiili ja lasi, lattioissa klinkkeri ja katoissa mänty. Paviljonkeja yhdistävät läpinäkyvät lasikäytävät, joista avautuu näkymiä luontoon ja ympärillä levittäytyvään veistospuistoon.[30]
Museo taiteilijan tuotannolle - Wäinö Aaltosen museo, Turku (1967) ja Eero Nelimarkan museo, Alajärvi (1964)
Kuvanveistäjä Wäinö Aaltosen museo avattiin 1967. Muutamat yksityishenkilöt olivat vuonna 1940 ryhtyneet ostamaan Aaltosen töitä museon aikaansaamiseksi. Sijoituspaikaksi taiteilija ajatteli kotiaan Helsingin Kulosaaressa, toiset pitivät Tamperetta jo hänen ulkoilmamuseonaan, mutta kun Aaltonen aikoi muuttaa Turkuun, päätti kaupunki tarjota museolle paikkaa Turusta taiteilijan 70-vuotispäivänsä kunniaksi 1964.
Wäinö Aaltonen lupasi lahjoittaa ja tallettaa sovitut teokset sekä arkistomateriaalin, kaupunki lupasi rakentaa talon. Aaltonen edellytti, että hänet nimettäisiin kymmeneksi vuodeksi museon intendentiksi, ja mikäli hän sitä ennen kuolisi, hänen poikansa jatkaisi. Aluksi oli tarkoitus, että Wäinö Aaltonen olisi saanut työtilat rakennuksesta. Tontti osoitettiin Aurajoen rannasta, teatteritalon ja valtion virastotalon rintamaan. Aaltonen suunnitteli museon poikansa, Oulun yliopiston asemakaavaopin professori Matti Aaltosen toimiston kanssa. Yhteistyötä koordinoi Turun kaupunginarkkitehti A. S. Sandelin.[31]
13_WAMpohja_MLR 14_W Aaltonen_MLR 16_WAM veistossali Volker von Bonin
Arkkitehtisuunnittelun lähtökohtana on Alvar Aallon Tallinnan taidemuseon kilpailuehdotus (1936-37). Berliinissä rakenteilla ollut, arkkitehti Ludwig Mies van der Rohen suunnittelema Neue Nationalgalerie innoitti ajanmukaistamaan suunnittelua.
Vaalea suoraviivainen rakennus on ahtaalla rinnetontilla porrastetusti, ylimpänä kohoaa 11 metriä korkea veistossali. Sisääntulo jäsentyy ”aaltomaisesti”: terasseittain kohoaviin näyttelytiloihin (1 100 m²) siirrytään ulko-ovea vastapäätä lähteviä porrasaskelmia pitkin. Aulasta vasemmalla lasiseinän takana aukeaa sisäpiha veistoskoristeisine vesialtaineen.
Ensimmäinen suunnitelma oli lopputulosta modernimpi. Jykevän ulkoterassin lisäksi arkkitehdit olisivat halunneet julkisivuun betonielementtejä (Sibelius-museossa tämä toteutui) tai uurrettuja mineriittilevyjä. Tavoitteena oli luoda ”huomaamatonta, ekonomista arkkitehtuuria”.[32] Tilaajat halusivat arvokkaampaa: pääjulkisivuun käytettiin travertiinia ja sivuihin kalkkihiekkatiiltä sekä lattioihin klinkkerin sijasta kalkkikiveä. Eniten suunnittelua ohjasi veistoskokoelma, jonka laajuus oli tiedossa.
19_Nelimarkka_MLR
Nelimarkka-museo avattiin 1964. Hanke oli syntynyt taidemaalari Eero Nelimarkan toiveesta luoda taidekoulu, jota varten hän oli perustanut säätiön 1945. Vuonna 1961 ostettiin Alajärveltä Nelimarkan suvun vanha kantatila. Puretun navetan paikalle valmistui 1964 Nelimarkan ystävän arkkitehti Hilding Ekelundin piirustusten mukaan pääjulkisivultaan klassisistinen koulu- ja museorakennus, muilta osin 1960-luvun kouluarkkitehtuuria. Nelimarkka korjasi vaikutelmaa haluamaansa klassiseen suuntaan piirtämällä itse laajennusosan 1972–74. Museota laajennettiin vielä 1997 (Käpy ja Simo Paavilainen). Nelimarkka-museo on 1900-luvun lopulla viimeinen aluetaidemuseo.[33]
1960-luvun muita uusia museorakennuksia
Arkkitehtuurin käänne 1960-luvulla käynnisti keskustelun ammattikunnan sisällä. Nuoremman polven yksinkertaista ja anonyymiä rakentamista vaativille suunnittelijoille oli tärkeää muunneltavuus ja laajennettavuus. Esikuvana voi pitää saksalais-amerikkalaista arkkitehtiä Mies van der Rohea.[34] Betonin valupinnan ja rakenteiden näkyville jättämistä on kutsuttu myös betonibrutalismiksi. 1970-luvulla alkoi mittavampi vanhojen rakennusten muuttaminen museoiksi, mikä toi mukaan rakennussuojelukysymykset.[35]
18a Sibelius-museo js Mikkoau 2016 WLM 18b_Sibelius_MLR 18d Sibelius Hhö 2013
- Turun linnan korjaus ja suuri näyttelyhalli ullakolle (Erik / Carin Bryggman, 1961–87),
- Tornionjokilaakson maakuntamuseo, Tornio (Jouko V. Ylihannu, 1962, Matti Porkka, 1981),
- Tammisaaren museon näyttelyhalli (Ola Hansson, 1963),
- Emil Cedercreutzin museon ”Maahengen Temppeli” Harjavalta (Jonas / Mariana Cedercreutz, 1963–97),
- Didrichsenin taidemuseon näyttelysiipi Helsinki (Viljo Revell, 1965),
- Sibelius-museo (Woldemar Baeckman, 1968) Åbo Akademin puutarha-alueelle Turkuun,
- Pohjanmaan museon näyttelysiipi, Vaasa (Erik Kråkström, 1968),
- Helsingin taidemuseon Kluuvin galleria (Aarno Ruusuvuori, 1968),
- Ortodoksinen kirkkomuseo, kirkkokunnan Kuopion keskustalossa (Dag Englund, 1969),
- Yrjö Liipolan museo, Koski Tl (Eero Ponkala, 1970).
20_Didrichsen_MLR.jpg
Museo taidekokoelmalle - Meilahden taidemuseo, Helsinki (1967) ja Sara Hildénin taidemuseo, Tampere (1979)
Taiteen keräilijöille tärkeintä on ollut saada pysyvä paikka ja omalle kokoelmalle sopivat näyttelytilat.
Helsingin kaupungin taidemuseo nousi Meilahteen Tamminiementielle 1967. Kaupunki osti Meilahden kartanon kantatilan vanhat rakennukset, jolloin kypsyi ajatus yhdistää tuolloin innostusta herättänyt ja komiteatyöskentelyn tuloksena määritelty ”monitoiminnallinen taidekeskus” tähän.[36] Kun kaupungilla oli jo tiedossa useita lahjoituksia, päätettiin kunnollisten näyttelytilojen rakentamisesta omia kokoelmia varten, samalla kun otettiin vastaan Leonard ja Katarina Bäcksbackan perikunnan lahjoittama vanhemman kotimaisen taiteen kokoelma.
Kokonaista museota – taidekeskuksesta puhumattakaan – ei kuitenkaan tehty, vaan kyseessä on yksistään näyttelyrakennus. Suunnittelutehtävä annettiin kaupungin arkkitehdeistä Tero Aaltoselle.
22_Meilahti2_MLR 23_Meilahtipohja_MLR. jpg
Tanskalaisen Louisianan taidemuseon vaikutusta voi nähdä näyttelyrakennuksen paikanvalinnassa ja itse rakennuksessa. Tontti on loivassa rinteessä, joka avautuu merenlahdelle. Perikunnan edustajalla Ingjald Bäcksbackalla oli mielessään ripustussuunnitelma ja kokoelman vaatimat juoksumetrit, jotka sitten ”juostiin” maastossa arkkitehdin ja mittanauhan kanssa. Alvar Aalto -museota käytiin katsomassa. Intendentti Marja-Liisa Bell laski muiden tilojen tarpeen ja toimi neuvonantajana.
Kartanon lehtevään puistoon 1976 valmistunut valkoisella kahitiilellä verhottu rakennus (1 560 m²) on yksinkertainen. Sisäänkäynti on itäpäädyssä, jossa on avara klinkkerilattiainen aula kartanon puistoon avautuvine lasiseinineen. Aulaa oli mahdollista käyttää myös luentosalina. Näyttelytilat koostuvat viidestä suorakaiteen muotoisesta salista, jotka noudattavat huoneesta huoneeseen -mallia silmukkana, mistä muodostuu niin sanottu ”pakkokierto”. Ensimmäinen sali on suurin ja muita korkeampi. Kunkin salin keskivaiheilla on vastakkain lyhyet seinäkkeet, jotka jakavat ne ikään kuin kahteen pienempään huoneeseen.
Salien väliset ovet on sijoitettu kauas toisistaan, tukemaan johdonmukaista kiertoa. Saleihin päivänvaloa tulee kattoikkunoiden välityksellä seinänvieriä kiertävien valokuilujen kautta. Lattioita peitti aluksi sisalmatto ja seinät oli verhottu tärkätyllä juuttikankaalla, kuten taidegallerioissa oli tapana. Salien alla oli varasto ja ikkunallisia teknisiä tiloja.[37]
Tilat toimivat hyvin ja Meilahden museo oli pitkään kaupungin parhaita näyttelypaikkoja. Kahvilaa rakennukseen ei tullut, sitä varten korjattiin viereinen kartanon puinen päärakennus 1800-luvun alkupuolelta. Puistossa on ollut näytteillä veistoksia ja siellä on järjestetty taidetapahtumia, mutta suunniteltuja laajennuksia ei toteutettu.
24_Hilden ilmakuva Teuvo Kanerva 25_Hildenleikkaus_MLR.jpg
Sara Hildénin 1979 avattu taidemuseo perustuu niin kotimaiselle kuin ulkomaiselle modernismille ja nykytaiteelle. Ensimmäiset teokset Hildén osti vuoden 1961 Ars-näyttelystä. Hän lahjoitti kokoelmansa nimeään kantavalle säätiölle, joka solmi 1975 sopimuksen Tampereen kaupungin kanssa uuden museon rakentamisesta ja teosten pysyvästä sijoittamisesta sinne. Kaupunki vastaa museon ylläpidosta ja säätiö kartuttaa kokoelmaa.
Paikkaa valittaessa Hildén mieltyi rakenteilla olleen Särkänniemen huvipuiston läheisyydessä sijainneen vanhan huvilan Näsijärvelle avautuvaan rinnetonttiin ja rakennusten jäännöksiin, jotka loivat perustan veistospuistolle. Tärkein lähtökohta oli juuri tämä paikka, jota voi luonnehtia jopa välimerelliseksi.
Tavoite oli sama kuin Helsingissä: rakentaa yksityiselle kokoelmalle ihanteelliset olosuhteet. Suunnittelijaksi valittiin tamperelaisen Pekka Ilveskosken arkkitehtitoimisto, joka konsultoi myös Meilahden taidemuseon suunnitellutta Tero Aaltosta. Paikan lisäksi lähtökohdiksi otettiin näyttelysalien tarkoituksenmukainen liittyminen toisiinsa sekä teoksille sopivan valaistuksen luominen. Maalaussalit ovat ikkunattomia, mutta tärkeitä näköalaikkunoita on salien liitoskohdissa. Arkkitehtuuriin suoraan vaikuttanut ero oli siinä, että nykytaiteen teokset ovat suurikokoisempia, väreiltään kirkkaampia, usein ääntä, valoa ja liikettä sisältäviä.
Hildén oli luonut kokoelmansa yhteistyössä Ateneumin asiantuntijoiden kanssa ja tutustunut matkoillaan keskeisiin eurooppalaisiin museoihin. Amerikkalaisia museoita puolestaan tunsi suunnittelussa mukana ollut Asko Rasinperä, joka oli opiskellut Yhdysvalloissa. Ulkomaisia rakennuksia, joihin on viitattu, ovat Nizzan lähelle 1964 valmistunut yksityinen nykytaiteen museo Fondation Maeght (Josep Lluis Sert), etenkin veistospuiston osalta, Berliinin Brücke-Museum (Werner Düttmann, 1967) sekä ”monoliittista ekspressionismia” edustava Emerson Museum of Art (I. M. Pei, Syracuse N. Y., 1968).
Kaksikerroksisen rakennuksen pohjakaava edustaa neliapila-tyyppiä (ydin ja satelliitit). Sisäänkäynti on suoraan toiseen kerrokseen, jossa on toimistosiipi, luentosali ja maalausgalleriat. Keskisalista laskeudutaan pohjakerroksen veistostiloihin, joissa on välitasanne, ja edelleen kahvioon ulkoterasseineen. Kaikki näyttelytilat ovat luonteeltaan avoimia ja niissä voi liikkua vapaasti, haluamassaan järjestyksessä. Alakerrassa on järven suuntaan, pohjoiseen ja länteen suuret ikkunaseinät.
26a_Hilden_SJE 26_Hilden_HHö 26b_Hilden_SJE
Ulkoseinät ovat vaalearouheista pesubetonia, sisällä kantavat seinät on jätetty betonivalun jälkeen käsittelemättä. Näyttelyseinät on verhottu valkeaksi maalatulla kangaspinnoitteella, ja tilojen jakamiseksi pienempiin osiin on käytössä ollut irtoseiniä. Lattiat ovat kivilaattaa. Rakennus oli valmistuessaan maan suurin taidemuseo (2 500 brm²)[38]
Satakunnan kulttuurihistoriallinen museo, Pori (1973)
Porissa avattiin Satakunnan museon uudisrakennus 1973. Samana vuonna valmistui Alvar Aalto -museo Jyväskylään. Satakunnan museo oli perustettu 1888. Kokoelmat oli kerännyt ja järjestänyt opettaja Matti Kauppinen, joka toimi aktiivisesti myös Museoliitossa sen perustamisesta lähtien. Vaihtuvissa vuokratiloissa majaillut museo oli saanut pysyvämmän sijan monenlaisessa käytössä kuluneesta, rapatusta ”Iltaman talosta” vuonna 1903.
Ajatusta oikeasta museorakennuksesta pidettiin yllä, ja kopin otti vuonna 1958 museonjohtajaksi valittu Unto Salo, museon ensimmäinen ammattilainen ja tuolloin myös Museoliiton puheenjohtaja. Ennen Turun arkeologian professoriksi siirtymistä hänen viimeiseksi tehtäväkseen jäi uuden museon tilaohjelman laatiminen.[39] Tontiksi osoitettiin pieni kolmiomainen puisto Hallituskadun päästä, jokirannan ja oluttehtaan välistä, ja suunnittelijaksi valittiin kaupunginarkkitehti Olaf Küttner. Suojelukiistaa tai kilpailua ei näin vaikeasta paikasta syntynyt.
Sisäänkäynti on etelästä, Hallituskadun puolelta, josta vaaleanharmaa pesubetonipintainen rakennus (4 603 brm²) näyttäytyy ajan tavan mukaan yksikerroksisena. Aulasta oikealla on toimistosiipi kadulle suuntautuvine ikkunariveineen ja luentosaleineen, vasemmalla yhtenäinen ikkunaton tilapäisnäyttelytila (400 m²) ja suoraan edessä kahvila, josta avautuvat pohjoispuolen ainoat ikkunat Jazzkadun (Eteläranta) yli joelle.[40] Toimistotilojen takana on perusnäyttelytilojen suuri kolmikerroksinen blokki, johon päivänvaloa saadaan kaikkien kerrosten läpi ulottuvan kulmikkaan valopihan kautta.
28b_Satakunnan museo_MLR 28_SatMsisältä_MLR.jpg
Alun perin vaaleahkoja avaria sisätiloja jäsentävät lehtereitä kannattelevat pylväät ja niitä yhdistävät umpilaitaiset betoniportaikot. Ruskeasävyisissä näyttelytiloissa oli ritiläkatot ja kokolattiamatot. Sisustuksen suunnitteli Tauno Kivinen.
Kokonaisvaikutelmaltaan museo on sukua Kalifornian Berkeley-yliopiston taidemuseolle (Mario J. Ciampi, 1970), ja Amsterdamin saman aikainen Van Gogh -museo (Gerrit Rietvelt, 1973) tunnettiin.[41]
Big Bang – museot haluavat uudistua
Vuoden 1970 tienoilla alkoi kehityskulku, jota museologisessa kirjallisuudessa kutsutaan alkuräjähdykseksi. Se lähti liikkeelle ekomuseo-ajatteluna, joka pyrki häivyttämään rajat museon ja sitä ympäröivän yhteisön väliltä. Painopiste haluttiin siirtää laitosajattelusta aktiviteetteihin, iskusanoina ”elävä museo” ja pontimena mahdollisuus vaikuttaa tulevaisuuteen. Tavoitteena oli asettaa museo laajaan sosiokulttuuriseen yhteyteen, jossa luonnontiede, historia, taide ja teknologia muodostaisivat kokonaisuuden.[42]
Tähän vaiheeseen sijoittuu Museoviraston perustaminen 1972 museoinstituution kokonaisvaltaiseksi kehittämiseksi. Suomen museoliitto oli itsenäistynyt 1957 muuttamalla Kansallismuseosta omiin tiloihin Cygnaeuksenkadulle.
Ammatillistuminen vauhdittui, näyttelyitä järjestettiin 1970-luvulla ennätyksellinen määrä sekä museoissa että ulkopuolisissa tiloissa, yleisömäärät moninkertaistuivat. Erityisesti alettiin ottaa huomioon lapset: ensimmäiset museolehtorit aloittivat Ateneumissa ja Kansallismuseossa 1970-luvun alkuvuosina.
Näyttelysuunnittelusta tuli museoissa kriittinen tekijä. Suomen museoliitto ryhtyi järjestämään kursseja tästä tematiikasta. Teknisistä kysymyksistä, kuten museoiden murto- ja paloturvallisuudesta, esineistön oikeista säilytysolosuhteista ja rakennusten suojelusta, tuotettiin ohjekirjoja ja suosituksia. Erikoismuseokenttä alkoi hahmottua. Aika oli kypsä laajemmalle keskustelulle museorakennuksista.[43]
Museoarkkitehtuuriseminaari 1979
Museoliitto järjesti museoarkkitehtuuriseminaarin 26.–27.11.1979 Espoon Hanasaaressa. Sen aiheuttivat Porin taidemuseon, Helsingissä Taideteollisuusmuseon (Designmuseo) ja Sinebrychoffin taidemuseon avaamiset sekä satavuotiaan Ateneumin lähestyvä korjaus. Siitä oli käynnistetty hankesuunnittelu 1978 (Laiho – Pulkkinen – Raunio, toteutus 1985–91).
Seminaariin osallistui 140 henkeä. Esiteltäväksi koottiin kaikki tieto ja kokemukset, mitä siihen mennessä oli saatu uudistiloista ja vanhojen rakennusten korjaamisesta. Museoasiainsihteeri Jorma Heinonen oli paneutunut niin museoarkkitehtuurin historiaan ja estetiikkaan kuin viimeisimpään tekniikkaankin.[44] Hän esitteli Aallon Tallinnan taidemuseon nerokkaana pitämänsä ehdotuksen. Parinkymmenen vuoden aikana valmistuneita museohankkeita esiteltiin esimerkein.
Alueellinen museoverkosto syntyy – 1980-luvulla liki 200 uutta museota
Valtioneuvosto teki 1979 päätöksen alueellisen museoverkoston muodostamisesta. Sitä koskeva valtionavustuslaki säädettiin 1988. Vuonna 1992 säädettiin Museolaki ja asetus, jonka piiriin pääsivät kaikki ammatillisesti hoidetut museot.[45] Laskennallisena pohjana olivat henkilötyövuodet. Lakiin lisättiin museoiden yhteiskunnallinen tehtävä 1996.
Maakuntamuseot ja aluetaidemuseot nimettiin suurimpien kaupunkien olemassa olevien museoiden pohjalta vuosina 1980–1995. Erikoismuseokenttää vahvistettiin vielä muutamilla museoilla, jotta kaikille tärkeiksi katsotuille osa-alueille saatiin oma vastuumuseonsa, jotka vahvistettiin 1993–2010.
Uusia museoita oli toisen maailmansodan jälkeen perustettu noin 15-20 museon vuosivauhtia. Lakipiste saavutettiin 1980-luvulla, jolloin museoita syntyi kaikkiaan liki 200. Kasvu oli samanlaista kansainvälisestikin. Sitten seurasi nopea lasku niin, että viimeisellä vuosikymmenellä ennen vuosituhannen vaihdetta museoita perustettiin meillä enää parikymmentä.
Arkkitehtuurissa Oulun kouluksi kutsuttu postmoderni suuntaus tavoitteli elämyksellisyyttä.
Kaupunginmuseoiden ja kotiseututalojen rinnalla ovat paikallismuseot. Niihin kuuluvat historiallisten henkilöiden, valtiomiesten, kulttuuripersoonien ja urheilijoiden museoidut kodit, paikkakunnalle luonteenomaisten ammattien ja ilmiöiden museot sekä yksittäisten keräilijöiden moninaiset kokoelmat ja kohteet.[46]
27_Ainola_WLM 27b_Yli_laurosela_MV
Museo vanhassa rakennuksessa
”Vanhat rakennukset museokäytössä” oli Museoliiton museoarkkitehtuuriseminaarissa 1979 toisen pääpuhujan, Teknillisen korkeakoulun arkkitehtuurihistorian professori Henrik Liliuksen teema. Lilius puolusti voimakkaasti alkuperäisiä rakenteita ja kritisoi historiallisten rakennusten sisätilojen uudistamista. Liliuksen mielestä uuden käytön tarpeet eivät saisi kokonaan ohittaa rakennuksen omaa historiaa, vaan näiden välille pitäisi etsiä tasapaino. Keskustelu jatkui vilkkaana Ateneum-rakennuksen korjauksen alkaessa ja uudistamisen edetessä (1985-91).[47]
29_Pori_MLR.jpg
Henrik Liliuksen seminaarialustuksen taustalla olivat seuraavat silloin ajankohtaiset museohankkeet:
- Brobergska Samskolanin (Gustaf Nyström, 1894 / Olli Borg, 1978) muutos Taideteollisuusmuseoksi,
- Sinebrychoffin patriisitalon (Jean Wik, 1842 / Sirkka-Liisa Tarumaa, 1979) muuttaminen taidemuseoksi,
- Porin pakka- ja vaakahuoneen (C. J. von Heideken, 1858 / Kristian Gullichsen, 1979) muutos Maire Gullichsenin taidekokoelman tiloiksi.
Museo teollisuusrakennuksessa
Luontevimmin museoiksi on taipunut teollisuusarkkitehtuuri. Teollisuusrakennusten houkuttavuuteen vaikuttavat niiden avarat, vapaasti muunneltavat hallitilat. Teollisuustuotannosta tyhjeneviä tehtaita on otettu museokäyttöön satakunta. 1900-luvun loppua kohti teollisuusrakennusten ja kokonaisten alueiden käyttö kulttuuritiloina vielä lisääntyi.
30_Vapriikki Tiia Monto WLM 2017
- Riihimäen kaupungin vuonna 1975 hankkima, lasitehtaan 1910-luvulla valmistunut rakennus, josta Tapio Wirkkala suunnitteli Suomen lasimuseon (näyttely 1 762 m²),
- Vuonna 1898 perustettu Suomen rautatiemuseo muutti Helsingin asemalta Hyvinkäälle 1973–74,
- 1969 perustettu Tekniikan museo asettui vuodesta 1970 lähtien Helsingin vesilaitoksen sata vuotta vanhoihin tiloihin Vantaanjoen suulle.
- Kaapelitehdas Helsingissä (W.G. Palmqvist, 1939–1954) on 1990-luvun alusta ollut kaupungin omistama kiinteistöyhtiö. Entisen Nokian kaapelitehtaan suurimman hallin (2 700 m²) itäpäähän muuttivat 1990-luvun alussa Suomen Valokuvataiteen museo (perustettu 1969), Teatterimuseo (perustettu 1962) ja Hotelli- ja ravintolamuseo (perustettu 1971) päällekkäisiin tiloihin, joiden museotilat viimeisteltiin 2000.
- Tampellan tiloissa avattiin 1996 Tampereen museokeskus Vapriikki (14 000 m²) lukuisine museoineen.
- Hämeenlinnan taidemuseon (perustettu 1952) viisi rakennusta sisältyvät Verkatehtaan (1895) kokonaisuuteen, joka oli pääosin oppilaitoskäytössä 1980- ja 90-luvuilla, kunnes se päätettiin suunnitella kokonaisuutena erilaisia kulttuuripalveluita varten 2001 (avaus 2007).
- Lapuan patruunatehtaan (perustettu 1923) tiloihin on 1990-luvulta lähtien kasvanut Kulttuurikeskus Vanha Paukku, jossa on muun muassa useita museoita kuten tehtaanmuseo (perustettu 1993), taidemuseo (perustettu 1998) ja Pyhälahden valokuvaamomuseo.
Taidemuseo kulttuurikeskuksessa - Kemi (1977), Tornio (1985) ja Kouvola (1987)
Joidenkin kaupunkien uusiin kulttuurikeskuksiin tehtiin tilat museolle. Kemin taidemuseo sai pysyvät tilat jo kulttuurikeskuksen ensimmäisessä rakennusvaiheessa 1977 (Arkkitehtitoimisto Jan Söderlund) ja lopullisen paikkansa 1990, kun koko kulttuurikeskus valmistui. Kemin vuonna 1947 alkunsa saanut taidemuseo oli ensimmäinen aluemuseokokeiluun osallistunut, ja siitä tuli maakunnallinen taidemuseo vuonna 1981 toiminta-alueenaan koko Lapin lääni.
Taidemuseon osuus kulttuurikeskuksesta on vajaa kymmenes. Nykytaiteelle soveltuvaa näyttelytilaa on 551 m². Suoraviivaista punatiilistä rakennuskokonaisuutta jäsentävät nauhaikkunat ja eri tilojen korkeuserot. Sisätilojen suoraviivaisuuden murtaa museon näyttelytilan ja kirjaston välinen diagonaalinen kantava seinä. Valmistuessaan rakennus tarjosi tilat kaupunginkirjastolle, kaupunginteatterille, kauppaoppilaitokselle ja työväenopistolle, joilla on torin puolelta yhteinen sisäänkäynti kahviloineen, ravintoloineen ja kaksine auditorioineen.[48]
37_Kemisali_MLR 37b_Kemi_MLR
Torniolainen kauppaneuvos Veli Aine toivoi, että hänen kotimaista 1800- ja 1900-luvun taidetta sisältävä taidekokoelmansa tulisi esiin kotikaupungissa. Ajankohdalle tyypilliseen tapaan pyrittiin taidemuseo perustamaan ”kulttuurikeskukseen veden äärelle”. Siinä maakuntamuseon, taidemuseon ja kirjaston tilatarpeet yhdistyisivät. Tuloksena oli päätös laajentaa maakuntamuseota omalla tontillaan ja rakentaa taidemuseolle sekä kirjastolle uusi yhteinen toimitalo.
Taidemuseon vuonna 1979 sovittu toimintamalli oli sama kuin Sara Hildénin museossa: kaupunki vastasi rakennuksesta ja museon ylläpidosta, Aineen Kuvataidesäätiö kokoelmien kartuttamisesta. Vuonna 1985 valmistunut, Rajakartanoksi nimetty talo nousi aiemmin tornitaloille kaavaillulle tontille. Arkkitehdiksi valittiin paikallinen Matti Porkka, joka suunnitteli myös maakuntamuseon laajennuksen. Porkka ei ollut suunnitellut museotiloja, mutta osallistui museoarkkitehtuuriseminaariin ja tutustui Helsingin kaupungin taidemuseoon, Sara Hildénin taidemuseoon ja Lapinlahden taidemuseoon (Esa Koivuniemi ja Georg Bystroff, 1977).
Torniossa Aineen museon ja kirjaston rinnakkaiset Torikadun suuntaiset tilat ovat suunnilleen samankokoiset. Rakennusmassat ovat kuitenkin toisiinsa nähden hieman vinottain ja kummallakin on oma luonteensa. Julkisivut on muurattu valkoisesta kahitiilestä. Sen päällä on ikkunatonta museonäyttelyaluetta korostava pystysuuntainen hiekanruskea marmoriharkotus, kirjaston ikkunoissa vastaavasti ritiläverhous. Yhteinen sisäänkäynti on rakennusten välissä toisessa kerroksessa, kahvila ja auditorio museon puolella. Museokäytössä on 1 576 m².
Sisäseinät ovat valkoiset, portaat ja käytävät on päällystetty Lapin louhemarmorilla, kahvila ja näyttelytilat sisal-laattamatolla. Näyttelysaleja on viisi, ja niihin Aine halusi Helsingin Meilahden taidemuseon tapaisen pakkokierron, jotta kaikki teokset tulisivat nähdyiksi. Ulkona oli tilaa veistospuistolle. Veli Aine sai toiveensa toteutumaan ja toimi museolautakunnan ensimmäisenä puheenjohtajana.[49]
38_Kouvola_MLR
Kouvola-talon (kilpailu: Erkki Valovirta, 1982) kotimaiselle nykytaiteelle omistettu museo perustettiin 1986 ja avattiin 1987 ”koulutus- ja kulttuurikeskuksessa”. Taidemuseon (1 000 m²) lisäksi siinä oli konserttisali sekä musiikkiopiston, kansalaisopiston ja taideharrastajien tiloja, samoin kaupungin toimistoja.
Puistomaisessa ympäristössä on hiekanvaalea kaksikerroksinen postmoderni rakennuskokonaisuus, yhteisen sisäänkäynnin ympärille rypälemäisesti kiertyvine pohjakaavoineen ja tummine aumakattoineen. Kaupunkien monitoimitaloissa tilojen käyttäjät voivat vaihtua, museo yleensä jää ja laajenee.[50]
Taide- ja kulttuurihistoriallinen museo, Saarijärvi (1989)
Saarijärven museo (Laila Niemioja / Heikki Uusitalo, 1989) avattiin 1989 saarijärveläisen kuvanveistäjä Kain Tapperin tuotantoa esittelevällä näyttelyllä. Ajatus museosta konkretisoitui, kun saarijärveläissyntyinen Toivi Järvinen määräsi testamentissaan 1982 omaisuutensa käytettäväksi taidemuseon rakentamiseen. Museoon koottiin yhteen Toivi ja Osmo Järvisen 1900-luvun alun kotimaisen taiteen kokoelma, Saarijärven kaupungin omistamat teokset ja Saarijärvi-seuran kulttuurihistoriallinen esineistö.
Vuonna 1948 perustettu Saarijärvi-seura vaali Saarijärven ja sen lähialueiden taiteilijoiden tuotantoa ja kulttuuriperintöä. Keskeisessä roolissa oli Tapperien kotitalo Juhola ja neljän taiteilijaveljeksen, kuvanveistäjä Kain Tapperin, kirjailijoiden Harri Tapperin ja Marko Tapion sekä lavastaja Yrjö Tapperin elämä ja tuotanto.[51]
Helsingissä työuransa tehneiden Toivi ja Osmo Järvisen omakotitalon tontille rakennettiin vaaleasta tiilestä puhtaaksi muurattu rakennus (1 150 m²). Saarijärven museonjohtaja Kari Kotilainen laati tilaohjelman, ja Jyväskylän museoiden kollegat työskentelivät rakennustoimikunnassa, joka osallistui Museoliiton Saksan-matkalle 1987. Frankfurtissa huomioitiin Main-joen molemmille rannoille nouseva vanhaa ja uutta arkkitehtuuria yhdistävä Museumsufer ja amerikkalaisarkkitehti Richard Meierin suunnittelema taideteollisuusmuseo.[52]
Saarijärvellä sisäänkäynti on suoraan näyttelykerrokseen, sen alapuolella ovat työ- ja varastotilat sekä sisääntulopäädyssä aulakahvio terasseineen. Muuta korkeampi keskiosa – ”valkoinen kuutio” – klinkkerilattioineen ja komeine järvinäkymineen – on tarkoitettu taiteelle ja erikoisnäyttelyille, itäpään matalampi ”musta kuutio” kulttuurihistoriallisille kokoelmille.[53]
34_Saarijärvi_MLR
Muita uusia museoita 1980- ja 1990-luvuilla
- Hyvinkään taidemuseo Jussintorin liikekeskuksessa (Ilmo ja Raimo Valjakka, 1981),
- Ahvenanmaan museot ja kaupunginkirjasto, Maarianhamina (Helmer Stenros, 1981),
- Skärgårdsmuseet i Lappo (Folke Wikström, 1981),
- Tampereen taidemuseon maanalainen näyttelytila (Antti Ilveskoski, 1984),
- Etelä-Karjalan museon sijoittaminen 1700-luvun linnoitukseen (Lappeenrannan kaupunki, 1984, 1989),
- Villa Gyllenbergin näyttelysiipi Helsingin Kuusisaaressa (Ålander Packalen Korsström, 1985),
- Rovaniemen taidemuseo postiautovarikkoon (Juhani Pallasmaa, 1986),
- Hiihtomuseo, Lahden Urheilukeskus (Esko Hämäläinen, 1989),
- Suomen metsästysmuseo muutti Porvoosta Riihimäelle (Osmo Lappo, 1990),
- Oulun taidemuseo liimatehtaan kiinteistöön (Birger Federley 1922, Jorma Teppo, 1991),
- Kalevala-talo, Talvisotamuseo, Kuhmo (Heikki Kukkonen 1991/1994),
- Mobilia auto- ja tiemuseo, Kangasala (Lindqvist & Uosukainen, 1992–94),
- Aboa Vetus & Ars Nova, Rettigin palatsin laajennus (Frank Schauman, 1995),
- Salon taidemuseo Veturitallin uudisosa (Lauri Hollmén, 1998).
39_Hyvinkää_MLR.jpg 42b_Lappeenranta Et karj museo WLM
40_Gberg_MLR 42_Lahden hiihtomuseo HHö
Tiedekeskus Heureka, Vantaa (1989) ja Arktinen instituutti Arktikum, Rovaniemi (1992)
Museoiden painopisteet ovat siirtyneet tutkimuksen suuntaan ammatillisuuden ja resurssien lisääntymisen myötä. Voitaneen jo puhua tiedemuseoista taidemuseoiden rinnalla.
Tiedekeskus Heurekan rakentaminen Vantaan Tikkurilaan oli 1980-luvun saavutus (kilpailu: Heikkinen ja Komonen, 1985). Säätiöpohjainen Heureka avattiin yleisölle 1989. Juuret ovat Helsingin yliopistossa, idean esittivät professorit Tapio Markkanen, Hannu I. Miettinen ja Heikki Oja. Kutsukirje oli lähtenyt Helsingin, Espoon ja Vantaan kaupungeille, joista Vantaa tarttui mahdollisuuteen tarjoten tontin ja merkittävää rahoitusta.
43_Heureka_MLR
Tiedekeskukset ovat museoiden rinnakkaisilmiö. Tieteen popularisointi, pedagoginen ote ja elämyksellisyys ovat yhteisiä tavoitteita, pääasiallisena erona se, ettei tiedekeskuksilla ole omia kokoelmia vartioitavanaan. Yleisötiloiltaan tiedekeskus muistuttaa avointa museota, uutuutena planetaario. Vapaus näkyy rakennuksen ulkoasussa, jota avaruusaiheineen voitaneen pitää uutta kokeilevan wau-arkkitehtuurin ensiesiintymisenä meillä.
44_Arktikum_MLR
Ajatus Arktisesta instituutista ja museosta virisi 1970-luvulla Oulussa ja Rovaniemellä. Konkreettinen aloite tuli Euroopan Kulttuurisäätiön Suomen osastolta. Vuosina 1983–84 järjestettiin arktisille maille suunnattu arkkitehtuurikilpailu, johon tuli 184 ehdotusta. Toteutus sidottiin Suomen itsenäisyyden 75-vuotisjuhlintaan, ja siitä kasvoi kansallinen hanke. Valtion talousarvioon varattiin varoja vuodelle 1988. Rovaniemen kaupunki tuli toiseksi maksajaksi ehdolla, että Aallon Lappia-talossa sijainnut maakuntamuseo sai keskuksesta uudet tilat.
Rakennus valmistui 1992, siinä toimivat näyttelyineen Lapin maakuntamuseo sekä Lapin yliopiston Arktinen keskus. Voittaneen tanskalaisen Claus Bonderupin työryhmän ehdotus on yhdistelmä klassisen museorakennuksen osia uudella tavalla yhdisteltynä. Valmiin rakennuksen julkisivu kaupunkiin päin muistuttaa temppelin päätyä pylväikköineen, oven takaa avautuu valkoiseksi maalattu kaksikerroksinen moderni hallimainen tila. Sen keskikäytävää kattaa lasinen galleria, joka valaistuna putkena jatkuu ulos ja Ounasjoen törmään upotettuna rantaan saakka.
1990-luvun viimeiset valtakunnalliset erikoismuseot – Lusto Savonlinnaan (1994), Siida Inariin (1998) ja Sarka Loimaalle (2005)
Uusiksi vastuumuseoiksi 1990-luvulla määriteltiin metsä-, saamelais- ja maatalousmuseo. Maan ensimmäiset kaupunkien museot olivat syntyneet 1800-luvulla rannikkokaupunkeihin. Sen jälkeen museoita rakennettiin myös sisämaahan niin, että kaupunkien museot ylsivät myös Keski- ja Itä-Suomeen, kunnes lopulta kotiseutu- ja pitäjänmuseoiden tiheä verkosto kattoi koko maan.
Pohjois-Suomi ja Lappi olivat olleet aktiivisia 1970-luvulta lähtien, erityisesti taidemuseoiden osalta. Yliopistojen lisäksi kaupungit kunnostautuivat: Oulun ja Rovaniemen kaupunginjohtajat Matti Rossi ja Matti Pelttari johtivat Suomen museoliiton hallitusta vuoron perään. Museot ja tiedekeskukset alkoivat hakeutua yhteen, kun viimeisiä valtakunnallisia museoita perustettiin. Niistä päätettäessä hajautuspolitiikka oli voimissaan, lisäksi valintaa tukivat matkailunäkökohdat.
45_Lusto_MLR 45a_Lusto_SLJe
Suomen metsämuseo Lusto Savonlinnan Punkaharjulla on metsäalan ja metsäkulttuurin erikoismuseo, joka avattiin tervalla ja pellavaöljyllä kyllästetyllä lehtikuusilaudalla vuoratussa betonirakennuksessa 1994. Vuonna 1988 perustettu säätiö järjesti yhdessä maa- ja metsätalousministeriön ja Punkaharjun kunnan kanssa avoimen arkkitehtuurikilpailun Suomalaisen metsätietokeskuksen rakentamiseksi vuonna 1990. Kokoelman painopiste on metsäkoneissa. Näyttelyt kertovat ihmisen ja metsän välisestä vuorovaikutuksesta.
Arkkitehtikilpailuun tuli 103 ehdotusta, ja voittaneet arkkitehdit Rainer Mahlamäki ja Ilmari Lahdelma suunnittelivat ”suomalaista modernismia” edustavan rakennuksen metsämaisemaan. Harjulta museon sisäänkäynnille johtaa katettu silta. Päänäyttely on museon pyöreässä osassa, jonka kalusteet ovat kiinteä osa arkkitehtuuria. Nimi Lusto tulee näyttelytilan (1 500 m²) muodosta ja merkitsee puun vuosikasvua, mutta siinä voi nähdä muistuman antiikin pyörötemppelistä.
46_Siida Nemo bis WLM 46a_Siida Nemo bis WLM
Saamelaismuseo oli perustettu ulkomuseona Inariin 1959. Jonkin aikaa sen jälkeen oli julistettu suunnittelukilpailu Oulun yliopiston arkkitehtiosaston opiskelijoille. Voittaja valittiin jatkokehittelyn pohjaksi, mutta asia hautautui ja herätettiin henkiin 1984. Hanke alkoi rahoituksen puolesta toteutua, kun museoon yhdistettiin Metsähallituksen Ylä-Lapin luontokeskus. Juhani Pallasmaan suunnittelema näyttelyrakennus Siida (merkitsee saamelaiskylää) valmistui metsäiseen rinteeseen museoalueen reunassa olleen sorakuopan paikalle vuonna 1998.
Sisäänkäynti on pohjakerroksessa, josta pääkerrokseen noustaan loivaa ramppia pitkin. Rakennus on istutettu ”pienipiirteiseen maisemaan” sen muotoja seuraten. Runko on teräsbetonia ja terästä, julkisivut puuta. Rakennuksen keskelle on koko pituudelta avattu ”luonnonvalorailo”.
Rakennussuunnittelu tapahtui rinnakkain näyttelysuunnittelun kanssa. Johdantonäyttely esittelee pohjoisen luonnon ja kulttuurin kehitysvaiheita jääkaudesta tähän päivään. Näyttelytilat ovat yönsinisiä, muut tilat yleisväritykseltään valkoisia. Museosta tuli kokonaistaideteos, jossa tavoitteena oli ”yhdistää tieteellinen sisältö teatterin tai taidenäyttelyn kaltaiseen elämyksellisyyteen”. Esineiden ja kuvien taustalla on eri vuodenaikoja ja luonnontapahtumia kuvaava äänimaisema.[54]
Suomen maatalousmuseo Sarka Loimaalla on viimeinen 1990-luvulla alkunsa saanut erikoismuseo. Suomen maatalouskonemuseosäätiö perustettiin 1992. ”Suomalaisen maatalouden 3000-vuotisen tarinan” kertova museo avattiin 2005 (arkkitehti Sarlotta Narjus).
Uudelle vuosituhannelle siirryttyä järjestettiin arkkitehtuurikilpailu Kotkan Merikeskus Vellamosta vuonna 2004 ja rakennus avattiin 2008 (Arkkitehtitoimisto Lahdelma & Mahlamäki Oy).[55]
Nykytaiteen museo Kiasma, Helsinki (1998)
Keskustelu museoarkkitehtuurista alkoi 1960-luvun vaihteessa Helsingin keskustasuunnitelmasta. Siihen oli merkitty paikka museolle, ja tänne uusi rakennus liki 40 vuotta myöhemmin nousikin. Nykytaiteen museon perustamisvuonna 1990 ilmestyi amerikkalaisen taidehistorioitsijan Douglas Crimpin pamfletti Museon raunioilla, jossa tämä pohti museon roolia ja vastuita, erityisesti nykytaiteen määrittelyssä ja ohjailussa.
47_Kiasma_MLR.jpg 48_leikkaus_MLR.jpg
Nykytaiteen museon rakennushanke lähti rivakasti käyntiin, lamasta oli etua. Kaupungin rakennuskoneistolta loppuivat työt, joten tehtiin sopimus, jonka mukaan valtio tilasi työn kaupungilta ja rakennuksen valmistuttua maksoi sen luovuttamalla museotalon arvoa vastaavan määrän rakennusmaata toisaalta.
Pohjoismaiden ja Baltian arkkitehdeille suunnattu suunnittelukilpailu käytiin 1993. Lisäksi oli kutsuttu mukaan neljä kansainvälisesti tunnettua arkkitehtiä. Ehdotuksia tuli 516, joista voittajaksi nousi yhdysvaltalaisen Steven Hollin[56] ehdotus Chiasma (silmistä aivoihin johtavien näköhermojen risteys).
Ehdotusta laatiessaan Holl kävi Helsingissä. Hän asui museotontin viereisen Vaakuna-hotellin ylimmässä kerroksessa, josta tutkiskeli tonttia ja sitä ympäröivää kaupunkinäkymää. Myöhemmin hän tutustui suomalaiseen rakennusperintöön kuten Petäjäveden kirkkoon. Rakennustyön käynnistyttyä suunnittelun Suomen tukikohtana toimi arkkitehti Juhani Pallasmaan toimisto.
49b_Kiasma_Sakari Kiuru MV 49_Kiasma_Tirri MV
Arkkitehtuurikilpailun voittajasta syntyi kohu. Arkkitehdit pitivät tonttia ahtaana ja rakennusta mahdottomana, koska sitä ei voisi muuttaa tai laajentaa, mikä oli ollut ihanne. Syytettiin myös amerikkalaisuuden palvonnasta. Kovin vastustus tuli Mannerheimin ratsastajapatsaan suojelijoiden taholta. Patsas jäi paikalleen, ja Holl otti sen huomioon etsiessään muotoa, joka nivoisi yhteen ristiriitaisetkin elementit tonttia ympäröivässä rakennus- ja puistomaisemassa. Rakennus valmistui 1998. Se huipensi 1900-luvun jälkipuolen museorakentamisen.
Kiasman viisi kerrosta ovat toisiinsa nähden hieman limittäin ja kaarevien seinäpintojen vuoksi eri suuruisia. Museotilaa on 9 100 m². Runko on terästä, ja betoni kaartuu kauniisti. Ulkoseinät ja katto on päällystetty sinkki-, alumiini-, messinki- ja lasilevyillä, sisäpuoli on valkoinen. Pohjakerroksen yleisötiloissa on myös puuta ja voimakkaita värejä. Rakennus on avoimen ja suljetun tilan yhdistelmä. Holl pitää taloaan avoimena, koska siellä on portaikkoja, hissejä ja oviaukkoja, jotka mahdollistavat vapaan liikkumisen. Sisään tullessa avautuu näkymä talon läpi, sekä päästä päähän, että alhaalta ylös valokattoon saakka.
Portaikon sijasta museoon noustaan kaarevaa ramppia pitkin. Sen molemmin puolin seinien takana on huoneesta huoneeseen kuljettavia näyttelysaleja, ylimpänä kattoikkunoin varustettu muita korkeampi sali. Luonnonvalon käyttö on Hollille tärkeää, sen vuoksi molemmissa päädyissä sekä länsisivulla on isot panoraamaikkunat. Näyttelysalien seinät ovat valkeat, lattiat tummanharmaata betonia. Tekniikka on upotettu, eikä arkkitehtonisia elementtejä ole korostettu. Tavoitteena on tila, jossa katsoja voi kohdata teoksen häiriöttä.
Lopputulos on paikkaansa sopeutuva talo, jonka kaartuva harmaa ulkokuori on kuin kotilo tai simpukka, joka suojelee helmenhohtoista sisältöään: ulkoa pieneltä vaikuttava rakennus avautuu sisääntulijalle juhlavan avarana. Valkoisen tarkoitus on pyhittää taide. Amerikkalainen arkkitehtuurintutkija Victoria Newhouse kirjoitti jo ennen Kiasman valmistumista kirjassaan Towards a New Museum näkevänsä Kiasman ”pyhänä tilana”.[57]
Museorakennuksen ikuisuuskysymyksiä
Museorakentamisen rinnalla on laaja kysymys: millaista historiakäsitystä museot ylläpitävät, kenen tarinoita kertovat. Vaikka museorakennukset muuttuvat, museorakentamisessa on edelleen ratkaistava samoja kysymyksiä. Halutaanko uudisrakennus vai korjataanko jokin vanha. Halutaanko luonnonrauhaan vai kaupungin ytimeen. Miten rakennus suhteutuu sisältöönsä, miten ympäristöönsä. Painotetaanko pysyvää näyttelyä vai vaihtuvaa ohjelmistoa. Onko näyttelykierto avoin vai suljettu ja miksi niin on. Mikä on luonnonvalon ja keinovalon suhde. Tehdäänkö temppeli vai toivotaanko toria.
Kirjoittaja
Filosofian tohtori, dosentti, tietokirjailija Marja-Liisa Rönkkö on toiminut eri tehtävissä lukuisissa museoissa, kuten museonjohtajana Helsingin kaupunginmuseossa 1978–1990 ja ylijohtajana Valtion taidemuseossa 1990–2000. Artikkeli perustuu tekijän väitöskirjaan Louvren ja Louisianan perilliset. Suomalainen taidemuseo sekä artikkeleihin teoksissa Museologia tänään ja Suomen museohistoria.
Artikkeli on julkaistu 2020.
Museo yliopistokampuksen yhteydessä - Jyväskylän museot (1961, 1973 ja laajennus 1990)
Museoarkkitehtuuri siirtyi modernismiin viimeistään arkkitehti Alvar Aallon ensimmäisen museorakennuksen toteuduttua Jyväskylään vuonna 1961. Keski-Suomen museoyhdistys oli perustettu 1931, ja 1953 perustettiin sen taideosasto. Uudisrakennukseen tähdättiin alusta pitäen. Paikaksi osoitettiin Seminaarinmäen kampuksen jyrkähköllä etelärinteellä sijaitseva historiallinen Ruusupuisto. Museon johtaja Sirkka Valjakka laati tilaohjelman (3–4 kerrosta, 2000 m²), Alvar Aalto suunnitteli ja antoi pääpiirustukset lahjana.
Keski-Suomen museo (rakennettu 1959–61) on kolmikerroksinen ja pohjakaavaltaan vapaamuotoinen. Ulkoarkkitehtuurissa näkyy kerrosten terassimainen jäsentely. Keskikerroksen alkuperäisestä sisääntulosta ja aulasta päästiin kahvilaan, joka ulostyöntyvine pitkine terassiparvekkeineen avautui Jyväsjärven suuntaan. Perältä oli käynti kahteen isoon näyttelysaliin, kolmannessa kerroksessa oli pienempi, kattokorkeudeltaan vaihteleva ”taidehalli” ja luentosali, johon museoyhdistys oli saanut toivomansa Viipurin kirjaston tapaan aaltoilevan sälekaton. Pohjakerroksessa olivat työhuoneet, kirjasto, kokoelmatiloja sekä ulos avautuva pieni pylväshalli.
Kaikki oli rapattu ja slammattu valkoiseksi, taidemuseon sisätilojen tunnusvärillä. Sisustus oli teetetty ja kalusteet hankittu Artekin kautta. Vaikutelma oli ilmava. Talonpoikaisesineitäkin kohdeltiin itsenäisinä taideteoksina. Näyttelyrakenteet olivat kevyitä siirrettäviä seinäkkeitä ja vitriinejä. Esitystapa oli omaksuttu Milanon Suomelle menestyksekkäistä muotoilutriennaaleista.[27]
Aallolle itselleen omistettu Alvar Aalto -museo perustettiin 1966. Sen suunnitelmaan yhdistettiin Keski-Suomen museon laajennussuunnitelma. Alvar Aalto -museo valmistui 1973 rinteen juureen, ja sieltä sai Aallon ystävä Jalo Sihtola ensimmäisen pysyvän sijan kotimaista ja ulkomaista taidetta sisältävälle kokoelmalleen. Keski-Suomen museon laajennus valmistui vasta 1990, jolloin sisäänkäynti ja luentosali siirtyivät pohjakerrokseen järven puolelle. Museoiden väliin varattiin mahdollisuus rakentaa yhdyskäytävä.
10_AAMpohja_MLR 11_AAMnäyttely_MLR.jpg
Alvar Aalto -museon kaksikerroksisen rakennuksen pohjakaava on vapaamuotoinen monikulmio. Sisääntulojulkisivu on ikkunaton ja muodostaa loivasti koveran kulman, jossa on kolmiosainen pronssiovi. Pohjakerroksessa on aula, kahvio, luentosali, kirjasto, toimistotilat ja tauluvarasto, toisessa kerroksessa 700 neliön suuruinen yhtenäinen näyttelytila, jota rytmittävät sileät valkoiset pylväät ja siirreltävät seinäkkeet. Seinät ovat molemmissa museoissa valkoiset, aulojen lattiat punaruskeaa tiiltä, näyttelytiloissa vaalean harmaata linoleumi- tai muovimattoa. Aalto-museon yläkerran taustana on ”revontuliseinä” muistona New Yorkin maailmannäyttelystä (1939).
Julkisivun tekstuuri on karhea: pohja on Arabian hallatiiltä, jonka päällä on tiheä posliinisauvoista rakennettu ”pystyrimoitus”. Pihan ulkovalaistus on Aallon suunnittelema, ja museoiden välissä virrannut puro päätyy istutusten ympäröimäksi kaskadilammikoksi. Kokonaisuus on Alvar Aallon museosuunnitelmien erilaisten elementtien kokoelma.[28]
”Louisiana-entusiasmi”[29]
Koko 1900-luvun jälkipuolen ajan suomalaisia innosti Kööpenhaminan lähellä Humlebaekissa kesällä 1958 avattu modernin taiteen museo Louisiana, jonka syntysanat lausui suurliikemies-keräilijä Knut W. Jensen 1945. Lähtökohta oli 1855 valmistunut kartano ja sitä ympäröivä merellinen kulttuurimaisema.
Louisianan taidemuseo on esimerkki orgaanisen kasvun museosta (Jørgen Bo ja Wilhelm Wohlert, 1956–91). Kuudessa vaiheessa rakennettu museo on sijoitettu maastoon niin, että maisema on säilynyt mahdollisimman koskemattomana. Ulkoapäin matalilta näyttävät rakennukset muodostavat nauhamaisen, osittain maanalaisen lenkin, jonka kiertämällä näkee koko näyttelyn (10 800 m²). Seinämateriaaleja ovat valkoinen tiili ja lasi, lattioissa klinkkeri ja katoissa mänty. Paviljonkeja yhdistävät läpinäkyvät lasikäytävät, joista avautuu näkymiä luontoon ja ympärillä levittäytyvään veistospuistoon.[30]
Museo taiteilijan tuotannolle - Wäinö Aaltosen museo, Turku (1967) ja Eero Nelimarkan museo, Alajärvi (1964)
Kuvanveistäjä Wäinö Aaltosen museo avattiin 1967. Muutamat yksityishenkilöt olivat vuonna 1940 ryhtyneet ostamaan Aaltosen töitä museon aikaansaamiseksi. Sijoituspaikaksi taiteilija ajatteli kotiaan Helsingin Kulosaaressa, toiset pitivät Tamperetta jo hänen ulkoilmamuseonaan, mutta kun Aaltonen aikoi muuttaa Turkuun, päätti kaupunki tarjota museolle paikkaa Turusta taiteilijan 70-vuotispäivänsä kunniaksi 1964.
Wäinö Aaltonen lupasi lahjoittaa ja tallettaa sovitut teokset sekä arkistomateriaalin, kaupunki lupasi rakentaa talon. Aaltonen edellytti, että hänet nimettäisiin kymmeneksi vuodeksi museon intendentiksi, ja mikäli hän sitä ennen kuolisi, hänen poikansa jatkaisi. Aluksi oli tarkoitus, että Wäinö Aaltonen olisi saanut työtilat rakennuksesta. Tontti osoitettiin Aurajoen rannasta, teatteritalon ja valtion virastotalon rintamaan. Aaltonen suunnitteli museon poikansa, Oulun yliopiston asemakaavaopin professori Matti Aaltosen toimiston kanssa. Yhteistyötä koordinoi Turun kaupunginarkkitehti A. S. Sandelin.[31]
13_WAMpohja_MLR 14_W Aaltonen_MLR 16_WAM veistossali Volker von Bonin
Arkkitehtisuunnittelun lähtökohtana on Alvar Aallon Tallinnan taidemuseon kilpailuehdotus (1936-37). Berliinissä rakenteilla ollut, arkkitehti Ludwig Mies van der Rohen suunnittelema Neue Nationalgalerie innoitti ajanmukaistamaan suunnittelua.
Vaalea suoraviivainen rakennus on ahtaalla rinnetontilla porrastetusti, ylimpänä kohoaa 11 metriä korkea veistossali. Sisääntulo jäsentyy ”aaltomaisesti”: terasseittain kohoaviin näyttelytiloihin (1 100 m²) siirrytään ulko-ovea vastapäätä lähteviä porrasaskelmia pitkin. Aulasta vasemmalla lasiseinän takana aukeaa sisäpiha veistoskoristeisine vesialtaineen.
Ensimmäinen suunnitelma oli lopputulosta modernimpi. Jykevän ulkoterassin lisäksi arkkitehdit olisivat halunneet julkisivuun betonielementtejä (Sibelius-museossa tämä toteutui) tai uurrettuja mineriittilevyjä. Tavoitteena oli luoda ”huomaamatonta, ekonomista arkkitehtuuria”.[32] Tilaajat halusivat arvokkaampaa: pääjulkisivuun käytettiin travertiinia ja sivuihin kalkkihiekkatiiltä sekä lattioihin klinkkerin sijasta kalkkikiveä. Eniten suunnittelua ohjasi veistoskokoelma, jonka laajuus oli tiedossa.
19_Nelimarkka_MLR
Nelimarkka-museo avattiin 1964. Hanke oli syntynyt taidemaalari Eero Nelimarkan toiveesta luoda taidekoulu, jota varten hän oli perustanut säätiön 1945. Vuonna 1961 ostettiin Alajärveltä Nelimarkan suvun vanha kantatila. Puretun navetan paikalle valmistui 1964 Nelimarkan ystävän arkkitehti Hilding Ekelundin piirustusten mukaan pääjulkisivultaan klassisistinen koulu- ja museorakennus, muilta osin 1960-luvun kouluarkkitehtuuria. Nelimarkka korjasi vaikutelmaa haluamaansa klassiseen suuntaan piirtämällä itse laajennusosan 1972–74. Museota laajennettiin vielä 1997 (Käpy ja Simo Paavilainen). Nelimarkka-museo on 1900-luvun lopulla viimeinen aluetaidemuseo.[33]
1960-luvun muita uusia museorakennuksia
Arkkitehtuurin käänne 1960-luvulla käynnisti keskustelun ammattikunnan sisällä. Nuoremman polven yksinkertaista ja anonyymiä rakentamista vaativille suunnittelijoille oli tärkeää muunneltavuus ja laajennettavuus. Esikuvana voi pitää saksalais-amerikkalaista arkkitehtiä Mies van der Rohea.[34] Betonin valupinnan ja rakenteiden näkyville jättämistä on kutsuttu myös betonibrutalismiksi. 1970-luvulla alkoi mittavampi vanhojen rakennusten muuttaminen museoiksi, mikä toi mukaan rakennussuojelukysymykset.[35]
18a Sibelius-museo js Mikkoau 2016 WLM 18b_Sibelius_MLR 18d Sibelius Hhö 2013
- Turun linnan korjaus ja suuri näyttelyhalli ullakolle (Erik / Carin Bryggman, 1961–87),
- Tornionjokilaakson maakuntamuseo, Tornio (Jouko V. Ylihannu, 1962, Matti Porkka, 1981),
- Tammisaaren museon näyttelyhalli (Ola Hansson, 1963),
- Emil Cedercreutzin museon ”Maahengen Temppeli” Harjavalta (Jonas / Mariana Cedercreutz, 1963–97),
- Didrichsenin taidemuseon näyttelysiipi Helsinki (Viljo Revell, 1965),
- Sibelius-museo (Woldemar Baeckman, 1968) Åbo Akademin puutarha-alueelle Turkuun,
- Pohjanmaan museon näyttelysiipi, Vaasa (Erik Kråkström, 1968),
- Helsingin taidemuseon Kluuvin galleria (Aarno Ruusuvuori, 1968),
- Ortodoksinen kirkkomuseo, kirkkokunnan Kuopion keskustalossa (Dag Englund, 1969),
- Yrjö Liipolan museo, Koski Tl (Eero Ponkala, 1970).
20_Didrichsen_MLR.jpg
Museo taidekokoelmalle - Meilahden taidemuseo, Helsinki (1967) ja Sara Hildénin taidemuseo, Tampere (1979)
Taiteen keräilijöille tärkeintä on ollut saada pysyvä paikka ja omalle kokoelmalle sopivat näyttelytilat.
Helsingin kaupungin taidemuseo nousi Meilahteen Tamminiementielle 1967. Kaupunki osti Meilahden kartanon kantatilan vanhat rakennukset, jolloin kypsyi ajatus yhdistää tuolloin innostusta herättänyt ja komiteatyöskentelyn tuloksena määritelty ”monitoiminnallinen taidekeskus” tähän.[36] Kun kaupungilla oli jo tiedossa useita lahjoituksia, päätettiin kunnollisten näyttelytilojen rakentamisesta omia kokoelmia varten, samalla kun otettiin vastaan Leonard ja Katarina Bäcksbackan perikunnan lahjoittama vanhemman kotimaisen taiteen kokoelma.
Kokonaista museota – taidekeskuksesta puhumattakaan – ei kuitenkaan tehty, vaan kyseessä on yksistään näyttelyrakennus. Suunnittelutehtävä annettiin kaupungin arkkitehdeistä Tero Aaltoselle.
22_Meilahti2_MLR 23_Meilahtipohja_MLR. jpg
Tanskalaisen Louisianan taidemuseon vaikutusta voi nähdä näyttelyrakennuksen paikanvalinnassa ja itse rakennuksessa. Tontti on loivassa rinteessä, joka avautuu merenlahdelle. Perikunnan edustajalla Ingjald Bäcksbackalla oli mielessään ripustussuunnitelma ja kokoelman vaatimat juoksumetrit, jotka sitten ”juostiin” maastossa arkkitehdin ja mittanauhan kanssa. Alvar Aalto -museota käytiin katsomassa. Intendentti Marja-Liisa Bell laski muiden tilojen tarpeen ja toimi neuvonantajana.
Kartanon lehtevään puistoon 1976 valmistunut valkoisella kahitiilellä verhottu rakennus (1 560 m²) on yksinkertainen. Sisäänkäynti on itäpäädyssä, jossa on avara klinkkerilattiainen aula kartanon puistoon avautuvine lasiseinineen. Aulaa oli mahdollista käyttää myös luentosalina. Näyttelytilat koostuvat viidestä suorakaiteen muotoisesta salista, jotka noudattavat huoneesta huoneeseen -mallia silmukkana, mistä muodostuu niin sanottu ”pakkokierto”. Ensimmäinen sali on suurin ja muita korkeampi. Kunkin salin keskivaiheilla on vastakkain lyhyet seinäkkeet, jotka jakavat ne ikään kuin kahteen pienempään huoneeseen.
Salien väliset ovet on sijoitettu kauas toisistaan, tukemaan johdonmukaista kiertoa. Saleihin päivänvaloa tulee kattoikkunoiden välityksellä seinänvieriä kiertävien valokuilujen kautta. Lattioita peitti aluksi sisalmatto ja seinät oli verhottu tärkätyllä juuttikankaalla, kuten taidegallerioissa oli tapana. Salien alla oli varasto ja ikkunallisia teknisiä tiloja.[37]
Tilat toimivat hyvin ja Meilahden museo oli pitkään kaupungin parhaita näyttelypaikkoja. Kahvilaa rakennukseen ei tullut, sitä varten korjattiin viereinen kartanon puinen päärakennus 1800-luvun alkupuolelta. Puistossa on ollut näytteillä veistoksia ja siellä on järjestetty taidetapahtumia, mutta suunniteltuja laajennuksia ei toteutettu.
24_Hilden ilmakuva Teuvo Kanerva 25_Hildenleikkaus_MLR.jpg
Sara Hildénin 1979 avattu taidemuseo perustuu niin kotimaiselle kuin ulkomaiselle modernismille ja nykytaiteelle. Ensimmäiset teokset Hildén osti vuoden 1961 Ars-näyttelystä. Hän lahjoitti kokoelmansa nimeään kantavalle säätiölle, joka solmi 1975 sopimuksen Tampereen kaupungin kanssa uuden museon rakentamisesta ja teosten pysyvästä sijoittamisesta sinne. Kaupunki vastaa museon ylläpidosta ja säätiö kartuttaa kokoelmaa.
Paikkaa valittaessa Hildén mieltyi rakenteilla olleen Särkänniemen huvipuiston läheisyydessä sijainneen vanhan huvilan Näsijärvelle avautuvaan rinnetonttiin ja rakennusten jäännöksiin, jotka loivat perustan veistospuistolle. Tärkein lähtökohta oli juuri tämä paikka, jota voi luonnehtia jopa välimerelliseksi.
Tavoite oli sama kuin Helsingissä: rakentaa yksityiselle kokoelmalle ihanteelliset olosuhteet. Suunnittelijaksi valittiin tamperelaisen Pekka Ilveskosken arkkitehtitoimisto, joka konsultoi myös Meilahden taidemuseon suunnitellutta Tero Aaltosta. Paikan lisäksi lähtökohdiksi otettiin näyttelysalien tarkoituksenmukainen liittyminen toisiinsa sekä teoksille sopivan valaistuksen luominen. Maalaussalit ovat ikkunattomia, mutta tärkeitä näköalaikkunoita on salien liitoskohdissa. Arkkitehtuuriin suoraan vaikuttanut ero oli siinä, että nykytaiteen teokset ovat suurikokoisempia, väreiltään kirkkaampia, usein ääntä, valoa ja liikettä sisältäviä.
Hildén oli luonut kokoelmansa yhteistyössä Ateneumin asiantuntijoiden kanssa ja tutustunut matkoillaan keskeisiin eurooppalaisiin museoihin. Amerikkalaisia museoita puolestaan tunsi suunnittelussa mukana ollut Asko Rasinperä, joka oli opiskellut Yhdysvalloissa. Ulkomaisia rakennuksia, joihin on viitattu, ovat Nizzan lähelle 1964 valmistunut yksityinen nykytaiteen museo Fondation Maeght (Josep Lluis Sert), etenkin veistospuiston osalta, Berliinin Brücke-Museum (Werner Düttmann, 1967) sekä ”monoliittista ekspressionismia” edustava Emerson Museum of Art (I. M. Pei, Syracuse N. Y., 1968).
Kaksikerroksisen rakennuksen pohjakaava edustaa neliapila-tyyppiä (ydin ja satelliitit). Sisäänkäynti on suoraan toiseen kerrokseen, jossa on toimistosiipi, luentosali ja maalausgalleriat. Keskisalista laskeudutaan pohjakerroksen veistostiloihin, joissa on välitasanne, ja edelleen kahvioon ulkoterasseineen. Kaikki näyttelytilat ovat luonteeltaan avoimia ja niissä voi liikkua vapaasti, haluamassaan järjestyksessä. Alakerrassa on järven suuntaan, pohjoiseen ja länteen suuret ikkunaseinät.
26a_Hilden_SJE 26_Hilden_HHö 26b_Hilden_SJE
Ulkoseinät ovat vaalearouheista pesubetonia, sisällä kantavat seinät on jätetty betonivalun jälkeen käsittelemättä. Näyttelyseinät on verhottu valkeaksi maalatulla kangaspinnoitteella, ja tilojen jakamiseksi pienempiin osiin on käytössä ollut irtoseiniä. Lattiat ovat kivilaattaa. Rakennus oli valmistuessaan maan suurin taidemuseo (2 500 brm²)[38]
Satakunnan kulttuurihistoriallinen museo, Pori (1973)
Porissa avattiin Satakunnan museon uudisrakennus 1973. Samana vuonna valmistui Alvar Aalto -museo Jyväskylään. Satakunnan museo oli perustettu 1888. Kokoelmat oli kerännyt ja järjestänyt opettaja Matti Kauppinen, joka toimi aktiivisesti myös Museoliitossa sen perustamisesta lähtien. Vaihtuvissa vuokratiloissa majaillut museo oli saanut pysyvämmän sijan monenlaisessa käytössä kuluneesta, rapatusta ”Iltaman talosta” vuonna 1903.
Ajatusta oikeasta museorakennuksesta pidettiin yllä, ja kopin otti vuonna 1958 museonjohtajaksi valittu Unto Salo, museon ensimmäinen ammattilainen ja tuolloin myös Museoliiton puheenjohtaja. Ennen Turun arkeologian professoriksi siirtymistä hänen viimeiseksi tehtäväkseen jäi uuden museon tilaohjelman laatiminen.[39] Tontiksi osoitettiin pieni kolmiomainen puisto Hallituskadun päästä, jokirannan ja oluttehtaan välistä, ja suunnittelijaksi valittiin kaupunginarkkitehti Olaf Küttner. Suojelukiistaa tai kilpailua ei näin vaikeasta paikasta syntynyt.
Sisäänkäynti on etelästä, Hallituskadun puolelta, josta vaaleanharmaa pesubetonipintainen rakennus (4 603 brm²) näyttäytyy ajan tavan mukaan yksikerroksisena. Aulasta oikealla on toimistosiipi kadulle suuntautuvine ikkunariveineen ja luentosaleineen, vasemmalla yhtenäinen ikkunaton tilapäisnäyttelytila (400 m²) ja suoraan edessä kahvila, josta avautuvat pohjoispuolen ainoat ikkunat Jazzkadun (Eteläranta) yli joelle.[40] Toimistotilojen takana on perusnäyttelytilojen suuri kolmikerroksinen blokki, johon päivänvaloa saadaan kaikkien kerrosten läpi ulottuvan kulmikkaan valopihan kautta.
28b_Satakunnan museo_MLR 28_SatMsisältä_MLR.jpg
Alun perin vaaleahkoja avaria sisätiloja jäsentävät lehtereitä kannattelevat pylväät ja niitä yhdistävät umpilaitaiset betoniportaikot. Ruskeasävyisissä näyttelytiloissa oli ritiläkatot ja kokolattiamatot. Sisustuksen suunnitteli Tauno Kivinen.
Kokonaisvaikutelmaltaan museo on sukua Kalifornian Berkeley-yliopiston taidemuseolle (Mario J. Ciampi, 1970), ja Amsterdamin saman aikainen Van Gogh -museo (Gerrit Rietvelt, 1973) tunnettiin.[41]
Big Bang – museot haluavat uudistua
Vuoden 1970 tienoilla alkoi kehityskulku, jota museologisessa kirjallisuudessa kutsutaan alkuräjähdykseksi. Se lähti liikkeelle ekomuseo-ajatteluna, joka pyrki häivyttämään rajat museon ja sitä ympäröivän yhteisön väliltä. Painopiste haluttiin siirtää laitosajattelusta aktiviteetteihin, iskusanoina ”elävä museo” ja pontimena mahdollisuus vaikuttaa tulevaisuuteen. Tavoitteena oli asettaa museo laajaan sosiokulttuuriseen yhteyteen, jossa luonnontiede, historia, taide ja teknologia muodostaisivat kokonaisuuden.[42]
Tähän vaiheeseen sijoittuu Museoviraston perustaminen 1972 museoinstituution kokonaisvaltaiseksi kehittämiseksi. Suomen museoliitto oli itsenäistynyt 1957 muuttamalla Kansallismuseosta omiin tiloihin Cygnaeuksenkadulle.
Ammatillistuminen vauhdittui, näyttelyitä järjestettiin 1970-luvulla ennätyksellinen määrä sekä museoissa että ulkopuolisissa tiloissa, yleisömäärät moninkertaistuivat. Erityisesti alettiin ottaa huomioon lapset: ensimmäiset museolehtorit aloittivat Ateneumissa ja Kansallismuseossa 1970-luvun alkuvuosina.
Näyttelysuunnittelusta tuli museoissa kriittinen tekijä. Suomen museoliitto ryhtyi järjestämään kursseja tästä tematiikasta. Teknisistä kysymyksistä, kuten museoiden murto- ja paloturvallisuudesta, esineistön oikeista säilytysolosuhteista ja rakennusten suojelusta, tuotettiin ohjekirjoja ja suosituksia. Erikoismuseokenttä alkoi hahmottua. Aika oli kypsä laajemmalle keskustelulle museorakennuksista.[43]
Museoarkkitehtuuriseminaari 1979
Museoliitto järjesti museoarkkitehtuuriseminaarin 26.–27.11.1979 Espoon Hanasaaressa. Sen aiheuttivat Porin taidemuseon, Helsingissä Taideteollisuusmuseon (Designmuseo) ja Sinebrychoffin taidemuseon avaamiset sekä satavuotiaan Ateneumin lähestyvä korjaus. Siitä oli käynnistetty hankesuunnittelu 1978 (Laiho – Pulkkinen – Raunio, toteutus 1985–91).
Seminaariin osallistui 140 henkeä. Esiteltäväksi koottiin kaikki tieto ja kokemukset, mitä siihen mennessä oli saatu uudistiloista ja vanhojen rakennusten korjaamisesta. Museoasiainsihteeri Jorma Heinonen oli paneutunut niin museoarkkitehtuurin historiaan ja estetiikkaan kuin viimeisimpään tekniikkaankin.[44] Hän esitteli Aallon Tallinnan taidemuseon nerokkaana pitämänsä ehdotuksen. Parinkymmenen vuoden aikana valmistuneita museohankkeita esiteltiin esimerkein.
Alueellinen museoverkosto syntyy – 1980-luvulla liki 200 uutta museota
Valtioneuvosto teki 1979 päätöksen alueellisen museoverkoston muodostamisesta. Sitä koskeva valtionavustuslaki säädettiin 1988. Vuonna 1992 säädettiin Museolaki ja asetus, jonka piiriin pääsivät kaikki ammatillisesti hoidetut museot.[45] Laskennallisena pohjana olivat henkilötyövuodet. Lakiin lisättiin museoiden yhteiskunnallinen tehtävä 1996.
Maakuntamuseot ja aluetaidemuseot nimettiin suurimpien kaupunkien olemassa olevien museoiden pohjalta vuosina 1980–1995. Erikoismuseokenttää vahvistettiin vielä muutamilla museoilla, jotta kaikille tärkeiksi katsotuille osa-alueille saatiin oma vastuumuseonsa, jotka vahvistettiin 1993–2010.
Uusia museoita oli toisen maailmansodan jälkeen perustettu noin 15-20 museon vuosivauhtia. Lakipiste saavutettiin 1980-luvulla, jolloin museoita syntyi kaikkiaan liki 200. Kasvu oli samanlaista kansainvälisestikin. Sitten seurasi nopea lasku niin, että viimeisellä vuosikymmenellä ennen vuosituhannen vaihdetta museoita perustettiin meillä enää parikymmentä.
Arkkitehtuurissa Oulun kouluksi kutsuttu postmoderni suuntaus tavoitteli elämyksellisyyttä.
Kaupunginmuseoiden ja kotiseututalojen rinnalla ovat paikallismuseot. Niihin kuuluvat historiallisten henkilöiden, valtiomiesten, kulttuuripersoonien ja urheilijoiden museoidut kodit, paikkakunnalle luonteenomaisten ammattien ja ilmiöiden museot sekä yksittäisten keräilijöiden moninaiset kokoelmat ja kohteet.[46]
27_Ainola_WLM 27b_Yli_laurosela_MV
Museo vanhassa rakennuksessa
”Vanhat rakennukset museokäytössä” oli Museoliiton museoarkkitehtuuriseminaarissa 1979 toisen pääpuhujan, Teknillisen korkeakoulun arkkitehtuurihistorian professori Henrik Liliuksen teema. Lilius puolusti voimakkaasti alkuperäisiä rakenteita ja kritisoi historiallisten rakennusten sisätilojen uudistamista. Liliuksen mielestä uuden käytön tarpeet eivät saisi kokonaan ohittaa rakennuksen omaa historiaa, vaan näiden välille pitäisi etsiä tasapaino. Keskustelu jatkui vilkkaana Ateneum-rakennuksen korjauksen alkaessa ja uudistamisen edetessä (1985-91).[47]
29_Pori_MLR.jpg
Henrik Liliuksen seminaarialustuksen taustalla olivat seuraavat silloin ajankohtaiset museohankkeet:
- Brobergska Samskolanin (Gustaf Nyström, 1894 / Olli Borg, 1978) muutos Taideteollisuusmuseoksi,
- Sinebrychoffin patriisitalon (Jean Wik, 1842 / Sirkka-Liisa Tarumaa, 1979) muuttaminen taidemuseoksi,
- Porin pakka- ja vaakahuoneen (C. J. von Heideken, 1858 / Kristian Gullichsen, 1979) muutos Maire Gullichsenin taidekokoelman tiloiksi.
Museo teollisuusrakennuksessa
Luontevimmin museoiksi on taipunut teollisuusarkkitehtuuri. Teollisuusrakennusten houkuttavuuteen vaikuttavat niiden avarat, vapaasti muunneltavat hallitilat. Teollisuustuotannosta tyhjeneviä tehtaita on otettu museokäyttöön satakunta. 1900-luvun loppua kohti teollisuusrakennusten ja kokonaisten alueiden käyttö kulttuuritiloina vielä lisääntyi.
30_Vapriikki Tiia Monto WLM 2017
- Riihimäen kaupungin vuonna 1975 hankkima, lasitehtaan 1910-luvulla valmistunut rakennus, josta Tapio Wirkkala suunnitteli Suomen lasimuseon (näyttely 1 762 m²),
- Vuonna 1898 perustettu Suomen rautatiemuseo muutti Helsingin asemalta Hyvinkäälle 1973–74,
- 1969 perustettu Tekniikan museo asettui vuodesta 1970 lähtien Helsingin vesilaitoksen sata vuotta vanhoihin tiloihin Vantaanjoen suulle.
- Kaapelitehdas Helsingissä (W.G. Palmqvist, 1939–1954) on 1990-luvun alusta ollut kaupungin omistama kiinteistöyhtiö. Entisen Nokian kaapelitehtaan suurimman hallin (2 700 m²) itäpäähän muuttivat 1990-luvun alussa Suomen Valokuvataiteen museo (perustettu 1969), Teatterimuseo (perustettu 1962) ja Hotelli- ja ravintolamuseo (perustettu 1971) päällekkäisiin tiloihin, joiden museotilat viimeisteltiin 2000.
- Tampellan tiloissa avattiin 1996 Tampereen museokeskus Vapriikki (14 000 m²) lukuisine museoineen.
- Hämeenlinnan taidemuseon (perustettu 1952) viisi rakennusta sisältyvät Verkatehtaan (1895) kokonaisuuteen, joka oli pääosin oppilaitoskäytössä 1980- ja 90-luvuilla, kunnes se päätettiin suunnitella kokonaisuutena erilaisia kulttuuripalveluita varten 2001 (avaus 2007).
- Lapuan patruunatehtaan (perustettu 1923) tiloihin on 1990-luvulta lähtien kasvanut Kulttuurikeskus Vanha Paukku, jossa on muun muassa useita museoita kuten tehtaanmuseo (perustettu 1993), taidemuseo (perustettu 1998) ja Pyhälahden valokuvaamomuseo.
Taidemuseo kulttuurikeskuksessa - Kemi (1977), Tornio (1985) ja Kouvola (1987)
Joidenkin kaupunkien uusiin kulttuurikeskuksiin tehtiin tilat museolle. Kemin taidemuseo sai pysyvät tilat jo kulttuurikeskuksen ensimmäisessä rakennusvaiheessa 1977 (Arkkitehtitoimisto Jan Söderlund) ja lopullisen paikkansa 1990, kun koko kulttuurikeskus valmistui. Kemin vuonna 1947 alkunsa saanut taidemuseo oli ensimmäinen aluemuseokokeiluun osallistunut, ja siitä tuli maakunnallinen taidemuseo vuonna 1981 toiminta-alueenaan koko Lapin lääni.
Taidemuseon osuus kulttuurikeskuksesta on vajaa kymmenes. Nykytaiteelle soveltuvaa näyttelytilaa on 551 m². Suoraviivaista punatiilistä rakennuskokonaisuutta jäsentävät nauhaikkunat ja eri tilojen korkeuserot. Sisätilojen suoraviivaisuuden murtaa museon näyttelytilan ja kirjaston välinen diagonaalinen kantava seinä. Valmistuessaan rakennus tarjosi tilat kaupunginkirjastolle, kaupunginteatterille, kauppaoppilaitokselle ja työväenopistolle, joilla on torin puolelta yhteinen sisäänkäynti kahviloineen, ravintoloineen ja kaksine auditorioineen.[48]
37_Kemisali_MLR 37b_Kemi_MLR
Torniolainen kauppaneuvos Veli Aine toivoi, että hänen kotimaista 1800- ja 1900-luvun taidetta sisältävä taidekokoelmansa tulisi esiin kotikaupungissa. Ajankohdalle tyypilliseen tapaan pyrittiin taidemuseo perustamaan ”kulttuurikeskukseen veden äärelle”. Siinä maakuntamuseon, taidemuseon ja kirjaston tilatarpeet yhdistyisivät. Tuloksena oli päätös laajentaa maakuntamuseota omalla tontillaan ja rakentaa taidemuseolle sekä kirjastolle uusi yhteinen toimitalo.
Taidemuseon vuonna 1979 sovittu toimintamalli oli sama kuin Sara Hildénin museossa: kaupunki vastasi rakennuksesta ja museon ylläpidosta, Aineen Kuvataidesäätiö kokoelmien kartuttamisesta. Vuonna 1985 valmistunut, Rajakartanoksi nimetty talo nousi aiemmin tornitaloille kaavaillulle tontille. Arkkitehdiksi valittiin paikallinen Matti Porkka, joka suunnitteli myös maakuntamuseon laajennuksen. Porkka ei ollut suunnitellut museotiloja, mutta osallistui museoarkkitehtuuriseminaariin ja tutustui Helsingin kaupungin taidemuseoon, Sara Hildénin taidemuseoon ja Lapinlahden taidemuseoon (Esa Koivuniemi ja Georg Bystroff, 1977).
Torniossa Aineen museon ja kirjaston rinnakkaiset Torikadun suuntaiset tilat ovat suunnilleen samankokoiset. Rakennusmassat ovat kuitenkin toisiinsa nähden hieman vinottain ja kummallakin on oma luonteensa. Julkisivut on muurattu valkoisesta kahitiilestä. Sen päällä on ikkunatonta museonäyttelyaluetta korostava pystysuuntainen hiekanruskea marmoriharkotus, kirjaston ikkunoissa vastaavasti ritiläverhous. Yhteinen sisäänkäynti on rakennusten välissä toisessa kerroksessa, kahvila ja auditorio museon puolella. Museokäytössä on 1 576 m².
Sisäseinät ovat valkoiset, portaat ja käytävät on päällystetty Lapin louhemarmorilla, kahvila ja näyttelytilat sisal-laattamatolla. Näyttelysaleja on viisi, ja niihin Aine halusi Helsingin Meilahden taidemuseon tapaisen pakkokierron, jotta kaikki teokset tulisivat nähdyiksi. Ulkona oli tilaa veistospuistolle. Veli Aine sai toiveensa toteutumaan ja toimi museolautakunnan ensimmäisenä puheenjohtajana.[49]
38_Kouvola_MLR
Kouvola-talon (kilpailu: Erkki Valovirta, 1982) kotimaiselle nykytaiteelle omistettu museo perustettiin 1986 ja avattiin 1987 ”koulutus- ja kulttuurikeskuksessa”. Taidemuseon (1 000 m²) lisäksi siinä oli konserttisali sekä musiikkiopiston, kansalaisopiston ja taideharrastajien tiloja, samoin kaupungin toimistoja.
Puistomaisessa ympäristössä on hiekanvaalea kaksikerroksinen postmoderni rakennuskokonaisuus, yhteisen sisäänkäynnin ympärille rypälemäisesti kiertyvine pohjakaavoineen ja tummine aumakattoineen. Kaupunkien monitoimitaloissa tilojen käyttäjät voivat vaihtua, museo yleensä jää ja laajenee.[50]
Taide- ja kulttuurihistoriallinen museo, Saarijärvi (1989)
Saarijärven museo (Laila Niemioja / Heikki Uusitalo, 1989) avattiin 1989 saarijärveläisen kuvanveistäjä Kain Tapperin tuotantoa esittelevällä näyttelyllä. Ajatus museosta konkretisoitui, kun saarijärveläissyntyinen Toivi Järvinen määräsi testamentissaan 1982 omaisuutensa käytettäväksi taidemuseon rakentamiseen. Museoon koottiin yhteen Toivi ja Osmo Järvisen 1900-luvun alun kotimaisen taiteen kokoelma, Saarijärven kaupungin omistamat teokset ja Saarijärvi-seuran kulttuurihistoriallinen esineistö.
Vuonna 1948 perustettu Saarijärvi-seura vaali Saarijärven ja sen lähialueiden taiteilijoiden tuotantoa ja kulttuuriperintöä. Keskeisessä roolissa oli Tapperien kotitalo Juhola ja neljän taiteilijaveljeksen, kuvanveistäjä Kain Tapperin, kirjailijoiden Harri Tapperin ja Marko Tapion sekä lavastaja Yrjö Tapperin elämä ja tuotanto.[51]
Helsingissä työuransa tehneiden Toivi ja Osmo Järvisen omakotitalon tontille rakennettiin vaaleasta tiilestä puhtaaksi muurattu rakennus (1 150 m²). Saarijärven museonjohtaja Kari Kotilainen laati tilaohjelman, ja Jyväskylän museoiden kollegat työskentelivät rakennustoimikunnassa, joka osallistui Museoliiton Saksan-matkalle 1987. Frankfurtissa huomioitiin Main-joen molemmille rannoille nouseva vanhaa ja uutta arkkitehtuuria yhdistävä Museumsufer ja amerikkalaisarkkitehti Richard Meierin suunnittelema taideteollisuusmuseo.[52]
Saarijärvellä sisäänkäynti on suoraan näyttelykerrokseen, sen alapuolella ovat työ- ja varastotilat sekä sisääntulopäädyssä aulakahvio terasseineen. Muuta korkeampi keskiosa – ”valkoinen kuutio” – klinkkerilattioineen ja komeine järvinäkymineen – on tarkoitettu taiteelle ja erikoisnäyttelyille, itäpään matalampi ”musta kuutio” kulttuurihistoriallisille kokoelmille.[53]
34_Saarijärvi_MLR
Muita uusia museoita 1980- ja 1990-luvuilla
- Hyvinkään taidemuseo Jussintorin liikekeskuksessa (Ilmo ja Raimo Valjakka, 1981),
- Ahvenanmaan museot ja kaupunginkirjasto, Maarianhamina (Helmer Stenros, 1981),
- Skärgårdsmuseet i Lappo (Folke Wikström, 1981),
- Tampereen taidemuseon maanalainen näyttelytila (Antti Ilveskoski, 1984),
- Etelä-Karjalan museon sijoittaminen 1700-luvun linnoitukseen (Lappeenrannan kaupunki, 1984, 1989),
- Villa Gyllenbergin näyttelysiipi Helsingin Kuusisaaressa (Ålander Packalen Korsström, 1985),
- Rovaniemen taidemuseo postiautovarikkoon (Juhani Pallasmaa, 1986),
- Hiihtomuseo, Lahden Urheilukeskus (Esko Hämäläinen, 1989),
- Suomen metsästysmuseo muutti Porvoosta Riihimäelle (Osmo Lappo, 1990),
- Oulun taidemuseo liimatehtaan kiinteistöön (Birger Federley 1922, Jorma Teppo, 1991),
- Kalevala-talo, Talvisotamuseo, Kuhmo (Heikki Kukkonen 1991/1994),
- Mobilia auto- ja tiemuseo, Kangasala (Lindqvist & Uosukainen, 1992–94),
- Aboa Vetus & Ars Nova, Rettigin palatsin laajennus (Frank Schauman, 1995),
- Salon taidemuseo Veturitallin uudisosa (Lauri Hollmén, 1998).
39_Hyvinkää_MLR.jpg 42b_Lappeenranta Et karj museo WLM
40_Gberg_MLR 42_Lahden hiihtomuseo HHö
Tiedekeskus Heureka, Vantaa (1989) ja Arktinen instituutti Arktikum, Rovaniemi (1992)
Museoiden painopisteet ovat siirtyneet tutkimuksen suuntaan ammatillisuuden ja resurssien lisääntymisen myötä. Voitaneen jo puhua tiedemuseoista taidemuseoiden rinnalla.
Tiedekeskus Heurekan rakentaminen Vantaan Tikkurilaan oli 1980-luvun saavutus (kilpailu: Heikkinen ja Komonen, 1985). Säätiöpohjainen Heureka avattiin yleisölle 1989. Juuret ovat Helsingin yliopistossa, idean esittivät professorit Tapio Markkanen, Hannu I. Miettinen ja Heikki Oja. Kutsukirje oli lähtenyt Helsingin, Espoon ja Vantaan kaupungeille, joista Vantaa tarttui mahdollisuuteen tarjoten tontin ja merkittävää rahoitusta.
43_Heureka_MLR
Tiedekeskukset ovat museoiden rinnakkaisilmiö. Tieteen popularisointi, pedagoginen ote ja elämyksellisyys ovat yhteisiä tavoitteita, pääasiallisena erona se, ettei tiedekeskuksilla ole omia kokoelmia vartioitavanaan. Yleisötiloiltaan tiedekeskus muistuttaa avointa museota, uutuutena planetaario. Vapaus näkyy rakennuksen ulkoasussa, jota avaruusaiheineen voitaneen pitää uutta kokeilevan wau-arkkitehtuurin ensiesiintymisenä meillä.
44_Arktikum_MLR
Ajatus Arktisesta instituutista ja museosta virisi 1970-luvulla Oulussa ja Rovaniemellä. Konkreettinen aloite tuli Euroopan Kulttuurisäätiön Suomen osastolta. Vuosina 1983–84 järjestettiin arktisille maille suunnattu arkkitehtuurikilpailu, johon tuli 184 ehdotusta. Toteutus sidottiin Suomen itsenäisyyden 75-vuotisjuhlintaan, ja siitä kasvoi kansallinen hanke. Valtion talousarvioon varattiin varoja vuodelle 1988. Rovaniemen kaupunki tuli toiseksi maksajaksi ehdolla, että Aallon Lappia-talossa sijainnut maakuntamuseo sai keskuksesta uudet tilat.
Rakennus valmistui 1992, siinä toimivat näyttelyineen Lapin maakuntamuseo sekä Lapin yliopiston Arktinen keskus. Voittaneen tanskalaisen Claus Bonderupin työryhmän ehdotus on yhdistelmä klassisen museorakennuksen osia uudella tavalla yhdisteltynä. Valmiin rakennuksen julkisivu kaupunkiin päin muistuttaa temppelin päätyä pylväikköineen, oven takaa avautuu valkoiseksi maalattu kaksikerroksinen moderni hallimainen tila. Sen keskikäytävää kattaa lasinen galleria, joka valaistuna putkena jatkuu ulos ja Ounasjoen törmään upotettuna rantaan saakka.
1990-luvun viimeiset valtakunnalliset erikoismuseot – Lusto Savonlinnaan (1994), Siida Inariin (1998) ja Sarka Loimaalle (2005)
Uusiksi vastuumuseoiksi 1990-luvulla määriteltiin metsä-, saamelais- ja maatalousmuseo. Maan ensimmäiset kaupunkien museot olivat syntyneet 1800-luvulla rannikkokaupunkeihin. Sen jälkeen museoita rakennettiin myös sisämaahan niin, että kaupunkien museot ylsivät myös Keski- ja Itä-Suomeen, kunnes lopulta kotiseutu- ja pitäjänmuseoiden tiheä verkosto kattoi koko maan.
Pohjois-Suomi ja Lappi olivat olleet aktiivisia 1970-luvulta lähtien, erityisesti taidemuseoiden osalta. Yliopistojen lisäksi kaupungit kunnostautuivat: Oulun ja Rovaniemen kaupunginjohtajat Matti Rossi ja Matti Pelttari johtivat Suomen museoliiton hallitusta vuoron perään. Museot ja tiedekeskukset alkoivat hakeutua yhteen, kun viimeisiä valtakunnallisia museoita perustettiin. Niistä päätettäessä hajautuspolitiikka oli voimissaan, lisäksi valintaa tukivat matkailunäkökohdat.
45_Lusto_MLR 45a_Lusto_SLJe
Suomen metsämuseo Lusto Savonlinnan Punkaharjulla on metsäalan ja metsäkulttuurin erikoismuseo, joka avattiin tervalla ja pellavaöljyllä kyllästetyllä lehtikuusilaudalla vuoratussa betonirakennuksessa 1994. Vuonna 1988 perustettu säätiö järjesti yhdessä maa- ja metsätalousministeriön ja Punkaharjun kunnan kanssa avoimen arkkitehtuurikilpailun Suomalaisen metsätietokeskuksen rakentamiseksi vuonna 1990. Kokoelman painopiste on metsäkoneissa. Näyttelyt kertovat ihmisen ja metsän välisestä vuorovaikutuksesta.
Arkkitehtikilpailuun tuli 103 ehdotusta, ja voittaneet arkkitehdit Rainer Mahlamäki ja Ilmari Lahdelma suunnittelivat ”suomalaista modernismia” edustavan rakennuksen metsämaisemaan. Harjulta museon sisäänkäynnille johtaa katettu silta. Päänäyttely on museon pyöreässä osassa, jonka kalusteet ovat kiinteä osa arkkitehtuuria. Nimi Lusto tulee näyttelytilan (1 500 m²) muodosta ja merkitsee puun vuosikasvua, mutta siinä voi nähdä muistuman antiikin pyörötemppelistä.
46_Siida Nemo bis WLM 46a_Siida Nemo bis WLM
Saamelaismuseo oli perustettu ulkomuseona Inariin 1959. Jonkin aikaa sen jälkeen oli julistettu suunnittelukilpailu Oulun yliopiston arkkitehtiosaston opiskelijoille. Voittaja valittiin jatkokehittelyn pohjaksi, mutta asia hautautui ja herätettiin henkiin 1984. Hanke alkoi rahoituksen puolesta toteutua, kun museoon yhdistettiin Metsähallituksen Ylä-Lapin luontokeskus. Juhani Pallasmaan suunnittelema näyttelyrakennus Siida (merkitsee saamelaiskylää) valmistui metsäiseen rinteeseen museoalueen reunassa olleen sorakuopan paikalle vuonna 1998.
Sisäänkäynti on pohjakerroksessa, josta pääkerrokseen noustaan loivaa ramppia pitkin. Rakennus on istutettu ”pienipiirteiseen maisemaan” sen muotoja seuraten. Runko on teräsbetonia ja terästä, julkisivut puuta. Rakennuksen keskelle on koko pituudelta avattu ”luonnonvalorailo”.
Rakennussuunnittelu tapahtui rinnakkain näyttelysuunnittelun kanssa. Johdantonäyttely esittelee pohjoisen luonnon ja kulttuurin kehitysvaiheita jääkaudesta tähän päivään. Näyttelytilat ovat yönsinisiä, muut tilat yleisväritykseltään valkoisia. Museosta tuli kokonaistaideteos, jossa tavoitteena oli ”yhdistää tieteellinen sisältö teatterin tai taidenäyttelyn kaltaiseen elämyksellisyyteen”. Esineiden ja kuvien taustalla on eri vuodenaikoja ja luonnontapahtumia kuvaava äänimaisema.[54]
Suomen maatalousmuseo Sarka Loimaalla on viimeinen 1990-luvulla alkunsa saanut erikoismuseo. Suomen maatalouskonemuseosäätiö perustettiin 1992. ”Suomalaisen maatalouden 3000-vuotisen tarinan” kertova museo avattiin 2005 (arkkitehti Sarlotta Narjus).
Uudelle vuosituhannelle siirryttyä järjestettiin arkkitehtuurikilpailu Kotkan Merikeskus Vellamosta vuonna 2004 ja rakennus avattiin 2008 (Arkkitehtitoimisto Lahdelma & Mahlamäki Oy).[55]
Nykytaiteen museo Kiasma, Helsinki (1998)
Keskustelu museoarkkitehtuurista alkoi 1960-luvun vaihteessa Helsingin keskustasuunnitelmasta. Siihen oli merkitty paikka museolle, ja tänne uusi rakennus liki 40 vuotta myöhemmin nousikin. Nykytaiteen museon perustamisvuonna 1990 ilmestyi amerikkalaisen taidehistorioitsijan Douglas Crimpin pamfletti Museon raunioilla, jossa tämä pohti museon roolia ja vastuita, erityisesti nykytaiteen määrittelyssä ja ohjailussa.
47_Kiasma_MLR.jpg 48_leikkaus_MLR.jpg
Nykytaiteen museon rakennushanke lähti rivakasti käyntiin, lamasta oli etua. Kaupungin rakennuskoneistolta loppuivat työt, joten tehtiin sopimus, jonka mukaan valtio tilasi työn kaupungilta ja rakennuksen valmistuttua maksoi sen luovuttamalla museotalon arvoa vastaavan määrän rakennusmaata toisaalta.
Pohjoismaiden ja Baltian arkkitehdeille suunnattu suunnittelukilpailu käytiin 1993. Lisäksi oli kutsuttu mukaan neljä kansainvälisesti tunnettua arkkitehtiä. Ehdotuksia tuli 516, joista voittajaksi nousi yhdysvaltalaisen Steven Hollin[56] ehdotus Chiasma (silmistä aivoihin johtavien näköhermojen risteys).
Ehdotusta laatiessaan Holl kävi Helsingissä. Hän asui museotontin viereisen Vaakuna-hotellin ylimmässä kerroksessa, josta tutkiskeli tonttia ja sitä ympäröivää kaupunkinäkymää. Myöhemmin hän tutustui suomalaiseen rakennusperintöön kuten Petäjäveden kirkkoon. Rakennustyön käynnistyttyä suunnittelun Suomen tukikohtana toimi arkkitehti Juhani Pallasmaan toimisto.
49b_Kiasma_Sakari Kiuru MV 49_Kiasma_Tirri MV
Arkkitehtuurikilpailun voittajasta syntyi kohu. Arkkitehdit pitivät tonttia ahtaana ja rakennusta mahdottomana, koska sitä ei voisi muuttaa tai laajentaa, mikä oli ollut ihanne. Syytettiin myös amerikkalaisuuden palvonnasta. Kovin vastustus tuli Mannerheimin ratsastajapatsaan suojelijoiden taholta. Patsas jäi paikalleen, ja Holl otti sen huomioon etsiessään muotoa, joka nivoisi yhteen ristiriitaisetkin elementit tonttia ympäröivässä rakennus- ja puistomaisemassa. Rakennus valmistui 1998. Se huipensi 1900-luvun jälkipuolen museorakentamisen.
Kiasman viisi kerrosta ovat toisiinsa nähden hieman limittäin ja kaarevien seinäpintojen vuoksi eri suuruisia. Museotilaa on 9 100 m². Runko on terästä, ja betoni kaartuu kauniisti. Ulkoseinät ja katto on päällystetty sinkki-, alumiini-, messinki- ja lasilevyillä, sisäpuoli on valkoinen. Pohjakerroksen yleisötiloissa on myös puuta ja voimakkaita värejä. Rakennus on avoimen ja suljetun tilan yhdistelmä. Holl pitää taloaan avoimena, koska siellä on portaikkoja, hissejä ja oviaukkoja, jotka mahdollistavat vapaan liikkumisen. Sisään tullessa avautuu näkymä talon läpi, sekä päästä päähän, että alhaalta ylös valokattoon saakka.
Portaikon sijasta museoon noustaan kaarevaa ramppia pitkin. Sen molemmin puolin seinien takana on huoneesta huoneeseen kuljettavia näyttelysaleja, ylimpänä kattoikkunoin varustettu muita korkeampi sali. Luonnonvalon käyttö on Hollille tärkeää, sen vuoksi molemmissa päädyissä sekä länsisivulla on isot panoraamaikkunat. Näyttelysalien seinät ovat valkeat, lattiat tummanharmaata betonia. Tekniikka on upotettu, eikä arkkitehtonisia elementtejä ole korostettu. Tavoitteena on tila, jossa katsoja voi kohdata teoksen häiriöttä.
Lopputulos on paikkaansa sopeutuva talo, jonka kaartuva harmaa ulkokuori on kuin kotilo tai simpukka, joka suojelee helmenhohtoista sisältöään: ulkoa pieneltä vaikuttava rakennus avautuu sisääntulijalle juhlavan avarana. Valkoisen tarkoitus on pyhittää taide. Amerikkalainen arkkitehtuurintutkija Victoria Newhouse kirjoitti jo ennen Kiasman valmistumista kirjassaan Towards a New Museum näkevänsä Kiasman ”pyhänä tilana”.[57]
Museorakennuksen ikuisuuskysymyksiä
Museorakentamisen rinnalla on laaja kysymys: millaista historiakäsitystä museot ylläpitävät, kenen tarinoita kertovat. Vaikka museorakennukset muuttuvat, museorakentamisessa on edelleen ratkaistava samoja kysymyksiä. Halutaanko uudisrakennus vai korjataanko jokin vanha. Halutaanko luonnonrauhaan vai kaupungin ytimeen. Miten rakennus suhteutuu sisältöönsä, miten ympäristöönsä. Painotetaanko pysyvää näyttelyä vai vaihtuvaa ohjelmistoa. Onko näyttelykierto avoin vai suljettu ja miksi niin on. Mikä on luonnonvalon ja keinovalon suhde. Tehdäänkö temppeli vai toivotaanko toria.
Kirjoittaja
Filosofian tohtori, dosentti, tietokirjailija Marja-Liisa Rönkkö on toiminut eri tehtävissä lukuisissa museoissa, kuten museonjohtajana Helsingin kaupunginmuseossa 1978–1990 ja ylijohtajana Valtion taidemuseossa 1990–2000. Artikkeli perustuu tekijän väitöskirjaan Louvren ja Louisianan perilliset. Suomalainen taidemuseo sekä artikkeleihin teoksissa Museologia tänään ja Suomen museohistoria.
Artikkeli on julkaistu 2020.
_Oik.: Galleriakäytävä johtaa näyttelytiloihin, taustalla ”revontuliseinä”. Kuva: Marja-Liisa Rönkkö.
Alvar Aalto -museon kaksikerroksisen rakennuksen pohjakaava on vapaamuotoinen monikulmio. Sisääntulojulkisivu on ikkunaton ja muodostaa loivasti koveran kulman, jossa on kolmiosainen pronssiovi. Pohjakerroksessa on aula, kahvio, luentosali, kirjasto, toimistotilat ja tauluvarasto, toisessa kerroksessa 700 neliön suuruinen yhtenäinen näyttelytila, jota rytmittävät sileät valkoiset pylväät ja siirreltävät seinäkkeet. Seinät ovat molemmissa museoissa valkoiset, aulojen lattiat punaruskeaa tiiltä, näyttelytiloissa vaalean harmaata linoleumi- tai muovimattoa. Aalto-museon yläkerran taustana on ”revontuliseinä” muistona New Yorkin maailmannäyttelystä (1939).
Julkisivun tekstuuri on karhea: pohja on Arabian hallatiiltä, jonka päällä on tiheä posliinisauvoista rakennettu ”pystyrimoitus”. Pihan ulkovalaistus on Aallon suunnittelema, ja museoiden välissä virrannut puro päätyy istutusten ympäröimäksi kaskadilammikoksi. Kokonaisuus on Alvar Aallon museosuunnitelmien erilaisten elementtien kokoelma.[28]
”Louisiana-entusiasmi”[29]
Koko 1900-luvun jälkipuolen ajan suomalaisia innosti Kööpenhaminan lähellä Humlebaekissa kesällä 1958 avattu modernin taiteen museo Louisiana, jonka syntysanat lausui suurliikemies-keräilijä Knut W. Jensen 1945. Lähtökohta oli 1855 valmistunut kartano ja sitä ympäröivä merellinen kulttuurimaisema.
Louisianan taidemuseo on esimerkki orgaanisen kasvun museosta (Jørgen Bo ja Wilhelm Wohlert, 1956–91). Kuudessa vaiheessa rakennettu museo on sijoitettu maastoon niin, että maisema on säilynyt mahdollisimman koskemattomana. Ulkoapäin matalilta näyttävät rakennukset muodostavat nauhamaisen, osittain maanalaisen lenkin, jonka kiertämällä näkee koko näyttelyn (10 800 m²). Seinämateriaaleja ovat valkoinen tiili ja lasi, lattioissa klinkkeri ja katoissa mänty. Paviljonkeja yhdistävät läpinäkyvät lasikäytävät, joista avautuu näkymiä luontoon ja ympärillä levittäytyvään veistospuistoon.[30]
Museo taiteilijan tuotannolle - Wäinö Aaltosen museo, Turku (1967) ja Eero Nelimarkan museo, Alajärvi (1964)
Kuvanveistäjä Wäinö Aaltosen museo avattiin 1967. Muutamat yksityishenkilöt olivat vuonna 1940 ryhtyneet ostamaan Aaltosen töitä museon aikaansaamiseksi. Sijoituspaikaksi taiteilija ajatteli kotiaan Helsingin Kulosaaressa, toiset pitivät Tamperetta jo hänen ulkoilmamuseonaan, mutta kun Aaltonen aikoi muuttaa Turkuun, päätti kaupunki tarjota museolle paikkaa Turusta taiteilijan 70-vuotispäivänsä kunniaksi 1964.
Wäinö Aaltonen lupasi lahjoittaa ja tallettaa sovitut teokset sekä arkistomateriaalin, kaupunki lupasi rakentaa talon. Aaltonen edellytti, että hänet nimettäisiin kymmeneksi vuodeksi museon intendentiksi, ja mikäli hän sitä ennen kuolisi, hänen poikansa jatkaisi. Aluksi oli tarkoitus, että Wäinö Aaltonen olisi saanut työtilat rakennuksesta. Tontti osoitettiin Aurajoen rannasta, teatteritalon ja valtion virastotalon rintamaan. Aaltonen suunnitteli museon poikansa, Oulun yliopiston asemakaavaopin professori Matti Aaltosen toimiston kanssa. Yhteistyötä koordinoi Turun kaupunginarkkitehti A. S. Sandelin.[31]
_Oik.: Suuri veistossali valaistusjärjestelyineen. Kuva: Volker von Bonin, Museovirasto.
Arkkitehtisuunnittelun lähtökohtana on Alvar Aallon Tallinnan taidemuseon kilpailuehdotus (1936-37). Berliinissä rakenteilla ollut, arkkitehti Ludwig Mies van der Rohen suunnittelema Neue Nationalgalerie innoitti ajanmukaistamaan suunnittelua.
Vaalea suoraviivainen rakennus on ahtaalla rinnetontilla porrastetusti, ylimpänä kohoaa 11 metriä korkea veistossali. Sisääntulo jäsentyy ”aaltomaisesti”: terasseittain kohoaviin näyttelytiloihin (1 100 m²) siirrytään ulko-ovea vastapäätä lähteviä porrasaskelmia pitkin. Aulasta vasemmalla lasiseinän takana aukeaa sisäpiha veistoskoristeisine vesialtaineen.
Ensimmäinen suunnitelma oli lopputulosta modernimpi. Jykevän ulkoterassin lisäksi arkkitehdit olisivat halunneet julkisivuun betonielementtejä (Sibelius-museossa tämä toteutui) tai uurrettuja mineriittilevyjä. Tavoitteena oli luoda ”huomaamatonta, ekonomista arkkitehtuuria”.[32] Tilaajat halusivat arvokkaampaa: pääjulkisivuun käytettiin travertiinia ja sivuihin kalkkihiekkatiiltä sekä lattioihin klinkkerin sijasta kalkkikiveä. Eniten suunnittelua ohjasi veistoskokoelma, jonka laajuus oli tiedossa.
19_Nelimarkka_MLR
Nelimarkka-museo avattiin 1964. Hanke oli syntynyt taidemaalari Eero Nelimarkan toiveesta luoda taidekoulu, jota varten hän oli perustanut säätiön 1945. Vuonna 1961 ostettiin Alajärveltä Nelimarkan suvun vanha kantatila. Puretun navetan paikalle valmistui 1964 Nelimarkan ystävän arkkitehti Hilding Ekelundin piirustusten mukaan pääjulkisivultaan klassisistinen koulu- ja museorakennus, muilta osin 1960-luvun kouluarkkitehtuuria. Nelimarkka korjasi vaikutelmaa haluamaansa klassiseen suuntaan piirtämällä itse laajennusosan 1972–74. Museota laajennettiin vielä 1997 (Käpy ja Simo Paavilainen). Nelimarkka-museo on 1900-luvun lopulla viimeinen aluetaidemuseo.[33]
1960-luvun muita uusia museorakennuksia
Arkkitehtuurin käänne 1960-luvulla käynnisti keskustelun ammattikunnan sisällä. Nuoremman polven yksinkertaista ja anonyymiä rakentamista vaativille suunnittelijoille oli tärkeää muunneltavuus ja laajennettavuus. Esikuvana voi pitää saksalais-amerikkalaista arkkitehtiä Mies van der Rohea.[34] Betonin valupinnan ja rakenteiden näkyville jättämistä on kutsuttu myös betonibrutalismiksi. 1970-luvulla alkoi mittavampi vanhojen rakennusten muuttaminen museoiksi, mikä toi mukaan rakennussuojelukysymykset.[35]
18a Sibelius-museo js Mikkoau 2016 WLM 18b_Sibelius_MLR 18d Sibelius Hhö 2013
- Turun linnan korjaus ja suuri näyttelyhalli ullakolle (Erik / Carin Bryggman, 1961–87),
- Tornionjokilaakson maakuntamuseo, Tornio (Jouko V. Ylihannu, 1962, Matti Porkka, 1981),
- Tammisaaren museon näyttelyhalli (Ola Hansson, 1963),
- Emil Cedercreutzin museon ”Maahengen Temppeli” Harjavalta (Jonas / Mariana Cedercreutz, 1963–97),
- Didrichsenin taidemuseon näyttelysiipi Helsinki (Viljo Revell, 1965),
- Sibelius-museo (Woldemar Baeckman, 1968) Åbo Akademin puutarha-alueelle Turkuun,
- Pohjanmaan museon näyttelysiipi, Vaasa (Erik Kråkström, 1968),
- Helsingin taidemuseon Kluuvin galleria (Aarno Ruusuvuori, 1968),
- Ortodoksinen kirkkomuseo, kirkkokunnan Kuopion keskustalossa (Dag Englund, 1969),
- Yrjö Liipolan museo, Koski Tl (Eero Ponkala, 1970).
20_Didrichsen_MLR.jpg
Museo taidekokoelmalle - Meilahden taidemuseo, Helsinki (1967) ja Sara Hildénin taidemuseo, Tampere (1979)
Taiteen keräilijöille tärkeintä on ollut saada pysyvä paikka ja omalle kokoelmalle sopivat näyttelytilat.
Helsingin kaupungin taidemuseo nousi Meilahteen Tamminiementielle 1967. Kaupunki osti Meilahden kartanon kantatilan vanhat rakennukset, jolloin kypsyi ajatus yhdistää tuolloin innostusta herättänyt ja komiteatyöskentelyn tuloksena määritelty ”monitoiminnallinen taidekeskus” tähän.[36] Kun kaupungilla oli jo tiedossa useita lahjoituksia, päätettiin kunnollisten näyttelytilojen rakentamisesta omia kokoelmia varten, samalla kun otettiin vastaan Leonard ja Katarina Bäcksbackan perikunnan lahjoittama vanhemman kotimaisen taiteen kokoelma.
Kokonaista museota – taidekeskuksesta puhumattakaan – ei kuitenkaan tehty, vaan kyseessä on yksistään näyttelyrakennus. Suunnittelutehtävä annettiin kaupungin arkkitehdeistä Tero Aaltoselle.
22_Meilahti2_MLR 23_Meilahtipohja_MLR. jpg
Tanskalaisen Louisianan taidemuseon vaikutusta voi nähdä näyttelyrakennuksen paikanvalinnassa ja itse rakennuksessa. Tontti on loivassa rinteessä, joka avautuu merenlahdelle. Perikunnan edustajalla Ingjald Bäcksbackalla oli mielessään ripustussuunnitelma ja kokoelman vaatimat juoksumetrit, jotka sitten ”juostiin” maastossa arkkitehdin ja mittanauhan kanssa. Alvar Aalto -museota käytiin katsomassa. Intendentti Marja-Liisa Bell laski muiden tilojen tarpeen ja toimi neuvonantajana.
Kartanon lehtevään puistoon 1976 valmistunut valkoisella kahitiilellä verhottu rakennus (1 560 m²) on yksinkertainen. Sisäänkäynti on itäpäädyssä, jossa on avara klinkkerilattiainen aula kartanon puistoon avautuvine lasiseinineen. Aulaa oli mahdollista käyttää myös luentosalina. Näyttelytilat koostuvat viidestä suorakaiteen muotoisesta salista, jotka noudattavat huoneesta huoneeseen -mallia silmukkana, mistä muodostuu niin sanottu ”pakkokierto”. Ensimmäinen sali on suurin ja muita korkeampi. Kunkin salin keskivaiheilla on vastakkain lyhyet seinäkkeet, jotka jakavat ne ikään kuin kahteen pienempään huoneeseen.
Salien väliset ovet on sijoitettu kauas toisistaan, tukemaan johdonmukaista kiertoa. Saleihin päivänvaloa tulee kattoikkunoiden välityksellä seinänvieriä kiertävien valokuilujen kautta. Lattioita peitti aluksi sisalmatto ja seinät oli verhottu tärkätyllä juuttikankaalla, kuten taidegallerioissa oli tapana. Salien alla oli varasto ja ikkunallisia teknisiä tiloja.[37]
Tilat toimivat hyvin ja Meilahden museo oli pitkään kaupungin parhaita näyttelypaikkoja. Kahvilaa rakennukseen ei tullut, sitä varten korjattiin viereinen kartanon puinen päärakennus 1800-luvun alkupuolelta. Puistossa on ollut näytteillä veistoksia ja siellä on järjestetty taidetapahtumia, mutta suunniteltuja laajennuksia ei toteutettu.
24_Hilden ilmakuva Teuvo Kanerva 25_Hildenleikkaus_MLR.jpg
Sara Hildénin 1979 avattu taidemuseo perustuu niin kotimaiselle kuin ulkomaiselle modernismille ja nykytaiteelle. Ensimmäiset teokset Hildén osti vuoden 1961 Ars-näyttelystä. Hän lahjoitti kokoelmansa nimeään kantavalle säätiölle, joka solmi 1975 sopimuksen Tampereen kaupungin kanssa uuden museon rakentamisesta ja teosten pysyvästä sijoittamisesta sinne. Kaupunki vastaa museon ylläpidosta ja säätiö kartuttaa kokoelmaa.
Paikkaa valittaessa Hildén mieltyi rakenteilla olleen Särkänniemen huvipuiston läheisyydessä sijainneen vanhan huvilan Näsijärvelle avautuvaan rinnetonttiin ja rakennusten jäännöksiin, jotka loivat perustan veistospuistolle. Tärkein lähtökohta oli juuri tämä paikka, jota voi luonnehtia jopa välimerelliseksi.
Tavoite oli sama kuin Helsingissä: rakentaa yksityiselle kokoelmalle ihanteelliset olosuhteet. Suunnittelijaksi valittiin tamperelaisen Pekka Ilveskosken arkkitehtitoimisto, joka konsultoi myös Meilahden taidemuseon suunnitellutta Tero Aaltosta. Paikan lisäksi lähtökohdiksi otettiin näyttelysalien tarkoituksenmukainen liittyminen toisiinsa sekä teoksille sopivan valaistuksen luominen. Maalaussalit ovat ikkunattomia, mutta tärkeitä näköalaikkunoita on salien liitoskohdissa. Arkkitehtuuriin suoraan vaikuttanut ero oli siinä, että nykytaiteen teokset ovat suurikokoisempia, väreiltään kirkkaampia, usein ääntä, valoa ja liikettä sisältäviä.
Hildén oli luonut kokoelmansa yhteistyössä Ateneumin asiantuntijoiden kanssa ja tutustunut matkoillaan keskeisiin eurooppalaisiin museoihin. Amerikkalaisia museoita puolestaan tunsi suunnittelussa mukana ollut Asko Rasinperä, joka oli opiskellut Yhdysvalloissa. Ulkomaisia rakennuksia, joihin on viitattu, ovat Nizzan lähelle 1964 valmistunut yksityinen nykytaiteen museo Fondation Maeght (Josep Lluis Sert), etenkin veistospuiston osalta, Berliinin Brücke-Museum (Werner Düttmann, 1967) sekä ”monoliittista ekspressionismia” edustava Emerson Museum of Art (I. M. Pei, Syracuse N. Y., 1968).
Kaksikerroksisen rakennuksen pohjakaava edustaa neliapila-tyyppiä (ydin ja satelliitit). Sisäänkäynti on suoraan toiseen kerrokseen, jossa on toimistosiipi, luentosali ja maalausgalleriat. Keskisalista laskeudutaan pohjakerroksen veistostiloihin, joissa on välitasanne, ja edelleen kahvioon ulkoterasseineen. Kaikki näyttelytilat ovat luonteeltaan avoimia ja niissä voi liikkua vapaasti, haluamassaan järjestyksessä. Alakerrassa on järven suuntaan, pohjoiseen ja länteen suuret ikkunaseinät.
26a_Hilden_SJE 26_Hilden_HHö 26b_Hilden_SJE
Ulkoseinät ovat vaalearouheista pesubetonia, sisällä kantavat seinät on jätetty betonivalun jälkeen käsittelemättä. Näyttelyseinät on verhottu valkeaksi maalatulla kangaspinnoitteella, ja tilojen jakamiseksi pienempiin osiin on käytössä ollut irtoseiniä. Lattiat ovat kivilaattaa. Rakennus oli valmistuessaan maan suurin taidemuseo (2 500 brm²)[38]
Satakunnan kulttuurihistoriallinen museo, Pori (1973)
Porissa avattiin Satakunnan museon uudisrakennus 1973. Samana vuonna valmistui Alvar Aalto -museo Jyväskylään. Satakunnan museo oli perustettu 1888. Kokoelmat oli kerännyt ja järjestänyt opettaja Matti Kauppinen, joka toimi aktiivisesti myös Museoliitossa sen perustamisesta lähtien. Vaihtuvissa vuokratiloissa majaillut museo oli saanut pysyvämmän sijan monenlaisessa käytössä kuluneesta, rapatusta ”Iltaman talosta” vuonna 1903.
Ajatusta oikeasta museorakennuksesta pidettiin yllä, ja kopin otti vuonna 1958 museonjohtajaksi valittu Unto Salo, museon ensimmäinen ammattilainen ja tuolloin myös Museoliiton puheenjohtaja. Ennen Turun arkeologian professoriksi siirtymistä hänen viimeiseksi tehtäväkseen jäi uuden museon tilaohjelman laatiminen.[39] Tontiksi osoitettiin pieni kolmiomainen puisto Hallituskadun päästä, jokirannan ja oluttehtaan välistä, ja suunnittelijaksi valittiin kaupunginarkkitehti Olaf Küttner. Suojelukiistaa tai kilpailua ei näin vaikeasta paikasta syntynyt.
Sisäänkäynti on etelästä, Hallituskadun puolelta, josta vaaleanharmaa pesubetonipintainen rakennus (4 603 brm²) näyttäytyy ajan tavan mukaan yksikerroksisena. Aulasta oikealla on toimistosiipi kadulle suuntautuvine ikkunariveineen ja luentosaleineen, vasemmalla yhtenäinen ikkunaton tilapäisnäyttelytila (400 m²) ja suoraan edessä kahvila, josta avautuvat pohjoispuolen ainoat ikkunat Jazzkadun (Eteläranta) yli joelle.[40] Toimistotilojen takana on perusnäyttelytilojen suuri kolmikerroksinen blokki, johon päivänvaloa saadaan kaikkien kerrosten läpi ulottuvan kulmikkaan valopihan kautta.
28b_Satakunnan museo_MLR 28_SatMsisältä_MLR.jpg
Alun perin vaaleahkoja avaria sisätiloja jäsentävät lehtereitä kannattelevat pylväät ja niitä yhdistävät umpilaitaiset betoniportaikot. Ruskeasävyisissä näyttelytiloissa oli ritiläkatot ja kokolattiamatot. Sisustuksen suunnitteli Tauno Kivinen.
Kokonaisvaikutelmaltaan museo on sukua Kalifornian Berkeley-yliopiston taidemuseolle (Mario J. Ciampi, 1970), ja Amsterdamin saman aikainen Van Gogh -museo (Gerrit Rietvelt, 1973) tunnettiin.[41]
Big Bang – museot haluavat uudistua
Vuoden 1970 tienoilla alkoi kehityskulku, jota museologisessa kirjallisuudessa kutsutaan alkuräjähdykseksi. Se lähti liikkeelle ekomuseo-ajatteluna, joka pyrki häivyttämään rajat museon ja sitä ympäröivän yhteisön väliltä. Painopiste haluttiin siirtää laitosajattelusta aktiviteetteihin, iskusanoina ”elävä museo” ja pontimena mahdollisuus vaikuttaa tulevaisuuteen. Tavoitteena oli asettaa museo laajaan sosiokulttuuriseen yhteyteen, jossa luonnontiede, historia, taide ja teknologia muodostaisivat kokonaisuuden.[42]
Tähän vaiheeseen sijoittuu Museoviraston perustaminen 1972 museoinstituution kokonaisvaltaiseksi kehittämiseksi. Suomen museoliitto oli itsenäistynyt 1957 muuttamalla Kansallismuseosta omiin tiloihin Cygnaeuksenkadulle.
Ammatillistuminen vauhdittui, näyttelyitä järjestettiin 1970-luvulla ennätyksellinen määrä sekä museoissa että ulkopuolisissa tiloissa, yleisömäärät moninkertaistuivat. Erityisesti alettiin ottaa huomioon lapset: ensimmäiset museolehtorit aloittivat Ateneumissa ja Kansallismuseossa 1970-luvun alkuvuosina.
Näyttelysuunnittelusta tuli museoissa kriittinen tekijä. Suomen museoliitto ryhtyi järjestämään kursseja tästä tematiikasta. Teknisistä kysymyksistä, kuten museoiden murto- ja paloturvallisuudesta, esineistön oikeista säilytysolosuhteista ja rakennusten suojelusta, tuotettiin ohjekirjoja ja suosituksia. Erikoismuseokenttä alkoi hahmottua. Aika oli kypsä laajemmalle keskustelulle museorakennuksista.[43]
Museoarkkitehtuuriseminaari 1979
Museoliitto järjesti museoarkkitehtuuriseminaarin 26.–27.11.1979 Espoon Hanasaaressa. Sen aiheuttivat Porin taidemuseon, Helsingissä Taideteollisuusmuseon (Designmuseo) ja Sinebrychoffin taidemuseon avaamiset sekä satavuotiaan Ateneumin lähestyvä korjaus. Siitä oli käynnistetty hankesuunnittelu 1978 (Laiho – Pulkkinen – Raunio, toteutus 1985–91).
Seminaariin osallistui 140 henkeä. Esiteltäväksi koottiin kaikki tieto ja kokemukset, mitä siihen mennessä oli saatu uudistiloista ja vanhojen rakennusten korjaamisesta. Museoasiainsihteeri Jorma Heinonen oli paneutunut niin museoarkkitehtuurin historiaan ja estetiikkaan kuin viimeisimpään tekniikkaankin.[44] Hän esitteli Aallon Tallinnan taidemuseon nerokkaana pitämänsä ehdotuksen. Parinkymmenen vuoden aikana valmistuneita museohankkeita esiteltiin esimerkein.
Alueellinen museoverkosto syntyy – 1980-luvulla liki 200 uutta museota
Valtioneuvosto teki 1979 päätöksen alueellisen museoverkoston muodostamisesta. Sitä koskeva valtionavustuslaki säädettiin 1988. Vuonna 1992 säädettiin Museolaki ja asetus, jonka piiriin pääsivät kaikki ammatillisesti hoidetut museot.[45] Laskennallisena pohjana olivat henkilötyövuodet. Lakiin lisättiin museoiden yhteiskunnallinen tehtävä 1996.
Maakuntamuseot ja aluetaidemuseot nimettiin suurimpien kaupunkien olemassa olevien museoiden pohjalta vuosina 1980–1995. Erikoismuseokenttää vahvistettiin vielä muutamilla museoilla, jotta kaikille tärkeiksi katsotuille osa-alueille saatiin oma vastuumuseonsa, jotka vahvistettiin 1993–2010.
Uusia museoita oli toisen maailmansodan jälkeen perustettu noin 15-20 museon vuosivauhtia. Lakipiste saavutettiin 1980-luvulla, jolloin museoita syntyi kaikkiaan liki 200. Kasvu oli samanlaista kansainvälisestikin. Sitten seurasi nopea lasku niin, että viimeisellä vuosikymmenellä ennen vuosituhannen vaihdetta museoita perustettiin meillä enää parikymmentä.
Arkkitehtuurissa Oulun kouluksi kutsuttu postmoderni suuntaus tavoitteli elämyksellisyyttä.
Kaupunginmuseoiden ja kotiseututalojen rinnalla ovat paikallismuseot. Niihin kuuluvat historiallisten henkilöiden, valtiomiesten, kulttuuripersoonien ja urheilijoiden museoidut kodit, paikkakunnalle luonteenomaisten ammattien ja ilmiöiden museot sekä yksittäisten keräilijöiden moninaiset kokoelmat ja kohteet.[46]
27_Ainola_WLM 27b_Yli_laurosela_MV
Museo vanhassa rakennuksessa
”Vanhat rakennukset museokäytössä” oli Museoliiton museoarkkitehtuuriseminaarissa 1979 toisen pääpuhujan, Teknillisen korkeakoulun arkkitehtuurihistorian professori Henrik Liliuksen teema. Lilius puolusti voimakkaasti alkuperäisiä rakenteita ja kritisoi historiallisten rakennusten sisätilojen uudistamista. Liliuksen mielestä uuden käytön tarpeet eivät saisi kokonaan ohittaa rakennuksen omaa historiaa, vaan näiden välille pitäisi etsiä tasapaino. Keskustelu jatkui vilkkaana Ateneum-rakennuksen korjauksen alkaessa ja uudistamisen edetessä (1985-91).[47]
29_Pori_MLR.jpg
Henrik Liliuksen seminaarialustuksen taustalla olivat seuraavat silloin ajankohtaiset museohankkeet:
- Brobergska Samskolanin (Gustaf Nyström, 1894 / Olli Borg, 1978) muutos Taideteollisuusmuseoksi,
- Sinebrychoffin patriisitalon (Jean Wik, 1842 / Sirkka-Liisa Tarumaa, 1979) muuttaminen taidemuseoksi,
- Porin pakka- ja vaakahuoneen (C. J. von Heideken, 1858 / Kristian Gullichsen, 1979) muutos Maire Gullichsenin taidekokoelman tiloiksi.
Museo teollisuusrakennuksessa
Luontevimmin museoiksi on taipunut teollisuusarkkitehtuuri. Teollisuusrakennusten houkuttavuuteen vaikuttavat niiden avarat, vapaasti muunneltavat hallitilat. Teollisuustuotannosta tyhjeneviä tehtaita on otettu museokäyttöön satakunta. 1900-luvun loppua kohti teollisuusrakennusten ja kokonaisten alueiden käyttö kulttuuritiloina vielä lisääntyi.
30_Vapriikki Tiia Monto WLM 2017
- Riihimäen kaupungin vuonna 1975 hankkima, lasitehtaan 1910-luvulla valmistunut rakennus, josta Tapio Wirkkala suunnitteli Suomen lasimuseon (näyttely 1 762 m²),
- Vuonna 1898 perustettu Suomen rautatiemuseo muutti Helsingin asemalta Hyvinkäälle 1973–74,
- 1969 perustettu Tekniikan museo asettui vuodesta 1970 lähtien Helsingin vesilaitoksen sata vuotta vanhoihin tiloihin Vantaanjoen suulle.
- Kaapelitehdas Helsingissä (W.G. Palmqvist, 1939–1954) on 1990-luvun alusta ollut kaupungin omistama kiinteistöyhtiö. Entisen Nokian kaapelitehtaan suurimman hallin (2 700 m²) itäpäähän muuttivat 1990-luvun alussa Suomen Valokuvataiteen museo (perustettu 1969), Teatterimuseo (perustettu 1962) ja Hotelli- ja ravintolamuseo (perustettu 1971) päällekkäisiin tiloihin, joiden museotilat viimeisteltiin 2000.
- Tampellan tiloissa avattiin 1996 Tampereen museokeskus Vapriikki (14 000 m²) lukuisine museoineen.
- Hämeenlinnan taidemuseon (perustettu 1952) viisi rakennusta sisältyvät Verkatehtaan (1895) kokonaisuuteen, joka oli pääosin oppilaitoskäytössä 1980- ja 90-luvuilla, kunnes se päätettiin suunnitella kokonaisuutena erilaisia kulttuuripalveluita varten 2001 (avaus 2007).
- Lapuan patruunatehtaan (perustettu 1923) tiloihin on 1990-luvulta lähtien kasvanut Kulttuurikeskus Vanha Paukku, jossa on muun muassa useita museoita kuten tehtaanmuseo (perustettu 1993), taidemuseo (perustettu 1998) ja Pyhälahden valokuvaamomuseo.
Taidemuseo kulttuurikeskuksessa - Kemi (1977), Tornio (1985) ja Kouvola (1987)
Joidenkin kaupunkien uusiin kulttuurikeskuksiin tehtiin tilat museolle. Kemin taidemuseo sai pysyvät tilat jo kulttuurikeskuksen ensimmäisessä rakennusvaiheessa 1977 (Arkkitehtitoimisto Jan Söderlund) ja lopullisen paikkansa 1990, kun koko kulttuurikeskus valmistui. Kemin vuonna 1947 alkunsa saanut taidemuseo oli ensimmäinen aluemuseokokeiluun osallistunut, ja siitä tuli maakunnallinen taidemuseo vuonna 1981 toiminta-alueenaan koko Lapin lääni.
Taidemuseon osuus kulttuurikeskuksesta on vajaa kymmenes. Nykytaiteelle soveltuvaa näyttelytilaa on 551 m². Suoraviivaista punatiilistä rakennuskokonaisuutta jäsentävät nauhaikkunat ja eri tilojen korkeuserot. Sisätilojen suoraviivaisuuden murtaa museon näyttelytilan ja kirjaston välinen diagonaalinen kantava seinä. Valmistuessaan rakennus tarjosi tilat kaupunginkirjastolle, kaupunginteatterille, kauppaoppilaitokselle ja työväenopistolle, joilla on torin puolelta yhteinen sisäänkäynti kahviloineen, ravintoloineen ja kaksine auditorioineen.[48]
37_Kemisali_MLR 37b_Kemi_MLR
Torniolainen kauppaneuvos Veli Aine toivoi, että hänen kotimaista 1800- ja 1900-luvun taidetta sisältävä taidekokoelmansa tulisi esiin kotikaupungissa. Ajankohdalle tyypilliseen tapaan pyrittiin taidemuseo perustamaan ”kulttuurikeskukseen veden äärelle”. Siinä maakuntamuseon, taidemuseon ja kirjaston tilatarpeet yhdistyisivät. Tuloksena oli päätös laajentaa maakuntamuseota omalla tontillaan ja rakentaa taidemuseolle sekä kirjastolle uusi yhteinen toimitalo.
Taidemuseon vuonna 1979 sovittu toimintamalli oli sama kuin Sara Hildénin museossa: kaupunki vastasi rakennuksesta ja museon ylläpidosta, Aineen Kuvataidesäätiö kokoelmien kartuttamisesta. Vuonna 1985 valmistunut, Rajakartanoksi nimetty talo nousi aiemmin tornitaloille kaavaillulle tontille. Arkkitehdiksi valittiin paikallinen Matti Porkka, joka suunnitteli myös maakuntamuseon laajennuksen. Porkka ei ollut suunnitellut museotiloja, mutta osallistui museoarkkitehtuuriseminaariin ja tutustui Helsingin kaupungin taidemuseoon, Sara Hildénin taidemuseoon ja Lapinlahden taidemuseoon (Esa Koivuniemi ja Georg Bystroff, 1977).
Torniossa Aineen museon ja kirjaston rinnakkaiset Torikadun suuntaiset tilat ovat suunnilleen samankokoiset. Rakennusmassat ovat kuitenkin toisiinsa nähden hieman vinottain ja kummallakin on oma luonteensa. Julkisivut on muurattu valkoisesta kahitiilestä. Sen päällä on ikkunatonta museonäyttelyaluetta korostava pystysuuntainen hiekanruskea marmoriharkotus, kirjaston ikkunoissa vastaavasti ritiläverhous. Yhteinen sisäänkäynti on rakennusten välissä toisessa kerroksessa, kahvila ja auditorio museon puolella. Museokäytössä on 1 576 m².
Sisäseinät ovat valkoiset, portaat ja käytävät on päällystetty Lapin louhemarmorilla, kahvila ja näyttelytilat sisal-laattamatolla. Näyttelysaleja on viisi, ja niihin Aine halusi Helsingin Meilahden taidemuseon tapaisen pakkokierron, jotta kaikki teokset tulisivat nähdyiksi. Ulkona oli tilaa veistospuistolle. Veli Aine sai toiveensa toteutumaan ja toimi museolautakunnan ensimmäisenä puheenjohtajana.[49]
38_Kouvola_MLR
Kouvola-talon (kilpailu: Erkki Valovirta, 1982) kotimaiselle nykytaiteelle omistettu museo perustettiin 1986 ja avattiin 1987 ”koulutus- ja kulttuurikeskuksessa”. Taidemuseon (1 000 m²) lisäksi siinä oli konserttisali sekä musiikkiopiston, kansalaisopiston ja taideharrastajien tiloja, samoin kaupungin toimistoja.
Puistomaisessa ympäristössä on hiekanvaalea kaksikerroksinen postmoderni rakennuskokonaisuus, yhteisen sisäänkäynnin ympärille rypälemäisesti kiertyvine pohjakaavoineen ja tummine aumakattoineen. Kaupunkien monitoimitaloissa tilojen käyttäjät voivat vaihtua, museo yleensä jää ja laajenee.[50]
Taide- ja kulttuurihistoriallinen museo, Saarijärvi (1989)
Saarijärven museo (Laila Niemioja / Heikki Uusitalo, 1989) avattiin 1989 saarijärveläisen kuvanveistäjä Kain Tapperin tuotantoa esittelevällä näyttelyllä. Ajatus museosta konkretisoitui, kun saarijärveläissyntyinen Toivi Järvinen määräsi testamentissaan 1982 omaisuutensa käytettäväksi taidemuseon rakentamiseen. Museoon koottiin yhteen Toivi ja Osmo Järvisen 1900-luvun alun kotimaisen taiteen kokoelma, Saarijärven kaupungin omistamat teokset ja Saarijärvi-seuran kulttuurihistoriallinen esineistö.
Vuonna 1948 perustettu Saarijärvi-seura vaali Saarijärven ja sen lähialueiden taiteilijoiden tuotantoa ja kulttuuriperintöä. Keskeisessä roolissa oli Tapperien kotitalo Juhola ja neljän taiteilijaveljeksen, kuvanveistäjä Kain Tapperin, kirjailijoiden Harri Tapperin ja Marko Tapion sekä lavastaja Yrjö Tapperin elämä ja tuotanto.[51]
Helsingissä työuransa tehneiden Toivi ja Osmo Järvisen omakotitalon tontille rakennettiin vaaleasta tiilestä puhtaaksi muurattu rakennus (1 150 m²). Saarijärven museonjohtaja Kari Kotilainen laati tilaohjelman, ja Jyväskylän museoiden kollegat työskentelivät rakennustoimikunnassa, joka osallistui Museoliiton Saksan-matkalle 1987. Frankfurtissa huomioitiin Main-joen molemmille rannoille nouseva vanhaa ja uutta arkkitehtuuria yhdistävä Museumsufer ja amerikkalaisarkkitehti Richard Meierin suunnittelema taideteollisuusmuseo.[52]
Saarijärvellä sisäänkäynti on suoraan näyttelykerrokseen, sen alapuolella ovat työ- ja varastotilat sekä sisääntulopäädyssä aulakahvio terasseineen. Muuta korkeampi keskiosa – ”valkoinen kuutio” – klinkkerilattioineen ja komeine järvinäkymineen – on tarkoitettu taiteelle ja erikoisnäyttelyille, itäpään matalampi ”musta kuutio” kulttuurihistoriallisille kokoelmille.[53]
34_Saarijärvi_MLR
Muita uusia museoita 1980- ja 1990-luvuilla
- Hyvinkään taidemuseo Jussintorin liikekeskuksessa (Ilmo ja Raimo Valjakka, 1981),
- Ahvenanmaan museot ja kaupunginkirjasto, Maarianhamina (Helmer Stenros, 1981),
- Skärgårdsmuseet i Lappo (Folke Wikström, 1981),
- Tampereen taidemuseon maanalainen näyttelytila (Antti Ilveskoski, 1984),
- Etelä-Karjalan museon sijoittaminen 1700-luvun linnoitukseen (Lappeenrannan kaupunki, 1984, 1989),
- Villa Gyllenbergin näyttelysiipi Helsingin Kuusisaaressa (Ålander Packalen Korsström, 1985),
- Rovaniemen taidemuseo postiautovarikkoon (Juhani Pallasmaa, 1986),
- Hiihtomuseo, Lahden Urheilukeskus (Esko Hämäläinen, 1989),
- Suomen metsästysmuseo muutti Porvoosta Riihimäelle (Osmo Lappo, 1990),
- Oulun taidemuseo liimatehtaan kiinteistöön (Birger Federley 1922, Jorma Teppo, 1991),
- Kalevala-talo, Talvisotamuseo, Kuhmo (Heikki Kukkonen 1991/1994),
- Mobilia auto- ja tiemuseo, Kangasala (Lindqvist & Uosukainen, 1992–94),
- Aboa Vetus & Ars Nova, Rettigin palatsin laajennus (Frank Schauman, 1995),
- Salon taidemuseo Veturitallin uudisosa (Lauri Hollmén, 1998).
39_Hyvinkää_MLR.jpg 42b_Lappeenranta Et karj museo WLM
40_Gberg_MLR 42_Lahden hiihtomuseo HHö
Tiedekeskus Heureka, Vantaa (1989) ja Arktinen instituutti Arktikum, Rovaniemi (1992)
Museoiden painopisteet ovat siirtyneet tutkimuksen suuntaan ammatillisuuden ja resurssien lisääntymisen myötä. Voitaneen jo puhua tiedemuseoista taidemuseoiden rinnalla.
Tiedekeskus Heurekan rakentaminen Vantaan Tikkurilaan oli 1980-luvun saavutus (kilpailu: Heikkinen ja Komonen, 1985). Säätiöpohjainen Heureka avattiin yleisölle 1989. Juuret ovat Helsingin yliopistossa, idean esittivät professorit Tapio Markkanen, Hannu I. Miettinen ja Heikki Oja. Kutsukirje oli lähtenyt Helsingin, Espoon ja Vantaan kaupungeille, joista Vantaa tarttui mahdollisuuteen tarjoten tontin ja merkittävää rahoitusta.
43_Heureka_MLR
Tiedekeskukset ovat museoiden rinnakkaisilmiö. Tieteen popularisointi, pedagoginen ote ja elämyksellisyys ovat yhteisiä tavoitteita, pääasiallisena erona se, ettei tiedekeskuksilla ole omia kokoelmia vartioitavanaan. Yleisötiloiltaan tiedekeskus muistuttaa avointa museota, uutuutena planetaario. Vapaus näkyy rakennuksen ulkoasussa, jota avaruusaiheineen voitaneen pitää uutta kokeilevan wau-arkkitehtuurin ensiesiintymisenä meillä.
44_Arktikum_MLR
Ajatus Arktisesta instituutista ja museosta virisi 1970-luvulla Oulussa ja Rovaniemellä. Konkreettinen aloite tuli Euroopan Kulttuurisäätiön Suomen osastolta. Vuosina 1983–84 järjestettiin arktisille maille suunnattu arkkitehtuurikilpailu, johon tuli 184 ehdotusta. Toteutus sidottiin Suomen itsenäisyyden 75-vuotisjuhlintaan, ja siitä kasvoi kansallinen hanke. Valtion talousarvioon varattiin varoja vuodelle 1988. Rovaniemen kaupunki tuli toiseksi maksajaksi ehdolla, että Aallon Lappia-talossa sijainnut maakuntamuseo sai keskuksesta uudet tilat.
Rakennus valmistui 1992, siinä toimivat näyttelyineen Lapin maakuntamuseo sekä Lapin yliopiston Arktinen keskus. Voittaneen tanskalaisen Claus Bonderupin työryhmän ehdotus on yhdistelmä klassisen museorakennuksen osia uudella tavalla yhdisteltynä. Valmiin rakennuksen julkisivu kaupunkiin päin muistuttaa temppelin päätyä pylväikköineen, oven takaa avautuu valkoiseksi maalattu kaksikerroksinen moderni hallimainen tila. Sen keskikäytävää kattaa lasinen galleria, joka valaistuna putkena jatkuu ulos ja Ounasjoen törmään upotettuna rantaan saakka.
1990-luvun viimeiset valtakunnalliset erikoismuseot – Lusto Savonlinnaan (1994), Siida Inariin (1998) ja Sarka Loimaalle (2005)
Uusiksi vastuumuseoiksi 1990-luvulla määriteltiin metsä-, saamelais- ja maatalousmuseo. Maan ensimmäiset kaupunkien museot olivat syntyneet 1800-luvulla rannikkokaupunkeihin. Sen jälkeen museoita rakennettiin myös sisämaahan niin, että kaupunkien museot ylsivät myös Keski- ja Itä-Suomeen, kunnes lopulta kotiseutu- ja pitäjänmuseoiden tiheä verkosto kattoi koko maan.
Pohjois-Suomi ja Lappi olivat olleet aktiivisia 1970-luvulta lähtien, erityisesti taidemuseoiden osalta. Yliopistojen lisäksi kaupungit kunnostautuivat: Oulun ja Rovaniemen kaupunginjohtajat Matti Rossi ja Matti Pelttari johtivat Suomen museoliiton hallitusta vuoron perään. Museot ja tiedekeskukset alkoivat hakeutua yhteen, kun viimeisiä valtakunnallisia museoita perustettiin. Niistä päätettäessä hajautuspolitiikka oli voimissaan, lisäksi valintaa tukivat matkailunäkökohdat.
45_Lusto_MLR 45a_Lusto_SLJe
Suomen metsämuseo Lusto Savonlinnan Punkaharjulla on metsäalan ja metsäkulttuurin erikoismuseo, joka avattiin tervalla ja pellavaöljyllä kyllästetyllä lehtikuusilaudalla vuoratussa betonirakennuksessa 1994. Vuonna 1988 perustettu säätiö järjesti yhdessä maa- ja metsätalousministeriön ja Punkaharjun kunnan kanssa avoimen arkkitehtuurikilpailun Suomalaisen metsätietokeskuksen rakentamiseksi vuonna 1990. Kokoelman painopiste on metsäkoneissa. Näyttelyt kertovat ihmisen ja metsän välisestä vuorovaikutuksesta.
Arkkitehtikilpailuun tuli 103 ehdotusta, ja voittaneet arkkitehdit Rainer Mahlamäki ja Ilmari Lahdelma suunnittelivat ”suomalaista modernismia” edustavan rakennuksen metsämaisemaan. Harjulta museon sisäänkäynnille johtaa katettu silta. Päänäyttely on museon pyöreässä osassa, jonka kalusteet ovat kiinteä osa arkkitehtuuria. Nimi Lusto tulee näyttelytilan (1 500 m²) muodosta ja merkitsee puun vuosikasvua, mutta siinä voi nähdä muistuman antiikin pyörötemppelistä.
46_Siida Nemo bis WLM 46a_Siida Nemo bis WLM
Saamelaismuseo oli perustettu ulkomuseona Inariin 1959. Jonkin aikaa sen jälkeen oli julistettu suunnittelukilpailu Oulun yliopiston arkkitehtiosaston opiskelijoille. Voittaja valittiin jatkokehittelyn pohjaksi, mutta asia hautautui ja herätettiin henkiin 1984. Hanke alkoi rahoituksen puolesta toteutua, kun museoon yhdistettiin Metsähallituksen Ylä-Lapin luontokeskus. Juhani Pallasmaan suunnittelema näyttelyrakennus Siida (merkitsee saamelaiskylää) valmistui metsäiseen rinteeseen museoalueen reunassa olleen sorakuopan paikalle vuonna 1998.
Sisäänkäynti on pohjakerroksessa, josta pääkerrokseen noustaan loivaa ramppia pitkin. Rakennus on istutettu ”pienipiirteiseen maisemaan” sen muotoja seuraten. Runko on teräsbetonia ja terästä, julkisivut puuta. Rakennuksen keskelle on koko pituudelta avattu ”luonnonvalorailo”.
Rakennussuunnittelu tapahtui rinnakkain näyttelysuunnittelun kanssa. Johdantonäyttely esittelee pohjoisen luonnon ja kulttuurin kehitysvaiheita jääkaudesta tähän päivään. Näyttelytilat ovat yönsinisiä, muut tilat yleisväritykseltään valkoisia. Museosta tuli kokonaistaideteos, jossa tavoitteena oli ”yhdistää tieteellinen sisältö teatterin tai taidenäyttelyn kaltaiseen elämyksellisyyteen”. Esineiden ja kuvien taustalla on eri vuodenaikoja ja luonnontapahtumia kuvaava äänimaisema.[54]
Suomen maatalousmuseo Sarka Loimaalla on viimeinen 1990-luvulla alkunsa saanut erikoismuseo. Suomen maatalouskonemuseosäätiö perustettiin 1992. ”Suomalaisen maatalouden 3000-vuotisen tarinan” kertova museo avattiin 2005 (arkkitehti Sarlotta Narjus).
Uudelle vuosituhannelle siirryttyä järjestettiin arkkitehtuurikilpailu Kotkan Merikeskus Vellamosta vuonna 2004 ja rakennus avattiin 2008 (Arkkitehtitoimisto Lahdelma & Mahlamäki Oy).[55]
Nykytaiteen museo Kiasma, Helsinki (1998)
Keskustelu museoarkkitehtuurista alkoi 1960-luvun vaihteessa Helsingin keskustasuunnitelmasta. Siihen oli merkitty paikka museolle, ja tänne uusi rakennus liki 40 vuotta myöhemmin nousikin. Nykytaiteen museon perustamisvuonna 1990 ilmestyi amerikkalaisen taidehistorioitsijan Douglas Crimpin pamfletti Museon raunioilla, jossa tämä pohti museon roolia ja vastuita, erityisesti nykytaiteen määrittelyssä ja ohjailussa.
47_Kiasma_MLR.jpg 48_leikkaus_MLR.jpg
Nykytaiteen museon rakennushanke lähti rivakasti käyntiin, lamasta oli etua. Kaupungin rakennuskoneistolta loppuivat työt, joten tehtiin sopimus, jonka mukaan valtio tilasi työn kaupungilta ja rakennuksen valmistuttua maksoi sen luovuttamalla museotalon arvoa vastaavan määrän rakennusmaata toisaalta.
Pohjoismaiden ja Baltian arkkitehdeille suunnattu suunnittelukilpailu käytiin 1993. Lisäksi oli kutsuttu mukaan neljä kansainvälisesti tunnettua arkkitehtiä. Ehdotuksia tuli 516, joista voittajaksi nousi yhdysvaltalaisen Steven Hollin[56] ehdotus Chiasma (silmistä aivoihin johtavien näköhermojen risteys).
Ehdotusta laatiessaan Holl kävi Helsingissä. Hän asui museotontin viereisen Vaakuna-hotellin ylimmässä kerroksessa, josta tutkiskeli tonttia ja sitä ympäröivää kaupunkinäkymää. Myöhemmin hän tutustui suomalaiseen rakennusperintöön kuten Petäjäveden kirkkoon. Rakennustyön käynnistyttyä suunnittelun Suomen tukikohtana toimi arkkitehti Juhani Pallasmaan toimisto.
49b_Kiasma_Sakari Kiuru MV 49_Kiasma_Tirri MV
Arkkitehtuurikilpailun voittajasta syntyi kohu. Arkkitehdit pitivät tonttia ahtaana ja rakennusta mahdottomana, koska sitä ei voisi muuttaa tai laajentaa, mikä oli ollut ihanne. Syytettiin myös amerikkalaisuuden palvonnasta. Kovin vastustus tuli Mannerheimin ratsastajapatsaan suojelijoiden taholta. Patsas jäi paikalleen, ja Holl otti sen huomioon etsiessään muotoa, joka nivoisi yhteen ristiriitaisetkin elementit tonttia ympäröivässä rakennus- ja puistomaisemassa. Rakennus valmistui 1998. Se huipensi 1900-luvun jälkipuolen museorakentamisen.
Kiasman viisi kerrosta ovat toisiinsa nähden hieman limittäin ja kaarevien seinäpintojen vuoksi eri suuruisia. Museotilaa on 9 100 m². Runko on terästä, ja betoni kaartuu kauniisti. Ulkoseinät ja katto on päällystetty sinkki-, alumiini-, messinki- ja lasilevyillä, sisäpuoli on valkoinen. Pohjakerroksen yleisötiloissa on myös puuta ja voimakkaita värejä. Rakennus on avoimen ja suljetun tilan yhdistelmä. Holl pitää taloaan avoimena, koska siellä on portaikkoja, hissejä ja oviaukkoja, jotka mahdollistavat vapaan liikkumisen. Sisään tullessa avautuu näkymä talon läpi, sekä päästä päähän, että alhaalta ylös valokattoon saakka.
Portaikon sijasta museoon noustaan kaarevaa ramppia pitkin. Sen molemmin puolin seinien takana on huoneesta huoneeseen kuljettavia näyttelysaleja, ylimpänä kattoikkunoin varustettu muita korkeampi sali. Luonnonvalon käyttö on Hollille tärkeää, sen vuoksi molemmissa päädyissä sekä länsisivulla on isot panoraamaikkunat. Näyttelysalien seinät ovat valkeat, lattiat tummanharmaata betonia. Tekniikka on upotettu, eikä arkkitehtonisia elementtejä ole korostettu. Tavoitteena on tila, jossa katsoja voi kohdata teoksen häiriöttä.
Lopputulos on paikkaansa sopeutuva talo, jonka kaartuva harmaa ulkokuori on kuin kotilo tai simpukka, joka suojelee helmenhohtoista sisältöään: ulkoa pieneltä vaikuttava rakennus avautuu sisääntulijalle juhlavan avarana. Valkoisen tarkoitus on pyhittää taide. Amerikkalainen arkkitehtuurintutkija Victoria Newhouse kirjoitti jo ennen Kiasman valmistumista kirjassaan Towards a New Museum näkevänsä Kiasman ”pyhänä tilana”.[57]
Museorakennuksen ikuisuuskysymyksiä
Museorakentamisen rinnalla on laaja kysymys: millaista historiakäsitystä museot ylläpitävät, kenen tarinoita kertovat. Vaikka museorakennukset muuttuvat, museorakentamisessa on edelleen ratkaistava samoja kysymyksiä. Halutaanko uudisrakennus vai korjataanko jokin vanha. Halutaanko luonnonrauhaan vai kaupungin ytimeen. Miten rakennus suhteutuu sisältöönsä, miten ympäristöönsä. Painotetaanko pysyvää näyttelyä vai vaihtuvaa ohjelmistoa. Onko näyttelykierto avoin vai suljettu ja miksi niin on. Mikä on luonnonvalon ja keinovalon suhde. Tehdäänkö temppeli vai toivotaanko toria.
Kirjoittaja
Filosofian tohtori, dosentti, tietokirjailija Marja-Liisa Rönkkö on toiminut eri tehtävissä lukuisissa museoissa, kuten museonjohtajana Helsingin kaupunginmuseossa 1978–1990 ja ylijohtajana Valtion taidemuseossa 1990–2000. Artikkeli perustuu tekijän väitöskirjaan Louvren ja Louisianan perilliset. Suomalainen taidemuseo sekä artikkeleihin teoksissa Museologia tänään ja Suomen museohistoria.
Artikkeli on julkaistu 2020.
Nelimarkka-museo avattiin 1964. Hanke oli syntynyt taidemaalari Eero Nelimarkan toiveesta luoda taidekoulu, jota varten hän oli perustanut säätiön 1945. Vuonna 1961 ostettiin Alajärveltä Nelimarkan suvun vanha kantatila. Puretun navetan paikalle valmistui 1964 Nelimarkan ystävän arkkitehti Hilding Ekelundin piirustusten mukaan pääjulkisivultaan klassisistinen koulu- ja museorakennus, muilta osin 1960-luvun kouluarkkitehtuuria. Nelimarkka korjasi vaikutelmaa haluamaansa klassiseen suuntaan piirtämällä itse laajennusosan 1972–74. Museota laajennettiin vielä 1997 (Käpy ja Simo Paavilainen). Nelimarkka-museo on 1900-luvun lopulla viimeinen aluetaidemuseo.[33]
1960-luvun muita uusia museorakennuksia
Arkkitehtuurin käänne 1960-luvulla käynnisti keskustelun ammattikunnan sisällä. Nuoremman polven yksinkertaista ja anonyymiä rakentamista vaativille suunnittelijoille oli tärkeää muunneltavuus ja laajennettavuus. Esikuvana voi pitää saksalais-amerikkalaista arkkitehtiä Mies van der Rohea.[34] Betonin valupinnan ja rakenteiden näkyville jättämistä on kutsuttu myös betonibrutalismiksi. 1970-luvulla alkoi mittavampi vanhojen rakennusten muuttaminen museoiksi, mikä toi mukaan rakennussuojelukysymykset.[35]
_Oik.: Sibelius-museon konserttisalia. Kantavat betonirakenteet ovat arkkitehtonisia pääelementtejä. Kuvat: Hilkka Högström.
- Turun linnan korjaus ja suuri näyttelyhalli ullakolle (Erik / Carin Bryggman, 1961–87),
- Tornionjokilaakson maakuntamuseo, Tornio (Jouko V. Ylihannu, 1962, Matti Porkka, 1981),
- Tammisaaren museon näyttelyhalli (Ola Hansson, 1963),
- Emil Cedercreutzin museon ”Maahengen Temppeli” Harjavalta (Jonas / Mariana Cedercreutz, 1963–97),
- Didrichsenin taidemuseon näyttelysiipi Helsinki (Viljo Revell, 1965),
- Sibelius-museo (Woldemar Baeckman, 1968) Åbo Akademin puutarha-alueelle Turkuun,
- Pohjanmaan museon näyttelysiipi, Vaasa (Erik Kråkström, 1968),
- Helsingin taidemuseon Kluuvin galleria (Aarno Ruusuvuori, 1968),
- Ortodoksinen kirkkomuseo, kirkkokunnan Kuopion keskustalossa (Dag Englund, 1969),
- Yrjö Liipolan museo, Koski Tl (Eero Ponkala, 1970).
Museo taidekokoelmalle - Meilahden taidemuseo, Helsinki (1967) ja Sara Hildénin taidemuseo, Tampere (1979)
Taiteen keräilijöille tärkeintä on ollut saada pysyvä paikka ja omalle kokoelmalle sopivat näyttelytilat.
Helsingin kaupungin taidemuseo nousi Meilahteen Tamminiementielle 1967. Kaupunki osti Meilahden kartanon kantatilan vanhat rakennukset, jolloin kypsyi ajatus yhdistää tuolloin innostusta herättänyt ja komiteatyöskentelyn tuloksena määritelty ”monitoiminnallinen taidekeskus” tähän.[36] Kun kaupungilla oli jo tiedossa useita lahjoituksia, päätettiin kunnollisten näyttelytilojen rakentamisesta omia kokoelmia varten, samalla kun otettiin vastaan Leonard ja Katarina Bäcksbackan perikunnan lahjoittama vanhemman kotimaisen taiteen kokoelma.
Kokonaista museota – taidekeskuksesta puhumattakaan – ei kuitenkaan tehty, vaan kyseessä on yksistään näyttelyrakennus. Suunnittelutehtävä annettiin kaupungin arkkitehdeistä Tero Aaltoselle.
22_Meilahti2_MLR 23_Meilahtipohja_MLR. jpg
Tanskalaisen Louisianan taidemuseon vaikutusta voi nähdä näyttelyrakennuksen paikanvalinnassa ja itse rakennuksessa. Tontti on loivassa rinteessä, joka avautuu merenlahdelle. Perikunnan edustajalla Ingjald Bäcksbackalla oli mielessään ripustussuunnitelma ja kokoelman vaatimat juoksumetrit, jotka sitten ”juostiin” maastossa arkkitehdin ja mittanauhan kanssa. Alvar Aalto -museota käytiin katsomassa. Intendentti Marja-Liisa Bell laski muiden tilojen tarpeen ja toimi neuvonantajana.
Kartanon lehtevään puistoon 1976 valmistunut valkoisella kahitiilellä verhottu rakennus (1 560 m²) on yksinkertainen. Sisäänkäynti on itäpäädyssä, jossa on avara klinkkerilattiainen aula kartanon puistoon avautuvine lasiseinineen. Aulaa oli mahdollista käyttää myös luentosalina. Näyttelytilat koostuvat viidestä suorakaiteen muotoisesta salista, jotka noudattavat huoneesta huoneeseen -mallia silmukkana, mistä muodostuu niin sanottu ”pakkokierto”. Ensimmäinen sali on suurin ja muita korkeampi. Kunkin salin keskivaiheilla on vastakkain lyhyet seinäkkeet, jotka jakavat ne ikään kuin kahteen pienempään huoneeseen.
Salien väliset ovet on sijoitettu kauas toisistaan, tukemaan johdonmukaista kiertoa. Saleihin päivänvaloa tulee kattoikkunoiden välityksellä seinänvieriä kiertävien valokuilujen kautta. Lattioita peitti aluksi sisalmatto ja seinät oli verhottu tärkätyllä juuttikankaalla, kuten taidegallerioissa oli tapana. Salien alla oli varasto ja ikkunallisia teknisiä tiloja.[37]
Tilat toimivat hyvin ja Meilahden museo oli pitkään kaupungin parhaita näyttelypaikkoja. Kahvilaa rakennukseen ei tullut, sitä varten korjattiin viereinen kartanon puinen päärakennus 1800-luvun alkupuolelta. Puistossa on ollut näytteillä veistoksia ja siellä on järjestetty taidetapahtumia, mutta suunniteltuja laajennuksia ei toteutettu.
24_Hilden ilmakuva Teuvo Kanerva 25_Hildenleikkaus_MLR.jpg
Sara Hildénin 1979 avattu taidemuseo perustuu niin kotimaiselle kuin ulkomaiselle modernismille ja nykytaiteelle. Ensimmäiset teokset Hildén osti vuoden 1961 Ars-näyttelystä. Hän lahjoitti kokoelmansa nimeään kantavalle säätiölle, joka solmi 1975 sopimuksen Tampereen kaupungin kanssa uuden museon rakentamisesta ja teosten pysyvästä sijoittamisesta sinne. Kaupunki vastaa museon ylläpidosta ja säätiö kartuttaa kokoelmaa.
Paikkaa valittaessa Hildén mieltyi rakenteilla olleen Särkänniemen huvipuiston läheisyydessä sijainneen vanhan huvilan Näsijärvelle avautuvaan rinnetonttiin ja rakennusten jäännöksiin, jotka loivat perustan veistospuistolle. Tärkein lähtökohta oli juuri tämä paikka, jota voi luonnehtia jopa välimerelliseksi.
Tavoite oli sama kuin Helsingissä: rakentaa yksityiselle kokoelmalle ihanteelliset olosuhteet. Suunnittelijaksi valittiin tamperelaisen Pekka Ilveskosken arkkitehtitoimisto, joka konsultoi myös Meilahden taidemuseon suunnitellutta Tero Aaltosta. Paikan lisäksi lähtökohdiksi otettiin näyttelysalien tarkoituksenmukainen liittyminen toisiinsa sekä teoksille sopivan valaistuksen luominen. Maalaussalit ovat ikkunattomia, mutta tärkeitä näköalaikkunoita on salien liitoskohdissa. Arkkitehtuuriin suoraan vaikuttanut ero oli siinä, että nykytaiteen teokset ovat suurikokoisempia, väreiltään kirkkaampia, usein ääntä, valoa ja liikettä sisältäviä.
Hildén oli luonut kokoelmansa yhteistyössä Ateneumin asiantuntijoiden kanssa ja tutustunut matkoillaan keskeisiin eurooppalaisiin museoihin. Amerikkalaisia museoita puolestaan tunsi suunnittelussa mukana ollut Asko Rasinperä, joka oli opiskellut Yhdysvalloissa. Ulkomaisia rakennuksia, joihin on viitattu, ovat Nizzan lähelle 1964 valmistunut yksityinen nykytaiteen museo Fondation Maeght (Josep Lluis Sert), etenkin veistospuiston osalta, Berliinin Brücke-Museum (Werner Düttmann, 1967) sekä ”monoliittista ekspressionismia” edustava Emerson Museum of Art (I. M. Pei, Syracuse N. Y., 1968).
Kaksikerroksisen rakennuksen pohjakaava edustaa neliapila-tyyppiä (ydin ja satelliitit). Sisäänkäynti on suoraan toiseen kerrokseen, jossa on toimistosiipi, luentosali ja maalausgalleriat. Keskisalista laskeudutaan pohjakerroksen veistostiloihin, joissa on välitasanne, ja edelleen kahvioon ulkoterasseineen. Kaikki näyttelytilat ovat luonteeltaan avoimia ja niissä voi liikkua vapaasti, haluamassaan järjestyksessä. Alakerrassa on järven suuntaan, pohjoiseen ja länteen suuret ikkunaseinät.
26a_Hilden_SJE 26_Hilden_HHö 26b_Hilden_SJE
Ulkoseinät ovat vaalearouheista pesubetonia, sisällä kantavat seinät on jätetty betonivalun jälkeen käsittelemättä. Näyttelyseinät on verhottu valkeaksi maalatulla kangaspinnoitteella, ja tilojen jakamiseksi pienempiin osiin on käytössä ollut irtoseiniä. Lattiat ovat kivilaattaa. Rakennus oli valmistuessaan maan suurin taidemuseo (2 500 brm²)[38]
Satakunnan kulttuurihistoriallinen museo, Pori (1973)
Porissa avattiin Satakunnan museon uudisrakennus 1973. Samana vuonna valmistui Alvar Aalto -museo Jyväskylään. Satakunnan museo oli perustettu 1888. Kokoelmat oli kerännyt ja järjestänyt opettaja Matti Kauppinen, joka toimi aktiivisesti myös Museoliitossa sen perustamisesta lähtien. Vaihtuvissa vuokratiloissa majaillut museo oli saanut pysyvämmän sijan monenlaisessa käytössä kuluneesta, rapatusta ”Iltaman talosta” vuonna 1903.
Ajatusta oikeasta museorakennuksesta pidettiin yllä, ja kopin otti vuonna 1958 museonjohtajaksi valittu Unto Salo, museon ensimmäinen ammattilainen ja tuolloin myös Museoliiton puheenjohtaja. Ennen Turun arkeologian professoriksi siirtymistä hänen viimeiseksi tehtäväkseen jäi uuden museon tilaohjelman laatiminen.[39] Tontiksi osoitettiin pieni kolmiomainen puisto Hallituskadun päästä, jokirannan ja oluttehtaan välistä, ja suunnittelijaksi valittiin kaupunginarkkitehti Olaf Küttner. Suojelukiistaa tai kilpailua ei näin vaikeasta paikasta syntynyt.
Sisäänkäynti on etelästä, Hallituskadun puolelta, josta vaaleanharmaa pesubetonipintainen rakennus (4 603 brm²) näyttäytyy ajan tavan mukaan yksikerroksisena. Aulasta oikealla on toimistosiipi kadulle suuntautuvine ikkunariveineen ja luentosaleineen, vasemmalla yhtenäinen ikkunaton tilapäisnäyttelytila (400 m²) ja suoraan edessä kahvila, josta avautuvat pohjoispuolen ainoat ikkunat Jazzkadun (Eteläranta) yli joelle.[40] Toimistotilojen takana on perusnäyttelytilojen suuri kolmikerroksinen blokki, johon päivänvaloa saadaan kaikkien kerrosten läpi ulottuvan kulmikkaan valopihan kautta.
28b_Satakunnan museo_MLR 28_SatMsisältä_MLR.jpg
Alun perin vaaleahkoja avaria sisätiloja jäsentävät lehtereitä kannattelevat pylväät ja niitä yhdistävät umpilaitaiset betoniportaikot. Ruskeasävyisissä näyttelytiloissa oli ritiläkatot ja kokolattiamatot. Sisustuksen suunnitteli Tauno Kivinen.
Kokonaisvaikutelmaltaan museo on sukua Kalifornian Berkeley-yliopiston taidemuseolle (Mario J. Ciampi, 1970), ja Amsterdamin saman aikainen Van Gogh -museo (Gerrit Rietvelt, 1973) tunnettiin.[41]
Big Bang – museot haluavat uudistua
Vuoden 1970 tienoilla alkoi kehityskulku, jota museologisessa kirjallisuudessa kutsutaan alkuräjähdykseksi. Se lähti liikkeelle ekomuseo-ajatteluna, joka pyrki häivyttämään rajat museon ja sitä ympäröivän yhteisön väliltä. Painopiste haluttiin siirtää laitosajattelusta aktiviteetteihin, iskusanoina ”elävä museo” ja pontimena mahdollisuus vaikuttaa tulevaisuuteen. Tavoitteena oli asettaa museo laajaan sosiokulttuuriseen yhteyteen, jossa luonnontiede, historia, taide ja teknologia muodostaisivat kokonaisuuden.[42]
Tähän vaiheeseen sijoittuu Museoviraston perustaminen 1972 museoinstituution kokonaisvaltaiseksi kehittämiseksi. Suomen museoliitto oli itsenäistynyt 1957 muuttamalla Kansallismuseosta omiin tiloihin Cygnaeuksenkadulle.
Ammatillistuminen vauhdittui, näyttelyitä järjestettiin 1970-luvulla ennätyksellinen määrä sekä museoissa että ulkopuolisissa tiloissa, yleisömäärät moninkertaistuivat. Erityisesti alettiin ottaa huomioon lapset: ensimmäiset museolehtorit aloittivat Ateneumissa ja Kansallismuseossa 1970-luvun alkuvuosina.
Näyttelysuunnittelusta tuli museoissa kriittinen tekijä. Suomen museoliitto ryhtyi järjestämään kursseja tästä tematiikasta. Teknisistä kysymyksistä, kuten museoiden murto- ja paloturvallisuudesta, esineistön oikeista säilytysolosuhteista ja rakennusten suojelusta, tuotettiin ohjekirjoja ja suosituksia. Erikoismuseokenttä alkoi hahmottua. Aika oli kypsä laajemmalle keskustelulle museorakennuksista.[43]
Museoarkkitehtuuriseminaari 1979
Museoliitto järjesti museoarkkitehtuuriseminaarin 26.–27.11.1979 Espoon Hanasaaressa. Sen aiheuttivat Porin taidemuseon, Helsingissä Taideteollisuusmuseon (Designmuseo) ja Sinebrychoffin taidemuseon avaamiset sekä satavuotiaan Ateneumin lähestyvä korjaus. Siitä oli käynnistetty hankesuunnittelu 1978 (Laiho – Pulkkinen – Raunio, toteutus 1985–91).
Seminaariin osallistui 140 henkeä. Esiteltäväksi koottiin kaikki tieto ja kokemukset, mitä siihen mennessä oli saatu uudistiloista ja vanhojen rakennusten korjaamisesta. Museoasiainsihteeri Jorma Heinonen oli paneutunut niin museoarkkitehtuurin historiaan ja estetiikkaan kuin viimeisimpään tekniikkaankin.[44] Hän esitteli Aallon Tallinnan taidemuseon nerokkaana pitämänsä ehdotuksen. Parinkymmenen vuoden aikana valmistuneita museohankkeita esiteltiin esimerkein.
Alueellinen museoverkosto syntyy – 1980-luvulla liki 200 uutta museota
Valtioneuvosto teki 1979 päätöksen alueellisen museoverkoston muodostamisesta. Sitä koskeva valtionavustuslaki säädettiin 1988. Vuonna 1992 säädettiin Museolaki ja asetus, jonka piiriin pääsivät kaikki ammatillisesti hoidetut museot.[45] Laskennallisena pohjana olivat henkilötyövuodet. Lakiin lisättiin museoiden yhteiskunnallinen tehtävä 1996.
Maakuntamuseot ja aluetaidemuseot nimettiin suurimpien kaupunkien olemassa olevien museoiden pohjalta vuosina 1980–1995. Erikoismuseokenttää vahvistettiin vielä muutamilla museoilla, jotta kaikille tärkeiksi katsotuille osa-alueille saatiin oma vastuumuseonsa, jotka vahvistettiin 1993–2010.
Uusia museoita oli toisen maailmansodan jälkeen perustettu noin 15-20 museon vuosivauhtia. Lakipiste saavutettiin 1980-luvulla, jolloin museoita syntyi kaikkiaan liki 200. Kasvu oli samanlaista kansainvälisestikin. Sitten seurasi nopea lasku niin, että viimeisellä vuosikymmenellä ennen vuosituhannen vaihdetta museoita perustettiin meillä enää parikymmentä.
Arkkitehtuurissa Oulun kouluksi kutsuttu postmoderni suuntaus tavoitteli elämyksellisyyttä.
Kaupunginmuseoiden ja kotiseututalojen rinnalla ovat paikallismuseot. Niihin kuuluvat historiallisten henkilöiden, valtiomiesten, kulttuuripersoonien ja urheilijoiden museoidut kodit, paikkakunnalle luonteenomaisten ammattien ja ilmiöiden museot sekä yksittäisten keräilijöiden moninaiset kokoelmat ja kohteet.[46]
27_Ainola_WLM 27b_Yli_laurosela_MV
Museo vanhassa rakennuksessa
”Vanhat rakennukset museokäytössä” oli Museoliiton museoarkkitehtuuriseminaarissa 1979 toisen pääpuhujan, Teknillisen korkeakoulun arkkitehtuurihistorian professori Henrik Liliuksen teema. Lilius puolusti voimakkaasti alkuperäisiä rakenteita ja kritisoi historiallisten rakennusten sisätilojen uudistamista. Liliuksen mielestä uuden käytön tarpeet eivät saisi kokonaan ohittaa rakennuksen omaa historiaa, vaan näiden välille pitäisi etsiä tasapaino. Keskustelu jatkui vilkkaana Ateneum-rakennuksen korjauksen alkaessa ja uudistamisen edetessä (1985-91).[47]
29_Pori_MLR.jpg
Henrik Liliuksen seminaarialustuksen taustalla olivat seuraavat silloin ajankohtaiset museohankkeet:
- Brobergska Samskolanin (Gustaf Nyström, 1894 / Olli Borg, 1978) muutos Taideteollisuusmuseoksi,
- Sinebrychoffin patriisitalon (Jean Wik, 1842 / Sirkka-Liisa Tarumaa, 1979) muuttaminen taidemuseoksi,
- Porin pakka- ja vaakahuoneen (C. J. von Heideken, 1858 / Kristian Gullichsen, 1979) muutos Maire Gullichsenin taidekokoelman tiloiksi.
Museo teollisuusrakennuksessa
Luontevimmin museoiksi on taipunut teollisuusarkkitehtuuri. Teollisuusrakennusten houkuttavuuteen vaikuttavat niiden avarat, vapaasti muunneltavat hallitilat. Teollisuustuotannosta tyhjeneviä tehtaita on otettu museokäyttöön satakunta. 1900-luvun loppua kohti teollisuusrakennusten ja kokonaisten alueiden käyttö kulttuuritiloina vielä lisääntyi.
30_Vapriikki Tiia Monto WLM 2017
- Riihimäen kaupungin vuonna 1975 hankkima, lasitehtaan 1910-luvulla valmistunut rakennus, josta Tapio Wirkkala suunnitteli Suomen lasimuseon (näyttely 1 762 m²),
- Vuonna 1898 perustettu Suomen rautatiemuseo muutti Helsingin asemalta Hyvinkäälle 1973–74,
- 1969 perustettu Tekniikan museo asettui vuodesta 1970 lähtien Helsingin vesilaitoksen sata vuotta vanhoihin tiloihin Vantaanjoen suulle.
- Kaapelitehdas Helsingissä (W.G. Palmqvist, 1939–1954) on 1990-luvun alusta ollut kaupungin omistama kiinteistöyhtiö. Entisen Nokian kaapelitehtaan suurimman hallin (2 700 m²) itäpäähän muuttivat 1990-luvun alussa Suomen Valokuvataiteen museo (perustettu 1969), Teatterimuseo (perustettu 1962) ja Hotelli- ja ravintolamuseo (perustettu 1971) päällekkäisiin tiloihin, joiden museotilat viimeisteltiin 2000.
- Tampellan tiloissa avattiin 1996 Tampereen museokeskus Vapriikki (14 000 m²) lukuisine museoineen.
- Hämeenlinnan taidemuseon (perustettu 1952) viisi rakennusta sisältyvät Verkatehtaan (1895) kokonaisuuteen, joka oli pääosin oppilaitoskäytössä 1980- ja 90-luvuilla, kunnes se päätettiin suunnitella kokonaisuutena erilaisia kulttuuripalveluita varten 2001 (avaus 2007).
- Lapuan patruunatehtaan (perustettu 1923) tiloihin on 1990-luvulta lähtien kasvanut Kulttuurikeskus Vanha Paukku, jossa on muun muassa useita museoita kuten tehtaanmuseo (perustettu 1993), taidemuseo (perustettu 1998) ja Pyhälahden valokuvaamomuseo.
Taidemuseo kulttuurikeskuksessa - Kemi (1977), Tornio (1985) ja Kouvola (1987)
Joidenkin kaupunkien uusiin kulttuurikeskuksiin tehtiin tilat museolle. Kemin taidemuseo sai pysyvät tilat jo kulttuurikeskuksen ensimmäisessä rakennusvaiheessa 1977 (Arkkitehtitoimisto Jan Söderlund) ja lopullisen paikkansa 1990, kun koko kulttuurikeskus valmistui. Kemin vuonna 1947 alkunsa saanut taidemuseo oli ensimmäinen aluemuseokokeiluun osallistunut, ja siitä tuli maakunnallinen taidemuseo vuonna 1981 toiminta-alueenaan koko Lapin lääni.
Taidemuseon osuus kulttuurikeskuksesta on vajaa kymmenes. Nykytaiteelle soveltuvaa näyttelytilaa on 551 m². Suoraviivaista punatiilistä rakennuskokonaisuutta jäsentävät nauhaikkunat ja eri tilojen korkeuserot. Sisätilojen suoraviivaisuuden murtaa museon näyttelytilan ja kirjaston välinen diagonaalinen kantava seinä. Valmistuessaan rakennus tarjosi tilat kaupunginkirjastolle, kaupunginteatterille, kauppaoppilaitokselle ja työväenopistolle, joilla on torin puolelta yhteinen sisäänkäynti kahviloineen, ravintoloineen ja kaksine auditorioineen.[48]
37_Kemisali_MLR 37b_Kemi_MLR
Torniolainen kauppaneuvos Veli Aine toivoi, että hänen kotimaista 1800- ja 1900-luvun taidetta sisältävä taidekokoelmansa tulisi esiin kotikaupungissa. Ajankohdalle tyypilliseen tapaan pyrittiin taidemuseo perustamaan ”kulttuurikeskukseen veden äärelle”. Siinä maakuntamuseon, taidemuseon ja kirjaston tilatarpeet yhdistyisivät. Tuloksena oli päätös laajentaa maakuntamuseota omalla tontillaan ja rakentaa taidemuseolle sekä kirjastolle uusi yhteinen toimitalo.
Taidemuseon vuonna 1979 sovittu toimintamalli oli sama kuin Sara Hildénin museossa: kaupunki vastasi rakennuksesta ja museon ylläpidosta, Aineen Kuvataidesäätiö kokoelmien kartuttamisesta. Vuonna 1985 valmistunut, Rajakartanoksi nimetty talo nousi aiemmin tornitaloille kaavaillulle tontille. Arkkitehdiksi valittiin paikallinen Matti Porkka, joka suunnitteli myös maakuntamuseon laajennuksen. Porkka ei ollut suunnitellut museotiloja, mutta osallistui museoarkkitehtuuriseminaariin ja tutustui Helsingin kaupungin taidemuseoon, Sara Hildénin taidemuseoon ja Lapinlahden taidemuseoon (Esa Koivuniemi ja Georg Bystroff, 1977).
Torniossa Aineen museon ja kirjaston rinnakkaiset Torikadun suuntaiset tilat ovat suunnilleen samankokoiset. Rakennusmassat ovat kuitenkin toisiinsa nähden hieman vinottain ja kummallakin on oma luonteensa. Julkisivut on muurattu valkoisesta kahitiilestä. Sen päällä on ikkunatonta museonäyttelyaluetta korostava pystysuuntainen hiekanruskea marmoriharkotus, kirjaston ikkunoissa vastaavasti ritiläverhous. Yhteinen sisäänkäynti on rakennusten välissä toisessa kerroksessa, kahvila ja auditorio museon puolella. Museokäytössä on 1 576 m².
Sisäseinät ovat valkoiset, portaat ja käytävät on päällystetty Lapin louhemarmorilla, kahvila ja näyttelytilat sisal-laattamatolla. Näyttelysaleja on viisi, ja niihin Aine halusi Helsingin Meilahden taidemuseon tapaisen pakkokierron, jotta kaikki teokset tulisivat nähdyiksi. Ulkona oli tilaa veistospuistolle. Veli Aine sai toiveensa toteutumaan ja toimi museolautakunnan ensimmäisenä puheenjohtajana.[49]
38_Kouvola_MLR
Kouvola-talon (kilpailu: Erkki Valovirta, 1982) kotimaiselle nykytaiteelle omistettu museo perustettiin 1986 ja avattiin 1987 ”koulutus- ja kulttuurikeskuksessa”. Taidemuseon (1 000 m²) lisäksi siinä oli konserttisali sekä musiikkiopiston, kansalaisopiston ja taideharrastajien tiloja, samoin kaupungin toimistoja.
Puistomaisessa ympäristössä on hiekanvaalea kaksikerroksinen postmoderni rakennuskokonaisuus, yhteisen sisäänkäynnin ympärille rypälemäisesti kiertyvine pohjakaavoineen ja tummine aumakattoineen. Kaupunkien monitoimitaloissa tilojen käyttäjät voivat vaihtua, museo yleensä jää ja laajenee.[50]
Taide- ja kulttuurihistoriallinen museo, Saarijärvi (1989)
Saarijärven museo (Laila Niemioja / Heikki Uusitalo, 1989) avattiin 1989 saarijärveläisen kuvanveistäjä Kain Tapperin tuotantoa esittelevällä näyttelyllä. Ajatus museosta konkretisoitui, kun saarijärveläissyntyinen Toivi Järvinen määräsi testamentissaan 1982 omaisuutensa käytettäväksi taidemuseon rakentamiseen. Museoon koottiin yhteen Toivi ja Osmo Järvisen 1900-luvun alun kotimaisen taiteen kokoelma, Saarijärven kaupungin omistamat teokset ja Saarijärvi-seuran kulttuurihistoriallinen esineistö.
Vuonna 1948 perustettu Saarijärvi-seura vaali Saarijärven ja sen lähialueiden taiteilijoiden tuotantoa ja kulttuuriperintöä. Keskeisessä roolissa oli Tapperien kotitalo Juhola ja neljän taiteilijaveljeksen, kuvanveistäjä Kain Tapperin, kirjailijoiden Harri Tapperin ja Marko Tapion sekä lavastaja Yrjö Tapperin elämä ja tuotanto.[51]
Helsingissä työuransa tehneiden Toivi ja Osmo Järvisen omakotitalon tontille rakennettiin vaaleasta tiilestä puhtaaksi muurattu rakennus (1 150 m²). Saarijärven museonjohtaja Kari Kotilainen laati tilaohjelman, ja Jyväskylän museoiden kollegat työskentelivät rakennustoimikunnassa, joka osallistui Museoliiton Saksan-matkalle 1987. Frankfurtissa huomioitiin Main-joen molemmille rannoille nouseva vanhaa ja uutta arkkitehtuuria yhdistävä Museumsufer ja amerikkalaisarkkitehti Richard Meierin suunnittelema taideteollisuusmuseo.[52]
Saarijärvellä sisäänkäynti on suoraan näyttelykerrokseen, sen alapuolella ovat työ- ja varastotilat sekä sisääntulopäädyssä aulakahvio terasseineen. Muuta korkeampi keskiosa – ”valkoinen kuutio” – klinkkerilattioineen ja komeine järvinäkymineen – on tarkoitettu taiteelle ja erikoisnäyttelyille, itäpään matalampi ”musta kuutio” kulttuurihistoriallisille kokoelmille.[53]
34_Saarijärvi_MLR
Muita uusia museoita 1980- ja 1990-luvuilla
- Hyvinkään taidemuseo Jussintorin liikekeskuksessa (Ilmo ja Raimo Valjakka, 1981),
- Ahvenanmaan museot ja kaupunginkirjasto, Maarianhamina (Helmer Stenros, 1981),
- Skärgårdsmuseet i Lappo (Folke Wikström, 1981),
- Tampereen taidemuseon maanalainen näyttelytila (Antti Ilveskoski, 1984),
- Etelä-Karjalan museon sijoittaminen 1700-luvun linnoitukseen (Lappeenrannan kaupunki, 1984, 1989),
- Villa Gyllenbergin näyttelysiipi Helsingin Kuusisaaressa (Ålander Packalen Korsström, 1985),
- Rovaniemen taidemuseo postiautovarikkoon (Juhani Pallasmaa, 1986),
- Hiihtomuseo, Lahden Urheilukeskus (Esko Hämäläinen, 1989),
- Suomen metsästysmuseo muutti Porvoosta Riihimäelle (Osmo Lappo, 1990),
- Oulun taidemuseo liimatehtaan kiinteistöön (Birger Federley 1922, Jorma Teppo, 1991),
- Kalevala-talo, Talvisotamuseo, Kuhmo (Heikki Kukkonen 1991/1994),
- Mobilia auto- ja tiemuseo, Kangasala (Lindqvist & Uosukainen, 1992–94),
- Aboa Vetus & Ars Nova, Rettigin palatsin laajennus (Frank Schauman, 1995),
- Salon taidemuseo Veturitallin uudisosa (Lauri Hollmén, 1998).
39_Hyvinkää_MLR.jpg 42b_Lappeenranta Et karj museo WLM
40_Gberg_MLR 42_Lahden hiihtomuseo HHö
Tiedekeskus Heureka, Vantaa (1989) ja Arktinen instituutti Arktikum, Rovaniemi (1992)
Museoiden painopisteet ovat siirtyneet tutkimuksen suuntaan ammatillisuuden ja resurssien lisääntymisen myötä. Voitaneen jo puhua tiedemuseoista taidemuseoiden rinnalla.
Tiedekeskus Heurekan rakentaminen Vantaan Tikkurilaan oli 1980-luvun saavutus (kilpailu: Heikkinen ja Komonen, 1985). Säätiöpohjainen Heureka avattiin yleisölle 1989. Juuret ovat Helsingin yliopistossa, idean esittivät professorit Tapio Markkanen, Hannu I. Miettinen ja Heikki Oja. Kutsukirje oli lähtenyt Helsingin, Espoon ja Vantaan kaupungeille, joista Vantaa tarttui mahdollisuuteen tarjoten tontin ja merkittävää rahoitusta.
43_Heureka_MLR
Tiedekeskukset ovat museoiden rinnakkaisilmiö. Tieteen popularisointi, pedagoginen ote ja elämyksellisyys ovat yhteisiä tavoitteita, pääasiallisena erona se, ettei tiedekeskuksilla ole omia kokoelmia vartioitavanaan. Yleisötiloiltaan tiedekeskus muistuttaa avointa museota, uutuutena planetaario. Vapaus näkyy rakennuksen ulkoasussa, jota avaruusaiheineen voitaneen pitää uutta kokeilevan wau-arkkitehtuurin ensiesiintymisenä meillä.
44_Arktikum_MLR
Ajatus Arktisesta instituutista ja museosta virisi 1970-luvulla Oulussa ja Rovaniemellä. Konkreettinen aloite tuli Euroopan Kulttuurisäätiön Suomen osastolta. Vuosina 1983–84 järjestettiin arktisille maille suunnattu arkkitehtuurikilpailu, johon tuli 184 ehdotusta. Toteutus sidottiin Suomen itsenäisyyden 75-vuotisjuhlintaan, ja siitä kasvoi kansallinen hanke. Valtion talousarvioon varattiin varoja vuodelle 1988. Rovaniemen kaupunki tuli toiseksi maksajaksi ehdolla, että Aallon Lappia-talossa sijainnut maakuntamuseo sai keskuksesta uudet tilat.
Rakennus valmistui 1992, siinä toimivat näyttelyineen Lapin maakuntamuseo sekä Lapin yliopiston Arktinen keskus. Voittaneen tanskalaisen Claus Bonderupin työryhmän ehdotus on yhdistelmä klassisen museorakennuksen osia uudella tavalla yhdisteltynä. Valmiin rakennuksen julkisivu kaupunkiin päin muistuttaa temppelin päätyä pylväikköineen, oven takaa avautuu valkoiseksi maalattu kaksikerroksinen moderni hallimainen tila. Sen keskikäytävää kattaa lasinen galleria, joka valaistuna putkena jatkuu ulos ja Ounasjoen törmään upotettuna rantaan saakka.
1990-luvun viimeiset valtakunnalliset erikoismuseot – Lusto Savonlinnaan (1994), Siida Inariin (1998) ja Sarka Loimaalle (2005)
Uusiksi vastuumuseoiksi 1990-luvulla määriteltiin metsä-, saamelais- ja maatalousmuseo. Maan ensimmäiset kaupunkien museot olivat syntyneet 1800-luvulla rannikkokaupunkeihin. Sen jälkeen museoita rakennettiin myös sisämaahan niin, että kaupunkien museot ylsivät myös Keski- ja Itä-Suomeen, kunnes lopulta kotiseutu- ja pitäjänmuseoiden tiheä verkosto kattoi koko maan.
Pohjois-Suomi ja Lappi olivat olleet aktiivisia 1970-luvulta lähtien, erityisesti taidemuseoiden osalta. Yliopistojen lisäksi kaupungit kunnostautuivat: Oulun ja Rovaniemen kaupunginjohtajat Matti Rossi ja Matti Pelttari johtivat Suomen museoliiton hallitusta vuoron perään. Museot ja tiedekeskukset alkoivat hakeutua yhteen, kun viimeisiä valtakunnallisia museoita perustettiin. Niistä päätettäessä hajautuspolitiikka oli voimissaan, lisäksi valintaa tukivat matkailunäkökohdat.
45_Lusto_MLR 45a_Lusto_SLJe
Suomen metsämuseo Lusto Savonlinnan Punkaharjulla on metsäalan ja metsäkulttuurin erikoismuseo, joka avattiin tervalla ja pellavaöljyllä kyllästetyllä lehtikuusilaudalla vuoratussa betonirakennuksessa 1994. Vuonna 1988 perustettu säätiö järjesti yhdessä maa- ja metsätalousministeriön ja Punkaharjun kunnan kanssa avoimen arkkitehtuurikilpailun Suomalaisen metsätietokeskuksen rakentamiseksi vuonna 1990. Kokoelman painopiste on metsäkoneissa. Näyttelyt kertovat ihmisen ja metsän välisestä vuorovaikutuksesta.
Arkkitehtikilpailuun tuli 103 ehdotusta, ja voittaneet arkkitehdit Rainer Mahlamäki ja Ilmari Lahdelma suunnittelivat ”suomalaista modernismia” edustavan rakennuksen metsämaisemaan. Harjulta museon sisäänkäynnille johtaa katettu silta. Päänäyttely on museon pyöreässä osassa, jonka kalusteet ovat kiinteä osa arkkitehtuuria. Nimi Lusto tulee näyttelytilan (1 500 m²) muodosta ja merkitsee puun vuosikasvua, mutta siinä voi nähdä muistuman antiikin pyörötemppelistä.
46_Siida Nemo bis WLM 46a_Siida Nemo bis WLM
Saamelaismuseo oli perustettu ulkomuseona Inariin 1959. Jonkin aikaa sen jälkeen oli julistettu suunnittelukilpailu Oulun yliopiston arkkitehtiosaston opiskelijoille. Voittaja valittiin jatkokehittelyn pohjaksi, mutta asia hautautui ja herätettiin henkiin 1984. Hanke alkoi rahoituksen puolesta toteutua, kun museoon yhdistettiin Metsähallituksen Ylä-Lapin luontokeskus. Juhani Pallasmaan suunnittelema näyttelyrakennus Siida (merkitsee saamelaiskylää) valmistui metsäiseen rinteeseen museoalueen reunassa olleen sorakuopan paikalle vuonna 1998.
Sisäänkäynti on pohjakerroksessa, josta pääkerrokseen noustaan loivaa ramppia pitkin. Rakennus on istutettu ”pienipiirteiseen maisemaan” sen muotoja seuraten. Runko on teräsbetonia ja terästä, julkisivut puuta. Rakennuksen keskelle on koko pituudelta avattu ”luonnonvalorailo”.
Rakennussuunnittelu tapahtui rinnakkain näyttelysuunnittelun kanssa. Johdantonäyttely esittelee pohjoisen luonnon ja kulttuurin kehitysvaiheita jääkaudesta tähän päivään. Näyttelytilat ovat yönsinisiä, muut tilat yleisväritykseltään valkoisia. Museosta tuli kokonaistaideteos, jossa tavoitteena oli ”yhdistää tieteellinen sisältö teatterin tai taidenäyttelyn kaltaiseen elämyksellisyyteen”. Esineiden ja kuvien taustalla on eri vuodenaikoja ja luonnontapahtumia kuvaava äänimaisema.[54]
Suomen maatalousmuseo Sarka Loimaalla on viimeinen 1990-luvulla alkunsa saanut erikoismuseo. Suomen maatalouskonemuseosäätiö perustettiin 1992. ”Suomalaisen maatalouden 3000-vuotisen tarinan” kertova museo avattiin 2005 (arkkitehti Sarlotta Narjus).
Uudelle vuosituhannelle siirryttyä järjestettiin arkkitehtuurikilpailu Kotkan Merikeskus Vellamosta vuonna 2004 ja rakennus avattiin 2008 (Arkkitehtitoimisto Lahdelma & Mahlamäki Oy).[55]
Nykytaiteen museo Kiasma, Helsinki (1998)
Keskustelu museoarkkitehtuurista alkoi 1960-luvun vaihteessa Helsingin keskustasuunnitelmasta. Siihen oli merkitty paikka museolle, ja tänne uusi rakennus liki 40 vuotta myöhemmin nousikin. Nykytaiteen museon perustamisvuonna 1990 ilmestyi amerikkalaisen taidehistorioitsijan Douglas Crimpin pamfletti Museon raunioilla, jossa tämä pohti museon roolia ja vastuita, erityisesti nykytaiteen määrittelyssä ja ohjailussa.
47_Kiasma_MLR.jpg 48_leikkaus_MLR.jpg
Nykytaiteen museon rakennushanke lähti rivakasti käyntiin, lamasta oli etua. Kaupungin rakennuskoneistolta loppuivat työt, joten tehtiin sopimus, jonka mukaan valtio tilasi työn kaupungilta ja rakennuksen valmistuttua maksoi sen luovuttamalla museotalon arvoa vastaavan määrän rakennusmaata toisaalta.
Pohjoismaiden ja Baltian arkkitehdeille suunnattu suunnittelukilpailu käytiin 1993. Lisäksi oli kutsuttu mukaan neljä kansainvälisesti tunnettua arkkitehtiä. Ehdotuksia tuli 516, joista voittajaksi nousi yhdysvaltalaisen Steven Hollin[56] ehdotus Chiasma (silmistä aivoihin johtavien näköhermojen risteys).
Ehdotusta laatiessaan Holl kävi Helsingissä. Hän asui museotontin viereisen Vaakuna-hotellin ylimmässä kerroksessa, josta tutkiskeli tonttia ja sitä ympäröivää kaupunkinäkymää. Myöhemmin hän tutustui suomalaiseen rakennusperintöön kuten Petäjäveden kirkkoon. Rakennustyön käynnistyttyä suunnittelun Suomen tukikohtana toimi arkkitehti Juhani Pallasmaan toimisto.
49b_Kiasma_Sakari Kiuru MV 49_Kiasma_Tirri MV
Arkkitehtuurikilpailun voittajasta syntyi kohu. Arkkitehdit pitivät tonttia ahtaana ja rakennusta mahdottomana, koska sitä ei voisi muuttaa tai laajentaa, mikä oli ollut ihanne. Syytettiin myös amerikkalaisuuden palvonnasta. Kovin vastustus tuli Mannerheimin ratsastajapatsaan suojelijoiden taholta. Patsas jäi paikalleen, ja Holl otti sen huomioon etsiessään muotoa, joka nivoisi yhteen ristiriitaisetkin elementit tonttia ympäröivässä rakennus- ja puistomaisemassa. Rakennus valmistui 1998. Se huipensi 1900-luvun jälkipuolen museorakentamisen.
Kiasman viisi kerrosta ovat toisiinsa nähden hieman limittäin ja kaarevien seinäpintojen vuoksi eri suuruisia. Museotilaa on 9 100 m². Runko on terästä, ja betoni kaartuu kauniisti. Ulkoseinät ja katto on päällystetty sinkki-, alumiini-, messinki- ja lasilevyillä, sisäpuoli on valkoinen. Pohjakerroksen yleisötiloissa on myös puuta ja voimakkaita värejä. Rakennus on avoimen ja suljetun tilan yhdistelmä. Holl pitää taloaan avoimena, koska siellä on portaikkoja, hissejä ja oviaukkoja, jotka mahdollistavat vapaan liikkumisen. Sisään tullessa avautuu näkymä talon läpi, sekä päästä päähän, että alhaalta ylös valokattoon saakka.
Portaikon sijasta museoon noustaan kaarevaa ramppia pitkin. Sen molemmin puolin seinien takana on huoneesta huoneeseen kuljettavia näyttelysaleja, ylimpänä kattoikkunoin varustettu muita korkeampi sali. Luonnonvalon käyttö on Hollille tärkeää, sen vuoksi molemmissa päädyissä sekä länsisivulla on isot panoraamaikkunat. Näyttelysalien seinät ovat valkeat, lattiat tummanharmaata betonia. Tekniikka on upotettu, eikä arkkitehtonisia elementtejä ole korostettu. Tavoitteena on tila, jossa katsoja voi kohdata teoksen häiriöttä.
Lopputulos on paikkaansa sopeutuva talo, jonka kaartuva harmaa ulkokuori on kuin kotilo tai simpukka, joka suojelee helmenhohtoista sisältöään: ulkoa pieneltä vaikuttava rakennus avautuu sisääntulijalle juhlavan avarana. Valkoisen tarkoitus on pyhittää taide. Amerikkalainen arkkitehtuurintutkija Victoria Newhouse kirjoitti jo ennen Kiasman valmistumista kirjassaan Towards a New Museum näkevänsä Kiasman ”pyhänä tilana”.[57]
Museorakennuksen ikuisuuskysymyksiä
Museorakentamisen rinnalla on laaja kysymys: millaista historiakäsitystä museot ylläpitävät, kenen tarinoita kertovat. Vaikka museorakennukset muuttuvat, museorakentamisessa on edelleen ratkaistava samoja kysymyksiä. Halutaanko uudisrakennus vai korjataanko jokin vanha. Halutaanko luonnonrauhaan vai kaupungin ytimeen. Miten rakennus suhteutuu sisältöönsä, miten ympäristöönsä. Painotetaanko pysyvää näyttelyä vai vaihtuvaa ohjelmistoa. Onko näyttelykierto avoin vai suljettu ja miksi niin on. Mikä on luonnonvalon ja keinovalon suhde. Tehdäänkö temppeli vai toivotaanko toria.
Kirjoittaja
Filosofian tohtori, dosentti, tietokirjailija Marja-Liisa Rönkkö on toiminut eri tehtävissä lukuisissa museoissa, kuten museonjohtajana Helsingin kaupunginmuseossa 1978–1990 ja ylijohtajana Valtion taidemuseossa 1990–2000. Artikkeli perustuu tekijän väitöskirjaan Louvren ja Louisianan perilliset. Suomalainen taidemuseo sekä artikkeleihin teoksissa Museologia tänään ja Suomen museohistoria.
Artikkeli on julkaistu 2020.
Tanskalaisen Louisianan taidemuseon vaikutusta voi nähdä näyttelyrakennuksen paikanvalinnassa ja itse rakennuksessa. Tontti on loivassa rinteessä, joka avautuu merenlahdelle. Perikunnan edustajalla Ingjald Bäcksbackalla oli mielessään ripustussuunnitelma ja kokoelman vaatimat juoksumetrit, jotka sitten ”juostiin” maastossa arkkitehdin ja mittanauhan kanssa. Alvar Aalto -museota käytiin katsomassa. Intendentti Marja-Liisa Bell laski muiden tilojen tarpeen ja toimi neuvonantajana.
Kartanon lehtevään puistoon 1976 valmistunut valkoisella kahitiilellä verhottu rakennus (1 560 m²) on yksinkertainen. Sisäänkäynti on itäpäädyssä, jossa on avara klinkkerilattiainen aula kartanon puistoon avautuvine lasiseinineen. Aulaa oli mahdollista käyttää myös luentosalina. Näyttelytilat koostuvat viidestä suorakaiteen muotoisesta salista, jotka noudattavat huoneesta huoneeseen -mallia silmukkana, mistä muodostuu niin sanottu ”pakkokierto”. Ensimmäinen sali on suurin ja muita korkeampi. Kunkin salin keskivaiheilla on vastakkain lyhyet seinäkkeet, jotka jakavat ne ikään kuin kahteen pienempään huoneeseen.
Salien väliset ovet on sijoitettu kauas toisistaan, tukemaan johdonmukaista kiertoa. Saleihin päivänvaloa tulee kattoikkunoiden välityksellä seinänvieriä kiertävien valokuilujen kautta. Lattioita peitti aluksi sisalmatto ja seinät oli verhottu tärkätyllä juuttikankaalla, kuten taidegallerioissa oli tapana. Salien alla oli varasto ja ikkunallisia teknisiä tiloja.[37]
Tilat toimivat hyvin ja Meilahden museo oli pitkään kaupungin parhaita näyttelypaikkoja. Kahvilaa rakennukseen ei tullut, sitä varten korjattiin viereinen kartanon puinen päärakennus 1800-luvun alkupuolelta. Puistossa on ollut näytteillä veistoksia ja siellä on järjestetty taidetapahtumia, mutta suunniteltuja laajennuksia ei toteutettu.
Sara Hildénin 1979 avattu taidemuseo perustuu niin kotimaiselle kuin ulkomaiselle modernismille ja nykytaiteelle. Ensimmäiset teokset Hildén osti vuoden 1961 Ars-näyttelystä. Hän lahjoitti kokoelmansa nimeään kantavalle säätiölle, joka solmi 1975 sopimuksen Tampereen kaupungin kanssa uuden museon rakentamisesta ja teosten pysyvästä sijoittamisesta sinne. Kaupunki vastaa museon ylläpidosta ja säätiö kartuttaa kokoelmaa.
Paikkaa valittaessa Hildén mieltyi rakenteilla olleen Särkänniemen huvipuiston läheisyydessä sijainneen vanhan huvilan Näsijärvelle avautuvaan rinnetonttiin ja rakennusten jäännöksiin, jotka loivat perustan veistospuistolle. Tärkein lähtökohta oli juuri tämä paikka, jota voi luonnehtia jopa välimerelliseksi.
Tavoite oli sama kuin Helsingissä: rakentaa yksityiselle kokoelmalle ihanteelliset olosuhteet. Suunnittelijaksi valittiin tamperelaisen Pekka Ilveskosken arkkitehtitoimisto, joka konsultoi myös Meilahden taidemuseon suunnitellutta Tero Aaltosta. Paikan lisäksi lähtökohdiksi otettiin näyttelysalien tarkoituksenmukainen liittyminen toisiinsa sekä teoksille sopivan valaistuksen luominen. Maalaussalit ovat ikkunattomia, mutta tärkeitä näköalaikkunoita on salien liitoskohdissa. Arkkitehtuuriin suoraan vaikuttanut ero oli siinä, että nykytaiteen teokset ovat suurikokoisempia, väreiltään kirkkaampia, usein ääntä, valoa ja liikettä sisältäviä.
Hildén oli luonut kokoelmansa yhteistyössä Ateneumin asiantuntijoiden kanssa ja tutustunut matkoillaan keskeisiin eurooppalaisiin museoihin. Amerikkalaisia museoita puolestaan tunsi suunnittelussa mukana ollut Asko Rasinperä, joka oli opiskellut Yhdysvalloissa. Ulkomaisia rakennuksia, joihin on viitattu, ovat Nizzan lähelle 1964 valmistunut yksityinen nykytaiteen museo Fondation Maeght (Josep Lluis Sert), etenkin veistospuiston osalta, Berliinin Brücke-Museum (Werner Düttmann, 1967) sekä ”monoliittista ekspressionismia” edustava Emerson Museum of Art (I. M. Pei, Syracuse N. Y., 1968).
Kaksikerroksisen rakennuksen pohjakaava edustaa neliapila-tyyppiä (ydin ja satelliitit). Sisäänkäynti on suoraan toiseen kerrokseen, jossa on toimistosiipi, luentosali ja maalausgalleriat. Keskisalista laskeudutaan pohjakerroksen veistostiloihin, joissa on välitasanne, ja edelleen kahvioon ulkoterasseineen. Kaikki näyttelytilat ovat luonteeltaan avoimia ja niissä voi liikkua vapaasti, haluamassaan järjestyksessä. Alakerrassa on järven suuntaan, pohjoiseen ja länteen suuret ikkunaseinät.
_Oik.: Museon pohjakerrosta. Kuva: Hilkka Högström.
Ulkoseinät ovat vaalearouheista pesubetonia, sisällä kantavat seinät on jätetty betonivalun jälkeen käsittelemättä. Näyttelyseinät on verhottu valkeaksi maalatulla kangaspinnoitteella, ja tilojen jakamiseksi pienempiin osiin on käytössä ollut irtoseiniä. Lattiat ovat kivilaattaa. Rakennus oli valmistuessaan maan suurin taidemuseo (2 500 brm²).[38]
Satakunnan kulttuurihistoriallinen museo, Pori (1973)
Porissa avattiin Satakunnan museon uudisrakennus 1973. Samana vuonna valmistui Alvar Aalto -museo Jyväskylään. Satakunnan museo oli perustettu 1888. Kokoelmat oli kerännyt ja järjestänyt opettaja Matti Kauppinen, joka toimi aktiivisesti myös Museoliitossa sen perustamisesta lähtien. Vaihtuvissa vuokratiloissa majaillut museo oli saanut pysyvämmän sijan monenlaisessa käytössä kuluneesta, rapatusta ”Iltaman talosta” vuonna 1903.
Ajatusta oikeasta museorakennuksesta pidettiin yllä, ja kopin otti vuonna 1958 museonjohtajaksi valittu Unto Salo, museon ensimmäinen ammattilainen ja tuolloin myös Museoliiton puheenjohtaja. Ennen Turun arkeologian professoriksi siirtymistä hänen viimeiseksi tehtäväkseen jäi uuden museon tilaohjelman laatiminen.[39] Tontiksi osoitettiin pieni kolmiomainen puisto Hallituskadun päästä, jokirannan ja oluttehtaan välistä, ja suunnittelijaksi valittiin kaupunginarkkitehti Olaf Küttner. Suojelukiistaa tai kilpailua ei näin vaikeasta paikasta syntynyt.
Sisäänkäynti on etelästä, Hallituskadun puolelta, josta vaaleanharmaa pesubetonipintainen rakennus (4 603 brm²) näyttäytyy ajan tavan mukaan yksikerroksisena. Aulasta oikealla on toimistosiipi kadulle suuntautuvine ikkunariveineen ja luentosaleineen, vasemmalla yhtenäinen ikkunaton tilapäisnäyttelytila (400 m²) ja suoraan edessä kahvila, josta avautuvat pohjoispuolen ainoat ikkunat Jazzkadun (Eteläranta) yli joelle.[40] Toimistotilojen takana on perusnäyttelytilojen suuri kolmikerroksinen blokki, johon päivänvaloa saadaan kaikkien kerrosten läpi ulottuvan kulmikkaan valopihan kautta.
28b_Satakunnan museo_MLR 28_SatMsisältä_MLR.jpg
Alun perin vaaleahkoja avaria sisätiloja jäsentävät lehtereitä kannattelevat pylväät ja niitä yhdistävät umpilaitaiset betoniportaikot. Ruskeasävyisissä näyttelytiloissa oli ritiläkatot ja kokolattiamatot. Sisustuksen suunnitteli Tauno Kivinen.
Kokonaisvaikutelmaltaan museo on sukua Kalifornian Berkeley-yliopiston taidemuseolle (Mario J. Ciampi, 1970), ja Amsterdamin saman aikainen Van Gogh -museo (Gerrit Rietvelt, 1973) tunnettiin.[41]
Big Bang – museot haluavat uudistua
Vuoden 1970 tienoilla alkoi kehityskulku, jota museologisessa kirjallisuudessa kutsutaan alkuräjähdykseksi. Se lähti liikkeelle ekomuseo-ajatteluna, joka pyrki häivyttämään rajat museon ja sitä ympäröivän yhteisön väliltä. Painopiste haluttiin siirtää laitosajattelusta aktiviteetteihin, iskusanoina ”elävä museo” ja pontimena mahdollisuus vaikuttaa tulevaisuuteen. Tavoitteena oli asettaa museo laajaan sosiokulttuuriseen yhteyteen, jossa luonnontiede, historia, taide ja teknologia muodostaisivat kokonaisuuden.[42]
Tähän vaiheeseen sijoittuu Museoviraston perustaminen 1972 museoinstituution kokonaisvaltaiseksi kehittämiseksi. Suomen museoliitto oli itsenäistynyt 1957 muuttamalla Kansallismuseosta omiin tiloihin Cygnaeuksenkadulle.
Ammatillistuminen vauhdittui, näyttelyitä järjestettiin 1970-luvulla ennätyksellinen määrä sekä museoissa että ulkopuolisissa tiloissa, yleisömäärät moninkertaistuivat. Erityisesti alettiin ottaa huomioon lapset: ensimmäiset museolehtorit aloittivat Ateneumissa ja Kansallismuseossa 1970-luvun alkuvuosina.
Näyttelysuunnittelusta tuli museoissa kriittinen tekijä. Suomen museoliitto ryhtyi järjestämään kursseja tästä tematiikasta. Teknisistä kysymyksistä, kuten museoiden murto- ja paloturvallisuudesta, esineistön oikeista säilytysolosuhteista ja rakennusten suojelusta, tuotettiin ohjekirjoja ja suosituksia. Erikoismuseokenttä alkoi hahmottua. Aika oli kypsä laajemmalle keskustelulle museorakennuksista.[43]
Museoarkkitehtuuriseminaari 1979
Museoliitto järjesti museoarkkitehtuuriseminaarin 26.–27.11.1979 Espoon Hanasaaressa. Sen aiheuttivat Porin taidemuseon, Helsingissä Taideteollisuusmuseon (Designmuseo) ja Sinebrychoffin taidemuseon avaamiset sekä satavuotiaan Ateneumin lähestyvä korjaus. Siitä oli käynnistetty hankesuunnittelu 1978 (Laiho – Pulkkinen – Raunio, toteutus 1985–91).
Seminaariin osallistui 140 henkeä. Esiteltäväksi koottiin kaikki tieto ja kokemukset, mitä siihen mennessä oli saatu uudistiloista ja vanhojen rakennusten korjaamisesta. Museoasiainsihteeri Jorma Heinonen oli paneutunut niin museoarkkitehtuurin historiaan ja estetiikkaan kuin viimeisimpään tekniikkaankin.[44] Hän esitteli Aallon Tallinnan taidemuseon nerokkaana pitämänsä ehdotuksen. Parinkymmenen vuoden aikana valmistuneita museohankkeita esiteltiin esimerkein.
Alueellinen museoverkosto syntyy – 1980-luvulla liki 200 uutta museota
Valtioneuvosto teki 1979 päätöksen alueellisen museoverkoston muodostamisesta. Sitä koskeva valtionavustuslaki säädettiin 1988. Vuonna 1992 säädettiin Museolaki ja asetus, jonka piiriin pääsivät kaikki ammatillisesti hoidetut museot.[45] Laskennallisena pohjana olivat henkilötyövuodet. Lakiin lisättiin museoiden yhteiskunnallinen tehtävä 1996.
Maakuntamuseot ja aluetaidemuseot nimettiin suurimpien kaupunkien olemassa olevien museoiden pohjalta vuosina 1980–1995. Erikoismuseokenttää vahvistettiin vielä muutamilla museoilla, jotta kaikille tärkeiksi katsotuille osa-alueille saatiin oma vastuumuseonsa, jotka vahvistettiin 1993–2010.
Uusia museoita oli toisen maailmansodan jälkeen perustettu noin 15-20 museon vuosivauhtia. Lakipiste saavutettiin 1980-luvulla, jolloin museoita syntyi kaikkiaan liki 200. Kasvu oli samanlaista kansainvälisestikin. Sitten seurasi nopea lasku niin, että viimeisellä vuosikymmenellä ennen vuosituhannen vaihdetta museoita perustettiin meillä enää parikymmentä.
Arkkitehtuurissa Oulun kouluksi kutsuttu postmoderni suuntaus tavoitteli elämyksellisyyttä.
Kaupunginmuseoiden ja kotiseututalojen rinnalla ovat paikallismuseot. Niihin kuuluvat historiallisten henkilöiden, valtiomiesten, kulttuuripersoonien ja urheilijoiden museoidut kodit, paikkakunnalle luonteenomaisten ammattien ja ilmiöiden museot sekä yksittäisten keräilijöiden moninaiset kokoelmat ja kohteet.[46]
27_Ainola_WLM 27b_Yli_laurosela_MV
Museo vanhassa rakennuksessa
”Vanhat rakennukset museokäytössä” oli Museoliiton museoarkkitehtuuriseminaarissa 1979 toisen pääpuhujan, Teknillisen korkeakoulun arkkitehtuurihistorian professori Henrik Liliuksen teema. Lilius puolusti voimakkaasti alkuperäisiä rakenteita ja kritisoi historiallisten rakennusten sisätilojen uudistamista. Liliuksen mielestä uuden käytön tarpeet eivät saisi kokonaan ohittaa rakennuksen omaa historiaa, vaan näiden välille pitäisi etsiä tasapaino. Keskustelu jatkui vilkkaana Ateneum-rakennuksen korjauksen alkaessa ja uudistamisen edetessä (1985-91).[47]
29_Pori_MLR.jpg
Henrik Liliuksen seminaarialustuksen taustalla olivat seuraavat silloin ajankohtaiset museohankkeet:
- Brobergska Samskolanin (Gustaf Nyström, 1894 / Olli Borg, 1978) muutos Taideteollisuusmuseoksi,
- Sinebrychoffin patriisitalon (Jean Wik, 1842 / Sirkka-Liisa Tarumaa, 1979) muuttaminen taidemuseoksi,
- Porin pakka- ja vaakahuoneen (C. J. von Heideken, 1858 / Kristian Gullichsen, 1979) muutos Maire Gullichsenin taidekokoelman tiloiksi.
Museo teollisuusrakennuksessa
Luontevimmin museoiksi on taipunut teollisuusarkkitehtuuri. Teollisuusrakennusten houkuttavuuteen vaikuttavat niiden avarat, vapaasti muunneltavat hallitilat. Teollisuustuotannosta tyhjeneviä tehtaita on otettu museokäyttöön satakunta. 1900-luvun loppua kohti teollisuusrakennusten ja kokonaisten alueiden käyttö kulttuuritiloina vielä lisääntyi.
30_Vapriikki Tiia Monto WLM 2017
- Riihimäen kaupungin vuonna 1975 hankkima, lasitehtaan 1910-luvulla valmistunut rakennus, josta Tapio Wirkkala suunnitteli Suomen lasimuseon (näyttely 1 762 m²),
- Vuonna 1898 perustettu Suomen rautatiemuseo muutti Helsingin asemalta Hyvinkäälle 1973–74,
- 1969 perustettu Tekniikan museo asettui vuodesta 1970 lähtien Helsingin vesilaitoksen sata vuotta vanhoihin tiloihin Vantaanjoen suulle.
- Kaapelitehdas Helsingissä (W.G. Palmqvist, 1939–1954) on 1990-luvun alusta ollut kaupungin omistama kiinteistöyhtiö. Entisen Nokian kaapelitehtaan suurimman hallin (2 700 m²) itäpäähän muuttivat 1990-luvun alussa Suomen Valokuvataiteen museo (perustettu 1969), Teatterimuseo (perustettu 1962) ja Hotelli- ja ravintolamuseo (perustettu 1971) päällekkäisiin tiloihin, joiden museotilat viimeisteltiin 2000.
- Tampellan tiloissa avattiin 1996 Tampereen museokeskus Vapriikki (14 000 m²) lukuisine museoineen.
- Hämeenlinnan taidemuseon (perustettu 1952) viisi rakennusta sisältyvät Verkatehtaan (1895) kokonaisuuteen, joka oli pääosin oppilaitoskäytössä 1980- ja 90-luvuilla, kunnes se päätettiin suunnitella kokonaisuutena erilaisia kulttuuripalveluita varten 2001 (avaus 2007).
- Lapuan patruunatehtaan (perustettu 1923) tiloihin on 1990-luvulta lähtien kasvanut Kulttuurikeskus Vanha Paukku, jossa on muun muassa useita museoita kuten tehtaanmuseo (perustettu 1993), taidemuseo (perustettu 1998) ja Pyhälahden valokuvaamomuseo.
Taidemuseo kulttuurikeskuksessa - Kemi (1977), Tornio (1985) ja Kouvola (1987)
Joidenkin kaupunkien uusiin kulttuurikeskuksiin tehtiin tilat museolle. Kemin taidemuseo sai pysyvät tilat jo kulttuurikeskuksen ensimmäisessä rakennusvaiheessa 1977 (Arkkitehtitoimisto Jan Söderlund) ja lopullisen paikkansa 1990, kun koko kulttuurikeskus valmistui. Kemin vuonna 1947 alkunsa saanut taidemuseo oli ensimmäinen aluemuseokokeiluun osallistunut, ja siitä tuli maakunnallinen taidemuseo vuonna 1981 toiminta-alueenaan koko Lapin lääni.
Taidemuseon osuus kulttuurikeskuksesta on vajaa kymmenes. Nykytaiteelle soveltuvaa näyttelytilaa on 551 m². Suoraviivaista punatiilistä rakennuskokonaisuutta jäsentävät nauhaikkunat ja eri tilojen korkeuserot. Sisätilojen suoraviivaisuuden murtaa museon näyttelytilan ja kirjaston välinen diagonaalinen kantava seinä. Valmistuessaan rakennus tarjosi tilat kaupunginkirjastolle, kaupunginteatterille, kauppaoppilaitokselle ja työväenopistolle, joilla on torin puolelta yhteinen sisäänkäynti kahviloineen, ravintoloineen ja kaksine auditorioineen.[48]
37_Kemisali_MLR 37b_Kemi_MLR
Torniolainen kauppaneuvos Veli Aine toivoi, että hänen kotimaista 1800- ja 1900-luvun taidetta sisältävä taidekokoelmansa tulisi esiin kotikaupungissa. Ajankohdalle tyypilliseen tapaan pyrittiin taidemuseo perustamaan ”kulttuurikeskukseen veden äärelle”. Siinä maakuntamuseon, taidemuseon ja kirjaston tilatarpeet yhdistyisivät. Tuloksena oli päätös laajentaa maakuntamuseota omalla tontillaan ja rakentaa taidemuseolle sekä kirjastolle uusi yhteinen toimitalo.
Taidemuseon vuonna 1979 sovittu toimintamalli oli sama kuin Sara Hildénin museossa: kaupunki vastasi rakennuksesta ja museon ylläpidosta, Aineen Kuvataidesäätiö kokoelmien kartuttamisesta. Vuonna 1985 valmistunut, Rajakartanoksi nimetty talo nousi aiemmin tornitaloille kaavaillulle tontille. Arkkitehdiksi valittiin paikallinen Matti Porkka, joka suunnitteli myös maakuntamuseon laajennuksen. Porkka ei ollut suunnitellut museotiloja, mutta osallistui museoarkkitehtuuriseminaariin ja tutustui Helsingin kaupungin taidemuseoon, Sara Hildénin taidemuseoon ja Lapinlahden taidemuseoon (Esa Koivuniemi ja Georg Bystroff, 1977).
Torniossa Aineen museon ja kirjaston rinnakkaiset Torikadun suuntaiset tilat ovat suunnilleen samankokoiset. Rakennusmassat ovat kuitenkin toisiinsa nähden hieman vinottain ja kummallakin on oma luonteensa. Julkisivut on muurattu valkoisesta kahitiilestä. Sen päällä on ikkunatonta museonäyttelyaluetta korostava pystysuuntainen hiekanruskea marmoriharkotus, kirjaston ikkunoissa vastaavasti ritiläverhous. Yhteinen sisäänkäynti on rakennusten välissä toisessa kerroksessa, kahvila ja auditorio museon puolella. Museokäytössä on 1 576 m².
Sisäseinät ovat valkoiset, portaat ja käytävät on päällystetty Lapin louhemarmorilla, kahvila ja näyttelytilat sisal-laattamatolla. Näyttelysaleja on viisi, ja niihin Aine halusi Helsingin Meilahden taidemuseon tapaisen pakkokierron, jotta kaikki teokset tulisivat nähdyiksi. Ulkona oli tilaa veistospuistolle. Veli Aine sai toiveensa toteutumaan ja toimi museolautakunnan ensimmäisenä puheenjohtajana.[49]
38_Kouvola_MLR
Kouvola-talon (kilpailu: Erkki Valovirta, 1982) kotimaiselle nykytaiteelle omistettu museo perustettiin 1986 ja avattiin 1987 ”koulutus- ja kulttuurikeskuksessa”. Taidemuseon (1 000 m²) lisäksi siinä oli konserttisali sekä musiikkiopiston, kansalaisopiston ja taideharrastajien tiloja, samoin kaupungin toimistoja.
Puistomaisessa ympäristössä on hiekanvaalea kaksikerroksinen postmoderni rakennuskokonaisuus, yhteisen sisäänkäynnin ympärille rypälemäisesti kiertyvine pohjakaavoineen ja tummine aumakattoineen. Kaupunkien monitoimitaloissa tilojen käyttäjät voivat vaihtua, museo yleensä jää ja laajenee.[50]
Taide- ja kulttuurihistoriallinen museo, Saarijärvi (1989)
Saarijärven museo (Laila Niemioja / Heikki Uusitalo, 1989) avattiin 1989 saarijärveläisen kuvanveistäjä Kain Tapperin tuotantoa esittelevällä näyttelyllä. Ajatus museosta konkretisoitui, kun saarijärveläissyntyinen Toivi Järvinen määräsi testamentissaan 1982 omaisuutensa käytettäväksi taidemuseon rakentamiseen. Museoon koottiin yhteen Toivi ja Osmo Järvisen 1900-luvun alun kotimaisen taiteen kokoelma, Saarijärven kaupungin omistamat teokset ja Saarijärvi-seuran kulttuurihistoriallinen esineistö.
Vuonna 1948 perustettu Saarijärvi-seura vaali Saarijärven ja sen lähialueiden taiteilijoiden tuotantoa ja kulttuuriperintöä. Keskeisessä roolissa oli Tapperien kotitalo Juhola ja neljän taiteilijaveljeksen, kuvanveistäjä Kain Tapperin, kirjailijoiden Harri Tapperin ja Marko Tapion sekä lavastaja Yrjö Tapperin elämä ja tuotanto.[51]
Helsingissä työuransa tehneiden Toivi ja Osmo Järvisen omakotitalon tontille rakennettiin vaaleasta tiilestä puhtaaksi muurattu rakennus (1 150 m²). Saarijärven museonjohtaja Kari Kotilainen laati tilaohjelman, ja Jyväskylän museoiden kollegat työskentelivät rakennustoimikunnassa, joka osallistui Museoliiton Saksan-matkalle 1987. Frankfurtissa huomioitiin Main-joen molemmille rannoille nouseva vanhaa ja uutta arkkitehtuuria yhdistävä Museumsufer ja amerikkalaisarkkitehti Richard Meierin suunnittelema taideteollisuusmuseo.[52]
Saarijärvellä sisäänkäynti on suoraan näyttelykerrokseen, sen alapuolella ovat työ- ja varastotilat sekä sisääntulopäädyssä aulakahvio terasseineen. Muuta korkeampi keskiosa – ”valkoinen kuutio” – klinkkerilattioineen ja komeine järvinäkymineen – on tarkoitettu taiteelle ja erikoisnäyttelyille, itäpään matalampi ”musta kuutio” kulttuurihistoriallisille kokoelmille.[53]
34_Saarijärvi_MLR
Muita uusia museoita 1980- ja 1990-luvuilla
- Hyvinkään taidemuseo Jussintorin liikekeskuksessa (Ilmo ja Raimo Valjakka, 1981),
- Ahvenanmaan museot ja kaupunginkirjasto, Maarianhamina (Helmer Stenros, 1981),
- Skärgårdsmuseet i Lappo (Folke Wikström, 1981),
- Tampereen taidemuseon maanalainen näyttelytila (Antti Ilveskoski, 1984),
- Etelä-Karjalan museon sijoittaminen 1700-luvun linnoitukseen (Lappeenrannan kaupunki, 1984, 1989),
- Villa Gyllenbergin näyttelysiipi Helsingin Kuusisaaressa (Ålander Packalen Korsström, 1985),
- Rovaniemen taidemuseo postiautovarikkoon (Juhani Pallasmaa, 1986),
- Hiihtomuseo, Lahden Urheilukeskus (Esko Hämäläinen, 1989),
- Suomen metsästysmuseo muutti Porvoosta Riihimäelle (Osmo Lappo, 1990),
- Oulun taidemuseo liimatehtaan kiinteistöön (Birger Federley 1922, Jorma Teppo, 1991),
- Kalevala-talo, Talvisotamuseo, Kuhmo (Heikki Kukkonen 1991/1994),
- Mobilia auto- ja tiemuseo, Kangasala (Lindqvist & Uosukainen, 1992–94),
- Aboa Vetus & Ars Nova, Rettigin palatsin laajennus (Frank Schauman, 1995),
- Salon taidemuseo Veturitallin uudisosa (Lauri Hollmén, 1998).
39_Hyvinkää_MLR.jpg 42b_Lappeenranta Et karj museo WLM
40_Gberg_MLR 42_Lahden hiihtomuseo HHö
Tiedekeskus Heureka, Vantaa (1989) ja Arktinen instituutti Arktikum, Rovaniemi (1992)
Museoiden painopisteet ovat siirtyneet tutkimuksen suuntaan ammatillisuuden ja resurssien lisääntymisen myötä. Voitaneen jo puhua tiedemuseoista taidemuseoiden rinnalla.
Tiedekeskus Heurekan rakentaminen Vantaan Tikkurilaan oli 1980-luvun saavutus (kilpailu: Heikkinen ja Komonen, 1985). Säätiöpohjainen Heureka avattiin yleisölle 1989. Juuret ovat Helsingin yliopistossa, idean esittivät professorit Tapio Markkanen, Hannu I. Miettinen ja Heikki Oja. Kutsukirje oli lähtenyt Helsingin, Espoon ja Vantaan kaupungeille, joista Vantaa tarttui mahdollisuuteen tarjoten tontin ja merkittävää rahoitusta.
43_Heureka_MLR
Tiedekeskukset ovat museoiden rinnakkaisilmiö. Tieteen popularisointi, pedagoginen ote ja elämyksellisyys ovat yhteisiä tavoitteita, pääasiallisena erona se, ettei tiedekeskuksilla ole omia kokoelmia vartioitavanaan. Yleisötiloiltaan tiedekeskus muistuttaa avointa museota, uutuutena planetaario. Vapaus näkyy rakennuksen ulkoasussa, jota avaruusaiheineen voitaneen pitää uutta kokeilevan wau-arkkitehtuurin ensiesiintymisenä meillä.
44_Arktikum_MLR
Ajatus Arktisesta instituutista ja museosta virisi 1970-luvulla Oulussa ja Rovaniemellä. Konkreettinen aloite tuli Euroopan Kulttuurisäätiön Suomen osastolta. Vuosina 1983–84 järjestettiin arktisille maille suunnattu arkkitehtuurikilpailu, johon tuli 184 ehdotusta. Toteutus sidottiin Suomen itsenäisyyden 75-vuotisjuhlintaan, ja siitä kasvoi kansallinen hanke. Valtion talousarvioon varattiin varoja vuodelle 1988. Rovaniemen kaupunki tuli toiseksi maksajaksi ehdolla, että Aallon Lappia-talossa sijainnut maakuntamuseo sai keskuksesta uudet tilat.
Rakennus valmistui 1992, siinä toimivat näyttelyineen Lapin maakuntamuseo sekä Lapin yliopiston Arktinen keskus. Voittaneen tanskalaisen Claus Bonderupin työryhmän ehdotus on yhdistelmä klassisen museorakennuksen osia uudella tavalla yhdisteltynä. Valmiin rakennuksen julkisivu kaupunkiin päin muistuttaa temppelin päätyä pylväikköineen, oven takaa avautuu valkoiseksi maalattu kaksikerroksinen moderni hallimainen tila. Sen keskikäytävää kattaa lasinen galleria, joka valaistuna putkena jatkuu ulos ja Ounasjoen törmään upotettuna rantaan saakka.
1990-luvun viimeiset valtakunnalliset erikoismuseot – Lusto Savonlinnaan (1994), Siida Inariin (1998) ja Sarka Loimaalle (2005)
Uusiksi vastuumuseoiksi 1990-luvulla määriteltiin metsä-, saamelais- ja maatalousmuseo. Maan ensimmäiset kaupunkien museot olivat syntyneet 1800-luvulla rannikkokaupunkeihin. Sen jälkeen museoita rakennettiin myös sisämaahan niin, että kaupunkien museot ylsivät myös Keski- ja Itä-Suomeen, kunnes lopulta kotiseutu- ja pitäjänmuseoiden tiheä verkosto kattoi koko maan.
Pohjois-Suomi ja Lappi olivat olleet aktiivisia 1970-luvulta lähtien, erityisesti taidemuseoiden osalta. Yliopistojen lisäksi kaupungit kunnostautuivat: Oulun ja Rovaniemen kaupunginjohtajat Matti Rossi ja Matti Pelttari johtivat Suomen museoliiton hallitusta vuoron perään. Museot ja tiedekeskukset alkoivat hakeutua yhteen, kun viimeisiä valtakunnallisia museoita perustettiin. Niistä päätettäessä hajautuspolitiikka oli voimissaan, lisäksi valintaa tukivat matkailunäkökohdat.
45_Lusto_MLR 45a_Lusto_SLJe
Suomen metsämuseo Lusto Savonlinnan Punkaharjulla on metsäalan ja metsäkulttuurin erikoismuseo, joka avattiin tervalla ja pellavaöljyllä kyllästetyllä lehtikuusilaudalla vuoratussa betonirakennuksessa 1994. Vuonna 1988 perustettu säätiö järjesti yhdessä maa- ja metsätalousministeriön ja Punkaharjun kunnan kanssa avoimen arkkitehtuurikilpailun Suomalaisen metsätietokeskuksen rakentamiseksi vuonna 1990. Kokoelman painopiste on metsäkoneissa. Näyttelyt kertovat ihmisen ja metsän välisestä vuorovaikutuksesta.
Arkkitehtikilpailuun tuli 103 ehdotusta, ja voittaneet arkkitehdit Rainer Mahlamäki ja Ilmari Lahdelma suunnittelivat ”suomalaista modernismia” edustavan rakennuksen metsämaisemaan. Harjulta museon sisäänkäynnille johtaa katettu silta. Päänäyttely on museon pyöreässä osassa, jonka kalusteet ovat kiinteä osa arkkitehtuuria. Nimi Lusto tulee näyttelytilan (1 500 m²) muodosta ja merkitsee puun vuosikasvua, mutta siinä voi nähdä muistuman antiikin pyörötemppelistä.
46_Siida Nemo bis WLM 46a_Siida Nemo bis WLM
Saamelaismuseo oli perustettu ulkomuseona Inariin 1959. Jonkin aikaa sen jälkeen oli julistettu suunnittelukilpailu Oulun yliopiston arkkitehtiosaston opiskelijoille. Voittaja valittiin jatkokehittelyn pohjaksi, mutta asia hautautui ja herätettiin henkiin 1984. Hanke alkoi rahoituksen puolesta toteutua, kun museoon yhdistettiin Metsähallituksen Ylä-Lapin luontokeskus. Juhani Pallasmaan suunnittelema näyttelyrakennus Siida (merkitsee saamelaiskylää) valmistui metsäiseen rinteeseen museoalueen reunassa olleen sorakuopan paikalle vuonna 1998.
Sisäänkäynti on pohjakerroksessa, josta pääkerrokseen noustaan loivaa ramppia pitkin. Rakennus on istutettu ”pienipiirteiseen maisemaan” sen muotoja seuraten. Runko on teräsbetonia ja terästä, julkisivut puuta. Rakennuksen keskelle on koko pituudelta avattu ”luonnonvalorailo”.
Rakennussuunnittelu tapahtui rinnakkain näyttelysuunnittelun kanssa. Johdantonäyttely esittelee pohjoisen luonnon ja kulttuurin kehitysvaiheita jääkaudesta tähän päivään. Näyttelytilat ovat yönsinisiä, muut tilat yleisväritykseltään valkoisia. Museosta tuli kokonaistaideteos, jossa tavoitteena oli ”yhdistää tieteellinen sisältö teatterin tai taidenäyttelyn kaltaiseen elämyksellisyyteen”. Esineiden ja kuvien taustalla on eri vuodenaikoja ja luonnontapahtumia kuvaava äänimaisema.[54]
Suomen maatalousmuseo Sarka Loimaalla on viimeinen 1990-luvulla alkunsa saanut erikoismuseo. Suomen maatalouskonemuseosäätiö perustettiin 1992. ”Suomalaisen maatalouden 3000-vuotisen tarinan” kertova museo avattiin 2005 (arkkitehti Sarlotta Narjus).
Uudelle vuosituhannelle siirryttyä järjestettiin arkkitehtuurikilpailu Kotkan Merikeskus Vellamosta vuonna 2004 ja rakennus avattiin 2008 (Arkkitehtitoimisto Lahdelma & Mahlamäki Oy).[55]
Nykytaiteen museo Kiasma, Helsinki (1998)
Keskustelu museoarkkitehtuurista alkoi 1960-luvun vaihteessa Helsingin keskustasuunnitelmasta. Siihen oli merkitty paikka museolle, ja tänne uusi rakennus liki 40 vuotta myöhemmin nousikin. Nykytaiteen museon perustamisvuonna 1990 ilmestyi amerikkalaisen taidehistorioitsijan Douglas Crimpin pamfletti Museon raunioilla, jossa tämä pohti museon roolia ja vastuita, erityisesti nykytaiteen määrittelyssä ja ohjailussa.
47_Kiasma_MLR.jpg 48_leikkaus_MLR.jpg
Nykytaiteen museon rakennushanke lähti rivakasti käyntiin, lamasta oli etua. Kaupungin rakennuskoneistolta loppuivat työt, joten tehtiin sopimus, jonka mukaan valtio tilasi työn kaupungilta ja rakennuksen valmistuttua maksoi sen luovuttamalla museotalon arvoa vastaavan määrän rakennusmaata toisaalta.
Pohjoismaiden ja Baltian arkkitehdeille suunnattu suunnittelukilpailu käytiin 1993. Lisäksi oli kutsuttu mukaan neljä kansainvälisesti tunnettua arkkitehtiä. Ehdotuksia tuli 516, joista voittajaksi nousi yhdysvaltalaisen Steven Hollin[56] ehdotus Chiasma (silmistä aivoihin johtavien näköhermojen risteys).
Ehdotusta laatiessaan Holl kävi Helsingissä. Hän asui museotontin viereisen Vaakuna-hotellin ylimmässä kerroksessa, josta tutkiskeli tonttia ja sitä ympäröivää kaupunkinäkymää. Myöhemmin hän tutustui suomalaiseen rakennusperintöön kuten Petäjäveden kirkkoon. Rakennustyön käynnistyttyä suunnittelun Suomen tukikohtana toimi arkkitehti Juhani Pallasmaan toimisto.
49b_Kiasma_Sakari Kiuru MV 49_Kiasma_Tirri MV
Arkkitehtuurikilpailun voittajasta syntyi kohu. Arkkitehdit pitivät tonttia ahtaana ja rakennusta mahdottomana, koska sitä ei voisi muuttaa tai laajentaa, mikä oli ollut ihanne. Syytettiin myös amerikkalaisuuden palvonnasta. Kovin vastustus tuli Mannerheimin ratsastajapatsaan suojelijoiden taholta. Patsas jäi paikalleen, ja Holl otti sen huomioon etsiessään muotoa, joka nivoisi yhteen ristiriitaisetkin elementit tonttia ympäröivässä rakennus- ja puistomaisemassa. Rakennus valmistui 1998. Se huipensi 1900-luvun jälkipuolen museorakentamisen.
Kiasman viisi kerrosta ovat toisiinsa nähden hieman limittäin ja kaarevien seinäpintojen vuoksi eri suuruisia. Museotilaa on 9 100 m². Runko on terästä, ja betoni kaartuu kauniisti. Ulkoseinät ja katto on päällystetty sinkki-, alumiini-, messinki- ja lasilevyillä, sisäpuoli on valkoinen. Pohjakerroksen yleisötiloissa on myös puuta ja voimakkaita värejä. Rakennus on avoimen ja suljetun tilan yhdistelmä. Holl pitää taloaan avoimena, koska siellä on portaikkoja, hissejä ja oviaukkoja, jotka mahdollistavat vapaan liikkumisen. Sisään tullessa avautuu näkymä talon läpi, sekä päästä päähän, että alhaalta ylös valokattoon saakka.
Portaikon sijasta museoon noustaan kaarevaa ramppia pitkin. Sen molemmin puolin seinien takana on huoneesta huoneeseen kuljettavia näyttelysaleja, ylimpänä kattoikkunoin varustettu muita korkeampi sali. Luonnonvalon käyttö on Hollille tärkeää, sen vuoksi molemmissa päädyissä sekä länsisivulla on isot panoraamaikkunat. Näyttelysalien seinät ovat valkeat, lattiat tummanharmaata betonia. Tekniikka on upotettu, eikä arkkitehtonisia elementtejä ole korostettu. Tavoitteena on tila, jossa katsoja voi kohdata teoksen häiriöttä.
Lopputulos on paikkaansa sopeutuva talo, jonka kaartuva harmaa ulkokuori on kuin kotilo tai simpukka, joka suojelee helmenhohtoista sisältöään: ulkoa pieneltä vaikuttava rakennus avautuu sisääntulijalle juhlavan avarana. Valkoisen tarkoitus on pyhittää taide. Amerikkalainen arkkitehtuurintutkija Victoria Newhouse kirjoitti jo ennen Kiasman valmistumista kirjassaan Towards a New Museum näkevänsä Kiasman ”pyhänä tilana”.[57]
Museorakennuksen ikuisuuskysymyksiä
Museorakentamisen rinnalla on laaja kysymys: millaista historiakäsitystä museot ylläpitävät, kenen tarinoita kertovat. Vaikka museorakennukset muuttuvat, museorakentamisessa on edelleen ratkaistava samoja kysymyksiä. Halutaanko uudisrakennus vai korjataanko jokin vanha. Halutaanko luonnonrauhaan vai kaupungin ytimeen. Miten rakennus suhteutuu sisältöönsä, miten ympäristöönsä. Painotetaanko pysyvää näyttelyä vai vaihtuvaa ohjelmistoa. Onko näyttelykierto avoin vai suljettu ja miksi niin on. Mikä on luonnonvalon ja keinovalon suhde. Tehdäänkö temppeli vai toivotaanko toria.
Kirjoittaja
Filosofian tohtori, dosentti, tietokirjailija Marja-Liisa Rönkkö on toiminut eri tehtävissä lukuisissa museoissa, kuten museonjohtajana Helsingin kaupunginmuseossa 1978–1990 ja ylijohtajana Valtion taidemuseossa 1990–2000. Artikkeli perustuu tekijän väitöskirjaan Louvren ja Louisianan perilliset. Suomalainen taidemuseo sekä artikkeleihin teoksissa Museologia tänään ja Suomen museohistoria.
Artikkeli on julkaistu 2020.
Alun perin vaaleahkoja avaria sisätiloja jäsentävät lehtereitä kannattelevat pylväät ja niitä yhdistävät umpilaitaiset betoniportaikot. Ruskeasävyisissä näyttelytiloissa oli ritiläkatot ja kokolattiamatot. Sisustuksen suunnitteli Tauno Kivinen.
Kokonaisvaikutelmaltaan museo on sukua Kalifornian Berkeley-yliopiston taidemuseolle (Mario J. Ciampi, 1970), ja Amsterdamin saman aikainen Van Gogh -museo (Gerrit Rietvelt, 1973) tunnettiin.[41]
Big Bang – museot haluavat uudistua
Vuoden 1970 tienoilla alkoi kehityskulku, jota museologisessa kirjallisuudessa kutsutaan alkuräjähdykseksi. Se lähti liikkeelle ekomuseo-ajatteluna, joka pyrki häivyttämään rajat museon ja sitä ympäröivän yhteisön väliltä. Painopiste haluttiin siirtää laitosajattelusta aktiviteetteihin, iskusanoina ”elävä museo” ja pontimena mahdollisuus vaikuttaa tulevaisuuteen. Tavoitteena oli asettaa museo laajaan sosiokulttuuriseen yhteyteen, jossa luonnontiede, historia, taide ja teknologia muodostaisivat kokonaisuuden.[42]
Tähän vaiheeseen sijoittuu Museoviraston perustaminen 1972 museoinstituution kokonaisvaltaiseksi kehittämiseksi. Suomen museoliitto oli itsenäistynyt 1957 muuttamalla Kansallismuseosta omiin tiloihin Cygnaeuksenkadulle.
Ammatillistuminen vauhdittui, näyttelyitä järjestettiin 1970-luvulla ennätyksellinen määrä sekä museoissa että ulkopuolisissa tiloissa, yleisömäärät moninkertaistuivat. Erityisesti alettiin ottaa huomioon lapset: ensimmäiset museolehtorit aloittivat Ateneumissa ja Kansallismuseossa 1970-luvun alkuvuosina.
Näyttelysuunnittelusta tuli museoissa kriittinen tekijä. Suomen museoliitto ryhtyi järjestämään kursseja tästä tematiikasta. Teknisistä kysymyksistä, kuten museoiden murto- ja paloturvallisuudesta, esineistön oikeista säilytysolosuhteista ja rakennusten suojelusta, tuotettiin ohjekirjoja ja suosituksia. Erikoismuseokenttä alkoi hahmottua. Aika oli kypsä laajemmalle keskustelulle museorakennuksista.[43]
Museoarkkitehtuuriseminaari 1979
Museoliitto järjesti museoarkkitehtuuriseminaarin 26.–27.11.1979 Espoon Hanasaaressa. Sen aiheuttivat Porin taidemuseon, Helsingissä Taideteollisuusmuseon (Designmuseo) ja Sinebrychoffin taidemuseon avaamiset sekä satavuotiaan Ateneumin lähestyvä korjaus. Siitä oli käynnistetty hankesuunnittelu 1978 (Laiho – Pulkkinen – Raunio, toteutus 1985–91).
Seminaariin osallistui 140 henkeä. Esiteltäväksi koottiin kaikki tieto ja kokemukset, mitä siihen mennessä oli saatu uudistiloista ja vanhojen rakennusten korjaamisesta. Museoasiainsihteeri Jorma Heinonen oli paneutunut niin museoarkkitehtuurin historiaan ja estetiikkaan kuin viimeisimpään tekniikkaankin.[44] Hän esitteli Aallon Tallinnan taidemuseon nerokkaana pitämänsä ehdotuksen. Parinkymmenen vuoden aikana valmistuneita museohankkeita esiteltiin esimerkein.
Alueellinen museoverkosto syntyy – 1980-luvulla liki 200 uutta museota
Valtioneuvosto teki 1979 päätöksen alueellisen museoverkoston muodostamisesta. Sitä koskeva valtionavustuslaki säädettiin 1988. Vuonna 1992 säädettiin Museolaki ja asetus, jonka piiriin pääsivät kaikki ammatillisesti hoidetut museot.[45] Laskennallisena pohjana olivat henkilötyövuodet. Lakiin lisättiin museoiden yhteiskunnallinen tehtävä 1996.
Maakuntamuseot ja aluetaidemuseot nimettiin suurimpien kaupunkien olemassa olevien museoiden pohjalta vuosina 1980–1995. Erikoismuseokenttää vahvistettiin vielä muutamilla museoilla, jotta kaikille tärkeiksi katsotuille osa-alueille saatiin oma vastuumuseonsa, jotka vahvistettiin 1993–2010.
Uusia museoita oli toisen maailmansodan jälkeen perustettu noin 15-20 museon vuosivauhtia. Lakipiste saavutettiin 1980-luvulla, jolloin museoita syntyi kaikkiaan liki 200. Kasvu oli samanlaista kansainvälisestikin. Sitten seurasi nopea lasku niin, että viimeisellä vuosikymmenellä ennen vuosituhannen vaihdetta museoita perustettiin meillä enää parikymmentä.
Arkkitehtuurissa Oulun kouluksi kutsuttu postmoderni suuntaus tavoitteli elämyksellisyyttä.
Kaupunginmuseoiden ja kotiseututalojen rinnalla ovat paikallismuseot. Niihin kuuluvat historiallisten henkilöiden, valtiomiesten, kulttuuripersoonien ja urheilijoiden museoidut kodit, paikkakunnalle luonteenomaisten ammattien ja ilmiöiden museot sekä yksittäisten keräilijöiden moninaiset kokoelmat ja kohteet.[46]
_Oik.: Yli-Lauroselan talonpoikaistila Ilmajoella avattiin eteläpohjalaista rakennustapaa esittelevänä museona 1978. Päärakennuksen (1848) kamarin hirsiseinällä on esillä huoneen tapettikerrokset eri aikakausilta. Kuva: Soile Tirilä, Museovirasto.
Museo vanhassa rakennuksessa
”Vanhat rakennukset museokäytössä” oli Museoliiton museoarkkitehtuuriseminaarissa 1979 toisen pääpuhujan, Teknillisen korkeakoulun arkkitehtuurihistorian professori Henrik Liliuksen teema. Lilius puolusti voimakkaasti alkuperäisiä rakenteita ja kritisoi historiallisten rakennusten sisätilojen uudistamista. Liliuksen mielestä uuden käytön tarpeet eivät saisi kokonaan ohittaa rakennuksen omaa historiaa, vaan näiden välille pitäisi etsiä tasapaino. Keskustelu jatkui vilkkaana Ateneum-rakennuksen korjauksen alkaessa ja uudistamisen edetessä (1985-91).[47]
Henrik Liliuksen seminaarialustuksen taustalla olivat seuraavat silloin ajankohtaiset museohankkeet:
- Brobergska Samskolanin (Gustaf Nyström, 1894 / Olli Borg, 1978) muutos Taideteollisuusmuseoksi,
- Sinebrychoffin patriisitalon (Jean Wik, 1842 / Sirkka-Liisa Tarumaa, 1979) muuttaminen taidemuseoksi,
- Porin pakka- ja vaakahuoneen (C. J. von Heideken, 1858 / Kristian Gullichsen, 1979) muutos Maire Gullichsenin taidekokoelman tiloiksi.
Museo teollisuusrakennuksessa
Luontevimmin museoiksi on taipunut teollisuusarkkitehtuuri. Teollisuusrakennusten houkuttavuuteen vaikuttavat niiden avarat, vapaasti muunneltavat hallitilat. Teollisuustuotannosta tyhjeneviä tehtaita on otettu museokäyttöön satakunta. 1900-luvun loppua kohti teollisuusrakennusten ja kokonaisten alueiden käyttö kulttuuritiloina vielä lisääntyi.
30_Vapriikki Tiia Monto WLM 2017
- Riihimäen kaupungin vuonna 1975 hankkima, lasitehtaan 1910-luvulla valmistunut rakennus, josta Tapio Wirkkala suunnitteli Suomen lasimuseon (näyttely 1 762 m²),
- Vuonna 1898 perustettu Suomen rautatiemuseo muutti Helsingin asemalta Hyvinkäälle 1973–74,
- 1969 perustettu Tekniikan museo asettui vuodesta 1970 lähtien Helsingin vesilaitoksen sata vuotta vanhoihin tiloihin Vantaanjoen suulle.
- Kaapelitehdas Helsingissä (W.G. Palmqvist, 1939–1954) on 1990-luvun alusta ollut kaupungin omistama kiinteistöyhtiö. Entisen Nokian kaapelitehtaan suurimman hallin (2 700 m²) itäpäähän muuttivat 1990-luvun alussa Suomen Valokuvataiteen museo (perustettu 1969), Teatterimuseo (perustettu 1962) ja Hotelli- ja ravintolamuseo (perustettu 1971) päällekkäisiin tiloihin, joiden museotilat viimeisteltiin 2000.
- Tampellan tiloissa avattiin 1996 Tampereen museokeskus Vapriikki (14 000 m²) lukuisine museoineen.
- Hämeenlinnan taidemuseon (perustettu 1952) viisi rakennusta sisältyvät Verkatehtaan (1895) kokonaisuuteen, joka oli pääosin oppilaitoskäytössä 1980- ja 90-luvuilla, kunnes se päätettiin suunnitella kokonaisuutena erilaisia kulttuuripalveluita varten 2001 (avaus 2007).
- Lapuan patruunatehtaan (perustettu 1923) tiloihin on 1990-luvulta lähtien kasvanut Kulttuurikeskus Vanha Paukku, jossa on muun muassa useita museoita kuten tehtaanmuseo (perustettu 1993), taidemuseo (perustettu 1998) ja Pyhälahden valokuvaamomuseo.
Taidemuseo kulttuurikeskuksessa - Kemi (1977), Tornio (1985) ja Kouvola (1987)
Joidenkin kaupunkien uusiin kulttuurikeskuksiin tehtiin tilat museolle. Kemin taidemuseo sai pysyvät tilat jo kulttuurikeskuksen ensimmäisessä rakennusvaiheessa 1977 (Arkkitehtitoimisto Jan Söderlund) ja lopullisen paikkansa 1990, kun koko kulttuurikeskus valmistui. Kemin vuonna 1947 alkunsa saanut taidemuseo oli ensimmäinen aluemuseokokeiluun osallistunut, ja siitä tuli maakunnallinen taidemuseo vuonna 1981 toiminta-alueenaan koko Lapin lääni.
Taidemuseon osuus kulttuurikeskuksesta on vajaa kymmenes. Nykytaiteelle soveltuvaa näyttelytilaa on 551 m². Suoraviivaista punatiilistä rakennuskokonaisuutta jäsentävät nauhaikkunat ja eri tilojen korkeuserot. Sisätilojen suoraviivaisuuden murtaa museon näyttelytilan ja kirjaston välinen diagonaalinen kantava seinä. Valmistuessaan rakennus tarjosi tilat kaupunginkirjastolle, kaupunginteatterille, kauppaoppilaitokselle ja työväenopistolle, joilla on torin puolelta yhteinen sisäänkäynti kahviloineen, ravintoloineen ja kaksine auditorioineen.[48]
37_Kemisali_MLR 37b_Kemi_MLR
Torniolainen kauppaneuvos Veli Aine toivoi, että hänen kotimaista 1800- ja 1900-luvun taidetta sisältävä taidekokoelmansa tulisi esiin kotikaupungissa. Ajankohdalle tyypilliseen tapaan pyrittiin taidemuseo perustamaan ”kulttuurikeskukseen veden äärelle”. Siinä maakuntamuseon, taidemuseon ja kirjaston tilatarpeet yhdistyisivät. Tuloksena oli päätös laajentaa maakuntamuseota omalla tontillaan ja rakentaa taidemuseolle sekä kirjastolle uusi yhteinen toimitalo.
Taidemuseon vuonna 1979 sovittu toimintamalli oli sama kuin Sara Hildénin museossa: kaupunki vastasi rakennuksesta ja museon ylläpidosta, Aineen Kuvataidesäätiö kokoelmien kartuttamisesta. Vuonna 1985 valmistunut, Rajakartanoksi nimetty talo nousi aiemmin tornitaloille kaavaillulle tontille. Arkkitehdiksi valittiin paikallinen Matti Porkka, joka suunnitteli myös maakuntamuseon laajennuksen. Porkka ei ollut suunnitellut museotiloja, mutta osallistui museoarkkitehtuuriseminaariin ja tutustui Helsingin kaupungin taidemuseoon, Sara Hildénin taidemuseoon ja Lapinlahden taidemuseoon (Esa Koivuniemi ja Georg Bystroff, 1977).
Torniossa Aineen museon ja kirjaston rinnakkaiset Torikadun suuntaiset tilat ovat suunnilleen samankokoiset. Rakennusmassat ovat kuitenkin toisiinsa nähden hieman vinottain ja kummallakin on oma luonteensa. Julkisivut on muurattu valkoisesta kahitiilestä. Sen päällä on ikkunatonta museonäyttelyaluetta korostava pystysuuntainen hiekanruskea marmoriharkotus, kirjaston ikkunoissa vastaavasti ritiläverhous. Yhteinen sisäänkäynti on rakennusten välissä toisessa kerroksessa, kahvila ja auditorio museon puolella. Museokäytössä on 1 576 m².
Sisäseinät ovat valkoiset, portaat ja käytävät on päällystetty Lapin louhemarmorilla, kahvila ja näyttelytilat sisal-laattamatolla. Näyttelysaleja on viisi, ja niihin Aine halusi Helsingin Meilahden taidemuseon tapaisen pakkokierron, jotta kaikki teokset tulisivat nähdyiksi. Ulkona oli tilaa veistospuistolle. Veli Aine sai toiveensa toteutumaan ja toimi museolautakunnan ensimmäisenä puheenjohtajana.[49]
38_Kouvola_MLR
Kouvola-talon (kilpailu: Erkki Valovirta, 1982) kotimaiselle nykytaiteelle omistettu museo perustettiin 1986 ja avattiin 1987 ”koulutus- ja kulttuurikeskuksessa”. Taidemuseon (1 000 m²) lisäksi siinä oli konserttisali sekä musiikkiopiston, kansalaisopiston ja taideharrastajien tiloja, samoin kaupungin toimistoja.
Puistomaisessa ympäristössä on hiekanvaalea kaksikerroksinen postmoderni rakennuskokonaisuus, yhteisen sisäänkäynnin ympärille rypälemäisesti kiertyvine pohjakaavoineen ja tummine aumakattoineen. Kaupunkien monitoimitaloissa tilojen käyttäjät voivat vaihtua, museo yleensä jää ja laajenee.[50]
Taide- ja kulttuurihistoriallinen museo, Saarijärvi (1989)
Saarijärven museo (Laila Niemioja / Heikki Uusitalo, 1989) avattiin 1989 saarijärveläisen kuvanveistäjä Kain Tapperin tuotantoa esittelevällä näyttelyllä. Ajatus museosta konkretisoitui, kun saarijärveläissyntyinen Toivi Järvinen määräsi testamentissaan 1982 omaisuutensa käytettäväksi taidemuseon rakentamiseen. Museoon koottiin yhteen Toivi ja Osmo Järvisen 1900-luvun alun kotimaisen taiteen kokoelma, Saarijärven kaupungin omistamat teokset ja Saarijärvi-seuran kulttuurihistoriallinen esineistö.
Vuonna 1948 perustettu Saarijärvi-seura vaali Saarijärven ja sen lähialueiden taiteilijoiden tuotantoa ja kulttuuriperintöä. Keskeisessä roolissa oli Tapperien kotitalo Juhola ja neljän taiteilijaveljeksen, kuvanveistäjä Kain Tapperin, kirjailijoiden Harri Tapperin ja Marko Tapion sekä lavastaja Yrjö Tapperin elämä ja tuotanto.[51]
Helsingissä työuransa tehneiden Toivi ja Osmo Järvisen omakotitalon tontille rakennettiin vaaleasta tiilestä puhtaaksi muurattu rakennus (1 150 m²). Saarijärven museonjohtaja Kari Kotilainen laati tilaohjelman, ja Jyväskylän museoiden kollegat työskentelivät rakennustoimikunnassa, joka osallistui Museoliiton Saksan-matkalle 1987. Frankfurtissa huomioitiin Main-joen molemmille rannoille nouseva vanhaa ja uutta arkkitehtuuria yhdistävä Museumsufer ja amerikkalaisarkkitehti Richard Meierin suunnittelema taideteollisuusmuseo.[52]
Saarijärvellä sisäänkäynti on suoraan näyttelykerrokseen, sen alapuolella ovat työ- ja varastotilat sekä sisääntulopäädyssä aulakahvio terasseineen. Muuta korkeampi keskiosa – ”valkoinen kuutio” – klinkkerilattioineen ja komeine järvinäkymineen – on tarkoitettu taiteelle ja erikoisnäyttelyille, itäpään matalampi ”musta kuutio” kulttuurihistoriallisille kokoelmille.[53]
34_Saarijärvi_MLR
Muita uusia museoita 1980- ja 1990-luvuilla
- Hyvinkään taidemuseo Jussintorin liikekeskuksessa (Ilmo ja Raimo Valjakka, 1981),
- Ahvenanmaan museot ja kaupunginkirjasto, Maarianhamina (Helmer Stenros, 1981),
- Skärgårdsmuseet i Lappo (Folke Wikström, 1981),
- Tampereen taidemuseon maanalainen näyttelytila (Antti Ilveskoski, 1984),
- Etelä-Karjalan museon sijoittaminen 1700-luvun linnoitukseen (Lappeenrannan kaupunki, 1984, 1989),
- Villa Gyllenbergin näyttelysiipi Helsingin Kuusisaaressa (Ålander Packalen Korsström, 1985),
- Rovaniemen taidemuseo postiautovarikkoon (Juhani Pallasmaa, 1986),
- Hiihtomuseo, Lahden Urheilukeskus (Esko Hämäläinen, 1989),
- Suomen metsästysmuseo muutti Porvoosta Riihimäelle (Osmo Lappo, 1990),
- Oulun taidemuseo liimatehtaan kiinteistöön (Birger Federley 1922, Jorma Teppo, 1991),
- Kalevala-talo, Talvisotamuseo, Kuhmo (Heikki Kukkonen 1991/1994),
- Mobilia auto- ja tiemuseo, Kangasala (Lindqvist & Uosukainen, 1992–94),
- Aboa Vetus & Ars Nova, Rettigin palatsin laajennus (Frank Schauman, 1995),
- Salon taidemuseo Veturitallin uudisosa (Lauri Hollmén, 1998).
39_Hyvinkää_MLR.jpg 42b_Lappeenranta Et karj museo WLM
40_Gberg_MLR 42_Lahden hiihtomuseo HHö
Tiedekeskus Heureka, Vantaa (1989) ja Arktinen instituutti Arktikum, Rovaniemi (1992)
Museoiden painopisteet ovat siirtyneet tutkimuksen suuntaan ammatillisuuden ja resurssien lisääntymisen myötä. Voitaneen jo puhua tiedemuseoista taidemuseoiden rinnalla.
Tiedekeskus Heurekan rakentaminen Vantaan Tikkurilaan oli 1980-luvun saavutus (kilpailu: Heikkinen ja Komonen, 1985). Säätiöpohjainen Heureka avattiin yleisölle 1989. Juuret ovat Helsingin yliopistossa, idean esittivät professorit Tapio Markkanen, Hannu I. Miettinen ja Heikki Oja. Kutsukirje oli lähtenyt Helsingin, Espoon ja Vantaan kaupungeille, joista Vantaa tarttui mahdollisuuteen tarjoten tontin ja merkittävää rahoitusta.
43_Heureka_MLR
Tiedekeskukset ovat museoiden rinnakkaisilmiö. Tieteen popularisointi, pedagoginen ote ja elämyksellisyys ovat yhteisiä tavoitteita, pääasiallisena erona se, ettei tiedekeskuksilla ole omia kokoelmia vartioitavanaan. Yleisötiloiltaan tiedekeskus muistuttaa avointa museota, uutuutena planetaario. Vapaus näkyy rakennuksen ulkoasussa, jota avaruusaiheineen voitaneen pitää uutta kokeilevan wau-arkkitehtuurin ensiesiintymisenä meillä.
44_Arktikum_MLR
Ajatus Arktisesta instituutista ja museosta virisi 1970-luvulla Oulussa ja Rovaniemellä. Konkreettinen aloite tuli Euroopan Kulttuurisäätiön Suomen osastolta. Vuosina 1983–84 järjestettiin arktisille maille suunnattu arkkitehtuurikilpailu, johon tuli 184 ehdotusta. Toteutus sidottiin Suomen itsenäisyyden 75-vuotisjuhlintaan, ja siitä kasvoi kansallinen hanke. Valtion talousarvioon varattiin varoja vuodelle 1988. Rovaniemen kaupunki tuli toiseksi maksajaksi ehdolla, että Aallon Lappia-talossa sijainnut maakuntamuseo sai keskuksesta uudet tilat.
Rakennus valmistui 1992, siinä toimivat näyttelyineen Lapin maakuntamuseo sekä Lapin yliopiston Arktinen keskus. Voittaneen tanskalaisen Claus Bonderupin työryhmän ehdotus on yhdistelmä klassisen museorakennuksen osia uudella tavalla yhdisteltynä. Valmiin rakennuksen julkisivu kaupunkiin päin muistuttaa temppelin päätyä pylväikköineen, oven takaa avautuu valkoiseksi maalattu kaksikerroksinen moderni hallimainen tila. Sen keskikäytävää kattaa lasinen galleria, joka valaistuna putkena jatkuu ulos ja Ounasjoen törmään upotettuna rantaan saakka.
1990-luvun viimeiset valtakunnalliset erikoismuseot – Lusto Savonlinnaan (1994), Siida Inariin (1998) ja Sarka Loimaalle (2005)
Uusiksi vastuumuseoiksi 1990-luvulla määriteltiin metsä-, saamelais- ja maatalousmuseo. Maan ensimmäiset kaupunkien museot olivat syntyneet 1800-luvulla rannikkokaupunkeihin. Sen jälkeen museoita rakennettiin myös sisämaahan niin, että kaupunkien museot ylsivät myös Keski- ja Itä-Suomeen, kunnes lopulta kotiseutu- ja pitäjänmuseoiden tiheä verkosto kattoi koko maan.
Pohjois-Suomi ja Lappi olivat olleet aktiivisia 1970-luvulta lähtien, erityisesti taidemuseoiden osalta. Yliopistojen lisäksi kaupungit kunnostautuivat: Oulun ja Rovaniemen kaupunginjohtajat Matti Rossi ja Matti Pelttari johtivat Suomen museoliiton hallitusta vuoron perään. Museot ja tiedekeskukset alkoivat hakeutua yhteen, kun viimeisiä valtakunnallisia museoita perustettiin. Niistä päätettäessä hajautuspolitiikka oli voimissaan, lisäksi valintaa tukivat matkailunäkökohdat.
45_Lusto_MLR 45a_Lusto_SLJe
Suomen metsämuseo Lusto Savonlinnan Punkaharjulla on metsäalan ja metsäkulttuurin erikoismuseo, joka avattiin tervalla ja pellavaöljyllä kyllästetyllä lehtikuusilaudalla vuoratussa betonirakennuksessa 1994. Vuonna 1988 perustettu säätiö järjesti yhdessä maa- ja metsätalousministeriön ja Punkaharjun kunnan kanssa avoimen arkkitehtuurikilpailun Suomalaisen metsätietokeskuksen rakentamiseksi vuonna 1990. Kokoelman painopiste on metsäkoneissa. Näyttelyt kertovat ihmisen ja metsän välisestä vuorovaikutuksesta.
Arkkitehtikilpailuun tuli 103 ehdotusta, ja voittaneet arkkitehdit Rainer Mahlamäki ja Ilmari Lahdelma suunnittelivat ”suomalaista modernismia” edustavan rakennuksen metsämaisemaan. Harjulta museon sisäänkäynnille johtaa katettu silta. Päänäyttely on museon pyöreässä osassa, jonka kalusteet ovat kiinteä osa arkkitehtuuria. Nimi Lusto tulee näyttelytilan (1 500 m²) muodosta ja merkitsee puun vuosikasvua, mutta siinä voi nähdä muistuman antiikin pyörötemppelistä.
46_Siida Nemo bis WLM 46a_Siida Nemo bis WLM
Saamelaismuseo oli perustettu ulkomuseona Inariin 1959. Jonkin aikaa sen jälkeen oli julistettu suunnittelukilpailu Oulun yliopiston arkkitehtiosaston opiskelijoille. Voittaja valittiin jatkokehittelyn pohjaksi, mutta asia hautautui ja herätettiin henkiin 1984. Hanke alkoi rahoituksen puolesta toteutua, kun museoon yhdistettiin Metsähallituksen Ylä-Lapin luontokeskus. Juhani Pallasmaan suunnittelema näyttelyrakennus Siida (merkitsee saamelaiskylää) valmistui metsäiseen rinteeseen museoalueen reunassa olleen sorakuopan paikalle vuonna 1998.
Sisäänkäynti on pohjakerroksessa, josta pääkerrokseen noustaan loivaa ramppia pitkin. Rakennus on istutettu ”pienipiirteiseen maisemaan” sen muotoja seuraten. Runko on teräsbetonia ja terästä, julkisivut puuta. Rakennuksen keskelle on koko pituudelta avattu ”luonnonvalorailo”.
Rakennussuunnittelu tapahtui rinnakkain näyttelysuunnittelun kanssa. Johdantonäyttely esittelee pohjoisen luonnon ja kulttuurin kehitysvaiheita jääkaudesta tähän päivään. Näyttelytilat ovat yönsinisiä, muut tilat yleisväritykseltään valkoisia. Museosta tuli kokonaistaideteos, jossa tavoitteena oli ”yhdistää tieteellinen sisältö teatterin tai taidenäyttelyn kaltaiseen elämyksellisyyteen”. Esineiden ja kuvien taustalla on eri vuodenaikoja ja luonnontapahtumia kuvaava äänimaisema.[54]
Suomen maatalousmuseo Sarka Loimaalla on viimeinen 1990-luvulla alkunsa saanut erikoismuseo. Suomen maatalouskonemuseosäätiö perustettiin 1992. ”Suomalaisen maatalouden 3000-vuotisen tarinan” kertova museo avattiin 2005 (arkkitehti Sarlotta Narjus).
Uudelle vuosituhannelle siirryttyä järjestettiin arkkitehtuurikilpailu Kotkan Merikeskus Vellamosta vuonna 2004 ja rakennus avattiin 2008 (Arkkitehtitoimisto Lahdelma & Mahlamäki Oy).[55]
Nykytaiteen museo Kiasma, Helsinki (1998)
Keskustelu museoarkkitehtuurista alkoi 1960-luvun vaihteessa Helsingin keskustasuunnitelmasta. Siihen oli merkitty paikka museolle, ja tänne uusi rakennus liki 40 vuotta myöhemmin nousikin. Nykytaiteen museon perustamisvuonna 1990 ilmestyi amerikkalaisen taidehistorioitsijan Douglas Crimpin pamfletti Museon raunioilla, jossa tämä pohti museon roolia ja vastuita, erityisesti nykytaiteen määrittelyssä ja ohjailussa.
47_Kiasma_MLR.jpg 48_leikkaus_MLR.jpg
Nykytaiteen museon rakennushanke lähti rivakasti käyntiin, lamasta oli etua. Kaupungin rakennuskoneistolta loppuivat työt, joten tehtiin sopimus, jonka mukaan valtio tilasi työn kaupungilta ja rakennuksen valmistuttua maksoi sen luovuttamalla museotalon arvoa vastaavan määrän rakennusmaata toisaalta.
Pohjoismaiden ja Baltian arkkitehdeille suunnattu suunnittelukilpailu käytiin 1993. Lisäksi oli kutsuttu mukaan neljä kansainvälisesti tunnettua arkkitehtiä. Ehdotuksia tuli 516, joista voittajaksi nousi yhdysvaltalaisen Steven Hollin[56] ehdotus Chiasma (silmistä aivoihin johtavien näköhermojen risteys).
Ehdotusta laatiessaan Holl kävi Helsingissä. Hän asui museotontin viereisen Vaakuna-hotellin ylimmässä kerroksessa, josta tutkiskeli tonttia ja sitä ympäröivää kaupunkinäkymää. Myöhemmin hän tutustui suomalaiseen rakennusperintöön kuten Petäjäveden kirkkoon. Rakennustyön käynnistyttyä suunnittelun Suomen tukikohtana toimi arkkitehti Juhani Pallasmaan toimisto.
49b_Kiasma_Sakari Kiuru MV 49_Kiasma_Tirri MV
Arkkitehtuurikilpailun voittajasta syntyi kohu. Arkkitehdit pitivät tonttia ahtaana ja rakennusta mahdottomana, koska sitä ei voisi muuttaa tai laajentaa, mikä oli ollut ihanne. Syytettiin myös amerikkalaisuuden palvonnasta. Kovin vastustus tuli Mannerheimin ratsastajapatsaan suojelijoiden taholta. Patsas jäi paikalleen, ja Holl otti sen huomioon etsiessään muotoa, joka nivoisi yhteen ristiriitaisetkin elementit tonttia ympäröivässä rakennus- ja puistomaisemassa. Rakennus valmistui 1998. Se huipensi 1900-luvun jälkipuolen museorakentamisen.
Kiasman viisi kerrosta ovat toisiinsa nähden hieman limittäin ja kaarevien seinäpintojen vuoksi eri suuruisia. Museotilaa on 9 100 m². Runko on terästä, ja betoni kaartuu kauniisti. Ulkoseinät ja katto on päällystetty sinkki-, alumiini-, messinki- ja lasilevyillä, sisäpuoli on valkoinen. Pohjakerroksen yleisötiloissa on myös puuta ja voimakkaita värejä. Rakennus on avoimen ja suljetun tilan yhdistelmä. Holl pitää taloaan avoimena, koska siellä on portaikkoja, hissejä ja oviaukkoja, jotka mahdollistavat vapaan liikkumisen. Sisään tullessa avautuu näkymä talon läpi, sekä päästä päähän, että alhaalta ylös valokattoon saakka.
Portaikon sijasta museoon noustaan kaarevaa ramppia pitkin. Sen molemmin puolin seinien takana on huoneesta huoneeseen kuljettavia näyttelysaleja, ylimpänä kattoikkunoin varustettu muita korkeampi sali. Luonnonvalon käyttö on Hollille tärkeää, sen vuoksi molemmissa päädyissä sekä länsisivulla on isot panoraamaikkunat. Näyttelysalien seinät ovat valkeat, lattiat tummanharmaata betonia. Tekniikka on upotettu, eikä arkkitehtonisia elementtejä ole korostettu. Tavoitteena on tila, jossa katsoja voi kohdata teoksen häiriöttä.
Lopputulos on paikkaansa sopeutuva talo, jonka kaartuva harmaa ulkokuori on kuin kotilo tai simpukka, joka suojelee helmenhohtoista sisältöään: ulkoa pieneltä vaikuttava rakennus avautuu sisääntulijalle juhlavan avarana. Valkoisen tarkoitus on pyhittää taide. Amerikkalainen arkkitehtuurintutkija Victoria Newhouse kirjoitti jo ennen Kiasman valmistumista kirjassaan Towards a New Museum näkevänsä Kiasman ”pyhänä tilana”.[57]
Museorakennuksen ikuisuuskysymyksiä
Museorakentamisen rinnalla on laaja kysymys: millaista historiakäsitystä museot ylläpitävät, kenen tarinoita kertovat. Vaikka museorakennukset muuttuvat, museorakentamisessa on edelleen ratkaistava samoja kysymyksiä. Halutaanko uudisrakennus vai korjataanko jokin vanha. Halutaanko luonnonrauhaan vai kaupungin ytimeen. Miten rakennus suhteutuu sisältöönsä, miten ympäristöönsä. Painotetaanko pysyvää näyttelyä vai vaihtuvaa ohjelmistoa. Onko näyttelykierto avoin vai suljettu ja miksi niin on. Mikä on luonnonvalon ja keinovalon suhde. Tehdäänkö temppeli vai toivotaanko toria.
Kirjoittaja
Filosofian tohtori, dosentti, tietokirjailija Marja-Liisa Rönkkö on toiminut eri tehtävissä lukuisissa museoissa, kuten museonjohtajana Helsingin kaupunginmuseossa 1978–1990 ja ylijohtajana Valtion taidemuseossa 1990–2000. Artikkeli perustuu tekijän väitöskirjaan Louvren ja Louisianan perilliset. Suomalainen taidemuseo sekä artikkeleihin teoksissa Museologia tänään ja Suomen museohistoria.
Artikkeli on julkaistu 2020.
- Riihimäen kaupungin vuonna 1975 hankkima, lasitehtaan 1910-luvulla valmistunut rakennus, josta Tapio Wirkkala suunnitteli Suomen lasimuseon (näyttely 1 762 m²),
- Vuonna 1898 perustettu Suomen rautatiemuseo muutti Helsingin asemalta Hyvinkäälle 1973–74,
- 1969 perustettu Tekniikan museo asettui vuodesta 1970 lähtien Helsingin vesilaitoksen sata vuotta vanhoihin tiloihin Vantaanjoen suulle.
- Kaapelitehdas Helsingissä (W.G. Palmqvist, 1939–1954) on 1990-luvun alusta ollut kaupungin omistama kiinteistöyhtiö. Entisen Nokian kaapelitehtaan suurimman hallin (2 700 m²) itäpäähän muuttivat 1990-luvun alussa Suomen Valokuvataiteen museo (perustettu 1969), Teatterimuseo (perustettu 1962) ja Hotelli- ja ravintolamuseo (perustettu 1971) päällekkäisiin tiloihin, joiden museotilat viimeisteltiin 2000.
- Tampellan tiloissa avattiin 1996 Tampereen museokeskus Vapriikki (14 000 m²) lukuisine museoineen.
- Hämeenlinnan taidemuseon (perustettu 1952) viisi rakennusta sisältyvät Verkatehtaan (1895) kokonaisuuteen, joka oli pääosin oppilaitoskäytössä 1980- ja 90-luvuilla, kunnes se päätettiin suunnitella kokonaisuutena erilaisia kulttuuripalveluita varten 2001 (avaus 2007).
- Lapuan patruunatehtaan (perustettu 1923) tiloihin on 1990-luvulta lähtien kasvanut Kulttuurikeskus Vanha Paukku, jossa on muun muassa useita museoita kuten tehtaanmuseo (perustettu 1993), taidemuseo (perustettu 1998) ja Pyhälahden valokuvaamomuseo.
Taidemuseo kulttuurikeskuksessa - Kemi (1977), Tornio (1985) ja Kouvola (1987)
Joidenkin kaupunkien uusiin kulttuurikeskuksiin tehtiin tilat museolle. Kemin taidemuseo sai pysyvät tilat jo kulttuurikeskuksen ensimmäisessä rakennusvaiheessa 1977 (Arkkitehtitoimisto Jan Söderlund) ja lopullisen paikkansa 1990, kun koko kulttuurikeskus valmistui. Kemin vuonna 1947 alkunsa saanut taidemuseo oli ensimmäinen aluemuseokokeiluun osallistunut, ja siitä tuli maakunnallinen taidemuseo vuonna 1981 toiminta-alueenaan koko Lapin lääni.
Taidemuseon osuus kulttuurikeskuksesta on vajaa kymmenes. Nykytaiteelle soveltuvaa näyttelytilaa on 551 m². Suoraviivaista punatiilistä rakennuskokonaisuutta jäsentävät nauhaikkunat ja eri tilojen korkeuserot. Sisätilojen suoraviivaisuuden murtaa museon näyttelytilan ja kirjaston välinen diagonaalinen kantava seinä. Valmistuessaan rakennus tarjosi tilat kaupunginkirjastolle, kaupunginteatterille, kauppaoppilaitokselle ja työväenopistolle, joilla on torin puolelta yhteinen sisäänkäynti kahviloineen, ravintoloineen ja kaksine auditorioineen.[48]
37_Kemisali_MLR 37b_Kemi_MLR
Torniolainen kauppaneuvos Veli Aine toivoi, että hänen kotimaista 1800- ja 1900-luvun taidetta sisältävä taidekokoelmansa tulisi esiin kotikaupungissa. Ajankohdalle tyypilliseen tapaan pyrittiin taidemuseo perustamaan ”kulttuurikeskukseen veden äärelle”. Siinä maakuntamuseon, taidemuseon ja kirjaston tilatarpeet yhdistyisivät. Tuloksena oli päätös laajentaa maakuntamuseota omalla tontillaan ja rakentaa taidemuseolle sekä kirjastolle uusi yhteinen toimitalo.
Taidemuseon vuonna 1979 sovittu toimintamalli oli sama kuin Sara Hildénin museossa: kaupunki vastasi rakennuksesta ja museon ylläpidosta, Aineen Kuvataidesäätiö kokoelmien kartuttamisesta. Vuonna 1985 valmistunut, Rajakartanoksi nimetty talo nousi aiemmin tornitaloille kaavaillulle tontille. Arkkitehdiksi valittiin paikallinen Matti Porkka, joka suunnitteli myös maakuntamuseon laajennuksen. Porkka ei ollut suunnitellut museotiloja, mutta osallistui museoarkkitehtuuriseminaariin ja tutustui Helsingin kaupungin taidemuseoon, Sara Hildénin taidemuseoon ja Lapinlahden taidemuseoon (Esa Koivuniemi ja Georg Bystroff, 1977).
Torniossa Aineen museon ja kirjaston rinnakkaiset Torikadun suuntaiset tilat ovat suunnilleen samankokoiset. Rakennusmassat ovat kuitenkin toisiinsa nähden hieman vinottain ja kummallakin on oma luonteensa. Julkisivut on muurattu valkoisesta kahitiilestä. Sen päällä on ikkunatonta museonäyttelyaluetta korostava pystysuuntainen hiekanruskea marmoriharkotus, kirjaston ikkunoissa vastaavasti ritiläverhous. Yhteinen sisäänkäynti on rakennusten välissä toisessa kerroksessa, kahvila ja auditorio museon puolella. Museokäytössä on 1 576 m².
Sisäseinät ovat valkoiset, portaat ja käytävät on päällystetty Lapin louhemarmorilla, kahvila ja näyttelytilat sisal-laattamatolla. Näyttelysaleja on viisi, ja niihin Aine halusi Helsingin Meilahden taidemuseon tapaisen pakkokierron, jotta kaikki teokset tulisivat nähdyiksi. Ulkona oli tilaa veistospuistolle. Veli Aine sai toiveensa toteutumaan ja toimi museolautakunnan ensimmäisenä puheenjohtajana.[49]
38_Kouvola_MLR
Kouvola-talon (kilpailu: Erkki Valovirta, 1982) kotimaiselle nykytaiteelle omistettu museo perustettiin 1986 ja avattiin 1987 ”koulutus- ja kulttuurikeskuksessa”. Taidemuseon (1 000 m²) lisäksi siinä oli konserttisali sekä musiikkiopiston, kansalaisopiston ja taideharrastajien tiloja, samoin kaupungin toimistoja.
Puistomaisessa ympäristössä on hiekanvaalea kaksikerroksinen postmoderni rakennuskokonaisuus, yhteisen sisäänkäynnin ympärille rypälemäisesti kiertyvine pohjakaavoineen ja tummine aumakattoineen. Kaupunkien monitoimitaloissa tilojen käyttäjät voivat vaihtua, museo yleensä jää ja laajenee.[50]
Taide- ja kulttuurihistoriallinen museo, Saarijärvi (1989)
Saarijärven museo (Laila Niemioja / Heikki Uusitalo, 1989) avattiin 1989 saarijärveläisen kuvanveistäjä Kain Tapperin tuotantoa esittelevällä näyttelyllä. Ajatus museosta konkretisoitui, kun saarijärveläissyntyinen Toivi Järvinen määräsi testamentissaan 1982 omaisuutensa käytettäväksi taidemuseon rakentamiseen. Museoon koottiin yhteen Toivi ja Osmo Järvisen 1900-luvun alun kotimaisen taiteen kokoelma, Saarijärven kaupungin omistamat teokset ja Saarijärvi-seuran kulttuurihistoriallinen esineistö.
Vuonna 1948 perustettu Saarijärvi-seura vaali Saarijärven ja sen lähialueiden taiteilijoiden tuotantoa ja kulttuuriperintöä. Keskeisessä roolissa oli Tapperien kotitalo Juhola ja neljän taiteilijaveljeksen, kuvanveistäjä Kain Tapperin, kirjailijoiden Harri Tapperin ja Marko Tapion sekä lavastaja Yrjö Tapperin elämä ja tuotanto.[51]
Helsingissä työuransa tehneiden Toivi ja Osmo Järvisen omakotitalon tontille rakennettiin vaaleasta tiilestä puhtaaksi muurattu rakennus (1 150 m²). Saarijärven museonjohtaja Kari Kotilainen laati tilaohjelman, ja Jyväskylän museoiden kollegat työskentelivät rakennustoimikunnassa, joka osallistui Museoliiton Saksan-matkalle 1987. Frankfurtissa huomioitiin Main-joen molemmille rannoille nouseva vanhaa ja uutta arkkitehtuuria yhdistävä Museumsufer ja amerikkalaisarkkitehti Richard Meierin suunnittelema taideteollisuusmuseo.[52]
Saarijärvellä sisäänkäynti on suoraan näyttelykerrokseen, sen alapuolella ovat työ- ja varastotilat sekä sisääntulopäädyssä aulakahvio terasseineen. Muuta korkeampi keskiosa – ”valkoinen kuutio” – klinkkerilattioineen ja komeine järvinäkymineen – on tarkoitettu taiteelle ja erikoisnäyttelyille, itäpään matalampi ”musta kuutio” kulttuurihistoriallisille kokoelmille.[53]
34_Saarijärvi_MLR
Muita uusia museoita 1980- ja 1990-luvuilla
- Hyvinkään taidemuseo Jussintorin liikekeskuksessa (Ilmo ja Raimo Valjakka, 1981),
- Ahvenanmaan museot ja kaupunginkirjasto, Maarianhamina (Helmer Stenros, 1981),
- Skärgårdsmuseet i Lappo (Folke Wikström, 1981),
- Tampereen taidemuseon maanalainen näyttelytila (Antti Ilveskoski, 1984),
- Etelä-Karjalan museon sijoittaminen 1700-luvun linnoitukseen (Lappeenrannan kaupunki, 1984, 1989),
- Villa Gyllenbergin näyttelysiipi Helsingin Kuusisaaressa (Ålander Packalen Korsström, 1985),
- Rovaniemen taidemuseo postiautovarikkoon (Juhani Pallasmaa, 1986),
- Hiihtomuseo, Lahden Urheilukeskus (Esko Hämäläinen, 1989),
- Suomen metsästysmuseo muutti Porvoosta Riihimäelle (Osmo Lappo, 1990),
- Oulun taidemuseo liimatehtaan kiinteistöön (Birger Federley 1922, Jorma Teppo, 1991),
- Kalevala-talo, Talvisotamuseo, Kuhmo (Heikki Kukkonen 1991/1994),
- Mobilia auto- ja tiemuseo, Kangasala (Lindqvist & Uosukainen, 1992–94),
- Aboa Vetus & Ars Nova, Rettigin palatsin laajennus (Frank Schauman, 1995),
- Salon taidemuseo Veturitallin uudisosa (Lauri Hollmén, 1998).
39_Hyvinkää_MLR.jpg 42b_Lappeenranta Et karj museo WLM
40_Gberg_MLR 42_Lahden hiihtomuseo HHö
Tiedekeskus Heureka, Vantaa (1989) ja Arktinen instituutti Arktikum, Rovaniemi (1992)
Museoiden painopisteet ovat siirtyneet tutkimuksen suuntaan ammatillisuuden ja resurssien lisääntymisen myötä. Voitaneen jo puhua tiedemuseoista taidemuseoiden rinnalla.
Tiedekeskus Heurekan rakentaminen Vantaan Tikkurilaan oli 1980-luvun saavutus (kilpailu: Heikkinen ja Komonen, 1985). Säätiöpohjainen Heureka avattiin yleisölle 1989. Juuret ovat Helsingin yliopistossa, idean esittivät professorit Tapio Markkanen, Hannu I. Miettinen ja Heikki Oja. Kutsukirje oli lähtenyt Helsingin, Espoon ja Vantaan kaupungeille, joista Vantaa tarttui mahdollisuuteen tarjoten tontin ja merkittävää rahoitusta.
43_Heureka_MLR
Tiedekeskukset ovat museoiden rinnakkaisilmiö. Tieteen popularisointi, pedagoginen ote ja elämyksellisyys ovat yhteisiä tavoitteita, pääasiallisena erona se, ettei tiedekeskuksilla ole omia kokoelmia vartioitavanaan. Yleisötiloiltaan tiedekeskus muistuttaa avointa museota, uutuutena planetaario. Vapaus näkyy rakennuksen ulkoasussa, jota avaruusaiheineen voitaneen pitää uutta kokeilevan wau-arkkitehtuurin ensiesiintymisenä meillä.
44_Arktikum_MLR
Ajatus Arktisesta instituutista ja museosta virisi 1970-luvulla Oulussa ja Rovaniemellä. Konkreettinen aloite tuli Euroopan Kulttuurisäätiön Suomen osastolta. Vuosina 1983–84 järjestettiin arktisille maille suunnattu arkkitehtuurikilpailu, johon tuli 184 ehdotusta. Toteutus sidottiin Suomen itsenäisyyden 75-vuotisjuhlintaan, ja siitä kasvoi kansallinen hanke. Valtion talousarvioon varattiin varoja vuodelle 1988. Rovaniemen kaupunki tuli toiseksi maksajaksi ehdolla, että Aallon Lappia-talossa sijainnut maakuntamuseo sai keskuksesta uudet tilat.
Rakennus valmistui 1992, siinä toimivat näyttelyineen Lapin maakuntamuseo sekä Lapin yliopiston Arktinen keskus. Voittaneen tanskalaisen Claus Bonderupin työryhmän ehdotus on yhdistelmä klassisen museorakennuksen osia uudella tavalla yhdisteltynä. Valmiin rakennuksen julkisivu kaupunkiin päin muistuttaa temppelin päätyä pylväikköineen, oven takaa avautuu valkoiseksi maalattu kaksikerroksinen moderni hallimainen tila. Sen keskikäytävää kattaa lasinen galleria, joka valaistuna putkena jatkuu ulos ja Ounasjoen törmään upotettuna rantaan saakka.
1990-luvun viimeiset valtakunnalliset erikoismuseot – Lusto Savonlinnaan (1994), Siida Inariin (1998) ja Sarka Loimaalle (2005)
Uusiksi vastuumuseoiksi 1990-luvulla määriteltiin metsä-, saamelais- ja maatalousmuseo. Maan ensimmäiset kaupunkien museot olivat syntyneet 1800-luvulla rannikkokaupunkeihin. Sen jälkeen museoita rakennettiin myös sisämaahan niin, että kaupunkien museot ylsivät myös Keski- ja Itä-Suomeen, kunnes lopulta kotiseutu- ja pitäjänmuseoiden tiheä verkosto kattoi koko maan.
Pohjois-Suomi ja Lappi olivat olleet aktiivisia 1970-luvulta lähtien, erityisesti taidemuseoiden osalta. Yliopistojen lisäksi kaupungit kunnostautuivat: Oulun ja Rovaniemen kaupunginjohtajat Matti Rossi ja Matti Pelttari johtivat Suomen museoliiton hallitusta vuoron perään. Museot ja tiedekeskukset alkoivat hakeutua yhteen, kun viimeisiä valtakunnallisia museoita perustettiin. Niistä päätettäessä hajautuspolitiikka oli voimissaan, lisäksi valintaa tukivat matkailunäkökohdat.
45_Lusto_MLR 45a_Lusto_SLJe
Suomen metsämuseo Lusto Savonlinnan Punkaharjulla on metsäalan ja metsäkulttuurin erikoismuseo, joka avattiin tervalla ja pellavaöljyllä kyllästetyllä lehtikuusilaudalla vuoratussa betonirakennuksessa 1994. Vuonna 1988 perustettu säätiö järjesti yhdessä maa- ja metsätalousministeriön ja Punkaharjun kunnan kanssa avoimen arkkitehtuurikilpailun Suomalaisen metsätietokeskuksen rakentamiseksi vuonna 1990. Kokoelman painopiste on metsäkoneissa. Näyttelyt kertovat ihmisen ja metsän välisestä vuorovaikutuksesta.
Arkkitehtikilpailuun tuli 103 ehdotusta, ja voittaneet arkkitehdit Rainer Mahlamäki ja Ilmari Lahdelma suunnittelivat ”suomalaista modernismia” edustavan rakennuksen metsämaisemaan. Harjulta museon sisäänkäynnille johtaa katettu silta. Päänäyttely on museon pyöreässä osassa, jonka kalusteet ovat kiinteä osa arkkitehtuuria. Nimi Lusto tulee näyttelytilan (1 500 m²) muodosta ja merkitsee puun vuosikasvua, mutta siinä voi nähdä muistuman antiikin pyörötemppelistä.
46_Siida Nemo bis WLM 46a_Siida Nemo bis WLM
Saamelaismuseo oli perustettu ulkomuseona Inariin 1959. Jonkin aikaa sen jälkeen oli julistettu suunnittelukilpailu Oulun yliopiston arkkitehtiosaston opiskelijoille. Voittaja valittiin jatkokehittelyn pohjaksi, mutta asia hautautui ja herätettiin henkiin 1984. Hanke alkoi rahoituksen puolesta toteutua, kun museoon yhdistettiin Metsähallituksen Ylä-Lapin luontokeskus. Juhani Pallasmaan suunnittelema näyttelyrakennus Siida (merkitsee saamelaiskylää) valmistui metsäiseen rinteeseen museoalueen reunassa olleen sorakuopan paikalle vuonna 1998.
Sisäänkäynti on pohjakerroksessa, josta pääkerrokseen noustaan loivaa ramppia pitkin. Rakennus on istutettu ”pienipiirteiseen maisemaan” sen muotoja seuraten. Runko on teräsbetonia ja terästä, julkisivut puuta. Rakennuksen keskelle on koko pituudelta avattu ”luonnonvalorailo”.
Rakennussuunnittelu tapahtui rinnakkain näyttelysuunnittelun kanssa. Johdantonäyttely esittelee pohjoisen luonnon ja kulttuurin kehitysvaiheita jääkaudesta tähän päivään. Näyttelytilat ovat yönsinisiä, muut tilat yleisväritykseltään valkoisia. Museosta tuli kokonaistaideteos, jossa tavoitteena oli ”yhdistää tieteellinen sisältö teatterin tai taidenäyttelyn kaltaiseen elämyksellisyyteen”. Esineiden ja kuvien taustalla on eri vuodenaikoja ja luonnontapahtumia kuvaava äänimaisema.[54]
Suomen maatalousmuseo Sarka Loimaalla on viimeinen 1990-luvulla alkunsa saanut erikoismuseo. Suomen maatalouskonemuseosäätiö perustettiin 1992. ”Suomalaisen maatalouden 3000-vuotisen tarinan” kertova museo avattiin 2005 (arkkitehti Sarlotta Narjus).
Uudelle vuosituhannelle siirryttyä järjestettiin arkkitehtuurikilpailu Kotkan Merikeskus Vellamosta vuonna 2004 ja rakennus avattiin 2008 (Arkkitehtitoimisto Lahdelma & Mahlamäki Oy).[55]
Nykytaiteen museo Kiasma, Helsinki (1998)
Keskustelu museoarkkitehtuurista alkoi 1960-luvun vaihteessa Helsingin keskustasuunnitelmasta. Siihen oli merkitty paikka museolle, ja tänne uusi rakennus liki 40 vuotta myöhemmin nousikin. Nykytaiteen museon perustamisvuonna 1990 ilmestyi amerikkalaisen taidehistorioitsijan Douglas Crimpin pamfletti Museon raunioilla, jossa tämä pohti museon roolia ja vastuita, erityisesti nykytaiteen määrittelyssä ja ohjailussa.
47_Kiasma_MLR.jpg 48_leikkaus_MLR.jpg
Nykytaiteen museon rakennushanke lähti rivakasti käyntiin, lamasta oli etua. Kaupungin rakennuskoneistolta loppuivat työt, joten tehtiin sopimus, jonka mukaan valtio tilasi työn kaupungilta ja rakennuksen valmistuttua maksoi sen luovuttamalla museotalon arvoa vastaavan määrän rakennusmaata toisaalta.
Pohjoismaiden ja Baltian arkkitehdeille suunnattu suunnittelukilpailu käytiin 1993. Lisäksi oli kutsuttu mukaan neljä kansainvälisesti tunnettua arkkitehtiä. Ehdotuksia tuli 516, joista voittajaksi nousi yhdysvaltalaisen Steven Hollin[56] ehdotus Chiasma (silmistä aivoihin johtavien näköhermojen risteys).
Ehdotusta laatiessaan Holl kävi Helsingissä. Hän asui museotontin viereisen Vaakuna-hotellin ylimmässä kerroksessa, josta tutkiskeli tonttia ja sitä ympäröivää kaupunkinäkymää. Myöhemmin hän tutustui suomalaiseen rakennusperintöön kuten Petäjäveden kirkkoon. Rakennustyön käynnistyttyä suunnittelun Suomen tukikohtana toimi arkkitehti Juhani Pallasmaan toimisto.
49b_Kiasma_Sakari Kiuru MV 49_Kiasma_Tirri MV
Arkkitehtuurikilpailun voittajasta syntyi kohu. Arkkitehdit pitivät tonttia ahtaana ja rakennusta mahdottomana, koska sitä ei voisi muuttaa tai laajentaa, mikä oli ollut ihanne. Syytettiin myös amerikkalaisuuden palvonnasta. Kovin vastustus tuli Mannerheimin ratsastajapatsaan suojelijoiden taholta. Patsas jäi paikalleen, ja Holl otti sen huomioon etsiessään muotoa, joka nivoisi yhteen ristiriitaisetkin elementit tonttia ympäröivässä rakennus- ja puistomaisemassa. Rakennus valmistui 1998. Se huipensi 1900-luvun jälkipuolen museorakentamisen.
Kiasman viisi kerrosta ovat toisiinsa nähden hieman limittäin ja kaarevien seinäpintojen vuoksi eri suuruisia. Museotilaa on 9 100 m². Runko on terästä, ja betoni kaartuu kauniisti. Ulkoseinät ja katto on päällystetty sinkki-, alumiini-, messinki- ja lasilevyillä, sisäpuoli on valkoinen. Pohjakerroksen yleisötiloissa on myös puuta ja voimakkaita värejä. Rakennus on avoimen ja suljetun tilan yhdistelmä. Holl pitää taloaan avoimena, koska siellä on portaikkoja, hissejä ja oviaukkoja, jotka mahdollistavat vapaan liikkumisen. Sisään tullessa avautuu näkymä talon läpi, sekä päästä päähän, että alhaalta ylös valokattoon saakka.
Portaikon sijasta museoon noustaan kaarevaa ramppia pitkin. Sen molemmin puolin seinien takana on huoneesta huoneeseen kuljettavia näyttelysaleja, ylimpänä kattoikkunoin varustettu muita korkeampi sali. Luonnonvalon käyttö on Hollille tärkeää, sen vuoksi molemmissa päädyissä sekä länsisivulla on isot panoraamaikkunat. Näyttelysalien seinät ovat valkeat, lattiat tummanharmaata betonia. Tekniikka on upotettu, eikä arkkitehtonisia elementtejä ole korostettu. Tavoitteena on tila, jossa katsoja voi kohdata teoksen häiriöttä.
Lopputulos on paikkaansa sopeutuva talo, jonka kaartuva harmaa ulkokuori on kuin kotilo tai simpukka, joka suojelee helmenhohtoista sisältöään: ulkoa pieneltä vaikuttava rakennus avautuu sisääntulijalle juhlavan avarana. Valkoisen tarkoitus on pyhittää taide. Amerikkalainen arkkitehtuurintutkija Victoria Newhouse kirjoitti jo ennen Kiasman valmistumista kirjassaan Towards a New Museum näkevänsä Kiasman ”pyhänä tilana”.[57]
Museorakennuksen ikuisuuskysymyksiä
Museorakentamisen rinnalla on laaja kysymys: millaista historiakäsitystä museot ylläpitävät, kenen tarinoita kertovat. Vaikka museorakennukset muuttuvat, museorakentamisessa on edelleen ratkaistava samoja kysymyksiä. Halutaanko uudisrakennus vai korjataanko jokin vanha. Halutaanko luonnonrauhaan vai kaupungin ytimeen. Miten rakennus suhteutuu sisältöönsä, miten ympäristöönsä. Painotetaanko pysyvää näyttelyä vai vaihtuvaa ohjelmistoa. Onko näyttelykierto avoin vai suljettu ja miksi niin on. Mikä on luonnonvalon ja keinovalon suhde. Tehdäänkö temppeli vai toivotaanko toria.
Kirjoittaja
Filosofian tohtori, dosentti, tietokirjailija Marja-Liisa Rönkkö on toiminut eri tehtävissä lukuisissa museoissa, kuten museonjohtajana Helsingin kaupunginmuseossa 1978–1990 ja ylijohtajana Valtion taidemuseossa 1990–2000. Artikkeli perustuu tekijän väitöskirjaan Louvren ja Louisianan perilliset. Suomalainen taidemuseo sekä artikkeleihin teoksissa Museologia tänään ja Suomen museohistoria.
Artikkeli on julkaistu 2020.
_Oik.: Kemin kulttuurikeskus: museotilat ovat keskellä, teatterin ja kirjaston välissä, ja niitä merkitsee näyttelysalin valkea seinä. Yhteinen sisäänkäynti on torin puolella. Kuva postikortista, Jukka Mononen.
Torniolainen kauppaneuvos Veli Aine toivoi, että hänen kotimaista 1800- ja 1900-luvun taidetta sisältävä taidekokoelmansa tulisi esiin kotikaupungissa. Ajankohdalle tyypilliseen tapaan pyrittiin taidemuseo perustamaan ”kulttuurikeskukseen veden äärelle”. Siinä maakuntamuseon, taidemuseon ja kirjaston tilatarpeet yhdistyisivät. Tuloksena oli päätös laajentaa maakuntamuseota omalla tontillaan ja rakentaa taidemuseolle sekä kirjastolle uusi yhteinen toimitalo.
Taidemuseon vuonna 1979 sovittu toimintamalli oli sama kuin Sara Hildénin museossa: kaupunki vastasi rakennuksesta ja museon ylläpidosta, Aineen Kuvataidesäätiö kokoelmien kartuttamisesta. Vuonna 1985 valmistunut, Rajakartanoksi nimetty talo nousi aiemmin tornitaloille kaavaillulle tontille. Arkkitehdiksi valittiin paikallinen Matti Porkka, joka suunnitteli myös maakuntamuseon laajennuksen. Porkka ei ollut suunnitellut museotiloja, mutta osallistui museoarkkitehtuuriseminaariin ja tutustui Helsingin kaupungin taidemuseoon, Sara Hildénin taidemuseoon ja Lapinlahden taidemuseoon (Esa Koivuniemi ja Georg Bystroff, 1977).
Torniossa Aineen museon ja kirjaston rinnakkaiset Torikadun suuntaiset tilat ovat suunnilleen samankokoiset. Rakennusmassat ovat kuitenkin toisiinsa nähden hieman vinottain ja kummallakin on oma luonteensa. Julkisivut on muurattu valkoisesta kahitiilestä. Sen päällä on ikkunatonta museonäyttelyaluetta korostava pystysuuntainen hiekanruskea marmoriharkotus, kirjaston ikkunoissa vastaavasti ritiläverhous. Yhteinen sisäänkäynti on rakennusten välissä toisessa kerroksessa, kahvila ja auditorio museon puolella. Museokäytössä on 1 576 m².
Sisäseinät ovat valkoiset, portaat ja käytävät on päällystetty Lapin louhemarmorilla, kahvila ja näyttelytilat sisal-laattamatolla. Näyttelysaleja on viisi, ja niihin Aine halusi Helsingin Meilahden taidemuseon tapaisen pakkokierron, jotta kaikki teokset tulisivat nähdyiksi. Ulkona oli tilaa veistospuistolle. Veli Aine sai toiveensa toteutumaan ja toimi museolautakunnan ensimmäisenä puheenjohtajana.[49]
38_Kouvola_MLR
Kouvola-talon (kilpailu: Erkki Valovirta, 1982) kotimaiselle nykytaiteelle omistettu museo perustettiin 1986 ja avattiin 1987 ”koulutus- ja kulttuurikeskuksessa”. Taidemuseon (1 000 m²) lisäksi siinä oli konserttisali sekä musiikkiopiston, kansalaisopiston ja taideharrastajien tiloja, samoin kaupungin toimistoja.
Puistomaisessa ympäristössä on hiekanvaalea kaksikerroksinen postmoderni rakennuskokonaisuus, yhteisen sisäänkäynnin ympärille rypälemäisesti kiertyvine pohjakaavoineen ja tummine aumakattoineen. Kaupunkien monitoimitaloissa tilojen käyttäjät voivat vaihtua, museo yleensä jää ja laajenee.[50]
Taide- ja kulttuurihistoriallinen museo, Saarijärvi (1989)
Saarijärven museo (Laila Niemioja / Heikki Uusitalo, 1989) avattiin 1989 saarijärveläisen kuvanveistäjä Kain Tapperin tuotantoa esittelevällä näyttelyllä. Ajatus museosta konkretisoitui, kun saarijärveläissyntyinen Toivi Järvinen määräsi testamentissaan 1982 omaisuutensa käytettäväksi taidemuseon rakentamiseen. Museoon koottiin yhteen Toivi ja Osmo Järvisen 1900-luvun alun kotimaisen taiteen kokoelma, Saarijärven kaupungin omistamat teokset ja Saarijärvi-seuran kulttuurihistoriallinen esineistö.
Vuonna 1948 perustettu Saarijärvi-seura vaali Saarijärven ja sen lähialueiden taiteilijoiden tuotantoa ja kulttuuriperintöä. Keskeisessä roolissa oli Tapperien kotitalo Juhola ja neljän taiteilijaveljeksen, kuvanveistäjä Kain Tapperin, kirjailijoiden Harri Tapperin ja Marko Tapion sekä lavastaja Yrjö Tapperin elämä ja tuotanto.[51]
Helsingissä työuransa tehneiden Toivi ja Osmo Järvisen omakotitalon tontille rakennettiin vaaleasta tiilestä puhtaaksi muurattu rakennus (1 150 m²). Saarijärven museonjohtaja Kari Kotilainen laati tilaohjelman, ja Jyväskylän museoiden kollegat työskentelivät rakennustoimikunnassa, joka osallistui Museoliiton Saksan-matkalle 1987. Frankfurtissa huomioitiin Main-joen molemmille rannoille nouseva vanhaa ja uutta arkkitehtuuria yhdistävä Museumsufer ja amerikkalaisarkkitehti Richard Meierin suunnittelema taideteollisuusmuseo.[52]
Saarijärvellä sisäänkäynti on suoraan näyttelykerrokseen, sen alapuolella ovat työ- ja varastotilat sekä sisääntulopäädyssä aulakahvio terasseineen. Muuta korkeampi keskiosa – ”valkoinen kuutio” – klinkkerilattioineen ja komeine järvinäkymineen – on tarkoitettu taiteelle ja erikoisnäyttelyille, itäpään matalampi ”musta kuutio” kulttuurihistoriallisille kokoelmille.[53]
34_Saarijärvi_MLR
Muita uusia museoita 1980- ja 1990-luvuilla
- Hyvinkään taidemuseo Jussintorin liikekeskuksessa (Ilmo ja Raimo Valjakka, 1981),
- Ahvenanmaan museot ja kaupunginkirjasto, Maarianhamina (Helmer Stenros, 1981),
- Skärgårdsmuseet i Lappo (Folke Wikström, 1981),
- Tampereen taidemuseon maanalainen näyttelytila (Antti Ilveskoski, 1984),
- Etelä-Karjalan museon sijoittaminen 1700-luvun linnoitukseen (Lappeenrannan kaupunki, 1984, 1989),
- Villa Gyllenbergin näyttelysiipi Helsingin Kuusisaaressa (Ålander Packalen Korsström, 1985),
- Rovaniemen taidemuseo postiautovarikkoon (Juhani Pallasmaa, 1986),
- Hiihtomuseo, Lahden Urheilukeskus (Esko Hämäläinen, 1989),
- Suomen metsästysmuseo muutti Porvoosta Riihimäelle (Osmo Lappo, 1990),
- Oulun taidemuseo liimatehtaan kiinteistöön (Birger Federley 1922, Jorma Teppo, 1991),
- Kalevala-talo, Talvisotamuseo, Kuhmo (Heikki Kukkonen 1991/1994),
- Mobilia auto- ja tiemuseo, Kangasala (Lindqvist & Uosukainen, 1992–94),
- Aboa Vetus & Ars Nova, Rettigin palatsin laajennus (Frank Schauman, 1995),
- Salon taidemuseo Veturitallin uudisosa (Lauri Hollmén, 1998).
39_Hyvinkää_MLR.jpg 42b_Lappeenranta Et karj museo WLM
40_Gberg_MLR 42_Lahden hiihtomuseo HHö
Tiedekeskus Heureka, Vantaa (1989) ja Arktinen instituutti Arktikum, Rovaniemi (1992)
Museoiden painopisteet ovat siirtyneet tutkimuksen suuntaan ammatillisuuden ja resurssien lisääntymisen myötä. Voitaneen jo puhua tiedemuseoista taidemuseoiden rinnalla.
Tiedekeskus Heurekan rakentaminen Vantaan Tikkurilaan oli 1980-luvun saavutus (kilpailu: Heikkinen ja Komonen, 1985). Säätiöpohjainen Heureka avattiin yleisölle 1989. Juuret ovat Helsingin yliopistossa, idean esittivät professorit Tapio Markkanen, Hannu I. Miettinen ja Heikki Oja. Kutsukirje oli lähtenyt Helsingin, Espoon ja Vantaan kaupungeille, joista Vantaa tarttui mahdollisuuteen tarjoten tontin ja merkittävää rahoitusta.
43_Heureka_MLR
Tiedekeskukset ovat museoiden rinnakkaisilmiö. Tieteen popularisointi, pedagoginen ote ja elämyksellisyys ovat yhteisiä tavoitteita, pääasiallisena erona se, ettei tiedekeskuksilla ole omia kokoelmia vartioitavanaan. Yleisötiloiltaan tiedekeskus muistuttaa avointa museota, uutuutena planetaario. Vapaus näkyy rakennuksen ulkoasussa, jota avaruusaiheineen voitaneen pitää uutta kokeilevan wau-arkkitehtuurin ensiesiintymisenä meillä.
44_Arktikum_MLR
Ajatus Arktisesta instituutista ja museosta virisi 1970-luvulla Oulussa ja Rovaniemellä. Konkreettinen aloite tuli Euroopan Kulttuurisäätiön Suomen osastolta. Vuosina 1983–84 järjestettiin arktisille maille suunnattu arkkitehtuurikilpailu, johon tuli 184 ehdotusta. Toteutus sidottiin Suomen itsenäisyyden 75-vuotisjuhlintaan, ja siitä kasvoi kansallinen hanke. Valtion talousarvioon varattiin varoja vuodelle 1988. Rovaniemen kaupunki tuli toiseksi maksajaksi ehdolla, että Aallon Lappia-talossa sijainnut maakuntamuseo sai keskuksesta uudet tilat.
Rakennus valmistui 1992, siinä toimivat näyttelyineen Lapin maakuntamuseo sekä Lapin yliopiston Arktinen keskus. Voittaneen tanskalaisen Claus Bonderupin työryhmän ehdotus on yhdistelmä klassisen museorakennuksen osia uudella tavalla yhdisteltynä. Valmiin rakennuksen julkisivu kaupunkiin päin muistuttaa temppelin päätyä pylväikköineen, oven takaa avautuu valkoiseksi maalattu kaksikerroksinen moderni hallimainen tila. Sen keskikäytävää kattaa lasinen galleria, joka valaistuna putkena jatkuu ulos ja Ounasjoen törmään upotettuna rantaan saakka.
1990-luvun viimeiset valtakunnalliset erikoismuseot – Lusto Savonlinnaan (1994), Siida Inariin (1998) ja Sarka Loimaalle (2005)
Uusiksi vastuumuseoiksi 1990-luvulla määriteltiin metsä-, saamelais- ja maatalousmuseo. Maan ensimmäiset kaupunkien museot olivat syntyneet 1800-luvulla rannikkokaupunkeihin. Sen jälkeen museoita rakennettiin myös sisämaahan niin, että kaupunkien museot ylsivät myös Keski- ja Itä-Suomeen, kunnes lopulta kotiseutu- ja pitäjänmuseoiden tiheä verkosto kattoi koko maan.
Pohjois-Suomi ja Lappi olivat olleet aktiivisia 1970-luvulta lähtien, erityisesti taidemuseoiden osalta. Yliopistojen lisäksi kaupungit kunnostautuivat: Oulun ja Rovaniemen kaupunginjohtajat Matti Rossi ja Matti Pelttari johtivat Suomen museoliiton hallitusta vuoron perään. Museot ja tiedekeskukset alkoivat hakeutua yhteen, kun viimeisiä valtakunnallisia museoita perustettiin. Niistä päätettäessä hajautuspolitiikka oli voimissaan, lisäksi valintaa tukivat matkailunäkökohdat.
45_Lusto_MLR 45a_Lusto_SLJe
Suomen metsämuseo Lusto Savonlinnan Punkaharjulla on metsäalan ja metsäkulttuurin erikoismuseo, joka avattiin tervalla ja pellavaöljyllä kyllästetyllä lehtikuusilaudalla vuoratussa betonirakennuksessa 1994. Vuonna 1988 perustettu säätiö järjesti yhdessä maa- ja metsätalousministeriön ja Punkaharjun kunnan kanssa avoimen arkkitehtuurikilpailun Suomalaisen metsätietokeskuksen rakentamiseksi vuonna 1990. Kokoelman painopiste on metsäkoneissa. Näyttelyt kertovat ihmisen ja metsän välisestä vuorovaikutuksesta.
Arkkitehtikilpailuun tuli 103 ehdotusta, ja voittaneet arkkitehdit Rainer Mahlamäki ja Ilmari Lahdelma suunnittelivat ”suomalaista modernismia” edustavan rakennuksen metsämaisemaan. Harjulta museon sisäänkäynnille johtaa katettu silta. Päänäyttely on museon pyöreässä osassa, jonka kalusteet ovat kiinteä osa arkkitehtuuria. Nimi Lusto tulee näyttelytilan (1 500 m²) muodosta ja merkitsee puun vuosikasvua, mutta siinä voi nähdä muistuman antiikin pyörötemppelistä.
46_Siida Nemo bis WLM 46a_Siida Nemo bis WLM
Saamelaismuseo oli perustettu ulkomuseona Inariin 1959. Jonkin aikaa sen jälkeen oli julistettu suunnittelukilpailu Oulun yliopiston arkkitehtiosaston opiskelijoille. Voittaja valittiin jatkokehittelyn pohjaksi, mutta asia hautautui ja herätettiin henkiin 1984. Hanke alkoi rahoituksen puolesta toteutua, kun museoon yhdistettiin Metsähallituksen Ylä-Lapin luontokeskus. Juhani Pallasmaan suunnittelema näyttelyrakennus Siida (merkitsee saamelaiskylää) valmistui metsäiseen rinteeseen museoalueen reunassa olleen sorakuopan paikalle vuonna 1998.
Sisäänkäynti on pohjakerroksessa, josta pääkerrokseen noustaan loivaa ramppia pitkin. Rakennus on istutettu ”pienipiirteiseen maisemaan” sen muotoja seuraten. Runko on teräsbetonia ja terästä, julkisivut puuta. Rakennuksen keskelle on koko pituudelta avattu ”luonnonvalorailo”.
Rakennussuunnittelu tapahtui rinnakkain näyttelysuunnittelun kanssa. Johdantonäyttely esittelee pohjoisen luonnon ja kulttuurin kehitysvaiheita jääkaudesta tähän päivään. Näyttelytilat ovat yönsinisiä, muut tilat yleisväritykseltään valkoisia. Museosta tuli kokonaistaideteos, jossa tavoitteena oli ”yhdistää tieteellinen sisältö teatterin tai taidenäyttelyn kaltaiseen elämyksellisyyteen”. Esineiden ja kuvien taustalla on eri vuodenaikoja ja luonnontapahtumia kuvaava äänimaisema.[54]
Suomen maatalousmuseo Sarka Loimaalla on viimeinen 1990-luvulla alkunsa saanut erikoismuseo. Suomen maatalouskonemuseosäätiö perustettiin 1992. ”Suomalaisen maatalouden 3000-vuotisen tarinan” kertova museo avattiin 2005 (arkkitehti Sarlotta Narjus).
Uudelle vuosituhannelle siirryttyä järjestettiin arkkitehtuurikilpailu Kotkan Merikeskus Vellamosta vuonna 2004 ja rakennus avattiin 2008 (Arkkitehtitoimisto Lahdelma & Mahlamäki Oy).[55]
Nykytaiteen museo Kiasma, Helsinki (1998)
Keskustelu museoarkkitehtuurista alkoi 1960-luvun vaihteessa Helsingin keskustasuunnitelmasta. Siihen oli merkitty paikka museolle, ja tänne uusi rakennus liki 40 vuotta myöhemmin nousikin. Nykytaiteen museon perustamisvuonna 1990 ilmestyi amerikkalaisen taidehistorioitsijan Douglas Crimpin pamfletti Museon raunioilla, jossa tämä pohti museon roolia ja vastuita, erityisesti nykytaiteen määrittelyssä ja ohjailussa.
47_Kiasma_MLR.jpg 48_leikkaus_MLR.jpg
Nykytaiteen museon rakennushanke lähti rivakasti käyntiin, lamasta oli etua. Kaupungin rakennuskoneistolta loppuivat työt, joten tehtiin sopimus, jonka mukaan valtio tilasi työn kaupungilta ja rakennuksen valmistuttua maksoi sen luovuttamalla museotalon arvoa vastaavan määrän rakennusmaata toisaalta.
Pohjoismaiden ja Baltian arkkitehdeille suunnattu suunnittelukilpailu käytiin 1993. Lisäksi oli kutsuttu mukaan neljä kansainvälisesti tunnettua arkkitehtiä. Ehdotuksia tuli 516, joista voittajaksi nousi yhdysvaltalaisen Steven Hollin[56] ehdotus Chiasma (silmistä aivoihin johtavien näköhermojen risteys).
Ehdotusta laatiessaan Holl kävi Helsingissä. Hän asui museotontin viereisen Vaakuna-hotellin ylimmässä kerroksessa, josta tutkiskeli tonttia ja sitä ympäröivää kaupunkinäkymää. Myöhemmin hän tutustui suomalaiseen rakennusperintöön kuten Petäjäveden kirkkoon. Rakennustyön käynnistyttyä suunnittelun Suomen tukikohtana toimi arkkitehti Juhani Pallasmaan toimisto.
49b_Kiasma_Sakari Kiuru MV 49_Kiasma_Tirri MV
Arkkitehtuurikilpailun voittajasta syntyi kohu. Arkkitehdit pitivät tonttia ahtaana ja rakennusta mahdottomana, koska sitä ei voisi muuttaa tai laajentaa, mikä oli ollut ihanne. Syytettiin myös amerikkalaisuuden palvonnasta. Kovin vastustus tuli Mannerheimin ratsastajapatsaan suojelijoiden taholta. Patsas jäi paikalleen, ja Holl otti sen huomioon etsiessään muotoa, joka nivoisi yhteen ristiriitaisetkin elementit tonttia ympäröivässä rakennus- ja puistomaisemassa. Rakennus valmistui 1998. Se huipensi 1900-luvun jälkipuolen museorakentamisen.
Kiasman viisi kerrosta ovat toisiinsa nähden hieman limittäin ja kaarevien seinäpintojen vuoksi eri suuruisia. Museotilaa on 9 100 m². Runko on terästä, ja betoni kaartuu kauniisti. Ulkoseinät ja katto on päällystetty sinkki-, alumiini-, messinki- ja lasilevyillä, sisäpuoli on valkoinen. Pohjakerroksen yleisötiloissa on myös puuta ja voimakkaita värejä. Rakennus on avoimen ja suljetun tilan yhdistelmä. Holl pitää taloaan avoimena, koska siellä on portaikkoja, hissejä ja oviaukkoja, jotka mahdollistavat vapaan liikkumisen. Sisään tullessa avautuu näkymä talon läpi, sekä päästä päähän, että alhaalta ylös valokattoon saakka.
Portaikon sijasta museoon noustaan kaarevaa ramppia pitkin. Sen molemmin puolin seinien takana on huoneesta huoneeseen kuljettavia näyttelysaleja, ylimpänä kattoikkunoin varustettu muita korkeampi sali. Luonnonvalon käyttö on Hollille tärkeää, sen vuoksi molemmissa päädyissä sekä länsisivulla on isot panoraamaikkunat. Näyttelysalien seinät ovat valkeat, lattiat tummanharmaata betonia. Tekniikka on upotettu, eikä arkkitehtonisia elementtejä ole korostettu. Tavoitteena on tila, jossa katsoja voi kohdata teoksen häiriöttä.
Lopputulos on paikkaansa sopeutuva talo, jonka kaartuva harmaa ulkokuori on kuin kotilo tai simpukka, joka suojelee helmenhohtoista sisältöään: ulkoa pieneltä vaikuttava rakennus avautuu sisääntulijalle juhlavan avarana. Valkoisen tarkoitus on pyhittää taide. Amerikkalainen arkkitehtuurintutkija Victoria Newhouse kirjoitti jo ennen Kiasman valmistumista kirjassaan Towards a New Museum näkevänsä Kiasman ”pyhänä tilana”.[57]
Museorakennuksen ikuisuuskysymyksiä
Museorakentamisen rinnalla on laaja kysymys: millaista historiakäsitystä museot ylläpitävät, kenen tarinoita kertovat. Vaikka museorakennukset muuttuvat, museorakentamisessa on edelleen ratkaistava samoja kysymyksiä. Halutaanko uudisrakennus vai korjataanko jokin vanha. Halutaanko luonnonrauhaan vai kaupungin ytimeen. Miten rakennus suhteutuu sisältöönsä, miten ympäristöönsä. Painotetaanko pysyvää näyttelyä vai vaihtuvaa ohjelmistoa. Onko näyttelykierto avoin vai suljettu ja miksi niin on. Mikä on luonnonvalon ja keinovalon suhde. Tehdäänkö temppeli vai toivotaanko toria.
Kirjoittaja
Filosofian tohtori, dosentti, tietokirjailija Marja-Liisa Rönkkö on toiminut eri tehtävissä lukuisissa museoissa, kuten museonjohtajana Helsingin kaupunginmuseossa 1978–1990 ja ylijohtajana Valtion taidemuseossa 1990–2000. Artikkeli perustuu tekijän väitöskirjaan Louvren ja Louisianan perilliset. Suomalainen taidemuseo sekä artikkeleihin teoksissa Museologia tänään ja Suomen museohistoria.
Artikkeli on julkaistu 2020.
Tiedekeskus Heureka, Vantaa (1989) ja Arktinen instituutti Arktikum, Rovaniemi (1992)
Museoiden painopisteet ovat siirtyneet tutkimuksen suuntaan ammatillisuuden ja resurssien lisääntymisen myötä. Voitaneen jo puhua tiedemuseoista taidemuseoiden rinnalla.
Tiedekeskus Heurekan rakentaminen Vantaan Tikkurilaan oli 1980-luvun saavutus (kilpailu: Heikkinen ja Komonen, 1985). Säätiöpohjainen Heureka avattiin yleisölle 1989. Juuret ovat Helsingin yliopistossa, idean esittivät professorit Tapio Markkanen, Hannu I. Miettinen ja Heikki Oja. Kutsukirje oli lähtenyt Helsingin, Espoon ja Vantaan kaupungeille, joista Vantaa tarttui mahdollisuuteen tarjoten tontin ja merkittävää rahoitusta.
43_Heureka_MLR
Tiedekeskukset ovat museoiden rinnakkaisilmiö. Tieteen popularisointi, pedagoginen ote ja elämyksellisyys ovat yhteisiä tavoitteita, pääasiallisena erona se, ettei tiedekeskuksilla ole omia kokoelmia vartioitavanaan. Yleisötiloiltaan tiedekeskus muistuttaa avointa museota, uutuutena planetaario. Vapaus näkyy rakennuksen ulkoasussa, jota avaruusaiheineen voitaneen pitää uutta kokeilevan wau-arkkitehtuurin ensiesiintymisenä meillä.
44_Arktikum_MLR
Ajatus Arktisesta instituutista ja museosta virisi 1970-luvulla Oulussa ja Rovaniemellä. Konkreettinen aloite tuli Euroopan Kulttuurisäätiön Suomen osastolta. Vuosina 1983–84 järjestettiin arktisille maille suunnattu arkkitehtuurikilpailu, johon tuli 184 ehdotusta. Toteutus sidottiin Suomen itsenäisyyden 75-vuotisjuhlintaan, ja siitä kasvoi kansallinen hanke. Valtion talousarvioon varattiin varoja vuodelle 1988. Rovaniemen kaupunki tuli toiseksi maksajaksi ehdolla, että Aallon Lappia-talossa sijainnut maakuntamuseo sai keskuksesta uudet tilat.
Rakennus valmistui 1992, siinä toimivat näyttelyineen Lapin maakuntamuseo sekä Lapin yliopiston Arktinen keskus. Voittaneen tanskalaisen Claus Bonderupin työryhmän ehdotus on yhdistelmä klassisen museorakennuksen osia uudella tavalla yhdisteltynä. Valmiin rakennuksen julkisivu kaupunkiin päin muistuttaa temppelin päätyä pylväikköineen, oven takaa avautuu valkoiseksi maalattu kaksikerroksinen moderni hallimainen tila. Sen keskikäytävää kattaa lasinen galleria, joka valaistuna putkena jatkuu ulos ja Ounasjoen törmään upotettuna rantaan saakka.
1990-luvun viimeiset valtakunnalliset erikoismuseot – Lusto Savonlinnaan (1994), Siida Inariin (1998) ja Sarka Loimaalle (2005)
Uusiksi vastuumuseoiksi 1990-luvulla määriteltiin metsä-, saamelais- ja maatalousmuseo. Maan ensimmäiset kaupunkien museot olivat syntyneet 1800-luvulla rannikkokaupunkeihin. Sen jälkeen museoita rakennettiin myös sisämaahan niin, että kaupunkien museot ylsivät myös Keski- ja Itä-Suomeen, kunnes lopulta kotiseutu- ja pitäjänmuseoiden tiheä verkosto kattoi koko maan.
Pohjois-Suomi ja Lappi olivat olleet aktiivisia 1970-luvulta lähtien, erityisesti taidemuseoiden osalta. Yliopistojen lisäksi kaupungit kunnostautuivat: Oulun ja Rovaniemen kaupunginjohtajat Matti Rossi ja Matti Pelttari johtivat Suomen museoliiton hallitusta vuoron perään. Museot ja tiedekeskukset alkoivat hakeutua yhteen, kun viimeisiä valtakunnallisia museoita perustettiin. Niistä päätettäessä hajautuspolitiikka oli voimissaan, lisäksi valintaa tukivat matkailunäkökohdat.
45_Lusto_MLR 45a_Lusto_SLJe
Suomen metsämuseo Lusto Savonlinnan Punkaharjulla on metsäalan ja metsäkulttuurin erikoismuseo, joka avattiin tervalla ja pellavaöljyllä kyllästetyllä lehtikuusilaudalla vuoratussa betonirakennuksessa 1994. Vuonna 1988 perustettu säätiö järjesti yhdessä maa- ja metsätalousministeriön ja Punkaharjun kunnan kanssa avoimen arkkitehtuurikilpailun Suomalaisen metsätietokeskuksen rakentamiseksi vuonna 1990. Kokoelman painopiste on metsäkoneissa. Näyttelyt kertovat ihmisen ja metsän välisestä vuorovaikutuksesta.
Arkkitehtikilpailuun tuli 103 ehdotusta, ja voittaneet arkkitehdit Rainer Mahlamäki ja Ilmari Lahdelma suunnittelivat ”suomalaista modernismia” edustavan rakennuksen metsämaisemaan. Harjulta museon sisäänkäynnille johtaa katettu silta. Päänäyttely on museon pyöreässä osassa, jonka kalusteet ovat kiinteä osa arkkitehtuuria. Nimi Lusto tulee näyttelytilan (1 500 m²) muodosta ja merkitsee puun vuosikasvua, mutta siinä voi nähdä muistuman antiikin pyörötemppelistä.
46_Siida Nemo bis WLM 46a_Siida Nemo bis WLM
Saamelaismuseo oli perustettu ulkomuseona Inariin 1959. Jonkin aikaa sen jälkeen oli julistettu suunnittelukilpailu Oulun yliopiston arkkitehtiosaston opiskelijoille. Voittaja valittiin jatkokehittelyn pohjaksi, mutta asia hautautui ja herätettiin henkiin 1984. Hanke alkoi rahoituksen puolesta toteutua, kun museoon yhdistettiin Metsähallituksen Ylä-Lapin luontokeskus. Juhani Pallasmaan suunnittelema näyttelyrakennus Siida (merkitsee saamelaiskylää) valmistui metsäiseen rinteeseen museoalueen reunassa olleen sorakuopan paikalle vuonna 1998.
Sisäänkäynti on pohjakerroksessa, josta pääkerrokseen noustaan loivaa ramppia pitkin. Rakennus on istutettu ”pienipiirteiseen maisemaan” sen muotoja seuraten. Runko on teräsbetonia ja terästä, julkisivut puuta. Rakennuksen keskelle on koko pituudelta avattu ”luonnonvalorailo”.
Rakennussuunnittelu tapahtui rinnakkain näyttelysuunnittelun kanssa. Johdantonäyttely esittelee pohjoisen luonnon ja kulttuurin kehitysvaiheita jääkaudesta tähän päivään. Näyttelytilat ovat yönsinisiä, muut tilat yleisväritykseltään valkoisia. Museosta tuli kokonaistaideteos, jossa tavoitteena oli ”yhdistää tieteellinen sisältö teatterin tai taidenäyttelyn kaltaiseen elämyksellisyyteen”. Esineiden ja kuvien taustalla on eri vuodenaikoja ja luonnontapahtumia kuvaava äänimaisema.[54]
Suomen maatalousmuseo Sarka Loimaalla on viimeinen 1990-luvulla alkunsa saanut erikoismuseo. Suomen maatalouskonemuseosäätiö perustettiin 1992. ”Suomalaisen maatalouden 3000-vuotisen tarinan” kertova museo avattiin 2005 (arkkitehti Sarlotta Narjus).
Uudelle vuosituhannelle siirryttyä järjestettiin arkkitehtuurikilpailu Kotkan Merikeskus Vellamosta vuonna 2004 ja rakennus avattiin 2008 (Arkkitehtitoimisto Lahdelma & Mahlamäki Oy).[55]
Nykytaiteen museo Kiasma, Helsinki (1998)
Keskustelu museoarkkitehtuurista alkoi 1960-luvun vaihteessa Helsingin keskustasuunnitelmasta. Siihen oli merkitty paikka museolle, ja tänne uusi rakennus liki 40 vuotta myöhemmin nousikin. Nykytaiteen museon perustamisvuonna 1990 ilmestyi amerikkalaisen taidehistorioitsijan Douglas Crimpin pamfletti Museon raunioilla, jossa tämä pohti museon roolia ja vastuita, erityisesti nykytaiteen määrittelyssä ja ohjailussa.
47_Kiasma_MLR.jpg 48_leikkaus_MLR.jpg
Nykytaiteen museon rakennushanke lähti rivakasti käyntiin, lamasta oli etua. Kaupungin rakennuskoneistolta loppuivat työt, joten tehtiin sopimus, jonka mukaan valtio tilasi työn kaupungilta ja rakennuksen valmistuttua maksoi sen luovuttamalla museotalon arvoa vastaavan määrän rakennusmaata toisaalta.
Pohjoismaiden ja Baltian arkkitehdeille suunnattu suunnittelukilpailu käytiin 1993. Lisäksi oli kutsuttu mukaan neljä kansainvälisesti tunnettua arkkitehtiä. Ehdotuksia tuli 516, joista voittajaksi nousi yhdysvaltalaisen Steven Hollin[56] ehdotus Chiasma (silmistä aivoihin johtavien näköhermojen risteys).
Ehdotusta laatiessaan Holl kävi Helsingissä. Hän asui museotontin viereisen Vaakuna-hotellin ylimmässä kerroksessa, josta tutkiskeli tonttia ja sitä ympäröivää kaupunkinäkymää. Myöhemmin hän tutustui suomalaiseen rakennusperintöön kuten Petäjäveden kirkkoon. Rakennustyön käynnistyttyä suunnittelun Suomen tukikohtana toimi arkkitehti Juhani Pallasmaan toimisto.
49b_Kiasma_Sakari Kiuru MV 49_Kiasma_Tirri MV
Arkkitehtuurikilpailun voittajasta syntyi kohu. Arkkitehdit pitivät tonttia ahtaana ja rakennusta mahdottomana, koska sitä ei voisi muuttaa tai laajentaa, mikä oli ollut ihanne. Syytettiin myös amerikkalaisuuden palvonnasta. Kovin vastustus tuli Mannerheimin ratsastajapatsaan suojelijoiden taholta. Patsas jäi paikalleen, ja Holl otti sen huomioon etsiessään muotoa, joka nivoisi yhteen ristiriitaisetkin elementit tonttia ympäröivässä rakennus- ja puistomaisemassa. Rakennus valmistui 1998. Se huipensi 1900-luvun jälkipuolen museorakentamisen.
Kiasman viisi kerrosta ovat toisiinsa nähden hieman limittäin ja kaarevien seinäpintojen vuoksi eri suuruisia. Museotilaa on 9 100 m². Runko on terästä, ja betoni kaartuu kauniisti. Ulkoseinät ja katto on päällystetty sinkki-, alumiini-, messinki- ja lasilevyillä, sisäpuoli on valkoinen. Pohjakerroksen yleisötiloissa on myös puuta ja voimakkaita värejä. Rakennus on avoimen ja suljetun tilan yhdistelmä. Holl pitää taloaan avoimena, koska siellä on portaikkoja, hissejä ja oviaukkoja, jotka mahdollistavat vapaan liikkumisen. Sisään tullessa avautuu näkymä talon läpi, sekä päästä päähän, että alhaalta ylös valokattoon saakka.
Portaikon sijasta museoon noustaan kaarevaa ramppia pitkin. Sen molemmin puolin seinien takana on huoneesta huoneeseen kuljettavia näyttelysaleja, ylimpänä kattoikkunoin varustettu muita korkeampi sali. Luonnonvalon käyttö on Hollille tärkeää, sen vuoksi molemmissa päädyissä sekä länsisivulla on isot panoraamaikkunat. Näyttelysalien seinät ovat valkeat, lattiat tummanharmaata betonia. Tekniikka on upotettu, eikä arkkitehtonisia elementtejä ole korostettu. Tavoitteena on tila, jossa katsoja voi kohdata teoksen häiriöttä.
Lopputulos on paikkaansa sopeutuva talo, jonka kaartuva harmaa ulkokuori on kuin kotilo tai simpukka, joka suojelee helmenhohtoista sisältöään: ulkoa pieneltä vaikuttava rakennus avautuu sisääntulijalle juhlavan avarana. Valkoisen tarkoitus on pyhittää taide. Amerikkalainen arkkitehtuurintutkija Victoria Newhouse kirjoitti jo ennen Kiasman valmistumista kirjassaan Towards a New Museum näkevänsä Kiasman ”pyhänä tilana”.[57]
Museorakennuksen ikuisuuskysymyksiä
Museorakentamisen rinnalla on laaja kysymys: millaista historiakäsitystä museot ylläpitävät, kenen tarinoita kertovat. Vaikka museorakennukset muuttuvat, museorakentamisessa on edelleen ratkaistava samoja kysymyksiä. Halutaanko uudisrakennus vai korjataanko jokin vanha. Halutaanko luonnonrauhaan vai kaupungin ytimeen. Miten rakennus suhteutuu sisältöönsä, miten ympäristöönsä. Painotetaanko pysyvää näyttelyä vai vaihtuvaa ohjelmistoa. Onko näyttelykierto avoin vai suljettu ja miksi niin on. Mikä on luonnonvalon ja keinovalon suhde. Tehdäänkö temppeli vai toivotaanko toria.
Kirjoittaja
Filosofian tohtori, dosentti, tietokirjailija Marja-Liisa Rönkkö on toiminut eri tehtävissä lukuisissa museoissa, kuten museonjohtajana Helsingin kaupunginmuseossa 1978–1990 ja ylijohtajana Valtion taidemuseossa 1990–2000. Artikkeli perustuu tekijän väitöskirjaan Louvren ja Louisianan perilliset. Suomalainen taidemuseo sekä artikkeleihin teoksissa Museologia tänään ja Suomen museohistoria.
Artikkeli on julkaistu 2020.
Tiedekeskukset ovat museoiden rinnakkaisilmiö. Tieteen popularisointi, pedagoginen ote ja elämyksellisyys ovat yhteisiä tavoitteita, pääasiallisena erona se, ettei tiedekeskuksilla ole omia kokoelmia vartioitavanaan. Yleisötiloiltaan tiedekeskus muistuttaa avointa museota, uutuutena planetaario. Vapaus näkyy rakennuksen ulkoasussa, jota avaruusaiheineen voitaneen pitää uutta kokeilevan wau-arkkitehtuurin ensiesiintymisenä meillä.
Ajatus Arktisesta instituutista ja museosta virisi 1970-luvulla Oulussa ja Rovaniemellä. Konkreettinen aloite tuli Euroopan Kulttuurisäätiön Suomen osastolta. Vuosina 1983–84 järjestettiin arktisille maille suunnattu arkkitehtuurikilpailu, johon tuli 184 ehdotusta. Toteutus sidottiin Suomen itsenäisyyden 75-vuotisjuhlintaan, ja siitä kasvoi kansallinen hanke. Valtion talousarvioon varattiin varoja vuodelle 1988. Rovaniemen kaupunki tuli toiseksi maksajaksi ehdolla, että Aallon Lappia-talossa sijainnut maakuntamuseo sai keskuksesta uudet tilat.
Rakennus valmistui 1992, siinä toimivat näyttelyineen Lapin maakuntamuseo sekä Lapin yliopiston Arktinen keskus. Voittaneen tanskalaisen Claus Bonderupin työryhmän ehdotus on yhdistelmä klassisen museorakennuksen osia uudella tavalla yhdisteltynä. Valmiin rakennuksen julkisivu kaupunkiin päin muistuttaa temppelin päätyä pylväikköineen, oven takaa avautuu valkoiseksi maalattu kaksikerroksinen moderni hallimainen tila. Sen keskikäytävää kattaa lasinen galleria, joka valaistuna putkena jatkuu ulos ja Ounasjoen törmään upotettuna rantaan saakka.
1990-luvun viimeiset valtakunnalliset erikoismuseot – Lusto Savonlinnaan (1994), Siida Inariin (1998) ja Sarka Loimaalle (2005)
Uusiksi vastuumuseoiksi 1990-luvulla määriteltiin metsä-, saamelais- ja maatalousmuseo. Maan ensimmäiset kaupunkien museot olivat syntyneet 1800-luvulla rannikkokaupunkeihin. Sen jälkeen museoita rakennettiin myös sisämaahan niin, että kaupunkien museot ylsivät myös Keski- ja Itä-Suomeen, kunnes lopulta kotiseutu- ja pitäjänmuseoiden tiheä verkosto kattoi koko maan.
Pohjois-Suomi ja Lappi olivat olleet aktiivisia 1970-luvulta lähtien, erityisesti taidemuseoiden osalta. Yliopistojen lisäksi kaupungit kunnostautuivat: Oulun ja Rovaniemen kaupunginjohtajat Matti Rossi ja Matti Pelttari johtivat Suomen museoliiton hallitusta vuoron perään. Museot ja tiedekeskukset alkoivat hakeutua yhteen, kun viimeisiä valtakunnallisia museoita perustettiin. Niistä päätettäessä hajautuspolitiikka oli voimissaan, lisäksi valintaa tukivat matkailunäkökohdat.
45_Lusto_MLR 45a_Lusto_SLJe
Suomen metsämuseo Lusto Savonlinnan Punkaharjulla on metsäalan ja metsäkulttuurin erikoismuseo, joka avattiin tervalla ja pellavaöljyllä kyllästetyllä lehtikuusilaudalla vuoratussa betonirakennuksessa 1994. Vuonna 1988 perustettu säätiö järjesti yhdessä maa- ja metsätalousministeriön ja Punkaharjun kunnan kanssa avoimen arkkitehtuurikilpailun Suomalaisen metsätietokeskuksen rakentamiseksi vuonna 1990. Kokoelman painopiste on metsäkoneissa. Näyttelyt kertovat ihmisen ja metsän välisestä vuorovaikutuksesta.
Arkkitehtikilpailuun tuli 103 ehdotusta, ja voittaneet arkkitehdit Rainer Mahlamäki ja Ilmari Lahdelma suunnittelivat ”suomalaista modernismia” edustavan rakennuksen metsämaisemaan. Harjulta museon sisäänkäynnille johtaa katettu silta. Päänäyttely on museon pyöreässä osassa, jonka kalusteet ovat kiinteä osa arkkitehtuuria. Nimi Lusto tulee näyttelytilan (1 500 m²) muodosta ja merkitsee puun vuosikasvua, mutta siinä voi nähdä muistuman antiikin pyörötemppelistä.
46_Siida Nemo bis WLM 46a_Siida Nemo bis WLM
Saamelaismuseo oli perustettu ulkomuseona Inariin 1959. Jonkin aikaa sen jälkeen oli julistettu suunnittelukilpailu Oulun yliopiston arkkitehtiosaston opiskelijoille. Voittaja valittiin jatkokehittelyn pohjaksi, mutta asia hautautui ja herätettiin henkiin 1984. Hanke alkoi rahoituksen puolesta toteutua, kun museoon yhdistettiin Metsähallituksen Ylä-Lapin luontokeskus. Juhani Pallasmaan suunnittelema näyttelyrakennus Siida (merkitsee saamelaiskylää) valmistui metsäiseen rinteeseen museoalueen reunassa olleen sorakuopan paikalle vuonna 1998.
Sisäänkäynti on pohjakerroksessa, josta pääkerrokseen noustaan loivaa ramppia pitkin. Rakennus on istutettu ”pienipiirteiseen maisemaan” sen muotoja seuraten. Runko on teräsbetonia ja terästä, julkisivut puuta. Rakennuksen keskelle on koko pituudelta avattu ”luonnonvalorailo”.
Rakennussuunnittelu tapahtui rinnakkain näyttelysuunnittelun kanssa. Johdantonäyttely esittelee pohjoisen luonnon ja kulttuurin kehitysvaiheita jääkaudesta tähän päivään. Näyttelytilat ovat yönsinisiä, muut tilat yleisväritykseltään valkoisia. Museosta tuli kokonaistaideteos, jossa tavoitteena oli ”yhdistää tieteellinen sisältö teatterin tai taidenäyttelyn kaltaiseen elämyksellisyyteen”. Esineiden ja kuvien taustalla on eri vuodenaikoja ja luonnontapahtumia kuvaava äänimaisema.[54]
Suomen maatalousmuseo Sarka Loimaalla on viimeinen 1990-luvulla alkunsa saanut erikoismuseo. Suomen maatalouskonemuseosäätiö perustettiin 1992. ”Suomalaisen maatalouden 3000-vuotisen tarinan” kertova museo avattiin 2005 (arkkitehti Sarlotta Narjus).
Uudelle vuosituhannelle siirryttyä järjestettiin arkkitehtuurikilpailu Kotkan Merikeskus Vellamosta vuonna 2004 ja rakennus avattiin 2008 (Arkkitehtitoimisto Lahdelma & Mahlamäki Oy).[55]
Nykytaiteen museo Kiasma, Helsinki (1998)
Keskustelu museoarkkitehtuurista alkoi 1960-luvun vaihteessa Helsingin keskustasuunnitelmasta. Siihen oli merkitty paikka museolle, ja tänne uusi rakennus liki 40 vuotta myöhemmin nousikin. Nykytaiteen museon perustamisvuonna 1990 ilmestyi amerikkalaisen taidehistorioitsijan Douglas Crimpin pamfletti Museon raunioilla, jossa tämä pohti museon roolia ja vastuita, erityisesti nykytaiteen määrittelyssä ja ohjailussa.
47_Kiasma_MLR.jpg 48_leikkaus_MLR.jpg
Nykytaiteen museon rakennushanke lähti rivakasti käyntiin, lamasta oli etua. Kaupungin rakennuskoneistolta loppuivat työt, joten tehtiin sopimus, jonka mukaan valtio tilasi työn kaupungilta ja rakennuksen valmistuttua maksoi sen luovuttamalla museotalon arvoa vastaavan määrän rakennusmaata toisaalta.
Pohjoismaiden ja Baltian arkkitehdeille suunnattu suunnittelukilpailu käytiin 1993. Lisäksi oli kutsuttu mukaan neljä kansainvälisesti tunnettua arkkitehtiä. Ehdotuksia tuli 516, joista voittajaksi nousi yhdysvaltalaisen Steven Hollin[56] ehdotus Chiasma (silmistä aivoihin johtavien näköhermojen risteys).
Ehdotusta laatiessaan Holl kävi Helsingissä. Hän asui museotontin viereisen Vaakuna-hotellin ylimmässä kerroksessa, josta tutkiskeli tonttia ja sitä ympäröivää kaupunkinäkymää. Myöhemmin hän tutustui suomalaiseen rakennusperintöön kuten Petäjäveden kirkkoon. Rakennustyön käynnistyttyä suunnittelun Suomen tukikohtana toimi arkkitehti Juhani Pallasmaan toimisto.
49b_Kiasma_Sakari Kiuru MV 49_Kiasma_Tirri MV
Arkkitehtuurikilpailun voittajasta syntyi kohu. Arkkitehdit pitivät tonttia ahtaana ja rakennusta mahdottomana, koska sitä ei voisi muuttaa tai laajentaa, mikä oli ollut ihanne. Syytettiin myös amerikkalaisuuden palvonnasta. Kovin vastustus tuli Mannerheimin ratsastajapatsaan suojelijoiden taholta. Patsas jäi paikalleen, ja Holl otti sen huomioon etsiessään muotoa, joka nivoisi yhteen ristiriitaisetkin elementit tonttia ympäröivässä rakennus- ja puistomaisemassa. Rakennus valmistui 1998. Se huipensi 1900-luvun jälkipuolen museorakentamisen.
Kiasman viisi kerrosta ovat toisiinsa nähden hieman limittäin ja kaarevien seinäpintojen vuoksi eri suuruisia. Museotilaa on 9 100 m². Runko on terästä, ja betoni kaartuu kauniisti. Ulkoseinät ja katto on päällystetty sinkki-, alumiini-, messinki- ja lasilevyillä, sisäpuoli on valkoinen. Pohjakerroksen yleisötiloissa on myös puuta ja voimakkaita värejä. Rakennus on avoimen ja suljetun tilan yhdistelmä. Holl pitää taloaan avoimena, koska siellä on portaikkoja, hissejä ja oviaukkoja, jotka mahdollistavat vapaan liikkumisen. Sisään tullessa avautuu näkymä talon läpi, sekä päästä päähän, että alhaalta ylös valokattoon saakka.
Portaikon sijasta museoon noustaan kaarevaa ramppia pitkin. Sen molemmin puolin seinien takana on huoneesta huoneeseen kuljettavia näyttelysaleja, ylimpänä kattoikkunoin varustettu muita korkeampi sali. Luonnonvalon käyttö on Hollille tärkeää, sen vuoksi molemmissa päädyissä sekä länsisivulla on isot panoraamaikkunat. Näyttelysalien seinät ovat valkeat, lattiat tummanharmaata betonia. Tekniikka on upotettu, eikä arkkitehtonisia elementtejä ole korostettu. Tavoitteena on tila, jossa katsoja voi kohdata teoksen häiriöttä.
Lopputulos on paikkaansa sopeutuva talo, jonka kaartuva harmaa ulkokuori on kuin kotilo tai simpukka, joka suojelee helmenhohtoista sisältöään: ulkoa pieneltä vaikuttava rakennus avautuu sisääntulijalle juhlavan avarana. Valkoisen tarkoitus on pyhittää taide. Amerikkalainen arkkitehtuurintutkija Victoria Newhouse kirjoitti jo ennen Kiasman valmistumista kirjassaan Towards a New Museum näkevänsä Kiasman ”pyhänä tilana”.[57]
Museorakennuksen ikuisuuskysymyksiä
Museorakentamisen rinnalla on laaja kysymys: millaista historiakäsitystä museot ylläpitävät, kenen tarinoita kertovat. Vaikka museorakennukset muuttuvat, museorakentamisessa on edelleen ratkaistava samoja kysymyksiä. Halutaanko uudisrakennus vai korjataanko jokin vanha. Halutaanko luonnonrauhaan vai kaupungin ytimeen. Miten rakennus suhteutuu sisältöönsä, miten ympäristöönsä. Painotetaanko pysyvää näyttelyä vai vaihtuvaa ohjelmistoa. Onko näyttelykierto avoin vai suljettu ja miksi niin on. Mikä on luonnonvalon ja keinovalon suhde. Tehdäänkö temppeli vai toivotaanko toria.
Kirjoittaja
Filosofian tohtori, dosentti, tietokirjailija Marja-Liisa Rönkkö on toiminut eri tehtävissä lukuisissa museoissa, kuten museonjohtajana Helsingin kaupunginmuseossa 1978–1990 ja ylijohtajana Valtion taidemuseossa 1990–2000. Artikkeli perustuu tekijän väitöskirjaan Louvren ja Louisianan perilliset. Suomalainen taidemuseo sekä artikkeleihin teoksissa Museologia tänään ja Suomen museohistoria.
Artikkeli on julkaistu 2020.
Suomen metsämuseo Lusto Savonlinnan Punkaharjulla on metsäalan ja metsäkulttuurin erikoismuseo, joka avattiin tervalla ja pellavaöljyllä kyllästetyllä lehtikuusilaudalla vuoratussa betonirakennuksessa 1994. Vuonna 1988 perustettu säätiö järjesti yhdessä maa- ja metsätalousministeriön ja Punkaharjun kunnan kanssa avoimen arkkitehtuurikilpailun Suomalaisen metsätietokeskuksen rakentamiseksi vuonna 1990. Kokoelman painopiste on metsäkoneissa. Näyttelyt kertovat ihmisen ja metsän välisestä vuorovaikutuksesta.
Arkkitehtikilpailuun tuli 103 ehdotusta, ja voittaneet arkkitehdit Rainer Mahlamäki ja Ilmari Lahdelma suunnittelivat ”suomalaista modernismia” edustavan rakennuksen metsämaisemaan. Harjulta museon sisäänkäynnille johtaa katettu silta. Päänäyttely on museon pyöreässä osassa, jonka kalusteet ovat kiinteä osa arkkitehtuuria. Nimi Lusto tulee näyttelytilan (1 500 m²) muodosta ja merkitsee puun vuosikasvua, mutta siinä voi nähdä muistuman antiikin pyörötemppelistä.
46_Siida Nemo bis WLM 46a_Siida Nemo bis WLM
Saamelaismuseo oli perustettu ulkomuseona Inariin 1959. Jonkin aikaa sen jälkeen oli julistettu suunnittelukilpailu Oulun yliopiston arkkitehtiosaston opiskelijoille. Voittaja valittiin jatkokehittelyn pohjaksi, mutta asia hautautui ja herätettiin henkiin 1984. Hanke alkoi rahoituksen puolesta toteutua, kun museoon yhdistettiin Metsähallituksen Ylä-Lapin luontokeskus. Juhani Pallasmaan suunnittelema näyttelyrakennus Siida (merkitsee saamelaiskylää) valmistui metsäiseen rinteeseen museoalueen reunassa olleen sorakuopan paikalle vuonna 1998.
Sisäänkäynti on pohjakerroksessa, josta pääkerrokseen noustaan loivaa ramppia pitkin. Rakennus on istutettu ”pienipiirteiseen maisemaan” sen muotoja seuraten. Runko on teräsbetonia ja terästä, julkisivut puuta. Rakennuksen keskelle on koko pituudelta avattu ”luonnonvalorailo”.
Rakennussuunnittelu tapahtui rinnakkain näyttelysuunnittelun kanssa. Johdantonäyttely esittelee pohjoisen luonnon ja kulttuurin kehitysvaiheita jääkaudesta tähän päivään. Näyttelytilat ovat yönsinisiä, muut tilat yleisväritykseltään valkoisia. Museosta tuli kokonaistaideteos, jossa tavoitteena oli ”yhdistää tieteellinen sisältö teatterin tai taidenäyttelyn kaltaiseen elämyksellisyyteen”. Esineiden ja kuvien taustalla on eri vuodenaikoja ja luonnontapahtumia kuvaava äänimaisema.[54]
Suomen maatalousmuseo Sarka Loimaalla on viimeinen 1990-luvulla alkunsa saanut erikoismuseo. Suomen maatalouskonemuseosäätiö perustettiin 1992. ”Suomalaisen maatalouden 3000-vuotisen tarinan” kertova museo avattiin 2005 (arkkitehti Sarlotta Narjus).
Uudelle vuosituhannelle siirryttyä järjestettiin arkkitehtuurikilpailu Kotkan Merikeskus Vellamosta vuonna 2004 ja rakennus avattiin 2008 (Arkkitehtitoimisto Lahdelma & Mahlamäki Oy).[55]
Nykytaiteen museo Kiasma, Helsinki (1998)
Keskustelu museoarkkitehtuurista alkoi 1960-luvun vaihteessa Helsingin keskustasuunnitelmasta. Siihen oli merkitty paikka museolle, ja tänne uusi rakennus liki 40 vuotta myöhemmin nousikin. Nykytaiteen museon perustamisvuonna 1990 ilmestyi amerikkalaisen taidehistorioitsijan Douglas Crimpin pamfletti Museon raunioilla, jossa tämä pohti museon roolia ja vastuita, erityisesti nykytaiteen määrittelyssä ja ohjailussa.
47_Kiasma_MLR.jpg 48_leikkaus_MLR.jpg
Nykytaiteen museon rakennushanke lähti rivakasti käyntiin, lamasta oli etua. Kaupungin rakennuskoneistolta loppuivat työt, joten tehtiin sopimus, jonka mukaan valtio tilasi työn kaupungilta ja rakennuksen valmistuttua maksoi sen luovuttamalla museotalon arvoa vastaavan määrän rakennusmaata toisaalta.
Pohjoismaiden ja Baltian arkkitehdeille suunnattu suunnittelukilpailu käytiin 1993. Lisäksi oli kutsuttu mukaan neljä kansainvälisesti tunnettua arkkitehtiä. Ehdotuksia tuli 516, joista voittajaksi nousi yhdysvaltalaisen Steven Hollin[56] ehdotus Chiasma (silmistä aivoihin johtavien näköhermojen risteys).
Ehdotusta laatiessaan Holl kävi Helsingissä. Hän asui museotontin viereisen Vaakuna-hotellin ylimmässä kerroksessa, josta tutkiskeli tonttia ja sitä ympäröivää kaupunkinäkymää. Myöhemmin hän tutustui suomalaiseen rakennusperintöön kuten Petäjäveden kirkkoon. Rakennustyön käynnistyttyä suunnittelun Suomen tukikohtana toimi arkkitehti Juhani Pallasmaan toimisto.
49b_Kiasma_Sakari Kiuru MV 49_Kiasma_Tirri MV
Arkkitehtuurikilpailun voittajasta syntyi kohu. Arkkitehdit pitivät tonttia ahtaana ja rakennusta mahdottomana, koska sitä ei voisi muuttaa tai laajentaa, mikä oli ollut ihanne. Syytettiin myös amerikkalaisuuden palvonnasta. Kovin vastustus tuli Mannerheimin ratsastajapatsaan suojelijoiden taholta. Patsas jäi paikalleen, ja Holl otti sen huomioon etsiessään muotoa, joka nivoisi yhteen ristiriitaisetkin elementit tonttia ympäröivässä rakennus- ja puistomaisemassa. Rakennus valmistui 1998. Se huipensi 1900-luvun jälkipuolen museorakentamisen.
Kiasman viisi kerrosta ovat toisiinsa nähden hieman limittäin ja kaarevien seinäpintojen vuoksi eri suuruisia. Museotilaa on 9 100 m². Runko on terästä, ja betoni kaartuu kauniisti. Ulkoseinät ja katto on päällystetty sinkki-, alumiini-, messinki- ja lasilevyillä, sisäpuoli on valkoinen. Pohjakerroksen yleisötiloissa on myös puuta ja voimakkaita värejä. Rakennus on avoimen ja suljetun tilan yhdistelmä. Holl pitää taloaan avoimena, koska siellä on portaikkoja, hissejä ja oviaukkoja, jotka mahdollistavat vapaan liikkumisen. Sisään tullessa avautuu näkymä talon läpi, sekä päästä päähän, että alhaalta ylös valokattoon saakka.
Portaikon sijasta museoon noustaan kaarevaa ramppia pitkin. Sen molemmin puolin seinien takana on huoneesta huoneeseen kuljettavia näyttelysaleja, ylimpänä kattoikkunoin varustettu muita korkeampi sali. Luonnonvalon käyttö on Hollille tärkeää, sen vuoksi molemmissa päädyissä sekä länsisivulla on isot panoraamaikkunat. Näyttelysalien seinät ovat valkeat, lattiat tummanharmaata betonia. Tekniikka on upotettu, eikä arkkitehtonisia elementtejä ole korostettu. Tavoitteena on tila, jossa katsoja voi kohdata teoksen häiriöttä.
Lopputulos on paikkaansa sopeutuva talo, jonka kaartuva harmaa ulkokuori on kuin kotilo tai simpukka, joka suojelee helmenhohtoista sisältöään: ulkoa pieneltä vaikuttava rakennus avautuu sisääntulijalle juhlavan avarana. Valkoisen tarkoitus on pyhittää taide. Amerikkalainen arkkitehtuurintutkija Victoria Newhouse kirjoitti jo ennen Kiasman valmistumista kirjassaan Towards a New Museum näkevänsä Kiasman ”pyhänä tilana”.[57]
Museorakennuksen ikuisuuskysymyksiä
Museorakentamisen rinnalla on laaja kysymys: millaista historiakäsitystä museot ylläpitävät, kenen tarinoita kertovat. Vaikka museorakennukset muuttuvat, museorakentamisessa on edelleen ratkaistava samoja kysymyksiä. Halutaanko uudisrakennus vai korjataanko jokin vanha. Halutaanko luonnonrauhaan vai kaupungin ytimeen. Miten rakennus suhteutuu sisältöönsä, miten ympäristöönsä. Painotetaanko pysyvää näyttelyä vai vaihtuvaa ohjelmistoa. Onko näyttelykierto avoin vai suljettu ja miksi niin on. Mikä on luonnonvalon ja keinovalon suhde. Tehdäänkö temppeli vai toivotaanko toria.
Kirjoittaja
Filosofian tohtori, dosentti, tietokirjailija Marja-Liisa Rönkkö on toiminut eri tehtävissä lukuisissa museoissa, kuten museonjohtajana Helsingin kaupunginmuseossa 1978–1990 ja ylijohtajana Valtion taidemuseossa 1990–2000. Artikkeli perustuu tekijän väitöskirjaan Louvren ja Louisianan perilliset. Suomalainen taidemuseo sekä artikkeleihin teoksissa Museologia tänään ja Suomen museohistoria.
Artikkeli on julkaistu 2020.
Saamelaismuseo oli perustettu ulkomuseona Inariin 1959. Jonkin aikaa sen jälkeen oli julistettu suunnittelukilpailu Oulun yliopiston arkkitehtiosaston opiskelijoille. Voittaja valittiin jatkokehittelyn pohjaksi, mutta asia hautautui ja herätettiin henkiin 1984. Hanke alkoi rahoituksen puolesta toteutua, kun museoon yhdistettiin Metsähallituksen Ylä-Lapin luontokeskus. Juhani Pallasmaan suunnittelema näyttelyrakennus Siida (merkitsee saamelaiskylää) valmistui metsäiseen rinteeseen museoalueen reunassa olleen sorakuopan paikalle vuonna 1998.
Sisäänkäynti on pohjakerroksessa, josta pääkerrokseen noustaan loivaa ramppia pitkin. Rakennus on istutettu ”pienipiirteiseen maisemaan” sen muotoja seuraten. Runko on teräsbetonia ja terästä, julkisivut puuta. Rakennuksen keskelle on koko pituudelta avattu ”luonnonvalorailo”.
Rakennussuunnittelu tapahtui rinnakkain näyttelysuunnittelun kanssa. Johdantonäyttely esittelee pohjoisen luonnon ja kulttuurin kehitysvaiheita jääkaudesta tähän päivään. Näyttelytilat ovat yönsinisiä, muut tilat yleisväritykseltään valkoisia. Museosta tuli kokonaistaideteos, jossa tavoitteena oli ”yhdistää tieteellinen sisältö teatterin tai taidenäyttelyn kaltaiseen elämyksellisyyteen”. Esineiden ja kuvien taustalla on eri vuodenaikoja ja luonnontapahtumia kuvaava äänimaisema.[54]
Suomen maatalousmuseo Sarka Loimaalla on viimeinen 1990-luvulla alkunsa saanut erikoismuseo. Suomen maatalouskonemuseosäätiö perustettiin 1992. ”Suomalaisen maatalouden 3000-vuotisen tarinan” kertova museo avattiin 2005 (arkkitehti Sarlotta Narjus).
Uudelle vuosituhannelle siirryttyä järjestettiin arkkitehtuurikilpailu Kotkan Merikeskus Vellamosta vuonna 2004 ja rakennus avattiin 2008 (Arkkitehtitoimisto Lahdelma & Mahlamäki Oy).[55]
Nykytaiteen museo Kiasma, Helsinki (1998)
Keskustelu museoarkkitehtuurista alkoi 1960-luvun vaihteessa Helsingin keskustasuunnitelmasta. Siihen oli merkitty paikka museolle, ja tänne uusi rakennus liki 40 vuotta myöhemmin nousikin. Nykytaiteen museon perustamisvuonna 1990 ilmestyi amerikkalaisen taidehistorioitsijan Douglas Crimpin pamfletti Museon raunioilla, jossa tämä pohti museon roolia ja vastuita, erityisesti nykytaiteen määrittelyssä ja ohjailussa.
Nykytaiteen museon rakennushanke lähti rivakasti käyntiin, lamasta oli etua. Kaupungin rakennuskoneistolta loppuivat työt, joten tehtiin sopimus, jonka mukaan valtio tilasi työn kaupungilta ja rakennuksen valmistuttua maksoi sen luovuttamalla museotalon arvoa vastaavan määrän rakennusmaata toisaalta.
Pohjoismaiden ja Baltian arkkitehdeille suunnattu suunnittelukilpailu käytiin 1993. Lisäksi oli kutsuttu mukaan neljä kansainvälisesti tunnettua arkkitehtiä. Ehdotuksia tuli 516, joista voittajaksi nousi yhdysvaltalaisen Steven Hollin[56] ehdotus Chiasma (silmistä aivoihin johtavien näköhermojen risteys).
Ehdotusta laatiessaan Holl kävi Helsingissä. Hän asui museotontin viereisen Vaakuna-hotellin ylimmässä kerroksessa, josta tutkiskeli tonttia ja sitä ympäröivää kaupunkinäkymää. Myöhemmin hän tutustui suomalaiseen rakennusperintöön kuten Petäjäveden kirkkoon. Rakennustyön käynnistyttyä suunnittelun Suomen tukikohtana toimi arkkitehti Juhani Pallasmaan toimisto.
Arkkitehtuurikilpailun voittajasta syntyi kohu. Arkkitehdit pitivät tonttia ahtaana ja rakennusta mahdottomana, koska sitä ei voisi muuttaa tai laajentaa, mikä oli ollut ihanne. Syytettiin myös amerikkalaisuuden palvonnasta. Kovin vastustus tuli Mannerheimin ratsastajapatsaan suojelijoiden taholta. Patsas jäi paikalleen, ja Holl otti sen huomioon etsiessään muotoa, joka nivoisi yhteen ristiriitaisetkin elementit tonttia ympäröivässä rakennus- ja puistomaisemassa. Rakennus valmistui 1998. Se huipensi 1900-luvun jälkipuolen museorakentamisen.
Kiasman viisi kerrosta ovat toisiinsa nähden hieman limittäin ja kaarevien seinäpintojen vuoksi eri suuruisia. Museotilaa on 9 100 m². Runko on terästä, ja betoni kaartuu kauniisti. Ulkoseinät ja katto on päällystetty sinkki-, alumiini-, messinki- ja lasilevyillä, sisäpuoli on valkoinen. Pohjakerroksen yleisötiloissa on myös puuta ja voimakkaita värejä. Rakennus on avoimen ja suljetun tilan yhdistelmä. Holl pitää taloaan avoimena, koska siellä on portaikkoja, hissejä ja oviaukkoja, jotka mahdollistavat vapaan liikkumisen. Sisään tullessa avautuu näkymä talon läpi, sekä päästä päähän, että alhaalta ylös valokattoon saakka.
Portaikon sijasta museoon noustaan kaarevaa ramppia pitkin. Sen molemmin puolin seinien takana on huoneesta huoneeseen kuljettavia näyttelysaleja, ylimpänä kattoikkunoin varustettu muita korkeampi sali. Luonnonvalon käyttö on Hollille tärkeää, sen vuoksi molemmissa päädyissä sekä länsisivulla on isot panoraamaikkunat. Näyttelysalien seinät ovat valkeat, lattiat tummanharmaata betonia. Tekniikka on upotettu, eikä arkkitehtonisia elementtejä ole korostettu. Tavoitteena on tila, jossa katsoja voi kohdata teoksen häiriöttä.
Lopputulos on paikkaansa sopeutuva talo, jonka kaartuva harmaa ulkokuori on kuin kotilo tai simpukka, joka suojelee helmenhohtoista sisältöään: ulkoa pieneltä vaikuttava rakennus avautuu sisääntulijalle juhlavan avarana. Valkoisen tarkoitus on pyhittää taide. Amerikkalainen arkkitehtuurintutkija Victoria Newhouse kirjoitti jo ennen Kiasman valmistumista kirjassaan Towards a New Museum näkevänsä Kiasman ”pyhänä tilana”.[57]
Museorakennuksen ikuisuuskysymyksiä
Museorakentamisen rinnalla on laaja kysymys: millaista historiakäsitystä museot ylläpitävät, kenen tarinoita kertovat. Vaikka museorakennukset muuttuvat, museorakentamisessa on edelleen ratkaistava samoja kysymyksiä. Halutaanko uudisrakennus vai korjataanko jokin vanha. Halutaanko luonnonrauhaan vai kaupungin ytimeen. Miten rakennus suhteutuu sisältöönsä, miten ympäristöönsä. Painotetaanko pysyvää näyttelyä vai vaihtuvaa ohjelmistoa. Onko näyttelykierto avoin vai suljettu ja miksi niin on. Mikä on luonnonvalon ja keinovalon suhde. Tehdäänkö temppeli vai toivotaanko toria.
Kirjoittaja
Filosofian tohtori, dosentti, tietokirjailija Marja-Liisa Rönkkö on toiminut eri tehtävissä lukuisissa museoissa, kuten museonjohtajana Helsingin kaupunginmuseossa 1978–1990 ja ylijohtajana Valtion taidemuseossa 1990–2000. Artikkeli perustuu tekijän väitöskirjaan Louvren ja Louisianan perilliset. Suomalainen taidemuseo sekä artikkeleihin teoksissa Museologia tänään ja Suomen museohistoria.
Artikkeli on julkaistu 2020.
Lähteet
Aloi, Roberto 1962. Musei. Architettura – Tecnica. Milano: Hoepli.
Anttila, Toivo 1951. Artikkelit: Lainajyvästöistä, Kivinavetasta museotalo. Tiedotuslehdessä Museoliitto 4/1951. Helsinki: Suomen museoliitto.
Arkkitehti 1934, 1937, 1985.
Aurasmaa, Anne 1999. Olipa kerran Kiasma. Muistimatka museon historiaan. Helsinki: Kiasma / Otava.
Bonsdorff, Bengt von 1975. Elävä museo. Teoksessa Muuttuva museo.Toim. Arja Nissinen ja Kaarina Rissanen. Helsinki: Gaudeamus.
Brown, Catherine R. - Fleissig, William B. - Morrish, William R. 1989. Building for the Arts. A Guidebook for the Planning and Design of Cultural Facilities. Santa Fe, New Mexico: Western States Arts Federation.
Cornell, Elias 1968. Arkitekturhistoria. Textdel. Stockholm: Almqvist & Wiksell / Gebers förlag.
Crimp, Douglas 1990. Museon raunioilla. Helsinki: Kustannusosakeyhtiö Taide ja Valokuvataiteen museo.
Didrichsenin taide- ja kulttuurimuseo 2008. Helsinki: Didrichsenin taidemuseon julkaisu nro 29.
Eskola, Heikki 2016. Sarka – museohankkeen historiaa. Julkaisussa Laari 2015. Suomen maatalousmuseo Saran vuosikirja. Suomen maatalousmuseo: Painola.
Form Function Finland 1995, 1998.
Heinonen, Jouko 2010. Kotiseutumuseoiden ja muiden paikallismuseoiden synty. Teoksessa Suomen museohistoria. Suomalaisen Kirjallisuuden Seuran Toimituksia 1265. Tieto. Toim. Susanna Pettersson ja Pauliina Kinanen. Helsinki: SKS.
Helsingin Sanomat 1998.
Härö, Mikko 2010. Maan museotoimen kivijalka eli Museoviraston Suomen kansallismuseon historiaa. Teoksessa Suomen museohistoria. Suomalaisen Kirjallisuuden Seuran Toimituksia 1265. Tieto. Toim. Susanna Pettersson ja Pauliina Kinanen. Helsinki: SKS.
Helander, Vilhelm ja Rista, Simo 1989. Suomalainen rakennustaide. Modern Architecture in Finland. Helsinki: Kirjayhtymä.
Hunter, Sam 1991. Introduction. Teoksessa Museum of Modern Art, New York. The History and the Collection. New York: Museum of Modern Art.
Jensen Knud W. 1992. Johdantoluvut historiasta ja arkkitehtuurista teoksessa Louisiana. Samling og bygninger. The Collection and the Buildings. Humlebaek: Louisiana.
Jodidio, Philip 1993. Contemporary American Architects. Köln: Benedikt Taschen Verlag.
Järvinen, Jonni 2008. Museoarkkitehtuuri, näyttelyarkkitehtuuri ja tilan kokeminen. Turun yliopiston museologian verkkojulkaisussa kuriositeettikabi.net 1/2008 (haettu 20.2.2020).
Kastemaa, Heikki 2009. Nykyajan kampanjat. Ars-näyttelyt ja niiden vastaanotto 1961–2006. Kuvataiteen keskusarkisto 18. Helsinki: Valtion taidemuseo.
Koho, Timo 1994. Suomalaisen arkkitehtuurin 60-luku. Konstruktivismi ja järjestelmäajattelu. Helsinki: Rakennustieto.
Living Architecture 1998. No. 16. Architecture & Design from Denmark · Finland · Norway · Sweden. Copenhagen: Living Architecture ApS.
Mahlamäki, Rainer, Ilmari Lahdelma ja Juha Mäki-Jyllilä 1995. Finnish Forest Information Centre ”Lusto”. Julkaisussa Form Function Finland 2/1995. Helsinki: Design Forum Finland.
Malmisalo-Lensu, Anne-Maija 2015. Alvar Aallon museosuunnitelmat 1928–1958. Jyväskylän yliopisto: taidehistorian pro gradu. https://jyx.jyu.fi/handle/123456789/47329 (haettu 20.2.2020).
Matthews, Geoff 1991. Museums and Art Galleries. A Design and Development Guide. Tiptree, Essex, Great Britain: Butterworth Architecture.
Maunula, Leena 1998. Kiasma. The New Museum of Contemporary Art in Helsinki. Julkaisussa Form Function Finland 1/1998. Helsinki: Design Forum Finland.
Metsäranta, Pinja 2005. Näyttelykoneesta veistokseksi – modernin taidemuseon roolit. Teoksessa Museon muisti. Ritva Wäreen juhlakirja. Taidehistoriallisia tutkimuksia 31. Toim. Tuukka Talvio. Helsinki: Taidehistorian Seura.
Museoarkkitehtuuria. Suomen museoliiton julkaisuja 22 1981. Toim. Tuula Leimu. Helsinki: Suomen museoliitto.
Museologia tänään. Suomen museoliiton julkaisuja 57 2009. Toim. Pauliina Kinanen. Helsinki: Suomen museoliitto.
Newhouse, Victoria 1998. Towards a New Museum. New York: The Monacelli Press.
Norvasuo, Markku 2009. Taivaskattoinen huone. Ylävalon tematiikkaa Alvar Aallon arkkitehtuurissa 1927–1956. Yhdyskuntasuunnittelun tutkimus- ja koulutuskeskuksen julkaisuja A 37. Espoo: Teknillinen korkeakoulu.
Osma 1958–59. Helsinki: Suomen museoliiton vuosikirja.
Pallasmaa, Juhani 1998. Inarin saamelaismuseo ja Ylä-Lapin luontokeskus. Aikakausilehdessä Museo 4/1998. Helsinki: Suomen museoliitto
Palviainen, Ritva 2010. Museotyön ammatillistuminen. Teoksessa Suomen museohistoria. Suomalaisen Kirjallisuuden Seuran Toimituksia 1265. Tieto. Toim. Susanna Pettersson ja Pauliina Kinanen. Helsinki: SKS.
Penttilä, Marikki 1970. Museo ja museon arkkitehtuuri. Teknillisen korkeakoulun arkkitehtiosasto: lisensiaatintutkimus (monistettu).
Pevsner, Nikolaus 1997. A History of Building Types. Bollingen Series XXXV, 19. Washington D. C.: National Gallery of Art.
Piilonen, Juhani 1982. Paikallisperinnettä vaalimassa. Kotiseututyön vaiheet Tyrvään seudulla. Tyrvään seudun Kotiseutuyhdistys ry:n julkaisuja LIX. Vammala: Tyrvään seudun kotiseutuyhdistys.
Päewaleht 1937.
Quantrill, Malcolm 1995. Finnish Architecture and the Modernist Tradition. E & FN SPON. An imprint of Chapman & Hall.
Rancken, A. W. 1934. Maaseutumuseoiden huoneistohuolet. Arkkitehti-lehdessä 8/1934.
Rönkkö, Marja-Liisa 1999. Suomalainen taidemuseo. Louvren ja Louisianan perilliset. Valtion taidemuseon tieteellinen sarja Dimensio 2. Helsinki: Valtion taidemuseo.
Rönkkö, Marja-Liisa 2009. Artikkelit: Museon idea ja historia sekä Museo mediana. Teoksessa Museologia tänään. Suomen museoliiton julkaisuja 57. Toim. Pauliina Kinanen. Helsinki: Suomen museoliitto.
Rönkkö, Marja-Liisa 2010. Museorakennukset ja näyttämisen taide. Teoksessa Suomen museohistoria. Suomalaisen Kirjallisuuden Seuran Toimituksia 1265. Tieto. Toim. Susanna Pettersson ja Pauliina Kinanen. Helsinki: SKS.
Salokorpi, Asko 1998. Arkkitehdin itseilmaisua vai tausta taiteelle? Vieraskynä. Helsingin Sanomat 1.3.1998.
Smeds, Kerstin 1996. HELSINGFORS – PARIS. Finlands utveckling till nation på världsutställningarna 1851–1900. Skrifter utgivna av Svenska litteratursällskapet i Finland 598. Helsingfors: SLS / Finska Historiska Samfundet.
Suomen museohistoria. Suomalaisen Kirjallisuuden Seuran Toimituksia 1265 Tieto. Toim. Susanna Pettersson ja Pauliina Kinanen. Helsinki: SKS.
Synnyt. Nykytaiteen lähteitä. Sources of Contemporary Art 1989. Toim. Timo Valjakka. Helsinki: Nykytaiteen museo ry.
Taide 1968.
Takala, Hannu 2010. Karjalan museot ja niiden tuhoutuminen talvi- ja jatkosodassa. Historiallisia tutkimuksia 252. Helsinki: SKS.
Tulevaisuuden rakentajat. Suomalainen muotoilu 1945–87. Näyttelyluettelo. Toim. Jukka Savolainen ja Aila Svenskberg. Helsinki: Designmuseo.
Vilkuna, Janne 1998. 75 vuotta museoiden hyväksi. Suomen museoliitto 1923–1998. Suomen museoliiton julkaisuja 45. Helsinki: Suomen museoliitto.
Ylimaula, Anna-Maija, Reijo Niskasaari ja Ilpo Okkonen 1993. The Oulu School of Architecture. Arkkitehtuurin Oulun koulu. Helsinki: Rakennustieto.
Viitteet
[1] Kirjoitus pohjautuu kirjoittajan väitöskirjaan Suomalainen taidemuseo sekä artikkeleihin teoksissa Museologia tänään ja Suomen museohistoria, ilman että niihin joka kohdassa erikseen viitataan.
[2] Salokorpi 1998. Ensimmäiset kattoikkunat: Sir John Soane, Fonthill Housen yksityinen taidegalleria 1787. Pevsner 1997, 123.
[3] Ks. Smeds 1996; Pevsner 1997, 138; Hunter 1991, 9-41.
[4] Ks. Aurasmaa 1999.
[5] Ensimmäisen museon perusti piirilääkäri Carl Robert Ehrström Raaheen 1862.
[6] Kaikkien Suomen museoiden perustamisvuodet: Pettersson & Kinanen 2010, 400-412.
[7] Adriansen 2015. Satavuotisjuhlassaan liitto muutti nimensä Pohjoismaiseksi museoliitoksi.
[8] Vilkuna 1998, 15-17, 26, 38-39, 49.
[9] Penttilä 1970, 68, 71, 81, 85.
[10] Metsäranta 2005, 110-113.
[11] Rancken 1934, 113-114, 153-155.
[12] Vilkuna 1998, 55, 79.
[13] Alvar Aalto hävisi tämän kilvan Ranckenille.
[14] Ks. Takala 2010. Rautalammin museo toimi sodan aikana evakuoitujen kokoelmien varastona.
[15] Vuosina 1945–62 Niilo Valonen toimi maatalousmuseon hoitajana, mistä 1949–52 myös liiton neuvojana. Vuosina 1946–58 neuvoja annettiin vuosittain 30-60 museolle. Kinanen 2010, 84.
[16] Suomen osasto merkittiin yhdistysrekisteriin 1976.
[17] Näyttely etenee kronologisesti, typologisesti ja/tai alakohtaisesti, mukana pedagoginen periaate.
[18] Anttila 1951; Härö 2010, 134–138; Heinonen (Jouko) 2010, 153–167; Rönkkö 2010, 234-237.
[19] Arvion teki Valonen. Osma 1958–59; Piilonen 1982; Museo kunnallistettiin 1974, siirtynyt Suomen Kirjainstituutin säätiön alaisuuteen.
[20] Päewaleht 28.2.1937; Arkkitehti 1937, 66–70.
[21] Malmisalo-Lensu, 38-60; valaistuksesta ks. Nurmento, 118, 149.
[22] Vilkuna 1988, 57.
[23] Taidemuseoiden johtajat käyttivät vanhaa titteliä intendentti ainakin 90-luvun vaihteeseen saakka.
[24] Vilkuna 1988, 57: taidemuseot 1952 olivat Turku, Tampere, Vaasa, Lahti, Imatra, Mänttä (Serlachius), Hämeenlinna, Kemi, Joensuu ja Varkaus. Tekniikan museopäiviä ja luonnontieteellisten museoiden päiviä on järjestetty vuodesta 1974. Taidemuseopäivien järjestäminen siirtyi Museoliitolle 1981.
[25] Ars-näyttelyistä ks. Kastemaa 2009. Nykytaide ry:n perustajat olivat Alvar Aalto, Maire Gullichsen, Nils-Gustav Hahl ja Bertel Hintze ja se toimi 1939–1990.
[26] Rönkkö 1999, 37-43.
[27] Rönkkö 1999, 198-206. Artek perustettiin 1935. Ks. esim. Tulevaisuuden rakentajat.
[28] Kolmas toteutunut museo on Aalborgin taidemuseo Tanskassa.
[29] ”Suomalaiset valtasi Louisiana-entusiasmi, jolla oli unelman siivet”, kirjoitti Seppo Niinivaara Taide-lehdessä 4/68.
[30] Rönkkö 1999, 125–126.
[31] Rönkkö 1999, 189-197.
[32] Samaan aikaan rakennettu Sibelius-museo (Woldmear Baeckman, 1968) sai rouheamman asun.
[33] Rönkkö 1999, 151-153.
[34] Koho 1994, 6; Helander ja Rista 1989, 99, 113. ”Miesiläiseksi” on tunnustautunut mm. Juhani Pallasmaa.
[35] Ks. Koho 1994; Ylimaula 1993; Helander ja Rista 1989, 110.
[36] Juhani Pallasmaa teki lopputyönsä Meilahden museosta 1966.
[37] Rönkkö 1999, 207-213. Rakennus peruskorjattiin 1998, jolloin näyttelytoiminta siirtyi Tennispalatsiin.
[38] Rönkkö 1999, 214-220.
[39] Kauppinen kutsuttiin liiton kunniajäseneksi ensimmäisten joukossa 1934. Salo oli Museoliiton hallituksen jäsen 1959–80 ja puheenjohtaja 1972 alkaen, kunniajäsen 1998. Porin kaupunginjohtajana toimi 1970–75 Heikki Koski.
[40] Porin taidemuseo on korttelin päässä tästä.
[41] Kirjoittaja oli töissä Satakunnan Museossa uudisrakennuksen valmistuessa.
[42] Ensimmäinen holistinen museo on Uuden-Seelannin kansallismuseo Te Papa Tongarewa, johon yhdistettiin kaikki kansalliset kokoelmat ja joka avattiin wau-arkkitehtuuria edustavassa uudisrakennuksessaan 2008.
[43] Rakennussuojelulaki astui voimaan 1965. Ensimmäisen kerran museoarkkitehtuuria oli käsitelty vuoden 1926 museopäivillä, perusteellisesti myös ”museoteknisillä neuvottelupäivillä” 1959. Ks. Museoarkkitehtuuria 1981.
[44] Jorma Heinosen luokitus 1968, bruttoneliöt / näyttelyala: suuri museo (maakunnallinen) 5 000 / 3 750, keskisuuri museo 3 000 / 2 200, pienehkö museo 2 000 / 1200 ja pikkumuseo (pikkukaupungin museo) 1 500 / 900 m².
[45] Alunperin varsinaisiksi museoaineiksi luettiin ns. esinetieteet arkeologia, kansatiede ja taidehistoria. Ainevalikoima on laajentunut, mutta tueksi tarvitaan museologian perusopintoja. Palviainen 2010, 315-331.
[46] Ensimmäisenä avattiin J.L. Runebergin koti Porvoossa 1880. Heinonen (Jouko) 2010, 153-167.
[47] Kirjoittaja osallistui seminaariin.
[48] Rönkkö 1999, 233-236.
[49] Rönkkö 1999, 221-225.
[50] Kouvola perusti vuoden 2009 kuntaliitoksen jälkeen kaupunginmuseon entisten pitäjänmuseoiden tilalle, mikä vaikutti Poikilo-museoiden syntyyn Kouvola-talossa. Rönkkö 1999, 237-238.
[51] Yrjö, Marko, Harri ja Kain Tapperin Taideseura perustettiin 1993.
[52] Meierin tunnetuin suunnitelma on Akropolis-vaikutelmaa tavoitteleva Getty Center (1984–96) museoineen Los Angelesin rinteillä. Getty-keskus lienee maailman rikkain museo, erityisesti se tukee konservointitutkimusta. Jodidio 1993, 98-107.
[53] Rönkkö 1999, 226-231.
[54] Pallasmaa 1998, 4-6.
[55] Eskola 2016, 6-13.
[56] Jodidio 1993, 82-89.
[57] Newhouse 1998, 47-55; Salokorpi 1998. Tilan kokemisesta ks. Järvinen 2008.