
Kirjaston peruskorjaus ja restaurointi Seinäjoen Aalto-keskuksessa
Olli Helasvuo ja Tapani Mustonen, Arkkitehdit Mustonen Oy
Aallon kirjaston peruskorjaus- ja restaurointiprosessi (2014–15) ulottui kokonaisratkaisusta yksityiskohtiin asti. Kiireellinen suunnitteluaikataulu selätettiin arkkitehtien, rakennuttajaorganisaation ja muiden suunnittelijoiden sujuvalla yhteistyöllä. Restaurointityön onnistumisessa oleellista oli suunnittelijan tiivis ja välitön yhteistyö työmaan valvojien ja urakoitsijoiden kanssa.
Arvokohteissakin on sekä normaalia peruskorjausta että tarkemmin rakennushistorialliset arvot huomioivaa restaurointia. Näiden välillä ei kaikissa kohdin ole selvää rajaa. Tärkeää on koko suunnittelu- ja toteutusprosessin ajan arvioida, mikä lähestymistapa on kulloisessakin tapauksessa oikea, jotta korjaushankkeen tuloksena on eheä kokonaisuus.
Käytämme korjauksesta sanaa restaurointi silloin kun koko suunnittelua ja toteutusta ohjaa jatkuva arviointi toimenpiteiden suhteesta kohteen rakennushistoriallisiin arvoihin. Samalla huomioidaan kaikki muut hyvän suunnittelun lähtökohdat eli kauneus, kestävyys ja käyttökelpoisuus.[1]
Kohteen kuvaus ja suojelutilanne
Aallon kirjastoarkkitehtuurin tyypilliset piirteet kehittyivät vuosikymmenestä toiseen: vaihtelevat tilasarjat eritasoratkaisuineen, vivahteikas luonnonvalo ja huolitellut yksityiskohdat. Seinäjoen kirjastossa sisätilat ja toiminnalliset ratkaisut jatkavat sitä kehitystä, joka alkoi arkkitehti Alvar Aallon ensimmäisestä kirjastosuunnitelmasta Viipuriin.[2]
Historia ja rakentuminen
Alvar Aallon suunnittelema kirjasto on osa Seinäjoen kulttuuri- ja hallintokeskusta, johon kuuluvat valmistumisjärjestyksessä Lakeuden Ristin kirkko (1960), kaupungintalo (1962), maakunta- ja kaupunginkirjasto (1965), seurakuntakeskus (1966), valtion virastotalo (1968) sekä kaupunginteatteri (1987). Näiden välinen Kansalaistori valmistui 1988.
Kulttuuri- ja hallintokeskus syntyi kahden erillisen arkkitehtikilpailun tuloksena. Kirkkokilpailu järjestettiin vuonna 1951 ja kauppalantaloa[3] koskeva arkkitehtikilpailu 1958. Kauppalantalon kilpailuohjelmaan kuului kirjasto, joka Aallon kilpailuehdotuksessa oli sijoitettu erilliseen rakennukseen kauppalantalon eteläpuolelle niin, että väliin jäi Kansalaistoriksi nimetty aukio. Kirjaston toteutussuunnittelua jatkettiin kilpailuehdotuksen pohjalta vuonna 1960, rakennustyöt aloitettiin keväällä 1964 ja rakennus valmistui huhtikuussa 1965.
03_Seinäjoki_amoy
16_Seinäjoki_amoy
Suojelutilanne
Seinäjoen Aalto-keskus on valtakunnallisesti merkittävä rakennettu kulttuuriympäristö (RKY). Kansainvälinen modernin arkkitehtuurin tutkimus-ja suojelujärjestö DOCOMOMO on sisällyttänyt sen modernin arkkitehtuurin merkkiteosten valikoimaan.
Aalto-keskus on suojeltu rakennussuojelulain perusteella kaupungin omistamien rakennusten ja alueiden osalta (kaupungin-, kirjasto-, teatteri- ja virastotalo ympäristöineen sekä Kirkkopuisto). Ympäristöministeriö vahvisti suojelupäätöksen 2005.
Kokonaisuus on suojeltu asemakaavalla vuonna 2009. Kirjastolle on annettu asemakaavamerkintä srs-1 ja -määräys: ”Rakennussuojelulain nojalla suojeltu rakennus. Rakennusta tulee käyttää, huoltaa ja korjata sen rakennustaiteellisen ja kulttuurihistoriallisen arvon edellyttämällä tavalla. Rakennusta tai siihen liittyviä rakenteita ei saa purkaa. Korjaus- ja muutostöillä ei saa vaarantaa rakennuksen suojeluarvoja. Korjaus- ja muutostöistä on pyydettävä lausunto Museovirastolta. Rakennuksen arkkitehtonisen laadun, rakenteiden, materiaalien, sisätilojen, sisustuksen ja pihaympäristön suojelua koskevat määräykset on annettu ympäristöministeriön 24.10.2005 antamassa suojelupäätöksessä N:o YM 6/531/2005.”
04_Seinäjoki_amoy
SUUNNITTELU- JA KORJAUSTYÖN LÄHTÖKOHDAT
Kirjastorakennus oli vuosien kuluessa käynyt ahtaaksi. Tilojen käyttöä ja kalustusta oli muutettu. Rakennus oli sisä- ja ulkopinnoiltaan kulunut ja talotekniikka vaati parantamista. Rakennuksessa oli ilmennyt kosteus- ja sisäilmaongelmia.
Vuonna 2008 Seinäjoen kaupunki järjesti kutsukilpailun pääkirjaston laajentamisesta. Kilpailun voitti JKMM Arkkitehdit, jonka suunnittelema kirjasto Apila valmistui 2012. Uusi kirjasto on maanalaisella käytävällä yhdistetty vanhaan kirjastoon. Apilan valmistuminen mahdollisti Aallon kirjaston kunnostamisen ja sisätilojen palauttamisen lähemmäksi alkuperäistä asua.
Seinäjoen kaupungin omistamien suojeltujen rakennusten suunnittelijoiden valinta
Seinäjoen kaupunki järjesti vuonna 2013 puitesopimustarjouskilpailun, jossa haettiin korjaukseen ja restaurointiin erikoistuneita arkkitehtitoimistoja Aallon rakennusten korjauksiin. Kilpailukriteereissä painotettiin suunnittelun laatukriteereitä ja kokemusta Aallon suunnittelemien rakennusten restauroinnista. Kaupunki valitsi sopimussuunnittelijoiksi neljä toimistoa, joista Arkkitehdit Mustonen Oy valittiin kirjaston peruskorjauksen suunnittelijaksi.
Ennen sopimussuunnittelijoiden valintaa kirjastossa oli jo käynnistetty korjauksia alapohjan kosteusongelmien poistamiseksi. Näiden korjausten suunnittelu oli tehty muualla.
Tausta- ja lähtötiedot
Suunnittelun pohjana toimivat alkuperäiset piirustukset, jotka oli piirretty sähköiseen muotoon vuonna 2005. Piirustuksia tarkennettiin kevään 2014 aikana tehdyillä tarkistusmittauksilla. Hankesuunnitelmana toimi kaupungin tilapalvelun tekemä alustava tilaohjelma ja toimenpideselostus, jota täydennettiin ja muokattiin yhteistyössä.[4]
Seinäjoen Aalto-keskuksen rakennuksista, Aallon kirjasto mukaan lukien, oli tehty vuonna 2004 rakennushistoriaselvitys ja säilyneisyyskartoitus.[5] Lisäksi rakennuksesta oli tehty nykytilanneinventointi vuosina 2011-12.
SUUNNITTELU JA TOTEUTUS NIVOUTUIVAT YHTEEN
Korjaussuunnittelu hyppäsi liikkuvaan junaan
05_Seinäjoki_amoy
06_Seinäjoki_amoy
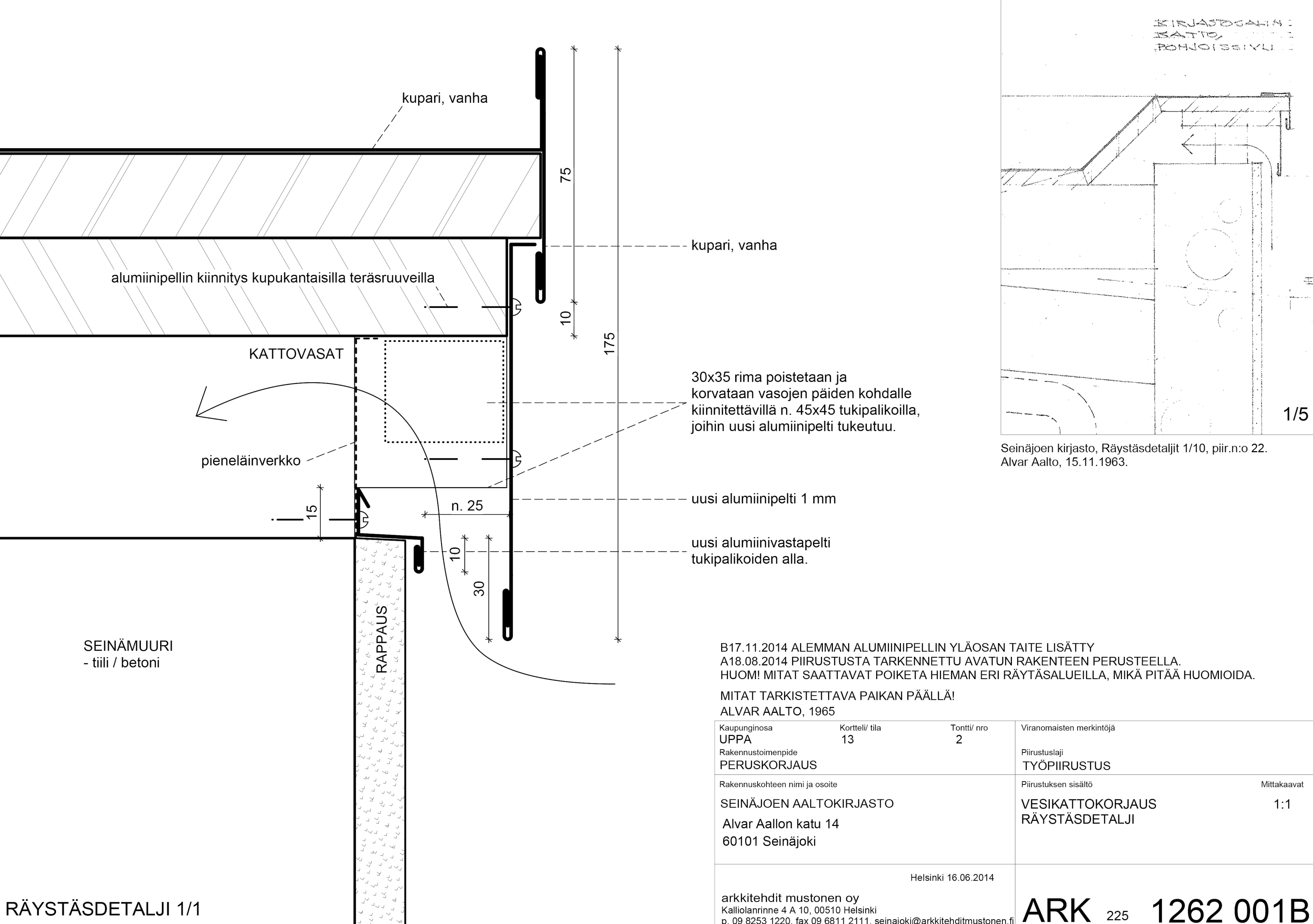
Seinäjoen kaupunki oli päättänyt aloittaa julkisivukorjaukset kirjaston kuparisesta vesikatosta. Kirjaston vesikatolla oli ollut pääkirjastosalin kohdalla sisätiloihin asti edennyt kattovuoto vuonna 2012. Lähtöoletuksena kaupungilla oli, että vesikatto jouduttaisiin uusimaan kokonaisuudessaan. Vesikatolla tekemämme inventoinnin jälkeen kuitenkin todettiin, että oikein suunnitellulla ja taitavan peltiurakoitsijan tekemällä korjauksella toimenpiteitä voi rajata huomattavasti.
Vesikattokorjauksesta säästyneillä rahoilla kirjaston sisätilojen ja julkisivujen kunnostus päästiin aloittamaan aiottua aikaisemmin. Kirjaston sisätiloissa käynnissä oleva, kaupungin organisaatiossa suunniteltu kellaritilojen sisäilmakorjaus, laajeni nyt täydeksi peruskorjauksesi. Suunnitteluun jäänyt aika jäi tästä syystä melko niukaksi ja suunnittelu tapahtuikin suurelta osin saman aikaisesti työmaavaiheen kanssa.
Yhteistyö rakennuttajan, muiden suunnittelijoiden ja työmaan kanssa
Koska kirjastossa oli luonteeltaan hyvin eri tyyppisiä tiloja, arkkitehti jaotteli sisätilat arvoluokkiin sen mukaan, miten niitä korjauksen yhteydessä tulisi käsitellä. Arvoluokista tehtiin kaavio "Tilaryhmien kunnostusperiaatteet", joka ohjeisti muita suunnittelijoita ja työmaata. Tärkeimmissä tilaryhmissä kaikista muutoksista tai työmaalla vastaan tulleista epäselvyyksistä kaupungin valvojat ottivat välittömästi yhteyttä arkkitehtiin. Tämä oli tärkeää senkin vuoksi, että helsinkiläisen arkkitehdin läsnäolo työmaalla ei voinut olla jatkuvaa. Yhteydenpito toimi välimatkasta huolimatta hyvin koko työmaan ajan.
07_Seinäjoki_amoy
02_Seinäjoki_amoy
Pääosa toteutussuunnittelusta, etenkin detaljien osalta, tehtiin samanaikaisesti korjaustyömaan kanssa. Korjausrakentamisen suunnittelu poikkeaa uudissuunnittelusta siinä, että kaikkea ei voi suunnitella valmiiksi ennen rakenteiden avaamista ja todellisten tilanteiden selvittämistä. Suunnittelun ja päätösten tekeminen kiireisessä työmaavaiheessa on haastavaa, mutta jos kaikkien osapuolten välinen yhteispeli sujuu mutkattomasti, se voi olla tehokkain tapa edistää asioita.
Kaupunginarkkitehti Jussi Aittoniemen johtamalla kaupungin rakennuttajaorganisaatiolla ja restaurointiarkkitehdeilla oli yhteneväiset tavoitteet lopputuloksen suhteen. Tämä oli ratkaisevaa kiireellisessä suunnitteluaikataulussa. Muiden suunnittelijoiden, erityisesti LVI- ja sähkösuunnittelijoiden asenne ja ammattitaito oli keskeistä: vältettiin turhat harha-askeleet ja edettiin koko ajan yhteiseen suuntaan. Työn etenemisen kannalta tärkeää oli myös rakennuttajaorganisaation kyky riittävien selvitysten ja pohdintojen jälkeen tehdä selkeät päätökset kulloisessakin tilanteessa. Kaupunginarkkitehdin kokouksissa lausuma ”näillä mennään” jäi mieleen positiivisena muistona projektin määrätietoisesta edistämisestä.
Arkkitehtimuistiot ja alkuperäiset rakennekuvat tärkeinä apuvälineinä
Suunnitteluvaiheen nopeasta aikataulusta sekä arkkitehtitoimiston ja työmaan välisestä etäisyydestä johtuen arkkitehtipiirustuksiin sisällytettiin työpiirustusten lisäksi toinen piirustussarja, jota kutsuimme nimellä ”arkkitehtimuistiot”. Ne olivat nopean kommentoinnin ja ideoiden kehittelyn työvälineitä, joilla pääsuunnittelija saattoi ohjata suunnittelua ja työmaata. Arkkitehtimuistioita oli neljä erillistä numeroitua sarjaa Ark, Lvi, Sähkö ja Rak sen mukaan mitä osa-aluetta ne kulloinkin käsittelivät. Parhaimmillaan arkkitehtimuistioista muodostui keskusteluketjuja, joihin eri suunnittelijat vastasivat lisäämällä piirustukseen kommenttejaan.
09_Seinäjoki_amoy
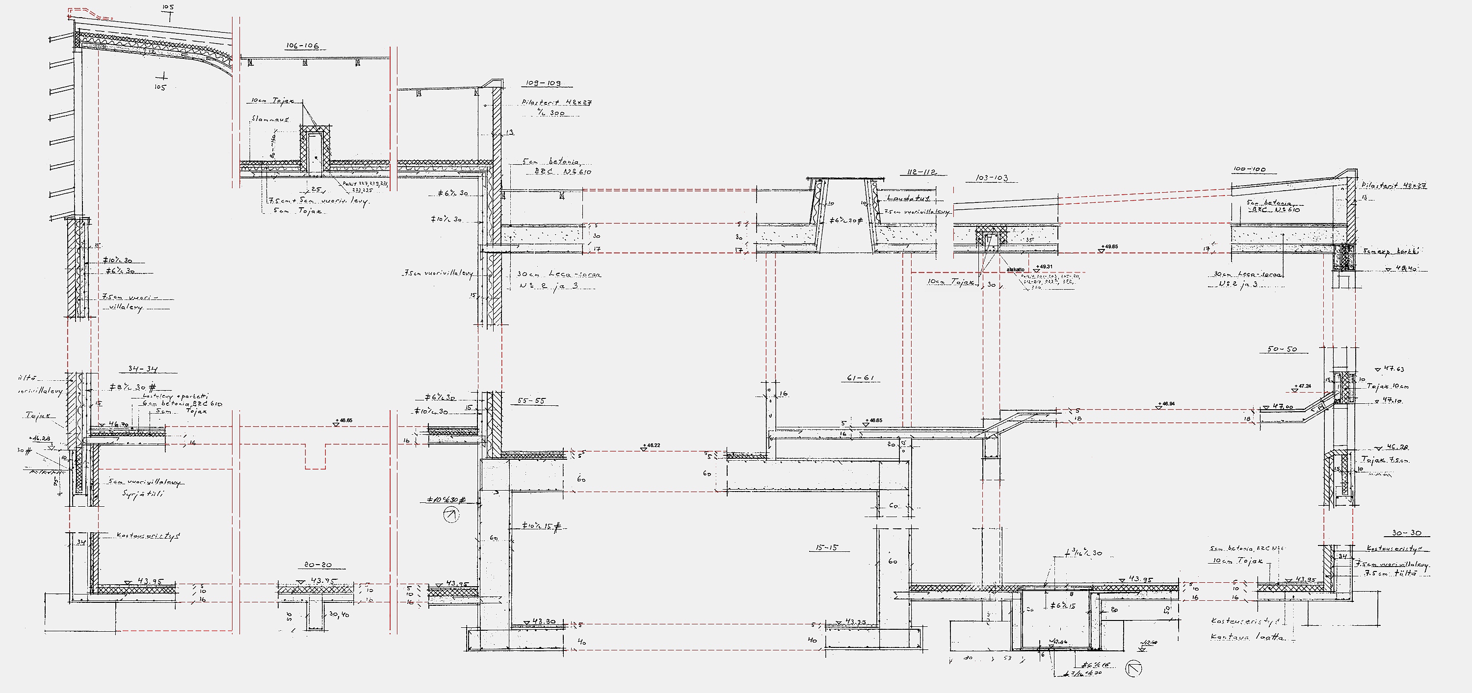
Tärkeä ja poikkeuksellinen piirustussarja ”Rakenneleikkausyhdistelmät” koottiin rakennuksen alkuperäisen rakennesuunnittelijan, diplomi-insinööri Lauri Mehton laatimista rakenneleikkauskuvista vuosilta 1963-64. Ne pitivät erittäin hyvin paikkansa, sekä mitoituksen että rakennekerrosten osalta. Rakenneleikkausyhdistelmäpiirustukset olivat ensiarvoisen tärkeitä mm. uusien tekniikkareittien sijoituksia pohdittaessa.
10_Seinäjoki_amoy
Pääperiaatteena patinan säilyttäminen ja muutosten arkkitehtoninen luontevuus
Keskeinen restaurointiperiaate oli säilyttää alkuperäiset rakenteet, yksityiskohdat, materiaalit ja patina. Alkuperäisten materiaalien ikääntyminen sai näkyä, pintojen ei tarvinnut näyttää uusilta. Esimerkiksi pääkirjastosalin lautamuotilla valettu kaartuva katto vain puhdistettiin, koska uudella maalikerroksella ei haluttu peittää laudoituskuviossa näkyvää taitavaa käsityön jälkeä. Tavoitteena oli arvokas ja viimeistelty kokonaisuus. Patinan säilyttäminen ja säästävä korjaus oli myös taloudellisesti kannattavaa. Kun vältettiin turhaa korjausta ja uusimista, saatiin korjauskustannukset pysymään hyvin kohtuullisina.
Uusien tilojen ja lisäosien suunnittelussa pyrittiin arkkitehtoniseen luontevuuteen suhteessa Aallon suunnittelemiin osiin. Uudet asiat eivät saa viedä huomiota kokonaisuudelta. Jokainen kohta suunniteltiin yksilöllisesti ja suunnittelussa huomioitiin alussa asetetut arvoluokat. Mitä arvokkaampi tila, sitä suuremmalla hienotunteisuudella siihen tehdyt muutokset suunniteltiin.
16b_Seinäjoki_amoy
Uusi talotekniikka
Kirjaston ilmastointi, sähkötekniikka ja lämmitysputkisto uusittiin kokonaisuudessaan. Sisätiloissa suunnittelutyön vaikeus oli uuden tekniikan tuominen vanhaan kirjastoon mahdollisimman näkymättömästi. Uusi ilmanvaihtokonehuone sijoitettiin entiseen kirjastoautotalliin ensimmäisen kerroksen päätilojen keskelle. Kirjastoautotallin suurien ovien yläreunaan sijoitettiin tulo- ja poistoilmasäleiköt, eikä julkisivuihin tarvittu uusia aukotuksia.
11_Seinäjoki_amoy
Ensimmäisen kerroksen päätilojen ilmanvaihdon kanavat ja suuttimet piilotettiin kirjahyllyjen sokkeliin sekä kirjahyllyjen taakse. Ainoa ilmanvaihdon uudistamisesta seurannut näkyvä muutos pääsalissa on rako kirjahyllysokkelin yläreunassa. Lastenosastolla uudet ilmanvaihdon suuttimet piilotettiin vanhojen puurimasäleikköjen taakse, joita teetettiin muutama lisää. Uusien puusäleikköjen sijoituksessa tavoiteltiin alkuperäisten säleikköjen sattumanvaraisuutta.
Ensimmäisen kerroksen päätilat restauroitiin
Ensimmäisen kerroksen päätilojen alkuperäiset pinnat ja kalusteet konservoitiin. Pääsalissa ja lastenosastolla palautettiin kirjahyllyjen alkuperäinen järjestys. Pääsalin viilutetut hyllylevyt käännettiin ennen kunnostusta ympäri, joten vanhat pinnat säilyivät. Hyllyjen päällä olevien valaisinten tekniikka uusittiin.
01_Seinäjoki_amoy
Alkuperäinen lukusali oli täytetty kirjahyllyillä. Nyt sali palautettiin entiseen käyttöön. Alkuperäiset pöytäkalusteet ja niihin liittyvät valaisimet löytyivät kaupungin varastosta.
08a_Seinäjoki_amoy
08b_Seinäjoki_amoy
Vaikka kirjasto oli vasta viitisenkymmentä vuotta vanha, sen kaikista alkuperäismateriaaleista ei ollut säilynyt tietoa. Koska esimerkiksi lukumontun alkuperäinen tekstiilimatto näkyi vain vanhoissa valokuvissa, valittiin sinne uusi tekstiilimatto 1960-luvun henkeen sopivaa kuosia.
Arkkitehti ohjasi myös vanhojen kalusteiden ja pintojen konservointia ja kunnostusta. Kaupunki teetti konservointityöt ja pienemmät puusepäntyöt rakennusurakasta erillisinä palkkaamillaan konservaattoreilla ja puusepällä. Se osoittautui hyväksi ratkaisuksi. Lopulliset korjaus- ja kunnostustavat etsittiin yhdessä kokeilemalla ja keskustelemalla. Näin varmistui lopputuloksen laatu ja tavoitetaso esimerkiksi patinan säilymisen kannalta. Vanhat valaisimet kunnostettiin ja varustettiin tarvittaessa uudella tekniikalla.
14_Seinäjoki_amoy
13_Seinäjoki_amoy
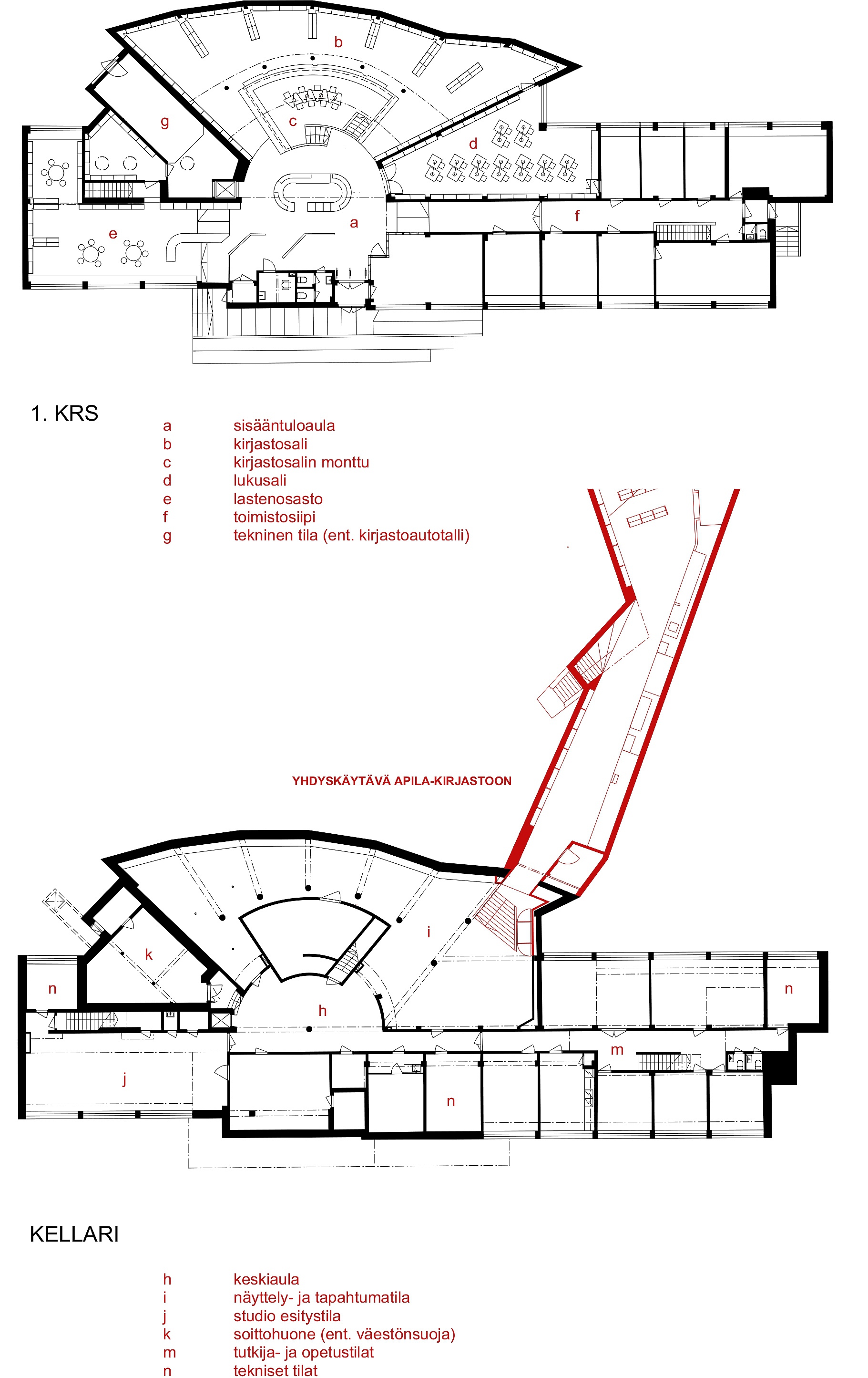
Kellarikerrokseen uusia tiloja
Kellaritilat arvioitiin rakennushistorialliselta arvoltaan päätiloja vähäisemmiksi, mikä mahdollisti tilojen muuttamisen. Kellariin sijoitettiin myös kirjaston toimintaa tukevia uusia tiloja.
Korjaussuunnittelun alkaessa kellarin purku-urakan alkuun oli aikaa vajaa kaksi kuukautta. Purkutyöt liittyivät jo aiemmin käynnistettyihin alapohjan kosteusteknisiin korjauksiin. Purkutöitä laajennettiin nyt palvelemaan myös rakennuksen talotekniikan uusimisen tarpeita.
Pääkirjastosalin alle avattiin laaja galleriatila. Tilan luonne syntyy keskellä sijaitsevasta pääsalin lukumontun kaarevasta betoniseinästä ja sen edessä olevista pyöreistä pilareista. Entisten varastotilojen väliseiniä purkamalla kaareutuva tila saatiin nyt ensimmäistä kertaa yhtenäisenä näkyviin.
Tilan näyttävä muoto ja rakennedetaljointi pylväineen ja palkistoineen saattaa periytyä Alvar Aallon varhaisista luonnoksista, joissa kirjastosali avautui toteutettua versiota enemmän kellarikerrokseen. Koska galleriatila on Apilan ja Aallon kirjaston välissä, galleriassa uudet kirjahyllyt ovat samaa mallia kuin Apila-kirjastossa ja tekstiilimatto on sama kuin Apilassa.
Apila-kirjastosta tuleva maanalainen yhdyskäytävä liittyy Aallon kirjastossa entiseen kellarivarastoon. Aallon kirjastoon avattiin laaja aukko kellarin keskiaulaan, jotta kulku olisi sujuvaa. Lisäksi tarvittiin arkkitehtonisesti ja toiminnallisesti luonteva kulkureitti ja yhteys kellarista Aallon kirjaston päätiloihin. Aallon kirjaston pääsalin lukumontusta kellariin laskeutuviin vanhoihin portaisiin ei kajottu, sillä ne vievät Aallon kirjaston arvokkaimpiin ja tarkimmin säilytettyihin sisätiloihin. Portaaseen aukeavan oven saranointi eli kätisyys vaihdettiin kulun helpottamiseksi. Kellariaulaan suunniteltiin uudet, vain tässä tilassa käytössä olevat näyttelyvitriinit.
15_Seinäjoki_amoy
Kellariin vanhaan lehtivarastoon tehtiin monikäyttöinen studiotila ja vanhasta väestönsuojasta muokattiin soittohuone, jossa bändit voivat harjoitella väestönsuojan paksujen betoniseinien suojassa. Lisäksi kellariin sijoitettiin erilaisia opetus- ja tutkimustiloja sekä henkilökunnan keittiö. Tilat suunniteltiin vanhaa säilyttäen ja uusilta osiltaan vanhaan sopeutuviksi.
Julkisivut säilyivät ennallaan
Rakennuksen ulkovaipassa kunnostettiin julkisivut, ikkunat, metalliset ikkunasäleiköt, ovet sekä kuparinen vesikatto. Julkisivumuutokset olivat vähäisiä ja ne pystyttiin tekemään olemassa olevien aukkojen sisällä. Kolmen kellari-ikkunan ilmanvaihtoaukon kokoa levennettiin alumiinisen pystysäleikön takana ja entisen autotallinoven yläreunaan tehtiin uusi ilmanvaihtoaukko. Uusi ilmanvaihtoritilä peitettiin vanhan mallin mukaan toteutetulla pystysäleiköllä.
12yläkuva_Seinäjoki_amoy
12alakuva_Seinäjoki_amoy [kuvat päällekkäin ilman väliä]
Aallon rakennusten rappauspintojen uudelleenmaalauksissa olemme pyrkineet käyttämään kalkkimaalia. Seinäjoen kirjaston alkuperäinen julkisivumaali oli maalausselostuksen mukaan lateksimaali. Vanhat maali- ja rappauspinnat poistettiin irtoavilta osiltaan kevyellä puhalluksella, jolloin vanha rappaus saatiin säilytettyä suurimmaksi osaksi. Paikkarappaus tehtiin vanhan rappauspinnan karkeustasoa mukaillen, mikä on suurta ammattitaitoa vaativaa käsityötä. Siinä onnistuttiin vaihtelevasti. Uudeksi julkisivumaaliksi valittiin silikaattimaali, jonka katsottiin parhaiten vastaavan alkuperäisen maalauksen tavoitteita. Pohjamaaliksi valittiin täyteaineita sisältävä silikaattimaali, jolla pystyttiin hieman korjaaman seinäpinnan epätasaisuuksia.
16a_Seinäjoki_amoy
Loppuyhteenveto
Aallon kirjaston peruskorjauksen suunnitteluaikataulu muodostui tiukaksi ja suunnittelu tehtiin suurelta osin samaan aikaan korjaustöiden kanssa. Onnistuneeseen lopputulokseen pääsemisen kannalta keskeisessä osassa oli saumaton yhteistyö ja yhteneväiset tavoitteet kaikkien eri osapuolten välillä. Yhteiseen päämäärään edettiin tehokkaasti ilman turhia harha-askelia. Yhteneväisillä tavoitteilla säilyttävästä korjauksesta pidettiin myös kustannukset alhaisina. Pintojen konservointi ja säilyttäminen on usein lopulta halvempaa kuin kaiken repiminen ja uudelleen rakentaminen. Puhumattakaan siitä, että niin päästäisiin samaan käsityön tasoon kuin alkuperäisissä pinnoissa ja rakenteissa.
Myös talotekniikan suhteen lähdettiin rakennuksen ominaisuuksista eikä normeista. Näin ratkaisut pystyttiin pitämään luontevina ilman kalliita, monimutkaisia ja sisätiloja tuhoavia ratkaisuja. Jälkeenpäin todettiin, että esimerkiksi ilmanvaihdossa päästiin hyvin lähelle nykyvaatimuksia.
Aikataulusyistä projekti ei edennyt kaikilta osin ihan ohjekirjan mukaisesti. Suunnittelijoiden pitkä kokemus vastaavista suunnittelukohteista auttoi osaltaan keskittymään rakentamisprosessissa lopputuloksen ja rakennussuojelun toteutumisen kannalta keskeisiin ja oleellisiin kohtiin.
KIRJOITTAJAT
Arkkitehdit Olli Helasvuo ja Tapani Mustonen vastasivat Aallon kirjaston pää- ja arkkitehtisuunnittelusta. Arkkitehdit Mustonen Oy on suunnitellut usean arkkitehti Alvar Aallon suunnitteleman rakennuksen korjauksen.
Artikkeli on julkaistu 2020.
LÄHTEET
Alvar Aalto -museon arkisto.
Seinäjoen kaupunginarkisto.
KOHDETIETOJA
Alkuperäinen rakennus: Alvar Aalto 1965.
Peruskorjaus ja restaurointi: 2014-2015.
Kirjaston laajuus: 1890 m2.
Tilaaja: Seinäjoen kaupunki
Pää- ja arkkitehtisuunnittelu: Arkkitehdit Mustonen Oy
Muut suunnittelijat:
LVI: Avecon Oy
Sähkö: Avecon Oy
Rakenteet: Aaro Kohonen Oy
Urakoitsijat:
Pääurakoitsija: Rakennus- ja suunnittelutoimisto Hämäläiset Oy
Sähkö: Are Talotekniikka Oy
Ilmanvaihto: Are Talotekniikka Oy
Vesi: Are Talotekniikka Oy
Vesikaton korjaus: Pohjanmaan Peltityöt Oy
Muita tahoja:
Konservointi- ja puusepäntyöt Seinäjoen kaupungin omana työnä: konservaattorit Minna-Riikka Tuohiniitty ja Susanna Hietamäki, puuseppä Jari Peltokangas.
Lastenosaston ja kellarin keskiaulan uudet vitriinit: Puusepänliike Pauli Hietamäki.
Alvar Aalto –säätiö
Kulttuuriympäristön asiantuntijaviranomainen: Museovirasto
VIITTEET
[1] Venustas, firmitas, utilitas. Vitruviuksen määritelmä siitä mihin arkkitehtuurissa pitää pyrkiä. Marcus Vitruvius Pollio oli roomalainen arkkitehti, insinööri ja kirjailija, joka kirjoitti arkkitehtuurin käsikirjan De architectura arviolta 25 vuotta ennen ajanlaskun alkua.
[2] Viipurin kirjaston arkkitehtuurikilpailu järjestettiin 1927. Kirjasto valmistui 1935.
[3] Seinäjoki sai kaupunkioikeudet 1960.
[4] Aallon kirjaston peruskorjaus, tilaohjelma ja toimenpideselostus. Seinäjoen kaupungin tilapalvelut, Aittoniemi, 24.3.2014.
[5] Seinäjoen kulttuuri- ja hallintokeskus. Rakennushistoriallinen selvitys ja säilyneisyyskartoitus. Alvar Aalto –säätiö, Jaakko Penttilä 2004.
Historia ja rakentuminen
Alvar Aallon suunnittelema kirjasto on osa Seinäjoen kulttuuri- ja hallintokeskusta, johon kuuluvat valmistumisjärjestyksessä Lakeuden Ristin kirkko (1960), kaupungintalo (1962), maakunta- ja kaupunginkirjasto (1965), seurakuntakeskus (1966), valtion virastotalo (1968) sekä kaupunginteatteri (1987). Näiden välinen Kansalaistori valmistui 1988.
Kulttuuri- ja hallintokeskus syntyi kahden erillisen arkkitehtikilpailun tuloksena. Kirkkokilpailu järjestettiin vuonna 1951 ja kauppalantaloa[3] koskeva arkkitehtikilpailu 1958. Kauppalantalon kilpailuohjelmaan kuului kirjasto, joka Aallon kilpailuehdotuksessa oli sijoitettu erilliseen rakennukseen kauppalantalon eteläpuolelle niin, että väliin jäi Kansalaistoriksi nimetty aukio. Kirjaston toteutussuunnittelua jatkettiin kilpailuehdotuksen pohjalta vuonna 1960, rakennustyöt aloitettiin keväällä 1964 ja rakennus valmistui huhtikuussa 1965.
Suojelutilanne
Seinäjoen Aalto-keskus on valtakunnallisesti merkittävä rakennettu kulttuuriympäristö (RKY). Kansainvälinen modernin arkkitehtuurin tutkimus-ja suojelujärjestö DOCOMOMO on sisällyttänyt sen modernin arkkitehtuurin merkkiteosten valikoimaan.
Aalto-keskus on suojeltu rakennussuojelulain perusteella kaupungin omistamien rakennusten ja alueiden osalta (kaupungin-, kirjasto-, teatteri- ja virastotalo ympäristöineen sekä Kirkkopuisto). Ympäristöministeriö vahvisti suojelupäätöksen 2005.
Kokonaisuus on suojeltu asemakaavalla vuonna 2009. Kirjastolle on annettu asemakaavamerkintä srs-1 ja -määräys: ”Rakennussuojelulain nojalla suojeltu rakennus. Rakennusta tulee käyttää, huoltaa ja korjata sen rakennustaiteellisen ja kulttuurihistoriallisen arvon edellyttämällä tavalla. Rakennusta tai siihen liittyviä rakenteita ei saa purkaa. Korjaus- ja muutostöillä ei saa vaarantaa rakennuksen suojeluarvoja. Korjaus- ja muutostöistä on pyydettävä lausunto Museovirastolta. Rakennuksen arkkitehtonisen laadun, rakenteiden, materiaalien, sisätilojen, sisustuksen ja pihaympäristön suojelua koskevat määräykset on annettu ympäristöministeriön 24.10.2005 antamassa suojelupäätöksessä N:o YM 6/531/2005.”
Suunnittelu- ja korjaustyön lähtökohdat
Kirjastorakennus oli vuosien kuluessa käynyt ahtaaksi. Tilojen käyttöä ja kalustusta oli muutettu. Rakennus oli sisä- ja ulkopinnoiltaan kulunut ja talotekniikka vaati parantamista. Rakennuksessa oli ilmennyt kosteus- ja sisäilmaongelmia.
Vuonna 2008 Seinäjoen kaupunki järjesti kutsukilpailun pääkirjaston laajentamisesta. Kilpailun voitti JKMM Arkkitehdit, jonka suunnittelema kirjasto Apila valmistui 2012. Uusi kirjasto on maanalaisella käytävällä yhdistetty vanhaan kirjastoon. Apilan valmistuminen mahdollisti Aallon kirjaston kunnostamisen ja sisätilojen palauttamisen lähemmäksi alkuperäistä asua.
Seinäjoen kaupungin omistamien suojeltujen rakennusten suunnittelijoiden valinta
Seinäjoen kaupunki järjesti vuonna 2013 puitesopimustarjouskilpailun, jossa haettiin korjaukseen ja restaurointiin erikoistuneita arkkitehtitoimistoja Aallon rakennusten korjauksiin. Kilpailukriteereissä painotettiin suunnittelun laatukriteereitä ja kokemusta Aallon suunnittelemien rakennusten restauroinnista. Kaupunki valitsi sopimussuunnittelijoiksi neljä toimistoa, joista Arkkitehdit Mustonen Oy valittiin kirjaston peruskorjauksen suunnittelijaksi.
Ennen sopimussuunnittelijoiden valintaa kirjastossa oli jo käynnistetty korjauksia alapohjan kosteusongelmien poistamiseksi. Näiden korjausten suunnittelu oli tehty muualla.
Tausta- ja lähtötiedot
Suunnittelun pohjana toimivat alkuperäiset piirustukset, jotka oli piirretty sähköiseen muotoon vuonna 2005. Piirustuksia tarkennettiin kevään 2014 aikana tehdyillä tarkistusmittauksilla. Hankesuunnitelmana toimi kaupungin tilapalvelun tekemä alustava tilaohjelma ja toimenpideselostus, jota täydennettiin ja muokattiin yhteistyössä.[4]
Seinäjoen Aalto-keskuksen rakennuksista, Aallon kirjasto mukaan lukien, oli tehty vuonna 2004 rakennushistoriaselvitys ja säilyneisyyskartoitus.[5] Lisäksi rakennuksesta oli tehty nykytilanneinventointi vuosina 2011-12.
SUUNNITTELU JA TOTEUTUS NIVOUTUIVAT YHTEEN
Seinäjoen kaupunki oli päättänyt aloittaa julkisivukorjaukset kirjaston kuparisesta vesikatosta. Kirjaston vesikatolla oli ollut pääkirjastosalin kohdalla sisätiloihin asti edennyt kattovuoto vuonna 2012. Lähtöoletuksena kaupungilla oli, että vesikatto jouduttaisiin uusimaan kokonaisuudessaan. Vesikatolla tekemämme inventoinnin jälkeen kuitenkin todettiin, että oikein suunnitellulla ja taitavan peltiurakoitsijan tekemällä korjauksella toimenpiteitä voi rajata huomattavasti.
Vesikattokorjauksesta säästyneillä rahoilla kirjaston sisätilojen ja julkisivujen kunnostus päästiin aloittamaan aiottua aikaisemmin. Kirjaston sisätiloissa käynnissä oleva, kaupungin organisaatiossa suunniteltu kellaritilojen sisäilmakorjaus, laajeni nyt täydeksi peruskorjauksesi. Suunnitteluun jäänyt aika jäi tästä syystä melko niukaksi ja suunnittelu tapahtuikin suurelta osin saman aikaisesti työmaavaiheen kanssa.
Yhteistyö rakennuttajan, muiden suunnittelijoiden ja työmaan kanssa
Koska kirjastossa oli luonteeltaan hyvin eri tyyppisiä tiloja, arkkitehti jaotteli sisätilat arvoluokkiin sen mukaan, miten niitä korjauksen yhteydessä tulisi käsitellä. Arvoluokista tehtiin kaavio "Tilaryhmien kunnostusperiaatteet", joka ohjeisti muita suunnittelijoita ja työmaata. Tärkeimmissä tilaryhmissä kaikista muutoksista tai työmaalla vastaan tulleista epäselvyyksistä kaupungin valvojat ottivat välittömästi yhteyttä arkkitehtiin. Tämä oli tärkeää senkin vuoksi, että helsinkiläisen arkkitehdin läsnäolo työmaalla ei voinut olla jatkuvaa. Yhteydenpito toimi välimatkasta huolimatta hyvin koko työmaan ajan.
Pääosa toteutussuunnittelusta, etenkin detaljien osalta, tehtiin samanaikaisesti korjaustyömaan kanssa. Korjausrakentamisen suunnittelu poikkeaa uudissuunnittelusta siinä, että kaikkea ei voi suunnitella valmiiksi ennen rakenteiden avaamista ja todellisten tilanteiden selvittämistä. Suunnittelun ja päätösten tekeminen kiireisessä työmaavaiheessa on haastavaa, mutta jos kaikkien osapuolten välinen yhteispeli sujuu mutkattomasti, se voi olla tehokkain tapa edistää asioita.
Kaupunginarkkitehti Jussi Aittoniemen johtamalla kaupungin rakennuttajaorganisaatiolla ja restaurointiarkkitehdeilla oli yhteneväiset tavoitteet lopputuloksen suhteen. Tämä oli ratkaisevaa kiireellisessä suunnitteluaikataulussa. Muiden suunnittelijoiden, erityisesti LVI- ja sähkösuunnittelijoiden asenne ja ammattitaito oli keskeistä: vältettiin turhat harha-askeleet ja edettiin koko ajan yhteiseen suuntaan. Työn etenemisen kannalta tärkeää oli myös rakennuttajaorganisaation kyky riittävien selvitysten ja pohdintojen jälkeen tehdä selkeät päätökset kulloisessakin tilanteessa. Kaupunginarkkitehdin kokouksissa lausuma ”näillä mennään” jäi mieleen positiivisena muistona projektin määrätietoisesta edistämisestä.
Arkkitehtimuistiot ja alkuperäiset rakennekuvat tärkeinä apuvälineinä
Suunnitteluvaiheen nopeasta aikataulusta sekä arkkitehtitoimiston ja työmaan välisestä etäisyydestä johtuen arkkitehtipiirustuksiin sisällytettiin työpiirustusten lisäksi toinen piirustussarja, jota kutsuimme nimellä ”arkkitehtimuistiot”. Ne olivat nopean kommentoinnin ja ideoiden kehittelyn työvälineitä, joilla pääsuunnittelija saattoi ohjata suunnittelua ja työmaata. Arkkitehtimuistioita oli neljä erillistä numeroitua sarjaa Ark, Lvi, Sähkö ja Rak sen mukaan mitä osa-aluetta ne kulloinkin käsittelivät. Parhaimmillaan arkkitehtimuistioista muodostui keskusteluketjuja, joihin eri suunnittelijat vastasivat lisäämällä piirustukseen kommenttejaan.
Tärkeä ja poikkeuksellinen piirustussarja ”Rakenneleikkausyhdistelmät” koottiin rakennuksen alkuperäisen rakennesuunnittelijan, diplomi-insinööri Lauri Mehton laatimista rakenneleikkauskuvista vuosilta 1963-64. Ne pitivät erittäin hyvin paikkansa, sekä mitoituksen että rakennekerrosten osalta. Rakenneleikkausyhdistelmäpiirustukset olivat ensiarvoisen tärkeitä mm. uusien tekniikkareittien sijoituksia pohdittaessa.
Pääperiaatteena patinan säilyttäminen ja muutosten arkkitehtoninen luontevuus
Keskeinen restaurointiperiaate oli säilyttää alkuperäiset rakenteet, yksityiskohdat, materiaalit ja patina. Alkuperäisten materiaalien ikääntyminen sai näkyä, pintojen ei tarvinnut näyttää uusilta. Esimerkiksi pääkirjastosalin lautamuotilla valettu kaartuva katto vain puhdistettiin, koska uudella maalikerroksella ei haluttu peittää laudoituskuviossa näkyvää taitavaa käsityön jälkeä. Tavoitteena oli arvokas ja viimeistelty kokonaisuus. Patinan säilyttäminen ja säästävä korjaus oli myös taloudellisesti kannattavaa. Kun vältettiin turhaa korjausta ja uusimista, saatiin korjauskustannukset pysymään hyvin kohtuullisina.
Uusien tilojen ja lisäosien suunnittelussa pyrittiin arkkitehtoniseen luontevuuteen suhteessa Aallon suunnittelemiin osiin. Uudet asiat eivät saa viedä huomiota kokonaisuudelta. Jokainen kohta suunniteltiin yksilöllisesti ja suunnittelussa huomioitiin alussa asetetut arvoluokat. Mitä arvokkaampi tila, sitä suuremmalla hienotunteisuudella siihen tehdyt muutokset suunniteltiin.
Uusi talotekniikka
Kirjaston ilmastointi, sähkötekniikka ja lämmitysputkisto uusittiin kokonaisuudessaan. Sisätiloissa suunnittelutyön vaikeus oli uuden tekniikan tuominen vanhaan kirjastoon mahdollisimman näkymättömästi. Uusi ilmanvaihtokonehuone sijoitettiin entiseen kirjastoautotalliin ensimmäisen kerroksen päätilojen keskelle. Kirjastoautotallin suurien ovien yläreunaan sijoitettiin tulo- ja poistoilmasäleiköt, eikä julkisivuihin tarvittu uusia aukotuksia.
Ensimmäisen kerroksen päätilojen ilmanvaihdon kanavat ja suuttimet piilotettiin kirjahyllyjen sokkeliin sekä kirjahyllyjen taakse. Ainoa ilmanvaihdon uudistamisesta seurannut näkyvä muutos pääsalissa on rako kirjahyllysokkelin yläreunassa. Lastenosastolla uudet ilmanvaihdon suuttimet piilotettiin vanhojen puurimasäleikköjen taakse, joita teetettiin muutama lisää. Uusien puusäleikköjen sijoituksessa tavoiteltiin alkuperäisten säleikköjen sattumanvaraisuutta.
Ensimmäisen kerroksen päätilat restauroitiin
Ensimmäisen kerroksen päätilojen alkuperäiset pinnat ja kalusteet konservoitiin. Pääsalissa ja lastenosastolla palautettiin kirjahyllyjen alkuperäinen järjestys. Pääsalin viilutetut hyllylevyt käännettiin ennen kunnostusta ympäri, joten vanhat pinnat säilyivät. Hyllyjen päällä olevien valaisinten tekniikka uusittiin.
Alkuperäinen lukusali oli täytetty kirjahyllyillä. Nyt sali palautettiin entiseen käyttöön. Alkuperäiset pöytäkalusteet ja niihin liittyvät valaisimet löytyivät kaupungin varastosta.
Vaikka kirjasto oli vasta viitisenkymmentä vuotta vanha, sen kaikista alkuperäismateriaaleista ei ollut säilynyt tietoa. Koska esimerkiksi lukumontun alkuperäinen tekstiilimatto näkyi vain vanhoissa valokuvissa, valittiin sinne uusi tekstiilimatto 1960-luvun henkeen sopivaa kuosia.
Arkkitehti ohjasi myös vanhojen kalusteiden ja pintojen konservointia ja kunnostusta. Kaupunki teetti konservointityöt ja pienemmät puusepäntyöt rakennusurakasta erillisinä palkkaamillaan konservaattoreilla ja puusepällä. Se osoittautui hyväksi ratkaisuksi. Lopulliset korjaus- ja kunnostustavat etsittiin yhdessä kokeilemalla ja keskustelemalla. Näin varmistui lopputuloksen laatu ja tavoitetaso esimerkiksi patinan säilymisen kannalta. Vanhat valaisimet kunnostettiin ja varustettiin tarvittaessa uudella tekniikalla.
Kellarikerrokseen uusia tiloja
Kellaritilat arvioitiin rakennushistorialliselta arvoltaan päätiloja vähäisemmiksi, mikä mahdollisti tilojen muuttamisen. Kellariin sijoitettiin myös kirjaston toimintaa tukevia uusia tiloja.
Korjaussuunnittelun alkaessa kellarin purku-urakan alkuun oli aikaa vajaa kaksi kuukautta. Purkutyöt liittyivät jo aiemmin käynnistettyihin alapohjan kosteusteknisiin korjauksiin. Purkutöitä laajennettiin nyt palvelemaan myös rakennuksen talotekniikan uusimisen tarpeita.
Pääkirjastosalin alle avattiin laaja galleriatila. Tilan luonne syntyy keskellä sijaitsevasta pääsalin lukumontun kaarevasta betoniseinästä ja sen edessä olevista pyöreistä pilareista. Entisten varastotilojen väliseiniä purkamalla kaareutuva tila saatiin nyt ensimmäistä kertaa yhtenäisenä näkyviin.
Tilan näyttävä muoto ja rakennedetaljointi pylväineen ja palkistoineen saattaa periytyä Alvar Aallon varhaisista luonnoksista, joissa kirjastosali avautui toteutettua versiota enemmän kellarikerrokseen. Koska galleriatila on Apilan ja Aallon kirjaston välissä, galleriassa uudet kirjahyllyt ovat samaa mallia kuin Apila-kirjastossa ja tekstiilimatto on sama kuin Apilassa.
Apila-kirjastosta tuleva maanalainen yhdyskäytävä liittyy Aallon kirjastossa entiseen kellarivarastoon. Aallon kirjastoon avattiin laaja aukko kellarin keskiaulaan, jotta kulku olisi sujuvaa. Lisäksi tarvittiin arkkitehtonisesti ja toiminnallisesti luonteva kulkureitti ja yhteys kellarista Aallon kirjaston päätiloihin. Aallon kirjaston pääsalin lukumontusta kellariin laskeutuviin vanhoihin portaisiin ei kajottu, sillä ne vievät Aallon kirjaston arvokkaimpiin ja tarkimmin säilytettyihin sisätiloihin. Portaaseen aukeavan oven saranointi eli kätisyys vaihdettiin kulun helpottamiseksi. Kellariaulaan suunniteltiin uudet, vain tässä tilassa käytössä olevat näyttelyvitriinit.
Kellariin vanhaan lehtivarastoon tehtiin monikäyttöinen studiotila ja vanhasta väestönsuojasta muokattiin soittohuone, jossa bändit voivat harjoitella väestönsuojan paksujen betoniseinien suojassa. Lisäksi kellariin sijoitettiin erilaisia opetus- ja tutkimustiloja sekä henkilökunnan keittiö. Tilat suunniteltiin vanhaa säilyttäen ja uusilta osiltaan vanhaan sopeutuviksi.
Julkisivut säilyivät ennallaan
Rakennuksen ulkovaipassa kunnostettiin julkisivut, ikkunat, metalliset ikkunasäleiköt, ovet sekä kuparinen vesikatto. Julkisivumuutokset olivat vähäisiä ja ne pystyttiin tekemään olemassa olevien aukkojen sisällä. Kolmen kellari-ikkunan ilmanvaihtoaukon kokoa levennettiin alumiinisen pystysäleikön takana ja entisen autotallinoven yläreunaan tehtiin uusi ilmanvaihtoaukko. Uusi ilmanvaihtoritilä peitettiin vanhan mallin mukaan toteutetulla pystysäleiköllä.

Aallon rakennusten rappauspintojen uudelleenmaalauksissa olemme pyrkineet käyttämään kalkkimaalia. Seinäjoen kirjaston alkuperäinen julkisivumaali oli maalausselostuksen mukaan lateksimaali. Vanhat maali- ja rappauspinnat poistettiin irtoavilta osiltaan kevyellä puhalluksella, jolloin vanha rappaus saatiin säilytettyä suurimmaksi osaksi. Paikkarappaus tehtiin vanhan rappauspinnan karkeustasoa mukaillen, mikä on suurta ammattitaitoa vaativaa käsityötä. Siinä onnistuttiin vaihtelevasti. Uudeksi julkisivumaaliksi valittiin silikaattimaali, jonka katsottiin parhaiten vastaavan alkuperäisen maalauksen tavoitteita. Pohjamaaliksi valittiin täyteaineita sisältävä silikaattimaali, jolla pystyttiin hieman korjaaman seinäpinnan epätasaisuuksia.
Loppuyhteenveto
Aallon kirjaston peruskorjauksen suunnitteluaikataulu muodostui tiukaksi ja suunnittelu tehtiin suurelta osin samaan aikaan korjaustöiden kanssa. Onnistuneeseen lopputulokseen pääsemisen kannalta keskeisessä osassa oli saumaton yhteistyö ja yhteneväiset tavoitteet kaikkien eri osapuolten välillä. Yhteiseen päämäärään edettiin tehokkaasti ilman turhia harha-askelia. Yhteneväisillä tavoitteilla säilyttävästä korjauksesta pidettiin myös kustannukset alhaisina. Pintojen konservointi ja säilyttäminen on usein lopulta halvempaa kuin kaiken repiminen ja uudelleen rakentaminen. Puhumattakaan siitä, että niin päästäisiin samaan käsityön tasoon kuin alkuperäisissä pinnoissa ja rakenteissa.
Myös talotekniikan suhteen lähdettiin rakennuksen ominaisuuksista eikä normeista. Näin ratkaisut pystyttiin pitämään luontevina ilman kalliita, monimutkaisia ja sisätiloja tuhoavia ratkaisuja. Jälkeenpäin todettiin, että esimerkiksi ilmanvaihdossa päästiin hyvin lähelle nykyvaatimuksia.
Aikataulusyistä projekti ei edennyt kaikilta osin ihan ohjekirjan mukaisesti. Suunnittelijoiden pitkä kokemus vastaavista suunnittelukohteista auttoi osaltaan keskittymään rakentamisprosessissa lopputuloksen ja rakennussuojelun toteutumisen kannalta keskeisiin ja oleellisiin kohtiin.
Kirjoittajat
Arkkitehdit Olli Helasvuo ja Tapani Mustonen vastasivat Aallon kirjaston pää- ja arkkitehtisuunnittelusta. Arkkitehdit Mustonen Oy on suunnitellut usean arkkitehti Alvar Aallon suunnitteleman rakennuksen korjauksen.
Artikkeli on julkaistu 2020.
KOHDETIETOJA
Alkuperäinen rakennus: Alvar Aalto 1965.
Peruskorjaus ja restaurointi: 2014-2015.
Kirjaston laajuus: 1890 m2.
Tilaaja: Seinäjoen kaupunki
Pää- ja arkkitehtisuunnittelu: Arkkitehdit Mustonen Oy
Muut suunnittelijat:
LVI: Avecon Oy
Sähkö: Avecon Oy
Rakenteet: Aaro Kohonen Oy
Urakoitsijat:
Pääurakoitsija: Rakennus- ja suunnittelutoimisto Hämäläiset Oy
Sähkö: Are Talotekniikka Oy
Ilmanvaihto: Are Talotekniikka Oy
Vesi: Are Talotekniikka Oy
Vesikaton korjaus: Pohjanmaan Peltityöt Oy
Muita tahoja:
Konservointi- ja puusepäntyöt Seinäjoen kaupungin omana työnä: konservaattorit Minna-Riikka Tuohiniitty ja Susanna Hietamäki, puuseppä Jari Peltokangas.
Lastenosaston ja kellarin keskiaulan uudet vitriinit: Puusepänliike Pauli Hietamäki.
Alvar Aalto –säätiö
Kulttuuriympäristön asiantuntijaviranomainen: Museovirasto
Lähteet
Alvar Aalto -museon arkisto.
Seinäjoen kaupunginarkisto.
KOHDETIETOJA
Alkuperäinen rakennus: Alvar Aalto 1965.
Peruskorjaus ja restaurointi: 2014-2015.
Kirjaston laajuus: 1890 m2.
Tilaaja: Seinäjoen kaupunki
Pää- ja arkkitehtisuunnittelu: Arkkitehdit Mustonen Oy
Muut suunnittelijat:
LVI: Avecon Oy
Sähkö: Avecon Oy
Rakenteet: Aaro Kohonen Oy
Urakoitsijat:
Pääurakoitsija: Rakennus- ja suunnittelutoimisto Hämäläiset Oy
Sähkö: Are Talotekniikka Oy
Ilmanvaihto: Are Talotekniikka Oy
Vesi: Are Talotekniikka Oy
Vesikaton korjaus: Pohjanmaan Peltityöt Oy
Muita tahoja:
Konservointi- ja puusepäntyöt Seinäjoen kaupungin omana työnä: konservaattorit Minna-Riikka Tuohiniitty ja Susanna Hietamäki, puuseppä Jari Peltokangas.
Lastenosaston ja kellarin keskiaulan uudet vitriinit: Puusepänliike Pauli Hietamäki.
Alvar Aalto –säätiö
Kulttuuriympäristön asiantuntijaviranomainen: Museovirasto
Viiteet
[1] Venustas, firmitas, utilitas. Vitruviuksen määritelmä siitä mihin arkkitehtuurissa pitää pyrkiä. Marcus Vitruvius Pollio oli roomalainen arkkitehti, insinööri ja kirjailija, joka kirjoitti arkkitehtuurin käsikirjan De architectura arviolta 25 vuotta ennen ajanlaskun alkua.
[2] Viipurin kirjaston arkkitehtuurikilpailu järjestettiin 1927. Kirjasto valmistui 1935.
[3] Seinäjoki sai kaupunkioikeudet 1960.
[4] Aallon kirjaston peruskorjaus, tilaohjelma ja toimenpideselostus. Seinäjoen kaupungin tilapalvelut, Aittoniemi, 24.3.2014.
[5] Seinäjoen kulttuuri- ja hallintokeskus. Rakennushistoriallinen selvitys ja säilyneisyyskartoitus. Alvar Aalto –säätiö, Jaakko Penttilä 2004.