
Helsingin kaupunginteatterin peruskorjaus
Mikko Mannberg, LPR-arkkitehdit Oy
Helsingin kaupunginteatterilla, pääkaupungin ensimmäisellä nykyaikaisella laitosteatterilla, on tunnustettu asema suomalaisen modernismin historiassa. Kulttuurihistoriallisesti, kaupunkikuvallisesti ja arkkitehtonisesti merkittävä teatteri on osa Töölönlahden kulttuurirakennusten kokonaisuutta ja Eläintarhanlahden puistomaisemaa. Teatteri puistoalueineen on valtakunnallisesti merkittävä kulttuuriympäristö. Kansainvälinen modernin arkkitehtuurin tutkimus- ja suojelujärjestö DOCOMOMO on sisällyttänyt sen kohdevalikoimaansa yhtenä suomalaisen modernismin merkkiteoksista. Asemakaavassa sille on asetettu yksityiskohtaiset suojelumääräykset.
Rakennuksen ensimmäisen peruskorjaustyön tärkeimpiä tavoitteita – toiminnallisten parannusten ohella – oli säilyttää 1967 valmistuneen teatterirakennuksen tunnelma: tilat, materiaalit ja yksityiskohdat. Arkkitehti Timo Penttilän (1931-2011) alkuperäisratkaisut asettivat korjaustyölle omat haasteensa ja vaatimuksensa.[4]
KORJATTAVAN RAKENNUKSEN ARKKITEHTUURI
Kaupunginteatterista järjestetyn arkkitehtuurikilpailun palkintolautakunta kiitti voittaneen ehdotuksen toiminnallisuutta sekä sen arkkitehtonisia, kaupunkikuvallisia ja maisemallisia ansioita: “Omaperäinen ja kaunis ehdotus, jossa rakennus oivallisesti sopeutuu ympäristöönsä. Ratkaisu on vapaa, erittäin hallittu ja selkeä. Halli ja lämpiötilat ansiokkaasti ja miellyttävästi suunniteltu. Yleisön liikenne johdettu erikoisen luontevasti ja kauniisti. Pääkatsomon muodossa päästy varsin tehokkaaseen ja kauniiseen ratkaisuun. […] Pieni näyttämö omaperäisesti ja herkästi suunniteltu tarjoten useita variaatiomahdollisuuksia. […] Henkilökunnan tilat onnistuneesti sijoitettu ja yhteydet niistä näyttämöille sujuvat. […] [5] Toiminnallisia kriteereitä olivat näyttämötilojen muunneltavuus, katsomotilojen mitoitus ja näkymien esteettömyys sekä sisäisen liikenteen selkeys.[6]
002 HKT MM
1960-luvun teatteritilakäsitys vastaan Penttilän näkemys
1960-luvun näkemyksen mukaan teatteritaiteella on tasa-arvoa korostava merkitys: ”Kaiken lähtökohtana on teatterin idea, joka pystyy herättämään spontaania vastakaikua yhteiskunnan laajoissa piireissä.”[7] Sen sijaan näkemykset teatterirakennusten merkityksestä vaihtelivat. Toisaalta teatteriesityksiä pidettiin oleellisempana kuin niiden puitteita, teatterirakennuksen arkkitehtuuria. Toisaalta nähtiin, että teatteritaide, arkkitehtuuri ja muut taiteet yhdessä tarjoavat yleisölle kokonaiselämyksen. Pieniä studionäyttämöitä sekä puolustettiin että torjuttiin. Toiset näkivät, että teatterirakennuksella on tärkeä rooli kaupunkikuvassa, toiset eivät.[8]
003 HKT MM
Penttilä halusi yhdistää teatterin eri aspektit ”maailmankatsomuksellisesta lähtökohdasta näyttämötoiminnan teknillis-käytännöllisiin detaljeihin”. Hän kritisoi 1960-luvun pyrkimyksiä tilojen yleispätevyyteen eikä kannattanut studiotilaa [9] ainoana vaihtoehtona. Teatteritilan tuli mahdollistaa eri lajityyppien ja aikakausien teosten esittämisen yhtä hyvin kuin kokeilut ja ohjaajien persoonalliset näkemykset.[10]
”Yleisön intressit vaihtelevat näytelmäkappaleen eri aspekteista sosiaalis-arkkitehtoniseen ympäristöön.” [11] Penttilä toi esiin, että teatterissakäynti on paitsi esityksen kokemista myös tapahtuma, juhla, jossa ihmiset kohtaavat toisensa. Arkkitehtuurilla on siinä oma merkitysarvonsa. Penttilä painotti myös teatterirakennuksen roolia kaupunkikuvassa ja toi keskusteluun – 1960-luvun suomalaisesta arkkitehtuuripuheesta poikkeavan – näkemyksensä monumentaalirakennuksen arvoista ja tehtävästä.[12]
Penttilän kokonaistaideteos - kaupunkiympäristöstä sisustuksen yksityiskohtiin
Kaupunginteatteri sijaitsee Kallion kaupunginosassa. Tarja Halosen puiston vehreässä ympäristössä matalan veistoksellisen rakennuksen näyttämötorni kohoaa monumentaalisena. Alueella on iäkäs puusto. Iltavalaistun pääjulkisivun ja näyttämötornin kaupunkikuvallista dramatiikkaa esiteltiin mediassa komein kuvin, kun talo vihittiin käyttöön 7.10.1967. Näytäntökausi avattiin pienellä näyttämöllä jo elokuussa ja suurella näyttämöllä lokakuussa Henrik Ibsenin Peer Gyntillä.[13]
Rakennus hahmottuu Eläintarhanlahdelle kolmi- ja Ensi linjan puolelle yksikerroksisena. Yleisötilat on jaettu rakennuksen etelä- ja länsiosaan puiston äärelle suuren näyttämön ympärille kolmeen kerrokseen sekä yhteen kerrokseen pienen näyttämön äärelle.
004 HKT MM
Tilat seuraavat maastonmuotoja – avoimina ja sulkeutuneina
Sisätilat ja julkisivut porrastuvat puistomaiseman mukaan. Katsojien saapumissuunnassa ulko- ja sisätilan rajaa on häivytetty. Suuren lämpiön valoisat yleisötilat avautuvat suurten ikkunoiden kautta puistoon ja vesimaisemaan. Kolmeen kerrokseen porrastuva päälämpiö on monumentaalinen.
005 HKT MM
006 HKT MM
Suuri näyttämö on etu-, sivu- ja takanäyttämöineen perinteinen ristinäyttämö, jossa on sekä rengas- että pyörönäyttämö hydraulisine nostimineen. Leveässä, kaartuvassa katsomossa penkkirivejä on permannolla 14 ja parvella viisi ja paikkoja yhteensä 920. Pieni studiomainen näyttämö katsomoineen on varioitavissa perinteisestä näyttämöstä aina ¾-areenaan, ja katsojia saliin mahtuu tilaratkaisun mukaan 230-330.[14]
007 HKT MM
Näyttämöiden taustalla samassa tasossa ovat puutyöpaja, maalaamo, lavastamot ja varastot. Ompelimo, harjoitushuoneet, näyttelijöiden pukuhuoneet, hallinto ja ruokala sijaitsevat 2.-4. kerroksessa. Näyttelijöiden pukuhuoneissa nauhaikkunat ovat niin ylhäällä, ettei niistä näe ulos, toisaalta pukuhuoneisiin ei myöskään näe sisään.
008 HKT MM
009 HKT MM
Penttilän materiaali- ja detaljipaletti on runsas ja kaksijakoinen
Teatterirakennus on porrastettu maiseman mukaan. Porrastus ja rakennuksen materiaalit sekä detaljit muistuttavat Alvar Aallon arkkitehtuuria.[15] Julkisivut on verhottu vaalein lasitetuin keraamisin laatoin ja sauvoin. Ne näkyvät eri tavoin riippuen vuorokauden ajasta, vuodenajasta ja valaistuksesta. Laajat lasitukset sekä sisääntulon ja sisätilojen marmoripinnat antavat arvokkaan vaikutelman.
010 HKT MM
011 HKT MM
012 HKT MM
Sisällä yleisötilat ovat hienostuneita ja materiaalit ylellisiä: valkoinen marmori, pronssi, messinki, teak, villanukkamatto. Yksityiskohdat ovat runsaita: pääovissa valetut pronssivetimet, ikkunoissa pronssilistat, lämpiöiden seinissä kangasverhoilut, teak-pinnat ja -säleiköt, pilareissa laatoitukset, lattioissa marmori ja villanukkamatto, reikätiilestä lappeelleen muuratut tummanharmaat seinät ja yleisö-wc-tiloissa syvänpunainen keraaminen sauvalaatoitus, katsomoiden seinien ja tuolien kangasverhoilut.
Yleisötilojen vastakohtana henkilökunnan työtilat ovat yleisväriltään puhtaan valkoisia. Vihreät, keltaiset ja punaiset – Elsan puolella siniset – väliovet täplittävät käytävänäkymiä.
Edistyksellistä tekniikkaa ja kantavia rakenteita
Näyttämötornin kattoa, paloesirippua ja näyttämötekniikkaa kantaa piilossa esijännitetty 34,4 metriä pitkä teräsbetonikaari. Suuren näyttämön aukon ylittää 29 metriä pitkä teräsrakenne. Sisäänkäyntikatoksen 7-metrinen ulokepalkisto laskettiin aikanaan edistyksellisellä mitoittavalla tietokoneohjelmalla. [16] Lämpö-, vesi- ja ilmanvaihtotekniikka, akustiikka ja äänenvaimennus ratkaistiin huolella. Valaistustekniikka oli aikansa huippua – sähköurakoitsija tosin ajautui konkurssiin. [17]
013 HKT MM
Teatteri saa laajennuksen
Teatteria laajennettiin näyttelijä Elsa Turakaisen mukaan nimetyllä Studio Elsalla 1987-89.[18] Laajennuksen suunnitteli Arkkitehtitoimisto Oy Timo Penttilä – Kari Lind – Sakari Tilanterä. Alkuperäisrakennuksen takana olevassa Elsassa on toimisto- ja työpajatiloja sekä studionäyttämö (alun perin harjoitustila). Julkisivujen materiaaliperiaatteet periytyivät alkuperäisosasta, mutta Elsan julkisivut ovat laatoitettuja betonielementtejä.
PERUSKORJAUKSEN VÄLTTÄMÄTTÖMYYS – TIETOA SUUNNITTELUN POHJAKSI
Helsingin teatterisäätiö päätti teatterirakennusten peruskorjauksesta vuonna 2009.[19] Arkkitehtitoimisto A-Konsultit Oy laati 2012-13 hankesuunnitelman, joka sisälsi mm. rakennussuojeluperiaatteet. Teatteriteknisen tarveselvityksen mukaan näyttämö-, av-tekniikka-, valo-, video- ja äänijärjestelmät tuli ajanmukaistaa. Talotekniikka oli vanhentunut. Esteettömyysraportin ja Näkövammaisten keskusliiton ohjeet tuli huomioida.
Sisätilojen kunto vaihteli hyvästä välttävään. Paloturvallisuudessa oli puutteita. Keittiötiloja tuli ajanmukaistaa. Piha-alueiden valaistus ja pysäköintijärjestelyt vaativat toimenpiteitä. Alkuperäisen rakennuksen julkisivulaattoja oli rikki.
014 HKT MM
Henkilökunta ilmoitti kyselyssä haluavansa tiloilta monikäyttöisyyttä, lisää harjoitus- ja yleisön wc-tiloja, parempia it- ja infojärjestelmiä, kohennusta akustiikkaan, ääneneristykseen ja vaimennukseen, säädettävää ilmanvaihtoa ja sujuvampaa esteettömyyttä. Sisäilma- ja lämpötilaongelmat olivat ilmeisiä.
Kaupunginteatterin arkkitehtuuri on kestävää
Peruskorjausta varten laadittiin rakennushistoriaselvitys.[20] Selvitys kuvaa rakentamisen alkuperäisiä tavoitteita, suunnitelmia, toteutusta ja muutoksia. Siinä on nykytilanteen inventointi ja olennainen tieto poikkeuksellisen hyvin säilyneestä arkkitehtuurista: ”Alkuperäiset suunnitteluperiaatteet, toiminnalliset ratkaisut ja materiaalit ovat osoittautuneet kestäviksi.”[21] Myös Studio Elsan laajennus oli säilynyt 1980-luvun asussa.
Rakennukseen tehdyt muutokset olivat vähäisiä. Apu- ja työpajatiloja lisättiin 1980-luvun laajennuksessa. Päälämpiön esteettömyyttä oli parannettu mm. hissillä. Lämpiön tarjoilujärjestelyjä ja kokolattiamattoja sekä ruokalan ja toimistotilojen sisustusta oli uudistettu. Suuren näyttämön katsomotuolit ja osa Yrjö Kukkapuron kalusteista oli kunnostettu, mutta Maija Ruoslahden suunnittelemista messinkirunkoisista kalusteista vain muutama oli jäljellä. Kokolattiamatot ja katsomoiden kangasverhoilut oli uusittu. Vesikatot, räystäspellitykset ja ikkunat oli uusittu.
Puiston alkuperäisiä istutusperiaatteita ei ollut noudatettu. Puistoon 1970-luvulla istutetut havupuut peittivät näkymiä teatteriin ja teatterilta. Jalankulkijoiden sisääntulokäytävät olivat säilyneet hyvin. Terassimuuriin oli lisätty mainosvitriinejä.
Korjausta ohjaavat asemakaavamääräykset
Asemakaavamuutosta korjausprojektia varten valmisteltiin 2014, ja sen hyväksyi Helsingin kaupunginvaltuusto kesällä 2015. Kaavan valmistelussa viranomaiset painottivat kulttuurihistoriallisten ja arkkitehtonisten arvojen turvaamista sekä alueen yhtenäisen ja korkealaatuisen ilmeen säilyttämistä. Kaava velvoittaa liittämään rakennushistoriaselvityksen lupahakemukseen ja dokumentoimaan korjaus-, muutos- ja lisärakentamistyöt.
Asemakaava sisältää tarkkoja suojelumääräyksiä. Teatterirakennusta koskee määräys sr-1: ”Korjaamisen lähtökohtana tulee olla rakennuksen alkuperäisten rakenteiden ja rakennusosien, vesikaton, julkisivujen, lasiseinien ja ikkunoiden, ulko-ovien, valaisimien sekä niiden yksityiskohtien, materiaalien ja värien säilyttäminen. Yleisötiloissa korjaamisen lähtökohtana tulee olla tilarakenteen ja -hierarkian sekä alkuperäisten rakenteiden, materiaalien ja värien, kiintokalusteiden, valaistusratkaisujen sekä muiden yksityiskohtien säilyttäminen. Muissa tiloissa korjaamisen lähtökohtana tulee olla pääasiallisen tilajaon, rakenneratkaisujen, värisymboliikan, kiintokalusteiden ja betonisten alakattojen säilyttäminen. Mikäli alkuperäisiä rakennusosia joudutaan pakottavista syistä uusimaan, se tulee tehdä rakennuksen arvoon ja ominaispiirteisiin hyvin soveltuvalla tavalla. Lähtökohtana tulee olla rakennuksen alkuperäisten rakennusosien säilyttäminen. Tarvittavat muutokset ja uudisosat tulee suunnitella siten, että ne muodostavat alkuperäistä arkkitehtuuria tasapainoisesti täydentävän kerrostuman.”[22]
Myös kaupunkikuvaan vaikuttavia määräyksiä annettiin: ”Vesikatolle saadaan sijoittaa enintään 0.7 metriä leikkauskohdan ylittäviä teknisiä laitteita. Teknisten laitteiden ja rakennelmien suunnitteluun ja kaupunkikuvalliseen ilmeeseen tulee kiinnittää erityistä huomiota.”[23]
Ympäristöä koskee suojelumääräys sr-2: ”Puistoalueet muodostavat kaupunginteatterin kanssa saumattoman kokonaisuuden, joka tulee säilyttää ja hoitaa niin, että sen kulttuurihistoriallinen, puutarhataiteellinen ja kaupunkikuvallinen arvo säilyy. [...] Ympäristön hoito- ja kunnostussuunnitelmat tulee tehdä alkuperäisten suunnitelmien hengessä ja suojeluperiaatteita noudattaen. Arvokas puusto tulee säilyttää ja tarvittaessa uudistaa niin, että alueen puutarhataiteellinen ja kaupunkikuvallinen arvo ja merkitys säilyvät. Puuston hoitosuunnitelmat tulee tehdä laadittujen suojeluperiaatteiden pohjalta. Kunnostus- ja uudistustoimenpiteissä tulee ottaa huomioon säilytettävät ja palautettavat näkymät. [...] Kohteiden kunnostaminen ja uusiminen tulee tehdä alkuperäisin tai alkuperäistä vastaavin materiaalein. uusien kalusteiden, varusteiden, rakenteiden ja rakennelmien tulee sopia kulttuurihistoriallisesti ja kaupunkikuvallisesti arvokkaan alueen ominaispiirteisiin.” [24]
KORJAUSSUUNNITTELUSSA TARVITAAN KATTAVAT TAUSTATIEDOT
Peruskorjauksen toteutussuunnittelun sai tarjouskilpailun perusteella LPR-arkkitehdit Oy. Urakka-aineisto valmistui 2015 alussa ja työmaa käynnistyi kesäkuussa. Korjattu teatterirakennus luovutettiin käyttäjälle 1.5.2017. Peruskorjauksen toteutti projektinjohtourakkana SRV Rakennus Oy. Urakoitsijalistassa on yli 130 yritystä.
Toteutussuunnittelun tavoitteena oli teatterirakennuksen ja ympäröivän lähialueen arvot huomioiva ja ne säilyttävä laaja kunnostustyö. Suunnittelun pohjaksi tarvitaan kattavasti faktaa. Alkuperäissuunnitelmat ja -selostukset skannattiin projektipankkiin. Arkkitehtuurimuseon kokoelmista löytyi Penttilän arkisto, mm. alkuperäismateriaaleja sisältävä mappi.
Toteutussuunnittelua ohjasivat rakennushistoria-, inventointi- ja säilyneisyysselvitykset ja ympäristöhistoriallinen selvitys suojeluperiaatteineen, hankesuunnitelma, asemakaavamuutos suojelumääräyksineen ja kaupunginmuseon antamat lausunnot kaavaehdotuksesta.
Tekniset tutkimukset käsittivät kuntoselvityksen ja tutkimuksia haitta-aineista, julkisivujen kunnosta, maanvastaisten rakenteiden pintakosteudesta ja sisäväreistä. Epäselviä kohtia selvitettiin avaamalla työmaalla rakenteita.
015 HKT MM
Tietomallinnus on korvaamaton työväline
Tärkeä suunnitteluväline on digitaalinen tekniikka: pistepilvikuvaus, 3D-tietomallinnus ja havainnekuvat. Teatterirakennus laserkeilattiin ennen purkutöitä, mutta toteutuneen tilanteen selvittämiseksi korjausrakennettavat kohteet pitäisi laserkeilata myös purkutöiden jälkeen. Läpi toteutusvaiheen jatkuva tietomallinnus maksaa itsensä takaisin: se on korvaamaton talotekniikan yhteensovituksessa ja tietomallia voidaan hyödyntää työmaalla.
Yhteinen näkemys mahdollistaa sujuvan toteutuksen - tavoitteet havainnollistetaan piirustuksiin
Suunnitteluratkaisut laadittiin yhteistyössä käyttäjien, Helsingin kaupunginmuseon sekä viranomaisten (kaupunkikuvaneuvottelukunta, rakennusvalvonta) kanssa. Näin varmistettiin yhteinen näkemys tavoitteista, suunnitteluratkaisujen sopivuudesta ja edesautettiin sujuvaa toteutusvaihetta.
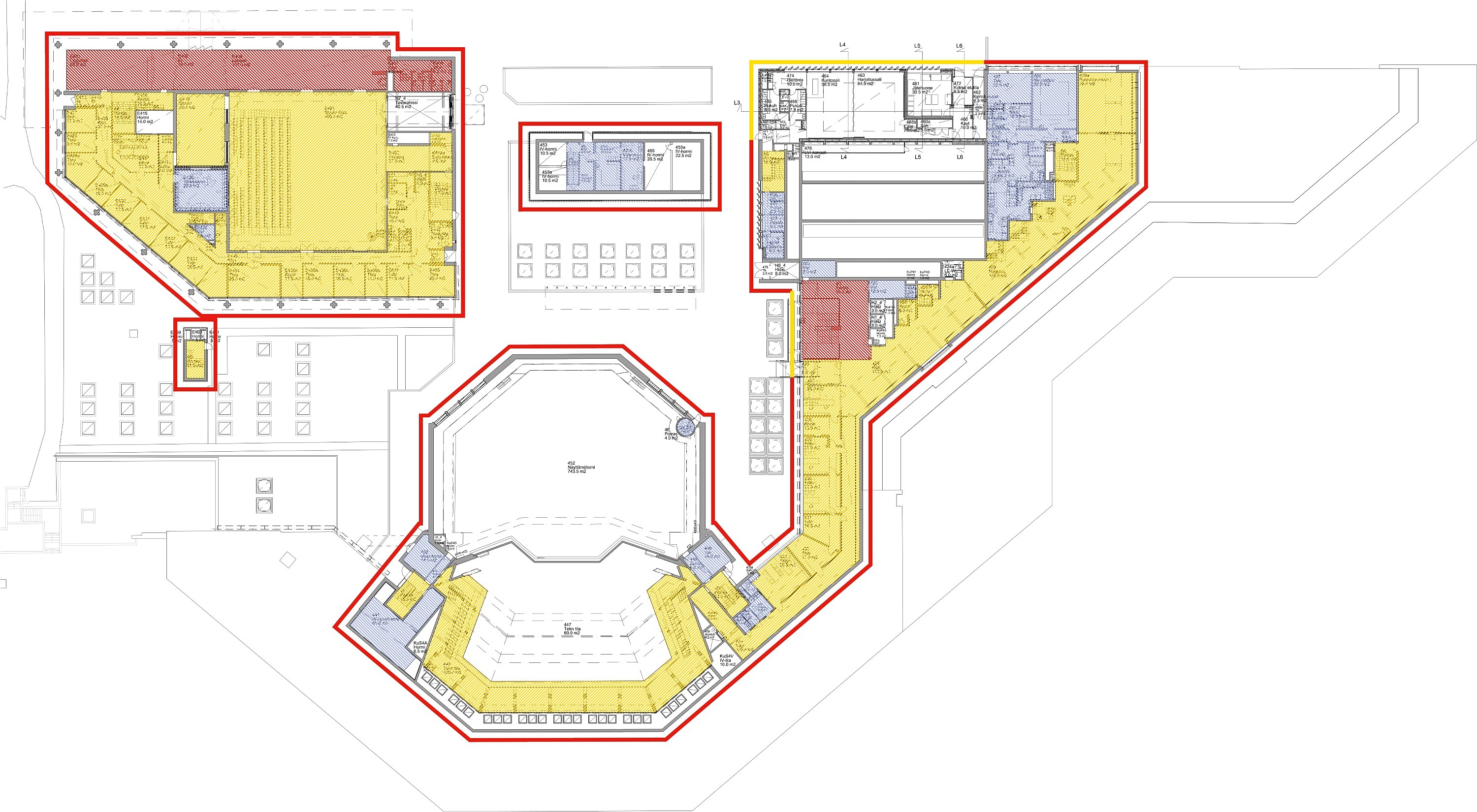
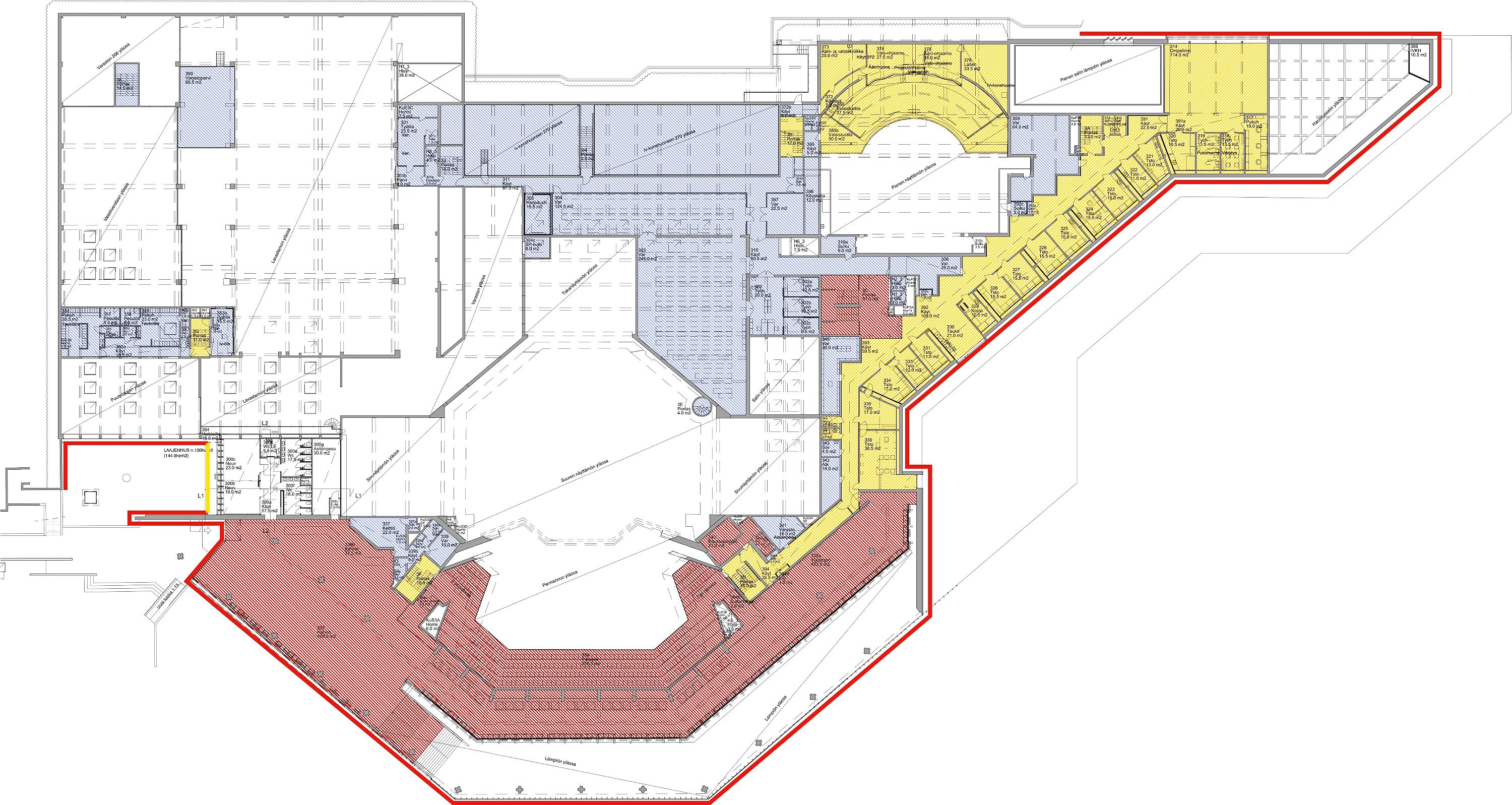
Rakennussuojelullisten tavoitteiden selkiyttämiseksi ja projektin sujuvuuden varmistamiseksi rakennusvalvontavirasto, kaupunginmuseo ja arkkitehti sopivat hankekuvauksen ja suojelutavoitekaavioiden laatimisesta rakennuslupavaiheessa.
016 HKT MM
017 HKT MM
Suojelutavoitekaavioissa tilat jaettiin kolmeen arvoluokkaan ja suojeluvyöhykkeeseen:
- punaisella luokka 1, yleisön päätilat, joissa alkuperäisen arkkitehtuurin ominaispiirteet olivat säilyneet ja jotka tultaisiin edelleen säilyttämään muuttumattomina;
- keltaisella luokka 2, henkilökunnan tilat, joissa alkuperäisen arkkitehtuurin ominaispiirteet olivat pääosin säilyneet ja jossa ne säilytettäisiin edelleen;
- sinisellä luokka 3, tekniset työtilat ja talotekniset tilat, joissa alkuperäinen tilajako oli säilynyt ja säilytettäisiin edelleen.
Neljänteen, arvottamattomaan luokkaan kuuluivat tulevat laajennusosat.
Julkisivut jaettiin kahteen luokkaan:
- punaisella viivalla luokka J1, alkuperäiset julkisivut, jotka olivat säilyneet ja jotka kunnostettaisiin;
- keltaisella viivalla luokka J2, laajennusosien julkisivut, joissa käytettäisiin alkuperäisiä detaljeja ja materiaaleja.
018 HKT MM
Puisto, ts. teatterin tontti ja siihen välittömästi liittyvät Tarja Halosen puiston osat, jaettiin kahteen luokkaan:
- punaisella luokka 1, alkuperäisiä istutusperiaatteita ei ollut noudatettu, mutta tilanne korjattaisiin niiden mukaisiksi;
- keltaisella luokka 2, paikoitusalueet mitoitettaisiin nykymitoituksin.
Myös purkutoimenpiteet esitettiin piirustuksina jo rakennuslupavaiheessa.
Suojauspiirustuksissa ohjeistettiin mm. väliaikaisten pölytiiviiden seinien ja kattojen rakentamisesta, osoitettiin kunnostettavat tai varastoitavat kalusteet ja esitettiin vanerilevyin suojattavat sisälasitukset, jalopuuverhoukset ja arvokkaat kaiteet sekä muovein suojattavat betonialakattopinnat ja reikätiili- ja kangasseinäverhoukset.
019 HKT MM
020 HKT MM
TYÖMAAVAIHE – PEREHDYTYSTÄ, PALAVEREJA, ARKKITEHDIN LÄSNÄOLOA
Edellytys peruskorjausprojektin onnistumiselle on motivoitunut, innostunut ja asiaan perehdytetty suunnittelijakunta ja työnjohto. Jotta kaikille suunnittelijoille ja päätoteuttajille syntyisi käsitys tavoitteista, piti pääsuunnittelija työmaan alkuvaiheessa esityksen teatterirakennuksen ja ympäristön arvoista, suojeltavista asioista ja suojaamisesta. Tarkoitus oli luoda yhteinen ymmärrys kohteen arvoista ja näkemys tulevasta tehtävästä.
Perehdyttämisen tulisi jatkua läpi rakentamisvaiheen: työmaalle tulisi nimetä vastuuhenkilö, joka huolehtisi vaihtuvien aliurakoitsijoiden ja henkilöstön perehdyttämisestä ja suojauksista. Sitä varten kannattaa laatia powerpoint-esitys työmaan käyttöön. Sen voisi soveltuvin osin sisällyttää työmaan verkkoperehdyttämiseen, turvallisuustehtävien rinnalle. Tehtävien läpäiseminen on työmaalle pääsyn edellytys.
Projektiarkkitehti oli työmaalla mahdollisimman paljon. Korjauskohteessa kaikkea ei voida suunnitella etukäteen ja yllättävät tilanteet on ratkaistava nopeasti. On osattava ennakoida miten ratkaisut vaikuttavat eteenpäin.
35 museopalaveria – säännöllinen seuranta ja mallitoteutukset
Helsingin kaupunginmuseon kanssa suunnitelmia tarkasteltiin rakennussuojelun näkökulmasta: pohdittiin toteutus- ja korjausvaihtoehtoja, tarkasteltiin väri-, materiaali- ja toteutusmalleja ja testattiin valaistusratkaisuja. Olennaisimpia tiloja, pintoja ja yksityiskohtia katselmoitiin ennen purkutöitä, niiden aikana ja vielä toteutusvaiheessa. Suojeluarvojen toteutumista valvoi lisäksi rakennusvalvonta. Seurantakokouksia ja katselmuksia järjestettiin säännöllisesti. Joka toinen viikko pidettyjä ”museopalavereita” kertyi 35.
Kaikkien päädetaljien toteutus tutkittiin ja testattiin työmallien avulla. Esimerkiksi yhdestä pukuhuoneesta tehtiin mallihuone, katsomotuoleja varten kudottiin kangasnäytteitä, julkisivulaatoista puristettiin erilaatuisia koekappaleita ja julkisivupesujakin testattiin.
SUUNNITTELU JA TOTEUTUS ALKUPERÄISEN EHDOILLA
Korjaukset, muutokset ja täydennykset suunniteltiin siten, että ne eivät erotu alkuperäisestä arkkitehtuurista. Haasteellisimmat olivat julkisivujen, yleisötilojen ja katsomoiden korjaukset, jotka toteutettiin hienovaraisesti alkuperäisen arkkitehtuurin ehdoilla ja sille alistuen.[25] Tilaratkaisut säilytettiin pääosin alkuperäisessä muodossaan ja toiminnalliset muutokset olivat vähäisiä.
Vähäiset uudisosat (harjoitussali, kabinetit, keittiön sisäänkäynti, jätehuone) tehtiin osaksi kokonaisuutta kaupunkikuvallisesti näkymättömiin ja niiden julkisivut toteutettiin laajennusten peittoon jääneiden originaalijulkisivujen mukaisina. Räystäslinjat pidettiin entisellään, vaikka noudatettiinkin nykyisiä eristysvaatimuksia; lämmöneristeenä käytettiin siis aiempaa tehokkaampia materiaaleja.
Arkkitehti salapoliisina – vanhan mallin mukaisia uusia julkisivulaattoja valmistetaan
Vanhan osan julkisivuissa vaihdettiin vaurioituneita laattoja. Säilytettävät laatat pestiin mallipesujen mukaan ruiskuttamalla ensin hapan pesuaine ja neutraloimalla emäksisellä pesuaineella. Pinttyneimmät laatat harjattiin. Kaikki saumat uusittiin.
Uusien julkisivulaattojen valmistus vaati salapoliisityötä. Laatat ensimmäisenä työnään Arabian tehtaalla vuonna 1965 suunnitellut insinööri oli jo eläkkeellä, mutta konsultoi nyt eläketyönään uusien laattojen valmistusta. Pentikin keramiikkatehtaaseen Posiolle rakennettiin julkisivulaattatehdas. Oikean muodon, koon, värisävyn, pinnan tasaisuuden ja rosoisuuden, pilkutuksen ja lasituksen varmistamiseksi tehtiin lukuisia materiaali-, lasitus- ja polttokokeita. Muoteilla laattoja valmistettaessa massan karkeus aiheutti ongelmia, mutta suulakepuristuksessa massa tiivistyi vaadittavaan pakkasenkestävyyteen.
Kaikkiaan perus-, nokka- ja pilarilaattoja valmistettiin 27 751 kappaletta. Työn jälkeen julkisivulaattatehdas purettiin ja varastoitiin; Pentikillä on nyt valmius valmistaa julkisivulaattoja mihin tahansa kohteeseen.
022 HKT MM
023 HKT MM
024 HKT MM
025 HKT MM
026 HKT MM
Julkisivulasit säilytetään
Lämpiön lasijulkisivu kunnostettiin suojelumääräysten velvoittamina edelleen yksilasisena, ehjät lasitukset ja patinoituneet pronssilistoitukset säilyttäen. Suorien lasiosien välisten nurkkataitteiden polykarbonaattilevyt uusittiin ultravioletti-suojatulla polykarbonaatilla. Lasiseinän rakenne oli rakennusfysikaalisesti puutteellinen. Rakenne tiivistettiin sekä vedenpitävyyden että höyrytiiveyden osalta. Lämpövuoto pitänee kastepisteen rakenteiden ulkopuolella.
027 HKT MM
Sisätilat säilyvät ennallaan
Sisätilojen kunnostuksen lähtökohtana oli tilarakenteen ja -hierarkian sekä alkuperäisten rakenteiden, materiaalien, valaistuksen, kiintokalustuksen, värityksen ja yksityiskohtien säilyttäminen. Korjaustoimet ja uudet elementit ovat täälläkin alisteisia alkuperäisille ratkaisuille. Modernin arkkitehtuurin korjauksessa tyypillinen vaikeus on säilyttää alkuperäiset yksityiskohdat, ja silti parantaa niiden teknisiä ominaisuuksia. Uusittavissa materiaaleissa haettiin alkuperäistä tasoa, laatua ja tunnelmaa vastaavia materiaaleja ja värejä. Erityisesti suojeluvyöhykkeellä 1 toimenpiteet harkittiin huolellisesti.
Suuri lämpiö
Lämpiön marmori- ja yleisö-wc-tilojen laattalattioita lukuun ottamatta kaikki lattiapinnat uusittiin. Kokolattiamatot vaihdettiin alkuperäisen värisiin ruskeisiin mattoihin. Puhdistettuihin marmorilattioihin ja kokolattiamattoalueelle lisättiin esteettömyyttä ajatellen messinkisiä kulunohjausraitoja ja huomionastoja.
Päälämpiön alakattopinnat uusittiin, koska pinta ei ollut riittävän vahva tartunta maalaukselle. Päälämpiön (osittain vahvikekankailla vahvistetut) rappauspinnat olivat paikoitellen alkaneet irrota: kattopintaa oli huoltomaalattu taajaan ja maalikerroksia oli runsaasti. Kattopinta tutkittiin kopoalueiden löytämiseksi. Rappauspintaa uusittiin ja korjattiin laajoilta alueilta ja koko katto maalattiin uudelleen silikaattimaaleilla. Kattopintojen korjauksen haasteeksi nousi niiden laajuus.
028 HKT MM
029 HKT MM
030 HKT MM
Pieni lämpiö
Pienen lämpiön reikätiiliseinät purettiin tiilet säilyttäen teknisten asennusten ja vaimennusmateriaalien uusimista varten. Portaikko ja lämpiö saavat jälleen luonnonvaloa, kun aiemmin suljetut yläikkunat avattiin. Lämpiön ja katsomon välinen, koko tilan levyinen ääntä eristävä ja palo-osastoiva nosto-ovi uusittiin.
031 HKT MM
Kalusteet entisöitiin
Kalusteita kunnostettiin mittavasti. Yrjö Kukkapuron punaisella nahalla verhottuja alkuperäisiä Junior- ja Karuselli-tuoleja kunnostettiin henkilöstötiloihin. Kalustusta täydennettiin uusilla moderneilla tuoleilla, sohvilla, pöydillä ja naulakoilla. Niiden väritys noudattaa alkuperäisiä periaatteita: valkoista, hieman mustaa ja puhtaita, vahvoja värejä.
Varastosta löytyneet Maija Ruoslahden suunnittelemat messinkirukoiset kalusteet entisöitiin yleisötiloihin. Niiden nahkaosat korvattiin kestävällä tummanruskealla hybridinahalla. Samaa nahkaa vaaleanruskeana käytettiin yleisö-wc-tilojen sohvissa.
032 HKT MM
033 HKT MM
Näyttämöt ja katsomot
Suuren katsomon väreissä poikettiin hieman alkuperäisistä näyttelijöiden ja ohjaajien toivomuksesta: samettiverhoiluihin valittiin musta ja seinäkankaisiin punaisen ja mustan langan kudonnainen. Kokolattiamaton väriksi valittiin alkuperäinen tumma burgundinpunainen; jalkalistamatot ovat alkuperäisiä. Parven turvallisuutta kohennettiin lisäämällä matalaan etureunan kaiteeseen messinkiset reelinkikäsijohteet. Pienen katsomon tuolikangas kudottiin alkuperäisen väriseksi käyttäen mustanruskeaa ja siniturkoosia lankaa.
Kaikkien näyttämöiden esitystekniikka uusittiin ja akustiikkaa parannettiin diffuusiopintoja lisäämällä. Suuren ja pienen näyttämön alusrakenteet (pyöröt) uusittiin, ja suuren näyttämön näyttämöaukkoa kavennettiin ja orkesterimonttua syvennettiin. Marjatta Metsovaaran suunnittelema ”Colibri”-pilviesirippu (pinta-ala yli 400 m2, paino 200 kg) konservoitiin.
034 HKT MM
035 HKT MM
Henkilöstö- ja pukutilat
Henkilöstötiloissa säilytettiin tilajako ja -hierarkia, rakenteet, kiintokalusteet ja väliovien alkuperäinen värikoodaus. Työhuoneiden siniset, punaiset, keltaiset ja vihreät ovet säilytettiin. Suojelumääräysten mukaisesti pukuhuoneiden kalustus säilytettiin ja kunnostettiin: kaappeja parannettiin ilmastoinnilla, valaisimilla ja uusilla varusteilla. Taipuneiden kimpilevyjen oikaiseminen oli haastava puusepän taidonnäyte.
036 HKT MM
037 HKT MM
Talotekniikan yhteensovittamisesta vastaa pääsuunnittelija
Pääosa peruskorjaustyöstä keskittyi talo- ja näyttämötekniikan uudistamiseen, akustiikan parantamiseen sekä tilojen ilmanvaihdon ja valaistustason tehostamiseen. Talotekniikan yhteensovittaminen, joka on pääsuunnittelijan vastuulla, on aina onnistuneen lopputuloksen ja rakennussuojelun kannalta ensiarvoista, jotta tekniset vedot saadaan kätkettyä sekä sisätiloissa että julkisivuissa tai jotta löydetään niille vaihtoehtoisia reittejä.
038 HKT MM
039 HKT MM
Vaativat alakatot
Yksityiskohdista henkilöstötilojen käytävien puhtaaksi lautamuottiin valettujen betonialakattojen korjaus ja uuden ilmanvaihtotekniikan sijoittaminen alakaton yläpuolelle oli yksi vaativimmista, säilyttämisen kannalta oleellisimmista tehtävistä. Alakattojen otsapinnat purettiin kanavien asentamiseksi, mutta joissakin työhuoneissa jouduttiin sahaamaan avauskaistat, jotka asennusten jälkeen levytettiin umpeen ja viimeisteltiin muottilaudoituksen suuntaisella rimoituksella. Asennuksen aikana betonialakattojen reunat tuettiin ripustamalla ne välipohjista. Lopuksi otsapinnat verhottiin saranoiduin akustorapatuin levyin.
040 HKT MM
041 HKT MM
Valo on osa rakennussuojelua
Valaistuksen laatua harkittiin suojelunäkökulmasta. Koska rakennuksen arkkitehtuuri pyrkii häivyttämään sisä- ja ulkotilan välisen rajapinnan, tavoiteltiin sisä- ja ulkovalaistuksessa värilämpötilan yhdenmukaisuutta. Kaikissa yleisötiloissa ja sisätiloihin liittyvissä ulkotiloissa värilämpötilaksi haettiin 3000 K, henkilökunta-alueella 4000 K.
Julkisivuvalaistus nostaa esiin rakennuksen arkkitehtuurin pimeään aikaan ja kaukomaisemassa: kaupunginteatteri, Finlandia-talo ja Oopperatalo muodostavat Töölönlahden kulttuurirakennusten kokonaisuuden. Näyttämötorni valaistaan horisontaaliosia voimakkaammin, ja valojen suuntaus haettiin korostamaan klinkkeripinnan elävyyttä ja näyttämötornin muodon taitteisuutta. Julkisivuvalaistus on säädettävissä: perussävy on valkoinen (värilämpötila 3000 K), mutta led-optiikka sallii myös värillisten valojen käytön erikoistilanteissa.
042 HKT MM
Kaksituhatta suojeltua valaisinta
Sisätilojen alkuperäiset valaisimet kunnostettiin ja uudistettiin sähköteknisesti. Lisäksi valikoimaa täydennettiin uusilla valaisimilla lämpiöissä, suuressa katsomossa, pienen lämpiön vaatesäilytyksessä ja ruokalassa. Toimistohuoneisiin tuotiin nykyaikaiset led-mikroprismavalaisimet. Valolähteet vaihdettiin led-tekniikkaan, ja kuhunkin tilaan voidaan nyt hakea sopiva valaistustaso. Fasetti Oy kunnosti ja sähköisti lähes kaksituhatta suojeltua valaisinta.
1960-luvun teatteripiha ja puisto kuntoon
Teatterin pihojen ja Tarja Halosen puiston kokonaisuuteen palautettiin 1960-luvun ilme. Luonnonkivimuureja korjattiin ja istutusalueet kunnostettiin Maisemasuunnittelu Hemgårdin ohjeistuksen mukaisesti. Näkymien tielle kasvaneet 1970-luvulla istutetut kuuset kaadettiin. Kolmannen kerroksen kabinettilaajennuksen eteen alkuperäisen rakennuksen ja muurin rajaamaan katveeseen istutettiin viehättävä kukkaketo. Ulko-alueille sijoitettiin myös yksinkertaisia uusia ulkopenkkejä, opasteita ja valaisimia sekä villiviini-istutusaltaita estämään pääsyä kattoalueelle.
043 HKT MM
Esteettömyys ulottuu paikoitusalueilta katsomopaikoille asti
Esteettömyyttä parannettiin paikoitusalueilta aina istuinpaikoille asti. Paikoitukseen lisättiin maksuttomia liikuntaesteisen autopaikkoja ja saattoliikenne pääsee sisäänkäyntien äärelle. Ulkokiveyksen tasoeroja poistettiin, olemassa ollutta eteläjulkisivun luiskaa pidennettiin, ja sisäänkäyntien yhteen oveen asennettiin ovitutka-automatiikka. Hisseistä kolme uudistettiin esteettömiksi ja varustettiin automaattiovin sekä kerroskohonumeroin ja -tekstein. Lämpiöiden lattioihin asennettiin ohjauslistoja ja lattiatunnisteita. Valaistusta tehostettiin erityisesti kokolattiamattoalueilla. Askelmien etureunoihin lisättiin katsomossa led-valaistus, ja penkkiriveihin asennettiin kohonumeroin rivi- ja paikkatunnisteet.
044 HKT MM
Pyörätuolipaikkoja on suuressa katsomossa kahdeksan ja pienessä neljä. Studio Elsan permannolle voi osoittaa pyörätuolipaikkoja tarpeen mukaan. Suuressa katsomossa induktiosilmukka-asennukset kattavat kaikki katsomopaikat, pienessä osan paikoista.
Kuunteluympäristön parantamiseksi rima- ja tekstiilipintojen taustamateriaalit uusittiin absorptioltaan aiempaa paremmiksi. Esteettömiä wc-tiloja lisättiin yleisötiloihin. Pääkulkureittien ovia levennettiin ja huomiota kiinnitettiin irtokalusteiden sijoitteluun. Opasteita selkiytettiin ja täydennettiin.
Restaurointiraportti tallentaa ja välittää tietoa toteutusratkaisuista
Kun työmaa oli valmis, arkkitehti laati korjaustyöstä työmaa- ja restaurointidokumentit. Nämä jälkidokumentit ovat arvokkaita rakennushistoriaselvityksen jatkeita ja tarjoavat yksityiskohtaista tietoa rakennuksen ylläpitäjille ja tuleville suunnittelijoille. Niiden avulla voi myöhemmin arvioida tehtyjä ratkaisuja. Kaupunginteatterista dokumenttien laatimiseen velvoitti asemakaava ja niille varattiin oma budjettinsa.
KORJAAMINEN ON VAATIVAA JA ONNISTUESSAAN PALKITSEVAA
Helsingin kaupunginteatteri on erittäin vaativa korjauskohde. Rakennuksella on tärkeä asema kaupunkikuvassa ja se on yksityiskohdiltaan rikas ja monipuolinen. Vaativuutta lisää se, että rakennusta arvostetaan suomalaisessa arkkitehtuurin historiassa ja teatteritaiteen kulttuurihistoriassa. Rakennuksen ensimmäinen peruskorjausprojekti ulottui koko rakennukseen.
Korjaussuunnittelun lähtökohta oli kaikkia alkuperäisiä ratkaisuja kunnioittava, niihin tutkivasti ja nöyrästi suhtautuva, mutta ei nöyristelevä. Uudet välttämättömät lisäykset ovat tätä aikaa, mutta ne ovat sukua alkuperäiseen arkkitehtuuriin materiaalin, muodon, tilan tai järjestysperiaatteen tasolla. Näin ympäristöön syntyy parhaassa tapauksessa hallittua ajallista kerrostuneisuutta, merkkejä eri vuosikymmenistä ja -sadoista.
045 HKT MM
Helsingin kaupunginteatteri lähiympäristöineen on vahva kokonaistaideteos. Sen arkkitehtuuri on poikkeuksellisen hyvin säilynyt ja se toimii alkuperäisessä teatterikäytössä. Suuriin muutoksiin ei ollut tarvetta. Vahva arkkitehtuuri antoi suuntaviitat uuden muotoiluun: peruskorjauksessa tehtyjen pienehköjen laajennusosienkin julkisivut toistavat niitä alkuperäisiä laatoitettuja seiniä, jotka jäivät laajennusten peittämiksi.
Korjausrakentamisen ongelmat vaativat arkkitehdilta näkemystä, sinnikkyyttä ja uskoa ratkaisun löytymiseen: julkisivulaattojen uudelleen valmistus onnistuu ja puhtaaksi lautamuottiin valetut alakatot voidaan säilyttää. Kaupunginteatterin vahva alkuperäinen arkkitehtuuri nosti luonnollisesti laatuvaatimuksen korkealle myös uusien ratkaisujen osalta.
Korjausprojekti myös opettaa tekijöitään. Tietotaitoa karttuu ja siirtyy 1960-luvun tekijöiltä nyt korjaustyön suunnittelijoille ja toteuttajille ja näiltä edelleen seuraavalle sukupolvelle. Vaativan työn onnistuessa kaikki työhön osallistuneet voivat tuntea ammattiylpeyttä.
Kirjoittaja Mikko Mannberg, arkkitehti SAFA TkL, oli LPR-arkkitehdit Oy:ssä mukana Helsingin kaupunginteatterin peruskorjauksen suunnittelutyöryhmässä, jonka pääsuunnittelija oli arkkitehti Pauno Narjus.
Artikkeli on julkaistu 2019.
HELSINGIN KAUPUNGINTEATTERIN SUUNNITTELIJAT 1960-LUVULLA JA 2010-LUVULLA
Arkkitehtuurikilpailu 1960–61, suunnittelu 1961–67, rakentamispäätös 1965, peruskiven muuraus 12.6.1965, rakentaminen toukokuusta 1965 syyskuuhun 1967, talon vihkiäiset 7.10.1967.
Kilpailuehdotus Arlecchino: Timo Penttilä ja Kari Virta, avustaja Pekka Ilveskoski.
Arkkitehtisuunnittelu: Arkkitehtitoimisto Timo Penttilä.
Rakennesuunnittelu: Insinööritoimisto Bertel Ekengren.
LVI-suunnittelu: Insinööritoimisto J. Saarto & Kumpp.
Sähkösuunnittelu: Insinööritoimisto Risto Mäenpää.
Akustinen suunnittelu: Insinööritoimisto P. Aarni & Co.
Maisemasuunnittelu: Helsingin kaupungin rakennusvirasto / Auli Hietakangas.
Pääurakoitsija: Rakennustoimisto Arvonen Oy, vastaava rakennusmestari Mauri Kivikoski.
Sähköurakoitsija: Sähkö Oy.
Laajennusosa Elsa, valmistui 1989.
Arkkitehtisuunnittelu: Arkkitehtitoimisto Oy Timo Penttilä – Kari Lind – Sakari Tilanterä.
Korjaustyö 2015–17.
Arkkitehtisuunnittelu: LPR-arkkitehdit Oy, pääsuunnittelija arkkitehti SAFA Pauno Narjus.
Maisemasuunnittelu: Maisemasuunnittelu Hemgård.
Rakennesuunnittelu: Insinööritoimisto Pontek Oy.
LVIA- ja sprinkler-suunnittelu: Optiplan Oy.
Sähkösuunnittelu: Rejlers Oy.
Julkisivuvalaistus: Granlund Oy.
Akustiikkasuunnittelu: Helimäki Akustikot Oy
Näyttämömekaniikan suunnittelu: Akumek Oy, TheatrePlan.
Esitystekniikan erityissuunnittelu: VAI-teatteri ky.
Esitystekniikan kaapeloinnin suunnittelu: Akukon Oy.
Palotekninen suunnittelu: L2 Paloturvallisuus Oy.
lukitussuunnittelu: Ekonia oy
Julkisivututkimukset: Vahanen Oy, Contesta Oy.
Julkisivujen kehitystyö: Otto Blümchen ja Pentik Oy.
Lämpiön kattopintojen ja ulkokatosten maalauskäsittelysuunnittelu: T:mi Modlari.
Korjauksen laajuus: 24 785 m2 (vanha osa), 645 m2 (laajennusosa)
Kustannukset: 67 miljoonaa euroa, josta 30% talotekniikka ja 15% teatteritekniikka.
LISÄTIETOA
Aikakausjulkaisut
Mäenpää, Risto 1967. Tekniikka näyttämöllä. Arkkitehti 1967: 10-11. Helsinki: Suomen Arkkitehtiliitto SAFA.
Norri, Marja-Riitta 1983. Taiteen ja Tilan ristiriita. Ralf Långbackan haastattelu. Arkkitehti 1983: 5-6. Helsinki: Suomen arkkitehtiliitto SAFA.
Penttilä, Timo 1981. Demokratian monumentit. Arkkitehti 1983:1. Helsinki: Suomen arkkitehtiliitto SAFA.
Painetut
Penttilä, Timo 2013. Oikeat ja väärät arkkitehdit. 2000 vuotta arkkitehtuuriteoriaa. toim. Kari Lind, Ulla Markelin ja Jorma Mukala. Helsinki: Gaudeamus.
Painamattomat
A-konsultit 2013. Helsingin kaupunginteatterin peruskorjaus. Hankesuunnitelma. Rakennustapaselostus.
A-konsultit 2013. Helsingin kaupunginteatterin peruskorjaus. Hankesuunnitelma. Rakennussuojeluperiaatteet.
Helsingin kaupunkisuunnitteluvirasto, Maija Lounamaa 2012. Helsingin kaupunginteatteri. Ympäristöhistoriallinen selvitys ja suojeluperiaatteet.
LPR-arkkitehdit Oy, Maisemasuunnittelu Hemgård & Insinööritoimisto Pontek oy 2015. Helsingin kaupunginteatteri. Peruskorjaus ja laajennus. Rakennusselostus
LPR-arkkitehdit Oy & Insinööritoimisto Pontek oy 2016. Helsingin kaupunginteatteri. Elsan julkisivukorjaus.
LPR-arkkitehdit Oy 2017. Helsingin kaupunginteatteri. Työmaadokumentointi 2015–17.
LPR-arkkitehdit Oy 2017. Helsingin kaupunginteatteri. Restaurointiraportti 2015–17.
LÄHTEET
Arkkitehti 1961:1 Kilpailuliite. Helsingin kaupunginteatterin suunnittelukilpailu. Helsinki: Suomen Arkkitehtiliitto SAFA.
DOCOMOMO 2017. Docomomo Suomi – Kohdevalikoima. toim. Sirkkaliisa Jetsonen, Petteri Kummala, Leena Makkonen & Jonas Malmberg, Helsinki: Docomomo Suomi Finland ry.
Koho, Timo 1991. Teatteriarkkitehtuurin merkitysarvot. Teatterirakentamisen suhde yhteiskunnan arvomaailmaan kaupungistuvassa Suomessa. Suomen muinaismuistoyhdistyksen aikakauskirja, 97. Helsinki: Suomen muinaismuistoyhdistys.
Korsberg, Hanna & Lylykangas, Kimmo 2007. Helsingin Kaupunginteatterin rakennus. Teoksessa Kansaa teatterissa. Helsingin Kaupunginteatterin historia. Toim. Pirkko Koski & Misa Palander. Helsinki: Like.
Penttilä, Timo 1967a. Helsingin kaupunginteatteri. Arkkitehti 1967: 10-11. Helsinki: Suomen Arkkitehtiliitto SAFA.
Penttilä, Timo 1967b. Teatterisuunnittelun lähtökohdista. Arkkitehti 1967: 10-11. Helsinki: Suomen Arkkitehtiliitto SAFA.
Asemakaavat
Helsingin kaupunkisuunnitteluvirasto: Asemakaava 19.8.2014, hyväksytty 25.2.2015, tullut voimaan 17.4.2015.
Painamattomat
Salonen, Kati & Schalin, Mona 2013. Helsingin kaupunginteatteri. Rakennushistorian selvitys ja inventointi. Kati Salonen ja Mona Schalin Arkkitehdit Oy.
Sähköpostit
Tekninen johtaja emeritus Keijo Kolin sähköposti arkkitehti Tiitta Itkoselle 15.10.2019.
VIITTEET
[1] RKY www.rky.fi
[2] Docomomo 2017.
[3] Asemakaavamuutos on kaupunginvaltuuston 15,2,2015 hyväksymä, ja se tuli voimaan 17.4.2015.
[4] Kilpailu järjestettiin 1960-61, alkuperäisosa valmistui 1967 ja laajennusosa Studio Elsa 1989.
[5] Arkkitehti 1 1961 Kilpailuliite, 3.
[6] Arkkitehti 1 1961 Kilpailuliite, 1.
[7] Penttilä 1967b, 25.
[8] Koho 1991, 15-17.
[9] Studiotila on intiimi, neutraali monitoimitila, jossa näyttämön ja katsomon asemaa ja suhdetta toisiinsa voidaan muuttaa edessä olevasta näyttämöstä katsomon täysin näyttämötilan ympäröivään areenateatteriin.
[10] Penttilä 1967b, 27.
[11] Penttilä 1967b, 27.
[12] Koho 1991, 15-17.
[13] Korsberg et al 2007, 63.
[14] Penttilä 1967a, 11.
[15] Penttilä oli työskennellyt Aarne Ervin ja tämä puolestaan Alvar Aallon toimistossa.
[16] Salonen et al 2013, 20-22.
[17] Salonen et al 2013, 24-26.
[18] Korsberg et al 2007, 65. Elsan ensi-illassa 1991 esitettiin Shakespearen Henrik IV.
[19] Tieto 15.10.2019 Helsingin Kaupunginteatterin tekniseltä johtajalta Keijo Kolilta, joka toimi korjausprojektissa projektinjohtajana.
[20] Arkkitehtitoimisto Kati Salonen ja Mona Schalin oy 2013.
[21] Salonen et al 2013, 251.
[22] Asemakaava 2015.
[23] Asemakaava 2015.
[24] Asemakaava 2015.
[25] LPR-arkkitehdit 2017.
1960-luvun teatteritilakäsitys vastaan Penttilän näkemys
1960-luvun näkemyksen mukaan teatteritaiteella on tasa-arvoa korostava merkitys: ”Kaiken lähtökohtana on teatterin idea, joka pystyy herättämään spontaania vastakaikua yhteiskunnan laajoissa piireissä.”[7] Sen sijaan näkemykset teatterirakennusten merkityksestä vaihtelivat. Toisaalta teatteriesityksiä pidettiin oleellisempana kuin niiden puitteita, teatterirakennuksen arkkitehtuuria. Toisaalta nähtiin, että teatteritaide, arkkitehtuuri ja muut taiteet yhdessä tarjoavat yleisölle kokonaiselämyksen. Pieniä studionäyttämöitä sekä puolustettiin että torjuttiin. Toiset näkivät, että teatterirakennuksella on tärkeä rooli kaupunkikuvassa, toiset eivät.[8]
Kuvalähde: kirjasta Oikeat ja väärät arkkitehdit.
Penttilä halusi yhdistää teatterin eri aspektit ”maailmankatsomuksellisesta lähtökohdasta näyttämötoiminnan teknillis-käytännöllisiin detaljeihin”. Hän kritisoi 1960-luvun pyrkimyksiä tilojen yleispätevyyteen eikä kannattanut studiotilaa [9] ainoana vaihtoehtona. Teatteritilan tuli mahdollistaa eri lajityyppien ja aikakausien teosten esittämisen yhtä hyvin kuin kokeilut ja ohjaajien persoonalliset näkemykset.[10]
”Yleisön intressit vaihtelevat näytelmäkappaleen eri aspekteista sosiaalis-arkkitehtoniseen ympäristöön.” [11] Penttilä toi esiin, että teatterissakäynti on paitsi esityksen kokemista myös tapahtuma, juhla, jossa ihmiset kohtaavat toisensa. Arkkitehtuurilla on siinä oma merkitysarvonsa. Penttilä painotti myös teatterirakennuksen roolia kaupunkikuvassa ja toi keskusteluun – 1960-luvun suomalaisesta arkkitehtuuripuheesta poikkeavan – näkemyksensä monumentaalirakennuksen arvoista ja tehtävästä.[12]
Penttilän kokonaistaideteos - kaupunkiympäristöstä sisustuksen yksityiskohtiin
Kaupunginteatteri sijaitsee Kallion kaupunginosassa. Tarja Halosen puiston vehreässä ympäristössä matalan veistoksellisen rakennuksen näyttämötorni kohoaa monumentaalisena. Alueella on iäkäs puusto. Iltavalaistun pääjulkisivun ja näyttämötornin kaupunkikuvallista dramatiikkaa esiteltiin mediassa komein kuvin, kun talo vihittiin käyttöön 7.10.1967. Näytäntökausi avattiin pienellä näyttämöllä jo elokuussa ja suurella näyttämöllä lokakuussa Henrik Ibsenin Peer Gyntillä.[13]
Rakennus hahmottuu Eläintarhanlahdelle kolmi- ja Ensi linjan puolelle yksikerroksisena. Yleisötilat on jaettu rakennuksen etelä- ja länsiosaan puiston äärelle suuren näyttämön ympärille kolmeen kerrokseen sekä yhteen kerrokseen pienen näyttämön äärelle.
Tilat seuraavat maastonmuotoja – avoimina ja sulkeutuneina
Sisätilat ja julkisivut porrastuvat puistomaiseman mukaan. Katsojien saapumissuunnassa ulko- ja sisätilan rajaa on häivytetty. Suuren lämpiön valoisat yleisötilat avautuvat suurten ikkunoiden kautta puistoon ja vesimaisemaan. Kolmeen kerrokseen porrastuva päälämpiö on monumentaalinen.
005 HKT MM
006 HKT MM
Suuri näyttämö on etu-, sivu- ja takanäyttämöineen perinteinen ristinäyttämö, jossa on sekä rengas- että pyörönäyttämö hydraulisine nostimineen. Leveässä, kaartuvassa katsomossa penkkirivejä on permannolla 14 ja parvella viisi ja paikkoja yhteensä 920. Pieni studiomainen näyttämö katsomoineen on varioitavissa perinteisestä näyttämöstä aina ¾-areenaan, ja katsojia saliin mahtuu tilaratkaisun mukaan 230-330.[14]
007 HKT MM
Näyttämöiden taustalla samassa tasossa ovat puutyöpaja, maalaamo, lavastamot ja varastot. Ompelimo, harjoitushuoneet, näyttelijöiden pukuhuoneet, hallinto ja ruokala sijaitsevat 2.-4. kerroksessa. Näyttelijöiden pukuhuoneissa nauhaikkunat ovat niin ylhäällä, ettei niistä näe ulos, toisaalta pukuhuoneisiin ei myöskään näe sisään.
008 HKT MM
009 HKT MM
Penttilän materiaali- ja detaljipaletti on runsas ja kaksijakoinen
Teatterirakennus on porrastettu maiseman mukaan. Porrastus ja rakennuksen materiaalit sekä detaljit muistuttavat Alvar Aallon arkkitehtuuria.[15] Julkisivut on verhottu vaalein lasitetuin keraamisin laatoin ja sauvoin. Ne näkyvät eri tavoin riippuen vuorokauden ajasta, vuodenajasta ja valaistuksesta. Laajat lasitukset sekä sisääntulon ja sisätilojen marmoripinnat antavat arvokkaan vaikutelman.
010 HKT MM
011 HKT MM
012 HKT MM
Sisällä yleisötilat ovat hienostuneita ja materiaalit ylellisiä: valkoinen marmori, pronssi, messinki, teak, villanukkamatto. Yksityiskohdat ovat runsaita: pääovissa valetut pronssivetimet, ikkunoissa pronssilistat, lämpiöiden seinissä kangasverhoilut, teak-pinnat ja -säleiköt, pilareissa laatoitukset, lattioissa marmori ja villanukkamatto, reikätiilestä lappeelleen muuratut tummanharmaat seinät ja yleisö-wc-tiloissa syvänpunainen keraaminen sauvalaatoitus, katsomoiden seinien ja tuolien kangasverhoilut.
Yleisötilojen vastakohtana henkilökunnan työtilat ovat yleisväriltään puhtaan valkoisia. Vihreät, keltaiset ja punaiset – Elsan puolella siniset – väliovet täplittävät käytävänäkymiä.
Edistyksellistä tekniikkaa ja kantavia rakenteita
Näyttämötornin kattoa, paloesirippua ja näyttämötekniikkaa kantaa piilossa esijännitetty 34,4 metriä pitkä teräsbetonikaari. Suuren näyttämön aukon ylittää 29 metriä pitkä teräsrakenne. Sisäänkäyntikatoksen 7-metrinen ulokepalkisto laskettiin aikanaan edistyksellisellä mitoittavalla tietokoneohjelmalla. [16] Lämpö-, vesi- ja ilmanvaihtotekniikka, akustiikka ja äänenvaimennus ratkaistiin huolella. Valaistustekniikka oli aikansa huippua – sähköurakoitsija tosin ajautui konkurssiin. [17]
013 HKT MM
Teatteri saa laajennuksen
Teatteria laajennettiin näyttelijä Elsa Turakaisen mukaan nimetyllä Studio Elsalla 1987-89.[18] Laajennuksen suunnitteli Arkkitehtitoimisto Oy Timo Penttilä – Kari Lind – Sakari Tilanterä. Alkuperäisrakennuksen takana olevassa Elsassa on toimisto- ja työpajatiloja sekä studionäyttämö (alun perin harjoitustila). Julkisivujen materiaaliperiaatteet periytyivät alkuperäisosasta, mutta Elsan julkisivut ovat laatoitettuja betonielementtejä.
PERUSKORJAUKSEN VÄLTTÄMÄTTÖMYYS – TIETOA SUUNNITTELUN POHJAKSI
Helsingin teatterisäätiö päätti teatterirakennusten peruskorjauksesta vuonna 2009.[19] Arkkitehtitoimisto A-Konsultit Oy laati 2012-13 hankesuunnitelman, joka sisälsi mm. rakennussuojeluperiaatteet. Teatteriteknisen tarveselvityksen mukaan näyttämö-, av-tekniikka-, valo-, video- ja äänijärjestelmät tuli ajanmukaistaa. Talotekniikka oli vanhentunut. Esteettömyysraportin ja Näkövammaisten keskusliiton ohjeet tuli huomioida.
Sisätilojen kunto vaihteli hyvästä välttävään. Paloturvallisuudessa oli puutteita. Keittiötiloja tuli ajanmukaistaa. Piha-alueiden valaistus ja pysäköintijärjestelyt vaativat toimenpiteitä. Alkuperäisen rakennuksen julkisivulaattoja oli rikki.
014 HKT MM
Henkilökunta ilmoitti kyselyssä haluavansa tiloilta monikäyttöisyyttä, lisää harjoitus- ja yleisön wc-tiloja, parempia it- ja infojärjestelmiä, kohennusta akustiikkaan, ääneneristykseen ja vaimennukseen, säädettävää ilmanvaihtoa ja sujuvampaa esteettömyyttä. Sisäilma- ja lämpötilaongelmat olivat ilmeisiä.
Kaupunginteatterin arkkitehtuuri on kestävää
Peruskorjausta varten laadittiin rakennushistoriaselvitys.[20] Selvitys kuvaa rakentamisen alkuperäisiä tavoitteita, suunnitelmia, toteutusta ja muutoksia. Siinä on nykytilanteen inventointi ja olennainen tieto poikkeuksellisen hyvin säilyneestä arkkitehtuurista: ”Alkuperäiset suunnitteluperiaatteet, toiminnalliset ratkaisut ja materiaalit ovat osoittautuneet kestäviksi.”[21] Myös Studio Elsan laajennus oli säilynyt 1980-luvun asussa.
Rakennukseen tehdyt muutokset olivat vähäisiä. Apu- ja työpajatiloja lisättiin 1980-luvun laajennuksessa. Päälämpiön esteettömyyttä oli parannettu mm. hissillä. Lämpiön tarjoilujärjestelyjä ja kokolattiamattoja sekä ruokalan ja toimistotilojen sisustusta oli uudistettu. Suuren näyttämön katsomotuolit ja osa Yrjö Kukkapuron kalusteista oli kunnostettu, mutta Maija Ruoslahden suunnittelemista messinkirunkoisista kalusteista vain muutama oli jäljellä. Kokolattiamatot ja katsomoiden kangasverhoilut oli uusittu. Vesikatot, räystäspellitykset ja ikkunat oli uusittu.
Puiston alkuperäisiä istutusperiaatteita ei ollut noudatettu. Puistoon 1970-luvulla istutetut havupuut peittivät näkymiä teatteriin ja teatterilta. Jalankulkijoiden sisääntulokäytävät olivat säilyneet hyvin. Terassimuuriin oli lisätty mainosvitriinejä.
Korjausta ohjaavat asemakaavamääräykset
Asemakaavamuutosta korjausprojektia varten valmisteltiin 2014, ja sen hyväksyi Helsingin kaupunginvaltuusto kesällä 2015. Kaavan valmistelussa viranomaiset painottivat kulttuurihistoriallisten ja arkkitehtonisten arvojen turvaamista sekä alueen yhtenäisen ja korkealaatuisen ilmeen säilyttämistä. Kaava velvoittaa liittämään rakennushistoriaselvityksen lupahakemukseen ja dokumentoimaan korjaus-, muutos- ja lisärakentamistyöt.
Asemakaava sisältää tarkkoja suojelumääräyksiä. Teatterirakennusta koskee määräys sr-1: ”Korjaamisen lähtökohtana tulee olla rakennuksen alkuperäisten rakenteiden ja rakennusosien, vesikaton, julkisivujen, lasiseinien ja ikkunoiden, ulko-ovien, valaisimien sekä niiden yksityiskohtien, materiaalien ja värien säilyttäminen. Yleisötiloissa korjaamisen lähtökohtana tulee olla tilarakenteen ja -hierarkian sekä alkuperäisten rakenteiden, materiaalien ja värien, kiintokalusteiden, valaistusratkaisujen sekä muiden yksityiskohtien säilyttäminen. Muissa tiloissa korjaamisen lähtökohtana tulee olla pääasiallisen tilajaon, rakenneratkaisujen, värisymboliikan, kiintokalusteiden ja betonisten alakattojen säilyttäminen. Mikäli alkuperäisiä rakennusosia joudutaan pakottavista syistä uusimaan, se tulee tehdä rakennuksen arvoon ja ominaispiirteisiin hyvin soveltuvalla tavalla. Lähtökohtana tulee olla rakennuksen alkuperäisten rakennusosien säilyttäminen. Tarvittavat muutokset ja uudisosat tulee suunnitella siten, että ne muodostavat alkuperäistä arkkitehtuuria tasapainoisesti täydentävän kerrostuman.”[22]
Myös kaupunkikuvaan vaikuttavia määräyksiä annettiin: ”Vesikatolle saadaan sijoittaa enintään 0.7 metriä leikkauskohdan ylittäviä teknisiä laitteita. Teknisten laitteiden ja rakennelmien suunnitteluun ja kaupunkikuvalliseen ilmeeseen tulee kiinnittää erityistä huomiota.”[23]
Ympäristöä koskee suojelumääräys sr-2: ”Puistoalueet muodostavat kaupunginteatterin kanssa saumattoman kokonaisuuden, joka tulee säilyttää ja hoitaa niin, että sen kulttuurihistoriallinen, puutarhataiteellinen ja kaupunkikuvallinen arvo säilyy. [...] Ympäristön hoito- ja kunnostussuunnitelmat tulee tehdä alkuperäisten suunnitelmien hengessä ja suojeluperiaatteita noudattaen. Arvokas puusto tulee säilyttää ja tarvittaessa uudistaa niin, että alueen puutarhataiteellinen ja kaupunkikuvallinen arvo ja merkitys säilyvät. Puuston hoitosuunnitelmat tulee tehdä laadittujen suojeluperiaatteiden pohjalta. Kunnostus- ja uudistustoimenpiteissä tulee ottaa huomioon säilytettävät ja palautettavat näkymät. [...] Kohteiden kunnostaminen ja uusiminen tulee tehdä alkuperäisin tai alkuperäistä vastaavin materiaalein. uusien kalusteiden, varusteiden, rakenteiden ja rakennelmien tulee sopia kulttuurihistoriallisesti ja kaupunkikuvallisesti arvokkaan alueen ominaispiirteisiin.” [24]
KORJAUSSUUNNITTELUSSA TARVITAAN KATTAVAT TAUSTATIEDOT
Peruskorjauksen toteutussuunnittelun sai tarjouskilpailun perusteella LPR-arkkitehdit Oy. Urakka-aineisto valmistui 2015 alussa ja työmaa käynnistyi kesäkuussa. Korjattu teatterirakennus luovutettiin käyttäjälle 1.5.2017. Peruskorjauksen toteutti projektinjohtourakkana SRV Rakennus Oy. Urakoitsijalistassa on yli 130 yritystä.
Toteutussuunnittelun tavoitteena oli teatterirakennuksen ja ympäröivän lähialueen arvot huomioiva ja ne säilyttävä laaja kunnostustyö. Suunnittelun pohjaksi tarvitaan kattavasti faktaa. Alkuperäissuunnitelmat ja -selostukset skannattiin projektipankkiin. Arkkitehtuurimuseon kokoelmista löytyi Penttilän arkisto, mm. alkuperäismateriaaleja sisältävä mappi.
Toteutussuunnittelua ohjasivat rakennushistoria-, inventointi- ja säilyneisyysselvitykset ja ympäristöhistoriallinen selvitys suojeluperiaatteineen, hankesuunnitelma, asemakaavamuutos suojelumääräyksineen ja kaupunginmuseon antamat lausunnot kaavaehdotuksesta.
Tekniset tutkimukset käsittivät kuntoselvityksen ja tutkimuksia haitta-aineista, julkisivujen kunnosta, maanvastaisten rakenteiden pintakosteudesta ja sisäväreistä. Epäselviä kohtia selvitettiin avaamalla työmaalla rakenteita.
015 HKT MM
Tietomallinnus on korvaamaton työväline
Tärkeä suunnitteluväline on digitaalinen tekniikka: pistepilvikuvaus, 3D-tietomallinnus ja havainnekuvat. Teatterirakennus laserkeilattiin ennen purkutöitä, mutta toteutuneen tilanteen selvittämiseksi korjausrakennettavat kohteet pitäisi laserkeilata myös purkutöiden jälkeen. Läpi toteutusvaiheen jatkuva tietomallinnus maksaa itsensä takaisin: se on korvaamaton talotekniikan yhteensovituksessa ja tietomallia voidaan hyödyntää työmaalla.
Yhteinen näkemys mahdollistaa sujuvan toteutuksen - tavoitteet havainnollistetaan piirustuksiin
Suunnitteluratkaisut laadittiin yhteistyössä käyttäjien, Helsingin kaupunginmuseon sekä viranomaisten (kaupunkikuvaneuvottelukunta, rakennusvalvonta) kanssa. Näin varmistettiin yhteinen näkemys tavoitteista, suunnitteluratkaisujen sopivuudesta ja edesautettiin sujuvaa toteutusvaihetta.
Rakennussuojelullisten tavoitteiden selkiyttämiseksi ja projektin sujuvuuden varmistamiseksi rakennusvalvontavirasto, kaupunginmuseo ja arkkitehti sopivat hankekuvauksen ja suojelutavoitekaavioiden laatimisesta rakennuslupavaiheessa.
016 HKT MM
017 HKT MM
Suojelutavoitekaavioissa tilat jaettiin kolmeen arvoluokkaan ja suojeluvyöhykkeeseen:
- punaisella luokka 1, yleisön päätilat, joissa alkuperäisen arkkitehtuurin ominaispiirteet olivat säilyneet ja jotka tultaisiin edelleen säilyttämään muuttumattomina;
- keltaisella luokka 2, henkilökunnan tilat, joissa alkuperäisen arkkitehtuurin ominaispiirteet olivat pääosin säilyneet ja jossa ne säilytettäisiin edelleen;
- sinisellä luokka 3, tekniset työtilat ja talotekniset tilat, joissa alkuperäinen tilajako oli säilynyt ja säilytettäisiin edelleen.
Neljänteen, arvottamattomaan luokkaan kuuluivat tulevat laajennusosat.
Julkisivut jaettiin kahteen luokkaan:
- punaisella viivalla luokka J1, alkuperäiset julkisivut, jotka olivat säilyneet ja jotka kunnostettaisiin;
- keltaisella viivalla luokka J2, laajennusosien julkisivut, joissa käytettäisiin alkuperäisiä detaljeja ja materiaaleja.
018 HKT MM
Puisto, ts. teatterin tontti ja siihen välittömästi liittyvät Tarja Halosen puiston osat, jaettiin kahteen luokkaan:
- punaisella luokka 1, alkuperäisiä istutusperiaatteita ei ollut noudatettu, mutta tilanne korjattaisiin niiden mukaisiksi;
- keltaisella luokka 2, paikoitusalueet mitoitettaisiin nykymitoituksin.
Myös purkutoimenpiteet esitettiin piirustuksina jo rakennuslupavaiheessa.
Suojauspiirustuksissa ohjeistettiin mm. väliaikaisten pölytiiviiden seinien ja kattojen rakentamisesta, osoitettiin kunnostettavat tai varastoitavat kalusteet ja esitettiin vanerilevyin suojattavat sisälasitukset, jalopuuverhoukset ja arvokkaat kaiteet sekä muovein suojattavat betonialakattopinnat ja reikätiili- ja kangasseinäverhoukset.
019 HKT MM
020 HKT MM
TYÖMAAVAIHE – PEREHDYTYSTÄ, PALAVEREJA, ARKKITEHDIN LÄSNÄOLOA
Edellytys peruskorjausprojektin onnistumiselle on motivoitunut, innostunut ja asiaan perehdytetty suunnittelijakunta ja työnjohto. Jotta kaikille suunnittelijoille ja päätoteuttajille syntyisi käsitys tavoitteista, piti pääsuunnittelija työmaan alkuvaiheessa esityksen teatterirakennuksen ja ympäristön arvoista, suojeltavista asioista ja suojaamisesta. Tarkoitus oli luoda yhteinen ymmärrys kohteen arvoista ja näkemys tulevasta tehtävästä.
Perehdyttämisen tulisi jatkua läpi rakentamisvaiheen: työmaalle tulisi nimetä vastuuhenkilö, joka huolehtisi vaihtuvien aliurakoitsijoiden ja henkilöstön perehdyttämisestä ja suojauksista. Sitä varten kannattaa laatia powerpoint-esitys työmaan käyttöön. Sen voisi soveltuvin osin sisällyttää työmaan verkkoperehdyttämiseen, turvallisuustehtävien rinnalle. Tehtävien läpäiseminen on työmaalle pääsyn edellytys.
Projektiarkkitehti oli työmaalla mahdollisimman paljon. Korjauskohteessa kaikkea ei voida suunnitella etukäteen ja yllättävät tilanteet on ratkaistava nopeasti. On osattava ennakoida miten ratkaisut vaikuttavat eteenpäin.
35 museopalaveria – säännöllinen seuranta ja mallitoteutukset
Helsingin kaupunginmuseon kanssa suunnitelmia tarkasteltiin rakennussuojelun näkökulmasta: pohdittiin toteutus- ja korjausvaihtoehtoja, tarkasteltiin väri-, materiaali- ja toteutusmalleja ja testattiin valaistusratkaisuja. Olennaisimpia tiloja, pintoja ja yksityiskohtia katselmoitiin ennen purkutöitä, niiden aikana ja vielä toteutusvaiheessa. Suojeluarvojen toteutumista valvoi lisäksi rakennusvalvonta. Seurantakokouksia ja katselmuksia järjestettiin säännöllisesti. Joka toinen viikko pidettyjä ”museopalavereita” kertyi 35.
Kaikkien päädetaljien toteutus tutkittiin ja testattiin työmallien avulla. Esimerkiksi yhdestä pukuhuoneesta tehtiin mallihuone, katsomotuoleja varten kudottiin kangasnäytteitä, julkisivulaatoista puristettiin erilaatuisia koekappaleita ja julkisivupesujakin testattiin.
SUUNNITTELU JA TOTEUTUS ALKUPERÄISEN EHDOILLA
Korjaukset, muutokset ja täydennykset suunniteltiin siten, että ne eivät erotu alkuperäisestä arkkitehtuurista. Haasteellisimmat olivat julkisivujen, yleisötilojen ja katsomoiden korjaukset, jotka toteutettiin hienovaraisesti alkuperäisen arkkitehtuurin ehdoilla ja sille alistuen.[25] Tilaratkaisut säilytettiin pääosin alkuperäisessä muodossaan ja toiminnalliset muutokset olivat vähäisiä.
Vähäiset uudisosat (harjoitussali, kabinetit, keittiön sisäänkäynti, jätehuone) tehtiin osaksi kokonaisuutta kaupunkikuvallisesti näkymättömiin ja niiden julkisivut toteutettiin laajennusten peittoon jääneiden originaalijulkisivujen mukaisina. Räystäslinjat pidettiin entisellään, vaikka noudatettiinkin nykyisiä eristysvaatimuksia; lämmöneristeenä käytettiin siis aiempaa tehokkaampia materiaaleja.
Arkkitehti salapoliisina – vanhan mallin mukaisia uusia julkisivulaattoja valmistetaan
Vanhan osan julkisivuissa vaihdettiin vaurioituneita laattoja. Säilytettävät laatat pestiin mallipesujen mukaan ruiskuttamalla ensin hapan pesuaine ja neutraloimalla emäksisellä pesuaineella. Pinttyneimmät laatat harjattiin. Kaikki saumat uusittiin.
Uusien julkisivulaattojen valmistus vaati salapoliisityötä. Laatat ensimmäisenä työnään Arabian tehtaalla vuonna 1965 suunnitellut insinööri oli jo eläkkeellä, mutta konsultoi nyt eläketyönään uusien laattojen valmistusta. Pentikin keramiikkatehtaaseen Posiolle rakennettiin julkisivulaattatehdas. Oikean muodon, koon, värisävyn, pinnan tasaisuuden ja rosoisuuden, pilkutuksen ja lasituksen varmistamiseksi tehtiin lukuisia materiaali-, lasitus- ja polttokokeita. Muoteilla laattoja valmistettaessa massan karkeus aiheutti ongelmia, mutta suulakepuristuksessa massa tiivistyi vaadittavaan pakkasenkestävyyteen.
Kaikkiaan perus-, nokka- ja pilarilaattoja valmistettiin 27 751 kappaletta. Työn jälkeen julkisivulaattatehdas purettiin ja varastoitiin; Pentikillä on nyt valmius valmistaa julkisivulaattoja mihin tahansa kohteeseen.
022 HKT MM
023 HKT MM
024 HKT MM
025 HKT MM
026 HKT MM
Julkisivulasit säilytetään
Lämpiön lasijulkisivu kunnostettiin suojelumääräysten velvoittamina edelleen yksilasisena, ehjät lasitukset ja patinoituneet pronssilistoitukset säilyttäen. Suorien lasiosien välisten nurkkataitteiden polykarbonaattilevyt uusittiin ultravioletti-suojatulla polykarbonaatilla. Lasiseinän rakenne oli rakennusfysikaalisesti puutteellinen. Rakenne tiivistettiin sekä vedenpitävyyden että höyrytiiveyden osalta. Lämpövuoto pitänee kastepisteen rakenteiden ulkopuolella.
027 HKT MM
Sisätilat säilyvät ennallaan
Sisätilojen kunnostuksen lähtökohtana oli tilarakenteen ja -hierarkian sekä alkuperäisten rakenteiden, materiaalien, valaistuksen, kiintokalustuksen, värityksen ja yksityiskohtien säilyttäminen. Korjaustoimet ja uudet elementit ovat täälläkin alisteisia alkuperäisille ratkaisuille. Modernin arkkitehtuurin korjauksessa tyypillinen vaikeus on säilyttää alkuperäiset yksityiskohdat, ja silti parantaa niiden teknisiä ominaisuuksia. Uusittavissa materiaaleissa haettiin alkuperäistä tasoa, laatua ja tunnelmaa vastaavia materiaaleja ja värejä. Erityisesti suojeluvyöhykkeellä 1 toimenpiteet harkittiin huolellisesti.
Suuri lämpiö
Lämpiön marmori- ja yleisö-wc-tilojen laattalattioita lukuun ottamatta kaikki lattiapinnat uusittiin. Kokolattiamatot vaihdettiin alkuperäisen värisiin ruskeisiin mattoihin. Puhdistettuihin marmorilattioihin ja kokolattiamattoalueelle lisättiin esteettömyyttä ajatellen messinkisiä kulunohjausraitoja ja huomionastoja.
Päälämpiön alakattopinnat uusittiin, koska pinta ei ollut riittävän vahva tartunta maalaukselle. Päälämpiön (osittain vahvikekankailla vahvistetut) rappauspinnat olivat paikoitellen alkaneet irrota: kattopintaa oli huoltomaalattu taajaan ja maalikerroksia oli runsaasti. Kattopinta tutkittiin kopoalueiden löytämiseksi. Rappauspintaa uusittiin ja korjattiin laajoilta alueilta ja koko katto maalattiin uudelleen silikaattimaaleilla. Kattopintojen korjauksen haasteeksi nousi niiden laajuus.
028 HKT MM
029 HKT MM
030 HKT MM
Pieni lämpiö
Pienen lämpiön reikätiiliseinät purettiin tiilet säilyttäen teknisten asennusten ja vaimennusmateriaalien uusimista varten. Portaikko ja lämpiö saavat jälleen luonnonvaloa, kun aiemmin suljetut yläikkunat avattiin. Lämpiön ja katsomon välinen, koko tilan levyinen ääntä eristävä ja palo-osastoiva nosto-ovi uusittiin.
031 HKT MM
Kalusteet entisöitiin
Kalusteita kunnostettiin mittavasti. Yrjö Kukkapuron punaisella nahalla verhottuja alkuperäisiä Junior- ja Karuselli-tuoleja kunnostettiin henkilöstötiloihin. Kalustusta täydennettiin uusilla moderneilla tuoleilla, sohvilla, pöydillä ja naulakoilla. Niiden väritys noudattaa alkuperäisiä periaatteita: valkoista, hieman mustaa ja puhtaita, vahvoja värejä.
Varastosta löytyneet Maija Ruoslahden suunnittelemat messinkirukoiset kalusteet entisöitiin yleisötiloihin. Niiden nahkaosat korvattiin kestävällä tummanruskealla hybridinahalla. Samaa nahkaa vaaleanruskeana käytettiin yleisö-wc-tilojen sohvissa.
032 HKT MM
033 HKT MM
Näyttämöt ja katsomot
Suuren katsomon väreissä poikettiin hieman alkuperäisistä näyttelijöiden ja ohjaajien toivomuksesta: samettiverhoiluihin valittiin musta ja seinäkankaisiin punaisen ja mustan langan kudonnainen. Kokolattiamaton väriksi valittiin alkuperäinen tumma burgundinpunainen; jalkalistamatot ovat alkuperäisiä. Parven turvallisuutta kohennettiin lisäämällä matalaan etureunan kaiteeseen messinkiset reelinkikäsijohteet. Pienen katsomon tuolikangas kudottiin alkuperäisen väriseksi käyttäen mustanruskeaa ja siniturkoosia lankaa.
Kaikkien näyttämöiden esitystekniikka uusittiin ja akustiikkaa parannettiin diffuusiopintoja lisäämällä. Suuren ja pienen näyttämön alusrakenteet (pyöröt) uusittiin, ja suuren näyttämön näyttämöaukkoa kavennettiin ja orkesterimonttua syvennettiin. Marjatta Metsovaaran suunnittelema ”Colibri”-pilviesirippu (pinta-ala yli 400 m2, paino 200 kg) konservoitiin.
034 HKT MM
035 HKT MM
Henkilöstö- ja pukutilat
Henkilöstötiloissa säilytettiin tilajako ja -hierarkia, rakenteet, kiintokalusteet ja väliovien alkuperäinen värikoodaus. Työhuoneiden siniset, punaiset, keltaiset ja vihreät ovet säilytettiin. Suojelumääräysten mukaisesti pukuhuoneiden kalustus säilytettiin ja kunnostettiin: kaappeja parannettiin ilmastoinnilla, valaisimilla ja uusilla varusteilla. Taipuneiden kimpilevyjen oikaiseminen oli haastava puusepän taidonnäyte.
036 HKT MM
037 HKT MM
Talotekniikan yhteensovittamisesta vastaa pääsuunnittelija
Pääosa peruskorjaustyöstä keskittyi talo- ja näyttämötekniikan uudistamiseen, akustiikan parantamiseen sekä tilojen ilmanvaihdon ja valaistustason tehostamiseen. Talotekniikan yhteensovittaminen, joka on pääsuunnittelijan vastuulla, on aina onnistuneen lopputuloksen ja rakennussuojelun kannalta ensiarvoista, jotta tekniset vedot saadaan kätkettyä sekä sisätiloissa että julkisivuissa tai jotta löydetään niille vaihtoehtoisia reittejä.
038 HKT MM
039 HKT MM
Vaativat alakatot
Yksityiskohdista henkilöstötilojen käytävien puhtaaksi lautamuottiin valettujen betonialakattojen korjaus ja uuden ilmanvaihtotekniikan sijoittaminen alakaton yläpuolelle oli yksi vaativimmista, säilyttämisen kannalta oleellisimmista tehtävistä. Alakattojen otsapinnat purettiin kanavien asentamiseksi, mutta joissakin työhuoneissa jouduttiin sahaamaan avauskaistat, jotka asennusten jälkeen levytettiin umpeen ja viimeisteltiin muottilaudoituksen suuntaisella rimoituksella. Asennuksen aikana betonialakattojen reunat tuettiin ripustamalla ne välipohjista. Lopuksi otsapinnat verhottiin saranoiduin akustorapatuin levyin.
040 HKT MM
041 HKT MM
Valo on osa rakennussuojelua
Valaistuksen laatua harkittiin suojelunäkökulmasta. Koska rakennuksen arkkitehtuuri pyrkii häivyttämään sisä- ja ulkotilan välisen rajapinnan, tavoiteltiin sisä- ja ulkovalaistuksessa värilämpötilan yhdenmukaisuutta. Kaikissa yleisötiloissa ja sisätiloihin liittyvissä ulkotiloissa värilämpötilaksi haettiin 3000 K, henkilökunta-alueella 4000 K.
Julkisivuvalaistus nostaa esiin rakennuksen arkkitehtuurin pimeään aikaan ja kaukomaisemassa: kaupunginteatteri, Finlandia-talo ja Oopperatalo muodostavat Töölönlahden kulttuurirakennusten kokonaisuuden. Näyttämötorni valaistaan horisontaaliosia voimakkaammin, ja valojen suuntaus haettiin korostamaan klinkkeripinnan elävyyttä ja näyttämötornin muodon taitteisuutta. Julkisivuvalaistus on säädettävissä: perussävy on valkoinen (värilämpötila 3000 K), mutta led-optiikka sallii myös värillisten valojen käytön erikoistilanteissa.
042 HKT MM
Kaksituhatta suojeltua valaisinta
Sisätilojen alkuperäiset valaisimet kunnostettiin ja uudistettiin sähköteknisesti. Lisäksi valikoimaa täydennettiin uusilla valaisimilla lämpiöissä, suuressa katsomossa, pienen lämpiön vaatesäilytyksessä ja ruokalassa. Toimistohuoneisiin tuotiin nykyaikaiset led-mikroprismavalaisimet. Valolähteet vaihdettiin led-tekniikkaan, ja kuhunkin tilaan voidaan nyt hakea sopiva valaistustaso. Fasetti Oy kunnosti ja sähköisti lähes kaksituhatta suojeltua valaisinta.
1960-luvun teatteripiha ja puisto kuntoon
Teatterin pihojen ja Tarja Halosen puiston kokonaisuuteen palautettiin 1960-luvun ilme. Luonnonkivimuureja korjattiin ja istutusalueet kunnostettiin Maisemasuunnittelu Hemgårdin ohjeistuksen mukaisesti. Näkymien tielle kasvaneet 1970-luvulla istutetut kuuset kaadettiin. Kolmannen kerroksen kabinettilaajennuksen eteen alkuperäisen rakennuksen ja muurin rajaamaan katveeseen istutettiin viehättävä kukkaketo. Ulko-alueille sijoitettiin myös yksinkertaisia uusia ulkopenkkejä, opasteita ja valaisimia sekä villiviini-istutusaltaita estämään pääsyä kattoalueelle.
043 HKT MM
Esteettömyys ulottuu paikoitusalueilta katsomopaikoille asti
Esteettömyyttä parannettiin paikoitusalueilta aina istuinpaikoille asti. Paikoitukseen lisättiin maksuttomia liikuntaesteisen autopaikkoja ja saattoliikenne pääsee sisäänkäyntien äärelle. Ulkokiveyksen tasoeroja poistettiin, olemassa ollutta eteläjulkisivun luiskaa pidennettiin, ja sisäänkäyntien yhteen oveen asennettiin ovitutka-automatiikka. Hisseistä kolme uudistettiin esteettömiksi ja varustettiin automaattiovin sekä kerroskohonumeroin ja -tekstein. Lämpiöiden lattioihin asennettiin ohjauslistoja ja lattiatunnisteita. Valaistusta tehostettiin erityisesti kokolattiamattoalueilla. Askelmien etureunoihin lisättiin katsomossa led-valaistus, ja penkkiriveihin asennettiin kohonumeroin rivi- ja paikkatunnisteet.
044 HKT MM
Pyörätuolipaikkoja on suuressa katsomossa kahdeksan ja pienessä neljä. Studio Elsan permannolle voi osoittaa pyörätuolipaikkoja tarpeen mukaan. Suuressa katsomossa induktiosilmukka-asennukset kattavat kaikki katsomopaikat, pienessä osan paikoista.
Kuunteluympäristön parantamiseksi rima- ja tekstiilipintojen taustamateriaalit uusittiin absorptioltaan aiempaa paremmiksi. Esteettömiä wc-tiloja lisättiin yleisötiloihin. Pääkulkureittien ovia levennettiin ja huomiota kiinnitettiin irtokalusteiden sijoitteluun. Opasteita selkiytettiin ja täydennettiin.
Restaurointiraportti tallentaa ja välittää tietoa toteutusratkaisuista
Kun työmaa oli valmis, arkkitehti laati korjaustyöstä työmaa- ja restaurointidokumentit. Nämä jälkidokumentit ovat arvokkaita rakennushistoriaselvityksen jatkeita ja tarjoavat yksityiskohtaista tietoa rakennuksen ylläpitäjille ja tuleville suunnittelijoille. Niiden avulla voi myöhemmin arvioida tehtyjä ratkaisuja. Kaupunginteatterista dokumenttien laatimiseen velvoitti asemakaava ja niille varattiin oma budjettinsa.
KORJAAMINEN ON VAATIVAA JA ONNISTUESSAAN PALKITSEVAA
Helsingin kaupunginteatteri on erittäin vaativa korjauskohde. Rakennuksella on tärkeä asema kaupunkikuvassa ja se on yksityiskohdiltaan rikas ja monipuolinen. Vaativuutta lisää se, että rakennusta arvostetaan suomalaisessa arkkitehtuurin historiassa ja teatteritaiteen kulttuurihistoriassa. Rakennuksen ensimmäinen peruskorjausprojekti ulottui koko rakennukseen.
Korjaussuunnittelun lähtökohta oli kaikkia alkuperäisiä ratkaisuja kunnioittava, niihin tutkivasti ja nöyrästi suhtautuva, mutta ei nöyristelevä. Uudet välttämättömät lisäykset ovat tätä aikaa, mutta ne ovat sukua alkuperäiseen arkkitehtuuriin materiaalin, muodon, tilan tai järjestysperiaatteen tasolla. Näin ympäristöön syntyy parhaassa tapauksessa hallittua ajallista kerrostuneisuutta, merkkejä eri vuosikymmenistä ja -sadoista.
045 HKT MM
Helsingin kaupunginteatteri lähiympäristöineen on vahva kokonaistaideteos. Sen arkkitehtuuri on poikkeuksellisen hyvin säilynyt ja se toimii alkuperäisessä teatterikäytössä. Suuriin muutoksiin ei ollut tarvetta. Vahva arkkitehtuuri antoi suuntaviitat uuden muotoiluun: peruskorjauksessa tehtyjen pienehköjen laajennusosienkin julkisivut toistavat niitä alkuperäisiä laatoitettuja seiniä, jotka jäivät laajennusten peittämiksi.
Korjausrakentamisen ongelmat vaativat arkkitehdilta näkemystä, sinnikkyyttä ja uskoa ratkaisun löytymiseen: julkisivulaattojen uudelleen valmistus onnistuu ja puhtaaksi lautamuottiin valetut alakatot voidaan säilyttää. Kaupunginteatterin vahva alkuperäinen arkkitehtuuri nosti luonnollisesti laatuvaatimuksen korkealle myös uusien ratkaisujen osalta.
Korjausprojekti myös opettaa tekijöitään. Tietotaitoa karttuu ja siirtyy 1960-luvun tekijöiltä nyt korjaustyön suunnittelijoille ja toteuttajille ja näiltä edelleen seuraavalle sukupolvelle. Vaativan työn onnistuessa kaikki työhön osallistuneet voivat tuntea ammattiylpeyttä.
Kirjoittaja Mikko Mannberg, arkkitehti SAFA TkL, oli LPR-arkkitehdit Oy:ssä mukana Helsingin kaupunginteatterin peruskorjauksen suunnittelutyöryhmässä, jonka pääsuunnittelija oli arkkitehti Pauno Narjus.
Artikkeli on julkaistu 2019.
HELSINGIN KAUPUNGINTEATTERIN SUUNNITTELIJAT 1960-LUVULLA JA 2010-LUVULLA
Arkkitehtuurikilpailu 1960–61, suunnittelu 1961–67, rakentamispäätös 1965, peruskiven muuraus 12.6.1965, rakentaminen toukokuusta 1965 syyskuuhun 1967, talon vihkiäiset 7.10.1967.
Kilpailuehdotus Arlecchino: Timo Penttilä ja Kari Virta, avustaja Pekka Ilveskoski.
Arkkitehtisuunnittelu: Arkkitehtitoimisto Timo Penttilä.
Rakennesuunnittelu: Insinööritoimisto Bertel Ekengren.
LVI-suunnittelu: Insinööritoimisto J. Saarto & Kumpp.
Sähkösuunnittelu: Insinööritoimisto Risto Mäenpää.
Akustinen suunnittelu: Insinööritoimisto P. Aarni & Co.
Maisemasuunnittelu: Helsingin kaupungin rakennusvirasto / Auli Hietakangas.
Pääurakoitsija: Rakennustoimisto Arvonen Oy, vastaava rakennusmestari Mauri Kivikoski.
Sähköurakoitsija: Sähkö Oy.
Laajennusosa Elsa, valmistui 1989.
Arkkitehtisuunnittelu: Arkkitehtitoimisto Oy Timo Penttilä – Kari Lind – Sakari Tilanterä.
Korjaustyö 2015–17.
Arkkitehtisuunnittelu: LPR-arkkitehdit Oy, pääsuunnittelija arkkitehti SAFA Pauno Narjus.
Maisemasuunnittelu: Maisemasuunnittelu Hemgård.
Rakennesuunnittelu: Insinööritoimisto Pontek Oy.
LVIA- ja sprinkler-suunnittelu: Optiplan Oy.
Sähkösuunnittelu: Rejlers Oy.
Julkisivuvalaistus: Granlund Oy.
Akustiikkasuunnittelu: Helimäki Akustikot Oy
Näyttämömekaniikan suunnittelu: Akumek Oy, TheatrePlan.
Esitystekniikan erityissuunnittelu: VAI-teatteri ky.
Esitystekniikan kaapeloinnin suunnittelu: Akukon Oy.
Palotekninen suunnittelu: L2 Paloturvallisuus Oy.
lukitussuunnittelu: Ekonia oy
Julkisivututkimukset: Vahanen Oy, Contesta Oy.
Julkisivujen kehitystyö: Otto Blümchen ja Pentik Oy.
Lämpiön kattopintojen ja ulkokatosten maalauskäsittelysuunnittelu: T:mi Modlari.
Korjauksen laajuus: 24 785 m2 (vanha osa), 645 m2 (laajennusosa)
Kustannukset: 67 miljoonaa euroa, josta 30% talotekniikka ja 15% teatteritekniikka.
LISÄTIETOA
Aikakausjulkaisut
Mäenpää, Risto 1967. Tekniikka näyttämöllä. Arkkitehti 1967: 10-11. Helsinki: Suomen Arkkitehtiliitto SAFA.
Norri, Marja-Riitta 1983. Taiteen ja Tilan ristiriita. Ralf Långbackan haastattelu. Arkkitehti 1983: 5-6. Helsinki: Suomen arkkitehtiliitto SAFA.
Penttilä, Timo 1981. Demokratian monumentit. Arkkitehti 1983:1. Helsinki: Suomen arkkitehtiliitto SAFA.
Painetut
Penttilä, Timo 2013. Oikeat ja väärät arkkitehdit. 2000 vuotta arkkitehtuuriteoriaa. toim. Kari Lind, Ulla Markelin ja Jorma Mukala. Helsinki: Gaudeamus.
Painamattomat
A-konsultit 2013. Helsingin kaupunginteatterin peruskorjaus. Hankesuunnitelma. Rakennustapaselostus.
A-konsultit 2013. Helsingin kaupunginteatterin peruskorjaus. Hankesuunnitelma. Rakennussuojeluperiaatteet.
Helsingin kaupunkisuunnitteluvirasto, Maija Lounamaa 2012. Helsingin kaupunginteatteri. Ympäristöhistoriallinen selvitys ja suojeluperiaatteet.
LPR-arkkitehdit Oy, Maisemasuunnittelu Hemgård & Insinööritoimisto Pontek oy 2015. Helsingin kaupunginteatteri. Peruskorjaus ja laajennus. Rakennusselostus
LPR-arkkitehdit Oy & Insinööritoimisto Pontek oy 2016. Helsingin kaupunginteatteri. Elsan julkisivukorjaus.
LPR-arkkitehdit Oy 2017. Helsingin kaupunginteatteri. Työmaadokumentointi 2015–17.
LPR-arkkitehdit Oy 2017. Helsingin kaupunginteatteri. Restaurointiraportti 2015–17.
LÄHTEET
Arkkitehti 1961:1 Kilpailuliite. Helsingin kaupunginteatterin suunnittelukilpailu. Helsinki: Suomen Arkkitehtiliitto SAFA.
DOCOMOMO 2017. Docomomo Suomi – Kohdevalikoima. toim. Sirkkaliisa Jetsonen, Petteri Kummala, Leena Makkonen & Jonas Malmberg, Helsinki: Docomomo Suomi Finland ry.
Koho, Timo 1991. Teatteriarkkitehtuurin merkitysarvot. Teatterirakentamisen suhde yhteiskunnan arvomaailmaan kaupungistuvassa Suomessa. Suomen muinaismuistoyhdistyksen aikakauskirja, 97. Helsinki: Suomen muinaismuistoyhdistys.
Korsberg, Hanna & Lylykangas, Kimmo 2007. Helsingin Kaupunginteatterin rakennus. Teoksessa Kansaa teatterissa. Helsingin Kaupunginteatterin historia. Toim. Pirkko Koski & Misa Palander. Helsinki: Like.
Penttilä, Timo 1967a. Helsingin kaupunginteatteri. Arkkitehti 1967: 10-11. Helsinki: Suomen Arkkitehtiliitto SAFA.
Penttilä, Timo 1967b. Teatterisuunnittelun lähtökohdista. Arkkitehti 1967: 10-11. Helsinki: Suomen Arkkitehtiliitto SAFA.
Asemakaavat
Helsingin kaupunkisuunnitteluvirasto: Asemakaava 19.8.2014, hyväksytty 25.2.2015, tullut voimaan 17.4.2015.
Painamattomat
Salonen, Kati & Schalin, Mona 2013. Helsingin kaupunginteatteri. Rakennushistorian selvitys ja inventointi. Kati Salonen ja Mona Schalin Arkkitehdit Oy.
Sähköpostit
Tekninen johtaja emeritus Keijo Kolin sähköposti arkkitehti Tiitta Itkoselle 15.10.2019.
VIITTEET
[1] RKY www.rky.fi
[2] Docomomo 2017.
[3] Asemakaavamuutos on kaupunginvaltuuston 15,2,2015 hyväksymä, ja se tuli voimaan 17.4.2015.
[4] Kilpailu järjestettiin 1960-61, alkuperäisosa valmistui 1967 ja laajennusosa Studio Elsa 1989.
[5] Arkkitehti 1 1961 Kilpailuliite, 3.
[6] Arkkitehti 1 1961 Kilpailuliite, 1.
[7] Penttilä 1967b, 25.
[8] Koho 1991, 15-17.
[9] Studiotila on intiimi, neutraali monitoimitila, jossa näyttämön ja katsomon asemaa ja suhdetta toisiinsa voidaan muuttaa edessä olevasta näyttämöstä katsomon täysin näyttämötilan ympäröivään areenateatteriin.
[10] Penttilä 1967b, 27.
[11] Penttilä 1967b, 27.
[12] Koho 1991, 15-17.
[13] Korsberg et al 2007, 63.
[14] Penttilä 1967a, 11.
[15] Penttilä oli työskennellyt Aarne Ervin ja tämä puolestaan Alvar Aallon toimistossa.
[16] Salonen et al 2013, 20-22.
[17] Salonen et al 2013, 24-26.
[18] Korsberg et al 2007, 65. Elsan ensi-illassa 1991 esitettiin Shakespearen Henrik IV.
[19] Tieto 15.10.2019 Helsingin Kaupunginteatterin tekniseltä johtajalta Keijo Kolilta, joka toimi korjausprojektissa projektinjohtajana.
[20] Arkkitehtitoimisto Kati Salonen ja Mona Schalin oy 2013.
[21] Salonen et al 2013, 251.
[22] Asemakaava 2015.
[23] Asemakaava 2015.
[24] Asemakaava 2015.
[25] LPR-arkkitehdit 2017.
_Oik.: Suuren lämpiön porras.
Kuvat: Martti I Jaatinen 1967-69, Timo Penttilän arkisto, Arkkitehtuurimuseo.
Kuvat: Martti I Jaatinen 1967-69, Timo Penttilän arkisto, Arkkitehtuurimuseo.
Suuri näyttämö on etu-, sivu- ja takanäyttämöineen perinteinen ristinäyttämö, jossa on sekä rengas- että pyörönäyttämö hydraulisine nostimineen. Leveässä, kaartuvassa katsomossa penkkirivejä on permannolla 14 ja parvella viisi ja paikkoja yhteensä 920. Pieni studiomainen näyttämö katsomoineen on varioitavissa perinteisestä näyttämöstä aina ¾-areenaan, ja katsojia saliin mahtuu tilaratkaisun mukaan 230-330.[14]
Näyttämöiden taustalla samassa tasossa ovat puutyöpaja, maalaamo, lavastamot ja varastot. Ompelimo, harjoitushuoneet, näyttelijöiden pukuhuoneet, hallinto ja ruokala sijaitsevat 2.-4. kerroksessa. Näyttelijöiden pukuhuoneissa nauhaikkunat ovat niin ylhäällä, ettei niistä näe ulos, toisaalta pukuhuoneisiin ei myöskään näe sisään.
_Oik.: Henkilökunnan tiloissa kirkkaan väriset tuolit ovat vasten valkoisia betoniseiniä ja vinyylimattolattioita. Kuva: Martti I Jaatinen 1967, Timo Penttilän arkisto, Arkkitehtuurimuseo.
Penttilän materiaali- ja detaljipaletti on runsas ja kaksijakoinen
Teatterirakennus on porrastettu maiseman mukaan. Porrastus ja rakennuksen materiaalit sekä detaljit muistuttavat Alvar Aallon arkkitehtuuria.[15] Julkisivut on verhottu vaalein lasitetuin keraamisin laatoin ja sauvoin. Ne näkyvät eri tavoin riippuen vuorokauden ajasta, vuodenajasta ja valaistuksesta. Laajat lasitukset sekä sisääntulon ja sisätilojen marmoripinnat antavat arvokkaan vaikutelman.
010 HKT MM
011 HKT MM
012 HKT MM
Sisällä yleisötilat ovat hienostuneita ja materiaalit ylellisiä: valkoinen marmori, pronssi, messinki, teak, villanukkamatto. Yksityiskohdat ovat runsaita: pääovissa valetut pronssivetimet, ikkunoissa pronssilistat, lämpiöiden seinissä kangasverhoilut, teak-pinnat ja -säleiköt, pilareissa laatoitukset, lattioissa marmori ja villanukkamatto, reikätiilestä lappeelleen muuratut tummanharmaat seinät ja yleisö-wc-tiloissa syvänpunainen keraaminen sauvalaatoitus, katsomoiden seinien ja tuolien kangasverhoilut.
Yleisötilojen vastakohtana henkilökunnan työtilat ovat yleisväriltään puhtaan valkoisia. Vihreät, keltaiset ja punaiset – Elsan puolella siniset – väliovet täplittävät käytävänäkymiä.
Edistyksellistä tekniikkaa ja kantavia rakenteita
Näyttämötornin kattoa, paloesirippua ja näyttämötekniikkaa kantaa piilossa esijännitetty 34,4 metriä pitkä teräsbetonikaari. Suuren näyttämön aukon ylittää 29 metriä pitkä teräsrakenne. Sisäänkäyntikatoksen 7-metrinen ulokepalkisto laskettiin aikanaan edistyksellisellä mitoittavalla tietokoneohjelmalla. [16] Lämpö-, vesi- ja ilmanvaihtotekniikka, akustiikka ja äänenvaimennus ratkaistiin huolella. Valaistustekniikka oli aikansa huippua – sähköurakoitsija tosin ajautui konkurssiin. [17]
013 HKT MM
Teatteri saa laajennuksen
Teatteria laajennettiin näyttelijä Elsa Turakaisen mukaan nimetyllä Studio Elsalla 1987-89.[18] Laajennuksen suunnitteli Arkkitehtitoimisto Oy Timo Penttilä – Kari Lind – Sakari Tilanterä. Alkuperäisrakennuksen takana olevassa Elsassa on toimisto- ja työpajatiloja sekä studionäyttämö (alun perin harjoitustila). Julkisivujen materiaaliperiaatteet periytyivät alkuperäisosasta, mutta Elsan julkisivut ovat laatoitettuja betonielementtejä.
PERUSKORJAUKSEN VÄLTTÄMÄTTÖMYYS – TIETOA SUUNNITTELUN POHJAKSI
Helsingin teatterisäätiö päätti teatterirakennusten peruskorjauksesta vuonna 2009.[19] Arkkitehtitoimisto A-Konsultit Oy laati 2012-13 hankesuunnitelman, joka sisälsi mm. rakennussuojeluperiaatteet. Teatteriteknisen tarveselvityksen mukaan näyttämö-, av-tekniikka-, valo-, video- ja äänijärjestelmät tuli ajanmukaistaa. Talotekniikka oli vanhentunut. Esteettömyysraportin ja Näkövammaisten keskusliiton ohjeet tuli huomioida.
Sisätilojen kunto vaihteli hyvästä välttävään. Paloturvallisuudessa oli puutteita. Keittiötiloja tuli ajanmukaistaa. Piha-alueiden valaistus ja pysäköintijärjestelyt vaativat toimenpiteitä. Alkuperäisen rakennuksen julkisivulaattoja oli rikki.
014 HKT MM
Henkilökunta ilmoitti kyselyssä haluavansa tiloilta monikäyttöisyyttä, lisää harjoitus- ja yleisön wc-tiloja, parempia it- ja infojärjestelmiä, kohennusta akustiikkaan, ääneneristykseen ja vaimennukseen, säädettävää ilmanvaihtoa ja sujuvampaa esteettömyyttä. Sisäilma- ja lämpötilaongelmat olivat ilmeisiä.
Kaupunginteatterin arkkitehtuuri on kestävää
Peruskorjausta varten laadittiin rakennushistoriaselvitys.[20] Selvitys kuvaa rakentamisen alkuperäisiä tavoitteita, suunnitelmia, toteutusta ja muutoksia. Siinä on nykytilanteen inventointi ja olennainen tieto poikkeuksellisen hyvin säilyneestä arkkitehtuurista: ”Alkuperäiset suunnitteluperiaatteet, toiminnalliset ratkaisut ja materiaalit ovat osoittautuneet kestäviksi.”[21] Myös Studio Elsan laajennus oli säilynyt 1980-luvun asussa.
Rakennukseen tehdyt muutokset olivat vähäisiä. Apu- ja työpajatiloja lisättiin 1980-luvun laajennuksessa. Päälämpiön esteettömyyttä oli parannettu mm. hissillä. Lämpiön tarjoilujärjestelyjä ja kokolattiamattoja sekä ruokalan ja toimistotilojen sisustusta oli uudistettu. Suuren näyttämön katsomotuolit ja osa Yrjö Kukkapuron kalusteista oli kunnostettu, mutta Maija Ruoslahden suunnittelemista messinkirunkoisista kalusteista vain muutama oli jäljellä. Kokolattiamatot ja katsomoiden kangasverhoilut oli uusittu. Vesikatot, räystäspellitykset ja ikkunat oli uusittu.
Puiston alkuperäisiä istutusperiaatteita ei ollut noudatettu. Puistoon 1970-luvulla istutetut havupuut peittivät näkymiä teatteriin ja teatterilta. Jalankulkijoiden sisääntulokäytävät olivat säilyneet hyvin. Terassimuuriin oli lisätty mainosvitriinejä.
Korjausta ohjaavat asemakaavamääräykset
Asemakaavamuutosta korjausprojektia varten valmisteltiin 2014, ja sen hyväksyi Helsingin kaupunginvaltuusto kesällä 2015. Kaavan valmistelussa viranomaiset painottivat kulttuurihistoriallisten ja arkkitehtonisten arvojen turvaamista sekä alueen yhtenäisen ja korkealaatuisen ilmeen säilyttämistä. Kaava velvoittaa liittämään rakennushistoriaselvityksen lupahakemukseen ja dokumentoimaan korjaus-, muutos- ja lisärakentamistyöt.
Asemakaava sisältää tarkkoja suojelumääräyksiä. Teatterirakennusta koskee määräys sr-1: ”Korjaamisen lähtökohtana tulee olla rakennuksen alkuperäisten rakenteiden ja rakennusosien, vesikaton, julkisivujen, lasiseinien ja ikkunoiden, ulko-ovien, valaisimien sekä niiden yksityiskohtien, materiaalien ja värien säilyttäminen. Yleisötiloissa korjaamisen lähtökohtana tulee olla tilarakenteen ja -hierarkian sekä alkuperäisten rakenteiden, materiaalien ja värien, kiintokalusteiden, valaistusratkaisujen sekä muiden yksityiskohtien säilyttäminen. Muissa tiloissa korjaamisen lähtökohtana tulee olla pääasiallisen tilajaon, rakenneratkaisujen, värisymboliikan, kiintokalusteiden ja betonisten alakattojen säilyttäminen. Mikäli alkuperäisiä rakennusosia joudutaan pakottavista syistä uusimaan, se tulee tehdä rakennuksen arvoon ja ominaispiirteisiin hyvin soveltuvalla tavalla. Lähtökohtana tulee olla rakennuksen alkuperäisten rakennusosien säilyttäminen. Tarvittavat muutokset ja uudisosat tulee suunnitella siten, että ne muodostavat alkuperäistä arkkitehtuuria tasapainoisesti täydentävän kerrostuman.”[22]
Myös kaupunkikuvaan vaikuttavia määräyksiä annettiin: ”Vesikatolle saadaan sijoittaa enintään 0.7 metriä leikkauskohdan ylittäviä teknisiä laitteita. Teknisten laitteiden ja rakennelmien suunnitteluun ja kaupunkikuvalliseen ilmeeseen tulee kiinnittää erityistä huomiota.”[23]
Ympäristöä koskee suojelumääräys sr-2: ”Puistoalueet muodostavat kaupunginteatterin kanssa saumattoman kokonaisuuden, joka tulee säilyttää ja hoitaa niin, että sen kulttuurihistoriallinen, puutarhataiteellinen ja kaupunkikuvallinen arvo säilyy. [...] Ympäristön hoito- ja kunnostussuunnitelmat tulee tehdä alkuperäisten suunnitelmien hengessä ja suojeluperiaatteita noudattaen. Arvokas puusto tulee säilyttää ja tarvittaessa uudistaa niin, että alueen puutarhataiteellinen ja kaupunkikuvallinen arvo ja merkitys säilyvät. Puuston hoitosuunnitelmat tulee tehdä laadittujen suojeluperiaatteiden pohjalta. Kunnostus- ja uudistustoimenpiteissä tulee ottaa huomioon säilytettävät ja palautettavat näkymät. [...] Kohteiden kunnostaminen ja uusiminen tulee tehdä alkuperäisin tai alkuperäistä vastaavin materiaalein. uusien kalusteiden, varusteiden, rakenteiden ja rakennelmien tulee sopia kulttuurihistoriallisesti ja kaupunkikuvallisesti arvokkaan alueen ominaispiirteisiin.” [24]
KORJAUSSUUNNITTELUSSA TARVITAAN KATTAVAT TAUSTATIEDOT
Peruskorjauksen toteutussuunnittelun sai tarjouskilpailun perusteella LPR-arkkitehdit Oy. Urakka-aineisto valmistui 2015 alussa ja työmaa käynnistyi kesäkuussa. Korjattu teatterirakennus luovutettiin käyttäjälle 1.5.2017. Peruskorjauksen toteutti projektinjohtourakkana SRV Rakennus Oy. Urakoitsijalistassa on yli 130 yritystä.
Toteutussuunnittelun tavoitteena oli teatterirakennuksen ja ympäröivän lähialueen arvot huomioiva ja ne säilyttävä laaja kunnostustyö. Suunnittelun pohjaksi tarvitaan kattavasti faktaa. Alkuperäissuunnitelmat ja -selostukset skannattiin projektipankkiin. Arkkitehtuurimuseon kokoelmista löytyi Penttilän arkisto, mm. alkuperäismateriaaleja sisältävä mappi.
Toteutussuunnittelua ohjasivat rakennushistoria-, inventointi- ja säilyneisyysselvitykset ja ympäristöhistoriallinen selvitys suojeluperiaatteineen, hankesuunnitelma, asemakaavamuutos suojelumääräyksineen ja kaupunginmuseon antamat lausunnot kaavaehdotuksesta.
Tekniset tutkimukset käsittivät kuntoselvityksen ja tutkimuksia haitta-aineista, julkisivujen kunnosta, maanvastaisten rakenteiden pintakosteudesta ja sisäväreistä. Epäselviä kohtia selvitettiin avaamalla työmaalla rakenteita.
015 HKT MM
Tietomallinnus on korvaamaton työväline
Tärkeä suunnitteluväline on digitaalinen tekniikka: pistepilvikuvaus, 3D-tietomallinnus ja havainnekuvat. Teatterirakennus laserkeilattiin ennen purkutöitä, mutta toteutuneen tilanteen selvittämiseksi korjausrakennettavat kohteet pitäisi laserkeilata myös purkutöiden jälkeen. Läpi toteutusvaiheen jatkuva tietomallinnus maksaa itsensä takaisin: se on korvaamaton talotekniikan yhteensovituksessa ja tietomallia voidaan hyödyntää työmaalla.
Yhteinen näkemys mahdollistaa sujuvan toteutuksen - tavoitteet havainnollistetaan piirustuksiin
Suunnitteluratkaisut laadittiin yhteistyössä käyttäjien, Helsingin kaupunginmuseon sekä viranomaisten (kaupunkikuvaneuvottelukunta, rakennusvalvonta) kanssa. Näin varmistettiin yhteinen näkemys tavoitteista, suunnitteluratkaisujen sopivuudesta ja edesautettiin sujuvaa toteutusvaihetta.
Rakennussuojelullisten tavoitteiden selkiyttämiseksi ja projektin sujuvuuden varmistamiseksi rakennusvalvontavirasto, kaupunginmuseo ja arkkitehti sopivat hankekuvauksen ja suojelutavoitekaavioiden laatimisesta rakennuslupavaiheessa.
016 HKT MM
017 HKT MM
Suojelutavoitekaavioissa tilat jaettiin kolmeen arvoluokkaan ja suojeluvyöhykkeeseen:
- punaisella luokka 1, yleisön päätilat, joissa alkuperäisen arkkitehtuurin ominaispiirteet olivat säilyneet ja jotka tultaisiin edelleen säilyttämään muuttumattomina;
- keltaisella luokka 2, henkilökunnan tilat, joissa alkuperäisen arkkitehtuurin ominaispiirteet olivat pääosin säilyneet ja jossa ne säilytettäisiin edelleen;
- sinisellä luokka 3, tekniset työtilat ja talotekniset tilat, joissa alkuperäinen tilajako oli säilynyt ja säilytettäisiin edelleen.
Neljänteen, arvottamattomaan luokkaan kuuluivat tulevat laajennusosat.
Julkisivut jaettiin kahteen luokkaan:
- punaisella viivalla luokka J1, alkuperäiset julkisivut, jotka olivat säilyneet ja jotka kunnostettaisiin;
- keltaisella viivalla luokka J2, laajennusosien julkisivut, joissa käytettäisiin alkuperäisiä detaljeja ja materiaaleja.
018 HKT MM
Puisto, ts. teatterin tontti ja siihen välittömästi liittyvät Tarja Halosen puiston osat, jaettiin kahteen luokkaan:
- punaisella luokka 1, alkuperäisiä istutusperiaatteita ei ollut noudatettu, mutta tilanne korjattaisiin niiden mukaisiksi;
- keltaisella luokka 2, paikoitusalueet mitoitettaisiin nykymitoituksin.
Myös purkutoimenpiteet esitettiin piirustuksina jo rakennuslupavaiheessa.
Suojauspiirustuksissa ohjeistettiin mm. väliaikaisten pölytiiviiden seinien ja kattojen rakentamisesta, osoitettiin kunnostettavat tai varastoitavat kalusteet ja esitettiin vanerilevyin suojattavat sisälasitukset, jalopuuverhoukset ja arvokkaat kaiteet sekä muovein suojattavat betonialakattopinnat ja reikätiili- ja kangasseinäverhoukset.
019 HKT MM
020 HKT MM
TYÖMAAVAIHE – PEREHDYTYSTÄ, PALAVEREJA, ARKKITEHDIN LÄSNÄOLOA
Edellytys peruskorjausprojektin onnistumiselle on motivoitunut, innostunut ja asiaan perehdytetty suunnittelijakunta ja työnjohto. Jotta kaikille suunnittelijoille ja päätoteuttajille syntyisi käsitys tavoitteista, piti pääsuunnittelija työmaan alkuvaiheessa esityksen teatterirakennuksen ja ympäristön arvoista, suojeltavista asioista ja suojaamisesta. Tarkoitus oli luoda yhteinen ymmärrys kohteen arvoista ja näkemys tulevasta tehtävästä.
Perehdyttämisen tulisi jatkua läpi rakentamisvaiheen: työmaalle tulisi nimetä vastuuhenkilö, joka huolehtisi vaihtuvien aliurakoitsijoiden ja henkilöstön perehdyttämisestä ja suojauksista. Sitä varten kannattaa laatia powerpoint-esitys työmaan käyttöön. Sen voisi soveltuvin osin sisällyttää työmaan verkkoperehdyttämiseen, turvallisuustehtävien rinnalle. Tehtävien läpäiseminen on työmaalle pääsyn edellytys.
Projektiarkkitehti oli työmaalla mahdollisimman paljon. Korjauskohteessa kaikkea ei voida suunnitella etukäteen ja yllättävät tilanteet on ratkaistava nopeasti. On osattava ennakoida miten ratkaisut vaikuttavat eteenpäin.
35 museopalaveria – säännöllinen seuranta ja mallitoteutukset
Helsingin kaupunginmuseon kanssa suunnitelmia tarkasteltiin rakennussuojelun näkökulmasta: pohdittiin toteutus- ja korjausvaihtoehtoja, tarkasteltiin väri-, materiaali- ja toteutusmalleja ja testattiin valaistusratkaisuja. Olennaisimpia tiloja, pintoja ja yksityiskohtia katselmoitiin ennen purkutöitä, niiden aikana ja vielä toteutusvaiheessa. Suojeluarvojen toteutumista valvoi lisäksi rakennusvalvonta. Seurantakokouksia ja katselmuksia järjestettiin säännöllisesti. Joka toinen viikko pidettyjä ”museopalavereita” kertyi 35.
Kaikkien päädetaljien toteutus tutkittiin ja testattiin työmallien avulla. Esimerkiksi yhdestä pukuhuoneesta tehtiin mallihuone, katsomotuoleja varten kudottiin kangasnäytteitä, julkisivulaatoista puristettiin erilaatuisia koekappaleita ja julkisivupesujakin testattiin.
SUUNNITTELU JA TOTEUTUS ALKUPERÄISEN EHDOILLA
Korjaukset, muutokset ja täydennykset suunniteltiin siten, että ne eivät erotu alkuperäisestä arkkitehtuurista. Haasteellisimmat olivat julkisivujen, yleisötilojen ja katsomoiden korjaukset, jotka toteutettiin hienovaraisesti alkuperäisen arkkitehtuurin ehdoilla ja sille alistuen.[25] Tilaratkaisut säilytettiin pääosin alkuperäisessä muodossaan ja toiminnalliset muutokset olivat vähäisiä.
Vähäiset uudisosat (harjoitussali, kabinetit, keittiön sisäänkäynti, jätehuone) tehtiin osaksi kokonaisuutta kaupunkikuvallisesti näkymättömiin ja niiden julkisivut toteutettiin laajennusten peittoon jääneiden originaalijulkisivujen mukaisina. Räystäslinjat pidettiin entisellään, vaikka noudatettiinkin nykyisiä eristysvaatimuksia; lämmöneristeenä käytettiin siis aiempaa tehokkaampia materiaaleja.
Arkkitehti salapoliisina – vanhan mallin mukaisia uusia julkisivulaattoja valmistetaan
Vanhan osan julkisivuissa vaihdettiin vaurioituneita laattoja. Säilytettävät laatat pestiin mallipesujen mukaan ruiskuttamalla ensin hapan pesuaine ja neutraloimalla emäksisellä pesuaineella. Pinttyneimmät laatat harjattiin. Kaikki saumat uusittiin.
Uusien julkisivulaattojen valmistus vaati salapoliisityötä. Laatat ensimmäisenä työnään Arabian tehtaalla vuonna 1965 suunnitellut insinööri oli jo eläkkeellä, mutta konsultoi nyt eläketyönään uusien laattojen valmistusta. Pentikin keramiikkatehtaaseen Posiolle rakennettiin julkisivulaattatehdas. Oikean muodon, koon, värisävyn, pinnan tasaisuuden ja rosoisuuden, pilkutuksen ja lasituksen varmistamiseksi tehtiin lukuisia materiaali-, lasitus- ja polttokokeita. Muoteilla laattoja valmistettaessa massan karkeus aiheutti ongelmia, mutta suulakepuristuksessa massa tiivistyi vaadittavaan pakkasenkestävyyteen.
Kaikkiaan perus-, nokka- ja pilarilaattoja valmistettiin 27 751 kappaletta. Työn jälkeen julkisivulaattatehdas purettiin ja varastoitiin; Pentikillä on nyt valmius valmistaa julkisivulaattoja mihin tahansa kohteeseen.
022 HKT MM
023 HKT MM
024 HKT MM
025 HKT MM
026 HKT MM
Julkisivulasit säilytetään
Lämpiön lasijulkisivu kunnostettiin suojelumääräysten velvoittamina edelleen yksilasisena, ehjät lasitukset ja patinoituneet pronssilistoitukset säilyttäen. Suorien lasiosien välisten nurkkataitteiden polykarbonaattilevyt uusittiin ultravioletti-suojatulla polykarbonaatilla. Lasiseinän rakenne oli rakennusfysikaalisesti puutteellinen. Rakenne tiivistettiin sekä vedenpitävyyden että höyrytiiveyden osalta. Lämpövuoto pitänee kastepisteen rakenteiden ulkopuolella.
027 HKT MM
Sisätilat säilyvät ennallaan
Sisätilojen kunnostuksen lähtökohtana oli tilarakenteen ja -hierarkian sekä alkuperäisten rakenteiden, materiaalien, valaistuksen, kiintokalustuksen, värityksen ja yksityiskohtien säilyttäminen. Korjaustoimet ja uudet elementit ovat täälläkin alisteisia alkuperäisille ratkaisuille. Modernin arkkitehtuurin korjauksessa tyypillinen vaikeus on säilyttää alkuperäiset yksityiskohdat, ja silti parantaa niiden teknisiä ominaisuuksia. Uusittavissa materiaaleissa haettiin alkuperäistä tasoa, laatua ja tunnelmaa vastaavia materiaaleja ja värejä. Erityisesti suojeluvyöhykkeellä 1 toimenpiteet harkittiin huolellisesti.
Suuri lämpiö
Lämpiön marmori- ja yleisö-wc-tilojen laattalattioita lukuun ottamatta kaikki lattiapinnat uusittiin. Kokolattiamatot vaihdettiin alkuperäisen värisiin ruskeisiin mattoihin. Puhdistettuihin marmorilattioihin ja kokolattiamattoalueelle lisättiin esteettömyyttä ajatellen messinkisiä kulunohjausraitoja ja huomionastoja.
Päälämpiön alakattopinnat uusittiin, koska pinta ei ollut riittävän vahva tartunta maalaukselle. Päälämpiön (osittain vahvikekankailla vahvistetut) rappauspinnat olivat paikoitellen alkaneet irrota: kattopintaa oli huoltomaalattu taajaan ja maalikerroksia oli runsaasti. Kattopinta tutkittiin kopoalueiden löytämiseksi. Rappauspintaa uusittiin ja korjattiin laajoilta alueilta ja koko katto maalattiin uudelleen silikaattimaaleilla. Kattopintojen korjauksen haasteeksi nousi niiden laajuus.
028 HKT MM
029 HKT MM
030 HKT MM
Pieni lämpiö
Pienen lämpiön reikätiiliseinät purettiin tiilet säilyttäen teknisten asennusten ja vaimennusmateriaalien uusimista varten. Portaikko ja lämpiö saavat jälleen luonnonvaloa, kun aiemmin suljetut yläikkunat avattiin. Lämpiön ja katsomon välinen, koko tilan levyinen ääntä eristävä ja palo-osastoiva nosto-ovi uusittiin.
031 HKT MM
Kalusteet entisöitiin
Kalusteita kunnostettiin mittavasti. Yrjö Kukkapuron punaisella nahalla verhottuja alkuperäisiä Junior- ja Karuselli-tuoleja kunnostettiin henkilöstötiloihin. Kalustusta täydennettiin uusilla moderneilla tuoleilla, sohvilla, pöydillä ja naulakoilla. Niiden väritys noudattaa alkuperäisiä periaatteita: valkoista, hieman mustaa ja puhtaita, vahvoja värejä.
Varastosta löytyneet Maija Ruoslahden suunnittelemat messinkirukoiset kalusteet entisöitiin yleisötiloihin. Niiden nahkaosat korvattiin kestävällä tummanruskealla hybridinahalla. Samaa nahkaa vaaleanruskeana käytettiin yleisö-wc-tilojen sohvissa.
032 HKT MM
033 HKT MM
Näyttämöt ja katsomot
Suuren katsomon väreissä poikettiin hieman alkuperäisistä näyttelijöiden ja ohjaajien toivomuksesta: samettiverhoiluihin valittiin musta ja seinäkankaisiin punaisen ja mustan langan kudonnainen. Kokolattiamaton väriksi valittiin alkuperäinen tumma burgundinpunainen; jalkalistamatot ovat alkuperäisiä. Parven turvallisuutta kohennettiin lisäämällä matalaan etureunan kaiteeseen messinkiset reelinkikäsijohteet. Pienen katsomon tuolikangas kudottiin alkuperäisen väriseksi käyttäen mustanruskeaa ja siniturkoosia lankaa.
Kaikkien näyttämöiden esitystekniikka uusittiin ja akustiikkaa parannettiin diffuusiopintoja lisäämällä. Suuren ja pienen näyttämön alusrakenteet (pyöröt) uusittiin, ja suuren näyttämön näyttämöaukkoa kavennettiin ja orkesterimonttua syvennettiin. Marjatta Metsovaaran suunnittelema ”Colibri”-pilviesirippu (pinta-ala yli 400 m2, paino 200 kg) konservoitiin.
034 HKT MM
035 HKT MM
Henkilöstö- ja pukutilat
Henkilöstötiloissa säilytettiin tilajako ja -hierarkia, rakenteet, kiintokalusteet ja väliovien alkuperäinen värikoodaus. Työhuoneiden siniset, punaiset, keltaiset ja vihreät ovet säilytettiin. Suojelumääräysten mukaisesti pukuhuoneiden kalustus säilytettiin ja kunnostettiin: kaappeja parannettiin ilmastoinnilla, valaisimilla ja uusilla varusteilla. Taipuneiden kimpilevyjen oikaiseminen oli haastava puusepän taidonnäyte.
036 HKT MM
037 HKT MM
Talotekniikan yhteensovittamisesta vastaa pääsuunnittelija
Pääosa peruskorjaustyöstä keskittyi talo- ja näyttämötekniikan uudistamiseen, akustiikan parantamiseen sekä tilojen ilmanvaihdon ja valaistustason tehostamiseen. Talotekniikan yhteensovittaminen, joka on pääsuunnittelijan vastuulla, on aina onnistuneen lopputuloksen ja rakennussuojelun kannalta ensiarvoista, jotta tekniset vedot saadaan kätkettyä sekä sisätiloissa että julkisivuissa tai jotta löydetään niille vaihtoehtoisia reittejä.
038 HKT MM
039 HKT MM
Vaativat alakatot
Yksityiskohdista henkilöstötilojen käytävien puhtaaksi lautamuottiin valettujen betonialakattojen korjaus ja uuden ilmanvaihtotekniikan sijoittaminen alakaton yläpuolelle oli yksi vaativimmista, säilyttämisen kannalta oleellisimmista tehtävistä. Alakattojen otsapinnat purettiin kanavien asentamiseksi, mutta joissakin työhuoneissa jouduttiin sahaamaan avauskaistat, jotka asennusten jälkeen levytettiin umpeen ja viimeisteltiin muottilaudoituksen suuntaisella rimoituksella. Asennuksen aikana betonialakattojen reunat tuettiin ripustamalla ne välipohjista. Lopuksi otsapinnat verhottiin saranoiduin akustorapatuin levyin.
040 HKT MM
041 HKT MM
Valo on osa rakennussuojelua
Valaistuksen laatua harkittiin suojelunäkökulmasta. Koska rakennuksen arkkitehtuuri pyrkii häivyttämään sisä- ja ulkotilan välisen rajapinnan, tavoiteltiin sisä- ja ulkovalaistuksessa värilämpötilan yhdenmukaisuutta. Kaikissa yleisötiloissa ja sisätiloihin liittyvissä ulkotiloissa värilämpötilaksi haettiin 3000 K, henkilökunta-alueella 4000 K.
Julkisivuvalaistus nostaa esiin rakennuksen arkkitehtuurin pimeään aikaan ja kaukomaisemassa: kaupunginteatteri, Finlandia-talo ja Oopperatalo muodostavat Töölönlahden kulttuurirakennusten kokonaisuuden. Näyttämötorni valaistaan horisontaaliosia voimakkaammin, ja valojen suuntaus haettiin korostamaan klinkkeripinnan elävyyttä ja näyttämötornin muodon taitteisuutta. Julkisivuvalaistus on säädettävissä: perussävy on valkoinen (värilämpötila 3000 K), mutta led-optiikka sallii myös värillisten valojen käytön erikoistilanteissa.
042 HKT MM
Kaksituhatta suojeltua valaisinta
Sisätilojen alkuperäiset valaisimet kunnostettiin ja uudistettiin sähköteknisesti. Lisäksi valikoimaa täydennettiin uusilla valaisimilla lämpiöissä, suuressa katsomossa, pienen lämpiön vaatesäilytyksessä ja ruokalassa. Toimistohuoneisiin tuotiin nykyaikaiset led-mikroprismavalaisimet. Valolähteet vaihdettiin led-tekniikkaan, ja kuhunkin tilaan voidaan nyt hakea sopiva valaistustaso. Fasetti Oy kunnosti ja sähköisti lähes kaksituhatta suojeltua valaisinta.
1960-luvun teatteripiha ja puisto kuntoon
Teatterin pihojen ja Tarja Halosen puiston kokonaisuuteen palautettiin 1960-luvun ilme. Luonnonkivimuureja korjattiin ja istutusalueet kunnostettiin Maisemasuunnittelu Hemgårdin ohjeistuksen mukaisesti. Näkymien tielle kasvaneet 1970-luvulla istutetut kuuset kaadettiin. Kolmannen kerroksen kabinettilaajennuksen eteen alkuperäisen rakennuksen ja muurin rajaamaan katveeseen istutettiin viehättävä kukkaketo. Ulko-alueille sijoitettiin myös yksinkertaisia uusia ulkopenkkejä, opasteita ja valaisimia sekä villiviini-istutusaltaita estämään pääsyä kattoalueelle.
043 HKT MM
Esteettömyys ulottuu paikoitusalueilta katsomopaikoille asti
Esteettömyyttä parannettiin paikoitusalueilta aina istuinpaikoille asti. Paikoitukseen lisättiin maksuttomia liikuntaesteisen autopaikkoja ja saattoliikenne pääsee sisäänkäyntien äärelle. Ulkokiveyksen tasoeroja poistettiin, olemassa ollutta eteläjulkisivun luiskaa pidennettiin, ja sisäänkäyntien yhteen oveen asennettiin ovitutka-automatiikka. Hisseistä kolme uudistettiin esteettömiksi ja varustettiin automaattiovin sekä kerroskohonumeroin ja -tekstein. Lämpiöiden lattioihin asennettiin ohjauslistoja ja lattiatunnisteita. Valaistusta tehostettiin erityisesti kokolattiamattoalueilla. Askelmien etureunoihin lisättiin katsomossa led-valaistus, ja penkkiriveihin asennettiin kohonumeroin rivi- ja paikkatunnisteet.
044 HKT MM
Pyörätuolipaikkoja on suuressa katsomossa kahdeksan ja pienessä neljä. Studio Elsan permannolle voi osoittaa pyörätuolipaikkoja tarpeen mukaan. Suuressa katsomossa induktiosilmukka-asennukset kattavat kaikki katsomopaikat, pienessä osan paikoista.
Kuunteluympäristön parantamiseksi rima- ja tekstiilipintojen taustamateriaalit uusittiin absorptioltaan aiempaa paremmiksi. Esteettömiä wc-tiloja lisättiin yleisötiloihin. Pääkulkureittien ovia levennettiin ja huomiota kiinnitettiin irtokalusteiden sijoitteluun. Opasteita selkiytettiin ja täydennettiin.
Restaurointiraportti tallentaa ja välittää tietoa toteutusratkaisuista
Kun työmaa oli valmis, arkkitehti laati korjaustyöstä työmaa- ja restaurointidokumentit. Nämä jälkidokumentit ovat arvokkaita rakennushistoriaselvityksen jatkeita ja tarjoavat yksityiskohtaista tietoa rakennuksen ylläpitäjille ja tuleville suunnittelijoille. Niiden avulla voi myöhemmin arvioida tehtyjä ratkaisuja. Kaupunginteatterista dokumenttien laatimiseen velvoitti asemakaava ja niille varattiin oma budjettinsa.
KORJAAMINEN ON VAATIVAA JA ONNISTUESSAAN PALKITSEVAA
Helsingin kaupunginteatteri on erittäin vaativa korjauskohde. Rakennuksella on tärkeä asema kaupunkikuvassa ja se on yksityiskohdiltaan rikas ja monipuolinen. Vaativuutta lisää se, että rakennusta arvostetaan suomalaisessa arkkitehtuurin historiassa ja teatteritaiteen kulttuurihistoriassa. Rakennuksen ensimmäinen peruskorjausprojekti ulottui koko rakennukseen.
Korjaussuunnittelun lähtökohta oli kaikkia alkuperäisiä ratkaisuja kunnioittava, niihin tutkivasti ja nöyrästi suhtautuva, mutta ei nöyristelevä. Uudet välttämättömät lisäykset ovat tätä aikaa, mutta ne ovat sukua alkuperäiseen arkkitehtuuriin materiaalin, muodon, tilan tai järjestysperiaatteen tasolla. Näin ympäristöön syntyy parhaassa tapauksessa hallittua ajallista kerrostuneisuutta, merkkejä eri vuosikymmenistä ja -sadoista.
045 HKT MM
Helsingin kaupunginteatteri lähiympäristöineen on vahva kokonaistaideteos. Sen arkkitehtuuri on poikkeuksellisen hyvin säilynyt ja se toimii alkuperäisessä teatterikäytössä. Suuriin muutoksiin ei ollut tarvetta. Vahva arkkitehtuuri antoi suuntaviitat uuden muotoiluun: peruskorjauksessa tehtyjen pienehköjen laajennusosienkin julkisivut toistavat niitä alkuperäisiä laatoitettuja seiniä, jotka jäivät laajennusten peittämiksi.
Korjausrakentamisen ongelmat vaativat arkkitehdilta näkemystä, sinnikkyyttä ja uskoa ratkaisun löytymiseen: julkisivulaattojen uudelleen valmistus onnistuu ja puhtaaksi lautamuottiin valetut alakatot voidaan säilyttää. Kaupunginteatterin vahva alkuperäinen arkkitehtuuri nosti luonnollisesti laatuvaatimuksen korkealle myös uusien ratkaisujen osalta.
Korjausprojekti myös opettaa tekijöitään. Tietotaitoa karttuu ja siirtyy 1960-luvun tekijöiltä nyt korjaustyön suunnittelijoille ja toteuttajille ja näiltä edelleen seuraavalle sukupolvelle. Vaativan työn onnistuessa kaikki työhön osallistuneet voivat tuntea ammattiylpeyttä.
Kirjoittaja Mikko Mannberg, arkkitehti SAFA TkL, oli LPR-arkkitehdit Oy:ssä mukana Helsingin kaupunginteatterin peruskorjauksen suunnittelutyöryhmässä, jonka pääsuunnittelija oli arkkitehti Pauno Narjus.
Artikkeli on julkaistu 2019.
HELSINGIN KAUPUNGINTEATTERIN SUUNNITTELIJAT 1960-LUVULLA JA 2010-LUVULLA
Arkkitehtuurikilpailu 1960–61, suunnittelu 1961–67, rakentamispäätös 1965, peruskiven muuraus 12.6.1965, rakentaminen toukokuusta 1965 syyskuuhun 1967, talon vihkiäiset 7.10.1967.
Kilpailuehdotus Arlecchino: Timo Penttilä ja Kari Virta, avustaja Pekka Ilveskoski.
Arkkitehtisuunnittelu: Arkkitehtitoimisto Timo Penttilä.
Rakennesuunnittelu: Insinööritoimisto Bertel Ekengren.
LVI-suunnittelu: Insinööritoimisto J. Saarto & Kumpp.
Sähkösuunnittelu: Insinööritoimisto Risto Mäenpää.
Akustinen suunnittelu: Insinööritoimisto P. Aarni & Co.
Maisemasuunnittelu: Helsingin kaupungin rakennusvirasto / Auli Hietakangas.
Pääurakoitsija: Rakennustoimisto Arvonen Oy, vastaava rakennusmestari Mauri Kivikoski.
Sähköurakoitsija: Sähkö Oy.
Laajennusosa Elsa, valmistui 1989.
Arkkitehtisuunnittelu: Arkkitehtitoimisto Oy Timo Penttilä – Kari Lind – Sakari Tilanterä.
Korjaustyö 2015–17.
Arkkitehtisuunnittelu: LPR-arkkitehdit Oy, pääsuunnittelija arkkitehti SAFA Pauno Narjus.
Maisemasuunnittelu: Maisemasuunnittelu Hemgård.
Rakennesuunnittelu: Insinööritoimisto Pontek Oy.
LVIA- ja sprinkler-suunnittelu: Optiplan Oy.
Sähkösuunnittelu: Rejlers Oy.
Julkisivuvalaistus: Granlund Oy.
Akustiikkasuunnittelu: Helimäki Akustikot Oy
Näyttämömekaniikan suunnittelu: Akumek Oy, TheatrePlan.
Esitystekniikan erityissuunnittelu: VAI-teatteri ky.
Esitystekniikan kaapeloinnin suunnittelu: Akukon Oy.
Palotekninen suunnittelu: L2 Paloturvallisuus Oy.
lukitussuunnittelu: Ekonia oy
Julkisivututkimukset: Vahanen Oy, Contesta Oy.
Julkisivujen kehitystyö: Otto Blümchen ja Pentik Oy.
Lämpiön kattopintojen ja ulkokatosten maalauskäsittelysuunnittelu: T:mi Modlari.
Korjauksen laajuus: 24 785 m2 (vanha osa), 645 m2 (laajennusosa)
Kustannukset: 67 miljoonaa euroa, josta 30% talotekniikka ja 15% teatteritekniikka.
LISÄTIETOA
Aikakausjulkaisut
Mäenpää, Risto 1967. Tekniikka näyttämöllä. Arkkitehti 1967: 10-11. Helsinki: Suomen Arkkitehtiliitto SAFA.
Norri, Marja-Riitta 1983. Taiteen ja Tilan ristiriita. Ralf Långbackan haastattelu. Arkkitehti 1983: 5-6. Helsinki: Suomen arkkitehtiliitto SAFA.
Penttilä, Timo 1981. Demokratian monumentit. Arkkitehti 1983:1. Helsinki: Suomen arkkitehtiliitto SAFA.
Painetut
Penttilä, Timo 2013. Oikeat ja väärät arkkitehdit. 2000 vuotta arkkitehtuuriteoriaa. toim. Kari Lind, Ulla Markelin ja Jorma Mukala. Helsinki: Gaudeamus.
Painamattomat
A-konsultit 2013. Helsingin kaupunginteatterin peruskorjaus. Hankesuunnitelma. Rakennustapaselostus.
A-konsultit 2013. Helsingin kaupunginteatterin peruskorjaus. Hankesuunnitelma. Rakennussuojeluperiaatteet.
Helsingin kaupunkisuunnitteluvirasto, Maija Lounamaa 2012. Helsingin kaupunginteatteri. Ympäristöhistoriallinen selvitys ja suojeluperiaatteet.
LPR-arkkitehdit Oy, Maisemasuunnittelu Hemgård & Insinööritoimisto Pontek oy 2015. Helsingin kaupunginteatteri. Peruskorjaus ja laajennus. Rakennusselostus
LPR-arkkitehdit Oy & Insinööritoimisto Pontek oy 2016. Helsingin kaupunginteatteri. Elsan julkisivukorjaus.
LPR-arkkitehdit Oy 2017. Helsingin kaupunginteatteri. Työmaadokumentointi 2015–17.
LPR-arkkitehdit Oy 2017. Helsingin kaupunginteatteri. Restaurointiraportti 2015–17.
LÄHTEET
Arkkitehti 1961:1 Kilpailuliite. Helsingin kaupunginteatterin suunnittelukilpailu. Helsinki: Suomen Arkkitehtiliitto SAFA.
DOCOMOMO 2017. Docomomo Suomi – Kohdevalikoima. toim. Sirkkaliisa Jetsonen, Petteri Kummala, Leena Makkonen & Jonas Malmberg, Helsinki: Docomomo Suomi Finland ry.
Koho, Timo 1991. Teatteriarkkitehtuurin merkitysarvot. Teatterirakentamisen suhde yhteiskunnan arvomaailmaan kaupungistuvassa Suomessa. Suomen muinaismuistoyhdistyksen aikakauskirja, 97. Helsinki: Suomen muinaismuistoyhdistys.
Korsberg, Hanna & Lylykangas, Kimmo 2007. Helsingin Kaupunginteatterin rakennus. Teoksessa Kansaa teatterissa. Helsingin Kaupunginteatterin historia. Toim. Pirkko Koski & Misa Palander. Helsinki: Like.
Penttilä, Timo 1967a. Helsingin kaupunginteatteri. Arkkitehti 1967: 10-11. Helsinki: Suomen Arkkitehtiliitto SAFA.
Penttilä, Timo 1967b. Teatterisuunnittelun lähtökohdista. Arkkitehti 1967: 10-11. Helsinki: Suomen Arkkitehtiliitto SAFA.
Asemakaavat
Helsingin kaupunkisuunnitteluvirasto: Asemakaava 19.8.2014, hyväksytty 25.2.2015, tullut voimaan 17.4.2015.
Painamattomat
Salonen, Kati & Schalin, Mona 2013. Helsingin kaupunginteatteri. Rakennushistorian selvitys ja inventointi. Kati Salonen ja Mona Schalin Arkkitehdit Oy.
Sähköpostit
Tekninen johtaja emeritus Keijo Kolin sähköposti arkkitehti Tiitta Itkoselle 15.10.2019.
VIITTEET
[1] RKY www.rky.fi
[2] Docomomo 2017.
[3] Asemakaavamuutos on kaupunginvaltuuston 15,2,2015 hyväksymä, ja se tuli voimaan 17.4.2015.
[4] Kilpailu järjestettiin 1960-61, alkuperäisosa valmistui 1967 ja laajennusosa Studio Elsa 1989.
[5] Arkkitehti 1 1961 Kilpailuliite, 3.
[6] Arkkitehti 1 1961 Kilpailuliite, 1.
[7] Penttilä 1967b, 25.
[8] Koho 1991, 15-17.
[9] Studiotila on intiimi, neutraali monitoimitila, jossa näyttämön ja katsomon asemaa ja suhdetta toisiinsa voidaan muuttaa edessä olevasta näyttämöstä katsomon täysin näyttämötilan ympäröivään areenateatteriin.
[10] Penttilä 1967b, 27.
[11] Penttilä 1967b, 27.
[12] Koho 1991, 15-17.
[13] Korsberg et al 2007, 63.
[14] Penttilä 1967a, 11.
[15] Penttilä oli työskennellyt Aarne Ervin ja tämä puolestaan Alvar Aallon toimistossa.
[16] Salonen et al 2013, 20-22.
[17] Salonen et al 2013, 24-26.
[18] Korsberg et al 2007, 65. Elsan ensi-illassa 1991 esitettiin Shakespearen Henrik IV.
[19] Tieto 15.10.2019 Helsingin Kaupunginteatterin tekniseltä johtajalta Keijo Kolilta, joka toimi korjausprojektissa projektinjohtajana.
[20] Arkkitehtitoimisto Kati Salonen ja Mona Schalin oy 2013.
[21] Salonen et al 2013, 251.
[22] Asemakaava 2015.
[23] Asemakaava 2015.
[24] Asemakaava 2015.
[25] LPR-arkkitehdit 2017.
_Oik.: Yleisön wc-tiloissa on syvänpunainen keraaminen sauvalaatoitus.
Kuvat: Martti I Jaatinen 1967, Timo Penttilän arkisto, Arkkitehtuurimuseo.
Kuvat: Martti I Jaatinen 1967, Timo Penttilän arkisto, Arkkitehtuurimuseo.
Sisällä yleisötilat ovat hienostuneita ja materiaalit ylellisiä: valkoinen marmori, pronssi, messinki, teak, villanukkamatto. Yksityiskohdat ovat runsaita: pääovissa valetut pronssivetimet, ikkunoissa pronssilistat, lämpiöiden seinissä kangasverhoilut, teak-pinnat ja -säleiköt, pilareissa laatoitukset, lattioissa marmori ja villanukkamatto, reikätiilestä lappeelleen muuratut tummanharmaat seinät ja yleisö-wc-tiloissa syvänpunainen keraaminen sauvalaatoitus, katsomoiden seinien ja tuolien kangasverhoilut.
Yleisötilojen vastakohtana henkilökunnan työtilat ovat yleisväriltään puhtaan valkoisia. Vihreät, keltaiset ja punaiset – Elsan puolella siniset – väliovet täplittävät käytävänäkymiä.
Edistyksellistä tekniikkaa ja kantavia rakenteita
Näyttämötornin kattoa, paloesirippua ja näyttämötekniikkaa kantaa piilossa esijännitetty 34,4 metriä pitkä teräsbetonikaari. Suuren näyttämön aukon ylittää 29 metriä pitkä teräsrakenne. Sisäänkäyntikatoksen 7-metrinen ulokepalkisto laskettiin aikanaan edistyksellisellä mitoittavalla tietokoneohjelmalla. [16] Lämpö-, vesi- ja ilmanvaihtotekniikka, akustiikka ja äänenvaimennus ratkaistiin huolella. Valaistustekniikka oli aikansa huippua – sähköurakoitsija tosin ajautui konkurssiin. [17]
Teatteri saa laajennuksen
Teatteria laajennettiin näyttelijä Elsa Turakaisen mukaan nimetyllä Studio Elsalla 1987-89.[18] Laajennuksen suunnitteli Arkkitehtitoimisto Oy Timo Penttilä – Kari Lind – Sakari Tilanterä. Alkuperäisrakennuksen takana olevassa Elsassa on toimisto- ja työpajatiloja sekä studionäyttämö (alun perin harjoitustila). Julkisivujen materiaaliperiaatteet periytyivät alkuperäisosasta, mutta Elsan julkisivut ovat laatoitettuja betonielementtejä.
PERUSKORJAUKSEN VÄLTTÄMÄTTÖMYYS – TIETOA SUUNNITTELUN POHJAKSI
Helsingin teatterisäätiö päätti teatterirakennusten peruskorjauksesta vuonna 2009.[19] Arkkitehtitoimisto A-Konsultit Oy laati 2012-13 hankesuunnitelman, joka sisälsi mm. rakennussuojeluperiaatteet. Teatteriteknisen tarveselvityksen mukaan näyttämö-, av-tekniikka-, valo-, video- ja äänijärjestelmät tuli ajanmukaistaa. Talotekniikka oli vanhentunut. Esteettömyysraportin ja Näkövammaisten keskusliiton ohjeet tuli huomioida.
Sisätilojen kunto vaihteli hyvästä välttävään. Paloturvallisuudessa oli puutteita. Keittiötiloja tuli ajanmukaistaa. Piha-alueiden valaistus ja pysäköintijärjestelyt vaativat toimenpiteitä. Alkuperäisen rakennuksen julkisivulaattoja oli rikki.
014 HKT MM
Henkilökunta ilmoitti kyselyssä haluavansa tiloilta monikäyttöisyyttä, lisää harjoitus- ja yleisön wc-tiloja, parempia it- ja infojärjestelmiä, kohennusta akustiikkaan, ääneneristykseen ja vaimennukseen, säädettävää ilmanvaihtoa ja sujuvampaa esteettömyyttä. Sisäilma- ja lämpötilaongelmat olivat ilmeisiä.
Kaupunginteatterin arkkitehtuuri on kestävää
Peruskorjausta varten laadittiin rakennushistoriaselvitys.[20] Selvitys kuvaa rakentamisen alkuperäisiä tavoitteita, suunnitelmia, toteutusta ja muutoksia. Siinä on nykytilanteen inventointi ja olennainen tieto poikkeuksellisen hyvin säilyneestä arkkitehtuurista: ”Alkuperäiset suunnitteluperiaatteet, toiminnalliset ratkaisut ja materiaalit ovat osoittautuneet kestäviksi.”[21] Myös Studio Elsan laajennus oli säilynyt 1980-luvun asussa.
Rakennukseen tehdyt muutokset olivat vähäisiä. Apu- ja työpajatiloja lisättiin 1980-luvun laajennuksessa. Päälämpiön esteettömyyttä oli parannettu mm. hissillä. Lämpiön tarjoilujärjestelyjä ja kokolattiamattoja sekä ruokalan ja toimistotilojen sisustusta oli uudistettu. Suuren näyttämön katsomotuolit ja osa Yrjö Kukkapuron kalusteista oli kunnostettu, mutta Maija Ruoslahden suunnittelemista messinkirunkoisista kalusteista vain muutama oli jäljellä. Kokolattiamatot ja katsomoiden kangasverhoilut oli uusittu. Vesikatot, räystäspellitykset ja ikkunat oli uusittu.
Puiston alkuperäisiä istutusperiaatteita ei ollut noudatettu. Puistoon 1970-luvulla istutetut havupuut peittivät näkymiä teatteriin ja teatterilta. Jalankulkijoiden sisääntulokäytävät olivat säilyneet hyvin. Terassimuuriin oli lisätty mainosvitriinejä.
Korjausta ohjaavat asemakaavamääräykset
Asemakaavamuutosta korjausprojektia varten valmisteltiin 2014, ja sen hyväksyi Helsingin kaupunginvaltuusto kesällä 2015. Kaavan valmistelussa viranomaiset painottivat kulttuurihistoriallisten ja arkkitehtonisten arvojen turvaamista sekä alueen yhtenäisen ja korkealaatuisen ilmeen säilyttämistä. Kaava velvoittaa liittämään rakennushistoriaselvityksen lupahakemukseen ja dokumentoimaan korjaus-, muutos- ja lisärakentamistyöt.
Asemakaava sisältää tarkkoja suojelumääräyksiä. Teatterirakennusta koskee määräys sr-1: ”Korjaamisen lähtökohtana tulee olla rakennuksen alkuperäisten rakenteiden ja rakennusosien, vesikaton, julkisivujen, lasiseinien ja ikkunoiden, ulko-ovien, valaisimien sekä niiden yksityiskohtien, materiaalien ja värien säilyttäminen. Yleisötiloissa korjaamisen lähtökohtana tulee olla tilarakenteen ja -hierarkian sekä alkuperäisten rakenteiden, materiaalien ja värien, kiintokalusteiden, valaistusratkaisujen sekä muiden yksityiskohtien säilyttäminen. Muissa tiloissa korjaamisen lähtökohtana tulee olla pääasiallisen tilajaon, rakenneratkaisujen, värisymboliikan, kiintokalusteiden ja betonisten alakattojen säilyttäminen. Mikäli alkuperäisiä rakennusosia joudutaan pakottavista syistä uusimaan, se tulee tehdä rakennuksen arvoon ja ominaispiirteisiin hyvin soveltuvalla tavalla. Lähtökohtana tulee olla rakennuksen alkuperäisten rakennusosien säilyttäminen. Tarvittavat muutokset ja uudisosat tulee suunnitella siten, että ne muodostavat alkuperäistä arkkitehtuuria tasapainoisesti täydentävän kerrostuman.”[22]
Myös kaupunkikuvaan vaikuttavia määräyksiä annettiin: ”Vesikatolle saadaan sijoittaa enintään 0.7 metriä leikkauskohdan ylittäviä teknisiä laitteita. Teknisten laitteiden ja rakennelmien suunnitteluun ja kaupunkikuvalliseen ilmeeseen tulee kiinnittää erityistä huomiota.”[23]
Ympäristöä koskee suojelumääräys sr-2: ”Puistoalueet muodostavat kaupunginteatterin kanssa saumattoman kokonaisuuden, joka tulee säilyttää ja hoitaa niin, että sen kulttuurihistoriallinen, puutarhataiteellinen ja kaupunkikuvallinen arvo säilyy. [...] Ympäristön hoito- ja kunnostussuunnitelmat tulee tehdä alkuperäisten suunnitelmien hengessä ja suojeluperiaatteita noudattaen. Arvokas puusto tulee säilyttää ja tarvittaessa uudistaa niin, että alueen puutarhataiteellinen ja kaupunkikuvallinen arvo ja merkitys säilyvät. Puuston hoitosuunnitelmat tulee tehdä laadittujen suojeluperiaatteiden pohjalta. Kunnostus- ja uudistustoimenpiteissä tulee ottaa huomioon säilytettävät ja palautettavat näkymät. [...] Kohteiden kunnostaminen ja uusiminen tulee tehdä alkuperäisin tai alkuperäistä vastaavin materiaalein. uusien kalusteiden, varusteiden, rakenteiden ja rakennelmien tulee sopia kulttuurihistoriallisesti ja kaupunkikuvallisesti arvokkaan alueen ominaispiirteisiin.” [24]
KORJAUSSUUNNITTELUSSA TARVITAAN KATTAVAT TAUSTATIEDOT
Peruskorjauksen toteutussuunnittelun sai tarjouskilpailun perusteella LPR-arkkitehdit Oy. Urakka-aineisto valmistui 2015 alussa ja työmaa käynnistyi kesäkuussa. Korjattu teatterirakennus luovutettiin käyttäjälle 1.5.2017. Peruskorjauksen toteutti projektinjohtourakkana SRV Rakennus Oy. Urakoitsijalistassa on yli 130 yritystä.
Toteutussuunnittelun tavoitteena oli teatterirakennuksen ja ympäröivän lähialueen arvot huomioiva ja ne säilyttävä laaja kunnostustyö. Suunnittelun pohjaksi tarvitaan kattavasti faktaa. Alkuperäissuunnitelmat ja -selostukset skannattiin projektipankkiin. Arkkitehtuurimuseon kokoelmista löytyi Penttilän arkisto, mm. alkuperäismateriaaleja sisältävä mappi.
Toteutussuunnittelua ohjasivat rakennushistoria-, inventointi- ja säilyneisyysselvitykset ja ympäristöhistoriallinen selvitys suojeluperiaatteineen, hankesuunnitelma, asemakaavamuutos suojelumääräyksineen ja kaupunginmuseon antamat lausunnot kaavaehdotuksesta.
Tekniset tutkimukset käsittivät kuntoselvityksen ja tutkimuksia haitta-aineista, julkisivujen kunnosta, maanvastaisten rakenteiden pintakosteudesta ja sisäväreistä. Epäselviä kohtia selvitettiin avaamalla työmaalla rakenteita.
015 HKT MM
Tietomallinnus on korvaamaton työväline
Tärkeä suunnitteluväline on digitaalinen tekniikka: pistepilvikuvaus, 3D-tietomallinnus ja havainnekuvat. Teatterirakennus laserkeilattiin ennen purkutöitä, mutta toteutuneen tilanteen selvittämiseksi korjausrakennettavat kohteet pitäisi laserkeilata myös purkutöiden jälkeen. Läpi toteutusvaiheen jatkuva tietomallinnus maksaa itsensä takaisin: se on korvaamaton talotekniikan yhteensovituksessa ja tietomallia voidaan hyödyntää työmaalla.
Yhteinen näkemys mahdollistaa sujuvan toteutuksen - tavoitteet havainnollistetaan piirustuksiin
Suunnitteluratkaisut laadittiin yhteistyössä käyttäjien, Helsingin kaupunginmuseon sekä viranomaisten (kaupunkikuvaneuvottelukunta, rakennusvalvonta) kanssa. Näin varmistettiin yhteinen näkemys tavoitteista, suunnitteluratkaisujen sopivuudesta ja edesautettiin sujuvaa toteutusvaihetta.
Rakennussuojelullisten tavoitteiden selkiyttämiseksi ja projektin sujuvuuden varmistamiseksi rakennusvalvontavirasto, kaupunginmuseo ja arkkitehti sopivat hankekuvauksen ja suojelutavoitekaavioiden laatimisesta rakennuslupavaiheessa.
016 HKT MM
017 HKT MM
Suojelutavoitekaavioissa tilat jaettiin kolmeen arvoluokkaan ja suojeluvyöhykkeeseen:
- punaisella luokka 1, yleisön päätilat, joissa alkuperäisen arkkitehtuurin ominaispiirteet olivat säilyneet ja jotka tultaisiin edelleen säilyttämään muuttumattomina;
- keltaisella luokka 2, henkilökunnan tilat, joissa alkuperäisen arkkitehtuurin ominaispiirteet olivat pääosin säilyneet ja jossa ne säilytettäisiin edelleen;
- sinisellä luokka 3, tekniset työtilat ja talotekniset tilat, joissa alkuperäinen tilajako oli säilynyt ja säilytettäisiin edelleen.
Neljänteen, arvottamattomaan luokkaan kuuluivat tulevat laajennusosat.
Julkisivut jaettiin kahteen luokkaan:
- punaisella viivalla luokka J1, alkuperäiset julkisivut, jotka olivat säilyneet ja jotka kunnostettaisiin;
- keltaisella viivalla luokka J2, laajennusosien julkisivut, joissa käytettäisiin alkuperäisiä detaljeja ja materiaaleja.
018 HKT MM
Puisto, ts. teatterin tontti ja siihen välittömästi liittyvät Tarja Halosen puiston osat, jaettiin kahteen luokkaan:
- punaisella luokka 1, alkuperäisiä istutusperiaatteita ei ollut noudatettu, mutta tilanne korjattaisiin niiden mukaisiksi;
- keltaisella luokka 2, paikoitusalueet mitoitettaisiin nykymitoituksin.
Myös purkutoimenpiteet esitettiin piirustuksina jo rakennuslupavaiheessa.
Suojauspiirustuksissa ohjeistettiin mm. väliaikaisten pölytiiviiden seinien ja kattojen rakentamisesta, osoitettiin kunnostettavat tai varastoitavat kalusteet ja esitettiin vanerilevyin suojattavat sisälasitukset, jalopuuverhoukset ja arvokkaat kaiteet sekä muovein suojattavat betonialakattopinnat ja reikätiili- ja kangasseinäverhoukset.
019 HKT MM
020 HKT MM
TYÖMAAVAIHE – PEREHDYTYSTÄ, PALAVEREJA, ARKKITEHDIN LÄSNÄOLOA
Edellytys peruskorjausprojektin onnistumiselle on motivoitunut, innostunut ja asiaan perehdytetty suunnittelijakunta ja työnjohto. Jotta kaikille suunnittelijoille ja päätoteuttajille syntyisi käsitys tavoitteista, piti pääsuunnittelija työmaan alkuvaiheessa esityksen teatterirakennuksen ja ympäristön arvoista, suojeltavista asioista ja suojaamisesta. Tarkoitus oli luoda yhteinen ymmärrys kohteen arvoista ja näkemys tulevasta tehtävästä.
Perehdyttämisen tulisi jatkua läpi rakentamisvaiheen: työmaalle tulisi nimetä vastuuhenkilö, joka huolehtisi vaihtuvien aliurakoitsijoiden ja henkilöstön perehdyttämisestä ja suojauksista. Sitä varten kannattaa laatia powerpoint-esitys työmaan käyttöön. Sen voisi soveltuvin osin sisällyttää työmaan verkkoperehdyttämiseen, turvallisuustehtävien rinnalle. Tehtävien läpäiseminen on työmaalle pääsyn edellytys.
Projektiarkkitehti oli työmaalla mahdollisimman paljon. Korjauskohteessa kaikkea ei voida suunnitella etukäteen ja yllättävät tilanteet on ratkaistava nopeasti. On osattava ennakoida miten ratkaisut vaikuttavat eteenpäin.
35 museopalaveria – säännöllinen seuranta ja mallitoteutukset
Helsingin kaupunginmuseon kanssa suunnitelmia tarkasteltiin rakennussuojelun näkökulmasta: pohdittiin toteutus- ja korjausvaihtoehtoja, tarkasteltiin väri-, materiaali- ja toteutusmalleja ja testattiin valaistusratkaisuja. Olennaisimpia tiloja, pintoja ja yksityiskohtia katselmoitiin ennen purkutöitä, niiden aikana ja vielä toteutusvaiheessa. Suojeluarvojen toteutumista valvoi lisäksi rakennusvalvonta. Seurantakokouksia ja katselmuksia järjestettiin säännöllisesti. Joka toinen viikko pidettyjä ”museopalavereita” kertyi 35.
Kaikkien päädetaljien toteutus tutkittiin ja testattiin työmallien avulla. Esimerkiksi yhdestä pukuhuoneesta tehtiin mallihuone, katsomotuoleja varten kudottiin kangasnäytteitä, julkisivulaatoista puristettiin erilaatuisia koekappaleita ja julkisivupesujakin testattiin.
SUUNNITTELU JA TOTEUTUS ALKUPERÄISEN EHDOILLA
Korjaukset, muutokset ja täydennykset suunniteltiin siten, että ne eivät erotu alkuperäisestä arkkitehtuurista. Haasteellisimmat olivat julkisivujen, yleisötilojen ja katsomoiden korjaukset, jotka toteutettiin hienovaraisesti alkuperäisen arkkitehtuurin ehdoilla ja sille alistuen.[25] Tilaratkaisut säilytettiin pääosin alkuperäisessä muodossaan ja toiminnalliset muutokset olivat vähäisiä.
Vähäiset uudisosat (harjoitussali, kabinetit, keittiön sisäänkäynti, jätehuone) tehtiin osaksi kokonaisuutta kaupunkikuvallisesti näkymättömiin ja niiden julkisivut toteutettiin laajennusten peittoon jääneiden originaalijulkisivujen mukaisina. Räystäslinjat pidettiin entisellään, vaikka noudatettiinkin nykyisiä eristysvaatimuksia; lämmöneristeenä käytettiin siis aiempaa tehokkaampia materiaaleja.
Arkkitehti salapoliisina – vanhan mallin mukaisia uusia julkisivulaattoja valmistetaan
Vanhan osan julkisivuissa vaihdettiin vaurioituneita laattoja. Säilytettävät laatat pestiin mallipesujen mukaan ruiskuttamalla ensin hapan pesuaine ja neutraloimalla emäksisellä pesuaineella. Pinttyneimmät laatat harjattiin. Kaikki saumat uusittiin.
Uusien julkisivulaattojen valmistus vaati salapoliisityötä. Laatat ensimmäisenä työnään Arabian tehtaalla vuonna 1965 suunnitellut insinööri oli jo eläkkeellä, mutta konsultoi nyt eläketyönään uusien laattojen valmistusta. Pentikin keramiikkatehtaaseen Posiolle rakennettiin julkisivulaattatehdas. Oikean muodon, koon, värisävyn, pinnan tasaisuuden ja rosoisuuden, pilkutuksen ja lasituksen varmistamiseksi tehtiin lukuisia materiaali-, lasitus- ja polttokokeita. Muoteilla laattoja valmistettaessa massan karkeus aiheutti ongelmia, mutta suulakepuristuksessa massa tiivistyi vaadittavaan pakkasenkestävyyteen.
Kaikkiaan perus-, nokka- ja pilarilaattoja valmistettiin 27 751 kappaletta. Työn jälkeen julkisivulaattatehdas purettiin ja varastoitiin; Pentikillä on nyt valmius valmistaa julkisivulaattoja mihin tahansa kohteeseen.
022 HKT MM
023 HKT MM
024 HKT MM
025 HKT MM
026 HKT MM
Julkisivulasit säilytetään
Lämpiön lasijulkisivu kunnostettiin suojelumääräysten velvoittamina edelleen yksilasisena, ehjät lasitukset ja patinoituneet pronssilistoitukset säilyttäen. Suorien lasiosien välisten nurkkataitteiden polykarbonaattilevyt uusittiin ultravioletti-suojatulla polykarbonaatilla. Lasiseinän rakenne oli rakennusfysikaalisesti puutteellinen. Rakenne tiivistettiin sekä vedenpitävyyden että höyrytiiveyden osalta. Lämpövuoto pitänee kastepisteen rakenteiden ulkopuolella.
027 HKT MM
Sisätilat säilyvät ennallaan
Sisätilojen kunnostuksen lähtökohtana oli tilarakenteen ja -hierarkian sekä alkuperäisten rakenteiden, materiaalien, valaistuksen, kiintokalustuksen, värityksen ja yksityiskohtien säilyttäminen. Korjaustoimet ja uudet elementit ovat täälläkin alisteisia alkuperäisille ratkaisuille. Modernin arkkitehtuurin korjauksessa tyypillinen vaikeus on säilyttää alkuperäiset yksityiskohdat, ja silti parantaa niiden teknisiä ominaisuuksia. Uusittavissa materiaaleissa haettiin alkuperäistä tasoa, laatua ja tunnelmaa vastaavia materiaaleja ja värejä. Erityisesti suojeluvyöhykkeellä 1 toimenpiteet harkittiin huolellisesti.
Suuri lämpiö
Lämpiön marmori- ja yleisö-wc-tilojen laattalattioita lukuun ottamatta kaikki lattiapinnat uusittiin. Kokolattiamatot vaihdettiin alkuperäisen värisiin ruskeisiin mattoihin. Puhdistettuihin marmorilattioihin ja kokolattiamattoalueelle lisättiin esteettömyyttä ajatellen messinkisiä kulunohjausraitoja ja huomionastoja.
Päälämpiön alakattopinnat uusittiin, koska pinta ei ollut riittävän vahva tartunta maalaukselle. Päälämpiön (osittain vahvikekankailla vahvistetut) rappauspinnat olivat paikoitellen alkaneet irrota: kattopintaa oli huoltomaalattu taajaan ja maalikerroksia oli runsaasti. Kattopinta tutkittiin kopoalueiden löytämiseksi. Rappauspintaa uusittiin ja korjattiin laajoilta alueilta ja koko katto maalattiin uudelleen silikaattimaaleilla. Kattopintojen korjauksen haasteeksi nousi niiden laajuus.
028 HKT MM
029 HKT MM
030 HKT MM
Pieni lämpiö
Pienen lämpiön reikätiiliseinät purettiin tiilet säilyttäen teknisten asennusten ja vaimennusmateriaalien uusimista varten. Portaikko ja lämpiö saavat jälleen luonnonvaloa, kun aiemmin suljetut yläikkunat avattiin. Lämpiön ja katsomon välinen, koko tilan levyinen ääntä eristävä ja palo-osastoiva nosto-ovi uusittiin.
031 HKT MM
Kalusteet entisöitiin
Kalusteita kunnostettiin mittavasti. Yrjö Kukkapuron punaisella nahalla verhottuja alkuperäisiä Junior- ja Karuselli-tuoleja kunnostettiin henkilöstötiloihin. Kalustusta täydennettiin uusilla moderneilla tuoleilla, sohvilla, pöydillä ja naulakoilla. Niiden väritys noudattaa alkuperäisiä periaatteita: valkoista, hieman mustaa ja puhtaita, vahvoja värejä.
Varastosta löytyneet Maija Ruoslahden suunnittelemat messinkirukoiset kalusteet entisöitiin yleisötiloihin. Niiden nahkaosat korvattiin kestävällä tummanruskealla hybridinahalla. Samaa nahkaa vaaleanruskeana käytettiin yleisö-wc-tilojen sohvissa.
032 HKT MM
033 HKT MM
Näyttämöt ja katsomot
Suuren katsomon väreissä poikettiin hieman alkuperäisistä näyttelijöiden ja ohjaajien toivomuksesta: samettiverhoiluihin valittiin musta ja seinäkankaisiin punaisen ja mustan langan kudonnainen. Kokolattiamaton väriksi valittiin alkuperäinen tumma burgundinpunainen; jalkalistamatot ovat alkuperäisiä. Parven turvallisuutta kohennettiin lisäämällä matalaan etureunan kaiteeseen messinkiset reelinkikäsijohteet. Pienen katsomon tuolikangas kudottiin alkuperäisen väriseksi käyttäen mustanruskeaa ja siniturkoosia lankaa.
Kaikkien näyttämöiden esitystekniikka uusittiin ja akustiikkaa parannettiin diffuusiopintoja lisäämällä. Suuren ja pienen näyttämön alusrakenteet (pyöröt) uusittiin, ja suuren näyttämön näyttämöaukkoa kavennettiin ja orkesterimonttua syvennettiin. Marjatta Metsovaaran suunnittelema ”Colibri”-pilviesirippu (pinta-ala yli 400 m2, paino 200 kg) konservoitiin.
034 HKT MM
035 HKT MM
Henkilöstö- ja pukutilat
Henkilöstötiloissa säilytettiin tilajako ja -hierarkia, rakenteet, kiintokalusteet ja väliovien alkuperäinen värikoodaus. Työhuoneiden siniset, punaiset, keltaiset ja vihreät ovet säilytettiin. Suojelumääräysten mukaisesti pukuhuoneiden kalustus säilytettiin ja kunnostettiin: kaappeja parannettiin ilmastoinnilla, valaisimilla ja uusilla varusteilla. Taipuneiden kimpilevyjen oikaiseminen oli haastava puusepän taidonnäyte.
036 HKT MM
037 HKT MM
Talotekniikan yhteensovittamisesta vastaa pääsuunnittelija
Pääosa peruskorjaustyöstä keskittyi talo- ja näyttämötekniikan uudistamiseen, akustiikan parantamiseen sekä tilojen ilmanvaihdon ja valaistustason tehostamiseen. Talotekniikan yhteensovittaminen, joka on pääsuunnittelijan vastuulla, on aina onnistuneen lopputuloksen ja rakennussuojelun kannalta ensiarvoista, jotta tekniset vedot saadaan kätkettyä sekä sisätiloissa että julkisivuissa tai jotta löydetään niille vaihtoehtoisia reittejä.
038 HKT MM
039 HKT MM
Vaativat alakatot
Yksityiskohdista henkilöstötilojen käytävien puhtaaksi lautamuottiin valettujen betonialakattojen korjaus ja uuden ilmanvaihtotekniikan sijoittaminen alakaton yläpuolelle oli yksi vaativimmista, säilyttämisen kannalta oleellisimmista tehtävistä. Alakattojen otsapinnat purettiin kanavien asentamiseksi, mutta joissakin työhuoneissa jouduttiin sahaamaan avauskaistat, jotka asennusten jälkeen levytettiin umpeen ja viimeisteltiin muottilaudoituksen suuntaisella rimoituksella. Asennuksen aikana betonialakattojen reunat tuettiin ripustamalla ne välipohjista. Lopuksi otsapinnat verhottiin saranoiduin akustorapatuin levyin.
040 HKT MM
041 HKT MM
Valo on osa rakennussuojelua
Valaistuksen laatua harkittiin suojelunäkökulmasta. Koska rakennuksen arkkitehtuuri pyrkii häivyttämään sisä- ja ulkotilan välisen rajapinnan, tavoiteltiin sisä- ja ulkovalaistuksessa värilämpötilan yhdenmukaisuutta. Kaikissa yleisötiloissa ja sisätiloihin liittyvissä ulkotiloissa värilämpötilaksi haettiin 3000 K, henkilökunta-alueella 4000 K.
Julkisivuvalaistus nostaa esiin rakennuksen arkkitehtuurin pimeään aikaan ja kaukomaisemassa: kaupunginteatteri, Finlandia-talo ja Oopperatalo muodostavat Töölönlahden kulttuurirakennusten kokonaisuuden. Näyttämötorni valaistaan horisontaaliosia voimakkaammin, ja valojen suuntaus haettiin korostamaan klinkkeripinnan elävyyttä ja näyttämötornin muodon taitteisuutta. Julkisivuvalaistus on säädettävissä: perussävy on valkoinen (värilämpötila 3000 K), mutta led-optiikka sallii myös värillisten valojen käytön erikoistilanteissa.
042 HKT MM
Kaksituhatta suojeltua valaisinta
Sisätilojen alkuperäiset valaisimet kunnostettiin ja uudistettiin sähköteknisesti. Lisäksi valikoimaa täydennettiin uusilla valaisimilla lämpiöissä, suuressa katsomossa, pienen lämpiön vaatesäilytyksessä ja ruokalassa. Toimistohuoneisiin tuotiin nykyaikaiset led-mikroprismavalaisimet. Valolähteet vaihdettiin led-tekniikkaan, ja kuhunkin tilaan voidaan nyt hakea sopiva valaistustaso. Fasetti Oy kunnosti ja sähköisti lähes kaksituhatta suojeltua valaisinta.
1960-luvun teatteripiha ja puisto kuntoon
Teatterin pihojen ja Tarja Halosen puiston kokonaisuuteen palautettiin 1960-luvun ilme. Luonnonkivimuureja korjattiin ja istutusalueet kunnostettiin Maisemasuunnittelu Hemgårdin ohjeistuksen mukaisesti. Näkymien tielle kasvaneet 1970-luvulla istutetut kuuset kaadettiin. Kolmannen kerroksen kabinettilaajennuksen eteen alkuperäisen rakennuksen ja muurin rajaamaan katveeseen istutettiin viehättävä kukkaketo. Ulko-alueille sijoitettiin myös yksinkertaisia uusia ulkopenkkejä, opasteita ja valaisimia sekä villiviini-istutusaltaita estämään pääsyä kattoalueelle.
043 HKT MM
Esteettömyys ulottuu paikoitusalueilta katsomopaikoille asti
Esteettömyyttä parannettiin paikoitusalueilta aina istuinpaikoille asti. Paikoitukseen lisättiin maksuttomia liikuntaesteisen autopaikkoja ja saattoliikenne pääsee sisäänkäyntien äärelle. Ulkokiveyksen tasoeroja poistettiin, olemassa ollutta eteläjulkisivun luiskaa pidennettiin, ja sisäänkäyntien yhteen oveen asennettiin ovitutka-automatiikka. Hisseistä kolme uudistettiin esteettömiksi ja varustettiin automaattiovin sekä kerroskohonumeroin ja -tekstein. Lämpiöiden lattioihin asennettiin ohjauslistoja ja lattiatunnisteita. Valaistusta tehostettiin erityisesti kokolattiamattoalueilla. Askelmien etureunoihin lisättiin katsomossa led-valaistus, ja penkkiriveihin asennettiin kohonumeroin rivi- ja paikkatunnisteet.
044 HKT MM
Pyörätuolipaikkoja on suuressa katsomossa kahdeksan ja pienessä neljä. Studio Elsan permannolle voi osoittaa pyörätuolipaikkoja tarpeen mukaan. Suuressa katsomossa induktiosilmukka-asennukset kattavat kaikki katsomopaikat, pienessä osan paikoista.
Kuunteluympäristön parantamiseksi rima- ja tekstiilipintojen taustamateriaalit uusittiin absorptioltaan aiempaa paremmiksi. Esteettömiä wc-tiloja lisättiin yleisötiloihin. Pääkulkureittien ovia levennettiin ja huomiota kiinnitettiin irtokalusteiden sijoitteluun. Opasteita selkiytettiin ja täydennettiin.
Restaurointiraportti tallentaa ja välittää tietoa toteutusratkaisuista
Kun työmaa oli valmis, arkkitehti laati korjaustyöstä työmaa- ja restaurointidokumentit. Nämä jälkidokumentit ovat arvokkaita rakennushistoriaselvityksen jatkeita ja tarjoavat yksityiskohtaista tietoa rakennuksen ylläpitäjille ja tuleville suunnittelijoille. Niiden avulla voi myöhemmin arvioida tehtyjä ratkaisuja. Kaupunginteatterista dokumenttien laatimiseen velvoitti asemakaava ja niille varattiin oma budjettinsa.
KORJAAMINEN ON VAATIVAA JA ONNISTUESSAAN PALKITSEVAA
Helsingin kaupunginteatteri on erittäin vaativa korjauskohde. Rakennuksella on tärkeä asema kaupunkikuvassa ja se on yksityiskohdiltaan rikas ja monipuolinen. Vaativuutta lisää se, että rakennusta arvostetaan suomalaisessa arkkitehtuurin historiassa ja teatteritaiteen kulttuurihistoriassa. Rakennuksen ensimmäinen peruskorjausprojekti ulottui koko rakennukseen.
Korjaussuunnittelun lähtökohta oli kaikkia alkuperäisiä ratkaisuja kunnioittava, niihin tutkivasti ja nöyrästi suhtautuva, mutta ei nöyristelevä. Uudet välttämättömät lisäykset ovat tätä aikaa, mutta ne ovat sukua alkuperäiseen arkkitehtuuriin materiaalin, muodon, tilan tai järjestysperiaatteen tasolla. Näin ympäristöön syntyy parhaassa tapauksessa hallittua ajallista kerrostuneisuutta, merkkejä eri vuosikymmenistä ja -sadoista.
045 HKT MM
Helsingin kaupunginteatteri lähiympäristöineen on vahva kokonaistaideteos. Sen arkkitehtuuri on poikkeuksellisen hyvin säilynyt ja se toimii alkuperäisessä teatterikäytössä. Suuriin muutoksiin ei ollut tarvetta. Vahva arkkitehtuuri antoi suuntaviitat uuden muotoiluun: peruskorjauksessa tehtyjen pienehköjen laajennusosienkin julkisivut toistavat niitä alkuperäisiä laatoitettuja seiniä, jotka jäivät laajennusten peittämiksi.
Korjausrakentamisen ongelmat vaativat arkkitehdilta näkemystä, sinnikkyyttä ja uskoa ratkaisun löytymiseen: julkisivulaattojen uudelleen valmistus onnistuu ja puhtaaksi lautamuottiin valetut alakatot voidaan säilyttää. Kaupunginteatterin vahva alkuperäinen arkkitehtuuri nosti luonnollisesti laatuvaatimuksen korkealle myös uusien ratkaisujen osalta.
Korjausprojekti myös opettaa tekijöitään. Tietotaitoa karttuu ja siirtyy 1960-luvun tekijöiltä nyt korjaustyön suunnittelijoille ja toteuttajille ja näiltä edelleen seuraavalle sukupolvelle. Vaativan työn onnistuessa kaikki työhön osallistuneet voivat tuntea ammattiylpeyttä.
Kirjoittaja Mikko Mannberg, arkkitehti SAFA TkL, oli LPR-arkkitehdit Oy:ssä mukana Helsingin kaupunginteatterin peruskorjauksen suunnittelutyöryhmässä, jonka pääsuunnittelija oli arkkitehti Pauno Narjus.
Artikkeli on julkaistu 2019.
HELSINGIN KAUPUNGINTEATTERIN SUUNNITTELIJAT 1960-LUVULLA JA 2010-LUVULLA
Arkkitehtuurikilpailu 1960–61, suunnittelu 1961–67, rakentamispäätös 1965, peruskiven muuraus 12.6.1965, rakentaminen toukokuusta 1965 syyskuuhun 1967, talon vihkiäiset 7.10.1967.
Kilpailuehdotus Arlecchino: Timo Penttilä ja Kari Virta, avustaja Pekka Ilveskoski.
Arkkitehtisuunnittelu: Arkkitehtitoimisto Timo Penttilä.
Rakennesuunnittelu: Insinööritoimisto Bertel Ekengren.
LVI-suunnittelu: Insinööritoimisto J. Saarto & Kumpp.
Sähkösuunnittelu: Insinööritoimisto Risto Mäenpää.
Akustinen suunnittelu: Insinööritoimisto P. Aarni & Co.
Maisemasuunnittelu: Helsingin kaupungin rakennusvirasto / Auli Hietakangas.
Pääurakoitsija: Rakennustoimisto Arvonen Oy, vastaava rakennusmestari Mauri Kivikoski.
Sähköurakoitsija: Sähkö Oy.
Laajennusosa Elsa, valmistui 1989.
Arkkitehtisuunnittelu: Arkkitehtitoimisto Oy Timo Penttilä – Kari Lind – Sakari Tilanterä.
Korjaustyö 2015–17.
Arkkitehtisuunnittelu: LPR-arkkitehdit Oy, pääsuunnittelija arkkitehti SAFA Pauno Narjus.
Maisemasuunnittelu: Maisemasuunnittelu Hemgård.
Rakennesuunnittelu: Insinööritoimisto Pontek Oy.
LVIA- ja sprinkler-suunnittelu: Optiplan Oy.
Sähkösuunnittelu: Rejlers Oy.
Julkisivuvalaistus: Granlund Oy.
Akustiikkasuunnittelu: Helimäki Akustikot Oy
Näyttämömekaniikan suunnittelu: Akumek Oy, TheatrePlan.
Esitystekniikan erityissuunnittelu: VAI-teatteri ky.
Esitystekniikan kaapeloinnin suunnittelu: Akukon Oy.
Palotekninen suunnittelu: L2 Paloturvallisuus Oy.
lukitussuunnittelu: Ekonia oy
Julkisivututkimukset: Vahanen Oy, Contesta Oy.
Julkisivujen kehitystyö: Otto Blümchen ja Pentik Oy.
Lämpiön kattopintojen ja ulkokatosten maalauskäsittelysuunnittelu: T:mi Modlari.
Korjauksen laajuus: 24 785 m2 (vanha osa), 645 m2 (laajennusosa)
Kustannukset: 67 miljoonaa euroa, josta 30% talotekniikka ja 15% teatteritekniikka.
LISÄTIETOA
Aikakausjulkaisut
Mäenpää, Risto 1967. Tekniikka näyttämöllä. Arkkitehti 1967: 10-11. Helsinki: Suomen Arkkitehtiliitto SAFA.
Norri, Marja-Riitta 1983. Taiteen ja Tilan ristiriita. Ralf Långbackan haastattelu. Arkkitehti 1983: 5-6. Helsinki: Suomen arkkitehtiliitto SAFA.
Penttilä, Timo 1981. Demokratian monumentit. Arkkitehti 1983:1. Helsinki: Suomen arkkitehtiliitto SAFA.
Painetut
Penttilä, Timo 2013. Oikeat ja väärät arkkitehdit. 2000 vuotta arkkitehtuuriteoriaa. toim. Kari Lind, Ulla Markelin ja Jorma Mukala. Helsinki: Gaudeamus.
Painamattomat
A-konsultit 2013. Helsingin kaupunginteatterin peruskorjaus. Hankesuunnitelma. Rakennustapaselostus.
A-konsultit 2013. Helsingin kaupunginteatterin peruskorjaus. Hankesuunnitelma. Rakennussuojeluperiaatteet.
Helsingin kaupunkisuunnitteluvirasto, Maija Lounamaa 2012. Helsingin kaupunginteatteri. Ympäristöhistoriallinen selvitys ja suojeluperiaatteet.
LPR-arkkitehdit Oy, Maisemasuunnittelu Hemgård & Insinööritoimisto Pontek oy 2015. Helsingin kaupunginteatteri. Peruskorjaus ja laajennus. Rakennusselostus
LPR-arkkitehdit Oy & Insinööritoimisto Pontek oy 2016. Helsingin kaupunginteatteri. Elsan julkisivukorjaus.
LPR-arkkitehdit Oy 2017. Helsingin kaupunginteatteri. Työmaadokumentointi 2015–17.
LPR-arkkitehdit Oy 2017. Helsingin kaupunginteatteri. Restaurointiraportti 2015–17.
LÄHTEET
Arkkitehti 1961:1 Kilpailuliite. Helsingin kaupunginteatterin suunnittelukilpailu. Helsinki: Suomen Arkkitehtiliitto SAFA.
DOCOMOMO 2017. Docomomo Suomi – Kohdevalikoima. toim. Sirkkaliisa Jetsonen, Petteri Kummala, Leena Makkonen & Jonas Malmberg, Helsinki: Docomomo Suomi Finland ry.
Koho, Timo 1991. Teatteriarkkitehtuurin merkitysarvot. Teatterirakentamisen suhde yhteiskunnan arvomaailmaan kaupungistuvassa Suomessa. Suomen muinaismuistoyhdistyksen aikakauskirja, 97. Helsinki: Suomen muinaismuistoyhdistys.
Korsberg, Hanna & Lylykangas, Kimmo 2007. Helsingin Kaupunginteatterin rakennus. Teoksessa Kansaa teatterissa. Helsingin Kaupunginteatterin historia. Toim. Pirkko Koski & Misa Palander. Helsinki: Like.
Penttilä, Timo 1967a. Helsingin kaupunginteatteri. Arkkitehti 1967: 10-11. Helsinki: Suomen Arkkitehtiliitto SAFA.
Penttilä, Timo 1967b. Teatterisuunnittelun lähtökohdista. Arkkitehti 1967: 10-11. Helsinki: Suomen Arkkitehtiliitto SAFA.
Asemakaavat
Helsingin kaupunkisuunnitteluvirasto: Asemakaava 19.8.2014, hyväksytty 25.2.2015, tullut voimaan 17.4.2015.
Painamattomat
Salonen, Kati & Schalin, Mona 2013. Helsingin kaupunginteatteri. Rakennushistorian selvitys ja inventointi. Kati Salonen ja Mona Schalin Arkkitehdit Oy.
Sähköpostit
Tekninen johtaja emeritus Keijo Kolin sähköposti arkkitehti Tiitta Itkoselle 15.10.2019.
VIITTEET
[1] RKY www.rky.fi
[2] Docomomo 2017.
[3] Asemakaavamuutos on kaupunginvaltuuston 15,2,2015 hyväksymä, ja se tuli voimaan 17.4.2015.
[4] Kilpailu järjestettiin 1960-61, alkuperäisosa valmistui 1967 ja laajennusosa Studio Elsa 1989.
[5] Arkkitehti 1 1961 Kilpailuliite, 3.
[6] Arkkitehti 1 1961 Kilpailuliite, 1.
[7] Penttilä 1967b, 25.
[8] Koho 1991, 15-17.
[9] Studiotila on intiimi, neutraali monitoimitila, jossa näyttämön ja katsomon asemaa ja suhdetta toisiinsa voidaan muuttaa edessä olevasta näyttämöstä katsomon täysin näyttämötilan ympäröivään areenateatteriin.
[10] Penttilä 1967b, 27.
[11] Penttilä 1967b, 27.
[12] Koho 1991, 15-17.
[13] Korsberg et al 2007, 63.
[14] Penttilä 1967a, 11.
[15] Penttilä oli työskennellyt Aarne Ervin ja tämä puolestaan Alvar Aallon toimistossa.
[16] Salonen et al 2013, 20-22.
[17] Salonen et al 2013, 24-26.
[18] Korsberg et al 2007, 65. Elsan ensi-illassa 1991 esitettiin Shakespearen Henrik IV.
[19] Tieto 15.10.2019 Helsingin Kaupunginteatterin tekniseltä johtajalta Keijo Kolilta, joka toimi korjausprojektissa projektinjohtajana.
[20] Arkkitehtitoimisto Kati Salonen ja Mona Schalin oy 2013.
[21] Salonen et al 2013, 251.
[22] Asemakaava 2015.
[23] Asemakaava 2015.
[24] Asemakaava 2015.
[25] LPR-arkkitehdit 2017.
Henkilökunta ilmoitti kyselyssä haluavansa tiloilta monikäyttöisyyttä, lisää harjoitus- ja yleisön wc-tiloja, parempia it- ja infojärjestelmiä, kohennusta akustiikkaan, ääneneristykseen ja vaimennukseen, säädettävää ilmanvaihtoa ja sujuvampaa esteettömyyttä. Sisäilma- ja lämpötilaongelmat olivat ilmeisiä.
Kaupunginteatterin arkkitehtuuri on kestävää
Peruskorjausta varten laadittiin rakennushistoriaselvitys.[20] Selvitys kuvaa rakentamisen alkuperäisiä tavoitteita, suunnitelmia, toteutusta ja muutoksia. Siinä on nykytilanteen inventointi ja olennainen tieto poikkeuksellisen hyvin säilyneestä arkkitehtuurista: ”Alkuperäiset suunnitteluperiaatteet, toiminnalliset ratkaisut ja materiaalit ovat osoittautuneet kestäviksi.”[21] Myös Studio Elsan laajennus oli säilynyt 1980-luvun asussa.
Rakennukseen tehdyt muutokset olivat vähäisiä. Apu- ja työpajatiloja lisättiin 1980-luvun laajennuksessa. Päälämpiön esteettömyyttä oli parannettu mm. hissillä. Lämpiön tarjoilujärjestelyjä ja kokolattiamattoja sekä ruokalan ja toimistotilojen sisustusta oli uudistettu. Suuren näyttämön katsomotuolit ja osa Yrjö Kukkapuron kalusteista oli kunnostettu, mutta Maija Ruoslahden suunnittelemista messinkirunkoisista kalusteista vain muutama oli jäljellä. Kokolattiamatot ja katsomoiden kangasverhoilut oli uusittu. Vesikatot, räystäspellitykset ja ikkunat oli uusittu.
Puiston alkuperäisiä istutusperiaatteita ei ollut noudatettu. Puistoon 1970-luvulla istutetut havupuut peittivät näkymiä teatteriin ja teatterilta. Jalankulkijoiden sisääntulokäytävät olivat säilyneet hyvin. Terassimuuriin oli lisätty mainosvitriinejä.
Korjausta ohjaavat asemakaavamääräykset
Asemakaavamuutosta korjausprojektia varten valmisteltiin 2014, ja sen hyväksyi Helsingin kaupunginvaltuusto kesällä 2015. Kaavan valmistelussa viranomaiset painottivat kulttuurihistoriallisten ja arkkitehtonisten arvojen turvaamista sekä alueen yhtenäisen ja korkealaatuisen ilmeen säilyttämistä. Kaava velvoittaa liittämään rakennushistoriaselvityksen lupahakemukseen ja dokumentoimaan korjaus-, muutos- ja lisärakentamistyöt.
Asemakaava sisältää tarkkoja suojelumääräyksiä. Teatterirakennusta koskee määräys sr-1: ”Korjaamisen lähtökohtana tulee olla rakennuksen alkuperäisten rakenteiden ja rakennusosien, vesikaton, julkisivujen, lasiseinien ja ikkunoiden, ulko-ovien, valaisimien sekä niiden yksityiskohtien, materiaalien ja värien säilyttäminen. Yleisötiloissa korjaamisen lähtökohtana tulee olla tilarakenteen ja -hierarkian sekä alkuperäisten rakenteiden, materiaalien ja värien, kiintokalusteiden, valaistusratkaisujen sekä muiden yksityiskohtien säilyttäminen. Muissa tiloissa korjaamisen lähtökohtana tulee olla pääasiallisen tilajaon, rakenneratkaisujen, värisymboliikan, kiintokalusteiden ja betonisten alakattojen säilyttäminen. Mikäli alkuperäisiä rakennusosia joudutaan pakottavista syistä uusimaan, se tulee tehdä rakennuksen arvoon ja ominaispiirteisiin hyvin soveltuvalla tavalla. Lähtökohtana tulee olla rakennuksen alkuperäisten rakennusosien säilyttäminen. Tarvittavat muutokset ja uudisosat tulee suunnitella siten, että ne muodostavat alkuperäistä arkkitehtuuria tasapainoisesti täydentävän kerrostuman.”[22]
Myös kaupunkikuvaan vaikuttavia määräyksiä annettiin: ”Vesikatolle saadaan sijoittaa enintään 0.7 metriä leikkauskohdan ylittäviä teknisiä laitteita. Teknisten laitteiden ja rakennelmien suunnitteluun ja kaupunkikuvalliseen ilmeeseen tulee kiinnittää erityistä huomiota.”[23]
Ympäristöä koskee suojelumääräys sr-2: ”Puistoalueet muodostavat kaupunginteatterin kanssa saumattoman kokonaisuuden, joka tulee säilyttää ja hoitaa niin, että sen kulttuurihistoriallinen, puutarhataiteellinen ja kaupunkikuvallinen arvo säilyy. [...] Ympäristön hoito- ja kunnostussuunnitelmat tulee tehdä alkuperäisten suunnitelmien hengessä ja suojeluperiaatteita noudattaen. Arvokas puusto tulee säilyttää ja tarvittaessa uudistaa niin, että alueen puutarhataiteellinen ja kaupunkikuvallinen arvo ja merkitys säilyvät. Puuston hoitosuunnitelmat tulee tehdä laadittujen suojeluperiaatteiden pohjalta. Kunnostus- ja uudistustoimenpiteissä tulee ottaa huomioon säilytettävät ja palautettavat näkymät. [...] Kohteiden kunnostaminen ja uusiminen tulee tehdä alkuperäisin tai alkuperäistä vastaavin materiaalein. uusien kalusteiden, varusteiden, rakenteiden ja rakennelmien tulee sopia kulttuurihistoriallisesti ja kaupunkikuvallisesti arvokkaan alueen ominaispiirteisiin.” [24]
KORJAUSSUUNNITTELUSSA TARVITAAN KATTAVAT TAUSTATIEDOT
Peruskorjauksen toteutussuunnittelun sai tarjouskilpailun perusteella LPR-arkkitehdit Oy. Urakka-aineisto valmistui 2015 alussa ja työmaa käynnistyi kesäkuussa. Korjattu teatterirakennus luovutettiin käyttäjälle 1.5.2017. Peruskorjauksen toteutti projektinjohtourakkana SRV Rakennus Oy. Urakoitsijalistassa on yli 130 yritystä.
Toteutussuunnittelun tavoitteena oli teatterirakennuksen ja ympäröivän lähialueen arvot huomioiva ja ne säilyttävä laaja kunnostustyö. Suunnittelun pohjaksi tarvitaan kattavasti faktaa. Alkuperäissuunnitelmat ja -selostukset skannattiin projektipankkiin. Arkkitehtuurimuseon kokoelmista löytyi Penttilän arkisto, mm. alkuperäismateriaaleja sisältävä mappi.
Toteutussuunnittelua ohjasivat rakennushistoria-, inventointi- ja säilyneisyysselvitykset ja ympäristöhistoriallinen selvitys suojeluperiaatteineen, hankesuunnitelma, asemakaavamuutos suojelumääräyksineen ja kaupunginmuseon antamat lausunnot kaavaehdotuksesta.
Tekniset tutkimukset käsittivät kuntoselvityksen ja tutkimuksia haitta-aineista, julkisivujen kunnosta, maanvastaisten rakenteiden pintakosteudesta ja sisäväreistä. Epäselviä kohtia selvitettiin avaamalla työmaalla rakenteita.
Tietomallinnus on korvaamaton työväline
Tärkeä suunnitteluväline on digitaalinen tekniikka: pistepilvikuvaus, 3D-tietomallinnus ja havainnekuvat. Teatterirakennus laserkeilattiin ennen purkutöitä, mutta toteutuneen tilanteen selvittämiseksi korjausrakennettavat kohteet pitäisi laserkeilata myös purkutöiden jälkeen. Läpi toteutusvaiheen jatkuva tietomallinnus maksaa itsensä takaisin: se on korvaamaton talotekniikan yhteensovituksessa ja tietomallia voidaan hyödyntää työmaalla.
Yhteinen näkemys mahdollistaa sujuvan toteutuksen - tavoitteet havainnollistetaan piirustuksiin
Suunnitteluratkaisut laadittiin yhteistyössä käyttäjien, Helsingin kaupunginmuseon sekä viranomaisten (kaupunkikuvaneuvottelukunta, rakennusvalvonta) kanssa. Näin varmistettiin yhteinen näkemys tavoitteista, suunnitteluratkaisujen sopivuudesta ja edesautettiin sujuvaa toteutusvaihetta.
Rakennussuojelullisten tavoitteiden selkiyttämiseksi ja projektin sujuvuuden varmistamiseksi rakennusvalvontavirasto, kaupunginmuseo ja arkkitehti sopivat hankekuvauksen ja suojelutavoitekaavioiden laatimisesta rakennuslupavaiheessa.

Suojelutavoitekaavioissa tilat jaettiin kolmeen arvoluokkaan ja suojeluvyöhykkeeseen:
- punaisella luokka 1, yleisön päätilat, joissa alkuperäisen arkkitehtuurin ominaispiirteet olivat säilyneet ja jotka tultaisiin edelleen säilyttämään muuttumattomina;
- keltaisella luokka 2, henkilökunnan tilat, joissa alkuperäisen arkkitehtuurin ominaispiirteet olivat pääosin säilyneet ja jossa ne säilytettäisiin edelleen;
- sinisellä luokka 3, tekniset työtilat ja talotekniset tilat, joissa alkuperäinen tilajako oli säilynyt ja säilytettäisiin edelleen.
Neljänteen, arvottamattomaan luokkaan kuuluivat tulevat laajennusosat.
Julkisivut jaettiin kahteen luokkaan:
- punaisella viivalla luokka J1, alkuperäiset julkisivut, jotka olivat säilyneet ja jotka kunnostettaisiin;
- keltaisella viivalla luokka J2, laajennusosien julkisivut, joissa käytettäisiin alkuperäisiä detaljeja ja materiaaleja.
018 HKT MM
Puisto, ts. teatterin tontti ja siihen välittömästi liittyvät Tarja Halosen puiston osat, jaettiin kahteen luokkaan:
- punaisella luokka 1, alkuperäisiä istutusperiaatteita ei ollut noudatettu, mutta tilanne korjattaisiin niiden mukaisiksi;
- keltaisella luokka 2, paikoitusalueet mitoitettaisiin nykymitoituksin.
Myös purkutoimenpiteet esitettiin piirustuksina jo rakennuslupavaiheessa.
Suojauspiirustuksissa ohjeistettiin mm. väliaikaisten pölytiiviiden seinien ja kattojen rakentamisesta, osoitettiin kunnostettavat tai varastoitavat kalusteet ja esitettiin vanerilevyin suojattavat sisälasitukset, jalopuuverhoukset ja arvokkaat kaiteet sekä muovein suojattavat betonialakattopinnat ja reikätiili- ja kangasseinäverhoukset.
019 HKT MM
020 HKT MM
TYÖMAAVAIHE – PEREHDYTYSTÄ, PALAVEREJA, ARKKITEHDIN LÄSNÄOLOA
Edellytys peruskorjausprojektin onnistumiselle on motivoitunut, innostunut ja asiaan perehdytetty suunnittelijakunta ja työnjohto. Jotta kaikille suunnittelijoille ja päätoteuttajille syntyisi käsitys tavoitteista, piti pääsuunnittelija työmaan alkuvaiheessa esityksen teatterirakennuksen ja ympäristön arvoista, suojeltavista asioista ja suojaamisesta. Tarkoitus oli luoda yhteinen ymmärrys kohteen arvoista ja näkemys tulevasta tehtävästä.
Perehdyttämisen tulisi jatkua läpi rakentamisvaiheen: työmaalle tulisi nimetä vastuuhenkilö, joka huolehtisi vaihtuvien aliurakoitsijoiden ja henkilöstön perehdyttämisestä ja suojauksista. Sitä varten kannattaa laatia powerpoint-esitys työmaan käyttöön. Sen voisi soveltuvin osin sisällyttää työmaan verkkoperehdyttämiseen, turvallisuustehtävien rinnalle. Tehtävien läpäiseminen on työmaalle pääsyn edellytys.
Projektiarkkitehti oli työmaalla mahdollisimman paljon. Korjauskohteessa kaikkea ei voida suunnitella etukäteen ja yllättävät tilanteet on ratkaistava nopeasti. On osattava ennakoida miten ratkaisut vaikuttavat eteenpäin.
35 museopalaveria – säännöllinen seuranta ja mallitoteutukset
Helsingin kaupunginmuseon kanssa suunnitelmia tarkasteltiin rakennussuojelun näkökulmasta: pohdittiin toteutus- ja korjausvaihtoehtoja, tarkasteltiin väri-, materiaali- ja toteutusmalleja ja testattiin valaistusratkaisuja. Olennaisimpia tiloja, pintoja ja yksityiskohtia katselmoitiin ennen purkutöitä, niiden aikana ja vielä toteutusvaiheessa. Suojeluarvojen toteutumista valvoi lisäksi rakennusvalvonta. Seurantakokouksia ja katselmuksia järjestettiin säännöllisesti. Joka toinen viikko pidettyjä ”museopalavereita” kertyi 35.
Kaikkien päädetaljien toteutus tutkittiin ja testattiin työmallien avulla. Esimerkiksi yhdestä pukuhuoneesta tehtiin mallihuone, katsomotuoleja varten kudottiin kangasnäytteitä, julkisivulaatoista puristettiin erilaatuisia koekappaleita ja julkisivupesujakin testattiin.
SUUNNITTELU JA TOTEUTUS ALKUPERÄISEN EHDOILLA
Korjaukset, muutokset ja täydennykset suunniteltiin siten, että ne eivät erotu alkuperäisestä arkkitehtuurista. Haasteellisimmat olivat julkisivujen, yleisötilojen ja katsomoiden korjaukset, jotka toteutettiin hienovaraisesti alkuperäisen arkkitehtuurin ehdoilla ja sille alistuen.[25] Tilaratkaisut säilytettiin pääosin alkuperäisessä muodossaan ja toiminnalliset muutokset olivat vähäisiä.
Vähäiset uudisosat (harjoitussali, kabinetit, keittiön sisäänkäynti, jätehuone) tehtiin osaksi kokonaisuutta kaupunkikuvallisesti näkymättömiin ja niiden julkisivut toteutettiin laajennusten peittoon jääneiden originaalijulkisivujen mukaisina. Räystäslinjat pidettiin entisellään, vaikka noudatettiinkin nykyisiä eristysvaatimuksia; lämmöneristeenä käytettiin siis aiempaa tehokkaampia materiaaleja.
Arkkitehti salapoliisina – vanhan mallin mukaisia uusia julkisivulaattoja valmistetaan
Vanhan osan julkisivuissa vaihdettiin vaurioituneita laattoja. Säilytettävät laatat pestiin mallipesujen mukaan ruiskuttamalla ensin hapan pesuaine ja neutraloimalla emäksisellä pesuaineella. Pinttyneimmät laatat harjattiin. Kaikki saumat uusittiin.
Uusien julkisivulaattojen valmistus vaati salapoliisityötä. Laatat ensimmäisenä työnään Arabian tehtaalla vuonna 1965 suunnitellut insinööri oli jo eläkkeellä, mutta konsultoi nyt eläketyönään uusien laattojen valmistusta. Pentikin keramiikkatehtaaseen Posiolle rakennettiin julkisivulaattatehdas. Oikean muodon, koon, värisävyn, pinnan tasaisuuden ja rosoisuuden, pilkutuksen ja lasituksen varmistamiseksi tehtiin lukuisia materiaali-, lasitus- ja polttokokeita. Muoteilla laattoja valmistettaessa massan karkeus aiheutti ongelmia, mutta suulakepuristuksessa massa tiivistyi vaadittavaan pakkasenkestävyyteen.
Kaikkiaan perus-, nokka- ja pilarilaattoja valmistettiin 27 751 kappaletta. Työn jälkeen julkisivulaattatehdas purettiin ja varastoitiin; Pentikillä on nyt valmius valmistaa julkisivulaattoja mihin tahansa kohteeseen.
022 HKT MM
023 HKT MM
024 HKT MM
025 HKT MM
026 HKT MM
Julkisivulasit säilytetään
Lämpiön lasijulkisivu kunnostettiin suojelumääräysten velvoittamina edelleen yksilasisena, ehjät lasitukset ja patinoituneet pronssilistoitukset säilyttäen. Suorien lasiosien välisten nurkkataitteiden polykarbonaattilevyt uusittiin ultravioletti-suojatulla polykarbonaatilla. Lasiseinän rakenne oli rakennusfysikaalisesti puutteellinen. Rakenne tiivistettiin sekä vedenpitävyyden että höyrytiiveyden osalta. Lämpövuoto pitänee kastepisteen rakenteiden ulkopuolella.
027 HKT MM
Sisätilat säilyvät ennallaan
Sisätilojen kunnostuksen lähtökohtana oli tilarakenteen ja -hierarkian sekä alkuperäisten rakenteiden, materiaalien, valaistuksen, kiintokalustuksen, värityksen ja yksityiskohtien säilyttäminen. Korjaustoimet ja uudet elementit ovat täälläkin alisteisia alkuperäisille ratkaisuille. Modernin arkkitehtuurin korjauksessa tyypillinen vaikeus on säilyttää alkuperäiset yksityiskohdat, ja silti parantaa niiden teknisiä ominaisuuksia. Uusittavissa materiaaleissa haettiin alkuperäistä tasoa, laatua ja tunnelmaa vastaavia materiaaleja ja värejä. Erityisesti suojeluvyöhykkeellä 1 toimenpiteet harkittiin huolellisesti.
Suuri lämpiö
Lämpiön marmori- ja yleisö-wc-tilojen laattalattioita lukuun ottamatta kaikki lattiapinnat uusittiin. Kokolattiamatot vaihdettiin alkuperäisen värisiin ruskeisiin mattoihin. Puhdistettuihin marmorilattioihin ja kokolattiamattoalueelle lisättiin esteettömyyttä ajatellen messinkisiä kulunohjausraitoja ja huomionastoja.
Päälämpiön alakattopinnat uusittiin, koska pinta ei ollut riittävän vahva tartunta maalaukselle. Päälämpiön (osittain vahvikekankailla vahvistetut) rappauspinnat olivat paikoitellen alkaneet irrota: kattopintaa oli huoltomaalattu taajaan ja maalikerroksia oli runsaasti. Kattopinta tutkittiin kopoalueiden löytämiseksi. Rappauspintaa uusittiin ja korjattiin laajoilta alueilta ja koko katto maalattiin uudelleen silikaattimaaleilla. Kattopintojen korjauksen haasteeksi nousi niiden laajuus.
028 HKT MM
029 HKT MM
030 HKT MM
Pieni lämpiö
Pienen lämpiön reikätiiliseinät purettiin tiilet säilyttäen teknisten asennusten ja vaimennusmateriaalien uusimista varten. Portaikko ja lämpiö saavat jälleen luonnonvaloa, kun aiemmin suljetut yläikkunat avattiin. Lämpiön ja katsomon välinen, koko tilan levyinen ääntä eristävä ja palo-osastoiva nosto-ovi uusittiin.
031 HKT MM
Kalusteet entisöitiin
Kalusteita kunnostettiin mittavasti. Yrjö Kukkapuron punaisella nahalla verhottuja alkuperäisiä Junior- ja Karuselli-tuoleja kunnostettiin henkilöstötiloihin. Kalustusta täydennettiin uusilla moderneilla tuoleilla, sohvilla, pöydillä ja naulakoilla. Niiden väritys noudattaa alkuperäisiä periaatteita: valkoista, hieman mustaa ja puhtaita, vahvoja värejä.
Varastosta löytyneet Maija Ruoslahden suunnittelemat messinkirukoiset kalusteet entisöitiin yleisötiloihin. Niiden nahkaosat korvattiin kestävällä tummanruskealla hybridinahalla. Samaa nahkaa vaaleanruskeana käytettiin yleisö-wc-tilojen sohvissa.
032 HKT MM
033 HKT MM
Näyttämöt ja katsomot
Suuren katsomon väreissä poikettiin hieman alkuperäisistä näyttelijöiden ja ohjaajien toivomuksesta: samettiverhoiluihin valittiin musta ja seinäkankaisiin punaisen ja mustan langan kudonnainen. Kokolattiamaton väriksi valittiin alkuperäinen tumma burgundinpunainen; jalkalistamatot ovat alkuperäisiä. Parven turvallisuutta kohennettiin lisäämällä matalaan etureunan kaiteeseen messinkiset reelinkikäsijohteet. Pienen katsomon tuolikangas kudottiin alkuperäisen väriseksi käyttäen mustanruskeaa ja siniturkoosia lankaa.
Kaikkien näyttämöiden esitystekniikka uusittiin ja akustiikkaa parannettiin diffuusiopintoja lisäämällä. Suuren ja pienen näyttämön alusrakenteet (pyöröt) uusittiin, ja suuren näyttämön näyttämöaukkoa kavennettiin ja orkesterimonttua syvennettiin. Marjatta Metsovaaran suunnittelema ”Colibri”-pilviesirippu (pinta-ala yli 400 m2, paino 200 kg) konservoitiin.
034 HKT MM
035 HKT MM
Henkilöstö- ja pukutilat
Henkilöstötiloissa säilytettiin tilajako ja -hierarkia, rakenteet, kiintokalusteet ja väliovien alkuperäinen värikoodaus. Työhuoneiden siniset, punaiset, keltaiset ja vihreät ovet säilytettiin. Suojelumääräysten mukaisesti pukuhuoneiden kalustus säilytettiin ja kunnostettiin: kaappeja parannettiin ilmastoinnilla, valaisimilla ja uusilla varusteilla. Taipuneiden kimpilevyjen oikaiseminen oli haastava puusepän taidonnäyte.
036 HKT MM
037 HKT MM
Talotekniikan yhteensovittamisesta vastaa pääsuunnittelija
Pääosa peruskorjaustyöstä keskittyi talo- ja näyttämötekniikan uudistamiseen, akustiikan parantamiseen sekä tilojen ilmanvaihdon ja valaistustason tehostamiseen. Talotekniikan yhteensovittaminen, joka on pääsuunnittelijan vastuulla, on aina onnistuneen lopputuloksen ja rakennussuojelun kannalta ensiarvoista, jotta tekniset vedot saadaan kätkettyä sekä sisätiloissa että julkisivuissa tai jotta löydetään niille vaihtoehtoisia reittejä.
038 HKT MM
039 HKT MM
Vaativat alakatot
Yksityiskohdista henkilöstötilojen käytävien puhtaaksi lautamuottiin valettujen betonialakattojen korjaus ja uuden ilmanvaihtotekniikan sijoittaminen alakaton yläpuolelle oli yksi vaativimmista, säilyttämisen kannalta oleellisimmista tehtävistä. Alakattojen otsapinnat purettiin kanavien asentamiseksi, mutta joissakin työhuoneissa jouduttiin sahaamaan avauskaistat, jotka asennusten jälkeen levytettiin umpeen ja viimeisteltiin muottilaudoituksen suuntaisella rimoituksella. Asennuksen aikana betonialakattojen reunat tuettiin ripustamalla ne välipohjista. Lopuksi otsapinnat verhottiin saranoiduin akustorapatuin levyin.
040 HKT MM
041 HKT MM
Valo on osa rakennussuojelua
Valaistuksen laatua harkittiin suojelunäkökulmasta. Koska rakennuksen arkkitehtuuri pyrkii häivyttämään sisä- ja ulkotilan välisen rajapinnan, tavoiteltiin sisä- ja ulkovalaistuksessa värilämpötilan yhdenmukaisuutta. Kaikissa yleisötiloissa ja sisätiloihin liittyvissä ulkotiloissa värilämpötilaksi haettiin 3000 K, henkilökunta-alueella 4000 K.
Julkisivuvalaistus nostaa esiin rakennuksen arkkitehtuurin pimeään aikaan ja kaukomaisemassa: kaupunginteatteri, Finlandia-talo ja Oopperatalo muodostavat Töölönlahden kulttuurirakennusten kokonaisuuden. Näyttämötorni valaistaan horisontaaliosia voimakkaammin, ja valojen suuntaus haettiin korostamaan klinkkeripinnan elävyyttä ja näyttämötornin muodon taitteisuutta. Julkisivuvalaistus on säädettävissä: perussävy on valkoinen (värilämpötila 3000 K), mutta led-optiikka sallii myös värillisten valojen käytön erikoistilanteissa.
042 HKT MM
Kaksituhatta suojeltua valaisinta
Sisätilojen alkuperäiset valaisimet kunnostettiin ja uudistettiin sähköteknisesti. Lisäksi valikoimaa täydennettiin uusilla valaisimilla lämpiöissä, suuressa katsomossa, pienen lämpiön vaatesäilytyksessä ja ruokalassa. Toimistohuoneisiin tuotiin nykyaikaiset led-mikroprismavalaisimet. Valolähteet vaihdettiin led-tekniikkaan, ja kuhunkin tilaan voidaan nyt hakea sopiva valaistustaso. Fasetti Oy kunnosti ja sähköisti lähes kaksituhatta suojeltua valaisinta.
1960-luvun teatteripiha ja puisto kuntoon
Teatterin pihojen ja Tarja Halosen puiston kokonaisuuteen palautettiin 1960-luvun ilme. Luonnonkivimuureja korjattiin ja istutusalueet kunnostettiin Maisemasuunnittelu Hemgårdin ohjeistuksen mukaisesti. Näkymien tielle kasvaneet 1970-luvulla istutetut kuuset kaadettiin. Kolmannen kerroksen kabinettilaajennuksen eteen alkuperäisen rakennuksen ja muurin rajaamaan katveeseen istutettiin viehättävä kukkaketo. Ulko-alueille sijoitettiin myös yksinkertaisia uusia ulkopenkkejä, opasteita ja valaisimia sekä villiviini-istutusaltaita estämään pääsyä kattoalueelle.
043 HKT MM
Esteettömyys ulottuu paikoitusalueilta katsomopaikoille asti
Esteettömyyttä parannettiin paikoitusalueilta aina istuinpaikoille asti. Paikoitukseen lisättiin maksuttomia liikuntaesteisen autopaikkoja ja saattoliikenne pääsee sisäänkäyntien äärelle. Ulkokiveyksen tasoeroja poistettiin, olemassa ollutta eteläjulkisivun luiskaa pidennettiin, ja sisäänkäyntien yhteen oveen asennettiin ovitutka-automatiikka. Hisseistä kolme uudistettiin esteettömiksi ja varustettiin automaattiovin sekä kerroskohonumeroin ja -tekstein. Lämpiöiden lattioihin asennettiin ohjauslistoja ja lattiatunnisteita. Valaistusta tehostettiin erityisesti kokolattiamattoalueilla. Askelmien etureunoihin lisättiin katsomossa led-valaistus, ja penkkiriveihin asennettiin kohonumeroin rivi- ja paikkatunnisteet.
044 HKT MM
Pyörätuolipaikkoja on suuressa katsomossa kahdeksan ja pienessä neljä. Studio Elsan permannolle voi osoittaa pyörätuolipaikkoja tarpeen mukaan. Suuressa katsomossa induktiosilmukka-asennukset kattavat kaikki katsomopaikat, pienessä osan paikoista.
Kuunteluympäristön parantamiseksi rima- ja tekstiilipintojen taustamateriaalit uusittiin absorptioltaan aiempaa paremmiksi. Esteettömiä wc-tiloja lisättiin yleisötiloihin. Pääkulkureittien ovia levennettiin ja huomiota kiinnitettiin irtokalusteiden sijoitteluun. Opasteita selkiytettiin ja täydennettiin.
Restaurointiraportti tallentaa ja välittää tietoa toteutusratkaisuista
Kun työmaa oli valmis, arkkitehti laati korjaustyöstä työmaa- ja restaurointidokumentit. Nämä jälkidokumentit ovat arvokkaita rakennushistoriaselvityksen jatkeita ja tarjoavat yksityiskohtaista tietoa rakennuksen ylläpitäjille ja tuleville suunnittelijoille. Niiden avulla voi myöhemmin arvioida tehtyjä ratkaisuja. Kaupunginteatterista dokumenttien laatimiseen velvoitti asemakaava ja niille varattiin oma budjettinsa.
KORJAAMINEN ON VAATIVAA JA ONNISTUESSAAN PALKITSEVAA
Helsingin kaupunginteatteri on erittäin vaativa korjauskohde. Rakennuksella on tärkeä asema kaupunkikuvassa ja se on yksityiskohdiltaan rikas ja monipuolinen. Vaativuutta lisää se, että rakennusta arvostetaan suomalaisessa arkkitehtuurin historiassa ja teatteritaiteen kulttuurihistoriassa. Rakennuksen ensimmäinen peruskorjausprojekti ulottui koko rakennukseen.
Korjaussuunnittelun lähtökohta oli kaikkia alkuperäisiä ratkaisuja kunnioittava, niihin tutkivasti ja nöyrästi suhtautuva, mutta ei nöyristelevä. Uudet välttämättömät lisäykset ovat tätä aikaa, mutta ne ovat sukua alkuperäiseen arkkitehtuuriin materiaalin, muodon, tilan tai järjestysperiaatteen tasolla. Näin ympäristöön syntyy parhaassa tapauksessa hallittua ajallista kerrostuneisuutta, merkkejä eri vuosikymmenistä ja -sadoista.
045 HKT MM
Helsingin kaupunginteatteri lähiympäristöineen on vahva kokonaistaideteos. Sen arkkitehtuuri on poikkeuksellisen hyvin säilynyt ja se toimii alkuperäisessä teatterikäytössä. Suuriin muutoksiin ei ollut tarvetta. Vahva arkkitehtuuri antoi suuntaviitat uuden muotoiluun: peruskorjauksessa tehtyjen pienehköjen laajennusosienkin julkisivut toistavat niitä alkuperäisiä laatoitettuja seiniä, jotka jäivät laajennusten peittämiksi.
Korjausrakentamisen ongelmat vaativat arkkitehdilta näkemystä, sinnikkyyttä ja uskoa ratkaisun löytymiseen: julkisivulaattojen uudelleen valmistus onnistuu ja puhtaaksi lautamuottiin valetut alakatot voidaan säilyttää. Kaupunginteatterin vahva alkuperäinen arkkitehtuuri nosti luonnollisesti laatuvaatimuksen korkealle myös uusien ratkaisujen osalta.
Korjausprojekti myös opettaa tekijöitään. Tietotaitoa karttuu ja siirtyy 1960-luvun tekijöiltä nyt korjaustyön suunnittelijoille ja toteuttajille ja näiltä edelleen seuraavalle sukupolvelle. Vaativan työn onnistuessa kaikki työhön osallistuneet voivat tuntea ammattiylpeyttä.
Kirjoittaja Mikko Mannberg, arkkitehti SAFA TkL, oli LPR-arkkitehdit Oy:ssä mukana Helsingin kaupunginteatterin peruskorjauksen suunnittelutyöryhmässä, jonka pääsuunnittelija oli arkkitehti Pauno Narjus.
Artikkeli on julkaistu 2019.
HELSINGIN KAUPUNGINTEATTERIN SUUNNITTELIJAT 1960-LUVULLA JA 2010-LUVULLA
Arkkitehtuurikilpailu 1960–61, suunnittelu 1961–67, rakentamispäätös 1965, peruskiven muuraus 12.6.1965, rakentaminen toukokuusta 1965 syyskuuhun 1967, talon vihkiäiset 7.10.1967.
Kilpailuehdotus Arlecchino: Timo Penttilä ja Kari Virta, avustaja Pekka Ilveskoski.
Arkkitehtisuunnittelu: Arkkitehtitoimisto Timo Penttilä.
Rakennesuunnittelu: Insinööritoimisto Bertel Ekengren.
LVI-suunnittelu: Insinööritoimisto J. Saarto & Kumpp.
Sähkösuunnittelu: Insinööritoimisto Risto Mäenpää.
Akustinen suunnittelu: Insinööritoimisto P. Aarni & Co.
Maisemasuunnittelu: Helsingin kaupungin rakennusvirasto / Auli Hietakangas.
Pääurakoitsija: Rakennustoimisto Arvonen Oy, vastaava rakennusmestari Mauri Kivikoski.
Sähköurakoitsija: Sähkö Oy.
Laajennusosa Elsa, valmistui 1989.
Arkkitehtisuunnittelu: Arkkitehtitoimisto Oy Timo Penttilä – Kari Lind – Sakari Tilanterä.
Korjaustyö 2015–17.
Arkkitehtisuunnittelu: LPR-arkkitehdit Oy, pääsuunnittelija arkkitehti SAFA Pauno Narjus.
Maisemasuunnittelu: Maisemasuunnittelu Hemgård.
Rakennesuunnittelu: Insinööritoimisto Pontek Oy.
LVIA- ja sprinkler-suunnittelu: Optiplan Oy.
Sähkösuunnittelu: Rejlers Oy.
Julkisivuvalaistus: Granlund Oy.
Akustiikkasuunnittelu: Helimäki Akustikot Oy
Näyttämömekaniikan suunnittelu: Akumek Oy, TheatrePlan.
Esitystekniikan erityissuunnittelu: VAI-teatteri ky.
Esitystekniikan kaapeloinnin suunnittelu: Akukon Oy.
Palotekninen suunnittelu: L2 Paloturvallisuus Oy.
lukitussuunnittelu: Ekonia oy
Julkisivututkimukset: Vahanen Oy, Contesta Oy.
Julkisivujen kehitystyö: Otto Blümchen ja Pentik Oy.
Lämpiön kattopintojen ja ulkokatosten maalauskäsittelysuunnittelu: T:mi Modlari.
Korjauksen laajuus: 24 785 m2 (vanha osa), 645 m2 (laajennusosa)
Kustannukset: 67 miljoonaa euroa, josta 30% talotekniikka ja 15% teatteritekniikka.
LISÄTIETOA
Aikakausjulkaisut
Mäenpää, Risto 1967. Tekniikka näyttämöllä. Arkkitehti 1967: 10-11. Helsinki: Suomen Arkkitehtiliitto SAFA.
Norri, Marja-Riitta 1983. Taiteen ja Tilan ristiriita. Ralf Långbackan haastattelu. Arkkitehti 1983: 5-6. Helsinki: Suomen arkkitehtiliitto SAFA.
Penttilä, Timo 1981. Demokratian monumentit. Arkkitehti 1983:1. Helsinki: Suomen arkkitehtiliitto SAFA.
Painetut
Penttilä, Timo 2013. Oikeat ja väärät arkkitehdit. 2000 vuotta arkkitehtuuriteoriaa. toim. Kari Lind, Ulla Markelin ja Jorma Mukala. Helsinki: Gaudeamus.
Painamattomat
A-konsultit 2013. Helsingin kaupunginteatterin peruskorjaus. Hankesuunnitelma. Rakennustapaselostus.
A-konsultit 2013. Helsingin kaupunginteatterin peruskorjaus. Hankesuunnitelma. Rakennussuojeluperiaatteet.
Helsingin kaupunkisuunnitteluvirasto, Maija Lounamaa 2012. Helsingin kaupunginteatteri. Ympäristöhistoriallinen selvitys ja suojeluperiaatteet.
LPR-arkkitehdit Oy, Maisemasuunnittelu Hemgård & Insinööritoimisto Pontek oy 2015. Helsingin kaupunginteatteri. Peruskorjaus ja laajennus. Rakennusselostus
LPR-arkkitehdit Oy & Insinööritoimisto Pontek oy 2016. Helsingin kaupunginteatteri. Elsan julkisivukorjaus.
LPR-arkkitehdit Oy 2017. Helsingin kaupunginteatteri. Työmaadokumentointi 2015–17.
LPR-arkkitehdit Oy 2017. Helsingin kaupunginteatteri. Restaurointiraportti 2015–17.
LÄHTEET
Arkkitehti 1961:1 Kilpailuliite. Helsingin kaupunginteatterin suunnittelukilpailu. Helsinki: Suomen Arkkitehtiliitto SAFA.
DOCOMOMO 2017. Docomomo Suomi – Kohdevalikoima. toim. Sirkkaliisa Jetsonen, Petteri Kummala, Leena Makkonen & Jonas Malmberg, Helsinki: Docomomo Suomi Finland ry.
Koho, Timo 1991. Teatteriarkkitehtuurin merkitysarvot. Teatterirakentamisen suhde yhteiskunnan arvomaailmaan kaupungistuvassa Suomessa. Suomen muinaismuistoyhdistyksen aikakauskirja, 97. Helsinki: Suomen muinaismuistoyhdistys.
Korsberg, Hanna & Lylykangas, Kimmo 2007. Helsingin Kaupunginteatterin rakennus. Teoksessa Kansaa teatterissa. Helsingin Kaupunginteatterin historia. Toim. Pirkko Koski & Misa Palander. Helsinki: Like.
Penttilä, Timo 1967a. Helsingin kaupunginteatteri. Arkkitehti 1967: 10-11. Helsinki: Suomen Arkkitehtiliitto SAFA.
Penttilä, Timo 1967b. Teatterisuunnittelun lähtökohdista. Arkkitehti 1967: 10-11. Helsinki: Suomen Arkkitehtiliitto SAFA.
Asemakaavat
Helsingin kaupunkisuunnitteluvirasto: Asemakaava 19.8.2014, hyväksytty 25.2.2015, tullut voimaan 17.4.2015.
Painamattomat
Salonen, Kati & Schalin, Mona 2013. Helsingin kaupunginteatteri. Rakennushistorian selvitys ja inventointi. Kati Salonen ja Mona Schalin Arkkitehdit Oy.
Sähköpostit
Tekninen johtaja emeritus Keijo Kolin sähköposti arkkitehti Tiitta Itkoselle 15.10.2019.
VIITTEET
[1] RKY www.rky.fi
[2] Docomomo 2017.
[3] Asemakaavamuutos on kaupunginvaltuuston 15,2,2015 hyväksymä, ja se tuli voimaan 17.4.2015.
[4] Kilpailu järjestettiin 1960-61, alkuperäisosa valmistui 1967 ja laajennusosa Studio Elsa 1989.
[5] Arkkitehti 1 1961 Kilpailuliite, 3.
[6] Arkkitehti 1 1961 Kilpailuliite, 1.
[7] Penttilä 1967b, 25.
[8] Koho 1991, 15-17.
[9] Studiotila on intiimi, neutraali monitoimitila, jossa näyttämön ja katsomon asemaa ja suhdetta toisiinsa voidaan muuttaa edessä olevasta näyttämöstä katsomon täysin näyttämötilan ympäröivään areenateatteriin.
[10] Penttilä 1967b, 27.
[11] Penttilä 1967b, 27.
[12] Koho 1991, 15-17.
[13] Korsberg et al 2007, 63.
[14] Penttilä 1967a, 11.
[15] Penttilä oli työskennellyt Aarne Ervin ja tämä puolestaan Alvar Aallon toimistossa.
[16] Salonen et al 2013, 20-22.
[17] Salonen et al 2013, 24-26.
[18] Korsberg et al 2007, 65. Elsan ensi-illassa 1991 esitettiin Shakespearen Henrik IV.
[19] Tieto 15.10.2019 Helsingin Kaupunginteatterin tekniseltä johtajalta Keijo Kolilta, joka toimi korjausprojektissa projektinjohtajana.
[20] Arkkitehtitoimisto Kati Salonen ja Mona Schalin oy 2013.
[21] Salonen et al 2013, 251.
[22] Asemakaava 2015.
[23] Asemakaava 2015.
[24] Asemakaava 2015.
[25] LPR-arkkitehdit 2017.
Puisto, ts. teatterin tontti ja siihen välittömästi liittyvät Tarja Halosen puiston osat, jaettiin kahteen luokkaan:
- punaisella luokka 1, alkuperäisiä istutusperiaatteita ei ollut noudatettu, mutta tilanne korjattaisiin niiden mukaisiksi;
- keltaisella luokka 2, paikoitusalueet mitoitettaisiin nykymitoituksin.
Myös purkutoimenpiteet esitettiin piirustuksina jo rakennuslupavaiheessa.
Suojauspiirustuksissa ohjeistettiin mm. väliaikaisten pölytiiviiden seinien ja kattojen rakentamisesta, osoitettiin kunnostettavat tai varastoitavat kalusteet ja esitettiin vanerilevyin suojattavat sisälasitukset, jalopuuverhoukset ja arvokkaat kaiteet sekä muovein suojattavat betonialakattopinnat ja reikätiili- ja kangasseinäverhoukset.
019 HKT MM
020 HKT MM
TYÖMAAVAIHE – PEREHDYTYSTÄ, PALAVEREJA, ARKKITEHDIN LÄSNÄOLOA
Edellytys peruskorjausprojektin onnistumiselle on motivoitunut, innostunut ja asiaan perehdytetty suunnittelijakunta ja työnjohto. Jotta kaikille suunnittelijoille ja päätoteuttajille syntyisi käsitys tavoitteista, piti pääsuunnittelija työmaan alkuvaiheessa esityksen teatterirakennuksen ja ympäristön arvoista, suojeltavista asioista ja suojaamisesta. Tarkoitus oli luoda yhteinen ymmärrys kohteen arvoista ja näkemys tulevasta tehtävästä.
Perehdyttämisen tulisi jatkua läpi rakentamisvaiheen: työmaalle tulisi nimetä vastuuhenkilö, joka huolehtisi vaihtuvien aliurakoitsijoiden ja henkilöstön perehdyttämisestä ja suojauksista. Sitä varten kannattaa laatia powerpoint-esitys työmaan käyttöön. Sen voisi soveltuvin osin sisällyttää työmaan verkkoperehdyttämiseen, turvallisuustehtävien rinnalle. Tehtävien läpäiseminen on työmaalle pääsyn edellytys.
Projektiarkkitehti oli työmaalla mahdollisimman paljon. Korjauskohteessa kaikkea ei voida suunnitella etukäteen ja yllättävät tilanteet on ratkaistava nopeasti. On osattava ennakoida miten ratkaisut vaikuttavat eteenpäin.
35 museopalaveria – säännöllinen seuranta ja mallitoteutukset
Helsingin kaupunginmuseon kanssa suunnitelmia tarkasteltiin rakennussuojelun näkökulmasta: pohdittiin toteutus- ja korjausvaihtoehtoja, tarkasteltiin väri-, materiaali- ja toteutusmalleja ja testattiin valaistusratkaisuja. Olennaisimpia tiloja, pintoja ja yksityiskohtia katselmoitiin ennen purkutöitä, niiden aikana ja vielä toteutusvaiheessa. Suojeluarvojen toteutumista valvoi lisäksi rakennusvalvonta. Seurantakokouksia ja katselmuksia järjestettiin säännöllisesti. Joka toinen viikko pidettyjä ”museopalavereita” kertyi 35.
Kaikkien päädetaljien toteutus tutkittiin ja testattiin työmallien avulla. Esimerkiksi yhdestä pukuhuoneesta tehtiin mallihuone, katsomotuoleja varten kudottiin kangasnäytteitä, julkisivulaatoista puristettiin erilaatuisia koekappaleita ja julkisivupesujakin testattiin.
SUUNNITTELU JA TOTEUTUS ALKUPERÄISEN EHDOILLA
Korjaukset, muutokset ja täydennykset suunniteltiin siten, että ne eivät erotu alkuperäisestä arkkitehtuurista. Haasteellisimmat olivat julkisivujen, yleisötilojen ja katsomoiden korjaukset, jotka toteutettiin hienovaraisesti alkuperäisen arkkitehtuurin ehdoilla ja sille alistuen.[25] Tilaratkaisut säilytettiin pääosin alkuperäisessä muodossaan ja toiminnalliset muutokset olivat vähäisiä.
Vähäiset uudisosat (harjoitussali, kabinetit, keittiön sisäänkäynti, jätehuone) tehtiin osaksi kokonaisuutta kaupunkikuvallisesti näkymättömiin ja niiden julkisivut toteutettiin laajennusten peittoon jääneiden originaalijulkisivujen mukaisina. Räystäslinjat pidettiin entisellään, vaikka noudatettiinkin nykyisiä eristysvaatimuksia; lämmöneristeenä käytettiin siis aiempaa tehokkaampia materiaaleja.
Arkkitehti salapoliisina – vanhan mallin mukaisia uusia julkisivulaattoja valmistetaan
Vanhan osan julkisivuissa vaihdettiin vaurioituneita laattoja. Säilytettävät laatat pestiin mallipesujen mukaan ruiskuttamalla ensin hapan pesuaine ja neutraloimalla emäksisellä pesuaineella. Pinttyneimmät laatat harjattiin. Kaikki saumat uusittiin.
Uusien julkisivulaattojen valmistus vaati salapoliisityötä. Laatat ensimmäisenä työnään Arabian tehtaalla vuonna 1965 suunnitellut insinööri oli jo eläkkeellä, mutta konsultoi nyt eläketyönään uusien laattojen valmistusta. Pentikin keramiikkatehtaaseen Posiolle rakennettiin julkisivulaattatehdas. Oikean muodon, koon, värisävyn, pinnan tasaisuuden ja rosoisuuden, pilkutuksen ja lasituksen varmistamiseksi tehtiin lukuisia materiaali-, lasitus- ja polttokokeita. Muoteilla laattoja valmistettaessa massan karkeus aiheutti ongelmia, mutta suulakepuristuksessa massa tiivistyi vaadittavaan pakkasenkestävyyteen.
Kaikkiaan perus-, nokka- ja pilarilaattoja valmistettiin 27 751 kappaletta. Työn jälkeen julkisivulaattatehdas purettiin ja varastoitiin; Pentikillä on nyt valmius valmistaa julkisivulaattoja mihin tahansa kohteeseen.
022 HKT MM
023 HKT MM
024 HKT MM
025 HKT MM
026 HKT MM
Julkisivulasit säilytetään
Lämpiön lasijulkisivu kunnostettiin suojelumääräysten velvoittamina edelleen yksilasisena, ehjät lasitukset ja patinoituneet pronssilistoitukset säilyttäen. Suorien lasiosien välisten nurkkataitteiden polykarbonaattilevyt uusittiin ultravioletti-suojatulla polykarbonaatilla. Lasiseinän rakenne oli rakennusfysikaalisesti puutteellinen. Rakenne tiivistettiin sekä vedenpitävyyden että höyrytiiveyden osalta. Lämpövuoto pitänee kastepisteen rakenteiden ulkopuolella.
027 HKT MM
Sisätilat säilyvät ennallaan
Sisätilojen kunnostuksen lähtökohtana oli tilarakenteen ja -hierarkian sekä alkuperäisten rakenteiden, materiaalien, valaistuksen, kiintokalustuksen, värityksen ja yksityiskohtien säilyttäminen. Korjaustoimet ja uudet elementit ovat täälläkin alisteisia alkuperäisille ratkaisuille. Modernin arkkitehtuurin korjauksessa tyypillinen vaikeus on säilyttää alkuperäiset yksityiskohdat, ja silti parantaa niiden teknisiä ominaisuuksia. Uusittavissa materiaaleissa haettiin alkuperäistä tasoa, laatua ja tunnelmaa vastaavia materiaaleja ja värejä. Erityisesti suojeluvyöhykkeellä 1 toimenpiteet harkittiin huolellisesti.
Suuri lämpiö
Lämpiön marmori- ja yleisö-wc-tilojen laattalattioita lukuun ottamatta kaikki lattiapinnat uusittiin. Kokolattiamatot vaihdettiin alkuperäisen värisiin ruskeisiin mattoihin. Puhdistettuihin marmorilattioihin ja kokolattiamattoalueelle lisättiin esteettömyyttä ajatellen messinkisiä kulunohjausraitoja ja huomionastoja.
Päälämpiön alakattopinnat uusittiin, koska pinta ei ollut riittävän vahva tartunta maalaukselle. Päälämpiön (osittain vahvikekankailla vahvistetut) rappauspinnat olivat paikoitellen alkaneet irrota: kattopintaa oli huoltomaalattu taajaan ja maalikerroksia oli runsaasti. Kattopinta tutkittiin kopoalueiden löytämiseksi. Rappauspintaa uusittiin ja korjattiin laajoilta alueilta ja koko katto maalattiin uudelleen silikaattimaaleilla. Kattopintojen korjauksen haasteeksi nousi niiden laajuus.
028 HKT MM
029 HKT MM
030 HKT MM
Pieni lämpiö
Pienen lämpiön reikätiiliseinät purettiin tiilet säilyttäen teknisten asennusten ja vaimennusmateriaalien uusimista varten. Portaikko ja lämpiö saavat jälleen luonnonvaloa, kun aiemmin suljetut yläikkunat avattiin. Lämpiön ja katsomon välinen, koko tilan levyinen ääntä eristävä ja palo-osastoiva nosto-ovi uusittiin.
031 HKT MM
Kalusteet entisöitiin
Kalusteita kunnostettiin mittavasti. Yrjö Kukkapuron punaisella nahalla verhottuja alkuperäisiä Junior- ja Karuselli-tuoleja kunnostettiin henkilöstötiloihin. Kalustusta täydennettiin uusilla moderneilla tuoleilla, sohvilla, pöydillä ja naulakoilla. Niiden väritys noudattaa alkuperäisiä periaatteita: valkoista, hieman mustaa ja puhtaita, vahvoja värejä.
Varastosta löytyneet Maija Ruoslahden suunnittelemat messinkirukoiset kalusteet entisöitiin yleisötiloihin. Niiden nahkaosat korvattiin kestävällä tummanruskealla hybridinahalla. Samaa nahkaa vaaleanruskeana käytettiin yleisö-wc-tilojen sohvissa.
032 HKT MM
033 HKT MM
Näyttämöt ja katsomot
Suuren katsomon väreissä poikettiin hieman alkuperäisistä näyttelijöiden ja ohjaajien toivomuksesta: samettiverhoiluihin valittiin musta ja seinäkankaisiin punaisen ja mustan langan kudonnainen. Kokolattiamaton väriksi valittiin alkuperäinen tumma burgundinpunainen; jalkalistamatot ovat alkuperäisiä. Parven turvallisuutta kohennettiin lisäämällä matalaan etureunan kaiteeseen messinkiset reelinkikäsijohteet. Pienen katsomon tuolikangas kudottiin alkuperäisen väriseksi käyttäen mustanruskeaa ja siniturkoosia lankaa.
Kaikkien näyttämöiden esitystekniikka uusittiin ja akustiikkaa parannettiin diffuusiopintoja lisäämällä. Suuren ja pienen näyttämön alusrakenteet (pyöröt) uusittiin, ja suuren näyttämön näyttämöaukkoa kavennettiin ja orkesterimonttua syvennettiin. Marjatta Metsovaaran suunnittelema ”Colibri”-pilviesirippu (pinta-ala yli 400 m2, paino 200 kg) konservoitiin.
034 HKT MM
035 HKT MM
Henkilöstö- ja pukutilat
Henkilöstötiloissa säilytettiin tilajako ja -hierarkia, rakenteet, kiintokalusteet ja väliovien alkuperäinen värikoodaus. Työhuoneiden siniset, punaiset, keltaiset ja vihreät ovet säilytettiin. Suojelumääräysten mukaisesti pukuhuoneiden kalustus säilytettiin ja kunnostettiin: kaappeja parannettiin ilmastoinnilla, valaisimilla ja uusilla varusteilla. Taipuneiden kimpilevyjen oikaiseminen oli haastava puusepän taidonnäyte.
036 HKT MM
037 HKT MM
Talotekniikan yhteensovittamisesta vastaa pääsuunnittelija
Pääosa peruskorjaustyöstä keskittyi talo- ja näyttämötekniikan uudistamiseen, akustiikan parantamiseen sekä tilojen ilmanvaihdon ja valaistustason tehostamiseen. Talotekniikan yhteensovittaminen, joka on pääsuunnittelijan vastuulla, on aina onnistuneen lopputuloksen ja rakennussuojelun kannalta ensiarvoista, jotta tekniset vedot saadaan kätkettyä sekä sisätiloissa että julkisivuissa tai jotta löydetään niille vaihtoehtoisia reittejä.
038 HKT MM
039 HKT MM
Vaativat alakatot
Yksityiskohdista henkilöstötilojen käytävien puhtaaksi lautamuottiin valettujen betonialakattojen korjaus ja uuden ilmanvaihtotekniikan sijoittaminen alakaton yläpuolelle oli yksi vaativimmista, säilyttämisen kannalta oleellisimmista tehtävistä. Alakattojen otsapinnat purettiin kanavien asentamiseksi, mutta joissakin työhuoneissa jouduttiin sahaamaan avauskaistat, jotka asennusten jälkeen levytettiin umpeen ja viimeisteltiin muottilaudoituksen suuntaisella rimoituksella. Asennuksen aikana betonialakattojen reunat tuettiin ripustamalla ne välipohjista. Lopuksi otsapinnat verhottiin saranoiduin akustorapatuin levyin.
040 HKT MM
041 HKT MM
Valo on osa rakennussuojelua
Valaistuksen laatua harkittiin suojelunäkökulmasta. Koska rakennuksen arkkitehtuuri pyrkii häivyttämään sisä- ja ulkotilan välisen rajapinnan, tavoiteltiin sisä- ja ulkovalaistuksessa värilämpötilan yhdenmukaisuutta. Kaikissa yleisötiloissa ja sisätiloihin liittyvissä ulkotiloissa värilämpötilaksi haettiin 3000 K, henkilökunta-alueella 4000 K.
Julkisivuvalaistus nostaa esiin rakennuksen arkkitehtuurin pimeään aikaan ja kaukomaisemassa: kaupunginteatteri, Finlandia-talo ja Oopperatalo muodostavat Töölönlahden kulttuurirakennusten kokonaisuuden. Näyttämötorni valaistaan horisontaaliosia voimakkaammin, ja valojen suuntaus haettiin korostamaan klinkkeripinnan elävyyttä ja näyttämötornin muodon taitteisuutta. Julkisivuvalaistus on säädettävissä: perussävy on valkoinen (värilämpötila 3000 K), mutta led-optiikka sallii myös värillisten valojen käytön erikoistilanteissa.
042 HKT MM
Kaksituhatta suojeltua valaisinta
Sisätilojen alkuperäiset valaisimet kunnostettiin ja uudistettiin sähköteknisesti. Lisäksi valikoimaa täydennettiin uusilla valaisimilla lämpiöissä, suuressa katsomossa, pienen lämpiön vaatesäilytyksessä ja ruokalassa. Toimistohuoneisiin tuotiin nykyaikaiset led-mikroprismavalaisimet. Valolähteet vaihdettiin led-tekniikkaan, ja kuhunkin tilaan voidaan nyt hakea sopiva valaistustaso. Fasetti Oy kunnosti ja sähköisti lähes kaksituhatta suojeltua valaisinta.
1960-luvun teatteripiha ja puisto kuntoon
Teatterin pihojen ja Tarja Halosen puiston kokonaisuuteen palautettiin 1960-luvun ilme. Luonnonkivimuureja korjattiin ja istutusalueet kunnostettiin Maisemasuunnittelu Hemgårdin ohjeistuksen mukaisesti. Näkymien tielle kasvaneet 1970-luvulla istutetut kuuset kaadettiin. Kolmannen kerroksen kabinettilaajennuksen eteen alkuperäisen rakennuksen ja muurin rajaamaan katveeseen istutettiin viehättävä kukkaketo. Ulko-alueille sijoitettiin myös yksinkertaisia uusia ulkopenkkejä, opasteita ja valaisimia sekä villiviini-istutusaltaita estämään pääsyä kattoalueelle.
043 HKT MM
Esteettömyys ulottuu paikoitusalueilta katsomopaikoille asti
Esteettömyyttä parannettiin paikoitusalueilta aina istuinpaikoille asti. Paikoitukseen lisättiin maksuttomia liikuntaesteisen autopaikkoja ja saattoliikenne pääsee sisäänkäyntien äärelle. Ulkokiveyksen tasoeroja poistettiin, olemassa ollutta eteläjulkisivun luiskaa pidennettiin, ja sisäänkäyntien yhteen oveen asennettiin ovitutka-automatiikka. Hisseistä kolme uudistettiin esteettömiksi ja varustettiin automaattiovin sekä kerroskohonumeroin ja -tekstein. Lämpiöiden lattioihin asennettiin ohjauslistoja ja lattiatunnisteita. Valaistusta tehostettiin erityisesti kokolattiamattoalueilla. Askelmien etureunoihin lisättiin katsomossa led-valaistus, ja penkkiriveihin asennettiin kohonumeroin rivi- ja paikkatunnisteet.
044 HKT MM
Pyörätuolipaikkoja on suuressa katsomossa kahdeksan ja pienessä neljä. Studio Elsan permannolle voi osoittaa pyörätuolipaikkoja tarpeen mukaan. Suuressa katsomossa induktiosilmukka-asennukset kattavat kaikki katsomopaikat, pienessä osan paikoista.
Kuunteluympäristön parantamiseksi rima- ja tekstiilipintojen taustamateriaalit uusittiin absorptioltaan aiempaa paremmiksi. Esteettömiä wc-tiloja lisättiin yleisötiloihin. Pääkulkureittien ovia levennettiin ja huomiota kiinnitettiin irtokalusteiden sijoitteluun. Opasteita selkiytettiin ja täydennettiin.
Restaurointiraportti tallentaa ja välittää tietoa toteutusratkaisuista
Kun työmaa oli valmis, arkkitehti laati korjaustyöstä työmaa- ja restaurointidokumentit. Nämä jälkidokumentit ovat arvokkaita rakennushistoriaselvityksen jatkeita ja tarjoavat yksityiskohtaista tietoa rakennuksen ylläpitäjille ja tuleville suunnittelijoille. Niiden avulla voi myöhemmin arvioida tehtyjä ratkaisuja. Kaupunginteatterista dokumenttien laatimiseen velvoitti asemakaava ja niille varattiin oma budjettinsa.
KORJAAMINEN ON VAATIVAA JA ONNISTUESSAAN PALKITSEVAA
Helsingin kaupunginteatteri on erittäin vaativa korjauskohde. Rakennuksella on tärkeä asema kaupunkikuvassa ja se on yksityiskohdiltaan rikas ja monipuolinen. Vaativuutta lisää se, että rakennusta arvostetaan suomalaisessa arkkitehtuurin historiassa ja teatteritaiteen kulttuurihistoriassa. Rakennuksen ensimmäinen peruskorjausprojekti ulottui koko rakennukseen.
Korjaussuunnittelun lähtökohta oli kaikkia alkuperäisiä ratkaisuja kunnioittava, niihin tutkivasti ja nöyrästi suhtautuva, mutta ei nöyristelevä. Uudet välttämättömät lisäykset ovat tätä aikaa, mutta ne ovat sukua alkuperäiseen arkkitehtuuriin materiaalin, muodon, tilan tai järjestysperiaatteen tasolla. Näin ympäristöön syntyy parhaassa tapauksessa hallittua ajallista kerrostuneisuutta, merkkejä eri vuosikymmenistä ja -sadoista.
045 HKT MM
Helsingin kaupunginteatteri lähiympäristöineen on vahva kokonaistaideteos. Sen arkkitehtuuri on poikkeuksellisen hyvin säilynyt ja se toimii alkuperäisessä teatterikäytössä. Suuriin muutoksiin ei ollut tarvetta. Vahva arkkitehtuuri antoi suuntaviitat uuden muotoiluun: peruskorjauksessa tehtyjen pienehköjen laajennusosienkin julkisivut toistavat niitä alkuperäisiä laatoitettuja seiniä, jotka jäivät laajennusten peittämiksi.
Korjausrakentamisen ongelmat vaativat arkkitehdilta näkemystä, sinnikkyyttä ja uskoa ratkaisun löytymiseen: julkisivulaattojen uudelleen valmistus onnistuu ja puhtaaksi lautamuottiin valetut alakatot voidaan säilyttää. Kaupunginteatterin vahva alkuperäinen arkkitehtuuri nosti luonnollisesti laatuvaatimuksen korkealle myös uusien ratkaisujen osalta.
Korjausprojekti myös opettaa tekijöitään. Tietotaitoa karttuu ja siirtyy 1960-luvun tekijöiltä nyt korjaustyön suunnittelijoille ja toteuttajille ja näiltä edelleen seuraavalle sukupolvelle. Vaativan työn onnistuessa kaikki työhön osallistuneet voivat tuntea ammattiylpeyttä.
Kirjoittaja Mikko Mannberg, arkkitehti SAFA TkL, oli LPR-arkkitehdit Oy:ssä mukana Helsingin kaupunginteatterin peruskorjauksen suunnittelutyöryhmässä, jonka pääsuunnittelija oli arkkitehti Pauno Narjus.
Artikkeli on julkaistu 2019.
HELSINGIN KAUPUNGINTEATTERIN SUUNNITTELIJAT 1960-LUVULLA JA 2010-LUVULLA
Arkkitehtuurikilpailu 1960–61, suunnittelu 1961–67, rakentamispäätös 1965, peruskiven muuraus 12.6.1965, rakentaminen toukokuusta 1965 syyskuuhun 1967, talon vihkiäiset 7.10.1967.
Kilpailuehdotus Arlecchino: Timo Penttilä ja Kari Virta, avustaja Pekka Ilveskoski.
Arkkitehtisuunnittelu: Arkkitehtitoimisto Timo Penttilä.
Rakennesuunnittelu: Insinööritoimisto Bertel Ekengren.
LVI-suunnittelu: Insinööritoimisto J. Saarto & Kumpp.
Sähkösuunnittelu: Insinööritoimisto Risto Mäenpää.
Akustinen suunnittelu: Insinööritoimisto P. Aarni & Co.
Maisemasuunnittelu: Helsingin kaupungin rakennusvirasto / Auli Hietakangas.
Pääurakoitsija: Rakennustoimisto Arvonen Oy, vastaava rakennusmestari Mauri Kivikoski.
Sähköurakoitsija: Sähkö Oy.
Laajennusosa Elsa, valmistui 1989.
Arkkitehtisuunnittelu: Arkkitehtitoimisto Oy Timo Penttilä – Kari Lind – Sakari Tilanterä.
Korjaustyö 2015–17.
Arkkitehtisuunnittelu: LPR-arkkitehdit Oy, pääsuunnittelija arkkitehti SAFA Pauno Narjus.
Maisemasuunnittelu: Maisemasuunnittelu Hemgård.
Rakennesuunnittelu: Insinööritoimisto Pontek Oy.
LVIA- ja sprinkler-suunnittelu: Optiplan Oy.
Sähkösuunnittelu: Rejlers Oy.
Julkisivuvalaistus: Granlund Oy.
Akustiikkasuunnittelu: Helimäki Akustikot Oy
Näyttämömekaniikan suunnittelu: Akumek Oy, TheatrePlan.
Esitystekniikan erityissuunnittelu: VAI-teatteri ky.
Esitystekniikan kaapeloinnin suunnittelu: Akukon Oy.
Palotekninen suunnittelu: L2 Paloturvallisuus Oy.
lukitussuunnittelu: Ekonia oy
Julkisivututkimukset: Vahanen Oy, Contesta Oy.
Julkisivujen kehitystyö: Otto Blümchen ja Pentik Oy.
Lämpiön kattopintojen ja ulkokatosten maalauskäsittelysuunnittelu: T:mi Modlari.
Korjauksen laajuus: 24 785 m2 (vanha osa), 645 m2 (laajennusosa)
Kustannukset: 67 miljoonaa euroa, josta 30% talotekniikka ja 15% teatteritekniikka.
LISÄTIETOA
Aikakausjulkaisut
Mäenpää, Risto 1967. Tekniikka näyttämöllä. Arkkitehti 1967: 10-11. Helsinki: Suomen Arkkitehtiliitto SAFA.
Norri, Marja-Riitta 1983. Taiteen ja Tilan ristiriita. Ralf Långbackan haastattelu. Arkkitehti 1983: 5-6. Helsinki: Suomen arkkitehtiliitto SAFA.
Penttilä, Timo 1981. Demokratian monumentit. Arkkitehti 1983:1. Helsinki: Suomen arkkitehtiliitto SAFA.
Painetut
Penttilä, Timo 2013. Oikeat ja väärät arkkitehdit. 2000 vuotta arkkitehtuuriteoriaa. toim. Kari Lind, Ulla Markelin ja Jorma Mukala. Helsinki: Gaudeamus.
Painamattomat
A-konsultit 2013. Helsingin kaupunginteatterin peruskorjaus. Hankesuunnitelma. Rakennustapaselostus.
A-konsultit 2013. Helsingin kaupunginteatterin peruskorjaus. Hankesuunnitelma. Rakennussuojeluperiaatteet.
Helsingin kaupunkisuunnitteluvirasto, Maija Lounamaa 2012. Helsingin kaupunginteatteri. Ympäristöhistoriallinen selvitys ja suojeluperiaatteet.
LPR-arkkitehdit Oy, Maisemasuunnittelu Hemgård & Insinööritoimisto Pontek oy 2015. Helsingin kaupunginteatteri. Peruskorjaus ja laajennus. Rakennusselostus
LPR-arkkitehdit Oy & Insinööritoimisto Pontek oy 2016. Helsingin kaupunginteatteri. Elsan julkisivukorjaus.
LPR-arkkitehdit Oy 2017. Helsingin kaupunginteatteri. Työmaadokumentointi 2015–17.
LPR-arkkitehdit Oy 2017. Helsingin kaupunginteatteri. Restaurointiraportti 2015–17.
LÄHTEET
Arkkitehti 1961:1 Kilpailuliite. Helsingin kaupunginteatterin suunnittelukilpailu. Helsinki: Suomen Arkkitehtiliitto SAFA.
DOCOMOMO 2017. Docomomo Suomi – Kohdevalikoima. toim. Sirkkaliisa Jetsonen, Petteri Kummala, Leena Makkonen & Jonas Malmberg, Helsinki: Docomomo Suomi Finland ry.
Koho, Timo 1991. Teatteriarkkitehtuurin merkitysarvot. Teatterirakentamisen suhde yhteiskunnan arvomaailmaan kaupungistuvassa Suomessa. Suomen muinaismuistoyhdistyksen aikakauskirja, 97. Helsinki: Suomen muinaismuistoyhdistys.
Korsberg, Hanna & Lylykangas, Kimmo 2007. Helsingin Kaupunginteatterin rakennus. Teoksessa Kansaa teatterissa. Helsingin Kaupunginteatterin historia. Toim. Pirkko Koski & Misa Palander. Helsinki: Like.
Penttilä, Timo 1967a. Helsingin kaupunginteatteri. Arkkitehti 1967: 10-11. Helsinki: Suomen Arkkitehtiliitto SAFA.
Penttilä, Timo 1967b. Teatterisuunnittelun lähtökohdista. Arkkitehti 1967: 10-11. Helsinki: Suomen Arkkitehtiliitto SAFA.
Asemakaavat
Helsingin kaupunkisuunnitteluvirasto: Asemakaava 19.8.2014, hyväksytty 25.2.2015, tullut voimaan 17.4.2015.
Painamattomat
Salonen, Kati & Schalin, Mona 2013. Helsingin kaupunginteatteri. Rakennushistorian selvitys ja inventointi. Kati Salonen ja Mona Schalin Arkkitehdit Oy.
Sähköpostit
Tekninen johtaja emeritus Keijo Kolin sähköposti arkkitehti Tiitta Itkoselle 15.10.2019.
VIITTEET
[1] RKY www.rky.fi
[2] Docomomo 2017.
[3] Asemakaavamuutos on kaupunginvaltuuston 15,2,2015 hyväksymä, ja se tuli voimaan 17.4.2015.
[4] Kilpailu järjestettiin 1960-61, alkuperäisosa valmistui 1967 ja laajennusosa Studio Elsa 1989.
[5] Arkkitehti 1 1961 Kilpailuliite, 3.
[6] Arkkitehti 1 1961 Kilpailuliite, 1.
[7] Penttilä 1967b, 25.
[8] Koho 1991, 15-17.
[9] Studiotila on intiimi, neutraali monitoimitila, jossa näyttämön ja katsomon asemaa ja suhdetta toisiinsa voidaan muuttaa edessä olevasta näyttämöstä katsomon täysin näyttämötilan ympäröivään areenateatteriin.
[10] Penttilä 1967b, 27.
[11] Penttilä 1967b, 27.
[12] Koho 1991, 15-17.
[13] Korsberg et al 2007, 63.
[14] Penttilä 1967a, 11.
[15] Penttilä oli työskennellyt Aarne Ervin ja tämä puolestaan Alvar Aallon toimistossa.
[16] Salonen et al 2013, 20-22.
[17] Salonen et al 2013, 24-26.
[18] Korsberg et al 2007, 65. Elsan ensi-illassa 1991 esitettiin Shakespearen Henrik IV.
[19] Tieto 15.10.2019 Helsingin Kaupunginteatterin tekniseltä johtajalta Keijo Kolilta, joka toimi korjausprojektissa projektinjohtajana.
[20] Arkkitehtitoimisto Kati Salonen ja Mona Schalin oy 2013.
[21] Salonen et al 2013, 251.
[22] Asemakaava 2015.
[23] Asemakaava 2015.
[24] Asemakaava 2015.
[25] LPR-arkkitehdit 2017.
TYÖMAAVAIHE – PEREHDYTYSTÄ, PALAVEREJA, ARKKITEHDIN LÄSNÄOLOA
Edellytys peruskorjausprojektin onnistumiselle on motivoitunut, innostunut ja asiaan perehdytetty suunnittelijakunta ja työnjohto. Jotta kaikille suunnittelijoille ja päätoteuttajille syntyisi käsitys tavoitteista, piti pääsuunnittelija työmaan alkuvaiheessa esityksen teatterirakennuksen ja ympäristön arvoista, suojeltavista asioista ja suojaamisesta. Tarkoitus oli luoda yhteinen ymmärrys kohteen arvoista ja näkemys tulevasta tehtävästä.
Perehdyttämisen tulisi jatkua läpi rakentamisvaiheen: työmaalle tulisi nimetä vastuuhenkilö, joka huolehtisi vaihtuvien aliurakoitsijoiden ja henkilöstön perehdyttämisestä ja suojauksista. Sitä varten kannattaa laatia powerpoint-esitys työmaan käyttöön. Sen voisi soveltuvin osin sisällyttää työmaan verkkoperehdyttämiseen, turvallisuustehtävien rinnalle. Tehtävien läpäiseminen on työmaalle pääsyn edellytys.
Projektiarkkitehti oli työmaalla mahdollisimman paljon. Korjauskohteessa kaikkea ei voida suunnitella etukäteen ja yllättävät tilanteet on ratkaistava nopeasti. On osattava ennakoida miten ratkaisut vaikuttavat eteenpäin.
35 museopalaveria – säännöllinen seuranta ja mallitoteutukset
Helsingin kaupunginmuseon kanssa suunnitelmia tarkasteltiin rakennussuojelun näkökulmasta: pohdittiin toteutus- ja korjausvaihtoehtoja, tarkasteltiin väri-, materiaali- ja toteutusmalleja ja testattiin valaistusratkaisuja. Olennaisimpia tiloja, pintoja ja yksityiskohtia katselmoitiin ennen purkutöitä, niiden aikana ja vielä toteutusvaiheessa. Suojeluarvojen toteutumista valvoi lisäksi rakennusvalvonta. Seurantakokouksia ja katselmuksia järjestettiin säännöllisesti. Joka toinen viikko pidettyjä ”museopalavereita” kertyi 35.
Kaikkien päädetaljien toteutus tutkittiin ja testattiin työmallien avulla. Esimerkiksi yhdestä pukuhuoneesta tehtiin mallihuone, katsomotuoleja varten kudottiin kangasnäytteitä, julkisivulaatoista puristettiin erilaatuisia koekappaleita ja julkisivupesujakin testattiin.
SUUNNITTELU JA TOTEUTUS ALKUPERÄISEN EHDOILLA
Korjaukset, muutokset ja täydennykset suunniteltiin siten, että ne eivät erotu alkuperäisestä arkkitehtuurista. Haasteellisimmat olivat julkisivujen, yleisötilojen ja katsomoiden korjaukset, jotka toteutettiin hienovaraisesti alkuperäisen arkkitehtuurin ehdoilla ja sille alistuen.[25] Tilaratkaisut säilytettiin pääosin alkuperäisessä muodossaan ja toiminnalliset muutokset olivat vähäisiä.
Vähäiset uudisosat (harjoitussali, kabinetit, keittiön sisäänkäynti, jätehuone) tehtiin osaksi kokonaisuutta kaupunkikuvallisesti näkymättömiin ja niiden julkisivut toteutettiin laajennusten peittoon jääneiden originaalijulkisivujen mukaisina. Räystäslinjat pidettiin entisellään, vaikka noudatettiinkin nykyisiä eristysvaatimuksia; lämmöneristeenä käytettiin siis aiempaa tehokkaampia materiaaleja.
Arkkitehti salapoliisina – vanhan mallin mukaisia uusia julkisivulaattoja valmistetaan
Vanhan osan julkisivuissa vaihdettiin vaurioituneita laattoja. Säilytettävät laatat pestiin mallipesujen mukaan ruiskuttamalla ensin hapan pesuaine ja neutraloimalla emäksisellä pesuaineella. Pinttyneimmät laatat harjattiin. Kaikki saumat uusittiin.
Uusien julkisivulaattojen valmistus vaati salapoliisityötä. Laatat ensimmäisenä työnään Arabian tehtaalla vuonna 1965 suunnitellut insinööri oli jo eläkkeellä, mutta konsultoi nyt eläketyönään uusien laattojen valmistusta. Pentikin keramiikkatehtaaseen Posiolle rakennettiin julkisivulaattatehdas. Oikean muodon, koon, värisävyn, pinnan tasaisuuden ja rosoisuuden, pilkutuksen ja lasituksen varmistamiseksi tehtiin lukuisia materiaali-, lasitus- ja polttokokeita. Muoteilla laattoja valmistettaessa massan karkeus aiheutti ongelmia, mutta suulakepuristuksessa massa tiivistyi vaadittavaan pakkasenkestävyyteen.
Kaikkiaan perus-, nokka- ja pilarilaattoja valmistettiin 27 751 kappaletta. Työn jälkeen julkisivulaattatehdas purettiin ja varastoitiin; Pentikillä on nyt valmius valmistaa julkisivulaattoja mihin tahansa kohteeseen.
022 HKT MM
023 HKT MM
024 HKT MM
025 HKT MM
026 HKT MM
Julkisivulasit säilytetään
Lämpiön lasijulkisivu kunnostettiin suojelumääräysten velvoittamina edelleen yksilasisena, ehjät lasitukset ja patinoituneet pronssilistoitukset säilyttäen. Suorien lasiosien välisten nurkkataitteiden polykarbonaattilevyt uusittiin ultravioletti-suojatulla polykarbonaatilla. Lasiseinän rakenne oli rakennusfysikaalisesti puutteellinen. Rakenne tiivistettiin sekä vedenpitävyyden että höyrytiiveyden osalta. Lämpövuoto pitänee kastepisteen rakenteiden ulkopuolella.
027 HKT MM
Sisätilat säilyvät ennallaan
Sisätilojen kunnostuksen lähtökohtana oli tilarakenteen ja -hierarkian sekä alkuperäisten rakenteiden, materiaalien, valaistuksen, kiintokalustuksen, värityksen ja yksityiskohtien säilyttäminen. Korjaustoimet ja uudet elementit ovat täälläkin alisteisia alkuperäisille ratkaisuille. Modernin arkkitehtuurin korjauksessa tyypillinen vaikeus on säilyttää alkuperäiset yksityiskohdat, ja silti parantaa niiden teknisiä ominaisuuksia. Uusittavissa materiaaleissa haettiin alkuperäistä tasoa, laatua ja tunnelmaa vastaavia materiaaleja ja värejä. Erityisesti suojeluvyöhykkeellä 1 toimenpiteet harkittiin huolellisesti.
Suuri lämpiö
Lämpiön marmori- ja yleisö-wc-tilojen laattalattioita lukuun ottamatta kaikki lattiapinnat uusittiin. Kokolattiamatot vaihdettiin alkuperäisen värisiin ruskeisiin mattoihin. Puhdistettuihin marmorilattioihin ja kokolattiamattoalueelle lisättiin esteettömyyttä ajatellen messinkisiä kulunohjausraitoja ja huomionastoja.
Päälämpiön alakattopinnat uusittiin, koska pinta ei ollut riittävän vahva tartunta maalaukselle. Päälämpiön (osittain vahvikekankailla vahvistetut) rappauspinnat olivat paikoitellen alkaneet irrota: kattopintaa oli huoltomaalattu taajaan ja maalikerroksia oli runsaasti. Kattopinta tutkittiin kopoalueiden löytämiseksi. Rappauspintaa uusittiin ja korjattiin laajoilta alueilta ja koko katto maalattiin uudelleen silikaattimaaleilla. Kattopintojen korjauksen haasteeksi nousi niiden laajuus.
028 HKT MM
029 HKT MM
030 HKT MM
Pieni lämpiö
Pienen lämpiön reikätiiliseinät purettiin tiilet säilyttäen teknisten asennusten ja vaimennusmateriaalien uusimista varten. Portaikko ja lämpiö saavat jälleen luonnonvaloa, kun aiemmin suljetut yläikkunat avattiin. Lämpiön ja katsomon välinen, koko tilan levyinen ääntä eristävä ja palo-osastoiva nosto-ovi uusittiin.
031 HKT MM
Kalusteet entisöitiin
Kalusteita kunnostettiin mittavasti. Yrjö Kukkapuron punaisella nahalla verhottuja alkuperäisiä Junior- ja Karuselli-tuoleja kunnostettiin henkilöstötiloihin. Kalustusta täydennettiin uusilla moderneilla tuoleilla, sohvilla, pöydillä ja naulakoilla. Niiden väritys noudattaa alkuperäisiä periaatteita: valkoista, hieman mustaa ja puhtaita, vahvoja värejä.
Varastosta löytyneet Maija Ruoslahden suunnittelemat messinkirukoiset kalusteet entisöitiin yleisötiloihin. Niiden nahkaosat korvattiin kestävällä tummanruskealla hybridinahalla. Samaa nahkaa vaaleanruskeana käytettiin yleisö-wc-tilojen sohvissa.
032 HKT MM
033 HKT MM
Näyttämöt ja katsomot
Suuren katsomon väreissä poikettiin hieman alkuperäisistä näyttelijöiden ja ohjaajien toivomuksesta: samettiverhoiluihin valittiin musta ja seinäkankaisiin punaisen ja mustan langan kudonnainen. Kokolattiamaton väriksi valittiin alkuperäinen tumma burgundinpunainen; jalkalistamatot ovat alkuperäisiä. Parven turvallisuutta kohennettiin lisäämällä matalaan etureunan kaiteeseen messinkiset reelinkikäsijohteet. Pienen katsomon tuolikangas kudottiin alkuperäisen väriseksi käyttäen mustanruskeaa ja siniturkoosia lankaa.
Kaikkien näyttämöiden esitystekniikka uusittiin ja akustiikkaa parannettiin diffuusiopintoja lisäämällä. Suuren ja pienen näyttämön alusrakenteet (pyöröt) uusittiin, ja suuren näyttämön näyttämöaukkoa kavennettiin ja orkesterimonttua syvennettiin. Marjatta Metsovaaran suunnittelema ”Colibri”-pilviesirippu (pinta-ala yli 400 m2, paino 200 kg) konservoitiin.
034 HKT MM
035 HKT MM
Henkilöstö- ja pukutilat
Henkilöstötiloissa säilytettiin tilajako ja -hierarkia, rakenteet, kiintokalusteet ja väliovien alkuperäinen värikoodaus. Työhuoneiden siniset, punaiset, keltaiset ja vihreät ovet säilytettiin. Suojelumääräysten mukaisesti pukuhuoneiden kalustus säilytettiin ja kunnostettiin: kaappeja parannettiin ilmastoinnilla, valaisimilla ja uusilla varusteilla. Taipuneiden kimpilevyjen oikaiseminen oli haastava puusepän taidonnäyte.
036 HKT MM
037 HKT MM
Talotekniikan yhteensovittamisesta vastaa pääsuunnittelija
Pääosa peruskorjaustyöstä keskittyi talo- ja näyttämötekniikan uudistamiseen, akustiikan parantamiseen sekä tilojen ilmanvaihdon ja valaistustason tehostamiseen. Talotekniikan yhteensovittaminen, joka on pääsuunnittelijan vastuulla, on aina onnistuneen lopputuloksen ja rakennussuojelun kannalta ensiarvoista, jotta tekniset vedot saadaan kätkettyä sekä sisätiloissa että julkisivuissa tai jotta löydetään niille vaihtoehtoisia reittejä.
038 HKT MM
039 HKT MM
Vaativat alakatot
Yksityiskohdista henkilöstötilojen käytävien puhtaaksi lautamuottiin valettujen betonialakattojen korjaus ja uuden ilmanvaihtotekniikan sijoittaminen alakaton yläpuolelle oli yksi vaativimmista, säilyttämisen kannalta oleellisimmista tehtävistä. Alakattojen otsapinnat purettiin kanavien asentamiseksi, mutta joissakin työhuoneissa jouduttiin sahaamaan avauskaistat, jotka asennusten jälkeen levytettiin umpeen ja viimeisteltiin muottilaudoituksen suuntaisella rimoituksella. Asennuksen aikana betonialakattojen reunat tuettiin ripustamalla ne välipohjista. Lopuksi otsapinnat verhottiin saranoiduin akustorapatuin levyin.
040 HKT MM
041 HKT MM
Valo on osa rakennussuojelua
Valaistuksen laatua harkittiin suojelunäkökulmasta. Koska rakennuksen arkkitehtuuri pyrkii häivyttämään sisä- ja ulkotilan välisen rajapinnan, tavoiteltiin sisä- ja ulkovalaistuksessa värilämpötilan yhdenmukaisuutta. Kaikissa yleisötiloissa ja sisätiloihin liittyvissä ulkotiloissa värilämpötilaksi haettiin 3000 K, henkilökunta-alueella 4000 K.
Julkisivuvalaistus nostaa esiin rakennuksen arkkitehtuurin pimeään aikaan ja kaukomaisemassa: kaupunginteatteri, Finlandia-talo ja Oopperatalo muodostavat Töölönlahden kulttuurirakennusten kokonaisuuden. Näyttämötorni valaistaan horisontaaliosia voimakkaammin, ja valojen suuntaus haettiin korostamaan klinkkeripinnan elävyyttä ja näyttämötornin muodon taitteisuutta. Julkisivuvalaistus on säädettävissä: perussävy on valkoinen (värilämpötila 3000 K), mutta led-optiikka sallii myös värillisten valojen käytön erikoistilanteissa.
042 HKT MM
Kaksituhatta suojeltua valaisinta
Sisätilojen alkuperäiset valaisimet kunnostettiin ja uudistettiin sähköteknisesti. Lisäksi valikoimaa täydennettiin uusilla valaisimilla lämpiöissä, suuressa katsomossa, pienen lämpiön vaatesäilytyksessä ja ruokalassa. Toimistohuoneisiin tuotiin nykyaikaiset led-mikroprismavalaisimet. Valolähteet vaihdettiin led-tekniikkaan, ja kuhunkin tilaan voidaan nyt hakea sopiva valaistustaso. Fasetti Oy kunnosti ja sähköisti lähes kaksituhatta suojeltua valaisinta.
1960-luvun teatteripiha ja puisto kuntoon
Teatterin pihojen ja Tarja Halosen puiston kokonaisuuteen palautettiin 1960-luvun ilme. Luonnonkivimuureja korjattiin ja istutusalueet kunnostettiin Maisemasuunnittelu Hemgårdin ohjeistuksen mukaisesti. Näkymien tielle kasvaneet 1970-luvulla istutetut kuuset kaadettiin. Kolmannen kerroksen kabinettilaajennuksen eteen alkuperäisen rakennuksen ja muurin rajaamaan katveeseen istutettiin viehättävä kukkaketo. Ulko-alueille sijoitettiin myös yksinkertaisia uusia ulkopenkkejä, opasteita ja valaisimia sekä villiviini-istutusaltaita estämään pääsyä kattoalueelle.
043 HKT MM
Esteettömyys ulottuu paikoitusalueilta katsomopaikoille asti
Esteettömyyttä parannettiin paikoitusalueilta aina istuinpaikoille asti. Paikoitukseen lisättiin maksuttomia liikuntaesteisen autopaikkoja ja saattoliikenne pääsee sisäänkäyntien äärelle. Ulkokiveyksen tasoeroja poistettiin, olemassa ollutta eteläjulkisivun luiskaa pidennettiin, ja sisäänkäyntien yhteen oveen asennettiin ovitutka-automatiikka. Hisseistä kolme uudistettiin esteettömiksi ja varustettiin automaattiovin sekä kerroskohonumeroin ja -tekstein. Lämpiöiden lattioihin asennettiin ohjauslistoja ja lattiatunnisteita. Valaistusta tehostettiin erityisesti kokolattiamattoalueilla. Askelmien etureunoihin lisättiin katsomossa led-valaistus, ja penkkiriveihin asennettiin kohonumeroin rivi- ja paikkatunnisteet.
044 HKT MM
Pyörätuolipaikkoja on suuressa katsomossa kahdeksan ja pienessä neljä. Studio Elsan permannolle voi osoittaa pyörätuolipaikkoja tarpeen mukaan. Suuressa katsomossa induktiosilmukka-asennukset kattavat kaikki katsomopaikat, pienessä osan paikoista.
Kuunteluympäristön parantamiseksi rima- ja tekstiilipintojen taustamateriaalit uusittiin absorptioltaan aiempaa paremmiksi. Esteettömiä wc-tiloja lisättiin yleisötiloihin. Pääkulkureittien ovia levennettiin ja huomiota kiinnitettiin irtokalusteiden sijoitteluun. Opasteita selkiytettiin ja täydennettiin.
Restaurointiraportti tallentaa ja välittää tietoa toteutusratkaisuista
Kun työmaa oli valmis, arkkitehti laati korjaustyöstä työmaa- ja restaurointidokumentit. Nämä jälkidokumentit ovat arvokkaita rakennushistoriaselvityksen jatkeita ja tarjoavat yksityiskohtaista tietoa rakennuksen ylläpitäjille ja tuleville suunnittelijoille. Niiden avulla voi myöhemmin arvioida tehtyjä ratkaisuja. Kaupunginteatterista dokumenttien laatimiseen velvoitti asemakaava ja niille varattiin oma budjettinsa.
KORJAAMINEN ON VAATIVAA JA ONNISTUESSAAN PALKITSEVAA
Helsingin kaupunginteatteri on erittäin vaativa korjauskohde. Rakennuksella on tärkeä asema kaupunkikuvassa ja se on yksityiskohdiltaan rikas ja monipuolinen. Vaativuutta lisää se, että rakennusta arvostetaan suomalaisessa arkkitehtuurin historiassa ja teatteritaiteen kulttuurihistoriassa. Rakennuksen ensimmäinen peruskorjausprojekti ulottui koko rakennukseen.
Korjaussuunnittelun lähtökohta oli kaikkia alkuperäisiä ratkaisuja kunnioittava, niihin tutkivasti ja nöyrästi suhtautuva, mutta ei nöyristelevä. Uudet välttämättömät lisäykset ovat tätä aikaa, mutta ne ovat sukua alkuperäiseen arkkitehtuuriin materiaalin, muodon, tilan tai järjestysperiaatteen tasolla. Näin ympäristöön syntyy parhaassa tapauksessa hallittua ajallista kerrostuneisuutta, merkkejä eri vuosikymmenistä ja -sadoista.
045 HKT MM
Helsingin kaupunginteatteri lähiympäristöineen on vahva kokonaistaideteos. Sen arkkitehtuuri on poikkeuksellisen hyvin säilynyt ja se toimii alkuperäisessä teatterikäytössä. Suuriin muutoksiin ei ollut tarvetta. Vahva arkkitehtuuri antoi suuntaviitat uuden muotoiluun: peruskorjauksessa tehtyjen pienehköjen laajennusosienkin julkisivut toistavat niitä alkuperäisiä laatoitettuja seiniä, jotka jäivät laajennusten peittämiksi.
Korjausrakentamisen ongelmat vaativat arkkitehdilta näkemystä, sinnikkyyttä ja uskoa ratkaisun löytymiseen: julkisivulaattojen uudelleen valmistus onnistuu ja puhtaaksi lautamuottiin valetut alakatot voidaan säilyttää. Kaupunginteatterin vahva alkuperäinen arkkitehtuuri nosti luonnollisesti laatuvaatimuksen korkealle myös uusien ratkaisujen osalta.
Korjausprojekti myös opettaa tekijöitään. Tietotaitoa karttuu ja siirtyy 1960-luvun tekijöiltä nyt korjaustyön suunnittelijoille ja toteuttajille ja näiltä edelleen seuraavalle sukupolvelle. Vaativan työn onnistuessa kaikki työhön osallistuneet voivat tuntea ammattiylpeyttä.
Kirjoittaja Mikko Mannberg, arkkitehti SAFA TkL, oli LPR-arkkitehdit Oy:ssä mukana Helsingin kaupunginteatterin peruskorjauksen suunnittelutyöryhmässä, jonka pääsuunnittelija oli arkkitehti Pauno Narjus.
Artikkeli on julkaistu 2019.
HELSINGIN KAUPUNGINTEATTERIN SUUNNITTELIJAT 1960-LUVULLA JA 2010-LUVULLA
Arkkitehtuurikilpailu 1960–61, suunnittelu 1961–67, rakentamispäätös 1965, peruskiven muuraus 12.6.1965, rakentaminen toukokuusta 1965 syyskuuhun 1967, talon vihkiäiset 7.10.1967.
Kilpailuehdotus Arlecchino: Timo Penttilä ja Kari Virta, avustaja Pekka Ilveskoski.
Arkkitehtisuunnittelu: Arkkitehtitoimisto Timo Penttilä.
Rakennesuunnittelu: Insinööritoimisto Bertel Ekengren.
LVI-suunnittelu: Insinööritoimisto J. Saarto & Kumpp.
Sähkösuunnittelu: Insinööritoimisto Risto Mäenpää.
Akustinen suunnittelu: Insinööritoimisto P. Aarni & Co.
Maisemasuunnittelu: Helsingin kaupungin rakennusvirasto / Auli Hietakangas.
Pääurakoitsija: Rakennustoimisto Arvonen Oy, vastaava rakennusmestari Mauri Kivikoski.
Sähköurakoitsija: Sähkö Oy.
Laajennusosa Elsa, valmistui 1989.
Arkkitehtisuunnittelu: Arkkitehtitoimisto Oy Timo Penttilä – Kari Lind – Sakari Tilanterä.
Korjaustyö 2015–17.
Arkkitehtisuunnittelu: LPR-arkkitehdit Oy, pääsuunnittelija arkkitehti SAFA Pauno Narjus.
Maisemasuunnittelu: Maisemasuunnittelu Hemgård.
Rakennesuunnittelu: Insinööritoimisto Pontek Oy.
LVIA- ja sprinkler-suunnittelu: Optiplan Oy.
Sähkösuunnittelu: Rejlers Oy.
Julkisivuvalaistus: Granlund Oy.
Akustiikkasuunnittelu: Helimäki Akustikot Oy
Näyttämömekaniikan suunnittelu: Akumek Oy, TheatrePlan.
Esitystekniikan erityissuunnittelu: VAI-teatteri ky.
Esitystekniikan kaapeloinnin suunnittelu: Akukon Oy.
Palotekninen suunnittelu: L2 Paloturvallisuus Oy.
lukitussuunnittelu: Ekonia oy
Julkisivututkimukset: Vahanen Oy, Contesta Oy.
Julkisivujen kehitystyö: Otto Blümchen ja Pentik Oy.
Lämpiön kattopintojen ja ulkokatosten maalauskäsittelysuunnittelu: T:mi Modlari.
Korjauksen laajuus: 24 785 m2 (vanha osa), 645 m2 (laajennusosa)
Kustannukset: 67 miljoonaa euroa, josta 30% talotekniikka ja 15% teatteritekniikka.
LISÄTIETOA
Aikakausjulkaisut
Mäenpää, Risto 1967. Tekniikka näyttämöllä. Arkkitehti 1967: 10-11. Helsinki: Suomen Arkkitehtiliitto SAFA.
Norri, Marja-Riitta 1983. Taiteen ja Tilan ristiriita. Ralf Långbackan haastattelu. Arkkitehti 1983: 5-6. Helsinki: Suomen arkkitehtiliitto SAFA.
Penttilä, Timo 1981. Demokratian monumentit. Arkkitehti 1983:1. Helsinki: Suomen arkkitehtiliitto SAFA.
Painetut
Penttilä, Timo 2013. Oikeat ja väärät arkkitehdit. 2000 vuotta arkkitehtuuriteoriaa. toim. Kari Lind, Ulla Markelin ja Jorma Mukala. Helsinki: Gaudeamus.
Painamattomat
A-konsultit 2013. Helsingin kaupunginteatterin peruskorjaus. Hankesuunnitelma. Rakennustapaselostus.
A-konsultit 2013. Helsingin kaupunginteatterin peruskorjaus. Hankesuunnitelma. Rakennussuojeluperiaatteet.
Helsingin kaupunkisuunnitteluvirasto, Maija Lounamaa 2012. Helsingin kaupunginteatteri. Ympäristöhistoriallinen selvitys ja suojeluperiaatteet.
LPR-arkkitehdit Oy, Maisemasuunnittelu Hemgård & Insinööritoimisto Pontek oy 2015. Helsingin kaupunginteatteri. Peruskorjaus ja laajennus. Rakennusselostus
LPR-arkkitehdit Oy & Insinööritoimisto Pontek oy 2016. Helsingin kaupunginteatteri. Elsan julkisivukorjaus.
LPR-arkkitehdit Oy 2017. Helsingin kaupunginteatteri. Työmaadokumentointi 2015–17.
LPR-arkkitehdit Oy 2017. Helsingin kaupunginteatteri. Restaurointiraportti 2015–17.
LÄHTEET
Arkkitehti 1961:1 Kilpailuliite. Helsingin kaupunginteatterin suunnittelukilpailu. Helsinki: Suomen Arkkitehtiliitto SAFA.
DOCOMOMO 2017. Docomomo Suomi – Kohdevalikoima. toim. Sirkkaliisa Jetsonen, Petteri Kummala, Leena Makkonen & Jonas Malmberg, Helsinki: Docomomo Suomi Finland ry.
Koho, Timo 1991. Teatteriarkkitehtuurin merkitysarvot. Teatterirakentamisen suhde yhteiskunnan arvomaailmaan kaupungistuvassa Suomessa. Suomen muinaismuistoyhdistyksen aikakauskirja, 97. Helsinki: Suomen muinaismuistoyhdistys.
Korsberg, Hanna & Lylykangas, Kimmo 2007. Helsingin Kaupunginteatterin rakennus. Teoksessa Kansaa teatterissa. Helsingin Kaupunginteatterin historia. Toim. Pirkko Koski & Misa Palander. Helsinki: Like.
Penttilä, Timo 1967a. Helsingin kaupunginteatteri. Arkkitehti 1967: 10-11. Helsinki: Suomen Arkkitehtiliitto SAFA.
Penttilä, Timo 1967b. Teatterisuunnittelun lähtökohdista. Arkkitehti 1967: 10-11. Helsinki: Suomen Arkkitehtiliitto SAFA.
Asemakaavat
Helsingin kaupunkisuunnitteluvirasto: Asemakaava 19.8.2014, hyväksytty 25.2.2015, tullut voimaan 17.4.2015.
Painamattomat
Salonen, Kati & Schalin, Mona 2013. Helsingin kaupunginteatteri. Rakennushistorian selvitys ja inventointi. Kati Salonen ja Mona Schalin Arkkitehdit Oy.
Sähköpostit
Tekninen johtaja emeritus Keijo Kolin sähköposti arkkitehti Tiitta Itkoselle 15.10.2019.
VIITTEET
[1] RKY www.rky.fi
[2] Docomomo 2017.
[3] Asemakaavamuutos on kaupunginvaltuuston 15,2,2015 hyväksymä, ja se tuli voimaan 17.4.2015.
[4] Kilpailu järjestettiin 1960-61, alkuperäisosa valmistui 1967 ja laajennusosa Studio Elsa 1989.
[5] Arkkitehti 1 1961 Kilpailuliite, 3.
[6] Arkkitehti 1 1961 Kilpailuliite, 1.
[7] Penttilä 1967b, 25.
[8] Koho 1991, 15-17.
[9] Studiotila on intiimi, neutraali monitoimitila, jossa näyttämön ja katsomon asemaa ja suhdetta toisiinsa voidaan muuttaa edessä olevasta näyttämöstä katsomon täysin näyttämötilan ympäröivään areenateatteriin.
[10] Penttilä 1967b, 27.
[11] Penttilä 1967b, 27.
[12] Koho 1991, 15-17.
[13] Korsberg et al 2007, 63.
[14] Penttilä 1967a, 11.
[15] Penttilä oli työskennellyt Aarne Ervin ja tämä puolestaan Alvar Aallon toimistossa.
[16] Salonen et al 2013, 20-22.
[17] Salonen et al 2013, 24-26.
[18] Korsberg et al 2007, 65. Elsan ensi-illassa 1991 esitettiin Shakespearen Henrik IV.
[19] Tieto 15.10.2019 Helsingin Kaupunginteatterin tekniseltä johtajalta Keijo Kolilta, joka toimi korjausprojektissa projektinjohtajana.
[20] Arkkitehtitoimisto Kati Salonen ja Mona Schalin oy 2013.
[21] Salonen et al 2013, 251.
[22] Asemakaava 2015.
[23] Asemakaava 2015.
[24] Asemakaava 2015.
[25] LPR-arkkitehdit 2017.
_Oik.: Poltosta tulleet peruslaatat. Kuva: Pentik Oy 2017.
_Oik.: Julkisivulaattatestaus. Kuvat: LPR-arkkitehdit Oy 2017.
Julkisivulasit säilytetään
Lämpiön lasijulkisivu kunnostettiin suojelumääräysten velvoittamina edelleen yksilasisena, ehjät lasitukset ja patinoituneet pronssilistoitukset säilyttäen. Suorien lasiosien välisten nurkkataitteiden polykarbonaattilevyt uusittiin ultravioletti-suojatulla polykarbonaatilla. Lasiseinän rakenne oli rakennusfysikaalisesti puutteellinen. Rakenne tiivistettiin sekä vedenpitävyyden että höyrytiiveyden osalta. Lämpövuoto pitänee kastepisteen rakenteiden ulkopuolella.
Sisätilat säilyvät ennallaan
Sisätilojen kunnostuksen lähtökohtana oli tilarakenteen ja -hierarkian sekä alkuperäisten rakenteiden, materiaalien, valaistuksen, kiintokalustuksen, värityksen ja yksityiskohtien säilyttäminen. Korjaustoimet ja uudet elementit ovat täälläkin alisteisia alkuperäisille ratkaisuille. Modernin arkkitehtuurin korjauksessa tyypillinen vaikeus on säilyttää alkuperäiset yksityiskohdat, ja silti parantaa niiden teknisiä ominaisuuksia. Uusittavissa materiaaleissa haettiin alkuperäistä tasoa, laatua ja tunnelmaa vastaavia materiaaleja ja värejä. Erityisesti suojeluvyöhykkeellä 1 toimenpiteet harkittiin huolellisesti.
Suuri lämpiö
Lämpiön marmori- ja yleisö-wc-tilojen laattalattioita lukuun ottamatta kaikki lattiapinnat uusittiin. Kokolattiamatot vaihdettiin alkuperäisen värisiin ruskeisiin mattoihin. Puhdistettuihin marmorilattioihin ja kokolattiamattoalueelle lisättiin esteettömyyttä ajatellen messinkisiä kulunohjausraitoja ja huomionastoja.
Päälämpiön alakattopinnat uusittiin, koska pinta ei ollut riittävän vahva tartunta maalaukselle. Päälämpiön (osittain vahvikekankailla vahvistetut) rappauspinnat olivat paikoitellen alkaneet irrota: kattopintaa oli huoltomaalattu taajaan ja maalikerroksia oli runsaasti. Kattopinta tutkittiin kopoalueiden löytämiseksi. Rappauspintaa uusittiin ja korjattiin laajoilta alueilta ja koko katto maalattiin uudelleen silikaattimaaleilla. Kattopintojen korjauksen haasteeksi nousi niiden laajuus.
_Oik.: Alkuperäiset suuren katsomon ja suuren lämpiön kokolattiamattomallit. Kuva: Arkkitehtitoimisto Timo Penttilä 1967, Timo Penttilän arkisto, Arkkitehtuurimuseo.
Pieni lämpiö
Pienen lämpiön reikätiiliseinät purettiin tiilet säilyttäen teknisten asennusten ja vaimennusmateriaalien uusimista varten. Portaikko ja lämpiö saavat jälleen luonnonvaloa, kun aiemmin suljetut yläikkunat avattiin. Lämpiön ja katsomon välinen, koko tilan levyinen ääntä eristävä ja palo-osastoiva nosto-ovi uusittiin.
Kalusteet entisöitiin
Kalusteita kunnostettiin mittavasti. Yrjö Kukkapuron punaisella nahalla verhottuja alkuperäisiä Junior- ja Karuselli-tuoleja kunnostettiin henkilöstötiloihin. Kalustusta täydennettiin uusilla moderneilla tuoleilla, sohvilla, pöydillä ja naulakoilla. Niiden väritys noudattaa alkuperäisiä periaatteita: valkoista, hieman mustaa ja puhtaita, vahvoja värejä.
Varastosta löytyneet Maija Ruoslahden suunnittelemat messinkirukoiset kalusteet entisöitiin yleisötiloihin. Niiden nahkaosat korvattiin kestävällä tummanruskealla hybridinahalla. Samaa nahkaa vaaleanruskeana käytettiin yleisö-wc-tilojen sohvissa.
032 HKT MM
033 HKT MM
Näyttämöt ja katsomot
Suuren katsomon väreissä poikettiin hieman alkuperäisistä näyttelijöiden ja ohjaajien toivomuksesta: samettiverhoiluihin valittiin musta ja seinäkankaisiin punaisen ja mustan langan kudonnainen. Kokolattiamaton väriksi valittiin alkuperäinen tumma burgundinpunainen; jalkalistamatot ovat alkuperäisiä. Parven turvallisuutta kohennettiin lisäämällä matalaan etureunan kaiteeseen messinkiset reelinkikäsijohteet. Pienen katsomon tuolikangas kudottiin alkuperäisen väriseksi käyttäen mustanruskeaa ja siniturkoosia lankaa.
Kaikkien näyttämöiden esitystekniikka uusittiin ja akustiikkaa parannettiin diffuusiopintoja lisäämällä. Suuren ja pienen näyttämön alusrakenteet (pyöröt) uusittiin, ja suuren näyttämön näyttämöaukkoa kavennettiin ja orkesterimonttua syvennettiin. Marjatta Metsovaaran suunnittelema ”Colibri”-pilviesirippu (pinta-ala yli 400 m2, paino 200 kg) konservoitiin.
034 HKT MM
035 HKT MM
Henkilöstö- ja pukutilat
Henkilöstötiloissa säilytettiin tilajako ja -hierarkia, rakenteet, kiintokalusteet ja väliovien alkuperäinen värikoodaus. Työhuoneiden siniset, punaiset, keltaiset ja vihreät ovet säilytettiin. Suojelumääräysten mukaisesti pukuhuoneiden kalustus säilytettiin ja kunnostettiin: kaappeja parannettiin ilmastoinnilla, valaisimilla ja uusilla varusteilla. Taipuneiden kimpilevyjen oikaiseminen oli haastava puusepän taidonnäyte.
036 HKT MM
037 HKT MM
Talotekniikan yhteensovittamisesta vastaa pääsuunnittelija
Pääosa peruskorjaustyöstä keskittyi talo- ja näyttämötekniikan uudistamiseen, akustiikan parantamiseen sekä tilojen ilmanvaihdon ja valaistustason tehostamiseen. Talotekniikan yhteensovittaminen, joka on pääsuunnittelijan vastuulla, on aina onnistuneen lopputuloksen ja rakennussuojelun kannalta ensiarvoista, jotta tekniset vedot saadaan kätkettyä sekä sisätiloissa että julkisivuissa tai jotta löydetään niille vaihtoehtoisia reittejä.
038 HKT MM
039 HKT MM
Vaativat alakatot
Yksityiskohdista henkilöstötilojen käytävien puhtaaksi lautamuottiin valettujen betonialakattojen korjaus ja uuden ilmanvaihtotekniikan sijoittaminen alakaton yläpuolelle oli yksi vaativimmista, säilyttämisen kannalta oleellisimmista tehtävistä. Alakattojen otsapinnat purettiin kanavien asentamiseksi, mutta joissakin työhuoneissa jouduttiin sahaamaan avauskaistat, jotka asennusten jälkeen levytettiin umpeen ja viimeisteltiin muottilaudoituksen suuntaisella rimoituksella. Asennuksen aikana betonialakattojen reunat tuettiin ripustamalla ne välipohjista. Lopuksi otsapinnat verhottiin saranoiduin akustorapatuin levyin.
040 HKT MM
041 HKT MM
Valo on osa rakennussuojelua
Valaistuksen laatua harkittiin suojelunäkökulmasta. Koska rakennuksen arkkitehtuuri pyrkii häivyttämään sisä- ja ulkotilan välisen rajapinnan, tavoiteltiin sisä- ja ulkovalaistuksessa värilämpötilan yhdenmukaisuutta. Kaikissa yleisötiloissa ja sisätiloihin liittyvissä ulkotiloissa värilämpötilaksi haettiin 3000 K, henkilökunta-alueella 4000 K.
Julkisivuvalaistus nostaa esiin rakennuksen arkkitehtuurin pimeään aikaan ja kaukomaisemassa: kaupunginteatteri, Finlandia-talo ja Oopperatalo muodostavat Töölönlahden kulttuurirakennusten kokonaisuuden. Näyttämötorni valaistaan horisontaaliosia voimakkaammin, ja valojen suuntaus haettiin korostamaan klinkkeripinnan elävyyttä ja näyttämötornin muodon taitteisuutta. Julkisivuvalaistus on säädettävissä: perussävy on valkoinen (värilämpötila 3000 K), mutta led-optiikka sallii myös värillisten valojen käytön erikoistilanteissa.
042 HKT MM
Kaksituhatta suojeltua valaisinta
Sisätilojen alkuperäiset valaisimet kunnostettiin ja uudistettiin sähköteknisesti. Lisäksi valikoimaa täydennettiin uusilla valaisimilla lämpiöissä, suuressa katsomossa, pienen lämpiön vaatesäilytyksessä ja ruokalassa. Toimistohuoneisiin tuotiin nykyaikaiset led-mikroprismavalaisimet. Valolähteet vaihdettiin led-tekniikkaan, ja kuhunkin tilaan voidaan nyt hakea sopiva valaistustaso. Fasetti Oy kunnosti ja sähköisti lähes kaksituhatta suojeltua valaisinta.
1960-luvun teatteripiha ja puisto kuntoon
Teatterin pihojen ja Tarja Halosen puiston kokonaisuuteen palautettiin 1960-luvun ilme. Luonnonkivimuureja korjattiin ja istutusalueet kunnostettiin Maisemasuunnittelu Hemgårdin ohjeistuksen mukaisesti. Näkymien tielle kasvaneet 1970-luvulla istutetut kuuset kaadettiin. Kolmannen kerroksen kabinettilaajennuksen eteen alkuperäisen rakennuksen ja muurin rajaamaan katveeseen istutettiin viehättävä kukkaketo. Ulko-alueille sijoitettiin myös yksinkertaisia uusia ulkopenkkejä, opasteita ja valaisimia sekä villiviini-istutusaltaita estämään pääsyä kattoalueelle.
043 HKT MM
Esteettömyys ulottuu paikoitusalueilta katsomopaikoille asti
Esteettömyyttä parannettiin paikoitusalueilta aina istuinpaikoille asti. Paikoitukseen lisättiin maksuttomia liikuntaesteisen autopaikkoja ja saattoliikenne pääsee sisäänkäyntien äärelle. Ulkokiveyksen tasoeroja poistettiin, olemassa ollutta eteläjulkisivun luiskaa pidennettiin, ja sisäänkäyntien yhteen oveen asennettiin ovitutka-automatiikka. Hisseistä kolme uudistettiin esteettömiksi ja varustettiin automaattiovin sekä kerroskohonumeroin ja -tekstein. Lämpiöiden lattioihin asennettiin ohjauslistoja ja lattiatunnisteita. Valaistusta tehostettiin erityisesti kokolattiamattoalueilla. Askelmien etureunoihin lisättiin katsomossa led-valaistus, ja penkkiriveihin asennettiin kohonumeroin rivi- ja paikkatunnisteet.
044 HKT MM
Pyörätuolipaikkoja on suuressa katsomossa kahdeksan ja pienessä neljä. Studio Elsan permannolle voi osoittaa pyörätuolipaikkoja tarpeen mukaan. Suuressa katsomossa induktiosilmukka-asennukset kattavat kaikki katsomopaikat, pienessä osan paikoista.
Kuunteluympäristön parantamiseksi rima- ja tekstiilipintojen taustamateriaalit uusittiin absorptioltaan aiempaa paremmiksi. Esteettömiä wc-tiloja lisättiin yleisötiloihin. Pääkulkureittien ovia levennettiin ja huomiota kiinnitettiin irtokalusteiden sijoitteluun. Opasteita selkiytettiin ja täydennettiin.
Restaurointiraportti tallentaa ja välittää tietoa toteutusratkaisuista
Kun työmaa oli valmis, arkkitehti laati korjaustyöstä työmaa- ja restaurointidokumentit. Nämä jälkidokumentit ovat arvokkaita rakennushistoriaselvityksen jatkeita ja tarjoavat yksityiskohtaista tietoa rakennuksen ylläpitäjille ja tuleville suunnittelijoille. Niiden avulla voi myöhemmin arvioida tehtyjä ratkaisuja. Kaupunginteatterista dokumenttien laatimiseen velvoitti asemakaava ja niille varattiin oma budjettinsa.
KORJAAMINEN ON VAATIVAA JA ONNISTUESSAAN PALKITSEVAA
Helsingin kaupunginteatteri on erittäin vaativa korjauskohde. Rakennuksella on tärkeä asema kaupunkikuvassa ja se on yksityiskohdiltaan rikas ja monipuolinen. Vaativuutta lisää se, että rakennusta arvostetaan suomalaisessa arkkitehtuurin historiassa ja teatteritaiteen kulttuurihistoriassa. Rakennuksen ensimmäinen peruskorjausprojekti ulottui koko rakennukseen.
Korjaussuunnittelun lähtökohta oli kaikkia alkuperäisiä ratkaisuja kunnioittava, niihin tutkivasti ja nöyrästi suhtautuva, mutta ei nöyristelevä. Uudet välttämättömät lisäykset ovat tätä aikaa, mutta ne ovat sukua alkuperäiseen arkkitehtuuriin materiaalin, muodon, tilan tai järjestysperiaatteen tasolla. Näin ympäristöön syntyy parhaassa tapauksessa hallittua ajallista kerrostuneisuutta, merkkejä eri vuosikymmenistä ja -sadoista.
045 HKT MM
Helsingin kaupunginteatteri lähiympäristöineen on vahva kokonaistaideteos. Sen arkkitehtuuri on poikkeuksellisen hyvin säilynyt ja se toimii alkuperäisessä teatterikäytössä. Suuriin muutoksiin ei ollut tarvetta. Vahva arkkitehtuuri antoi suuntaviitat uuden muotoiluun: peruskorjauksessa tehtyjen pienehköjen laajennusosienkin julkisivut toistavat niitä alkuperäisiä laatoitettuja seiniä, jotka jäivät laajennusten peittämiksi.
Korjausrakentamisen ongelmat vaativat arkkitehdilta näkemystä, sinnikkyyttä ja uskoa ratkaisun löytymiseen: julkisivulaattojen uudelleen valmistus onnistuu ja puhtaaksi lautamuottiin valetut alakatot voidaan säilyttää. Kaupunginteatterin vahva alkuperäinen arkkitehtuuri nosti luonnollisesti laatuvaatimuksen korkealle myös uusien ratkaisujen osalta.
Korjausprojekti myös opettaa tekijöitään. Tietotaitoa karttuu ja siirtyy 1960-luvun tekijöiltä nyt korjaustyön suunnittelijoille ja toteuttajille ja näiltä edelleen seuraavalle sukupolvelle. Vaativan työn onnistuessa kaikki työhön osallistuneet voivat tuntea ammattiylpeyttä.
Kirjoittaja Mikko Mannberg, arkkitehti SAFA TkL, oli LPR-arkkitehdit Oy:ssä mukana Helsingin kaupunginteatterin peruskorjauksen suunnittelutyöryhmässä, jonka pääsuunnittelija oli arkkitehti Pauno Narjus.
Artikkeli on julkaistu 2019.
HELSINGIN KAUPUNGINTEATTERIN SUUNNITTELIJAT 1960-LUVULLA JA 2010-LUVULLA
Arkkitehtuurikilpailu 1960–61, suunnittelu 1961–67, rakentamispäätös 1965, peruskiven muuraus 12.6.1965, rakentaminen toukokuusta 1965 syyskuuhun 1967, talon vihkiäiset 7.10.1967.
Kilpailuehdotus Arlecchino: Timo Penttilä ja Kari Virta, avustaja Pekka Ilveskoski.
Arkkitehtisuunnittelu: Arkkitehtitoimisto Timo Penttilä.
Rakennesuunnittelu: Insinööritoimisto Bertel Ekengren.
LVI-suunnittelu: Insinööritoimisto J. Saarto & Kumpp.
Sähkösuunnittelu: Insinööritoimisto Risto Mäenpää.
Akustinen suunnittelu: Insinööritoimisto P. Aarni & Co.
Maisemasuunnittelu: Helsingin kaupungin rakennusvirasto / Auli Hietakangas.
Pääurakoitsija: Rakennustoimisto Arvonen Oy, vastaava rakennusmestari Mauri Kivikoski.
Sähköurakoitsija: Sähkö Oy.
Laajennusosa Elsa, valmistui 1989.
Arkkitehtisuunnittelu: Arkkitehtitoimisto Oy Timo Penttilä – Kari Lind – Sakari Tilanterä.
Korjaustyö 2015–17.
Arkkitehtisuunnittelu: LPR-arkkitehdit Oy, pääsuunnittelija arkkitehti SAFA Pauno Narjus.
Maisemasuunnittelu: Maisemasuunnittelu Hemgård.
Rakennesuunnittelu: Insinööritoimisto Pontek Oy.
LVIA- ja sprinkler-suunnittelu: Optiplan Oy.
Sähkösuunnittelu: Rejlers Oy.
Julkisivuvalaistus: Granlund Oy.
Akustiikkasuunnittelu: Helimäki Akustikot Oy
Näyttämömekaniikan suunnittelu: Akumek Oy, TheatrePlan.
Esitystekniikan erityissuunnittelu: VAI-teatteri ky.
Esitystekniikan kaapeloinnin suunnittelu: Akukon Oy.
Palotekninen suunnittelu: L2 Paloturvallisuus Oy.
lukitussuunnittelu: Ekonia oy
Julkisivututkimukset: Vahanen Oy, Contesta Oy.
Julkisivujen kehitystyö: Otto Blümchen ja Pentik Oy.
Lämpiön kattopintojen ja ulkokatosten maalauskäsittelysuunnittelu: T:mi Modlari.
Korjauksen laajuus: 24 785 m2 (vanha osa), 645 m2 (laajennusosa)
Kustannukset: 67 miljoonaa euroa, josta 30% talotekniikka ja 15% teatteritekniikka.
LISÄTIETOA
Aikakausjulkaisut
Mäenpää, Risto 1967. Tekniikka näyttämöllä. Arkkitehti 1967: 10-11. Helsinki: Suomen Arkkitehtiliitto SAFA.
Norri, Marja-Riitta 1983. Taiteen ja Tilan ristiriita. Ralf Långbackan haastattelu. Arkkitehti 1983: 5-6. Helsinki: Suomen arkkitehtiliitto SAFA.
Penttilä, Timo 1981. Demokratian monumentit. Arkkitehti 1983:1. Helsinki: Suomen arkkitehtiliitto SAFA.
Painetut
Penttilä, Timo 2013. Oikeat ja väärät arkkitehdit. 2000 vuotta arkkitehtuuriteoriaa. toim. Kari Lind, Ulla Markelin ja Jorma Mukala. Helsinki: Gaudeamus.
Painamattomat
A-konsultit 2013. Helsingin kaupunginteatterin peruskorjaus. Hankesuunnitelma. Rakennustapaselostus.
A-konsultit 2013. Helsingin kaupunginteatterin peruskorjaus. Hankesuunnitelma. Rakennussuojeluperiaatteet.
Helsingin kaupunkisuunnitteluvirasto, Maija Lounamaa 2012. Helsingin kaupunginteatteri. Ympäristöhistoriallinen selvitys ja suojeluperiaatteet.
LPR-arkkitehdit Oy, Maisemasuunnittelu Hemgård & Insinööritoimisto Pontek oy 2015. Helsingin kaupunginteatteri. Peruskorjaus ja laajennus. Rakennusselostus
LPR-arkkitehdit Oy & Insinööritoimisto Pontek oy 2016. Helsingin kaupunginteatteri. Elsan julkisivukorjaus.
LPR-arkkitehdit Oy 2017. Helsingin kaupunginteatteri. Työmaadokumentointi 2015–17.
LPR-arkkitehdit Oy 2017. Helsingin kaupunginteatteri. Restaurointiraportti 2015–17.
LÄHTEET
Arkkitehti 1961:1 Kilpailuliite. Helsingin kaupunginteatterin suunnittelukilpailu. Helsinki: Suomen Arkkitehtiliitto SAFA.
DOCOMOMO 2017. Docomomo Suomi – Kohdevalikoima. toim. Sirkkaliisa Jetsonen, Petteri Kummala, Leena Makkonen & Jonas Malmberg, Helsinki: Docomomo Suomi Finland ry.
Koho, Timo 1991. Teatteriarkkitehtuurin merkitysarvot. Teatterirakentamisen suhde yhteiskunnan arvomaailmaan kaupungistuvassa Suomessa. Suomen muinaismuistoyhdistyksen aikakauskirja, 97. Helsinki: Suomen muinaismuistoyhdistys.
Korsberg, Hanna & Lylykangas, Kimmo 2007. Helsingin Kaupunginteatterin rakennus. Teoksessa Kansaa teatterissa. Helsingin Kaupunginteatterin historia. Toim. Pirkko Koski & Misa Palander. Helsinki: Like.
Penttilä, Timo 1967a. Helsingin kaupunginteatteri. Arkkitehti 1967: 10-11. Helsinki: Suomen Arkkitehtiliitto SAFA.
Penttilä, Timo 1967b. Teatterisuunnittelun lähtökohdista. Arkkitehti 1967: 10-11. Helsinki: Suomen Arkkitehtiliitto SAFA.
Asemakaavat
Helsingin kaupunkisuunnitteluvirasto: Asemakaava 19.8.2014, hyväksytty 25.2.2015, tullut voimaan 17.4.2015.
Painamattomat
Salonen, Kati & Schalin, Mona 2013. Helsingin kaupunginteatteri. Rakennushistorian selvitys ja inventointi. Kati Salonen ja Mona Schalin Arkkitehdit Oy.
Sähköpostit
Tekninen johtaja emeritus Keijo Kolin sähköposti arkkitehti Tiitta Itkoselle 15.10.2019.
VIITTEET
[1] RKY www.rky.fi
[2] Docomomo 2017.
[3] Asemakaavamuutos on kaupunginvaltuuston 15,2,2015 hyväksymä, ja se tuli voimaan 17.4.2015.
[4] Kilpailu järjestettiin 1960-61, alkuperäisosa valmistui 1967 ja laajennusosa Studio Elsa 1989.
[5] Arkkitehti 1 1961 Kilpailuliite, 3.
[6] Arkkitehti 1 1961 Kilpailuliite, 1.
[7] Penttilä 1967b, 25.
[8] Koho 1991, 15-17.
[9] Studiotila on intiimi, neutraali monitoimitila, jossa näyttämön ja katsomon asemaa ja suhdetta toisiinsa voidaan muuttaa edessä olevasta näyttämöstä katsomon täysin näyttämötilan ympäröivään areenateatteriin.
[10] Penttilä 1967b, 27.
[11] Penttilä 1967b, 27.
[12] Koho 1991, 15-17.
[13] Korsberg et al 2007, 63.
[14] Penttilä 1967a, 11.
[15] Penttilä oli työskennellyt Aarne Ervin ja tämä puolestaan Alvar Aallon toimistossa.
[16] Salonen et al 2013, 20-22.
[17] Salonen et al 2013, 24-26.
[18] Korsberg et al 2007, 65. Elsan ensi-illassa 1991 esitettiin Shakespearen Henrik IV.
[19] Tieto 15.10.2019 Helsingin Kaupunginteatterin tekniseltä johtajalta Keijo Kolilta, joka toimi korjausprojektissa projektinjohtajana.
[20] Arkkitehtitoimisto Kati Salonen ja Mona Schalin oy 2013.
[21] Salonen et al 2013, 251.
[22] Asemakaava 2015.
[23] Asemakaava 2015.
[24] Asemakaava 2015.
[25] LPR-arkkitehdit 2017.
_Oik.: Yleisö-wc nahkasohvineen kunnostettuna.
Kuvat: LPR-arkkitehdit Oy 2017.
Kuvat: LPR-arkkitehdit Oy 2017.
Näyttämöt ja katsomot
Suuren katsomon väreissä poikettiin hieman alkuperäisistä näyttelijöiden ja ohjaajien toivomuksesta: samettiverhoiluihin valittiin musta ja seinäkankaisiin punaisen ja mustan langan kudonnainen. Kokolattiamaton väriksi valittiin alkuperäinen tumma burgundinpunainen; jalkalistamatot ovat alkuperäisiä. Parven turvallisuutta kohennettiin lisäämällä matalaan etureunan kaiteeseen messinkiset reelinkikäsijohteet. Pienen katsomon tuolikangas kudottiin alkuperäisen väriseksi käyttäen mustanruskeaa ja siniturkoosia lankaa.
Kaikkien näyttämöiden esitystekniikka uusittiin ja akustiikkaa parannettiin diffuusiopintoja lisäämällä. Suuren ja pienen näyttämön alusrakenteet (pyöröt) uusittiin, ja suuren näyttämön näyttämöaukkoa kavennettiin ja orkesterimonttua syvennettiin. Marjatta Metsovaaran suunnittelema ”Colibri”-pilviesirippu (pinta-ala yli 400 m2, paino 200 kg) konservoitiin.
034 HKT MM
035 HKT MM
Henkilöstö- ja pukutilat
Henkilöstötiloissa säilytettiin tilajako ja -hierarkia, rakenteet, kiintokalusteet ja väliovien alkuperäinen värikoodaus. Työhuoneiden siniset, punaiset, keltaiset ja vihreät ovet säilytettiin. Suojelumääräysten mukaisesti pukuhuoneiden kalustus säilytettiin ja kunnostettiin: kaappeja parannettiin ilmastoinnilla, valaisimilla ja uusilla varusteilla. Taipuneiden kimpilevyjen oikaiseminen oli haastava puusepän taidonnäyte.
036 HKT MM
037 HKT MM
Talotekniikan yhteensovittamisesta vastaa pääsuunnittelija
Pääosa peruskorjaustyöstä keskittyi talo- ja näyttämötekniikan uudistamiseen, akustiikan parantamiseen sekä tilojen ilmanvaihdon ja valaistustason tehostamiseen. Talotekniikan yhteensovittaminen, joka on pääsuunnittelijan vastuulla, on aina onnistuneen lopputuloksen ja rakennussuojelun kannalta ensiarvoista, jotta tekniset vedot saadaan kätkettyä sekä sisätiloissa että julkisivuissa tai jotta löydetään niille vaihtoehtoisia reittejä.
038 HKT MM
039 HKT MM
Vaativat alakatot
Yksityiskohdista henkilöstötilojen käytävien puhtaaksi lautamuottiin valettujen betonialakattojen korjaus ja uuden ilmanvaihtotekniikan sijoittaminen alakaton yläpuolelle oli yksi vaativimmista, säilyttämisen kannalta oleellisimmista tehtävistä. Alakattojen otsapinnat purettiin kanavien asentamiseksi, mutta joissakin työhuoneissa jouduttiin sahaamaan avauskaistat, jotka asennusten jälkeen levytettiin umpeen ja viimeisteltiin muottilaudoituksen suuntaisella rimoituksella. Asennuksen aikana betonialakattojen reunat tuettiin ripustamalla ne välipohjista. Lopuksi otsapinnat verhottiin saranoiduin akustorapatuin levyin.
040 HKT MM
041 HKT MM
Valo on osa rakennussuojelua
Valaistuksen laatua harkittiin suojelunäkökulmasta. Koska rakennuksen arkkitehtuuri pyrkii häivyttämään sisä- ja ulkotilan välisen rajapinnan, tavoiteltiin sisä- ja ulkovalaistuksessa värilämpötilan yhdenmukaisuutta. Kaikissa yleisötiloissa ja sisätiloihin liittyvissä ulkotiloissa värilämpötilaksi haettiin 3000 K, henkilökunta-alueella 4000 K.
Julkisivuvalaistus nostaa esiin rakennuksen arkkitehtuurin pimeään aikaan ja kaukomaisemassa: kaupunginteatteri, Finlandia-talo ja Oopperatalo muodostavat Töölönlahden kulttuurirakennusten kokonaisuuden. Näyttämötorni valaistaan horisontaaliosia voimakkaammin, ja valojen suuntaus haettiin korostamaan klinkkeripinnan elävyyttä ja näyttämötornin muodon taitteisuutta. Julkisivuvalaistus on säädettävissä: perussävy on valkoinen (värilämpötila 3000 K), mutta led-optiikka sallii myös värillisten valojen käytön erikoistilanteissa.
042 HKT MM
Kaksituhatta suojeltua valaisinta
Sisätilojen alkuperäiset valaisimet kunnostettiin ja uudistettiin sähköteknisesti. Lisäksi valikoimaa täydennettiin uusilla valaisimilla lämpiöissä, suuressa katsomossa, pienen lämpiön vaatesäilytyksessä ja ruokalassa. Toimistohuoneisiin tuotiin nykyaikaiset led-mikroprismavalaisimet. Valolähteet vaihdettiin led-tekniikkaan, ja kuhunkin tilaan voidaan nyt hakea sopiva valaistustaso. Fasetti Oy kunnosti ja sähköisti lähes kaksituhatta suojeltua valaisinta.
1960-luvun teatteripiha ja puisto kuntoon
Teatterin pihojen ja Tarja Halosen puiston kokonaisuuteen palautettiin 1960-luvun ilme. Luonnonkivimuureja korjattiin ja istutusalueet kunnostettiin Maisemasuunnittelu Hemgårdin ohjeistuksen mukaisesti. Näkymien tielle kasvaneet 1970-luvulla istutetut kuuset kaadettiin. Kolmannen kerroksen kabinettilaajennuksen eteen alkuperäisen rakennuksen ja muurin rajaamaan katveeseen istutettiin viehättävä kukkaketo. Ulko-alueille sijoitettiin myös yksinkertaisia uusia ulkopenkkejä, opasteita ja valaisimia sekä villiviini-istutusaltaita estämään pääsyä kattoalueelle.
043 HKT MM
Esteettömyys ulottuu paikoitusalueilta katsomopaikoille asti
Esteettömyyttä parannettiin paikoitusalueilta aina istuinpaikoille asti. Paikoitukseen lisättiin maksuttomia liikuntaesteisen autopaikkoja ja saattoliikenne pääsee sisäänkäyntien äärelle. Ulkokiveyksen tasoeroja poistettiin, olemassa ollutta eteläjulkisivun luiskaa pidennettiin, ja sisäänkäyntien yhteen oveen asennettiin ovitutka-automatiikka. Hisseistä kolme uudistettiin esteettömiksi ja varustettiin automaattiovin sekä kerroskohonumeroin ja -tekstein. Lämpiöiden lattioihin asennettiin ohjauslistoja ja lattiatunnisteita. Valaistusta tehostettiin erityisesti kokolattiamattoalueilla. Askelmien etureunoihin lisättiin katsomossa led-valaistus, ja penkkiriveihin asennettiin kohonumeroin rivi- ja paikkatunnisteet.
044 HKT MM
Pyörätuolipaikkoja on suuressa katsomossa kahdeksan ja pienessä neljä. Studio Elsan permannolle voi osoittaa pyörätuolipaikkoja tarpeen mukaan. Suuressa katsomossa induktiosilmukka-asennukset kattavat kaikki katsomopaikat, pienessä osan paikoista.
Kuunteluympäristön parantamiseksi rima- ja tekstiilipintojen taustamateriaalit uusittiin absorptioltaan aiempaa paremmiksi. Esteettömiä wc-tiloja lisättiin yleisötiloihin. Pääkulkureittien ovia levennettiin ja huomiota kiinnitettiin irtokalusteiden sijoitteluun. Opasteita selkiytettiin ja täydennettiin.
Restaurointiraportti tallentaa ja välittää tietoa toteutusratkaisuista
Kun työmaa oli valmis, arkkitehti laati korjaustyöstä työmaa- ja restaurointidokumentit. Nämä jälkidokumentit ovat arvokkaita rakennushistoriaselvityksen jatkeita ja tarjoavat yksityiskohtaista tietoa rakennuksen ylläpitäjille ja tuleville suunnittelijoille. Niiden avulla voi myöhemmin arvioida tehtyjä ratkaisuja. Kaupunginteatterista dokumenttien laatimiseen velvoitti asemakaava ja niille varattiin oma budjettinsa.
KORJAAMINEN ON VAATIVAA JA ONNISTUESSAAN PALKITSEVAA
Helsingin kaupunginteatteri on erittäin vaativa korjauskohde. Rakennuksella on tärkeä asema kaupunkikuvassa ja se on yksityiskohdiltaan rikas ja monipuolinen. Vaativuutta lisää se, että rakennusta arvostetaan suomalaisessa arkkitehtuurin historiassa ja teatteritaiteen kulttuurihistoriassa. Rakennuksen ensimmäinen peruskorjausprojekti ulottui koko rakennukseen.
Korjaussuunnittelun lähtökohta oli kaikkia alkuperäisiä ratkaisuja kunnioittava, niihin tutkivasti ja nöyrästi suhtautuva, mutta ei nöyristelevä. Uudet välttämättömät lisäykset ovat tätä aikaa, mutta ne ovat sukua alkuperäiseen arkkitehtuuriin materiaalin, muodon, tilan tai järjestysperiaatteen tasolla. Näin ympäristöön syntyy parhaassa tapauksessa hallittua ajallista kerrostuneisuutta, merkkejä eri vuosikymmenistä ja -sadoista.
045 HKT MM
Helsingin kaupunginteatteri lähiympäristöineen on vahva kokonaistaideteos. Sen arkkitehtuuri on poikkeuksellisen hyvin säilynyt ja se toimii alkuperäisessä teatterikäytössä. Suuriin muutoksiin ei ollut tarvetta. Vahva arkkitehtuuri antoi suuntaviitat uuden muotoiluun: peruskorjauksessa tehtyjen pienehköjen laajennusosienkin julkisivut toistavat niitä alkuperäisiä laatoitettuja seiniä, jotka jäivät laajennusten peittämiksi.
Korjausrakentamisen ongelmat vaativat arkkitehdilta näkemystä, sinnikkyyttä ja uskoa ratkaisun löytymiseen: julkisivulaattojen uudelleen valmistus onnistuu ja puhtaaksi lautamuottiin valetut alakatot voidaan säilyttää. Kaupunginteatterin vahva alkuperäinen arkkitehtuuri nosti luonnollisesti laatuvaatimuksen korkealle myös uusien ratkaisujen osalta.
Korjausprojekti myös opettaa tekijöitään. Tietotaitoa karttuu ja siirtyy 1960-luvun tekijöiltä nyt korjaustyön suunnittelijoille ja toteuttajille ja näiltä edelleen seuraavalle sukupolvelle. Vaativan työn onnistuessa kaikki työhön osallistuneet voivat tuntea ammattiylpeyttä.
Kirjoittaja Mikko Mannberg, arkkitehti SAFA TkL, oli LPR-arkkitehdit Oy:ssä mukana Helsingin kaupunginteatterin peruskorjauksen suunnittelutyöryhmässä, jonka pääsuunnittelija oli arkkitehti Pauno Narjus.
Artikkeli on julkaistu 2019.
HELSINGIN KAUPUNGINTEATTERIN SUUNNITTELIJAT 1960-LUVULLA JA 2010-LUVULLA
Arkkitehtuurikilpailu 1960–61, suunnittelu 1961–67, rakentamispäätös 1965, peruskiven muuraus 12.6.1965, rakentaminen toukokuusta 1965 syyskuuhun 1967, talon vihkiäiset 7.10.1967.
Kilpailuehdotus Arlecchino: Timo Penttilä ja Kari Virta, avustaja Pekka Ilveskoski.
Arkkitehtisuunnittelu: Arkkitehtitoimisto Timo Penttilä.
Rakennesuunnittelu: Insinööritoimisto Bertel Ekengren.
LVI-suunnittelu: Insinööritoimisto J. Saarto & Kumpp.
Sähkösuunnittelu: Insinööritoimisto Risto Mäenpää.
Akustinen suunnittelu: Insinööritoimisto P. Aarni & Co.
Maisemasuunnittelu: Helsingin kaupungin rakennusvirasto / Auli Hietakangas.
Pääurakoitsija: Rakennustoimisto Arvonen Oy, vastaava rakennusmestari Mauri Kivikoski.
Sähköurakoitsija: Sähkö Oy.
Laajennusosa Elsa, valmistui 1989.
Arkkitehtisuunnittelu: Arkkitehtitoimisto Oy Timo Penttilä – Kari Lind – Sakari Tilanterä.
Korjaustyö 2015–17.
Arkkitehtisuunnittelu: LPR-arkkitehdit Oy, pääsuunnittelija arkkitehti SAFA Pauno Narjus.
Maisemasuunnittelu: Maisemasuunnittelu Hemgård.
Rakennesuunnittelu: Insinööritoimisto Pontek Oy.
LVIA- ja sprinkler-suunnittelu: Optiplan Oy.
Sähkösuunnittelu: Rejlers Oy.
Julkisivuvalaistus: Granlund Oy.
Akustiikkasuunnittelu: Helimäki Akustikot Oy
Näyttämömekaniikan suunnittelu: Akumek Oy, TheatrePlan.
Esitystekniikan erityissuunnittelu: VAI-teatteri ky.
Esitystekniikan kaapeloinnin suunnittelu: Akukon Oy.
Palotekninen suunnittelu: L2 Paloturvallisuus Oy.
lukitussuunnittelu: Ekonia oy
Julkisivututkimukset: Vahanen Oy, Contesta Oy.
Julkisivujen kehitystyö: Otto Blümchen ja Pentik Oy.
Lämpiön kattopintojen ja ulkokatosten maalauskäsittelysuunnittelu: T:mi Modlari.
Korjauksen laajuus: 24 785 m2 (vanha osa), 645 m2 (laajennusosa)
Kustannukset: 67 miljoonaa euroa, josta 30% talotekniikka ja 15% teatteritekniikka.
LISÄTIETOA
Aikakausjulkaisut
Mäenpää, Risto 1967. Tekniikka näyttämöllä. Arkkitehti 1967: 10-11. Helsinki: Suomen Arkkitehtiliitto SAFA.
Norri, Marja-Riitta 1983. Taiteen ja Tilan ristiriita. Ralf Långbackan haastattelu. Arkkitehti 1983: 5-6. Helsinki: Suomen arkkitehtiliitto SAFA.
Penttilä, Timo 1981. Demokratian monumentit. Arkkitehti 1983:1. Helsinki: Suomen arkkitehtiliitto SAFA.
Painetut
Penttilä, Timo 2013. Oikeat ja väärät arkkitehdit. 2000 vuotta arkkitehtuuriteoriaa. toim. Kari Lind, Ulla Markelin ja Jorma Mukala. Helsinki: Gaudeamus.
Painamattomat
A-konsultit 2013. Helsingin kaupunginteatterin peruskorjaus. Hankesuunnitelma. Rakennustapaselostus.
A-konsultit 2013. Helsingin kaupunginteatterin peruskorjaus. Hankesuunnitelma. Rakennussuojeluperiaatteet.
Helsingin kaupunkisuunnitteluvirasto, Maija Lounamaa 2012. Helsingin kaupunginteatteri. Ympäristöhistoriallinen selvitys ja suojeluperiaatteet.
LPR-arkkitehdit Oy, Maisemasuunnittelu Hemgård & Insinööritoimisto Pontek oy 2015. Helsingin kaupunginteatteri. Peruskorjaus ja laajennus. Rakennusselostus
LPR-arkkitehdit Oy & Insinööritoimisto Pontek oy 2016. Helsingin kaupunginteatteri. Elsan julkisivukorjaus.
LPR-arkkitehdit Oy 2017. Helsingin kaupunginteatteri. Työmaadokumentointi 2015–17.
LPR-arkkitehdit Oy 2017. Helsingin kaupunginteatteri. Restaurointiraportti 2015–17.
LÄHTEET
Arkkitehti 1961:1 Kilpailuliite. Helsingin kaupunginteatterin suunnittelukilpailu. Helsinki: Suomen Arkkitehtiliitto SAFA.
DOCOMOMO 2017. Docomomo Suomi – Kohdevalikoima. toim. Sirkkaliisa Jetsonen, Petteri Kummala, Leena Makkonen & Jonas Malmberg, Helsinki: Docomomo Suomi Finland ry.
Koho, Timo 1991. Teatteriarkkitehtuurin merkitysarvot. Teatterirakentamisen suhde yhteiskunnan arvomaailmaan kaupungistuvassa Suomessa. Suomen muinaismuistoyhdistyksen aikakauskirja, 97. Helsinki: Suomen muinaismuistoyhdistys.
Korsberg, Hanna & Lylykangas, Kimmo 2007. Helsingin Kaupunginteatterin rakennus. Teoksessa Kansaa teatterissa. Helsingin Kaupunginteatterin historia. Toim. Pirkko Koski & Misa Palander. Helsinki: Like.
Penttilä, Timo 1967a. Helsingin kaupunginteatteri. Arkkitehti 1967: 10-11. Helsinki: Suomen Arkkitehtiliitto SAFA.
Penttilä, Timo 1967b. Teatterisuunnittelun lähtökohdista. Arkkitehti 1967: 10-11. Helsinki: Suomen Arkkitehtiliitto SAFA.
Asemakaavat
Helsingin kaupunkisuunnitteluvirasto: Asemakaava 19.8.2014, hyväksytty 25.2.2015, tullut voimaan 17.4.2015.
Painamattomat
Salonen, Kati & Schalin, Mona 2013. Helsingin kaupunginteatteri. Rakennushistorian selvitys ja inventointi. Kati Salonen ja Mona Schalin Arkkitehdit Oy.
Sähköpostit
Tekninen johtaja emeritus Keijo Kolin sähköposti arkkitehti Tiitta Itkoselle 15.10.2019.
VIITTEET
[1] RKY www.rky.fi
[2] Docomomo 2017.
[3] Asemakaavamuutos on kaupunginvaltuuston 15,2,2015 hyväksymä, ja se tuli voimaan 17.4.2015.
[4] Kilpailu järjestettiin 1960-61, alkuperäisosa valmistui 1967 ja laajennusosa Studio Elsa 1989.
[5] Arkkitehti 1 1961 Kilpailuliite, 3.
[6] Arkkitehti 1 1961 Kilpailuliite, 1.
[7] Penttilä 1967b, 25.
[8] Koho 1991, 15-17.
[9] Studiotila on intiimi, neutraali monitoimitila, jossa näyttämön ja katsomon asemaa ja suhdetta toisiinsa voidaan muuttaa edessä olevasta näyttämöstä katsomon täysin näyttämötilan ympäröivään areenateatteriin.
[10] Penttilä 1967b, 27.
[11] Penttilä 1967b, 27.
[12] Koho 1991, 15-17.
[13] Korsberg et al 2007, 63.
[14] Penttilä 1967a, 11.
[15] Penttilä oli työskennellyt Aarne Ervin ja tämä puolestaan Alvar Aallon toimistossa.
[16] Salonen et al 2013, 20-22.
[17] Salonen et al 2013, 24-26.
[18] Korsberg et al 2007, 65. Elsan ensi-illassa 1991 esitettiin Shakespearen Henrik IV.
[19] Tieto 15.10.2019 Helsingin Kaupunginteatterin tekniseltä johtajalta Keijo Kolilta, joka toimi korjausprojektissa projektinjohtajana.
[20] Arkkitehtitoimisto Kati Salonen ja Mona Schalin oy 2013.
[21] Salonen et al 2013, 251.
[22] Asemakaava 2015.
[23] Asemakaava 2015.
[24] Asemakaava 2015.
[25] LPR-arkkitehdit 2017.
_Oik.: Kunnostettu suuren näyttämön katsomo parvineen.
Kuvat: LPR-arkkitehdit Oy 2017.
Kuvat: LPR-arkkitehdit Oy 2017.
Henkilöstö- ja pukutilat
Henkilöstötiloissa säilytettiin tilajako ja -hierarkia, rakenteet, kiintokalusteet ja väliovien alkuperäinen värikoodaus. Työhuoneiden siniset, punaiset, keltaiset ja vihreät ovet säilytettiin. Suojelumääräysten mukaisesti pukuhuoneiden kalustus säilytettiin ja kunnostettiin: kaappeja parannettiin ilmastoinnilla, valaisimilla ja uusilla varusteilla. Taipuneiden kimpilevyjen oikaiseminen oli haastava puusepän taidonnäyte.
_Oik.: Näyttämön tausta- ja henkilökunta-alueen uudet ovet noudattavat alkuperäistä värikoodausta. Välioven vihreä sallii vapaan kulun, keltainen varoittaa näyttämöalueen läheisyydestä ja punaisen oven takana on näyttämö.
Kuvat: LPR-arkkitehdit Oy 2017.
Kuvat: LPR-arkkitehdit Oy 2017.
Talotekniikan yhteensovittamisesta vastaa pääsuunnittelija
Pääosa peruskorjaustyöstä keskittyi talo- ja näyttämötekniikan uudistamiseen, akustiikan parantamiseen sekä tilojen ilmanvaihdon ja valaistustason tehostamiseen. Talotekniikan yhteensovittaminen, joka on pääsuunnittelijan vastuulla, on aina onnistuneen lopputuloksen ja rakennussuojelun kannalta ensiarvoista, jotta tekniset vedot saadaan kätkettyä sekä sisätiloissa että julkisivuissa tai jotta löydetään niille vaihtoehtoisia reittejä.
038 HKT MM
039 HKT MM
Vaativat alakatot
Yksityiskohdista henkilöstötilojen käytävien puhtaaksi lautamuottiin valettujen betonialakattojen korjaus ja uuden ilmanvaihtotekniikan sijoittaminen alakaton yläpuolelle oli yksi vaativimmista, säilyttämisen kannalta oleellisimmista tehtävistä. Alakattojen otsapinnat purettiin kanavien asentamiseksi, mutta joissakin työhuoneissa jouduttiin sahaamaan avauskaistat, jotka asennusten jälkeen levytettiin umpeen ja viimeisteltiin muottilaudoituksen suuntaisella rimoituksella. Asennuksen aikana betonialakattojen reunat tuettiin ripustamalla ne välipohjista. Lopuksi otsapinnat verhottiin saranoiduin akustorapatuin levyin.
040 HKT MM
041 HKT MM
Valo on osa rakennussuojelua
Valaistuksen laatua harkittiin suojelunäkökulmasta. Koska rakennuksen arkkitehtuuri pyrkii häivyttämään sisä- ja ulkotilan välisen rajapinnan, tavoiteltiin sisä- ja ulkovalaistuksessa värilämpötilan yhdenmukaisuutta. Kaikissa yleisötiloissa ja sisätiloihin liittyvissä ulkotiloissa värilämpötilaksi haettiin 3000 K, henkilökunta-alueella 4000 K.
Julkisivuvalaistus nostaa esiin rakennuksen arkkitehtuurin pimeään aikaan ja kaukomaisemassa: kaupunginteatteri, Finlandia-talo ja Oopperatalo muodostavat Töölönlahden kulttuurirakennusten kokonaisuuden. Näyttämötorni valaistaan horisontaaliosia voimakkaammin, ja valojen suuntaus haettiin korostamaan klinkkeripinnan elävyyttä ja näyttämötornin muodon taitteisuutta. Julkisivuvalaistus on säädettävissä: perussävy on valkoinen (värilämpötila 3000 K), mutta led-optiikka sallii myös värillisten valojen käytön erikoistilanteissa.
042 HKT MM
Kaksituhatta suojeltua valaisinta
Sisätilojen alkuperäiset valaisimet kunnostettiin ja uudistettiin sähköteknisesti. Lisäksi valikoimaa täydennettiin uusilla valaisimilla lämpiöissä, suuressa katsomossa, pienen lämpiön vaatesäilytyksessä ja ruokalassa. Toimistohuoneisiin tuotiin nykyaikaiset led-mikroprismavalaisimet. Valolähteet vaihdettiin led-tekniikkaan, ja kuhunkin tilaan voidaan nyt hakea sopiva valaistustaso. Fasetti Oy kunnosti ja sähköisti lähes kaksituhatta suojeltua valaisinta.
1960-luvun teatteripiha ja puisto kuntoon
Teatterin pihojen ja Tarja Halosen puiston kokonaisuuteen palautettiin 1960-luvun ilme. Luonnonkivimuureja korjattiin ja istutusalueet kunnostettiin Maisemasuunnittelu Hemgårdin ohjeistuksen mukaisesti. Näkymien tielle kasvaneet 1970-luvulla istutetut kuuset kaadettiin. Kolmannen kerroksen kabinettilaajennuksen eteen alkuperäisen rakennuksen ja muurin rajaamaan katveeseen istutettiin viehättävä kukkaketo. Ulko-alueille sijoitettiin myös yksinkertaisia uusia ulkopenkkejä, opasteita ja valaisimia sekä villiviini-istutusaltaita estämään pääsyä kattoalueelle.
043 HKT MM
Esteettömyys ulottuu paikoitusalueilta katsomopaikoille asti
Esteettömyyttä parannettiin paikoitusalueilta aina istuinpaikoille asti. Paikoitukseen lisättiin maksuttomia liikuntaesteisen autopaikkoja ja saattoliikenne pääsee sisäänkäyntien äärelle. Ulkokiveyksen tasoeroja poistettiin, olemassa ollutta eteläjulkisivun luiskaa pidennettiin, ja sisäänkäyntien yhteen oveen asennettiin ovitutka-automatiikka. Hisseistä kolme uudistettiin esteettömiksi ja varustettiin automaattiovin sekä kerroskohonumeroin ja -tekstein. Lämpiöiden lattioihin asennettiin ohjauslistoja ja lattiatunnisteita. Valaistusta tehostettiin erityisesti kokolattiamattoalueilla. Askelmien etureunoihin lisättiin katsomossa led-valaistus, ja penkkiriveihin asennettiin kohonumeroin rivi- ja paikkatunnisteet.
044 HKT MM
Pyörätuolipaikkoja on suuressa katsomossa kahdeksan ja pienessä neljä. Studio Elsan permannolle voi osoittaa pyörätuolipaikkoja tarpeen mukaan. Suuressa katsomossa induktiosilmukka-asennukset kattavat kaikki katsomopaikat, pienessä osan paikoista.
Kuunteluympäristön parantamiseksi rima- ja tekstiilipintojen taustamateriaalit uusittiin absorptioltaan aiempaa paremmiksi. Esteettömiä wc-tiloja lisättiin yleisötiloihin. Pääkulkureittien ovia levennettiin ja huomiota kiinnitettiin irtokalusteiden sijoitteluun. Opasteita selkiytettiin ja täydennettiin.
Restaurointiraportti tallentaa ja välittää tietoa toteutusratkaisuista
Kun työmaa oli valmis, arkkitehti laati korjaustyöstä työmaa- ja restaurointidokumentit. Nämä jälkidokumentit ovat arvokkaita rakennushistoriaselvityksen jatkeita ja tarjoavat yksityiskohtaista tietoa rakennuksen ylläpitäjille ja tuleville suunnittelijoille. Niiden avulla voi myöhemmin arvioida tehtyjä ratkaisuja. Kaupunginteatterista dokumenttien laatimiseen velvoitti asemakaava ja niille varattiin oma budjettinsa.
KORJAAMINEN ON VAATIVAA JA ONNISTUESSAAN PALKITSEVAA
Helsingin kaupunginteatteri on erittäin vaativa korjauskohde. Rakennuksella on tärkeä asema kaupunkikuvassa ja se on yksityiskohdiltaan rikas ja monipuolinen. Vaativuutta lisää se, että rakennusta arvostetaan suomalaisessa arkkitehtuurin historiassa ja teatteritaiteen kulttuurihistoriassa. Rakennuksen ensimmäinen peruskorjausprojekti ulottui koko rakennukseen.
Korjaussuunnittelun lähtökohta oli kaikkia alkuperäisiä ratkaisuja kunnioittava, niihin tutkivasti ja nöyrästi suhtautuva, mutta ei nöyristelevä. Uudet välttämättömät lisäykset ovat tätä aikaa, mutta ne ovat sukua alkuperäiseen arkkitehtuuriin materiaalin, muodon, tilan tai järjestysperiaatteen tasolla. Näin ympäristöön syntyy parhaassa tapauksessa hallittua ajallista kerrostuneisuutta, merkkejä eri vuosikymmenistä ja -sadoista.
045 HKT MM
Helsingin kaupunginteatteri lähiympäristöineen on vahva kokonaistaideteos. Sen arkkitehtuuri on poikkeuksellisen hyvin säilynyt ja se toimii alkuperäisessä teatterikäytössä. Suuriin muutoksiin ei ollut tarvetta. Vahva arkkitehtuuri antoi suuntaviitat uuden muotoiluun: peruskorjauksessa tehtyjen pienehköjen laajennusosienkin julkisivut toistavat niitä alkuperäisiä laatoitettuja seiniä, jotka jäivät laajennusten peittämiksi.
Korjausrakentamisen ongelmat vaativat arkkitehdilta näkemystä, sinnikkyyttä ja uskoa ratkaisun löytymiseen: julkisivulaattojen uudelleen valmistus onnistuu ja puhtaaksi lautamuottiin valetut alakatot voidaan säilyttää. Kaupunginteatterin vahva alkuperäinen arkkitehtuuri nosti luonnollisesti laatuvaatimuksen korkealle myös uusien ratkaisujen osalta.
Korjausprojekti myös opettaa tekijöitään. Tietotaitoa karttuu ja siirtyy 1960-luvun tekijöiltä nyt korjaustyön suunnittelijoille ja toteuttajille ja näiltä edelleen seuraavalle sukupolvelle. Vaativan työn onnistuessa kaikki työhön osallistuneet voivat tuntea ammattiylpeyttä.
Kirjoittaja Mikko Mannberg, arkkitehti SAFA TkL, oli LPR-arkkitehdit Oy:ssä mukana Helsingin kaupunginteatterin peruskorjauksen suunnittelutyöryhmässä, jonka pääsuunnittelija oli arkkitehti Pauno Narjus.
Artikkeli on julkaistu 2019.
HELSINGIN KAUPUNGINTEATTERIN SUUNNITTELIJAT 1960-LUVULLA JA 2010-LUVULLA
Arkkitehtuurikilpailu 1960–61, suunnittelu 1961–67, rakentamispäätös 1965, peruskiven muuraus 12.6.1965, rakentaminen toukokuusta 1965 syyskuuhun 1967, talon vihkiäiset 7.10.1967.
Kilpailuehdotus Arlecchino: Timo Penttilä ja Kari Virta, avustaja Pekka Ilveskoski.
Arkkitehtisuunnittelu: Arkkitehtitoimisto Timo Penttilä.
Rakennesuunnittelu: Insinööritoimisto Bertel Ekengren.
LVI-suunnittelu: Insinööritoimisto J. Saarto & Kumpp.
Sähkösuunnittelu: Insinööritoimisto Risto Mäenpää.
Akustinen suunnittelu: Insinööritoimisto P. Aarni & Co.
Maisemasuunnittelu: Helsingin kaupungin rakennusvirasto / Auli Hietakangas.
Pääurakoitsija: Rakennustoimisto Arvonen Oy, vastaava rakennusmestari Mauri Kivikoski.
Sähköurakoitsija: Sähkö Oy.
Laajennusosa Elsa, valmistui 1989.
Arkkitehtisuunnittelu: Arkkitehtitoimisto Oy Timo Penttilä – Kari Lind – Sakari Tilanterä.
Korjaustyö 2015–17.
Arkkitehtisuunnittelu: LPR-arkkitehdit Oy, pääsuunnittelija arkkitehti SAFA Pauno Narjus.
Maisemasuunnittelu: Maisemasuunnittelu Hemgård.
Rakennesuunnittelu: Insinööritoimisto Pontek Oy.
LVIA- ja sprinkler-suunnittelu: Optiplan Oy.
Sähkösuunnittelu: Rejlers Oy.
Julkisivuvalaistus: Granlund Oy.
Akustiikkasuunnittelu: Helimäki Akustikot Oy
Näyttämömekaniikan suunnittelu: Akumek Oy, TheatrePlan.
Esitystekniikan erityissuunnittelu: VAI-teatteri ky.
Esitystekniikan kaapeloinnin suunnittelu: Akukon Oy.
Palotekninen suunnittelu: L2 Paloturvallisuus Oy.
lukitussuunnittelu: Ekonia oy
Julkisivututkimukset: Vahanen Oy, Contesta Oy.
Julkisivujen kehitystyö: Otto Blümchen ja Pentik Oy.
Lämpiön kattopintojen ja ulkokatosten maalauskäsittelysuunnittelu: T:mi Modlari.
Korjauksen laajuus: 24 785 m2 (vanha osa), 645 m2 (laajennusosa)
Kustannukset: 67 miljoonaa euroa, josta 30% talotekniikka ja 15% teatteritekniikka.
LISÄTIETOA
Aikakausjulkaisut
Mäenpää, Risto 1967. Tekniikka näyttämöllä. Arkkitehti 1967: 10-11. Helsinki: Suomen Arkkitehtiliitto SAFA.
Norri, Marja-Riitta 1983. Taiteen ja Tilan ristiriita. Ralf Långbackan haastattelu. Arkkitehti 1983: 5-6. Helsinki: Suomen arkkitehtiliitto SAFA.
Penttilä, Timo 1981. Demokratian monumentit. Arkkitehti 1983:1. Helsinki: Suomen arkkitehtiliitto SAFA.
Painetut
Penttilä, Timo 2013. Oikeat ja väärät arkkitehdit. 2000 vuotta arkkitehtuuriteoriaa. toim. Kari Lind, Ulla Markelin ja Jorma Mukala. Helsinki: Gaudeamus.
Painamattomat
A-konsultit 2013. Helsingin kaupunginteatterin peruskorjaus. Hankesuunnitelma. Rakennustapaselostus.
A-konsultit 2013. Helsingin kaupunginteatterin peruskorjaus. Hankesuunnitelma. Rakennussuojeluperiaatteet.
Helsingin kaupunkisuunnitteluvirasto, Maija Lounamaa 2012. Helsingin kaupunginteatteri. Ympäristöhistoriallinen selvitys ja suojeluperiaatteet.
LPR-arkkitehdit Oy, Maisemasuunnittelu Hemgård & Insinööritoimisto Pontek oy 2015. Helsingin kaupunginteatteri. Peruskorjaus ja laajennus. Rakennusselostus
LPR-arkkitehdit Oy & Insinööritoimisto Pontek oy 2016. Helsingin kaupunginteatteri. Elsan julkisivukorjaus.
LPR-arkkitehdit Oy 2017. Helsingin kaupunginteatteri. Työmaadokumentointi 2015–17.
LPR-arkkitehdit Oy 2017. Helsingin kaupunginteatteri. Restaurointiraportti 2015–17.
LÄHTEET
Arkkitehti 1961:1 Kilpailuliite. Helsingin kaupunginteatterin suunnittelukilpailu. Helsinki: Suomen Arkkitehtiliitto SAFA.
DOCOMOMO 2017. Docomomo Suomi – Kohdevalikoima. toim. Sirkkaliisa Jetsonen, Petteri Kummala, Leena Makkonen & Jonas Malmberg, Helsinki: Docomomo Suomi Finland ry.
Koho, Timo 1991. Teatteriarkkitehtuurin merkitysarvot. Teatterirakentamisen suhde yhteiskunnan arvomaailmaan kaupungistuvassa Suomessa. Suomen muinaismuistoyhdistyksen aikakauskirja, 97. Helsinki: Suomen muinaismuistoyhdistys.
Korsberg, Hanna & Lylykangas, Kimmo 2007. Helsingin Kaupunginteatterin rakennus. Teoksessa Kansaa teatterissa. Helsingin Kaupunginteatterin historia. Toim. Pirkko Koski & Misa Palander. Helsinki: Like.
Penttilä, Timo 1967a. Helsingin kaupunginteatteri. Arkkitehti 1967: 10-11. Helsinki: Suomen Arkkitehtiliitto SAFA.
Penttilä, Timo 1967b. Teatterisuunnittelun lähtökohdista. Arkkitehti 1967: 10-11. Helsinki: Suomen Arkkitehtiliitto SAFA.
Asemakaavat
Helsingin kaupunkisuunnitteluvirasto: Asemakaava 19.8.2014, hyväksytty 25.2.2015, tullut voimaan 17.4.2015.
Painamattomat
Salonen, Kati & Schalin, Mona 2013. Helsingin kaupunginteatteri. Rakennushistorian selvitys ja inventointi. Kati Salonen ja Mona Schalin Arkkitehdit Oy.
Sähköpostit
Tekninen johtaja emeritus Keijo Kolin sähköposti arkkitehti Tiitta Itkoselle 15.10.2019.
VIITTEET
[1] RKY www.rky.fi
[2] Docomomo 2017.
[3] Asemakaavamuutos on kaupunginvaltuuston 15,2,2015 hyväksymä, ja se tuli voimaan 17.4.2015.
[4] Kilpailu järjestettiin 1960-61, alkuperäisosa valmistui 1967 ja laajennusosa Studio Elsa 1989.
[5] Arkkitehti 1 1961 Kilpailuliite, 3.
[6] Arkkitehti 1 1961 Kilpailuliite, 1.
[7] Penttilä 1967b, 25.
[8] Koho 1991, 15-17.
[9] Studiotila on intiimi, neutraali monitoimitila, jossa näyttämön ja katsomon asemaa ja suhdetta toisiinsa voidaan muuttaa edessä olevasta näyttämöstä katsomon täysin näyttämötilan ympäröivään areenateatteriin.
[10] Penttilä 1967b, 27.
[11] Penttilä 1967b, 27.
[12] Koho 1991, 15-17.
[13] Korsberg et al 2007, 63.
[14] Penttilä 1967a, 11.
[15] Penttilä oli työskennellyt Aarne Ervin ja tämä puolestaan Alvar Aallon toimistossa.
[16] Salonen et al 2013, 20-22.
[17] Salonen et al 2013, 24-26.
[18] Korsberg et al 2007, 65. Elsan ensi-illassa 1991 esitettiin Shakespearen Henrik IV.
[19] Tieto 15.10.2019 Helsingin Kaupunginteatterin tekniseltä johtajalta Keijo Kolilta, joka toimi korjausprojektissa projektinjohtajana.
[20] Arkkitehtitoimisto Kati Salonen ja Mona Schalin oy 2013.
[21] Salonen et al 2013, 251.
[22] Asemakaava 2015.
[23] Asemakaava 2015.
[24] Asemakaava 2015.
[25] LPR-arkkitehdit 2017.
_Oik.: Päälämpiön seinää purettuna uusia asennuksia varten. Teatterissa alun perin piilossa olleet sähköasennukset pidettiin peruskorjauksessa edelleen piilossa ja uudet tehtiin pintarakenteita vahingoittamatta vanhoja reittejä ja putkituksia hyödyntäen. Kuvat: LPR-arkkitehdit Oy 2017.
Vaativat alakatot
Yksityiskohdista henkilöstötilojen käytävien puhtaaksi lautamuottiin valettujen betonialakattojen korjaus ja uuden ilmanvaihtotekniikan sijoittaminen alakaton yläpuolelle oli yksi vaativimmista, säilyttämisen kannalta oleellisimmista tehtävistä. Alakattojen otsapinnat purettiin kanavien asentamiseksi, mutta joissakin työhuoneissa jouduttiin sahaamaan avauskaistat, jotka asennusten jälkeen levytettiin umpeen ja viimeisteltiin muottilaudoituksen suuntaisella rimoituksella. Asennuksen aikana betonialakattojen reunat tuettiin ripustamalla ne välipohjista. Lopuksi otsapinnat verhottiin saranoiduin akustorapatuin levyin.
_Oik.: Alakaton otsapinta levytettynä. Kuva: Sirkkaliisa Jetsonen 2019.
Valo on osa rakennussuojelua
Valaistuksen laatua harkittiin suojelunäkökulmasta. Koska rakennuksen arkkitehtuuri pyrkii häivyttämään sisä- ja ulkotilan välisen rajapinnan, tavoiteltiin sisä- ja ulkovalaistuksessa värilämpötilan yhdenmukaisuutta. Kaikissa yleisötiloissa ja sisätiloihin liittyvissä ulkotiloissa värilämpötilaksi haettiin 3000 K, henkilökunta-alueella 4000 K.
Julkisivuvalaistus nostaa esiin rakennuksen arkkitehtuurin pimeään aikaan ja kaukomaisemassa: kaupunginteatteri, Finlandia-talo ja Oopperatalo muodostavat Töölönlahden kulttuurirakennusten kokonaisuuden. Näyttämötorni valaistaan horisontaaliosia voimakkaammin, ja valojen suuntaus haettiin korostamaan klinkkeripinnan elävyyttä ja näyttämötornin muodon taitteisuutta. Julkisivuvalaistus on säädettävissä: perussävy on valkoinen (värilämpötila 3000 K), mutta led-optiikka sallii myös värillisten valojen käytön erikoistilanteissa.
Kaksituhatta suojeltua valaisinta
Sisätilojen alkuperäiset valaisimet kunnostettiin ja uudistettiin sähköteknisesti. Lisäksi valikoimaa täydennettiin uusilla valaisimilla lämpiöissä, suuressa katsomossa, pienen lämpiön vaatesäilytyksessä ja ruokalassa. Toimistohuoneisiin tuotiin nykyaikaiset led-mikroprismavalaisimet. Valolähteet vaihdettiin led-tekniikkaan, ja kuhunkin tilaan voidaan nyt hakea sopiva valaistustaso. Fasetti Oy kunnosti ja sähköisti lähes kaksituhatta suojeltua valaisinta.
1960-luvun teatteripiha ja puisto kuntoon
Teatterin pihojen ja Tarja Halosen puiston kokonaisuuteen palautettiin 1960-luvun ilme. Luonnonkivimuureja korjattiin ja istutusalueet kunnostettiin Maisemasuunnittelu Hemgårdin ohjeistuksen mukaisesti. Näkymien tielle kasvaneet 1970-luvulla istutetut kuuset kaadettiin. Kolmannen kerroksen kabinettilaajennuksen eteen alkuperäisen rakennuksen ja muurin rajaamaan katveeseen istutettiin viehättävä kukkaketo. Ulko-alueille sijoitettiin myös yksinkertaisia uusia ulkopenkkejä, opasteita ja valaisimia sekä villiviini-istutusaltaita estämään pääsyä kattoalueelle.
Esteettömyys ulottuu paikoitusalueilta katsomopaikoille asti
Esteettömyyttä parannettiin paikoitusalueilta aina istuinpaikoille asti. Paikoitukseen lisättiin maksuttomia liikuntaesteisen autopaikkoja ja saattoliikenne pääsee sisäänkäyntien äärelle. Ulkokiveyksen tasoeroja poistettiin, olemassa ollutta eteläjulkisivun luiskaa pidennettiin, ja sisäänkäyntien yhteen oveen asennettiin ovitutka-automatiikka. Hisseistä kolme uudistettiin esteettömiksi ja varustettiin automaattiovin sekä kerroskohonumeroin ja -tekstein. Lämpiöiden lattioihin asennettiin ohjauslistoja ja lattiatunnisteita. Valaistusta tehostettiin erityisesti kokolattiamattoalueilla. Askelmien etureunoihin lisättiin katsomossa led-valaistus, ja penkkiriveihin asennettiin kohonumeroin rivi- ja paikkatunnisteet.
Pyörätuolipaikkoja on suuressa katsomossa kahdeksan ja pienessä neljä. Studio Elsan permannolle voi osoittaa pyörätuolipaikkoja tarpeen mukaan. Suuressa katsomossa induktiosilmukka-asennukset kattavat kaikki katsomopaikat, pienessä osan paikoista.
Kuunteluympäristön parantamiseksi rima- ja tekstiilipintojen taustamateriaalit uusittiin absorptioltaan aiempaa paremmiksi. Esteettömiä wc-tiloja lisättiin yleisötiloihin. Pääkulkureittien ovia levennettiin ja huomiota kiinnitettiin irtokalusteiden sijoitteluun. Opasteita selkiytettiin ja täydennettiin.
Restaurointiraportti tallentaa ja välittää tietoa toteutusratkaisuista
Kun työmaa oli valmis, arkkitehti laati korjaustyöstä työmaa- ja restaurointidokumentit. Nämä jälkidokumentit ovat arvokkaita rakennushistoriaselvityksen jatkeita ja tarjoavat yksityiskohtaista tietoa rakennuksen ylläpitäjille ja tuleville suunnittelijoille. Niiden avulla voi myöhemmin arvioida tehtyjä ratkaisuja. Kaupunginteatterista dokumenttien laatimiseen velvoitti asemakaava ja niille varattiin oma budjettinsa.
KORJAAMINEN ON VAATIVAA JA ONNISTUESSAAN PALKITSEVAA
Helsingin kaupunginteatteri on erittäin vaativa korjauskohde. Rakennuksella on tärkeä asema kaupunkikuvassa ja se on yksityiskohdiltaan rikas ja monipuolinen. Vaativuutta lisää se, että rakennusta arvostetaan suomalaisessa arkkitehtuurin historiassa ja teatteritaiteen kulttuurihistoriassa. Rakennuksen ensimmäinen peruskorjausprojekti ulottui koko rakennukseen.
Korjaussuunnittelun lähtökohta oli kaikkia alkuperäisiä ratkaisuja kunnioittava, niihin tutkivasti ja nöyrästi suhtautuva, mutta ei nöyristelevä. Uudet välttämättömät lisäykset ovat tätä aikaa, mutta ne ovat sukua alkuperäiseen arkkitehtuuriin materiaalin, muodon, tilan tai järjestysperiaatteen tasolla. Näin ympäristöön syntyy parhaassa tapauksessa hallittua ajallista kerrostuneisuutta, merkkejä eri vuosikymmenistä ja -sadoista.
Helsingin kaupunginteatteri lähiympäristöineen on vahva kokonaistaideteos. Sen arkkitehtuuri on poikkeuksellisen hyvin säilynyt ja se toimii alkuperäisessä teatterikäytössä. Suuriin muutoksiin ei ollut tarvetta. Vahva arkkitehtuuri antoi suuntaviitat uuden muotoiluun: peruskorjauksessa tehtyjen pienehköjen laajennusosienkin julkisivut toistavat niitä alkuperäisiä laatoitettuja seiniä, jotka jäivät laajennusten peittämiksi.
Korjausrakentamisen ongelmat vaativat arkkitehdilta näkemystä, sinnikkyyttä ja uskoa ratkaisun löytymiseen: julkisivulaattojen uudelleen valmistus onnistuu ja puhtaaksi lautamuottiin valetut alakatot voidaan säilyttää. Kaupunginteatterin vahva alkuperäinen arkkitehtuuri nosti luonnollisesti laatuvaatimuksen korkealle myös uusien ratkaisujen osalta.
Korjausprojekti myös opettaa tekijöitään. Tietotaitoa karttuu ja siirtyy 1960-luvun tekijöiltä nyt korjaustyön suunnittelijoille ja toteuttajille ja näiltä edelleen seuraavalle sukupolvelle. Vaativan työn onnistuessa kaikki työhön osallistuneet voivat tuntea ammattiylpeyttä.
Kirjoittaja
Mikko Mannberg, arkkitehti SAFA TkL, oli LPR-arkkitehdit Oy:ssä mukana Helsingin kaupunginteatterin peruskorjauksen suunnittelutyöryhmässä, jonka pääsuunnittelija oli arkkitehti Pauno Narjus.
Artikkeli on julkaistu 2019.
HELSINGIN KAUPUNGINTEATTERIN SUUNNITTELIJAT 1960-LUVULLA JA 2010-LUVULLA
Arkkitehtuurikilpailu 1960–61, suunnittelu 1961–67, rakentamispäätös 1965, peruskiven muuraus 12.6.1965, rakentaminen toukokuusta 1965 syyskuuhun 1967, talon vihkiäiset 7.10.1967.
Kilpailuehdotus Arlecchino: Timo Penttilä ja Kari Virta, avustaja Pekka Ilveskoski.
Arkkitehtisuunnittelu: Arkkitehtitoimisto Timo Penttilä.
Rakennesuunnittelu: Insinööritoimisto Bertel Ekengren.
LVI-suunnittelu: Insinööritoimisto J. Saarto & Kumpp.
Sähkösuunnittelu: Insinööritoimisto Risto Mäenpää.
Akustinen suunnittelu: Insinööritoimisto P. Aarni & Co.
Maisemasuunnittelu: Helsingin kaupungin rakennusvirasto / Auli Hietakangas.
Pääurakoitsija: Rakennustoimisto Arvonen Oy, vastaava rakennusmestari Mauri Kivikoski.
Sähköurakoitsija: Sähkö Oy.
Laajennusosa Elsa, valmistui 1989.
Arkkitehtisuunnittelu: Arkkitehtitoimisto Oy Timo Penttilä – Kari Lind – Sakari Tilanterä.
Korjaustyö 2015–17.
Arkkitehtisuunnittelu: LPR-arkkitehdit Oy, pääsuunnittelija arkkitehti SAFA Pauno Narjus.
Maisemasuunnittelu: Maisemasuunnittelu Hemgård.
Rakennesuunnittelu: Insinööritoimisto Pontek Oy.
LVIA- ja sprinkler-suunnittelu: Optiplan Oy.
Sähkösuunnittelu: Rejlers Oy.
Julkisivuvalaistus: Granlund Oy.
Akustiikkasuunnittelu: Helimäki Akustikot Oy
Näyttämömekaniikan suunnittelu: Akumek Oy, TheatrePlan.
Esitystekniikan erityissuunnittelu: VAI-teatteri ky.
Esitystekniikan kaapeloinnin suunnittelu: Akukon Oy.
Palotekninen suunnittelu: L2 Paloturvallisuus Oy.
lukitussuunnittelu: Ekonia oy
Julkisivututkimukset: Vahanen Oy, Contesta Oy.
Julkisivujen kehitystyö: Otto Blümchen ja Pentik Oy.
Lämpiön kattopintojen ja ulkokatosten maalauskäsittelysuunnittelu: T:mi Modlari.
Korjauksen laajuus: 24 785 m2 (vanha osa), 645 m2 (laajennusosa)
Kustannukset: 67 miljoonaa euroa, josta 30% talotekniikka ja 15% teatteritekniikka.
Lisätietoa
Aikakausjulkaisut
Mäenpää, Risto 1967. Tekniikka näyttämöllä. Arkkitehti 1967: 10-11. Helsinki: Suomen Arkkitehtiliitto SAFA.
Norri, Marja-Riitta 1983. Taiteen ja Tilan ristiriita. Ralf Långbackan haastattelu. Arkkitehti 1983: 5-6. Helsinki: Suomen arkkitehtiliitto SAFA.
Penttilä, Timo 1981. Demokratian monumentit. Arkkitehti 1983:1. Helsinki: Suomen arkkitehtiliitto SAFA.
Painetut
Penttilä, Timo 2013. Oikeat ja väärät arkkitehdit. 2000 vuotta arkkitehtuuriteoriaa. toim. Kari Lind, Ulla Markelin ja Jorma Mukala. Helsinki: Gaudeamus.
Painamattomat
A-konsultit 2013. Helsingin kaupunginteatterin peruskorjaus. Hankesuunnitelma. Rakennustapaselostus.
A-konsultit 2013. Helsingin kaupunginteatterin peruskorjaus. Hankesuunnitelma. Rakennussuojeluperiaatteet.
Helsingin kaupunkisuunnitteluvirasto, Maija Lounamaa 2012. Helsingin kaupunginteatteri. Ympäristöhistoriallinen selvitys ja suojeluperiaatteet.
LPR-arkkitehdit Oy, Maisemasuunnittelu Hemgård & Insinööritoimisto Pontek oy 2015. Helsingin kaupunginteatteri. Peruskorjaus ja laajennus. Rakennusselostus
LPR-arkkitehdit Oy & Insinööritoimisto Pontek oy 2016. Helsingin kaupunginteatteri. Elsan julkisivukorjaus.
LPR-arkkitehdit Oy 2017. Helsingin kaupunginteatteri. Työmaadokumentointi 2015–17.
LPR-arkkitehdit Oy 2017. Helsingin kaupunginteatteri. Restaurointiraportti 2015–17.
Lähteet
Arkkitehti 1961:1 Kilpailuliite. Helsingin kaupunginteatterin suunnittelukilpailu. Helsinki: Suomen Arkkitehtiliitto SAFA.
DOCOMOMO 2017. Docomomo Suomi – Kohdevalikoima. toim. Sirkkaliisa Jetsonen, Petteri Kummala, Leena Makkonen & Jonas Malmberg, Helsinki: Docomomo Suomi Finland ry.
Koho, Timo 1991. Teatteriarkkitehtuurin merkitysarvot. Teatterirakentamisen suhde yhteiskunnan arvomaailmaan kaupungistuvassa Suomessa. Suomen muinaismuistoyhdistyksen aikakauskirja, 97. Helsinki: Suomen muinaismuistoyhdistys.
Korsberg, Hanna & Lylykangas, Kimmo 2007. Helsingin Kaupunginteatterin rakennus. Teoksessa Kansaa teatterissa. Helsingin Kaupunginteatterin historia. Toim. Pirkko Koski & Misa Palander. Helsinki: Like.
Penttilä, Timo 1967a. Helsingin kaupunginteatteri. Arkkitehti 1967: 10-11. Helsinki: Suomen Arkkitehtiliitto SAFA.
Penttilä, Timo 1967b. Teatterisuunnittelun lähtökohdista. Arkkitehti 1967: 10-11. Helsinki: Suomen Arkkitehtiliitto SAFA.
Asemakaavat
Helsingin kaupunkisuunnitteluvirasto: Asemakaava 19.8.2014, hyväksytty 25.2.2015, tullut voimaan 17.4.2015.
Painamattomat
Salonen, Kati & Schalin, Mona 2013. Helsingin kaupunginteatteri. Rakennushistorian selvitys ja inventointi. Kati Salonen ja Mona Schalin Arkkitehdit Oy.
Sähköpostit
Tekninen johtaja emeritus Keijo Kolin sähköposti arkkitehti Tiitta Itkoselle 15.10.2019.
Viitteet
[1] RKY www.rky.fi
[2] Docomomo 2017.
[3] Asemakaavamuutos on kaupunginvaltuuston 15,2,2015 hyväksymä, ja se tuli voimaan 17.4.2015.
[4] Kilpailu järjestettiin 1960-61, alkuperäisosa valmistui 1967 ja laajennusosa Studio Elsa 1989.
[5] Arkkitehti 1 1961 Kilpailuliite, 3.
[6] Arkkitehti 1 1961 Kilpailuliite, 1.
[7] Penttilä 1967b, 25.
[8] Koho 1991, 15-17.
[9] Studiotila on intiimi, neutraali monitoimitila, jossa näyttämön ja katsomon asemaa ja suhdetta toisiinsa voidaan muuttaa edessä olevasta näyttämöstä katsomon täysin näyttämötilan ympäröivään areenateatteriin.
[10] Penttilä 1967b, 27.
[11] Penttilä 1967b, 27.
[12] Koho 1991, 15-17.
[13] Korsberg et al 2007, 63.
[14] Penttilä 1967a, 11.
[15] Penttilä oli työskennellyt Aarne Ervin ja tämä puolestaan Alvar Aallon toimistossa.
[16] Salonen et al 2013, 20-22.
[17] Salonen et al 2013, 24-26.
[18] Korsberg et al 2007, 65. Elsan ensi-illassa 1991 esitettiin Shakespearen Henrik IV.
[19] Tieto 15.10.2019 Helsingin Kaupunginteatterin tekniseltä johtajalta Keijo Kolilta, joka toimi korjausprojektissa projektinjohtajana.
[20] Arkkitehtitoimisto Kati Salonen ja Mona Schalin oy 2013.
[21] Salonen et al 2013, 251.
[22] Asemakaava 2015.
[23] Asemakaava 2015.
[24] Asemakaava 2015.
[25] LPR-arkkitehdit 2017.