
Julkiset kirjastot ja kirjastoarkkitehtuuri 1900-luvun jälkipuolella
Anni Vartola
Julkisten kirjastojen toimintaidea Suomessa pohjautuu länsimaiselle valistusaatteelle, jonka keskeisin ihanne on ihmisten tasavertainen oikeus tietoon ja sivistykseen. Kirjastot rakennetaan julkisin varoin, kirjastojen käyttö on maksutonta, ja kirjastoverkosto ulottuu koko maahan. Kirjastojen arkkitehtuuri ja rakennustavat ovat muuttuneet yhdessä kirjastolaitoksen kanssa. Kirjastojen sijainti, koko, ulkoasu, tilajärjestelyt, rakennusmateriaalit ja kalustus kertovat kirjastolaitoksen kehityksestä, palveluiden monipuolistumisesta ja tietotekniikan tuomasta muutoksesta. Artikkeliin nostetut kirjastoesimerkit havainnollistavat kehitystä.
Aukoton kirjastoverkko
Suomen kirjastotiheys on kansainvälisessä vertailussa yksi korkeimmista. Vuonna 2017 kunnan- ja kaupunginkirjastojen pää- ja sivukirjastojen verkostoon kuului yhteensä 719 kirjastotilaa (737 laitoskirjastot mukaan lukien). Väestömäärään suhteutettuna Suomessa oli tuolloin yksi julkinen, kaikille avoin kirjasto jokaista 7 668 vakinaista asukasta kohden.
[02_Yleiset kirjastot_AV]
Kirjastoverkko kuuluu opetus- ja kulttuuriministeriön hallinnonalaan ja koostuu:
- kuntien ylläpitämistä yleisistä kunnan- ja kaupunginkirjastoista;
- tieteellisistä kirjastoista, joita ylläpitävät esimerkiksi yliopistot, ammattikorkeakoulut ja tieteelliset seurat;
- koulu- ja oppilaitoskirjastoista, jotka toimivat yhteistyössä yleisten kirjastojen kanssa.
Monet kunnat ylläpitävät lisäksi liikkuvia kirjastopalveluja kuten kirjastoautoja, pyöriä ja jopa kirjastoveneitä sekä pop up tapahtumakirjastoja. Kunnan- ja kaupunginkirjastojen erityispalveluihin kuuluvat laitoskirjastot sijaitsevat sairaaloissa, vankiloissa ja muissa laitosympäristöissä. Valtion ylläpitämiä kirjastopalveluita ovat näkövammaisten kirjasto Celia sekä Varastokirjasto Kuopiossa.
Suomessa on useita tutkimuslaitosten, virastojen ja museoiden ylläpitämiä erikoiskirjastoja. Helsingin yliopiston erillislaitoksena toimiva Kansalliskirjasto on Suomen suurin ja vanhin tieteellinen kirjasto. Se vastaa tieteellisen kokoelmatyönsä ohella kansallisen julkaisuperinnön tallentamisesta ja palvelee koko kirjastokenttää valtakunnallisena palvelu- ja kehittämisyksikkönä.
[03_Terkko_AV]
Kirjaston pitää olla houkutteleva ja sijaita paikkakunnan parhaalla tontilla
Julkisten kirjastojen arkkitehtuuriin alettiin kiinnittää huomiota 1800-luvun loppupuolella. Yhdysvalloissa vahvistuneen Public Library Movementin puheenvuoroissa kirjastorakennusten arkkitehtoninen laatu nähtiin kansan menestyksen ja sivistystason symbolina. Arkkitehtuurista tuli väline houkutella kansalaisia kirjastojen käyttäjiksi. Jo 1900-luvun alussa kirjastoista alettiin puhua yhteiskunnan henkisen elämän keskuksena ja ihmisten kohtauspaikkana.
[04_Viipuri_AV]
Amerikkalainen kirjastoihanne siirtyi Suomeen lukuisten opintomatkojen välityksellä. Uusien kirjastojen piti olla houkuttelevia ja viihtyisiä, ja niille piti osoittaa paikkakunnan kaunein ja sijainniltaan keskeisin tontti. Kirjastojen sisustuksessa kehotettiin suosimaan lämpimiä ja iloisia värejä sekä käyttämään huonekasveja ja taidetta luomaan kauneuden, sopusointuisuuden ja kodikkuuden tunnelmaa. Laadukkaan kirjastoarkkitehtuurin katsottiin edistävän julkisten kirjastojen tehtävää lukutaidon, sivistysmyönteisyyden ja yhteisen kansallisen kulttuurin vahvistamisessa.
Ensimmäiset kirjastorakennukset Helsinkiin, Turkuun, Tampereelle ja Kuopioon
Ensimmäiset 1900-luvun alkupuolen julkiset kirjastot erottuivat selvästi ympäröivästä rakennuskannasta julkisiksi arvorakennuksiksi. Juhlavien sisätilojen päätiloja olivat lainausosasto, kirjavarasto, sekä mahdollisimman häiriöttömiksi suunnitellut lukusalit eri käyttäjäryhmille.
Ensimmäiset varta vasten kirjastokäyttöön suunnitellut julkiset kirjastot olivat Helsingin kansankirjaston talo Rikhardinkadulla (Theodor Höijer, 1881), Turun kirjastotalo (K. A. Wrede, 1903), ensimmäinen kokonaan kunnan omalla rahoituksella rahoitettu Helsingin Kallion kirjasto (Karl Hård af Segerstadh, 1912) sekä Tampereen kaupungin pääkirjasto (Jussi ja Toivo Paatela, 1925). Kuopion museo- ja kirjastorakennus (J. V. Strömberg, 1907) oli ensimmäinen ”muistiorganisaatiot” yhdistävä uudisrakennus.
[05_ Rikhardinkatu_AV]
Lainaussalista tulee keskeisin tila
Nykyaikaisen avohyllyjärjestelmän käyttöönotto vaikutti sisätilojen mitoitukseen ja kalustukseen. Suljetussa hyllyjärjestelmässä kirjat sijaitsivat kirjavarastossa, ja asiakas sai haluamansa kirjan pyytämällä sitä virkailijalta. Avohyllyjärjestelmässä lainaajat saivat itse valita lukemisensa. Tämän takia lainaussalista tuli 1910-luvulta alkaen kirjaston suurin ja merkittävin tila. Siellä selailtiin kirjaston kokoelmaa, luettiin sekä asioitiin toimintaa valvovan virkailijan kanssa. Samalla kirjavarasto muuttui. Lainaussaleihin sijoitettiin kirjojen aktiivikokoelma ja harvemmin tarvittu varastokokoelma siirrettiin kauemmas.
[06_Tampere_AV]
Avohyllyjärjestelmä lisäsi lukemiseen varattujen tilojen määrää ja kalustusta. Lukupisteitä sijoitettiin lainaussaliin hyllyjen lomaan, eikä varsinaisia lukusaleja enää tarvittu niin paljon kuin aiemmin. Käyttökulttuurin muutos lisäsi valvonnan ja liikennevirtojen suunnittelun tarvetta, mutta antoi uusia mahdollisuuksia kirjastotoiminnan idean ja kirjaston tilojen välisen tärkeysjärjestyksen arkkitehtoniselle ilmaisulle.
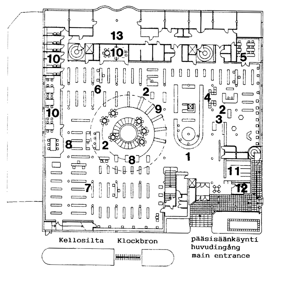
Lainaussali on kirjaston sydän Viipurin kirjastossa (Aino ja Alvar Aalto, arkkitehtuurikilpailu 1927, valm. 1935), joka on avohyllyjärjestelmän mahdollistama moderni kirjasto. Lapset olivat tervetulleita kirjaston huolellisesti suunniteltuun lastenosastoon. Sinne oli oma sisäänkäynti suoraan ulkoa. Kirjaston eri toiminnot erotettiin toisistaan: hallinto ja yleiseen käyttöön osoitetut tilat sijaitsivat omassa siivessään ja varsinaiset lukusalit omalla hiljaisella vyöhykkeellään.
Valtio tukee ja kannustaa kuntia kirjastojen rakentamisessa
Julkisten kirjastojen toimintaa alettiin säädellä lainsäädännöllä vuodesta 1928 alkaen. Kansankirjastolaki (131/1928) määritteli kirjastojen tehtäväksi "kansansivistyksen kohottamisen ja kansalaisten itseopiskelun edistämisen" ja kannusti kuntia ottamaan kirjastopalvelut osaksi toimintaansa. Valtion kirjastotoimikunta perustettiin kouluhallituksen yhteyteen. Se valvoi kirjastojen toimintaa ja jakoi rakennusavustusta kirjastohuoneistojen hankkimiseen ja kunnossapitoon.
Vuodesta 1932 alkaen kunnilta edellytettiin omaa rahoitusosuutta. Myöhemmät asetukset kansankirjastoista täsmensivät valtionapusäädöksiä ja asettivat valtion rakennusavustuksen edellytykseksi kunnanvaltuuston hyväksymät piirustukset, työselitykset ja kustannusarvion.
Käytännössä vain syrjäseutujen vähävaraiset kunnat saivat valtion rakennusavustusta. Kaupunkien kirjastohankkeet jouduttiin usein yhdistämään muihin uudisrakennushankkeisiin. Merkittävimpiä olivat Pohjois-Pohjanmaan maakunta-arkisto ja kirjasto Oulussa (Oiva Kallio, 1931) sekä Vaasan kirjasto- ja maakunta-arkisto (Ingvald Serenius, 1936).
Laitilan kirjastotalo (1937) ja Nurmeksen kirjasto (1938) olivat itsenäisyyden ajan ensimmäiset kirjastokäyttöön rakennetut maaseutukirjastot. Ne rakennettiin vielä lahjoitusvaroin.
Kirjasto saman katon alle muiden kunnan palveluiden kanssa
Toisessa maailmansodassa kirjastoja tuhoutui pommituksissa. Alueluovutuksissa Neuvostoliitolle menetettiin 370 kirjastoa kokoelmineen, mukaan lukien Viipurin, Hangon, Sortavalan ja Käkisalmen kaupunginkirjastot.
Jälleenrakennuskaudella kirjastojen tarve oli suurin maaseudulla. Suomen kirjastoseuran vuonna 1948 julkaisema Maaseudun kirjastohuoneistot opaslehtinen antoi käytännöllisiä ohjeita syrjäkylien päättäjille. Opas kannusti edistämään eri rakennushankkeita yhtä aikaa ja hakemaan kirjastolle yleisen sivistystalon luonnetta sijoittamalla useita palveluita saman katon alle.
Hyviä kumppaneita olivat esimerkiksi kunnantalo, terveystalo, kotiseutumuseo, kansalaisopisto tai kerho ja nuorisotalo. Kirjaston yhdistämistä kouluun pidettiin myös toimivana siinä tapauksessa, että yleinen kirjasto sai oman sisäänkäynnin. Opaslehtisen kuvituksena oli malliratkaisuja Norjasta ja Tanskasta sekä Kangasalan kantakirjaston lainausosasto, Porin Uudenkoiviston kansakoulun kirjastohuone ja Kouluhallituksen kansakoulutyyppipiirustus.
[07_Maaseudun kirjastohuoneistot_AV]
Kirjastolle seikkaperäiset suunnitteluohjeet – rakentaminen vauhdittuu 1950-luvulla
Uusien kirjastojen rakentaminen vauhdittui 1950-luvulla. Lukemisesta tuli suosittu harrastus, ja suomenkielisen kirjallisuuden tarjonta lisääntyi. Yleinen koulutus- ja sivistysmyönteisyys kasvoi. Toisen maailmansodan jälkeen syntyi ennätysmäärä lapsia. Etenkin lasten ja nuorten kirjastopalveluihin kiinnitettiin huomiota – toisaalta osana uusien kansa ja oppikoulujen suurta tarvetta, toisaalta osana yleisten kirjastopalvelujen kehittämistä. Kirjastojen haluttiin kilpailevan nuorison suosiosta ja tarjoavan houkuttelevan vaihtoehdon vähemmän suotaville vapaa-ajankäyttömuodoille.
Suunnitteluohjeet tähdensivät tontin valinnan keskeisyyttä, paikkakunnan tarpeiden tuntemista, resurssien järkevää kohdentamista sekä tiivistä yhteistyötä kirjastonhoitajan ja arkkitehdin välillä, jotta kirjaston toiminnallinen suunnittelu onnistuisi. 1950-luvun suunnitteluohjeissa kirjastotilan tärkeimpiä osatekijöitä olivat:
- eri huonetilojen mitoitus ja suhteellinen koko
- sisäisen liikenteen yhteydet
- keskitetyn valvonnan ratkaiseminen
- kirja- ja yleisömäärien mitoitus
- myöhempi laajennettavuus.
Vuonna 1953 julkaistiin suunnitteluopas pienten ja keskikokoisten kirjastojen suunnittelun innoitukseksi. Siinä esiteltiin kirjastotalomalleja uudisrakennuksina ja vanhaan taloon korjattuna, muiden rakennusten kuten kunnan tai terveystalon ja kansakoulun yhteyteen sijoitettuina siipinä sekä kirjastohuoneita liikerakennusten, virastojen, koulujen ja yksityistalojen yhteydessä.
[08_Uusia kirjastohuoneistoja_AV]
Arkkitehtuurilla haluttiin antaa vaatimattomallekin kirjastolle ”vissi mainosarvo, puoleensavetävä luonne”. Se tapahtui luomalla kirjastolle itsenäinen ilme ja eloisat sisätilat esimerkiksi:
- suunnittelemalla kirjaston julkisivut erikoisluonteen mukaisiksi
- antamalla kirjastolle oma, väljä ja tunnistettava, katoksella suojattu sisäänkäynti
- suosimalla käyntiovina leveitä lasiovia umpiovien sijaan, jolloin kävijä näkee kirjaston eri yleisötilat heti eteishallista
- sijoittamalla osa kokoelmista parvelle
laskemalla esimerkiksi luku- tai opintosali muuta lattiatasoa alemmaksi.
Lauritsalan kauppalankirjasto ja Lauttasaaren kirjasto
Säynätsalon kunnantalon yhteyteen rakennettu kunnankirjasto (Alvar Aalto, 1952) lienee kansainvälisesti tunnetuin 1950-luvun kirjasto. Vauraiden teollisuuspaikkakuntien kunnianhimoista kirjastoarkkitehtuuria edustaa myös Lauritsalan kauppalankirjasto (Arkkitehtuuritoimisto Martikainen–Ypyä–Malmio, 1951), joka esiteltiin monissa kirjastoalan julkaisuissa erityisen onnistuneena esimerkkinä.
Kirjaston sisätilat jäsentyvät eri tasoihin ja ovat yhtenäistä avaraa tilaa. Kirjahyllyt on 1950-luvun kirjastoissa sijoitettu kiertämään seiniä; keskialueelle on sommiteltu lukupisteitä sekä kevyempiä ja matalampia kirjahyllyköitä. Luonnonvalo pyritään tuomaan tiloihin epäsuorasti seiniä kiertävien kirjahyllyjen yläpuolelta tai kattovalona. Yleis ja lukuvalaisimet täydentävät tilojen valaistusta.
[09a_Lauritsalan kirjasto_AV]
[09b_Lauritsalan kirjasto_AV]
Esimerkki kaupungin asuinalueelle 1950-luvulla rakennetusta kirjastosta on Lauttasaaren kirjasto Helsingissä (J.S. Sirén, 1955). Se on osa suuren kansakoulun rakennusryhmää, ja kirjasto sisällytettiin suunnitelmiin vasta koulun rakennusvaiheessa. Kirjasto sijaitsi äitiysneuvolan yläkerrassa koulun pihaa rajaavan sivurakennuksen kahdessa ylimmässä kerroksessa. Neuvola-kirjastolla oli kaksiosainen sisäänkäynti; oma ulko-ovi ohjasi kirjastonkäyttäjät suoraan portaikkoon ja toiseen kerrokseen.
[10a_Lauttasaaren kirjasto_AV]
[10b_Lauttasaaren_kirjasto 2_AV]
Kasvun vuodet ¬– 1960-luvulla rakennetaan kunnallisia ja maakunnallisia kirjastoja
Kirjastot jaettiin paikallisiin kirjastoihin ja maakuntakirjastoihin vuodesta 1962 alkaen. Kaksitasoinen hierarkia perustui uuteen kirjastolakiin (235/1961). Valtionapu kohdennettiin maalaiskuntien ja kauppaloiden uusien kirjastorakennusten tai huoneistojen rakentamiseen sekä maakuntakirjastojärjestelmän perustamiseen. Maakuntakirjastoa ylläpitävät kaupungit saivat erillistä valtionapua sekä vuosiavustuksena että kunnan asukasmäärän mukaan.
Lainmuutos kasvatti merkittävästi kirjastotoimen rahoitusta ja vauhditti varsinkin pääkirjastojen rakentamista maakuntakirjasto-oikeudet saaneissa 19 kaupungissa. Maakuntakirjastojen tehtävä oli toimia alueellisina keskuskirjastoina sekä täydentää ja tukea paikallista kirjastoverkkoa. Uusista pääkirjastoista arkkitehtonisesti tunnetuimpia ovat Seinäjoen ja Rovaniemen kaupunginkirjastot (Alvar Aalto, 1965, 1966) sekä Kuopion uusi kirjastotalo (Matti Hakala, yleinen arkkitehtuurikilpailu 1962–63, valm. 1967).
Kuopion kirjastotalo
Kuopion kirjastotalo on näyttävä esimerkki 1960-luvun maakuntakirjastosta. Rakennus sijoitettiin Kuopion keskustaan vanhan museo-kirjastorakennuksen viereen. Se on vedetty sisemmäs tonttia ja irrotettu ympäröivästä kaupunkirakenteesta, joten se on helppo tunnistaa tärkeäksi julkiseksi rakennukseksi. Varsinaiset kirjastotilat ovat rakennuksen toisessa kerroksessa.
Rakennuksessa on teräsbetonirunko ja toisen kerroksen kattoa kannattelevat esijännitetyt teräsbetonipalkit. Rakenteen ansiosta kirjahalli on avara ja yhtenäinen tila: eri toiminnot on rajattu toisistaan puolikorkeilla seinäkkeillä, lasiovet ja väliseinien ylälasit tehostavat tilavaikutelmaa.
Kirjaston käyttöä valvotaan yhdestä keskeisestä asiakaspalvelu ja valvontapisteestä. Kirjasalin keskipiste on pyöreä, kirjahyllyillä tilaan rajautuva ja päätasoa alemmaksi laskettu nuoriso-osasto. Tila saa luonnonvaloa suuren kattoikkunan kautta, suoraan sen alla on sisäsuihkulähde. Kuopion kirjastotaloon valmistui uudenaikainen musiikkiosasto: musiikkia saattoi kuunnella kovaäänisistä erillisessä musiikkihuoneessa ja nuoriso-osastolla myös kuulokkeista.
[11a_Kuopion kirjastotalo 2_AV]
[11b_Kuopion kirjastotalo leikkaus_AV]
[11c_Kuopion kirjastotalo_AV]
Maakuntamittakaavasta lähikirjastoon: esimerkkinä Töölön sivukirjasto
Nopeasti kasvavissa kaupungeissa rakennettiin pääkirjastojen ohella myös lähi- eli sivukirjastoja. Ne haluttiin sijoittaa sinne, missä ihmiset asuvat ja tukea kirjastopalveluilla alueen päiväkotien ja koulujen kulttuurikasvatusta. Kirjasto tarjoaa myös alueen asukkaille luontevan, helposti saavutettavan kohtaamispaikan.
Vapaasti puistossa sijaitseva Töölön sivukirjasto Helsingissä (Aarne Ervi, 1963–1970) on kaupunkikuvallinen kohokohta. Kirjasto erottuu ympäröivästä kaupunkirakenteesta, ja sen korurasiamainen olemus poikkeaa 1960–70-luvun valtavirtaa edustavasta järjestelmäarkkitehtuurista, joka suosi neutraalia ulkoasua ja systemaattisesti toistettavissa olevaa tilarakennetta.
Kuten Ervin suunnittelemassa Turun yliopiston kirjastossa (1954), myös Töölön kirjaston suurista ikkunoista avautuu näkymiä puistoon. Puistoon avautuva parveke ja suojainen, laatoitettu terassi ovat kirjaston asiakkaiden käytössä kesäkaudella. Luonnonvalo lainaussaleissa ja lukusalissa on runsas.
Kirjaston tilat kiertyvät keskeisportaikon ympärille, ja sisätilojen värikkäät yksityiskohdat ja kaarevat linjat tekevät kirjaston tila-arkkitehtuurista eloisan. Lastenosasto on sijoitettu heti pääsisäänkäynnin viereen. Katutason lehtisali omine sisäänkäynteineen mahdollisti muusta kirjastosta poikkeavat aukio-oloajat. Toisessa kerroksessa olevan kaksikerroksisen aikuisten osaston kirjastosalissa on parvi, joka toimii yhdyskäytävänä ja joka alun perin palveli ruotsinkielisen kirjallisuuden osastona. Lasiseinillä erotettu lukusali on Helsingin suurin. Ylimmässä kerroksessa on musiikkiosasto ja oma parveke. Peruskorjauksen jälkeen (Arkkitehdit Mustonen Oy, 2016) ylimpään kerrokseen siirrettiin nuortenosasto sekä rakennettiin uusi tapahtumasali oheistiloineen.
[12a_Töölö 1_AV]
[12b_Töölö lukusali_AV]
[12c_Töölö musa_AV]
[12d_Töölö terassi_AV]
Suurten taajamien kirjastoverkko tiivistyy 1970-luvulla – kirjastosta muunneltava ja laajennettava
Kiihtyvä kaupungistuminen ja kuntaliitokset lisäsivät paineita uudistaa ja tiivistää etenkin suurten taajamien kirjastoverkkoa. Kirjastotoimesta vastaava kouluhallitus valvoi uusien kirjastohankkeiden käynnistämistä ja suunnitelmia, sillä kirjastorakentaminen oli 1970-luvun öljykriisin aiheuttaman taloustaantuman takia tarkkaan säänneltyä ja normitettua. Valtionapu edellytti kaikkien uusien kirjastohankkeiden pääpiirustusten ja työselitysten etukäteistä hyväksyntää. Lisäksi yli 250 m2 suuruisten kirjastorakennusten luonnokset ja rakennustapaselostus tuli tarkastuttaa etukäteen.
Kirjastojen suunnitteluohjeissa alleviivattiin tilojen laajennettavuutta ja muunneltavuutta sekä avoimen kirjastomaiseman ihannetta. Suunnitteluohjeet kannustivat käyttämään moduulimitoitusta ja pyrkimään selkeisiin ja yksinkertaisiin rakenteisiin sekä suuriin ja avariin sisätiloihin, jotta tilamuutokset olisivat joustavasti toteutettavissa. Tilasuunnittelussa tuli pyrkiä ”yleispätevyyteen, selkeyteen, avoimuuteen, keveyteen ja siirreltävyyteen – tiloissa, teknisissä ratkaisuissa, sisustuksessa, jopa yksittäisissä kalusteissa”.
1970-luvun kirjastoilla ei juurikaan nähty olevan julkisen rakennuksen symboliarvoa. Kirjastoista puhuttiin yleisönpalvelulaitoksina , ja arkkitehtuurin ensisijainen tehtävä oli palvella käyttäjän ja yhteiskunnan tarpeita. Rakennustaiteelliset päämäärät koettiin yleisemminkin ajankohdan poliittisessa ilmapiirissä liian yksilökeskeisiksi tai suppean yläluokan arvokäsityksiä vastaaviksi.
[13_Kerava_AV]
Automaatit ja tietokoneet saapuvat kirjastoon
Taloudellisten suhdanteiden, arkkitehtonisten arvojen ja poliittisten painotusten ohella myös tieto- ja viestintätekniikan kehitys vaikutti kirjastojen merkitykseen ja toimintakulttuuriin. Audiovisuaalisista laitteista, lainausautomaateista ja kopiokoneista tuli arkipäivää, ja erilaisille tiedonhaku ja ATK-päätteille tarvittiin tilaa. Kirjastoilta odotettiin aktiivisuutta: kirjastojen tuli esitellä uutta teknologiaa ja opastaa sen käyttöön.
Kaupunkien uusiin lähiöihin tarvittiin samaan aikaan lisää kirjastopalveluita ja yhteisöllisyyttä ruokkivia kokoontumispaikkoja. Pienissä 1970-luvun lähikirjastoissa näkyi pyrkimys olohuonemaiseen kodikkuuteen. Niihin kalustettiin matalien kirjahyllyjen rajaamia saarekkeita ja pehmeitä ja värikkäitä istuskeluryhmiä.
[14_Laajasalo_AV]
1980-luvun vaihteen murros: Oulun pääkirjasto ja Tammisaaren kaupunginkirjasto
Kirjastorakentaminen alkoi elpyä, kun öljykriisin aiheuttama taloudellinen taantuma helpottui. Kustannussäätely ja normiohjaus jatkuivat. Vuoden 1978 valtionosuusuudistus pohjautui uuteen kunnalliseen kantokykyluokkajärjestelmään, ja se nosti etenkin köyhempien kuntien kirjastojen valtionapua ajan kustannustasoon suhteutettuna peräti 73 % suuremmaksi kuin ennen. Kirjastojen asema hyvinvointiyhteiskuntaa tukevina merkkirakennuksina vahvistui, ja niihin suhtauduttiin kunnallisina tietokeskuksina ja yleisinä kohtauspaikkoina.
Oulun keskustan torialueen rantaan valmistunut pääkirjasto (Marjatta ja Martti Jaatinen, asemakaavakilpailu 1962–63, valm. 1981; sisustus Studio Nurmesniemi) on osa monumentaalikeskussommitelmaa. Asemakaavakilpailun tavoite oli antaa Oulun läänin pääkaupungille sen asemaa vastaava imago kaupungintalon, teatterin ja konserttitalon ja niiden väliin jäävän juhla-aukion muodostaman uuden sydämen avulla. Voittanut ehdotus ”Saari” sijoitti rakennusryhmän suorakulmaiselle, veden ympäröimälle tekosaarelle.
Alkuperäisestä monumentaalikeskussuunnitelmasta toteutui vain teatteritalo (1972), sillä konserttitalon tilalle päätettiin rakentaa uusi pääkirjasto–maakuntakirjasto. Sijoittelu antoi kirjastolle merkittävän ja tärkeän kulttuurilaitoksen aseman kaupunkikuvassa. Rakennus on paikallavalettua betonia ja sen julkisivuissa on käytetty alumiinisäleikköä, lasia, metallikasetteja ja mosaiikkibetonia; sisällä lähinnä sileävalettua betonia, mosaiikkibetonilaattaa, alumiinikasetteja, lasia ja puuta.
Kirjaston tilat ovat neljässä kerroksessa, ja kaikilta osastoilta avautuu näkymiä kaupunkiin tai jokisuistoon. Pohjakerroksessa ovat yleisöpalvelutilat ja lehtisali; kahdessa seuraavassa sijaitsevat aikuisten ja lasten osastot, opintosali sekä kokoelma- ja työtiloja; kirjavarasto ja henkilökunnan tilat ovat ylimmässä kerroksessa. Sisätilojen sydän on koko rakennuksen korkuinen keskusaula veistoksellisine betoniportaikkoineen. Alkuperäinen sisustus sovitettiin taidokkaasti tehostamaan rakennuksen ilmavaa tunnelmaa ja auttamaan suuren kirjaston eri osastojen hahmottamista.
[15a_Oulun_sisä_AV]
[15b_Oulu_AV]
Pieni Tammisaaren kaupunginkirjasto (Ola Hansson, 1977) sopeutuu paikkakunnan ominaispiirteisiin ja kaupunkikuvaan. Erkkerit, pieniruutuiset ikkunat ja poimutettu katto myötäilevät pienimittakaavaisen puukaupungin ja kirjastoa ympäröivien rakennusten tyyliä ja pehmentävät rakennusajankohdalle tyypillistä moduuliarkkitehtuuria.
[16_Tammisaari_AV]
1980-luvulla rakennetaan yli 200 uutta kirjastoa
Vuonna 1986 uusittu kirjastolaki ja taloudellisen noususuhdanteen siivittämä uusi valtionapupolitiikka saivat aikaan ennennäkemättömän rakennusbuumin: 1980-luvulla rakennettiin yli 200 uutta kirjastoa.
1980-luku oli myös videoiden, ATK-kurssien, telefaxien, ensimmäisten matkapuhelimien, paikallisradioiden, kulutusjuhlan ja tiivistyvän EU-yhteistyön aikaa. Tietokonevetoinen tulevaisuus pelotti: ”Tuleeko kirjastosta ainoastaan tietojärjestelmän rakennus- ja tallennuspiste, toimisto tai tietotehdas, johon käyttäjät ottavat yhteyden päätteiltään kotoaan? Tarvitsemmeko enää tiedon temppeleitä tai yhteisiä olohuoneita?”
Arkkitehtuurissa kritiikki 1970-luvun anonyymia ”laatikkolinjaa” kohtaan kasvoi. Postmodernismiksi kutsuttu arkkitehtuuriajattelu kannusti arkkitehteja etsimään vaihtoehtoja: Miten ilmaista kirjaston symbolista merkitystä yhteiskunnallisena ja kaupunkikuvallisena arvorakennuksena? Miten paikallisyhteisö ja käyttäjät kokisivat uuden rakennuksen omakseen? Enää ei riittänyt, että kirjastorakennus toimii moitteettomasti kuin kone. Sen arkkitehtuurin tuli kuvastaa kirjastolaitoksen kulttuurista merkitystä ja heijastella paikallisen miljöön piirteitä.
Tampereen pääkirjasto Metso
Yksi keskustelua herättäneistä uusista kirjastohankkeista oli Tampereen pääkirjasto Metso (Reima ja Raili Pietilä, yleinen arkkitehtuurikilpailu 1978, valm. 1986). ”Soidinmenot” kilpailuehdotuksen kaarevat ja veistokselliset muodot ja ylhäältä katsottuna metsoa muistuttava hahmo poikkesivat arkkitehtuurin valtavirrasta.
Reima Pietilä selitti kirjaston yksilöllisen muotokielen johtuvan arkkitehtien halusta antaa kirjastolle ”1980-luvun ajankasvot” ja tehdä kirjastosta maamerkki ja suomalaisen kulttuurin ilmaisija. Pietilä kritisoi vallitsevaa käsitystä tarkastella arkkitehtuuria pelkästään sen käyttöarvon valossa. Hän tähdensi, että Metson arkkitehtuuri pyrki tekemään uuden runollisen tulkinnan rakennuksen ja luonnon yhteydestä. Mikään Metson arkkitehtuurissa ei ollut yleispätevää: kirjaston pienimmätkin yksityiskohdat suunniteltiin Pietilöiden toimistossa.
[17a_Metso piirustuksia_AV]
[17b_Metso pohja_AV]
[17c_Metso tiski_AV]
Postmodernismi näkyy mittakaavassa, väreissä ja monimuotoisuudessa: Kuhmon kirjasto ja Vihannin kirjasto-kotiseutukeskus
Postmodernistista arkkitehtuuriajattelua ilmentävät etenkin Kuhmon kirjasto (Jyrki Tasa, yleinen arkkitehtuurikilpailu 1988) ja Vihannin kirjasto–kotiseutukeskus (Aitoaho & Viljanen, kutsukilpailu 1985, valm. 1992) – monien ns. Oulun koulun pieniin maaseututaajamiin suunnittelemien kirjastojen ohella.
Kuhmon kirjastossa ajan henki näkyy rakennuksen tilallisessa ilottelussa, värikkäissä, leikkisissä ja huomiota herättävissä yksityiskohdissa. Arkkitehtoninen viimeistely ulottuu Pietilöiden Metso-kirjaston tapaan kalusteisiin, valaisimiin ja vetimiin saakka.
[18a_Kuhmo kirjasali_AV]
[18b_Kuhmo lastenosasto_AV]
[18c_Kuhmo pohjapiirros_AV]
[18d_Kuhmo leikkaus_AV]
Vihannin kirjasto-kotiseutukeskus yhdistää paikallista kulttuuriperintöä kunnioittavan punamulta-arkkitehtuurin modernin ajan materiaaleihin ja modernin kirjaston toimintoihin. Pääosin puurakenteinen ja puuverhoiltu rakennus on Oulun koulun ideologian mukaisesti paikalla rakennettu. Kirjasto on osa monitoimitaloa, jossa ovat nuorisotilat, kansalaisopisto, kotiseutuarkisto, kotiseutu- ja kaivosmuseo, yrityspalvelukeskus ja kierrätyskeskus.
[19a_Vihanti_AV]
[19b_Vihanti ulkoa_AV]
Modernismin perinne jatkuu: Helsingin Pasilan pääkirjasto, Lahden kulttuurikeskus-pääkirjasto ja Vallilan sivukirjasto
1980-luvun arkkitehtuurissa esiintyi postmodernismin rinnalla myös modernismin perinteitä jatkavia ja uudistavia pyrkimyksiä. Niitä olivat mm. selkeän ja suorakulmaisen muotokielen käyttäminen, valkoisen värin, puhtaaksivaletun betonin, luonnonkiven, punatiilen ja puupintojen suosiminen sekä ns. ”uusvanhan”, lavastemaiseksi koetun kansanomaisuuden vastustaminen.
Helsingin pääkirjasto Itä-Pasilassa (Kaarlo Leppänen, 1986) on helppo tunnistaa julkiseksi rakennukseksi korkeiden betonielementtitalojen hallitsemasta ympäristöstä. Kirjaston pääsisäänkäynti ja pääjulkisivut sijaitsevat katutasoa ylempänä jalankulkukannella, koska Itä-Pasilassa autoliikenne ja jalankulku on erotettu eri tasoille.
Kirjastossa on muistumia ja lainauksia Alvar Aallon suunnittelemien rakennusten väri- ja materiaalimaailmasta. Julkisivuelementeissä on tummansinistä klinkkeriä ja pääsisäänkäynnin edustan pylväissä on klinkkeripäällystystä muistuttava pintakäsittely. Valkoiset sisätilat ympäröivät kaksikerroksista keskihallia ja sisäsuihkulähdettä. Tiloja valaisee epäsuora luonnonvalo kattoikkunoiden kautta. Sisäsuihkulähteessä on valkoista marmoria, parvella ja pääportaissa messinkiputkikaide, tiililaattapintaiset porrasaskelmat on reunustettu tammilistalla ja parvea kiertää, tammilistalla reunustettu musta laminaattitaso.
[20a_Helsinki pohja 1_AV]
[20b_Helsinki pohja 2_AV]
[20c_Pasilan kirjasto_AV]
[20d_Pasilan kirjasto_AV]
Lahden kulttuurikeskus-pääkirjaston (Arto Sipinen, yleinen arkkitehtuurikilpailu 1983, valm. 1990) ilmava muotokieli korostaa kirjaston arvostettua asemaa kulttuuri-instituutiona. Kirjasto-kulttuurikeskus-yhdistelmät yleistyivät 1980–90 lukujen taitteessa, ja Sipinen suunnitteli niistä monia (Imatran kulttuurikeskus, kutsukilpailu 1981, valm. 1986; Espoon Tapiolan kulttuurikeskus, yleinen arkkitehtuurikilpailu 1980, valm. 1989).
Lahden pääkirjasto on osa kulttuurirakennusten keskittymää yhdessä teatteritalon, taidemuseon ja aikuiskoulutuskeskuksen kanssa. Kirjaston selkeälinjaiset, umpi ja lasipintoihin jakautuvat, valkoiseksi ohutrapatut rakennusmassat on poimutettu niin, että kulttuurirakennusten väliin jää vesialtaiden ja istutusten elävöittämiä toriaukioita.
Aikuisten ja lasten lainausosastot sijaitsevat heti sisääntulon lähettyvillä ensimmäisessä kerroksessa, rauhallisempaa ympäristöä vaativat opiskelutilat ovat toisessa kerroksessa. Sisätilat ovat avointa hallitilaa, jotta myöhempi muunneltavuus olisi helppoa. Vaaleansävyisissä, valoisissa sisätiloissa on Sipisen arkkitehtuurille ominainen ajaton ja neutraali tunnelma.
[21_Lahti_AV]
Vallilan sivukirjasto Helsingissä (Juha Leiviskä ja Asta Björklund, 1990) kiteyttää 1980-luvun kirjastoarkkitehtuurin kehityslinjat. Pieni puurakenteinen ja verhoiltu rakennus on sovitettu tiiviisti rakennetun, suojellun puukaupunginosan mittakaavaan. Päiväkoti ja kirjasto muodostavat rakennusryhmän, joka ympäröi yhteistä puistopihaa. Sisätiloista avautuvat pihanäkymät, sisäkaton korkeusvaihtelut, ja runsas, monista eri suunnista lankeava luonnonvalo antavat juhlavan ja ajattoman tunnelman pikkuruiselle paikalliskirjastolle.
[22a_Vallila_AV]
[22b_Vallila pohjapiirros_AV]
Kirjastorakentaminen kärsii 1990-luvun talouslamasta
Ne kirjastohankkeet, jotka eivät ehtineet toteutua ennen 1990-luvun lamaa, pantiin jäihin. Hankesuunnitelmista ja arkkitehtuurikilpailujen pöytäkirjoista voi lukea uusien kirjastojen arkkitehtuurille asetettuja tavoitteita. Toteutumatta jääneen Espoon kaupunginkirjaston (yleinen arkkitehtuurikilpailu 1991) pöytäkirjassa tähdennetään jatkuvan muutoksen hyväksymistä, kirjaston tilojen joustavuutta ja muunneltavuutta sekä kirjaston tärkeää roolia julkisena rakennuksena. ”Kirjasto ei ole nykyisellään ainoastaan lainaus- ja lukupiste. Se on kohtaamis ja opiskelupaikka ja se tarjoaa myös monipuolisia kulttuurielämyksiä. Myös yleisön oleskelu- ja kahviotilat ovat olennainen osa nykypäivän kirjastoa. Tämä ei kuitenkaan tarkoita sitä, että kirjaston sisätilojen tulisi kilpailla kauppagallerioiden tai puuhamaiden kanssa. Niissä tulee edelleen olla aistittavissa kulttuurirakennuksen pitkä traditio.”
Orastavan tietoyhteiskunnan tarpeet alkoivat näkyä kirjastojen toiminnassa entistä enemmän. Kirjastoihin tuli lainattavaksi harrastevälineitä ja elektronista aineistoa. Tilaohjelmiin ilmaantui entistä enemmän varattavia kokoontumis ja näyttelytiloja. Kirjastoissa oli ”hiljaisuus”-kylttien sijaan ääntä ja elämää.
[23_Joensuu_AV]
[24a_Maaninka_AV]
[24b_Maaninka sisä_AV]
Kirjastoväki tähdensi kirjastojen merkitystä epäkaupallisina julkisina sisätiloina – ”koko kansan” olohuoneena: ”Mahdollisimman monen olisi voitava käyttää kirjastoa, siksi suunnittelun avaintavoitteita ovat kutsuvuus, saavutettavuus, löydettävyys ja helppokäyttöisyys. Kirjasto pyrkii keskelle kylää ja katutasoon!” Vuoden 1998 kirjastolaissa kaikuivat sekä lama-ajan että tietoyhteiskuntamurroksen seuraukset. Lakiteksti korosti yhdenvertaisuuden vaatimuksia ja tunnisti digitaalisen informaation merkityksen painettujen kirjojen ja lehtien rinnalla.
Monet 1990-luvun kirjastoista kärsivät riisutuista tilaohjelmista ja kustannussäästöjen nimissä vaaditusta tehokkuudesta. Kirjastoarkkitehtuuri joutui sopeutumaan vaatimuksiin julkisen rakentamisen muuntojoustavuudesta sekä tasapainoilemaan monien toiminnallisten vaatimusten ja kirjastojen paikallisen, kaupunkikuvallisen ja kulttuurisen merkityksen välillä. Kirjasto nähtiin kaupunkikehityksen välineenä: kirjaston kaltainen kulttuurirakennus oli hyvä keino lisätä hajanaisen taajama alueen vetovoimaisuutta.
Suosittu arkkitehtoninen tehokeino oli kollaasimaisuus: jokainen toiminto sijoitettiin ikään kuin omaan taloonsa, jotka sommiteltiin esimerkiksi sisäkadun ympärille. Rakennukselle luotiin kaksi toisistaan selkeästi erottuvaa suuntaa: ”selkä- ja vatsapuoli”. Raision kirjasto-auditorion (Hannu Tikka, yleinen arkkitehtuurikilpailu 1995, valm. 1999) arkkitehtoninen pääidea perustuu eri muotoisten ja väristen tilakappaleiden muodostamaan kokonaisuuteen: auditorio, kirjastosalit, lehtilukusali ja musiikkiosasto ovat kukin oma osasensa, jotka aulan sisäkatu yhdistää toisiinsa.
[25a_Raisio piha_AV]
[25b_Raisio plaani_AV]
2000-luvun kirjastot palvelevat yhä moninaisempia käyttäjäryhmiä ja tarpeita
Yleiset kirjastot palvelevat käyttäjiään edistämällä informaation saavutettavuutta kaikissa olomuodoissa sekä edesauttamalla sosiaalista yhteenkuuluvaisuuden tunnetta kaikkialla Suomessa. Vaikka kirjastojen määrä on supistunut, julkiset kirjastot palvelevat 2000-luvulla yhä moninaisempia käyttäjäryhmiä ja käyttötarpeita. Kirjastot ovat muuttaneet kauppakeskuksiin, kyläkeskuksiin ja kulttuuritaloihin, ja niiden tiloihin asettautuu yhä enemmän uusia toimijoita viranomaisista järjestöihin ja taideyhteisöihin.
Vuonna 2017 voimaan astuneen uuden kirjastolain lähtökohtia ovat yhteisöllisyys, moniarvoisuus ja kulttuurinen moninaisuus. Tulevaisuuden kirjasto edistää väestön yhdenvertaisia mahdollisuuksia sivistykseen ja kulttuuriin, tiedon saatavuutta ja käyttöä, lukemiskulttuuria ja monipuolista lukutaitoa, mahdollisuuksia elinikäiseen oppimiseen ja osaamisen kehittämiseen sekä aktiivista kansalaisuutta, demokratiaa ja sananvapautta.
[26_Sello_AV]
[27_Suomen kirjastoverkko_AV]
Kirjoittaja
Anni Vartola, tekniikan tohtori, artikkeli perustuu tekijän tutkimuksiin hänen laatiessaan Venetsian arkkitehtuuribiennaalin 2018 Mind-Building – näyttelykäsikirjoitusta. Näyttely esitteli suomalaista kirjastoarkkitehtuuria ja sen kehittymistä. Vartola on arkkitehtuurin teorian vanhempi yliopistonlehtori Aalto-yliopiston arkkitehtuurin laitoksella.
Artikkeli on julkaistu 2019.
LÄHTEET
Aaltonen, Hanna & Carlson, Joni 1986. Suomalaista kirjastoarkkitehtuuria. Helsinki: Kirjastopalvelu Oy.
Aaltonen, Hanna 2009. Kirjavarastosta olohuoneeksi: yleisten kirjastojen tilojen historiaa. Teoksessa Yleisten kirjastojen historia. Toim. Ilkka Mäkinen. Helsinki: BTJ Kustannus.
Arkkitehtitoimisto Aitoaho & Viljanen 1992: Vihannin kirjasto-kotiseutukeskus. Arkkitehti 6/1992:35-36.
Arkkitehtitoimisto Helin & Siitonen 1992: Joensuun kirjasto. Arkkitehti 6/1992:24-33.
Arkkitehtitoimisto Pia Krogius 2012. Oulun pääkirjaston rakennushistoriaselvitys. OUKA Pääkirjasto RHS kirjastolle.pdf (haettu 6.2.2019).
Berger, Laura 2018. The Building that Disappeared. Espoo: Aalto Arts Books.
Hadley, Chalmers 1910. Why Do We Need a Public Library? Material for a Library Campaign. Chicago: American Library Association Publishing Board. http://www.gutenberg.org/files... (haettu 25.11.2018).
Hirn, Sven 1998. Kansankirjastosta kaupunginkirjastoksi: Helsingin Kaupunginkirjasto 1860–1940. Helsinki: Helsingin kaupunginkirjasto.
EBLIDA – The European Bureau of Library, Information and Documentation Associations 2015. Survey on Public and Academic Libraries. http://www.eblida.org/activiti... (haettu 25.4.2019).
Espoon pääkirjaston yleinen suunnittelukilpailu 1992: Arkkitehtuurikilpailuja 2/1992.
Haapoja, Risto & Tikka, Hannu 1999: Raision kirjasto-auditorio. Arkkitehti 5/1999:44-53.
Huttunen, Hannu 1993: Maaningan kunnantalo. Arkkitehti 1/1993:50-55.
Junnila, Veikko 1977. Kirjastosuunnittelun opas. Helsinki: Martela Oy.
Kahri, Esko 1970: Rakennussuunnittelun tavoitteet 70-luvulla. Arkkitehti 2/1970:37-42.
Kannila, Helle 1966. Kirjastoista kirjoitettua. Kirjoituksia vuosilta 1913–1963. Helsinki: Suomen Kirjastoseura, Otava.
Kanninen, Mauno 1948. Maaseudun kirjastohuoneistot. Helsinki: Suomen Kirjastoseura, Maalaiskuntien Liitto.
Kanninen, Mauno 1953. Uusia kirjastohuoneistoja: Kuvaopas kirjastojen suunnittelijoille. Helsinki: Valtion kirjastotoimisto.
Kansankirjastolaki 131/1928. Suomen asetuskokoelma. https://fi.wikisource.org/wiki/Kansankirjastolaki. Muutokset: https://fi.wikisource.org/wiki...äivänä_1928_annetun_kansankirjastolain_4,_5_ja_8_§:n_muuttamisesta; https://fi.wikisource.org/wiki/Asetus_kansankirjastoista_(1941) (haettu 14.3.2019).
Kekki, Kirsi 2013. Menestystarina nimeltä kirjasto. Helsinki: Avain.
Kirjastolaki 1961. Suomen asetuskokoelma 235/1961. https://fi.wikisource.org/wiki/Kirjastolaki_(1961) (haettu 20.3.2019).
Kirjastolaki 1986. Suomen asetuskokoelma 235/1986. OM, Edita. https://www.finlex.fi/fi/laki/... (haettu 20.5.2019).
Kirjastolaki 1998. Finlex 904/1998. https://www.finlex.fi/fi/laki/... (haettu 20.5.2019).
Kuopion kirjastotalo 1969: Arkkitehti 8/1969:20-25.
Laki yleisistä kirjastoista 29.12.2016/1492. OM, Edita. https://www.finlex.fi/fi/laki/... (haettu 23.1.2018).
Lappo, Osmo: 1971: Avotilakoulu – tulevaisuuden koulu? Arkkitehti 7/1971:27-30.
Leppänen, Kaarlo 1982: Arkkitehdin ongelma. Kirjastolehti 2/1982:526-527.
Mäkinen, Ilkka 2009a. Pitäjänkirjastojen läpimurto. Teoksessa Yleisten kirjastojen historia. Toim. Ilkka Mäkinen. Helsinki: BTJ Kustannus.
Mäkinen, Ilkka 2009b. Kirjasto fennomaanien kansansivistysohjelmassa. Teoksessa Yleisten kirjastojen historia. Toim. Ilkka Mäkinen. Helsinki: BTJ Kustannus.
Mäkinen, Ilkka 2009v. Kirjastot sodassa, sota kirjastoissa. Teoksessa Yleisten kirjastojen historia. Toim. Ilkka Mäkinen. Helsinki: BTJ Kustannus.
Mäkinen, Ilkka 2009d. 1950-luvun perintö. Teoksessa Yleisten kirjastojen historia. Toim. Ilkka Mäkinen. Helsinki: BTJ Kustannus.
Mäkinen, Ilkka 2009e. Yleinen kirjasto hyvinvointiyhteiskunnassa 1960-luvun alusta vuosituhannen vaihteeseen. Teoksessa Yleisten kirjastojen historia. Toim. Ilkka Mäkinen. Helsinki: BTJ Kustannus.
Packalén, Ulla 1986: Kirjasto tänään ja huomenna. Teoksessa Kirjastotilojen suunnittelu. Toim. Eeva-Maija Tammekann. Helsinki: Kirjastopalvelu.
Packalén, Ulla 1992: Yhteinen kirjastomme. Arkkitehti 6/1992:18-23.
Palmgren, Valfrid 1910. Kirjastot ja kansalaiskasvatus. Muistiinpanoja opintomatkalta Pohjois-Amerikan Yhdysvaltoihin. Helsinki: Kansanvalistusseura.
Patomo, Timo 1979: Soidinkuvat: suunnitelma Tampereen kirjastotaloksi. Tampere: lähikuvia ja soidinkuvia vuonna 1979. Toim. Seppo Järvenpää ja työryhmä. Tampere: Tampereen teknillinen korkeakoulu, Arkkitehtuurin osasto, Arkkitehtikilta.
Pietilä, Reima 1983. Rakennusten ja kaupunkikuvien taistelevat metsot. Arkkitehti 3/1983:67-69.
Ranta, Kaarina 1979: Valtion osallistuminen kirjaston rakentamiseen. Kirjastolehti 2/1975:418-422.
Salmio-Toiviainen, Tarja 1958: Näkökohtia kirjaston suunnittelussa ja sisustamisessa. Kirjastolehti 1958/1: 50–53.
Suomen yleisten kirjastojen tilastot 2018. OKM. https://tilastot.kirjastot.fi/ (haettu 29.3.2019).
Sipinen, Arto 1992: Lahden pääkirjasto. Arkkitehti 6/1992:51.
Valtioneuvoston päätös kirjastorakennusten suunnittelun, rakentamisen ja normaalihintojen perusteista 236/1987. OM, Edita. https://www.finlex.fi/fi/laki/... (haettu 23.1.2018).
Vartola, Anni 2011: Liike ja vastaliike: vaikutelmia suomalaisesta postmodernismista. Arkkitehti 6/2011:10-21.
Wacklin, Matti 2011. Kaikkien sielujen apteekki. Tampereen kaupunginkirjasto 150 vuotta. Tampere: Tampereen kaupunginkirjasto – Pirkanmaan maakuntakirjasto.
Väestö 2019. Tilastokeskus. https://www.tilastokeskus.fi/t... (haettu 29.3.2019).
Äyräs, Anneli 1986: Yleisten kirjastojen rakentaminen. Kirjastolehti 2/1986.
LISÄTIETOA
Kirjastoverkko kuuluu opetus- ja kulttuuriministeriön hallinnonalaan ja koostuu:
- kuntien ylläpitämistä yleisistä kunnan- ja kaupunginkirjastoista;
- tieteellisistä kirjastoista, joita ylläpitävät esimerkiksi yliopistot, ammattikorkeakoulut ja tieteelliset seurat;
- koulu- ja oppilaitoskirjastoista, jotka toimivat yhteistyössä yleisten kirjastojen kanssa.
Monet kunnat ylläpitävät lisäksi liikkuvia kirjastopalveluja kuten kirjastoautoja, pyöriä ja jopa kirjastoveneitä sekä pop up tapahtumakirjastoja. Kunnan- ja kaupunginkirjastojen erityispalveluihin kuuluvat laitoskirjastot sijaitsevat sairaaloissa, vankiloissa ja muissa laitosympäristöissä. Valtion ylläpitämiä kirjastopalveluita ovat näkövammaisten kirjasto Celia sekä Varastokirjasto Kuopiossa.
Suomessa on useita tutkimuslaitosten, virastojen ja museoiden ylläpitämiä erikoiskirjastoja. Helsingin yliopiston erillislaitoksena toimiva Kansalliskirjasto on Suomen suurin ja vanhin tieteellinen kirjasto. Se vastaa tieteellisen kokoelmatyönsä ohella kansallisen julkaisuperinnön tallentamisesta ja palvelee koko kirjastokenttää valtakunnallisena palvelu- ja kehittämisyksikkönä.
[03_Terkko_AV]
Kirjaston pitää olla houkutteleva ja sijaita paikkakunnan parhaalla tontilla
Julkisten kirjastojen arkkitehtuuriin alettiin kiinnittää huomiota 1800-luvun loppupuolella. Yhdysvalloissa vahvistuneen Public Library Movementin puheenvuoroissa kirjastorakennusten arkkitehtoninen laatu nähtiin kansan menestyksen ja sivistystason symbolina. Arkkitehtuurista tuli väline houkutella kansalaisia kirjastojen käyttäjiksi. Jo 1900-luvun alussa kirjastoista alettiin puhua yhteiskunnan henkisen elämän keskuksena ja ihmisten kohtauspaikkana.
[04_Viipuri_AV]
Amerikkalainen kirjastoihanne siirtyi Suomeen lukuisten opintomatkojen välityksellä. Uusien kirjastojen piti olla houkuttelevia ja viihtyisiä, ja niille piti osoittaa paikkakunnan kaunein ja sijainniltaan keskeisin tontti. Kirjastojen sisustuksessa kehotettiin suosimaan lämpimiä ja iloisia värejä sekä käyttämään huonekasveja ja taidetta luomaan kauneuden, sopusointuisuuden ja kodikkuuden tunnelmaa. Laadukkaan kirjastoarkkitehtuurin katsottiin edistävän julkisten kirjastojen tehtävää lukutaidon, sivistysmyönteisyyden ja yhteisen kansallisen kulttuurin vahvistamisessa.
Ensimmäiset kirjastorakennukset Helsinkiin, Turkuun, Tampereelle ja Kuopioon
Ensimmäiset 1900-luvun alkupuolen julkiset kirjastot erottuivat selvästi ympäröivästä rakennuskannasta julkisiksi arvorakennuksiksi. Juhlavien sisätilojen päätiloja olivat lainausosasto, kirjavarasto, sekä mahdollisimman häiriöttömiksi suunnitellut lukusalit eri käyttäjäryhmille.
Ensimmäiset varta vasten kirjastokäyttöön suunnitellut julkiset kirjastot olivat Helsingin kansankirjaston talo Rikhardinkadulla (Theodor Höijer, 1881), Turun kirjastotalo (K. A. Wrede, 1903), ensimmäinen kokonaan kunnan omalla rahoituksella rahoitettu Helsingin Kallion kirjasto (Karl Hård af Segerstadh, 1912) sekä Tampereen kaupungin pääkirjasto (Jussi ja Toivo Paatela, 1925). Kuopion museo- ja kirjastorakennus (J. V. Strömberg, 1907) oli ensimmäinen ”muistiorganisaatiot” yhdistävä uudisrakennus.
[05_ Rikhardinkatu_AV]
Lainaussalista tulee keskeisin tila
Nykyaikaisen avohyllyjärjestelmän käyttöönotto vaikutti sisätilojen mitoitukseen ja kalustukseen. Suljetussa hyllyjärjestelmässä kirjat sijaitsivat kirjavarastossa, ja asiakas sai haluamansa kirjan pyytämällä sitä virkailijalta. Avohyllyjärjestelmässä lainaajat saivat itse valita lukemisensa. Tämän takia lainaussalista tuli 1910-luvulta alkaen kirjaston suurin ja merkittävin tila. Siellä selailtiin kirjaston kokoelmaa, luettiin sekä asioitiin toimintaa valvovan virkailijan kanssa. Samalla kirjavarasto muuttui. Lainaussaleihin sijoitettiin kirjojen aktiivikokoelma ja harvemmin tarvittu varastokokoelma siirrettiin kauemmas.
[06_Tampere_AV]
Avohyllyjärjestelmä lisäsi lukemiseen varattujen tilojen määrää ja kalustusta. Lukupisteitä sijoitettiin lainaussaliin hyllyjen lomaan, eikä varsinaisia lukusaleja enää tarvittu niin paljon kuin aiemmin. Käyttökulttuurin muutos lisäsi valvonnan ja liikennevirtojen suunnittelun tarvetta, mutta antoi uusia mahdollisuuksia kirjastotoiminnan idean ja kirjaston tilojen välisen tärkeysjärjestyksen arkkitehtoniselle ilmaisulle.
Lainaussali on kirjaston sydän Viipurin kirjastossa (Aino ja Alvar Aalto, arkkitehtuurikilpailu 1927, valm. 1935), joka on avohyllyjärjestelmän mahdollistama moderni kirjasto. Lapset olivat tervetulleita kirjaston huolellisesti suunniteltuun lastenosastoon. Sinne oli oma sisäänkäynti suoraan ulkoa. Kirjaston eri toiminnot erotettiin toisistaan: hallinto ja yleiseen käyttöön osoitetut tilat sijaitsivat omassa siivessään ja varsinaiset lukusalit omalla hiljaisella vyöhykkeellään.
Valtio tukee ja kannustaa kuntia kirjastojen rakentamisessa
Julkisten kirjastojen toimintaa alettiin säädellä lainsäädännöllä vuodesta 1928 alkaen. Kansankirjastolaki (131/1928) määritteli kirjastojen tehtäväksi "kansansivistyksen kohottamisen ja kansalaisten itseopiskelun edistämisen" ja kannusti kuntia ottamaan kirjastopalvelut osaksi toimintaansa. Valtion kirjastotoimikunta perustettiin kouluhallituksen yhteyteen. Se valvoi kirjastojen toimintaa ja jakoi rakennusavustusta kirjastohuoneistojen hankkimiseen ja kunnossapitoon.
Vuodesta 1932 alkaen kunnilta edellytettiin omaa rahoitusosuutta. Myöhemmät asetukset kansankirjastoista täsmensivät valtionapusäädöksiä ja asettivat valtion rakennusavustuksen edellytykseksi kunnanvaltuuston hyväksymät piirustukset, työselitykset ja kustannusarvion.
Käytännössä vain syrjäseutujen vähävaraiset kunnat saivat valtion rakennusavustusta. Kaupunkien kirjastohankkeet jouduttiin usein yhdistämään muihin uudisrakennushankkeisiin. Merkittävimpiä olivat Pohjois-Pohjanmaan maakunta-arkisto ja kirjasto Oulussa (Oiva Kallio, 1931) sekä Vaasan kirjasto- ja maakunta-arkisto (Ingvald Serenius, 1936).
Laitilan kirjastotalo (1937) ja Nurmeksen kirjasto (1938) olivat itsenäisyyden ajan ensimmäiset kirjastokäyttöön rakennetut maaseutukirjastot. Ne rakennettiin vielä lahjoitusvaroin.
Kirjasto saman katon alle muiden kunnan palveluiden kanssa
Toisessa maailmansodassa kirjastoja tuhoutui pommituksissa. Alueluovutuksissa Neuvostoliitolle menetettiin 370 kirjastoa kokoelmineen, mukaan lukien Viipurin, Hangon, Sortavalan ja Käkisalmen kaupunginkirjastot.
Jälleenrakennuskaudella kirjastojen tarve oli suurin maaseudulla. Suomen kirjastoseuran vuonna 1948 julkaisema Maaseudun kirjastohuoneistot opaslehtinen antoi käytännöllisiä ohjeita syrjäkylien päättäjille. Opas kannusti edistämään eri rakennushankkeita yhtä aikaa ja hakemaan kirjastolle yleisen sivistystalon luonnetta sijoittamalla useita palveluita saman katon alle.
Hyviä kumppaneita olivat esimerkiksi kunnantalo, terveystalo, kotiseutumuseo, kansalaisopisto tai kerho ja nuorisotalo. Kirjaston yhdistämistä kouluun pidettiin myös toimivana siinä tapauksessa, että yleinen kirjasto sai oman sisäänkäynnin. Opaslehtisen kuvituksena oli malliratkaisuja Norjasta ja Tanskasta sekä Kangasalan kantakirjaston lainausosasto, Porin Uudenkoiviston kansakoulun kirjastohuone ja Kouluhallituksen kansakoulutyyppipiirustus.
[07_Maaseudun kirjastohuoneistot_AV]
Kirjastolle seikkaperäiset suunnitteluohjeet – rakentaminen vauhdittuu 1950-luvulla
Uusien kirjastojen rakentaminen vauhdittui 1950-luvulla. Lukemisesta tuli suosittu harrastus, ja suomenkielisen kirjallisuuden tarjonta lisääntyi. Yleinen koulutus- ja sivistysmyönteisyys kasvoi. Toisen maailmansodan jälkeen syntyi ennätysmäärä lapsia. Etenkin lasten ja nuorten kirjastopalveluihin kiinnitettiin huomiota – toisaalta osana uusien kansa ja oppikoulujen suurta tarvetta, toisaalta osana yleisten kirjastopalvelujen kehittämistä. Kirjastojen haluttiin kilpailevan nuorison suosiosta ja tarjoavan houkuttelevan vaihtoehdon vähemmän suotaville vapaa-ajankäyttömuodoille.
Suunnitteluohjeet tähdensivät tontin valinnan keskeisyyttä, paikkakunnan tarpeiden tuntemista, resurssien järkevää kohdentamista sekä tiivistä yhteistyötä kirjastonhoitajan ja arkkitehdin välillä, jotta kirjaston toiminnallinen suunnittelu onnistuisi. 1950-luvun suunnitteluohjeissa kirjastotilan tärkeimpiä osatekijöitä olivat:
- eri huonetilojen mitoitus ja suhteellinen koko
- sisäisen liikenteen yhteydet
- keskitetyn valvonnan ratkaiseminen
- kirja- ja yleisömäärien mitoitus
- myöhempi laajennettavuus.
Vuonna 1953 julkaistiin suunnitteluopas pienten ja keskikokoisten kirjastojen suunnittelun innoitukseksi. Siinä esiteltiin kirjastotalomalleja uudisrakennuksina ja vanhaan taloon korjattuna, muiden rakennusten kuten kunnan tai terveystalon ja kansakoulun yhteyteen sijoitettuina siipinä sekä kirjastohuoneita liikerakennusten, virastojen, koulujen ja yksityistalojen yhteydessä.
[08_Uusia kirjastohuoneistoja_AV]
Arkkitehtuurilla haluttiin antaa vaatimattomallekin kirjastolle ”vissi mainosarvo, puoleensavetävä luonne”. Se tapahtui luomalla kirjastolle itsenäinen ilme ja eloisat sisätilat esimerkiksi:
- suunnittelemalla kirjaston julkisivut erikoisluonteen mukaisiksi
- antamalla kirjastolle oma, väljä ja tunnistettava, katoksella suojattu sisäänkäynti
- suosimalla käyntiovina leveitä lasiovia umpiovien sijaan, jolloin kävijä näkee kirjaston eri yleisötilat heti eteishallista
- sijoittamalla osa kokoelmista parvelle
laskemalla esimerkiksi luku- tai opintosali muuta lattiatasoa alemmaksi.
Lauritsalan kauppalankirjasto ja Lauttasaaren kirjasto
Säynätsalon kunnantalon yhteyteen rakennettu kunnankirjasto (Alvar Aalto, 1952) lienee kansainvälisesti tunnetuin 1950-luvun kirjasto. Vauraiden teollisuuspaikkakuntien kunnianhimoista kirjastoarkkitehtuuria edustaa myös Lauritsalan kauppalankirjasto (Arkkitehtuuritoimisto Martikainen–Ypyä–Malmio, 1951), joka esiteltiin monissa kirjastoalan julkaisuissa erityisen onnistuneena esimerkkinä.
Kirjaston sisätilat jäsentyvät eri tasoihin ja ovat yhtenäistä avaraa tilaa. Kirjahyllyt on 1950-luvun kirjastoissa sijoitettu kiertämään seiniä; keskialueelle on sommiteltu lukupisteitä sekä kevyempiä ja matalampia kirjahyllyköitä. Luonnonvalo pyritään tuomaan tiloihin epäsuorasti seiniä kiertävien kirjahyllyjen yläpuolelta tai kattovalona. Yleis ja lukuvalaisimet täydentävät tilojen valaistusta.
[09a_Lauritsalan kirjasto_AV]
[09b_Lauritsalan kirjasto_AV]
Esimerkki kaupungin asuinalueelle 1950-luvulla rakennetusta kirjastosta on Lauttasaaren kirjasto Helsingissä (J.S. Sirén, 1955). Se on osa suuren kansakoulun rakennusryhmää, ja kirjasto sisällytettiin suunnitelmiin vasta koulun rakennusvaiheessa. Kirjasto sijaitsi äitiysneuvolan yläkerrassa koulun pihaa rajaavan sivurakennuksen kahdessa ylimmässä kerroksessa. Neuvola-kirjastolla oli kaksiosainen sisäänkäynti; oma ulko-ovi ohjasi kirjastonkäyttäjät suoraan portaikkoon ja toiseen kerrokseen.
[10a_Lauttasaaren kirjasto_AV]
[10b_Lauttasaaren_kirjasto 2_AV]
Kasvun vuodet ¬– 1960-luvulla rakennetaan kunnallisia ja maakunnallisia kirjastoja
Kirjastot jaettiin paikallisiin kirjastoihin ja maakuntakirjastoihin vuodesta 1962 alkaen. Kaksitasoinen hierarkia perustui uuteen kirjastolakiin (235/1961). Valtionapu kohdennettiin maalaiskuntien ja kauppaloiden uusien kirjastorakennusten tai huoneistojen rakentamiseen sekä maakuntakirjastojärjestelmän perustamiseen. Maakuntakirjastoa ylläpitävät kaupungit saivat erillistä valtionapua sekä vuosiavustuksena että kunnan asukasmäärän mukaan.
Lainmuutos kasvatti merkittävästi kirjastotoimen rahoitusta ja vauhditti varsinkin pääkirjastojen rakentamista maakuntakirjasto-oikeudet saaneissa 19 kaupungissa. Maakuntakirjastojen tehtävä oli toimia alueellisina keskuskirjastoina sekä täydentää ja tukea paikallista kirjastoverkkoa. Uusista pääkirjastoista arkkitehtonisesti tunnetuimpia ovat Seinäjoen ja Rovaniemen kaupunginkirjastot (Alvar Aalto, 1965, 1966) sekä Kuopion uusi kirjastotalo (Matti Hakala, yleinen arkkitehtuurikilpailu 1962–63, valm. 1967).
Kuopion kirjastotalo
Kuopion kirjastotalo on näyttävä esimerkki 1960-luvun maakuntakirjastosta. Rakennus sijoitettiin Kuopion keskustaan vanhan museo-kirjastorakennuksen viereen. Se on vedetty sisemmäs tonttia ja irrotettu ympäröivästä kaupunkirakenteesta, joten se on helppo tunnistaa tärkeäksi julkiseksi rakennukseksi. Varsinaiset kirjastotilat ovat rakennuksen toisessa kerroksessa.
Rakennuksessa on teräsbetonirunko ja toisen kerroksen kattoa kannattelevat esijännitetyt teräsbetonipalkit. Rakenteen ansiosta kirjahalli on avara ja yhtenäinen tila: eri toiminnot on rajattu toisistaan puolikorkeilla seinäkkeillä, lasiovet ja väliseinien ylälasit tehostavat tilavaikutelmaa.
Kirjaston käyttöä valvotaan yhdestä keskeisestä asiakaspalvelu ja valvontapisteestä. Kirjasalin keskipiste on pyöreä, kirjahyllyillä tilaan rajautuva ja päätasoa alemmaksi laskettu nuoriso-osasto. Tila saa luonnonvaloa suuren kattoikkunan kautta, suoraan sen alla on sisäsuihkulähde. Kuopion kirjastotaloon valmistui uudenaikainen musiikkiosasto: musiikkia saattoi kuunnella kovaäänisistä erillisessä musiikkihuoneessa ja nuoriso-osastolla myös kuulokkeista.
[11a_Kuopion kirjastotalo 2_AV]
[11b_Kuopion kirjastotalo leikkaus_AV]
[11c_Kuopion kirjastotalo_AV]
Maakuntamittakaavasta lähikirjastoon: esimerkkinä Töölön sivukirjasto
Nopeasti kasvavissa kaupungeissa rakennettiin pääkirjastojen ohella myös lähi- eli sivukirjastoja. Ne haluttiin sijoittaa sinne, missä ihmiset asuvat ja tukea kirjastopalveluilla alueen päiväkotien ja koulujen kulttuurikasvatusta. Kirjasto tarjoaa myös alueen asukkaille luontevan, helposti saavutettavan kohtaamispaikan.
Vapaasti puistossa sijaitseva Töölön sivukirjasto Helsingissä (Aarne Ervi, 1963–1970) on kaupunkikuvallinen kohokohta. Kirjasto erottuu ympäröivästä kaupunkirakenteesta, ja sen korurasiamainen olemus poikkeaa 1960–70-luvun valtavirtaa edustavasta järjestelmäarkkitehtuurista, joka suosi neutraalia ulkoasua ja systemaattisesti toistettavissa olevaa tilarakennetta.
Kuten Ervin suunnittelemassa Turun yliopiston kirjastossa (1954), myös Töölön kirjaston suurista ikkunoista avautuu näkymiä puistoon. Puistoon avautuva parveke ja suojainen, laatoitettu terassi ovat kirjaston asiakkaiden käytössä kesäkaudella. Luonnonvalo lainaussaleissa ja lukusalissa on runsas.
Kirjaston tilat kiertyvät keskeisportaikon ympärille, ja sisätilojen värikkäät yksityiskohdat ja kaarevat linjat tekevät kirjaston tila-arkkitehtuurista eloisan. Lastenosasto on sijoitettu heti pääsisäänkäynnin viereen. Katutason lehtisali omine sisäänkäynteineen mahdollisti muusta kirjastosta poikkeavat aukio-oloajat. Toisessa kerroksessa olevan kaksikerroksisen aikuisten osaston kirjastosalissa on parvi, joka toimii yhdyskäytävänä ja joka alun perin palveli ruotsinkielisen kirjallisuuden osastona. Lasiseinillä erotettu lukusali on Helsingin suurin. Ylimmässä kerroksessa on musiikkiosasto ja oma parveke. Peruskorjauksen jälkeen (Arkkitehdit Mustonen Oy, 2016) ylimpään kerrokseen siirrettiin nuortenosasto sekä rakennettiin uusi tapahtumasali oheistiloineen.
[12a_Töölö 1_AV]
[12b_Töölö lukusali_AV]
[12c_Töölö musa_AV]
[12d_Töölö terassi_AV]
Suurten taajamien kirjastoverkko tiivistyy 1970-luvulla – kirjastosta muunneltava ja laajennettava
Kiihtyvä kaupungistuminen ja kuntaliitokset lisäsivät paineita uudistaa ja tiivistää etenkin suurten taajamien kirjastoverkkoa. Kirjastotoimesta vastaava kouluhallitus valvoi uusien kirjastohankkeiden käynnistämistä ja suunnitelmia, sillä kirjastorakentaminen oli 1970-luvun öljykriisin aiheuttaman taloustaantuman takia tarkkaan säänneltyä ja normitettua. Valtionapu edellytti kaikkien uusien kirjastohankkeiden pääpiirustusten ja työselitysten etukäteistä hyväksyntää. Lisäksi yli 250 m2 suuruisten kirjastorakennusten luonnokset ja rakennustapaselostus tuli tarkastuttaa etukäteen.
Kirjastojen suunnitteluohjeissa alleviivattiin tilojen laajennettavuutta ja muunneltavuutta sekä avoimen kirjastomaiseman ihannetta. Suunnitteluohjeet kannustivat käyttämään moduulimitoitusta ja pyrkimään selkeisiin ja yksinkertaisiin rakenteisiin sekä suuriin ja avariin sisätiloihin, jotta tilamuutokset olisivat joustavasti toteutettavissa. Tilasuunnittelussa tuli pyrkiä ”yleispätevyyteen, selkeyteen, avoimuuteen, keveyteen ja siirreltävyyteen – tiloissa, teknisissä ratkaisuissa, sisustuksessa, jopa yksittäisissä kalusteissa”.
1970-luvun kirjastoilla ei juurikaan nähty olevan julkisen rakennuksen symboliarvoa. Kirjastoista puhuttiin yleisönpalvelulaitoksina , ja arkkitehtuurin ensisijainen tehtävä oli palvella käyttäjän ja yhteiskunnan tarpeita. Rakennustaiteelliset päämäärät koettiin yleisemminkin ajankohdan poliittisessa ilmapiirissä liian yksilökeskeisiksi tai suppean yläluokan arvokäsityksiä vastaaviksi.
[13_Kerava_AV]
Automaatit ja tietokoneet saapuvat kirjastoon
Taloudellisten suhdanteiden, arkkitehtonisten arvojen ja poliittisten painotusten ohella myös tieto- ja viestintätekniikan kehitys vaikutti kirjastojen merkitykseen ja toimintakulttuuriin. Audiovisuaalisista laitteista, lainausautomaateista ja kopiokoneista tuli arkipäivää, ja erilaisille tiedonhaku ja ATK-päätteille tarvittiin tilaa. Kirjastoilta odotettiin aktiivisuutta: kirjastojen tuli esitellä uutta teknologiaa ja opastaa sen käyttöön.
Kaupunkien uusiin lähiöihin tarvittiin samaan aikaan lisää kirjastopalveluita ja yhteisöllisyyttä ruokkivia kokoontumispaikkoja. Pienissä 1970-luvun lähikirjastoissa näkyi pyrkimys olohuonemaiseen kodikkuuteen. Niihin kalustettiin matalien kirjahyllyjen rajaamia saarekkeita ja pehmeitä ja värikkäitä istuskeluryhmiä.
[14_Laajasalo_AV]
1980-luvun vaihteen murros: Oulun pääkirjasto ja Tammisaaren kaupunginkirjasto
Kirjastorakentaminen alkoi elpyä, kun öljykriisin aiheuttama taloudellinen taantuma helpottui. Kustannussäätely ja normiohjaus jatkuivat. Vuoden 1978 valtionosuusuudistus pohjautui uuteen kunnalliseen kantokykyluokkajärjestelmään, ja se nosti etenkin köyhempien kuntien kirjastojen valtionapua ajan kustannustasoon suhteutettuna peräti 73 % suuremmaksi kuin ennen. Kirjastojen asema hyvinvointiyhteiskuntaa tukevina merkkirakennuksina vahvistui, ja niihin suhtauduttiin kunnallisina tietokeskuksina ja yleisinä kohtauspaikkoina.
Oulun keskustan torialueen rantaan valmistunut pääkirjasto (Marjatta ja Martti Jaatinen, asemakaavakilpailu 1962–63, valm. 1981; sisustus Studio Nurmesniemi) on osa monumentaalikeskussommitelmaa. Asemakaavakilpailun tavoite oli antaa Oulun läänin pääkaupungille sen asemaa vastaava imago kaupungintalon, teatterin ja konserttitalon ja niiden väliin jäävän juhla-aukion muodostaman uuden sydämen avulla. Voittanut ehdotus ”Saari” sijoitti rakennusryhmän suorakulmaiselle, veden ympäröimälle tekosaarelle.
Alkuperäisestä monumentaalikeskussuunnitelmasta toteutui vain teatteritalo (1972), sillä konserttitalon tilalle päätettiin rakentaa uusi pääkirjasto–maakuntakirjasto. Sijoittelu antoi kirjastolle merkittävän ja tärkeän kulttuurilaitoksen aseman kaupunkikuvassa. Rakennus on paikallavalettua betonia ja sen julkisivuissa on käytetty alumiinisäleikköä, lasia, metallikasetteja ja mosaiikkibetonia; sisällä lähinnä sileävalettua betonia, mosaiikkibetonilaattaa, alumiinikasetteja, lasia ja puuta.
Kirjaston tilat ovat neljässä kerroksessa, ja kaikilta osastoilta avautuu näkymiä kaupunkiin tai jokisuistoon. Pohjakerroksessa ovat yleisöpalvelutilat ja lehtisali; kahdessa seuraavassa sijaitsevat aikuisten ja lasten osastot, opintosali sekä kokoelma- ja työtiloja; kirjavarasto ja henkilökunnan tilat ovat ylimmässä kerroksessa. Sisätilojen sydän on koko rakennuksen korkuinen keskusaula veistoksellisine betoniportaikkoineen. Alkuperäinen sisustus sovitettiin taidokkaasti tehostamaan rakennuksen ilmavaa tunnelmaa ja auttamaan suuren kirjaston eri osastojen hahmottamista.
[15a_Oulun_sisä_AV]
[15b_Oulu_AV]
Pieni Tammisaaren kaupunginkirjasto (Ola Hansson, 1977) sopeutuu paikkakunnan ominaispiirteisiin ja kaupunkikuvaan. Erkkerit, pieniruutuiset ikkunat ja poimutettu katto myötäilevät pienimittakaavaisen puukaupungin ja kirjastoa ympäröivien rakennusten tyyliä ja pehmentävät rakennusajankohdalle tyypillistä moduuliarkkitehtuuria.
[16_Tammisaari_AV]
1980-luvulla rakennetaan yli 200 uutta kirjastoa
Vuonna 1986 uusittu kirjastolaki ja taloudellisen noususuhdanteen siivittämä uusi valtionapupolitiikka saivat aikaan ennennäkemättömän rakennusbuumin: 1980-luvulla rakennettiin yli 200 uutta kirjastoa.
1980-luku oli myös videoiden, ATK-kurssien, telefaxien, ensimmäisten matkapuhelimien, paikallisradioiden, kulutusjuhlan ja tiivistyvän EU-yhteistyön aikaa. Tietokonevetoinen tulevaisuus pelotti: ”Tuleeko kirjastosta ainoastaan tietojärjestelmän rakennus- ja tallennuspiste, toimisto tai tietotehdas, johon käyttäjät ottavat yhteyden päätteiltään kotoaan? Tarvitsemmeko enää tiedon temppeleitä tai yhteisiä olohuoneita?”
Arkkitehtuurissa kritiikki 1970-luvun anonyymia ”laatikkolinjaa” kohtaan kasvoi. Postmodernismiksi kutsuttu arkkitehtuuriajattelu kannusti arkkitehteja etsimään vaihtoehtoja: Miten ilmaista kirjaston symbolista merkitystä yhteiskunnallisena ja kaupunkikuvallisena arvorakennuksena? Miten paikallisyhteisö ja käyttäjät kokisivat uuden rakennuksen omakseen? Enää ei riittänyt, että kirjastorakennus toimii moitteettomasti kuin kone. Sen arkkitehtuurin tuli kuvastaa kirjastolaitoksen kulttuurista merkitystä ja heijastella paikallisen miljöön piirteitä.
Tampereen pääkirjasto Metso
Yksi keskustelua herättäneistä uusista kirjastohankkeista oli Tampereen pääkirjasto Metso (Reima ja Raili Pietilä, yleinen arkkitehtuurikilpailu 1978, valm. 1986). ”Soidinmenot” kilpailuehdotuksen kaarevat ja veistokselliset muodot ja ylhäältä katsottuna metsoa muistuttava hahmo poikkesivat arkkitehtuurin valtavirrasta.
Reima Pietilä selitti kirjaston yksilöllisen muotokielen johtuvan arkkitehtien halusta antaa kirjastolle ”1980-luvun ajankasvot” ja tehdä kirjastosta maamerkki ja suomalaisen kulttuurin ilmaisija. Pietilä kritisoi vallitsevaa käsitystä tarkastella arkkitehtuuria pelkästään sen käyttöarvon valossa. Hän tähdensi, että Metson arkkitehtuuri pyrki tekemään uuden runollisen tulkinnan rakennuksen ja luonnon yhteydestä. Mikään Metson arkkitehtuurissa ei ollut yleispätevää: kirjaston pienimmätkin yksityiskohdat suunniteltiin Pietilöiden toimistossa.
[17a_Metso piirustuksia_AV]
[17b_Metso pohja_AV]
[17c_Metso tiski_AV]
Postmodernismi näkyy mittakaavassa, väreissä ja monimuotoisuudessa: Kuhmon kirjasto ja Vihannin kirjasto-kotiseutukeskus
Postmodernistista arkkitehtuuriajattelua ilmentävät etenkin Kuhmon kirjasto (Jyrki Tasa, yleinen arkkitehtuurikilpailu 1988) ja Vihannin kirjasto–kotiseutukeskus (Aitoaho & Viljanen, kutsukilpailu 1985, valm. 1992) – monien ns. Oulun koulun pieniin maaseututaajamiin suunnittelemien kirjastojen ohella.
Kuhmon kirjastossa ajan henki näkyy rakennuksen tilallisessa ilottelussa, värikkäissä, leikkisissä ja huomiota herättävissä yksityiskohdissa. Arkkitehtoninen viimeistely ulottuu Pietilöiden Metso-kirjaston tapaan kalusteisiin, valaisimiin ja vetimiin saakka.
[18a_Kuhmo kirjasali_AV]
[18b_Kuhmo lastenosasto_AV]
[18c_Kuhmo pohjapiirros_AV]
[18d_Kuhmo leikkaus_AV]
Vihannin kirjasto-kotiseutukeskus yhdistää paikallista kulttuuriperintöä kunnioittavan punamulta-arkkitehtuurin modernin ajan materiaaleihin ja modernin kirjaston toimintoihin. Pääosin puurakenteinen ja puuverhoiltu rakennus on Oulun koulun ideologian mukaisesti paikalla rakennettu. Kirjasto on osa monitoimitaloa, jossa ovat nuorisotilat, kansalaisopisto, kotiseutuarkisto, kotiseutu- ja kaivosmuseo, yrityspalvelukeskus ja kierrätyskeskus.
[19a_Vihanti_AV]
[19b_Vihanti ulkoa_AV]
Modernismin perinne jatkuu: Helsingin Pasilan pääkirjasto, Lahden kulttuurikeskus-pääkirjasto ja Vallilan sivukirjasto
1980-luvun arkkitehtuurissa esiintyi postmodernismin rinnalla myös modernismin perinteitä jatkavia ja uudistavia pyrkimyksiä. Niitä olivat mm. selkeän ja suorakulmaisen muotokielen käyttäminen, valkoisen värin, puhtaaksivaletun betonin, luonnonkiven, punatiilen ja puupintojen suosiminen sekä ns. ”uusvanhan”, lavastemaiseksi koetun kansanomaisuuden vastustaminen.
Helsingin pääkirjasto Itä-Pasilassa (Kaarlo Leppänen, 1986) on helppo tunnistaa julkiseksi rakennukseksi korkeiden betonielementtitalojen hallitsemasta ympäristöstä. Kirjaston pääsisäänkäynti ja pääjulkisivut sijaitsevat katutasoa ylempänä jalankulkukannella, koska Itä-Pasilassa autoliikenne ja jalankulku on erotettu eri tasoille.
Kirjastossa on muistumia ja lainauksia Alvar Aallon suunnittelemien rakennusten väri- ja materiaalimaailmasta. Julkisivuelementeissä on tummansinistä klinkkeriä ja pääsisäänkäynnin edustan pylväissä on klinkkeripäällystystä muistuttava pintakäsittely. Valkoiset sisätilat ympäröivät kaksikerroksista keskihallia ja sisäsuihkulähdettä. Tiloja valaisee epäsuora luonnonvalo kattoikkunoiden kautta. Sisäsuihkulähteessä on valkoista marmoria, parvella ja pääportaissa messinkiputkikaide, tiililaattapintaiset porrasaskelmat on reunustettu tammilistalla ja parvea kiertää, tammilistalla reunustettu musta laminaattitaso.
[20a_Helsinki pohja 1_AV]
[20b_Helsinki pohja 2_AV]
[20c_Pasilan kirjasto_AV]
[20d_Pasilan kirjasto_AV]
Lahden kulttuurikeskus-pääkirjaston (Arto Sipinen, yleinen arkkitehtuurikilpailu 1983, valm. 1990) ilmava muotokieli korostaa kirjaston arvostettua asemaa kulttuuri-instituutiona. Kirjasto-kulttuurikeskus-yhdistelmät yleistyivät 1980–90 lukujen taitteessa, ja Sipinen suunnitteli niistä monia (Imatran kulttuurikeskus, kutsukilpailu 1981, valm. 1986; Espoon Tapiolan kulttuurikeskus, yleinen arkkitehtuurikilpailu 1980, valm. 1989).
Lahden pääkirjasto on osa kulttuurirakennusten keskittymää yhdessä teatteritalon, taidemuseon ja aikuiskoulutuskeskuksen kanssa. Kirjaston selkeälinjaiset, umpi ja lasipintoihin jakautuvat, valkoiseksi ohutrapatut rakennusmassat on poimutettu niin, että kulttuurirakennusten väliin jää vesialtaiden ja istutusten elävöittämiä toriaukioita.
Aikuisten ja lasten lainausosastot sijaitsevat heti sisääntulon lähettyvillä ensimmäisessä kerroksessa, rauhallisempaa ympäristöä vaativat opiskelutilat ovat toisessa kerroksessa. Sisätilat ovat avointa hallitilaa, jotta myöhempi muunneltavuus olisi helppoa. Vaaleansävyisissä, valoisissa sisätiloissa on Sipisen arkkitehtuurille ominainen ajaton ja neutraali tunnelma.
[21_Lahti_AV]
Vallilan sivukirjasto Helsingissä (Juha Leiviskä ja Asta Björklund, 1990) kiteyttää 1980-luvun kirjastoarkkitehtuurin kehityslinjat. Pieni puurakenteinen ja verhoiltu rakennus on sovitettu tiiviisti rakennetun, suojellun puukaupunginosan mittakaavaan. Päiväkoti ja kirjasto muodostavat rakennusryhmän, joka ympäröi yhteistä puistopihaa. Sisätiloista avautuvat pihanäkymät, sisäkaton korkeusvaihtelut, ja runsas, monista eri suunnista lankeava luonnonvalo antavat juhlavan ja ajattoman tunnelman pikkuruiselle paikalliskirjastolle.
[22a_Vallila_AV]
[22b_Vallila pohjapiirros_AV]
Kirjastorakentaminen kärsii 1990-luvun talouslamasta
Ne kirjastohankkeet, jotka eivät ehtineet toteutua ennen 1990-luvun lamaa, pantiin jäihin. Hankesuunnitelmista ja arkkitehtuurikilpailujen pöytäkirjoista voi lukea uusien kirjastojen arkkitehtuurille asetettuja tavoitteita. Toteutumatta jääneen Espoon kaupunginkirjaston (yleinen arkkitehtuurikilpailu 1991) pöytäkirjassa tähdennetään jatkuvan muutoksen hyväksymistä, kirjaston tilojen joustavuutta ja muunneltavuutta sekä kirjaston tärkeää roolia julkisena rakennuksena. ”Kirjasto ei ole nykyisellään ainoastaan lainaus- ja lukupiste. Se on kohtaamis ja opiskelupaikka ja se tarjoaa myös monipuolisia kulttuurielämyksiä. Myös yleisön oleskelu- ja kahviotilat ovat olennainen osa nykypäivän kirjastoa. Tämä ei kuitenkaan tarkoita sitä, että kirjaston sisätilojen tulisi kilpailla kauppagallerioiden tai puuhamaiden kanssa. Niissä tulee edelleen olla aistittavissa kulttuurirakennuksen pitkä traditio.”
Orastavan tietoyhteiskunnan tarpeet alkoivat näkyä kirjastojen toiminnassa entistä enemmän. Kirjastoihin tuli lainattavaksi harrastevälineitä ja elektronista aineistoa. Tilaohjelmiin ilmaantui entistä enemmän varattavia kokoontumis ja näyttelytiloja. Kirjastoissa oli ”hiljaisuus”-kylttien sijaan ääntä ja elämää.
[23_Joensuu_AV]
[24a_Maaninka_AV]
[24b_Maaninka sisä_AV]
Kirjastoväki tähdensi kirjastojen merkitystä epäkaupallisina julkisina sisätiloina – ”koko kansan” olohuoneena: ”Mahdollisimman monen olisi voitava käyttää kirjastoa, siksi suunnittelun avaintavoitteita ovat kutsuvuus, saavutettavuus, löydettävyys ja helppokäyttöisyys. Kirjasto pyrkii keskelle kylää ja katutasoon!” Vuoden 1998 kirjastolaissa kaikuivat sekä lama-ajan että tietoyhteiskuntamurroksen seuraukset. Lakiteksti korosti yhdenvertaisuuden vaatimuksia ja tunnisti digitaalisen informaation merkityksen painettujen kirjojen ja lehtien rinnalla.
Monet 1990-luvun kirjastoista kärsivät riisutuista tilaohjelmista ja kustannussäästöjen nimissä vaaditusta tehokkuudesta. Kirjastoarkkitehtuuri joutui sopeutumaan vaatimuksiin julkisen rakentamisen muuntojoustavuudesta sekä tasapainoilemaan monien toiminnallisten vaatimusten ja kirjastojen paikallisen, kaupunkikuvallisen ja kulttuurisen merkityksen välillä. Kirjasto nähtiin kaupunkikehityksen välineenä: kirjaston kaltainen kulttuurirakennus oli hyvä keino lisätä hajanaisen taajama alueen vetovoimaisuutta.
Suosittu arkkitehtoninen tehokeino oli kollaasimaisuus: jokainen toiminto sijoitettiin ikään kuin omaan taloonsa, jotka sommiteltiin esimerkiksi sisäkadun ympärille. Rakennukselle luotiin kaksi toisistaan selkeästi erottuvaa suuntaa: ”selkä- ja vatsapuoli”. Raision kirjasto-auditorion (Hannu Tikka, yleinen arkkitehtuurikilpailu 1995, valm. 1999) arkkitehtoninen pääidea perustuu eri muotoisten ja väristen tilakappaleiden muodostamaan kokonaisuuteen: auditorio, kirjastosalit, lehtilukusali ja musiikkiosasto ovat kukin oma osasensa, jotka aulan sisäkatu yhdistää toisiinsa.
[25a_Raisio piha_AV]
[25b_Raisio plaani_AV]
2000-luvun kirjastot palvelevat yhä moninaisempia käyttäjäryhmiä ja tarpeita
Yleiset kirjastot palvelevat käyttäjiään edistämällä informaation saavutettavuutta kaikissa olomuodoissa sekä edesauttamalla sosiaalista yhteenkuuluvaisuuden tunnetta kaikkialla Suomessa. Vaikka kirjastojen määrä on supistunut, julkiset kirjastot palvelevat 2000-luvulla yhä moninaisempia käyttäjäryhmiä ja käyttötarpeita. Kirjastot ovat muuttaneet kauppakeskuksiin, kyläkeskuksiin ja kulttuuritaloihin, ja niiden tiloihin asettautuu yhä enemmän uusia toimijoita viranomaisista järjestöihin ja taideyhteisöihin.
Vuonna 2017 voimaan astuneen uuden kirjastolain lähtökohtia ovat yhteisöllisyys, moniarvoisuus ja kulttuurinen moninaisuus. Tulevaisuuden kirjasto edistää väestön yhdenvertaisia mahdollisuuksia sivistykseen ja kulttuuriin, tiedon saatavuutta ja käyttöä, lukemiskulttuuria ja monipuolista lukutaitoa, mahdollisuuksia elinikäiseen oppimiseen ja osaamisen kehittämiseen sekä aktiivista kansalaisuutta, demokratiaa ja sananvapautta.
[26_Sello_AV]
[27_Suomen kirjastoverkko_AV]
Kirjoittaja
Anni Vartola, tekniikan tohtori, artikkeli perustuu tekijän tutkimuksiin hänen laatiessaan Venetsian arkkitehtuuribiennaalin 2018 Mind-Building – näyttelykäsikirjoitusta. Näyttely esitteli suomalaista kirjastoarkkitehtuuria ja sen kehittymistä. Vartola on arkkitehtuurin teorian vanhempi yliopistonlehtori Aalto-yliopiston arkkitehtuurin laitoksella.
Artikkeli on julkaistu 2019.
LÄHTEET
Aaltonen, Hanna & Carlson, Joni 1986. Suomalaista kirjastoarkkitehtuuria. Helsinki: Kirjastopalvelu Oy.
Aaltonen, Hanna 2009. Kirjavarastosta olohuoneeksi: yleisten kirjastojen tilojen historiaa. Teoksessa Yleisten kirjastojen historia. Toim. Ilkka Mäkinen. Helsinki: BTJ Kustannus.
Arkkitehtitoimisto Aitoaho & Viljanen 1992: Vihannin kirjasto-kotiseutukeskus. Arkkitehti 6/1992:35-36.
Arkkitehtitoimisto Helin & Siitonen 1992: Joensuun kirjasto. Arkkitehti 6/1992:24-33.
Arkkitehtitoimisto Pia Krogius 2012. Oulun pääkirjaston rakennushistoriaselvitys. OUKA Pääkirjasto RHS kirjastolle.pdf (haettu 6.2.2019).
Berger, Laura 2018. The Building that Disappeared. Espoo: Aalto Arts Books.
Hadley, Chalmers 1910. Why Do We Need a Public Library? Material for a Library Campaign. Chicago: American Library Association Publishing Board. http://www.gutenberg.org/files... (haettu 25.11.2018).
Hirn, Sven 1998. Kansankirjastosta kaupunginkirjastoksi: Helsingin Kaupunginkirjasto 1860–1940. Helsinki: Helsingin kaupunginkirjasto.
EBLIDA – The European Bureau of Library, Information and Documentation Associations 2015. Survey on Public and Academic Libraries. http://www.eblida.org/activiti... (haettu 25.4.2019).
Espoon pääkirjaston yleinen suunnittelukilpailu 1992: Arkkitehtuurikilpailuja 2/1992.
Haapoja, Risto & Tikka, Hannu 1999: Raision kirjasto-auditorio. Arkkitehti 5/1999:44-53.
Huttunen, Hannu 1993: Maaningan kunnantalo. Arkkitehti 1/1993:50-55.
Junnila, Veikko 1977. Kirjastosuunnittelun opas. Helsinki: Martela Oy.
Kahri, Esko 1970: Rakennussuunnittelun tavoitteet 70-luvulla. Arkkitehti 2/1970:37-42.
Kannila, Helle 1966. Kirjastoista kirjoitettua. Kirjoituksia vuosilta 1913–1963. Helsinki: Suomen Kirjastoseura, Otava.
Kanninen, Mauno 1948. Maaseudun kirjastohuoneistot. Helsinki: Suomen Kirjastoseura, Maalaiskuntien Liitto.
Kanninen, Mauno 1953. Uusia kirjastohuoneistoja: Kuvaopas kirjastojen suunnittelijoille. Helsinki: Valtion kirjastotoimisto.
Kansankirjastolaki 131/1928. Suomen asetuskokoelma. https://fi.wikisource.org/wiki/Kansankirjastolaki. Muutokset: https://fi.wikisource.org/wiki...äivänä_1928_annetun_kansankirjastolain_4,_5_ja_8_§:n_muuttamisesta; https://fi.wikisource.org/wiki/Asetus_kansankirjastoista_(1941) (haettu 14.3.2019).
Kekki, Kirsi 2013. Menestystarina nimeltä kirjasto. Helsinki: Avain.
Kirjastolaki 1961. Suomen asetuskokoelma 235/1961. https://fi.wikisource.org/wiki/Kirjastolaki_(1961) (haettu 20.3.2019).
Kirjastolaki 1986. Suomen asetuskokoelma 235/1986. OM, Edita. https://www.finlex.fi/fi/laki/... (haettu 20.5.2019).
Kirjastolaki 1998. Finlex 904/1998. https://www.finlex.fi/fi/laki/... (haettu 20.5.2019).
Kuopion kirjastotalo 1969: Arkkitehti 8/1969:20-25.
Laki yleisistä kirjastoista 29.12.2016/1492. OM, Edita. https://www.finlex.fi/fi/laki/... (haettu 23.1.2018).
Lappo, Osmo: 1971: Avotilakoulu – tulevaisuuden koulu? Arkkitehti 7/1971:27-30.
Leppänen, Kaarlo 1982: Arkkitehdin ongelma. Kirjastolehti 2/1982:526-527.
Mäkinen, Ilkka 2009a. Pitäjänkirjastojen läpimurto. Teoksessa Yleisten kirjastojen historia. Toim. Ilkka Mäkinen. Helsinki: BTJ Kustannus.
Mäkinen, Ilkka 2009b. Kirjasto fennomaanien kansansivistysohjelmassa. Teoksessa Yleisten kirjastojen historia. Toim. Ilkka Mäkinen. Helsinki: BTJ Kustannus.
Mäkinen, Ilkka 2009v. Kirjastot sodassa, sota kirjastoissa. Teoksessa Yleisten kirjastojen historia. Toim. Ilkka Mäkinen. Helsinki: BTJ Kustannus.
Mäkinen, Ilkka 2009d. 1950-luvun perintö. Teoksessa Yleisten kirjastojen historia. Toim. Ilkka Mäkinen. Helsinki: BTJ Kustannus.
Mäkinen, Ilkka 2009e. Yleinen kirjasto hyvinvointiyhteiskunnassa 1960-luvun alusta vuosituhannen vaihteeseen. Teoksessa Yleisten kirjastojen historia. Toim. Ilkka Mäkinen. Helsinki: BTJ Kustannus.
Packalén, Ulla 1986: Kirjasto tänään ja huomenna. Teoksessa Kirjastotilojen suunnittelu. Toim. Eeva-Maija Tammekann. Helsinki: Kirjastopalvelu.
Packalén, Ulla 1992: Yhteinen kirjastomme. Arkkitehti 6/1992:18-23.
Palmgren, Valfrid 1910. Kirjastot ja kansalaiskasvatus. Muistiinpanoja opintomatkalta Pohjois-Amerikan Yhdysvaltoihin. Helsinki: Kansanvalistusseura.
Patomo, Timo 1979: Soidinkuvat: suunnitelma Tampereen kirjastotaloksi. Tampere: lähikuvia ja soidinkuvia vuonna 1979. Toim. Seppo Järvenpää ja työryhmä. Tampere: Tampereen teknillinen korkeakoulu, Arkkitehtuurin osasto, Arkkitehtikilta.
Pietilä, Reima 1983. Rakennusten ja kaupunkikuvien taistelevat metsot. Arkkitehti 3/1983:67-69.
Ranta, Kaarina 1979: Valtion osallistuminen kirjaston rakentamiseen. Kirjastolehti 2/1975:418-422.
Salmio-Toiviainen, Tarja 1958: Näkökohtia kirjaston suunnittelussa ja sisustamisessa. Kirjastolehti 1958/1: 50–53.
Suomen yleisten kirjastojen tilastot 2018. OKM. https://tilastot.kirjastot.fi/ (haettu 29.3.2019).
Sipinen, Arto 1992: Lahden pääkirjasto. Arkkitehti 6/1992:51.
Valtioneuvoston päätös kirjastorakennusten suunnittelun, rakentamisen ja normaalihintojen perusteista 236/1987. OM, Edita. https://www.finlex.fi/fi/laki/... (haettu 23.1.2018).
Vartola, Anni 2011: Liike ja vastaliike: vaikutelmia suomalaisesta postmodernismista. Arkkitehti 6/2011:10-21.
Wacklin, Matti 2011. Kaikkien sielujen apteekki. Tampereen kaupunginkirjasto 150 vuotta. Tampere: Tampereen kaupunginkirjasto – Pirkanmaan maakuntakirjasto.
Väestö 2019. Tilastokeskus. https://www.tilastokeskus.fi/t... (haettu 29.3.2019).
Äyräs, Anneli 1986: Yleisten kirjastojen rakentaminen. Kirjastolehti 2/1986.
LISÄTIETOA
Kirjaston pitää olla houkutteleva ja sijaita paikkakunnan parhaalla tontilla
Julkisten kirjastojen arkkitehtuuriin alettiin kiinnittää huomiota 1800-luvun loppupuolella. Yhdysvalloissa vahvistuneen Public Library Movementin puheenvuoroissa kirjastorakennusten arkkitehtoninen laatu nähtiin kansan menestyksen ja sivistystason symbolina. Arkkitehtuurista tuli väline houkutella kansalaisia kirjastojen käyttäjiksi. Jo 1900-luvun alussa kirjastoista alettiin puhua yhteiskunnan henkisen elämän keskuksena ja ihmisten kohtauspaikkana.
[04_Viipuri_AV]
Amerikkalainen kirjastoihanne siirtyi Suomeen lukuisten opintomatkojen välityksellä. Uusien kirjastojen piti olla houkuttelevia ja viihtyisiä, ja niille piti osoittaa paikkakunnan kaunein ja sijainniltaan keskeisin tontti. Kirjastojen sisustuksessa kehotettiin suosimaan lämpimiä ja iloisia värejä sekä käyttämään huonekasveja ja taidetta luomaan kauneuden, sopusointuisuuden ja kodikkuuden tunnelmaa. Laadukkaan kirjastoarkkitehtuurin katsottiin edistävän julkisten kirjastojen tehtävää lukutaidon, sivistysmyönteisyyden ja yhteisen kansallisen kulttuurin vahvistamisessa.
Ensimmäiset kirjastorakennukset Helsinkiin, Turkuun, Tampereelle ja Kuopioon
Ensimmäiset 1900-luvun alkupuolen julkiset kirjastot erottuivat selvästi ympäröivästä rakennuskannasta julkisiksi arvorakennuksiksi. Juhlavien sisätilojen päätiloja olivat lainausosasto, kirjavarasto, sekä mahdollisimman häiriöttömiksi suunnitellut lukusalit eri käyttäjäryhmille.
Ensimmäiset varta vasten kirjastokäyttöön suunnitellut julkiset kirjastot olivat Helsingin kansankirjaston talo Rikhardinkadulla (Theodor Höijer, 1881), Turun kirjastotalo (K. A. Wrede, 1903), ensimmäinen kokonaan kunnan omalla rahoituksella rahoitettu Helsingin Kallion kirjasto (Karl Hård af Segerstadh, 1912) sekä Tampereen kaupungin pääkirjasto (Jussi ja Toivo Paatela, 1925). Kuopion museo- ja kirjastorakennus (J. V. Strömberg, 1907) oli ensimmäinen ”muistiorganisaatiot” yhdistävä uudisrakennus.
[05_ Rikhardinkatu_AV]
Lainaussalista tulee keskeisin tila
Nykyaikaisen avohyllyjärjestelmän käyttöönotto vaikutti sisätilojen mitoitukseen ja kalustukseen. Suljetussa hyllyjärjestelmässä kirjat sijaitsivat kirjavarastossa, ja asiakas sai haluamansa kirjan pyytämällä sitä virkailijalta. Avohyllyjärjestelmässä lainaajat saivat itse valita lukemisensa. Tämän takia lainaussalista tuli 1910-luvulta alkaen kirjaston suurin ja merkittävin tila. Siellä selailtiin kirjaston kokoelmaa, luettiin sekä asioitiin toimintaa valvovan virkailijan kanssa. Samalla kirjavarasto muuttui. Lainaussaleihin sijoitettiin kirjojen aktiivikokoelma ja harvemmin tarvittu varastokokoelma siirrettiin kauemmas.
[06_Tampere_AV]
Avohyllyjärjestelmä lisäsi lukemiseen varattujen tilojen määrää ja kalustusta. Lukupisteitä sijoitettiin lainaussaliin hyllyjen lomaan, eikä varsinaisia lukusaleja enää tarvittu niin paljon kuin aiemmin. Käyttökulttuurin muutos lisäsi valvonnan ja liikennevirtojen suunnittelun tarvetta, mutta antoi uusia mahdollisuuksia kirjastotoiminnan idean ja kirjaston tilojen välisen tärkeysjärjestyksen arkkitehtoniselle ilmaisulle.
Lainaussali on kirjaston sydän Viipurin kirjastossa (Aino ja Alvar Aalto, arkkitehtuurikilpailu 1927, valm. 1935), joka on avohyllyjärjestelmän mahdollistama moderni kirjasto. Lapset olivat tervetulleita kirjaston huolellisesti suunniteltuun lastenosastoon. Sinne oli oma sisäänkäynti suoraan ulkoa. Kirjaston eri toiminnot erotettiin toisistaan: hallinto ja yleiseen käyttöön osoitetut tilat sijaitsivat omassa siivessään ja varsinaiset lukusalit omalla hiljaisella vyöhykkeellään.
Valtio tukee ja kannustaa kuntia kirjastojen rakentamisessa
Julkisten kirjastojen toimintaa alettiin säädellä lainsäädännöllä vuodesta 1928 alkaen. Kansankirjastolaki (131/1928) määritteli kirjastojen tehtäväksi "kansansivistyksen kohottamisen ja kansalaisten itseopiskelun edistämisen" ja kannusti kuntia ottamaan kirjastopalvelut osaksi toimintaansa. Valtion kirjastotoimikunta perustettiin kouluhallituksen yhteyteen. Se valvoi kirjastojen toimintaa ja jakoi rakennusavustusta kirjastohuoneistojen hankkimiseen ja kunnossapitoon.
Vuodesta 1932 alkaen kunnilta edellytettiin omaa rahoitusosuutta. Myöhemmät asetukset kansankirjastoista täsmensivät valtionapusäädöksiä ja asettivat valtion rakennusavustuksen edellytykseksi kunnanvaltuuston hyväksymät piirustukset, työselitykset ja kustannusarvion.
Käytännössä vain syrjäseutujen vähävaraiset kunnat saivat valtion rakennusavustusta. Kaupunkien kirjastohankkeet jouduttiin usein yhdistämään muihin uudisrakennushankkeisiin. Merkittävimpiä olivat Pohjois-Pohjanmaan maakunta-arkisto ja kirjasto Oulussa (Oiva Kallio, 1931) sekä Vaasan kirjasto- ja maakunta-arkisto (Ingvald Serenius, 1936).
Laitilan kirjastotalo (1937) ja Nurmeksen kirjasto (1938) olivat itsenäisyyden ajan ensimmäiset kirjastokäyttöön rakennetut maaseutukirjastot. Ne rakennettiin vielä lahjoitusvaroin.
Kirjasto saman katon alle muiden kunnan palveluiden kanssa
Toisessa maailmansodassa kirjastoja tuhoutui pommituksissa. Alueluovutuksissa Neuvostoliitolle menetettiin 370 kirjastoa kokoelmineen, mukaan lukien Viipurin, Hangon, Sortavalan ja Käkisalmen kaupunginkirjastot.
Jälleenrakennuskaudella kirjastojen tarve oli suurin maaseudulla. Suomen kirjastoseuran vuonna 1948 julkaisema Maaseudun kirjastohuoneistot opaslehtinen antoi käytännöllisiä ohjeita syrjäkylien päättäjille. Opas kannusti edistämään eri rakennushankkeita yhtä aikaa ja hakemaan kirjastolle yleisen sivistystalon luonnetta sijoittamalla useita palveluita saman katon alle.
Hyviä kumppaneita olivat esimerkiksi kunnantalo, terveystalo, kotiseutumuseo, kansalaisopisto tai kerho ja nuorisotalo. Kirjaston yhdistämistä kouluun pidettiin myös toimivana siinä tapauksessa, että yleinen kirjasto sai oman sisäänkäynnin. Opaslehtisen kuvituksena oli malliratkaisuja Norjasta ja Tanskasta sekä Kangasalan kantakirjaston lainausosasto, Porin Uudenkoiviston kansakoulun kirjastohuone ja Kouluhallituksen kansakoulutyyppipiirustus.
[07_Maaseudun kirjastohuoneistot_AV]
Kirjastolle seikkaperäiset suunnitteluohjeet – rakentaminen vauhdittuu 1950-luvulla
Uusien kirjastojen rakentaminen vauhdittui 1950-luvulla. Lukemisesta tuli suosittu harrastus, ja suomenkielisen kirjallisuuden tarjonta lisääntyi. Yleinen koulutus- ja sivistysmyönteisyys kasvoi. Toisen maailmansodan jälkeen syntyi ennätysmäärä lapsia. Etenkin lasten ja nuorten kirjastopalveluihin kiinnitettiin huomiota – toisaalta osana uusien kansa ja oppikoulujen suurta tarvetta, toisaalta osana yleisten kirjastopalvelujen kehittämistä. Kirjastojen haluttiin kilpailevan nuorison suosiosta ja tarjoavan houkuttelevan vaihtoehdon vähemmän suotaville vapaa-ajankäyttömuodoille.
Suunnitteluohjeet tähdensivät tontin valinnan keskeisyyttä, paikkakunnan tarpeiden tuntemista, resurssien järkevää kohdentamista sekä tiivistä yhteistyötä kirjastonhoitajan ja arkkitehdin välillä, jotta kirjaston toiminnallinen suunnittelu onnistuisi. 1950-luvun suunnitteluohjeissa kirjastotilan tärkeimpiä osatekijöitä olivat:
- eri huonetilojen mitoitus ja suhteellinen koko
- sisäisen liikenteen yhteydet
- keskitetyn valvonnan ratkaiseminen
- kirja- ja yleisömäärien mitoitus
- myöhempi laajennettavuus.
Vuonna 1953 julkaistiin suunnitteluopas pienten ja keskikokoisten kirjastojen suunnittelun innoitukseksi. Siinä esiteltiin kirjastotalomalleja uudisrakennuksina ja vanhaan taloon korjattuna, muiden rakennusten kuten kunnan tai terveystalon ja kansakoulun yhteyteen sijoitettuina siipinä sekä kirjastohuoneita liikerakennusten, virastojen, koulujen ja yksityistalojen yhteydessä.
[08_Uusia kirjastohuoneistoja_AV]
Arkkitehtuurilla haluttiin antaa vaatimattomallekin kirjastolle ”vissi mainosarvo, puoleensavetävä luonne”. Se tapahtui luomalla kirjastolle itsenäinen ilme ja eloisat sisätilat esimerkiksi:
- suunnittelemalla kirjaston julkisivut erikoisluonteen mukaisiksi
- antamalla kirjastolle oma, väljä ja tunnistettava, katoksella suojattu sisäänkäynti
- suosimalla käyntiovina leveitä lasiovia umpiovien sijaan, jolloin kävijä näkee kirjaston eri yleisötilat heti eteishallista
- sijoittamalla osa kokoelmista parvelle
laskemalla esimerkiksi luku- tai opintosali muuta lattiatasoa alemmaksi.
Lauritsalan kauppalankirjasto ja Lauttasaaren kirjasto
Säynätsalon kunnantalon yhteyteen rakennettu kunnankirjasto (Alvar Aalto, 1952) lienee kansainvälisesti tunnetuin 1950-luvun kirjasto. Vauraiden teollisuuspaikkakuntien kunnianhimoista kirjastoarkkitehtuuria edustaa myös Lauritsalan kauppalankirjasto (Arkkitehtuuritoimisto Martikainen–Ypyä–Malmio, 1951), joka esiteltiin monissa kirjastoalan julkaisuissa erityisen onnistuneena esimerkkinä.
Kirjaston sisätilat jäsentyvät eri tasoihin ja ovat yhtenäistä avaraa tilaa. Kirjahyllyt on 1950-luvun kirjastoissa sijoitettu kiertämään seiniä; keskialueelle on sommiteltu lukupisteitä sekä kevyempiä ja matalampia kirjahyllyköitä. Luonnonvalo pyritään tuomaan tiloihin epäsuorasti seiniä kiertävien kirjahyllyjen yläpuolelta tai kattovalona. Yleis ja lukuvalaisimet täydentävät tilojen valaistusta.
[09a_Lauritsalan kirjasto_AV]
[09b_Lauritsalan kirjasto_AV]
Esimerkki kaupungin asuinalueelle 1950-luvulla rakennetusta kirjastosta on Lauttasaaren kirjasto Helsingissä (J.S. Sirén, 1955). Se on osa suuren kansakoulun rakennusryhmää, ja kirjasto sisällytettiin suunnitelmiin vasta koulun rakennusvaiheessa. Kirjasto sijaitsi äitiysneuvolan yläkerrassa koulun pihaa rajaavan sivurakennuksen kahdessa ylimmässä kerroksessa. Neuvola-kirjastolla oli kaksiosainen sisäänkäynti; oma ulko-ovi ohjasi kirjastonkäyttäjät suoraan portaikkoon ja toiseen kerrokseen.
[10a_Lauttasaaren kirjasto_AV]
[10b_Lauttasaaren_kirjasto 2_AV]
Kasvun vuodet ¬– 1960-luvulla rakennetaan kunnallisia ja maakunnallisia kirjastoja
Kirjastot jaettiin paikallisiin kirjastoihin ja maakuntakirjastoihin vuodesta 1962 alkaen. Kaksitasoinen hierarkia perustui uuteen kirjastolakiin (235/1961). Valtionapu kohdennettiin maalaiskuntien ja kauppaloiden uusien kirjastorakennusten tai huoneistojen rakentamiseen sekä maakuntakirjastojärjestelmän perustamiseen. Maakuntakirjastoa ylläpitävät kaupungit saivat erillistä valtionapua sekä vuosiavustuksena että kunnan asukasmäärän mukaan.
Lainmuutos kasvatti merkittävästi kirjastotoimen rahoitusta ja vauhditti varsinkin pääkirjastojen rakentamista maakuntakirjasto-oikeudet saaneissa 19 kaupungissa. Maakuntakirjastojen tehtävä oli toimia alueellisina keskuskirjastoina sekä täydentää ja tukea paikallista kirjastoverkkoa. Uusista pääkirjastoista arkkitehtonisesti tunnetuimpia ovat Seinäjoen ja Rovaniemen kaupunginkirjastot (Alvar Aalto, 1965, 1966) sekä Kuopion uusi kirjastotalo (Matti Hakala, yleinen arkkitehtuurikilpailu 1962–63, valm. 1967).
Kuopion kirjastotalo
Kuopion kirjastotalo on näyttävä esimerkki 1960-luvun maakuntakirjastosta. Rakennus sijoitettiin Kuopion keskustaan vanhan museo-kirjastorakennuksen viereen. Se on vedetty sisemmäs tonttia ja irrotettu ympäröivästä kaupunkirakenteesta, joten se on helppo tunnistaa tärkeäksi julkiseksi rakennukseksi. Varsinaiset kirjastotilat ovat rakennuksen toisessa kerroksessa.
Rakennuksessa on teräsbetonirunko ja toisen kerroksen kattoa kannattelevat esijännitetyt teräsbetonipalkit. Rakenteen ansiosta kirjahalli on avara ja yhtenäinen tila: eri toiminnot on rajattu toisistaan puolikorkeilla seinäkkeillä, lasiovet ja väliseinien ylälasit tehostavat tilavaikutelmaa.
Kirjaston käyttöä valvotaan yhdestä keskeisestä asiakaspalvelu ja valvontapisteestä. Kirjasalin keskipiste on pyöreä, kirjahyllyillä tilaan rajautuva ja päätasoa alemmaksi laskettu nuoriso-osasto. Tila saa luonnonvaloa suuren kattoikkunan kautta, suoraan sen alla on sisäsuihkulähde. Kuopion kirjastotaloon valmistui uudenaikainen musiikkiosasto: musiikkia saattoi kuunnella kovaäänisistä erillisessä musiikkihuoneessa ja nuoriso-osastolla myös kuulokkeista.
[11a_Kuopion kirjastotalo 2_AV]
[11b_Kuopion kirjastotalo leikkaus_AV]
[11c_Kuopion kirjastotalo_AV]
Maakuntamittakaavasta lähikirjastoon: esimerkkinä Töölön sivukirjasto
Nopeasti kasvavissa kaupungeissa rakennettiin pääkirjastojen ohella myös lähi- eli sivukirjastoja. Ne haluttiin sijoittaa sinne, missä ihmiset asuvat ja tukea kirjastopalveluilla alueen päiväkotien ja koulujen kulttuurikasvatusta. Kirjasto tarjoaa myös alueen asukkaille luontevan, helposti saavutettavan kohtaamispaikan.
Vapaasti puistossa sijaitseva Töölön sivukirjasto Helsingissä (Aarne Ervi, 1963–1970) on kaupunkikuvallinen kohokohta. Kirjasto erottuu ympäröivästä kaupunkirakenteesta, ja sen korurasiamainen olemus poikkeaa 1960–70-luvun valtavirtaa edustavasta järjestelmäarkkitehtuurista, joka suosi neutraalia ulkoasua ja systemaattisesti toistettavissa olevaa tilarakennetta.
Kuten Ervin suunnittelemassa Turun yliopiston kirjastossa (1954), myös Töölön kirjaston suurista ikkunoista avautuu näkymiä puistoon. Puistoon avautuva parveke ja suojainen, laatoitettu terassi ovat kirjaston asiakkaiden käytössä kesäkaudella. Luonnonvalo lainaussaleissa ja lukusalissa on runsas.
Kirjaston tilat kiertyvät keskeisportaikon ympärille, ja sisätilojen värikkäät yksityiskohdat ja kaarevat linjat tekevät kirjaston tila-arkkitehtuurista eloisan. Lastenosasto on sijoitettu heti pääsisäänkäynnin viereen. Katutason lehtisali omine sisäänkäynteineen mahdollisti muusta kirjastosta poikkeavat aukio-oloajat. Toisessa kerroksessa olevan kaksikerroksisen aikuisten osaston kirjastosalissa on parvi, joka toimii yhdyskäytävänä ja joka alun perin palveli ruotsinkielisen kirjallisuuden osastona. Lasiseinillä erotettu lukusali on Helsingin suurin. Ylimmässä kerroksessa on musiikkiosasto ja oma parveke. Peruskorjauksen jälkeen (Arkkitehdit Mustonen Oy, 2016) ylimpään kerrokseen siirrettiin nuortenosasto sekä rakennettiin uusi tapahtumasali oheistiloineen.
[12a_Töölö 1_AV]
[12b_Töölö lukusali_AV]
[12c_Töölö musa_AV]
[12d_Töölö terassi_AV]
Suurten taajamien kirjastoverkko tiivistyy 1970-luvulla – kirjastosta muunneltava ja laajennettava
Kiihtyvä kaupungistuminen ja kuntaliitokset lisäsivät paineita uudistaa ja tiivistää etenkin suurten taajamien kirjastoverkkoa. Kirjastotoimesta vastaava kouluhallitus valvoi uusien kirjastohankkeiden käynnistämistä ja suunnitelmia, sillä kirjastorakentaminen oli 1970-luvun öljykriisin aiheuttaman taloustaantuman takia tarkkaan säänneltyä ja normitettua. Valtionapu edellytti kaikkien uusien kirjastohankkeiden pääpiirustusten ja työselitysten etukäteistä hyväksyntää. Lisäksi yli 250 m2 suuruisten kirjastorakennusten luonnokset ja rakennustapaselostus tuli tarkastuttaa etukäteen.
Kirjastojen suunnitteluohjeissa alleviivattiin tilojen laajennettavuutta ja muunneltavuutta sekä avoimen kirjastomaiseman ihannetta. Suunnitteluohjeet kannustivat käyttämään moduulimitoitusta ja pyrkimään selkeisiin ja yksinkertaisiin rakenteisiin sekä suuriin ja avariin sisätiloihin, jotta tilamuutokset olisivat joustavasti toteutettavissa. Tilasuunnittelussa tuli pyrkiä ”yleispätevyyteen, selkeyteen, avoimuuteen, keveyteen ja siirreltävyyteen – tiloissa, teknisissä ratkaisuissa, sisustuksessa, jopa yksittäisissä kalusteissa”.
1970-luvun kirjastoilla ei juurikaan nähty olevan julkisen rakennuksen symboliarvoa. Kirjastoista puhuttiin yleisönpalvelulaitoksina , ja arkkitehtuurin ensisijainen tehtävä oli palvella käyttäjän ja yhteiskunnan tarpeita. Rakennustaiteelliset päämäärät koettiin yleisemminkin ajankohdan poliittisessa ilmapiirissä liian yksilökeskeisiksi tai suppean yläluokan arvokäsityksiä vastaaviksi.
[13_Kerava_AV]
Automaatit ja tietokoneet saapuvat kirjastoon
Taloudellisten suhdanteiden, arkkitehtonisten arvojen ja poliittisten painotusten ohella myös tieto- ja viestintätekniikan kehitys vaikutti kirjastojen merkitykseen ja toimintakulttuuriin. Audiovisuaalisista laitteista, lainausautomaateista ja kopiokoneista tuli arkipäivää, ja erilaisille tiedonhaku ja ATK-päätteille tarvittiin tilaa. Kirjastoilta odotettiin aktiivisuutta: kirjastojen tuli esitellä uutta teknologiaa ja opastaa sen käyttöön.
Kaupunkien uusiin lähiöihin tarvittiin samaan aikaan lisää kirjastopalveluita ja yhteisöllisyyttä ruokkivia kokoontumispaikkoja. Pienissä 1970-luvun lähikirjastoissa näkyi pyrkimys olohuonemaiseen kodikkuuteen. Niihin kalustettiin matalien kirjahyllyjen rajaamia saarekkeita ja pehmeitä ja värikkäitä istuskeluryhmiä.
[14_Laajasalo_AV]
1980-luvun vaihteen murros: Oulun pääkirjasto ja Tammisaaren kaupunginkirjasto
Kirjastorakentaminen alkoi elpyä, kun öljykriisin aiheuttama taloudellinen taantuma helpottui. Kustannussäätely ja normiohjaus jatkuivat. Vuoden 1978 valtionosuusuudistus pohjautui uuteen kunnalliseen kantokykyluokkajärjestelmään, ja se nosti etenkin köyhempien kuntien kirjastojen valtionapua ajan kustannustasoon suhteutettuna peräti 73 % suuremmaksi kuin ennen. Kirjastojen asema hyvinvointiyhteiskuntaa tukevina merkkirakennuksina vahvistui, ja niihin suhtauduttiin kunnallisina tietokeskuksina ja yleisinä kohtauspaikkoina.
Oulun keskustan torialueen rantaan valmistunut pääkirjasto (Marjatta ja Martti Jaatinen, asemakaavakilpailu 1962–63, valm. 1981; sisustus Studio Nurmesniemi) on osa monumentaalikeskussommitelmaa. Asemakaavakilpailun tavoite oli antaa Oulun läänin pääkaupungille sen asemaa vastaava imago kaupungintalon, teatterin ja konserttitalon ja niiden väliin jäävän juhla-aukion muodostaman uuden sydämen avulla. Voittanut ehdotus ”Saari” sijoitti rakennusryhmän suorakulmaiselle, veden ympäröimälle tekosaarelle.
Alkuperäisestä monumentaalikeskussuunnitelmasta toteutui vain teatteritalo (1972), sillä konserttitalon tilalle päätettiin rakentaa uusi pääkirjasto–maakuntakirjasto. Sijoittelu antoi kirjastolle merkittävän ja tärkeän kulttuurilaitoksen aseman kaupunkikuvassa. Rakennus on paikallavalettua betonia ja sen julkisivuissa on käytetty alumiinisäleikköä, lasia, metallikasetteja ja mosaiikkibetonia; sisällä lähinnä sileävalettua betonia, mosaiikkibetonilaattaa, alumiinikasetteja, lasia ja puuta.
Kirjaston tilat ovat neljässä kerroksessa, ja kaikilta osastoilta avautuu näkymiä kaupunkiin tai jokisuistoon. Pohjakerroksessa ovat yleisöpalvelutilat ja lehtisali; kahdessa seuraavassa sijaitsevat aikuisten ja lasten osastot, opintosali sekä kokoelma- ja työtiloja; kirjavarasto ja henkilökunnan tilat ovat ylimmässä kerroksessa. Sisätilojen sydän on koko rakennuksen korkuinen keskusaula veistoksellisine betoniportaikkoineen. Alkuperäinen sisustus sovitettiin taidokkaasti tehostamaan rakennuksen ilmavaa tunnelmaa ja auttamaan suuren kirjaston eri osastojen hahmottamista.
[15a_Oulun_sisä_AV]
[15b_Oulu_AV]
Pieni Tammisaaren kaupunginkirjasto (Ola Hansson, 1977) sopeutuu paikkakunnan ominaispiirteisiin ja kaupunkikuvaan. Erkkerit, pieniruutuiset ikkunat ja poimutettu katto myötäilevät pienimittakaavaisen puukaupungin ja kirjastoa ympäröivien rakennusten tyyliä ja pehmentävät rakennusajankohdalle tyypillistä moduuliarkkitehtuuria.
[16_Tammisaari_AV]
1980-luvulla rakennetaan yli 200 uutta kirjastoa
Vuonna 1986 uusittu kirjastolaki ja taloudellisen noususuhdanteen siivittämä uusi valtionapupolitiikka saivat aikaan ennennäkemättömän rakennusbuumin: 1980-luvulla rakennettiin yli 200 uutta kirjastoa.
1980-luku oli myös videoiden, ATK-kurssien, telefaxien, ensimmäisten matkapuhelimien, paikallisradioiden, kulutusjuhlan ja tiivistyvän EU-yhteistyön aikaa. Tietokonevetoinen tulevaisuus pelotti: ”Tuleeko kirjastosta ainoastaan tietojärjestelmän rakennus- ja tallennuspiste, toimisto tai tietotehdas, johon käyttäjät ottavat yhteyden päätteiltään kotoaan? Tarvitsemmeko enää tiedon temppeleitä tai yhteisiä olohuoneita?”
Arkkitehtuurissa kritiikki 1970-luvun anonyymia ”laatikkolinjaa” kohtaan kasvoi. Postmodernismiksi kutsuttu arkkitehtuuriajattelu kannusti arkkitehteja etsimään vaihtoehtoja: Miten ilmaista kirjaston symbolista merkitystä yhteiskunnallisena ja kaupunkikuvallisena arvorakennuksena? Miten paikallisyhteisö ja käyttäjät kokisivat uuden rakennuksen omakseen? Enää ei riittänyt, että kirjastorakennus toimii moitteettomasti kuin kone. Sen arkkitehtuurin tuli kuvastaa kirjastolaitoksen kulttuurista merkitystä ja heijastella paikallisen miljöön piirteitä.
Tampereen pääkirjasto Metso
Yksi keskustelua herättäneistä uusista kirjastohankkeista oli Tampereen pääkirjasto Metso (Reima ja Raili Pietilä, yleinen arkkitehtuurikilpailu 1978, valm. 1986). ”Soidinmenot” kilpailuehdotuksen kaarevat ja veistokselliset muodot ja ylhäältä katsottuna metsoa muistuttava hahmo poikkesivat arkkitehtuurin valtavirrasta.
Reima Pietilä selitti kirjaston yksilöllisen muotokielen johtuvan arkkitehtien halusta antaa kirjastolle ”1980-luvun ajankasvot” ja tehdä kirjastosta maamerkki ja suomalaisen kulttuurin ilmaisija. Pietilä kritisoi vallitsevaa käsitystä tarkastella arkkitehtuuria pelkästään sen käyttöarvon valossa. Hän tähdensi, että Metson arkkitehtuuri pyrki tekemään uuden runollisen tulkinnan rakennuksen ja luonnon yhteydestä. Mikään Metson arkkitehtuurissa ei ollut yleispätevää: kirjaston pienimmätkin yksityiskohdat suunniteltiin Pietilöiden toimistossa.
[17a_Metso piirustuksia_AV]
[17b_Metso pohja_AV]
[17c_Metso tiski_AV]
Postmodernismi näkyy mittakaavassa, väreissä ja monimuotoisuudessa: Kuhmon kirjasto ja Vihannin kirjasto-kotiseutukeskus
Postmodernistista arkkitehtuuriajattelua ilmentävät etenkin Kuhmon kirjasto (Jyrki Tasa, yleinen arkkitehtuurikilpailu 1988) ja Vihannin kirjasto–kotiseutukeskus (Aitoaho & Viljanen, kutsukilpailu 1985, valm. 1992) – monien ns. Oulun koulun pieniin maaseututaajamiin suunnittelemien kirjastojen ohella.
Kuhmon kirjastossa ajan henki näkyy rakennuksen tilallisessa ilottelussa, värikkäissä, leikkisissä ja huomiota herättävissä yksityiskohdissa. Arkkitehtoninen viimeistely ulottuu Pietilöiden Metso-kirjaston tapaan kalusteisiin, valaisimiin ja vetimiin saakka.
[18a_Kuhmo kirjasali_AV]
[18b_Kuhmo lastenosasto_AV]
[18c_Kuhmo pohjapiirros_AV]
[18d_Kuhmo leikkaus_AV]
Vihannin kirjasto-kotiseutukeskus yhdistää paikallista kulttuuriperintöä kunnioittavan punamulta-arkkitehtuurin modernin ajan materiaaleihin ja modernin kirjaston toimintoihin. Pääosin puurakenteinen ja puuverhoiltu rakennus on Oulun koulun ideologian mukaisesti paikalla rakennettu. Kirjasto on osa monitoimitaloa, jossa ovat nuorisotilat, kansalaisopisto, kotiseutuarkisto, kotiseutu- ja kaivosmuseo, yrityspalvelukeskus ja kierrätyskeskus.
[19a_Vihanti_AV]
[19b_Vihanti ulkoa_AV]
Modernismin perinne jatkuu: Helsingin Pasilan pääkirjasto, Lahden kulttuurikeskus-pääkirjasto ja Vallilan sivukirjasto
1980-luvun arkkitehtuurissa esiintyi postmodernismin rinnalla myös modernismin perinteitä jatkavia ja uudistavia pyrkimyksiä. Niitä olivat mm. selkeän ja suorakulmaisen muotokielen käyttäminen, valkoisen värin, puhtaaksivaletun betonin, luonnonkiven, punatiilen ja puupintojen suosiminen sekä ns. ”uusvanhan”, lavastemaiseksi koetun kansanomaisuuden vastustaminen.
Helsingin pääkirjasto Itä-Pasilassa (Kaarlo Leppänen, 1986) on helppo tunnistaa julkiseksi rakennukseksi korkeiden betonielementtitalojen hallitsemasta ympäristöstä. Kirjaston pääsisäänkäynti ja pääjulkisivut sijaitsevat katutasoa ylempänä jalankulkukannella, koska Itä-Pasilassa autoliikenne ja jalankulku on erotettu eri tasoille.
Kirjastossa on muistumia ja lainauksia Alvar Aallon suunnittelemien rakennusten väri- ja materiaalimaailmasta. Julkisivuelementeissä on tummansinistä klinkkeriä ja pääsisäänkäynnin edustan pylväissä on klinkkeripäällystystä muistuttava pintakäsittely. Valkoiset sisätilat ympäröivät kaksikerroksista keskihallia ja sisäsuihkulähdettä. Tiloja valaisee epäsuora luonnonvalo kattoikkunoiden kautta. Sisäsuihkulähteessä on valkoista marmoria, parvella ja pääportaissa messinkiputkikaide, tiililaattapintaiset porrasaskelmat on reunustettu tammilistalla ja parvea kiertää, tammilistalla reunustettu musta laminaattitaso.
[20a_Helsinki pohja 1_AV]
[20b_Helsinki pohja 2_AV]
[20c_Pasilan kirjasto_AV]
[20d_Pasilan kirjasto_AV]
Lahden kulttuurikeskus-pääkirjaston (Arto Sipinen, yleinen arkkitehtuurikilpailu 1983, valm. 1990) ilmava muotokieli korostaa kirjaston arvostettua asemaa kulttuuri-instituutiona. Kirjasto-kulttuurikeskus-yhdistelmät yleistyivät 1980–90 lukujen taitteessa, ja Sipinen suunnitteli niistä monia (Imatran kulttuurikeskus, kutsukilpailu 1981, valm. 1986; Espoon Tapiolan kulttuurikeskus, yleinen arkkitehtuurikilpailu 1980, valm. 1989).
Lahden pääkirjasto on osa kulttuurirakennusten keskittymää yhdessä teatteritalon, taidemuseon ja aikuiskoulutuskeskuksen kanssa. Kirjaston selkeälinjaiset, umpi ja lasipintoihin jakautuvat, valkoiseksi ohutrapatut rakennusmassat on poimutettu niin, että kulttuurirakennusten väliin jää vesialtaiden ja istutusten elävöittämiä toriaukioita.
Aikuisten ja lasten lainausosastot sijaitsevat heti sisääntulon lähettyvillä ensimmäisessä kerroksessa, rauhallisempaa ympäristöä vaativat opiskelutilat ovat toisessa kerroksessa. Sisätilat ovat avointa hallitilaa, jotta myöhempi muunneltavuus olisi helppoa. Vaaleansävyisissä, valoisissa sisätiloissa on Sipisen arkkitehtuurille ominainen ajaton ja neutraali tunnelma.
[21_Lahti_AV]
Vallilan sivukirjasto Helsingissä (Juha Leiviskä ja Asta Björklund, 1990) kiteyttää 1980-luvun kirjastoarkkitehtuurin kehityslinjat. Pieni puurakenteinen ja verhoiltu rakennus on sovitettu tiiviisti rakennetun, suojellun puukaupunginosan mittakaavaan. Päiväkoti ja kirjasto muodostavat rakennusryhmän, joka ympäröi yhteistä puistopihaa. Sisätiloista avautuvat pihanäkymät, sisäkaton korkeusvaihtelut, ja runsas, monista eri suunnista lankeava luonnonvalo antavat juhlavan ja ajattoman tunnelman pikkuruiselle paikalliskirjastolle.
[22a_Vallila_AV]
[22b_Vallila pohjapiirros_AV]
Kirjastorakentaminen kärsii 1990-luvun talouslamasta
Ne kirjastohankkeet, jotka eivät ehtineet toteutua ennen 1990-luvun lamaa, pantiin jäihin. Hankesuunnitelmista ja arkkitehtuurikilpailujen pöytäkirjoista voi lukea uusien kirjastojen arkkitehtuurille asetettuja tavoitteita. Toteutumatta jääneen Espoon kaupunginkirjaston (yleinen arkkitehtuurikilpailu 1991) pöytäkirjassa tähdennetään jatkuvan muutoksen hyväksymistä, kirjaston tilojen joustavuutta ja muunneltavuutta sekä kirjaston tärkeää roolia julkisena rakennuksena. ”Kirjasto ei ole nykyisellään ainoastaan lainaus- ja lukupiste. Se on kohtaamis ja opiskelupaikka ja se tarjoaa myös monipuolisia kulttuurielämyksiä. Myös yleisön oleskelu- ja kahviotilat ovat olennainen osa nykypäivän kirjastoa. Tämä ei kuitenkaan tarkoita sitä, että kirjaston sisätilojen tulisi kilpailla kauppagallerioiden tai puuhamaiden kanssa. Niissä tulee edelleen olla aistittavissa kulttuurirakennuksen pitkä traditio.”
Orastavan tietoyhteiskunnan tarpeet alkoivat näkyä kirjastojen toiminnassa entistä enemmän. Kirjastoihin tuli lainattavaksi harrastevälineitä ja elektronista aineistoa. Tilaohjelmiin ilmaantui entistä enemmän varattavia kokoontumis ja näyttelytiloja. Kirjastoissa oli ”hiljaisuus”-kylttien sijaan ääntä ja elämää.
[23_Joensuu_AV]
[24a_Maaninka_AV]
[24b_Maaninka sisä_AV]
Kirjastoväki tähdensi kirjastojen merkitystä epäkaupallisina julkisina sisätiloina – ”koko kansan” olohuoneena: ”Mahdollisimman monen olisi voitava käyttää kirjastoa, siksi suunnittelun avaintavoitteita ovat kutsuvuus, saavutettavuus, löydettävyys ja helppokäyttöisyys. Kirjasto pyrkii keskelle kylää ja katutasoon!” Vuoden 1998 kirjastolaissa kaikuivat sekä lama-ajan että tietoyhteiskuntamurroksen seuraukset. Lakiteksti korosti yhdenvertaisuuden vaatimuksia ja tunnisti digitaalisen informaation merkityksen painettujen kirjojen ja lehtien rinnalla.
Monet 1990-luvun kirjastoista kärsivät riisutuista tilaohjelmista ja kustannussäästöjen nimissä vaaditusta tehokkuudesta. Kirjastoarkkitehtuuri joutui sopeutumaan vaatimuksiin julkisen rakentamisen muuntojoustavuudesta sekä tasapainoilemaan monien toiminnallisten vaatimusten ja kirjastojen paikallisen, kaupunkikuvallisen ja kulttuurisen merkityksen välillä. Kirjasto nähtiin kaupunkikehityksen välineenä: kirjaston kaltainen kulttuurirakennus oli hyvä keino lisätä hajanaisen taajama alueen vetovoimaisuutta.
Suosittu arkkitehtoninen tehokeino oli kollaasimaisuus: jokainen toiminto sijoitettiin ikään kuin omaan taloonsa, jotka sommiteltiin esimerkiksi sisäkadun ympärille. Rakennukselle luotiin kaksi toisistaan selkeästi erottuvaa suuntaa: ”selkä- ja vatsapuoli”. Raision kirjasto-auditorion (Hannu Tikka, yleinen arkkitehtuurikilpailu 1995, valm. 1999) arkkitehtoninen pääidea perustuu eri muotoisten ja väristen tilakappaleiden muodostamaan kokonaisuuteen: auditorio, kirjastosalit, lehtilukusali ja musiikkiosasto ovat kukin oma osasensa, jotka aulan sisäkatu yhdistää toisiinsa.
[25a_Raisio piha_AV]
[25b_Raisio plaani_AV]
2000-luvun kirjastot palvelevat yhä moninaisempia käyttäjäryhmiä ja tarpeita
Yleiset kirjastot palvelevat käyttäjiään edistämällä informaation saavutettavuutta kaikissa olomuodoissa sekä edesauttamalla sosiaalista yhteenkuuluvaisuuden tunnetta kaikkialla Suomessa. Vaikka kirjastojen määrä on supistunut, julkiset kirjastot palvelevat 2000-luvulla yhä moninaisempia käyttäjäryhmiä ja käyttötarpeita. Kirjastot ovat muuttaneet kauppakeskuksiin, kyläkeskuksiin ja kulttuuritaloihin, ja niiden tiloihin asettautuu yhä enemmän uusia toimijoita viranomaisista järjestöihin ja taideyhteisöihin.
Vuonna 2017 voimaan astuneen uuden kirjastolain lähtökohtia ovat yhteisöllisyys, moniarvoisuus ja kulttuurinen moninaisuus. Tulevaisuuden kirjasto edistää väestön yhdenvertaisia mahdollisuuksia sivistykseen ja kulttuuriin, tiedon saatavuutta ja käyttöä, lukemiskulttuuria ja monipuolista lukutaitoa, mahdollisuuksia elinikäiseen oppimiseen ja osaamisen kehittämiseen sekä aktiivista kansalaisuutta, demokratiaa ja sananvapautta.
[26_Sello_AV]
[27_Suomen kirjastoverkko_AV]
Kirjoittaja
Anni Vartola, tekniikan tohtori, artikkeli perustuu tekijän tutkimuksiin hänen laatiessaan Venetsian arkkitehtuuribiennaalin 2018 Mind-Building – näyttelykäsikirjoitusta. Näyttely esitteli suomalaista kirjastoarkkitehtuuria ja sen kehittymistä. Vartola on arkkitehtuurin teorian vanhempi yliopistonlehtori Aalto-yliopiston arkkitehtuurin laitoksella.
Artikkeli on julkaistu 2019.
LÄHTEET
Aaltonen, Hanna & Carlson, Joni 1986. Suomalaista kirjastoarkkitehtuuria. Helsinki: Kirjastopalvelu Oy.
Aaltonen, Hanna 2009. Kirjavarastosta olohuoneeksi: yleisten kirjastojen tilojen historiaa. Teoksessa Yleisten kirjastojen historia. Toim. Ilkka Mäkinen. Helsinki: BTJ Kustannus.
Arkkitehtitoimisto Aitoaho & Viljanen 1992: Vihannin kirjasto-kotiseutukeskus. Arkkitehti 6/1992:35-36.
Arkkitehtitoimisto Helin & Siitonen 1992: Joensuun kirjasto. Arkkitehti 6/1992:24-33.
Arkkitehtitoimisto Pia Krogius 2012. Oulun pääkirjaston rakennushistoriaselvitys. OUKA Pääkirjasto RHS kirjastolle.pdf (haettu 6.2.2019).
Berger, Laura 2018. The Building that Disappeared. Espoo: Aalto Arts Books.
Hadley, Chalmers 1910. Why Do We Need a Public Library? Material for a Library Campaign. Chicago: American Library Association Publishing Board. http://www.gutenberg.org/files... (haettu 25.11.2018).
Hirn, Sven 1998. Kansankirjastosta kaupunginkirjastoksi: Helsingin Kaupunginkirjasto 1860–1940. Helsinki: Helsingin kaupunginkirjasto.
EBLIDA – The European Bureau of Library, Information and Documentation Associations 2015. Survey on Public and Academic Libraries. http://www.eblida.org/activiti... (haettu 25.4.2019).
Espoon pääkirjaston yleinen suunnittelukilpailu 1992: Arkkitehtuurikilpailuja 2/1992.
Haapoja, Risto & Tikka, Hannu 1999: Raision kirjasto-auditorio. Arkkitehti 5/1999:44-53.
Huttunen, Hannu 1993: Maaningan kunnantalo. Arkkitehti 1/1993:50-55.
Junnila, Veikko 1977. Kirjastosuunnittelun opas. Helsinki: Martela Oy.
Kahri, Esko 1970: Rakennussuunnittelun tavoitteet 70-luvulla. Arkkitehti 2/1970:37-42.
Kannila, Helle 1966. Kirjastoista kirjoitettua. Kirjoituksia vuosilta 1913–1963. Helsinki: Suomen Kirjastoseura, Otava.
Kanninen, Mauno 1948. Maaseudun kirjastohuoneistot. Helsinki: Suomen Kirjastoseura, Maalaiskuntien Liitto.
Kanninen, Mauno 1953. Uusia kirjastohuoneistoja: Kuvaopas kirjastojen suunnittelijoille. Helsinki: Valtion kirjastotoimisto.
Kansankirjastolaki 131/1928. Suomen asetuskokoelma. https://fi.wikisource.org/wiki/Kansankirjastolaki. Muutokset: https://fi.wikisource.org/wiki...äivänä_1928_annetun_kansankirjastolain_4,_5_ja_8_§:n_muuttamisesta; https://fi.wikisource.org/wiki/Asetus_kansankirjastoista_(1941) (haettu 14.3.2019).
Kekki, Kirsi 2013. Menestystarina nimeltä kirjasto. Helsinki: Avain.
Kirjastolaki 1961. Suomen asetuskokoelma 235/1961. https://fi.wikisource.org/wiki/Kirjastolaki_(1961) (haettu 20.3.2019).
Kirjastolaki 1986. Suomen asetuskokoelma 235/1986. OM, Edita. https://www.finlex.fi/fi/laki/... (haettu 20.5.2019).
Kirjastolaki 1998. Finlex 904/1998. https://www.finlex.fi/fi/laki/... (haettu 20.5.2019).
Kuopion kirjastotalo 1969: Arkkitehti 8/1969:20-25.
Laki yleisistä kirjastoista 29.12.2016/1492. OM, Edita. https://www.finlex.fi/fi/laki/... (haettu 23.1.2018).
Lappo, Osmo: 1971: Avotilakoulu – tulevaisuuden koulu? Arkkitehti 7/1971:27-30.
Leppänen, Kaarlo 1982: Arkkitehdin ongelma. Kirjastolehti 2/1982:526-527.
Mäkinen, Ilkka 2009a. Pitäjänkirjastojen läpimurto. Teoksessa Yleisten kirjastojen historia. Toim. Ilkka Mäkinen. Helsinki: BTJ Kustannus.
Mäkinen, Ilkka 2009b. Kirjasto fennomaanien kansansivistysohjelmassa. Teoksessa Yleisten kirjastojen historia. Toim. Ilkka Mäkinen. Helsinki: BTJ Kustannus.
Mäkinen, Ilkka 2009v. Kirjastot sodassa, sota kirjastoissa. Teoksessa Yleisten kirjastojen historia. Toim. Ilkka Mäkinen. Helsinki: BTJ Kustannus.
Mäkinen, Ilkka 2009d. 1950-luvun perintö. Teoksessa Yleisten kirjastojen historia. Toim. Ilkka Mäkinen. Helsinki: BTJ Kustannus.
Mäkinen, Ilkka 2009e. Yleinen kirjasto hyvinvointiyhteiskunnassa 1960-luvun alusta vuosituhannen vaihteeseen. Teoksessa Yleisten kirjastojen historia. Toim. Ilkka Mäkinen. Helsinki: BTJ Kustannus.
Packalén, Ulla 1986: Kirjasto tänään ja huomenna. Teoksessa Kirjastotilojen suunnittelu. Toim. Eeva-Maija Tammekann. Helsinki: Kirjastopalvelu.
Packalén, Ulla 1992: Yhteinen kirjastomme. Arkkitehti 6/1992:18-23.
Palmgren, Valfrid 1910. Kirjastot ja kansalaiskasvatus. Muistiinpanoja opintomatkalta Pohjois-Amerikan Yhdysvaltoihin. Helsinki: Kansanvalistusseura.
Patomo, Timo 1979: Soidinkuvat: suunnitelma Tampereen kirjastotaloksi. Tampere: lähikuvia ja soidinkuvia vuonna 1979. Toim. Seppo Järvenpää ja työryhmä. Tampere: Tampereen teknillinen korkeakoulu, Arkkitehtuurin osasto, Arkkitehtikilta.
Pietilä, Reima 1983. Rakennusten ja kaupunkikuvien taistelevat metsot. Arkkitehti 3/1983:67-69.
Ranta, Kaarina 1979: Valtion osallistuminen kirjaston rakentamiseen. Kirjastolehti 2/1975:418-422.
Salmio-Toiviainen, Tarja 1958: Näkökohtia kirjaston suunnittelussa ja sisustamisessa. Kirjastolehti 1958/1: 50–53.
Suomen yleisten kirjastojen tilastot 2018. OKM. https://tilastot.kirjastot.fi/ (haettu 29.3.2019).
Sipinen, Arto 1992: Lahden pääkirjasto. Arkkitehti 6/1992:51.
Valtioneuvoston päätös kirjastorakennusten suunnittelun, rakentamisen ja normaalihintojen perusteista 236/1987. OM, Edita. https://www.finlex.fi/fi/laki/... (haettu 23.1.2018).
Vartola, Anni 2011: Liike ja vastaliike: vaikutelmia suomalaisesta postmodernismista. Arkkitehti 6/2011:10-21.
Wacklin, Matti 2011. Kaikkien sielujen apteekki. Tampereen kaupunginkirjasto 150 vuotta. Tampere: Tampereen kaupunginkirjasto – Pirkanmaan maakuntakirjasto.
Väestö 2019. Tilastokeskus. https://www.tilastokeskus.fi/t... (haettu 29.3.2019).
Äyräs, Anneli 1986: Yleisten kirjastojen rakentaminen. Kirjastolehti 2/1986.
LISÄTIETOA

Amerikkalainen kirjastoihanne siirtyi Suomeen lukuisten opintomatkojen välityksellä. Uusien kirjastojen piti olla houkuttelevia ja viihtyisiä, ja niille piti osoittaa paikkakunnan kaunein ja sijainniltaan keskeisin tontti. Kirjastojen sisustuksessa kehotettiin suosimaan lämpimiä ja iloisia värejä sekä käyttämään huonekasveja ja taidetta luomaan kauneuden, sopusointuisuuden ja kodikkuuden tunnelmaa. Laadukkaan kirjastoarkkitehtuurin katsottiin edistävän julkisten kirjastojen tehtävää lukutaidon, sivistysmyönteisyyden ja yhteisen kansallisen kulttuurin vahvistamisessa.
Ensimmäiset kirjastorakennukset Helsinkiin, Turkuun, Tampereelle ja Kuopioon
Ensimmäiset 1900-luvun alkupuolen julkiset kirjastot erottuivat selvästi ympäröivästä rakennuskannasta julkisiksi arvorakennuksiksi. Juhlavien sisätilojen päätiloja olivat lainausosasto, kirjavarasto, sekä mahdollisimman häiriöttömiksi suunnitellut lukusalit eri käyttäjäryhmille.
Ensimmäiset varta vasten kirjastokäyttöön suunnitellut julkiset kirjastot olivat Helsingin kansankirjaston talo Rikhardinkadulla (Theodor Höijer, 1881), Turun kirjastotalo (K. A. Wrede, 1903), ensimmäinen kokonaan kunnan omalla rahoituksella rahoitettu Helsingin Kallion kirjasto (Karl Hård af Segerstadh, 1912) sekä Tampereen kaupungin pääkirjasto (Jussi ja Toivo Paatela, 1925). Kuopion museo- ja kirjastorakennus (J. V. Strömberg, 1907) oli ensimmäinen ”muistiorganisaatiot” yhdistävä uudisrakennus.
[05_ Rikhardinkatu_AV]
Lainaussalista tulee keskeisin tila
Nykyaikaisen avohyllyjärjestelmän käyttöönotto vaikutti sisätilojen mitoitukseen ja kalustukseen. Suljetussa hyllyjärjestelmässä kirjat sijaitsivat kirjavarastossa, ja asiakas sai haluamansa kirjan pyytämällä sitä virkailijalta. Avohyllyjärjestelmässä lainaajat saivat itse valita lukemisensa. Tämän takia lainaussalista tuli 1910-luvulta alkaen kirjaston suurin ja merkittävin tila. Siellä selailtiin kirjaston kokoelmaa, luettiin sekä asioitiin toimintaa valvovan virkailijan kanssa. Samalla kirjavarasto muuttui. Lainaussaleihin sijoitettiin kirjojen aktiivikokoelma ja harvemmin tarvittu varastokokoelma siirrettiin kauemmas.
[06_Tampere_AV]
Avohyllyjärjestelmä lisäsi lukemiseen varattujen tilojen määrää ja kalustusta. Lukupisteitä sijoitettiin lainaussaliin hyllyjen lomaan, eikä varsinaisia lukusaleja enää tarvittu niin paljon kuin aiemmin. Käyttökulttuurin muutos lisäsi valvonnan ja liikennevirtojen suunnittelun tarvetta, mutta antoi uusia mahdollisuuksia kirjastotoiminnan idean ja kirjaston tilojen välisen tärkeysjärjestyksen arkkitehtoniselle ilmaisulle.
Lainaussali on kirjaston sydän Viipurin kirjastossa (Aino ja Alvar Aalto, arkkitehtuurikilpailu 1927, valm. 1935), joka on avohyllyjärjestelmän mahdollistama moderni kirjasto. Lapset olivat tervetulleita kirjaston huolellisesti suunniteltuun lastenosastoon. Sinne oli oma sisäänkäynti suoraan ulkoa. Kirjaston eri toiminnot erotettiin toisistaan: hallinto ja yleiseen käyttöön osoitetut tilat sijaitsivat omassa siivessään ja varsinaiset lukusalit omalla hiljaisella vyöhykkeellään.
Valtio tukee ja kannustaa kuntia kirjastojen rakentamisessa
Julkisten kirjastojen toimintaa alettiin säädellä lainsäädännöllä vuodesta 1928 alkaen. Kansankirjastolaki (131/1928) määritteli kirjastojen tehtäväksi "kansansivistyksen kohottamisen ja kansalaisten itseopiskelun edistämisen" ja kannusti kuntia ottamaan kirjastopalvelut osaksi toimintaansa. Valtion kirjastotoimikunta perustettiin kouluhallituksen yhteyteen. Se valvoi kirjastojen toimintaa ja jakoi rakennusavustusta kirjastohuoneistojen hankkimiseen ja kunnossapitoon.
Vuodesta 1932 alkaen kunnilta edellytettiin omaa rahoitusosuutta. Myöhemmät asetukset kansankirjastoista täsmensivät valtionapusäädöksiä ja asettivat valtion rakennusavustuksen edellytykseksi kunnanvaltuuston hyväksymät piirustukset, työselitykset ja kustannusarvion.
Käytännössä vain syrjäseutujen vähävaraiset kunnat saivat valtion rakennusavustusta. Kaupunkien kirjastohankkeet jouduttiin usein yhdistämään muihin uudisrakennushankkeisiin. Merkittävimpiä olivat Pohjois-Pohjanmaan maakunta-arkisto ja kirjasto Oulussa (Oiva Kallio, 1931) sekä Vaasan kirjasto- ja maakunta-arkisto (Ingvald Serenius, 1936).
Laitilan kirjastotalo (1937) ja Nurmeksen kirjasto (1938) olivat itsenäisyyden ajan ensimmäiset kirjastokäyttöön rakennetut maaseutukirjastot. Ne rakennettiin vielä lahjoitusvaroin.
Kirjasto saman katon alle muiden kunnan palveluiden kanssa
Toisessa maailmansodassa kirjastoja tuhoutui pommituksissa. Alueluovutuksissa Neuvostoliitolle menetettiin 370 kirjastoa kokoelmineen, mukaan lukien Viipurin, Hangon, Sortavalan ja Käkisalmen kaupunginkirjastot.
Jälleenrakennuskaudella kirjastojen tarve oli suurin maaseudulla. Suomen kirjastoseuran vuonna 1948 julkaisema Maaseudun kirjastohuoneistot opaslehtinen antoi käytännöllisiä ohjeita syrjäkylien päättäjille. Opas kannusti edistämään eri rakennushankkeita yhtä aikaa ja hakemaan kirjastolle yleisen sivistystalon luonnetta sijoittamalla useita palveluita saman katon alle.
Hyviä kumppaneita olivat esimerkiksi kunnantalo, terveystalo, kotiseutumuseo, kansalaisopisto tai kerho ja nuorisotalo. Kirjaston yhdistämistä kouluun pidettiin myös toimivana siinä tapauksessa, että yleinen kirjasto sai oman sisäänkäynnin. Opaslehtisen kuvituksena oli malliratkaisuja Norjasta ja Tanskasta sekä Kangasalan kantakirjaston lainausosasto, Porin Uudenkoiviston kansakoulun kirjastohuone ja Kouluhallituksen kansakoulutyyppipiirustus.
[07_Maaseudun kirjastohuoneistot_AV]
Kirjastolle seikkaperäiset suunnitteluohjeet – rakentaminen vauhdittuu 1950-luvulla
Uusien kirjastojen rakentaminen vauhdittui 1950-luvulla. Lukemisesta tuli suosittu harrastus, ja suomenkielisen kirjallisuuden tarjonta lisääntyi. Yleinen koulutus- ja sivistysmyönteisyys kasvoi. Toisen maailmansodan jälkeen syntyi ennätysmäärä lapsia. Etenkin lasten ja nuorten kirjastopalveluihin kiinnitettiin huomiota – toisaalta osana uusien kansa ja oppikoulujen suurta tarvetta, toisaalta osana yleisten kirjastopalvelujen kehittämistä. Kirjastojen haluttiin kilpailevan nuorison suosiosta ja tarjoavan houkuttelevan vaihtoehdon vähemmän suotaville vapaa-ajankäyttömuodoille.
Suunnitteluohjeet tähdensivät tontin valinnan keskeisyyttä, paikkakunnan tarpeiden tuntemista, resurssien järkevää kohdentamista sekä tiivistä yhteistyötä kirjastonhoitajan ja arkkitehdin välillä, jotta kirjaston toiminnallinen suunnittelu onnistuisi. 1950-luvun suunnitteluohjeissa kirjastotilan tärkeimpiä osatekijöitä olivat:
- eri huonetilojen mitoitus ja suhteellinen koko
- sisäisen liikenteen yhteydet
- keskitetyn valvonnan ratkaiseminen
- kirja- ja yleisömäärien mitoitus
- myöhempi laajennettavuus.
Vuonna 1953 julkaistiin suunnitteluopas pienten ja keskikokoisten kirjastojen suunnittelun innoitukseksi. Siinä esiteltiin kirjastotalomalleja uudisrakennuksina ja vanhaan taloon korjattuna, muiden rakennusten kuten kunnan tai terveystalon ja kansakoulun yhteyteen sijoitettuina siipinä sekä kirjastohuoneita liikerakennusten, virastojen, koulujen ja yksityistalojen yhteydessä.
[08_Uusia kirjastohuoneistoja_AV]
Arkkitehtuurilla haluttiin antaa vaatimattomallekin kirjastolle ”vissi mainosarvo, puoleensavetävä luonne”. Se tapahtui luomalla kirjastolle itsenäinen ilme ja eloisat sisätilat esimerkiksi:
- suunnittelemalla kirjaston julkisivut erikoisluonteen mukaisiksi
- antamalla kirjastolle oma, väljä ja tunnistettava, katoksella suojattu sisäänkäynti
- suosimalla käyntiovina leveitä lasiovia umpiovien sijaan, jolloin kävijä näkee kirjaston eri yleisötilat heti eteishallista
- sijoittamalla osa kokoelmista parvelle
laskemalla esimerkiksi luku- tai opintosali muuta lattiatasoa alemmaksi.
Lauritsalan kauppalankirjasto ja Lauttasaaren kirjasto
Säynätsalon kunnantalon yhteyteen rakennettu kunnankirjasto (Alvar Aalto, 1952) lienee kansainvälisesti tunnetuin 1950-luvun kirjasto. Vauraiden teollisuuspaikkakuntien kunnianhimoista kirjastoarkkitehtuuria edustaa myös Lauritsalan kauppalankirjasto (Arkkitehtuuritoimisto Martikainen–Ypyä–Malmio, 1951), joka esiteltiin monissa kirjastoalan julkaisuissa erityisen onnistuneena esimerkkinä.
Kirjaston sisätilat jäsentyvät eri tasoihin ja ovat yhtenäistä avaraa tilaa. Kirjahyllyt on 1950-luvun kirjastoissa sijoitettu kiertämään seiniä; keskialueelle on sommiteltu lukupisteitä sekä kevyempiä ja matalampia kirjahyllyköitä. Luonnonvalo pyritään tuomaan tiloihin epäsuorasti seiniä kiertävien kirjahyllyjen yläpuolelta tai kattovalona. Yleis ja lukuvalaisimet täydentävät tilojen valaistusta.
[09a_Lauritsalan kirjasto_AV]
[09b_Lauritsalan kirjasto_AV]
Esimerkki kaupungin asuinalueelle 1950-luvulla rakennetusta kirjastosta on Lauttasaaren kirjasto Helsingissä (J.S. Sirén, 1955). Se on osa suuren kansakoulun rakennusryhmää, ja kirjasto sisällytettiin suunnitelmiin vasta koulun rakennusvaiheessa. Kirjasto sijaitsi äitiysneuvolan yläkerrassa koulun pihaa rajaavan sivurakennuksen kahdessa ylimmässä kerroksessa. Neuvola-kirjastolla oli kaksiosainen sisäänkäynti; oma ulko-ovi ohjasi kirjastonkäyttäjät suoraan portaikkoon ja toiseen kerrokseen.
[10a_Lauttasaaren kirjasto_AV]
[10b_Lauttasaaren_kirjasto 2_AV]
Kasvun vuodet ¬– 1960-luvulla rakennetaan kunnallisia ja maakunnallisia kirjastoja
Kirjastot jaettiin paikallisiin kirjastoihin ja maakuntakirjastoihin vuodesta 1962 alkaen. Kaksitasoinen hierarkia perustui uuteen kirjastolakiin (235/1961). Valtionapu kohdennettiin maalaiskuntien ja kauppaloiden uusien kirjastorakennusten tai huoneistojen rakentamiseen sekä maakuntakirjastojärjestelmän perustamiseen. Maakuntakirjastoa ylläpitävät kaupungit saivat erillistä valtionapua sekä vuosiavustuksena että kunnan asukasmäärän mukaan.
Lainmuutos kasvatti merkittävästi kirjastotoimen rahoitusta ja vauhditti varsinkin pääkirjastojen rakentamista maakuntakirjasto-oikeudet saaneissa 19 kaupungissa. Maakuntakirjastojen tehtävä oli toimia alueellisina keskuskirjastoina sekä täydentää ja tukea paikallista kirjastoverkkoa. Uusista pääkirjastoista arkkitehtonisesti tunnetuimpia ovat Seinäjoen ja Rovaniemen kaupunginkirjastot (Alvar Aalto, 1965, 1966) sekä Kuopion uusi kirjastotalo (Matti Hakala, yleinen arkkitehtuurikilpailu 1962–63, valm. 1967).
Kuopion kirjastotalo
Kuopion kirjastotalo on näyttävä esimerkki 1960-luvun maakuntakirjastosta. Rakennus sijoitettiin Kuopion keskustaan vanhan museo-kirjastorakennuksen viereen. Se on vedetty sisemmäs tonttia ja irrotettu ympäröivästä kaupunkirakenteesta, joten se on helppo tunnistaa tärkeäksi julkiseksi rakennukseksi. Varsinaiset kirjastotilat ovat rakennuksen toisessa kerroksessa.
Rakennuksessa on teräsbetonirunko ja toisen kerroksen kattoa kannattelevat esijännitetyt teräsbetonipalkit. Rakenteen ansiosta kirjahalli on avara ja yhtenäinen tila: eri toiminnot on rajattu toisistaan puolikorkeilla seinäkkeillä, lasiovet ja väliseinien ylälasit tehostavat tilavaikutelmaa.
Kirjaston käyttöä valvotaan yhdestä keskeisestä asiakaspalvelu ja valvontapisteestä. Kirjasalin keskipiste on pyöreä, kirjahyllyillä tilaan rajautuva ja päätasoa alemmaksi laskettu nuoriso-osasto. Tila saa luonnonvaloa suuren kattoikkunan kautta, suoraan sen alla on sisäsuihkulähde. Kuopion kirjastotaloon valmistui uudenaikainen musiikkiosasto: musiikkia saattoi kuunnella kovaäänisistä erillisessä musiikkihuoneessa ja nuoriso-osastolla myös kuulokkeista.
[11a_Kuopion kirjastotalo 2_AV]
[11b_Kuopion kirjastotalo leikkaus_AV]
[11c_Kuopion kirjastotalo_AV]
Maakuntamittakaavasta lähikirjastoon: esimerkkinä Töölön sivukirjasto
Nopeasti kasvavissa kaupungeissa rakennettiin pääkirjastojen ohella myös lähi- eli sivukirjastoja. Ne haluttiin sijoittaa sinne, missä ihmiset asuvat ja tukea kirjastopalveluilla alueen päiväkotien ja koulujen kulttuurikasvatusta. Kirjasto tarjoaa myös alueen asukkaille luontevan, helposti saavutettavan kohtaamispaikan.
Vapaasti puistossa sijaitseva Töölön sivukirjasto Helsingissä (Aarne Ervi, 1963–1970) on kaupunkikuvallinen kohokohta. Kirjasto erottuu ympäröivästä kaupunkirakenteesta, ja sen korurasiamainen olemus poikkeaa 1960–70-luvun valtavirtaa edustavasta järjestelmäarkkitehtuurista, joka suosi neutraalia ulkoasua ja systemaattisesti toistettavissa olevaa tilarakennetta.
Kuten Ervin suunnittelemassa Turun yliopiston kirjastossa (1954), myös Töölön kirjaston suurista ikkunoista avautuu näkymiä puistoon. Puistoon avautuva parveke ja suojainen, laatoitettu terassi ovat kirjaston asiakkaiden käytössä kesäkaudella. Luonnonvalo lainaussaleissa ja lukusalissa on runsas.
Kirjaston tilat kiertyvät keskeisportaikon ympärille, ja sisätilojen värikkäät yksityiskohdat ja kaarevat linjat tekevät kirjaston tila-arkkitehtuurista eloisan. Lastenosasto on sijoitettu heti pääsisäänkäynnin viereen. Katutason lehtisali omine sisäänkäynteineen mahdollisti muusta kirjastosta poikkeavat aukio-oloajat. Toisessa kerroksessa olevan kaksikerroksisen aikuisten osaston kirjastosalissa on parvi, joka toimii yhdyskäytävänä ja joka alun perin palveli ruotsinkielisen kirjallisuuden osastona. Lasiseinillä erotettu lukusali on Helsingin suurin. Ylimmässä kerroksessa on musiikkiosasto ja oma parveke. Peruskorjauksen jälkeen (Arkkitehdit Mustonen Oy, 2016) ylimpään kerrokseen siirrettiin nuortenosasto sekä rakennettiin uusi tapahtumasali oheistiloineen.
[12a_Töölö 1_AV]
[12b_Töölö lukusali_AV]
[12c_Töölö musa_AV]
[12d_Töölö terassi_AV]
Suurten taajamien kirjastoverkko tiivistyy 1970-luvulla – kirjastosta muunneltava ja laajennettava
Kiihtyvä kaupungistuminen ja kuntaliitokset lisäsivät paineita uudistaa ja tiivistää etenkin suurten taajamien kirjastoverkkoa. Kirjastotoimesta vastaava kouluhallitus valvoi uusien kirjastohankkeiden käynnistämistä ja suunnitelmia, sillä kirjastorakentaminen oli 1970-luvun öljykriisin aiheuttaman taloustaantuman takia tarkkaan säänneltyä ja normitettua. Valtionapu edellytti kaikkien uusien kirjastohankkeiden pääpiirustusten ja työselitysten etukäteistä hyväksyntää. Lisäksi yli 250 m2 suuruisten kirjastorakennusten luonnokset ja rakennustapaselostus tuli tarkastuttaa etukäteen.
Kirjastojen suunnitteluohjeissa alleviivattiin tilojen laajennettavuutta ja muunneltavuutta sekä avoimen kirjastomaiseman ihannetta. Suunnitteluohjeet kannustivat käyttämään moduulimitoitusta ja pyrkimään selkeisiin ja yksinkertaisiin rakenteisiin sekä suuriin ja avariin sisätiloihin, jotta tilamuutokset olisivat joustavasti toteutettavissa. Tilasuunnittelussa tuli pyrkiä ”yleispätevyyteen, selkeyteen, avoimuuteen, keveyteen ja siirreltävyyteen – tiloissa, teknisissä ratkaisuissa, sisustuksessa, jopa yksittäisissä kalusteissa”.
1970-luvun kirjastoilla ei juurikaan nähty olevan julkisen rakennuksen symboliarvoa. Kirjastoista puhuttiin yleisönpalvelulaitoksina , ja arkkitehtuurin ensisijainen tehtävä oli palvella käyttäjän ja yhteiskunnan tarpeita. Rakennustaiteelliset päämäärät koettiin yleisemminkin ajankohdan poliittisessa ilmapiirissä liian yksilökeskeisiksi tai suppean yläluokan arvokäsityksiä vastaaviksi.
[13_Kerava_AV]
Automaatit ja tietokoneet saapuvat kirjastoon
Taloudellisten suhdanteiden, arkkitehtonisten arvojen ja poliittisten painotusten ohella myös tieto- ja viestintätekniikan kehitys vaikutti kirjastojen merkitykseen ja toimintakulttuuriin. Audiovisuaalisista laitteista, lainausautomaateista ja kopiokoneista tuli arkipäivää, ja erilaisille tiedonhaku ja ATK-päätteille tarvittiin tilaa. Kirjastoilta odotettiin aktiivisuutta: kirjastojen tuli esitellä uutta teknologiaa ja opastaa sen käyttöön.
Kaupunkien uusiin lähiöihin tarvittiin samaan aikaan lisää kirjastopalveluita ja yhteisöllisyyttä ruokkivia kokoontumispaikkoja. Pienissä 1970-luvun lähikirjastoissa näkyi pyrkimys olohuonemaiseen kodikkuuteen. Niihin kalustettiin matalien kirjahyllyjen rajaamia saarekkeita ja pehmeitä ja värikkäitä istuskeluryhmiä.
[14_Laajasalo_AV]
1980-luvun vaihteen murros: Oulun pääkirjasto ja Tammisaaren kaupunginkirjasto
Kirjastorakentaminen alkoi elpyä, kun öljykriisin aiheuttama taloudellinen taantuma helpottui. Kustannussäätely ja normiohjaus jatkuivat. Vuoden 1978 valtionosuusuudistus pohjautui uuteen kunnalliseen kantokykyluokkajärjestelmään, ja se nosti etenkin köyhempien kuntien kirjastojen valtionapua ajan kustannustasoon suhteutettuna peräti 73 % suuremmaksi kuin ennen. Kirjastojen asema hyvinvointiyhteiskuntaa tukevina merkkirakennuksina vahvistui, ja niihin suhtauduttiin kunnallisina tietokeskuksina ja yleisinä kohtauspaikkoina.
Oulun keskustan torialueen rantaan valmistunut pääkirjasto (Marjatta ja Martti Jaatinen, asemakaavakilpailu 1962–63, valm. 1981; sisustus Studio Nurmesniemi) on osa monumentaalikeskussommitelmaa. Asemakaavakilpailun tavoite oli antaa Oulun läänin pääkaupungille sen asemaa vastaava imago kaupungintalon, teatterin ja konserttitalon ja niiden väliin jäävän juhla-aukion muodostaman uuden sydämen avulla. Voittanut ehdotus ”Saari” sijoitti rakennusryhmän suorakulmaiselle, veden ympäröimälle tekosaarelle.
Alkuperäisestä monumentaalikeskussuunnitelmasta toteutui vain teatteritalo (1972), sillä konserttitalon tilalle päätettiin rakentaa uusi pääkirjasto–maakuntakirjasto. Sijoittelu antoi kirjastolle merkittävän ja tärkeän kulttuurilaitoksen aseman kaupunkikuvassa. Rakennus on paikallavalettua betonia ja sen julkisivuissa on käytetty alumiinisäleikköä, lasia, metallikasetteja ja mosaiikkibetonia; sisällä lähinnä sileävalettua betonia, mosaiikkibetonilaattaa, alumiinikasetteja, lasia ja puuta.
Kirjaston tilat ovat neljässä kerroksessa, ja kaikilta osastoilta avautuu näkymiä kaupunkiin tai jokisuistoon. Pohjakerroksessa ovat yleisöpalvelutilat ja lehtisali; kahdessa seuraavassa sijaitsevat aikuisten ja lasten osastot, opintosali sekä kokoelma- ja työtiloja; kirjavarasto ja henkilökunnan tilat ovat ylimmässä kerroksessa. Sisätilojen sydän on koko rakennuksen korkuinen keskusaula veistoksellisine betoniportaikkoineen. Alkuperäinen sisustus sovitettiin taidokkaasti tehostamaan rakennuksen ilmavaa tunnelmaa ja auttamaan suuren kirjaston eri osastojen hahmottamista.
[15a_Oulun_sisä_AV]
[15b_Oulu_AV]
Pieni Tammisaaren kaupunginkirjasto (Ola Hansson, 1977) sopeutuu paikkakunnan ominaispiirteisiin ja kaupunkikuvaan. Erkkerit, pieniruutuiset ikkunat ja poimutettu katto myötäilevät pienimittakaavaisen puukaupungin ja kirjastoa ympäröivien rakennusten tyyliä ja pehmentävät rakennusajankohdalle tyypillistä moduuliarkkitehtuuria.
[16_Tammisaari_AV]
1980-luvulla rakennetaan yli 200 uutta kirjastoa
Vuonna 1986 uusittu kirjastolaki ja taloudellisen noususuhdanteen siivittämä uusi valtionapupolitiikka saivat aikaan ennennäkemättömän rakennusbuumin: 1980-luvulla rakennettiin yli 200 uutta kirjastoa.
1980-luku oli myös videoiden, ATK-kurssien, telefaxien, ensimmäisten matkapuhelimien, paikallisradioiden, kulutusjuhlan ja tiivistyvän EU-yhteistyön aikaa. Tietokonevetoinen tulevaisuus pelotti: ”Tuleeko kirjastosta ainoastaan tietojärjestelmän rakennus- ja tallennuspiste, toimisto tai tietotehdas, johon käyttäjät ottavat yhteyden päätteiltään kotoaan? Tarvitsemmeko enää tiedon temppeleitä tai yhteisiä olohuoneita?”
Arkkitehtuurissa kritiikki 1970-luvun anonyymia ”laatikkolinjaa” kohtaan kasvoi. Postmodernismiksi kutsuttu arkkitehtuuriajattelu kannusti arkkitehteja etsimään vaihtoehtoja: Miten ilmaista kirjaston symbolista merkitystä yhteiskunnallisena ja kaupunkikuvallisena arvorakennuksena? Miten paikallisyhteisö ja käyttäjät kokisivat uuden rakennuksen omakseen? Enää ei riittänyt, että kirjastorakennus toimii moitteettomasti kuin kone. Sen arkkitehtuurin tuli kuvastaa kirjastolaitoksen kulttuurista merkitystä ja heijastella paikallisen miljöön piirteitä.
Tampereen pääkirjasto Metso
Yksi keskustelua herättäneistä uusista kirjastohankkeista oli Tampereen pääkirjasto Metso (Reima ja Raili Pietilä, yleinen arkkitehtuurikilpailu 1978, valm. 1986). ”Soidinmenot” kilpailuehdotuksen kaarevat ja veistokselliset muodot ja ylhäältä katsottuna metsoa muistuttava hahmo poikkesivat arkkitehtuurin valtavirrasta.
Reima Pietilä selitti kirjaston yksilöllisen muotokielen johtuvan arkkitehtien halusta antaa kirjastolle ”1980-luvun ajankasvot” ja tehdä kirjastosta maamerkki ja suomalaisen kulttuurin ilmaisija. Pietilä kritisoi vallitsevaa käsitystä tarkastella arkkitehtuuria pelkästään sen käyttöarvon valossa. Hän tähdensi, että Metson arkkitehtuuri pyrki tekemään uuden runollisen tulkinnan rakennuksen ja luonnon yhteydestä. Mikään Metson arkkitehtuurissa ei ollut yleispätevää: kirjaston pienimmätkin yksityiskohdat suunniteltiin Pietilöiden toimistossa.
[17a_Metso piirustuksia_AV]
[17b_Metso pohja_AV]
[17c_Metso tiski_AV]
Postmodernismi näkyy mittakaavassa, väreissä ja monimuotoisuudessa: Kuhmon kirjasto ja Vihannin kirjasto-kotiseutukeskus
Postmodernistista arkkitehtuuriajattelua ilmentävät etenkin Kuhmon kirjasto (Jyrki Tasa, yleinen arkkitehtuurikilpailu 1988) ja Vihannin kirjasto–kotiseutukeskus (Aitoaho & Viljanen, kutsukilpailu 1985, valm. 1992) – monien ns. Oulun koulun pieniin maaseututaajamiin suunnittelemien kirjastojen ohella.
Kuhmon kirjastossa ajan henki näkyy rakennuksen tilallisessa ilottelussa, värikkäissä, leikkisissä ja huomiota herättävissä yksityiskohdissa. Arkkitehtoninen viimeistely ulottuu Pietilöiden Metso-kirjaston tapaan kalusteisiin, valaisimiin ja vetimiin saakka.
[18a_Kuhmo kirjasali_AV]
[18b_Kuhmo lastenosasto_AV]
[18c_Kuhmo pohjapiirros_AV]
[18d_Kuhmo leikkaus_AV]
Vihannin kirjasto-kotiseutukeskus yhdistää paikallista kulttuuriperintöä kunnioittavan punamulta-arkkitehtuurin modernin ajan materiaaleihin ja modernin kirjaston toimintoihin. Pääosin puurakenteinen ja puuverhoiltu rakennus on Oulun koulun ideologian mukaisesti paikalla rakennettu. Kirjasto on osa monitoimitaloa, jossa ovat nuorisotilat, kansalaisopisto, kotiseutuarkisto, kotiseutu- ja kaivosmuseo, yrityspalvelukeskus ja kierrätyskeskus.
[19a_Vihanti_AV]
[19b_Vihanti ulkoa_AV]
Modernismin perinne jatkuu: Helsingin Pasilan pääkirjasto, Lahden kulttuurikeskus-pääkirjasto ja Vallilan sivukirjasto
1980-luvun arkkitehtuurissa esiintyi postmodernismin rinnalla myös modernismin perinteitä jatkavia ja uudistavia pyrkimyksiä. Niitä olivat mm. selkeän ja suorakulmaisen muotokielen käyttäminen, valkoisen värin, puhtaaksivaletun betonin, luonnonkiven, punatiilen ja puupintojen suosiminen sekä ns. ”uusvanhan”, lavastemaiseksi koetun kansanomaisuuden vastustaminen.
Helsingin pääkirjasto Itä-Pasilassa (Kaarlo Leppänen, 1986) on helppo tunnistaa julkiseksi rakennukseksi korkeiden betonielementtitalojen hallitsemasta ympäristöstä. Kirjaston pääsisäänkäynti ja pääjulkisivut sijaitsevat katutasoa ylempänä jalankulkukannella, koska Itä-Pasilassa autoliikenne ja jalankulku on erotettu eri tasoille.
Kirjastossa on muistumia ja lainauksia Alvar Aallon suunnittelemien rakennusten väri- ja materiaalimaailmasta. Julkisivuelementeissä on tummansinistä klinkkeriä ja pääsisäänkäynnin edustan pylväissä on klinkkeripäällystystä muistuttava pintakäsittely. Valkoiset sisätilat ympäröivät kaksikerroksista keskihallia ja sisäsuihkulähdettä. Tiloja valaisee epäsuora luonnonvalo kattoikkunoiden kautta. Sisäsuihkulähteessä on valkoista marmoria, parvella ja pääportaissa messinkiputkikaide, tiililaattapintaiset porrasaskelmat on reunustettu tammilistalla ja parvea kiertää, tammilistalla reunustettu musta laminaattitaso.
[20a_Helsinki pohja 1_AV]
[20b_Helsinki pohja 2_AV]
[20c_Pasilan kirjasto_AV]
[20d_Pasilan kirjasto_AV]
Lahden kulttuurikeskus-pääkirjaston (Arto Sipinen, yleinen arkkitehtuurikilpailu 1983, valm. 1990) ilmava muotokieli korostaa kirjaston arvostettua asemaa kulttuuri-instituutiona. Kirjasto-kulttuurikeskus-yhdistelmät yleistyivät 1980–90 lukujen taitteessa, ja Sipinen suunnitteli niistä monia (Imatran kulttuurikeskus, kutsukilpailu 1981, valm. 1986; Espoon Tapiolan kulttuurikeskus, yleinen arkkitehtuurikilpailu 1980, valm. 1989).
Lahden pääkirjasto on osa kulttuurirakennusten keskittymää yhdessä teatteritalon, taidemuseon ja aikuiskoulutuskeskuksen kanssa. Kirjaston selkeälinjaiset, umpi ja lasipintoihin jakautuvat, valkoiseksi ohutrapatut rakennusmassat on poimutettu niin, että kulttuurirakennusten väliin jää vesialtaiden ja istutusten elävöittämiä toriaukioita.
Aikuisten ja lasten lainausosastot sijaitsevat heti sisääntulon lähettyvillä ensimmäisessä kerroksessa, rauhallisempaa ympäristöä vaativat opiskelutilat ovat toisessa kerroksessa. Sisätilat ovat avointa hallitilaa, jotta myöhempi muunneltavuus olisi helppoa. Vaaleansävyisissä, valoisissa sisätiloissa on Sipisen arkkitehtuurille ominainen ajaton ja neutraali tunnelma.
[21_Lahti_AV]
Vallilan sivukirjasto Helsingissä (Juha Leiviskä ja Asta Björklund, 1990) kiteyttää 1980-luvun kirjastoarkkitehtuurin kehityslinjat. Pieni puurakenteinen ja verhoiltu rakennus on sovitettu tiiviisti rakennetun, suojellun puukaupunginosan mittakaavaan. Päiväkoti ja kirjasto muodostavat rakennusryhmän, joka ympäröi yhteistä puistopihaa. Sisätiloista avautuvat pihanäkymät, sisäkaton korkeusvaihtelut, ja runsas, monista eri suunnista lankeava luonnonvalo antavat juhlavan ja ajattoman tunnelman pikkuruiselle paikalliskirjastolle.
[22a_Vallila_AV]
[22b_Vallila pohjapiirros_AV]
Kirjastorakentaminen kärsii 1990-luvun talouslamasta
Ne kirjastohankkeet, jotka eivät ehtineet toteutua ennen 1990-luvun lamaa, pantiin jäihin. Hankesuunnitelmista ja arkkitehtuurikilpailujen pöytäkirjoista voi lukea uusien kirjastojen arkkitehtuurille asetettuja tavoitteita. Toteutumatta jääneen Espoon kaupunginkirjaston (yleinen arkkitehtuurikilpailu 1991) pöytäkirjassa tähdennetään jatkuvan muutoksen hyväksymistä, kirjaston tilojen joustavuutta ja muunneltavuutta sekä kirjaston tärkeää roolia julkisena rakennuksena. ”Kirjasto ei ole nykyisellään ainoastaan lainaus- ja lukupiste. Se on kohtaamis ja opiskelupaikka ja se tarjoaa myös monipuolisia kulttuurielämyksiä. Myös yleisön oleskelu- ja kahviotilat ovat olennainen osa nykypäivän kirjastoa. Tämä ei kuitenkaan tarkoita sitä, että kirjaston sisätilojen tulisi kilpailla kauppagallerioiden tai puuhamaiden kanssa. Niissä tulee edelleen olla aistittavissa kulttuurirakennuksen pitkä traditio.”
Orastavan tietoyhteiskunnan tarpeet alkoivat näkyä kirjastojen toiminnassa entistä enemmän. Kirjastoihin tuli lainattavaksi harrastevälineitä ja elektronista aineistoa. Tilaohjelmiin ilmaantui entistä enemmän varattavia kokoontumis ja näyttelytiloja. Kirjastoissa oli ”hiljaisuus”-kylttien sijaan ääntä ja elämää.
[23_Joensuu_AV]
[24a_Maaninka_AV]
[24b_Maaninka sisä_AV]
Kirjastoväki tähdensi kirjastojen merkitystä epäkaupallisina julkisina sisätiloina – ”koko kansan” olohuoneena: ”Mahdollisimman monen olisi voitava käyttää kirjastoa, siksi suunnittelun avaintavoitteita ovat kutsuvuus, saavutettavuus, löydettävyys ja helppokäyttöisyys. Kirjasto pyrkii keskelle kylää ja katutasoon!” Vuoden 1998 kirjastolaissa kaikuivat sekä lama-ajan että tietoyhteiskuntamurroksen seuraukset. Lakiteksti korosti yhdenvertaisuuden vaatimuksia ja tunnisti digitaalisen informaation merkityksen painettujen kirjojen ja lehtien rinnalla.
Monet 1990-luvun kirjastoista kärsivät riisutuista tilaohjelmista ja kustannussäästöjen nimissä vaaditusta tehokkuudesta. Kirjastoarkkitehtuuri joutui sopeutumaan vaatimuksiin julkisen rakentamisen muuntojoustavuudesta sekä tasapainoilemaan monien toiminnallisten vaatimusten ja kirjastojen paikallisen, kaupunkikuvallisen ja kulttuurisen merkityksen välillä. Kirjasto nähtiin kaupunkikehityksen välineenä: kirjaston kaltainen kulttuurirakennus oli hyvä keino lisätä hajanaisen taajama alueen vetovoimaisuutta.
Suosittu arkkitehtoninen tehokeino oli kollaasimaisuus: jokainen toiminto sijoitettiin ikään kuin omaan taloonsa, jotka sommiteltiin esimerkiksi sisäkadun ympärille. Rakennukselle luotiin kaksi toisistaan selkeästi erottuvaa suuntaa: ”selkä- ja vatsapuoli”. Raision kirjasto-auditorion (Hannu Tikka, yleinen arkkitehtuurikilpailu 1995, valm. 1999) arkkitehtoninen pääidea perustuu eri muotoisten ja väristen tilakappaleiden muodostamaan kokonaisuuteen: auditorio, kirjastosalit, lehtilukusali ja musiikkiosasto ovat kukin oma osasensa, jotka aulan sisäkatu yhdistää toisiinsa.
[25a_Raisio piha_AV]
[25b_Raisio plaani_AV]
2000-luvun kirjastot palvelevat yhä moninaisempia käyttäjäryhmiä ja tarpeita
Yleiset kirjastot palvelevat käyttäjiään edistämällä informaation saavutettavuutta kaikissa olomuodoissa sekä edesauttamalla sosiaalista yhteenkuuluvaisuuden tunnetta kaikkialla Suomessa. Vaikka kirjastojen määrä on supistunut, julkiset kirjastot palvelevat 2000-luvulla yhä moninaisempia käyttäjäryhmiä ja käyttötarpeita. Kirjastot ovat muuttaneet kauppakeskuksiin, kyläkeskuksiin ja kulttuuritaloihin, ja niiden tiloihin asettautuu yhä enemmän uusia toimijoita viranomaisista järjestöihin ja taideyhteisöihin.
Vuonna 2017 voimaan astuneen uuden kirjastolain lähtökohtia ovat yhteisöllisyys, moniarvoisuus ja kulttuurinen moninaisuus. Tulevaisuuden kirjasto edistää väestön yhdenvertaisia mahdollisuuksia sivistykseen ja kulttuuriin, tiedon saatavuutta ja käyttöä, lukemiskulttuuria ja monipuolista lukutaitoa, mahdollisuuksia elinikäiseen oppimiseen ja osaamisen kehittämiseen sekä aktiivista kansalaisuutta, demokratiaa ja sananvapautta.
[26_Sello_AV]
[27_Suomen kirjastoverkko_AV]
Kirjoittaja
Anni Vartola, tekniikan tohtori, artikkeli perustuu tekijän tutkimuksiin hänen laatiessaan Venetsian arkkitehtuuribiennaalin 2018 Mind-Building – näyttelykäsikirjoitusta. Näyttely esitteli suomalaista kirjastoarkkitehtuuria ja sen kehittymistä. Vartola on arkkitehtuurin teorian vanhempi yliopistonlehtori Aalto-yliopiston arkkitehtuurin laitoksella.
Artikkeli on julkaistu 2019.
LÄHTEET
Aaltonen, Hanna & Carlson, Joni 1986. Suomalaista kirjastoarkkitehtuuria. Helsinki: Kirjastopalvelu Oy.
Aaltonen, Hanna 2009. Kirjavarastosta olohuoneeksi: yleisten kirjastojen tilojen historiaa. Teoksessa Yleisten kirjastojen historia. Toim. Ilkka Mäkinen. Helsinki: BTJ Kustannus.
Arkkitehtitoimisto Aitoaho & Viljanen 1992: Vihannin kirjasto-kotiseutukeskus. Arkkitehti 6/1992:35-36.
Arkkitehtitoimisto Helin & Siitonen 1992: Joensuun kirjasto. Arkkitehti 6/1992:24-33.
Arkkitehtitoimisto Pia Krogius 2012. Oulun pääkirjaston rakennushistoriaselvitys. OUKA Pääkirjasto RHS kirjastolle.pdf (haettu 6.2.2019).
Berger, Laura 2018. The Building that Disappeared. Espoo: Aalto Arts Books.
Hadley, Chalmers 1910. Why Do We Need a Public Library? Material for a Library Campaign. Chicago: American Library Association Publishing Board. http://www.gutenberg.org/files... (haettu 25.11.2018).
Hirn, Sven 1998. Kansankirjastosta kaupunginkirjastoksi: Helsingin Kaupunginkirjasto 1860–1940. Helsinki: Helsingin kaupunginkirjasto.
EBLIDA – The European Bureau of Library, Information and Documentation Associations 2015. Survey on Public and Academic Libraries. http://www.eblida.org/activiti... (haettu 25.4.2019).
Espoon pääkirjaston yleinen suunnittelukilpailu 1992: Arkkitehtuurikilpailuja 2/1992.
Haapoja, Risto & Tikka, Hannu 1999: Raision kirjasto-auditorio. Arkkitehti 5/1999:44-53.
Huttunen, Hannu 1993: Maaningan kunnantalo. Arkkitehti 1/1993:50-55.
Junnila, Veikko 1977. Kirjastosuunnittelun opas. Helsinki: Martela Oy.
Kahri, Esko 1970: Rakennussuunnittelun tavoitteet 70-luvulla. Arkkitehti 2/1970:37-42.
Kannila, Helle 1966. Kirjastoista kirjoitettua. Kirjoituksia vuosilta 1913–1963. Helsinki: Suomen Kirjastoseura, Otava.
Kanninen, Mauno 1948. Maaseudun kirjastohuoneistot. Helsinki: Suomen Kirjastoseura, Maalaiskuntien Liitto.
Kanninen, Mauno 1953. Uusia kirjastohuoneistoja: Kuvaopas kirjastojen suunnittelijoille. Helsinki: Valtion kirjastotoimisto.
Kansankirjastolaki 131/1928. Suomen asetuskokoelma. https://fi.wikisource.org/wiki/Kansankirjastolaki. Muutokset: https://fi.wikisource.org/wiki...äivänä_1928_annetun_kansankirjastolain_4,_5_ja_8_§:n_muuttamisesta; https://fi.wikisource.org/wiki/Asetus_kansankirjastoista_(1941) (haettu 14.3.2019).
Kekki, Kirsi 2013. Menestystarina nimeltä kirjasto. Helsinki: Avain.
Kirjastolaki 1961. Suomen asetuskokoelma 235/1961. https://fi.wikisource.org/wiki/Kirjastolaki_(1961) (haettu 20.3.2019).
Kirjastolaki 1986. Suomen asetuskokoelma 235/1986. OM, Edita. https://www.finlex.fi/fi/laki/... (haettu 20.5.2019).
Kirjastolaki 1998. Finlex 904/1998. https://www.finlex.fi/fi/laki/... (haettu 20.5.2019).
Kuopion kirjastotalo 1969: Arkkitehti 8/1969:20-25.
Laki yleisistä kirjastoista 29.12.2016/1492. OM, Edita. https://www.finlex.fi/fi/laki/... (haettu 23.1.2018).
Lappo, Osmo: 1971: Avotilakoulu – tulevaisuuden koulu? Arkkitehti 7/1971:27-30.
Leppänen, Kaarlo 1982: Arkkitehdin ongelma. Kirjastolehti 2/1982:526-527.
Mäkinen, Ilkka 2009a. Pitäjänkirjastojen läpimurto. Teoksessa Yleisten kirjastojen historia. Toim. Ilkka Mäkinen. Helsinki: BTJ Kustannus.
Mäkinen, Ilkka 2009b. Kirjasto fennomaanien kansansivistysohjelmassa. Teoksessa Yleisten kirjastojen historia. Toim. Ilkka Mäkinen. Helsinki: BTJ Kustannus.
Mäkinen, Ilkka 2009v. Kirjastot sodassa, sota kirjastoissa. Teoksessa Yleisten kirjastojen historia. Toim. Ilkka Mäkinen. Helsinki: BTJ Kustannus.
Mäkinen, Ilkka 2009d. 1950-luvun perintö. Teoksessa Yleisten kirjastojen historia. Toim. Ilkka Mäkinen. Helsinki: BTJ Kustannus.
Mäkinen, Ilkka 2009e. Yleinen kirjasto hyvinvointiyhteiskunnassa 1960-luvun alusta vuosituhannen vaihteeseen. Teoksessa Yleisten kirjastojen historia. Toim. Ilkka Mäkinen. Helsinki: BTJ Kustannus.
Packalén, Ulla 1986: Kirjasto tänään ja huomenna. Teoksessa Kirjastotilojen suunnittelu. Toim. Eeva-Maija Tammekann. Helsinki: Kirjastopalvelu.
Packalén, Ulla 1992: Yhteinen kirjastomme. Arkkitehti 6/1992:18-23.
Palmgren, Valfrid 1910. Kirjastot ja kansalaiskasvatus. Muistiinpanoja opintomatkalta Pohjois-Amerikan Yhdysvaltoihin. Helsinki: Kansanvalistusseura.
Patomo, Timo 1979: Soidinkuvat: suunnitelma Tampereen kirjastotaloksi. Tampere: lähikuvia ja soidinkuvia vuonna 1979. Toim. Seppo Järvenpää ja työryhmä. Tampere: Tampereen teknillinen korkeakoulu, Arkkitehtuurin osasto, Arkkitehtikilta.
Pietilä, Reima 1983. Rakennusten ja kaupunkikuvien taistelevat metsot. Arkkitehti 3/1983:67-69.
Ranta, Kaarina 1979: Valtion osallistuminen kirjaston rakentamiseen. Kirjastolehti 2/1975:418-422.
Salmio-Toiviainen, Tarja 1958: Näkökohtia kirjaston suunnittelussa ja sisustamisessa. Kirjastolehti 1958/1: 50–53.
Suomen yleisten kirjastojen tilastot 2018. OKM. https://tilastot.kirjastot.fi/ (haettu 29.3.2019).
Sipinen, Arto 1992: Lahden pääkirjasto. Arkkitehti 6/1992:51.
Valtioneuvoston päätös kirjastorakennusten suunnittelun, rakentamisen ja normaalihintojen perusteista 236/1987. OM, Edita. https://www.finlex.fi/fi/laki/... (haettu 23.1.2018).
Vartola, Anni 2011: Liike ja vastaliike: vaikutelmia suomalaisesta postmodernismista. Arkkitehti 6/2011:10-21.
Wacklin, Matti 2011. Kaikkien sielujen apteekki. Tampereen kaupunginkirjasto 150 vuotta. Tampere: Tampereen kaupunginkirjasto – Pirkanmaan maakuntakirjasto.
Väestö 2019. Tilastokeskus. https://www.tilastokeskus.fi/t... (haettu 29.3.2019).
Äyräs, Anneli 1986: Yleisten kirjastojen rakentaminen. Kirjastolehti 2/1986.
LISÄTIETOA
Lainaussalista tulee keskeisin tila
Nykyaikaisen avohyllyjärjestelmän käyttöönotto vaikutti sisätilojen mitoitukseen ja kalustukseen. Suljetussa hyllyjärjestelmässä kirjat sijaitsivat kirjavarastossa, ja asiakas sai haluamansa kirjan pyytämällä sitä virkailijalta. Avohyllyjärjestelmässä lainaajat saivat itse valita lukemisensa. Tämän takia lainaussalista tuli 1910-luvulta alkaen kirjaston suurin ja merkittävin tila. Siellä selailtiin kirjaston kokoelmaa, luettiin sekä asioitiin toimintaa valvovan virkailijan kanssa. Samalla kirjavarasto muuttui. Lainaussaleihin sijoitettiin kirjojen aktiivikokoelma ja harvemmin tarvittu varastokokoelma siirrettiin kauemmas.

Avohyllyjärjestelmä lisäsi lukemiseen varattujen tilojen määrää ja kalustusta. Lukupisteitä sijoitettiin lainaussaliin hyllyjen lomaan, eikä varsinaisia lukusaleja enää tarvittu niin paljon kuin aiemmin. Käyttökulttuurin muutos lisäsi valvonnan ja liikennevirtojen suunnittelun tarvetta, mutta antoi uusia mahdollisuuksia kirjastotoiminnan idean ja kirjaston tilojen välisen tärkeysjärjestyksen arkkitehtoniselle ilmaisulle.
Lainaussali on kirjaston sydän Viipurin kirjastossa (Aino ja Alvar Aalto, arkkitehtuurikilpailu 1927, valm. 1935), joka on avohyllyjärjestelmän mahdollistama moderni kirjasto. Lapset olivat tervetulleita kirjaston huolellisesti suunniteltuun lastenosastoon. Sinne oli oma sisäänkäynti suoraan ulkoa. Kirjaston eri toiminnot erotettiin toisistaan: hallinto ja yleiseen käyttöön osoitetut tilat sijaitsivat omassa siivessään ja varsinaiset lukusalit omalla hiljaisella vyöhykkeellään.
Valtio tukee ja kannustaa kuntia kirjastojen rakentamisessa
Julkisten kirjastojen toimintaa alettiin säädellä lainsäädännöllä vuodesta 1928 alkaen. Kansankirjastolaki (131/1928) määritteli kirjastojen tehtäväksi "kansansivistyksen kohottamisen ja kansalaisten itseopiskelun edistämisen" ja kannusti kuntia ottamaan kirjastopalvelut osaksi toimintaansa. Valtion kirjastotoimikunta perustettiin kouluhallituksen yhteyteen. Se valvoi kirjastojen toimintaa ja jakoi rakennusavustusta kirjastohuoneistojen hankkimiseen ja kunnossapitoon.
Vuodesta 1932 alkaen kunnilta edellytettiin omaa rahoitusosuutta. Myöhemmät asetukset kansankirjastoista täsmensivät valtionapusäädöksiä ja asettivat valtion rakennusavustuksen edellytykseksi kunnanvaltuuston hyväksymät piirustukset, työselitykset ja kustannusarvion.
Käytännössä vain syrjäseutujen vähävaraiset kunnat saivat valtion rakennusavustusta. Kaupunkien kirjastohankkeet jouduttiin usein yhdistämään muihin uudisrakennushankkeisiin. Merkittävimpiä olivat Pohjois-Pohjanmaan maakunta-arkisto ja kirjasto Oulussa (Oiva Kallio, 1931) sekä Vaasan kirjasto- ja maakunta-arkisto (Ingvald Serenius, 1936).
Laitilan kirjastotalo (1937) ja Nurmeksen kirjasto (1938) olivat itsenäisyyden ajan ensimmäiset kirjastokäyttöön rakennetut maaseutukirjastot. Ne rakennettiin vielä lahjoitusvaroin.
Kirjasto saman katon alle muiden kunnan palveluiden kanssa
Toisessa maailmansodassa kirjastoja tuhoutui pommituksissa. Alueluovutuksissa Neuvostoliitolle menetettiin 370 kirjastoa kokoelmineen, mukaan lukien Viipurin, Hangon, Sortavalan ja Käkisalmen kaupunginkirjastot.
Jälleenrakennuskaudella kirjastojen tarve oli suurin maaseudulla. Suomen kirjastoseuran vuonna 1948 julkaisema Maaseudun kirjastohuoneistot opaslehtinen antoi käytännöllisiä ohjeita syrjäkylien päättäjille. Opas kannusti edistämään eri rakennushankkeita yhtä aikaa ja hakemaan kirjastolle yleisen sivistystalon luonnetta sijoittamalla useita palveluita saman katon alle.
Hyviä kumppaneita olivat esimerkiksi kunnantalo, terveystalo, kotiseutumuseo, kansalaisopisto tai kerho ja nuorisotalo. Kirjaston yhdistämistä kouluun pidettiin myös toimivana siinä tapauksessa, että yleinen kirjasto sai oman sisäänkäynnin. Opaslehtisen kuvituksena oli malliratkaisuja Norjasta ja Tanskasta sekä Kangasalan kantakirjaston lainausosasto, Porin Uudenkoiviston kansakoulun kirjastohuone ja Kouluhallituksen kansakoulutyyppipiirustus.
[07_Maaseudun kirjastohuoneistot_AV]
Kirjastolle seikkaperäiset suunnitteluohjeet – rakentaminen vauhdittuu 1950-luvulla
Uusien kirjastojen rakentaminen vauhdittui 1950-luvulla. Lukemisesta tuli suosittu harrastus, ja suomenkielisen kirjallisuuden tarjonta lisääntyi. Yleinen koulutus- ja sivistysmyönteisyys kasvoi. Toisen maailmansodan jälkeen syntyi ennätysmäärä lapsia. Etenkin lasten ja nuorten kirjastopalveluihin kiinnitettiin huomiota – toisaalta osana uusien kansa ja oppikoulujen suurta tarvetta, toisaalta osana yleisten kirjastopalvelujen kehittämistä. Kirjastojen haluttiin kilpailevan nuorison suosiosta ja tarjoavan houkuttelevan vaihtoehdon vähemmän suotaville vapaa-ajankäyttömuodoille.
Suunnitteluohjeet tähdensivät tontin valinnan keskeisyyttä, paikkakunnan tarpeiden tuntemista, resurssien järkevää kohdentamista sekä tiivistä yhteistyötä kirjastonhoitajan ja arkkitehdin välillä, jotta kirjaston toiminnallinen suunnittelu onnistuisi. 1950-luvun suunnitteluohjeissa kirjastotilan tärkeimpiä osatekijöitä olivat:
- eri huonetilojen mitoitus ja suhteellinen koko
- sisäisen liikenteen yhteydet
- keskitetyn valvonnan ratkaiseminen
- kirja- ja yleisömäärien mitoitus
- myöhempi laajennettavuus.
Vuonna 1953 julkaistiin suunnitteluopas pienten ja keskikokoisten kirjastojen suunnittelun innoitukseksi. Siinä esiteltiin kirjastotalomalleja uudisrakennuksina ja vanhaan taloon korjattuna, muiden rakennusten kuten kunnan tai terveystalon ja kansakoulun yhteyteen sijoitettuina siipinä sekä kirjastohuoneita liikerakennusten, virastojen, koulujen ja yksityistalojen yhteydessä.
[08_Uusia kirjastohuoneistoja_AV]
Arkkitehtuurilla haluttiin antaa vaatimattomallekin kirjastolle ”vissi mainosarvo, puoleensavetävä luonne”. Se tapahtui luomalla kirjastolle itsenäinen ilme ja eloisat sisätilat esimerkiksi:
- suunnittelemalla kirjaston julkisivut erikoisluonteen mukaisiksi
- antamalla kirjastolle oma, väljä ja tunnistettava, katoksella suojattu sisäänkäynti
- suosimalla käyntiovina leveitä lasiovia umpiovien sijaan, jolloin kävijä näkee kirjaston eri yleisötilat heti eteishallista
- sijoittamalla osa kokoelmista parvelle
laskemalla esimerkiksi luku- tai opintosali muuta lattiatasoa alemmaksi.
Lauritsalan kauppalankirjasto ja Lauttasaaren kirjasto
Säynätsalon kunnantalon yhteyteen rakennettu kunnankirjasto (Alvar Aalto, 1952) lienee kansainvälisesti tunnetuin 1950-luvun kirjasto. Vauraiden teollisuuspaikkakuntien kunnianhimoista kirjastoarkkitehtuuria edustaa myös Lauritsalan kauppalankirjasto (Arkkitehtuuritoimisto Martikainen–Ypyä–Malmio, 1951), joka esiteltiin monissa kirjastoalan julkaisuissa erityisen onnistuneena esimerkkinä.
Kirjaston sisätilat jäsentyvät eri tasoihin ja ovat yhtenäistä avaraa tilaa. Kirjahyllyt on 1950-luvun kirjastoissa sijoitettu kiertämään seiniä; keskialueelle on sommiteltu lukupisteitä sekä kevyempiä ja matalampia kirjahyllyköitä. Luonnonvalo pyritään tuomaan tiloihin epäsuorasti seiniä kiertävien kirjahyllyjen yläpuolelta tai kattovalona. Yleis ja lukuvalaisimet täydentävät tilojen valaistusta.
[09a_Lauritsalan kirjasto_AV]
[09b_Lauritsalan kirjasto_AV]
Esimerkki kaupungin asuinalueelle 1950-luvulla rakennetusta kirjastosta on Lauttasaaren kirjasto Helsingissä (J.S. Sirén, 1955). Se on osa suuren kansakoulun rakennusryhmää, ja kirjasto sisällytettiin suunnitelmiin vasta koulun rakennusvaiheessa. Kirjasto sijaitsi äitiysneuvolan yläkerrassa koulun pihaa rajaavan sivurakennuksen kahdessa ylimmässä kerroksessa. Neuvola-kirjastolla oli kaksiosainen sisäänkäynti; oma ulko-ovi ohjasi kirjastonkäyttäjät suoraan portaikkoon ja toiseen kerrokseen.
[10a_Lauttasaaren kirjasto_AV]
[10b_Lauttasaaren_kirjasto 2_AV]
Kasvun vuodet ¬– 1960-luvulla rakennetaan kunnallisia ja maakunnallisia kirjastoja
Kirjastot jaettiin paikallisiin kirjastoihin ja maakuntakirjastoihin vuodesta 1962 alkaen. Kaksitasoinen hierarkia perustui uuteen kirjastolakiin (235/1961). Valtionapu kohdennettiin maalaiskuntien ja kauppaloiden uusien kirjastorakennusten tai huoneistojen rakentamiseen sekä maakuntakirjastojärjestelmän perustamiseen. Maakuntakirjastoa ylläpitävät kaupungit saivat erillistä valtionapua sekä vuosiavustuksena että kunnan asukasmäärän mukaan.
Lainmuutos kasvatti merkittävästi kirjastotoimen rahoitusta ja vauhditti varsinkin pääkirjastojen rakentamista maakuntakirjasto-oikeudet saaneissa 19 kaupungissa. Maakuntakirjastojen tehtävä oli toimia alueellisina keskuskirjastoina sekä täydentää ja tukea paikallista kirjastoverkkoa. Uusista pääkirjastoista arkkitehtonisesti tunnetuimpia ovat Seinäjoen ja Rovaniemen kaupunginkirjastot (Alvar Aalto, 1965, 1966) sekä Kuopion uusi kirjastotalo (Matti Hakala, yleinen arkkitehtuurikilpailu 1962–63, valm. 1967).
Kuopion kirjastotalo
Kuopion kirjastotalo on näyttävä esimerkki 1960-luvun maakuntakirjastosta. Rakennus sijoitettiin Kuopion keskustaan vanhan museo-kirjastorakennuksen viereen. Se on vedetty sisemmäs tonttia ja irrotettu ympäröivästä kaupunkirakenteesta, joten se on helppo tunnistaa tärkeäksi julkiseksi rakennukseksi. Varsinaiset kirjastotilat ovat rakennuksen toisessa kerroksessa.
Rakennuksessa on teräsbetonirunko ja toisen kerroksen kattoa kannattelevat esijännitetyt teräsbetonipalkit. Rakenteen ansiosta kirjahalli on avara ja yhtenäinen tila: eri toiminnot on rajattu toisistaan puolikorkeilla seinäkkeillä, lasiovet ja väliseinien ylälasit tehostavat tilavaikutelmaa.
Kirjaston käyttöä valvotaan yhdestä keskeisestä asiakaspalvelu ja valvontapisteestä. Kirjasalin keskipiste on pyöreä, kirjahyllyillä tilaan rajautuva ja päätasoa alemmaksi laskettu nuoriso-osasto. Tila saa luonnonvaloa suuren kattoikkunan kautta, suoraan sen alla on sisäsuihkulähde. Kuopion kirjastotaloon valmistui uudenaikainen musiikkiosasto: musiikkia saattoi kuunnella kovaäänisistä erillisessä musiikkihuoneessa ja nuoriso-osastolla myös kuulokkeista.
[11a_Kuopion kirjastotalo 2_AV]
[11b_Kuopion kirjastotalo leikkaus_AV]
[11c_Kuopion kirjastotalo_AV]
Maakuntamittakaavasta lähikirjastoon: esimerkkinä Töölön sivukirjasto
Nopeasti kasvavissa kaupungeissa rakennettiin pääkirjastojen ohella myös lähi- eli sivukirjastoja. Ne haluttiin sijoittaa sinne, missä ihmiset asuvat ja tukea kirjastopalveluilla alueen päiväkotien ja koulujen kulttuurikasvatusta. Kirjasto tarjoaa myös alueen asukkaille luontevan, helposti saavutettavan kohtaamispaikan.
Vapaasti puistossa sijaitseva Töölön sivukirjasto Helsingissä (Aarne Ervi, 1963–1970) on kaupunkikuvallinen kohokohta. Kirjasto erottuu ympäröivästä kaupunkirakenteesta, ja sen korurasiamainen olemus poikkeaa 1960–70-luvun valtavirtaa edustavasta järjestelmäarkkitehtuurista, joka suosi neutraalia ulkoasua ja systemaattisesti toistettavissa olevaa tilarakennetta.
Kuten Ervin suunnittelemassa Turun yliopiston kirjastossa (1954), myös Töölön kirjaston suurista ikkunoista avautuu näkymiä puistoon. Puistoon avautuva parveke ja suojainen, laatoitettu terassi ovat kirjaston asiakkaiden käytössä kesäkaudella. Luonnonvalo lainaussaleissa ja lukusalissa on runsas.
Kirjaston tilat kiertyvät keskeisportaikon ympärille, ja sisätilojen värikkäät yksityiskohdat ja kaarevat linjat tekevät kirjaston tila-arkkitehtuurista eloisan. Lastenosasto on sijoitettu heti pääsisäänkäynnin viereen. Katutason lehtisali omine sisäänkäynteineen mahdollisti muusta kirjastosta poikkeavat aukio-oloajat. Toisessa kerroksessa olevan kaksikerroksisen aikuisten osaston kirjastosalissa on parvi, joka toimii yhdyskäytävänä ja joka alun perin palveli ruotsinkielisen kirjallisuuden osastona. Lasiseinillä erotettu lukusali on Helsingin suurin. Ylimmässä kerroksessa on musiikkiosasto ja oma parveke. Peruskorjauksen jälkeen (Arkkitehdit Mustonen Oy, 2016) ylimpään kerrokseen siirrettiin nuortenosasto sekä rakennettiin uusi tapahtumasali oheistiloineen.
[12a_Töölö 1_AV]
[12b_Töölö lukusali_AV]
[12c_Töölö musa_AV]
[12d_Töölö terassi_AV]
Suurten taajamien kirjastoverkko tiivistyy 1970-luvulla – kirjastosta muunneltava ja laajennettava
Kiihtyvä kaupungistuminen ja kuntaliitokset lisäsivät paineita uudistaa ja tiivistää etenkin suurten taajamien kirjastoverkkoa. Kirjastotoimesta vastaava kouluhallitus valvoi uusien kirjastohankkeiden käynnistämistä ja suunnitelmia, sillä kirjastorakentaminen oli 1970-luvun öljykriisin aiheuttaman taloustaantuman takia tarkkaan säänneltyä ja normitettua. Valtionapu edellytti kaikkien uusien kirjastohankkeiden pääpiirustusten ja työselitysten etukäteistä hyväksyntää. Lisäksi yli 250 m2 suuruisten kirjastorakennusten luonnokset ja rakennustapaselostus tuli tarkastuttaa etukäteen.
Kirjastojen suunnitteluohjeissa alleviivattiin tilojen laajennettavuutta ja muunneltavuutta sekä avoimen kirjastomaiseman ihannetta. Suunnitteluohjeet kannustivat käyttämään moduulimitoitusta ja pyrkimään selkeisiin ja yksinkertaisiin rakenteisiin sekä suuriin ja avariin sisätiloihin, jotta tilamuutokset olisivat joustavasti toteutettavissa. Tilasuunnittelussa tuli pyrkiä ”yleispätevyyteen, selkeyteen, avoimuuteen, keveyteen ja siirreltävyyteen – tiloissa, teknisissä ratkaisuissa, sisustuksessa, jopa yksittäisissä kalusteissa”.
1970-luvun kirjastoilla ei juurikaan nähty olevan julkisen rakennuksen symboliarvoa. Kirjastoista puhuttiin yleisönpalvelulaitoksina , ja arkkitehtuurin ensisijainen tehtävä oli palvella käyttäjän ja yhteiskunnan tarpeita. Rakennustaiteelliset päämäärät koettiin yleisemminkin ajankohdan poliittisessa ilmapiirissä liian yksilökeskeisiksi tai suppean yläluokan arvokäsityksiä vastaaviksi.
[13_Kerava_AV]
Automaatit ja tietokoneet saapuvat kirjastoon
Taloudellisten suhdanteiden, arkkitehtonisten arvojen ja poliittisten painotusten ohella myös tieto- ja viestintätekniikan kehitys vaikutti kirjastojen merkitykseen ja toimintakulttuuriin. Audiovisuaalisista laitteista, lainausautomaateista ja kopiokoneista tuli arkipäivää, ja erilaisille tiedonhaku ja ATK-päätteille tarvittiin tilaa. Kirjastoilta odotettiin aktiivisuutta: kirjastojen tuli esitellä uutta teknologiaa ja opastaa sen käyttöön.
Kaupunkien uusiin lähiöihin tarvittiin samaan aikaan lisää kirjastopalveluita ja yhteisöllisyyttä ruokkivia kokoontumispaikkoja. Pienissä 1970-luvun lähikirjastoissa näkyi pyrkimys olohuonemaiseen kodikkuuteen. Niihin kalustettiin matalien kirjahyllyjen rajaamia saarekkeita ja pehmeitä ja värikkäitä istuskeluryhmiä.
[14_Laajasalo_AV]
1980-luvun vaihteen murros: Oulun pääkirjasto ja Tammisaaren kaupunginkirjasto
Kirjastorakentaminen alkoi elpyä, kun öljykriisin aiheuttama taloudellinen taantuma helpottui. Kustannussäätely ja normiohjaus jatkuivat. Vuoden 1978 valtionosuusuudistus pohjautui uuteen kunnalliseen kantokykyluokkajärjestelmään, ja se nosti etenkin köyhempien kuntien kirjastojen valtionapua ajan kustannustasoon suhteutettuna peräti 73 % suuremmaksi kuin ennen. Kirjastojen asema hyvinvointiyhteiskuntaa tukevina merkkirakennuksina vahvistui, ja niihin suhtauduttiin kunnallisina tietokeskuksina ja yleisinä kohtauspaikkoina.
Oulun keskustan torialueen rantaan valmistunut pääkirjasto (Marjatta ja Martti Jaatinen, asemakaavakilpailu 1962–63, valm. 1981; sisustus Studio Nurmesniemi) on osa monumentaalikeskussommitelmaa. Asemakaavakilpailun tavoite oli antaa Oulun läänin pääkaupungille sen asemaa vastaava imago kaupungintalon, teatterin ja konserttitalon ja niiden väliin jäävän juhla-aukion muodostaman uuden sydämen avulla. Voittanut ehdotus ”Saari” sijoitti rakennusryhmän suorakulmaiselle, veden ympäröimälle tekosaarelle.
Alkuperäisestä monumentaalikeskussuunnitelmasta toteutui vain teatteritalo (1972), sillä konserttitalon tilalle päätettiin rakentaa uusi pääkirjasto–maakuntakirjasto. Sijoittelu antoi kirjastolle merkittävän ja tärkeän kulttuurilaitoksen aseman kaupunkikuvassa. Rakennus on paikallavalettua betonia ja sen julkisivuissa on käytetty alumiinisäleikköä, lasia, metallikasetteja ja mosaiikkibetonia; sisällä lähinnä sileävalettua betonia, mosaiikkibetonilaattaa, alumiinikasetteja, lasia ja puuta.
Kirjaston tilat ovat neljässä kerroksessa, ja kaikilta osastoilta avautuu näkymiä kaupunkiin tai jokisuistoon. Pohjakerroksessa ovat yleisöpalvelutilat ja lehtisali; kahdessa seuraavassa sijaitsevat aikuisten ja lasten osastot, opintosali sekä kokoelma- ja työtiloja; kirjavarasto ja henkilökunnan tilat ovat ylimmässä kerroksessa. Sisätilojen sydän on koko rakennuksen korkuinen keskusaula veistoksellisine betoniportaikkoineen. Alkuperäinen sisustus sovitettiin taidokkaasti tehostamaan rakennuksen ilmavaa tunnelmaa ja auttamaan suuren kirjaston eri osastojen hahmottamista.
[15a_Oulun_sisä_AV]
[15b_Oulu_AV]
Pieni Tammisaaren kaupunginkirjasto (Ola Hansson, 1977) sopeutuu paikkakunnan ominaispiirteisiin ja kaupunkikuvaan. Erkkerit, pieniruutuiset ikkunat ja poimutettu katto myötäilevät pienimittakaavaisen puukaupungin ja kirjastoa ympäröivien rakennusten tyyliä ja pehmentävät rakennusajankohdalle tyypillistä moduuliarkkitehtuuria.
[16_Tammisaari_AV]
1980-luvulla rakennetaan yli 200 uutta kirjastoa
Vuonna 1986 uusittu kirjastolaki ja taloudellisen noususuhdanteen siivittämä uusi valtionapupolitiikka saivat aikaan ennennäkemättömän rakennusbuumin: 1980-luvulla rakennettiin yli 200 uutta kirjastoa.
1980-luku oli myös videoiden, ATK-kurssien, telefaxien, ensimmäisten matkapuhelimien, paikallisradioiden, kulutusjuhlan ja tiivistyvän EU-yhteistyön aikaa. Tietokonevetoinen tulevaisuus pelotti: ”Tuleeko kirjastosta ainoastaan tietojärjestelmän rakennus- ja tallennuspiste, toimisto tai tietotehdas, johon käyttäjät ottavat yhteyden päätteiltään kotoaan? Tarvitsemmeko enää tiedon temppeleitä tai yhteisiä olohuoneita?”
Arkkitehtuurissa kritiikki 1970-luvun anonyymia ”laatikkolinjaa” kohtaan kasvoi. Postmodernismiksi kutsuttu arkkitehtuuriajattelu kannusti arkkitehteja etsimään vaihtoehtoja: Miten ilmaista kirjaston symbolista merkitystä yhteiskunnallisena ja kaupunkikuvallisena arvorakennuksena? Miten paikallisyhteisö ja käyttäjät kokisivat uuden rakennuksen omakseen? Enää ei riittänyt, että kirjastorakennus toimii moitteettomasti kuin kone. Sen arkkitehtuurin tuli kuvastaa kirjastolaitoksen kulttuurista merkitystä ja heijastella paikallisen miljöön piirteitä.
Tampereen pääkirjasto Metso
Yksi keskustelua herättäneistä uusista kirjastohankkeista oli Tampereen pääkirjasto Metso (Reima ja Raili Pietilä, yleinen arkkitehtuurikilpailu 1978, valm. 1986). ”Soidinmenot” kilpailuehdotuksen kaarevat ja veistokselliset muodot ja ylhäältä katsottuna metsoa muistuttava hahmo poikkesivat arkkitehtuurin valtavirrasta.
Reima Pietilä selitti kirjaston yksilöllisen muotokielen johtuvan arkkitehtien halusta antaa kirjastolle ”1980-luvun ajankasvot” ja tehdä kirjastosta maamerkki ja suomalaisen kulttuurin ilmaisija. Pietilä kritisoi vallitsevaa käsitystä tarkastella arkkitehtuuria pelkästään sen käyttöarvon valossa. Hän tähdensi, että Metson arkkitehtuuri pyrki tekemään uuden runollisen tulkinnan rakennuksen ja luonnon yhteydestä. Mikään Metson arkkitehtuurissa ei ollut yleispätevää: kirjaston pienimmätkin yksityiskohdat suunniteltiin Pietilöiden toimistossa.
[17a_Metso piirustuksia_AV]
[17b_Metso pohja_AV]
[17c_Metso tiski_AV]
Postmodernismi näkyy mittakaavassa, väreissä ja monimuotoisuudessa: Kuhmon kirjasto ja Vihannin kirjasto-kotiseutukeskus
Postmodernistista arkkitehtuuriajattelua ilmentävät etenkin Kuhmon kirjasto (Jyrki Tasa, yleinen arkkitehtuurikilpailu 1988) ja Vihannin kirjasto–kotiseutukeskus (Aitoaho & Viljanen, kutsukilpailu 1985, valm. 1992) – monien ns. Oulun koulun pieniin maaseututaajamiin suunnittelemien kirjastojen ohella.
Kuhmon kirjastossa ajan henki näkyy rakennuksen tilallisessa ilottelussa, värikkäissä, leikkisissä ja huomiota herättävissä yksityiskohdissa. Arkkitehtoninen viimeistely ulottuu Pietilöiden Metso-kirjaston tapaan kalusteisiin, valaisimiin ja vetimiin saakka.
[18a_Kuhmo kirjasali_AV]
[18b_Kuhmo lastenosasto_AV]
[18c_Kuhmo pohjapiirros_AV]
[18d_Kuhmo leikkaus_AV]
Vihannin kirjasto-kotiseutukeskus yhdistää paikallista kulttuuriperintöä kunnioittavan punamulta-arkkitehtuurin modernin ajan materiaaleihin ja modernin kirjaston toimintoihin. Pääosin puurakenteinen ja puuverhoiltu rakennus on Oulun koulun ideologian mukaisesti paikalla rakennettu. Kirjasto on osa monitoimitaloa, jossa ovat nuorisotilat, kansalaisopisto, kotiseutuarkisto, kotiseutu- ja kaivosmuseo, yrityspalvelukeskus ja kierrätyskeskus.
[19a_Vihanti_AV]
[19b_Vihanti ulkoa_AV]
Modernismin perinne jatkuu: Helsingin Pasilan pääkirjasto, Lahden kulttuurikeskus-pääkirjasto ja Vallilan sivukirjasto
1980-luvun arkkitehtuurissa esiintyi postmodernismin rinnalla myös modernismin perinteitä jatkavia ja uudistavia pyrkimyksiä. Niitä olivat mm. selkeän ja suorakulmaisen muotokielen käyttäminen, valkoisen värin, puhtaaksivaletun betonin, luonnonkiven, punatiilen ja puupintojen suosiminen sekä ns. ”uusvanhan”, lavastemaiseksi koetun kansanomaisuuden vastustaminen.
Helsingin pääkirjasto Itä-Pasilassa (Kaarlo Leppänen, 1986) on helppo tunnistaa julkiseksi rakennukseksi korkeiden betonielementtitalojen hallitsemasta ympäristöstä. Kirjaston pääsisäänkäynti ja pääjulkisivut sijaitsevat katutasoa ylempänä jalankulkukannella, koska Itä-Pasilassa autoliikenne ja jalankulku on erotettu eri tasoille.
Kirjastossa on muistumia ja lainauksia Alvar Aallon suunnittelemien rakennusten väri- ja materiaalimaailmasta. Julkisivuelementeissä on tummansinistä klinkkeriä ja pääsisäänkäynnin edustan pylväissä on klinkkeripäällystystä muistuttava pintakäsittely. Valkoiset sisätilat ympäröivät kaksikerroksista keskihallia ja sisäsuihkulähdettä. Tiloja valaisee epäsuora luonnonvalo kattoikkunoiden kautta. Sisäsuihkulähteessä on valkoista marmoria, parvella ja pääportaissa messinkiputkikaide, tiililaattapintaiset porrasaskelmat on reunustettu tammilistalla ja parvea kiertää, tammilistalla reunustettu musta laminaattitaso.
[20a_Helsinki pohja 1_AV]
[20b_Helsinki pohja 2_AV]
[20c_Pasilan kirjasto_AV]
[20d_Pasilan kirjasto_AV]
Lahden kulttuurikeskus-pääkirjaston (Arto Sipinen, yleinen arkkitehtuurikilpailu 1983, valm. 1990) ilmava muotokieli korostaa kirjaston arvostettua asemaa kulttuuri-instituutiona. Kirjasto-kulttuurikeskus-yhdistelmät yleistyivät 1980–90 lukujen taitteessa, ja Sipinen suunnitteli niistä monia (Imatran kulttuurikeskus, kutsukilpailu 1981, valm. 1986; Espoon Tapiolan kulttuurikeskus, yleinen arkkitehtuurikilpailu 1980, valm. 1989).
Lahden pääkirjasto on osa kulttuurirakennusten keskittymää yhdessä teatteritalon, taidemuseon ja aikuiskoulutuskeskuksen kanssa. Kirjaston selkeälinjaiset, umpi ja lasipintoihin jakautuvat, valkoiseksi ohutrapatut rakennusmassat on poimutettu niin, että kulttuurirakennusten väliin jää vesialtaiden ja istutusten elävöittämiä toriaukioita.
Aikuisten ja lasten lainausosastot sijaitsevat heti sisääntulon lähettyvillä ensimmäisessä kerroksessa, rauhallisempaa ympäristöä vaativat opiskelutilat ovat toisessa kerroksessa. Sisätilat ovat avointa hallitilaa, jotta myöhempi muunneltavuus olisi helppoa. Vaaleansävyisissä, valoisissa sisätiloissa on Sipisen arkkitehtuurille ominainen ajaton ja neutraali tunnelma.
[21_Lahti_AV]
Vallilan sivukirjasto Helsingissä (Juha Leiviskä ja Asta Björklund, 1990) kiteyttää 1980-luvun kirjastoarkkitehtuurin kehityslinjat. Pieni puurakenteinen ja verhoiltu rakennus on sovitettu tiiviisti rakennetun, suojellun puukaupunginosan mittakaavaan. Päiväkoti ja kirjasto muodostavat rakennusryhmän, joka ympäröi yhteistä puistopihaa. Sisätiloista avautuvat pihanäkymät, sisäkaton korkeusvaihtelut, ja runsas, monista eri suunnista lankeava luonnonvalo antavat juhlavan ja ajattoman tunnelman pikkuruiselle paikalliskirjastolle.
[22a_Vallila_AV]
[22b_Vallila pohjapiirros_AV]
Kirjastorakentaminen kärsii 1990-luvun talouslamasta
Ne kirjastohankkeet, jotka eivät ehtineet toteutua ennen 1990-luvun lamaa, pantiin jäihin. Hankesuunnitelmista ja arkkitehtuurikilpailujen pöytäkirjoista voi lukea uusien kirjastojen arkkitehtuurille asetettuja tavoitteita. Toteutumatta jääneen Espoon kaupunginkirjaston (yleinen arkkitehtuurikilpailu 1991) pöytäkirjassa tähdennetään jatkuvan muutoksen hyväksymistä, kirjaston tilojen joustavuutta ja muunneltavuutta sekä kirjaston tärkeää roolia julkisena rakennuksena. ”Kirjasto ei ole nykyisellään ainoastaan lainaus- ja lukupiste. Se on kohtaamis ja opiskelupaikka ja se tarjoaa myös monipuolisia kulttuurielämyksiä. Myös yleisön oleskelu- ja kahviotilat ovat olennainen osa nykypäivän kirjastoa. Tämä ei kuitenkaan tarkoita sitä, että kirjaston sisätilojen tulisi kilpailla kauppagallerioiden tai puuhamaiden kanssa. Niissä tulee edelleen olla aistittavissa kulttuurirakennuksen pitkä traditio.”
Orastavan tietoyhteiskunnan tarpeet alkoivat näkyä kirjastojen toiminnassa entistä enemmän. Kirjastoihin tuli lainattavaksi harrastevälineitä ja elektronista aineistoa. Tilaohjelmiin ilmaantui entistä enemmän varattavia kokoontumis ja näyttelytiloja. Kirjastoissa oli ”hiljaisuus”-kylttien sijaan ääntä ja elämää.
[23_Joensuu_AV]
[24a_Maaninka_AV]
[24b_Maaninka sisä_AV]
Kirjastoväki tähdensi kirjastojen merkitystä epäkaupallisina julkisina sisätiloina – ”koko kansan” olohuoneena: ”Mahdollisimman monen olisi voitava käyttää kirjastoa, siksi suunnittelun avaintavoitteita ovat kutsuvuus, saavutettavuus, löydettävyys ja helppokäyttöisyys. Kirjasto pyrkii keskelle kylää ja katutasoon!” Vuoden 1998 kirjastolaissa kaikuivat sekä lama-ajan että tietoyhteiskuntamurroksen seuraukset. Lakiteksti korosti yhdenvertaisuuden vaatimuksia ja tunnisti digitaalisen informaation merkityksen painettujen kirjojen ja lehtien rinnalla.
Monet 1990-luvun kirjastoista kärsivät riisutuista tilaohjelmista ja kustannussäästöjen nimissä vaaditusta tehokkuudesta. Kirjastoarkkitehtuuri joutui sopeutumaan vaatimuksiin julkisen rakentamisen muuntojoustavuudesta sekä tasapainoilemaan monien toiminnallisten vaatimusten ja kirjastojen paikallisen, kaupunkikuvallisen ja kulttuurisen merkityksen välillä. Kirjasto nähtiin kaupunkikehityksen välineenä: kirjaston kaltainen kulttuurirakennus oli hyvä keino lisätä hajanaisen taajama alueen vetovoimaisuutta.
Suosittu arkkitehtoninen tehokeino oli kollaasimaisuus: jokainen toiminto sijoitettiin ikään kuin omaan taloonsa, jotka sommiteltiin esimerkiksi sisäkadun ympärille. Rakennukselle luotiin kaksi toisistaan selkeästi erottuvaa suuntaa: ”selkä- ja vatsapuoli”. Raision kirjasto-auditorion (Hannu Tikka, yleinen arkkitehtuurikilpailu 1995, valm. 1999) arkkitehtoninen pääidea perustuu eri muotoisten ja väristen tilakappaleiden muodostamaan kokonaisuuteen: auditorio, kirjastosalit, lehtilukusali ja musiikkiosasto ovat kukin oma osasensa, jotka aulan sisäkatu yhdistää toisiinsa.
[25a_Raisio piha_AV]
[25b_Raisio plaani_AV]
2000-luvun kirjastot palvelevat yhä moninaisempia käyttäjäryhmiä ja tarpeita
Yleiset kirjastot palvelevat käyttäjiään edistämällä informaation saavutettavuutta kaikissa olomuodoissa sekä edesauttamalla sosiaalista yhteenkuuluvaisuuden tunnetta kaikkialla Suomessa. Vaikka kirjastojen määrä on supistunut, julkiset kirjastot palvelevat 2000-luvulla yhä moninaisempia käyttäjäryhmiä ja käyttötarpeita. Kirjastot ovat muuttaneet kauppakeskuksiin, kyläkeskuksiin ja kulttuuritaloihin, ja niiden tiloihin asettautuu yhä enemmän uusia toimijoita viranomaisista järjestöihin ja taideyhteisöihin.
Vuonna 2017 voimaan astuneen uuden kirjastolain lähtökohtia ovat yhteisöllisyys, moniarvoisuus ja kulttuurinen moninaisuus. Tulevaisuuden kirjasto edistää väestön yhdenvertaisia mahdollisuuksia sivistykseen ja kulttuuriin, tiedon saatavuutta ja käyttöä, lukemiskulttuuria ja monipuolista lukutaitoa, mahdollisuuksia elinikäiseen oppimiseen ja osaamisen kehittämiseen sekä aktiivista kansalaisuutta, demokratiaa ja sananvapautta.
[26_Sello_AV]
[27_Suomen kirjastoverkko_AV]
Kirjoittaja
Anni Vartola, tekniikan tohtori, artikkeli perustuu tekijän tutkimuksiin hänen laatiessaan Venetsian arkkitehtuuribiennaalin 2018 Mind-Building – näyttelykäsikirjoitusta. Näyttely esitteli suomalaista kirjastoarkkitehtuuria ja sen kehittymistä. Vartola on arkkitehtuurin teorian vanhempi yliopistonlehtori Aalto-yliopiston arkkitehtuurin laitoksella.
Artikkeli on julkaistu 2019.
LÄHTEET
Aaltonen, Hanna & Carlson, Joni 1986. Suomalaista kirjastoarkkitehtuuria. Helsinki: Kirjastopalvelu Oy.
Aaltonen, Hanna 2009. Kirjavarastosta olohuoneeksi: yleisten kirjastojen tilojen historiaa. Teoksessa Yleisten kirjastojen historia. Toim. Ilkka Mäkinen. Helsinki: BTJ Kustannus.
Arkkitehtitoimisto Aitoaho & Viljanen 1992: Vihannin kirjasto-kotiseutukeskus. Arkkitehti 6/1992:35-36.
Arkkitehtitoimisto Helin & Siitonen 1992: Joensuun kirjasto. Arkkitehti 6/1992:24-33.
Arkkitehtitoimisto Pia Krogius 2012. Oulun pääkirjaston rakennushistoriaselvitys. OUKA Pääkirjasto RHS kirjastolle.pdf (haettu 6.2.2019).
Berger, Laura 2018. The Building that Disappeared. Espoo: Aalto Arts Books.
Hadley, Chalmers 1910. Why Do We Need a Public Library? Material for a Library Campaign. Chicago: American Library Association Publishing Board. http://www.gutenberg.org/files... (haettu 25.11.2018).
Hirn, Sven 1998. Kansankirjastosta kaupunginkirjastoksi: Helsingin Kaupunginkirjasto 1860–1940. Helsinki: Helsingin kaupunginkirjasto.
EBLIDA – The European Bureau of Library, Information and Documentation Associations 2015. Survey on Public and Academic Libraries. http://www.eblida.org/activiti... (haettu 25.4.2019).
Espoon pääkirjaston yleinen suunnittelukilpailu 1992: Arkkitehtuurikilpailuja 2/1992.
Haapoja, Risto & Tikka, Hannu 1999: Raision kirjasto-auditorio. Arkkitehti 5/1999:44-53.
Huttunen, Hannu 1993: Maaningan kunnantalo. Arkkitehti 1/1993:50-55.
Junnila, Veikko 1977. Kirjastosuunnittelun opas. Helsinki: Martela Oy.
Kahri, Esko 1970: Rakennussuunnittelun tavoitteet 70-luvulla. Arkkitehti 2/1970:37-42.
Kannila, Helle 1966. Kirjastoista kirjoitettua. Kirjoituksia vuosilta 1913–1963. Helsinki: Suomen Kirjastoseura, Otava.
Kanninen, Mauno 1948. Maaseudun kirjastohuoneistot. Helsinki: Suomen Kirjastoseura, Maalaiskuntien Liitto.
Kanninen, Mauno 1953. Uusia kirjastohuoneistoja: Kuvaopas kirjastojen suunnittelijoille. Helsinki: Valtion kirjastotoimisto.
Kansankirjastolaki 131/1928. Suomen asetuskokoelma. https://fi.wikisource.org/wiki/Kansankirjastolaki. Muutokset: https://fi.wikisource.org/wiki...äivänä_1928_annetun_kansankirjastolain_4,_5_ja_8_§:n_muuttamisesta; https://fi.wikisource.org/wiki/Asetus_kansankirjastoista_(1941) (haettu 14.3.2019).
Kekki, Kirsi 2013. Menestystarina nimeltä kirjasto. Helsinki: Avain.
Kirjastolaki 1961. Suomen asetuskokoelma 235/1961. https://fi.wikisource.org/wiki/Kirjastolaki_(1961) (haettu 20.3.2019).
Kirjastolaki 1986. Suomen asetuskokoelma 235/1986. OM, Edita. https://www.finlex.fi/fi/laki/... (haettu 20.5.2019).
Kirjastolaki 1998. Finlex 904/1998. https://www.finlex.fi/fi/laki/... (haettu 20.5.2019).
Kuopion kirjastotalo 1969: Arkkitehti 8/1969:20-25.
Laki yleisistä kirjastoista 29.12.2016/1492. OM, Edita. https://www.finlex.fi/fi/laki/... (haettu 23.1.2018).
Lappo, Osmo: 1971: Avotilakoulu – tulevaisuuden koulu? Arkkitehti 7/1971:27-30.
Leppänen, Kaarlo 1982: Arkkitehdin ongelma. Kirjastolehti 2/1982:526-527.
Mäkinen, Ilkka 2009a. Pitäjänkirjastojen läpimurto. Teoksessa Yleisten kirjastojen historia. Toim. Ilkka Mäkinen. Helsinki: BTJ Kustannus.
Mäkinen, Ilkka 2009b. Kirjasto fennomaanien kansansivistysohjelmassa. Teoksessa Yleisten kirjastojen historia. Toim. Ilkka Mäkinen. Helsinki: BTJ Kustannus.
Mäkinen, Ilkka 2009v. Kirjastot sodassa, sota kirjastoissa. Teoksessa Yleisten kirjastojen historia. Toim. Ilkka Mäkinen. Helsinki: BTJ Kustannus.
Mäkinen, Ilkka 2009d. 1950-luvun perintö. Teoksessa Yleisten kirjastojen historia. Toim. Ilkka Mäkinen. Helsinki: BTJ Kustannus.
Mäkinen, Ilkka 2009e. Yleinen kirjasto hyvinvointiyhteiskunnassa 1960-luvun alusta vuosituhannen vaihteeseen. Teoksessa Yleisten kirjastojen historia. Toim. Ilkka Mäkinen. Helsinki: BTJ Kustannus.
Packalén, Ulla 1986: Kirjasto tänään ja huomenna. Teoksessa Kirjastotilojen suunnittelu. Toim. Eeva-Maija Tammekann. Helsinki: Kirjastopalvelu.
Packalén, Ulla 1992: Yhteinen kirjastomme. Arkkitehti 6/1992:18-23.
Palmgren, Valfrid 1910. Kirjastot ja kansalaiskasvatus. Muistiinpanoja opintomatkalta Pohjois-Amerikan Yhdysvaltoihin. Helsinki: Kansanvalistusseura.
Patomo, Timo 1979: Soidinkuvat: suunnitelma Tampereen kirjastotaloksi. Tampere: lähikuvia ja soidinkuvia vuonna 1979. Toim. Seppo Järvenpää ja työryhmä. Tampere: Tampereen teknillinen korkeakoulu, Arkkitehtuurin osasto, Arkkitehtikilta.
Pietilä, Reima 1983. Rakennusten ja kaupunkikuvien taistelevat metsot. Arkkitehti 3/1983:67-69.
Ranta, Kaarina 1979: Valtion osallistuminen kirjaston rakentamiseen. Kirjastolehti 2/1975:418-422.
Salmio-Toiviainen, Tarja 1958: Näkökohtia kirjaston suunnittelussa ja sisustamisessa. Kirjastolehti 1958/1: 50–53.
Suomen yleisten kirjastojen tilastot 2018. OKM. https://tilastot.kirjastot.fi/ (haettu 29.3.2019).
Sipinen, Arto 1992: Lahden pääkirjasto. Arkkitehti 6/1992:51.
Valtioneuvoston päätös kirjastorakennusten suunnittelun, rakentamisen ja normaalihintojen perusteista 236/1987. OM, Edita. https://www.finlex.fi/fi/laki/... (haettu 23.1.2018).
Vartola, Anni 2011: Liike ja vastaliike: vaikutelmia suomalaisesta postmodernismista. Arkkitehti 6/2011:10-21.
Wacklin, Matti 2011. Kaikkien sielujen apteekki. Tampereen kaupunginkirjasto 150 vuotta. Tampere: Tampereen kaupunginkirjasto – Pirkanmaan maakuntakirjasto.
Väestö 2019. Tilastokeskus. https://www.tilastokeskus.fi/t... (haettu 29.3.2019).
Äyräs, Anneli 1986: Yleisten kirjastojen rakentaminen. Kirjastolehti 2/1986.
Kirjastolle seikkaperäiset suunnitteluohjeet – rakentaminen vauhdittuu 1950-luvulla
Uusien kirjastojen rakentaminen vauhdittui 1950-luvulla. Lukemisesta tuli suosittu harrastus, ja suomenkielisen kirjallisuuden tarjonta lisääntyi. Yleinen koulutus- ja sivistysmyönteisyys kasvoi. Toisen maailmansodan jälkeen syntyi ennätysmäärä lapsia. Etenkin lasten ja nuorten kirjastopalveluihin kiinnitettiin huomiota – toisaalta osana uusien kansa ja oppikoulujen suurta tarvetta, toisaalta osana yleisten kirjastopalvelujen kehittämistä. Kirjastojen haluttiin kilpailevan nuorison suosiosta ja tarjoavan houkuttelevan vaihtoehdon vähemmän suotaville vapaa-ajankäyttömuodoille.
Suunnitteluohjeet tähdensivät tontin valinnan keskeisyyttä, paikkakunnan tarpeiden tuntemista, resurssien järkevää kohdentamista sekä tiivistä yhteistyötä kirjastonhoitajan ja arkkitehdin välillä, jotta kirjaston toiminnallinen suunnittelu onnistuisi. 1950-luvun suunnitteluohjeissa kirjastotilan tärkeimpiä osatekijöitä olivat:
- eri huonetilojen mitoitus ja suhteellinen koko
- sisäisen liikenteen yhteydet
- keskitetyn valvonnan ratkaiseminen
- kirja- ja yleisömäärien mitoitus
- myöhempi laajennettavuus.
Vuonna 1953 julkaistiin suunnitteluopas pienten ja keskikokoisten kirjastojen suunnittelun innoitukseksi. Siinä esiteltiin kirjastotalomalleja uudisrakennuksina ja vanhaan taloon korjattuna, muiden rakennusten kuten kunnan tai terveystalon ja kansakoulun yhteyteen sijoitettuina siipinä sekä kirjastohuoneita liikerakennusten, virastojen, koulujen ja yksityistalojen yhteydessä.
[08_Uusia kirjastohuoneistoja_AV]
Arkkitehtuurilla haluttiin antaa vaatimattomallekin kirjastolle ”vissi mainosarvo, puoleensavetävä luonne”. Se tapahtui luomalla kirjastolle itsenäinen ilme ja eloisat sisätilat esimerkiksi:
- suunnittelemalla kirjaston julkisivut erikoisluonteen mukaisiksi
- antamalla kirjastolle oma, väljä ja tunnistettava, katoksella suojattu sisäänkäynti
- suosimalla käyntiovina leveitä lasiovia umpiovien sijaan, jolloin kävijä näkee kirjaston eri yleisötilat heti eteishallista
- sijoittamalla osa kokoelmista parvelle
laskemalla esimerkiksi luku- tai opintosali muuta lattiatasoa alemmaksi.
Lauritsalan kauppalankirjasto ja Lauttasaaren kirjasto
Säynätsalon kunnantalon yhteyteen rakennettu kunnankirjasto (Alvar Aalto, 1952) lienee kansainvälisesti tunnetuin 1950-luvun kirjasto. Vauraiden teollisuuspaikkakuntien kunnianhimoista kirjastoarkkitehtuuria edustaa myös Lauritsalan kauppalankirjasto (Arkkitehtuuritoimisto Martikainen–Ypyä–Malmio, 1951), joka esiteltiin monissa kirjastoalan julkaisuissa erityisen onnistuneena esimerkkinä.
Kirjaston sisätilat jäsentyvät eri tasoihin ja ovat yhtenäistä avaraa tilaa. Kirjahyllyt on 1950-luvun kirjastoissa sijoitettu kiertämään seiniä; keskialueelle on sommiteltu lukupisteitä sekä kevyempiä ja matalampia kirjahyllyköitä. Luonnonvalo pyritään tuomaan tiloihin epäsuorasti seiniä kiertävien kirjahyllyjen yläpuolelta tai kattovalona. Yleis ja lukuvalaisimet täydentävät tilojen valaistusta.
[09a_Lauritsalan kirjasto_AV]
[09b_Lauritsalan kirjasto_AV]
Esimerkki kaupungin asuinalueelle 1950-luvulla rakennetusta kirjastosta on Lauttasaaren kirjasto Helsingissä (J.S. Sirén, 1955). Se on osa suuren kansakoulun rakennusryhmää, ja kirjasto sisällytettiin suunnitelmiin vasta koulun rakennusvaiheessa. Kirjasto sijaitsi äitiysneuvolan yläkerrassa koulun pihaa rajaavan sivurakennuksen kahdessa ylimmässä kerroksessa. Neuvola-kirjastolla oli kaksiosainen sisäänkäynti; oma ulko-ovi ohjasi kirjastonkäyttäjät suoraan portaikkoon ja toiseen kerrokseen.
[10a_Lauttasaaren kirjasto_AV]
[10b_Lauttasaaren_kirjasto 2_AV]
Kasvun vuodet ¬– 1960-luvulla rakennetaan kunnallisia ja maakunnallisia kirjastoja
Kirjastot jaettiin paikallisiin kirjastoihin ja maakuntakirjastoihin vuodesta 1962 alkaen. Kaksitasoinen hierarkia perustui uuteen kirjastolakiin (235/1961). Valtionapu kohdennettiin maalaiskuntien ja kauppaloiden uusien kirjastorakennusten tai huoneistojen rakentamiseen sekä maakuntakirjastojärjestelmän perustamiseen. Maakuntakirjastoa ylläpitävät kaupungit saivat erillistä valtionapua sekä vuosiavustuksena että kunnan asukasmäärän mukaan.
Lainmuutos kasvatti merkittävästi kirjastotoimen rahoitusta ja vauhditti varsinkin pääkirjastojen rakentamista maakuntakirjasto-oikeudet saaneissa 19 kaupungissa. Maakuntakirjastojen tehtävä oli toimia alueellisina keskuskirjastoina sekä täydentää ja tukea paikallista kirjastoverkkoa. Uusista pääkirjastoista arkkitehtonisesti tunnetuimpia ovat Seinäjoen ja Rovaniemen kaupunginkirjastot (Alvar Aalto, 1965, 1966) sekä Kuopion uusi kirjastotalo (Matti Hakala, yleinen arkkitehtuurikilpailu 1962–63, valm. 1967).
Kuopion kirjastotalo
Kuopion kirjastotalo on näyttävä esimerkki 1960-luvun maakuntakirjastosta. Rakennus sijoitettiin Kuopion keskustaan vanhan museo-kirjastorakennuksen viereen. Se on vedetty sisemmäs tonttia ja irrotettu ympäröivästä kaupunkirakenteesta, joten se on helppo tunnistaa tärkeäksi julkiseksi rakennukseksi. Varsinaiset kirjastotilat ovat rakennuksen toisessa kerroksessa.
Rakennuksessa on teräsbetonirunko ja toisen kerroksen kattoa kannattelevat esijännitetyt teräsbetonipalkit. Rakenteen ansiosta kirjahalli on avara ja yhtenäinen tila: eri toiminnot on rajattu toisistaan puolikorkeilla seinäkkeillä, lasiovet ja väliseinien ylälasit tehostavat tilavaikutelmaa.
Kirjaston käyttöä valvotaan yhdestä keskeisestä asiakaspalvelu ja valvontapisteestä. Kirjasalin keskipiste on pyöreä, kirjahyllyillä tilaan rajautuva ja päätasoa alemmaksi laskettu nuoriso-osasto. Tila saa luonnonvaloa suuren kattoikkunan kautta, suoraan sen alla on sisäsuihkulähde. Kuopion kirjastotaloon valmistui uudenaikainen musiikkiosasto: musiikkia saattoi kuunnella kovaäänisistä erillisessä musiikkihuoneessa ja nuoriso-osastolla myös kuulokkeista.
[11a_Kuopion kirjastotalo 2_AV]
[11b_Kuopion kirjastotalo leikkaus_AV]
[11c_Kuopion kirjastotalo_AV]
Maakuntamittakaavasta lähikirjastoon: esimerkkinä Töölön sivukirjasto
Nopeasti kasvavissa kaupungeissa rakennettiin pääkirjastojen ohella myös lähi- eli sivukirjastoja. Ne haluttiin sijoittaa sinne, missä ihmiset asuvat ja tukea kirjastopalveluilla alueen päiväkotien ja koulujen kulttuurikasvatusta. Kirjasto tarjoaa myös alueen asukkaille luontevan, helposti saavutettavan kohtaamispaikan.
Vapaasti puistossa sijaitseva Töölön sivukirjasto Helsingissä (Aarne Ervi, 1963–1970) on kaupunkikuvallinen kohokohta. Kirjasto erottuu ympäröivästä kaupunkirakenteesta, ja sen korurasiamainen olemus poikkeaa 1960–70-luvun valtavirtaa edustavasta järjestelmäarkkitehtuurista, joka suosi neutraalia ulkoasua ja systemaattisesti toistettavissa olevaa tilarakennetta.
Kuten Ervin suunnittelemassa Turun yliopiston kirjastossa (1954), myös Töölön kirjaston suurista ikkunoista avautuu näkymiä puistoon. Puistoon avautuva parveke ja suojainen, laatoitettu terassi ovat kirjaston asiakkaiden käytössä kesäkaudella. Luonnonvalo lainaussaleissa ja lukusalissa on runsas.
Kirjaston tilat kiertyvät keskeisportaikon ympärille, ja sisätilojen värikkäät yksityiskohdat ja kaarevat linjat tekevät kirjaston tila-arkkitehtuurista eloisan. Lastenosasto on sijoitettu heti pääsisäänkäynnin viereen. Katutason lehtisali omine sisäänkäynteineen mahdollisti muusta kirjastosta poikkeavat aukio-oloajat. Toisessa kerroksessa olevan kaksikerroksisen aikuisten osaston kirjastosalissa on parvi, joka toimii yhdyskäytävänä ja joka alun perin palveli ruotsinkielisen kirjallisuuden osastona. Lasiseinillä erotettu lukusali on Helsingin suurin. Ylimmässä kerroksessa on musiikkiosasto ja oma parveke. Peruskorjauksen jälkeen (Arkkitehdit Mustonen Oy, 2016) ylimpään kerrokseen siirrettiin nuortenosasto sekä rakennettiin uusi tapahtumasali oheistiloineen.
[12a_Töölö 1_AV]
[12b_Töölö lukusali_AV]
[12c_Töölö musa_AV]
[12d_Töölö terassi_AV]
Suurten taajamien kirjastoverkko tiivistyy 1970-luvulla – kirjastosta muunneltava ja laajennettava
Kiihtyvä kaupungistuminen ja kuntaliitokset lisäsivät paineita uudistaa ja tiivistää etenkin suurten taajamien kirjastoverkkoa. Kirjastotoimesta vastaava kouluhallitus valvoi uusien kirjastohankkeiden käynnistämistä ja suunnitelmia, sillä kirjastorakentaminen oli 1970-luvun öljykriisin aiheuttaman taloustaantuman takia tarkkaan säänneltyä ja normitettua. Valtionapu edellytti kaikkien uusien kirjastohankkeiden pääpiirustusten ja työselitysten etukäteistä hyväksyntää. Lisäksi yli 250 m2 suuruisten kirjastorakennusten luonnokset ja rakennustapaselostus tuli tarkastuttaa etukäteen.
Kirjastojen suunnitteluohjeissa alleviivattiin tilojen laajennettavuutta ja muunneltavuutta sekä avoimen kirjastomaiseman ihannetta. Suunnitteluohjeet kannustivat käyttämään moduulimitoitusta ja pyrkimään selkeisiin ja yksinkertaisiin rakenteisiin sekä suuriin ja avariin sisätiloihin, jotta tilamuutokset olisivat joustavasti toteutettavissa. Tilasuunnittelussa tuli pyrkiä ”yleispätevyyteen, selkeyteen, avoimuuteen, keveyteen ja siirreltävyyteen – tiloissa, teknisissä ratkaisuissa, sisustuksessa, jopa yksittäisissä kalusteissa”.
1970-luvun kirjastoilla ei juurikaan nähty olevan julkisen rakennuksen symboliarvoa. Kirjastoista puhuttiin yleisönpalvelulaitoksina , ja arkkitehtuurin ensisijainen tehtävä oli palvella käyttäjän ja yhteiskunnan tarpeita. Rakennustaiteelliset päämäärät koettiin yleisemminkin ajankohdan poliittisessa ilmapiirissä liian yksilökeskeisiksi tai suppean yläluokan arvokäsityksiä vastaaviksi.
[13_Kerava_AV]
Automaatit ja tietokoneet saapuvat kirjastoon
Taloudellisten suhdanteiden, arkkitehtonisten arvojen ja poliittisten painotusten ohella myös tieto- ja viestintätekniikan kehitys vaikutti kirjastojen merkitykseen ja toimintakulttuuriin. Audiovisuaalisista laitteista, lainausautomaateista ja kopiokoneista tuli arkipäivää, ja erilaisille tiedonhaku ja ATK-päätteille tarvittiin tilaa. Kirjastoilta odotettiin aktiivisuutta: kirjastojen tuli esitellä uutta teknologiaa ja opastaa sen käyttöön.
Kaupunkien uusiin lähiöihin tarvittiin samaan aikaan lisää kirjastopalveluita ja yhteisöllisyyttä ruokkivia kokoontumispaikkoja. Pienissä 1970-luvun lähikirjastoissa näkyi pyrkimys olohuonemaiseen kodikkuuteen. Niihin kalustettiin matalien kirjahyllyjen rajaamia saarekkeita ja pehmeitä ja värikkäitä istuskeluryhmiä.
[14_Laajasalo_AV]
1980-luvun vaihteen murros: Oulun pääkirjasto ja Tammisaaren kaupunginkirjasto
Kirjastorakentaminen alkoi elpyä, kun öljykriisin aiheuttama taloudellinen taantuma helpottui. Kustannussäätely ja normiohjaus jatkuivat. Vuoden 1978 valtionosuusuudistus pohjautui uuteen kunnalliseen kantokykyluokkajärjestelmään, ja se nosti etenkin köyhempien kuntien kirjastojen valtionapua ajan kustannustasoon suhteutettuna peräti 73 % suuremmaksi kuin ennen. Kirjastojen asema hyvinvointiyhteiskuntaa tukevina merkkirakennuksina vahvistui, ja niihin suhtauduttiin kunnallisina tietokeskuksina ja yleisinä kohtauspaikkoina.
Oulun keskustan torialueen rantaan valmistunut pääkirjasto (Marjatta ja Martti Jaatinen, asemakaavakilpailu 1962–63, valm. 1981; sisustus Studio Nurmesniemi) on osa monumentaalikeskussommitelmaa. Asemakaavakilpailun tavoite oli antaa Oulun läänin pääkaupungille sen asemaa vastaava imago kaupungintalon, teatterin ja konserttitalon ja niiden väliin jäävän juhla-aukion muodostaman uuden sydämen avulla. Voittanut ehdotus ”Saari” sijoitti rakennusryhmän suorakulmaiselle, veden ympäröimälle tekosaarelle.
Alkuperäisestä monumentaalikeskussuunnitelmasta toteutui vain teatteritalo (1972), sillä konserttitalon tilalle päätettiin rakentaa uusi pääkirjasto–maakuntakirjasto. Sijoittelu antoi kirjastolle merkittävän ja tärkeän kulttuurilaitoksen aseman kaupunkikuvassa. Rakennus on paikallavalettua betonia ja sen julkisivuissa on käytetty alumiinisäleikköä, lasia, metallikasetteja ja mosaiikkibetonia; sisällä lähinnä sileävalettua betonia, mosaiikkibetonilaattaa, alumiinikasetteja, lasia ja puuta.
Kirjaston tilat ovat neljässä kerroksessa, ja kaikilta osastoilta avautuu näkymiä kaupunkiin tai jokisuistoon. Pohjakerroksessa ovat yleisöpalvelutilat ja lehtisali; kahdessa seuraavassa sijaitsevat aikuisten ja lasten osastot, opintosali sekä kokoelma- ja työtiloja; kirjavarasto ja henkilökunnan tilat ovat ylimmässä kerroksessa. Sisätilojen sydän on koko rakennuksen korkuinen keskusaula veistoksellisine betoniportaikkoineen. Alkuperäinen sisustus sovitettiin taidokkaasti tehostamaan rakennuksen ilmavaa tunnelmaa ja auttamaan suuren kirjaston eri osastojen hahmottamista.
[15a_Oulun_sisä_AV]
[15b_Oulu_AV]
Pieni Tammisaaren kaupunginkirjasto (Ola Hansson, 1977) sopeutuu paikkakunnan ominaispiirteisiin ja kaupunkikuvaan. Erkkerit, pieniruutuiset ikkunat ja poimutettu katto myötäilevät pienimittakaavaisen puukaupungin ja kirjastoa ympäröivien rakennusten tyyliä ja pehmentävät rakennusajankohdalle tyypillistä moduuliarkkitehtuuria.
[16_Tammisaari_AV]
1980-luvulla rakennetaan yli 200 uutta kirjastoa
Vuonna 1986 uusittu kirjastolaki ja taloudellisen noususuhdanteen siivittämä uusi valtionapupolitiikka saivat aikaan ennennäkemättömän rakennusbuumin: 1980-luvulla rakennettiin yli 200 uutta kirjastoa.
1980-luku oli myös videoiden, ATK-kurssien, telefaxien, ensimmäisten matkapuhelimien, paikallisradioiden, kulutusjuhlan ja tiivistyvän EU-yhteistyön aikaa. Tietokonevetoinen tulevaisuus pelotti: ”Tuleeko kirjastosta ainoastaan tietojärjestelmän rakennus- ja tallennuspiste, toimisto tai tietotehdas, johon käyttäjät ottavat yhteyden päätteiltään kotoaan? Tarvitsemmeko enää tiedon temppeleitä tai yhteisiä olohuoneita?”
Arkkitehtuurissa kritiikki 1970-luvun anonyymia ”laatikkolinjaa” kohtaan kasvoi. Postmodernismiksi kutsuttu arkkitehtuuriajattelu kannusti arkkitehteja etsimään vaihtoehtoja: Miten ilmaista kirjaston symbolista merkitystä yhteiskunnallisena ja kaupunkikuvallisena arvorakennuksena? Miten paikallisyhteisö ja käyttäjät kokisivat uuden rakennuksen omakseen? Enää ei riittänyt, että kirjastorakennus toimii moitteettomasti kuin kone. Sen arkkitehtuurin tuli kuvastaa kirjastolaitoksen kulttuurista merkitystä ja heijastella paikallisen miljöön piirteitä.
Tampereen pääkirjasto Metso
Yksi keskustelua herättäneistä uusista kirjastohankkeista oli Tampereen pääkirjasto Metso (Reima ja Raili Pietilä, yleinen arkkitehtuurikilpailu 1978, valm. 1986). ”Soidinmenot” kilpailuehdotuksen kaarevat ja veistokselliset muodot ja ylhäältä katsottuna metsoa muistuttava hahmo poikkesivat arkkitehtuurin valtavirrasta.
Reima Pietilä selitti kirjaston yksilöllisen muotokielen johtuvan arkkitehtien halusta antaa kirjastolle ”1980-luvun ajankasvot” ja tehdä kirjastosta maamerkki ja suomalaisen kulttuurin ilmaisija. Pietilä kritisoi vallitsevaa käsitystä tarkastella arkkitehtuuria pelkästään sen käyttöarvon valossa. Hän tähdensi, että Metson arkkitehtuuri pyrki tekemään uuden runollisen tulkinnan rakennuksen ja luonnon yhteydestä. Mikään Metson arkkitehtuurissa ei ollut yleispätevää: kirjaston pienimmätkin yksityiskohdat suunniteltiin Pietilöiden toimistossa.
[17a_Metso piirustuksia_AV]
[17b_Metso pohja_AV]
[17c_Metso tiski_AV]
Postmodernismi näkyy mittakaavassa, väreissä ja monimuotoisuudessa: Kuhmon kirjasto ja Vihannin kirjasto-kotiseutukeskus
Postmodernistista arkkitehtuuriajattelua ilmentävät etenkin Kuhmon kirjasto (Jyrki Tasa, yleinen arkkitehtuurikilpailu 1988) ja Vihannin kirjasto–kotiseutukeskus (Aitoaho & Viljanen, kutsukilpailu 1985, valm. 1992) – monien ns. Oulun koulun pieniin maaseututaajamiin suunnittelemien kirjastojen ohella.
Kuhmon kirjastossa ajan henki näkyy rakennuksen tilallisessa ilottelussa, värikkäissä, leikkisissä ja huomiota herättävissä yksityiskohdissa. Arkkitehtoninen viimeistely ulottuu Pietilöiden Metso-kirjaston tapaan kalusteisiin, valaisimiin ja vetimiin saakka.
[18a_Kuhmo kirjasali_AV]
[18b_Kuhmo lastenosasto_AV]
[18c_Kuhmo pohjapiirros_AV]
[18d_Kuhmo leikkaus_AV]
Vihannin kirjasto-kotiseutukeskus yhdistää paikallista kulttuuriperintöä kunnioittavan punamulta-arkkitehtuurin modernin ajan materiaaleihin ja modernin kirjaston toimintoihin. Pääosin puurakenteinen ja puuverhoiltu rakennus on Oulun koulun ideologian mukaisesti paikalla rakennettu. Kirjasto on osa monitoimitaloa, jossa ovat nuorisotilat, kansalaisopisto, kotiseutuarkisto, kotiseutu- ja kaivosmuseo, yrityspalvelukeskus ja kierrätyskeskus.
[19a_Vihanti_AV]
[19b_Vihanti ulkoa_AV]
Modernismin perinne jatkuu: Helsingin Pasilan pääkirjasto, Lahden kulttuurikeskus-pääkirjasto ja Vallilan sivukirjasto
1980-luvun arkkitehtuurissa esiintyi postmodernismin rinnalla myös modernismin perinteitä jatkavia ja uudistavia pyrkimyksiä. Niitä olivat mm. selkeän ja suorakulmaisen muotokielen käyttäminen, valkoisen värin, puhtaaksivaletun betonin, luonnonkiven, punatiilen ja puupintojen suosiminen sekä ns. ”uusvanhan”, lavastemaiseksi koetun kansanomaisuuden vastustaminen.
Helsingin pääkirjasto Itä-Pasilassa (Kaarlo Leppänen, 1986) on helppo tunnistaa julkiseksi rakennukseksi korkeiden betonielementtitalojen hallitsemasta ympäristöstä. Kirjaston pääsisäänkäynti ja pääjulkisivut sijaitsevat katutasoa ylempänä jalankulkukannella, koska Itä-Pasilassa autoliikenne ja jalankulku on erotettu eri tasoille.
Kirjastossa on muistumia ja lainauksia Alvar Aallon suunnittelemien rakennusten väri- ja materiaalimaailmasta. Julkisivuelementeissä on tummansinistä klinkkeriä ja pääsisäänkäynnin edustan pylväissä on klinkkeripäällystystä muistuttava pintakäsittely. Valkoiset sisätilat ympäröivät kaksikerroksista keskihallia ja sisäsuihkulähdettä. Tiloja valaisee epäsuora luonnonvalo kattoikkunoiden kautta. Sisäsuihkulähteessä on valkoista marmoria, parvella ja pääportaissa messinkiputkikaide, tiililaattapintaiset porrasaskelmat on reunustettu tammilistalla ja parvea kiertää, tammilistalla reunustettu musta laminaattitaso.
[20a_Helsinki pohja 1_AV]
[20b_Helsinki pohja 2_AV]
[20c_Pasilan kirjasto_AV]
[20d_Pasilan kirjasto_AV]
Lahden kulttuurikeskus-pääkirjaston (Arto Sipinen, yleinen arkkitehtuurikilpailu 1983, valm. 1990) ilmava muotokieli korostaa kirjaston arvostettua asemaa kulttuuri-instituutiona. Kirjasto-kulttuurikeskus-yhdistelmät yleistyivät 1980–90 lukujen taitteessa, ja Sipinen suunnitteli niistä monia (Imatran kulttuurikeskus, kutsukilpailu 1981, valm. 1986; Espoon Tapiolan kulttuurikeskus, yleinen arkkitehtuurikilpailu 1980, valm. 1989).
Lahden pääkirjasto on osa kulttuurirakennusten keskittymää yhdessä teatteritalon, taidemuseon ja aikuiskoulutuskeskuksen kanssa. Kirjaston selkeälinjaiset, umpi ja lasipintoihin jakautuvat, valkoiseksi ohutrapatut rakennusmassat on poimutettu niin, että kulttuurirakennusten väliin jää vesialtaiden ja istutusten elävöittämiä toriaukioita.
Aikuisten ja lasten lainausosastot sijaitsevat heti sisääntulon lähettyvillä ensimmäisessä kerroksessa, rauhallisempaa ympäristöä vaativat opiskelutilat ovat toisessa kerroksessa. Sisätilat ovat avointa hallitilaa, jotta myöhempi muunneltavuus olisi helppoa. Vaaleansävyisissä, valoisissa sisätiloissa on Sipisen arkkitehtuurille ominainen ajaton ja neutraali tunnelma.
[21_Lahti_AV]
Vallilan sivukirjasto Helsingissä (Juha Leiviskä ja Asta Björklund, 1990) kiteyttää 1980-luvun kirjastoarkkitehtuurin kehityslinjat. Pieni puurakenteinen ja verhoiltu rakennus on sovitettu tiiviisti rakennetun, suojellun puukaupunginosan mittakaavaan. Päiväkoti ja kirjasto muodostavat rakennusryhmän, joka ympäröi yhteistä puistopihaa. Sisätiloista avautuvat pihanäkymät, sisäkaton korkeusvaihtelut, ja runsas, monista eri suunnista lankeava luonnonvalo antavat juhlavan ja ajattoman tunnelman pikkuruiselle paikalliskirjastolle.
[22a_Vallila_AV]
[22b_Vallila pohjapiirros_AV]
Kirjastorakentaminen kärsii 1990-luvun talouslamasta
Ne kirjastohankkeet, jotka eivät ehtineet toteutua ennen 1990-luvun lamaa, pantiin jäihin. Hankesuunnitelmista ja arkkitehtuurikilpailujen pöytäkirjoista voi lukea uusien kirjastojen arkkitehtuurille asetettuja tavoitteita. Toteutumatta jääneen Espoon kaupunginkirjaston (yleinen arkkitehtuurikilpailu 1991) pöytäkirjassa tähdennetään jatkuvan muutoksen hyväksymistä, kirjaston tilojen joustavuutta ja muunneltavuutta sekä kirjaston tärkeää roolia julkisena rakennuksena. ”Kirjasto ei ole nykyisellään ainoastaan lainaus- ja lukupiste. Se on kohtaamis ja opiskelupaikka ja se tarjoaa myös monipuolisia kulttuurielämyksiä. Myös yleisön oleskelu- ja kahviotilat ovat olennainen osa nykypäivän kirjastoa. Tämä ei kuitenkaan tarkoita sitä, että kirjaston sisätilojen tulisi kilpailla kauppagallerioiden tai puuhamaiden kanssa. Niissä tulee edelleen olla aistittavissa kulttuurirakennuksen pitkä traditio.”
Orastavan tietoyhteiskunnan tarpeet alkoivat näkyä kirjastojen toiminnassa entistä enemmän. Kirjastoihin tuli lainattavaksi harrastevälineitä ja elektronista aineistoa. Tilaohjelmiin ilmaantui entistä enemmän varattavia kokoontumis ja näyttelytiloja. Kirjastoissa oli ”hiljaisuus”-kylttien sijaan ääntä ja elämää.
[23_Joensuu_AV]
[24a_Maaninka_AV]
[24b_Maaninka sisä_AV]
Kirjastoväki tähdensi kirjastojen merkitystä epäkaupallisina julkisina sisätiloina – ”koko kansan” olohuoneena: ”Mahdollisimman monen olisi voitava käyttää kirjastoa, siksi suunnittelun avaintavoitteita ovat kutsuvuus, saavutettavuus, löydettävyys ja helppokäyttöisyys. Kirjasto pyrkii keskelle kylää ja katutasoon!” Vuoden 1998 kirjastolaissa kaikuivat sekä lama-ajan että tietoyhteiskuntamurroksen seuraukset. Lakiteksti korosti yhdenvertaisuuden vaatimuksia ja tunnisti digitaalisen informaation merkityksen painettujen kirjojen ja lehtien rinnalla.
Monet 1990-luvun kirjastoista kärsivät riisutuista tilaohjelmista ja kustannussäästöjen nimissä vaaditusta tehokkuudesta. Kirjastoarkkitehtuuri joutui sopeutumaan vaatimuksiin julkisen rakentamisen muuntojoustavuudesta sekä tasapainoilemaan monien toiminnallisten vaatimusten ja kirjastojen paikallisen, kaupunkikuvallisen ja kulttuurisen merkityksen välillä. Kirjasto nähtiin kaupunkikehityksen välineenä: kirjaston kaltainen kulttuurirakennus oli hyvä keino lisätä hajanaisen taajama alueen vetovoimaisuutta.
Suosittu arkkitehtoninen tehokeino oli kollaasimaisuus: jokainen toiminto sijoitettiin ikään kuin omaan taloonsa, jotka sommiteltiin esimerkiksi sisäkadun ympärille. Rakennukselle luotiin kaksi toisistaan selkeästi erottuvaa suuntaa: ”selkä- ja vatsapuoli”. Raision kirjasto-auditorion (Hannu Tikka, yleinen arkkitehtuurikilpailu 1995, valm. 1999) arkkitehtoninen pääidea perustuu eri muotoisten ja väristen tilakappaleiden muodostamaan kokonaisuuteen: auditorio, kirjastosalit, lehtilukusali ja musiikkiosasto ovat kukin oma osasensa, jotka aulan sisäkatu yhdistää toisiinsa.
[25a_Raisio piha_AV]
[25b_Raisio plaani_AV]
2000-luvun kirjastot palvelevat yhä moninaisempia käyttäjäryhmiä ja tarpeita
Yleiset kirjastot palvelevat käyttäjiään edistämällä informaation saavutettavuutta kaikissa olomuodoissa sekä edesauttamalla sosiaalista yhteenkuuluvaisuuden tunnetta kaikkialla Suomessa. Vaikka kirjastojen määrä on supistunut, julkiset kirjastot palvelevat 2000-luvulla yhä moninaisempia käyttäjäryhmiä ja käyttötarpeita. Kirjastot ovat muuttaneet kauppakeskuksiin, kyläkeskuksiin ja kulttuuritaloihin, ja niiden tiloihin asettautuu yhä enemmän uusia toimijoita viranomaisista järjestöihin ja taideyhteisöihin.
Vuonna 2017 voimaan astuneen uuden kirjastolain lähtökohtia ovat yhteisöllisyys, moniarvoisuus ja kulttuurinen moninaisuus. Tulevaisuuden kirjasto edistää väestön yhdenvertaisia mahdollisuuksia sivistykseen ja kulttuuriin, tiedon saatavuutta ja käyttöä, lukemiskulttuuria ja monipuolista lukutaitoa, mahdollisuuksia elinikäiseen oppimiseen ja osaamisen kehittämiseen sekä aktiivista kansalaisuutta, demokratiaa ja sananvapautta.
[26_Sello_AV]
[27_Suomen kirjastoverkko_AV]
Kirjoittaja
Anni Vartola, tekniikan tohtori, artikkeli perustuu tekijän tutkimuksiin hänen laatiessaan Venetsian arkkitehtuuribiennaalin 2018 Mind-Building – näyttelykäsikirjoitusta. Näyttely esitteli suomalaista kirjastoarkkitehtuuria ja sen kehittymistä. Vartola on arkkitehtuurin teorian vanhempi yliopistonlehtori Aalto-yliopiston arkkitehtuurin laitoksella.
Artikkeli on julkaistu 2019.
LÄHTEET
Aaltonen, Hanna & Carlson, Joni 1986. Suomalaista kirjastoarkkitehtuuria. Helsinki: Kirjastopalvelu Oy.
Aaltonen, Hanna 2009. Kirjavarastosta olohuoneeksi: yleisten kirjastojen tilojen historiaa. Teoksessa Yleisten kirjastojen historia. Toim. Ilkka Mäkinen. Helsinki: BTJ Kustannus.
Arkkitehtitoimisto Aitoaho & Viljanen 1992: Vihannin kirjasto-kotiseutukeskus. Arkkitehti 6/1992:35-36.
Arkkitehtitoimisto Helin & Siitonen 1992: Joensuun kirjasto. Arkkitehti 6/1992:24-33.
Arkkitehtitoimisto Pia Krogius 2012. Oulun pääkirjaston rakennushistoriaselvitys. OUKA Pääkirjasto RHS kirjastolle.pdf (haettu 6.2.2019).
Berger, Laura 2018. The Building that Disappeared. Espoo: Aalto Arts Books.
Hadley, Chalmers 1910. Why Do We Need a Public Library? Material for a Library Campaign. Chicago: American Library Association Publishing Board. http://www.gutenberg.org/files... (haettu 25.11.2018).
Hirn, Sven 1998. Kansankirjastosta kaupunginkirjastoksi: Helsingin Kaupunginkirjasto 1860–1940. Helsinki: Helsingin kaupunginkirjasto.
EBLIDA – The European Bureau of Library, Information and Documentation Associations 2015. Survey on Public and Academic Libraries. http://www.eblida.org/activiti... (haettu 25.4.2019).
Espoon pääkirjaston yleinen suunnittelukilpailu 1992: Arkkitehtuurikilpailuja 2/1992.
Haapoja, Risto & Tikka, Hannu 1999: Raision kirjasto-auditorio. Arkkitehti 5/1999:44-53.
Huttunen, Hannu 1993: Maaningan kunnantalo. Arkkitehti 1/1993:50-55.
Junnila, Veikko 1977. Kirjastosuunnittelun opas. Helsinki: Martela Oy.
Kahri, Esko 1970: Rakennussuunnittelun tavoitteet 70-luvulla. Arkkitehti 2/1970:37-42.
Kannila, Helle 1966. Kirjastoista kirjoitettua. Kirjoituksia vuosilta 1913–1963. Helsinki: Suomen Kirjastoseura, Otava.
Kanninen, Mauno 1948. Maaseudun kirjastohuoneistot. Helsinki: Suomen Kirjastoseura, Maalaiskuntien Liitto.
Kanninen, Mauno 1953. Uusia kirjastohuoneistoja: Kuvaopas kirjastojen suunnittelijoille. Helsinki: Valtion kirjastotoimisto.
Kansankirjastolaki 131/1928. Suomen asetuskokoelma. https://fi.wikisource.org/wiki/Kansankirjastolaki. Muutokset: https://fi.wikisource.org/wiki...äivänä_1928_annetun_kansankirjastolain_4,_5_ja_8_§:n_muuttamisesta; https://fi.wikisource.org/wiki/Asetus_kansankirjastoista_(1941) (haettu 14.3.2019).
Kekki, Kirsi 2013. Menestystarina nimeltä kirjasto. Helsinki: Avain.
Kirjastolaki 1961. Suomen asetuskokoelma 235/1961. https://fi.wikisource.org/wiki/Kirjastolaki_(1961) (haettu 20.3.2019).
Kirjastolaki 1986. Suomen asetuskokoelma 235/1986. OM, Edita. https://www.finlex.fi/fi/laki/... (haettu 20.5.2019).
Kirjastolaki 1998. Finlex 904/1998. https://www.finlex.fi/fi/laki/... (haettu 20.5.2019).
Kuopion kirjastotalo 1969: Arkkitehti 8/1969:20-25.
Laki yleisistä kirjastoista 29.12.2016/1492. OM, Edita. https://www.finlex.fi/fi/laki/... (haettu 23.1.2018).
Lappo, Osmo: 1971: Avotilakoulu – tulevaisuuden koulu? Arkkitehti 7/1971:27-30.
Leppänen, Kaarlo 1982: Arkkitehdin ongelma. Kirjastolehti 2/1982:526-527.
Mäkinen, Ilkka 2009a. Pitäjänkirjastojen läpimurto. Teoksessa Yleisten kirjastojen historia. Toim. Ilkka Mäkinen. Helsinki: BTJ Kustannus.
Mäkinen, Ilkka 2009b. Kirjasto fennomaanien kansansivistysohjelmassa. Teoksessa Yleisten kirjastojen historia. Toim. Ilkka Mäkinen. Helsinki: BTJ Kustannus.
Mäkinen, Ilkka 2009v. Kirjastot sodassa, sota kirjastoissa. Teoksessa Yleisten kirjastojen historia. Toim. Ilkka Mäkinen. Helsinki: BTJ Kustannus.
Mäkinen, Ilkka 2009d. 1950-luvun perintö. Teoksessa Yleisten kirjastojen historia. Toim. Ilkka Mäkinen. Helsinki: BTJ Kustannus.
Mäkinen, Ilkka 2009e. Yleinen kirjasto hyvinvointiyhteiskunnassa 1960-luvun alusta vuosituhannen vaihteeseen. Teoksessa Yleisten kirjastojen historia. Toim. Ilkka Mäkinen. Helsinki: BTJ Kustannus.
Packalén, Ulla 1986: Kirjasto tänään ja huomenna. Teoksessa Kirjastotilojen suunnittelu. Toim. Eeva-Maija Tammekann. Helsinki: Kirjastopalvelu.
Packalén, Ulla 1992: Yhteinen kirjastomme. Arkkitehti 6/1992:18-23.
Palmgren, Valfrid 1910. Kirjastot ja kansalaiskasvatus. Muistiinpanoja opintomatkalta Pohjois-Amerikan Yhdysvaltoihin. Helsinki: Kansanvalistusseura.
Patomo, Timo 1979: Soidinkuvat: suunnitelma Tampereen kirjastotaloksi. Tampere: lähikuvia ja soidinkuvia vuonna 1979. Toim. Seppo Järvenpää ja työryhmä. Tampere: Tampereen teknillinen korkeakoulu, Arkkitehtuurin osasto, Arkkitehtikilta.
Pietilä, Reima 1983. Rakennusten ja kaupunkikuvien taistelevat metsot. Arkkitehti 3/1983:67-69.
Ranta, Kaarina 1979: Valtion osallistuminen kirjaston rakentamiseen. Kirjastolehti 2/1975:418-422.
Salmio-Toiviainen, Tarja 1958: Näkökohtia kirjaston suunnittelussa ja sisustamisessa. Kirjastolehti 1958/1: 50–53.
Suomen yleisten kirjastojen tilastot 2018. OKM. https://tilastot.kirjastot.fi/ (haettu 29.3.2019).
Sipinen, Arto 1992: Lahden pääkirjasto. Arkkitehti 6/1992:51.
Valtioneuvoston päätös kirjastorakennusten suunnittelun, rakentamisen ja normaalihintojen perusteista 236/1987. OM, Edita. https://www.finlex.fi/fi/laki/... (haettu 23.1.2018).
Vartola, Anni 2011: Liike ja vastaliike: vaikutelmia suomalaisesta postmodernismista. Arkkitehti 6/2011:10-21.
Wacklin, Matti 2011. Kaikkien sielujen apteekki. Tampereen kaupunginkirjasto 150 vuotta. Tampere: Tampereen kaupunginkirjasto – Pirkanmaan maakuntakirjasto.
Väestö 2019. Tilastokeskus. https://www.tilastokeskus.fi/t... (haettu 29.3.2019).
Äyräs, Anneli 1986: Yleisten kirjastojen rakentaminen. Kirjastolehti 2/1986.

Arkkitehtuurilla haluttiin antaa vaatimattomallekin kirjastolle ”vissi mainosarvo, puoleensavetävä luonne”. Se tapahtui luomalla kirjastolle itsenäinen ilme ja eloisat sisätilat esimerkiksi:
- suunnittelemalla kirjaston julkisivut erikoisluonteen mukaisiksi
- antamalla kirjastolle oma, väljä ja tunnistettava, katoksella suojattu sisäänkäynti
- suosimalla käyntiovina leveitä lasiovia umpiovien sijaan, jolloin kävijä näkee kirjaston eri yleisötilat heti eteishallista
- sijoittamalla osa kokoelmista parvelle
laskemalla esimerkiksi luku- tai opintosali muuta lattiatasoa alemmaksi.
Lauritsalan kauppalankirjasto ja Lauttasaaren kirjasto
Säynätsalon kunnantalon yhteyteen rakennettu kunnankirjasto (Alvar Aalto, 1952) lienee kansainvälisesti tunnetuin 1950-luvun kirjasto. Vauraiden teollisuuspaikkakuntien kunnianhimoista kirjastoarkkitehtuuria edustaa myös Lauritsalan kauppalankirjasto (Arkkitehtuuritoimisto Martikainen–Ypyä–Malmio, 1951), joka esiteltiin monissa kirjastoalan julkaisuissa erityisen onnistuneena esimerkkinä.
Kirjaston sisätilat jäsentyvät eri tasoihin ja ovat yhtenäistä avaraa tilaa. Kirjahyllyt on 1950-luvun kirjastoissa sijoitettu kiertämään seiniä; keskialueelle on sommiteltu lukupisteitä sekä kevyempiä ja matalampia kirjahyllyköitä. Luonnonvalo pyritään tuomaan tiloihin epäsuorasti seiniä kiertävien kirjahyllyjen yläpuolelta tai kattovalona. Yleis ja lukuvalaisimet täydentävät tilojen valaistusta.
[09a_Lauritsalan kirjasto_AV]
[09b_Lauritsalan kirjasto_AV]
Esimerkki kaupungin asuinalueelle 1950-luvulla rakennetusta kirjastosta on Lauttasaaren kirjasto Helsingissä (J.S. Sirén, 1955). Se on osa suuren kansakoulun rakennusryhmää, ja kirjasto sisällytettiin suunnitelmiin vasta koulun rakennusvaiheessa. Kirjasto sijaitsi äitiysneuvolan yläkerrassa koulun pihaa rajaavan sivurakennuksen kahdessa ylimmässä kerroksessa. Neuvola-kirjastolla oli kaksiosainen sisäänkäynti; oma ulko-ovi ohjasi kirjastonkäyttäjät suoraan portaikkoon ja toiseen kerrokseen.
[10a_Lauttasaaren kirjasto_AV]
[10b_Lauttasaaren_kirjasto 2_AV]
Kasvun vuodet ¬– 1960-luvulla rakennetaan kunnallisia ja maakunnallisia kirjastoja
Kirjastot jaettiin paikallisiin kirjastoihin ja maakuntakirjastoihin vuodesta 1962 alkaen. Kaksitasoinen hierarkia perustui uuteen kirjastolakiin (235/1961). Valtionapu kohdennettiin maalaiskuntien ja kauppaloiden uusien kirjastorakennusten tai huoneistojen rakentamiseen sekä maakuntakirjastojärjestelmän perustamiseen. Maakuntakirjastoa ylläpitävät kaupungit saivat erillistä valtionapua sekä vuosiavustuksena että kunnan asukasmäärän mukaan.
Lainmuutos kasvatti merkittävästi kirjastotoimen rahoitusta ja vauhditti varsinkin pääkirjastojen rakentamista maakuntakirjasto-oikeudet saaneissa 19 kaupungissa. Maakuntakirjastojen tehtävä oli toimia alueellisina keskuskirjastoina sekä täydentää ja tukea paikallista kirjastoverkkoa. Uusista pääkirjastoista arkkitehtonisesti tunnetuimpia ovat Seinäjoen ja Rovaniemen kaupunginkirjastot (Alvar Aalto, 1965, 1966) sekä Kuopion uusi kirjastotalo (Matti Hakala, yleinen arkkitehtuurikilpailu 1962–63, valm. 1967).
Kuopion kirjastotalo
Kuopion kirjastotalo on näyttävä esimerkki 1960-luvun maakuntakirjastosta. Rakennus sijoitettiin Kuopion keskustaan vanhan museo-kirjastorakennuksen viereen. Se on vedetty sisemmäs tonttia ja irrotettu ympäröivästä kaupunkirakenteesta, joten se on helppo tunnistaa tärkeäksi julkiseksi rakennukseksi. Varsinaiset kirjastotilat ovat rakennuksen toisessa kerroksessa.
Rakennuksessa on teräsbetonirunko ja toisen kerroksen kattoa kannattelevat esijännitetyt teräsbetonipalkit. Rakenteen ansiosta kirjahalli on avara ja yhtenäinen tila: eri toiminnot on rajattu toisistaan puolikorkeilla seinäkkeillä, lasiovet ja väliseinien ylälasit tehostavat tilavaikutelmaa.
Kirjaston käyttöä valvotaan yhdestä keskeisestä asiakaspalvelu ja valvontapisteestä. Kirjasalin keskipiste on pyöreä, kirjahyllyillä tilaan rajautuva ja päätasoa alemmaksi laskettu nuoriso-osasto. Tila saa luonnonvaloa suuren kattoikkunan kautta, suoraan sen alla on sisäsuihkulähde. Kuopion kirjastotaloon valmistui uudenaikainen musiikkiosasto: musiikkia saattoi kuunnella kovaäänisistä erillisessä musiikkihuoneessa ja nuoriso-osastolla myös kuulokkeista.
[11a_Kuopion kirjastotalo 2_AV]
[11b_Kuopion kirjastotalo leikkaus_AV]
[11c_Kuopion kirjastotalo_AV]
Maakuntamittakaavasta lähikirjastoon: esimerkkinä Töölön sivukirjasto
Nopeasti kasvavissa kaupungeissa rakennettiin pääkirjastojen ohella myös lähi- eli sivukirjastoja. Ne haluttiin sijoittaa sinne, missä ihmiset asuvat ja tukea kirjastopalveluilla alueen päiväkotien ja koulujen kulttuurikasvatusta. Kirjasto tarjoaa myös alueen asukkaille luontevan, helposti saavutettavan kohtaamispaikan.
Vapaasti puistossa sijaitseva Töölön sivukirjasto Helsingissä (Aarne Ervi, 1963–1970) on kaupunkikuvallinen kohokohta. Kirjasto erottuu ympäröivästä kaupunkirakenteesta, ja sen korurasiamainen olemus poikkeaa 1960–70-luvun valtavirtaa edustavasta järjestelmäarkkitehtuurista, joka suosi neutraalia ulkoasua ja systemaattisesti toistettavissa olevaa tilarakennetta.
Kuten Ervin suunnittelemassa Turun yliopiston kirjastossa (1954), myös Töölön kirjaston suurista ikkunoista avautuu näkymiä puistoon. Puistoon avautuva parveke ja suojainen, laatoitettu terassi ovat kirjaston asiakkaiden käytössä kesäkaudella. Luonnonvalo lainaussaleissa ja lukusalissa on runsas.
Kirjaston tilat kiertyvät keskeisportaikon ympärille, ja sisätilojen värikkäät yksityiskohdat ja kaarevat linjat tekevät kirjaston tila-arkkitehtuurista eloisan. Lastenosasto on sijoitettu heti pääsisäänkäynnin viereen. Katutason lehtisali omine sisäänkäynteineen mahdollisti muusta kirjastosta poikkeavat aukio-oloajat. Toisessa kerroksessa olevan kaksikerroksisen aikuisten osaston kirjastosalissa on parvi, joka toimii yhdyskäytävänä ja joka alun perin palveli ruotsinkielisen kirjallisuuden osastona. Lasiseinillä erotettu lukusali on Helsingin suurin. Ylimmässä kerroksessa on musiikkiosasto ja oma parveke. Peruskorjauksen jälkeen (Arkkitehdit Mustonen Oy, 2016) ylimpään kerrokseen siirrettiin nuortenosasto sekä rakennettiin uusi tapahtumasali oheistiloineen.
[12a_Töölö 1_AV]
[12b_Töölö lukusali_AV]
[12c_Töölö musa_AV]
[12d_Töölö terassi_AV]
Suurten taajamien kirjastoverkko tiivistyy 1970-luvulla – kirjastosta muunneltava ja laajennettava
Kiihtyvä kaupungistuminen ja kuntaliitokset lisäsivät paineita uudistaa ja tiivistää etenkin suurten taajamien kirjastoverkkoa. Kirjastotoimesta vastaava kouluhallitus valvoi uusien kirjastohankkeiden käynnistämistä ja suunnitelmia, sillä kirjastorakentaminen oli 1970-luvun öljykriisin aiheuttaman taloustaantuman takia tarkkaan säänneltyä ja normitettua. Valtionapu edellytti kaikkien uusien kirjastohankkeiden pääpiirustusten ja työselitysten etukäteistä hyväksyntää. Lisäksi yli 250 m2 suuruisten kirjastorakennusten luonnokset ja rakennustapaselostus tuli tarkastuttaa etukäteen.
Kirjastojen suunnitteluohjeissa alleviivattiin tilojen laajennettavuutta ja muunneltavuutta sekä avoimen kirjastomaiseman ihannetta. Suunnitteluohjeet kannustivat käyttämään moduulimitoitusta ja pyrkimään selkeisiin ja yksinkertaisiin rakenteisiin sekä suuriin ja avariin sisätiloihin, jotta tilamuutokset olisivat joustavasti toteutettavissa. Tilasuunnittelussa tuli pyrkiä ”yleispätevyyteen, selkeyteen, avoimuuteen, keveyteen ja siirreltävyyteen – tiloissa, teknisissä ratkaisuissa, sisustuksessa, jopa yksittäisissä kalusteissa”.
1970-luvun kirjastoilla ei juurikaan nähty olevan julkisen rakennuksen symboliarvoa. Kirjastoista puhuttiin yleisönpalvelulaitoksina , ja arkkitehtuurin ensisijainen tehtävä oli palvella käyttäjän ja yhteiskunnan tarpeita. Rakennustaiteelliset päämäärät koettiin yleisemminkin ajankohdan poliittisessa ilmapiirissä liian yksilökeskeisiksi tai suppean yläluokan arvokäsityksiä vastaaviksi.
[13_Kerava_AV]
Automaatit ja tietokoneet saapuvat kirjastoon
Taloudellisten suhdanteiden, arkkitehtonisten arvojen ja poliittisten painotusten ohella myös tieto- ja viestintätekniikan kehitys vaikutti kirjastojen merkitykseen ja toimintakulttuuriin. Audiovisuaalisista laitteista, lainausautomaateista ja kopiokoneista tuli arkipäivää, ja erilaisille tiedonhaku ja ATK-päätteille tarvittiin tilaa. Kirjastoilta odotettiin aktiivisuutta: kirjastojen tuli esitellä uutta teknologiaa ja opastaa sen käyttöön.
Kaupunkien uusiin lähiöihin tarvittiin samaan aikaan lisää kirjastopalveluita ja yhteisöllisyyttä ruokkivia kokoontumispaikkoja. Pienissä 1970-luvun lähikirjastoissa näkyi pyrkimys olohuonemaiseen kodikkuuteen. Niihin kalustettiin matalien kirjahyllyjen rajaamia saarekkeita ja pehmeitä ja värikkäitä istuskeluryhmiä.
[14_Laajasalo_AV]
1980-luvun vaihteen murros: Oulun pääkirjasto ja Tammisaaren kaupunginkirjasto
Kirjastorakentaminen alkoi elpyä, kun öljykriisin aiheuttama taloudellinen taantuma helpottui. Kustannussäätely ja normiohjaus jatkuivat. Vuoden 1978 valtionosuusuudistus pohjautui uuteen kunnalliseen kantokykyluokkajärjestelmään, ja se nosti etenkin köyhempien kuntien kirjastojen valtionapua ajan kustannustasoon suhteutettuna peräti 73 % suuremmaksi kuin ennen. Kirjastojen asema hyvinvointiyhteiskuntaa tukevina merkkirakennuksina vahvistui, ja niihin suhtauduttiin kunnallisina tietokeskuksina ja yleisinä kohtauspaikkoina.
Oulun keskustan torialueen rantaan valmistunut pääkirjasto (Marjatta ja Martti Jaatinen, asemakaavakilpailu 1962–63, valm. 1981; sisustus Studio Nurmesniemi) on osa monumentaalikeskussommitelmaa. Asemakaavakilpailun tavoite oli antaa Oulun läänin pääkaupungille sen asemaa vastaava imago kaupungintalon, teatterin ja konserttitalon ja niiden väliin jäävän juhla-aukion muodostaman uuden sydämen avulla. Voittanut ehdotus ”Saari” sijoitti rakennusryhmän suorakulmaiselle, veden ympäröimälle tekosaarelle.
Alkuperäisestä monumentaalikeskussuunnitelmasta toteutui vain teatteritalo (1972), sillä konserttitalon tilalle päätettiin rakentaa uusi pääkirjasto–maakuntakirjasto. Sijoittelu antoi kirjastolle merkittävän ja tärkeän kulttuurilaitoksen aseman kaupunkikuvassa. Rakennus on paikallavalettua betonia ja sen julkisivuissa on käytetty alumiinisäleikköä, lasia, metallikasetteja ja mosaiikkibetonia; sisällä lähinnä sileävalettua betonia, mosaiikkibetonilaattaa, alumiinikasetteja, lasia ja puuta.
Kirjaston tilat ovat neljässä kerroksessa, ja kaikilta osastoilta avautuu näkymiä kaupunkiin tai jokisuistoon. Pohjakerroksessa ovat yleisöpalvelutilat ja lehtisali; kahdessa seuraavassa sijaitsevat aikuisten ja lasten osastot, opintosali sekä kokoelma- ja työtiloja; kirjavarasto ja henkilökunnan tilat ovat ylimmässä kerroksessa. Sisätilojen sydän on koko rakennuksen korkuinen keskusaula veistoksellisine betoniportaikkoineen. Alkuperäinen sisustus sovitettiin taidokkaasti tehostamaan rakennuksen ilmavaa tunnelmaa ja auttamaan suuren kirjaston eri osastojen hahmottamista.
[15a_Oulun_sisä_AV]
[15b_Oulu_AV]
Pieni Tammisaaren kaupunginkirjasto (Ola Hansson, 1977) sopeutuu paikkakunnan ominaispiirteisiin ja kaupunkikuvaan. Erkkerit, pieniruutuiset ikkunat ja poimutettu katto myötäilevät pienimittakaavaisen puukaupungin ja kirjastoa ympäröivien rakennusten tyyliä ja pehmentävät rakennusajankohdalle tyypillistä moduuliarkkitehtuuria.
[16_Tammisaari_AV]
1980-luvulla rakennetaan yli 200 uutta kirjastoa
Vuonna 1986 uusittu kirjastolaki ja taloudellisen noususuhdanteen siivittämä uusi valtionapupolitiikka saivat aikaan ennennäkemättömän rakennusbuumin: 1980-luvulla rakennettiin yli 200 uutta kirjastoa.
1980-luku oli myös videoiden, ATK-kurssien, telefaxien, ensimmäisten matkapuhelimien, paikallisradioiden, kulutusjuhlan ja tiivistyvän EU-yhteistyön aikaa. Tietokonevetoinen tulevaisuus pelotti: ”Tuleeko kirjastosta ainoastaan tietojärjestelmän rakennus- ja tallennuspiste, toimisto tai tietotehdas, johon käyttäjät ottavat yhteyden päätteiltään kotoaan? Tarvitsemmeko enää tiedon temppeleitä tai yhteisiä olohuoneita?”
Arkkitehtuurissa kritiikki 1970-luvun anonyymia ”laatikkolinjaa” kohtaan kasvoi. Postmodernismiksi kutsuttu arkkitehtuuriajattelu kannusti arkkitehteja etsimään vaihtoehtoja: Miten ilmaista kirjaston symbolista merkitystä yhteiskunnallisena ja kaupunkikuvallisena arvorakennuksena? Miten paikallisyhteisö ja käyttäjät kokisivat uuden rakennuksen omakseen? Enää ei riittänyt, että kirjastorakennus toimii moitteettomasti kuin kone. Sen arkkitehtuurin tuli kuvastaa kirjastolaitoksen kulttuurista merkitystä ja heijastella paikallisen miljöön piirteitä.
Tampereen pääkirjasto Metso
Yksi keskustelua herättäneistä uusista kirjastohankkeista oli Tampereen pääkirjasto Metso (Reima ja Raili Pietilä, yleinen arkkitehtuurikilpailu 1978, valm. 1986). ”Soidinmenot” kilpailuehdotuksen kaarevat ja veistokselliset muodot ja ylhäältä katsottuna metsoa muistuttava hahmo poikkesivat arkkitehtuurin valtavirrasta.
Reima Pietilä selitti kirjaston yksilöllisen muotokielen johtuvan arkkitehtien halusta antaa kirjastolle ”1980-luvun ajankasvot” ja tehdä kirjastosta maamerkki ja suomalaisen kulttuurin ilmaisija. Pietilä kritisoi vallitsevaa käsitystä tarkastella arkkitehtuuria pelkästään sen käyttöarvon valossa. Hän tähdensi, että Metson arkkitehtuuri pyrki tekemään uuden runollisen tulkinnan rakennuksen ja luonnon yhteydestä. Mikään Metson arkkitehtuurissa ei ollut yleispätevää: kirjaston pienimmätkin yksityiskohdat suunniteltiin Pietilöiden toimistossa.
[17a_Metso piirustuksia_AV]
[17b_Metso pohja_AV]
[17c_Metso tiski_AV]
Postmodernismi näkyy mittakaavassa, väreissä ja monimuotoisuudessa: Kuhmon kirjasto ja Vihannin kirjasto-kotiseutukeskus
Postmodernistista arkkitehtuuriajattelua ilmentävät etenkin Kuhmon kirjasto (Jyrki Tasa, yleinen arkkitehtuurikilpailu 1988) ja Vihannin kirjasto–kotiseutukeskus (Aitoaho & Viljanen, kutsukilpailu 1985, valm. 1992) – monien ns. Oulun koulun pieniin maaseututaajamiin suunnittelemien kirjastojen ohella.
Kuhmon kirjastossa ajan henki näkyy rakennuksen tilallisessa ilottelussa, värikkäissä, leikkisissä ja huomiota herättävissä yksityiskohdissa. Arkkitehtoninen viimeistely ulottuu Pietilöiden Metso-kirjaston tapaan kalusteisiin, valaisimiin ja vetimiin saakka.
[18a_Kuhmo kirjasali_AV]
[18b_Kuhmo lastenosasto_AV]
[18c_Kuhmo pohjapiirros_AV]
[18d_Kuhmo leikkaus_AV]
Vihannin kirjasto-kotiseutukeskus yhdistää paikallista kulttuuriperintöä kunnioittavan punamulta-arkkitehtuurin modernin ajan materiaaleihin ja modernin kirjaston toimintoihin. Pääosin puurakenteinen ja puuverhoiltu rakennus on Oulun koulun ideologian mukaisesti paikalla rakennettu. Kirjasto on osa monitoimitaloa, jossa ovat nuorisotilat, kansalaisopisto, kotiseutuarkisto, kotiseutu- ja kaivosmuseo, yrityspalvelukeskus ja kierrätyskeskus.
[19a_Vihanti_AV]
[19b_Vihanti ulkoa_AV]
Modernismin perinne jatkuu: Helsingin Pasilan pääkirjasto, Lahden kulttuurikeskus-pääkirjasto ja Vallilan sivukirjasto
1980-luvun arkkitehtuurissa esiintyi postmodernismin rinnalla myös modernismin perinteitä jatkavia ja uudistavia pyrkimyksiä. Niitä olivat mm. selkeän ja suorakulmaisen muotokielen käyttäminen, valkoisen värin, puhtaaksivaletun betonin, luonnonkiven, punatiilen ja puupintojen suosiminen sekä ns. ”uusvanhan”, lavastemaiseksi koetun kansanomaisuuden vastustaminen.
Helsingin pääkirjasto Itä-Pasilassa (Kaarlo Leppänen, 1986) on helppo tunnistaa julkiseksi rakennukseksi korkeiden betonielementtitalojen hallitsemasta ympäristöstä. Kirjaston pääsisäänkäynti ja pääjulkisivut sijaitsevat katutasoa ylempänä jalankulkukannella, koska Itä-Pasilassa autoliikenne ja jalankulku on erotettu eri tasoille.
Kirjastossa on muistumia ja lainauksia Alvar Aallon suunnittelemien rakennusten väri- ja materiaalimaailmasta. Julkisivuelementeissä on tummansinistä klinkkeriä ja pääsisäänkäynnin edustan pylväissä on klinkkeripäällystystä muistuttava pintakäsittely. Valkoiset sisätilat ympäröivät kaksikerroksista keskihallia ja sisäsuihkulähdettä. Tiloja valaisee epäsuora luonnonvalo kattoikkunoiden kautta. Sisäsuihkulähteessä on valkoista marmoria, parvella ja pääportaissa messinkiputkikaide, tiililaattapintaiset porrasaskelmat on reunustettu tammilistalla ja parvea kiertää, tammilistalla reunustettu musta laminaattitaso.
[20a_Helsinki pohja 1_AV]
[20b_Helsinki pohja 2_AV]
[20c_Pasilan kirjasto_AV]
[20d_Pasilan kirjasto_AV]
Lahden kulttuurikeskus-pääkirjaston (Arto Sipinen, yleinen arkkitehtuurikilpailu 1983, valm. 1990) ilmava muotokieli korostaa kirjaston arvostettua asemaa kulttuuri-instituutiona. Kirjasto-kulttuurikeskus-yhdistelmät yleistyivät 1980–90 lukujen taitteessa, ja Sipinen suunnitteli niistä monia (Imatran kulttuurikeskus, kutsukilpailu 1981, valm. 1986; Espoon Tapiolan kulttuurikeskus, yleinen arkkitehtuurikilpailu 1980, valm. 1989).
Lahden pääkirjasto on osa kulttuurirakennusten keskittymää yhdessä teatteritalon, taidemuseon ja aikuiskoulutuskeskuksen kanssa. Kirjaston selkeälinjaiset, umpi ja lasipintoihin jakautuvat, valkoiseksi ohutrapatut rakennusmassat on poimutettu niin, että kulttuurirakennusten väliin jää vesialtaiden ja istutusten elävöittämiä toriaukioita.
Aikuisten ja lasten lainausosastot sijaitsevat heti sisääntulon lähettyvillä ensimmäisessä kerroksessa, rauhallisempaa ympäristöä vaativat opiskelutilat ovat toisessa kerroksessa. Sisätilat ovat avointa hallitilaa, jotta myöhempi muunneltavuus olisi helppoa. Vaaleansävyisissä, valoisissa sisätiloissa on Sipisen arkkitehtuurille ominainen ajaton ja neutraali tunnelma.
[21_Lahti_AV]
Vallilan sivukirjasto Helsingissä (Juha Leiviskä ja Asta Björklund, 1990) kiteyttää 1980-luvun kirjastoarkkitehtuurin kehityslinjat. Pieni puurakenteinen ja verhoiltu rakennus on sovitettu tiiviisti rakennetun, suojellun puukaupunginosan mittakaavaan. Päiväkoti ja kirjasto muodostavat rakennusryhmän, joka ympäröi yhteistä puistopihaa. Sisätiloista avautuvat pihanäkymät, sisäkaton korkeusvaihtelut, ja runsas, monista eri suunnista lankeava luonnonvalo antavat juhlavan ja ajattoman tunnelman pikkuruiselle paikalliskirjastolle.
[22a_Vallila_AV]
[22b_Vallila pohjapiirros_AV]
Kirjastorakentaminen kärsii 1990-luvun talouslamasta
Ne kirjastohankkeet, jotka eivät ehtineet toteutua ennen 1990-luvun lamaa, pantiin jäihin. Hankesuunnitelmista ja arkkitehtuurikilpailujen pöytäkirjoista voi lukea uusien kirjastojen arkkitehtuurille asetettuja tavoitteita. Toteutumatta jääneen Espoon kaupunginkirjaston (yleinen arkkitehtuurikilpailu 1991) pöytäkirjassa tähdennetään jatkuvan muutoksen hyväksymistä, kirjaston tilojen joustavuutta ja muunneltavuutta sekä kirjaston tärkeää roolia julkisena rakennuksena. ”Kirjasto ei ole nykyisellään ainoastaan lainaus- ja lukupiste. Se on kohtaamis ja opiskelupaikka ja se tarjoaa myös monipuolisia kulttuurielämyksiä. Myös yleisön oleskelu- ja kahviotilat ovat olennainen osa nykypäivän kirjastoa. Tämä ei kuitenkaan tarkoita sitä, että kirjaston sisätilojen tulisi kilpailla kauppagallerioiden tai puuhamaiden kanssa. Niissä tulee edelleen olla aistittavissa kulttuurirakennuksen pitkä traditio.”
Orastavan tietoyhteiskunnan tarpeet alkoivat näkyä kirjastojen toiminnassa entistä enemmän. Kirjastoihin tuli lainattavaksi harrastevälineitä ja elektronista aineistoa. Tilaohjelmiin ilmaantui entistä enemmän varattavia kokoontumis ja näyttelytiloja. Kirjastoissa oli ”hiljaisuus”-kylttien sijaan ääntä ja elämää.
[23_Joensuu_AV]
[24a_Maaninka_AV]
[24b_Maaninka sisä_AV]
Kirjastoväki tähdensi kirjastojen merkitystä epäkaupallisina julkisina sisätiloina – ”koko kansan” olohuoneena: ”Mahdollisimman monen olisi voitava käyttää kirjastoa, siksi suunnittelun avaintavoitteita ovat kutsuvuus, saavutettavuus, löydettävyys ja helppokäyttöisyys. Kirjasto pyrkii keskelle kylää ja katutasoon!” Vuoden 1998 kirjastolaissa kaikuivat sekä lama-ajan että tietoyhteiskuntamurroksen seuraukset. Lakiteksti korosti yhdenvertaisuuden vaatimuksia ja tunnisti digitaalisen informaation merkityksen painettujen kirjojen ja lehtien rinnalla.
Monet 1990-luvun kirjastoista kärsivät riisutuista tilaohjelmista ja kustannussäästöjen nimissä vaaditusta tehokkuudesta. Kirjastoarkkitehtuuri joutui sopeutumaan vaatimuksiin julkisen rakentamisen muuntojoustavuudesta sekä tasapainoilemaan monien toiminnallisten vaatimusten ja kirjastojen paikallisen, kaupunkikuvallisen ja kulttuurisen merkityksen välillä. Kirjasto nähtiin kaupunkikehityksen välineenä: kirjaston kaltainen kulttuurirakennus oli hyvä keino lisätä hajanaisen taajama alueen vetovoimaisuutta.
Suosittu arkkitehtoninen tehokeino oli kollaasimaisuus: jokainen toiminto sijoitettiin ikään kuin omaan taloonsa, jotka sommiteltiin esimerkiksi sisäkadun ympärille. Rakennukselle luotiin kaksi toisistaan selkeästi erottuvaa suuntaa: ”selkä- ja vatsapuoli”. Raision kirjasto-auditorion (Hannu Tikka, yleinen arkkitehtuurikilpailu 1995, valm. 1999) arkkitehtoninen pääidea perustuu eri muotoisten ja väristen tilakappaleiden muodostamaan kokonaisuuteen: auditorio, kirjastosalit, lehtilukusali ja musiikkiosasto ovat kukin oma osasensa, jotka aulan sisäkatu yhdistää toisiinsa.
[25a_Raisio piha_AV]
[25b_Raisio plaani_AV]
2000-luvun kirjastot palvelevat yhä moninaisempia käyttäjäryhmiä ja tarpeita
Yleiset kirjastot palvelevat käyttäjiään edistämällä informaation saavutettavuutta kaikissa olomuodoissa sekä edesauttamalla sosiaalista yhteenkuuluvaisuuden tunnetta kaikkialla Suomessa. Vaikka kirjastojen määrä on supistunut, julkiset kirjastot palvelevat 2000-luvulla yhä moninaisempia käyttäjäryhmiä ja käyttötarpeita. Kirjastot ovat muuttaneet kauppakeskuksiin, kyläkeskuksiin ja kulttuuritaloihin, ja niiden tiloihin asettautuu yhä enemmän uusia toimijoita viranomaisista järjestöihin ja taideyhteisöihin.
Vuonna 2017 voimaan astuneen uuden kirjastolain lähtökohtia ovat yhteisöllisyys, moniarvoisuus ja kulttuurinen moninaisuus. Tulevaisuuden kirjasto edistää väestön yhdenvertaisia mahdollisuuksia sivistykseen ja kulttuuriin, tiedon saatavuutta ja käyttöä, lukemiskulttuuria ja monipuolista lukutaitoa, mahdollisuuksia elinikäiseen oppimiseen ja osaamisen kehittämiseen sekä aktiivista kansalaisuutta, demokratiaa ja sananvapautta.
[26_Sello_AV]
[27_Suomen kirjastoverkko_AV]
Kirjoittaja
Anni Vartola, tekniikan tohtori, artikkeli perustuu tekijän tutkimuksiin hänen laatiessaan Venetsian arkkitehtuuribiennaalin 2018 Mind-Building – näyttelykäsikirjoitusta. Näyttely esitteli suomalaista kirjastoarkkitehtuuria ja sen kehittymistä. Vartola on arkkitehtuurin teorian vanhempi yliopistonlehtori Aalto-yliopiston arkkitehtuurin laitoksella.
Artikkeli on julkaistu 2019.
LÄHTEET
Aaltonen, Hanna & Carlson, Joni 1986. Suomalaista kirjastoarkkitehtuuria. Helsinki: Kirjastopalvelu Oy.
Aaltonen, Hanna 2009. Kirjavarastosta olohuoneeksi: yleisten kirjastojen tilojen historiaa. Teoksessa Yleisten kirjastojen historia. Toim. Ilkka Mäkinen. Helsinki: BTJ Kustannus.
Arkkitehtitoimisto Aitoaho & Viljanen 1992: Vihannin kirjasto-kotiseutukeskus. Arkkitehti 6/1992:35-36.
Arkkitehtitoimisto Helin & Siitonen 1992: Joensuun kirjasto. Arkkitehti 6/1992:24-33.
Arkkitehtitoimisto Pia Krogius 2012. Oulun pääkirjaston rakennushistoriaselvitys. OUKA Pääkirjasto RHS kirjastolle.pdf (haettu 6.2.2019).
Berger, Laura 2018. The Building that Disappeared. Espoo: Aalto Arts Books.
Hadley, Chalmers 1910. Why Do We Need a Public Library? Material for a Library Campaign. Chicago: American Library Association Publishing Board. http://www.gutenberg.org/files... (haettu 25.11.2018).
Hirn, Sven 1998. Kansankirjastosta kaupunginkirjastoksi: Helsingin Kaupunginkirjasto 1860–1940. Helsinki: Helsingin kaupunginkirjasto.
EBLIDA – The European Bureau of Library, Information and Documentation Associations 2015. Survey on Public and Academic Libraries. http://www.eblida.org/activiti... (haettu 25.4.2019).
Espoon pääkirjaston yleinen suunnittelukilpailu 1992: Arkkitehtuurikilpailuja 2/1992.
Haapoja, Risto & Tikka, Hannu 1999: Raision kirjasto-auditorio. Arkkitehti 5/1999:44-53.
Huttunen, Hannu 1993: Maaningan kunnantalo. Arkkitehti 1/1993:50-55.
Junnila, Veikko 1977. Kirjastosuunnittelun opas. Helsinki: Martela Oy.
Kahri, Esko 1970: Rakennussuunnittelun tavoitteet 70-luvulla. Arkkitehti 2/1970:37-42.
Kannila, Helle 1966. Kirjastoista kirjoitettua. Kirjoituksia vuosilta 1913–1963. Helsinki: Suomen Kirjastoseura, Otava.
Kanninen, Mauno 1948. Maaseudun kirjastohuoneistot. Helsinki: Suomen Kirjastoseura, Maalaiskuntien Liitto.
Kanninen, Mauno 1953. Uusia kirjastohuoneistoja: Kuvaopas kirjastojen suunnittelijoille. Helsinki: Valtion kirjastotoimisto.
Kansankirjastolaki 131/1928. Suomen asetuskokoelma. https://fi.wikisource.org/wiki/Kansankirjastolaki. Muutokset: https://fi.wikisource.org/wiki...äivänä_1928_annetun_kansankirjastolain_4,_5_ja_8_§:n_muuttamisesta; https://fi.wikisource.org/wiki/Asetus_kansankirjastoista_(1941) (haettu 14.3.2019).
Kekki, Kirsi 2013. Menestystarina nimeltä kirjasto. Helsinki: Avain.
Kirjastolaki 1961. Suomen asetuskokoelma 235/1961. https://fi.wikisource.org/wiki/Kirjastolaki_(1961) (haettu 20.3.2019).
Kirjastolaki 1986. Suomen asetuskokoelma 235/1986. OM, Edita. https://www.finlex.fi/fi/laki/... (haettu 20.5.2019).
Kirjastolaki 1998. Finlex 904/1998. https://www.finlex.fi/fi/laki/... (haettu 20.5.2019).
Kuopion kirjastotalo 1969: Arkkitehti 8/1969:20-25.
Laki yleisistä kirjastoista 29.12.2016/1492. OM, Edita. https://www.finlex.fi/fi/laki/... (haettu 23.1.2018).
Lappo, Osmo: 1971: Avotilakoulu – tulevaisuuden koulu? Arkkitehti 7/1971:27-30.
Leppänen, Kaarlo 1982: Arkkitehdin ongelma. Kirjastolehti 2/1982:526-527.
Mäkinen, Ilkka 2009a. Pitäjänkirjastojen läpimurto. Teoksessa Yleisten kirjastojen historia. Toim. Ilkka Mäkinen. Helsinki: BTJ Kustannus.
Mäkinen, Ilkka 2009b. Kirjasto fennomaanien kansansivistysohjelmassa. Teoksessa Yleisten kirjastojen historia. Toim. Ilkka Mäkinen. Helsinki: BTJ Kustannus.
Mäkinen, Ilkka 2009v. Kirjastot sodassa, sota kirjastoissa. Teoksessa Yleisten kirjastojen historia. Toim. Ilkka Mäkinen. Helsinki: BTJ Kustannus.
Mäkinen, Ilkka 2009d. 1950-luvun perintö. Teoksessa Yleisten kirjastojen historia. Toim. Ilkka Mäkinen. Helsinki: BTJ Kustannus.
Mäkinen, Ilkka 2009e. Yleinen kirjasto hyvinvointiyhteiskunnassa 1960-luvun alusta vuosituhannen vaihteeseen. Teoksessa Yleisten kirjastojen historia. Toim. Ilkka Mäkinen. Helsinki: BTJ Kustannus.
Packalén, Ulla 1986: Kirjasto tänään ja huomenna. Teoksessa Kirjastotilojen suunnittelu. Toim. Eeva-Maija Tammekann. Helsinki: Kirjastopalvelu.
Packalén, Ulla 1992: Yhteinen kirjastomme. Arkkitehti 6/1992:18-23.
Palmgren, Valfrid 1910. Kirjastot ja kansalaiskasvatus. Muistiinpanoja opintomatkalta Pohjois-Amerikan Yhdysvaltoihin. Helsinki: Kansanvalistusseura.
Patomo, Timo 1979: Soidinkuvat: suunnitelma Tampereen kirjastotaloksi. Tampere: lähikuvia ja soidinkuvia vuonna 1979. Toim. Seppo Järvenpää ja työryhmä. Tampere: Tampereen teknillinen korkeakoulu, Arkkitehtuurin osasto, Arkkitehtikilta.
Pietilä, Reima 1983. Rakennusten ja kaupunkikuvien taistelevat metsot. Arkkitehti 3/1983:67-69.
Ranta, Kaarina 1979: Valtion osallistuminen kirjaston rakentamiseen. Kirjastolehti 2/1975:418-422.
Salmio-Toiviainen, Tarja 1958: Näkökohtia kirjaston suunnittelussa ja sisustamisessa. Kirjastolehti 1958/1: 50–53.
Suomen yleisten kirjastojen tilastot 2018. OKM. https://tilastot.kirjastot.fi/ (haettu 29.3.2019).
Sipinen, Arto 1992: Lahden pääkirjasto. Arkkitehti 6/1992:51.
Valtioneuvoston päätös kirjastorakennusten suunnittelun, rakentamisen ja normaalihintojen perusteista 236/1987. OM, Edita. https://www.finlex.fi/fi/laki/... (haettu 23.1.2018).
Vartola, Anni 2011: Liike ja vastaliike: vaikutelmia suomalaisesta postmodernismista. Arkkitehti 6/2011:10-21.
Wacklin, Matti 2011. Kaikkien sielujen apteekki. Tampereen kaupunginkirjasto 150 vuotta. Tampere: Tampereen kaupunginkirjasto – Pirkanmaan maakuntakirjasto.
Väestö 2019. Tilastokeskus. https://www.tilastokeskus.fi/t... (haettu 29.3.2019).
Äyräs, Anneli 1986: Yleisten kirjastojen rakentaminen. Kirjastolehti 2/1986.
Lauritsalan kauppalankirjasto ja Lauttasaaren kirjasto
Säynätsalon kunnantalon yhteyteen rakennettu kunnankirjasto (Alvar Aalto, 1952) lienee kansainvälisesti tunnetuin 1950-luvun kirjasto. Vauraiden teollisuuspaikkakuntien kunnianhimoista kirjastoarkkitehtuuria edustaa myös Lauritsalan kauppalankirjasto (Arkkitehtuuritoimisto Martikainen–Ypyä–Malmio, 1951), joka esiteltiin monissa kirjastoalan julkaisuissa erityisen onnistuneena esimerkkinä.
Kirjaston sisätilat jäsentyvät eri tasoihin ja ovat yhtenäistä avaraa tilaa. Kirjahyllyt on 1950-luvun kirjastoissa sijoitettu kiertämään seiniä; keskialueelle on sommiteltu lukupisteitä sekä kevyempiä ja matalampia kirjahyllyköitä. Luonnonvalo pyritään tuomaan tiloihin epäsuorasti seiniä kiertävien kirjahyllyjen yläpuolelta tai kattovalona. Yleis ja lukuvalaisimet täydentävät tilojen valaistusta.
[09a_Lauritsalan kirjasto_AV]
[09b_Lauritsalan kirjasto_AV]
Esimerkki kaupungin asuinalueelle 1950-luvulla rakennetusta kirjastosta on Lauttasaaren kirjasto Helsingissä (J.S. Sirén, 1955). Se on osa suuren kansakoulun rakennusryhmää, ja kirjasto sisällytettiin suunnitelmiin vasta koulun rakennusvaiheessa. Kirjasto sijaitsi äitiysneuvolan yläkerrassa koulun pihaa rajaavan sivurakennuksen kahdessa ylimmässä kerroksessa. Neuvola-kirjastolla oli kaksiosainen sisäänkäynti; oma ulko-ovi ohjasi kirjastonkäyttäjät suoraan portaikkoon ja toiseen kerrokseen.
[10a_Lauttasaaren kirjasto_AV]
[10b_Lauttasaaren_kirjasto 2_AV]
Kasvun vuodet ¬– 1960-luvulla rakennetaan kunnallisia ja maakunnallisia kirjastoja
Kirjastot jaettiin paikallisiin kirjastoihin ja maakuntakirjastoihin vuodesta 1962 alkaen. Kaksitasoinen hierarkia perustui uuteen kirjastolakiin (235/1961). Valtionapu kohdennettiin maalaiskuntien ja kauppaloiden uusien kirjastorakennusten tai huoneistojen rakentamiseen sekä maakuntakirjastojärjestelmän perustamiseen. Maakuntakirjastoa ylläpitävät kaupungit saivat erillistä valtionapua sekä vuosiavustuksena että kunnan asukasmäärän mukaan.
Lainmuutos kasvatti merkittävästi kirjastotoimen rahoitusta ja vauhditti varsinkin pääkirjastojen rakentamista maakuntakirjasto-oikeudet saaneissa 19 kaupungissa. Maakuntakirjastojen tehtävä oli toimia alueellisina keskuskirjastoina sekä täydentää ja tukea paikallista kirjastoverkkoa. Uusista pääkirjastoista arkkitehtonisesti tunnetuimpia ovat Seinäjoen ja Rovaniemen kaupunginkirjastot (Alvar Aalto, 1965, 1966) sekä Kuopion uusi kirjastotalo (Matti Hakala, yleinen arkkitehtuurikilpailu 1962–63, valm. 1967).
Kuopion kirjastotalo
Kuopion kirjastotalo on näyttävä esimerkki 1960-luvun maakuntakirjastosta. Rakennus sijoitettiin Kuopion keskustaan vanhan museo-kirjastorakennuksen viereen. Se on vedetty sisemmäs tonttia ja irrotettu ympäröivästä kaupunkirakenteesta, joten se on helppo tunnistaa tärkeäksi julkiseksi rakennukseksi. Varsinaiset kirjastotilat ovat rakennuksen toisessa kerroksessa.
Rakennuksessa on teräsbetonirunko ja toisen kerroksen kattoa kannattelevat esijännitetyt teräsbetonipalkit. Rakenteen ansiosta kirjahalli on avara ja yhtenäinen tila: eri toiminnot on rajattu toisistaan puolikorkeilla seinäkkeillä, lasiovet ja väliseinien ylälasit tehostavat tilavaikutelmaa.
Kirjaston käyttöä valvotaan yhdestä keskeisestä asiakaspalvelu ja valvontapisteestä. Kirjasalin keskipiste on pyöreä, kirjahyllyillä tilaan rajautuva ja päätasoa alemmaksi laskettu nuoriso-osasto. Tila saa luonnonvaloa suuren kattoikkunan kautta, suoraan sen alla on sisäsuihkulähde. Kuopion kirjastotaloon valmistui uudenaikainen musiikkiosasto: musiikkia saattoi kuunnella kovaäänisistä erillisessä musiikkihuoneessa ja nuoriso-osastolla myös kuulokkeista.
[11a_Kuopion kirjastotalo 2_AV]
[11b_Kuopion kirjastotalo leikkaus_AV]
[11c_Kuopion kirjastotalo_AV]
Maakuntamittakaavasta lähikirjastoon: esimerkkinä Töölön sivukirjasto
Nopeasti kasvavissa kaupungeissa rakennettiin pääkirjastojen ohella myös lähi- eli sivukirjastoja. Ne haluttiin sijoittaa sinne, missä ihmiset asuvat ja tukea kirjastopalveluilla alueen päiväkotien ja koulujen kulttuurikasvatusta. Kirjasto tarjoaa myös alueen asukkaille luontevan, helposti saavutettavan kohtaamispaikan.
Vapaasti puistossa sijaitseva Töölön sivukirjasto Helsingissä (Aarne Ervi, 1963–1970) on kaupunkikuvallinen kohokohta. Kirjasto erottuu ympäröivästä kaupunkirakenteesta, ja sen korurasiamainen olemus poikkeaa 1960–70-luvun valtavirtaa edustavasta järjestelmäarkkitehtuurista, joka suosi neutraalia ulkoasua ja systemaattisesti toistettavissa olevaa tilarakennetta.
Kuten Ervin suunnittelemassa Turun yliopiston kirjastossa (1954), myös Töölön kirjaston suurista ikkunoista avautuu näkymiä puistoon. Puistoon avautuva parveke ja suojainen, laatoitettu terassi ovat kirjaston asiakkaiden käytössä kesäkaudella. Luonnonvalo lainaussaleissa ja lukusalissa on runsas.
Kirjaston tilat kiertyvät keskeisportaikon ympärille, ja sisätilojen värikkäät yksityiskohdat ja kaarevat linjat tekevät kirjaston tila-arkkitehtuurista eloisan. Lastenosasto on sijoitettu heti pääsisäänkäynnin viereen. Katutason lehtisali omine sisäänkäynteineen mahdollisti muusta kirjastosta poikkeavat aukio-oloajat. Toisessa kerroksessa olevan kaksikerroksisen aikuisten osaston kirjastosalissa on parvi, joka toimii yhdyskäytävänä ja joka alun perin palveli ruotsinkielisen kirjallisuuden osastona. Lasiseinillä erotettu lukusali on Helsingin suurin. Ylimmässä kerroksessa on musiikkiosasto ja oma parveke. Peruskorjauksen jälkeen (Arkkitehdit Mustonen Oy, 2016) ylimpään kerrokseen siirrettiin nuortenosasto sekä rakennettiin uusi tapahtumasali oheistiloineen.
[12a_Töölö 1_AV]
[12b_Töölö lukusali_AV]
[12c_Töölö musa_AV]
[12d_Töölö terassi_AV]
Suurten taajamien kirjastoverkko tiivistyy 1970-luvulla – kirjastosta muunneltava ja laajennettava
Kiihtyvä kaupungistuminen ja kuntaliitokset lisäsivät paineita uudistaa ja tiivistää etenkin suurten taajamien kirjastoverkkoa. Kirjastotoimesta vastaava kouluhallitus valvoi uusien kirjastohankkeiden käynnistämistä ja suunnitelmia, sillä kirjastorakentaminen oli 1970-luvun öljykriisin aiheuttaman taloustaantuman takia tarkkaan säänneltyä ja normitettua. Valtionapu edellytti kaikkien uusien kirjastohankkeiden pääpiirustusten ja työselitysten etukäteistä hyväksyntää. Lisäksi yli 250 m2 suuruisten kirjastorakennusten luonnokset ja rakennustapaselostus tuli tarkastuttaa etukäteen.
Kirjastojen suunnitteluohjeissa alleviivattiin tilojen laajennettavuutta ja muunneltavuutta sekä avoimen kirjastomaiseman ihannetta. Suunnitteluohjeet kannustivat käyttämään moduulimitoitusta ja pyrkimään selkeisiin ja yksinkertaisiin rakenteisiin sekä suuriin ja avariin sisätiloihin, jotta tilamuutokset olisivat joustavasti toteutettavissa. Tilasuunnittelussa tuli pyrkiä ”yleispätevyyteen, selkeyteen, avoimuuteen, keveyteen ja siirreltävyyteen – tiloissa, teknisissä ratkaisuissa, sisustuksessa, jopa yksittäisissä kalusteissa”.
1970-luvun kirjastoilla ei juurikaan nähty olevan julkisen rakennuksen symboliarvoa. Kirjastoista puhuttiin yleisönpalvelulaitoksina , ja arkkitehtuurin ensisijainen tehtävä oli palvella käyttäjän ja yhteiskunnan tarpeita. Rakennustaiteelliset päämäärät koettiin yleisemminkin ajankohdan poliittisessa ilmapiirissä liian yksilökeskeisiksi tai suppean yläluokan arvokäsityksiä vastaaviksi.
[13_Kerava_AV]
Automaatit ja tietokoneet saapuvat kirjastoon
Taloudellisten suhdanteiden, arkkitehtonisten arvojen ja poliittisten painotusten ohella myös tieto- ja viestintätekniikan kehitys vaikutti kirjastojen merkitykseen ja toimintakulttuuriin. Audiovisuaalisista laitteista, lainausautomaateista ja kopiokoneista tuli arkipäivää, ja erilaisille tiedonhaku ja ATK-päätteille tarvittiin tilaa. Kirjastoilta odotettiin aktiivisuutta: kirjastojen tuli esitellä uutta teknologiaa ja opastaa sen käyttöön.
Kaupunkien uusiin lähiöihin tarvittiin samaan aikaan lisää kirjastopalveluita ja yhteisöllisyyttä ruokkivia kokoontumispaikkoja. Pienissä 1970-luvun lähikirjastoissa näkyi pyrkimys olohuonemaiseen kodikkuuteen. Niihin kalustettiin matalien kirjahyllyjen rajaamia saarekkeita ja pehmeitä ja värikkäitä istuskeluryhmiä.
[14_Laajasalo_AV]
1980-luvun vaihteen murros: Oulun pääkirjasto ja Tammisaaren kaupunginkirjasto
Kirjastorakentaminen alkoi elpyä, kun öljykriisin aiheuttama taloudellinen taantuma helpottui. Kustannussäätely ja normiohjaus jatkuivat. Vuoden 1978 valtionosuusuudistus pohjautui uuteen kunnalliseen kantokykyluokkajärjestelmään, ja se nosti etenkin köyhempien kuntien kirjastojen valtionapua ajan kustannustasoon suhteutettuna peräti 73 % suuremmaksi kuin ennen. Kirjastojen asema hyvinvointiyhteiskuntaa tukevina merkkirakennuksina vahvistui, ja niihin suhtauduttiin kunnallisina tietokeskuksina ja yleisinä kohtauspaikkoina.
Oulun keskustan torialueen rantaan valmistunut pääkirjasto (Marjatta ja Martti Jaatinen, asemakaavakilpailu 1962–63, valm. 1981; sisustus Studio Nurmesniemi) on osa monumentaalikeskussommitelmaa. Asemakaavakilpailun tavoite oli antaa Oulun läänin pääkaupungille sen asemaa vastaava imago kaupungintalon, teatterin ja konserttitalon ja niiden väliin jäävän juhla-aukion muodostaman uuden sydämen avulla. Voittanut ehdotus ”Saari” sijoitti rakennusryhmän suorakulmaiselle, veden ympäröimälle tekosaarelle.
Alkuperäisestä monumentaalikeskussuunnitelmasta toteutui vain teatteritalo (1972), sillä konserttitalon tilalle päätettiin rakentaa uusi pääkirjasto–maakuntakirjasto. Sijoittelu antoi kirjastolle merkittävän ja tärkeän kulttuurilaitoksen aseman kaupunkikuvassa. Rakennus on paikallavalettua betonia ja sen julkisivuissa on käytetty alumiinisäleikköä, lasia, metallikasetteja ja mosaiikkibetonia; sisällä lähinnä sileävalettua betonia, mosaiikkibetonilaattaa, alumiinikasetteja, lasia ja puuta.
Kirjaston tilat ovat neljässä kerroksessa, ja kaikilta osastoilta avautuu näkymiä kaupunkiin tai jokisuistoon. Pohjakerroksessa ovat yleisöpalvelutilat ja lehtisali; kahdessa seuraavassa sijaitsevat aikuisten ja lasten osastot, opintosali sekä kokoelma- ja työtiloja; kirjavarasto ja henkilökunnan tilat ovat ylimmässä kerroksessa. Sisätilojen sydän on koko rakennuksen korkuinen keskusaula veistoksellisine betoniportaikkoineen. Alkuperäinen sisustus sovitettiin taidokkaasti tehostamaan rakennuksen ilmavaa tunnelmaa ja auttamaan suuren kirjaston eri osastojen hahmottamista.
[15a_Oulun_sisä_AV]
[15b_Oulu_AV]
Pieni Tammisaaren kaupunginkirjasto (Ola Hansson, 1977) sopeutuu paikkakunnan ominaispiirteisiin ja kaupunkikuvaan. Erkkerit, pieniruutuiset ikkunat ja poimutettu katto myötäilevät pienimittakaavaisen puukaupungin ja kirjastoa ympäröivien rakennusten tyyliä ja pehmentävät rakennusajankohdalle tyypillistä moduuliarkkitehtuuria.
[16_Tammisaari_AV]
1980-luvulla rakennetaan yli 200 uutta kirjastoa
Vuonna 1986 uusittu kirjastolaki ja taloudellisen noususuhdanteen siivittämä uusi valtionapupolitiikka saivat aikaan ennennäkemättömän rakennusbuumin: 1980-luvulla rakennettiin yli 200 uutta kirjastoa.
1980-luku oli myös videoiden, ATK-kurssien, telefaxien, ensimmäisten matkapuhelimien, paikallisradioiden, kulutusjuhlan ja tiivistyvän EU-yhteistyön aikaa. Tietokonevetoinen tulevaisuus pelotti: ”Tuleeko kirjastosta ainoastaan tietojärjestelmän rakennus- ja tallennuspiste, toimisto tai tietotehdas, johon käyttäjät ottavat yhteyden päätteiltään kotoaan? Tarvitsemmeko enää tiedon temppeleitä tai yhteisiä olohuoneita?”
Arkkitehtuurissa kritiikki 1970-luvun anonyymia ”laatikkolinjaa” kohtaan kasvoi. Postmodernismiksi kutsuttu arkkitehtuuriajattelu kannusti arkkitehteja etsimään vaihtoehtoja: Miten ilmaista kirjaston symbolista merkitystä yhteiskunnallisena ja kaupunkikuvallisena arvorakennuksena? Miten paikallisyhteisö ja käyttäjät kokisivat uuden rakennuksen omakseen? Enää ei riittänyt, että kirjastorakennus toimii moitteettomasti kuin kone. Sen arkkitehtuurin tuli kuvastaa kirjastolaitoksen kulttuurista merkitystä ja heijastella paikallisen miljöön piirteitä.
Tampereen pääkirjasto Metso
Yksi keskustelua herättäneistä uusista kirjastohankkeista oli Tampereen pääkirjasto Metso (Reima ja Raili Pietilä, yleinen arkkitehtuurikilpailu 1978, valm. 1986). ”Soidinmenot” kilpailuehdotuksen kaarevat ja veistokselliset muodot ja ylhäältä katsottuna metsoa muistuttava hahmo poikkesivat arkkitehtuurin valtavirrasta.
Reima Pietilä selitti kirjaston yksilöllisen muotokielen johtuvan arkkitehtien halusta antaa kirjastolle ”1980-luvun ajankasvot” ja tehdä kirjastosta maamerkki ja suomalaisen kulttuurin ilmaisija. Pietilä kritisoi vallitsevaa käsitystä tarkastella arkkitehtuuria pelkästään sen käyttöarvon valossa. Hän tähdensi, että Metson arkkitehtuuri pyrki tekemään uuden runollisen tulkinnan rakennuksen ja luonnon yhteydestä. Mikään Metson arkkitehtuurissa ei ollut yleispätevää: kirjaston pienimmätkin yksityiskohdat suunniteltiin Pietilöiden toimistossa.
[17a_Metso piirustuksia_AV]
[17b_Metso pohja_AV]
[17c_Metso tiski_AV]
Postmodernismi näkyy mittakaavassa, väreissä ja monimuotoisuudessa: Kuhmon kirjasto ja Vihannin kirjasto-kotiseutukeskus
Postmodernistista arkkitehtuuriajattelua ilmentävät etenkin Kuhmon kirjasto (Jyrki Tasa, yleinen arkkitehtuurikilpailu 1988) ja Vihannin kirjasto–kotiseutukeskus (Aitoaho & Viljanen, kutsukilpailu 1985, valm. 1992) – monien ns. Oulun koulun pieniin maaseututaajamiin suunnittelemien kirjastojen ohella.
Kuhmon kirjastossa ajan henki näkyy rakennuksen tilallisessa ilottelussa, värikkäissä, leikkisissä ja huomiota herättävissä yksityiskohdissa. Arkkitehtoninen viimeistely ulottuu Pietilöiden Metso-kirjaston tapaan kalusteisiin, valaisimiin ja vetimiin saakka.
[18a_Kuhmo kirjasali_AV]
[18b_Kuhmo lastenosasto_AV]
[18c_Kuhmo pohjapiirros_AV]
[18d_Kuhmo leikkaus_AV]
Vihannin kirjasto-kotiseutukeskus yhdistää paikallista kulttuuriperintöä kunnioittavan punamulta-arkkitehtuurin modernin ajan materiaaleihin ja modernin kirjaston toimintoihin. Pääosin puurakenteinen ja puuverhoiltu rakennus on Oulun koulun ideologian mukaisesti paikalla rakennettu. Kirjasto on osa monitoimitaloa, jossa ovat nuorisotilat, kansalaisopisto, kotiseutuarkisto, kotiseutu- ja kaivosmuseo, yrityspalvelukeskus ja kierrätyskeskus.
[19a_Vihanti_AV]
[19b_Vihanti ulkoa_AV]
Modernismin perinne jatkuu: Helsingin Pasilan pääkirjasto, Lahden kulttuurikeskus-pääkirjasto ja Vallilan sivukirjasto
1980-luvun arkkitehtuurissa esiintyi postmodernismin rinnalla myös modernismin perinteitä jatkavia ja uudistavia pyrkimyksiä. Niitä olivat mm. selkeän ja suorakulmaisen muotokielen käyttäminen, valkoisen värin, puhtaaksivaletun betonin, luonnonkiven, punatiilen ja puupintojen suosiminen sekä ns. ”uusvanhan”, lavastemaiseksi koetun kansanomaisuuden vastustaminen.
Helsingin pääkirjasto Itä-Pasilassa (Kaarlo Leppänen, 1986) on helppo tunnistaa julkiseksi rakennukseksi korkeiden betonielementtitalojen hallitsemasta ympäristöstä. Kirjaston pääsisäänkäynti ja pääjulkisivut sijaitsevat katutasoa ylempänä jalankulkukannella, koska Itä-Pasilassa autoliikenne ja jalankulku on erotettu eri tasoille.
Kirjastossa on muistumia ja lainauksia Alvar Aallon suunnittelemien rakennusten väri- ja materiaalimaailmasta. Julkisivuelementeissä on tummansinistä klinkkeriä ja pääsisäänkäynnin edustan pylväissä on klinkkeripäällystystä muistuttava pintakäsittely. Valkoiset sisätilat ympäröivät kaksikerroksista keskihallia ja sisäsuihkulähdettä. Tiloja valaisee epäsuora luonnonvalo kattoikkunoiden kautta. Sisäsuihkulähteessä on valkoista marmoria, parvella ja pääportaissa messinkiputkikaide, tiililaattapintaiset porrasaskelmat on reunustettu tammilistalla ja parvea kiertää, tammilistalla reunustettu musta laminaattitaso.
[20a_Helsinki pohja 1_AV]
[20b_Helsinki pohja 2_AV]
[20c_Pasilan kirjasto_AV]
[20d_Pasilan kirjasto_AV]
Lahden kulttuurikeskus-pääkirjaston (Arto Sipinen, yleinen arkkitehtuurikilpailu 1983, valm. 1990) ilmava muotokieli korostaa kirjaston arvostettua asemaa kulttuuri-instituutiona. Kirjasto-kulttuurikeskus-yhdistelmät yleistyivät 1980–90 lukujen taitteessa, ja Sipinen suunnitteli niistä monia (Imatran kulttuurikeskus, kutsukilpailu 1981, valm. 1986; Espoon Tapiolan kulttuurikeskus, yleinen arkkitehtuurikilpailu 1980, valm. 1989).
Lahden pääkirjasto on osa kulttuurirakennusten keskittymää yhdessä teatteritalon, taidemuseon ja aikuiskoulutuskeskuksen kanssa. Kirjaston selkeälinjaiset, umpi ja lasipintoihin jakautuvat, valkoiseksi ohutrapatut rakennusmassat on poimutettu niin, että kulttuurirakennusten väliin jää vesialtaiden ja istutusten elävöittämiä toriaukioita.
Aikuisten ja lasten lainausosastot sijaitsevat heti sisääntulon lähettyvillä ensimmäisessä kerroksessa, rauhallisempaa ympäristöä vaativat opiskelutilat ovat toisessa kerroksessa. Sisätilat ovat avointa hallitilaa, jotta myöhempi muunneltavuus olisi helppoa. Vaaleansävyisissä, valoisissa sisätiloissa on Sipisen arkkitehtuurille ominainen ajaton ja neutraali tunnelma.
[21_Lahti_AV]
Vallilan sivukirjasto Helsingissä (Juha Leiviskä ja Asta Björklund, 1990) kiteyttää 1980-luvun kirjastoarkkitehtuurin kehityslinjat. Pieni puurakenteinen ja verhoiltu rakennus on sovitettu tiiviisti rakennetun, suojellun puukaupunginosan mittakaavaan. Päiväkoti ja kirjasto muodostavat rakennusryhmän, joka ympäröi yhteistä puistopihaa. Sisätiloista avautuvat pihanäkymät, sisäkaton korkeusvaihtelut, ja runsas, monista eri suunnista lankeava luonnonvalo antavat juhlavan ja ajattoman tunnelman pikkuruiselle paikalliskirjastolle.
[22a_Vallila_AV]
[22b_Vallila pohjapiirros_AV]
Kirjastorakentaminen kärsii 1990-luvun talouslamasta
Ne kirjastohankkeet, jotka eivät ehtineet toteutua ennen 1990-luvun lamaa, pantiin jäihin. Hankesuunnitelmista ja arkkitehtuurikilpailujen pöytäkirjoista voi lukea uusien kirjastojen arkkitehtuurille asetettuja tavoitteita. Toteutumatta jääneen Espoon kaupunginkirjaston (yleinen arkkitehtuurikilpailu 1991) pöytäkirjassa tähdennetään jatkuvan muutoksen hyväksymistä, kirjaston tilojen joustavuutta ja muunneltavuutta sekä kirjaston tärkeää roolia julkisena rakennuksena. ”Kirjasto ei ole nykyisellään ainoastaan lainaus- ja lukupiste. Se on kohtaamis ja opiskelupaikka ja se tarjoaa myös monipuolisia kulttuurielämyksiä. Myös yleisön oleskelu- ja kahviotilat ovat olennainen osa nykypäivän kirjastoa. Tämä ei kuitenkaan tarkoita sitä, että kirjaston sisätilojen tulisi kilpailla kauppagallerioiden tai puuhamaiden kanssa. Niissä tulee edelleen olla aistittavissa kulttuurirakennuksen pitkä traditio.”
Orastavan tietoyhteiskunnan tarpeet alkoivat näkyä kirjastojen toiminnassa entistä enemmän. Kirjastoihin tuli lainattavaksi harrastevälineitä ja elektronista aineistoa. Tilaohjelmiin ilmaantui entistä enemmän varattavia kokoontumis ja näyttelytiloja. Kirjastoissa oli ”hiljaisuus”-kylttien sijaan ääntä ja elämää.
[23_Joensuu_AV]
[24a_Maaninka_AV]
[24b_Maaninka sisä_AV]
Kirjastoväki tähdensi kirjastojen merkitystä epäkaupallisina julkisina sisätiloina – ”koko kansan” olohuoneena: ”Mahdollisimman monen olisi voitava käyttää kirjastoa, siksi suunnittelun avaintavoitteita ovat kutsuvuus, saavutettavuus, löydettävyys ja helppokäyttöisyys. Kirjasto pyrkii keskelle kylää ja katutasoon!” Vuoden 1998 kirjastolaissa kaikuivat sekä lama-ajan että tietoyhteiskuntamurroksen seuraukset. Lakiteksti korosti yhdenvertaisuuden vaatimuksia ja tunnisti digitaalisen informaation merkityksen painettujen kirjojen ja lehtien rinnalla.
Monet 1990-luvun kirjastoista kärsivät riisutuista tilaohjelmista ja kustannussäästöjen nimissä vaaditusta tehokkuudesta. Kirjastoarkkitehtuuri joutui sopeutumaan vaatimuksiin julkisen rakentamisen muuntojoustavuudesta sekä tasapainoilemaan monien toiminnallisten vaatimusten ja kirjastojen paikallisen, kaupunkikuvallisen ja kulttuurisen merkityksen välillä. Kirjasto nähtiin kaupunkikehityksen välineenä: kirjaston kaltainen kulttuurirakennus oli hyvä keino lisätä hajanaisen taajama alueen vetovoimaisuutta.
Suosittu arkkitehtoninen tehokeino oli kollaasimaisuus: jokainen toiminto sijoitettiin ikään kuin omaan taloonsa, jotka sommiteltiin esimerkiksi sisäkadun ympärille. Rakennukselle luotiin kaksi toisistaan selkeästi erottuvaa suuntaa: ”selkä- ja vatsapuoli”. Raision kirjasto-auditorion (Hannu Tikka, yleinen arkkitehtuurikilpailu 1995, valm. 1999) arkkitehtoninen pääidea perustuu eri muotoisten ja väristen tilakappaleiden muodostamaan kokonaisuuteen: auditorio, kirjastosalit, lehtilukusali ja musiikkiosasto ovat kukin oma osasensa, jotka aulan sisäkatu yhdistää toisiinsa.
[25a_Raisio piha_AV]
[25b_Raisio plaani_AV]
2000-luvun kirjastot palvelevat yhä moninaisempia käyttäjäryhmiä ja tarpeita
Yleiset kirjastot palvelevat käyttäjiään edistämällä informaation saavutettavuutta kaikissa olomuodoissa sekä edesauttamalla sosiaalista yhteenkuuluvaisuuden tunnetta kaikkialla Suomessa. Vaikka kirjastojen määrä on supistunut, julkiset kirjastot palvelevat 2000-luvulla yhä moninaisempia käyttäjäryhmiä ja käyttötarpeita. Kirjastot ovat muuttaneet kauppakeskuksiin, kyläkeskuksiin ja kulttuuritaloihin, ja niiden tiloihin asettautuu yhä enemmän uusia toimijoita viranomaisista järjestöihin ja taideyhteisöihin.
Vuonna 2017 voimaan astuneen uuden kirjastolain lähtökohtia ovat yhteisöllisyys, moniarvoisuus ja kulttuurinen moninaisuus. Tulevaisuuden kirjasto edistää väestön yhdenvertaisia mahdollisuuksia sivistykseen ja kulttuuriin, tiedon saatavuutta ja käyttöä, lukemiskulttuuria ja monipuolista lukutaitoa, mahdollisuuksia elinikäiseen oppimiseen ja osaamisen kehittämiseen sekä aktiivista kansalaisuutta, demokratiaa ja sananvapautta.
[26_Sello_AV]
[27_Suomen kirjastoverkko_AV]
Kirjoittaja
Anni Vartola, tekniikan tohtori, artikkeli perustuu tekijän tutkimuksiin hänen laatiessaan Venetsian arkkitehtuuribiennaalin 2018 Mind-Building – näyttelykäsikirjoitusta. Näyttely esitteli suomalaista kirjastoarkkitehtuuria ja sen kehittymistä. Vartola on arkkitehtuurin teorian vanhempi yliopistonlehtori Aalto-yliopiston arkkitehtuurin laitoksella.
Artikkeli on julkaistu 2019.
LÄHTEET
Aaltonen, Hanna & Carlson, Joni 1986. Suomalaista kirjastoarkkitehtuuria. Helsinki: Kirjastopalvelu Oy.
Aaltonen, Hanna 2009. Kirjavarastosta olohuoneeksi: yleisten kirjastojen tilojen historiaa. Teoksessa Yleisten kirjastojen historia. Toim. Ilkka Mäkinen. Helsinki: BTJ Kustannus.
Arkkitehtitoimisto Aitoaho & Viljanen 1992: Vihannin kirjasto-kotiseutukeskus. Arkkitehti 6/1992:35-36.
Arkkitehtitoimisto Helin & Siitonen 1992: Joensuun kirjasto. Arkkitehti 6/1992:24-33.
Arkkitehtitoimisto Pia Krogius 2012. Oulun pääkirjaston rakennushistoriaselvitys. OUKA Pääkirjasto RHS kirjastolle.pdf (haettu 6.2.2019).
Berger, Laura 2018. The Building that Disappeared. Espoo: Aalto Arts Books.
Hadley, Chalmers 1910. Why Do We Need a Public Library? Material for a Library Campaign. Chicago: American Library Association Publishing Board. http://www.gutenberg.org/files... (haettu 25.11.2018).
Hirn, Sven 1998. Kansankirjastosta kaupunginkirjastoksi: Helsingin Kaupunginkirjasto 1860–1940. Helsinki: Helsingin kaupunginkirjasto.
EBLIDA – The European Bureau of Library, Information and Documentation Associations 2015. Survey on Public and Academic Libraries. http://www.eblida.org/activiti... (haettu 25.4.2019).
Espoon pääkirjaston yleinen suunnittelukilpailu 1992: Arkkitehtuurikilpailuja 2/1992.
Haapoja, Risto & Tikka, Hannu 1999: Raision kirjasto-auditorio. Arkkitehti 5/1999:44-53.
Huttunen, Hannu 1993: Maaningan kunnantalo. Arkkitehti 1/1993:50-55.
Junnila, Veikko 1977. Kirjastosuunnittelun opas. Helsinki: Martela Oy.
Kahri, Esko 1970: Rakennussuunnittelun tavoitteet 70-luvulla. Arkkitehti 2/1970:37-42.
Kannila, Helle 1966. Kirjastoista kirjoitettua. Kirjoituksia vuosilta 1913–1963. Helsinki: Suomen Kirjastoseura, Otava.
Kanninen, Mauno 1948. Maaseudun kirjastohuoneistot. Helsinki: Suomen Kirjastoseura, Maalaiskuntien Liitto.
Kanninen, Mauno 1953. Uusia kirjastohuoneistoja: Kuvaopas kirjastojen suunnittelijoille. Helsinki: Valtion kirjastotoimisto.
Kansankirjastolaki 131/1928. Suomen asetuskokoelma. https://fi.wikisource.org/wiki/Kansankirjastolaki. Muutokset: https://fi.wikisource.org/wiki...äivänä_1928_annetun_kansankirjastolain_4,_5_ja_8_§:n_muuttamisesta; https://fi.wikisource.org/wiki/Asetus_kansankirjastoista_(1941) (haettu 14.3.2019).
Kekki, Kirsi 2013. Menestystarina nimeltä kirjasto. Helsinki: Avain.
Kirjastolaki 1961. Suomen asetuskokoelma 235/1961. https://fi.wikisource.org/wiki/Kirjastolaki_(1961) (haettu 20.3.2019).
Kirjastolaki 1986. Suomen asetuskokoelma 235/1986. OM, Edita. https://www.finlex.fi/fi/laki/... (haettu 20.5.2019).
Kirjastolaki 1998. Finlex 904/1998. https://www.finlex.fi/fi/laki/... (haettu 20.5.2019).
Kuopion kirjastotalo 1969: Arkkitehti 8/1969:20-25.
Laki yleisistä kirjastoista 29.12.2016/1492. OM, Edita. https://www.finlex.fi/fi/laki/... (haettu 23.1.2018).
Lappo, Osmo: 1971: Avotilakoulu – tulevaisuuden koulu? Arkkitehti 7/1971:27-30.
Leppänen, Kaarlo 1982: Arkkitehdin ongelma. Kirjastolehti 2/1982:526-527.
Mäkinen, Ilkka 2009a. Pitäjänkirjastojen läpimurto. Teoksessa Yleisten kirjastojen historia. Toim. Ilkka Mäkinen. Helsinki: BTJ Kustannus.
Mäkinen, Ilkka 2009b. Kirjasto fennomaanien kansansivistysohjelmassa. Teoksessa Yleisten kirjastojen historia. Toim. Ilkka Mäkinen. Helsinki: BTJ Kustannus.
Mäkinen, Ilkka 2009v. Kirjastot sodassa, sota kirjastoissa. Teoksessa Yleisten kirjastojen historia. Toim. Ilkka Mäkinen. Helsinki: BTJ Kustannus.
Mäkinen, Ilkka 2009d. 1950-luvun perintö. Teoksessa Yleisten kirjastojen historia. Toim. Ilkka Mäkinen. Helsinki: BTJ Kustannus.
Mäkinen, Ilkka 2009e. Yleinen kirjasto hyvinvointiyhteiskunnassa 1960-luvun alusta vuosituhannen vaihteeseen. Teoksessa Yleisten kirjastojen historia. Toim. Ilkka Mäkinen. Helsinki: BTJ Kustannus.
Packalén, Ulla 1986: Kirjasto tänään ja huomenna. Teoksessa Kirjastotilojen suunnittelu. Toim. Eeva-Maija Tammekann. Helsinki: Kirjastopalvelu.
Packalén, Ulla 1992: Yhteinen kirjastomme. Arkkitehti 6/1992:18-23.
Palmgren, Valfrid 1910. Kirjastot ja kansalaiskasvatus. Muistiinpanoja opintomatkalta Pohjois-Amerikan Yhdysvaltoihin. Helsinki: Kansanvalistusseura.
Patomo, Timo 1979: Soidinkuvat: suunnitelma Tampereen kirjastotaloksi. Tampere: lähikuvia ja soidinkuvia vuonna 1979. Toim. Seppo Järvenpää ja työryhmä. Tampere: Tampereen teknillinen korkeakoulu, Arkkitehtuurin osasto, Arkkitehtikilta.
Pietilä, Reima 1983. Rakennusten ja kaupunkikuvien taistelevat metsot. Arkkitehti 3/1983:67-69.
Ranta, Kaarina 1979: Valtion osallistuminen kirjaston rakentamiseen. Kirjastolehti 2/1975:418-422.
Salmio-Toiviainen, Tarja 1958: Näkökohtia kirjaston suunnittelussa ja sisustamisessa. Kirjastolehti 1958/1: 50–53.
Suomen yleisten kirjastojen tilastot 2018. OKM. https://tilastot.kirjastot.fi/ (haettu 29.3.2019).
Sipinen, Arto 1992: Lahden pääkirjasto. Arkkitehti 6/1992:51.
Valtioneuvoston päätös kirjastorakennusten suunnittelun, rakentamisen ja normaalihintojen perusteista 236/1987. OM, Edita. https://www.finlex.fi/fi/laki/... (haettu 23.1.2018).
Vartola, Anni 2011: Liike ja vastaliike: vaikutelmia suomalaisesta postmodernismista. Arkkitehti 6/2011:10-21.
Wacklin, Matti 2011. Kaikkien sielujen apteekki. Tampereen kaupunginkirjasto 150 vuotta. Tampere: Tampereen kaupunginkirjasto – Pirkanmaan maakuntakirjasto.
Väestö 2019. Tilastokeskus. https://www.tilastokeskus.fi/t... (haettu 29.3.2019).
Äyräs, Anneli 1986: Yleisten kirjastojen rakentaminen. Kirjastolehti 2/1986.
_Oik.: Näkymä Lauritsalan kirjaston lainaussaliin (Arkkitehtuuritoimisto Martikainen–Ypyä–Malmio, 1951). Kuva: Kuvapaja, Arkkitehtuurimuseo.
Esimerkki kaupungin asuinalueelle 1950-luvulla rakennetusta kirjastosta on Lauttasaaren kirjasto Helsingissä (J.S. Sirén, 1955). Se on osa suuren kansakoulun rakennusryhmää, ja kirjasto sisällytettiin suunnitelmiin vasta koulun rakennusvaiheessa. Kirjasto sijaitsi äitiysneuvolan yläkerrassa koulun pihaa rajaavan sivurakennuksen kahdessa ylimmässä kerroksessa. Neuvola-kirjastolla oli kaksiosainen sisäänkäynti; oma ulko-ovi ohjasi kirjastonkäyttäjät suoraan portaikkoon ja toiseen kerrokseen.
[10a_Lauttasaaren kirjasto_AV]
[10b_Lauttasaaren_kirjasto 2_AV]
Kasvun vuodet ¬– 1960-luvulla rakennetaan kunnallisia ja maakunnallisia kirjastoja
Kirjastot jaettiin paikallisiin kirjastoihin ja maakuntakirjastoihin vuodesta 1962 alkaen. Kaksitasoinen hierarkia perustui uuteen kirjastolakiin (235/1961). Valtionapu kohdennettiin maalaiskuntien ja kauppaloiden uusien kirjastorakennusten tai huoneistojen rakentamiseen sekä maakuntakirjastojärjestelmän perustamiseen. Maakuntakirjastoa ylläpitävät kaupungit saivat erillistä valtionapua sekä vuosiavustuksena että kunnan asukasmäärän mukaan.
Lainmuutos kasvatti merkittävästi kirjastotoimen rahoitusta ja vauhditti varsinkin pääkirjastojen rakentamista maakuntakirjasto-oikeudet saaneissa 19 kaupungissa. Maakuntakirjastojen tehtävä oli toimia alueellisina keskuskirjastoina sekä täydentää ja tukea paikallista kirjastoverkkoa. Uusista pääkirjastoista arkkitehtonisesti tunnetuimpia ovat Seinäjoen ja Rovaniemen kaupunginkirjastot (Alvar Aalto, 1965, 1966) sekä Kuopion uusi kirjastotalo (Matti Hakala, yleinen arkkitehtuurikilpailu 1962–63, valm. 1967).
Kuopion kirjastotalo
Kuopion kirjastotalo on näyttävä esimerkki 1960-luvun maakuntakirjastosta. Rakennus sijoitettiin Kuopion keskustaan vanhan museo-kirjastorakennuksen viereen. Se on vedetty sisemmäs tonttia ja irrotettu ympäröivästä kaupunkirakenteesta, joten se on helppo tunnistaa tärkeäksi julkiseksi rakennukseksi. Varsinaiset kirjastotilat ovat rakennuksen toisessa kerroksessa.
Rakennuksessa on teräsbetonirunko ja toisen kerroksen kattoa kannattelevat esijännitetyt teräsbetonipalkit. Rakenteen ansiosta kirjahalli on avara ja yhtenäinen tila: eri toiminnot on rajattu toisistaan puolikorkeilla seinäkkeillä, lasiovet ja väliseinien ylälasit tehostavat tilavaikutelmaa.
Kirjaston käyttöä valvotaan yhdestä keskeisestä asiakaspalvelu ja valvontapisteestä. Kirjasalin keskipiste on pyöreä, kirjahyllyillä tilaan rajautuva ja päätasoa alemmaksi laskettu nuoriso-osasto. Tila saa luonnonvaloa suuren kattoikkunan kautta, suoraan sen alla on sisäsuihkulähde. Kuopion kirjastotaloon valmistui uudenaikainen musiikkiosasto: musiikkia saattoi kuunnella kovaäänisistä erillisessä musiikkihuoneessa ja nuoriso-osastolla myös kuulokkeista.
[11a_Kuopion kirjastotalo 2_AV]
[11b_Kuopion kirjastotalo leikkaus_AV]
[11c_Kuopion kirjastotalo_AV]
Maakuntamittakaavasta lähikirjastoon: esimerkkinä Töölön sivukirjasto
Nopeasti kasvavissa kaupungeissa rakennettiin pääkirjastojen ohella myös lähi- eli sivukirjastoja. Ne haluttiin sijoittaa sinne, missä ihmiset asuvat ja tukea kirjastopalveluilla alueen päiväkotien ja koulujen kulttuurikasvatusta. Kirjasto tarjoaa myös alueen asukkaille luontevan, helposti saavutettavan kohtaamispaikan.
Vapaasti puistossa sijaitseva Töölön sivukirjasto Helsingissä (Aarne Ervi, 1963–1970) on kaupunkikuvallinen kohokohta. Kirjasto erottuu ympäröivästä kaupunkirakenteesta, ja sen korurasiamainen olemus poikkeaa 1960–70-luvun valtavirtaa edustavasta järjestelmäarkkitehtuurista, joka suosi neutraalia ulkoasua ja systemaattisesti toistettavissa olevaa tilarakennetta.
Kuten Ervin suunnittelemassa Turun yliopiston kirjastossa (1954), myös Töölön kirjaston suurista ikkunoista avautuu näkymiä puistoon. Puistoon avautuva parveke ja suojainen, laatoitettu terassi ovat kirjaston asiakkaiden käytössä kesäkaudella. Luonnonvalo lainaussaleissa ja lukusalissa on runsas.
Kirjaston tilat kiertyvät keskeisportaikon ympärille, ja sisätilojen värikkäät yksityiskohdat ja kaarevat linjat tekevät kirjaston tila-arkkitehtuurista eloisan. Lastenosasto on sijoitettu heti pääsisäänkäynnin viereen. Katutason lehtisali omine sisäänkäynteineen mahdollisti muusta kirjastosta poikkeavat aukio-oloajat. Toisessa kerroksessa olevan kaksikerroksisen aikuisten osaston kirjastosalissa on parvi, joka toimii yhdyskäytävänä ja joka alun perin palveli ruotsinkielisen kirjallisuuden osastona. Lasiseinillä erotettu lukusali on Helsingin suurin. Ylimmässä kerroksessa on musiikkiosasto ja oma parveke. Peruskorjauksen jälkeen (Arkkitehdit Mustonen Oy, 2016) ylimpään kerrokseen siirrettiin nuortenosasto sekä rakennettiin uusi tapahtumasali oheistiloineen.
[12a_Töölö 1_AV]
[12b_Töölö lukusali_AV]
[12c_Töölö musa_AV]
[12d_Töölö terassi_AV]
Suurten taajamien kirjastoverkko tiivistyy 1970-luvulla – kirjastosta muunneltava ja laajennettava
Kiihtyvä kaupungistuminen ja kuntaliitokset lisäsivät paineita uudistaa ja tiivistää etenkin suurten taajamien kirjastoverkkoa. Kirjastotoimesta vastaava kouluhallitus valvoi uusien kirjastohankkeiden käynnistämistä ja suunnitelmia, sillä kirjastorakentaminen oli 1970-luvun öljykriisin aiheuttaman taloustaantuman takia tarkkaan säänneltyä ja normitettua. Valtionapu edellytti kaikkien uusien kirjastohankkeiden pääpiirustusten ja työselitysten etukäteistä hyväksyntää. Lisäksi yli 250 m2 suuruisten kirjastorakennusten luonnokset ja rakennustapaselostus tuli tarkastuttaa etukäteen.
Kirjastojen suunnitteluohjeissa alleviivattiin tilojen laajennettavuutta ja muunneltavuutta sekä avoimen kirjastomaiseman ihannetta. Suunnitteluohjeet kannustivat käyttämään moduulimitoitusta ja pyrkimään selkeisiin ja yksinkertaisiin rakenteisiin sekä suuriin ja avariin sisätiloihin, jotta tilamuutokset olisivat joustavasti toteutettavissa. Tilasuunnittelussa tuli pyrkiä ”yleispätevyyteen, selkeyteen, avoimuuteen, keveyteen ja siirreltävyyteen – tiloissa, teknisissä ratkaisuissa, sisustuksessa, jopa yksittäisissä kalusteissa”.
1970-luvun kirjastoilla ei juurikaan nähty olevan julkisen rakennuksen symboliarvoa. Kirjastoista puhuttiin yleisönpalvelulaitoksina , ja arkkitehtuurin ensisijainen tehtävä oli palvella käyttäjän ja yhteiskunnan tarpeita. Rakennustaiteelliset päämäärät koettiin yleisemminkin ajankohdan poliittisessa ilmapiirissä liian yksilökeskeisiksi tai suppean yläluokan arvokäsityksiä vastaaviksi.
[13_Kerava_AV]
Automaatit ja tietokoneet saapuvat kirjastoon
Taloudellisten suhdanteiden, arkkitehtonisten arvojen ja poliittisten painotusten ohella myös tieto- ja viestintätekniikan kehitys vaikutti kirjastojen merkitykseen ja toimintakulttuuriin. Audiovisuaalisista laitteista, lainausautomaateista ja kopiokoneista tuli arkipäivää, ja erilaisille tiedonhaku ja ATK-päätteille tarvittiin tilaa. Kirjastoilta odotettiin aktiivisuutta: kirjastojen tuli esitellä uutta teknologiaa ja opastaa sen käyttöön.
Kaupunkien uusiin lähiöihin tarvittiin samaan aikaan lisää kirjastopalveluita ja yhteisöllisyyttä ruokkivia kokoontumispaikkoja. Pienissä 1970-luvun lähikirjastoissa näkyi pyrkimys olohuonemaiseen kodikkuuteen. Niihin kalustettiin matalien kirjahyllyjen rajaamia saarekkeita ja pehmeitä ja värikkäitä istuskeluryhmiä.
[14_Laajasalo_AV]
1980-luvun vaihteen murros: Oulun pääkirjasto ja Tammisaaren kaupunginkirjasto
Kirjastorakentaminen alkoi elpyä, kun öljykriisin aiheuttama taloudellinen taantuma helpottui. Kustannussäätely ja normiohjaus jatkuivat. Vuoden 1978 valtionosuusuudistus pohjautui uuteen kunnalliseen kantokykyluokkajärjestelmään, ja se nosti etenkin köyhempien kuntien kirjastojen valtionapua ajan kustannustasoon suhteutettuna peräti 73 % suuremmaksi kuin ennen. Kirjastojen asema hyvinvointiyhteiskuntaa tukevina merkkirakennuksina vahvistui, ja niihin suhtauduttiin kunnallisina tietokeskuksina ja yleisinä kohtauspaikkoina.
Oulun keskustan torialueen rantaan valmistunut pääkirjasto (Marjatta ja Martti Jaatinen, asemakaavakilpailu 1962–63, valm. 1981; sisustus Studio Nurmesniemi) on osa monumentaalikeskussommitelmaa. Asemakaavakilpailun tavoite oli antaa Oulun läänin pääkaupungille sen asemaa vastaava imago kaupungintalon, teatterin ja konserttitalon ja niiden väliin jäävän juhla-aukion muodostaman uuden sydämen avulla. Voittanut ehdotus ”Saari” sijoitti rakennusryhmän suorakulmaiselle, veden ympäröimälle tekosaarelle.
Alkuperäisestä monumentaalikeskussuunnitelmasta toteutui vain teatteritalo (1972), sillä konserttitalon tilalle päätettiin rakentaa uusi pääkirjasto–maakuntakirjasto. Sijoittelu antoi kirjastolle merkittävän ja tärkeän kulttuurilaitoksen aseman kaupunkikuvassa. Rakennus on paikallavalettua betonia ja sen julkisivuissa on käytetty alumiinisäleikköä, lasia, metallikasetteja ja mosaiikkibetonia; sisällä lähinnä sileävalettua betonia, mosaiikkibetonilaattaa, alumiinikasetteja, lasia ja puuta.
Kirjaston tilat ovat neljässä kerroksessa, ja kaikilta osastoilta avautuu näkymiä kaupunkiin tai jokisuistoon. Pohjakerroksessa ovat yleisöpalvelutilat ja lehtisali; kahdessa seuraavassa sijaitsevat aikuisten ja lasten osastot, opintosali sekä kokoelma- ja työtiloja; kirjavarasto ja henkilökunnan tilat ovat ylimmässä kerroksessa. Sisätilojen sydän on koko rakennuksen korkuinen keskusaula veistoksellisine betoniportaikkoineen. Alkuperäinen sisustus sovitettiin taidokkaasti tehostamaan rakennuksen ilmavaa tunnelmaa ja auttamaan suuren kirjaston eri osastojen hahmottamista.
[15a_Oulun_sisä_AV]
[15b_Oulu_AV]
Pieni Tammisaaren kaupunginkirjasto (Ola Hansson, 1977) sopeutuu paikkakunnan ominaispiirteisiin ja kaupunkikuvaan. Erkkerit, pieniruutuiset ikkunat ja poimutettu katto myötäilevät pienimittakaavaisen puukaupungin ja kirjastoa ympäröivien rakennusten tyyliä ja pehmentävät rakennusajankohdalle tyypillistä moduuliarkkitehtuuria.
[16_Tammisaari_AV]
1980-luvulla rakennetaan yli 200 uutta kirjastoa
Vuonna 1986 uusittu kirjastolaki ja taloudellisen noususuhdanteen siivittämä uusi valtionapupolitiikka saivat aikaan ennennäkemättömän rakennusbuumin: 1980-luvulla rakennettiin yli 200 uutta kirjastoa.
1980-luku oli myös videoiden, ATK-kurssien, telefaxien, ensimmäisten matkapuhelimien, paikallisradioiden, kulutusjuhlan ja tiivistyvän EU-yhteistyön aikaa. Tietokonevetoinen tulevaisuus pelotti: ”Tuleeko kirjastosta ainoastaan tietojärjestelmän rakennus- ja tallennuspiste, toimisto tai tietotehdas, johon käyttäjät ottavat yhteyden päätteiltään kotoaan? Tarvitsemmeko enää tiedon temppeleitä tai yhteisiä olohuoneita?”
Arkkitehtuurissa kritiikki 1970-luvun anonyymia ”laatikkolinjaa” kohtaan kasvoi. Postmodernismiksi kutsuttu arkkitehtuuriajattelu kannusti arkkitehteja etsimään vaihtoehtoja: Miten ilmaista kirjaston symbolista merkitystä yhteiskunnallisena ja kaupunkikuvallisena arvorakennuksena? Miten paikallisyhteisö ja käyttäjät kokisivat uuden rakennuksen omakseen? Enää ei riittänyt, että kirjastorakennus toimii moitteettomasti kuin kone. Sen arkkitehtuurin tuli kuvastaa kirjastolaitoksen kulttuurista merkitystä ja heijastella paikallisen miljöön piirteitä.
Tampereen pääkirjasto Metso
Yksi keskustelua herättäneistä uusista kirjastohankkeista oli Tampereen pääkirjasto Metso (Reima ja Raili Pietilä, yleinen arkkitehtuurikilpailu 1978, valm. 1986). ”Soidinmenot” kilpailuehdotuksen kaarevat ja veistokselliset muodot ja ylhäältä katsottuna metsoa muistuttava hahmo poikkesivat arkkitehtuurin valtavirrasta.
Reima Pietilä selitti kirjaston yksilöllisen muotokielen johtuvan arkkitehtien halusta antaa kirjastolle ”1980-luvun ajankasvot” ja tehdä kirjastosta maamerkki ja suomalaisen kulttuurin ilmaisija. Pietilä kritisoi vallitsevaa käsitystä tarkastella arkkitehtuuria pelkästään sen käyttöarvon valossa. Hän tähdensi, että Metson arkkitehtuuri pyrki tekemään uuden runollisen tulkinnan rakennuksen ja luonnon yhteydestä. Mikään Metson arkkitehtuurissa ei ollut yleispätevää: kirjaston pienimmätkin yksityiskohdat suunniteltiin Pietilöiden toimistossa.
[17a_Metso piirustuksia_AV]
[17b_Metso pohja_AV]
[17c_Metso tiski_AV]
Postmodernismi näkyy mittakaavassa, väreissä ja monimuotoisuudessa: Kuhmon kirjasto ja Vihannin kirjasto-kotiseutukeskus
Postmodernistista arkkitehtuuriajattelua ilmentävät etenkin Kuhmon kirjasto (Jyrki Tasa, yleinen arkkitehtuurikilpailu 1988) ja Vihannin kirjasto–kotiseutukeskus (Aitoaho & Viljanen, kutsukilpailu 1985, valm. 1992) – monien ns. Oulun koulun pieniin maaseututaajamiin suunnittelemien kirjastojen ohella.
Kuhmon kirjastossa ajan henki näkyy rakennuksen tilallisessa ilottelussa, värikkäissä, leikkisissä ja huomiota herättävissä yksityiskohdissa. Arkkitehtoninen viimeistely ulottuu Pietilöiden Metso-kirjaston tapaan kalusteisiin, valaisimiin ja vetimiin saakka.
[18a_Kuhmo kirjasali_AV]
[18b_Kuhmo lastenosasto_AV]
[18c_Kuhmo pohjapiirros_AV]
[18d_Kuhmo leikkaus_AV]
Vihannin kirjasto-kotiseutukeskus yhdistää paikallista kulttuuriperintöä kunnioittavan punamulta-arkkitehtuurin modernin ajan materiaaleihin ja modernin kirjaston toimintoihin. Pääosin puurakenteinen ja puuverhoiltu rakennus on Oulun koulun ideologian mukaisesti paikalla rakennettu. Kirjasto on osa monitoimitaloa, jossa ovat nuorisotilat, kansalaisopisto, kotiseutuarkisto, kotiseutu- ja kaivosmuseo, yrityspalvelukeskus ja kierrätyskeskus.
[19a_Vihanti_AV]
[19b_Vihanti ulkoa_AV]
Modernismin perinne jatkuu: Helsingin Pasilan pääkirjasto, Lahden kulttuurikeskus-pääkirjasto ja Vallilan sivukirjasto
1980-luvun arkkitehtuurissa esiintyi postmodernismin rinnalla myös modernismin perinteitä jatkavia ja uudistavia pyrkimyksiä. Niitä olivat mm. selkeän ja suorakulmaisen muotokielen käyttäminen, valkoisen värin, puhtaaksivaletun betonin, luonnonkiven, punatiilen ja puupintojen suosiminen sekä ns. ”uusvanhan”, lavastemaiseksi koetun kansanomaisuuden vastustaminen.
Helsingin pääkirjasto Itä-Pasilassa (Kaarlo Leppänen, 1986) on helppo tunnistaa julkiseksi rakennukseksi korkeiden betonielementtitalojen hallitsemasta ympäristöstä. Kirjaston pääsisäänkäynti ja pääjulkisivut sijaitsevat katutasoa ylempänä jalankulkukannella, koska Itä-Pasilassa autoliikenne ja jalankulku on erotettu eri tasoille.
Kirjastossa on muistumia ja lainauksia Alvar Aallon suunnittelemien rakennusten väri- ja materiaalimaailmasta. Julkisivuelementeissä on tummansinistä klinkkeriä ja pääsisäänkäynnin edustan pylväissä on klinkkeripäällystystä muistuttava pintakäsittely. Valkoiset sisätilat ympäröivät kaksikerroksista keskihallia ja sisäsuihkulähdettä. Tiloja valaisee epäsuora luonnonvalo kattoikkunoiden kautta. Sisäsuihkulähteessä on valkoista marmoria, parvella ja pääportaissa messinkiputkikaide, tiililaattapintaiset porrasaskelmat on reunustettu tammilistalla ja parvea kiertää, tammilistalla reunustettu musta laminaattitaso.
[20a_Helsinki pohja 1_AV]
[20b_Helsinki pohja 2_AV]
[20c_Pasilan kirjasto_AV]
[20d_Pasilan kirjasto_AV]
Lahden kulttuurikeskus-pääkirjaston (Arto Sipinen, yleinen arkkitehtuurikilpailu 1983, valm. 1990) ilmava muotokieli korostaa kirjaston arvostettua asemaa kulttuuri-instituutiona. Kirjasto-kulttuurikeskus-yhdistelmät yleistyivät 1980–90 lukujen taitteessa, ja Sipinen suunnitteli niistä monia (Imatran kulttuurikeskus, kutsukilpailu 1981, valm. 1986; Espoon Tapiolan kulttuurikeskus, yleinen arkkitehtuurikilpailu 1980, valm. 1989).
Lahden pääkirjasto on osa kulttuurirakennusten keskittymää yhdessä teatteritalon, taidemuseon ja aikuiskoulutuskeskuksen kanssa. Kirjaston selkeälinjaiset, umpi ja lasipintoihin jakautuvat, valkoiseksi ohutrapatut rakennusmassat on poimutettu niin, että kulttuurirakennusten väliin jää vesialtaiden ja istutusten elävöittämiä toriaukioita.
Aikuisten ja lasten lainausosastot sijaitsevat heti sisääntulon lähettyvillä ensimmäisessä kerroksessa, rauhallisempaa ympäristöä vaativat opiskelutilat ovat toisessa kerroksessa. Sisätilat ovat avointa hallitilaa, jotta myöhempi muunneltavuus olisi helppoa. Vaaleansävyisissä, valoisissa sisätiloissa on Sipisen arkkitehtuurille ominainen ajaton ja neutraali tunnelma.
[21_Lahti_AV]
Vallilan sivukirjasto Helsingissä (Juha Leiviskä ja Asta Björklund, 1990) kiteyttää 1980-luvun kirjastoarkkitehtuurin kehityslinjat. Pieni puurakenteinen ja verhoiltu rakennus on sovitettu tiiviisti rakennetun, suojellun puukaupunginosan mittakaavaan. Päiväkoti ja kirjasto muodostavat rakennusryhmän, joka ympäröi yhteistä puistopihaa. Sisätiloista avautuvat pihanäkymät, sisäkaton korkeusvaihtelut, ja runsas, monista eri suunnista lankeava luonnonvalo antavat juhlavan ja ajattoman tunnelman pikkuruiselle paikalliskirjastolle.
[22a_Vallila_AV]
[22b_Vallila pohjapiirros_AV]
Kirjastorakentaminen kärsii 1990-luvun talouslamasta
Ne kirjastohankkeet, jotka eivät ehtineet toteutua ennen 1990-luvun lamaa, pantiin jäihin. Hankesuunnitelmista ja arkkitehtuurikilpailujen pöytäkirjoista voi lukea uusien kirjastojen arkkitehtuurille asetettuja tavoitteita. Toteutumatta jääneen Espoon kaupunginkirjaston (yleinen arkkitehtuurikilpailu 1991) pöytäkirjassa tähdennetään jatkuvan muutoksen hyväksymistä, kirjaston tilojen joustavuutta ja muunneltavuutta sekä kirjaston tärkeää roolia julkisena rakennuksena. ”Kirjasto ei ole nykyisellään ainoastaan lainaus- ja lukupiste. Se on kohtaamis ja opiskelupaikka ja se tarjoaa myös monipuolisia kulttuurielämyksiä. Myös yleisön oleskelu- ja kahviotilat ovat olennainen osa nykypäivän kirjastoa. Tämä ei kuitenkaan tarkoita sitä, että kirjaston sisätilojen tulisi kilpailla kauppagallerioiden tai puuhamaiden kanssa. Niissä tulee edelleen olla aistittavissa kulttuurirakennuksen pitkä traditio.”
Orastavan tietoyhteiskunnan tarpeet alkoivat näkyä kirjastojen toiminnassa entistä enemmän. Kirjastoihin tuli lainattavaksi harrastevälineitä ja elektronista aineistoa. Tilaohjelmiin ilmaantui entistä enemmän varattavia kokoontumis ja näyttelytiloja. Kirjastoissa oli ”hiljaisuus”-kylttien sijaan ääntä ja elämää.
[23_Joensuu_AV]
[24a_Maaninka_AV]
[24b_Maaninka sisä_AV]
Kirjastoväki tähdensi kirjastojen merkitystä epäkaupallisina julkisina sisätiloina – ”koko kansan” olohuoneena: ”Mahdollisimman monen olisi voitava käyttää kirjastoa, siksi suunnittelun avaintavoitteita ovat kutsuvuus, saavutettavuus, löydettävyys ja helppokäyttöisyys. Kirjasto pyrkii keskelle kylää ja katutasoon!” Vuoden 1998 kirjastolaissa kaikuivat sekä lama-ajan että tietoyhteiskuntamurroksen seuraukset. Lakiteksti korosti yhdenvertaisuuden vaatimuksia ja tunnisti digitaalisen informaation merkityksen painettujen kirjojen ja lehtien rinnalla.
Monet 1990-luvun kirjastoista kärsivät riisutuista tilaohjelmista ja kustannussäästöjen nimissä vaaditusta tehokkuudesta. Kirjastoarkkitehtuuri joutui sopeutumaan vaatimuksiin julkisen rakentamisen muuntojoustavuudesta sekä tasapainoilemaan monien toiminnallisten vaatimusten ja kirjastojen paikallisen, kaupunkikuvallisen ja kulttuurisen merkityksen välillä. Kirjasto nähtiin kaupunkikehityksen välineenä: kirjaston kaltainen kulttuurirakennus oli hyvä keino lisätä hajanaisen taajama alueen vetovoimaisuutta.
Suosittu arkkitehtoninen tehokeino oli kollaasimaisuus: jokainen toiminto sijoitettiin ikään kuin omaan taloonsa, jotka sommiteltiin esimerkiksi sisäkadun ympärille. Rakennukselle luotiin kaksi toisistaan selkeästi erottuvaa suuntaa: ”selkä- ja vatsapuoli”. Raision kirjasto-auditorion (Hannu Tikka, yleinen arkkitehtuurikilpailu 1995, valm. 1999) arkkitehtoninen pääidea perustuu eri muotoisten ja väristen tilakappaleiden muodostamaan kokonaisuuteen: auditorio, kirjastosalit, lehtilukusali ja musiikkiosasto ovat kukin oma osasensa, jotka aulan sisäkatu yhdistää toisiinsa.
[25a_Raisio piha_AV]
[25b_Raisio plaani_AV]
2000-luvun kirjastot palvelevat yhä moninaisempia käyttäjäryhmiä ja tarpeita
Yleiset kirjastot palvelevat käyttäjiään edistämällä informaation saavutettavuutta kaikissa olomuodoissa sekä edesauttamalla sosiaalista yhteenkuuluvaisuuden tunnetta kaikkialla Suomessa. Vaikka kirjastojen määrä on supistunut, julkiset kirjastot palvelevat 2000-luvulla yhä moninaisempia käyttäjäryhmiä ja käyttötarpeita. Kirjastot ovat muuttaneet kauppakeskuksiin, kyläkeskuksiin ja kulttuuritaloihin, ja niiden tiloihin asettautuu yhä enemmän uusia toimijoita viranomaisista järjestöihin ja taideyhteisöihin.
Vuonna 2017 voimaan astuneen uuden kirjastolain lähtökohtia ovat yhteisöllisyys, moniarvoisuus ja kulttuurinen moninaisuus. Tulevaisuuden kirjasto edistää väestön yhdenvertaisia mahdollisuuksia sivistykseen ja kulttuuriin, tiedon saatavuutta ja käyttöä, lukemiskulttuuria ja monipuolista lukutaitoa, mahdollisuuksia elinikäiseen oppimiseen ja osaamisen kehittämiseen sekä aktiivista kansalaisuutta, demokratiaa ja sananvapautta.
[26_Sello_AV]
[27_Suomen kirjastoverkko_AV]
Kirjoittaja
Anni Vartola, tekniikan tohtori, artikkeli perustuu tekijän tutkimuksiin hänen laatiessaan Venetsian arkkitehtuuribiennaalin 2018 Mind-Building – näyttelykäsikirjoitusta. Näyttely esitteli suomalaista kirjastoarkkitehtuuria ja sen kehittymistä. Vartola on arkkitehtuurin teorian vanhempi yliopistonlehtori Aalto-yliopiston arkkitehtuurin laitoksella.
Artikkeli on julkaistu 2019.
LÄHTEET
Aaltonen, Hanna & Carlson, Joni 1986. Suomalaista kirjastoarkkitehtuuria. Helsinki: Kirjastopalvelu Oy.
Aaltonen, Hanna 2009. Kirjavarastosta olohuoneeksi: yleisten kirjastojen tilojen historiaa. Teoksessa Yleisten kirjastojen historia. Toim. Ilkka Mäkinen. Helsinki: BTJ Kustannus.
Arkkitehtitoimisto Aitoaho & Viljanen 1992: Vihannin kirjasto-kotiseutukeskus. Arkkitehti 6/1992:35-36.
Arkkitehtitoimisto Helin & Siitonen 1992: Joensuun kirjasto. Arkkitehti 6/1992:24-33.
Arkkitehtitoimisto Pia Krogius 2012. Oulun pääkirjaston rakennushistoriaselvitys. OUKA Pääkirjasto RHS kirjastolle.pdf (haettu 6.2.2019).
Berger, Laura 2018. The Building that Disappeared. Espoo: Aalto Arts Books.
Hadley, Chalmers 1910. Why Do We Need a Public Library? Material for a Library Campaign. Chicago: American Library Association Publishing Board. http://www.gutenberg.org/files... (haettu 25.11.2018).
Hirn, Sven 1998. Kansankirjastosta kaupunginkirjastoksi: Helsingin Kaupunginkirjasto 1860–1940. Helsinki: Helsingin kaupunginkirjasto.
EBLIDA – The European Bureau of Library, Information and Documentation Associations 2015. Survey on Public and Academic Libraries. http://www.eblida.org/activiti... (haettu 25.4.2019).
Espoon pääkirjaston yleinen suunnittelukilpailu 1992: Arkkitehtuurikilpailuja 2/1992.
Haapoja, Risto & Tikka, Hannu 1999: Raision kirjasto-auditorio. Arkkitehti 5/1999:44-53.
Huttunen, Hannu 1993: Maaningan kunnantalo. Arkkitehti 1/1993:50-55.
Junnila, Veikko 1977. Kirjastosuunnittelun opas. Helsinki: Martela Oy.
Kahri, Esko 1970: Rakennussuunnittelun tavoitteet 70-luvulla. Arkkitehti 2/1970:37-42.
Kannila, Helle 1966. Kirjastoista kirjoitettua. Kirjoituksia vuosilta 1913–1963. Helsinki: Suomen Kirjastoseura, Otava.
Kanninen, Mauno 1948. Maaseudun kirjastohuoneistot. Helsinki: Suomen Kirjastoseura, Maalaiskuntien Liitto.
Kanninen, Mauno 1953. Uusia kirjastohuoneistoja: Kuvaopas kirjastojen suunnittelijoille. Helsinki: Valtion kirjastotoimisto.
Kansankirjastolaki 131/1928. Suomen asetuskokoelma. https://fi.wikisource.org/wiki/Kansankirjastolaki. Muutokset: https://fi.wikisource.org/wiki...äivänä_1928_annetun_kansankirjastolain_4,_5_ja_8_§:n_muuttamisesta; https://fi.wikisource.org/wiki/Asetus_kansankirjastoista_(1941) (haettu 14.3.2019).
Kekki, Kirsi 2013. Menestystarina nimeltä kirjasto. Helsinki: Avain.
Kirjastolaki 1961. Suomen asetuskokoelma 235/1961. https://fi.wikisource.org/wiki/Kirjastolaki_(1961) (haettu 20.3.2019).
Kirjastolaki 1986. Suomen asetuskokoelma 235/1986. OM, Edita. https://www.finlex.fi/fi/laki/... (haettu 20.5.2019).
Kirjastolaki 1998. Finlex 904/1998. https://www.finlex.fi/fi/laki/... (haettu 20.5.2019).
Kuopion kirjastotalo 1969: Arkkitehti 8/1969:20-25.
Laki yleisistä kirjastoista 29.12.2016/1492. OM, Edita. https://www.finlex.fi/fi/laki/... (haettu 23.1.2018).
Lappo, Osmo: 1971: Avotilakoulu – tulevaisuuden koulu? Arkkitehti 7/1971:27-30.
Leppänen, Kaarlo 1982: Arkkitehdin ongelma. Kirjastolehti 2/1982:526-527.
Mäkinen, Ilkka 2009a. Pitäjänkirjastojen läpimurto. Teoksessa Yleisten kirjastojen historia. Toim. Ilkka Mäkinen. Helsinki: BTJ Kustannus.
Mäkinen, Ilkka 2009b. Kirjasto fennomaanien kansansivistysohjelmassa. Teoksessa Yleisten kirjastojen historia. Toim. Ilkka Mäkinen. Helsinki: BTJ Kustannus.
Mäkinen, Ilkka 2009v. Kirjastot sodassa, sota kirjastoissa. Teoksessa Yleisten kirjastojen historia. Toim. Ilkka Mäkinen. Helsinki: BTJ Kustannus.
Mäkinen, Ilkka 2009d. 1950-luvun perintö. Teoksessa Yleisten kirjastojen historia. Toim. Ilkka Mäkinen. Helsinki: BTJ Kustannus.
Mäkinen, Ilkka 2009e. Yleinen kirjasto hyvinvointiyhteiskunnassa 1960-luvun alusta vuosituhannen vaihteeseen. Teoksessa Yleisten kirjastojen historia. Toim. Ilkka Mäkinen. Helsinki: BTJ Kustannus.
Packalén, Ulla 1986: Kirjasto tänään ja huomenna. Teoksessa Kirjastotilojen suunnittelu. Toim. Eeva-Maija Tammekann. Helsinki: Kirjastopalvelu.
Packalén, Ulla 1992: Yhteinen kirjastomme. Arkkitehti 6/1992:18-23.
Palmgren, Valfrid 1910. Kirjastot ja kansalaiskasvatus. Muistiinpanoja opintomatkalta Pohjois-Amerikan Yhdysvaltoihin. Helsinki: Kansanvalistusseura.
Patomo, Timo 1979: Soidinkuvat: suunnitelma Tampereen kirjastotaloksi. Tampere: lähikuvia ja soidinkuvia vuonna 1979. Toim. Seppo Järvenpää ja työryhmä. Tampere: Tampereen teknillinen korkeakoulu, Arkkitehtuurin osasto, Arkkitehtikilta.
Pietilä, Reima 1983. Rakennusten ja kaupunkikuvien taistelevat metsot. Arkkitehti 3/1983:67-69.
Ranta, Kaarina 1979: Valtion osallistuminen kirjaston rakentamiseen. Kirjastolehti 2/1975:418-422.
Salmio-Toiviainen, Tarja 1958: Näkökohtia kirjaston suunnittelussa ja sisustamisessa. Kirjastolehti 1958/1: 50–53.
Suomen yleisten kirjastojen tilastot 2018. OKM. https://tilastot.kirjastot.fi/ (haettu 29.3.2019).
Sipinen, Arto 1992: Lahden pääkirjasto. Arkkitehti 6/1992:51.
Valtioneuvoston päätös kirjastorakennusten suunnittelun, rakentamisen ja normaalihintojen perusteista 236/1987. OM, Edita. https://www.finlex.fi/fi/laki/... (haettu 23.1.2018).
Vartola, Anni 2011: Liike ja vastaliike: vaikutelmia suomalaisesta postmodernismista. Arkkitehti 6/2011:10-21.
Wacklin, Matti 2011. Kaikkien sielujen apteekki. Tampereen kaupunginkirjasto 150 vuotta. Tampere: Tampereen kaupunginkirjasto – Pirkanmaan maakuntakirjasto.
Väestö 2019. Tilastokeskus. https://www.tilastokeskus.fi/t... (haettu 29.3.2019).
Äyräs, Anneli 1986: Yleisten kirjastojen rakentaminen. Kirjastolehti 2/1986.

Kasvun vuodet ¬– 1960-luvulla rakennetaan kunnallisia ja maakunnallisia kirjastoja
Kirjastot jaettiin paikallisiin kirjastoihin ja maakuntakirjastoihin vuodesta 1962 alkaen. Kaksitasoinen hierarkia perustui uuteen kirjastolakiin (235/1961). Valtionapu kohdennettiin maalaiskuntien ja kauppaloiden uusien kirjastorakennusten tai huoneistojen rakentamiseen sekä maakuntakirjastojärjestelmän perustamiseen. Maakuntakirjastoa ylläpitävät kaupungit saivat erillistä valtionapua sekä vuosiavustuksena että kunnan asukasmäärän mukaan.
Lainmuutos kasvatti merkittävästi kirjastotoimen rahoitusta ja vauhditti varsinkin pääkirjastojen rakentamista maakuntakirjasto-oikeudet saaneissa 19 kaupungissa. Maakuntakirjastojen tehtävä oli toimia alueellisina keskuskirjastoina sekä täydentää ja tukea paikallista kirjastoverkkoa. Uusista pääkirjastoista arkkitehtonisesti tunnetuimpia ovat Seinäjoen ja Rovaniemen kaupunginkirjastot (Alvar Aalto, 1965, 1966) sekä Kuopion uusi kirjastotalo (Matti Hakala, yleinen arkkitehtuurikilpailu 1962–63, valm. 1967).
Kuopion kirjastotalo
Kuopion kirjastotalo on näyttävä esimerkki 1960-luvun maakuntakirjastosta. Rakennus sijoitettiin Kuopion keskustaan vanhan museo-kirjastorakennuksen viereen. Se on vedetty sisemmäs tonttia ja irrotettu ympäröivästä kaupunkirakenteesta, joten se on helppo tunnistaa tärkeäksi julkiseksi rakennukseksi. Varsinaiset kirjastotilat ovat rakennuksen toisessa kerroksessa.
Rakennuksessa on teräsbetonirunko ja toisen kerroksen kattoa kannattelevat esijännitetyt teräsbetonipalkit. Rakenteen ansiosta kirjahalli on avara ja yhtenäinen tila: eri toiminnot on rajattu toisistaan puolikorkeilla seinäkkeillä, lasiovet ja väliseinien ylälasit tehostavat tilavaikutelmaa.
Kirjaston käyttöä valvotaan yhdestä keskeisestä asiakaspalvelu ja valvontapisteestä. Kirjasalin keskipiste on pyöreä, kirjahyllyillä tilaan rajautuva ja päätasoa alemmaksi laskettu nuoriso-osasto. Tila saa luonnonvaloa suuren kattoikkunan kautta, suoraan sen alla on sisäsuihkulähde. Kuopion kirjastotaloon valmistui uudenaikainen musiikkiosasto: musiikkia saattoi kuunnella kovaäänisistä erillisessä musiikkihuoneessa ja nuoriso-osastolla myös kuulokkeista.
[11a_Kuopion kirjastotalo 2_AV]
[11b_Kuopion kirjastotalo leikkaus_AV]
[11c_Kuopion kirjastotalo_AV]
Maakuntamittakaavasta lähikirjastoon: esimerkkinä Töölön sivukirjasto
Nopeasti kasvavissa kaupungeissa rakennettiin pääkirjastojen ohella myös lähi- eli sivukirjastoja. Ne haluttiin sijoittaa sinne, missä ihmiset asuvat ja tukea kirjastopalveluilla alueen päiväkotien ja koulujen kulttuurikasvatusta. Kirjasto tarjoaa myös alueen asukkaille luontevan, helposti saavutettavan kohtaamispaikan.
Vapaasti puistossa sijaitseva Töölön sivukirjasto Helsingissä (Aarne Ervi, 1963–1970) on kaupunkikuvallinen kohokohta. Kirjasto erottuu ympäröivästä kaupunkirakenteesta, ja sen korurasiamainen olemus poikkeaa 1960–70-luvun valtavirtaa edustavasta järjestelmäarkkitehtuurista, joka suosi neutraalia ulkoasua ja systemaattisesti toistettavissa olevaa tilarakennetta.
Kuten Ervin suunnittelemassa Turun yliopiston kirjastossa (1954), myös Töölön kirjaston suurista ikkunoista avautuu näkymiä puistoon. Puistoon avautuva parveke ja suojainen, laatoitettu terassi ovat kirjaston asiakkaiden käytössä kesäkaudella. Luonnonvalo lainaussaleissa ja lukusalissa on runsas.
Kirjaston tilat kiertyvät keskeisportaikon ympärille, ja sisätilojen värikkäät yksityiskohdat ja kaarevat linjat tekevät kirjaston tila-arkkitehtuurista eloisan. Lastenosasto on sijoitettu heti pääsisäänkäynnin viereen. Katutason lehtisali omine sisäänkäynteineen mahdollisti muusta kirjastosta poikkeavat aukio-oloajat. Toisessa kerroksessa olevan kaksikerroksisen aikuisten osaston kirjastosalissa on parvi, joka toimii yhdyskäytävänä ja joka alun perin palveli ruotsinkielisen kirjallisuuden osastona. Lasiseinillä erotettu lukusali on Helsingin suurin. Ylimmässä kerroksessa on musiikkiosasto ja oma parveke. Peruskorjauksen jälkeen (Arkkitehdit Mustonen Oy, 2016) ylimpään kerrokseen siirrettiin nuortenosasto sekä rakennettiin uusi tapahtumasali oheistiloineen.
[12a_Töölö 1_AV]
[12b_Töölö lukusali_AV]
[12c_Töölö musa_AV]
[12d_Töölö terassi_AV]
Suurten taajamien kirjastoverkko tiivistyy 1970-luvulla – kirjastosta muunneltava ja laajennettava
Kiihtyvä kaupungistuminen ja kuntaliitokset lisäsivät paineita uudistaa ja tiivistää etenkin suurten taajamien kirjastoverkkoa. Kirjastotoimesta vastaava kouluhallitus valvoi uusien kirjastohankkeiden käynnistämistä ja suunnitelmia, sillä kirjastorakentaminen oli 1970-luvun öljykriisin aiheuttaman taloustaantuman takia tarkkaan säänneltyä ja normitettua. Valtionapu edellytti kaikkien uusien kirjastohankkeiden pääpiirustusten ja työselitysten etukäteistä hyväksyntää. Lisäksi yli 250 m2 suuruisten kirjastorakennusten luonnokset ja rakennustapaselostus tuli tarkastuttaa etukäteen.
Kirjastojen suunnitteluohjeissa alleviivattiin tilojen laajennettavuutta ja muunneltavuutta sekä avoimen kirjastomaiseman ihannetta. Suunnitteluohjeet kannustivat käyttämään moduulimitoitusta ja pyrkimään selkeisiin ja yksinkertaisiin rakenteisiin sekä suuriin ja avariin sisätiloihin, jotta tilamuutokset olisivat joustavasti toteutettavissa. Tilasuunnittelussa tuli pyrkiä ”yleispätevyyteen, selkeyteen, avoimuuteen, keveyteen ja siirreltävyyteen – tiloissa, teknisissä ratkaisuissa, sisustuksessa, jopa yksittäisissä kalusteissa”.
1970-luvun kirjastoilla ei juurikaan nähty olevan julkisen rakennuksen symboliarvoa. Kirjastoista puhuttiin yleisönpalvelulaitoksina , ja arkkitehtuurin ensisijainen tehtävä oli palvella käyttäjän ja yhteiskunnan tarpeita. Rakennustaiteelliset päämäärät koettiin yleisemminkin ajankohdan poliittisessa ilmapiirissä liian yksilökeskeisiksi tai suppean yläluokan arvokäsityksiä vastaaviksi.
[13_Kerava_AV]
Automaatit ja tietokoneet saapuvat kirjastoon
Taloudellisten suhdanteiden, arkkitehtonisten arvojen ja poliittisten painotusten ohella myös tieto- ja viestintätekniikan kehitys vaikutti kirjastojen merkitykseen ja toimintakulttuuriin. Audiovisuaalisista laitteista, lainausautomaateista ja kopiokoneista tuli arkipäivää, ja erilaisille tiedonhaku ja ATK-päätteille tarvittiin tilaa. Kirjastoilta odotettiin aktiivisuutta: kirjastojen tuli esitellä uutta teknologiaa ja opastaa sen käyttöön.
Kaupunkien uusiin lähiöihin tarvittiin samaan aikaan lisää kirjastopalveluita ja yhteisöllisyyttä ruokkivia kokoontumispaikkoja. Pienissä 1970-luvun lähikirjastoissa näkyi pyrkimys olohuonemaiseen kodikkuuteen. Niihin kalustettiin matalien kirjahyllyjen rajaamia saarekkeita ja pehmeitä ja värikkäitä istuskeluryhmiä.
[14_Laajasalo_AV]
1980-luvun vaihteen murros: Oulun pääkirjasto ja Tammisaaren kaupunginkirjasto
Kirjastorakentaminen alkoi elpyä, kun öljykriisin aiheuttama taloudellinen taantuma helpottui. Kustannussäätely ja normiohjaus jatkuivat. Vuoden 1978 valtionosuusuudistus pohjautui uuteen kunnalliseen kantokykyluokkajärjestelmään, ja se nosti etenkin köyhempien kuntien kirjastojen valtionapua ajan kustannustasoon suhteutettuna peräti 73 % suuremmaksi kuin ennen. Kirjastojen asema hyvinvointiyhteiskuntaa tukevina merkkirakennuksina vahvistui, ja niihin suhtauduttiin kunnallisina tietokeskuksina ja yleisinä kohtauspaikkoina.
Oulun keskustan torialueen rantaan valmistunut pääkirjasto (Marjatta ja Martti Jaatinen, asemakaavakilpailu 1962–63, valm. 1981; sisustus Studio Nurmesniemi) on osa monumentaalikeskussommitelmaa. Asemakaavakilpailun tavoite oli antaa Oulun läänin pääkaupungille sen asemaa vastaava imago kaupungintalon, teatterin ja konserttitalon ja niiden väliin jäävän juhla-aukion muodostaman uuden sydämen avulla. Voittanut ehdotus ”Saari” sijoitti rakennusryhmän suorakulmaiselle, veden ympäröimälle tekosaarelle.
Alkuperäisestä monumentaalikeskussuunnitelmasta toteutui vain teatteritalo (1972), sillä konserttitalon tilalle päätettiin rakentaa uusi pääkirjasto–maakuntakirjasto. Sijoittelu antoi kirjastolle merkittävän ja tärkeän kulttuurilaitoksen aseman kaupunkikuvassa. Rakennus on paikallavalettua betonia ja sen julkisivuissa on käytetty alumiinisäleikköä, lasia, metallikasetteja ja mosaiikkibetonia; sisällä lähinnä sileävalettua betonia, mosaiikkibetonilaattaa, alumiinikasetteja, lasia ja puuta.
Kirjaston tilat ovat neljässä kerroksessa, ja kaikilta osastoilta avautuu näkymiä kaupunkiin tai jokisuistoon. Pohjakerroksessa ovat yleisöpalvelutilat ja lehtisali; kahdessa seuraavassa sijaitsevat aikuisten ja lasten osastot, opintosali sekä kokoelma- ja työtiloja; kirjavarasto ja henkilökunnan tilat ovat ylimmässä kerroksessa. Sisätilojen sydän on koko rakennuksen korkuinen keskusaula veistoksellisine betoniportaikkoineen. Alkuperäinen sisustus sovitettiin taidokkaasti tehostamaan rakennuksen ilmavaa tunnelmaa ja auttamaan suuren kirjaston eri osastojen hahmottamista.
[15a_Oulun_sisä_AV]
[15b_Oulu_AV]
Pieni Tammisaaren kaupunginkirjasto (Ola Hansson, 1977) sopeutuu paikkakunnan ominaispiirteisiin ja kaupunkikuvaan. Erkkerit, pieniruutuiset ikkunat ja poimutettu katto myötäilevät pienimittakaavaisen puukaupungin ja kirjastoa ympäröivien rakennusten tyyliä ja pehmentävät rakennusajankohdalle tyypillistä moduuliarkkitehtuuria.
[16_Tammisaari_AV]
1980-luvulla rakennetaan yli 200 uutta kirjastoa
Vuonna 1986 uusittu kirjastolaki ja taloudellisen noususuhdanteen siivittämä uusi valtionapupolitiikka saivat aikaan ennennäkemättömän rakennusbuumin: 1980-luvulla rakennettiin yli 200 uutta kirjastoa.
1980-luku oli myös videoiden, ATK-kurssien, telefaxien, ensimmäisten matkapuhelimien, paikallisradioiden, kulutusjuhlan ja tiivistyvän EU-yhteistyön aikaa. Tietokonevetoinen tulevaisuus pelotti: ”Tuleeko kirjastosta ainoastaan tietojärjestelmän rakennus- ja tallennuspiste, toimisto tai tietotehdas, johon käyttäjät ottavat yhteyden päätteiltään kotoaan? Tarvitsemmeko enää tiedon temppeleitä tai yhteisiä olohuoneita?”
Arkkitehtuurissa kritiikki 1970-luvun anonyymia ”laatikkolinjaa” kohtaan kasvoi. Postmodernismiksi kutsuttu arkkitehtuuriajattelu kannusti arkkitehteja etsimään vaihtoehtoja: Miten ilmaista kirjaston symbolista merkitystä yhteiskunnallisena ja kaupunkikuvallisena arvorakennuksena? Miten paikallisyhteisö ja käyttäjät kokisivat uuden rakennuksen omakseen? Enää ei riittänyt, että kirjastorakennus toimii moitteettomasti kuin kone. Sen arkkitehtuurin tuli kuvastaa kirjastolaitoksen kulttuurista merkitystä ja heijastella paikallisen miljöön piirteitä.
Tampereen pääkirjasto Metso
Yksi keskustelua herättäneistä uusista kirjastohankkeista oli Tampereen pääkirjasto Metso (Reima ja Raili Pietilä, yleinen arkkitehtuurikilpailu 1978, valm. 1986). ”Soidinmenot” kilpailuehdotuksen kaarevat ja veistokselliset muodot ja ylhäältä katsottuna metsoa muistuttava hahmo poikkesivat arkkitehtuurin valtavirrasta.
Reima Pietilä selitti kirjaston yksilöllisen muotokielen johtuvan arkkitehtien halusta antaa kirjastolle ”1980-luvun ajankasvot” ja tehdä kirjastosta maamerkki ja suomalaisen kulttuurin ilmaisija. Pietilä kritisoi vallitsevaa käsitystä tarkastella arkkitehtuuria pelkästään sen käyttöarvon valossa. Hän tähdensi, että Metson arkkitehtuuri pyrki tekemään uuden runollisen tulkinnan rakennuksen ja luonnon yhteydestä. Mikään Metson arkkitehtuurissa ei ollut yleispätevää: kirjaston pienimmätkin yksityiskohdat suunniteltiin Pietilöiden toimistossa.
[17a_Metso piirustuksia_AV]
[17b_Metso pohja_AV]
[17c_Metso tiski_AV]
Postmodernismi näkyy mittakaavassa, väreissä ja monimuotoisuudessa: Kuhmon kirjasto ja Vihannin kirjasto-kotiseutukeskus
Postmodernistista arkkitehtuuriajattelua ilmentävät etenkin Kuhmon kirjasto (Jyrki Tasa, yleinen arkkitehtuurikilpailu 1988) ja Vihannin kirjasto–kotiseutukeskus (Aitoaho & Viljanen, kutsukilpailu 1985, valm. 1992) – monien ns. Oulun koulun pieniin maaseututaajamiin suunnittelemien kirjastojen ohella.
Kuhmon kirjastossa ajan henki näkyy rakennuksen tilallisessa ilottelussa, värikkäissä, leikkisissä ja huomiota herättävissä yksityiskohdissa. Arkkitehtoninen viimeistely ulottuu Pietilöiden Metso-kirjaston tapaan kalusteisiin, valaisimiin ja vetimiin saakka.
[18a_Kuhmo kirjasali_AV]
[18b_Kuhmo lastenosasto_AV]
[18c_Kuhmo pohjapiirros_AV]
[18d_Kuhmo leikkaus_AV]
Vihannin kirjasto-kotiseutukeskus yhdistää paikallista kulttuuriperintöä kunnioittavan punamulta-arkkitehtuurin modernin ajan materiaaleihin ja modernin kirjaston toimintoihin. Pääosin puurakenteinen ja puuverhoiltu rakennus on Oulun koulun ideologian mukaisesti paikalla rakennettu. Kirjasto on osa monitoimitaloa, jossa ovat nuorisotilat, kansalaisopisto, kotiseutuarkisto, kotiseutu- ja kaivosmuseo, yrityspalvelukeskus ja kierrätyskeskus.
[19a_Vihanti_AV]
[19b_Vihanti ulkoa_AV]
Modernismin perinne jatkuu: Helsingin Pasilan pääkirjasto, Lahden kulttuurikeskus-pääkirjasto ja Vallilan sivukirjasto
1980-luvun arkkitehtuurissa esiintyi postmodernismin rinnalla myös modernismin perinteitä jatkavia ja uudistavia pyrkimyksiä. Niitä olivat mm. selkeän ja suorakulmaisen muotokielen käyttäminen, valkoisen värin, puhtaaksivaletun betonin, luonnonkiven, punatiilen ja puupintojen suosiminen sekä ns. ”uusvanhan”, lavastemaiseksi koetun kansanomaisuuden vastustaminen.
Helsingin pääkirjasto Itä-Pasilassa (Kaarlo Leppänen, 1986) on helppo tunnistaa julkiseksi rakennukseksi korkeiden betonielementtitalojen hallitsemasta ympäristöstä. Kirjaston pääsisäänkäynti ja pääjulkisivut sijaitsevat katutasoa ylempänä jalankulkukannella, koska Itä-Pasilassa autoliikenne ja jalankulku on erotettu eri tasoille.
Kirjastossa on muistumia ja lainauksia Alvar Aallon suunnittelemien rakennusten väri- ja materiaalimaailmasta. Julkisivuelementeissä on tummansinistä klinkkeriä ja pääsisäänkäynnin edustan pylväissä on klinkkeripäällystystä muistuttava pintakäsittely. Valkoiset sisätilat ympäröivät kaksikerroksista keskihallia ja sisäsuihkulähdettä. Tiloja valaisee epäsuora luonnonvalo kattoikkunoiden kautta. Sisäsuihkulähteessä on valkoista marmoria, parvella ja pääportaissa messinkiputkikaide, tiililaattapintaiset porrasaskelmat on reunustettu tammilistalla ja parvea kiertää, tammilistalla reunustettu musta laminaattitaso.
[20a_Helsinki pohja 1_AV]
[20b_Helsinki pohja 2_AV]
[20c_Pasilan kirjasto_AV]
[20d_Pasilan kirjasto_AV]
Lahden kulttuurikeskus-pääkirjaston (Arto Sipinen, yleinen arkkitehtuurikilpailu 1983, valm. 1990) ilmava muotokieli korostaa kirjaston arvostettua asemaa kulttuuri-instituutiona. Kirjasto-kulttuurikeskus-yhdistelmät yleistyivät 1980–90 lukujen taitteessa, ja Sipinen suunnitteli niistä monia (Imatran kulttuurikeskus, kutsukilpailu 1981, valm. 1986; Espoon Tapiolan kulttuurikeskus, yleinen arkkitehtuurikilpailu 1980, valm. 1989).
Lahden pääkirjasto on osa kulttuurirakennusten keskittymää yhdessä teatteritalon, taidemuseon ja aikuiskoulutuskeskuksen kanssa. Kirjaston selkeälinjaiset, umpi ja lasipintoihin jakautuvat, valkoiseksi ohutrapatut rakennusmassat on poimutettu niin, että kulttuurirakennusten väliin jää vesialtaiden ja istutusten elävöittämiä toriaukioita.
Aikuisten ja lasten lainausosastot sijaitsevat heti sisääntulon lähettyvillä ensimmäisessä kerroksessa, rauhallisempaa ympäristöä vaativat opiskelutilat ovat toisessa kerroksessa. Sisätilat ovat avointa hallitilaa, jotta myöhempi muunneltavuus olisi helppoa. Vaaleansävyisissä, valoisissa sisätiloissa on Sipisen arkkitehtuurille ominainen ajaton ja neutraali tunnelma.
[21_Lahti_AV]
Vallilan sivukirjasto Helsingissä (Juha Leiviskä ja Asta Björklund, 1990) kiteyttää 1980-luvun kirjastoarkkitehtuurin kehityslinjat. Pieni puurakenteinen ja verhoiltu rakennus on sovitettu tiiviisti rakennetun, suojellun puukaupunginosan mittakaavaan. Päiväkoti ja kirjasto muodostavat rakennusryhmän, joka ympäröi yhteistä puistopihaa. Sisätiloista avautuvat pihanäkymät, sisäkaton korkeusvaihtelut, ja runsas, monista eri suunnista lankeava luonnonvalo antavat juhlavan ja ajattoman tunnelman pikkuruiselle paikalliskirjastolle.
[22a_Vallila_AV]
[22b_Vallila pohjapiirros_AV]
Kirjastorakentaminen kärsii 1990-luvun talouslamasta
Ne kirjastohankkeet, jotka eivät ehtineet toteutua ennen 1990-luvun lamaa, pantiin jäihin. Hankesuunnitelmista ja arkkitehtuurikilpailujen pöytäkirjoista voi lukea uusien kirjastojen arkkitehtuurille asetettuja tavoitteita. Toteutumatta jääneen Espoon kaupunginkirjaston (yleinen arkkitehtuurikilpailu 1991) pöytäkirjassa tähdennetään jatkuvan muutoksen hyväksymistä, kirjaston tilojen joustavuutta ja muunneltavuutta sekä kirjaston tärkeää roolia julkisena rakennuksena. ”Kirjasto ei ole nykyisellään ainoastaan lainaus- ja lukupiste. Se on kohtaamis ja opiskelupaikka ja se tarjoaa myös monipuolisia kulttuurielämyksiä. Myös yleisön oleskelu- ja kahviotilat ovat olennainen osa nykypäivän kirjastoa. Tämä ei kuitenkaan tarkoita sitä, että kirjaston sisätilojen tulisi kilpailla kauppagallerioiden tai puuhamaiden kanssa. Niissä tulee edelleen olla aistittavissa kulttuurirakennuksen pitkä traditio.”
Orastavan tietoyhteiskunnan tarpeet alkoivat näkyä kirjastojen toiminnassa entistä enemmän. Kirjastoihin tuli lainattavaksi harrastevälineitä ja elektronista aineistoa. Tilaohjelmiin ilmaantui entistä enemmän varattavia kokoontumis ja näyttelytiloja. Kirjastoissa oli ”hiljaisuus”-kylttien sijaan ääntä ja elämää.
[23_Joensuu_AV]
[24a_Maaninka_AV]
[24b_Maaninka sisä_AV]
Kirjastoväki tähdensi kirjastojen merkitystä epäkaupallisina julkisina sisätiloina – ”koko kansan” olohuoneena: ”Mahdollisimman monen olisi voitava käyttää kirjastoa, siksi suunnittelun avaintavoitteita ovat kutsuvuus, saavutettavuus, löydettävyys ja helppokäyttöisyys. Kirjasto pyrkii keskelle kylää ja katutasoon!” Vuoden 1998 kirjastolaissa kaikuivat sekä lama-ajan että tietoyhteiskuntamurroksen seuraukset. Lakiteksti korosti yhdenvertaisuuden vaatimuksia ja tunnisti digitaalisen informaation merkityksen painettujen kirjojen ja lehtien rinnalla.
Monet 1990-luvun kirjastoista kärsivät riisutuista tilaohjelmista ja kustannussäästöjen nimissä vaaditusta tehokkuudesta. Kirjastoarkkitehtuuri joutui sopeutumaan vaatimuksiin julkisen rakentamisen muuntojoustavuudesta sekä tasapainoilemaan monien toiminnallisten vaatimusten ja kirjastojen paikallisen, kaupunkikuvallisen ja kulttuurisen merkityksen välillä. Kirjasto nähtiin kaupunkikehityksen välineenä: kirjaston kaltainen kulttuurirakennus oli hyvä keino lisätä hajanaisen taajama alueen vetovoimaisuutta.
Suosittu arkkitehtoninen tehokeino oli kollaasimaisuus: jokainen toiminto sijoitettiin ikään kuin omaan taloonsa, jotka sommiteltiin esimerkiksi sisäkadun ympärille. Rakennukselle luotiin kaksi toisistaan selkeästi erottuvaa suuntaa: ”selkä- ja vatsapuoli”. Raision kirjasto-auditorion (Hannu Tikka, yleinen arkkitehtuurikilpailu 1995, valm. 1999) arkkitehtoninen pääidea perustuu eri muotoisten ja väristen tilakappaleiden muodostamaan kokonaisuuteen: auditorio, kirjastosalit, lehtilukusali ja musiikkiosasto ovat kukin oma osasensa, jotka aulan sisäkatu yhdistää toisiinsa.
[25a_Raisio piha_AV]
[25b_Raisio plaani_AV]
2000-luvun kirjastot palvelevat yhä moninaisempia käyttäjäryhmiä ja tarpeita
Yleiset kirjastot palvelevat käyttäjiään edistämällä informaation saavutettavuutta kaikissa olomuodoissa sekä edesauttamalla sosiaalista yhteenkuuluvaisuuden tunnetta kaikkialla Suomessa. Vaikka kirjastojen määrä on supistunut, julkiset kirjastot palvelevat 2000-luvulla yhä moninaisempia käyttäjäryhmiä ja käyttötarpeita. Kirjastot ovat muuttaneet kauppakeskuksiin, kyläkeskuksiin ja kulttuuritaloihin, ja niiden tiloihin asettautuu yhä enemmän uusia toimijoita viranomaisista järjestöihin ja taideyhteisöihin.
Vuonna 2017 voimaan astuneen uuden kirjastolain lähtökohtia ovat yhteisöllisyys, moniarvoisuus ja kulttuurinen moninaisuus. Tulevaisuuden kirjasto edistää väestön yhdenvertaisia mahdollisuuksia sivistykseen ja kulttuuriin, tiedon saatavuutta ja käyttöä, lukemiskulttuuria ja monipuolista lukutaitoa, mahdollisuuksia elinikäiseen oppimiseen ja osaamisen kehittämiseen sekä aktiivista kansalaisuutta, demokratiaa ja sananvapautta.
[26_Sello_AV]
[27_Suomen kirjastoverkko_AV]
Kirjoittaja
Anni Vartola, tekniikan tohtori, artikkeli perustuu tekijän tutkimuksiin hänen laatiessaan Venetsian arkkitehtuuribiennaalin 2018 Mind-Building – näyttelykäsikirjoitusta. Näyttely esitteli suomalaista kirjastoarkkitehtuuria ja sen kehittymistä. Vartola on arkkitehtuurin teorian vanhempi yliopistonlehtori Aalto-yliopiston arkkitehtuurin laitoksella.
Artikkeli on julkaistu 2019.
LÄHTEET
Aaltonen, Hanna & Carlson, Joni 1986. Suomalaista kirjastoarkkitehtuuria. Helsinki: Kirjastopalvelu Oy.
Aaltonen, Hanna 2009. Kirjavarastosta olohuoneeksi: yleisten kirjastojen tilojen historiaa. Teoksessa Yleisten kirjastojen historia. Toim. Ilkka Mäkinen. Helsinki: BTJ Kustannus.
Arkkitehtitoimisto Aitoaho & Viljanen 1992: Vihannin kirjasto-kotiseutukeskus. Arkkitehti 6/1992:35-36.
Arkkitehtitoimisto Helin & Siitonen 1992: Joensuun kirjasto. Arkkitehti 6/1992:24-33.
Arkkitehtitoimisto Pia Krogius 2012. Oulun pääkirjaston rakennushistoriaselvitys. OUKA Pääkirjasto RHS kirjastolle.pdf (haettu 6.2.2019).
Berger, Laura 2018. The Building that Disappeared. Espoo: Aalto Arts Books.
Hadley, Chalmers 1910. Why Do We Need a Public Library? Material for a Library Campaign. Chicago: American Library Association Publishing Board. http://www.gutenberg.org/files... (haettu 25.11.2018).
Hirn, Sven 1998. Kansankirjastosta kaupunginkirjastoksi: Helsingin Kaupunginkirjasto 1860–1940. Helsinki: Helsingin kaupunginkirjasto.
EBLIDA – The European Bureau of Library, Information and Documentation Associations 2015. Survey on Public and Academic Libraries. http://www.eblida.org/activiti... (haettu 25.4.2019).
Espoon pääkirjaston yleinen suunnittelukilpailu 1992: Arkkitehtuurikilpailuja 2/1992.
Haapoja, Risto & Tikka, Hannu 1999: Raision kirjasto-auditorio. Arkkitehti 5/1999:44-53.
Huttunen, Hannu 1993: Maaningan kunnantalo. Arkkitehti 1/1993:50-55.
Junnila, Veikko 1977. Kirjastosuunnittelun opas. Helsinki: Martela Oy.
Kahri, Esko 1970: Rakennussuunnittelun tavoitteet 70-luvulla. Arkkitehti 2/1970:37-42.
Kannila, Helle 1966. Kirjastoista kirjoitettua. Kirjoituksia vuosilta 1913–1963. Helsinki: Suomen Kirjastoseura, Otava.
Kanninen, Mauno 1948. Maaseudun kirjastohuoneistot. Helsinki: Suomen Kirjastoseura, Maalaiskuntien Liitto.
Kanninen, Mauno 1953. Uusia kirjastohuoneistoja: Kuvaopas kirjastojen suunnittelijoille. Helsinki: Valtion kirjastotoimisto.
Kansankirjastolaki 131/1928. Suomen asetuskokoelma. https://fi.wikisource.org/wiki/Kansankirjastolaki. Muutokset: https://fi.wikisource.org/wiki...äivänä_1928_annetun_kansankirjastolain_4,_5_ja_8_§:n_muuttamisesta; https://fi.wikisource.org/wiki/Asetus_kansankirjastoista_(1941) (haettu 14.3.2019).
Kekki, Kirsi 2013. Menestystarina nimeltä kirjasto. Helsinki: Avain.
Kirjastolaki 1961. Suomen asetuskokoelma 235/1961. https://fi.wikisource.org/wiki/Kirjastolaki_(1961) (haettu 20.3.2019).
Kirjastolaki 1986. Suomen asetuskokoelma 235/1986. OM, Edita. https://www.finlex.fi/fi/laki/... (haettu 20.5.2019).
Kirjastolaki 1998. Finlex 904/1998. https://www.finlex.fi/fi/laki/... (haettu 20.5.2019).
Kuopion kirjastotalo 1969: Arkkitehti 8/1969:20-25.
Laki yleisistä kirjastoista 29.12.2016/1492. OM, Edita. https://www.finlex.fi/fi/laki/... (haettu 23.1.2018).
Lappo, Osmo: 1971: Avotilakoulu – tulevaisuuden koulu? Arkkitehti 7/1971:27-30.
Leppänen, Kaarlo 1982: Arkkitehdin ongelma. Kirjastolehti 2/1982:526-527.
Mäkinen, Ilkka 2009a. Pitäjänkirjastojen läpimurto. Teoksessa Yleisten kirjastojen historia. Toim. Ilkka Mäkinen. Helsinki: BTJ Kustannus.
Mäkinen, Ilkka 2009b. Kirjasto fennomaanien kansansivistysohjelmassa. Teoksessa Yleisten kirjastojen historia. Toim. Ilkka Mäkinen. Helsinki: BTJ Kustannus.
Mäkinen, Ilkka 2009v. Kirjastot sodassa, sota kirjastoissa. Teoksessa Yleisten kirjastojen historia. Toim. Ilkka Mäkinen. Helsinki: BTJ Kustannus.
Mäkinen, Ilkka 2009d. 1950-luvun perintö. Teoksessa Yleisten kirjastojen historia. Toim. Ilkka Mäkinen. Helsinki: BTJ Kustannus.
Mäkinen, Ilkka 2009e. Yleinen kirjasto hyvinvointiyhteiskunnassa 1960-luvun alusta vuosituhannen vaihteeseen. Teoksessa Yleisten kirjastojen historia. Toim. Ilkka Mäkinen. Helsinki: BTJ Kustannus.
Packalén, Ulla 1986: Kirjasto tänään ja huomenna. Teoksessa Kirjastotilojen suunnittelu. Toim. Eeva-Maija Tammekann. Helsinki: Kirjastopalvelu.
Packalén, Ulla 1992: Yhteinen kirjastomme. Arkkitehti 6/1992:18-23.
Palmgren, Valfrid 1910. Kirjastot ja kansalaiskasvatus. Muistiinpanoja opintomatkalta Pohjois-Amerikan Yhdysvaltoihin. Helsinki: Kansanvalistusseura.
Patomo, Timo 1979: Soidinkuvat: suunnitelma Tampereen kirjastotaloksi. Tampere: lähikuvia ja soidinkuvia vuonna 1979. Toim. Seppo Järvenpää ja työryhmä. Tampere: Tampereen teknillinen korkeakoulu, Arkkitehtuurin osasto, Arkkitehtikilta.
Pietilä, Reima 1983. Rakennusten ja kaupunkikuvien taistelevat metsot. Arkkitehti 3/1983:67-69.
Ranta, Kaarina 1979: Valtion osallistuminen kirjaston rakentamiseen. Kirjastolehti 2/1975:418-422.
Salmio-Toiviainen, Tarja 1958: Näkökohtia kirjaston suunnittelussa ja sisustamisessa. Kirjastolehti 1958/1: 50–53.
Suomen yleisten kirjastojen tilastot 2018. OKM. https://tilastot.kirjastot.fi/ (haettu 29.3.2019).
Sipinen, Arto 1992: Lahden pääkirjasto. Arkkitehti 6/1992:51.
Valtioneuvoston päätös kirjastorakennusten suunnittelun, rakentamisen ja normaalihintojen perusteista 236/1987. OM, Edita. https://www.finlex.fi/fi/laki/... (haettu 23.1.2018).
Vartola, Anni 2011: Liike ja vastaliike: vaikutelmia suomalaisesta postmodernismista. Arkkitehti 6/2011:10-21.
Wacklin, Matti 2011. Kaikkien sielujen apteekki. Tampereen kaupunginkirjasto 150 vuotta. Tampere: Tampereen kaupunginkirjasto – Pirkanmaan maakuntakirjasto.
Väestö 2019. Tilastokeskus. https://www.tilastokeskus.fi/t... (haettu 29.3.2019).
Äyräs, Anneli 1986: Yleisten kirjastojen rakentaminen. Kirjastolehti 2/1986.
Maakuntamittakaavasta lähikirjastoon: esimerkkinä Töölön sivukirjasto
Nopeasti kasvavissa kaupungeissa rakennettiin pääkirjastojen ohella myös lähi- eli sivukirjastoja. Ne haluttiin sijoittaa sinne, missä ihmiset asuvat ja tukea kirjastopalveluilla alueen päiväkotien ja koulujen kulttuurikasvatusta. Kirjasto tarjoaa myös alueen asukkaille luontevan, helposti saavutettavan kohtaamispaikan.
Vapaasti puistossa sijaitseva Töölön sivukirjasto Helsingissä (Aarne Ervi, 1963–1970) on kaupunkikuvallinen kohokohta. Kirjasto erottuu ympäröivästä kaupunkirakenteesta, ja sen korurasiamainen olemus poikkeaa 1960–70-luvun valtavirtaa edustavasta järjestelmäarkkitehtuurista, joka suosi neutraalia ulkoasua ja systemaattisesti toistettavissa olevaa tilarakennetta.
Kuten Ervin suunnittelemassa Turun yliopiston kirjastossa (1954), myös Töölön kirjaston suurista ikkunoista avautuu näkymiä puistoon. Puistoon avautuva parveke ja suojainen, laatoitettu terassi ovat kirjaston asiakkaiden käytössä kesäkaudella. Luonnonvalo lainaussaleissa ja lukusalissa on runsas.
Kirjaston tilat kiertyvät keskeisportaikon ympärille, ja sisätilojen värikkäät yksityiskohdat ja kaarevat linjat tekevät kirjaston tila-arkkitehtuurista eloisan. Lastenosasto on sijoitettu heti pääsisäänkäynnin viereen. Katutason lehtisali omine sisäänkäynteineen mahdollisti muusta kirjastosta poikkeavat aukio-oloajat. Toisessa kerroksessa olevan kaksikerroksisen aikuisten osaston kirjastosalissa on parvi, joka toimii yhdyskäytävänä ja joka alun perin palveli ruotsinkielisen kirjallisuuden osastona. Lasiseinillä erotettu lukusali on Helsingin suurin. Ylimmässä kerroksessa on musiikkiosasto ja oma parveke. Peruskorjauksen jälkeen (Arkkitehdit Mustonen Oy, 2016) ylimpään kerrokseen siirrettiin nuortenosasto sekä rakennettiin uusi tapahtumasali oheistiloineen.
[12a_Töölö 1_AV]
[12b_Töölö lukusali_AV]
[12c_Töölö musa_AV]
[12d_Töölö terassi_AV]
Suurten taajamien kirjastoverkko tiivistyy 1970-luvulla – kirjastosta muunneltava ja laajennettava
Kiihtyvä kaupungistuminen ja kuntaliitokset lisäsivät paineita uudistaa ja tiivistää etenkin suurten taajamien kirjastoverkkoa. Kirjastotoimesta vastaava kouluhallitus valvoi uusien kirjastohankkeiden käynnistämistä ja suunnitelmia, sillä kirjastorakentaminen oli 1970-luvun öljykriisin aiheuttaman taloustaantuman takia tarkkaan säänneltyä ja normitettua. Valtionapu edellytti kaikkien uusien kirjastohankkeiden pääpiirustusten ja työselitysten etukäteistä hyväksyntää. Lisäksi yli 250 m2 suuruisten kirjastorakennusten luonnokset ja rakennustapaselostus tuli tarkastuttaa etukäteen.
Kirjastojen suunnitteluohjeissa alleviivattiin tilojen laajennettavuutta ja muunneltavuutta sekä avoimen kirjastomaiseman ihannetta. Suunnitteluohjeet kannustivat käyttämään moduulimitoitusta ja pyrkimään selkeisiin ja yksinkertaisiin rakenteisiin sekä suuriin ja avariin sisätiloihin, jotta tilamuutokset olisivat joustavasti toteutettavissa. Tilasuunnittelussa tuli pyrkiä ”yleispätevyyteen, selkeyteen, avoimuuteen, keveyteen ja siirreltävyyteen – tiloissa, teknisissä ratkaisuissa, sisustuksessa, jopa yksittäisissä kalusteissa”.
1970-luvun kirjastoilla ei juurikaan nähty olevan julkisen rakennuksen symboliarvoa. Kirjastoista puhuttiin yleisönpalvelulaitoksina , ja arkkitehtuurin ensisijainen tehtävä oli palvella käyttäjän ja yhteiskunnan tarpeita. Rakennustaiteelliset päämäärät koettiin yleisemminkin ajankohdan poliittisessa ilmapiirissä liian yksilökeskeisiksi tai suppean yläluokan arvokäsityksiä vastaaviksi.
[13_Kerava_AV]
Automaatit ja tietokoneet saapuvat kirjastoon
Taloudellisten suhdanteiden, arkkitehtonisten arvojen ja poliittisten painotusten ohella myös tieto- ja viestintätekniikan kehitys vaikutti kirjastojen merkitykseen ja toimintakulttuuriin. Audiovisuaalisista laitteista, lainausautomaateista ja kopiokoneista tuli arkipäivää, ja erilaisille tiedonhaku ja ATK-päätteille tarvittiin tilaa. Kirjastoilta odotettiin aktiivisuutta: kirjastojen tuli esitellä uutta teknologiaa ja opastaa sen käyttöön.
Kaupunkien uusiin lähiöihin tarvittiin samaan aikaan lisää kirjastopalveluita ja yhteisöllisyyttä ruokkivia kokoontumispaikkoja. Pienissä 1970-luvun lähikirjastoissa näkyi pyrkimys olohuonemaiseen kodikkuuteen. Niihin kalustettiin matalien kirjahyllyjen rajaamia saarekkeita ja pehmeitä ja värikkäitä istuskeluryhmiä.
[14_Laajasalo_AV]
1980-luvun vaihteen murros: Oulun pääkirjasto ja Tammisaaren kaupunginkirjasto
Kirjastorakentaminen alkoi elpyä, kun öljykriisin aiheuttama taloudellinen taantuma helpottui. Kustannussäätely ja normiohjaus jatkuivat. Vuoden 1978 valtionosuusuudistus pohjautui uuteen kunnalliseen kantokykyluokkajärjestelmään, ja se nosti etenkin köyhempien kuntien kirjastojen valtionapua ajan kustannustasoon suhteutettuna peräti 73 % suuremmaksi kuin ennen. Kirjastojen asema hyvinvointiyhteiskuntaa tukevina merkkirakennuksina vahvistui, ja niihin suhtauduttiin kunnallisina tietokeskuksina ja yleisinä kohtauspaikkoina.
Oulun keskustan torialueen rantaan valmistunut pääkirjasto (Marjatta ja Martti Jaatinen, asemakaavakilpailu 1962–63, valm. 1981; sisustus Studio Nurmesniemi) on osa monumentaalikeskussommitelmaa. Asemakaavakilpailun tavoite oli antaa Oulun läänin pääkaupungille sen asemaa vastaava imago kaupungintalon, teatterin ja konserttitalon ja niiden väliin jäävän juhla-aukion muodostaman uuden sydämen avulla. Voittanut ehdotus ”Saari” sijoitti rakennusryhmän suorakulmaiselle, veden ympäröimälle tekosaarelle.
Alkuperäisestä monumentaalikeskussuunnitelmasta toteutui vain teatteritalo (1972), sillä konserttitalon tilalle päätettiin rakentaa uusi pääkirjasto–maakuntakirjasto. Sijoittelu antoi kirjastolle merkittävän ja tärkeän kulttuurilaitoksen aseman kaupunkikuvassa. Rakennus on paikallavalettua betonia ja sen julkisivuissa on käytetty alumiinisäleikköä, lasia, metallikasetteja ja mosaiikkibetonia; sisällä lähinnä sileävalettua betonia, mosaiikkibetonilaattaa, alumiinikasetteja, lasia ja puuta.
Kirjaston tilat ovat neljässä kerroksessa, ja kaikilta osastoilta avautuu näkymiä kaupunkiin tai jokisuistoon. Pohjakerroksessa ovat yleisöpalvelutilat ja lehtisali; kahdessa seuraavassa sijaitsevat aikuisten ja lasten osastot, opintosali sekä kokoelma- ja työtiloja; kirjavarasto ja henkilökunnan tilat ovat ylimmässä kerroksessa. Sisätilojen sydän on koko rakennuksen korkuinen keskusaula veistoksellisine betoniportaikkoineen. Alkuperäinen sisustus sovitettiin taidokkaasti tehostamaan rakennuksen ilmavaa tunnelmaa ja auttamaan suuren kirjaston eri osastojen hahmottamista.
[15a_Oulun_sisä_AV]
[15b_Oulu_AV]
Pieni Tammisaaren kaupunginkirjasto (Ola Hansson, 1977) sopeutuu paikkakunnan ominaispiirteisiin ja kaupunkikuvaan. Erkkerit, pieniruutuiset ikkunat ja poimutettu katto myötäilevät pienimittakaavaisen puukaupungin ja kirjastoa ympäröivien rakennusten tyyliä ja pehmentävät rakennusajankohdalle tyypillistä moduuliarkkitehtuuria.
[16_Tammisaari_AV]
1980-luvulla rakennetaan yli 200 uutta kirjastoa
Vuonna 1986 uusittu kirjastolaki ja taloudellisen noususuhdanteen siivittämä uusi valtionapupolitiikka saivat aikaan ennennäkemättömän rakennusbuumin: 1980-luvulla rakennettiin yli 200 uutta kirjastoa.
1980-luku oli myös videoiden, ATK-kurssien, telefaxien, ensimmäisten matkapuhelimien, paikallisradioiden, kulutusjuhlan ja tiivistyvän EU-yhteistyön aikaa. Tietokonevetoinen tulevaisuus pelotti: ”Tuleeko kirjastosta ainoastaan tietojärjestelmän rakennus- ja tallennuspiste, toimisto tai tietotehdas, johon käyttäjät ottavat yhteyden päätteiltään kotoaan? Tarvitsemmeko enää tiedon temppeleitä tai yhteisiä olohuoneita?”
Arkkitehtuurissa kritiikki 1970-luvun anonyymia ”laatikkolinjaa” kohtaan kasvoi. Postmodernismiksi kutsuttu arkkitehtuuriajattelu kannusti arkkitehteja etsimään vaihtoehtoja: Miten ilmaista kirjaston symbolista merkitystä yhteiskunnallisena ja kaupunkikuvallisena arvorakennuksena? Miten paikallisyhteisö ja käyttäjät kokisivat uuden rakennuksen omakseen? Enää ei riittänyt, että kirjastorakennus toimii moitteettomasti kuin kone. Sen arkkitehtuurin tuli kuvastaa kirjastolaitoksen kulttuurista merkitystä ja heijastella paikallisen miljöön piirteitä.
Tampereen pääkirjasto Metso
Yksi keskustelua herättäneistä uusista kirjastohankkeista oli Tampereen pääkirjasto Metso (Reima ja Raili Pietilä, yleinen arkkitehtuurikilpailu 1978, valm. 1986). ”Soidinmenot” kilpailuehdotuksen kaarevat ja veistokselliset muodot ja ylhäältä katsottuna metsoa muistuttava hahmo poikkesivat arkkitehtuurin valtavirrasta.
Reima Pietilä selitti kirjaston yksilöllisen muotokielen johtuvan arkkitehtien halusta antaa kirjastolle ”1980-luvun ajankasvot” ja tehdä kirjastosta maamerkki ja suomalaisen kulttuurin ilmaisija. Pietilä kritisoi vallitsevaa käsitystä tarkastella arkkitehtuuria pelkästään sen käyttöarvon valossa. Hän tähdensi, että Metson arkkitehtuuri pyrki tekemään uuden runollisen tulkinnan rakennuksen ja luonnon yhteydestä. Mikään Metson arkkitehtuurissa ei ollut yleispätevää: kirjaston pienimmätkin yksityiskohdat suunniteltiin Pietilöiden toimistossa.
[17a_Metso piirustuksia_AV]
[17b_Metso pohja_AV]
[17c_Metso tiski_AV]
Postmodernismi näkyy mittakaavassa, väreissä ja monimuotoisuudessa: Kuhmon kirjasto ja Vihannin kirjasto-kotiseutukeskus
Postmodernistista arkkitehtuuriajattelua ilmentävät etenkin Kuhmon kirjasto (Jyrki Tasa, yleinen arkkitehtuurikilpailu 1988) ja Vihannin kirjasto–kotiseutukeskus (Aitoaho & Viljanen, kutsukilpailu 1985, valm. 1992) – monien ns. Oulun koulun pieniin maaseututaajamiin suunnittelemien kirjastojen ohella.
Kuhmon kirjastossa ajan henki näkyy rakennuksen tilallisessa ilottelussa, värikkäissä, leikkisissä ja huomiota herättävissä yksityiskohdissa. Arkkitehtoninen viimeistely ulottuu Pietilöiden Metso-kirjaston tapaan kalusteisiin, valaisimiin ja vetimiin saakka.
[18a_Kuhmo kirjasali_AV]
[18b_Kuhmo lastenosasto_AV]
[18c_Kuhmo pohjapiirros_AV]
[18d_Kuhmo leikkaus_AV]
Vihannin kirjasto-kotiseutukeskus yhdistää paikallista kulttuuriperintöä kunnioittavan punamulta-arkkitehtuurin modernin ajan materiaaleihin ja modernin kirjaston toimintoihin. Pääosin puurakenteinen ja puuverhoiltu rakennus on Oulun koulun ideologian mukaisesti paikalla rakennettu. Kirjasto on osa monitoimitaloa, jossa ovat nuorisotilat, kansalaisopisto, kotiseutuarkisto, kotiseutu- ja kaivosmuseo, yrityspalvelukeskus ja kierrätyskeskus.
[19a_Vihanti_AV]
[19b_Vihanti ulkoa_AV]
Modernismin perinne jatkuu: Helsingin Pasilan pääkirjasto, Lahden kulttuurikeskus-pääkirjasto ja Vallilan sivukirjasto
1980-luvun arkkitehtuurissa esiintyi postmodernismin rinnalla myös modernismin perinteitä jatkavia ja uudistavia pyrkimyksiä. Niitä olivat mm. selkeän ja suorakulmaisen muotokielen käyttäminen, valkoisen värin, puhtaaksivaletun betonin, luonnonkiven, punatiilen ja puupintojen suosiminen sekä ns. ”uusvanhan”, lavastemaiseksi koetun kansanomaisuuden vastustaminen.
Helsingin pääkirjasto Itä-Pasilassa (Kaarlo Leppänen, 1986) on helppo tunnistaa julkiseksi rakennukseksi korkeiden betonielementtitalojen hallitsemasta ympäristöstä. Kirjaston pääsisäänkäynti ja pääjulkisivut sijaitsevat katutasoa ylempänä jalankulkukannella, koska Itä-Pasilassa autoliikenne ja jalankulku on erotettu eri tasoille.
Kirjastossa on muistumia ja lainauksia Alvar Aallon suunnittelemien rakennusten väri- ja materiaalimaailmasta. Julkisivuelementeissä on tummansinistä klinkkeriä ja pääsisäänkäynnin edustan pylväissä on klinkkeripäällystystä muistuttava pintakäsittely. Valkoiset sisätilat ympäröivät kaksikerroksista keskihallia ja sisäsuihkulähdettä. Tiloja valaisee epäsuora luonnonvalo kattoikkunoiden kautta. Sisäsuihkulähteessä on valkoista marmoria, parvella ja pääportaissa messinkiputkikaide, tiililaattapintaiset porrasaskelmat on reunustettu tammilistalla ja parvea kiertää, tammilistalla reunustettu musta laminaattitaso.
[20a_Helsinki pohja 1_AV]
[20b_Helsinki pohja 2_AV]
[20c_Pasilan kirjasto_AV]
[20d_Pasilan kirjasto_AV]
Lahden kulttuurikeskus-pääkirjaston (Arto Sipinen, yleinen arkkitehtuurikilpailu 1983, valm. 1990) ilmava muotokieli korostaa kirjaston arvostettua asemaa kulttuuri-instituutiona. Kirjasto-kulttuurikeskus-yhdistelmät yleistyivät 1980–90 lukujen taitteessa, ja Sipinen suunnitteli niistä monia (Imatran kulttuurikeskus, kutsukilpailu 1981, valm. 1986; Espoon Tapiolan kulttuurikeskus, yleinen arkkitehtuurikilpailu 1980, valm. 1989).
Lahden pääkirjasto on osa kulttuurirakennusten keskittymää yhdessä teatteritalon, taidemuseon ja aikuiskoulutuskeskuksen kanssa. Kirjaston selkeälinjaiset, umpi ja lasipintoihin jakautuvat, valkoiseksi ohutrapatut rakennusmassat on poimutettu niin, että kulttuurirakennusten väliin jää vesialtaiden ja istutusten elävöittämiä toriaukioita.
Aikuisten ja lasten lainausosastot sijaitsevat heti sisääntulon lähettyvillä ensimmäisessä kerroksessa, rauhallisempaa ympäristöä vaativat opiskelutilat ovat toisessa kerroksessa. Sisätilat ovat avointa hallitilaa, jotta myöhempi muunneltavuus olisi helppoa. Vaaleansävyisissä, valoisissa sisätiloissa on Sipisen arkkitehtuurille ominainen ajaton ja neutraali tunnelma.
[21_Lahti_AV]
Vallilan sivukirjasto Helsingissä (Juha Leiviskä ja Asta Björklund, 1990) kiteyttää 1980-luvun kirjastoarkkitehtuurin kehityslinjat. Pieni puurakenteinen ja verhoiltu rakennus on sovitettu tiiviisti rakennetun, suojellun puukaupunginosan mittakaavaan. Päiväkoti ja kirjasto muodostavat rakennusryhmän, joka ympäröi yhteistä puistopihaa. Sisätiloista avautuvat pihanäkymät, sisäkaton korkeusvaihtelut, ja runsas, monista eri suunnista lankeava luonnonvalo antavat juhlavan ja ajattoman tunnelman pikkuruiselle paikalliskirjastolle.
[22a_Vallila_AV]
[22b_Vallila pohjapiirros_AV]
Kirjastorakentaminen kärsii 1990-luvun talouslamasta
Ne kirjastohankkeet, jotka eivät ehtineet toteutua ennen 1990-luvun lamaa, pantiin jäihin. Hankesuunnitelmista ja arkkitehtuurikilpailujen pöytäkirjoista voi lukea uusien kirjastojen arkkitehtuurille asetettuja tavoitteita. Toteutumatta jääneen Espoon kaupunginkirjaston (yleinen arkkitehtuurikilpailu 1991) pöytäkirjassa tähdennetään jatkuvan muutoksen hyväksymistä, kirjaston tilojen joustavuutta ja muunneltavuutta sekä kirjaston tärkeää roolia julkisena rakennuksena. ”Kirjasto ei ole nykyisellään ainoastaan lainaus- ja lukupiste. Se on kohtaamis ja opiskelupaikka ja se tarjoaa myös monipuolisia kulttuurielämyksiä. Myös yleisön oleskelu- ja kahviotilat ovat olennainen osa nykypäivän kirjastoa. Tämä ei kuitenkaan tarkoita sitä, että kirjaston sisätilojen tulisi kilpailla kauppagallerioiden tai puuhamaiden kanssa. Niissä tulee edelleen olla aistittavissa kulttuurirakennuksen pitkä traditio.”
Orastavan tietoyhteiskunnan tarpeet alkoivat näkyä kirjastojen toiminnassa entistä enemmän. Kirjastoihin tuli lainattavaksi harrastevälineitä ja elektronista aineistoa. Tilaohjelmiin ilmaantui entistä enemmän varattavia kokoontumis ja näyttelytiloja. Kirjastoissa oli ”hiljaisuus”-kylttien sijaan ääntä ja elämää.
[23_Joensuu_AV]
[24a_Maaninka_AV]
[24b_Maaninka sisä_AV]
Kirjastoväki tähdensi kirjastojen merkitystä epäkaupallisina julkisina sisätiloina – ”koko kansan” olohuoneena: ”Mahdollisimman monen olisi voitava käyttää kirjastoa, siksi suunnittelun avaintavoitteita ovat kutsuvuus, saavutettavuus, löydettävyys ja helppokäyttöisyys. Kirjasto pyrkii keskelle kylää ja katutasoon!” Vuoden 1998 kirjastolaissa kaikuivat sekä lama-ajan että tietoyhteiskuntamurroksen seuraukset. Lakiteksti korosti yhdenvertaisuuden vaatimuksia ja tunnisti digitaalisen informaation merkityksen painettujen kirjojen ja lehtien rinnalla.
Monet 1990-luvun kirjastoista kärsivät riisutuista tilaohjelmista ja kustannussäästöjen nimissä vaaditusta tehokkuudesta. Kirjastoarkkitehtuuri joutui sopeutumaan vaatimuksiin julkisen rakentamisen muuntojoustavuudesta sekä tasapainoilemaan monien toiminnallisten vaatimusten ja kirjastojen paikallisen, kaupunkikuvallisen ja kulttuurisen merkityksen välillä. Kirjasto nähtiin kaupunkikehityksen välineenä: kirjaston kaltainen kulttuurirakennus oli hyvä keino lisätä hajanaisen taajama alueen vetovoimaisuutta.
Suosittu arkkitehtoninen tehokeino oli kollaasimaisuus: jokainen toiminto sijoitettiin ikään kuin omaan taloonsa, jotka sommiteltiin esimerkiksi sisäkadun ympärille. Rakennukselle luotiin kaksi toisistaan selkeästi erottuvaa suuntaa: ”selkä- ja vatsapuoli”. Raision kirjasto-auditorion (Hannu Tikka, yleinen arkkitehtuurikilpailu 1995, valm. 1999) arkkitehtoninen pääidea perustuu eri muotoisten ja väristen tilakappaleiden muodostamaan kokonaisuuteen: auditorio, kirjastosalit, lehtilukusali ja musiikkiosasto ovat kukin oma osasensa, jotka aulan sisäkatu yhdistää toisiinsa.
[25a_Raisio piha_AV]
[25b_Raisio plaani_AV]
2000-luvun kirjastot palvelevat yhä moninaisempia käyttäjäryhmiä ja tarpeita
Yleiset kirjastot palvelevat käyttäjiään edistämällä informaation saavutettavuutta kaikissa olomuodoissa sekä edesauttamalla sosiaalista yhteenkuuluvaisuuden tunnetta kaikkialla Suomessa. Vaikka kirjastojen määrä on supistunut, julkiset kirjastot palvelevat 2000-luvulla yhä moninaisempia käyttäjäryhmiä ja käyttötarpeita. Kirjastot ovat muuttaneet kauppakeskuksiin, kyläkeskuksiin ja kulttuuritaloihin, ja niiden tiloihin asettautuu yhä enemmän uusia toimijoita viranomaisista järjestöihin ja taideyhteisöihin.
Vuonna 2017 voimaan astuneen uuden kirjastolain lähtökohtia ovat yhteisöllisyys, moniarvoisuus ja kulttuurinen moninaisuus. Tulevaisuuden kirjasto edistää väestön yhdenvertaisia mahdollisuuksia sivistykseen ja kulttuuriin, tiedon saatavuutta ja käyttöä, lukemiskulttuuria ja monipuolista lukutaitoa, mahdollisuuksia elinikäiseen oppimiseen ja osaamisen kehittämiseen sekä aktiivista kansalaisuutta, demokratiaa ja sananvapautta.
[26_Sello_AV]
[27_Suomen kirjastoverkko_AV]
Kirjoittaja
Anni Vartola, tekniikan tohtori, artikkeli perustuu tekijän tutkimuksiin hänen laatiessaan Venetsian arkkitehtuuribiennaalin 2018 Mind-Building – näyttelykäsikirjoitusta. Näyttely esitteli suomalaista kirjastoarkkitehtuuria ja sen kehittymistä. Vartola on arkkitehtuurin teorian vanhempi yliopistonlehtori Aalto-yliopiston arkkitehtuurin laitoksella.
Artikkeli on julkaistu 2019.
LÄHTEET
Aaltonen, Hanna & Carlson, Joni 1986. Suomalaista kirjastoarkkitehtuuria. Helsinki: Kirjastopalvelu Oy.
Aaltonen, Hanna 2009. Kirjavarastosta olohuoneeksi: yleisten kirjastojen tilojen historiaa. Teoksessa Yleisten kirjastojen historia. Toim. Ilkka Mäkinen. Helsinki: BTJ Kustannus.
Arkkitehtitoimisto Aitoaho & Viljanen 1992: Vihannin kirjasto-kotiseutukeskus. Arkkitehti 6/1992:35-36.
Arkkitehtitoimisto Helin & Siitonen 1992: Joensuun kirjasto. Arkkitehti 6/1992:24-33.
Arkkitehtitoimisto Pia Krogius 2012. Oulun pääkirjaston rakennushistoriaselvitys. OUKA Pääkirjasto RHS kirjastolle.pdf (haettu 6.2.2019).
Berger, Laura 2018. The Building that Disappeared. Espoo: Aalto Arts Books.
Hadley, Chalmers 1910. Why Do We Need a Public Library? Material for a Library Campaign. Chicago: American Library Association Publishing Board. http://www.gutenberg.org/files... (haettu 25.11.2018).
Hirn, Sven 1998. Kansankirjastosta kaupunginkirjastoksi: Helsingin Kaupunginkirjasto 1860–1940. Helsinki: Helsingin kaupunginkirjasto.
EBLIDA – The European Bureau of Library, Information and Documentation Associations 2015. Survey on Public and Academic Libraries. http://www.eblida.org/activiti... (haettu 25.4.2019).
Espoon pääkirjaston yleinen suunnittelukilpailu 1992: Arkkitehtuurikilpailuja 2/1992.
Haapoja, Risto & Tikka, Hannu 1999: Raision kirjasto-auditorio. Arkkitehti 5/1999:44-53.
Huttunen, Hannu 1993: Maaningan kunnantalo. Arkkitehti 1/1993:50-55.
Junnila, Veikko 1977. Kirjastosuunnittelun opas. Helsinki: Martela Oy.
Kahri, Esko 1970: Rakennussuunnittelun tavoitteet 70-luvulla. Arkkitehti 2/1970:37-42.
Kannila, Helle 1966. Kirjastoista kirjoitettua. Kirjoituksia vuosilta 1913–1963. Helsinki: Suomen Kirjastoseura, Otava.
Kanninen, Mauno 1948. Maaseudun kirjastohuoneistot. Helsinki: Suomen Kirjastoseura, Maalaiskuntien Liitto.
Kanninen, Mauno 1953. Uusia kirjastohuoneistoja: Kuvaopas kirjastojen suunnittelijoille. Helsinki: Valtion kirjastotoimisto.
Kansankirjastolaki 131/1928. Suomen asetuskokoelma. https://fi.wikisource.org/wiki/Kansankirjastolaki. Muutokset: https://fi.wikisource.org/wiki...äivänä_1928_annetun_kansankirjastolain_4,_5_ja_8_§:n_muuttamisesta; https://fi.wikisource.org/wiki/Asetus_kansankirjastoista_(1941) (haettu 14.3.2019).
Kekki, Kirsi 2013. Menestystarina nimeltä kirjasto. Helsinki: Avain.
Kirjastolaki 1961. Suomen asetuskokoelma 235/1961. https://fi.wikisource.org/wiki/Kirjastolaki_(1961) (haettu 20.3.2019).
Kirjastolaki 1986. Suomen asetuskokoelma 235/1986. OM, Edita. https://www.finlex.fi/fi/laki/... (haettu 20.5.2019).
Kirjastolaki 1998. Finlex 904/1998. https://www.finlex.fi/fi/laki/... (haettu 20.5.2019).
Kuopion kirjastotalo 1969: Arkkitehti 8/1969:20-25.
Laki yleisistä kirjastoista 29.12.2016/1492. OM, Edita. https://www.finlex.fi/fi/laki/... (haettu 23.1.2018).
Lappo, Osmo: 1971: Avotilakoulu – tulevaisuuden koulu? Arkkitehti 7/1971:27-30.
Leppänen, Kaarlo 1982: Arkkitehdin ongelma. Kirjastolehti 2/1982:526-527.
Mäkinen, Ilkka 2009a. Pitäjänkirjastojen läpimurto. Teoksessa Yleisten kirjastojen historia. Toim. Ilkka Mäkinen. Helsinki: BTJ Kustannus.
Mäkinen, Ilkka 2009b. Kirjasto fennomaanien kansansivistysohjelmassa. Teoksessa Yleisten kirjastojen historia. Toim. Ilkka Mäkinen. Helsinki: BTJ Kustannus.
Mäkinen, Ilkka 2009v. Kirjastot sodassa, sota kirjastoissa. Teoksessa Yleisten kirjastojen historia. Toim. Ilkka Mäkinen. Helsinki: BTJ Kustannus.
Mäkinen, Ilkka 2009d. 1950-luvun perintö. Teoksessa Yleisten kirjastojen historia. Toim. Ilkka Mäkinen. Helsinki: BTJ Kustannus.
Mäkinen, Ilkka 2009e. Yleinen kirjasto hyvinvointiyhteiskunnassa 1960-luvun alusta vuosituhannen vaihteeseen. Teoksessa Yleisten kirjastojen historia. Toim. Ilkka Mäkinen. Helsinki: BTJ Kustannus.
Packalén, Ulla 1986: Kirjasto tänään ja huomenna. Teoksessa Kirjastotilojen suunnittelu. Toim. Eeva-Maija Tammekann. Helsinki: Kirjastopalvelu.
Packalén, Ulla 1992: Yhteinen kirjastomme. Arkkitehti 6/1992:18-23.
Palmgren, Valfrid 1910. Kirjastot ja kansalaiskasvatus. Muistiinpanoja opintomatkalta Pohjois-Amerikan Yhdysvaltoihin. Helsinki: Kansanvalistusseura.
Patomo, Timo 1979: Soidinkuvat: suunnitelma Tampereen kirjastotaloksi. Tampere: lähikuvia ja soidinkuvia vuonna 1979. Toim. Seppo Järvenpää ja työryhmä. Tampere: Tampereen teknillinen korkeakoulu, Arkkitehtuurin osasto, Arkkitehtikilta.
Pietilä, Reima 1983. Rakennusten ja kaupunkikuvien taistelevat metsot. Arkkitehti 3/1983:67-69.
Ranta, Kaarina 1979: Valtion osallistuminen kirjaston rakentamiseen. Kirjastolehti 2/1975:418-422.
Salmio-Toiviainen, Tarja 1958: Näkökohtia kirjaston suunnittelussa ja sisustamisessa. Kirjastolehti 1958/1: 50–53.
Suomen yleisten kirjastojen tilastot 2018. OKM. https://tilastot.kirjastot.fi/ (haettu 29.3.2019).
Sipinen, Arto 1992: Lahden pääkirjasto. Arkkitehti 6/1992:51.
Valtioneuvoston päätös kirjastorakennusten suunnittelun, rakentamisen ja normaalihintojen perusteista 236/1987. OM, Edita. https://www.finlex.fi/fi/laki/... (haettu 23.1.2018).
Vartola, Anni 2011: Liike ja vastaliike: vaikutelmia suomalaisesta postmodernismista. Arkkitehti 6/2011:10-21.
Wacklin, Matti 2011. Kaikkien sielujen apteekki. Tampereen kaupunginkirjasto 150 vuotta. Tampere: Tampereen kaupunginkirjasto – Pirkanmaan maakuntakirjasto.
Väestö 2019. Tilastokeskus. https://www.tilastokeskus.fi/t... (haettu 29.3.2019).
Äyräs, Anneli 1986: Yleisten kirjastojen rakentaminen. Kirjastolehti 2/1986.
_Oik.: Töölön kirjasto, Helsinki (Aarne Ervi, 1970). Kuva: Teuvo Kanerva, Museovirasto.
Suurten taajamien kirjastoverkko tiivistyy 1970-luvulla – kirjastosta muunneltava ja laajennettava
Kiihtyvä kaupungistuminen ja kuntaliitokset lisäsivät paineita uudistaa ja tiivistää etenkin suurten taajamien kirjastoverkkoa. Kirjastotoimesta vastaava kouluhallitus valvoi uusien kirjastohankkeiden käynnistämistä ja suunnitelmia, sillä kirjastorakentaminen oli 1970-luvun öljykriisin aiheuttaman taloustaantuman takia tarkkaan säänneltyä ja normitettua. Valtionapu edellytti kaikkien uusien kirjastohankkeiden pääpiirustusten ja työselitysten etukäteistä hyväksyntää. Lisäksi yli 250 m2 suuruisten kirjastorakennusten luonnokset ja rakennustapaselostus tuli tarkastuttaa etukäteen.
Kirjastojen suunnitteluohjeissa alleviivattiin tilojen laajennettavuutta ja muunneltavuutta sekä avoimen kirjastomaiseman ihannetta. Suunnitteluohjeet kannustivat käyttämään moduulimitoitusta ja pyrkimään selkeisiin ja yksinkertaisiin rakenteisiin sekä suuriin ja avariin sisätiloihin, jotta tilamuutokset olisivat joustavasti toteutettavissa. Tilasuunnittelussa tuli pyrkiä ”yleispätevyyteen, selkeyteen, avoimuuteen, keveyteen ja siirreltävyyteen – tiloissa, teknisissä ratkaisuissa, sisustuksessa, jopa yksittäisissä kalusteissa”.
1970-luvun kirjastoilla ei juurikaan nähty olevan julkisen rakennuksen symboliarvoa. Kirjastoista puhuttiin yleisönpalvelulaitoksina , ja arkkitehtuurin ensisijainen tehtävä oli palvella käyttäjän ja yhteiskunnan tarpeita. Rakennustaiteelliset päämäärät koettiin yleisemminkin ajankohdan poliittisessa ilmapiirissä liian yksilökeskeisiksi tai suppean yläluokan arvokäsityksiä vastaaviksi.
[13_Kerava_AV]
Automaatit ja tietokoneet saapuvat kirjastoon
Taloudellisten suhdanteiden, arkkitehtonisten arvojen ja poliittisten painotusten ohella myös tieto- ja viestintätekniikan kehitys vaikutti kirjastojen merkitykseen ja toimintakulttuuriin. Audiovisuaalisista laitteista, lainausautomaateista ja kopiokoneista tuli arkipäivää, ja erilaisille tiedonhaku ja ATK-päätteille tarvittiin tilaa. Kirjastoilta odotettiin aktiivisuutta: kirjastojen tuli esitellä uutta teknologiaa ja opastaa sen käyttöön.
Kaupunkien uusiin lähiöihin tarvittiin samaan aikaan lisää kirjastopalveluita ja yhteisöllisyyttä ruokkivia kokoontumispaikkoja. Pienissä 1970-luvun lähikirjastoissa näkyi pyrkimys olohuonemaiseen kodikkuuteen. Niihin kalustettiin matalien kirjahyllyjen rajaamia saarekkeita ja pehmeitä ja värikkäitä istuskeluryhmiä.
[14_Laajasalo_AV]
1980-luvun vaihteen murros: Oulun pääkirjasto ja Tammisaaren kaupunginkirjasto
Kirjastorakentaminen alkoi elpyä, kun öljykriisin aiheuttama taloudellinen taantuma helpottui. Kustannussäätely ja normiohjaus jatkuivat. Vuoden 1978 valtionosuusuudistus pohjautui uuteen kunnalliseen kantokykyluokkajärjestelmään, ja se nosti etenkin köyhempien kuntien kirjastojen valtionapua ajan kustannustasoon suhteutettuna peräti 73 % suuremmaksi kuin ennen. Kirjastojen asema hyvinvointiyhteiskuntaa tukevina merkkirakennuksina vahvistui, ja niihin suhtauduttiin kunnallisina tietokeskuksina ja yleisinä kohtauspaikkoina.
Oulun keskustan torialueen rantaan valmistunut pääkirjasto (Marjatta ja Martti Jaatinen, asemakaavakilpailu 1962–63, valm. 1981; sisustus Studio Nurmesniemi) on osa monumentaalikeskussommitelmaa. Asemakaavakilpailun tavoite oli antaa Oulun läänin pääkaupungille sen asemaa vastaava imago kaupungintalon, teatterin ja konserttitalon ja niiden väliin jäävän juhla-aukion muodostaman uuden sydämen avulla. Voittanut ehdotus ”Saari” sijoitti rakennusryhmän suorakulmaiselle, veden ympäröimälle tekosaarelle.
Alkuperäisestä monumentaalikeskussuunnitelmasta toteutui vain teatteritalo (1972), sillä konserttitalon tilalle päätettiin rakentaa uusi pääkirjasto–maakuntakirjasto. Sijoittelu antoi kirjastolle merkittävän ja tärkeän kulttuurilaitoksen aseman kaupunkikuvassa. Rakennus on paikallavalettua betonia ja sen julkisivuissa on käytetty alumiinisäleikköä, lasia, metallikasetteja ja mosaiikkibetonia; sisällä lähinnä sileävalettua betonia, mosaiikkibetonilaattaa, alumiinikasetteja, lasia ja puuta.
Kirjaston tilat ovat neljässä kerroksessa, ja kaikilta osastoilta avautuu näkymiä kaupunkiin tai jokisuistoon. Pohjakerroksessa ovat yleisöpalvelutilat ja lehtisali; kahdessa seuraavassa sijaitsevat aikuisten ja lasten osastot, opintosali sekä kokoelma- ja työtiloja; kirjavarasto ja henkilökunnan tilat ovat ylimmässä kerroksessa. Sisätilojen sydän on koko rakennuksen korkuinen keskusaula veistoksellisine betoniportaikkoineen. Alkuperäinen sisustus sovitettiin taidokkaasti tehostamaan rakennuksen ilmavaa tunnelmaa ja auttamaan suuren kirjaston eri osastojen hahmottamista.
[15a_Oulun_sisä_AV]
[15b_Oulu_AV]
Pieni Tammisaaren kaupunginkirjasto (Ola Hansson, 1977) sopeutuu paikkakunnan ominaispiirteisiin ja kaupunkikuvaan. Erkkerit, pieniruutuiset ikkunat ja poimutettu katto myötäilevät pienimittakaavaisen puukaupungin ja kirjastoa ympäröivien rakennusten tyyliä ja pehmentävät rakennusajankohdalle tyypillistä moduuliarkkitehtuuria.
[16_Tammisaari_AV]
1980-luvulla rakennetaan yli 200 uutta kirjastoa
Vuonna 1986 uusittu kirjastolaki ja taloudellisen noususuhdanteen siivittämä uusi valtionapupolitiikka saivat aikaan ennennäkemättömän rakennusbuumin: 1980-luvulla rakennettiin yli 200 uutta kirjastoa.
1980-luku oli myös videoiden, ATK-kurssien, telefaxien, ensimmäisten matkapuhelimien, paikallisradioiden, kulutusjuhlan ja tiivistyvän EU-yhteistyön aikaa. Tietokonevetoinen tulevaisuus pelotti: ”Tuleeko kirjastosta ainoastaan tietojärjestelmän rakennus- ja tallennuspiste, toimisto tai tietotehdas, johon käyttäjät ottavat yhteyden päätteiltään kotoaan? Tarvitsemmeko enää tiedon temppeleitä tai yhteisiä olohuoneita?”
Arkkitehtuurissa kritiikki 1970-luvun anonyymia ”laatikkolinjaa” kohtaan kasvoi. Postmodernismiksi kutsuttu arkkitehtuuriajattelu kannusti arkkitehteja etsimään vaihtoehtoja: Miten ilmaista kirjaston symbolista merkitystä yhteiskunnallisena ja kaupunkikuvallisena arvorakennuksena? Miten paikallisyhteisö ja käyttäjät kokisivat uuden rakennuksen omakseen? Enää ei riittänyt, että kirjastorakennus toimii moitteettomasti kuin kone. Sen arkkitehtuurin tuli kuvastaa kirjastolaitoksen kulttuurista merkitystä ja heijastella paikallisen miljöön piirteitä.
Tampereen pääkirjasto Metso
Yksi keskustelua herättäneistä uusista kirjastohankkeista oli Tampereen pääkirjasto Metso (Reima ja Raili Pietilä, yleinen arkkitehtuurikilpailu 1978, valm. 1986). ”Soidinmenot” kilpailuehdotuksen kaarevat ja veistokselliset muodot ja ylhäältä katsottuna metsoa muistuttava hahmo poikkesivat arkkitehtuurin valtavirrasta.
Reima Pietilä selitti kirjaston yksilöllisen muotokielen johtuvan arkkitehtien halusta antaa kirjastolle ”1980-luvun ajankasvot” ja tehdä kirjastosta maamerkki ja suomalaisen kulttuurin ilmaisija. Pietilä kritisoi vallitsevaa käsitystä tarkastella arkkitehtuuria pelkästään sen käyttöarvon valossa. Hän tähdensi, että Metson arkkitehtuuri pyrki tekemään uuden runollisen tulkinnan rakennuksen ja luonnon yhteydestä. Mikään Metson arkkitehtuurissa ei ollut yleispätevää: kirjaston pienimmätkin yksityiskohdat suunniteltiin Pietilöiden toimistossa.
[17a_Metso piirustuksia_AV]
[17b_Metso pohja_AV]
[17c_Metso tiski_AV]
Postmodernismi näkyy mittakaavassa, väreissä ja monimuotoisuudessa: Kuhmon kirjasto ja Vihannin kirjasto-kotiseutukeskus
Postmodernistista arkkitehtuuriajattelua ilmentävät etenkin Kuhmon kirjasto (Jyrki Tasa, yleinen arkkitehtuurikilpailu 1988) ja Vihannin kirjasto–kotiseutukeskus (Aitoaho & Viljanen, kutsukilpailu 1985, valm. 1992) – monien ns. Oulun koulun pieniin maaseututaajamiin suunnittelemien kirjastojen ohella.
Kuhmon kirjastossa ajan henki näkyy rakennuksen tilallisessa ilottelussa, värikkäissä, leikkisissä ja huomiota herättävissä yksityiskohdissa. Arkkitehtoninen viimeistely ulottuu Pietilöiden Metso-kirjaston tapaan kalusteisiin, valaisimiin ja vetimiin saakka.
[18a_Kuhmo kirjasali_AV]
[18b_Kuhmo lastenosasto_AV]
[18c_Kuhmo pohjapiirros_AV]
[18d_Kuhmo leikkaus_AV]
Vihannin kirjasto-kotiseutukeskus yhdistää paikallista kulttuuriperintöä kunnioittavan punamulta-arkkitehtuurin modernin ajan materiaaleihin ja modernin kirjaston toimintoihin. Pääosin puurakenteinen ja puuverhoiltu rakennus on Oulun koulun ideologian mukaisesti paikalla rakennettu. Kirjasto on osa monitoimitaloa, jossa ovat nuorisotilat, kansalaisopisto, kotiseutuarkisto, kotiseutu- ja kaivosmuseo, yrityspalvelukeskus ja kierrätyskeskus.
[19a_Vihanti_AV]
[19b_Vihanti ulkoa_AV]
Modernismin perinne jatkuu: Helsingin Pasilan pääkirjasto, Lahden kulttuurikeskus-pääkirjasto ja Vallilan sivukirjasto
1980-luvun arkkitehtuurissa esiintyi postmodernismin rinnalla myös modernismin perinteitä jatkavia ja uudistavia pyrkimyksiä. Niitä olivat mm. selkeän ja suorakulmaisen muotokielen käyttäminen, valkoisen värin, puhtaaksivaletun betonin, luonnonkiven, punatiilen ja puupintojen suosiminen sekä ns. ”uusvanhan”, lavastemaiseksi koetun kansanomaisuuden vastustaminen.
Helsingin pääkirjasto Itä-Pasilassa (Kaarlo Leppänen, 1986) on helppo tunnistaa julkiseksi rakennukseksi korkeiden betonielementtitalojen hallitsemasta ympäristöstä. Kirjaston pääsisäänkäynti ja pääjulkisivut sijaitsevat katutasoa ylempänä jalankulkukannella, koska Itä-Pasilassa autoliikenne ja jalankulku on erotettu eri tasoille.
Kirjastossa on muistumia ja lainauksia Alvar Aallon suunnittelemien rakennusten väri- ja materiaalimaailmasta. Julkisivuelementeissä on tummansinistä klinkkeriä ja pääsisäänkäynnin edustan pylväissä on klinkkeripäällystystä muistuttava pintakäsittely. Valkoiset sisätilat ympäröivät kaksikerroksista keskihallia ja sisäsuihkulähdettä. Tiloja valaisee epäsuora luonnonvalo kattoikkunoiden kautta. Sisäsuihkulähteessä on valkoista marmoria, parvella ja pääportaissa messinkiputkikaide, tiililaattapintaiset porrasaskelmat on reunustettu tammilistalla ja parvea kiertää, tammilistalla reunustettu musta laminaattitaso.
[20a_Helsinki pohja 1_AV]
[20b_Helsinki pohja 2_AV]
[20c_Pasilan kirjasto_AV]
[20d_Pasilan kirjasto_AV]
Lahden kulttuurikeskus-pääkirjaston (Arto Sipinen, yleinen arkkitehtuurikilpailu 1983, valm. 1990) ilmava muotokieli korostaa kirjaston arvostettua asemaa kulttuuri-instituutiona. Kirjasto-kulttuurikeskus-yhdistelmät yleistyivät 1980–90 lukujen taitteessa, ja Sipinen suunnitteli niistä monia (Imatran kulttuurikeskus, kutsukilpailu 1981, valm. 1986; Espoon Tapiolan kulttuurikeskus, yleinen arkkitehtuurikilpailu 1980, valm. 1989).
Lahden pääkirjasto on osa kulttuurirakennusten keskittymää yhdessä teatteritalon, taidemuseon ja aikuiskoulutuskeskuksen kanssa. Kirjaston selkeälinjaiset, umpi ja lasipintoihin jakautuvat, valkoiseksi ohutrapatut rakennusmassat on poimutettu niin, että kulttuurirakennusten väliin jää vesialtaiden ja istutusten elävöittämiä toriaukioita.
Aikuisten ja lasten lainausosastot sijaitsevat heti sisääntulon lähettyvillä ensimmäisessä kerroksessa, rauhallisempaa ympäristöä vaativat opiskelutilat ovat toisessa kerroksessa. Sisätilat ovat avointa hallitilaa, jotta myöhempi muunneltavuus olisi helppoa. Vaaleansävyisissä, valoisissa sisätiloissa on Sipisen arkkitehtuurille ominainen ajaton ja neutraali tunnelma.
[21_Lahti_AV]
Vallilan sivukirjasto Helsingissä (Juha Leiviskä ja Asta Björklund, 1990) kiteyttää 1980-luvun kirjastoarkkitehtuurin kehityslinjat. Pieni puurakenteinen ja verhoiltu rakennus on sovitettu tiiviisti rakennetun, suojellun puukaupunginosan mittakaavaan. Päiväkoti ja kirjasto muodostavat rakennusryhmän, joka ympäröi yhteistä puistopihaa. Sisätiloista avautuvat pihanäkymät, sisäkaton korkeusvaihtelut, ja runsas, monista eri suunnista lankeava luonnonvalo antavat juhlavan ja ajattoman tunnelman pikkuruiselle paikalliskirjastolle.
[22a_Vallila_AV]
[22b_Vallila pohjapiirros_AV]
Kirjastorakentaminen kärsii 1990-luvun talouslamasta
Ne kirjastohankkeet, jotka eivät ehtineet toteutua ennen 1990-luvun lamaa, pantiin jäihin. Hankesuunnitelmista ja arkkitehtuurikilpailujen pöytäkirjoista voi lukea uusien kirjastojen arkkitehtuurille asetettuja tavoitteita. Toteutumatta jääneen Espoon kaupunginkirjaston (yleinen arkkitehtuurikilpailu 1991) pöytäkirjassa tähdennetään jatkuvan muutoksen hyväksymistä, kirjaston tilojen joustavuutta ja muunneltavuutta sekä kirjaston tärkeää roolia julkisena rakennuksena. ”Kirjasto ei ole nykyisellään ainoastaan lainaus- ja lukupiste. Se on kohtaamis ja opiskelupaikka ja se tarjoaa myös monipuolisia kulttuurielämyksiä. Myös yleisön oleskelu- ja kahviotilat ovat olennainen osa nykypäivän kirjastoa. Tämä ei kuitenkaan tarkoita sitä, että kirjaston sisätilojen tulisi kilpailla kauppagallerioiden tai puuhamaiden kanssa. Niissä tulee edelleen olla aistittavissa kulttuurirakennuksen pitkä traditio.”
Orastavan tietoyhteiskunnan tarpeet alkoivat näkyä kirjastojen toiminnassa entistä enemmän. Kirjastoihin tuli lainattavaksi harrastevälineitä ja elektronista aineistoa. Tilaohjelmiin ilmaantui entistä enemmän varattavia kokoontumis ja näyttelytiloja. Kirjastoissa oli ”hiljaisuus”-kylttien sijaan ääntä ja elämää.
[23_Joensuu_AV]
[24a_Maaninka_AV]
[24b_Maaninka sisä_AV]
Kirjastoväki tähdensi kirjastojen merkitystä epäkaupallisina julkisina sisätiloina – ”koko kansan” olohuoneena: ”Mahdollisimman monen olisi voitava käyttää kirjastoa, siksi suunnittelun avaintavoitteita ovat kutsuvuus, saavutettavuus, löydettävyys ja helppokäyttöisyys. Kirjasto pyrkii keskelle kylää ja katutasoon!” Vuoden 1998 kirjastolaissa kaikuivat sekä lama-ajan että tietoyhteiskuntamurroksen seuraukset. Lakiteksti korosti yhdenvertaisuuden vaatimuksia ja tunnisti digitaalisen informaation merkityksen painettujen kirjojen ja lehtien rinnalla.
Monet 1990-luvun kirjastoista kärsivät riisutuista tilaohjelmista ja kustannussäästöjen nimissä vaaditusta tehokkuudesta. Kirjastoarkkitehtuuri joutui sopeutumaan vaatimuksiin julkisen rakentamisen muuntojoustavuudesta sekä tasapainoilemaan monien toiminnallisten vaatimusten ja kirjastojen paikallisen, kaupunkikuvallisen ja kulttuurisen merkityksen välillä. Kirjasto nähtiin kaupunkikehityksen välineenä: kirjaston kaltainen kulttuurirakennus oli hyvä keino lisätä hajanaisen taajama alueen vetovoimaisuutta.
Suosittu arkkitehtoninen tehokeino oli kollaasimaisuus: jokainen toiminto sijoitettiin ikään kuin omaan taloonsa, jotka sommiteltiin esimerkiksi sisäkadun ympärille. Rakennukselle luotiin kaksi toisistaan selkeästi erottuvaa suuntaa: ”selkä- ja vatsapuoli”. Raision kirjasto-auditorion (Hannu Tikka, yleinen arkkitehtuurikilpailu 1995, valm. 1999) arkkitehtoninen pääidea perustuu eri muotoisten ja väristen tilakappaleiden muodostamaan kokonaisuuteen: auditorio, kirjastosalit, lehtilukusali ja musiikkiosasto ovat kukin oma osasensa, jotka aulan sisäkatu yhdistää toisiinsa.
[25a_Raisio piha_AV]
[25b_Raisio plaani_AV]
2000-luvun kirjastot palvelevat yhä moninaisempia käyttäjäryhmiä ja tarpeita
Yleiset kirjastot palvelevat käyttäjiään edistämällä informaation saavutettavuutta kaikissa olomuodoissa sekä edesauttamalla sosiaalista yhteenkuuluvaisuuden tunnetta kaikkialla Suomessa. Vaikka kirjastojen määrä on supistunut, julkiset kirjastot palvelevat 2000-luvulla yhä moninaisempia käyttäjäryhmiä ja käyttötarpeita. Kirjastot ovat muuttaneet kauppakeskuksiin, kyläkeskuksiin ja kulttuuritaloihin, ja niiden tiloihin asettautuu yhä enemmän uusia toimijoita viranomaisista järjestöihin ja taideyhteisöihin.
Vuonna 2017 voimaan astuneen uuden kirjastolain lähtökohtia ovat yhteisöllisyys, moniarvoisuus ja kulttuurinen moninaisuus. Tulevaisuuden kirjasto edistää väestön yhdenvertaisia mahdollisuuksia sivistykseen ja kulttuuriin, tiedon saatavuutta ja käyttöä, lukemiskulttuuria ja monipuolista lukutaitoa, mahdollisuuksia elinikäiseen oppimiseen ja osaamisen kehittämiseen sekä aktiivista kansalaisuutta, demokratiaa ja sananvapautta.
[26_Sello_AV]
[27_Suomen kirjastoverkko_AV]
Kirjoittaja
Anni Vartola, tekniikan tohtori, artikkeli perustuu tekijän tutkimuksiin hänen laatiessaan Venetsian arkkitehtuuribiennaalin 2018 Mind-Building – näyttelykäsikirjoitusta. Näyttely esitteli suomalaista kirjastoarkkitehtuuria ja sen kehittymistä. Vartola on arkkitehtuurin teorian vanhempi yliopistonlehtori Aalto-yliopiston arkkitehtuurin laitoksella.
Artikkeli on julkaistu 2019.
LÄHTEET
Aaltonen, Hanna & Carlson, Joni 1986. Suomalaista kirjastoarkkitehtuuria. Helsinki: Kirjastopalvelu Oy.
Aaltonen, Hanna 2009. Kirjavarastosta olohuoneeksi: yleisten kirjastojen tilojen historiaa. Teoksessa Yleisten kirjastojen historia. Toim. Ilkka Mäkinen. Helsinki: BTJ Kustannus.
Arkkitehtitoimisto Aitoaho & Viljanen 1992: Vihannin kirjasto-kotiseutukeskus. Arkkitehti 6/1992:35-36.
Arkkitehtitoimisto Helin & Siitonen 1992: Joensuun kirjasto. Arkkitehti 6/1992:24-33.
Arkkitehtitoimisto Pia Krogius 2012. Oulun pääkirjaston rakennushistoriaselvitys. OUKA Pääkirjasto RHS kirjastolle.pdf (haettu 6.2.2019).
Berger, Laura 2018. The Building that Disappeared. Espoo: Aalto Arts Books.
Hadley, Chalmers 1910. Why Do We Need a Public Library? Material for a Library Campaign. Chicago: American Library Association Publishing Board. http://www.gutenberg.org/files... (haettu 25.11.2018).
Hirn, Sven 1998. Kansankirjastosta kaupunginkirjastoksi: Helsingin Kaupunginkirjasto 1860–1940. Helsinki: Helsingin kaupunginkirjasto.
EBLIDA – The European Bureau of Library, Information and Documentation Associations 2015. Survey on Public and Academic Libraries. http://www.eblida.org/activiti... (haettu 25.4.2019).
Espoon pääkirjaston yleinen suunnittelukilpailu 1992: Arkkitehtuurikilpailuja 2/1992.
Haapoja, Risto & Tikka, Hannu 1999: Raision kirjasto-auditorio. Arkkitehti 5/1999:44-53.
Huttunen, Hannu 1993: Maaningan kunnantalo. Arkkitehti 1/1993:50-55.
Junnila, Veikko 1977. Kirjastosuunnittelun opas. Helsinki: Martela Oy.
Kahri, Esko 1970: Rakennussuunnittelun tavoitteet 70-luvulla. Arkkitehti 2/1970:37-42.
Kannila, Helle 1966. Kirjastoista kirjoitettua. Kirjoituksia vuosilta 1913–1963. Helsinki: Suomen Kirjastoseura, Otava.
Kanninen, Mauno 1948. Maaseudun kirjastohuoneistot. Helsinki: Suomen Kirjastoseura, Maalaiskuntien Liitto.
Kanninen, Mauno 1953. Uusia kirjastohuoneistoja: Kuvaopas kirjastojen suunnittelijoille. Helsinki: Valtion kirjastotoimisto.
Kansankirjastolaki 131/1928. Suomen asetuskokoelma. https://fi.wikisource.org/wiki/Kansankirjastolaki. Muutokset: https://fi.wikisource.org/wiki...äivänä_1928_annetun_kansankirjastolain_4,_5_ja_8_§:n_muuttamisesta; https://fi.wikisource.org/wiki/Asetus_kansankirjastoista_(1941) (haettu 14.3.2019).
Kekki, Kirsi 2013. Menestystarina nimeltä kirjasto. Helsinki: Avain.
Kirjastolaki 1961. Suomen asetuskokoelma 235/1961. https://fi.wikisource.org/wiki/Kirjastolaki_(1961) (haettu 20.3.2019).
Kirjastolaki 1986. Suomen asetuskokoelma 235/1986. OM, Edita. https://www.finlex.fi/fi/laki/... (haettu 20.5.2019).
Kirjastolaki 1998. Finlex 904/1998. https://www.finlex.fi/fi/laki/... (haettu 20.5.2019).
Kuopion kirjastotalo 1969: Arkkitehti 8/1969:20-25.
Laki yleisistä kirjastoista 29.12.2016/1492. OM, Edita. https://www.finlex.fi/fi/laki/... (haettu 23.1.2018).
Lappo, Osmo: 1971: Avotilakoulu – tulevaisuuden koulu? Arkkitehti 7/1971:27-30.
Leppänen, Kaarlo 1982: Arkkitehdin ongelma. Kirjastolehti 2/1982:526-527.
Mäkinen, Ilkka 2009a. Pitäjänkirjastojen läpimurto. Teoksessa Yleisten kirjastojen historia. Toim. Ilkka Mäkinen. Helsinki: BTJ Kustannus.
Mäkinen, Ilkka 2009b. Kirjasto fennomaanien kansansivistysohjelmassa. Teoksessa Yleisten kirjastojen historia. Toim. Ilkka Mäkinen. Helsinki: BTJ Kustannus.
Mäkinen, Ilkka 2009v. Kirjastot sodassa, sota kirjastoissa. Teoksessa Yleisten kirjastojen historia. Toim. Ilkka Mäkinen. Helsinki: BTJ Kustannus.
Mäkinen, Ilkka 2009d. 1950-luvun perintö. Teoksessa Yleisten kirjastojen historia. Toim. Ilkka Mäkinen. Helsinki: BTJ Kustannus.
Mäkinen, Ilkka 2009e. Yleinen kirjasto hyvinvointiyhteiskunnassa 1960-luvun alusta vuosituhannen vaihteeseen. Teoksessa Yleisten kirjastojen historia. Toim. Ilkka Mäkinen. Helsinki: BTJ Kustannus.
Packalén, Ulla 1986: Kirjasto tänään ja huomenna. Teoksessa Kirjastotilojen suunnittelu. Toim. Eeva-Maija Tammekann. Helsinki: Kirjastopalvelu.
Packalén, Ulla 1992: Yhteinen kirjastomme. Arkkitehti 6/1992:18-23.
Palmgren, Valfrid 1910. Kirjastot ja kansalaiskasvatus. Muistiinpanoja opintomatkalta Pohjois-Amerikan Yhdysvaltoihin. Helsinki: Kansanvalistusseura.
Patomo, Timo 1979: Soidinkuvat: suunnitelma Tampereen kirjastotaloksi. Tampere: lähikuvia ja soidinkuvia vuonna 1979. Toim. Seppo Järvenpää ja työryhmä. Tampere: Tampereen teknillinen korkeakoulu, Arkkitehtuurin osasto, Arkkitehtikilta.
Pietilä, Reima 1983. Rakennusten ja kaupunkikuvien taistelevat metsot. Arkkitehti 3/1983:67-69.
Ranta, Kaarina 1979: Valtion osallistuminen kirjaston rakentamiseen. Kirjastolehti 2/1975:418-422.
Salmio-Toiviainen, Tarja 1958: Näkökohtia kirjaston suunnittelussa ja sisustamisessa. Kirjastolehti 1958/1: 50–53.
Suomen yleisten kirjastojen tilastot 2018. OKM. https://tilastot.kirjastot.fi/ (haettu 29.3.2019).
Sipinen, Arto 1992: Lahden pääkirjasto. Arkkitehti 6/1992:51.
Valtioneuvoston päätös kirjastorakennusten suunnittelun, rakentamisen ja normaalihintojen perusteista 236/1987. OM, Edita. https://www.finlex.fi/fi/laki/... (haettu 23.1.2018).
Vartola, Anni 2011: Liike ja vastaliike: vaikutelmia suomalaisesta postmodernismista. Arkkitehti 6/2011:10-21.
Wacklin, Matti 2011. Kaikkien sielujen apteekki. Tampereen kaupunginkirjasto 150 vuotta. Tampere: Tampereen kaupunginkirjasto – Pirkanmaan maakuntakirjasto.
Väestö 2019. Tilastokeskus. https://www.tilastokeskus.fi/t... (haettu 29.3.2019).
Äyräs, Anneli 1986: Yleisten kirjastojen rakentaminen. Kirjastolehti 2/1986.
Automaatit ja tietokoneet saapuvat kirjastoon
Taloudellisten suhdanteiden, arkkitehtonisten arvojen ja poliittisten painotusten ohella myös tieto- ja viestintätekniikan kehitys vaikutti kirjastojen merkitykseen ja toimintakulttuuriin. Audiovisuaalisista laitteista, lainausautomaateista ja kopiokoneista tuli arkipäivää, ja erilaisille tiedonhaku ja ATK-päätteille tarvittiin tilaa. Kirjastoilta odotettiin aktiivisuutta: kirjastojen tuli esitellä uutta teknologiaa ja opastaa sen käyttöön.
Kaupunkien uusiin lähiöihin tarvittiin samaan aikaan lisää kirjastopalveluita ja yhteisöllisyyttä ruokkivia kokoontumispaikkoja. Pienissä 1970-luvun lähikirjastoissa näkyi pyrkimys olohuonemaiseen kodikkuuteen. Niihin kalustettiin matalien kirjahyllyjen rajaamia saarekkeita ja pehmeitä ja värikkäitä istuskeluryhmiä.
1980-luvun vaihteen murros: Oulun pääkirjasto ja Tammisaaren kaupunginkirjasto
Kirjastorakentaminen alkoi elpyä, kun öljykriisin aiheuttama taloudellinen taantuma helpottui. Kustannussäätely ja normiohjaus jatkuivat. Vuoden 1978 valtionosuusuudistus pohjautui uuteen kunnalliseen kantokykyluokkajärjestelmään, ja se nosti etenkin köyhempien kuntien kirjastojen valtionapua ajan kustannustasoon suhteutettuna peräti 73 % suuremmaksi kuin ennen. Kirjastojen asema hyvinvointiyhteiskuntaa tukevina merkkirakennuksina vahvistui, ja niihin suhtauduttiin kunnallisina tietokeskuksina ja yleisinä kohtauspaikkoina.
Oulun keskustan torialueen rantaan valmistunut pääkirjasto (Marjatta ja Martti Jaatinen, asemakaavakilpailu 1962–63, valm. 1981; sisustus Studio Nurmesniemi) on osa monumentaalikeskussommitelmaa. Asemakaavakilpailun tavoite oli antaa Oulun läänin pääkaupungille sen asemaa vastaava imago kaupungintalon, teatterin ja konserttitalon ja niiden väliin jäävän juhla-aukion muodostaman uuden sydämen avulla. Voittanut ehdotus ”Saari” sijoitti rakennusryhmän suorakulmaiselle, veden ympäröimälle tekosaarelle.
Alkuperäisestä monumentaalikeskussuunnitelmasta toteutui vain teatteritalo (1972), sillä konserttitalon tilalle päätettiin rakentaa uusi pääkirjasto–maakuntakirjasto. Sijoittelu antoi kirjastolle merkittävän ja tärkeän kulttuurilaitoksen aseman kaupunkikuvassa. Rakennus on paikallavalettua betonia ja sen julkisivuissa on käytetty alumiinisäleikköä, lasia, metallikasetteja ja mosaiikkibetonia; sisällä lähinnä sileävalettua betonia, mosaiikkibetonilaattaa, alumiinikasetteja, lasia ja puuta.
Kirjaston tilat ovat neljässä kerroksessa, ja kaikilta osastoilta avautuu näkymiä kaupunkiin tai jokisuistoon. Pohjakerroksessa ovat yleisöpalvelutilat ja lehtisali; kahdessa seuraavassa sijaitsevat aikuisten ja lasten osastot, opintosali sekä kokoelma- ja työtiloja; kirjavarasto ja henkilökunnan tilat ovat ylimmässä kerroksessa. Sisätilojen sydän on koko rakennuksen korkuinen keskusaula veistoksellisine betoniportaikkoineen. Alkuperäinen sisustus sovitettiin taidokkaasti tehostamaan rakennuksen ilmavaa tunnelmaa ja auttamaan suuren kirjaston eri osastojen hahmottamista.
Kuvalähde: Arkkitehtitoimisto Pia Krogius 2012. Oulun pääkirjaston rakennushistoriaselvitys. OUKA Pääkirjasto RHS kirjastolle.pdf, s. 27.
_Oik.: Oulun pääkirjasto (Marjatta ja Martti Jaatinen, 1981). Taustalla teatteritalo. Kuva: Kaleva, Journalistinen kuva-arkisto, Museovirasto.
Kuvalähde: Arkkitehtitoimisto Pia Krogius 2012. Oulun pääkirjaston rakennushistoriaselvitys. OUKA Pääkirjasto RHS kirjastolle.pdf, s. 27.
Pieni Tammisaaren kaupunginkirjasto (Ola Hansson, 1977) sopeutuu paikkakunnan ominaispiirteisiin ja kaupunkikuvaan. Erkkerit, pieniruutuiset ikkunat ja poimutettu katto myötäilevät pienimittakaavaisen puukaupungin ja kirjastoa ympäröivien rakennusten tyyliä ja pehmentävät rakennusajankohdalle tyypillistä moduuliarkkitehtuuria.
1980-luvulla rakennetaan yli 200 uutta kirjastoa
Vuonna 1986 uusittu kirjastolaki ja taloudellisen noususuhdanteen siivittämä uusi valtionapupolitiikka saivat aikaan ennennäkemättömän rakennusbuumin: 1980-luvulla rakennettiin yli 200 uutta kirjastoa.
1980-luku oli myös videoiden, ATK-kurssien, telefaxien, ensimmäisten matkapuhelimien, paikallisradioiden, kulutusjuhlan ja tiivistyvän EU-yhteistyön aikaa. Tietokonevetoinen tulevaisuus pelotti: ”Tuleeko kirjastosta ainoastaan tietojärjestelmän rakennus- ja tallennuspiste, toimisto tai tietotehdas, johon käyttäjät ottavat yhteyden päätteiltään kotoaan? Tarvitsemmeko enää tiedon temppeleitä tai yhteisiä olohuoneita?”
Arkkitehtuurissa kritiikki 1970-luvun anonyymia ”laatikkolinjaa” kohtaan kasvoi. Postmodernismiksi kutsuttu arkkitehtuuriajattelu kannusti arkkitehteja etsimään vaihtoehtoja: Miten ilmaista kirjaston symbolista merkitystä yhteiskunnallisena ja kaupunkikuvallisena arvorakennuksena? Miten paikallisyhteisö ja käyttäjät kokisivat uuden rakennuksen omakseen? Enää ei riittänyt, että kirjastorakennus toimii moitteettomasti kuin kone. Sen arkkitehtuurin tuli kuvastaa kirjastolaitoksen kulttuurista merkitystä ja heijastella paikallisen miljöön piirteitä.
Tampereen pääkirjasto Metso
Yksi keskustelua herättäneistä uusista kirjastohankkeista oli Tampereen pääkirjasto Metso (Reima ja Raili Pietilä, yleinen arkkitehtuurikilpailu 1978, valm. 1986). ”Soidinmenot” kilpailuehdotuksen kaarevat ja veistokselliset muodot ja ylhäältä katsottuna metsoa muistuttava hahmo poikkesivat arkkitehtuurin valtavirrasta.
Reima Pietilä selitti kirjaston yksilöllisen muotokielen johtuvan arkkitehtien halusta antaa kirjastolle ”1980-luvun ajankasvot” ja tehdä kirjastosta maamerkki ja suomalaisen kulttuurin ilmaisija. Pietilä kritisoi vallitsevaa käsitystä tarkastella arkkitehtuuria pelkästään sen käyttöarvon valossa. Hän tähdensi, että Metson arkkitehtuuri pyrki tekemään uuden runollisen tulkinnan rakennuksen ja luonnon yhteydestä. Mikään Metson arkkitehtuurissa ei ollut yleispätevää: kirjaston pienimmätkin yksityiskohdat suunniteltiin Pietilöiden toimistossa.
[17a_Metso piirustuksia_AV]
[17b_Metso pohja_AV]
[17c_Metso tiski_AV]
Postmodernismi näkyy mittakaavassa, väreissä ja monimuotoisuudessa: Kuhmon kirjasto ja Vihannin kirjasto-kotiseutukeskus
Postmodernistista arkkitehtuuriajattelua ilmentävät etenkin Kuhmon kirjasto (Jyrki Tasa, yleinen arkkitehtuurikilpailu 1988) ja Vihannin kirjasto–kotiseutukeskus (Aitoaho & Viljanen, kutsukilpailu 1985, valm. 1992) – monien ns. Oulun koulun pieniin maaseututaajamiin suunnittelemien kirjastojen ohella.
Kuhmon kirjastossa ajan henki näkyy rakennuksen tilallisessa ilottelussa, värikkäissä, leikkisissä ja huomiota herättävissä yksityiskohdissa. Arkkitehtoninen viimeistely ulottuu Pietilöiden Metso-kirjaston tapaan kalusteisiin, valaisimiin ja vetimiin saakka.
[18a_Kuhmo kirjasali_AV]
[18b_Kuhmo lastenosasto_AV]
[18c_Kuhmo pohjapiirros_AV]
[18d_Kuhmo leikkaus_AV]
Vihannin kirjasto-kotiseutukeskus yhdistää paikallista kulttuuriperintöä kunnioittavan punamulta-arkkitehtuurin modernin ajan materiaaleihin ja modernin kirjaston toimintoihin. Pääosin puurakenteinen ja puuverhoiltu rakennus on Oulun koulun ideologian mukaisesti paikalla rakennettu. Kirjasto on osa monitoimitaloa, jossa ovat nuorisotilat, kansalaisopisto, kotiseutuarkisto, kotiseutu- ja kaivosmuseo, yrityspalvelukeskus ja kierrätyskeskus.
[19a_Vihanti_AV]
[19b_Vihanti ulkoa_AV]
Modernismin perinne jatkuu: Helsingin Pasilan pääkirjasto, Lahden kulttuurikeskus-pääkirjasto ja Vallilan sivukirjasto
1980-luvun arkkitehtuurissa esiintyi postmodernismin rinnalla myös modernismin perinteitä jatkavia ja uudistavia pyrkimyksiä. Niitä olivat mm. selkeän ja suorakulmaisen muotokielen käyttäminen, valkoisen värin, puhtaaksivaletun betonin, luonnonkiven, punatiilen ja puupintojen suosiminen sekä ns. ”uusvanhan”, lavastemaiseksi koetun kansanomaisuuden vastustaminen.
Helsingin pääkirjasto Itä-Pasilassa (Kaarlo Leppänen, 1986) on helppo tunnistaa julkiseksi rakennukseksi korkeiden betonielementtitalojen hallitsemasta ympäristöstä. Kirjaston pääsisäänkäynti ja pääjulkisivut sijaitsevat katutasoa ylempänä jalankulkukannella, koska Itä-Pasilassa autoliikenne ja jalankulku on erotettu eri tasoille.
Kirjastossa on muistumia ja lainauksia Alvar Aallon suunnittelemien rakennusten väri- ja materiaalimaailmasta. Julkisivuelementeissä on tummansinistä klinkkeriä ja pääsisäänkäynnin edustan pylväissä on klinkkeripäällystystä muistuttava pintakäsittely. Valkoiset sisätilat ympäröivät kaksikerroksista keskihallia ja sisäsuihkulähdettä. Tiloja valaisee epäsuora luonnonvalo kattoikkunoiden kautta. Sisäsuihkulähteessä on valkoista marmoria, parvella ja pääportaissa messinkiputkikaide, tiililaattapintaiset porrasaskelmat on reunustettu tammilistalla ja parvea kiertää, tammilistalla reunustettu musta laminaattitaso.
[20a_Helsinki pohja 1_AV]
[20b_Helsinki pohja 2_AV]
[20c_Pasilan kirjasto_AV]
[20d_Pasilan kirjasto_AV]
Lahden kulttuurikeskus-pääkirjaston (Arto Sipinen, yleinen arkkitehtuurikilpailu 1983, valm. 1990) ilmava muotokieli korostaa kirjaston arvostettua asemaa kulttuuri-instituutiona. Kirjasto-kulttuurikeskus-yhdistelmät yleistyivät 1980–90 lukujen taitteessa, ja Sipinen suunnitteli niistä monia (Imatran kulttuurikeskus, kutsukilpailu 1981, valm. 1986; Espoon Tapiolan kulttuurikeskus, yleinen arkkitehtuurikilpailu 1980, valm. 1989).
Lahden pääkirjasto on osa kulttuurirakennusten keskittymää yhdessä teatteritalon, taidemuseon ja aikuiskoulutuskeskuksen kanssa. Kirjaston selkeälinjaiset, umpi ja lasipintoihin jakautuvat, valkoiseksi ohutrapatut rakennusmassat on poimutettu niin, että kulttuurirakennusten väliin jää vesialtaiden ja istutusten elävöittämiä toriaukioita.
Aikuisten ja lasten lainausosastot sijaitsevat heti sisääntulon lähettyvillä ensimmäisessä kerroksessa, rauhallisempaa ympäristöä vaativat opiskelutilat ovat toisessa kerroksessa. Sisätilat ovat avointa hallitilaa, jotta myöhempi muunneltavuus olisi helppoa. Vaaleansävyisissä, valoisissa sisätiloissa on Sipisen arkkitehtuurille ominainen ajaton ja neutraali tunnelma.
[21_Lahti_AV]
Vallilan sivukirjasto Helsingissä (Juha Leiviskä ja Asta Björklund, 1990) kiteyttää 1980-luvun kirjastoarkkitehtuurin kehityslinjat. Pieni puurakenteinen ja verhoiltu rakennus on sovitettu tiiviisti rakennetun, suojellun puukaupunginosan mittakaavaan. Päiväkoti ja kirjasto muodostavat rakennusryhmän, joka ympäröi yhteistä puistopihaa. Sisätiloista avautuvat pihanäkymät, sisäkaton korkeusvaihtelut, ja runsas, monista eri suunnista lankeava luonnonvalo antavat juhlavan ja ajattoman tunnelman pikkuruiselle paikalliskirjastolle.
[22a_Vallila_AV]
[22b_Vallila pohjapiirros_AV]
Kirjastorakentaminen kärsii 1990-luvun talouslamasta
Ne kirjastohankkeet, jotka eivät ehtineet toteutua ennen 1990-luvun lamaa, pantiin jäihin. Hankesuunnitelmista ja arkkitehtuurikilpailujen pöytäkirjoista voi lukea uusien kirjastojen arkkitehtuurille asetettuja tavoitteita. Toteutumatta jääneen Espoon kaupunginkirjaston (yleinen arkkitehtuurikilpailu 1991) pöytäkirjassa tähdennetään jatkuvan muutoksen hyväksymistä, kirjaston tilojen joustavuutta ja muunneltavuutta sekä kirjaston tärkeää roolia julkisena rakennuksena. ”Kirjasto ei ole nykyisellään ainoastaan lainaus- ja lukupiste. Se on kohtaamis ja opiskelupaikka ja se tarjoaa myös monipuolisia kulttuurielämyksiä. Myös yleisön oleskelu- ja kahviotilat ovat olennainen osa nykypäivän kirjastoa. Tämä ei kuitenkaan tarkoita sitä, että kirjaston sisätilojen tulisi kilpailla kauppagallerioiden tai puuhamaiden kanssa. Niissä tulee edelleen olla aistittavissa kulttuurirakennuksen pitkä traditio.”
Orastavan tietoyhteiskunnan tarpeet alkoivat näkyä kirjastojen toiminnassa entistä enemmän. Kirjastoihin tuli lainattavaksi harrastevälineitä ja elektronista aineistoa. Tilaohjelmiin ilmaantui entistä enemmän varattavia kokoontumis ja näyttelytiloja. Kirjastoissa oli ”hiljaisuus”-kylttien sijaan ääntä ja elämää.
[23_Joensuu_AV]
[24a_Maaninka_AV]
[24b_Maaninka sisä_AV]
Kirjastoväki tähdensi kirjastojen merkitystä epäkaupallisina julkisina sisätiloina – ”koko kansan” olohuoneena: ”Mahdollisimman monen olisi voitava käyttää kirjastoa, siksi suunnittelun avaintavoitteita ovat kutsuvuus, saavutettavuus, löydettävyys ja helppokäyttöisyys. Kirjasto pyrkii keskelle kylää ja katutasoon!” Vuoden 1998 kirjastolaissa kaikuivat sekä lama-ajan että tietoyhteiskuntamurroksen seuraukset. Lakiteksti korosti yhdenvertaisuuden vaatimuksia ja tunnisti digitaalisen informaation merkityksen painettujen kirjojen ja lehtien rinnalla.
Monet 1990-luvun kirjastoista kärsivät riisutuista tilaohjelmista ja kustannussäästöjen nimissä vaaditusta tehokkuudesta. Kirjastoarkkitehtuuri joutui sopeutumaan vaatimuksiin julkisen rakentamisen muuntojoustavuudesta sekä tasapainoilemaan monien toiminnallisten vaatimusten ja kirjastojen paikallisen, kaupunkikuvallisen ja kulttuurisen merkityksen välillä. Kirjasto nähtiin kaupunkikehityksen välineenä: kirjaston kaltainen kulttuurirakennus oli hyvä keino lisätä hajanaisen taajama alueen vetovoimaisuutta.
Suosittu arkkitehtoninen tehokeino oli kollaasimaisuus: jokainen toiminto sijoitettiin ikään kuin omaan taloonsa, jotka sommiteltiin esimerkiksi sisäkadun ympärille. Rakennukselle luotiin kaksi toisistaan selkeästi erottuvaa suuntaa: ”selkä- ja vatsapuoli”. Raision kirjasto-auditorion (Hannu Tikka, yleinen arkkitehtuurikilpailu 1995, valm. 1999) arkkitehtoninen pääidea perustuu eri muotoisten ja väristen tilakappaleiden muodostamaan kokonaisuuteen: auditorio, kirjastosalit, lehtilukusali ja musiikkiosasto ovat kukin oma osasensa, jotka aulan sisäkatu yhdistää toisiinsa.
[25a_Raisio piha_AV]
[25b_Raisio plaani_AV]
2000-luvun kirjastot palvelevat yhä moninaisempia käyttäjäryhmiä ja tarpeita
Yleiset kirjastot palvelevat käyttäjiään edistämällä informaation saavutettavuutta kaikissa olomuodoissa sekä edesauttamalla sosiaalista yhteenkuuluvaisuuden tunnetta kaikkialla Suomessa. Vaikka kirjastojen määrä on supistunut, julkiset kirjastot palvelevat 2000-luvulla yhä moninaisempia käyttäjäryhmiä ja käyttötarpeita. Kirjastot ovat muuttaneet kauppakeskuksiin, kyläkeskuksiin ja kulttuuritaloihin, ja niiden tiloihin asettautuu yhä enemmän uusia toimijoita viranomaisista järjestöihin ja taideyhteisöihin.
Vuonna 2017 voimaan astuneen uuden kirjastolain lähtökohtia ovat yhteisöllisyys, moniarvoisuus ja kulttuurinen moninaisuus. Tulevaisuuden kirjasto edistää väestön yhdenvertaisia mahdollisuuksia sivistykseen ja kulttuuriin, tiedon saatavuutta ja käyttöä, lukemiskulttuuria ja monipuolista lukutaitoa, mahdollisuuksia elinikäiseen oppimiseen ja osaamisen kehittämiseen sekä aktiivista kansalaisuutta, demokratiaa ja sananvapautta.
[26_Sello_AV]
[27_Suomen kirjastoverkko_AV]
Kirjoittaja
Anni Vartola, tekniikan tohtori, artikkeli perustuu tekijän tutkimuksiin hänen laatiessaan Venetsian arkkitehtuuribiennaalin 2018 Mind-Building – näyttelykäsikirjoitusta. Näyttely esitteli suomalaista kirjastoarkkitehtuuria ja sen kehittymistä. Vartola on arkkitehtuurin teorian vanhempi yliopistonlehtori Aalto-yliopiston arkkitehtuurin laitoksella.
Artikkeli on julkaistu 2019.
LÄHTEET
Aaltonen, Hanna & Carlson, Joni 1986. Suomalaista kirjastoarkkitehtuuria. Helsinki: Kirjastopalvelu Oy.
Aaltonen, Hanna 2009. Kirjavarastosta olohuoneeksi: yleisten kirjastojen tilojen historiaa. Teoksessa Yleisten kirjastojen historia. Toim. Ilkka Mäkinen. Helsinki: BTJ Kustannus.
Arkkitehtitoimisto Aitoaho & Viljanen 1992: Vihannin kirjasto-kotiseutukeskus. Arkkitehti 6/1992:35-36.
Arkkitehtitoimisto Helin & Siitonen 1992: Joensuun kirjasto. Arkkitehti 6/1992:24-33.
Arkkitehtitoimisto Pia Krogius 2012. Oulun pääkirjaston rakennushistoriaselvitys. OUKA Pääkirjasto RHS kirjastolle.pdf (haettu 6.2.2019).
Berger, Laura 2018. The Building that Disappeared. Espoo: Aalto Arts Books.
Hadley, Chalmers 1910. Why Do We Need a Public Library? Material for a Library Campaign. Chicago: American Library Association Publishing Board. http://www.gutenberg.org/files... (haettu 25.11.2018).
Hirn, Sven 1998. Kansankirjastosta kaupunginkirjastoksi: Helsingin Kaupunginkirjasto 1860–1940. Helsinki: Helsingin kaupunginkirjasto.
EBLIDA – The European Bureau of Library, Information and Documentation Associations 2015. Survey on Public and Academic Libraries. http://www.eblida.org/activiti... (haettu 25.4.2019).
Espoon pääkirjaston yleinen suunnittelukilpailu 1992: Arkkitehtuurikilpailuja 2/1992.
Haapoja, Risto & Tikka, Hannu 1999: Raision kirjasto-auditorio. Arkkitehti 5/1999:44-53.
Huttunen, Hannu 1993: Maaningan kunnantalo. Arkkitehti 1/1993:50-55.
Junnila, Veikko 1977. Kirjastosuunnittelun opas. Helsinki: Martela Oy.
Kahri, Esko 1970: Rakennussuunnittelun tavoitteet 70-luvulla. Arkkitehti 2/1970:37-42.
Kannila, Helle 1966. Kirjastoista kirjoitettua. Kirjoituksia vuosilta 1913–1963. Helsinki: Suomen Kirjastoseura, Otava.
Kanninen, Mauno 1948. Maaseudun kirjastohuoneistot. Helsinki: Suomen Kirjastoseura, Maalaiskuntien Liitto.
Kanninen, Mauno 1953. Uusia kirjastohuoneistoja: Kuvaopas kirjastojen suunnittelijoille. Helsinki: Valtion kirjastotoimisto.
Kansankirjastolaki 131/1928. Suomen asetuskokoelma. https://fi.wikisource.org/wiki/Kansankirjastolaki. Muutokset: https://fi.wikisource.org/wiki...äivänä_1928_annetun_kansankirjastolain_4,_5_ja_8_§:n_muuttamisesta; https://fi.wikisource.org/wiki/Asetus_kansankirjastoista_(1941) (haettu 14.3.2019).
Kekki, Kirsi 2013. Menestystarina nimeltä kirjasto. Helsinki: Avain.
Kirjastolaki 1961. Suomen asetuskokoelma 235/1961. https://fi.wikisource.org/wiki/Kirjastolaki_(1961) (haettu 20.3.2019).
Kirjastolaki 1986. Suomen asetuskokoelma 235/1986. OM, Edita. https://www.finlex.fi/fi/laki/... (haettu 20.5.2019).
Kirjastolaki 1998. Finlex 904/1998. https://www.finlex.fi/fi/laki/... (haettu 20.5.2019).
Kuopion kirjastotalo 1969: Arkkitehti 8/1969:20-25.
Laki yleisistä kirjastoista 29.12.2016/1492. OM, Edita. https://www.finlex.fi/fi/laki/... (haettu 23.1.2018).
Lappo, Osmo: 1971: Avotilakoulu – tulevaisuuden koulu? Arkkitehti 7/1971:27-30.
Leppänen, Kaarlo 1982: Arkkitehdin ongelma. Kirjastolehti 2/1982:526-527.
Mäkinen, Ilkka 2009a. Pitäjänkirjastojen läpimurto. Teoksessa Yleisten kirjastojen historia. Toim. Ilkka Mäkinen. Helsinki: BTJ Kustannus.
Mäkinen, Ilkka 2009b. Kirjasto fennomaanien kansansivistysohjelmassa. Teoksessa Yleisten kirjastojen historia. Toim. Ilkka Mäkinen. Helsinki: BTJ Kustannus.
Mäkinen, Ilkka 2009v. Kirjastot sodassa, sota kirjastoissa. Teoksessa Yleisten kirjastojen historia. Toim. Ilkka Mäkinen. Helsinki: BTJ Kustannus.
Mäkinen, Ilkka 2009d. 1950-luvun perintö. Teoksessa Yleisten kirjastojen historia. Toim. Ilkka Mäkinen. Helsinki: BTJ Kustannus.
Mäkinen, Ilkka 2009e. Yleinen kirjasto hyvinvointiyhteiskunnassa 1960-luvun alusta vuosituhannen vaihteeseen. Teoksessa Yleisten kirjastojen historia. Toim. Ilkka Mäkinen. Helsinki: BTJ Kustannus.
Packalén, Ulla 1986: Kirjasto tänään ja huomenna. Teoksessa Kirjastotilojen suunnittelu. Toim. Eeva-Maija Tammekann. Helsinki: Kirjastopalvelu.
Packalén, Ulla 1992: Yhteinen kirjastomme. Arkkitehti 6/1992:18-23.
Palmgren, Valfrid 1910. Kirjastot ja kansalaiskasvatus. Muistiinpanoja opintomatkalta Pohjois-Amerikan Yhdysvaltoihin. Helsinki: Kansanvalistusseura.
Patomo, Timo 1979: Soidinkuvat: suunnitelma Tampereen kirjastotaloksi. Tampere: lähikuvia ja soidinkuvia vuonna 1979. Toim. Seppo Järvenpää ja työryhmä. Tampere: Tampereen teknillinen korkeakoulu, Arkkitehtuurin osasto, Arkkitehtikilta.
Pietilä, Reima 1983. Rakennusten ja kaupunkikuvien taistelevat metsot. Arkkitehti 3/1983:67-69.
Ranta, Kaarina 1979: Valtion osallistuminen kirjaston rakentamiseen. Kirjastolehti 2/1975:418-422.
Salmio-Toiviainen, Tarja 1958: Näkökohtia kirjaston suunnittelussa ja sisustamisessa. Kirjastolehti 1958/1: 50–53.
Suomen yleisten kirjastojen tilastot 2018. OKM. https://tilastot.kirjastot.fi/ (haettu 29.3.2019).
Sipinen, Arto 1992: Lahden pääkirjasto. Arkkitehti 6/1992:51.
Valtioneuvoston päätös kirjastorakennusten suunnittelun, rakentamisen ja normaalihintojen perusteista 236/1987. OM, Edita. https://www.finlex.fi/fi/laki/... (haettu 23.1.2018).
Vartola, Anni 2011: Liike ja vastaliike: vaikutelmia suomalaisesta postmodernismista. Arkkitehti 6/2011:10-21.
Wacklin, Matti 2011. Kaikkien sielujen apteekki. Tampereen kaupunginkirjasto 150 vuotta. Tampere: Tampereen kaupunginkirjasto – Pirkanmaan maakuntakirjasto.
Väestö 2019. Tilastokeskus. https://www.tilastokeskus.fi/t... (haettu 29.3.2019).
Äyräs, Anneli 1986: Yleisten kirjastojen rakentaminen. Kirjastolehti 2/1986.
_Oik.: Tampereen pääkirjasto Metso (Raili ja Reima Pietilä, yleinen arkkitehtuurikilpailu 1978, valm. 1986), kirjastonhoitajan tiski. Kuva: Maija Kanerva, Tampereen kaupunginkirjaston arkisto.
Postmodernismi näkyy mittakaavassa, väreissä ja monimuotoisuudessa: Kuhmon kirjasto ja Vihannin kirjasto-kotiseutukeskus
Postmodernistista arkkitehtuuriajattelua ilmentävät etenkin Kuhmon kirjasto (Jyrki Tasa, yleinen arkkitehtuurikilpailu 1988) ja Vihannin kirjasto–kotiseutukeskus (Aitoaho & Viljanen, kutsukilpailu 1985, valm. 1992) – monien ns. Oulun koulun pieniin maaseututaajamiin suunnittelemien kirjastojen ohella.
Kuhmon kirjastossa ajan henki näkyy rakennuksen tilallisessa ilottelussa, värikkäissä, leikkisissä ja huomiota herättävissä yksityiskohdissa. Arkkitehtoninen viimeistely ulottuu Pietilöiden Metso-kirjaston tapaan kalusteisiin, valaisimiin ja vetimiin saakka.
[18a_Kuhmo kirjasali_AV]
[18b_Kuhmo lastenosasto_AV]
[18c_Kuhmo pohjapiirros_AV]
[18d_Kuhmo leikkaus_AV]
Vihannin kirjasto-kotiseutukeskus yhdistää paikallista kulttuuriperintöä kunnioittavan punamulta-arkkitehtuurin modernin ajan materiaaleihin ja modernin kirjaston toimintoihin. Pääosin puurakenteinen ja puuverhoiltu rakennus on Oulun koulun ideologian mukaisesti paikalla rakennettu. Kirjasto on osa monitoimitaloa, jossa ovat nuorisotilat, kansalaisopisto, kotiseutuarkisto, kotiseutu- ja kaivosmuseo, yrityspalvelukeskus ja kierrätyskeskus.
[19a_Vihanti_AV]
[19b_Vihanti ulkoa_AV]
Modernismin perinne jatkuu: Helsingin Pasilan pääkirjasto, Lahden kulttuurikeskus-pääkirjasto ja Vallilan sivukirjasto
1980-luvun arkkitehtuurissa esiintyi postmodernismin rinnalla myös modernismin perinteitä jatkavia ja uudistavia pyrkimyksiä. Niitä olivat mm. selkeän ja suorakulmaisen muotokielen käyttäminen, valkoisen värin, puhtaaksivaletun betonin, luonnonkiven, punatiilen ja puupintojen suosiminen sekä ns. ”uusvanhan”, lavastemaiseksi koetun kansanomaisuuden vastustaminen.
Helsingin pääkirjasto Itä-Pasilassa (Kaarlo Leppänen, 1986) on helppo tunnistaa julkiseksi rakennukseksi korkeiden betonielementtitalojen hallitsemasta ympäristöstä. Kirjaston pääsisäänkäynti ja pääjulkisivut sijaitsevat katutasoa ylempänä jalankulkukannella, koska Itä-Pasilassa autoliikenne ja jalankulku on erotettu eri tasoille.
Kirjastossa on muistumia ja lainauksia Alvar Aallon suunnittelemien rakennusten väri- ja materiaalimaailmasta. Julkisivuelementeissä on tummansinistä klinkkeriä ja pääsisäänkäynnin edustan pylväissä on klinkkeripäällystystä muistuttava pintakäsittely. Valkoiset sisätilat ympäröivät kaksikerroksista keskihallia ja sisäsuihkulähdettä. Tiloja valaisee epäsuora luonnonvalo kattoikkunoiden kautta. Sisäsuihkulähteessä on valkoista marmoria, parvella ja pääportaissa messinkiputkikaide, tiililaattapintaiset porrasaskelmat on reunustettu tammilistalla ja parvea kiertää, tammilistalla reunustettu musta laminaattitaso.
[20a_Helsinki pohja 1_AV]
[20b_Helsinki pohja 2_AV]
[20c_Pasilan kirjasto_AV]
[20d_Pasilan kirjasto_AV]
Lahden kulttuurikeskus-pääkirjaston (Arto Sipinen, yleinen arkkitehtuurikilpailu 1983, valm. 1990) ilmava muotokieli korostaa kirjaston arvostettua asemaa kulttuuri-instituutiona. Kirjasto-kulttuurikeskus-yhdistelmät yleistyivät 1980–90 lukujen taitteessa, ja Sipinen suunnitteli niistä monia (Imatran kulttuurikeskus, kutsukilpailu 1981, valm. 1986; Espoon Tapiolan kulttuurikeskus, yleinen arkkitehtuurikilpailu 1980, valm. 1989).
Lahden pääkirjasto on osa kulttuurirakennusten keskittymää yhdessä teatteritalon, taidemuseon ja aikuiskoulutuskeskuksen kanssa. Kirjaston selkeälinjaiset, umpi ja lasipintoihin jakautuvat, valkoiseksi ohutrapatut rakennusmassat on poimutettu niin, että kulttuurirakennusten väliin jää vesialtaiden ja istutusten elävöittämiä toriaukioita.
Aikuisten ja lasten lainausosastot sijaitsevat heti sisääntulon lähettyvillä ensimmäisessä kerroksessa, rauhallisempaa ympäristöä vaativat opiskelutilat ovat toisessa kerroksessa. Sisätilat ovat avointa hallitilaa, jotta myöhempi muunneltavuus olisi helppoa. Vaaleansävyisissä, valoisissa sisätiloissa on Sipisen arkkitehtuurille ominainen ajaton ja neutraali tunnelma.
[21_Lahti_AV]
Vallilan sivukirjasto Helsingissä (Juha Leiviskä ja Asta Björklund, 1990) kiteyttää 1980-luvun kirjastoarkkitehtuurin kehityslinjat. Pieni puurakenteinen ja verhoiltu rakennus on sovitettu tiiviisti rakennetun, suojellun puukaupunginosan mittakaavaan. Päiväkoti ja kirjasto muodostavat rakennusryhmän, joka ympäröi yhteistä puistopihaa. Sisätiloista avautuvat pihanäkymät, sisäkaton korkeusvaihtelut, ja runsas, monista eri suunnista lankeava luonnonvalo antavat juhlavan ja ajattoman tunnelman pikkuruiselle paikalliskirjastolle.
[22a_Vallila_AV]
[22b_Vallila pohjapiirros_AV]
Kirjastorakentaminen kärsii 1990-luvun talouslamasta
Ne kirjastohankkeet, jotka eivät ehtineet toteutua ennen 1990-luvun lamaa, pantiin jäihin. Hankesuunnitelmista ja arkkitehtuurikilpailujen pöytäkirjoista voi lukea uusien kirjastojen arkkitehtuurille asetettuja tavoitteita. Toteutumatta jääneen Espoon kaupunginkirjaston (yleinen arkkitehtuurikilpailu 1991) pöytäkirjassa tähdennetään jatkuvan muutoksen hyväksymistä, kirjaston tilojen joustavuutta ja muunneltavuutta sekä kirjaston tärkeää roolia julkisena rakennuksena. ”Kirjasto ei ole nykyisellään ainoastaan lainaus- ja lukupiste. Se on kohtaamis ja opiskelupaikka ja se tarjoaa myös monipuolisia kulttuurielämyksiä. Myös yleisön oleskelu- ja kahviotilat ovat olennainen osa nykypäivän kirjastoa. Tämä ei kuitenkaan tarkoita sitä, että kirjaston sisätilojen tulisi kilpailla kauppagallerioiden tai puuhamaiden kanssa. Niissä tulee edelleen olla aistittavissa kulttuurirakennuksen pitkä traditio.”
Orastavan tietoyhteiskunnan tarpeet alkoivat näkyä kirjastojen toiminnassa entistä enemmän. Kirjastoihin tuli lainattavaksi harrastevälineitä ja elektronista aineistoa. Tilaohjelmiin ilmaantui entistä enemmän varattavia kokoontumis ja näyttelytiloja. Kirjastoissa oli ”hiljaisuus”-kylttien sijaan ääntä ja elämää.
[23_Joensuu_AV]
[24a_Maaninka_AV]
[24b_Maaninka sisä_AV]
Kirjastoväki tähdensi kirjastojen merkitystä epäkaupallisina julkisina sisätiloina – ”koko kansan” olohuoneena: ”Mahdollisimman monen olisi voitava käyttää kirjastoa, siksi suunnittelun avaintavoitteita ovat kutsuvuus, saavutettavuus, löydettävyys ja helppokäyttöisyys. Kirjasto pyrkii keskelle kylää ja katutasoon!” Vuoden 1998 kirjastolaissa kaikuivat sekä lama-ajan että tietoyhteiskuntamurroksen seuraukset. Lakiteksti korosti yhdenvertaisuuden vaatimuksia ja tunnisti digitaalisen informaation merkityksen painettujen kirjojen ja lehtien rinnalla.
Monet 1990-luvun kirjastoista kärsivät riisutuista tilaohjelmista ja kustannussäästöjen nimissä vaaditusta tehokkuudesta. Kirjastoarkkitehtuuri joutui sopeutumaan vaatimuksiin julkisen rakentamisen muuntojoustavuudesta sekä tasapainoilemaan monien toiminnallisten vaatimusten ja kirjastojen paikallisen, kaupunkikuvallisen ja kulttuurisen merkityksen välillä. Kirjasto nähtiin kaupunkikehityksen välineenä: kirjaston kaltainen kulttuurirakennus oli hyvä keino lisätä hajanaisen taajama alueen vetovoimaisuutta.
Suosittu arkkitehtoninen tehokeino oli kollaasimaisuus: jokainen toiminto sijoitettiin ikään kuin omaan taloonsa, jotka sommiteltiin esimerkiksi sisäkadun ympärille. Rakennukselle luotiin kaksi toisistaan selkeästi erottuvaa suuntaa: ”selkä- ja vatsapuoli”. Raision kirjasto-auditorion (Hannu Tikka, yleinen arkkitehtuurikilpailu 1995, valm. 1999) arkkitehtoninen pääidea perustuu eri muotoisten ja väristen tilakappaleiden muodostamaan kokonaisuuteen: auditorio, kirjastosalit, lehtilukusali ja musiikkiosasto ovat kukin oma osasensa, jotka aulan sisäkatu yhdistää toisiinsa.
[25a_Raisio piha_AV]
[25b_Raisio plaani_AV]
2000-luvun kirjastot palvelevat yhä moninaisempia käyttäjäryhmiä ja tarpeita
Yleiset kirjastot palvelevat käyttäjiään edistämällä informaation saavutettavuutta kaikissa olomuodoissa sekä edesauttamalla sosiaalista yhteenkuuluvaisuuden tunnetta kaikkialla Suomessa. Vaikka kirjastojen määrä on supistunut, julkiset kirjastot palvelevat 2000-luvulla yhä moninaisempia käyttäjäryhmiä ja käyttötarpeita. Kirjastot ovat muuttaneet kauppakeskuksiin, kyläkeskuksiin ja kulttuuritaloihin, ja niiden tiloihin asettautuu yhä enemmän uusia toimijoita viranomaisista järjestöihin ja taideyhteisöihin.
Vuonna 2017 voimaan astuneen uuden kirjastolain lähtökohtia ovat yhteisöllisyys, moniarvoisuus ja kulttuurinen moninaisuus. Tulevaisuuden kirjasto edistää väestön yhdenvertaisia mahdollisuuksia sivistykseen ja kulttuuriin, tiedon saatavuutta ja käyttöä, lukemiskulttuuria ja monipuolista lukutaitoa, mahdollisuuksia elinikäiseen oppimiseen ja osaamisen kehittämiseen sekä aktiivista kansalaisuutta, demokratiaa ja sananvapautta.
[26_Sello_AV]
[27_Suomen kirjastoverkko_AV]
Kirjoittaja
Anni Vartola, tekniikan tohtori, artikkeli perustuu tekijän tutkimuksiin hänen laatiessaan Venetsian arkkitehtuuribiennaalin 2018 Mind-Building – näyttelykäsikirjoitusta. Näyttely esitteli suomalaista kirjastoarkkitehtuuria ja sen kehittymistä. Vartola on arkkitehtuurin teorian vanhempi yliopistonlehtori Aalto-yliopiston arkkitehtuurin laitoksella.
Artikkeli on julkaistu 2019.
LÄHTEET
Aaltonen, Hanna & Carlson, Joni 1986. Suomalaista kirjastoarkkitehtuuria. Helsinki: Kirjastopalvelu Oy.
Aaltonen, Hanna 2009. Kirjavarastosta olohuoneeksi: yleisten kirjastojen tilojen historiaa. Teoksessa Yleisten kirjastojen historia. Toim. Ilkka Mäkinen. Helsinki: BTJ Kustannus.
Arkkitehtitoimisto Aitoaho & Viljanen 1992: Vihannin kirjasto-kotiseutukeskus. Arkkitehti 6/1992:35-36.
Arkkitehtitoimisto Helin & Siitonen 1992: Joensuun kirjasto. Arkkitehti 6/1992:24-33.
Arkkitehtitoimisto Pia Krogius 2012. Oulun pääkirjaston rakennushistoriaselvitys. OUKA Pääkirjasto RHS kirjastolle.pdf (haettu 6.2.2019).
Berger, Laura 2018. The Building that Disappeared. Espoo: Aalto Arts Books.
Hadley, Chalmers 1910. Why Do We Need a Public Library? Material for a Library Campaign. Chicago: American Library Association Publishing Board. http://www.gutenberg.org/files... (haettu 25.11.2018).
Hirn, Sven 1998. Kansankirjastosta kaupunginkirjastoksi: Helsingin Kaupunginkirjasto 1860–1940. Helsinki: Helsingin kaupunginkirjasto.
EBLIDA – The European Bureau of Library, Information and Documentation Associations 2015. Survey on Public and Academic Libraries. http://www.eblida.org/activiti... (haettu 25.4.2019).
Espoon pääkirjaston yleinen suunnittelukilpailu 1992: Arkkitehtuurikilpailuja 2/1992.
Haapoja, Risto & Tikka, Hannu 1999: Raision kirjasto-auditorio. Arkkitehti 5/1999:44-53.
Huttunen, Hannu 1993: Maaningan kunnantalo. Arkkitehti 1/1993:50-55.
Junnila, Veikko 1977. Kirjastosuunnittelun opas. Helsinki: Martela Oy.
Kahri, Esko 1970: Rakennussuunnittelun tavoitteet 70-luvulla. Arkkitehti 2/1970:37-42.
Kannila, Helle 1966. Kirjastoista kirjoitettua. Kirjoituksia vuosilta 1913–1963. Helsinki: Suomen Kirjastoseura, Otava.
Kanninen, Mauno 1948. Maaseudun kirjastohuoneistot. Helsinki: Suomen Kirjastoseura, Maalaiskuntien Liitto.
Kanninen, Mauno 1953. Uusia kirjastohuoneistoja: Kuvaopas kirjastojen suunnittelijoille. Helsinki: Valtion kirjastotoimisto.
Kansankirjastolaki 131/1928. Suomen asetuskokoelma. https://fi.wikisource.org/wiki/Kansankirjastolaki. Muutokset: https://fi.wikisource.org/wiki...äivänä_1928_annetun_kansankirjastolain_4,_5_ja_8_§:n_muuttamisesta; https://fi.wikisource.org/wiki/Asetus_kansankirjastoista_(1941) (haettu 14.3.2019).
Kekki, Kirsi 2013. Menestystarina nimeltä kirjasto. Helsinki: Avain.
Kirjastolaki 1961. Suomen asetuskokoelma 235/1961. https://fi.wikisource.org/wiki/Kirjastolaki_(1961) (haettu 20.3.2019).
Kirjastolaki 1986. Suomen asetuskokoelma 235/1986. OM, Edita. https://www.finlex.fi/fi/laki/... (haettu 20.5.2019).
Kirjastolaki 1998. Finlex 904/1998. https://www.finlex.fi/fi/laki/... (haettu 20.5.2019).
Kuopion kirjastotalo 1969: Arkkitehti 8/1969:20-25.
Laki yleisistä kirjastoista 29.12.2016/1492. OM, Edita. https://www.finlex.fi/fi/laki/... (haettu 23.1.2018).
Lappo, Osmo: 1971: Avotilakoulu – tulevaisuuden koulu? Arkkitehti 7/1971:27-30.
Leppänen, Kaarlo 1982: Arkkitehdin ongelma. Kirjastolehti 2/1982:526-527.
Mäkinen, Ilkka 2009a. Pitäjänkirjastojen läpimurto. Teoksessa Yleisten kirjastojen historia. Toim. Ilkka Mäkinen. Helsinki: BTJ Kustannus.
Mäkinen, Ilkka 2009b. Kirjasto fennomaanien kansansivistysohjelmassa. Teoksessa Yleisten kirjastojen historia. Toim. Ilkka Mäkinen. Helsinki: BTJ Kustannus.
Mäkinen, Ilkka 2009v. Kirjastot sodassa, sota kirjastoissa. Teoksessa Yleisten kirjastojen historia. Toim. Ilkka Mäkinen. Helsinki: BTJ Kustannus.
Mäkinen, Ilkka 2009d. 1950-luvun perintö. Teoksessa Yleisten kirjastojen historia. Toim. Ilkka Mäkinen. Helsinki: BTJ Kustannus.
Mäkinen, Ilkka 2009e. Yleinen kirjasto hyvinvointiyhteiskunnassa 1960-luvun alusta vuosituhannen vaihteeseen. Teoksessa Yleisten kirjastojen historia. Toim. Ilkka Mäkinen. Helsinki: BTJ Kustannus.
Packalén, Ulla 1986: Kirjasto tänään ja huomenna. Teoksessa Kirjastotilojen suunnittelu. Toim. Eeva-Maija Tammekann. Helsinki: Kirjastopalvelu.
Packalén, Ulla 1992: Yhteinen kirjastomme. Arkkitehti 6/1992:18-23.
Palmgren, Valfrid 1910. Kirjastot ja kansalaiskasvatus. Muistiinpanoja opintomatkalta Pohjois-Amerikan Yhdysvaltoihin. Helsinki: Kansanvalistusseura.
Patomo, Timo 1979: Soidinkuvat: suunnitelma Tampereen kirjastotaloksi. Tampere: lähikuvia ja soidinkuvia vuonna 1979. Toim. Seppo Järvenpää ja työryhmä. Tampere: Tampereen teknillinen korkeakoulu, Arkkitehtuurin osasto, Arkkitehtikilta.
Pietilä, Reima 1983. Rakennusten ja kaupunkikuvien taistelevat metsot. Arkkitehti 3/1983:67-69.
Ranta, Kaarina 1979: Valtion osallistuminen kirjaston rakentamiseen. Kirjastolehti 2/1975:418-422.
Salmio-Toiviainen, Tarja 1958: Näkökohtia kirjaston suunnittelussa ja sisustamisessa. Kirjastolehti 1958/1: 50–53.
Suomen yleisten kirjastojen tilastot 2018. OKM. https://tilastot.kirjastot.fi/ (haettu 29.3.2019).
Sipinen, Arto 1992: Lahden pääkirjasto. Arkkitehti 6/1992:51.
Valtioneuvoston päätös kirjastorakennusten suunnittelun, rakentamisen ja normaalihintojen perusteista 236/1987. OM, Edita. https://www.finlex.fi/fi/laki/... (haettu 23.1.2018).
Vartola, Anni 2011: Liike ja vastaliike: vaikutelmia suomalaisesta postmodernismista. Arkkitehti 6/2011:10-21.
Wacklin, Matti 2011. Kaikkien sielujen apteekki. Tampereen kaupunginkirjasto 150 vuotta. Tampere: Tampereen kaupunginkirjasto – Pirkanmaan maakuntakirjasto.
Väestö 2019. Tilastokeskus. https://www.tilastokeskus.fi/t... (haettu 29.3.2019).
Äyräs, Anneli 1986: Yleisten kirjastojen rakentaminen. Kirjastolehti 2/1986.
_Oik.: Kuhmon kirjasto (Jyrki Tasa / Nurmela-Raimoranta-Tasa, yleinen arkkitehtuurikilpailu 1984, valm. 1988) lastenosasto. Vasemmalla portaikko satuparvelle, keskellä näkymä lastenosaston pyöreään tähtikattotilaan. Kuva: Anni Vartola, 2014.
_Oik.: Kuhmon kirjasto (Jyrki Tasa / Nurmela-Raimoranta-Tasa, yleinen arkkitehtuurikilpailu 1984, valm. 1988). Leikkaus. Piirustus: Jyrki Tasa / NRT Arkkitehdit Oy.
Vihannin kirjasto-kotiseutukeskus yhdistää paikallista kulttuuriperintöä kunnioittavan punamulta-arkkitehtuurin modernin ajan materiaaleihin ja modernin kirjaston toimintoihin. Pääosin puurakenteinen ja puuverhoiltu rakennus on Oulun koulun ideologian mukaisesti paikalla rakennettu. Kirjasto on osa monitoimitaloa, jossa ovat nuorisotilat, kansalaisopisto, kotiseutuarkisto, kotiseutu- ja kaivosmuseo, yrityspalvelukeskus ja kierrätyskeskus.
[19a_Vihanti_AV]
[19b_Vihanti ulkoa_AV]
Modernismin perinne jatkuu: Helsingin Pasilan pääkirjasto, Lahden kulttuurikeskus-pääkirjasto ja Vallilan sivukirjasto
1980-luvun arkkitehtuurissa esiintyi postmodernismin rinnalla myös modernismin perinteitä jatkavia ja uudistavia pyrkimyksiä. Niitä olivat mm. selkeän ja suorakulmaisen muotokielen käyttäminen, valkoisen värin, puhtaaksivaletun betonin, luonnonkiven, punatiilen ja puupintojen suosiminen sekä ns. ”uusvanhan”, lavastemaiseksi koetun kansanomaisuuden vastustaminen.
Helsingin pääkirjasto Itä-Pasilassa (Kaarlo Leppänen, 1986) on helppo tunnistaa julkiseksi rakennukseksi korkeiden betonielementtitalojen hallitsemasta ympäristöstä. Kirjaston pääsisäänkäynti ja pääjulkisivut sijaitsevat katutasoa ylempänä jalankulkukannella, koska Itä-Pasilassa autoliikenne ja jalankulku on erotettu eri tasoille.
Kirjastossa on muistumia ja lainauksia Alvar Aallon suunnittelemien rakennusten väri- ja materiaalimaailmasta. Julkisivuelementeissä on tummansinistä klinkkeriä ja pääsisäänkäynnin edustan pylväissä on klinkkeripäällystystä muistuttava pintakäsittely. Valkoiset sisätilat ympäröivät kaksikerroksista keskihallia ja sisäsuihkulähdettä. Tiloja valaisee epäsuora luonnonvalo kattoikkunoiden kautta. Sisäsuihkulähteessä on valkoista marmoria, parvella ja pääportaissa messinkiputkikaide, tiililaattapintaiset porrasaskelmat on reunustettu tammilistalla ja parvea kiertää, tammilistalla reunustettu musta laminaattitaso.
[20a_Helsinki pohja 1_AV]
[20b_Helsinki pohja 2_AV]
[20c_Pasilan kirjasto_AV]
[20d_Pasilan kirjasto_AV]
Lahden kulttuurikeskus-pääkirjaston (Arto Sipinen, yleinen arkkitehtuurikilpailu 1983, valm. 1990) ilmava muotokieli korostaa kirjaston arvostettua asemaa kulttuuri-instituutiona. Kirjasto-kulttuurikeskus-yhdistelmät yleistyivät 1980–90 lukujen taitteessa, ja Sipinen suunnitteli niistä monia (Imatran kulttuurikeskus, kutsukilpailu 1981, valm. 1986; Espoon Tapiolan kulttuurikeskus, yleinen arkkitehtuurikilpailu 1980, valm. 1989).
Lahden pääkirjasto on osa kulttuurirakennusten keskittymää yhdessä teatteritalon, taidemuseon ja aikuiskoulutuskeskuksen kanssa. Kirjaston selkeälinjaiset, umpi ja lasipintoihin jakautuvat, valkoiseksi ohutrapatut rakennusmassat on poimutettu niin, että kulttuurirakennusten väliin jää vesialtaiden ja istutusten elävöittämiä toriaukioita.
Aikuisten ja lasten lainausosastot sijaitsevat heti sisääntulon lähettyvillä ensimmäisessä kerroksessa, rauhallisempaa ympäristöä vaativat opiskelutilat ovat toisessa kerroksessa. Sisätilat ovat avointa hallitilaa, jotta myöhempi muunneltavuus olisi helppoa. Vaaleansävyisissä, valoisissa sisätiloissa on Sipisen arkkitehtuurille ominainen ajaton ja neutraali tunnelma.
[21_Lahti_AV]
Vallilan sivukirjasto Helsingissä (Juha Leiviskä ja Asta Björklund, 1990) kiteyttää 1980-luvun kirjastoarkkitehtuurin kehityslinjat. Pieni puurakenteinen ja verhoiltu rakennus on sovitettu tiiviisti rakennetun, suojellun puukaupunginosan mittakaavaan. Päiväkoti ja kirjasto muodostavat rakennusryhmän, joka ympäröi yhteistä puistopihaa. Sisätiloista avautuvat pihanäkymät, sisäkaton korkeusvaihtelut, ja runsas, monista eri suunnista lankeava luonnonvalo antavat juhlavan ja ajattoman tunnelman pikkuruiselle paikalliskirjastolle.
[22a_Vallila_AV]
[22b_Vallila pohjapiirros_AV]
Kirjastorakentaminen kärsii 1990-luvun talouslamasta
Ne kirjastohankkeet, jotka eivät ehtineet toteutua ennen 1990-luvun lamaa, pantiin jäihin. Hankesuunnitelmista ja arkkitehtuurikilpailujen pöytäkirjoista voi lukea uusien kirjastojen arkkitehtuurille asetettuja tavoitteita. Toteutumatta jääneen Espoon kaupunginkirjaston (yleinen arkkitehtuurikilpailu 1991) pöytäkirjassa tähdennetään jatkuvan muutoksen hyväksymistä, kirjaston tilojen joustavuutta ja muunneltavuutta sekä kirjaston tärkeää roolia julkisena rakennuksena. ”Kirjasto ei ole nykyisellään ainoastaan lainaus- ja lukupiste. Se on kohtaamis ja opiskelupaikka ja se tarjoaa myös monipuolisia kulttuurielämyksiä. Myös yleisön oleskelu- ja kahviotilat ovat olennainen osa nykypäivän kirjastoa. Tämä ei kuitenkaan tarkoita sitä, että kirjaston sisätilojen tulisi kilpailla kauppagallerioiden tai puuhamaiden kanssa. Niissä tulee edelleen olla aistittavissa kulttuurirakennuksen pitkä traditio.”
Orastavan tietoyhteiskunnan tarpeet alkoivat näkyä kirjastojen toiminnassa entistä enemmän. Kirjastoihin tuli lainattavaksi harrastevälineitä ja elektronista aineistoa. Tilaohjelmiin ilmaantui entistä enemmän varattavia kokoontumis ja näyttelytiloja. Kirjastoissa oli ”hiljaisuus”-kylttien sijaan ääntä ja elämää.
[23_Joensuu_AV]
[24a_Maaninka_AV]
[24b_Maaninka sisä_AV]
Kirjastoväki tähdensi kirjastojen merkitystä epäkaupallisina julkisina sisätiloina – ”koko kansan” olohuoneena: ”Mahdollisimman monen olisi voitava käyttää kirjastoa, siksi suunnittelun avaintavoitteita ovat kutsuvuus, saavutettavuus, löydettävyys ja helppokäyttöisyys. Kirjasto pyrkii keskelle kylää ja katutasoon!” Vuoden 1998 kirjastolaissa kaikuivat sekä lama-ajan että tietoyhteiskuntamurroksen seuraukset. Lakiteksti korosti yhdenvertaisuuden vaatimuksia ja tunnisti digitaalisen informaation merkityksen painettujen kirjojen ja lehtien rinnalla.
Monet 1990-luvun kirjastoista kärsivät riisutuista tilaohjelmista ja kustannussäästöjen nimissä vaaditusta tehokkuudesta. Kirjastoarkkitehtuuri joutui sopeutumaan vaatimuksiin julkisen rakentamisen muuntojoustavuudesta sekä tasapainoilemaan monien toiminnallisten vaatimusten ja kirjastojen paikallisen, kaupunkikuvallisen ja kulttuurisen merkityksen välillä. Kirjasto nähtiin kaupunkikehityksen välineenä: kirjaston kaltainen kulttuurirakennus oli hyvä keino lisätä hajanaisen taajama alueen vetovoimaisuutta.
Suosittu arkkitehtoninen tehokeino oli kollaasimaisuus: jokainen toiminto sijoitettiin ikään kuin omaan taloonsa, jotka sommiteltiin esimerkiksi sisäkadun ympärille. Rakennukselle luotiin kaksi toisistaan selkeästi erottuvaa suuntaa: ”selkä- ja vatsapuoli”. Raision kirjasto-auditorion (Hannu Tikka, yleinen arkkitehtuurikilpailu 1995, valm. 1999) arkkitehtoninen pääidea perustuu eri muotoisten ja väristen tilakappaleiden muodostamaan kokonaisuuteen: auditorio, kirjastosalit, lehtilukusali ja musiikkiosasto ovat kukin oma osasensa, jotka aulan sisäkatu yhdistää toisiinsa.
[25a_Raisio piha_AV]
[25b_Raisio plaani_AV]
2000-luvun kirjastot palvelevat yhä moninaisempia käyttäjäryhmiä ja tarpeita
Yleiset kirjastot palvelevat käyttäjiään edistämällä informaation saavutettavuutta kaikissa olomuodoissa sekä edesauttamalla sosiaalista yhteenkuuluvaisuuden tunnetta kaikkialla Suomessa. Vaikka kirjastojen määrä on supistunut, julkiset kirjastot palvelevat 2000-luvulla yhä moninaisempia käyttäjäryhmiä ja käyttötarpeita. Kirjastot ovat muuttaneet kauppakeskuksiin, kyläkeskuksiin ja kulttuuritaloihin, ja niiden tiloihin asettautuu yhä enemmän uusia toimijoita viranomaisista järjestöihin ja taideyhteisöihin.
Vuonna 2017 voimaan astuneen uuden kirjastolain lähtökohtia ovat yhteisöllisyys, moniarvoisuus ja kulttuurinen moninaisuus. Tulevaisuuden kirjasto edistää väestön yhdenvertaisia mahdollisuuksia sivistykseen ja kulttuuriin, tiedon saatavuutta ja käyttöä, lukemiskulttuuria ja monipuolista lukutaitoa, mahdollisuuksia elinikäiseen oppimiseen ja osaamisen kehittämiseen sekä aktiivista kansalaisuutta, demokratiaa ja sananvapautta.
[26_Sello_AV]
[27_Suomen kirjastoverkko_AV]
Kirjoittaja
Anni Vartola, tekniikan tohtori, artikkeli perustuu tekijän tutkimuksiin hänen laatiessaan Venetsian arkkitehtuuribiennaalin 2018 Mind-Building – näyttelykäsikirjoitusta. Näyttely esitteli suomalaista kirjastoarkkitehtuuria ja sen kehittymistä. Vartola on arkkitehtuurin teorian vanhempi yliopistonlehtori Aalto-yliopiston arkkitehtuurin laitoksella.
Artikkeli on julkaistu 2019.
LÄHTEET
Aaltonen, Hanna & Carlson, Joni 1986. Suomalaista kirjastoarkkitehtuuria. Helsinki: Kirjastopalvelu Oy.
Aaltonen, Hanna 2009. Kirjavarastosta olohuoneeksi: yleisten kirjastojen tilojen historiaa. Teoksessa Yleisten kirjastojen historia. Toim. Ilkka Mäkinen. Helsinki: BTJ Kustannus.
Arkkitehtitoimisto Aitoaho & Viljanen 1992: Vihannin kirjasto-kotiseutukeskus. Arkkitehti 6/1992:35-36.
Arkkitehtitoimisto Helin & Siitonen 1992: Joensuun kirjasto. Arkkitehti 6/1992:24-33.
Arkkitehtitoimisto Pia Krogius 2012. Oulun pääkirjaston rakennushistoriaselvitys. OUKA Pääkirjasto RHS kirjastolle.pdf (haettu 6.2.2019).
Berger, Laura 2018. The Building that Disappeared. Espoo: Aalto Arts Books.
Hadley, Chalmers 1910. Why Do We Need a Public Library? Material for a Library Campaign. Chicago: American Library Association Publishing Board. http://www.gutenberg.org/files... (haettu 25.11.2018).
Hirn, Sven 1998. Kansankirjastosta kaupunginkirjastoksi: Helsingin Kaupunginkirjasto 1860–1940. Helsinki: Helsingin kaupunginkirjasto.
EBLIDA – The European Bureau of Library, Information and Documentation Associations 2015. Survey on Public and Academic Libraries. http://www.eblida.org/activiti... (haettu 25.4.2019).
Espoon pääkirjaston yleinen suunnittelukilpailu 1992: Arkkitehtuurikilpailuja 2/1992.
Haapoja, Risto & Tikka, Hannu 1999: Raision kirjasto-auditorio. Arkkitehti 5/1999:44-53.
Huttunen, Hannu 1993: Maaningan kunnantalo. Arkkitehti 1/1993:50-55.
Junnila, Veikko 1977. Kirjastosuunnittelun opas. Helsinki: Martela Oy.
Kahri, Esko 1970: Rakennussuunnittelun tavoitteet 70-luvulla. Arkkitehti 2/1970:37-42.
Kannila, Helle 1966. Kirjastoista kirjoitettua. Kirjoituksia vuosilta 1913–1963. Helsinki: Suomen Kirjastoseura, Otava.
Kanninen, Mauno 1948. Maaseudun kirjastohuoneistot. Helsinki: Suomen Kirjastoseura, Maalaiskuntien Liitto.
Kanninen, Mauno 1953. Uusia kirjastohuoneistoja: Kuvaopas kirjastojen suunnittelijoille. Helsinki: Valtion kirjastotoimisto.
Kansankirjastolaki 131/1928. Suomen asetuskokoelma. https://fi.wikisource.org/wiki/Kansankirjastolaki. Muutokset: https://fi.wikisource.org/wiki...äivänä_1928_annetun_kansankirjastolain_4,_5_ja_8_§:n_muuttamisesta; https://fi.wikisource.org/wiki/Asetus_kansankirjastoista_(1941) (haettu 14.3.2019).
Kekki, Kirsi 2013. Menestystarina nimeltä kirjasto. Helsinki: Avain.
Kirjastolaki 1961. Suomen asetuskokoelma 235/1961. https://fi.wikisource.org/wiki/Kirjastolaki_(1961) (haettu 20.3.2019).
Kirjastolaki 1986. Suomen asetuskokoelma 235/1986. OM, Edita. https://www.finlex.fi/fi/laki/... (haettu 20.5.2019).
Kirjastolaki 1998. Finlex 904/1998. https://www.finlex.fi/fi/laki/... (haettu 20.5.2019).
Kuopion kirjastotalo 1969: Arkkitehti 8/1969:20-25.
Laki yleisistä kirjastoista 29.12.2016/1492. OM, Edita. https://www.finlex.fi/fi/laki/... (haettu 23.1.2018).
Lappo, Osmo: 1971: Avotilakoulu – tulevaisuuden koulu? Arkkitehti 7/1971:27-30.
Leppänen, Kaarlo 1982: Arkkitehdin ongelma. Kirjastolehti 2/1982:526-527.
Mäkinen, Ilkka 2009a. Pitäjänkirjastojen läpimurto. Teoksessa Yleisten kirjastojen historia. Toim. Ilkka Mäkinen. Helsinki: BTJ Kustannus.
Mäkinen, Ilkka 2009b. Kirjasto fennomaanien kansansivistysohjelmassa. Teoksessa Yleisten kirjastojen historia. Toim. Ilkka Mäkinen. Helsinki: BTJ Kustannus.
Mäkinen, Ilkka 2009v. Kirjastot sodassa, sota kirjastoissa. Teoksessa Yleisten kirjastojen historia. Toim. Ilkka Mäkinen. Helsinki: BTJ Kustannus.
Mäkinen, Ilkka 2009d. 1950-luvun perintö. Teoksessa Yleisten kirjastojen historia. Toim. Ilkka Mäkinen. Helsinki: BTJ Kustannus.
Mäkinen, Ilkka 2009e. Yleinen kirjasto hyvinvointiyhteiskunnassa 1960-luvun alusta vuosituhannen vaihteeseen. Teoksessa Yleisten kirjastojen historia. Toim. Ilkka Mäkinen. Helsinki: BTJ Kustannus.
Packalén, Ulla 1986: Kirjasto tänään ja huomenna. Teoksessa Kirjastotilojen suunnittelu. Toim. Eeva-Maija Tammekann. Helsinki: Kirjastopalvelu.
Packalén, Ulla 1992: Yhteinen kirjastomme. Arkkitehti 6/1992:18-23.
Palmgren, Valfrid 1910. Kirjastot ja kansalaiskasvatus. Muistiinpanoja opintomatkalta Pohjois-Amerikan Yhdysvaltoihin. Helsinki: Kansanvalistusseura.
Patomo, Timo 1979: Soidinkuvat: suunnitelma Tampereen kirjastotaloksi. Tampere: lähikuvia ja soidinkuvia vuonna 1979. Toim. Seppo Järvenpää ja työryhmä. Tampere: Tampereen teknillinen korkeakoulu, Arkkitehtuurin osasto, Arkkitehtikilta.
Pietilä, Reima 1983. Rakennusten ja kaupunkikuvien taistelevat metsot. Arkkitehti 3/1983:67-69.
Ranta, Kaarina 1979: Valtion osallistuminen kirjaston rakentamiseen. Kirjastolehti 2/1975:418-422.
Salmio-Toiviainen, Tarja 1958: Näkökohtia kirjaston suunnittelussa ja sisustamisessa. Kirjastolehti 1958/1: 50–53.
Suomen yleisten kirjastojen tilastot 2018. OKM. https://tilastot.kirjastot.fi/ (haettu 29.3.2019).
Sipinen, Arto 1992: Lahden pääkirjasto. Arkkitehti 6/1992:51.
Valtioneuvoston päätös kirjastorakennusten suunnittelun, rakentamisen ja normaalihintojen perusteista 236/1987. OM, Edita. https://www.finlex.fi/fi/laki/... (haettu 23.1.2018).
Vartola, Anni 2011: Liike ja vastaliike: vaikutelmia suomalaisesta postmodernismista. Arkkitehti 6/2011:10-21.
Wacklin, Matti 2011. Kaikkien sielujen apteekki. Tampereen kaupunginkirjasto 150 vuotta. Tampere: Tampereen kaupunginkirjasto – Pirkanmaan maakuntakirjasto.
Väestö 2019. Tilastokeskus. https://www.tilastokeskus.fi/t... (haettu 29.3.2019).
Äyräs, Anneli 1986: Yleisten kirjastojen rakentaminen. Kirjastolehti 2/1986.
Modernismin perinne jatkuu: Helsingin Pasilan pääkirjasto, Lahden kulttuurikeskus-pääkirjasto ja Vallilan sivukirjasto
1980-luvun arkkitehtuurissa esiintyi postmodernismin rinnalla myös modernismin perinteitä jatkavia ja uudistavia pyrkimyksiä. Niitä olivat mm. selkeän ja suorakulmaisen muotokielen käyttäminen, valkoisen värin, puhtaaksivaletun betonin, luonnonkiven, punatiilen ja puupintojen suosiminen sekä ns. ”uusvanhan”, lavastemaiseksi koetun kansanomaisuuden vastustaminen.
Helsingin pääkirjasto Itä-Pasilassa (Kaarlo Leppänen, 1986) on helppo tunnistaa julkiseksi rakennukseksi korkeiden betonielementtitalojen hallitsemasta ympäristöstä. Kirjaston pääsisäänkäynti ja pääjulkisivut sijaitsevat katutasoa ylempänä jalankulkukannella, koska Itä-Pasilassa autoliikenne ja jalankulku on erotettu eri tasoille.
Kirjastossa on muistumia ja lainauksia Alvar Aallon suunnittelemien rakennusten väri- ja materiaalimaailmasta. Julkisivuelementeissä on tummansinistä klinkkeriä ja pääsisäänkäynnin edustan pylväissä on klinkkeripäällystystä muistuttava pintakäsittely. Valkoiset sisätilat ympäröivät kaksikerroksista keskihallia ja sisäsuihkulähdettä. Tiloja valaisee epäsuora luonnonvalo kattoikkunoiden kautta. Sisäsuihkulähteessä on valkoista marmoria, parvella ja pääportaissa messinkiputkikaide, tiililaattapintaiset porrasaskelmat on reunustettu tammilistalla ja parvea kiertää, tammilistalla reunustettu musta laminaattitaso.
[20a_Helsinki pohja 1_AV]
[20b_Helsinki pohja 2_AV]
[20c_Pasilan kirjasto_AV]
[20d_Pasilan kirjasto_AV]
Lahden kulttuurikeskus-pääkirjaston (Arto Sipinen, yleinen arkkitehtuurikilpailu 1983, valm. 1990) ilmava muotokieli korostaa kirjaston arvostettua asemaa kulttuuri-instituutiona. Kirjasto-kulttuurikeskus-yhdistelmät yleistyivät 1980–90 lukujen taitteessa, ja Sipinen suunnitteli niistä monia (Imatran kulttuurikeskus, kutsukilpailu 1981, valm. 1986; Espoon Tapiolan kulttuurikeskus, yleinen arkkitehtuurikilpailu 1980, valm. 1989).
Lahden pääkirjasto on osa kulttuurirakennusten keskittymää yhdessä teatteritalon, taidemuseon ja aikuiskoulutuskeskuksen kanssa. Kirjaston selkeälinjaiset, umpi ja lasipintoihin jakautuvat, valkoiseksi ohutrapatut rakennusmassat on poimutettu niin, että kulttuurirakennusten väliin jää vesialtaiden ja istutusten elävöittämiä toriaukioita.
Aikuisten ja lasten lainausosastot sijaitsevat heti sisääntulon lähettyvillä ensimmäisessä kerroksessa, rauhallisempaa ympäristöä vaativat opiskelutilat ovat toisessa kerroksessa. Sisätilat ovat avointa hallitilaa, jotta myöhempi muunneltavuus olisi helppoa. Vaaleansävyisissä, valoisissa sisätiloissa on Sipisen arkkitehtuurille ominainen ajaton ja neutraali tunnelma.
[21_Lahti_AV]
Vallilan sivukirjasto Helsingissä (Juha Leiviskä ja Asta Björklund, 1990) kiteyttää 1980-luvun kirjastoarkkitehtuurin kehityslinjat. Pieni puurakenteinen ja verhoiltu rakennus on sovitettu tiiviisti rakennetun, suojellun puukaupunginosan mittakaavaan. Päiväkoti ja kirjasto muodostavat rakennusryhmän, joka ympäröi yhteistä puistopihaa. Sisätiloista avautuvat pihanäkymät, sisäkaton korkeusvaihtelut, ja runsas, monista eri suunnista lankeava luonnonvalo antavat juhlavan ja ajattoman tunnelman pikkuruiselle paikalliskirjastolle.
[22a_Vallila_AV]
[22b_Vallila pohjapiirros_AV]
Kirjastorakentaminen kärsii 1990-luvun talouslamasta
Ne kirjastohankkeet, jotka eivät ehtineet toteutua ennen 1990-luvun lamaa, pantiin jäihin. Hankesuunnitelmista ja arkkitehtuurikilpailujen pöytäkirjoista voi lukea uusien kirjastojen arkkitehtuurille asetettuja tavoitteita. Toteutumatta jääneen Espoon kaupunginkirjaston (yleinen arkkitehtuurikilpailu 1991) pöytäkirjassa tähdennetään jatkuvan muutoksen hyväksymistä, kirjaston tilojen joustavuutta ja muunneltavuutta sekä kirjaston tärkeää roolia julkisena rakennuksena. ”Kirjasto ei ole nykyisellään ainoastaan lainaus- ja lukupiste. Se on kohtaamis ja opiskelupaikka ja se tarjoaa myös monipuolisia kulttuurielämyksiä. Myös yleisön oleskelu- ja kahviotilat ovat olennainen osa nykypäivän kirjastoa. Tämä ei kuitenkaan tarkoita sitä, että kirjaston sisätilojen tulisi kilpailla kauppagallerioiden tai puuhamaiden kanssa. Niissä tulee edelleen olla aistittavissa kulttuurirakennuksen pitkä traditio.”
Orastavan tietoyhteiskunnan tarpeet alkoivat näkyä kirjastojen toiminnassa entistä enemmän. Kirjastoihin tuli lainattavaksi harrastevälineitä ja elektronista aineistoa. Tilaohjelmiin ilmaantui entistä enemmän varattavia kokoontumis ja näyttelytiloja. Kirjastoissa oli ”hiljaisuus”-kylttien sijaan ääntä ja elämää.
[23_Joensuu_AV]
[24a_Maaninka_AV]
[24b_Maaninka sisä_AV]
Kirjastoväki tähdensi kirjastojen merkitystä epäkaupallisina julkisina sisätiloina – ”koko kansan” olohuoneena: ”Mahdollisimman monen olisi voitava käyttää kirjastoa, siksi suunnittelun avaintavoitteita ovat kutsuvuus, saavutettavuus, löydettävyys ja helppokäyttöisyys. Kirjasto pyrkii keskelle kylää ja katutasoon!” Vuoden 1998 kirjastolaissa kaikuivat sekä lama-ajan että tietoyhteiskuntamurroksen seuraukset. Lakiteksti korosti yhdenvertaisuuden vaatimuksia ja tunnisti digitaalisen informaation merkityksen painettujen kirjojen ja lehtien rinnalla.
Monet 1990-luvun kirjastoista kärsivät riisutuista tilaohjelmista ja kustannussäästöjen nimissä vaaditusta tehokkuudesta. Kirjastoarkkitehtuuri joutui sopeutumaan vaatimuksiin julkisen rakentamisen muuntojoustavuudesta sekä tasapainoilemaan monien toiminnallisten vaatimusten ja kirjastojen paikallisen, kaupunkikuvallisen ja kulttuurisen merkityksen välillä. Kirjasto nähtiin kaupunkikehityksen välineenä: kirjaston kaltainen kulttuurirakennus oli hyvä keino lisätä hajanaisen taajama alueen vetovoimaisuutta.
Suosittu arkkitehtoninen tehokeino oli kollaasimaisuus: jokainen toiminto sijoitettiin ikään kuin omaan taloonsa, jotka sommiteltiin esimerkiksi sisäkadun ympärille. Rakennukselle luotiin kaksi toisistaan selkeästi erottuvaa suuntaa: ”selkä- ja vatsapuoli”. Raision kirjasto-auditorion (Hannu Tikka, yleinen arkkitehtuurikilpailu 1995, valm. 1999) arkkitehtoninen pääidea perustuu eri muotoisten ja väristen tilakappaleiden muodostamaan kokonaisuuteen: auditorio, kirjastosalit, lehtilukusali ja musiikkiosasto ovat kukin oma osasensa, jotka aulan sisäkatu yhdistää toisiinsa.
[25a_Raisio piha_AV]
[25b_Raisio plaani_AV]
2000-luvun kirjastot palvelevat yhä moninaisempia käyttäjäryhmiä ja tarpeita
Yleiset kirjastot palvelevat käyttäjiään edistämällä informaation saavutettavuutta kaikissa olomuodoissa sekä edesauttamalla sosiaalista yhteenkuuluvaisuuden tunnetta kaikkialla Suomessa. Vaikka kirjastojen määrä on supistunut, julkiset kirjastot palvelevat 2000-luvulla yhä moninaisempia käyttäjäryhmiä ja käyttötarpeita. Kirjastot ovat muuttaneet kauppakeskuksiin, kyläkeskuksiin ja kulttuuritaloihin, ja niiden tiloihin asettautuu yhä enemmän uusia toimijoita viranomaisista järjestöihin ja taideyhteisöihin.
Vuonna 2017 voimaan astuneen uuden kirjastolain lähtökohtia ovat yhteisöllisyys, moniarvoisuus ja kulttuurinen moninaisuus. Tulevaisuuden kirjasto edistää väestön yhdenvertaisia mahdollisuuksia sivistykseen ja kulttuuriin, tiedon saatavuutta ja käyttöä, lukemiskulttuuria ja monipuolista lukutaitoa, mahdollisuuksia elinikäiseen oppimiseen ja osaamisen kehittämiseen sekä aktiivista kansalaisuutta, demokratiaa ja sananvapautta.
[26_Sello_AV]
[27_Suomen kirjastoverkko_AV]
Kirjoittaja
Anni Vartola, tekniikan tohtori, artikkeli perustuu tekijän tutkimuksiin hänen laatiessaan Venetsian arkkitehtuuribiennaalin 2018 Mind-Building – näyttelykäsikirjoitusta. Näyttely esitteli suomalaista kirjastoarkkitehtuuria ja sen kehittymistä. Vartola on arkkitehtuurin teorian vanhempi yliopistonlehtori Aalto-yliopiston arkkitehtuurin laitoksella.
Artikkeli on julkaistu 2019.
LÄHTEET
Aaltonen, Hanna & Carlson, Joni 1986. Suomalaista kirjastoarkkitehtuuria. Helsinki: Kirjastopalvelu Oy.
Aaltonen, Hanna 2009. Kirjavarastosta olohuoneeksi: yleisten kirjastojen tilojen historiaa. Teoksessa Yleisten kirjastojen historia. Toim. Ilkka Mäkinen. Helsinki: BTJ Kustannus.
Arkkitehtitoimisto Aitoaho & Viljanen 1992: Vihannin kirjasto-kotiseutukeskus. Arkkitehti 6/1992:35-36.
Arkkitehtitoimisto Helin & Siitonen 1992: Joensuun kirjasto. Arkkitehti 6/1992:24-33.
Arkkitehtitoimisto Pia Krogius 2012. Oulun pääkirjaston rakennushistoriaselvitys. OUKA Pääkirjasto RHS kirjastolle.pdf (haettu 6.2.2019).
Berger, Laura 2018. The Building that Disappeared. Espoo: Aalto Arts Books.
Hadley, Chalmers 1910. Why Do We Need a Public Library? Material for a Library Campaign. Chicago: American Library Association Publishing Board. http://www.gutenberg.org/files... (haettu 25.11.2018).
Hirn, Sven 1998. Kansankirjastosta kaupunginkirjastoksi: Helsingin Kaupunginkirjasto 1860–1940. Helsinki: Helsingin kaupunginkirjasto.
EBLIDA – The European Bureau of Library, Information and Documentation Associations 2015. Survey on Public and Academic Libraries. http://www.eblida.org/activiti... (haettu 25.4.2019).
Espoon pääkirjaston yleinen suunnittelukilpailu 1992: Arkkitehtuurikilpailuja 2/1992.
Haapoja, Risto & Tikka, Hannu 1999: Raision kirjasto-auditorio. Arkkitehti 5/1999:44-53.
Huttunen, Hannu 1993: Maaningan kunnantalo. Arkkitehti 1/1993:50-55.
Junnila, Veikko 1977. Kirjastosuunnittelun opas. Helsinki: Martela Oy.
Kahri, Esko 1970: Rakennussuunnittelun tavoitteet 70-luvulla. Arkkitehti 2/1970:37-42.
Kannila, Helle 1966. Kirjastoista kirjoitettua. Kirjoituksia vuosilta 1913–1963. Helsinki: Suomen Kirjastoseura, Otava.
Kanninen, Mauno 1948. Maaseudun kirjastohuoneistot. Helsinki: Suomen Kirjastoseura, Maalaiskuntien Liitto.
Kanninen, Mauno 1953. Uusia kirjastohuoneistoja: Kuvaopas kirjastojen suunnittelijoille. Helsinki: Valtion kirjastotoimisto.
Kansankirjastolaki 131/1928. Suomen asetuskokoelma. https://fi.wikisource.org/wiki/Kansankirjastolaki. Muutokset: https://fi.wikisource.org/wiki...äivänä_1928_annetun_kansankirjastolain_4,_5_ja_8_§:n_muuttamisesta; https://fi.wikisource.org/wiki/Asetus_kansankirjastoista_(1941) (haettu 14.3.2019).
Kekki, Kirsi 2013. Menestystarina nimeltä kirjasto. Helsinki: Avain.
Kirjastolaki 1961. Suomen asetuskokoelma 235/1961. https://fi.wikisource.org/wiki/Kirjastolaki_(1961) (haettu 20.3.2019).
Kirjastolaki 1986. Suomen asetuskokoelma 235/1986. OM, Edita. https://www.finlex.fi/fi/laki/... (haettu 20.5.2019).
Kirjastolaki 1998. Finlex 904/1998. https://www.finlex.fi/fi/laki/... (haettu 20.5.2019).
Kuopion kirjastotalo 1969: Arkkitehti 8/1969:20-25.
Laki yleisistä kirjastoista 29.12.2016/1492. OM, Edita. https://www.finlex.fi/fi/laki/... (haettu 23.1.2018).
Lappo, Osmo: 1971: Avotilakoulu – tulevaisuuden koulu? Arkkitehti 7/1971:27-30.
Leppänen, Kaarlo 1982: Arkkitehdin ongelma. Kirjastolehti 2/1982:526-527.
Mäkinen, Ilkka 2009a. Pitäjänkirjastojen läpimurto. Teoksessa Yleisten kirjastojen historia. Toim. Ilkka Mäkinen. Helsinki: BTJ Kustannus.
Mäkinen, Ilkka 2009b. Kirjasto fennomaanien kansansivistysohjelmassa. Teoksessa Yleisten kirjastojen historia. Toim. Ilkka Mäkinen. Helsinki: BTJ Kustannus.
Mäkinen, Ilkka 2009v. Kirjastot sodassa, sota kirjastoissa. Teoksessa Yleisten kirjastojen historia. Toim. Ilkka Mäkinen. Helsinki: BTJ Kustannus.
Mäkinen, Ilkka 2009d. 1950-luvun perintö. Teoksessa Yleisten kirjastojen historia. Toim. Ilkka Mäkinen. Helsinki: BTJ Kustannus.
Mäkinen, Ilkka 2009e. Yleinen kirjasto hyvinvointiyhteiskunnassa 1960-luvun alusta vuosituhannen vaihteeseen. Teoksessa Yleisten kirjastojen historia. Toim. Ilkka Mäkinen. Helsinki: BTJ Kustannus.
Packalén, Ulla 1986: Kirjasto tänään ja huomenna. Teoksessa Kirjastotilojen suunnittelu. Toim. Eeva-Maija Tammekann. Helsinki: Kirjastopalvelu.
Packalén, Ulla 1992: Yhteinen kirjastomme. Arkkitehti 6/1992:18-23.
Palmgren, Valfrid 1910. Kirjastot ja kansalaiskasvatus. Muistiinpanoja opintomatkalta Pohjois-Amerikan Yhdysvaltoihin. Helsinki: Kansanvalistusseura.
Patomo, Timo 1979: Soidinkuvat: suunnitelma Tampereen kirjastotaloksi. Tampere: lähikuvia ja soidinkuvia vuonna 1979. Toim. Seppo Järvenpää ja työryhmä. Tampere: Tampereen teknillinen korkeakoulu, Arkkitehtuurin osasto, Arkkitehtikilta.
Pietilä, Reima 1983. Rakennusten ja kaupunkikuvien taistelevat metsot. Arkkitehti 3/1983:67-69.
Ranta, Kaarina 1979: Valtion osallistuminen kirjaston rakentamiseen. Kirjastolehti 2/1975:418-422.
Salmio-Toiviainen, Tarja 1958: Näkökohtia kirjaston suunnittelussa ja sisustamisessa. Kirjastolehti 1958/1: 50–53.
Suomen yleisten kirjastojen tilastot 2018. OKM. https://tilastot.kirjastot.fi/ (haettu 29.3.2019).
Sipinen, Arto 1992: Lahden pääkirjasto. Arkkitehti 6/1992:51.
Valtioneuvoston päätös kirjastorakennusten suunnittelun, rakentamisen ja normaalihintojen perusteista 236/1987. OM, Edita. https://www.finlex.fi/fi/laki/... (haettu 23.1.2018).
Vartola, Anni 2011: Liike ja vastaliike: vaikutelmia suomalaisesta postmodernismista. Arkkitehti 6/2011:10-21.
Wacklin, Matti 2011. Kaikkien sielujen apteekki. Tampereen kaupunginkirjasto 150 vuotta. Tampere: Tampereen kaupunginkirjasto – Pirkanmaan maakuntakirjasto.
Väestö 2019. Tilastokeskus. https://www.tilastokeskus.fi/t... (haettu 29.3.2019).
Äyräs, Anneli 1986: Yleisten kirjastojen rakentaminen. Kirjastolehti 2/1986.
Kuvalähde: Aaltonen, Hanna 2009. Kirjavarastosta olohuoneeksi: yleisten kirjastojen tilojen historiaa. Teoksessa Yleisten kirjastojen historia, s. 589.
_Oik.: Sisäsuihkulähde on Helsingin pääkirjaston kaksikerroksisen lainaussalin keskipiste. Kuva: Anni Vartola.
Lahden kulttuurikeskus-pääkirjaston (Arto Sipinen, yleinen arkkitehtuurikilpailu 1983, valm. 1990) ilmava muotokieli korostaa kirjaston arvostettua asemaa kulttuuri-instituutiona. Kirjasto-kulttuurikeskus-yhdistelmät yleistyivät 1980–90 lukujen taitteessa, ja Sipinen suunnitteli niistä monia (Imatran kulttuurikeskus, kutsukilpailu 1981, valm. 1986; Espoon Tapiolan kulttuurikeskus, yleinen arkkitehtuurikilpailu 1980, valm. 1989).
Lahden pääkirjasto on osa kulttuurirakennusten keskittymää yhdessä teatteritalon, taidemuseon ja aikuiskoulutuskeskuksen kanssa. Kirjaston selkeälinjaiset, umpi ja lasipintoihin jakautuvat, valkoiseksi ohutrapatut rakennusmassat on poimutettu niin, että kulttuurirakennusten väliin jää vesialtaiden ja istutusten elävöittämiä toriaukioita.
Aikuisten ja lasten lainausosastot sijaitsevat heti sisääntulon lähettyvillä ensimmäisessä kerroksessa, rauhallisempaa ympäristöä vaativat opiskelutilat ovat toisessa kerroksessa. Sisätilat ovat avointa hallitilaa, jotta myöhempi muunneltavuus olisi helppoa. Vaaleansävyisissä, valoisissa sisätiloissa on Sipisen arkkitehtuurille ominainen ajaton ja neutraali tunnelma.
Vallilan sivukirjasto Helsingissä (Juha Leiviskä ja Asta Björklund, 1990) kiteyttää 1980-luvun kirjastoarkkitehtuurin kehityslinjat. Pieni puurakenteinen ja verhoiltu rakennus on sovitettu tiiviisti rakennetun, suojellun puukaupunginosan mittakaavaan. Päiväkoti ja kirjasto muodostavat rakennusryhmän, joka ympäröi yhteistä puistopihaa. Sisätiloista avautuvat pihanäkymät, sisäkaton korkeusvaihtelut, ja runsas, monista eri suunnista lankeava luonnonvalo antavat juhlavan ja ajattoman tunnelman pikkuruiselle paikalliskirjastolle.
[22a_Vallila_AV]
[22b_Vallila pohjapiirros_AV]
Kirjastorakentaminen kärsii 1990-luvun talouslamasta
Ne kirjastohankkeet, jotka eivät ehtineet toteutua ennen 1990-luvun lamaa, pantiin jäihin. Hankesuunnitelmista ja arkkitehtuurikilpailujen pöytäkirjoista voi lukea uusien kirjastojen arkkitehtuurille asetettuja tavoitteita. Toteutumatta jääneen Espoon kaupunginkirjaston (yleinen arkkitehtuurikilpailu 1991) pöytäkirjassa tähdennetään jatkuvan muutoksen hyväksymistä, kirjaston tilojen joustavuutta ja muunneltavuutta sekä kirjaston tärkeää roolia julkisena rakennuksena. ”Kirjasto ei ole nykyisellään ainoastaan lainaus- ja lukupiste. Se on kohtaamis ja opiskelupaikka ja se tarjoaa myös monipuolisia kulttuurielämyksiä. Myös yleisön oleskelu- ja kahviotilat ovat olennainen osa nykypäivän kirjastoa. Tämä ei kuitenkaan tarkoita sitä, että kirjaston sisätilojen tulisi kilpailla kauppagallerioiden tai puuhamaiden kanssa. Niissä tulee edelleen olla aistittavissa kulttuurirakennuksen pitkä traditio.”
Orastavan tietoyhteiskunnan tarpeet alkoivat näkyä kirjastojen toiminnassa entistä enemmän. Kirjastoihin tuli lainattavaksi harrastevälineitä ja elektronista aineistoa. Tilaohjelmiin ilmaantui entistä enemmän varattavia kokoontumis ja näyttelytiloja. Kirjastoissa oli ”hiljaisuus”-kylttien sijaan ääntä ja elämää.
[23_Joensuu_AV]
[24a_Maaninka_AV]
[24b_Maaninka sisä_AV]
Kirjastoväki tähdensi kirjastojen merkitystä epäkaupallisina julkisina sisätiloina – ”koko kansan” olohuoneena: ”Mahdollisimman monen olisi voitava käyttää kirjastoa, siksi suunnittelun avaintavoitteita ovat kutsuvuus, saavutettavuus, löydettävyys ja helppokäyttöisyys. Kirjasto pyrkii keskelle kylää ja katutasoon!” Vuoden 1998 kirjastolaissa kaikuivat sekä lama-ajan että tietoyhteiskuntamurroksen seuraukset. Lakiteksti korosti yhdenvertaisuuden vaatimuksia ja tunnisti digitaalisen informaation merkityksen painettujen kirjojen ja lehtien rinnalla.
Monet 1990-luvun kirjastoista kärsivät riisutuista tilaohjelmista ja kustannussäästöjen nimissä vaaditusta tehokkuudesta. Kirjastoarkkitehtuuri joutui sopeutumaan vaatimuksiin julkisen rakentamisen muuntojoustavuudesta sekä tasapainoilemaan monien toiminnallisten vaatimusten ja kirjastojen paikallisen, kaupunkikuvallisen ja kulttuurisen merkityksen välillä. Kirjasto nähtiin kaupunkikehityksen välineenä: kirjaston kaltainen kulttuurirakennus oli hyvä keino lisätä hajanaisen taajama alueen vetovoimaisuutta.
Suosittu arkkitehtoninen tehokeino oli kollaasimaisuus: jokainen toiminto sijoitettiin ikään kuin omaan taloonsa, jotka sommiteltiin esimerkiksi sisäkadun ympärille. Rakennukselle luotiin kaksi toisistaan selkeästi erottuvaa suuntaa: ”selkä- ja vatsapuoli”. Raision kirjasto-auditorion (Hannu Tikka, yleinen arkkitehtuurikilpailu 1995, valm. 1999) arkkitehtoninen pääidea perustuu eri muotoisten ja väristen tilakappaleiden muodostamaan kokonaisuuteen: auditorio, kirjastosalit, lehtilukusali ja musiikkiosasto ovat kukin oma osasensa, jotka aulan sisäkatu yhdistää toisiinsa.
[25a_Raisio piha_AV]
[25b_Raisio plaani_AV]
2000-luvun kirjastot palvelevat yhä moninaisempia käyttäjäryhmiä ja tarpeita
Yleiset kirjastot palvelevat käyttäjiään edistämällä informaation saavutettavuutta kaikissa olomuodoissa sekä edesauttamalla sosiaalista yhteenkuuluvaisuuden tunnetta kaikkialla Suomessa. Vaikka kirjastojen määrä on supistunut, julkiset kirjastot palvelevat 2000-luvulla yhä moninaisempia käyttäjäryhmiä ja käyttötarpeita. Kirjastot ovat muuttaneet kauppakeskuksiin, kyläkeskuksiin ja kulttuuritaloihin, ja niiden tiloihin asettautuu yhä enemmän uusia toimijoita viranomaisista järjestöihin ja taideyhteisöihin.
Vuonna 2017 voimaan astuneen uuden kirjastolain lähtökohtia ovat yhteisöllisyys, moniarvoisuus ja kulttuurinen moninaisuus. Tulevaisuuden kirjasto edistää väestön yhdenvertaisia mahdollisuuksia sivistykseen ja kulttuuriin, tiedon saatavuutta ja käyttöä, lukemiskulttuuria ja monipuolista lukutaitoa, mahdollisuuksia elinikäiseen oppimiseen ja osaamisen kehittämiseen sekä aktiivista kansalaisuutta, demokratiaa ja sananvapautta.
[26_Sello_AV]
[27_Suomen kirjastoverkko_AV]
Kirjoittaja
Anni Vartola, tekniikan tohtori, artikkeli perustuu tekijän tutkimuksiin hänen laatiessaan Venetsian arkkitehtuuribiennaalin 2018 Mind-Building – näyttelykäsikirjoitusta. Näyttely esitteli suomalaista kirjastoarkkitehtuuria ja sen kehittymistä. Vartola on arkkitehtuurin teorian vanhempi yliopistonlehtori Aalto-yliopiston arkkitehtuurin laitoksella.
Artikkeli on julkaistu 2019.
LÄHTEET
Aaltonen, Hanna & Carlson, Joni 1986. Suomalaista kirjastoarkkitehtuuria. Helsinki: Kirjastopalvelu Oy.
Aaltonen, Hanna 2009. Kirjavarastosta olohuoneeksi: yleisten kirjastojen tilojen historiaa. Teoksessa Yleisten kirjastojen historia. Toim. Ilkka Mäkinen. Helsinki: BTJ Kustannus.
Arkkitehtitoimisto Aitoaho & Viljanen 1992: Vihannin kirjasto-kotiseutukeskus. Arkkitehti 6/1992:35-36.
Arkkitehtitoimisto Helin & Siitonen 1992: Joensuun kirjasto. Arkkitehti 6/1992:24-33.
Arkkitehtitoimisto Pia Krogius 2012. Oulun pääkirjaston rakennushistoriaselvitys. OUKA Pääkirjasto RHS kirjastolle.pdf (haettu 6.2.2019).
Berger, Laura 2018. The Building that Disappeared. Espoo: Aalto Arts Books.
Hadley, Chalmers 1910. Why Do We Need a Public Library? Material for a Library Campaign. Chicago: American Library Association Publishing Board. http://www.gutenberg.org/files... (haettu 25.11.2018).
Hirn, Sven 1998. Kansankirjastosta kaupunginkirjastoksi: Helsingin Kaupunginkirjasto 1860–1940. Helsinki: Helsingin kaupunginkirjasto.
EBLIDA – The European Bureau of Library, Information and Documentation Associations 2015. Survey on Public and Academic Libraries. http://www.eblida.org/activiti... (haettu 25.4.2019).
Espoon pääkirjaston yleinen suunnittelukilpailu 1992: Arkkitehtuurikilpailuja 2/1992.
Haapoja, Risto & Tikka, Hannu 1999: Raision kirjasto-auditorio. Arkkitehti 5/1999:44-53.
Huttunen, Hannu 1993: Maaningan kunnantalo. Arkkitehti 1/1993:50-55.
Junnila, Veikko 1977. Kirjastosuunnittelun opas. Helsinki: Martela Oy.
Kahri, Esko 1970: Rakennussuunnittelun tavoitteet 70-luvulla. Arkkitehti 2/1970:37-42.
Kannila, Helle 1966. Kirjastoista kirjoitettua. Kirjoituksia vuosilta 1913–1963. Helsinki: Suomen Kirjastoseura, Otava.
Kanninen, Mauno 1948. Maaseudun kirjastohuoneistot. Helsinki: Suomen Kirjastoseura, Maalaiskuntien Liitto.
Kanninen, Mauno 1953. Uusia kirjastohuoneistoja: Kuvaopas kirjastojen suunnittelijoille. Helsinki: Valtion kirjastotoimisto.
Kansankirjastolaki 131/1928. Suomen asetuskokoelma. https://fi.wikisource.org/wiki/Kansankirjastolaki. Muutokset: https://fi.wikisource.org/wiki...äivänä_1928_annetun_kansankirjastolain_4,_5_ja_8_§:n_muuttamisesta; https://fi.wikisource.org/wiki/Asetus_kansankirjastoista_(1941) (haettu 14.3.2019).
Kekki, Kirsi 2013. Menestystarina nimeltä kirjasto. Helsinki: Avain.
Kirjastolaki 1961. Suomen asetuskokoelma 235/1961. https://fi.wikisource.org/wiki/Kirjastolaki_(1961) (haettu 20.3.2019).
Kirjastolaki 1986. Suomen asetuskokoelma 235/1986. OM, Edita. https://www.finlex.fi/fi/laki/... (haettu 20.5.2019).
Kirjastolaki 1998. Finlex 904/1998. https://www.finlex.fi/fi/laki/... (haettu 20.5.2019).
Kuopion kirjastotalo 1969: Arkkitehti 8/1969:20-25.
Laki yleisistä kirjastoista 29.12.2016/1492. OM, Edita. https://www.finlex.fi/fi/laki/... (haettu 23.1.2018).
Lappo, Osmo: 1971: Avotilakoulu – tulevaisuuden koulu? Arkkitehti 7/1971:27-30.
Leppänen, Kaarlo 1982: Arkkitehdin ongelma. Kirjastolehti 2/1982:526-527.
Mäkinen, Ilkka 2009a. Pitäjänkirjastojen läpimurto. Teoksessa Yleisten kirjastojen historia. Toim. Ilkka Mäkinen. Helsinki: BTJ Kustannus.
Mäkinen, Ilkka 2009b. Kirjasto fennomaanien kansansivistysohjelmassa. Teoksessa Yleisten kirjastojen historia. Toim. Ilkka Mäkinen. Helsinki: BTJ Kustannus.
Mäkinen, Ilkka 2009v. Kirjastot sodassa, sota kirjastoissa. Teoksessa Yleisten kirjastojen historia. Toim. Ilkka Mäkinen. Helsinki: BTJ Kustannus.
Mäkinen, Ilkka 2009d. 1950-luvun perintö. Teoksessa Yleisten kirjastojen historia. Toim. Ilkka Mäkinen. Helsinki: BTJ Kustannus.
Mäkinen, Ilkka 2009e. Yleinen kirjasto hyvinvointiyhteiskunnassa 1960-luvun alusta vuosituhannen vaihteeseen. Teoksessa Yleisten kirjastojen historia. Toim. Ilkka Mäkinen. Helsinki: BTJ Kustannus.
Packalén, Ulla 1986: Kirjasto tänään ja huomenna. Teoksessa Kirjastotilojen suunnittelu. Toim. Eeva-Maija Tammekann. Helsinki: Kirjastopalvelu.
Packalén, Ulla 1992: Yhteinen kirjastomme. Arkkitehti 6/1992:18-23.
Palmgren, Valfrid 1910. Kirjastot ja kansalaiskasvatus. Muistiinpanoja opintomatkalta Pohjois-Amerikan Yhdysvaltoihin. Helsinki: Kansanvalistusseura.
Patomo, Timo 1979: Soidinkuvat: suunnitelma Tampereen kirjastotaloksi. Tampere: lähikuvia ja soidinkuvia vuonna 1979. Toim. Seppo Järvenpää ja työryhmä. Tampere: Tampereen teknillinen korkeakoulu, Arkkitehtuurin osasto, Arkkitehtikilta.
Pietilä, Reima 1983. Rakennusten ja kaupunkikuvien taistelevat metsot. Arkkitehti 3/1983:67-69.
Ranta, Kaarina 1979: Valtion osallistuminen kirjaston rakentamiseen. Kirjastolehti 2/1975:418-422.
Salmio-Toiviainen, Tarja 1958: Näkökohtia kirjaston suunnittelussa ja sisustamisessa. Kirjastolehti 1958/1: 50–53.
Suomen yleisten kirjastojen tilastot 2018. OKM. https://tilastot.kirjastot.fi/ (haettu 29.3.2019).
Sipinen, Arto 1992: Lahden pääkirjasto. Arkkitehti 6/1992:51.
Valtioneuvoston päätös kirjastorakennusten suunnittelun, rakentamisen ja normaalihintojen perusteista 236/1987. OM, Edita. https://www.finlex.fi/fi/laki/... (haettu 23.1.2018).
Vartola, Anni 2011: Liike ja vastaliike: vaikutelmia suomalaisesta postmodernismista. Arkkitehti 6/2011:10-21.
Wacklin, Matti 2011. Kaikkien sielujen apteekki. Tampereen kaupunginkirjasto 150 vuotta. Tampere: Tampereen kaupunginkirjasto – Pirkanmaan maakuntakirjasto.
Väestö 2019. Tilastokeskus. https://www.tilastokeskus.fi/t... (haettu 29.3.2019).
Äyräs, Anneli 1986: Yleisten kirjastojen rakentaminen. Kirjastolehti 2/1986.
_Oik.: Vallilan kirjasto ja päiväkoti, Helsinki (Juha Leiviskä & Asta Björklund, 1990). Kirjasto (alhaalla vasemmalla) ja päiväkoti (ylhäällä oikealla) ovat samassa pihapiirissä Vallilan puutalokortteleiden keskellä. Piirustus: Helander Leiviskä Arkkitehdit.
Kirjastorakentaminen kärsii 1990-luvun talouslamasta
Ne kirjastohankkeet, jotka eivät ehtineet toteutua ennen 1990-luvun lamaa, pantiin jäihin. Hankesuunnitelmista ja arkkitehtuurikilpailujen pöytäkirjoista voi lukea uusien kirjastojen arkkitehtuurille asetettuja tavoitteita. Toteutumatta jääneen Espoon kaupunginkirjaston (yleinen arkkitehtuurikilpailu 1991) pöytäkirjassa tähdennetään jatkuvan muutoksen hyväksymistä, kirjaston tilojen joustavuutta ja muunneltavuutta sekä kirjaston tärkeää roolia julkisena rakennuksena. ”Kirjasto ei ole nykyisellään ainoastaan lainaus- ja lukupiste. Se on kohtaamis ja opiskelupaikka ja se tarjoaa myös monipuolisia kulttuurielämyksiä. Myös yleisön oleskelu- ja kahviotilat ovat olennainen osa nykypäivän kirjastoa. Tämä ei kuitenkaan tarkoita sitä, että kirjaston sisätilojen tulisi kilpailla kauppagallerioiden tai puuhamaiden kanssa. Niissä tulee edelleen olla aistittavissa kulttuurirakennuksen pitkä traditio.”
Orastavan tietoyhteiskunnan tarpeet alkoivat näkyä kirjastojen toiminnassa entistä enemmän. Kirjastoihin tuli lainattavaksi harrastevälineitä ja elektronista aineistoa. Tilaohjelmiin ilmaantui entistä enemmän varattavia kokoontumis ja näyttelytiloja. Kirjastoissa oli ”hiljaisuus”-kylttien sijaan ääntä ja elämää.
[23_Joensuu_AV]
[24a_Maaninka_AV]
[24b_Maaninka sisä_AV]
Kirjastoväki tähdensi kirjastojen merkitystä epäkaupallisina julkisina sisätiloina – ”koko kansan” olohuoneena: ”Mahdollisimman monen olisi voitava käyttää kirjastoa, siksi suunnittelun avaintavoitteita ovat kutsuvuus, saavutettavuus, löydettävyys ja helppokäyttöisyys. Kirjasto pyrkii keskelle kylää ja katutasoon!” Vuoden 1998 kirjastolaissa kaikuivat sekä lama-ajan että tietoyhteiskuntamurroksen seuraukset. Lakiteksti korosti yhdenvertaisuuden vaatimuksia ja tunnisti digitaalisen informaation merkityksen painettujen kirjojen ja lehtien rinnalla.
Monet 1990-luvun kirjastoista kärsivät riisutuista tilaohjelmista ja kustannussäästöjen nimissä vaaditusta tehokkuudesta. Kirjastoarkkitehtuuri joutui sopeutumaan vaatimuksiin julkisen rakentamisen muuntojoustavuudesta sekä tasapainoilemaan monien toiminnallisten vaatimusten ja kirjastojen paikallisen, kaupunkikuvallisen ja kulttuurisen merkityksen välillä. Kirjasto nähtiin kaupunkikehityksen välineenä: kirjaston kaltainen kulttuurirakennus oli hyvä keino lisätä hajanaisen taajama alueen vetovoimaisuutta.
Suosittu arkkitehtoninen tehokeino oli kollaasimaisuus: jokainen toiminto sijoitettiin ikään kuin omaan taloonsa, jotka sommiteltiin esimerkiksi sisäkadun ympärille. Rakennukselle luotiin kaksi toisistaan selkeästi erottuvaa suuntaa: ”selkä- ja vatsapuoli”. Raision kirjasto-auditorion (Hannu Tikka, yleinen arkkitehtuurikilpailu 1995, valm. 1999) arkkitehtoninen pääidea perustuu eri muotoisten ja väristen tilakappaleiden muodostamaan kokonaisuuteen: auditorio, kirjastosalit, lehtilukusali ja musiikkiosasto ovat kukin oma osasensa, jotka aulan sisäkatu yhdistää toisiinsa.
[25a_Raisio piha_AV]
[25b_Raisio plaani_AV]
2000-luvun kirjastot palvelevat yhä moninaisempia käyttäjäryhmiä ja tarpeita
Yleiset kirjastot palvelevat käyttäjiään edistämällä informaation saavutettavuutta kaikissa olomuodoissa sekä edesauttamalla sosiaalista yhteenkuuluvaisuuden tunnetta kaikkialla Suomessa. Vaikka kirjastojen määrä on supistunut, julkiset kirjastot palvelevat 2000-luvulla yhä moninaisempia käyttäjäryhmiä ja käyttötarpeita. Kirjastot ovat muuttaneet kauppakeskuksiin, kyläkeskuksiin ja kulttuuritaloihin, ja niiden tiloihin asettautuu yhä enemmän uusia toimijoita viranomaisista järjestöihin ja taideyhteisöihin.
Vuonna 2017 voimaan astuneen uuden kirjastolain lähtökohtia ovat yhteisöllisyys, moniarvoisuus ja kulttuurinen moninaisuus. Tulevaisuuden kirjasto edistää väestön yhdenvertaisia mahdollisuuksia sivistykseen ja kulttuuriin, tiedon saatavuutta ja käyttöä, lukemiskulttuuria ja monipuolista lukutaitoa, mahdollisuuksia elinikäiseen oppimiseen ja osaamisen kehittämiseen sekä aktiivista kansalaisuutta, demokratiaa ja sananvapautta.
[26_Sello_AV]
[27_Suomen kirjastoverkko_AV]
Kirjoittaja
Anni Vartola, tekniikan tohtori, artikkeli perustuu tekijän tutkimuksiin hänen laatiessaan Venetsian arkkitehtuuribiennaalin 2018 Mind-Building – näyttelykäsikirjoitusta. Näyttely esitteli suomalaista kirjastoarkkitehtuuria ja sen kehittymistä. Vartola on arkkitehtuurin teorian vanhempi yliopistonlehtori Aalto-yliopiston arkkitehtuurin laitoksella.
Artikkeli on julkaistu 2019.
LÄHTEET
Aaltonen, Hanna & Carlson, Joni 1986. Suomalaista kirjastoarkkitehtuuria. Helsinki: Kirjastopalvelu Oy.
Aaltonen, Hanna 2009. Kirjavarastosta olohuoneeksi: yleisten kirjastojen tilojen historiaa. Teoksessa Yleisten kirjastojen historia. Toim. Ilkka Mäkinen. Helsinki: BTJ Kustannus.
Arkkitehtitoimisto Aitoaho & Viljanen 1992: Vihannin kirjasto-kotiseutukeskus. Arkkitehti 6/1992:35-36.
Arkkitehtitoimisto Helin & Siitonen 1992: Joensuun kirjasto. Arkkitehti 6/1992:24-33.
Arkkitehtitoimisto Pia Krogius 2012. Oulun pääkirjaston rakennushistoriaselvitys. OUKA Pääkirjasto RHS kirjastolle.pdf (haettu 6.2.2019).
Berger, Laura 2018. The Building that Disappeared. Espoo: Aalto Arts Books.
Hadley, Chalmers 1910. Why Do We Need a Public Library? Material for a Library Campaign. Chicago: American Library Association Publishing Board. http://www.gutenberg.org/files... (haettu 25.11.2018).
Hirn, Sven 1998. Kansankirjastosta kaupunginkirjastoksi: Helsingin Kaupunginkirjasto 1860–1940. Helsinki: Helsingin kaupunginkirjasto.
EBLIDA – The European Bureau of Library, Information and Documentation Associations 2015. Survey on Public and Academic Libraries. http://www.eblida.org/activiti... (haettu 25.4.2019).
Espoon pääkirjaston yleinen suunnittelukilpailu 1992: Arkkitehtuurikilpailuja 2/1992.
Haapoja, Risto & Tikka, Hannu 1999: Raision kirjasto-auditorio. Arkkitehti 5/1999:44-53.
Huttunen, Hannu 1993: Maaningan kunnantalo. Arkkitehti 1/1993:50-55.
Junnila, Veikko 1977. Kirjastosuunnittelun opas. Helsinki: Martela Oy.
Kahri, Esko 1970: Rakennussuunnittelun tavoitteet 70-luvulla. Arkkitehti 2/1970:37-42.
Kannila, Helle 1966. Kirjastoista kirjoitettua. Kirjoituksia vuosilta 1913–1963. Helsinki: Suomen Kirjastoseura, Otava.
Kanninen, Mauno 1948. Maaseudun kirjastohuoneistot. Helsinki: Suomen Kirjastoseura, Maalaiskuntien Liitto.
Kanninen, Mauno 1953. Uusia kirjastohuoneistoja: Kuvaopas kirjastojen suunnittelijoille. Helsinki: Valtion kirjastotoimisto.
Kansankirjastolaki 131/1928. Suomen asetuskokoelma. https://fi.wikisource.org/wiki/Kansankirjastolaki. Muutokset: https://fi.wikisource.org/wiki...äivänä_1928_annetun_kansankirjastolain_4,_5_ja_8_§:n_muuttamisesta; https://fi.wikisource.org/wiki/Asetus_kansankirjastoista_(1941) (haettu 14.3.2019).
Kekki, Kirsi 2013. Menestystarina nimeltä kirjasto. Helsinki: Avain.
Kirjastolaki 1961. Suomen asetuskokoelma 235/1961. https://fi.wikisource.org/wiki/Kirjastolaki_(1961) (haettu 20.3.2019).
Kirjastolaki 1986. Suomen asetuskokoelma 235/1986. OM, Edita. https://www.finlex.fi/fi/laki/... (haettu 20.5.2019).
Kirjastolaki 1998. Finlex 904/1998. https://www.finlex.fi/fi/laki/... (haettu 20.5.2019).
Kuopion kirjastotalo 1969: Arkkitehti 8/1969:20-25.
Laki yleisistä kirjastoista 29.12.2016/1492. OM, Edita. https://www.finlex.fi/fi/laki/... (haettu 23.1.2018).
Lappo, Osmo: 1971: Avotilakoulu – tulevaisuuden koulu? Arkkitehti 7/1971:27-30.
Leppänen, Kaarlo 1982: Arkkitehdin ongelma. Kirjastolehti 2/1982:526-527.
Mäkinen, Ilkka 2009a. Pitäjänkirjastojen läpimurto. Teoksessa Yleisten kirjastojen historia. Toim. Ilkka Mäkinen. Helsinki: BTJ Kustannus.
Mäkinen, Ilkka 2009b. Kirjasto fennomaanien kansansivistysohjelmassa. Teoksessa Yleisten kirjastojen historia. Toim. Ilkka Mäkinen. Helsinki: BTJ Kustannus.
Mäkinen, Ilkka 2009v. Kirjastot sodassa, sota kirjastoissa. Teoksessa Yleisten kirjastojen historia. Toim. Ilkka Mäkinen. Helsinki: BTJ Kustannus.
Mäkinen, Ilkka 2009d. 1950-luvun perintö. Teoksessa Yleisten kirjastojen historia. Toim. Ilkka Mäkinen. Helsinki: BTJ Kustannus.
Mäkinen, Ilkka 2009e. Yleinen kirjasto hyvinvointiyhteiskunnassa 1960-luvun alusta vuosituhannen vaihteeseen. Teoksessa Yleisten kirjastojen historia. Toim. Ilkka Mäkinen. Helsinki: BTJ Kustannus.
Packalén, Ulla 1986: Kirjasto tänään ja huomenna. Teoksessa Kirjastotilojen suunnittelu. Toim. Eeva-Maija Tammekann. Helsinki: Kirjastopalvelu.
Packalén, Ulla 1992: Yhteinen kirjastomme. Arkkitehti 6/1992:18-23.
Palmgren, Valfrid 1910. Kirjastot ja kansalaiskasvatus. Muistiinpanoja opintomatkalta Pohjois-Amerikan Yhdysvaltoihin. Helsinki: Kansanvalistusseura.
Patomo, Timo 1979: Soidinkuvat: suunnitelma Tampereen kirjastotaloksi. Tampere: lähikuvia ja soidinkuvia vuonna 1979. Toim. Seppo Järvenpää ja työryhmä. Tampere: Tampereen teknillinen korkeakoulu, Arkkitehtuurin osasto, Arkkitehtikilta.
Pietilä, Reima 1983. Rakennusten ja kaupunkikuvien taistelevat metsot. Arkkitehti 3/1983:67-69.
Ranta, Kaarina 1979: Valtion osallistuminen kirjaston rakentamiseen. Kirjastolehti 2/1975:418-422.
Salmio-Toiviainen, Tarja 1958: Näkökohtia kirjaston suunnittelussa ja sisustamisessa. Kirjastolehti 1958/1: 50–53.
Suomen yleisten kirjastojen tilastot 2018. OKM. https://tilastot.kirjastot.fi/ (haettu 29.3.2019).
Sipinen, Arto 1992: Lahden pääkirjasto. Arkkitehti 6/1992:51.
Valtioneuvoston päätös kirjastorakennusten suunnittelun, rakentamisen ja normaalihintojen perusteista 236/1987. OM, Edita. https://www.finlex.fi/fi/laki/... (haettu 23.1.2018).
Vartola, Anni 2011: Liike ja vastaliike: vaikutelmia suomalaisesta postmodernismista. Arkkitehti 6/2011:10-21.
Wacklin, Matti 2011. Kaikkien sielujen apteekki. Tampereen kaupunginkirjasto 150 vuotta. Tampere: Tampereen kaupunginkirjasto – Pirkanmaan maakuntakirjasto.
Väestö 2019. Tilastokeskus. https://www.tilastokeskus.fi/t... (haettu 29.3.2019).
Äyräs, Anneli 1986: Yleisten kirjastojen rakentaminen. Kirjastolehti 2/1986.

_Oik.: Maaningan kunnantalon kirjasto (Hannu Huttunen, yleinen arkkitehtuurikilpailu 1988, valm. 1992). Sisänäkymä kirjasto-osaan. Kuva: Anni Vartola, 2014.
Kirjastoväki tähdensi kirjastojen merkitystä epäkaupallisina julkisina sisätiloina – ”koko kansan” olohuoneena: ”Mahdollisimman monen olisi voitava käyttää kirjastoa, siksi suunnittelun avaintavoitteita ovat kutsuvuus, saavutettavuus, löydettävyys ja helppokäyttöisyys. Kirjasto pyrkii keskelle kylää ja katutasoon!” Vuoden 1998 kirjastolaissa kaikuivat sekä lama-ajan että tietoyhteiskuntamurroksen seuraukset. Lakiteksti korosti yhdenvertaisuuden vaatimuksia ja tunnisti digitaalisen informaation merkityksen painettujen kirjojen ja lehtien rinnalla.
Monet 1990-luvun kirjastoista kärsivät riisutuista tilaohjelmista ja kustannussäästöjen nimissä vaaditusta tehokkuudesta. Kirjastoarkkitehtuuri joutui sopeutumaan vaatimuksiin julkisen rakentamisen muuntojoustavuudesta sekä tasapainoilemaan monien toiminnallisten vaatimusten ja kirjastojen paikallisen, kaupunkikuvallisen ja kulttuurisen merkityksen välillä. Kirjasto nähtiin kaupunkikehityksen välineenä: kirjaston kaltainen kulttuurirakennus oli hyvä keino lisätä hajanaisen taajama alueen vetovoimaisuutta.
Suosittu arkkitehtoninen tehokeino oli kollaasimaisuus: jokainen toiminto sijoitettiin ikään kuin omaan taloonsa, jotka sommiteltiin esimerkiksi sisäkadun ympärille. Rakennukselle luotiin kaksi toisistaan selkeästi erottuvaa suuntaa: ”selkä- ja vatsapuoli”. Raision kirjasto-auditorion (Hannu Tikka, yleinen arkkitehtuurikilpailu 1995, valm. 1999) arkkitehtoninen pääidea perustuu eri muotoisten ja väristen tilakappaleiden muodostamaan kokonaisuuteen: auditorio, kirjastosalit, lehtilukusali ja musiikkiosasto ovat kukin oma osasensa, jotka aulan sisäkatu yhdistää toisiinsa.
2000-luvun kirjastot palvelevat yhä moninaisempia käyttäjäryhmiä ja tarpeita
Yleiset kirjastot palvelevat käyttäjiään edistämällä informaation saavutettavuutta kaikissa olomuodoissa sekä edesauttamalla sosiaalista yhteenkuuluvaisuuden tunnetta kaikkialla Suomessa. Vaikka kirjastojen määrä on supistunut, julkiset kirjastot palvelevat 2000-luvulla yhä moninaisempia käyttäjäryhmiä ja käyttötarpeita. Kirjastot ovat muuttaneet kauppakeskuksiin, kyläkeskuksiin ja kulttuuritaloihin, ja niiden tiloihin asettautuu yhä enemmän uusia toimijoita viranomaisista järjestöihin ja taideyhteisöihin.
Vuonna 2017 voimaan astuneen uuden kirjastolain lähtökohtia ovat yhteisöllisyys, moniarvoisuus ja kulttuurinen moninaisuus. Tulevaisuuden kirjasto edistää väestön yhdenvertaisia mahdollisuuksia sivistykseen ja kulttuuriin, tiedon saatavuutta ja käyttöä, lukemiskulttuuria ja monipuolista lukutaitoa, mahdollisuuksia elinikäiseen oppimiseen ja osaamisen kehittämiseen sekä aktiivista kansalaisuutta, demokratiaa ja sananvapautta.
[26_Sello_AV]
[27_Suomen kirjastoverkko_AV]
Kirjoittaja
Anni Vartola, tekniikan tohtori, artikkeli perustuu tekijän tutkimuksiin hänen laatiessaan Venetsian arkkitehtuuribiennaalin 2018 Mind-Building – näyttelykäsikirjoitusta. Näyttely esitteli suomalaista kirjastoarkkitehtuuria ja sen kehittymistä. Vartola on arkkitehtuurin teorian vanhempi yliopistonlehtori Aalto-yliopiston arkkitehtuurin laitoksella.
Artikkeli on julkaistu 2019.
Lähteet
Aaltonen, Hanna & Carlson, Joni 1986. Suomalaista kirjastoarkkitehtuuria. Helsinki: Kirjastopalvelu Oy.
Aaltonen, Hanna 2009. Kirjavarastosta olohuoneeksi: yleisten kirjastojen tilojen historiaa. Teoksessa Yleisten kirjastojen historia. Toim. Ilkka Mäkinen. Helsinki: BTJ Kustannus.
Arkkitehtitoimisto Aitoaho & Viljanen 1992: Vihannin kirjasto-kotiseutukeskus. Arkkitehti 6/1992:35-36.
Arkkitehtitoimisto Helin & Siitonen 1992: Joensuun kirjasto. Arkkitehti 6/1992:24-33.
Arkkitehtitoimisto Pia Krogius 2012. Oulun pääkirjaston rakennushistoriaselvitys. OUKA Pääkirjasto RHS kirjastolle.pdf (haettu 6.2.2019).
Berger, Laura 2018. The Building that Disappeared. Espoo: Aalto Arts Books.
Hadley, Chalmers 1910. Why Do We Need a Public Library? Material for a Library Campaign. Chicago: American Library Association Publishing Board. http://www.gutenberg.org/files... (haettu 25.11.2018).
Hirn, Sven 1998. Kansankirjastosta kaupunginkirjastoksi: Helsingin Kaupunginkirjasto 1860–1940. Helsinki: Helsingin kaupunginkirjasto.
EBLIDA – The European Bureau of Library, Information and Documentation Associations 2015. Survey on Public and Academic Libraries. http://www.eblida.org/activiti... (haettu 25.4.2019).
Espoon pääkirjaston yleinen suunnittelukilpailu 1992: Arkkitehtuurikilpailuja 2/1992.
Haapoja, Risto & Tikka, Hannu 1999: Raision kirjasto-auditorio. Arkkitehti 5/1999:44-53.
Huttunen, Hannu 1993: Maaningan kunnantalo. Arkkitehti 1/1993:50-55.
Junnila, Veikko 1977. Kirjastosuunnittelun opas. Helsinki: Martela Oy.
Kahri, Esko 1970: Rakennussuunnittelun tavoitteet 70-luvulla. Arkkitehti 2/1970:37-42.
Kannila, Helle 1966. Kirjastoista kirjoitettua. Kirjoituksia vuosilta 1913–1963. Helsinki: Suomen Kirjastoseura, Otava.
Kanninen, Mauno 1948. Maaseudun kirjastohuoneistot. Helsinki: Suomen Kirjastoseura, Maalaiskuntien Liitto.
Kanninen, Mauno 1953. Uusia kirjastohuoneistoja: Kuvaopas kirjastojen suunnittelijoille. Helsinki: Valtion kirjastotoimisto.
Kansankirjastolaki 131/1928. Suomen asetuskokoelma. https://fi.wikisource.org/wiki/Kansankirjastolaki. Muutokset: https://fi.wikisource.org/wiki...äivänä_1928_annetun_kansankirjastolain_4,_5_ja_8_§:n_muuttamisesta; https://fi.wikisource.org/wiki/Asetus_kansankirjastoista_(1941) (haettu 14.3.2019).
Kekki, Kirsi 2013. Menestystarina nimeltä kirjasto. Helsinki: Avain.
Kirjastolaki 1961. Suomen asetuskokoelma 235/1961. https://fi.wikisource.org/wiki/Kirjastolaki_(1961) (haettu 20.3.2019).
Kirjastolaki 1986. Suomen asetuskokoelma 235/1986. OM, Edita. https://www.finlex.fi/fi/laki/... (haettu 20.5.2019).
Kirjastolaki 1998. Finlex 904/1998. https://www.finlex.fi/fi/laki/... (haettu 20.5.2019).
Kuopion kirjastotalo 1969: Arkkitehti 8/1969:20-25.
Laki yleisistä kirjastoista 29.12.2016/1492. OM, Edita. https://www.finlex.fi/fi/laki/... (haettu 23.1.2018).
Lappo, Osmo: 1971: Avotilakoulu – tulevaisuuden koulu? Arkkitehti 7/1971:27-30.
Leppänen, Kaarlo 1982: Arkkitehdin ongelma. Kirjastolehti 2/1982:526-527.
Mäkinen, Ilkka 2009a. Pitäjänkirjastojen läpimurto. Teoksessa Yleisten kirjastojen historia. Toim. Ilkka Mäkinen. Helsinki: BTJ Kustannus.
Mäkinen, Ilkka 2009b. Kirjasto fennomaanien kansansivistysohjelmassa. Teoksessa Yleisten kirjastojen historia. Toim. Ilkka Mäkinen. Helsinki: BTJ Kustannus.
Mäkinen, Ilkka 2009v. Kirjastot sodassa, sota kirjastoissa. Teoksessa Yleisten kirjastojen historia. Toim. Ilkka Mäkinen. Helsinki: BTJ Kustannus.
Mäkinen, Ilkka 2009d. 1950-luvun perintö. Teoksessa Yleisten kirjastojen historia. Toim. Ilkka Mäkinen. Helsinki: BTJ Kustannus.
Mäkinen, Ilkka 2009e. Yleinen kirjasto hyvinvointiyhteiskunnassa 1960-luvun alusta vuosituhannen vaihteeseen. Teoksessa Yleisten kirjastojen historia. Toim. Ilkka Mäkinen. Helsinki: BTJ Kustannus.
Packalén, Ulla 1986: Kirjasto tänään ja huomenna. Teoksessa Kirjastotilojen suunnittelu. Toim. Eeva-Maija Tammekann. Helsinki: Kirjastopalvelu.
Packalén, Ulla 1992: Yhteinen kirjastomme. Arkkitehti 6/1992:18-23.
Palmgren, Valfrid 1910. Kirjastot ja kansalaiskasvatus. Muistiinpanoja opintomatkalta Pohjois-Amerikan Yhdysvaltoihin. Helsinki: Kansanvalistusseura.
Patomo, Timo 1979: Soidinkuvat: suunnitelma Tampereen kirjastotaloksi. Tampere: lähikuvia ja soidinkuvia vuonna 1979. Toim. Seppo Järvenpää ja työryhmä. Tampere: Tampereen teknillinen korkeakoulu, Arkkitehtuurin osasto, Arkkitehtikilta.
Pietilä, Reima 1983. Rakennusten ja kaupunkikuvien taistelevat metsot. Arkkitehti 3/1983:67-69.
Ranta, Kaarina 1979: Valtion osallistuminen kirjaston rakentamiseen. Kirjastolehti 2/1975:418-422.
Salmio-Toiviainen, Tarja 1958: Näkökohtia kirjaston suunnittelussa ja sisustamisessa. Kirjastolehti 1958/1: 50–53.
Suomen yleisten kirjastojen tilastot 2018. OKM. https://tilastot.kirjastot.fi/ (haettu 29.3.2019).
Sipinen, Arto 1992: Lahden pääkirjasto. Arkkitehti 6/1992:51.
Valtioneuvoston päätös kirjastorakennusten suunnittelun, rakentamisen ja normaalihintojen perusteista 236/1987. OM, Edita. https://www.finlex.fi/fi/laki/... (haettu 23.1.2018).
Vartola, Anni 2011: Liike ja vastaliike: vaikutelmia suomalaisesta postmodernismista. Arkkitehti 6/2011:10-21.
Wacklin, Matti 2011. Kaikkien sielujen apteekki. Tampereen kaupunginkirjasto 150 vuotta. Tampere: Tampereen kaupunginkirjasto – Pirkanmaan maakuntakirjasto.
Väestö 2019. Tilastokeskus. https://www.tilastokeskus.fi/t... (haettu 29.3.2019).
Äyräs, Anneli 1986: Yleisten kirjastojen rakentaminen. Kirjastolehti 2/1986.
Lisätietoa
Kivistö, Torsti; Lehto, Mervi; Norvasuo, Markku; Perälä, Keijo & Sormunen, Eero. Tulevaisuuden kirjastorakennus. Espoo: VTT Rakennustekniikka ja Tietopalvelu, BTJ Kirjastopalvelu
Laakso Mikko 2010. Kansanvalistajasta kansalaisten olohuoneeksi – Helsingin kaupunginkirjasto 1940–2005. Helsinki: Gummerus.
Mehtonen, Pentti 2008. ”Kirjasto on kiveä, kuparia ja lasia”: Kirjastorakennuksen diskursiivinen määrittyminen Arkkitehti-lehdessä vuosina 1961–2006. Pro gradu-tutkielma, Tampereen yliopisto, Informaatiotutkimuksen laitos.
Mehtonen, Pentti (2011), Public library buildings in Finland: An analysis of the architectural and librarianship discourses from 1945 to the present. Library Trends, Vol. 60, No. 1:152–173.
Muistin paikat: Suomen museot ja kirjastot – Store and Share: Museums and Libraries in Finland. Toim. Maija Kasvio. Helsinki: Suomen rakennustaiteen museo, 2008.
Myllylä, Riitta, Liisa Korhonen, Barbro Nygård & Ulla Packalén 1994. Katse kymmeneen kirjastoon – Tio bibliotek i Finland – Ten Finnish Libraries. Helsinki: Suomen kirjastoseura.
Myllylä, Riitta 1999: Kirjasto ja kulttuuritalo Vuotalo – 2000-luvun kohtauspaikka, jossa kipunoi: haastateltavana arkkitehti Markku Komonen. Kirjastolehti 11-12/1999:6-8.
Saarti, Jarmo & Tuomi, Pirjo 2016: Kulttuurilaitoksesta valintataloksi – Yleisen kirjastolaitoksen institutionaaliset tehtävämäärittelyt ja niiden kehitys Suomen itsenäisyyden aikana. Kulttuuripolitikan tutkimuksen vuosikirja 2016:110-123.
Sievänen-Allen, Ritva 1989. Avoin pohjakaava ja sen käyttöönotto Suomen kirjastoarkkitehtuurissa ennen vuotta 1940. Jyväskylä studies in the arts 32. Jyväskylä: Jyväskylän yliopisto.
Verho, Seppo 2000: Kirjasto on demokraattinen tila: haastateltavana arkkitehti Kaarin Taipale. Kirjastolehti 7/2000:21-22.
Viitteet
[1] EBLIDA 2015.
[2] Suomen yleisten kirjastojen tilastot 2018.
[3] Suomen väkiluku vuonna 2017 oli 5 513 000 henkeä. Väestö 2019.
[4] Hadley 1910.
[5] Aaltonen 2009, 477-481, 514-517. Mm. ruotsalainen kansankirjastoaktivisti Valfrid Palmgren (1910, 28-30) sekä suomalainen kirjastoliikkeen uranuurtaja Helle Kannila (1966) välittivät amerikkalaisen kirjastoliikkeen arkkitehtonisia ajatuksia Suomeen ja patistivat tekemään kirjastoista viihtyisiä.
[6] Hirn 1998, 109.
[7] Aaltonen 2009, 510.
[8] Aaltonen & Carlson 1986, 20-39.
[9] Berger 2018, 155; Aaltonen 2009, 528.
[10] Koulujen ja kirjastojen välinen yhteys oli luotu jo vuoden 1866 kansakouluasetuksessa. Jo tuolloin jokaiseen valtionapua nauttivaan kouluun piti hankkia oppilaskirjasto. Mäkinen 2009a, 148-150; Mäkinen 2009b, 166.
[11] Kansankirjastolaki 131/1928.
[12] Valtionapupolitiikka muuttui vuonna 1962, jolloin uusi kirjastolaki astui voimaan. Hirn 1998, 178-179.
[13] Aaltonen 2009, 531-535, 538-539.
[14] Mäkinen 2009c, 318-321.
[15] Kanninen 1948.
[16] Mäkinen 2009d, 355-366.
[17] Kanninen 1953, 2.
[18] Kanninen 1953.
[19] Salmio-Toiviainen 1958, 51.
[20] Salmio-Toiviainen 1958, 51-53.
[21] Kirjaston yhdistäminen osaksi muita lapsille ja nuorille suunnattuja palveluita oli tyypillistä kasvavien kaupunkien kirjastoille. Esim. Helsingin Käpylässä (Gunnar Taucher, 1939) kirjasto oli yhdistetty päiväkotiin: kirjasto oli katutasossa ja päiväkoti yläkerrassa.
[22] Kirjastolaki 1961. Maakuntakirjastojärjestelmä oli voimassa vuoteen 2017 saakka.
[23] Ensimmäiset maakuntakirjasto-oikeudet annettiin Joensuun kaupunginkirjastolle. Suomen 19 maakuntakirjastoa: Hämeenlinna, Joensuu, Jyväskylä, Kajaani, Kokkola, Kouvola, Kuopio, Lahti, Lappeenranta, Mikkeli, Oulu, Pori, Porvoo, Rovaniemi, Seinäjoki, Tampere, Turku, Vaasa, Maarianhamina ja Espoo; Espoon maakuntakirjasto-tehtävät siirtyivät 2010 Porvoolle.
[24] Kuopion kirjastotalo 1969.
[25] Ranta 1975, 418-419; Junnila 1977, 23.
[26] Junnila 1977, 12. Myös 1970-luvun peruskoulu-uudistuksen pedagogiset ihanteet ja uudet opetusmuodot vaativat tilaohjelmalta monipuolisuutta ja uuden avotilakoulun omaksumista. Lappo 1971, 27.
[27] Junnila 1977, 12; Packalén 1986, 11-12, 18, Aaltonen & Carlson 1986, 54-55.
[28] Packalén 1986, 18.
[29] Junnila 1977, 2.
[30] Kahri 1970, 38.
[31] Packalén 1986, 15.
[32] Mäkinen 2009d, 423; Mäkinen 2009e.
[33] Packalén 1986, 16-17.
[34] Arkkitehtitoimisto Pia Krogius 2012, 6-10.
[35] Arkkitehtitoimisto Pia Krogius 2012, 24-38.
[36] Aaltonen & Carlson 1986, 56.
[37] Äyräs 1986.
[38] Aaltonen 2009, 580.
[39] Kekki 2013, 54-56.
[40] Aaltonen & Carlson 1986, 86.
[41] Vartola 2011.
[42] Leppänen 1982.
[43] Patomo 1979, 30-31.
[44] Pietilä 1983, 68.
[45] ”Oulun koulu” on nimitys 1970–80-lukujen vaihteen nuorten pohjoissuomalaisten arkkitehtien koulukunnalle. Monet opiskelivat Oulun yliopiston arkkitehtuurin laitoksella professori Reima Pietilän johdolla. Hän innoitti tutkimaan kansainvälisiä virtauksia ja etsimään Pohjois-Suomelle ominaista ja paikallisesta kulttuuriperinnöstä ammentavaa arkkitehtuurin muotokieltä.
[46] Arkkitehtitoimisto Aitoaho & Viljanen 1992.
[47] Sipinen 1992.
[48] Espoon pääkirjaston yleinen suunnittelukilpailu 1992, 5. Kilpailun voitti nimimerkki Polku, jonka tekijät olivat Arkkitehtitoimisto 8 Studio Oy / Rainer Mahlamäki, Mikko Kaira, Ilmari Lahdelma, Juha Luoma, Markus Seppänen, Timo Veijonsuo ja avustajat.
[49] Packalén 1992, 18.
[50] Kirjastolaki 1998: ”Yleisten kirjastojen kirjasto- ja tietopalvelujen tavoitteena on edistää väestön yhtäläisiä mahdollisuuksia sivistykseen, kirjallisuuden ja taiteen harrastukseen, jatkuvaan tietojen, taitojen ja kansalaisvalmiuksien kehittämiseen, kansainvälistymiseen sekä elinikäiseen oppimiseen. Kirjastotoiminnassa tavoitteena on edistää myös virtuaalisten ja vuorovaikutteisten verkkopalvelujen ja niiden sivistyksellisten sisältöjen kehittymistä."
[51] Myllylä 1999, 7.
[52] Haapoja & Tikka 1999, 44.
[53] Laki yleisistä kirjastoista 2016.