
Roihuvuoren ala-asteen peruskorjaus
Timo Jeskanen
Itä-Helsingissä sijaitseva Roihuvuoren ala-aste valmistui kansakouluksi vuonna 1967. Rakennus on arkkitehti, professori Aarno Ruusuvuoren (1925−1992) keskeisiä suunnitelmia ja hänelle tyypilliseen tapaan arkkitehtuuri pelkistettyä betonimodernismia. Suorakaiteen muotoinen, systemaattinen rakennus on vaikuttava vastakohta tontin vapaamuotoiselle kallioluonnolle.
Julkisivujen umpipinnat ovat betonisia kuorielementtejä. Pitkien sivujen ikkunoista avautuu komeita näkymiä ympäröivään luontoon, ja luokat ovat valoisia. Väliseinien lasituksilla on puolestaan avattu pitkiä näkymiä sisätilojen välille, ja kattoikkunat antavat luonnonvaloa syvärunkoiselle rakennukselle.
Kantava betonirunko on eriytetty julkisivuista ja kevyistä väliseinistä. Pilaririvit rytmittävät pituussuuntaisia käytäviä, ja niiden kantamat kattopalkit ovat päistään pitkiä ulokkeita. Maalaamattomat pilarit, palkit ja ensimmäisen kerroksen betonikatot ovat oleellinen osa sisätilojen ilmettä. Karujen betonipintojen vastakohtana ovat viimeistellyt yksityiskohdat sekä taiteilija Anitra Lucanderin suunnittelema väritys ja ruokasalia hallitseva kookas tekstiiliteos.
Rakennuksessa oli ennen 2016 valmistunutta peruskorjausta tehty joitakin korjaus- ja muutostöitä. Merkittävimmät olivat ikkunoiden uusiminen 1973, vesikaton ja räystäspellitysten uusiminen 1990-luvulla sekä sähköjärjestelmien uusiminen ja äänenvaimennuksen parantaminen 1997. Huonetilojen lattianpäällysteet oli vaihdettu ja alkuperäinen seinien väritys hävitetty maalikerrosten alle. Julkisivujen lasitiiliä oli vaihdettu toisenlaisiksi rikkoontuneiden tilalle. Kokonaisuuden kannalta muutokset olivat vähäisiä.[1]
Peruskorjaushankkeen käynnistyessä rakennus oli teknisesti huonossa kunnossa. Kantava runko oli moitteeton, mutta ulkopuoliset betonipinnat olivat rapautuneet ja raudoitukset ruostuneita. Ikkunoiden saranointi oli rikki ja julkisivujen lämmöneristävyys heikko. Pinnat ja täydentävät rakenteet olivat kuluneet ja nuhjuiset. Piha-alueet olivat pinnoiltaan ja kasvillisuudeltaan huonossa kunnossa.
Talotekniikka oli vanhentunutta ja elinkaarensa päässä. Ilmanvaihto oli puutteellinen, tilat vetoisia, eikä lämpötilanhallinta toiminut. Ympäristökeskus oli useaan otteeseen huomauttanut puutteellisista olosuhteista, ja kesällä 2013 koululaiset siirtyivät väistötiloihin. Peruskorjauksen suunnittelu käynnistyi syyskuussa 2013 ja rakennustyöt noin vuotta myöhemmin. Työt valmistuivat heinäkuussa 2016.
Suunnittelutavoitteet
Koulun tilaohjelma mitoitettiin 232 oppilaalle. Keittiötä tuli laajentaa, tehdä henkilökunnalle sosiaalitilat sekä hallinnolle ja oppilashuollolle tarvittavat työhuoneet. Musiikin opetuksen, tekstiilityön ja teknisen työn luokat tuli tehdä ajanmukaisiksi sekä rakentaa oppilaille sisäkäymälät.
Hankesuunnitelman[2] mukaisesti kyseessä oli lähtökohtaisesti tekninen perusparannus. Huonoon kuntoon menneet betoniset kuorielementit ja lämmöneristeet, pohjoispään ulkoluiska ja tason kaiteet, vesikate, ikkunat sekä lasitiiliseinät oli määrä uusia.
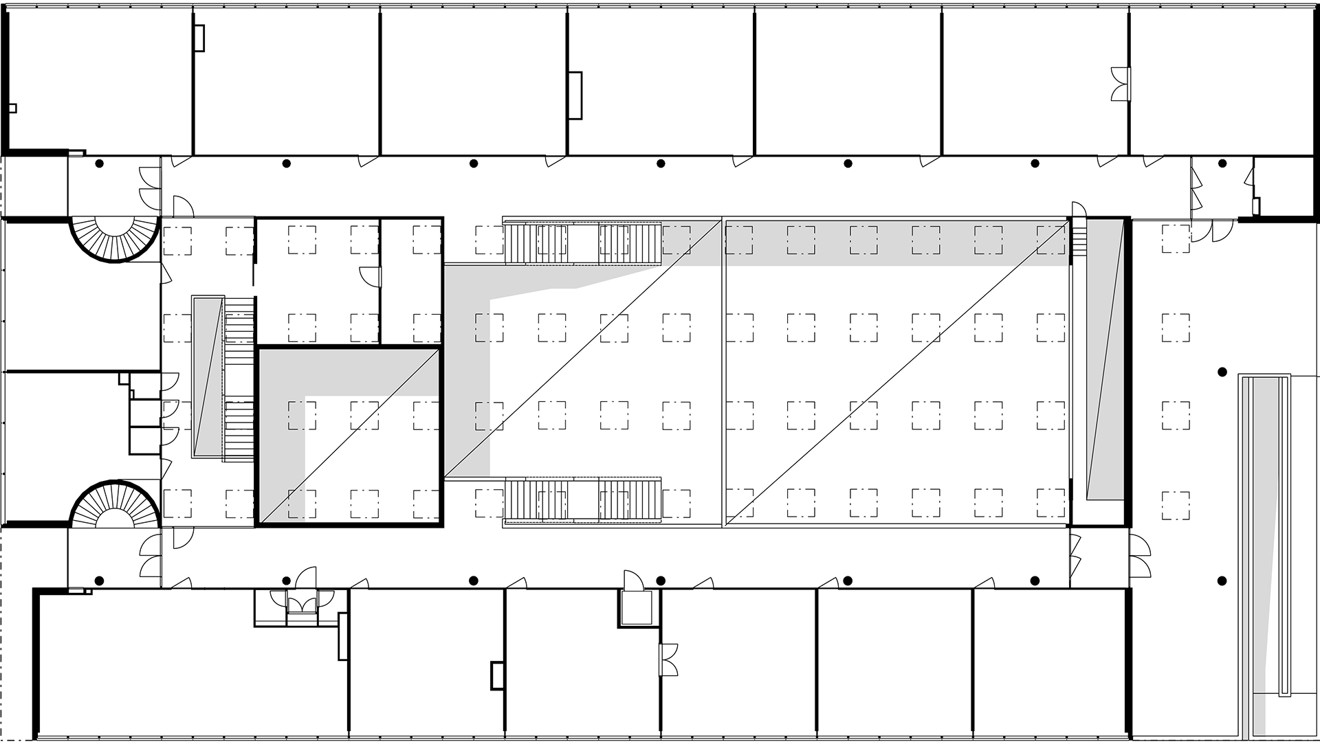
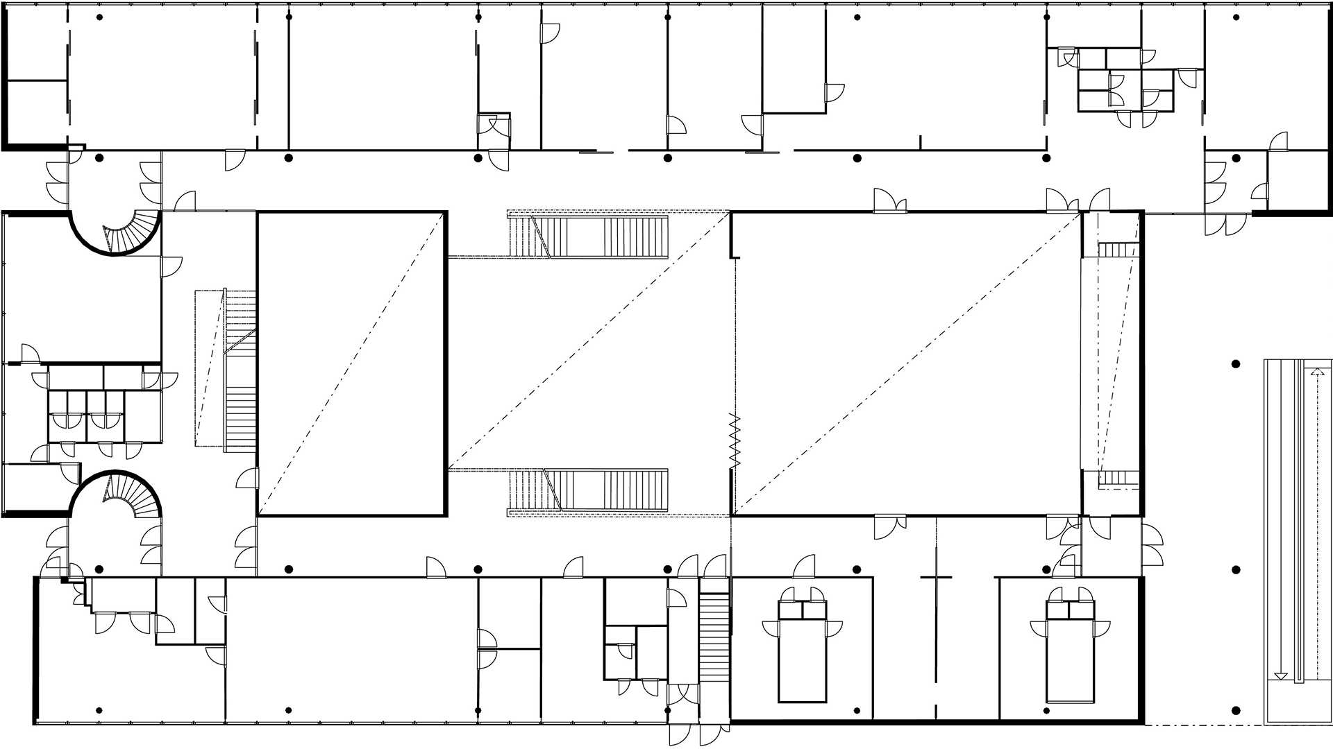
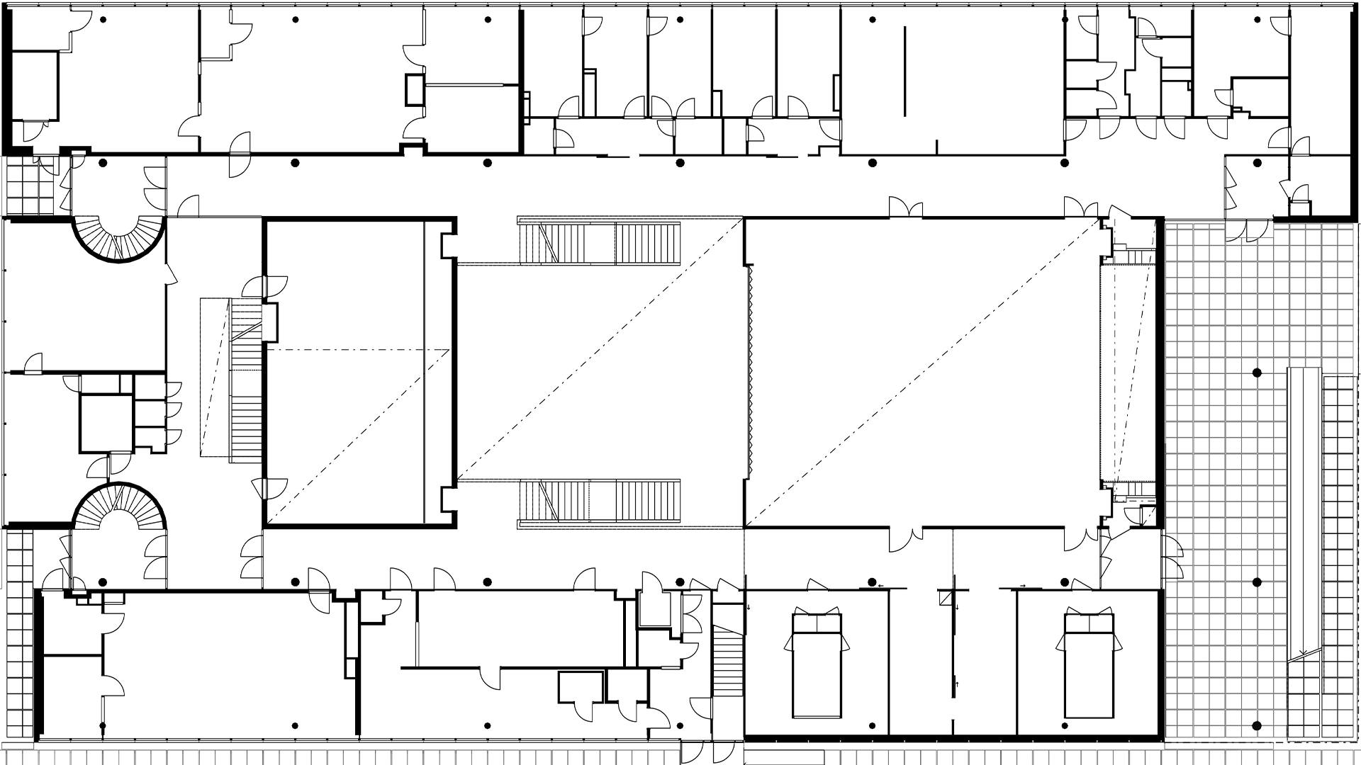
_Oik.:
_Oik.: Pohjakaavio suunnitelmasta. Kuva: Timo Jeskanen.
Koulun energiankulutusta tuli vähentää rakennuksen luonne huomioon ottaen. Hankesuunnitelmassa mainittiin rakennuksen varustaminen koneellisella tulo- ja poistoilmanvaihdolla ja tehokkaalla lämmön talteenotolla sekä yläpohjan, julkisivujen ja ikkunarakenteiden lämmöneristävyyden ja tiiviyden parantaminen. Ikkunoiden auringonsuojausta tuli parantaa lämpötilahallinnan saavuttamiseksi. Sisäilmaluokkatavoitetta hankesuunnitelmassa ei määritelty.
Vesi-, viemäri- ja lämpöverkostot sekä sähkö-, tieto- ja turvatekniikka oli tarpeen uusia. Esteettömyyden saavuttamiseksi rakennukseen tuli lisätä hissi. Palo- ja käyttöturvallisuutta sekä tilojen akustiikkaa oli määrä parantaa, piha-alueet peruskorjata sekä erottaa tosistaan oppilas- ja ajoneuvoliikenne.
Asemakaava oli alkuperäinen vuodelta 1956, eikä rakennusta oltu suojeltu kaavamääräyksellä. Hankesuunnitelmassa kuitenkin painotettiin kulttuurihistoriallisten arvojen säilyttämisen tärkeyttä.
Suunnittelijavalinnat
Suunnittelutarjoukset pyydettiin kattohintaisena tuntityötarjouksena. Tarjouspyyntöjen liitteenä oli perusteellinen hankesuunnitelma, jossa selostettiin kohteen ominaispiirteet ja josta sai käsityksen suunnittelutehtävän vaativuudesta.
1960-luvun peruskorjauskohteissa joudutaan tutkimaan erilaisia reitti- ja ratkaisuvaihtoehtoja ja kehittämään luovia ratkaisuja, koska huonekorkeudet ovat matalia ja palkit äärimmilleen mitoitettuja. Palkkien lävistäminen talotekniikalle riittävin rei'in on mahdotonta. Myös luontevien paikkojen löytäminen teknisille tiloille on usein vaikeaa.
Kaikilla suunnittelualoilla – arkkitehti-, rakenne-, talotekniikka- ja sähkösuunnittelu – on korjattavan rakennuksen ominaispiirteiden sisäistäminen tärkeää. Sillä on oleellinen vaikutus suunnittelun määrään. Jos kaikki suunnittelijat eivät ole motivoituneita tutkimaan kohdekohtaisia ratkaisuita, hyvän ja luontevan lopputuloksen saavuttaminen on vaikeaa.
Suunnittelun lähtötiedot
Hankesuunnitelma
Roihuvuoren koulun hankesuunnitteluvaiheessa oli laadittu viitesuunnitelmat, joiden avulla varmistettiin tilaohjelman mahtuminen rakennukseen ja tilalliset periaatteet. Tarkempi suunnittelu saattoi käynnistyä viitesuunnitelmien pohjalta.
Käytettävissä oli useita tutkimuksia, mm. rakenteiden kuntotutkimukset, talotekniset selvitykset, lämpökamerakuvaus, haitta-ainekartoitus, sisäilman mikrobipitoisuustutkimus ja maaperätutkimus. Niiden pohjalta oli määritelty tekniset suunnittelutavoitteet ja otettu investointikehyksessä huomioon korjausten kustannusvaikutus.
Koska hankkeen toteutuminen oli pitkään epävarmaa, rakennuksen mittaus ja laserkeilaus käynnistyivät vasta yhtä aikaa suunnittelun kanssa. Mittaus olisi hyvä tehdä ennen suunnitteluvaihetta, jotta työskentely olisi alusta asti täysipainoista. Roihuvuoressa oli sentään käytettävissä vanhojen piirustusten pohjalta tehdyt digitaaliset pohjapiirustukset, joiden avulla suunnittelu saattoi alkaa.
Rakennushistoriallinen selvitys tulee tehdä jo hankesuunnitteluvaiheessa korjaustavoitteiden ja -ratkaisujen määrittelyn pohjaksi. Suunnittelijat saavat siitä oleellisia lähtötietoja. Roihuvuoren selvitys valmistui vasta vähän ennen yleissuunnitelmia, joten arkkitehti joutui tekemään selvityksen kanssa päällekkäistä työtä.
Täydentävät tutkimukset
Kun suunnittelijat ovat perehtyneet lähtötietoihin ja hankkeen tavoitteisiin sekä kartoittaneet ratkaisuvaihtoehtoja ehdotussuunnitteluvaiheessa, huomataan lähes poikkeuksetta tarve täydentää aiempia tutkimuksia. Rakenneavauksille ja muille tutkimuksille pitää varata oma aikansa suunnitteluvaiheen alkuun.
Lämpöpattereista ja sisäpuolisista kuparisista sadevesiviemäreistä tehtiin kuntotutkimukset, koska ne pyrittiin säilyttämään arkkitehtonisista syistä. Haitta-aineiden kartoitusta täydennettiin mm. alkuperäisten kaappien osalta, koska osan niistä huomattiin kärsineen vesivahinkoja. Näin saatiin selvyys säilytettävissä olevista kalusteista ja tarvittavien korjaustoimenpiteiden laajuudesta.
Roihuvuoren 1960-luvun värityssuunnitelmasta ei ollut tietoa, ja alkuperäiset sävyt oli hävitetty uudempien pintakerrosten alle. Arkkitehdin laatimassa pintakäsittelyiden tutkimusohjelmassa määriteltiin tarvittavien esiinottojen paikat ja määrät, jotta laadittavalle värityssuunnitelmalle saatiin oikeat perusteet. Tutkimuksen teki rakennuskonservaattori, joka laati tuloksista perusteellisen kirjallisen raportin.
Viranomaisten rooli
Rakennussuunnitteluvaiheessa pääsuunnittelija järjesti Helsingin kaupunginmuseon ja rakennusvalvontaviraston kanssa useita neuvotteluja suunnitteluratkaisuiden tarkentumisen myötä. Ensimmäinen kokous oli pian suunnittelun alkamisen jälkeen, ja hieman myöhemmin koululla pidettiin viranomaisvaatimusten täsmentämiseksi katselmus, johon osallistuivat rakennusvalvonnan, kaupunginmuseon, tilaajan ja suunnittelijoiden edustajat.
Rakennusvalvontaviranomainen teki kaupunginmuseon kantaa mukailevan linjauksen: vaikka rakennuksella ei ollut asemakaavassa suojelumerkintää, sen kulttuurihistoriallinen ja rakennustaiteellinen arvo oli korkea. Hanketta tuli tarkastella maankäyttö- ja rakennuslain 118 §:n näkökulmasta, jonka mukaan rakennuksen korjaustöissä ei saa turmella historiallisesti tai rakennustaiteellisesti arvokkaita rakennuksia tai kaupunkikuvaa. Viranomaiset tulkitsivat suunnittelutehtävän erittäin vaativaksi, ja rakennusmääräysten mukaista korkeinta pätevyysluokkaa edellytettiin pääsuunnittelija-arkkitehdilta sekä betoni- ja teräsrakenteiden rakennesuunnittelijalta. Myös muiden suunnittelijoiden riittävä pätevyys tuli osoittaa tutkintotodistuksin ja referenssein.
Alkuperäisten yksityiskohtien luonteen tavoittelu vaati useita poikkeuksia nykyisistä palo- ja käyttöturvallisuusmääräyksistä. Niistä neuvoteltiin suunnitteluaikana pelastuslaitoksen ja rakennusvalvonnan kanssa, ja näin varmistuttiin hyväksyttävistä ratkaisuista. Osa täydentävistä rakenteista, kuten uusittavat ovet ja ikkunat, olivat kohdekohtaisesti suunniteltuja, eivätkä ne olleet EU:n pakollisten standardivaatimusten mukaisia eli CE-merkittyjä. Poikkeavat ratkaisut hyväksytettiin paikallisesti viranomaisilla.
Jotta pihasta saatiin toimiva, autopaikat ja jätekatos ulotettiin hieman tontin rajan yli puistoalueelle. Tästä sovittiin erikseen kaupunkisuunnitteluviraston kanssa.
Rakennuslupahakemukseen liitettiin piirustukset oleellisista julkisivudetaljeista, koska rakenteiden, yksityiskohtien ja materiaalien oikealla toteutuksella on hyvin suuri merkitys rakennuksen pelkistetylle arkkitehtuurille.
Rakennusluvassa annetut määräykset
Rakenne- ja LVI-suunnitelmien lisäksi rakennusvalvontavirastolle tuli toimittaa hyväksyttäväksi mm. purkusuunnitelma, joka sisälsi säilyvien rakenteiden suojaussuunnitelmat sekä yksityiskohtapiirustukset tärkeimmistä rakenteista kuten julkisivuista. Asiakirjoilla varmistettiin, että suunnitelmissa oli riittävästi huomioitu kohteen kulttuurihistorialliset arvot.
Rakennusluvassa edellytettiin, että rakennusvalvontaviraston kaupunkikuvaosaston edustaja kutsutaan väri- ja mallikatselmuksiin, jotka liittyvät julkisivuihin (ulkoseinän uudet betonipinnat, lasitiilimuuraus, nauhaikkunoiden umpiolasit, teräslistoitus, vesipellitys ja räystäs) sekä ripapatterin lattia-asennukseen, sisäkäytävien ylälasinauhaan ja betonikaiteiden käsijohteeseen. Lisäksi rakennusvalvontaviraston kaupunkitilayksikön maisema-arkkitehti tuli kutsua piha- ja istutuskatselmuksiin. Kaupunginmuseon edustaja kävi katselmoimassa myös muita kuin rakennusluvassa mainittuja työ-, materiaali- ja värisävymalleja.
Suunnitteluvaihe
Rakennussuunnitteluvaiheessa arkkitehti pyrki varmistamaan, että tilojen luonne säilyy. Periaate oli, että kaikki säilytetään, mikä on tarkoituksenmukaista ja mahdollista kunnostaa.
Oleellisia säilytettäviä ominaispiirteitä olivat betoniset maalaamattomat pinnat ja lasiseinät. Betonisten palkkien ja kattopintojen merkitys korostuu, koska tärkeimmät väliseinät ovat yläosastaan lasia. Nämä ominaispiirteet muodostivat suunnittelulle lähtökohdan, joka tuli huomioida kaikissa suunnitteluratkaisuissa. Kun arkkitehtuuri on pelkistettyä, kaikki uudet lisäykset kiinnittävät huomiota.
Vaatimukset tilojen toiminnalle, ilmanvaihdolle, sähkötekniikalle, ääneneristykselle, pelastusturvallisuudelle, akustiikalle, esteettömyydelle ja käyttöturvallisuudelle oli huomioitava. Keskeinen haaste suunnittelijoille oli näistä vaatimuksista seuraavien uusien rakenteiden sovittaminen rakennukseen siten, että ne ovat luontevia suhteessa arkkitehtuurin ominaispiirteisiin.
Osana rakennuksen suunnitteluaikaista inventointia tutkittiin talotekniikan alkuperäiset reitit. Vaikka asennusten määrä moninkertaistui, monissa suhteissa voitiin noudattaa alkuperäistä logiikkaa.
Tavoitteena oli rakennuksen korjaaminen ja uusiminen sellaiseksi, että vaikutelma Ruusuvuoren ainutlaatuisesta arkkitehtuurista säilyy ja palautuu. Uusia rakenteita ei haluttu korostaa vaan sulauttaa ne vanhoihin huomaamattomasti noudattaen mahdollisimman pitkälle alkuperäisiä periaatteita. Sellaiset myöhemmät muutokset, korjaukset ja täydennykset, jotka eivät olleet luonteva osa talon kokonaisuutta, purettiin, vaikka niitä olisi teknisesti voitu hyödyntää. Tällaisia olivat esimerkiksi kaapelihyllyt ja valaisimet, uusitut ovet, kaidepuut sekä eri aikoina lisätyt kiintokalusteet ja varusteet.
Piharakennukset – Ruusuvuoren suunnittelemat terveystalo, kaksi asuntoa ja ulkokäymälät – oli päätetty purkaa. Ennen purkamista niistä otettiin talteen kaikki käyttökelpoiset ovilevyt, helat ja varusteet sekä alkuperäisiä alakattosäleitä, jotta niitä voitiin käyttää koulurakennuksen varaosina.
Ulkoalueet
Tontin länsiosan luonnontilainen kalliomaasto muodostaa vastakohdan suorakulmaiselle rakennetulle alueelle. Pieniä avokallioita on myös koulun sisääntulopuolella. Maasto säilytettiin ennallaan, ja pihatoiminnot sijoitettiin aiemmalle alueelle.
Purettujen ulkokäymälöiden paikalle suunniteltiin uusi oleskelukatos, jonka laajuus vastaa entistä ulkorakennusta ja merkitsee pihalinjan kalliomaastoon päin. Toinen uudisrakennus on jätekatos, joka tehtiin entisen jäteaitauksen paikalle koulun itäsivulle. Kummankin katoksen seinät ja katto ovat betonia, ja niissä on käytetty sekä sileävalu- että lautamuottipintoja kuten puretuissa rakennuksissa.
Pihan pesubetonilaatoitus on koulurakennuksen jalusta ja sitoo koulun muihin rakennuksiin. Sen ruudukon moduulimitoitus on sama kuin rakennuksissa. Laatoitus oli rapautunut ja osittain korvattu asfalttipinnalla. Pinnat uusittiin vanhan mallin mukaisesti, ja laatoituksen laajuus palautettiin ennalleen. Eheä laatoitus yhdistää jälleen piharakenteita. Laatoitusta rajaavat betonimuurit kunnostettiin ja osittain uusittiin alkuperäisiä vastaaviksi.
Sisätilat
Koulutilat ovat esimerkillisen selkeät. Kaksikerroksiset ruokasali ja siihen yhdistettävissä oleva liikuntasali muodostavat keskushallin, jonka ympärille opetus- ja aputilat ryhmittyvät.
Hankesuunnitelman tavoitteiden mukaisesti tilallinen perusratkaisu säilyi. Nuorisokerhon sali, joka ei liittynyt ruoka- ja liikuntasaleihin muutoin kuin yläikkunoiden kautta, muutettiin ilmastointikonehuoneeksi. Toisen kerroksen tasolla siitä erotettiin uudella välipohjalla kirjasto ja neuvotteluhuone. Keskustiloihin ei tehty muutoksia, vain yksi käytävän uudempi jakoseinä purettiin.
Ensimmäisen kerroksen huonevyöhykettä muutettiin. Keittiötä suurennettiin, ja ruuan jakelulle suunniteltiin oma tilansa sen yhteyteen. Tekninen työ siirrettiin itäsivulta länsisivulle, jotta se sai tarpeellista lisätilaa. Kuvaamataidon ja musiikin opetus yhdistettiin samaan luokkaan. Oppilashuollolle varattiin huoneet ja hallintotilojen yhteyteen henkilökunnalle sosiaalitilat. Liikuntasalin aputilat säilyivät ennallaan.
Toisessa kerroksessa kaksi opetustilaa yhdistettiin uudeksi tekstiilityön luokaksi. Muutoin huonekokoja pidettiin toimivina. Joitakin luokkia yhdistettiin toisiinsa pariovin. Kirjastoa, ruokalaa ja eteläpään aulamaista käytävää voidaan käyttää opiskelutiloina. Käytävien varrelle molempiin kerroksiin suunniteltiin WC:t lohkaisemalla tarvittava pinta-ala luokista.
Rakenteet
Ulkovaipan rakenteita uusittiin, koska ne olivat teknisesti korjauskelvottomia. Uudet rakenteet tehtiin nykyisten rakennuskäytäntöjen mukaisina esimerkiksi vedeneristyksen ja ikkunoiden lämmöneristyksen osalta, mutta yksityiskohdat on suunniteltu noudattaen alkuperäistä ulkonäköä.
Betonirakenteet
Rakennuksen seinät ja sisäkattopinnat ovat sileävalua ja muut betonirakenteet lautamuottipintaisia. Hankesuunnitteluvaiheessa oli tutkittu, että julkisivujen betonipintojen korjaaminen olisi ollut pääosin mahdollista. Karbonatisoitumissyvyys oli rakennuksen ikä huomioiden yleensä vähäinen ja betonipeitekerrokset tyydyttäviä. Myöskään pakkasrapautuminen ja betonin kloridipitoisuus eivät olleet ongelmana.
Välipohjan korossa olevat nauhamaiset kuorielementit olivat niin huonossa kunnossa, että niiden uusimista pidettiin tarpeellisena. Muutoin betonirakenteet olisi voitu kunnostaa paikkaamalla ja suojapinnoittamalla. Se olisi muuttanut julkisivujen elementtipinnat kirjaviksi. Korjatut ja uusitut rakenteet olisivat erottuneet toisistaan, mikä olisi sopinut huonosti arkkitehtuurin modernistiseen toistuvuuteen ja pelkistettyihin pintoihin. Niinpä täydennetyn hankesuunnitelman mukaisesti uusittiin kaikki kuorielementit sekä pohjoispään ulkotason paikalla valetut kaiteet ja luiskat.
Julkisivujen lämmöneriste oli 30−75 mm paksua korkkia. Korkin lämmöneristävyys on huono, ja korkki on altis mikrobivaurioille ja kosteustekninen riskirakenne. Uusimalla kuorielementit saatettiin vaihtaa lämmöneriste paremmaksi. Tilaajan tavoite oli tehdä eristyskerros paksummaksi eli parantaa U-arvoa ja pienentää kylmäsiltoja. Tämä siirsi julkisivupintaa ulospäin.
Säilyviä betonirakenteita olivat rungon lisäksi pohjoispään ulkotaso sitä kannattavine ulkokuorineen, jotka määriteltiin paikkauskorjattaviksi.
Betonirakenteiden yksityiskohdissa noudatettiin Ruusuvuoren mitoituksia ja yksityiskohtia. Kuorielementtien paksuutta kasvatettiin kuitenkin kahdeksasta kymmeneen senttiin riittävien peitepaksuuksien saavuttamiseksi. Joitakin yksityiskohtia muokattiin. Esimerkiksi kohtaan, jossa ensimmäisen kerroksen nauhaikkuna kohtaa päädyn kuorielementin, kuorielementtiin tehtiin pieni syvennys nauhaikkunan vesipellin päätynostolle.
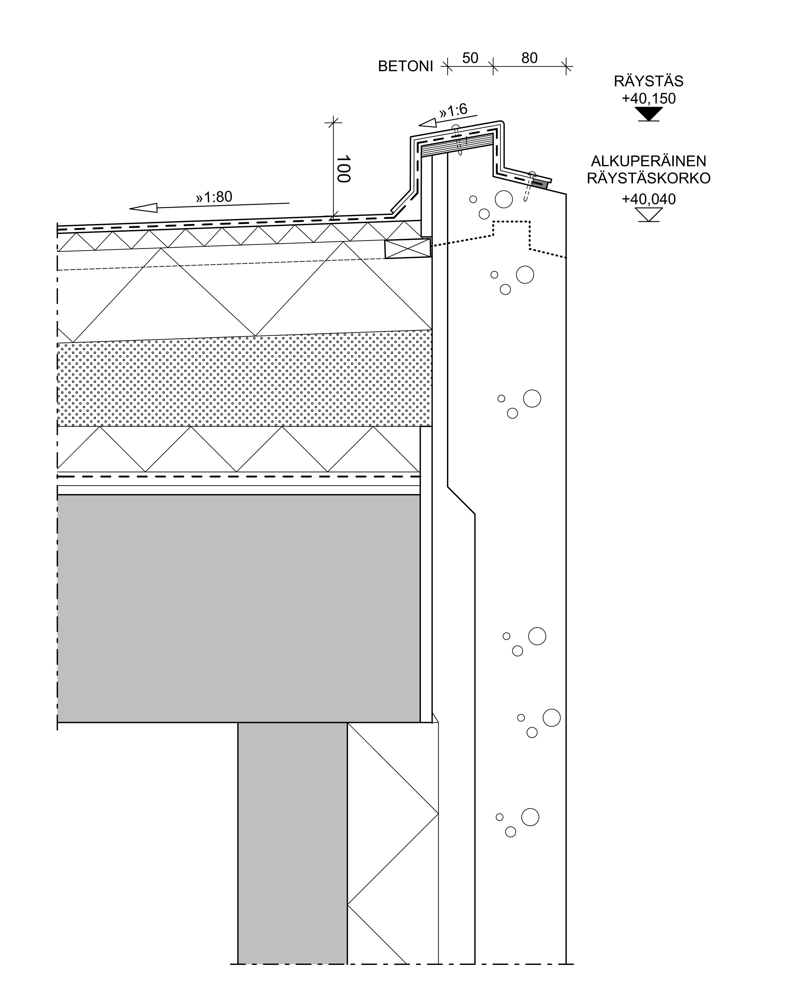
_Oik.: Alkuperäiset piirustukset ovat ensiarvoisia. Räystään suunnittelu alkuperäisen tapaiseksi ilman vanhoja piirustuksia olisi ollut vaikeaa, koska räystästä oli muutettu (vertaa edellinen kuva). Suunnitteluvaiheen alussa ratkaiseva apu löytyi koulun lämmönjakohuoneesta: kahdeksan mappia alkuperäisiä asiakirjoja. Kuva: Timo Jeskanen.
Alkuperäiseen julkisivuun nähden toisen kerroksen otsaelementtiä korotettiin 11 cm:llä. Kun yläpohjan lämmöneristeet oli aiemmin uusittu, oli samalla räystäspelti uusittu korkeaksi ja ulos julkisivupinnasta. Kuorielementtien korottamisen lisäksi niiden yläpäähän tehtiin kolous, jotta räystäspelti saatettiin tiivistää sitä vasten ja pellin ulkopinta jäi alkuperäiseen tapaan betonipintaa sisemmäksi. Korkeampi kuorielementti muutti aavistuksen julkisivun suhteita, mutta se nähtiin paremmaksi kuin raskaan näköinen räystäs.
Ikkunat ja lasitiilet
Suunnittelun lähtökohta oli ovien, ikkunoiden, väliseinien, kaiteiden ja muiden täydentävien rakenteiden alkuperäisten ratkaisujen säilyttäminen tai palauttaminen. Paikoin yksityiskohtia oli muokattava uusien vaatimusten vuoksi.
Ikkunamateriaali ja väri sekä pääikkunoiden tekeminen kiinteinä alkuperäisten avautuvien sijaan poikkesi alkuperäisestä. Alkuperäiset vihreiksi kuultokäsitellyt puuikkunat oli korvattu alumiini-ikkunoilla 1970-luvun alussa, mutta ne olivat rikki. Ulospäin aukeavien, yläsaranoitujen, kytkettyjen ikkunoiden peseminen oli hankalaa.
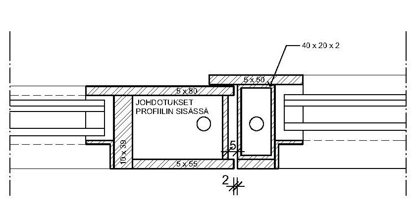
_Oik.: Uusien ikkunoiden liitos väliseinään. Kuva: Timo Jeskanen.
Ikkunat suunniteltiin nyt kiinteiksi. Vaikka energiansäästö- ja auringonsuojasyistä lasina on alkuperäistä painavampi eristyslasitus, materiaaliksi olisi voinut valita alkuperäisen kuultokäsitellyn puun, koska karmeihin ei tulisi kohdistumaan vääntöä. Kiinteistön omistaja piti kuultokäsiteltyä ulkopintaa ylläpidon kannalta ongelmallisena. Sen vuoksi ikkunat tehtiin kiintein teräskarmein. Ulkopuolen erikoisprofilointi vastaa alkuperäisen puuikkunan muotoa. Jauhemaalin sävyksi valittiin neutraali harmaa, jonka tummuus vastaa suurin piirtein kuultokäsittelyn tummuutta. Sisäpuolen pinta on kuultokäsiteltyä mäntyä alkuperäiseen sävyyn.
Helsingin opetusvirasto edellyttää jokaisen luokan varustamista tuuletusikkunalla. Alun perin yläikkunat olivat kiinteitä. Nyt yksittäiset tuuletusikkunat integroitiin kiinteään ikkunanauhaan. Tuuletusikkunoiden avaaminen painikkeella on ikkunoiden korkeusasemasta johtuen hankalaa, mutta kiinteistön omistaja ei halunnut moottoroituja avauslaitteita niiden huoltotarpeen vuoksi. Moottorointiin silti varauduttiin asentamalla valmiiksi johtotiet, jottei johtoja jouduta vetämään pinta-asennuksena.
Julkisivun lasitiiliä on rikottu runsaasti jo 1960-luvulla. Uudet lasitiilet tehtiin luodinkestävinä. Valonläpäisevyys saatiin alkuperäistä vastaavaksi hiekkapuhaltamalla tiilien taustapinta.
Väliseinät
Sisälasiseinien ja -ovien alkuperäistä paksummat lasit palo-, ääneneristys- tai käyttöturvallisuussyistä edellyttivät detaljien hienoista muokkaamista. Yleensä vanhat teräskarmit pystyttiin säilyttämään ja selvittiin lasituslistojen vaihtamisella. Kevyiden betoniseinien ylälasit oli asennettu ilman karmeja umpiseinän yläosassa ja katossa oleviin uriin. Uria levennettiin siellä, missä uusi lasi oli paksumpi. Joissakin tapauksissa palolasit ja paksut ääneneristyslasit vaativat aiempaa suuremman kyntesyvyyden, eikä betoniholveissa ja palkeissa olleita uria ollut mahdollista syventää terästen pienen peitesyvyyden vuoksi. Näissä tapauksissa huonetilan puolelle lisättiin omaan uuteen teräskarmiin toinen lasi.
Vanhat palo-osastoivat teräslasiväliseinät ja -ovet sisälsivät asbestia. Suunnitteluaikana tutkittiin mahdollisuutta purkaa vanhat rakenteet, korvata asbesti uusilla eristeillä ja koota rakenteet ennalleen. Tämä osoittautui liian työlääksi ja kalliiksi. Niinpä lasiseinissä asbesti kapseloitiin rakenteen sisään. Teräsovet uusittiin alkuperäisten detaljien mukaisina, koska niihin oli työstettävä uusia lukkorunkoja, jolloin olisi rikottu asbestia sisältäneitä rakenteita.
_Oik.: Kulunvalvottuihin ulko-oviin tuli moottorilukot ja lukijat. Johtoteitä varten alkuperäisten karmien ja puitteiden leveysmittaa kasvatettiin paikoin 10 mm vaihtamalla lattateräs ohutseinäputkeen. Profiilien kokonaissyvyys säilyi, ja ohutseinäputket on verhoiltu lattateräksin niin, että ovien ulkonäkö vastaa alkuperäistä. Kuva: Timo Jeskanen.
Umpiovet
Koulun laminaattipintaiset puuväliovet olivat pääosin alkuperäisiä. Arkkitehti inventoi ovet. Osassa ovia laminaatit, karmit tai ovilevyjen reunat olivat vahingoittuneet ja ovien ääneneristävyys oli puutteellinen. Suunnitteluaikana yhden oven koekorjauksella tutkittiin oikea kunnostusmenetelmä. Pääosa vanhoista ovista kunnostettiin. Uudet ovet tehtiin piirustusten mukaan erikoiskarmillisina.
_Oik.: Ääneneristysovissa karmit ovat luokituksen mukaisia vakiohuulloksin, nekin sovitettiin listattomina. Kuva: Timo Jeskanen.
Ovien vetimet ja painikkeet olivat pitkälti alkuperäisiä. Säilyneet helat kunnostettiin ja asennettiin takaisin. Alkuperäisen mallisia vetimiä valmistetaan edelleen, joten puuttuvia osia oli helppo täydentää. Uudeksi painikkeeksi valittiin alkuperäistä muistuttava malli.
Alakatot
Koulun keskihallien korkeissa tiloissa ei alun perin ollut alakattoja, vaan valaisimet oli upotettu yläpohjan Siporex-elementteihin. 1990-luvulla palkkiväleihin oli äänenvaimennuksen parantamiseksi lisätty villa-alakatot, jotka oli ruiskutettu akustointipinnoitteella. Nyt alakatot uusittiin ja alakattotilaan asennettiin uusi talotekniikka. Uusi kattopinta palkkiväleissä on vähän alkuperäistä alempana, mutta vaikutelma on sama.
Toisen kerroksen luokissa säilytettiin ja puhdistettiin alkuperäiset alumiiniprofiilialakatot.
Rakennuksen ensimmäisessä kerroksessa ei alun perin ollut alakattoja. Peruskorjauksen yhteydessä musiikkiluokkaan ja tekniseen työhön oli tarpeen tehdä tärinäeristimin ripustettu alakatto. Samoin runsaan talotekniikan vuoksi alakatot tarvittiin keittiöön ja jakelutilaan. Ne kuitenkin rajautuvat palkkiväleihin, joten otsapinnat eivät näy käytävälle eivätkä ulos. Alakattomuutos rajautuu yksittäisten huonetilojen sisälle.
Kaiteet
Helsingin opetusviraston ohjeen mukaan kaiteiden tulisi peruskorjattavissa rakennuksissa olla 130 cm korkeita sekä sisällä että ulkona. Hankesuunnitelmassa betonikaiteita olikin varauduttu korottamaan lasiosin. Korotus olisi vaikuttanut merkittävästi tilojen mittasuhteisiin, ilmeeseen sekä ulkoarkkitehtuuriin, joten korotuksen sijaan betonikaiteiden sisäpuolelle lisättiin pyöröteräksinen käsijohde. Näin kaiteisiin tuli levennys kuten parvikatsomoiden eturiveillä, joissa korkea kaide haittaisi näkyvyyttä. Portaissa käsijohde toimii lisätukena.
Kalusteet ja varusteet
Opettajien huoneen, eteisen ja liikuntasalin pukuhuoneiden kiinteät kalusteet säilytettiin ja kunnostettiin. Perusluokkien säilyttämiskelpoiset kaapit kunnostettiin ja koottiin neljään luokkahuoneiseen. Muihin luokkiin tehtiin uudet kaapit, joiden ilme on vanhojen kalusteiden kaltainen.
Pintarakenteet ja värisävyt
Osa seinistä oli maalattu, osa betonipintaisia. 1960-luvun mustavalkovalokuvien ja väritystutkimuksen avulla päättelemällä väripintojen rajaukset olivat säilyneet, vaikka maalisävyt olivat muuttuneet.
Maalaamaton betoni oli seinissä ja katoissa sileävalua sekä pilareissa, palkeissa ja kaiteissa lautamuottipintaista. Lautamuottipintoja oli osittain slammattu ilmeisesti huonon valun jäljiltä, ja sileävalupinnoissa oli erottuvia paikkauksia. Muutama häiritsevin paikkakohta häivytettiin, muutoin ulkonäkö säilyi sellaisenaan.
Varsinkin kaiteisiin ja kosketuskorkeudella oleviin seiniin ja pilareihin imeytynyt lika ja rasva poistettiin. Likaantumiselle arat pinnat suojakäsiteltiin pintojen ulkonäköä muuttamatta, jotta ne on helpompi puhdistaa. Käsittelyistä tehtiin koesuorituksia suunnitteluaikana onnistumisen varmistamiseksi.
Maalipintojen lopulliset värisävyt määriteltiin työmaavaiheessa mallien avulla väritystutkimuksen ja esiin ottojen pohjalta tulkiten yhteistyössä kaupunginmuseon edustajan kanssa.
Koulun keskeisissä tiloissa sekä porrashuoneissa ja käytävillä lattiapäällysteenä oli alkuperäinen kvartsivinyylilaatta. Sen kiinnitysliima sisälsi asbestia, joten laatat jouduttiin purkamaan. Vain porrashuoneissa ja avoportaissa laatat oli kiinnitetty vaarattomalla liimalla, ja niissä uusittiin vain rikkoontuneet laatat. Uudet muovilaatat teetettiin vanhan laatan erikoissävyyn.
Perusluokkien allaspöydän yläpuolella oli joissakin tiloissa säilynyt alkuperäiset vaalean vihreät seinälaatat, jota sävyä ei ollut enää markkinoilla. Niiden kiinnityslaasti sisälsi asbestia. Laatat irrotettiin haitta-ainepurku-urakan yhteydessä, puhdistettiin, varastoitiin tilapäisesti ja asennettiin rakennusurakassa takaisin niihin luokkiin, joissa myös kaapistot ovat alkuperäiset.
Talotekniikka
Yleistä
Kun Roihuvuoren koulu valmistui 1967, sen talotekniset järjestelmät olivat vaatimattomia. Ilmastointikonehuone oli kooltaan vain 12 neliötä. Suurimpiin keskustiloihin oli tuloilmakanavointi, muutoin rakennuksessa oli koneellinen poisto, ja korvausilma otettiin ulkoseinästä kuorielementin tuuletusvälin kautta. Vähäiset kanavat ja säleiköt oli piilotettu rakenteisiin. Sähköä tarvittiin lähinnä valaistukseen, joten johdot oli putkitettu yksitellen seiniin ja kattoon.
Peruskorjauksen yksi keskeinen haaste oli löytää tilat uusille asennuksille. Ensimmäisessä kerroksessa tilat haluttiin säilyttää alakatottomina. Toisessa kerroksessa rajoituksena olivat ulokepalkit, joihin ei voinut tehdä suuria reikiä, ja joiden alapuoliset talotekniikkavedot olisivat tuhonneet sisätilojen luonteen.
Alun perin osa ensimmäisen kerroksen ilmanvaihtokanavista sijaitsi lattian alla. Hankesuunnittelussa oli päädytty uusien talotekniikkakanaaleiden rakentamiseen alapohjan alle suurimpia vaakavetoja varten. Uudet kanaalit rakennettiin kulkukorkuisiksi.
Ilmanvaihtojärjestelmä
Ilmastointijärjestelmä ja konehuoneiden sijoittaminen ovat tärkeimpiä lähtökohtia paitsi uudelle talotekniikalle myös ulko- ja sisäarkkitehtuurille. Koulun ilmanvaihtokonehuone päädyttiin sijoittamaan keskeisellä paikalla sijainneen nuorisokerhon salin paikalle. Hankesuunnitteluvaiheessa oli tutkittu, ettei konehuoneita voitu sijoittaa rakennuksen katolle. Se olisi muuttanut matalan, vaakasuuntaisen rakennuksen hahmon eivätkä yläpohjapalkit olisi kantaneet vaadittua lisäkuormaa. Lisäksi vesikaton keskialue oli täynnä tarpeellisia kattoikkunoita. Hajautetut ilmastointikoneet olisivat puolestaan vaatineet julkisivuille runsaasti säleikköjä, ja matalissa sisätiloissa vaakavedot olisivat olleet ongelmallisia. Ilmanvaihtokonehuoneen louhiminen rakennuksen alle olisi puolestaan ollut liian kallista.
Ensimmäisen kerroksen kanavointi nousee kellarista tai tekniikkakanaaleista. Päätelaitteet on integroitu kaappeihin ja väliseinien ylälasien alapuoleisiin seinäpintoihin. Huonetilojen katoissa ei tarvita vaakakanavointia paitsi teknisessä työssä ja keittiössä, joissa vaaditaan raskasta ilmanvaihtoa.
Toisessa kerroksessa poistoilmakanavat oli alun perin sijoitettu yläpohjan Siporex-lankkukerrokseen. Nyt tämä asennustapa laajennettiin koskemaan myös tuloilmaa. Ratkaisu ei lisännyt vesikaton korkeutta, eikä nostanut räystästä.
Koska ilmanvaihtokone sijaitsee keskeisesti, pääkanavat voitiin hajauttaa suhteellisen pienikokoisiksi, jolloin ne mahtuvat käytettävissä oleviin tiloihin. Toisaalta vesikaton välttämättömät päätelaitteet ovat sivussa päälähestymissuunnan näkymästä ja puiden katveessa. Päätelaitteiden tarkat tyypit ja sijainnit tutkittiin siten, että ne ovat minimikorkuisia ja näkyvät rakennuksen räystään yli vain kaukaa katsottuna.
Lämmitysverkosto
Kuntotutkimuksen perusteella päädyttiin säilyttämään kuusi hyväkuntoisinta Kesto-patteria, jotka koottiin yhteen tilaan. Muut radiaattorit vaihdettiin ulkonäöltään samanlaisiksi, joita valmistetaan Ruotsissa uustuotantona. Umpipintoja vasten olleet levymalliset ja sileät patterit uusittiin ruotsalaisiin vastaavan mallisiin.
Ulkoseinillä ensimmäisen kerroksen patteriputket oli upotettu lattiavaluun, kuten oli 1960-luvulla tyypillistä. Normaalisti vaakajohdot asennetaan nykyään pattereiden alle näkyviin. Roihuvuoren koulussa ne olisivat lasitiilien edessä korostuneet, joten vaakaputkisto asennettiin patterien alapuolelle uuteen teräskaukaloon linoleumimaton alle. Toisen kerroksen patteriputket asennettiin vanhalle paikalleen 1. kerroksen katossa olevaan koteloon.
Vesi- ja viemäriverkostot
Ensimmäisen kerroksen vesikalusteiden putket tuotiin alapuolisesta kellarista tai tekniikkakanaalista, joten alakattoja ei tarvittu. Toisen kerroksen vesikalusteet säilytettiin entisillä paikoillaan, jolloin ensimmäisen kerroksen läpi kulkevat syöttöreititkin saatettiin säilyttää.
Tasakaton sisäpuoliset sadevesiviemärit oli tehty massiivisina kupariputkina. Ne kulkivat näkyvissä molempien kerrosten läpi käytävän betoniseinien puolipyöreissä syvennyksissä, joka on mielenkiintoinen yksityiskohta. Viemärit jouduttiin uusimaan, mutta ne tehtiin vastaavina kupariputkina entisiin paikkoihin.
Sähköjärjestelmät
Ensimmäistä kerrosta palvelevat pääjohtoreitit sijoitettiin tekniikkakanaaliin. Sieltä johdot nostettiin 1. kerroksen tilaryhmäkohtaisille keskuksille. Kanaalia käytettiin myös reittinä keskuksilta huonetilojen kaapelikouruille.
Betonikattoihin upotettujen valaisimien alkuperäiset paikat säilytettiin. Lisäksi kattoihin asennettiin lukuisa määrä uusia merkki- ja turvavalaisimia, paloilmaisimia, kaiuttimia ja liiketunnistimia. Niiden johtoreitit roilottiin toisen kerroksen lattiapintaan.
Toisessa kerroksessa sähkökeskukset hajautettiin luokkakohtaisiksi ja sijoitettiin kaappien sisään. Syöttöjohdot nousuhormeista kuljetettiin alakaton yläpuolella. Keskuksilta kaapelit vietiin suoraan tilojen johtokouruille, eikä välissä tarvittu kaapelihyllyjä. Luokkiin asennetut langattomat tukiasemat vähensivät kaapeliteiden määrää ja kokoa, koska telekaapeleita ei tarvinnut kuljettaa johtokouruissa.
Rakennuksen valaisimet oli suunniteltu Ruusuvuoren toimistossa. 1960-luvulla valonlähteenä oli hehkulamppu, jonka valoteho ja energiatehokkuus olivat vaatimattomia. Liikuntasalia lukuun ottamatta valaisimet olikin korvattu uusilla, joissa polttimona oli pienoisloistelamppu. Liikuntasalin valaisimet kunnostettiin ja varustettiin suunnitteluohjeen mukaisesti LED-valonlähteellä. Muut valaisimet uusittiin niiden kaltaisiksi.
Valaisimien paikat ja jaot olivat tärkeä osa sisätilojen ilmettä, joten ne säilytettiin. Liikuntasalin valaisimia ja alkuperäisiä piirustuksia hyödyntäen suunnitteluaikana tehtiin mallivalaisimia ja varmistuttiin riittävän valotehon saavuttamisesta, vaikka valaisimien määrä säilyi alkuperäisenä.
Ennen peruskorjausta julkisivuille oli kiinnitetty sattumanvaraisiin paikkoihin pihavalaisimia, kaiuttimia ja valvontakameroita sekä niille johdotuksia pinta-asennettuina. Valaisimet ja kamerat asennettiin nyt erillisiin pylväisiin. Kaiuttimet sijoitettiin katoksen alle palkkien kylkiin, jossa ne eivät muodostu osaksi julkisivua, ja suunnattiin välituntialueiden suuntaan.
Työmaavaihe
Purkutyöt
Purkutöille oli laadittu erilliset asiakirjat, jotka sisälsivät ohjeet mm. suojausten rakentamisesta, tarkastamisesta ja täydentämisestä sekä säilytettävien rakenteiden talteen ottamisesta. Uudelleen käytettävät osat tuli puhdistaa, luetteloida ja suojata varastoon odottamaan kunnostusta ja uudelleen käyttöä.
Koska purkutöiden yhteydessä jouduttiin kuljettamaan rakennuksen sisältä pois mm. louhittua kiveä, pääajoreitit tutkittiin jo suunnitteluvaiheessa niin, että ne aiheuttaisivat mahdollisimman vähän riskiä säilyvien rakenteiden vahingoittumiselle. Ajo työkoneilla herkästi vaurioituvassa kalliomaastossa oli kielletty.
Rakennustyöt
Vaikka rakennus on yleishahmoltaan pelkistetty ja modulaarinen, toisistaan poikkeavia yksityiskohtia on runsaasti. Myös talotekniikan reittien epätavanomaiset ratkaisut vaativat paljon suunnittelua. Jotta toteutustavoista ei olisi ollut epäselvyyttä työmaavaiheessa, laadittiin suunnitelmat mahdollisimman pitkälle jo urakkalaskentaa varten.
Sähkösuunnitelmat olivat poikkeus. Niiden yksityiskohtaiset asennuspiirustukset laati urakoitsija. Koska urakoitsijan suunnittelija ei tuntenut rakennusta, jouduttiin sähkösuunnitelmia korjaamaan ja täydentämään jatkuvasti mm. puutteellisten roilousten vuoksi.
Arkkitehtipiirustusten sarjassa esitettiin ilmanvaihtokanavien ja päätelaitteiden, pattereiden ja lämpöjohtojen sekä johtoteiden ja valaisimien asennusperiaatteita ja integroimista rakenteisiin. Nämä arkkitehtikuvat olivat myös LVIS-urakoitsijoiden suunnitelmajakelussa. Arkkitehti laati myös lukuisia luonnospiirustuksia ohjaamaan sähköurakoitsijaa asennuspiirustusten laatimisessa, jotta pinta-asennuksilta ym. hätäratkaisuilta olisi vältytty.
Suunnitelmiin oli määritelty runsaasti mallitöitä eri rakennusvaiheita, rakenteita ja työsuorituksia varten. Malleja vaadittiin hyvissä ajoin ennen rakentamista, jotta oikea toteutustapa ehdittiin löytää. Esimerkiksi kuorielementeistä tehtiin ensin useita noin 1 x 1 metrin kokoisia mallipaloja, joilla tutkittiin betonimassan oikeaa laatua ja sävyä sekä pinnan karkeutta. Kun mallipala oli todettu hyväksi, valmistettiin mallielementit, joiden avulla varmistuttiin kaikin puolin oikeasta toteutuksesta.
Purkutöiden myötä saatiin tietoa, jolla oli vaikutusta suunnitelmiin. Vanhan kantavan sisäkuoren sijainti ja uudet sokkelit tarkemitattiin, jotta elementtien lopullisista valmistusmitoista saatiin varmuus.
Ajoneuvoliikenne kalliomaastossa oli kielletty myös rakennusvaiheessa. Sen vuoksi maaston puoleiset julkisivuelementit oli määrätty nostettaviksi paikoilleen pihan puolelta rakennuksen yli.
Sisustus
Opetusvirasto kiinnitti sisustusarkkitehdin suunnittelemaan irtokalusteita ja muuta sisustusta, jotka olivat käyttäjän erillishankinnassa. Virastolla ei ollut varaa korvata arkkitehdin osallistumista sisustussuunnitteluun. Lopputuloksen kokonaisuuden kannalta se olisi eduksi, sillä sisustus muodostaa tärkeän osan valmista rakennusta. Arkkitehti kuitenkin osallistui mahdollisuuksiensa mukaan suunnitteluun, ja pyrki auttamaan rakennuksen ominaispiireiden huomioon ottamisessa sekä keskustelemaan irtokalusteiden suhteesta rakennuksen materiaaleihin ja väreihin erityisesti keskustilojen osalta.
Roihuvuoren alkuperäiset irtokalusteet olivat hävinneet paria ruokasalin penkkiä ja liikunta- ja juhlasalin tuoleja lukuun ottamatta. Salin näyttämön alapuolisissa vaunuissa säilytettävät kytketyt tuolit on tarkoitus kunnostaa tulevaisuudessa.
Sisustussuunnittelija valitsi uudet irtokalusteet opetusviraston sopimustoimittajien vakiomallistoista. Rakennushistoriallisesti arvokkaissa kohteissa on suotavaa, että keskeisten tilojen kalusteet valmistetaan vakiomalleja muokaten esim. pintamateriaalien tai värien osalta, ja näin oli tarkoitus toimia nytkin.
Ruokasalin penkit olivat alun perin pöytien pituisia. Painonsa vuoksi ne olivat hankalia, koska nostaminen pöydän päälle siivousta varten vaati kaksi henkilöä. Normaalisti kouluruokaloissa on erillistuolit, jotka nostetaan pöytien alapinnassa oleviin kiskoihin, jotta myös pöytäpinnat voidaan pyyhkiä.
Roihuvuoren tuolien istuinosa määriteltiin kuultokäsiteltäväksi samaan vihreään sävyyn kuin alkuperäiset penkit, ja pöytien ja tuolien jalat oli tarkoitus maalata 1960-luvun siniseen sävyyn. Pöytälevyjen alkuperäisestä sävystä ei ollut tietoa, joten vanhojen mustavalkeiden valokuvien perusteella sisustussuunnittelija päätyi neutraaliin harmaaseen laminaattisävyyn. Kalusteiden tilausvaiheessa erikoisväreistä luovuttiin kustannuksen vuoksi, ja kalusteiden kaikki pinnat ovat harmaita. Näin ollen ruokasalin ainoaksi väripinnaksi jää Anitra Lucanderin seinäapplikaatio.
Tämä on harmillista, sillä Aarno Ruusuvuori suunnitteli Roihuvuoren koulun aikansa kokonaistaideteokseksi, joka sisälsi mm. valaisimet ja kiintokalusteet. Suhteellisen pieni lisäkustannus irtokalustehankinnassa olisi ollut perusteltua kokonaisuuden kannalta.
Jälkisanat
Peruskorjauksen valmistuttua on rakennuksen ylläpidon vuoro. Käytön aikana syntyy erilaisia pieniä huoltokorjaustarpeita. Varusteita uusitaan ja niitä hankitaan lisää. Myös talotekniikkaan tarvitaan päivitystä.
Lisäyksiä ja muutoksia suunniteltaessa tulee muistaa tarkastella niitä kokonaisvaltaisesti. Muutoin yksittäiset huoltokorjaukset tai hankinnat saavat laajuuttaan suuremman merkityksen, ja vuosien mittaan rakennuksen ilme ja luonne kärsivät.
Vaikka ylläpito olisi asianmukaista, aika ajoin rakennuksia tulee kuitenkin korjata ja muuttaa perusteellisemmin. Toiminnalliset tarpeet muuttuvat, rakenteet kuluvat ja talotekniikka vanhenee. Peruskorjaushankkeita käynnistettäessä ja toteutettaessa on tärkeää tarkastella monipuolisesti tavoitteita sekä keinoja rakennuksen kannalta parhaiden tavoitteiden saavuttamiseksi.
Koulut ovat tärkeimpiä julkisia rakennuksiamme, oleellinen osa suomalaista rakennusperintöä. Eri vuosikymmenten koulut ovat erilaisia ja oman aikakautensa rakennus- ja kulttuurihistoriaa. Kun ylläpidämme ja korjaamme niitä kunnioittaen kunkin rakennuksen ominaispiirteitä, säilytämme osan tästä yhteisestä historiastamme.
Kirjoittaja
Timo Jeskanen, arkkitehti, Roihuvuoren koulun 2016 valmistuneen peruskorjauksen pääsuunnittelija.
Artikkeli on julkaistu 2017.
Lähteet
Arkkitehtitoimisto Livady Oy: Kolhonen, Pasi; Lehtovuori Panu; Mälkki, Mikko & Saarinen, Lauri 2014 a. Roihuvuoren ala-aste, Rakennushistoriaselvitys ja inventointi. Helsingin kaupungin kiinteistövirasto, tilakeskus. Moniste.
Arkkitehtitoimisto Livady Oy: Kolhonen, Pasi; Lehtovuori Panu; Mälkki, Mikko & Saarinen, Lauri 2014 b. Roihuvuoren ala-aste – Sivurakennukset ja piha-alueet, Rakennushistoriaselvitys ja inventointi. Helsingin kaupungin kiinteistövirasto, tilakeskus. Moniste.
Roihuvuoren ala-aste, hankesuunnitelma 18.3.2010. Helsingin kaupunki, Tilakeskus, Opetusvirasto, HKR-Rakennuttaja.
Viitteet
[1] Koulun rakennushistoriasta Arkkitehtitoimisto Livady Oy 2014 a. Piharakennusten rakennushistoriasta Arkkitehtitoimisto Livady Oy 2014 b.
[2] Roihuvuoren ala-asteen hankesuunnitelma 18.3.2010.