
Martinlaakson koulu
Sari Nieminen
Vantaan Martinlaaksoon 1970-luvulla rakennettu koulu oli edelläkävijä.[1] Rakennus suunniteltiin avoimeksi oppimisympäristöksi, ja siitä tuli uuden lähiön pieni kulttuurikeskus. Uutta oli sekin, että opettajat otettiin mukaan suunnitteluun.[2] Koulun mittava peruskorjaus valmistui vuonna 2011. ”Martsarina” tunnettu ja opetuksen korkeasta laadusta kuuluisa koulu säilyi. Rakennuksen kantavat rakenteet jäivät peruskorjauksessa ennalleen, muut osat uusittiin.[3] Uudistus onnistui, Martsarin olemus on entisellään.
Edelläkävijä avoimen oppimisympäristön luomisessa
Nimimerkillä ”Ryväshyvä” arkkitehtikutsukilpailun vuonna 1974 voitti ehdotus, jonka todettiin täyttävän hyvin tavoitteet ”uudistuvan koulun asettamille joustavuuden vaatimuksille ja koulun mahdollisuuksille toimia aikuiskasvatuksen, vapaa-ajanvieton sekä erilaisten kulttuuriharrastusten tiloina”.[4] Koulu valmistui kahdessa vaiheessa, vuosina 1974 ja 1976 pääpiirteittäin kilpailuehdotuksen mukaisena mutta laajuudeltaan supistettuna.[5] Talo muistutti rakenteiltaan syvärunkoista teollisuushallia harvakseltaan sijoitettuine pilareineen. Keskellä taloa betoniset TT-laatat kantoivat jopa 18 metrin palkkivälin.
Martinlaakson koulun kaikki väliseinät suunniteltiin keveinä levyrakenteina ja alumiinisilla U-listoilla kiinnitettyinä siten, että seiniä olisi helppo siirtää paikasta toiseen, kun tilatarpeet muuttuisivat. Vuosikymmenten aikana kouluun on tehty lukuisia pieniä väliseinämuutoksia, mutta pääasiassa alun perin rakennetut tilat ovat palvelleet oppimista. Muutoksia on tehty myös käytävien varsilla, kun oppilasmäärän kasvaessa on jouduttu ottamaan opetuskäyttöön ikkunattomia rungon keskellä sijaitsevia tiloja.[8] Leveät käytävät olivat laajennusvara, joilla oli tärkeä tehtävä oppilaiden oleskelutiloina välituntien aikana. Käytävien lattioilla toteutettiin monta hanketta, joille ei ollut tilaa luokkahuoneissa.[9]
Koulusta uuden lähiön kulttuurikeskus
Martinlaakso on Länsi-Vantaalle 1968–1975 rakennettu asuinalue, jota on uudistettu ja täydennetty. Asukkaita alueella on tällä hetkellä noin 12 000. Asemakaava perustuu ulkosyöttöiseen katuverkkoon, jossa ajoneuvoliikenne sijoittuu korttelien ulkopuolelle, ja laajaan sisäiseen jalankulkuverkkoon, jonka varrelle sijoittuvat puistot ja palvelut.[10] Martinlaakson koulu kaarevine sisääntulokatoksineen ja puuistutuksineen rakennettiin osaksi Martinlaaksonpolun kevyen liikenteen reittiä, jonka varrelle sijoitettiin myös uimahalli ja nuorisotalo.
Koulurakennuksesta tuli valmistuttuaan uuden vantaalaislähiön pieni kulttuurikeskus. Viikonloppuisin liikuntahallissa tanssittiin ja auditoriossa esitettiin elokuvia. Iltaisin koulu oli Vantaan aikuisopiston ja eri seurojen käytössä. Koska koulu rakennettiin yksityiskouluksi, voitiin rakentaa myös tiloja, joiden toteuttamiseen ei saatu valtionavustusta: kirjasto, auditorio sekä liikuntahallin katsomo. Keskeinen aula rakennettiin kahden kerroksen korkuiseksi, mikä oli poikkeuksellista ajan kouluissa.[11]
Rakentamista 1970-luvulla: ihanteet ja todellisuus
Rakennuksen suunnittelusta vastannut arkkitehti Arno Savela on haastattelussa kertonut, kuinka arkkitehdit 1950-luvulta alkaen unelmoivat tasakatoista: ”…kaikki unelmoivat siitä, että pahus soikoon, kun aikaa kuluu, niin pannaan kaikki katot tasaiseksi….”[12]
Jatkuva korjaustyömaa
Martinlaakson koulua on korjattu useaan otteeseen. Suurimmat urakat olivat vesikaton korottaminen puurakenteilla riittävien kallistusten aikaansaamiseksi vuonna 1990 sekä ikkunoiden uusiminen vuodesta 1986 alkaen useamman vuoden ajan. Sadevesien valumista kertyi vesiallas rakennuksen alle. Sen tuottamaa huolta ja ongelmaa korjattiin 2000-luvun vaihteessa. Ulkoseinissä oli kosteusvaurioita ja lämpövuotoja useassa kohdassa.[14]
Purku-uhka torjutaan
Toukokuussa 2007 Vantaan opetuslautakunta ensin päätti, että Martinlaakson koulun perusparannuksesta luovutaan ja rakennetaan kokonaan uusi koulu. Huonokuntoinen, ”tasakattoinen” betonielementtirakennus vaati kalliin korjauksen. Opetuslautakunta piti koulua myös tiloiltaan vanhentuneena. Uudessa koulurakennuksessa voitaisiin lähtökohdaksi ottaa tämän päivän pedagogiset tavoitteet.[17] Jälkikäteen tämä tuntuu ristiriitaiselta, koska rakennus oli edelläkävijä avoimen oppimisympäristön luomisessa. Lautakunta ei ollut päätöksessään yksimielinen. Muutkin tahot, kuten koulun opettajat ja oppilaat, alkoivat puolustaa koulun säilymistä ja korjaamista.[18]
Vantaan kaupungin tilakeskus pyysi Vantaan kaupunginmuseolta lausunnon, jossa todettiin: ”Rakennuksella on paikallishistoriallista ja myös arkkitehtuurihistoriallista merkitystä […] paras vaihtoehto on koulun laajennuksen tutkiminen siten, että lähtökohdaksi otetaan sellaisen kokonaisuuden tavoittelu, jossa nykyisen rakennuksen arkkitehtonisesti onnistuneimmat ja tilallisesti toimivimmat piirteet hyödynnetään täysimääräisesti [...] nykyisen koulurakennuksen keskeisimmiksi muodostuneiden osien ja yhteistilojen luonne ja merkitys on otettava huomioon kunnostuksen suunnittelussa. Näiden tilojen osalta museo pitää perusteltuna, että suunnittelussa tavoitellaan rakennuksen rakentamisajan tyyliin soveltuvia ratkaisuja, jotka mahdollistavat keskeisten yhteisten tilojen keskeisten ominaisuuksien säilyttämisen ja laadukkaan täydentämisen.”[19]
Tilakeskus teetti hankesuunnitelmaa varten rakennushistoriallisen selvityksen (RHS), jossa kiinnitettiin huomiota paitsi seiniin, myös sisältöön: ”Martinlaakson koulu noudattaa pohjaratkaisultaan ja julkisivuiltaan rakentamisajankohtanaan vallinneita ja koko 70-luvun jatkuneita suunnitteluihanteita. Sen sijaan koulun toimintaan – avoimeen oppimisympäristöön ja kulttuuritoimintaan – liittyvät ajatukset olivat uusia 1970-luvun alussa. Rakennus kuuluu korkeiden sisätilojensa ja väljien käytäviensä ansiosta 1970-luvun edistyksellisen koulurakentamisen kärkipäähän ja sen arkkitehtoninen arvo aikansa koulujen joukossa on kiistaton. Rakennushistorialliset ja kulttuurihistorialliset arvot määrittyvät paljolti paikallisten tekijöiden mukaan. Koulusta on muodostunut pieni kulttuurikeskus. Rakennus on onnistunut sille suunnitteluajankohtana, jo kilpailuvaiheessa määritellyssä tehtävässä: siitä on tullut paikka, jossa lähiseudun asukkaat kokoontuvat vapaa-ajan viettoon.”
Rakennushistorian selvityksessä kiinnitettiin huomiota siihen, että Martinlaakson koulussa kasvaneet lapset olivat saaneet nauttia ainutlaatuisesta ilmapiiristä, ”Martsari-hengestä”. Rakennus oli myös tämän perusteella, arkkitehtonisten ja rakennus- ja kulttuurihistoriallisten arvojensa ohella, katsottava peruskorjaamisen arvoiseksi. Lisäksi koulurakennus tuli suhteuttaa Vantaan omaan paikalliseen rakennuskulttuuriin: 1970-luvun rakennukset ovat tärkeä osa Vantaan identiteettiä. Näin ollen rakennus tulee korjata hienovaraisesti, alkuperäinen materiaalintuntu säilyttäen ja rakennustekniset virheet korjaten, selvityksessä todettiin.[20]
Rakennuksella on kantava pilari-palkki -runko ja siihen yhdistettynä elementtilaatat. Teollisuushallin tapaan rakennettu koulu on helppo korjata, koska siinä ei ole kantavia väliseiniä muualla kuin porrashuoneiden kohdissa. Vanhat asennukset on helppo purkaa ja asentaa uudet tilalle.
Rakennushistoriallinen selvitys perustui tavanomaista enemmän henkilöhaastatteluihin, joissa sekä opettajien että rakennuksen suunnittelijoiden näkemykset tulivat esiin. Tässä suhteessa RHS muistutti todistusvoimaista dokumenttielokuvaa. Päättäjät oivalsivat, että koulu ei ollutkaan tilankäytöltään tehoton aikansa palvellut rakennusteknisten ongelmien kimppu, vaan sen suojiin oli kehittynyt niin kukoistavaa paikallista kulttuuria, että koulu oli syytä säilyttää ja korjata. Rakennuksen arkkitehtoniset ansiot 1970-luvun koulujen joukossa tunnustettiin. Kevättalvella 2008 opetuslautakunta tilakeskuksen esityksen mukaisesti hyväksyi, että koulu peruskorjataan ja laajennetaan.[21]
Peruskorjaus ja laajennus
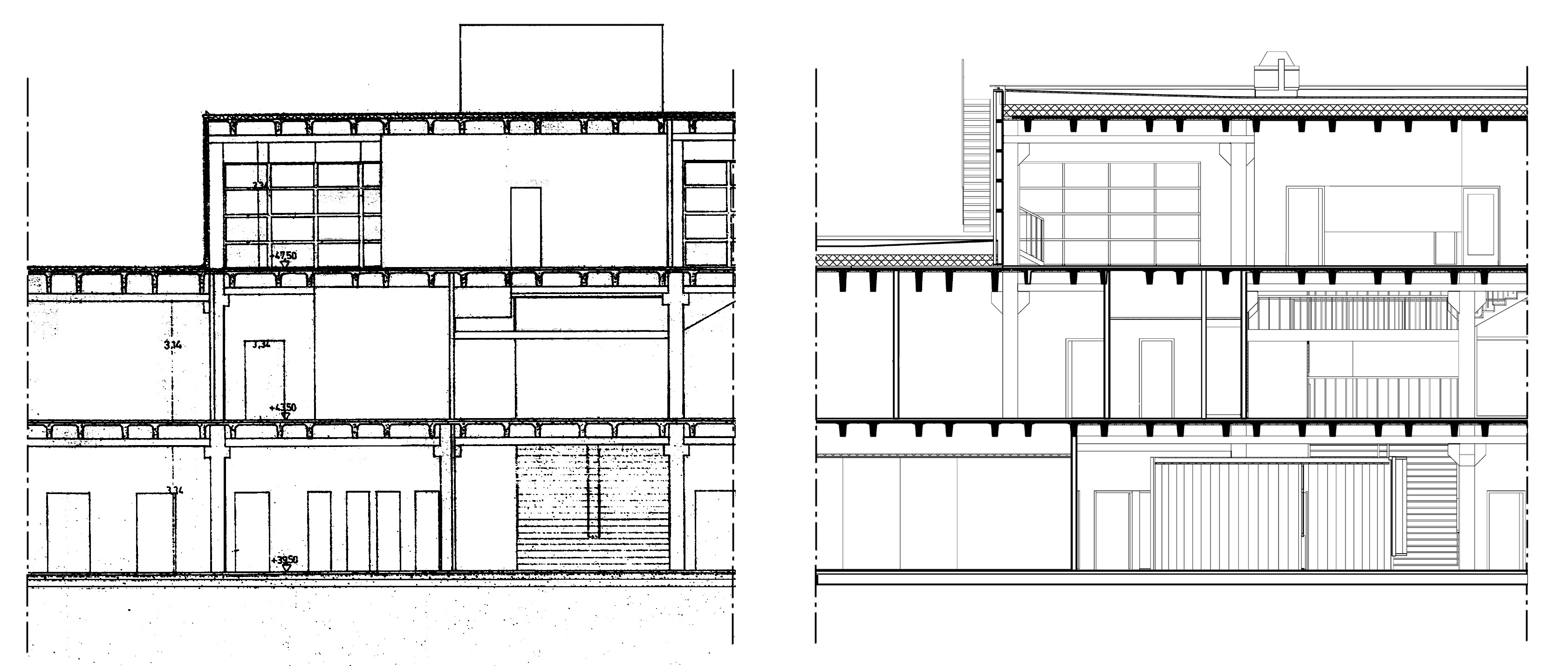
Peruskorjaus valmistui vuonna 2011. Rakennuksen kantava runko säilyi, näkyviin jäävät pinnat uusittiin.[22] Laajennukset ovat näkyvä muutos ulkohahmossa, samoin räystäslinja, jota on nostettu reilusti, jotta vesikatolle on saatu toteutettua riittävät kallistukset ja lämmöneristeet. Kokonaisuus on onnistunut sekä ulkoa että koulun sisältä, koska ratkaisut ovat linjassa rakennuksen alkuperäisen olemuksen kanssa, eikä ole keksitty uutta. Sen sijaan, että olisi turvauduttu räikeään kontrastiin rakennusta laajennettaessa ja uutta kerrostumaa rakennettaessa, muutokset ja lisäykset on toteutettu pienin vivahtein, jolloin kokonaisuus on säilynyt ehyenä.
Hyvä suunnittelu ja kustannussäästöt
Laajennukset saatiin toteutettua pienempinä kuin mitä hankesuunnitelmaan oli mitoitettu, ja ne toteutuivat alkuperäisen, vuoden 1974 arkkitehtuurikilpailuehdotuksen mukaisina. Samalla kustannustavoite alittui.
Tämä perustui siihen, että pohjakerroksen lattiat purettiin pääosin. Kosteutta oli noussut rakenteisiin talon alapuolisesta, valumavesistä muodostuneesta altaasta. Samalla tilajärjestelyt tehtiin aiempaa tehokkaammiksi ja pinta-alaa saatiin hyödynnettyä opetustilaksi. Tässä tapauksessa purkaminen edisti alkuperäisen konseptin toteutumista. Rakennus voitiin täydentää kilpailuehdotuksen mukaiseen laajuuteen, eikä uusia lisäsiipiä tarvinnut suunnitella.[23]
Uudet käytävien varrella sijaitsevat väliseinät tehtiin lasilankuista, joita oli alun perin käytetty aulan korkean tilan ikkunoissa. Materiaalin valinta on onnistunut. Lasilankku heijastaa valoa siten, että valoisuuden tuntu lisääntyy. Nykykouluihin rakennetaan paljon lasiväliseiniä, mutta peruskorjauksen suunnittelijat ovat oivaltaneet, että ne eivät kuulu Martinlaakson kouluun.
Alkuperäinen tunnelma säilyy sisätiloissa
Sisätilat ovat raikkaat ja rakentamisajankohdan tunnelma on tavoitettu hyvin. Alkuperäiset kirkkaat perusvärit – punainen, vihreä ja keltainen täydennettynä sinisellä – ovat edelleen vallitsevia. Poikkeuksena alun perin auloista opetustiloihin johtavat ovet, jotka oli maalattu kahdella sävyllä. Nyt ovet ovat kauttaaltaan valkoisia tai harmaita, jonka myötä ne jäävät kirkasväristen kiintokalusteiden rauhalliseksi taustaksi.
Rakentamisajankohtana 1970-luvulla ei ollut tarjolla laajaa valikoimaa teollisesti valmistettuja koulujen erityiskalusteita. Martinlaakson koulua varten sisustusarkkitehdit piirsivät kaikki säilytyskalusteet, jopa telineet luistimia varten.[25] Näitä täydensivät kirkasväriset tuolit ja pöydät sekä opetustiloissa että ruokasalissa. Koulun päävärit toistuivat irtokalusteissa, joten kalustus oli oleellinen osa sisätilojen ilmettä. Kalusteet olivat keventävä vastakohta rakennuksen muutoin teolliselle ilmeelle ja betonirakenteille.
Tällä hetkellä kouluhankkeissa ei irtokalusteiden suunnittelua yleensä tilata arkkitehdiltä,[26] vaan ne tilataan erikseen kilpailutetulta kalustetoimittajalta. Lopputulos, etenkin tärkeiden päätilojen osalta, voi jäädä sattumanvaraiseksi. Olisivatko kirkkaan väriset muoviset ruokalan tuolit olleet huomattavan kallis menoerä Martsarin peruskorjauksessa? Hankitut puiset valkoiset pöydät ja tuolit näyttävät vierailta ympäristössään.
Muutokset ulkoarkkitehtuurissa
Koulun 2011 valmistuneessa peruskorjauksessa tehdyt uudisosat ja laajennukset on suunniteltu 1970-luvun arkkitehtuuria säestäviksi, mutta siitä sopivasti poikkeaviksi. Luoteisnurkan lasijulkisivut tuovat mieleen suuren kuistin, ja lounaiskulman julkisivut on toteutettu harmaalla väribetonilla pesubetonin sijaan. Laajennusosissa on käytetty eri sisämateriaaleja kuin alkuperäisessä rakennuksessa, mikä osoittaa eri aikoina valmistuneet osat.
Peruskorjauksessa julkisivuja on korotettu yhdellä kokonaisella vaakamoduulilla: ikkunoiden yläpuolella on nyt kaksi yksikköä profiilipellillä päällystettyä julkisivua entisen yhden sijasta. Ratkaisu on onnistunut verrattuna siihen, että olisi rakennettu uusi, ulospäin kalteva katto. Joka tapauksessa kattoa on pitänyt korottaa, jotta rakentamisajankohdan virheet on voitu korjata ja toteuttaa riittävät kallistukset sadeveden poistoa varten sekä asentaa kunnollinen lämmöneristys.
Viimeisimmän peruskorjaussuunnittelun aikoihin Vantaalla, kuten Helsingissäkin, edellytettiin kaikkiin kaupungin rakennuttamiin kohteisiin räystäitä. Martinlaakson kouluun saatiin kompromissi, jossa toteutettiin lyhyet lipat.[27] Pitkillä julkisivuosuuksilla rakenne on siro, mutta lyhyillä julkisivun osilla ulostuleva räystäslippa kiinnittää huomiota.
_Oik.: Koulu pihan puolelta 1970-luvun lopussa. Kuva: Martinlaakson koulun arkisto.
_Oik.: Pääsisäänkäynti, nykytilanne. Kuva: Elina Riksman, Vantaan kaupunginmuseo.
Talotekniikka
Korjaussuunnittelussa yksi työläimmistä tehtävistä on nykymääräysten mukaisen talotekniikan sovittaminen vanhaan rakennukseen. Martinlaakson koulussa on ollut poikkeuksellisen hyvät lähtökohdat talotekniikan sijoittamiseen, koska kerroskorkeus on neljä metriä. Lisäksi TT-laattojen ripojen välissä on tilaa kanaville. Peruskorjauksessa kellariin rakennettiin kokonaan uusi konehuone, ja vesikatolle tuli kolme uutta erillistä pienempää konehuonetta.[28] Sisätiloissa ainoastaan liikuntahallin katsomon yläpuolelle sijoitettu iso kanava herättää huomiota. Lisäksi kirjaston läpi on peruskorjauksen jälkeen tehty ilmanvaihtoputken kömpelö asennus, koska korjauksen valmistuttua kirjaston alapuolinen tila on otettu käyttöön, joka vaatii ilmanvaihdon. Tämän kaltaiset muutokset pitäisi suunnitella ja toteuttaa samalla huolellisuudella kuin rakennuksen peruskorjaus.
Koulun pihoja ei muutettu radikaalisti peruskorjauksen yhteydessä. Uusi pyöräkatos rakennettiin vanhojen sisäänkäyntikatosten mallisiksi.[29]
Toteutuneet tavoitteet
Vantaan kaupunginmuseon lausunnossa vuodelta 2007 todettiin: ”Rakennuksen kaikkia osia ei alustavan arvion mukaan ole aiheellista edellyttää säilytettäviksi sellaisenaan. On kuitenkin olennaista, että päätökset mahdollisista muutostöistä ja/tai joidenkin osien korvaamisesta uudisosilla perustuvat nykyisen rakennuksen arkkitehtonisten lähtökohtien ymmärtämiseen ja huolelliseen suunnitteluun […] yhdessä rakennukseen liittyvän laajennuksen kanssa on taitavalla suunnittelulla mahdollista muodostaa historiallisesti kerrostunut kokonaisuus, joka on sitoutunut sekä paikkaansa että yhteisön kokemuksiin.”[30] Nämä tavoitteet ovat Martinlaakson koulun osalta toteutuneet hyvin. Onnistunut lopputulos saavutetaan, kun tilaaja on sisäistänyt tavoitteet ja suunnittelijaryhmä on taitava ja työstään innostunut.
Kirjoittaja
Arkkitehti Sari Nieminen, Arkkitehtitoimisto Sari Nieminen Oy, teki rakennushistoriallisen selvityksen Martinlaakson koulusta.
Artikkeli on julkaistu 2017.
Lähteet
Arkistot:
Vantaan kaupunginmuseon arkisto.
Vantaan kaupungin verkkojulkaisut http://www.vantaa.fi/hallinto_...;
http://www.vantaa.fi/hallinto_...;
Martinlaakson koulun arkisto.
Kirjalliset lähteet:
Arkkitehti 1972:6–7 kilpailuliite.
Arkkitehti 1974:4.
Rakennushistoriallinen selvitys hankesuunnittelua varten 2007. Arkkitehtitoimisto Sari Nieminen Oy ja Kati Salonen ja Mona Schalin Arkkitehdit Oy. Vantaan kaupungin tilakeskus.
Haastatellut lähteet:
Arkkitehti Tarmo Peltonen, Helsinki. Arkkitehtitoimisto Lehto Peltonen Valkama Oy:n perustajaosakas.
Rakennusarkkitehti (AMK) Arto Aho, Helsinki. Projektiarkkitehti Arkkitehtitoimisto Lehto Peltonen Valkama Oy:ssä.
Viitteet
[1] Koulu suunniteltiin Oy Kaupunkisuunnittelu Ab:ssä arkkitehti Arno Savelan johdolla.
[2] Rakennushistoriallinen selvitys hankesuunnittelua varten 2007. Arkkitehtitoimisto Sari Nieminen Oy ja Kati Salonen ja Mona Schalin Arkkitehdit Oy. (Rakennushistoriallinen selvitys jäljempänä RHS 2007).
[3] Haastattelutieto Tarmo Peltonen ja Arto Aho 9.9.2016. Peruskorjauksesta vastasi Arkkitehtitoimisto Lehto Peltonen Valkama Oy, pääsuunnittelijana arkkitehti Tarmo Peltonen ja toisena pääsuunnittelijana rakennusarkkitehti (AMK) Arto Aho.
[4] Kilpailuliite. Arkkitehti 1972: 6–7.
[5] RHS 2007.
[6] RHS 2007.
[7] RHS 2007.
[8] Haastattelutieto kuvaamataidon opettaja Cleo Mustosen ja äidinkielen opettaja Irmeli Vaalavuo 4.10.2007. RHS 2007.
[9] Haastattelutieto kuvaamataidon opettajan Cleo Mustosen ja äidinkielen opettajan Irmeli Vaalavuo 4.10.2007. RHS 2007.
[10] http://www.vantaa.fi/hallinto_ja_talous/tietoa_vantaasta/tilastot_ja_tutkimukset/vantaa_alueittain_ja_aluejaot (haettu 25.11.2016).
[11] RHS 2007.
[12] Haastattelutieto arkkitehti Arno Savela 5.10.2007. RHS 2007.
[13] Haastattelutieto insinööri Heikki Halsti 18.10.2007. RHS 2007.
[14] RHS 2007.
[15] Haastattelutieto Tarmo Peltonen ja Arto Aho 9.9.2016.
[16] Haastattelutieto Tarmo Peltonen ja Arto Aho 9.9.2016.
[17] http://www.vantaa.fi/hallinto_ja_talous/paatoksenteko/esityslistat_ja_poytakirjat Vantaan kaupungin opetuslautakunta 22.5.2007 (haettu 25.11.2016).
[18] Haastattelutieto kuvaamataidon opettaja Cleo Mustosen ja äidinkielen opettaja Irmeli Vaalavuo 4.10.2007.
RHS 2007.
[19] Mälkki, Mikko: Alustava arvio Vantaan Martinlaakson koulun historiallisesta arviosta tarvesuunnittelun pohjaksi. Vantaan kaupunginmuseo 10.5.2007.
[20] RHS 2007.
[21] http://www.vantaa.fi/hallinto_ja_talous/paatoksenteko/esityslistat_ja_poytakirjat
Vantaan kaupungin opetuslautakunta 26.2.2008 (haettu 25.11.2016).
[22] Haastattelutieto Tarmo Peltonen ja Arto Aho 9.9.2016.
[23] Haastattelutieto Tarmo Peltonen ja Arto Aho 9.9.2016.
[24] Haastattelutieto Tarmo Peltonen ja Arto Aho 9.9.2016.
[25] RHS 2007.
[26] Haastattelutieto Tarmo Peltonen ja Arto Aho 9.9.2016.
[27] Haastattelutieto Tarmo Peltonen ja Arto Aho 9.9.2016.
[28] Haastattelutieto Tarmo Peltonen ja Arto Aho 9.9.2016.
[29] Haastattelutieto Tarmo Peltonen ja Arto Aho 9.9.2016.
[30] Mälkki, Mikko: Alustava arvio Vantaan Martinlaakson koulun historiallisesta arviosta tarvesuunnittelun pohjaksi. Vantaan Kaupunginmuseo 10.5.2007.