Gå direkt till innehållet
Mårtensdals skola, Vantaa 1977. Kuva: Sirkkaliisa Jetsonen.
Mårtensdals skola, Vantaa 1977. Kuva: Sirkkaliisa Jetsonen.

1970-luvun koulutalo – rakenteet ja niiden peruskorjaustarve

Jommi Suonketo ja Petri Annila

Koulujen rakenteiden kehityksestä 1970-luvulla on valittu esimerkkejä, jotka edustavat mahdollisimman hyvin aikakautensa tyypillisiä rakenneratkaisuja. Käytettyjen rakenneratkaisujen valinta oli monen muuttujan summa, ja siihen vaikuttavia merkittävimpiä tekijöitä olivat suunnittelijoiden ja rakentajien edistyksellisyys, työväestön saatavuus ja hinta sekä työkone- ja nostokaluston saatavuus. Elementtirakentaminen yleistyi 1970-luvulla. Tässä kirjoituksessa rakentamisen muutosta on käsitelty erityisesti koulurakennusten kuntotutkimusten yhteydessä kertyneen tiedon pohjalta. [1]

Rakenteiden kehitystä tarkastellaan tässä vuosikymmenjaottelun mukaan, vaikka rakentamisen kehityslinjat ovat todellisuudessa muuttuneet pidemmän ajan kuluessa. Koulujen tilojen ja toimintojen suunnittelua koskevat ohjeet, samoin kuin rakentamista yleisesti säätelevät määräykset, ovat olleet kunakin aikana samoja koko maassa. Silti samaan aikaan rakennetut yksittäiset koulut eroavat toisistaan monin tavoin.

Tyypillisimmät koulutalojen rakenteet 1970-luvulla

Kantavat rakenteet ja runkoratkaisu

1970-luvulle tyypillisiä koulukohteita ovat matalat ja laajarunkoiset koulut. Nosto- ja siirtokaluston paranemisen ansiosta elementtirakentaminen valtasi sijaa paikallarakentamiselta.

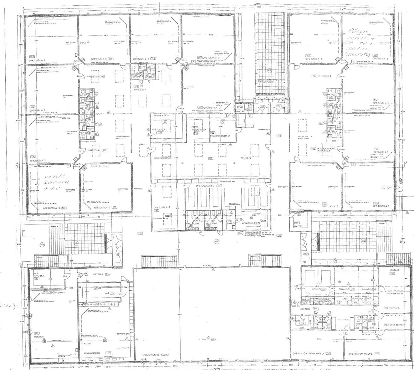
Piispanristin koulu, 1975, pohjapiirustus. 1970-luvulla koulut olivat laajoja kokonaisuuksia, joihin luonnonvalon saamiseksi tehtiin kattoikkunoita. Kuva: TTY, Elinkaaritekniikan tutkimusryhmä, kuntotutkimukset.

Matalissa rakennuksissa pystyrakenteet voitiin tehdä melko ohuina, ja tämä mahdollisti myös puu- ja teräsrunkojen käyttämisen betonin sijaan. Yläpohjien kantavia rakenteita voitiin tehdä myös puurakenteisina. Kantava, betonista tehty pilari-palkkirakenne joko paikalla valettuna tai elementeistä koottuna oli tyypillinen.

1970-luvulle tyypillistä oli myös väliaikaisiksi tarkoitettujen siirtokelpoisten koulujen yleistyminen, vaikka niitä käytettiin jo 1960-luvulla. Kouluja koottiin tehtaalla valmistetuista puurakenteisista tilaelementeistä (ns. parakkikoulut). Useassa tapauksessa nämä alun perin väliaikaisiksi tarkoitetut rakennukset on myöhemmin integroitu pysyviksi osiksi koulukokonaisuutta.[2]

Haritun koulu, 1972. Väliaikaisiksi tarkoitetut parakkikoulut ovat edelleen monin paikoin aktiivisessa käytössä. Kuva: TTY, Elinkaaritekniikan tutkimusryhmä, kuntotutkimukset.
Kalkun parakkikoulu, 1962. Tämä 1960-luvun alun parakkikoulu oli kiinteä osa 1980-luvulla tehtyä laajennusta. Kuva: TTY, Elinkaaritekniikan tutkimusryhmä, kuntotutkimukset.

Alapohjat ja maanvastaiset rakenteet (AP)

1970-luvulla rakennustekniikan kehittyminen mahdollisti rakentamisen lähes kaikille rakennuspaikoille, kuten aiempina vuosikymmeninä rakentamatta jätetyille alaville savimaille. Pohjamaan olosuhteet määrittelevät yksittäisessä kohteessa käytettävissä olevat perustus- ja alapohjavaihtoehdot.

Uittamon koulu, 1972, ulkokuvassa maan alle jäävät rakenteet. 1970-luvun rakennusta varten oli tarpeen louhia kalliota. Ulkopuolisen kosteusrasituksen kuten sade- ja valumaveden huomioiminen kiinteistöä arvioitaessa on tärkeää. Kuva: TTY, Elinkaaritekniikan tutkimusryhmä, kuntotutkimukset.
Uittamon koulu, 1972, perustusleikkaus. Jos seinän vieressä maanpinta kohoaa, se lisää seinän eristeiden riskialttiutta. Kuva: TTY, Elinkaaritekniikan tutkimusryhmä, kuntotutkimukset.

Alapohjina käytettiin yleisimmin maanvaraisia, alapuolelta eristettyjä betonilaattoja sekä betonisia kaksoislaattarakenteita, joissa kantavana rakenteena on maanvaraan valettu karkeapintainen betonilaatta ja eriste on sen päällä. Heikosti kantavilla rakennuspaikoilla käytettiin paalutettuja perustuksia ja paalulaattoja.

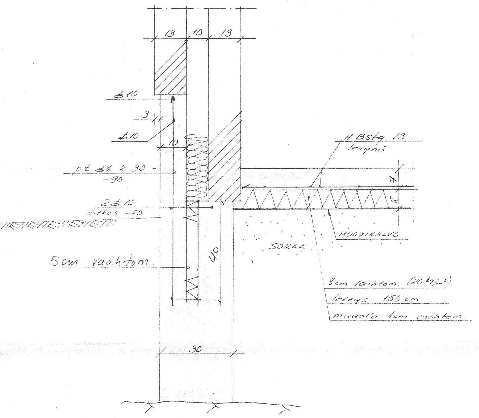
Hepokullan ABC, 1971, perusten rakenneleikkaus. Esimerkki erikoisemmasta rakennekokonaisuudesta. Massiivinen betonialapohja tukeutuu betonipaalujen varaan ja sen päältä lähtevät, yläpohjaa kantavat rakenteet ovat teräksisiä putkipilareita (RHS. Ulkoseinät ovat kevyitä ei-kantavia betonielementtejä. Kuva: TTY, Elinkaaritekniikan tutkimusryhmä, kuntotutkimukset.

1970 luvulla alapohjat ja muuta maanvaraiset rakenteet eristettiin jo lähes yksinomaan hyvin kosteutta kestävillä solumuovieristeillä. Maanvastaisia seiniä oli kellarittomuudesta johtuen melko vähän, ja niissä oli tyypillisesti edelleen sisäpuolinen bitumivedeneriste.

Välipohjat (VP)

Välipohjat tehtiin edelleen pääosin betonirakenteisina massiivilaattoina. Käytettävissä olevasta nostokalustosta riippuen välipohjia voitiin koota myös työmaalla valetuista betonielementeistä. 1970-luvun puolivälissä tehdasvalmisteiset ontelolaatat yleistyivät nopeasti.

1970-luku, massiivinen välipohjaelementti. Nostokaluston kehittyessä aiemmin paikallavalettuja betonivälipohjia voitiin valmistaa tehtaalla ja nostaa paikoilleen. Tämä nopeutti rakentamista huomattavasti. Kuva kirjasta Erkki Mäkiö et al.: Kerrostalot 1960–1975, Rakennustietosäätiö 1994.
1970-luku, ontelolaatta. 1970-luvun alkupuolella käyttöön otetut esijännitetyt ontelolaatat mahdollistivat aiempaa pitempien jännevälien käyttämisen. Kuva kirjasta Erkki Mäkiö et al.: Kerrostalot 1960–1975, Rakennustietosäätiö 1994.

Ulkoseinät (US)

Ulkoseinien toteuttamisessa tyypillisiä olivat puurunko ja tuulettumaton tiiliverhous, puurakenteiset ulkoseinäelementit ja betonielementit. Rakennusten matalan korkeusaseman takia puurakenteiden alaosat jäivät usein ns. valesokkelirakenteen taakse, kuten 1960-luvullakin. Ulkoseinien betonielementtien pesubetonipinta oli yleinen julkisivu lähiörakentamisessa ja myös kouluissa.

Pohjois-Hervannan koulu, 1973. Pesubetonipintaisessa koulussa harvinaisia ovat kaksi kerrosta korkeat betonielementit. Kuva: TTY, Elinkaaritekniikan tutkimusryhmä, kuntotutkimukset.
Hepokullan koulu, 1977. Tyylipuhdas betonielementtikoulu. Kuva: TTY, Elinkaaritekniikan tutkimusryhmä, kuntotutkimukset.
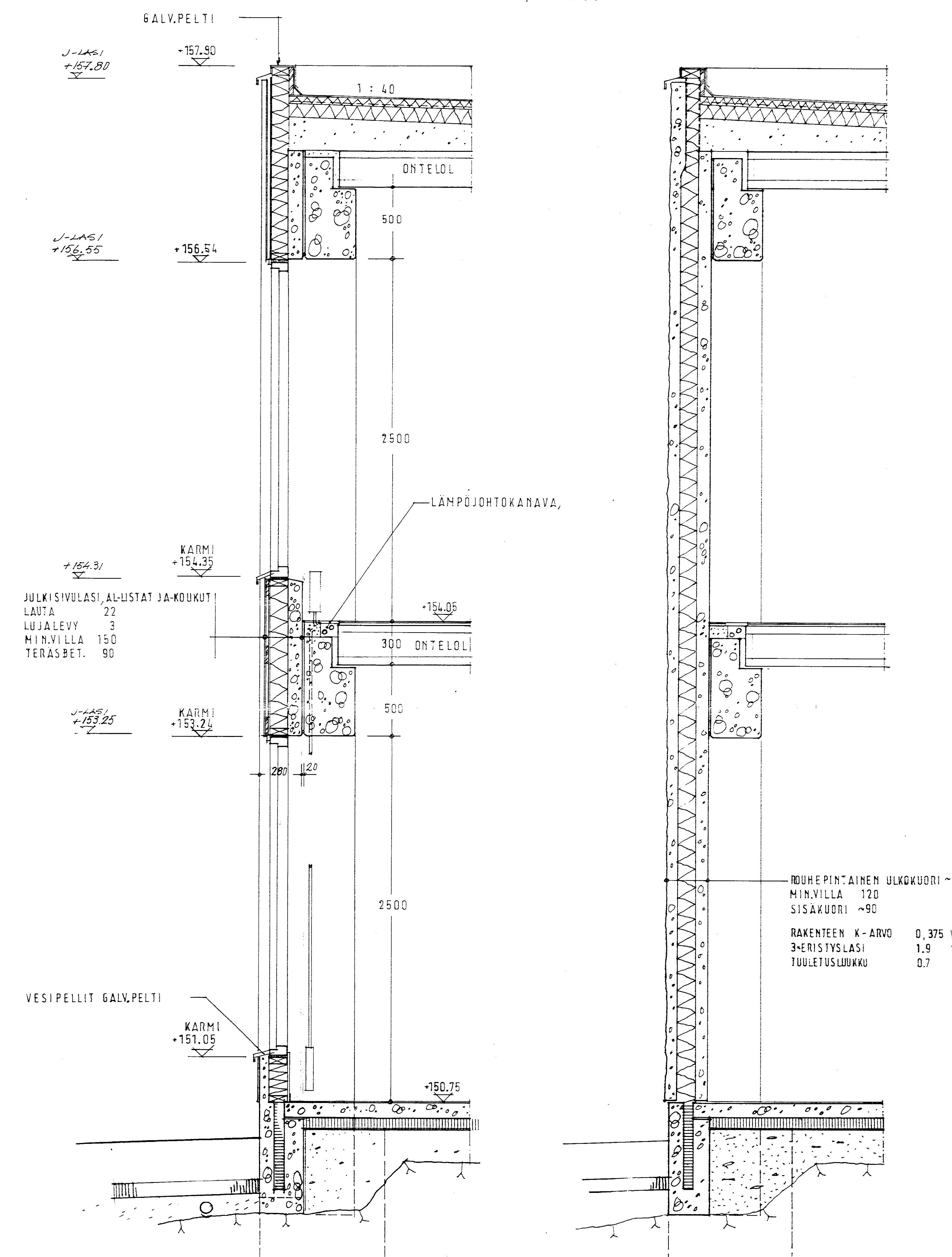
Hervannan lukio, 1978, ulkoseinäleikkaus. Rakenneleikkauksia betonielementtikoulusta. Kuva: TTY, Elinkaaritekniikan tutkimusryhmä, kuntotutkimukset.
Kaskisten koulu, 1978. 1970-luvulla käytettiin myös paljon puuelementtirakenteisia ulkoseiniä. Kuva: Rakennusinsinööritoimisto Jommi Suonketo.

Yläpohja ja vesikatto (YP)

1970-luku on leimallisesti tasakattojen aikaa. Yläpohjien kantavat rakenteet tehtiin joko betonirakenteisina, jolloin vesikatto tehtiin yleensä puisilla korokerakenteilla, tai kokonaisuudessaan puurakenteisina. Yläpohjia toteutettiin myös tehdasvalmisteisilla elementeillä (TT-laatat ja ontelolaatat), joilla päästiin aiempaa pitempiin jänneväleihin.

Runosmäen koulu, 1972, TT-laatta-yläpohjan ja sisäkaton välitila. Lähinnä teollisuusrakennuksiin kehitettyjä yläpohjaratkaisuja käytettiin myös koulurakentamisessa. Kuvassa pitkän jännevälin esijännitetty TT-laatta alakaton sisältä kuvattuna. Kuva: TTY, Elinkaaritekniikan tutkimusryhmä, kuntotutkimukset.

1970-luvun koulujen rakenteiden peruskorjaus

Koulurakennuksiin, kuten muuhunkin kunnalliseen rakennuskantaan, kohdistuu 2000-luvulla laaja peruskorjaustarve. Tämä suuntaus jatkunee myös tulevaisuudessa rakennusten keski-iän kasvun myötä.[3] Peruskorjauksen ajankohtaan vaikuttavat kuitenkin monet tekijät: esimerkiksi rakennuksen säännöllisellä, koko elinkaaren ajan jatkuneella huollolla ja ylläpidolla voidaan vaikuttaa peruskorjaustarpeeseen. Toisaalta korjausten lykkäämisen on nähty nostavan niiden kustannuksia, ja ennakoiva korjaaminen on osoitettu taloudellisesti kannattavammaksi vaihtoehdoksi. [4]

Kosteus- ja mikrobivaurioiden eli homevaurioiden esiintyminen on yksi merkittävimmistä peruskorjauksia käynnistävistä tekijöistä. [5] Vaurioitten taustalla ovat eri vuosikymmenille tyypilliset riskirakenteet [6] ja rakenteiden toistuva altistaminen riskeille, jotka syntyvät puutteellisesta veden ohjauksesta rakennuksen ulkopuolella tai huollon, ylläpidon ja korjaamisen laiminlyönneistä.

Riskirakenteille on tyypillistä, että niiden suunnittelussa ei ole osattu ottaa huomioon kaikkia rakenteeseen kohdistuvia kosteusrasituksia, esimerkiksi maaperästä nousevaa kosteutta. Toinen monia riskirakenteita yhdistävä piirre on se, että vaurioituminen alkaa rakenteen sisältä piilosta ja kehittyy pitkälle ennen vaurion havaitsemista. Riskirakenne yksin ei kuitenkaan automaattisesti merkitse sitä, että rakennusta tulisi lähteä korjaamaan. Korjaustarpeet ja soveltuvat korjaustavat tuleekin aina määrittää tapauskohtaisten selvitysten ja kuntotutkimusten pohjalta. Kosteus- ja mikrobivaurioita korjattaessa joudutaan usein käyttämään purkavia korjausmenetelmiä, jolloin vanhoja rakenteita ei voida useinkaan säilyttää kokonaisuudessaan.

1900-luvun puolivälin jälkeisten vuosikymmenten koulurakennuksissa kosteus- ja mikrobivaurioita esiintyy usein maanvastaisissa rakenneosissa, kuten kellarien seinissä ja lattioissa sekä väliseinärakenteiden alaosissa. Näiden rakenteiden suunnittelussa ei osattu aikoinaan ottaa huomioon maaperästä rakenteeseen kohdistuvaa kosteusrasitusta, joka monessa tapauksessa on ainakin osatekijänä rakenteiden vaurioitumisessa.

Betonirakenteiden virumista eli muodonmuutoksen kasvamista ajan saatossa ei osattu kunnolla huomioida 1970-luvulla. Viruminen aiheuttaa pysyviä taipumia, joiden takia aikakauden tasakatoissa sadevettä poistavat kattokaivot eivät usein enää sijaitsekaan matalimmassa kohdassa. Tästä seuraa lammikoita vesikatolle. Lammikot ja niiden jäätyminen johtavat lopulta vesikatteen vuotoihin.

Hepokullan koulu, 1977, vesikatto. Betonirakenteiden ajan saatossa tapahtuvan taipuman lisäyksen eli viruman merkitystä ei vielä 1970-luvulla osattu huomioida. Kuvassa kattokaivot ovat rakennuksen keskilinjalla tuen kohdalla, ja viruman takia luokkatilojen katolle syntyy suuria lammikoita. Veden jäätyminen rikkoo toistuvasti katetta. Kuva: TTY, Elinkaaritekniikan tutkimusryhmä, kuntotutkimukset.

Kirjoittajat

Jommi Suonketo ja Petri Annila, Tampereen teknillinen yliopisto (TTY), Rakennustekniikan laitos

Artikkeli on julkaistu 2017.

Lähteet

Annila, Petri J. & Suonketo, Jommi & Pentti, Matti 2014. Kosteus- ja mikrobivauriot koulurakennuksissa TTY:n suorittamien kosteusteknisten kuntotutkimusten perusteella. Sisäilmastoseminaari 2014. SIY Raportti 32. Toimittajat Jorma Säteri & Helka Backman. Helsinki 13.3.2014. s. 301–306.

Kero, Paavo & Pirinen, Juhani 2016. Ennakoivan korjaamisen kustannussäästöjen tarkastelu. Sisäilmastoseminaari 2016. SIY Raportti 34. Toimittajat Jorma Säteri & Mervi Ahola. Helsinki 16.3.2016. s. 303–308.

Neuvonen, Petri (toim.) 2006. Kerrostalot 1880–2000 – arkkitehtuuri, rakennustekniikka, korjaaminen. Toimittaja Petri Neuvonen. Tampere: Rakennustietosäätiö RTS, Rakennustekniikan keskus -säätiö, Museovirasto.

Reijula Kari, Ahonen Guy, Alenius Harri, Holopainen Rauno, Lappalainen Sanna, Palomäki Eero & Reiman Marjut 2012. Rakennusten kosteus- ja homeongelmat. Eduskunnan tarkastusvaliokunnan julkaisu 1/2012. 1. painos. Espoo.

Vainio Terttu, Jaakkonen Liisa & Nuuttila Harri, Nippala Eero 2006. Kuntien rakennuskanta 2005. 1. painos. Helsinki: Kuntaliitto.

Ympäristöministeriö. Kosteus- ja hometalkoot. http://www.hometalkoot.fi (haettu 3.11.2016).

Viitteet

[1] Annila et al. 2014, 301–306. Jommi Suonketo on diplomi-insinööri ja toimii projektitutkijana Tampereen teknillisessä yliopistossa. Suonkedon käytännön kokemus sadoista kuntotutkimuskohteista on artikkelin perusta.

[2] Neuvonen 2006, 142–245.

[3] Vainio et al. 2006, 38–39.

[4] Kero, Pirinen 2006, 303–308.

[5] Reijula et al. 2012, 9–16.

[6] Ympäristöministeriö. Kosteus- ja hometalkoot.

1970-luvun koulutalo – rakenteet ja niiden peruskorjaustarve (pdf)

Load pdf

_Sivuston evästeet