
1960-luku, koulurakentamisen murroskausi
Petteri Kummala
1960-luvun koulusuunnittelussa jatkettiin ja jalostettiin edellisen vuosikymmenen kouluratkaisuja. Muun muassa betonin rakenteellisten mahdollisuuksien kehittyminen, moduulimitoitus ja elementtitekniikan ensiaskeleet heijastuivat koulurakentamisessa. Tyypillisiä olivat matalat, suorakulmaiset ja tasakattoiset koulurakennukset. Toinen näkyvä muutos oli koulurakentamisen painopisteen siirtyminen asutuskeskuksiin ja kaupunkien lähiöihin. Vuosikymmenen lopulla peruskoulun uudet tavoitteet heijastuivat jossain määrin koulusuunnitteluun.
Kouluja kaupunkeihin ja asutuskeskuksiin
1960-luvun koulusuunnittelun päälinjat hahmottuvat kahden toisiinsa kytkeytyvän murroksen kautta. Ensimmäinen liittyi yhteiskunnalliseen rakennemuutokseen, jonka myötä maatalousammateista siirryttiin teollisuustöihin ja palveluammatteihin. Tämä tarkoitti perheiden massamuuttoa maalta kaupunkeihin, satojen maaseutukansakoulujen lakkauttamista sekä tarvetta rakentaa uusia kouluja kasvukeskuksiin.[1]xtagstartz/
Eduskunta hyväksyi periaatepäätöksen peruskoulu-uudistuksen toteuttamisesta 1963, ja kolme vuotta myöhemmin valmistui mietintö peruskoulujärjestelmän pedagogisista linjoista. Peruskoululaki annettiin 1968.[6] Uudistuksen yksi tavoite oli, että peruskoulujärjestelmä heijastuisi uusien koulurakennusten tilallis-toiminallisiin ratkaisuihin, joita suunnittelijat kehittäisivät tiiviissä yhteistyössä opetustoimen kanssa.[7]
Käytännön koulusuunnitteluun peruskoulu-uudistuksen tavoitteet heijastuivat 1960-luvulla silti verraten vähän. Esimerkiksi vuonna 1968 ala-astekokeilu oli käynnissä 50 kunnassa ja yläastekokeilu 18 kunnassa. Yhtään puhtaasti peruskoulun tarpeista lähtevää kokeilukoulua ei silti suunniteltu, vaikka arkkitehtikunnassa oli kiinnostusta uusia pedagogisia ja organisatorisia periaatteita sekä koulusuunnittelun tuoreita kansainvälisiä virtauksia kohtaan.[8] Keskeinen jarruttava vaikutus oli valtion normaalihintapäätöksillä, joissa valtion tukeen oikeutetuille kouluille määriteltiin muun muassa luokkien ja muiden tilojen pinta-alat, luokkien leveydet ja ikkunoiden karmien ylä- ja alareunan korkeudet. Toisaalta suunnittelijat toteuttivat samoja normien mukaisia periaatteita myös yksityisten oppikoulujen suunnittelussa, mikä osaltaan hidasti siirtymistä uusiin ratkaisuihin.
Koulutoiminnan muotoja
1960-luku jatkoi koulujen pohjakaavojen ja tilaratkaisuiden osalta edellisellä vuosikymmenellä aloitettuja kokeiluja. Kotiluokkajärjestelmä oli yhä yleinen kansakouluissa. Kansalais- ja keskikouluissa vastaavasti aineluokkajärjestelmä erikoisluokkineen oli yleisempi ratkaisu. Kouluterveydenhuollon, lääkärin ja joissain tapauksissa hammaslääkärin tilat yleistyivät 1960-luvulla osaksi koulujen tilankäyttöä.
Koululaisen aktiivinen ja omatoiminen tiedonetsintä pedagogisena tavoitteena korostui jatkuvasti 1960-luvun kuluessa. Toisaalta painotettiin opetusta, joka huomioisi oppilaiden henkilökohtaiset taipumukset entistä paremmin.[9] Koulurakennuksen tehtävä oli vastaavasti tukea näitä tavoitteita ja siten oppimista. Arkkitehdin oli tärkeää ymmärtää opetuksen tarpeita ja luoda sille toimivat ja samalla joustavat puitteet. Erikoisluokkien (musiikki, kuvaamataito jne.), kirjaston sekä itsenäiseen opiskeluun ja ryhmätyökäyttöön soveltuvien tilojen tarvetta painotettiin vuosikymmenen loppua kohti tultaessa. Nämä tavoitteet ennakoivat peruskoulu-uudistusta, ja konkreettisemmin niihin päästiin 1970-luvun koulusuunnittelussa.
Koulurakennusten monikäyttöisyyden lisääminen nousi esiin vuosikymmenen keskivaiheilla. Koulujen käyttöastetta haluttiin nostaa korkeammaksi kouluajan ulkopuolisen toiminnan kautta. Käytännössä kansakoululaki saneli vielä 1960-luvun alussa, että koulutoimintojen ulkopuolisesta käytöstä oli hankittava lupa kansakoulun johtokunnalta, eikä käyttö saanut ”häiritä koulun tasapuolista suhtautumista eri tavoin ajatteleviin kansalaispiireihin”. Koulutilojen käyttö ”kevyeen huvitteluun” oli lain mukaan kokonaan kielletty. Yksityisten oppikoulujen ulkopuolisilta saama vuokratulo vastaavasti määrättiin vähennettäväksi suoraan niiden valtionavusta. Toisaalta lain mukaan esimerkiksi nuorisojärjestöiltä, joiden toiminta oli moitteetonta eikä tavoitellut taloudellista hyötyä, voitiin koulutilojen käyttö evätä vain painavien syiden nojalla.[10] Vuonna 1963 eduskunta hyväksyi koulujen liikuntasalien iltakäytön urheiluseuroille, mikä edisti liikuntasalien suunnittelua koulun ulkopuolista käyttöä silmällä pitäen. Siksi salit sijoitettiin usein muista koulutiloista erilliseen rakennusyksikköön.[11]
Kansalaiskoulu oli koulumuotona 1960-luvun ilmiö. Kaksivuotinen kansalaiskoulujärjestelmä perustetiin 1958 kansakoulun jatkokoulutusvaihtoehdoksi. Sen tarkoitus oli tarjota oppilaille valmiuksia ammatilliseen jatkokoulutukseen ja työelämään. Opetus oli käytännönläheistä, mistä johtuen koulurakennuksissa korostuivat erikoisluokat ja -tilat. Kansalaiskoulun koettiin kuitenkin korostavan koulujärjestelmän eriarvoistavaa vaikutusta. Aikalaiskritiikin mielestä se vahvisti 1960-luvun ”yleissivistävän peruskoulutuksen kaksijakoisuutta ja sen perustana olevaa uskoa lasten ja koulutustarpeen jakautumisesta kahteen selvästi toisistaan erottuvaan osaan: käytännölliseen ja teoreettiseen”.[12] Kansalaiskoulujärjestelmä lakkautettiin peruskoulun myötä, ja toteutuneet kansalaiskoulurakennukset ovat yleensä 1960-luvulta. 1970-luvulla ne jatkoivat toimintaansa yläasteina ja lukioina.
Koulutyyppien kehittelyä: soluista paviljonkeihin, halleja eri tarkoituksiin
Sivukäytäväkoulun, hallikoulun ja solukoulun rinnalle kehitettiin 1960-luvulla välimuotoja näistä tyypeistä sekä uusia variaatioita, kuten paviljonkikouluja.[13] Uudet koulutyypit kumpusivat osaltaan kritiikistä, jota 1960-luvulla kohdistettiin erityisesti käytäväratkaisuja kohtaan. Keskikäytäväkoulujen ongelmaksi koettiin heikko valaistus ja tilojen kaavamaisuus. Sivukäytäväkoulujen ongelmaksi osoittautuivat vastaavasti ylipitkät käytävät, jotka olivat välitunneilla ahtaita ja aiheuttivat ongelmia siirtymisessä luokkien välillä. Lisäksi pitkien käytävien valvonta oli vaikeaa.
Solukoulu oli yksi ratkaisu mainittuihin ongelmiin. Se oli jo 1950-luvulla kehitetty ratkaisu, ja esimerkiksi Metsolan kansakoulu, joka valmistui Espoon Tapiolaan 1960, oli tyypillinen solukoulu. Koulun sisällä tilat jaettiin pienempiin erillisiin luokkahuoneryhmiin, soluihin, joista oli suora yhteys erikoisluokkiin ja koulun yhteistiloihin.[14]
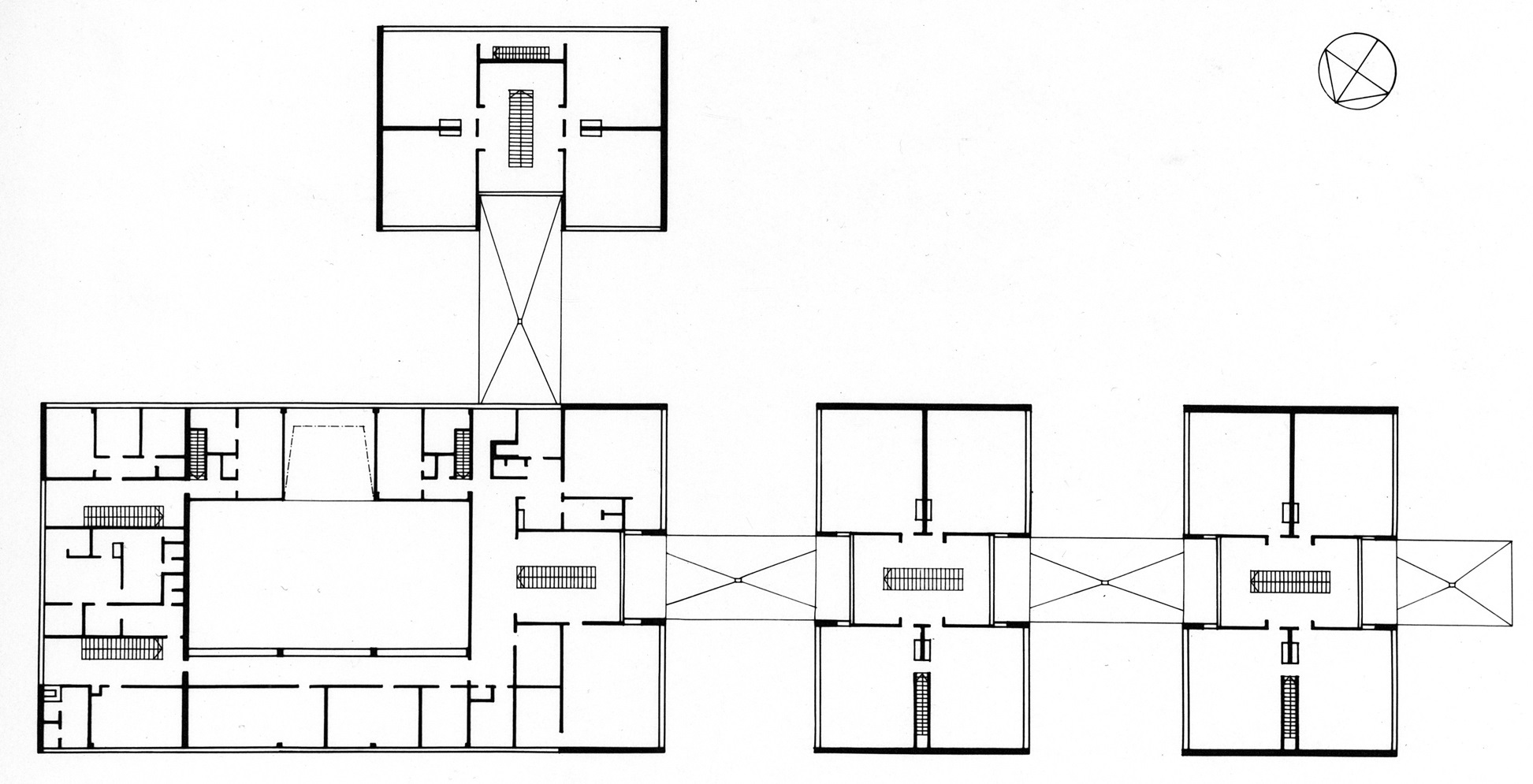
Paviljonkikoulu oli solukoulusta jatkojalostettu 1960-luvun versio. Sen perusidea oli erottaa kaikki koulutoiminnot omiin rakennusyksiköihinsä. Erityisesti Osmo Sipari kehitti tätä koulutyyppiä 1960-luvulla, ja puhdaspiirteisimpiä toteutuksia siitä olivat hänen suunnittelemansa Suomalais-venäläinen koulu (1964) ja Puotilan kansakoulu (1967, nyk. Puotilan ala-aste) Helsingissä. Suomalais-venäläinen koulu oli epätyypillinen kokonaisuus sikäli, että se oli lastentarhan, kansakoulun ja oppikoulun yhdistelmä. Lisäksi kokonaisuuteen kuului asuntolasiipi Helsingin ulkopuolelta tulevia oppilaita varten. Paviljonkikouluratkaisu mahdollisti sen, että koulun toiminnallisesti hyvin erilaiset yksiköt pystyivät toimimaan erillisinä häiritsemättä toisiaan.[15]
_Oik.: Pohjapiirroksesta näkyy, miten koulurakennus on jäsennelty eri luokka-asteille tarkoitettuihin paviljonkeihin. Koulun pihat ryhmittyvät vastaavasti paviljonkien ympärille. Kuva: Arkkitehtuurimuseo.
Käytännön koulusuunnittelua luotaavassa Arkkitehti-lehden artikkelissaan vuodelta 1967 Sipari puolusti paviljonkikoulun ohella solukoulua suurempien koulukokonaisuuksien ratkaisuna. Paviljonki- ja solukouluissa tilat ryhmiteltiin kunkin ikäryhmän, luokka-asteen tai toimintojen mukaan. Ratkaisun vahvuuksia olivat rakennustekninen, akustinen ja palotekninen yksinkertaisuus. Mittakaava pysyi kohtuullisena ja liikkuminen solusta toiseen voitiin järjestää välituntien aikana ulkokautta. Toiminnallisesti eriytetyn ratkaisun etuja olivat melutason väheneminen ja oppilaiden helpompi valvonta. Solu- ja paviljonkikoulut oli helpompi rakentaa vaiheittain, ja niitä puolsi joustavuus rakennuspaikan suhteen. Myös koulun piha voitiin jakaa opetustiloja vastaavasti eri luokka-asteet huomioiden. Näin opetustilojen ja pihan väliset yhteydet muodostuivat lyhyiksi ja luonteviksi.[16]
Hallikoulu soveltui Siparin mukaan erityisesti pienten voimistelusalittomien koulujen ratkaisuksi, jolloin halli palveli oppilaiden kokoontumispaikkana sekä ruokailu- ja juhlatilana. 1960-luvun esimerkit osoittavat, että hallikoulu oli pätevä ratkaisu kaikkiin koulumuotoihin. Esimerkiksi Haminan keskikoulu ja Pohjankartano (1967) Oulussa – jossa toimi alun perin kansalaiskoulu ja työväenopisto – osoittavat, että hallikoulu toimi erityyppisiin tarpeisiin.
Munkkivuoren yhteiskoulussa (1960) toteutettiin hallikoulun ja käytäväperiaatteella toimivan aineluokkakoulun yhdistelmä.[17] Koulun ylemmässä kerroksessa luokkien sijoittelu noudatteli keskikäytäväratkaisua, mutta käytävä oli avattu kerrosten väliseksi pitkänomaiseksi halliksi, ja käynti yläkerran luokkiin oli järjestetty alakerrasta portaiden ja keskushallia halkovien ”siltojen” välityksellä. Kemin yhteiskoulussa keskushalli yhdistyi paljeovien välityksellä viereiseen juhla- ja liikuntasaliin, joka oli vastaavasti jaettavissa kahteen osaan paljeovilla. Näin sisätiloihin muodostui hallikoulussa poikkeuksellinen rinnakkaisten, toisiinsa kytkeytyvien tilojen sarja.[18]
Monitoimitalojen varhaismuodot poikkeavat yllä kuvatuista koulujen perustyypeistä. Esimerkiksi Sampola (1962)[19] Tampereella ja edellä mainittu Pohjankartano olivat poikkeamia aikakauden koulujen perustyypeistä. Ne olivat varhaismuotoja 1970-luvulla yleistyneistä monitoimitaloista.[20] Molemmat koulut olivat alun perin kansalaiskoulun ja työväenopiston yhdistelmiä. Lisäksi niihin sisältyi muita julkisia toimintoja kuten sivukirjasto, kahvilatilat ja iso juhlasali, jota Pohjankartanossa käytettiin myös kaupunginorkesterin konserttisalina. Nämä rakennukset olivat materiaali- ja rakenneratkaisuiltaan aikakaudelle tyypillisiä, mutta tavallista suurempia, useampikerroksisia ja usean koulutyypin yhdistelmiä.
Koulutilat: betonia, elementtejä ja moduulimitoitusta
1960-luku oli Suomessa betonirakentamisen vuosikymmen. Tämä heijastui myös koulurakentamiseen. Betoni valtasi alaa materiaalina julkisivuissa, rungoissa ja väliseinissä. Puun osuus runkomateriaalina vastaavasti vähentyi merkittävästi suhteessa edelliseen vuosikymmeneen, vaikka se edelleen oli käytetyin materiaali pienissä, alle 1000 m2:n koulurakennuksissa.[21] Betonin ohella punatiili ja kalkkihiekkatiili olivat yleisiä niin julkisivu- kuin väliseinämateriaaleina sekä rapattuina että puhtaaksimuurattuina. 1960-luvulla suosittuja Minerit-levyjä eli kuitusementtilevyjä käytettiin myös koulujen julkisivuissa.
Betonista paikalla valettu pilari-palkkirakenne oli tyypillisin 1960-luvun koulujen runkoratkaisu. Toinen yleinen ratkaisu oli sekarunko, mikä tarkoitti esimerkiksi paikalla valetun pilari-palkkirakenteen yhdistämistä välipohjaelementteihin ja kantavien betoni- tai tiiliseinien käyttöä osassa rakennusta. Käytettävissä oleva työkone- ja nostokalusto vaikutti paikallavalettujen osien ja elementtien käyttöön kussakin kohteessa.
Suuri kolmikerroksinen keskushalli, sisääntulokerroksen lasiseinät ja laajat sisätilanäkymät olivat esimerkiksi Pohjankartanon koulussa mahdollisia pilari-palkkirakenteen ansiosta. Laajojen ikkunapintojen kautta syvärunkoisen Pohjankartanon keskushalliin saatiin luonnonvaloa, mikä oli yksi aikakauden koulusuunnittelun tavoitteista. Koska väliseinillä ei ollut kantavaa tehtävää, olivat sisätilat muunneltavissa. Tämä osoittautui hyödylliseksi, kun 1960-luvun koulujen tiloja muokattiin peruskoulun tarpeisiin.[22]
1960-luvulla kiinnitettiin huomiota sisätilojen viihtyisyyteen ja mittakaavan soveltuvuuteen koululaisille. Luokkien laajoista ikkunoista avautui näkymiä ympäröivään maisemaan. Yläikkunat ja kattoikkunat antoivat luonnonvaloa luokkiin, käytäviin ja muihin tiloihin. Myös lasitiiliseinien avulla parannettiin tilojen valoisuutta. Joissain tapauksissa sisätilojen suunnittelussa käytettiin apuna sisustussuunnittelijoita ja taiteilijoita. Esimerkiksi Roihuvuoren kansakoulun sisätiloissa kuvataiteilija Anitra Lucander toteutti värimaailman, joka loi kontrastin käsittelemättömiin betonipintoihin, sekä ruokasalin suuren tekstiiliteoksen.
Vaikka kouluista pyrittiinkin luomaan viihtyisiä, toiminnalliset seikat olivat koulusuunnittelun lähtökohta. Myös kiinnostus koulujen sisäilman laatua kohtaan lisääntyi. Muun muassa lämpötilojen vaihtelua, tunkkaisuutta ja vetoa tutkittiin 1960-luvun kouluissa.[23] Pienitehoiset koneelliset ilmanvaihtojärjestelmät alkoivat korvata uusissa koulurakennuksissa painovoimaista ilmanvaihtoa.
1960-luku oli elementtirakentamisen koeaikaa. Arkkitehdit kokeilivat elementtirakenteiden mahdollisuuksia, eivätkä tuotannolliset lähtökohdat vielä sanelleet rakennusteknisiä ratkaisuja. Koulurakentamisessa tämä tarkoitti betonielementtien yleistymistä. Vuosaaren oppikoulu Helsingissä oli silti harvinainen esimerkki täysin elementtirakenteisesta 1960-luvun koulusta.[24] Vuosaaressa käytettyjen Siporex-kevytbetonielementtien tapaiset ratkaisut yleistyivät 1960-luvun edetessä etenkin koulujen julkisivumateriaalina.
Moduulimitoituksen soveltaminen koulusuunnittelussa yleistyi 1960-luvulla. Moduulimitoituksella oli yhteys myös elementtitekniikan kehittämiseen. Vartiokylän ruotsinkielisessä yhteiskoulussa moduulimitoitusta käytettiin puhdaspiirteisesti.[25] Rakennuksen tilasuunnittelu perustui kokonaisuudessaan rakenneyksiköihin, joiden mitat olivat 4,5 x 9 metriä ja korkeus kolme metriä. Moduulimitoitus näkyi sekä koulun julkisivuissa että koulupihassa, joka jäsenneltiin noudattelemaan 4,5 x 9 metrin ruudukkoa.[26] Rakennus oli kuvaava esimerkki konstruktivistisesta arkkitehtuurista, joka yleistyi seuraavalla vuosikymmenellä.
Pelkistymistä, atriumpihoja, kampoja ja monikäyttöisyyttä
Matalat koulurakennukset tulivat vallitseviksi 1960-luvulla. Samalla kouluarkkitehtuurin yleisilme yksinkertaistui ja pelkistyi suhteessa 1950-luvun moni-ilmeisempiin pohja-, rakenne-, tila- ja valaistusratkaisuihin. Nauhaikkunat, tasakatto, matalat ja korostuneen horisontaaliset, yleensä maksimissaan kaksikerroksiset, suorakulmaiset rakennukset, sekä elementtitekniikan ja moduulimitoituksen aikaansaama teollisempi yleisilme ovat pääpiirteitä 1960-luvun kouluarkkitehtuurista.
Pihan ympärille jäsennelty koulurakennus, eli niin sanottu atriumpihakoulu, oli yksi 1960-luvulle tyypillinen ratkaisu. Aiemmin mainittujen Sampolan ja Pohjankartanon suurten rakennuskokonaisuuksien jäsentely perustui atriumpiharatkaisuun. Sunilan yhteiskoulu Kotkassa oli mittakaavaltaan huomattavasti pienempi esimerkki samasta periaatteesta.[27]
Kampamuoto oli toinen 1960-luvulla yleistynyt koulurakennusten jäsentelytapa. Se oli usein paviljonkikoulujen pohjaratkaisu. Sen valintaan vaikutti myös rakennuspaikka, sillä kampamuoto soveltui hyvin tontille, jolla oli korkeuseroja. Suomalais-venäläinen koulu on tästä tyyppiesimerkki. Samoin Rajamäen yhteiskoulun yksikerroksiset luokkahuonesiivet porrastuvat rinnemaastoon kampamaisesti.[28] Keravan kansalaiskoulu oli suunnittelijansa Ilmo Valjakan mukaan ”yksikerroksinen atriumkoulu, jossa luokkasiivet muodostavat kampamaisen sarjan.”[29]
Sekä atriumpiha- että kampakouluratkaisujen toiminallinen peruste oli rajata koulun piha-alueet koulurakennuksen eri osilla ja luoda joustavat yhteydet koulun sisä- ja ulkotilojen välille. Pedagoginen tavoite oli luoda lapsen henkiseen kehitykseen suotuisasti vaikuttava koulumiljöö, joka olisi suojattu ja parhaassa tapauksessa koostuisi pienistä pihayksiköistä, jotka liittyisivät osaksi laajempaa pihakokonaisuutta. Näin eri kouluasteiden oppilaiden tarpeet tulisivat huomioiduiksi myös koulupihassa. Urheilua ja pelejä varten pyrittiin järjestämään omat asianmukaisilla materiaaleilla päällystetyt paikkansa.[30] Osmo Siparin mukaan: ”Kun vielä saadaan koulupihalla säilytetyksi tai kasvamaan puita, mieluimmin suurina ryhminä, voidaan saada vältetyksi se hiekka- tai asfalttikenttämäinen lohduton vaikutelma, jonka suomalainen koulupiha yleensä antaa.”[31] Suomalais-venäläisen koulun pihojen ja rakennusyksiköiden kokonaisjäsentelyssä Sipari toteutti näitä tavoitteita.
Kaupunkialueiden ulkopuolella koulut sijoitettiin vielä 1960-luvulla usein ympäristöstään erottuville, näkyville paikoille. Lähiöihin ja asutuskeskuksiin rakennetut koulut olivat tyypillisemmin matalia ja ympäristöönsä sulautuvia rakennuksia. Koulun sosiaalinen rooli lähiympäristössään korostui. Erityisesti tämä näkyi siinä, miten liikuntasalin suunnittelussa otettiin huomioon koulutoiminnan ulkopuolinen käyttö. Vartiokylän ruotsinkielisen yhteiskoulun liikuntasali tehtiin normaalivaatimuksia suuremmaksi, koska sen haluttiin palvelevan asuinalueen harrastustarpeita. Arkkitehdit luonnostelivat liikuntasaliin kalustusvaihtoehtoja esimerkiksi kokous-, kongressi-, teatteri-, muotinäytös-, näyttely-, ja teinikunnan kokouskäyttöön. Monikäyttöisestä koulusta käytettiinkin määritelmää ”alueen kulttuurikeskus”.[32] Koska 1960-luvulla kouluja rakennettiin uusiin lähiöihin ja asutuskeskuksiin, oli luontevaa, että ne toimivat myös laajemmin alueidensa harrastuspaikkoina. Pohjankartanon kaltaiset koulurakennukset, joissa oli alun perinkin koulutoiminnasta täysin riippumatonta toimintaa, kuten sivukirjasto, kahvila ja kaupunginorkesterin konsertteja, olivat poikkeuksia koulurakentamisen valtavirrasta ja ennakoivat jo seuraavan vuosikymmenen monitoimitaloja.
Vuosikymmenen suuntaviivoja
1960-luvun kouluarkkitehtuurin pääpiirteet olivat opetusministeriön koulunuudistustoimikunnan pääsihteerin Jaakko Itälän mukaan seuraavat: ”pitkän käytävän vieressä rivissä samankokoisia luokkia, salit siivessä, mahdolliset työpajat omassa siivessään, kirjastolla, lukusalilla ja kerhotiloilla täysin merkityksetön osuus huonetilaohjelmassa.”[33] Tässä artikkelissa esitetyn perusteella voi todeta, että Itälän kuvaaman sivukäytäväkoulun rinnalle koulujen perustyyppeihin kehitettiin 1960-luvun alkupuolelta lähtien uusia ja monipuolisempia ratkaisuita. Tältä osin Itälän näkemys on yksinkertaistava. Sen sijaan luokkahuoneiden kaavamaisuuden ja muiden koulutilojen yksipuolisuuden osalta Itälä on oikeassa.
Suomalaiset arkkitehdit olivat tietoisia uusista kansainvälisistä pedagogisista menetelmistä sekä niitä tukevasta suunnittelusta jo vuosikymmenen alkupuolella. Esimerkiksi Maj-Lis ja Osmo Lappo esittelivät Arkkitehti-lehdessä vuonna 1963 luokkahuonesuunnittelun uusimpia virtauksia Keski-Euroopassa ja Yhdysvalloissa. Lappojen näkemys oli, että valtioneuvoston normaalihintapäätökset, jotka sanelivat kansakoululuokkien pinta-alat ja leveydet, vaikeuttivat uusien ajatusten leviämistä käytäntöön. Toisaalta suunnittelijakunta oli Lappojen mukaan omaksunut kansakoulujen opetustilojen perusratkaisut myös oppi- ja kansalaiskoulusuunnitteluun. Suorakaiteenmuotoinen, 60 neliömetrin luokka 30–40 oppilaalle oli siten 1960-luvun normiratkaisu, ja ”kaavamainen laitosmaisuus” vaivasi tässä suhteessa koulusuunnittelua kautta linjan.[34]
Uudet pedagogiset menetelmät, erilaiset ryhmätyöskentelyn muodot ja yksilöllisen opiskelu, olivat tunnettuja jo 1960-luvulla. Käytännössä tasakokoiset luokat, joita ei ollut mahdollista tarpeen mukaan muunnella eri käyttötarkoituksiin, ja melko yksipuoliset tilaratkaisut jarruttivat näiden menetelmien käyttöönottoa. Aikakauden pedagoginen linja oli opettajakeskeinen työskentely suurissa luokkahuoneryhmissä, samojen tavoitteiden mukaisesti ja kotiläksyt ainoana omatoimisena opiskelumuotona.
Kansakoulurakentamisen normiohjaukseen kaivattu muutos tapahtui lopulta juuri ennen vuosikymmenen vaihtumista. Päivitetystä normaalihintapäätöksestä poistettiin esimerkiksi luokkahuoneiden vapaata leveyttä osoittavat mitat ja luokkahuoneiden ikkunoiden karmin ylä- ja alareunan korkeutta osoittavat mitat.[35] Muutos astui voimaan 1.10.1969. Käytännössä tämä tarkoitti luokkahuoneiden suunnittelun vapauttamista, koska normitus ei enää ohjannut luokkia suorakulmamuotoon. Myös vapaampi ikkunajäsentely tuli mahdolliseksi, ja luokkahuoneiden valaistukseen voitiin harkitusti käyttää esimerkiksi ylä- ja kattovaloa. Luokkahuoneiden keskinäiselle ryhmittelylle avautui vaihtoehtoja, ja moduuliverkon käyttäminen tuli suunnittelutyössä paremmin mahdolliseksi, koska luokkahuoneen suuruus määrittyi vain pinta-alan mukaan.
1960-luvun kehitys koulusuunnittelussa alkoi vuosikymmen alussa uusien koulutyyppien kuten paviljonkikoulun kehittelystä. Samaan aikaan esimerkiksi kampakouluratkaisuilla löydettiin uusia tapoja jäsennellä piha-alueiden ja koulurakennuksen suhdetta. Uusien ja monipuolisempien kouluratkaisujen avulla pyrittiin luomaan paremmin oppilaat huomioivia kouluympäristöjä. Vuosikymmenen lopulla monipuolistuminen tapahtui myös sisätilojen suunnittelun osalta. Käytännössä sen vaikutukset tulivat täysimääräisinä esiin seuraavan vuosikymmenen koulusuunnittelussa.
Kirjoittaja
Petteri Kummala, FT, tutkija, Arkkitehtuurimuseo
Artikkeli on julkaistu 2017.
Lähteet
Ahonen, Sirkka 2012. Yleissivistävä koulutus hyvinvointiyhteiskunnassa. Teoksessa Tiedon ja osaamisen Suomi. Kasvatus ja koulutus Suomessa 1960-luvulta 2000-luvulle. Toim. Pauli Kettunen ja Hannu Simola. Helsinki: SKS, s. 144–175.
Heikinheimo, Marianna ym. 2014. Suomalais-venäläinen koulu. Rakennushistoriallinen selvitys 13.3.2014.
Itälä, Jaakko 1967. Koulu-uudistuksen haaste arkkitehtikunnalle. Arkkitehti 12/1967, s. 3–5.
Kallenautio, Jorma 1985. Suomen kaupunkilaitoksen historia. Tilasto-osa 4. Helsinki: Suomen kaupunkiliitto.
Kokkonen, Jouko 2010. Valtio liikuntarakentamisen linjaajana. Tampere: Liikuntatieteellisen Seuran julkaisu nro 165.
Lahti, Juhana 2016. Johdanto. Kamalan ihanaa vai ihan kamalaa. Teoksessa Värikkäämpi, iloisempi, hienostuneempi. Näkökulmia 1960-luvun arkkitehtuuriin. Toim. Juhana Lahti & Eija Rauske. Helsinki: Arkkitehtuurimuseo, s. 13–33.
Laki koulujärjestelmän perusteista 1968. Teoksessa Suomen asetuskokoelma 1968, n:o 467, s. 1163–1171.
Lappo, Maj-Lis & Lappo, Osmo 1963. Läksynä luokkahuone. Arkkitehti 10/1963, s. 217–219.
Lappo. Osmo 1967. Peruskoulu rakennuksena. Arkkitehti 12/1967, s. 6.
Lappo, Osmo 1968. ”Koulurakennus kuin korsetti”. SAFAn seminaarissa puhuttiin uudenlaisesta koulusuunnittelusta. Arkkitehtiuutiset 19/1968, s. 11–12.
Lappo, Osmo 1969. Muutos nykyiseen kansakoulurakennusten suunnittelua koskevaan päätökseen. Arkkitehtiuutiset 18/1969, s. 7.
Lappo, Osmo 1974. Koulurakennusten monikäyttöisyydestä. Teoksessa Koulurakennuksen suunnittelu. Sitran koulurakennustutkimuksen loppuraportti. Toim. Wille Mikkola. Helsinki: Sitra, s. 109–129.
Makkonen, Leena 2004. Opintiellä. Helsinkiläisiä koulurakennuksia 1880–1980. Helsinki: Helsingin kaupunkisuunnitteluviraston julkaisuja 2004:12.
Mustonen, Tapani & Vainio, Niina 2005. Revontulen koulun rakennushistoriaselvitys 18.08.2005. Helsinki: Arkkitehdit Mustonen Oy.
Oittinen, Reino 1963. Koulujärjestelmän uusiminen ja ammattikoulutus. Rakennustaito 1–2/1963, s. 25–26.
Schalin, Mona 2013. Botby grundskola. Rakennushistoriaselvitys 4.5.2013.
Siitonen, V. 1966. Koulujen lämmityksestä ja ilmanvaihdosta. Rakennustaito 10/1966, s. 438–442.
Sipari, Osmo 1967. Käytännön koulusuunnittelusta. Arkkitehti 12/1967, s. 12–15.
Soikkeli, Anu 2016. Pohjankartanon koulu. Rakennushistoriallinen selvitys.
Valjakka, Ilmo 1965. Keravan kansalaiskoulu. Arkkitehti 1–2/1965, s. 3–12.
Tilastokeskus 2007. Koulutus Suomessa: yhä enemmän ja yhä useammalle. (http://www.stat.fi/tup/suomi90/marraskuu.html.)
Valtioneuvoston päätökset kansakoulurakennusten piirustusten, työselitysten ja normaalihintojen perusteista, 1959, 1962, 1963, 1965, 1967, 1968, 1969.
Valtion rekisterikeskuksen rakennus- ja huoneistorekisterin tilastot 2007.
Viitteet
[1] Ahonen 2012, 147. Kaupunkilaisten määrä ylitti maaseudulla asuvien määrän Suomessa vuonna 1969 (Kallenautio 1985, 21).
[2] Keskeinen muutos 1960-luvulla edellisiin vuosikymmeniin verrattuna oli arkkitehtuurikilpailuiden räjähdysmäinen kasvu. Tämä näkyy myös koulusuunnittelussa: 1960-luvulla järjestettiin yli 40 koulukilpailua. (Lahti 2016, 146, viite 10).
[3] Ahonen 2012, 147.
[4] Tilastokeskus 2007. 1970-luvun vaihteessa 55 prosenttia oppikoululaisista opiskeli yksityisissä kouluissa. Peruskoulu-uudistuksen jälkeen valtaosa oppikouluverkosta siirtyi kuntien haltuun (mt.).
[5] Ahonen 2012, 147–158; Oittinen 1963.
[6] Suomen asetuskokoelma 1968, n:o 467; Ahonen 2012, 151–153.
[7] Mustonen & Vainio 2005, 18.
[8] Lappo 1968.
[9] Oittinen 1963, 25.
[10] Lappo 1974, 112.
[11] Kokkonen 2010, 48.
[12] Itälä 1967, 3.
[13] Makkonen 2004, 65; Heikinheimo ym. 2014, 15–16.
[14] Koulun on suunnitellut Osmo Sipari ja se on nykyisin nimeltään Jousenkaaren koulu. Arkkitehti 7–8/1961, 132–137.
[15] Arkkitehti 1–2/1965, 15–28; Heikinheimo ym. 2014. Aikakaudelle epätyypillisesti koulussa oli myös erillinen auditorio. Tilojen monipuolisuudessaan koulu ennakoi jo tulevia peruskouluja.
[16] Sipari 1967, 13; Makkonen 2004, 65.
[17] Arkkitehti 3/1962, 26–29. Koulu on Toivo Korhosen suunnittelema.
[18] Kemin yhteiskoulun (1961–63, nyk. Sauvosaaren koulu) ja Haminan keskikoulun (1962, nyk. Pappilansalmen koulu) on suunnitellut Kaija ja Heikki Siren. Arkkitehti 10/1963, 220–234.
[19] Arkkitehti 10/1962, 204–216.
[20] Molemmissa suunnittelijana oli Kari Virta, Sampolassa yhdessä Timo Penttilän kanssa.
[21] Väestörekisterikeskuksen rakennus- ja huoneistotietojen tilastot vuodelta 2007.
[22] Soikkeli 2016, 33–34.
[23] Siitonen 1966.
[24] Arkkitehti 7–8/1965, 8. Veikko Nortomaan suunnittelema koulu valmistui 1965. Se on nykyisin Vuosaaren peruskoulu.
[25] 1966 valmistuneen koulun (nyk. Botby Grundskolan) suunnittelivat Erik Kråkström, Kirmo Mikkola ja Juhani Pallasmaa. Schalin 2013.
[26] Mikkola ja Pallasmaa voittivat alkuvuodesta 1966 Vehkalahden kansalaiskoulun suunnittelukilpailun ehdotuksella, joka peruslähtökohdiltaan oli Vartiokylän koulun toisinto, mutta tilaratkaisuiltaan vielä radikaalimpi (Arkkitehti 1–2/1966, liitesivu 1–6).
[27] Osmo Siparin suunnittelema koulu valmistui 1961 ja on nykyisin nimeltään Hakalan koulu.
[28] Koulun (1962, nyk. Rajamäen yläaste ja lukio) arkkitehti on Einari Teräsvirta. Arkkitehti 10/1962, 197–203.
[29] Koulu valmistui 1965 ja on nykyisin Keravanjoen koulun yläkoulu. Valjakka 1965, 3.
[30] Sipari 1967, 14; Valjakka 1965, 3.
[31] Sipari 1967, 14.
[32] Schalin 2013, 34–35.
[33] Itälä 1967, 3.
[34] Lappo & Lappo 1963, 219. Sipari 1967, 12, 15.
[35] Lappo 1969, 7.