Go to contents
Talotekniikka on näkyvillä Martinlaakson koulun käytävien katossa.
Talotekniikka on näkyvillä Martinlaakson koulun käytävien katossa. Kuva: Sirkkaliisa Jetsonen.

Koulujen talotekniikka korjaushankkeessa

Jukka Sainio

Koulut ovat lähtökohtaisesti arvorakennuksia, usein arkkitehtuurinsa ansiosta, mutta erityisesti siksi, että ne ovat asuinaluetta, lähiötä ja koko paikkakuntaa yhdistäviä rakennuksia. Koulut ansaitsevat peruskorjauksessa kunnollisen, toimivan talotekniikan ja hyvän sisäilmaston mutta myös rakennusta ja sen omaleimaista arkkitehtuuria kunnioittavat toteutusmallit. Koulujen korjaushankkeissa ilmanvaihdon järjestelmävalinnat ja kanavien sekä laitteiden sijoittelu ovat usein kynnyskysymyksiä ja vaikeimmin ratkaistavia asioita.

Koulurakennuksen peruskorjaukseksi voidaan kutsua pintoihin, ikkunoihin, oviin, putkistoihin, sähköasennuksiin, it-verkkoihin ja ilmanvaihtoon tai osaan edellä mainituista kohdentuvia töitä. Koulu suljetaan peruskorjauksen ajaksi ja opetustoiminta siirtyy väistötiloihin. Vesikaton uusimis- ja julkisivun kunnostustöitä voidaan suorittaa koulutyön ollessa käynnissä. Rakennuksen asettamat reunaehdot määrittelevät koulun korjausratkaisut ja -käytännöt.

Onnistuneeksi arvorakennuksen korjaukseksi käsitetään usein ratkaisu, jossa kaikki tekniikka on saatu kätketyksi rakenteisiin urittaen, louhien, piikaten, kaivaen ja ylipäätään katseilta piilottaen. Toisaalta seuraava korjaus- ja modernisointivaihe odottaa ilmanvaihtoa jo noin 25–30 vuoden päässä. Tällöin on jälleen tehtävä kalliita arvokkaiden rakenteiden avauksia vanhan tekniikan poistamiseksi ja uuden asentamiseksi. Hyvä korjaustapa huomioi siis jo seuraavan korjauksen sujuvat toiminnot ilman rajua rakenteisiin kajoamista.

Vuosien 1950–1980 välillä rakennetuista kouluista lähinnä vain 1970-luvun koulut taipuvat ”kanavat ja putket näkyviin” -ratkaisumalliin, kuten 1974–1976 valmistunut Martinlaakson koulu. Kanavia joudutaan koteloimaan, asennuksia peitetään alakatoilla tai sijoitetaan kaapistojen ym. sisään. Näkyvien asennusten tulisi olla toiminnaltaan koulukäyttöön soveltuvia mutta myös rakennuksen arkkitehtuuriin soveltuvia.

Koulun lvi-suunnittelu ei voi olla vain tekninen suoritus, vaan lvi-suunnittelu on hyvää yhteistyötä käyttäjien, arkkitehdin ja muiden suunnittelijoiden kanssa. Tavoitteena tulee olla teknisesti toimiva, käytännöllinen ja rakennusta kunnioittava lopputulos. Tämä saavutetaan hyvällä tavoitteiden asettelulla, suunnittelijoiden keskinäisellä kunnioituksella sekä toteuttajien ja suunnittelijoiden hyvällä yhteistyöllä. Perustan tälle kaikelle luo pätevä rakennushistoriaselvitys, jossa myös tekniikka ja sen erityispiirteet on kattavasti huomioitu. Tämä toteutuu valitettavan harvoin. Ongelma toistuu korjausrakentamisessa: vanhan talotekniikan olematon arvostus on johtanut sen lähes täydelliseen häviämiseen. Lohdullisena poikkeuksena ovat säilyneet lämmitysjärjestelmien näkyvät osat, patterit ja putket.

Vesi-, viemäri- ja lämmityslaitteet koulun korjauksessa

Mittavat, koulutyön keskeyttävät, talotekniikkaan kohdistuvat työt tehdään osana laajempaa peruskorjausta. Vesi- ja viemäriputkien korjaus eli ”putkiremontti” on vakiintunut noin 50 vuoden välein tehtäväksi kertakaikkiseksi ja kaiken kattavaksi mylläkäksi. Putkia on jo uusittu 1950-luvulla rakennetuissa kouluissa. Työn alla ovat nyt 1960-luvun koulut; 1970-luvun koulut korjataan – jos rahat sisäilmakorjauksilta riittävät – viimeistään 2020-luvulla. Putkiremontit ovat kehittyneet putkien pinnoitus- ja sukitusmenetelmien kehittyessä. Viemärien sukitus on taloudellinen tapa korjata koulurakennusten alapohjiin asennettuja pitkiä runkoviemäreitä, joiden uusiminen muilla tavoin edellyttäisi laajoja alapohjan avauksia. Asuinrakennusten putkiremonteissa käytetyt tila- ja putkielementtiratkaisut soveltuvat harvoin koulurakennusten korjaukseen.

Vesijohtojen vanhat reititykset ovat lähes aina käyttökelpoisia ja uudet putket asennetaan entisille sijoilleen. Suurin osa vesikalusteasennuksista sijoittuu oppilaiden suuriin WC- ja pesuhuonetiloihin sekä koulun keittiöön. Toisaalta yksittäiset, luokissa sijaitsevat pesualtaat laajentavat korjausaluetta. Uusien vesipisteiden tarve liittyy yleensä WC- ja pesuhuonetilojen laajentumiseen. Myös keittiöt uusitaan usein peruskorjauksen yhteydessä. Pääkaupunkiseudulla valmistuskeittiöt muuttuvat kuumennus- ja jakelukeittiöiksi.

Vesikalusteiksi asennetaan yksinkertaisia ja kestäviksi todettuja laitteita. Kytkentäputkien uppoasennus oppilaitten käytössä olevissa tiloissa helpottaa siivoustyötä sekä edistää putkien säilymistä ehjinä. Vesijohtokalusteita, hanoja ja altaita vaihdetaan kovan kulutuksen vuoksi normaalin huoltotoiminnan yhteydessä.

Lämmitysjärjestelmän korjaustyössä kynnyskysymykseksi nousee patterien ja putkien uusimisen tarve. Lämmitysverkosto on hyvin hoidettuna pitkäikäinen. Viisikymmentä vuotta vanhat patterit ja putket ovat useimmin käyttökuntoisia vielä jopa vuosikymmeniä. Patterit uusitaan useimmiten vain tilamuutoksista aiheutuvista syistä. Lisäksi uusitaan selkeästi rikkoontuneet tai pahoin kolhiintuneet patterit. Termostaattisten patteriventtiilien vaihto on vakioratkaisu ja lähes automaatioksi muodostunut – usein aivan turha. Toimivan laitteen perustelematon vaihto syö syntyneen säästön.

Vuonna 1967 valmistuneen Roihuvuoren ala-asteen lämmitysverkoston kattava uusiminen vuonna 2016 valmistuneessa peruskorjauksessa oli laajuudessaan poikkeuksellinen. Pattereilla on Roihuvuoren koulussa rooli sisätilojen arkkitehtuurissa. Uudet alkuperäisten mukaiset patterit löytyivät ruotsalaiselta toimittajalta.

Martinlaakson koulun peruskorjauksessa uusittiin myös pattereita. Kuva: Jukka Sainio.

Ilmanvaihto koulun korjauksessa

Putkiremontit eivät ole koulumaailman pelätyin remonttiriesa. Hankalampia, kalliimpia ja myös pelätympiä ovat sisäilmaongelmiin liittyvät, ilmanvaihtoon ja rakenteisiin kajoavat korjaushankkeet.[1]

Eri vuosikymmenten koulurakennukset voidaan väljästi jaotella käytetyn ilmanvaihtotekniikan mukaan: painovoimainen ilmanvaihto vallitsi 1950-luvulla, 1960-luku oli koneellisen poistoilmanvaihdon kautta osittaisella koneellisella tuloilmajärjestelyllä avustettuna ja 1970-luvulla alkoi koneellisen ilmanvaihdon kausi. 1940- ja 1950-luvun painovoimaisiksi suunniteltuja kouluja muutettiin koneellisella poistoilmanvaihdolla toimiviksi varustamalla hormiryhmät piippujen päähän asennetuilla huippuimureilla. Rekolan 1950-luvun koulun ilmanvaihtoa tehostettiin huippuimureilla ja myös kevyillä tuloilmajärjestelyillä 1980-luvun alussa. Tämä oli ilmanvaihdon tehostamisen perusratkaisu ennen täysin koneelliseen ilmanvaihtoon siirtymistä. Viimeistään 2010-luvulla koulujen painovoimainen ilmanvaihto korvataan koneellisilla järjestelmillä. Ennen 1970-lukua rakennetuissa asuintaloissa painovoimainen ilmanvaihto toimii edelleen pääasiallisena ilmanvaihtojärjestelmänä.

Painovoimaisessa ilmanvaihdossa ilma vaihtuu rakennuksissa viikon jokaisena päivänä ja päivän jokaisena tuntina. Koneellisen ilmanvaihdon aikakaudella koneet on usein pysäytetty viimeisen koulutunnin päätyttyä ja käynnistetty aamulla koulun alkaessa. Näin ei ilma vaihtunut kouluissa viikonloppuisin lainkaan, vain WC-tiloissa toimivat yksittäiset huippuimurit. Kun ne pyörivät ilman järjestettyjä korvausilmareittejä, ilmaa imettiin rakenteiden läpi, usein kohtalokkain seurauksin. Tämä oli paha lvi-tekninen virhe, suorastaan fiasko, johon syyllistyivät suunnittelu-, urakointi- ja viranomaistaho, kukin osaltaan.

Koulujen ilmanvaihto on viime vuosina ollut sisäilmaongelmien vuoksi koulukorjauksissa merkittävässä asemassa. 1970-luvun puolivälin jälkeen Suomen rakentamismääräyskokoelman ilmanvaihtoa koskevat määräykset ja ohjeet korvasivat aikaisemmat ohjeistukset, normaaliohjeet (1966) ja paikallisen rakennusvalvonnan erillisohjeistukset. Ilmamäärät kasvoivat, luokkahuoneissa lähes kaksinkertaistuivat, ja sisäilman tuli olla aikaisempaa merkittävästi parempaa. Ilmanvaihdon aiheuttamalle vedolle ja melulle asetettiin raja-arvot, samoin ilman puhtaudelle ja hiilidioksidipitoisuudelle. Ilmanvaihtotekniikka sai merkittävän kasvusysäyksen määräysten myötä. Ilmanvaihtotekniikasta tuli merkittävä tekijä sekä uudis- että korjausrakentamisessa kustannusten, tilavaatimusten ja sisä- ja ulkoarkkitehtuurin ilmeen osalta. Suunnittelu oli ja on edelleen hyvin määräysvaltaista, tekniikka runsaasti tilaa vaativaa ja alati uudistuvaa – tekniikka kehittyy ja trendit mm. tuloilmanjaon osalta vaihtuvat rajusti.

Kun 1970-luvun kouluja 2000-luvulla korjataan, ilmanvaihto yleensä uusitaan kokonaan. Näin tapahtui myös Vantaan Martinlaakson koulussa. Ilmastointijärjestelmien täydellinen uusiminen parinkymmenen vuoden välein on yleinen käytäntö myös muussa julkisessa rakentamisessa. Kojeiden elinkaarena pidetään 20–25 vuotta, ja lisäksi mitoituskäytännöt muuttuvat. Sisäilman laadun vaatimustaso nousee, jäähdytys tulee toimistorakennuksissa yleiseksi käytännöksi. Kanavat ja järjestelmät suunnitellaan väljemmiksi ja muuntojoustaviksi, tilamuutoksia paremmin palveleviksi; ilmamäärien lisääminen ja muuttaminen paikallisesti helpottuu. Koneet varusteineen kasvavat mm. lämmöntalteenottolaitteiden myötä. Muuntojoustavuuden vaatimus tulee myös uusiin ja korjattaviin kouluihin. Jäähdytystä ei kouluihin ole edellytetty. Läsnäoloon perustuva ilmamäärien säätö on tullut kouluihin viimeistään 2000-luvun alusta alkaen sekä uudisrakentamiseen että koulukorjausten myötä vanhoihin kouluihin. Säätö perustuu CO2-mittaukseen. Ilmamääriä myös pienennetään ulkoilman lämpötilan mukaan (ilmamäärä puolittuu, kun lämpötila laskee alle -12 °C). Säädöt tapahtuvat pääosin rakennusautomaation keinoin. Muuttuvan ilmamäärän kanaviin asennettavat ilmamääräsäätimet ja säätöpellit vaativat omat tilansa. Myös ilmanvaihdosta syntyvään ääneen puututaan 2000-luvulla 1970-lukua tiukemmin. Tämäkin lisää tilantarvetta kanavien äänenvaimentimien takia.

Käyttökelpoiset peltikanavatkin saavat korjaushankkeissa kyytiä. Puretut kanavat voisi saada pesemällä toimiviksi. Nyt ne kulkeutuvat jätteenä ja romuna pois korjaustyömailta. Uusiokäyttöä ei ole. Tähän tulisi kierrätystalouden vaatimukset kohdentaa. Todella kovassa tahdissa uusitaan näkyvät ilmanjakolaitteet, tulo- ja poistoilmaventtiilit. Tässä lvi-väki seuraa aina viimeisiä trendejä välittämättä tilan asettamista ehdoista. Pintojen huolellinen, joskus restauroiva korjaustapa kompastuu sopimattomiin lvi-laitteisiin. Tämän epäkohdan korjaaminen edellyttäisi arkkitehdilta parempaa tekniikan ymmärrystä ja tietoa arvioida esitettyä teknistä ratkaisua kriittisesti ja vastaavasti insinööreiltä kunnioittavampaa suhtautumista korjattavaan rakennukseen. Valitettavasti korjaustöissä poistetaan myös alkuperäiset lvi-laitteet, kuten suuret 1950-luvun valurautaiset poistosäleiköt. Nämä olisivat edelleenkin hyödynnettävissä joko maskina uudelle venttiilille tai varsinaisena poistoventtiilinä. Lvi-ala ei arvosta omaa historiaansa.

Ilmastointikonehuoneet ja kanavoinnit koulun korjauksessa

Ilmanvaihtokonehuoneiden pinta-alan tarve on kasvanut 1960-luvulta alkaen tasaisesti, samoin niiden vaatima huonekorkeus. Koulurakennus 1950-luvulla oli yleensä useampikerroksinen, harjakattoinen ja tilavalla kylmällä ullakolla varustettu. Lähtökohta oli hyvä koneellisen ilmanvaihtolaitoksen rakentamiselle. Konehuoneen sijoittaminen ullakolle oli luonteva ratkaisu, uutta tilaa ei tarvinnut ottaa käyttötiloista, vaan se löytyi aiemmin käyttämättömistä kylmistä ja tyhjistä tiloista. Runkokanavien sijoittaminen ullakkotiloihin helpotti vaakasuuntaista kanavointitarvetta kerroksissa. Alapuoliset luokkatilat pystyttiin ilmastoimaan pystysuuntaisesti asennetuilla kanavilla. Tämä vähensi kerroskäytävien alakattorakenteita tai mahdollisti pienemmät kanavat käytävillä, jolloin alakatto saatiin asennettua ylemmäksi.

Ongelmiksi muodostuivat ilmastointikoneiden ja kanavien tilantarve ja konehuoneiden vaatima korkeus. Tästä yritettiin selvitä nostamalla vesikattoa paikallisesti tai nostamalla koko vesikatto. Lopputulos oli erikoinen, 1950-luvun kouluarkkitehtuuria kaltoin kohteleva ratkaisu. Myös jäteilman ulospuhallus- ja raitisilmapiiput toivat uuden poikkeavan lisänsä perinteisten piippujen sijaan ja rinnalle. Rakennuksen viides julkisivu on vesikatto, joka jäi näissä käänteissä ilman esteettistä valvontaa. Toisinkin olisi voitu menetellä. Rakennuksen valmistumisaikakauden tuotteita olisi ollut saatavilla ja uusien laitteiden verhoilu entisten piippujen mallisiksi olisi ollut mahdollista. Hajautetulla konehuonesijoittelulla olisi voitu välttää hurjimmat muutokset vesikatolla.

Nurmeksen Porokylän koulun ullakoille eivät konehuoneet mahtuneet ilman vesikaton korotuksia.

Viisikymmentäluvulla valmistuneita painovoimaisen ilmanvaihdon kouluja koneellistettiin osittain jo 1980-luvulla. Painovoimaisen ilmanvaihdon muuttaminen koneelliseksi poistoksi tapahtui helposti asentamalla huippuimurit vanhojen poistoilmapiippujen päähän. Näin meneteltiin myös 1951 valmistuneessa Rekolan koulussa, jossa 1980-luvulla muutettiin painovoimainen ilmanvaihto koneelliseksi poistoilmanvaihtojärjestelmäksi.

Kun Rekolan koulun ilmanvaihto 2000-luvun peruskorjauksessa koneellistettiin täysin, sijoitettiin uusi konehuone ullakolle. Koulun ullakko oli pinta-altaan ja korkeudeltaan riittävä uudelle konehuoneelle ja runkokanavien asennustilaksi. Vesikattoa ei tarvinnut korottaa. Vesikaton entiset ja uudet kattoasennukset muodostuivat kuitenkin suunnittelemattoman oloisiksi. Ullakon runkokanava-asennuksista huolimatta myös kerroskäytäviä on käytetty kanavointiin, minkä takia alakatto käytävillä on kiusallisen alhaalla. Rekolan koulun ullakon konehuoneen lisäksi sijoitettiin toinen konehuone entiseen kattilahuoneeseen palvelemaan alimman kerroksen tiloja.

Left: Rekolan koulun konehuone ullakkotiloissa. Kuva: Jukka Sainio.
Right: Ilmanvaihtokonehuoneen kanavia ja kojeita. Liikaa tilaa ei konehuoneisiin yleensä jää. Kuva: Jukka Sainio.
Rekolan koulun konehuone ullakkotiloissa. Kuva: Jukka Sainio.
Ilmanvaihtokonehuoneen kanavia ja kojeita. Liikaa tilaa ei konehuoneisiin yleensä jää. Kuva: Jukka Sainio.
Left: Rekolan koulun katolle on rakennusvuosien jälkeen kerääntynyt lisää teknisiä laitteita. Kuva: Jukka Sainio.
Right: Rekolan koulun luokkakäytävän alakatto laskee kahdessa vaiheessa. Kuva: Jukka Sainio.
Rekolan koulun katolle on rakennusvuosien jälkeen kerääntynyt lisää teknisiä laitteita. Kuva: Jukka Sainio.
Rekolan koulun luokkakäytävän alakatto laskee kahdessa vaiheessa. Kuva: Jukka Sainio.

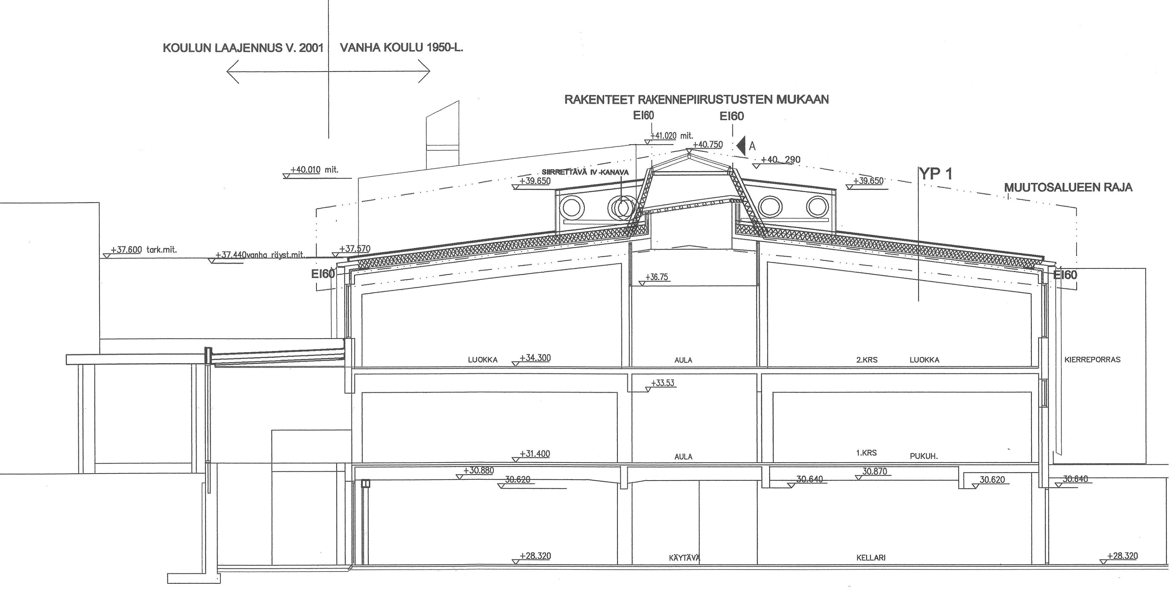
Jos ullakko ei ole käytettävissä ilmanvaihdon tilaa vieville konehuoneille ja kanaville, nämä tilat pitää löytää muualta. Konehuoneiden sijoittaminen vesikatolle oli yleinen ratkaisu 1970-luvun tasakattoisissa ja syvärunkoisissa koulurakennuksissa. Konehuoneita saattoi olla useampia ja ne voitiin sijoittaa ilmanvaihdon kanavamitoituksen kannalta ideaaleihin paikkoihin. Kanavia ei kuitenkaan tällöin asennettu vesikatolle vaan sisätiloihin, joissa kanavien edellyttämät asennustilat oli jo koulun rakentamisen aikana huomioitu huonekorkeudessa. Martinlaakson koulua korjatessa vesikatolla sijainneet kaksi konehuonetta purettiin ja korvattiin kolmella uudella, pinta-alaltaan ja korkeudeltaan suuremmalla. Lisäksi kellarikerroksen entiseen ryömintätilaan raivattiin uusi suuri konehuone.

Martinlaakson koulun uusi kattokonehuone. Kuva: Jukka Sainio.
Uusi konehuone louhittiin koulun aiempaan käyttämättömään alustatilaan. Kuva: Jukka Sainio.
Uuden konehuoneen kanavoinnit valopihalla. Kuva: Sari Nieminen.

Martinlaakson koulun rakennusvaiheessa oli koneellisen ilmanvaihdon kanavointi ja vesi- ja lämpöputket sijoitettu sisätiloissa näkyviin ja osaksi sisätilojen arkkitehtuuria. Teknisillä putkistoilla oli katsottu olevan muutakin merkitystä kuin niissä kulkevan ilman ja nesteen kuljetus. Peruskorjauksen yhteydessä on tätä asennustapaa edelleen taitavasti ja näyttävästi hyödynnetty.

Putkiasennukset liittyvät olennaisesti Martinlaakson koulun arkkitehtuuriin. Kuva: Jukka Sainio.
Kanavien väritys on osa Martinlaakson koulun omintakeista ilmettä. Kuva: Jukka Sainio.

Ratkaisu, joka toimii 1970-luvun kouluissa, ei välttämättä jalosta aikaisempien vuosikymmenten koulujen interiöörejä. Tuloilman puhalluksen kannalta erinomaiset, vedottomat ja äänettömät suutinputket eivät välttämättä sovellu 1950-luvun tiloihin.

Rei’itetyt sisäänpuhalluskanavat ovat yleisimpiä ratkaisuja luokkien tuloilman puhallukseen. Näin myös Herttoniemen yhteiskoulussa. Kuva: Jukka Sainio.

1950- ja 1960-luvuilla rakennettuja kouluja on varustettu katolle sijoitetuilla konehuoneilla myöhemmissä korjauksissa. Näin tehtiin 1957 valmistuneen Herttoniemen yhteiskoulun 2000-luvun korjaus- ja laajennushankkeessa. Konehuoneen sijoittaminen sisätiloihin olisi edellyttänyt vähintään yhden luokkahuoneen menetystä, kanavien osalta tämäkään ei olisi riittänyt.

Peruskorjauksessa ilmanvaihto kanavoitiin vesikatolle asennetuilla runkokanavilla. Kattopalkit tekivät sisäpuolisen asennuksen mahdottomaksi. Kanavien alapinta olisi jäänyt alle kahteen metriin.

Leikkauspiirustus Herttoniemen yhteiskoulun vesikaton asennuksista. Kuva: A6Oy.

Jos konehuoneita ei voi rakentaa vesikatolle ja sisätilat eivät mahdollista suurien runkokanavien asentamista, voi kanavat asentaa alapohjan alapuolelle. Talotekniikkatunnelien rakentaminen ja louhiminen on kallis ratkaisu, mutta se mahdollisti Roihuvuoren ala-asteen arkkitehtuurin onnistuneen säilyttämisen. Roihuvuoren koulun kellarissa sijainneen alkuperäisen mitättömän pienen ilmanvaihtokonehuoneen korvasi vuonna 2016 valmistuneessa peruskorjauksessa ensimmäiseen kerrokseen sijoitettu merkittävästi suurempi konehuone. Konehuoneen sijoittaminen kellarikerrokseen oli mahdotonta matalan huonekorkeuden vuoksi ja lisälouhinnat olisivat muodostuneet kohtuuttomiksi.

Hertsikan ala-asteen vuonna 1952 valmistuneessa Ahmatien koulussa Herttoniemessä tutkittiin koko vesikaton nostoa konehuone- ja kanavien sijoittamisen vuoksi.[2] Ratkaisu olisi ollut tuhoisa arkkitehtuurin kannalta. Hajautetut pienet tuloilmakonehuoneet, vesikatolle sijoitetut poistoilmakoneet lämmöntalteenottolaitteineen ja runkokanavien asentaminen käytävätilojen alaslaskettuihin kattoihin ratkaisivat ongelman 2007 valmistuneessa peruskorjauksessa.

Hertsikan ala-aste, Ahmatien koulu (ent. Herttoniemen kansakoulu). Arkkitehti Jorma Järvi,1952. Kuva: Jukka Sainio.
Painovoimaisen ilmanvaihdon piiput Hertsikan ala-asteen koulussa ennen peruskorjausta. Kuva: Jukka Sainio.
Hertsikan ala-asteen koulun poistoilmapiiput lämmöntalteenottolaitteineen. Kuva: Jukka Sainio.
Koteloidut runkokanavat Hertsikan ala-asteen luokkakäytävällä. Kuva: Jukka Sainio.

Lämmöntalteenottojärjestelmänä Ahmatien koulussa käytettiin neulalämmönsiirtimiä. Laite ottaa lämpöenergian talteen poistoilmasta ja sitoo sen lämmönsiirtonesteeseen. Neste pumpataan liuospumpun avulla tuloilmakojeen lämmönsiirtimeen, missä nesteen sisältämä lämpöenergia esilämmittää tuloilmaa. Vesikatoille sijoitetut poistokojeet varusteineen pienentävät konehuoneiden tilantarvetta. Neulalämmönsiirtimet huolletaan ajoittain pesemällä. Hankalaksi muodostuva pesu rajoittaa pattereiden käyttöä.

Vartiokylän ala-asteen 1960 valmistuneen koulun peruskorjauksessa 2006–2007 käytettiin saamaa lämmöntalteenottojärjestelmää kuin Herttoniemessä. Näin jälleen säästettiin luokkasiiven konehuoneiden (3 kpl) tilantarvetta. Konehuoneisiin asennettiin vain tuloilmakoneet.

Vartiokylän ala-aste. Arkkitehti Jorma Järvi, 1959. Kuva: Jukka Sainio.
Konehuoneessa on vain tuloilmakone. Vastaava poistoilmanvaihtokone lämmöntalteenottolaitteineen on vesikatolla. Kuva: Jukka Sainio.

Vartiokylän koulun ilmanvaihto on mielenkiintoinen ”käytäväpoistojärjestelmä”. Koulurakennus on matala, minkä takia kuokkasiivessä vaakasuuntainen kanavointi on lähes mahdotonta. Korjauksessa päädyttiin kolmeen konehuoneeseen, jolloin runkokanavointi palvelee pienempiä alueita. Konehuoneet on saatu pienemmiksi sijoittamalla poistokoneet vesikatolle piippuihin. Tuloilma johdetaan luokkiin niiden lattialle asennetuilla ”sisäänpuhalluskuutioilla”. Ilma poistuu siirtoilmareitin kautta käytävälle, jonka katossa ovat poistoilmaventtiilit ja niiden kautta edelleen poistokojeille vesikatolla. Alun perin koulussa oli koneellinen poisto, jolloin ilma luokkiin tuli ikkunaraoista ja poistui kuten nyt, koneellisesti käytäväaulan kautta.

Järjestelmä on käänteinen yleisemmälle ”käytäväpuhallus-järjestelmälle”, joka oli Herttoniemen yhteiskoulun ja monen muunkin alkuperäinen ratkaisu. Rakennushallitus rakennutti käytäväpuhalluksen nimellä vastaavaa halpisratkaisua 1970-luvulla myös toimistorakennuksiin huonolla menestyksellä. Tiloja oli mahdoton saada ilmamäärien suhteen samanarvoisiksi. Nämä järjestelmät on poistettu ensimmäisessä korjaushankkeessa ja korvattu huonekohtaisilla sisäänpuhallus- ja poistojärjestelmillä.

Kuutiomaiset sisäänpuhalluslaitteet (syrjäyttävä ilmanvaihto) on asennettu luokkahuoneiden lattioille, kuvassa luokan pesualtaan yhteyteen. Kuva: Jukka Sainio.
Luokan tuloilma siirtyy äänenvaimennettujen virtausreittien kautta käytäville. Poistoventtiilit ovat käytäväaulan katossa. Kuva: Jukka Sainio.

Kirjoittaja

Jukka Sainio, Insinööritoimisto Sainio.

Artikkeli on julkaistu 2017.

Lähteet

Haastattelu 22.9.2016 DI Jukka Forsman, Helsinki. HKR-Rakennuttajan tulosryhmän johtaja.

Haastattelu 11.10.2016 Rehtori Ilkka Olkkonen, Helsinki. Hertsikan ala-aste.

Viitteet

[1] Pääkaupunkiseudulla koulukorjaukset käynnistyvät 2010-luvulla pääosin sisäilmaongelmien vuoksi. Normaali peruskorjaustoiminta joutuu odottamaan vuoroaan, jonka takia rakennusten kunto rapistuu kaikilta osin. Peruskorjauksia tehdään lähiöittäin, jos alueelle on rakennettu väistötilat sisäilmaongelmien vuoksi. Väistötiloja hyödyntäen voidaan tällöin tehdä tarvittavia korjaustöitä myös alueen muihin kouluihin. Haastattelutieto Jukka Forsman 22.9.2016.
[2] Haastattelutieto Ilkka Okkonen 11.10.2016.

Koulujen talotekniikka korjaushankkeessa (pdf)

Load pdf

Site's cookies