
1970-luvun virastotalo
Markus Manninen
Valtionhallinto kasvoi ja tarvitsi uusia virastotiloja. Suunnittelussa painotettiin taloudellisuutta ja tehokkuutta. Tiukka suunnittelunohjaus ja rakennustekniset standardit, erityisesti betonielementtiteollisuuden standardit, hallitsivat 1970-luvulla suunnittelua. Suurin osa virastotaloista suunniteltiin yksityisten arkkitehtien toimesta eikä enää Rakennushallituksessa kuten aiemmin.
”Uudisrakennustoiminnan kehittämisen tärkeimpänä päämääränä on rakennuttamistarpeen tyydyttäminen siten, että saavutettava tulos on kokonaistaloudellisesti mahdollisimman edullinen.” Pääjohtaja Heikki Sysimetsä, Valtion talonrakennus- ja kiinteistöhallinto, Rakennushallituksen kertomus vuodelta 1971, Helsinki 1972.
Valtiovarainministeriö budjetoi - ympäristön-, kuluttajan- ja työsuojelun virastot perustetaan
Rakennuskustannusten tiukka seuranta ja minimointi leimasivat valtion virastotalojen rakentamista. Rakennushallituksesta tuli 1970-luvun alussa valtionvarainministeriön alainen ja ministeriö rahoitti vastedes valtion virastotalot.
Sosiaali-, terveys- ja koulutuspalvelujen laajentaminen oli edelleen voimakasta. Lisäksi ”toisen aallon” hyvinvointivaltion tehtävät, ympäristön-, kuluttajan- ja työsuojelu, saivat omat keskusvirastonsa ja piiriorganisaatiot. Vesihallitus perustettiin 1970, Elinkeinohallitus ja Työsuojeluhallitus aloittivat 1973. Työsuojeluhallitus oli ensimmäinen keskusvirasto, jonka sijoituspaikka oli Helsingin ulkopuolella, Tampereella.
Oikeushallinnon tilantarpeet kasvoivat. Alioikeuksille tuli rakentaa virastotiloja nk. sporttelijärjestelmän lakkautuksen takia. Valtiolle siirtyi myös nk. vanhojen kaupunkien raastuvanoikeuksien sekä poliisilaitosten tiloista huolehtiminen 1977. Yhdistettyjä oikeus- ja poliisitaloja oli ostettava ja rakennettava suuri määrä varsinkin 1980-luvun puolella.[1]
Tilantarve kasvaa - Pasilan virastokeskus rakennetaan
Rakentamisen kiireellisyysjärjestys päivitettiin 1970-luvun alkuvuosina. Uusia virastotiloja tarvittiin lähes puolet lisää olemassa olevasta määrästä vuoteen 1978 mennessä. Kiireellisyysjärjestys ei kuitenkaan taannut hankkeiden nopeaa toteutumista. 1970-luvun alun taloudellinen noususuhdanne kääntyi loppupuolella laskuun, jolloin useiden rakenteilla tai suunnitteluvaiheessa olleiden rakennusten aikataulua siirrettiin.
Lukuisten ministeriö- ja keskusvirastouudistusten takia Helsinkiin tarvittiin lisää virastotiloja. Taloudellisimmaksi arvioitiin useiden keskusvirastojen sekä pienempien virastojen ja laitosten keskittäminen kookkaisiin, yleispäteviin virastotaloihin. Kaikkien aikojen suurimman virastotalon, Pasilan virastokeskuksen perustustyöt aloitettiin 1974. Pasilan valtava virastokeskittymä vaikutti siihen, että vuosikymmenen loppupuolella kaikesta valtion rakenteilla olleesta rakennustilavuudesta peräti 45% sijaitsi Uudenmaanläänin alueella.
Virastohuoneistoja tai kokonaisia rakennuksia ostettiin ja vuokrattiin Helsingissä ja muissa suurissa kaupungeissa, joissa tilantarve ylitti uudisrakentamismahdollisuudet. Pienillä paikkakunnilla ei kannattanut rakentaa kokonaisia virastotaloja, jos tilantarve oli vähäinen. 1970-luvun puolivälistä lähtien virastohuoneistoja ostettiin myös kuntien kanssa yhteistyönä rakennetuista kiinteistöosakeyhtiöistä.[2]
Virastosuunnittelun normeja: perustamis- ja esisuunnitelma, rakennuksen laatuluokitus, normaalihintamenettely
Rakennushallituksen ulkopuolella tehtävän suunnittelutyön ohjaamiseen kehitettiin uusia menetelmiä, normeja ja määräyksiä. Myös suunnitteluasiakirjojen tarkkuusvaatimuksia lisättiin. Toisaalta suunnittelunohjaus selkeytti ja helpotti arkkitehdin työtä, toisaalta kahlitsi sitä toistamaan samoja ratkaisuja rakennuksesta toiseen.
Perustamis- ja esisuunnitelmat Rakennushallitus laati kaikista virastotaloista ennen rakennussuunnittelun aloittamista vuodesta 1971 lähtien. Tavoite oli, että suunnitelmien tekoon ryhdyttäisiin vasta kun rakennushankkeen edellytykset oli varmistettu. Perustamissuunnitelmasta kävivät ilmi mm. rahoituksen arviointiin tarvittavat tiedot. Esisuunnitelma käsitti huoneohjelman ja alustavan kustannusarvion. Oli kuitenkin edelleen mahdollista, että rakennushanke venyisi rahoituksen keskeyttämisen takia.
Valtion rakennusten laatuluokitus uusittiin 1974 painottamaan taloudellisuutta ja tehokkuutta. Laatua määrittelivät hankinta- ja käyttökustannusten edullisuus. Viihtyisyyttä ei enää mainittu. Työympäristön väljyyden ja valoisuuden vähentymisestä seurasi myöhemmin työterveydellisiä haittavaikutuksia.
Suunnittelun taloudellisuutta ohjattiin normaalihintamenettelyllä vuodesta 1978 lähtien. Erilaisille huonetiloille oli kustannusseurannan perusteella määritelty vuosittain tarkistettava kalleusluokka ja huoneen neliötä kohden laskettu ”normaalihinta”.[3]
Standardisoitua arkkitehtuuria 12M-mitoituksella
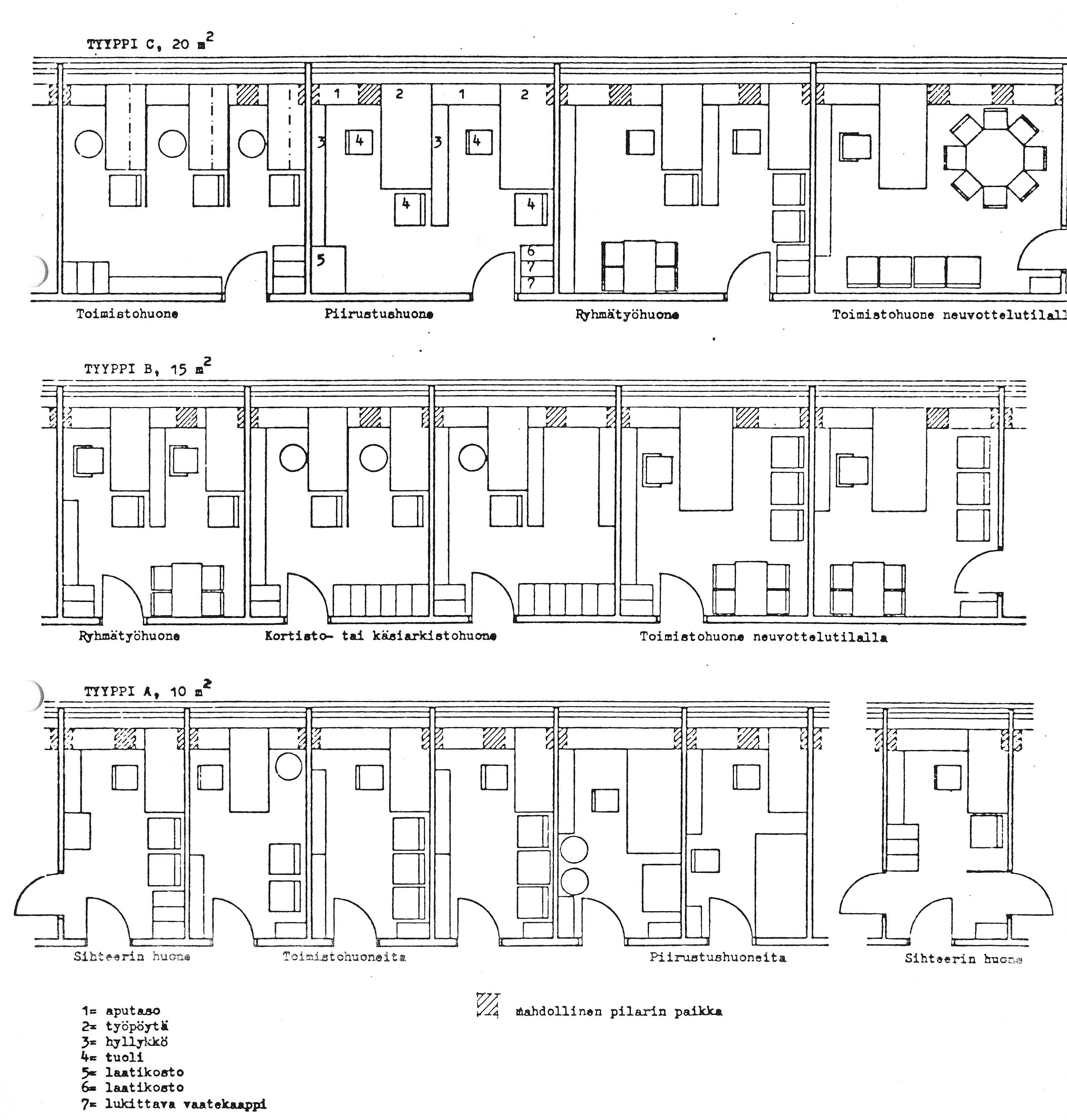
Julkisivujäsentely ja sisätilojen järjestelyt perustuivat 1970-luvulla rakennusteollisuuden määrittelemän betonielementtistandardin 12M-mitoitukseen, eli 1200 mm:n kerrannaisiin. Rakennushallitus julkaisi huonetilojen mitoitusohjeita suunnittelun normittamiseksi 1970-luvun puolivälistä lähtien. Virastotalojen tärkein huonetyyppi, toimistohuone, mitoitettiin betonielementtistandardin mukaan. Eräille virastotyypeille laadittiin esimerkkihuoneohjelmat, joissa annettiin ohjeellinen tilamitoitus yhteyskaavioineen.
Vuoden 1974 energiakriisi vaikutti virasto- ja muidenkin rakennusten ulkonäköön: ikkuna-aloja pienennettiin ja LVIS-tekniikan suunnittelu korostui.[4]
Totaaliurakointia eli kokonaisvastuurakentamista
Myös suunnittelun ohjausta ulkoistettiin suunnittelu- ja toteutusaikojen lyhentämiseksi ja kustannusten alentamiseksi. Rakennushallitus otti 1970-luvun alkupuolella käyttöön ”totaaliurakoinnin” eli kokonaisvastuurakentamisen (KVR). KVR-rakentamisessa urakoitsija vastasi varsinaisen rakennustyön lisäksi myös rakennuksen suunnittelusta ja toteutustavasta.
Ensimmäisiä toteutuneita totaaliurakoita olivat Helsingin suuret virastotalot Haapaniemenkadulla ja Hakaniemenrannassa. Menettely osoittautui ongelmalliseksi: rakennuskustannukset alenivat ja suunnitteluajat lyhentyivät, mutta laatu ja rakentamisen ohjausmahdollisuudet heikentyivät.[5]

Vastareaktiona uusia ratkaisumalleja
Hankinta- ja käyttökustannusten edullisuustavoite sekä tiukan ohjeistuksen aiheuttama monotonisuus saivat vastareaktioita 1970-luvun lopussa. Arkkitehtisuunnittelulle haluttiin antaa enemmän mahdollisuuksia vaikuttaa lopputulokseen ja uusien ratkaisumallien kehittämiseen. Tässä tarkoituksessa järjestettyjen arkkitehtikilpailujen ja muiden muutosten vaikutukset alkoivat näkyä 1980-luvulla.[6]
Kirjoittaja
Markus Manninen, arkkitehti SAFA. Artikkeli perustuu tekijän tutkimukseen Valtion virastotalot 1809-1995.
Artikkeli on julkaistu 2020.
Lähteet
Arkistot
KA Kansallisarkisto, Helsinki
- Rakennushallituksen arkisto III, RakH III
- Rakennushallitus: Valtion ja kirkon rakennusten kuvat n. 1880–1990, kokoelma
Painetut lähteet
Suomen valtiokalenteri 1979. Espoo: Helsingin Yliopisto, 1979.
Valtion rakennushallinto, Rakennushallituksen kertomus, vuosilta 1945–1970. Helsinki: Suomen virallinen tilasto 1947–1971.
Valtion talonrakennus- ja kiinteistöhallinto, Rakennushallinnon kertomus, vuosilta 1971–1981. Rakennushallitus 1972–1982.
Kirjallisuus
Hämäläinen, Toimi 1986. Suunnittelun kehitys. Teoksessa Rakennushallinto 1961–1986, rakennushallinnon 175-vuotisjuhlakirja. Toim. Kai Saurama, Eeva Pirkkalainen & Pentti Auersalo. Helsinki: Rakennushallitus.
Kinnunen, Pirkko 1974. Valtion uudisrakennusten laatuluokituksesta. Diplomityö, Oulun yliopiston teknillisen tiedekunnan rakennusinsinööriosastolla.
Kujala, Tuire 1986. Virastorakennukset. Teoksessa Rakennushallinto 1961–1986, rakennushallinnon 175-vuotisjuhlakirja. Toim. Kai Saurama, Eeva Pirkkalainen & Pentti Auersalo. Helsinki: Rakennushallitus.
Metsola, Pekka 1986. Rakennuttamisen kehitys. Teoksessa Rakennushallinto 1961–1986, rakennushallinnon 175-vuotisjuhlakirja. Toim. Kai Saurama, Eeva Pirkkalainen & Pentti Auersalo. Helsinki: Rakennushallitus.
Mikkelin virastotalokortteli, rakennushistoriaselvitys. Arkkitehtitoimisto Hannu Puurunen Oy, 2011.
Nikkilä, Juhani 1986. Hallinnon rakennettu kuva – ajatuksia julkisen hallinnon ja julkisen rakentamisen muutoksista. Teoksessa Rakennushallitus 1911–1986 175 vuotta: näyttely 4.9.–12.10.1986 Suomen rakennustaiteen museo. Toim. Juhani Pallasmaa. Helsinki: Suomen rakennustaiteen museo.
Numminen, Jaakko 1999. Valtioneuvosto. Teoksessa Valta ja byrokratia Suomessa 1809–1998. Toim. Raimo Savolainen ja Jorma Selovuori. Helsinki: Edita.
Savolainen, Raimo 1996a. Keskusvirastolinnakkeista virastoarmeijaksi: senaatin ja valtioneuvoston alainen keskushallinto Suomessa 1809-1995. Helsinki: Edita.
Savolainen, Raimo 1996b. Keskusvirastot, virastot ja laitokset 1917–1996. Teoksessa Suomen keskushallinnon historia 1809–1996. Toim. Raimo Savolainen et al. Helsinki: Edita.
Savolainen, Raimo 1999. Suomalainen virastolaitos. Teoksessa Valta ja byrokratia Suomessa 1809–1998. Toim. Raimo Savolainen ja Jorma Selovuori. Helsinki: Edita.
Sipponen, Kauko 1996. Julkinen valta ja yksilö. Teoksessa Suomen keskushallinnon historia 1809–1996. Toim. Raimo Savolainen et al. Helsinki: Edita.
Toimistohuoneet valtion talonrakennushankkeissa, No 1/Es/15.1.1975. Helsinki: Rakennushallitus 1975.
Tuomiokuntien kanslioiden toimitilat ja käräjähuoneistot, No 9/Es/15.6.1978. Helsinki: Rakennushallitus 1978.
Valtion talonrakennushankkeiden perustamis- ja esisuunnittelua koskevat ohjeet. Helsinki: Rakennushallitus 1974.
Vuorinen, Juha 2005. Hyvinvointivaltion avoin muoto. Väitöskirja. Taidehistorian laitos, Helsingin yliopisto.
Väänänen, J.K. 1986. Rakennushallinnon organisaation kehittämisestä 1962–1986. Teoksessa Rakennushallinto 1961–1986, rakennushallinnon 175-vuotisjuhlakirja. Toim. Kai Saurama, Eeva Pirkkalainen & Pentti Auersalo. Helsinki: Rakennushallitus.
Ylikangas, Heikki 1996. Suomen tasavallan virkamieseliitti. Teoksessa Suomen keskushallinnon historia 1809–1996. Toim. Raimo Savolainen et al. Helsinki: Edita.
Viitteet
[1] Numminen 1999, 44; Kujala 1986, 80; Rakennushallituksen kertomukset 1970 ja 1971; Sipponen 1996, 763; Savolainen 1996a, 255–257; Savolainen 1996b, 667–668; Savolainen 1999, 116–117; Suomen valtiokalenteri 1979; Väänänen 1986, 29; Tuomiokuntien kanslioiden toimitilat ja käräjähuoneistot, No 9/Es/15.6.1978.
[2] Virastotilaselvitys 1973, Rakennushallitus 3.7.1973, RakH III Ma:4; Rakennushallinnon kertomukset 1970–1979; Virastotilatyöryhmän pöytäkirjat 16.1.1973 alkaen ja Tilanhallinnan koordinointiryhmän pöytäkirjat 13.5.1977 alkaen, RakH III Mb:1, KA; Kujala 1986, 80; Savolainen 1996b, 698.
[3] Rakennushallinnon kertomukset 1971–1980; Kujala 1986, 80–81; Metsola 1986, 15; Hämäläinen 1986, 19–21; Valtion talonrakennushankkeiden perustamis- ja esisuunnittelua koskevat ohjeet, liite 2, 1974; Kinnunen 1974, 57–59.
[4] Toimistohuoneet valtion talonrakennushankkeissa, N:o 1/Es/15.1.1975; Tuomiokuntien kanslioiden toimitilat ja käräjähuoneistot, No 9/Es/15.6.1978; Rakennushallinnon kertomukset 1971, 1975–77; Kujala 1986, 81; Vuorinen 2005, 128–131.
[5] Rakennushallinnon kertomukset 1971–1979; Rakennushallituksen rakentamistoimen resurssiraportti 3/75; RakH III Mb:1, KA. KVR-menettelyistä pidetty keskustelutilaisuus 14.11.1977 Katajanokan Kasinolla – Alustukset ja ryhmätöiden tulokset, RakH III Ma:10, KA; Kujala 1986, 80.
[6] Rakennushallinnon kertomukset 1977–79; Hämäläinen 1986, 20–21; Kujala 1986, 81.