
1960-luvun virastotalo
Markus Manninen
Hyvinvointivaltion kehittäminen vauhdittui 1960-luvulla ja uusia virastoja perustettiin. Valtion virastotaloja suunniteltiin paljon, mutta niiden toteuttaminen takkuili. Virastorakentaminen vaati koordinointia, mm. kiireellisyysjärjestyksen laatimista. Arkkitehtisuunnittelussa ryhdyttiin minimoimaan rakennuskustannuksia.
”Olimme varmoja syksyllä 1963, että kuntaan saadaan virastotalo. […] Piirustukset olivat valmiit. Tarkoitusta varten oli luovutettu arvokkaalla paikalla sijaitseva tontti taajaman keskellä kunnantalon vieressä, mutta virastotalon rakentaminen siirtyi yllättäen. Milloin talo saadaan Noormarkkuun, on edelleenkin täysin hämärän peitossa ja olemme enemmän kuin vain närkästyneitä, että Noormarkun kuntaan ei tätä taloa ole ryhdytty rakentamaan. Nyt Noormarkun kunta kuuluu valtion virastotalokomitean laatiman taulukon mukaan toiseen kiireellisyysryhmään, jossa on mukana kolmattakymmentä kuntaa maassamme.” Noormarkun kunnansihteeri Veikko Kohtamäki, ”Satakunnassa kaivataan valtion virastotaloja”, Helsingin Sanomat 13.2.1968.
Hyvinvointivaltiota rakentamassa - ammattikasvatushallitus, asuntohallitus, sosiaalihallitus
Taloudellinen tilanne parani 1960-luvulla ja hyvinvointivaltion sosiaaliturvaa ja julkisia palveluja kehitettiin. Samaa tahtia kehittyi virastolaitos. Ammattikasvatushallitus perustettiin 1965 vastaamaan ammatillisen opetuksen suunnittelusta ja valvonnasta. Asuntohallitus perustettiin suunnittelemaan valtion tukemaa asuntotuotantoa 1966. Tätä seurasi sosiaali- ja terveysministeriö vuonna 1968, jonka alainen Sosiaalihallitus ryhtyi valvomaan mm. lasten- ja vammaishuoltoa sosiaalihuollon piiritarkastajien välityksellä.

Uusien ministeriöiden ja virastojen perustaminen kasvatti valtion virkamiesten määrää. Vanhatkin virastot kasvoivat: pätevän virastopäällikön kuului laajentaa virastonsa toimintaa ja perustaa uusia toimistoja ja osastoja.
Hallinnon ja virkamiehistön kasvu keskittyi erityisesti väliportaan hallintoon ja valtion paikallishallintoon. Vuonna 1960 perustetut Pohjois-Karjalan ja Keski-Suomen läänit tarvitsivat uudet virastot hallintokaupunkeihin Joensuuhun ja Jyväskylään.[1]
Vain kiireellisimmät suunnitellaan – kokonaisrakennusohjelma määrittelee järjestyksen
Valtion rakennuksia oli 1960-luvun alussa suunnitteilla paljon: 1962 oli 70 keskeneräistä virasto- ja postitalohanketta. Vain 3–5 virastotaloa vuodessa sai rahoituksen. Turhaa hankesuunnittelua haluttiin rajoittaa. Vuosien 1963 ja 1965 välillä ei aloitettu enää yhtään uutta virastotalosuunnitelmaa. Tätä ennen aloitetuista virastotalohankkeista 15 keskeytettiin vuoteen 1964 mennessä. Niistä useimpia ei toteutettu myöhemminkään.
Rakennustöille määriteltiin kiireellisyysjärjestys valtion virastotalojen kokonaisrakennusohjelmalla. Eri paikkakuntien virastotalohankkeet asetettiin järjestykseen niiden tarpeiden ja taloudellisten edellytysten mukaan. Tästä lähin suunniteltiin ainoastaan kiireellisyysjärjestyksen kärkisijoilla olleita virastotaloja.
Valtion rakentaminen kääntyi nousuun 1966. Rakennuksia valmistui paljon edellisvuosia enemmän. Suurin osa pitkään, aina 1950-luvulta lähtien suunnitteilla olleista virastotaloista alkoi 1968 olla rakenteilla tai valmiina.[2]

Virastosuunnittelun teknistaloudelliset kriteerit: kustannusten ja tilojen minimointi, muunneltavuus, laajennettavuus
Vain noin neljännes kaikista valtion rakennusten suunnitelmista laadittiin Rakennushallituksen suunnitteluosastossa 1960-luvun alussa. Virastotalojen suunnittelu oli poikkeus: kaikki vuonna 1961 aloitetut kymmenen virastotalohanketta olivat suunnitteluosaston käsialaa – niistä tosin vain neljä toteutui. Rakennushallituksessa laadittiin myös kaikki 1960-luvun lopun, vuosien 1963–65 keskeytyksen jälkeiset kuusi virastotalosuunnitelmaa.
Virastorakentamisessa ryhdyttiin 1960-luvun aikana painottamaan entistä enemmän nk. teknistaloudellisia seikkoja eli rakennuskustannuksien minimointia. Huonetilaohjelman tiukasta noudattamisesta, turhien tilojen minimoinnista, muunneltavuudesta ja laajennettavuudesta tuli tärkeimpiä suunnittelukriteerejä. Kantavan rungon ja kevyiden väliseinien tuli sallia vaihtuvien käyttötarkoitusten tuomat muutokset pohjakaavassa.
Rakennushallitus piti yllä luetteloa yleisesti käytössä olleista ja rakennusalan eri järjestöjen laatimista normeista ja kehitti niitä edelleen. Tällaisia olivat esimerkiksi betonielementtitekniikan normit.[3]
Monimutkaisuutta vältetään
Virastotalojen ja muiden valtion rakennusten suunnitelmia valvoi nk. lisätty rakennushallitus. Se tarkasti ulkopuolisten arkkitehtien laatimat virastotalojen suunnitelmat ensin luonnos- ja sitten pääpiirustusvaiheessa ja huomautti massoittelun ja julkisivujen liiasta monimutkaisuudesta.
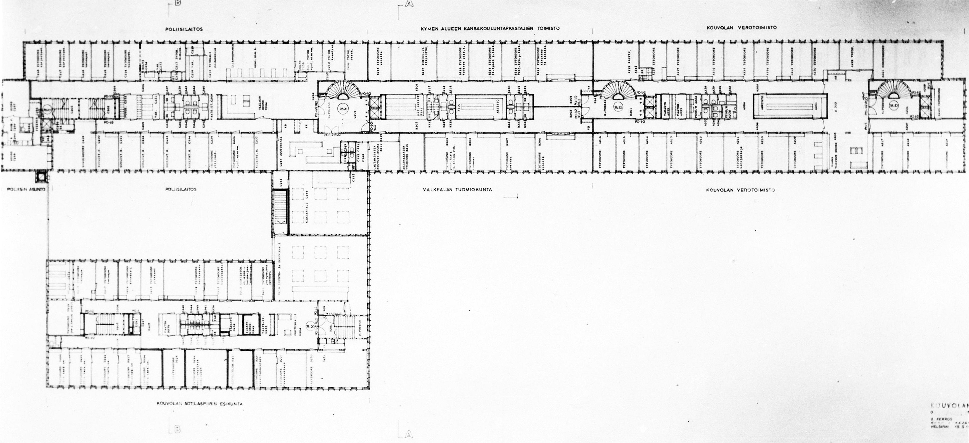
1960-luvun virastotalot ovat arkkitehtuuriltaan yksinkertaisen kuutiomaisia. Tyypillisiä ovat puhtaaksi muuratut tiili- tai kalkkihiekkatiilipinnat, levyverhoukset ja yhtenäiset ikkunanauhat. Tasakatot tai pulpettikatot yleistyivät, samoin suuret runkosyvyydet.

Pohjakaavojen perustyypiksi vakiintui kaksoiskäytäväratkaisu. Pääosassa olivat pienehköt työhuoneet, joiden huonesyvyys ei saanut ylittää viittä metriä. Kahden käytävän rajaamalle alueelle rungon keskelle sijoitettiin mm. kaikki aputilat, arkistot ja wc-tilat.[4]
Laatuluokituksella tavoitellaan tasalaatua
Yksityiskohtaiset huoneselitykset lisäsivät arkkitehtisuunnittelun järjestelmällisyyttä 1960-luvulla. Rakenne- ja LVIS-suunnittelun asiakirjojen tarkkuutta lisättiin. Laatuluokitus oli yksi tärkeimmistä suunnittelun ohjauksen ja rakennuskustannusten säätelykeinoista Rakennushallituksessa. Se vahvistettiin 1963. Neljän laatuluokan avulla määriteltiin kustannustaso ennen arkkitehtisuunnittelun alkamista.
Virastotaloista suurin osa kuului kolmanteen laatuluokasta, jossa tuli käyttää tavanomaisia rakenteita ja taloteknisiä laitteita. Suunnittelussa ja materiaalien valinnassa tuli ottaa huomioon teknillisen asiallisuuden ohella ”viihtyisyyden vaatimukset”.
Laatuluokan määrittely vaikutti suunnittelun lopputulokseen ja rakennuskustannuksiin vähemmän kuin arkkitehdin taitavuus. Hyvä suunnittelu johti alemmassa laatuluokassa tasokkaampaan lopputulokseen kuin huonosti suunniteltu ylemmän laatuluokan rakennus.[5]
Kirjoittaja
Markus Manninen, arkkitehti SAFA. Artikkeli perustuu tekijän tutkimukseen Valtion virastotalot 1809-1995.
Artikkeli on julkaistu 2020.
Lähteet
Arkistot
KA Kansallisarkisto, Helsinki
- Rakennushallituksen arkisto III, RakH III
- Rakennushallitus: Valtion ja kirkon rakennusten kuvat n. 1880–1990, kokoelma
Painetut lähteet
Valtion rakennushallinto, Rakennushallituksen kertomus, vuosilta 1945–1970. Helsinki: Suomen virallinen tilasto 1947–1971.
Valtion talonrakennus- ja kiinteistöhallinto, Rakennushallinnon kertomus, vuosilta 1971–1981. Rakennushallitus 1972–1982.
Kirjallisuus
Hämäläinen, Toimi 1986. Suunnittelun kehitys. Teoksessa Rakennushallinto 1961–1986, rakennushallinnon 175-vuotisjuhlakirja. Toim. Kai Saurama, Eeva Pirkkalainen & Pentti Auersalo. Helsinki: Rakennushallitus.
Kinnunen, Pirkko 1974. Valtion uudisrakennusten laatuluokituksesta. Diplomityö, Oulun yliopiston teknillisen tiedekunnan rakennusinsinööriosastolla.
Kujala, Tuire 1986. Virastorakennukset. Teoksessa Rakennushallinto 1961–1986, rakennushallinnon 175-vuotisjuhlakirja. Toim. Kai Saurama, Eeva Pirkkalainen & Pentti Auersalo. Helsinki: Rakennushallitus.
Mikkelin virastotalokortteli, rakennushistoriaselvitys. Arkkitehtitoimisto Hannu Puurunen Oy, 2011.
Nikkilä, Juhani 1986. Hallinnon rakennettu kuva – ajatuksia julkisen hallinnon ja julkisen rakentamisen muutoksista. Teoksessa Rakennushallitus 1911–1986 175 vuotta: näyttely 4.9.–12.10.1986 Suomen rakennustaiteen museo. Toim. Juhani Pallasmaa. Helsinki: Suomen rakennustaiteen museo.
Numminen, Jaakko 1999. Valtioneuvosto. Teoksessa Valta ja byrokratia Suomessa 1809–1998. Toim. Raimo Savolainen ja Jorma Selovuori. Helsinki: Edita.
Pajunen, Alpo K. 1972. Tilantarvekuvaus julkisessa rakennushankkeessa. Diplomityö. Rakennushallitus, Teknistaloudellinen ryhmä 1972.
Savolainen, Raimo 1996a. Keskusvirastolinnakkeista virastoarmeijaksi: senaatin ja valtioneuvoston alainen keskushallinto Suomessa 1809-1995. Helsinki: Edita.
Savolainen, Raimo 1996b. Keskusvirastot, virastot ja laitokset 1917–1996. Teoksessa Suomen keskushallinnon historia 1809–1996. Toim. Raimo Savolainen et al. Helsinki: Edita.
Savolainen, Raimo 1999. Suomalainen virastolaitos. Teoksessa Valta ja byrokratia Suomessa 1809–1998. Toim. Raimo Savolainen ja Jorma Selovuori. Helsinki: Edita.
Sipponen, Kauko 1996. Julkinen valta ja yksilö. Teoksessa Suomen keskushallinnon historia 1809–1996. Toim. Raimo Savolainen et al. Helsinki: Edita.
Väänänen, J.K. 1986. Rakennushallinnon organisaation kehittämisestä 1962–1986. Teoksessa Rakennushallinto 1961–1986, rakennushallinnon 175-vuotisjuhlakirja. Toim. Kai Saurama, Eeva Pirkkalainen & Pentti Auersalo. Helsinki: Rakennushallitus.
Ylikangas, Heikki 1996. Suomen tasavallan virkamieseliitti. Teoksessa Suomen keskushallinnon historia 1809–1996. Toim. Raimo Savolainen et al. Helsinki: Edita.
Viitteet
[1] Nikkilä 1986, 19; Savolainen 1996a, 222–223, 254–255; Savolainen 1996b, 667–670; Savolainen 1999, 116–117; Sipponen 1996, 763–764, 772; Ylikangas 1996, 809, 813.
[2] Kujala 1986, 80; Pajunen 1972, 37–39; Rakennushallituksen kertomukset 1960–1969; ”Rakennushallituksella tuloksellinen juhlavuosi”, HS 31.1.1962; Virastotilaselvitys 1973, Rakennushallitus 3.7.1973, RakH III Ma:4, KA.
[3] Rakennushallituksen kertomukset 1960–1969; ”Viisitoista virastotaloa tekeillä”, HS 31.5.1967.
[4] Hämäläinen 1986, 20; Väänänen 1986, 27; Mikkelin virastotalokortteli, 18; Rakennushallituksen pöytäkirjat 1959 RakH III Ca:4, KA ja pöytäkirjat 1963, RakH III Ca:8, KA.
[5] Kinnunen 1974, 14, 55–57; Kujala 1986, 81; Pajunen 1972, 38–39.