Gå direkt till innehållet
Yksi lapsi keinuu vauhdikkaasti rengaskeinussa, toinen kiipeää kiipeilytelineellä, kaksi muuta juoksee, aikuinen katsoo taustalla. Leikkikenttä on reunustettu pensailla, kentän pohja on hiekkaa ja leikkivälineet pääasiassa puisia.
Lasten leikkipaikka Niinikankaalla Keravalla 1970–80-luvuilla. Timo Laaksonen / Keravan museopalvelut, kuntasuunnittelutoimiston kokoelma. CC BY-NC-ND 4.0.

Hiekkakentistä leikkipuistoihin – rakennetut leikin paikat 1940–1980-lukujen Suomessa

Veera Moll

Leikkikenttien rakentaminen aloitettiin Suomessa 1800-luvun lopulla. Varhaiset leikkikentät olivat pelkistettyjä, mutta leikkivälineet lisääntyivät 1900-luvun kuluessa. Vuosisadan puolenvälin jälkeen kenttien määrä alkoi kasvaa ja niiden toimintaa kehitettiin. Leikkipaikoista ja niihin liittyvistä koko- ja etäisyyssuosituksista tuli suunnittelukeskustelujen toistuvia teemoja. 1970-luvulla luotiin ensimmäiset valtakunnalliset leikkipaikkojen määrää ja laatua koskevat rakennussuositukset. Vaikka leikille omistetut puistot ovat muuttuneen yli satavuotisen historiansa aikana monin tavoin, on ajatus kaupungin lapsille ja leikille omistetusta tilasta säilynyt ennallaan. Tässä tekstissä leikkiympäristöjen kehitystä tarkastellaan etenkin niitä koskevien suunnitteluohjeiden ja suositusten valossa.

Ensimmäiset leikkikentät

Leikkikenttien juuret ovat 1800-luvun Saksassa, Friedrich Fröbelin lastentarhojen ulkoleikkitiloissa ja Yhdysvaltojen suurkaupungeissa.[1] Myös saksalainen Josef Stübben ja englantilainen Raymond Unwin kirjoittivat teoksissaan Städtebau (1890) ja Town Planning in Practice (1909) leikki- ja pelikenttien rakentamisesta kaupunkilaislapsia ja -nuorisoa varten.[2] Kaupunkien kasvaessa aiempaa suurempien lapsimäärien oli löydettävä kaupungista paikat olemiselle, liikkumiselle ja leikille. Leikkikenttien tarve liittyi myös muuttuvaan lapsuuskäsitykseen, jonka myötä lapsiin kohdistuvan suojelun, kasvatuksen ja valvonnan painoarvo kasvoi.[3] Ensimmäiset leikkikentät perustettiin Suomeen 1800-luvun lopulla.[4]

Suomessa leikkikenttäasiaa edistivät Suomen Voimistelunopettajaliiton edustajat. He moittivat Helsingin leikkikenttiä liian pieniksi, riittämättömiksi ja huonosti sijoitelluiksi.[5] Helsingin kaupunginvaltuustolle vuonna 1913 toimittamassaan kirjelmässä liiton edustajat vaativat leikkikenttiä kaupungin eri osiin ja henkilökuntaa ohjaamaan toimintaa. Kaupungin asemakaava-arkkitehti Bertel Jung asettui puolustamaan voimisteluopettajien ehdotusta ja laati leikkikenttäkysymyksestä seikkaperäisen muistion[6]. Jung loi muistiossaan katsauksen Yhdysvaltojen, Englannin, Itävallan, Saksan ja Tanskan suuriin kaupunkeihin ja kuvailee näiden leikkipuistoja. Myös naisvoimistelun ja partiotoiminnan pioneeri Anni Collan kirjoitti aktiivisesti etenkin yhdysvaltalaisista leikkikentistä ja esitti leikkikenttien etäisyyksiä ja mitoitusta koskevia suosituksia.[7]

Ensimmäiset ohjatut leikkikentät perustettiin Helsinkiin ja Tampereelle vuonna 1914.[8] Liikunnan ja ohjatun leikin avulla uskottiin pystyttävän tarjoamaan lapsille katuleikkejä soveliaampaa tekemistä ja raitista ilmaa sekä kohottamaan heidän kuntoaan. Suomessa leikkikentistä tuli myös yksi keino kohentaa lasten elinoloja ja samalla ratkoa kiristyneitä luokkaristiriitoja.[9] Leikkikenttä sanana kuvaa 1900-luvun alun toteutusten ulkomuotoa. Leikkipaikat olivat tyypillisesti avoimia, hiekkapäällysteisiä kenttiä, joissa oli toisinaan muutamia leikkivälineitä, kuten hiekkalaatikko pienimmille lapsille.[10] Seuraavina vuosikymmeninä kahluualtaat, leikkivälineet ja kentille rakennetut sisätilat yleistyivät.

Kuva: 02_Brahenkenttä_1930_VM.jpg

Brahen kentällä oli runsaasti tilaa lasten leikille ja urheilulle 1930-luvulla. Aarne Pietinen / Helsingin kaupunginmuseo. CC BY 4.0

Leikki mainittiin ensimmäisessä, vuonna 1931 säädetyssä asemakaavalaissa. Sen nojalla kaupungin eri osiin tuli järjestää riittävästi leikki- ja urheilupaikkoja. Samalla tuli varmistaa, ettei jo olemassa olevia leikin ja liikunnan tiloja supisteta.[11] Näin leikille omistetut tilat tulivat osaksi vähitellen vakiintuvaa funktionalistista toimintojen jaottelua. Siinä leikin ja urheilun paikat tulivat asumisen, kulutuksen, liikenteen ja vapaa-ajan alueiden rinnalle osaksi kaupunkirakennetta.[12]

Ongelmana kaupunki, ratkaisuna lähiö

Toisen maailmansodan jälkeiset kaupungit kärsivät vakavasta asuntopulasta. Ahtaiden asumisolojen vuoksi lasten oli usein etsittävä leikin paikat kotiovien ulkopuolelta.[13] Kaduilla, pihoilla ja leikkikentillä oli paljon lapsia, jotka leikkivät usein keskenään. Niukkuuden ja asumisahtauden lisäksi ajanjaksoa leimasi lasten suuri määrä. Suomessa suuret ikäluokat syntyivät 1945–1954 ja viettivät lapsuuttaan 1950–1960-luvuilla.[14]

Kuva: 03_Sisäpiha_1950_VM.jpg

Lapset leikkimässä sisäpihalla 1950-luvun Helsingissä, Nasretdin Räshid / Museovirasto. CC BY 4.0

Ajan asuntoreformistien puheenvuoroissa ja aikalaiskeskusteluissa kaupungin kadut ja varjoisat takapihat nähtiin lapsille sopimattomana kasvuympäristönä.[15] Voimakkaasti kasvava moottoriliikenne teki kaupunkiympäristöstä myös lapsille entistä vaarallisemman.

Ongelman ratkaisuksi eivät riittäneet enää vain leikki- ja urheilukentät, vaan tavoitteena oli muovata koko elinympäristö lapsiperheille soveliaaksi. Kansainvälisten esimerkkien vanavedessä huomio käännettiin jo rakennettujen kaupunkikeskustojen ulkopuolelle. 1950-luvulta lähtien rakennettujen asumalähiöiden luvattiin tarjoavan lapsiperheiden tarvitsemaa asumisväljyyttä, luontoympäristöjä ja suojaa kasvavalta liikenteeltä. Asumalähiöiden ympäröimien metsien, kallioiden ja rantojen katsottiin tarjoavan lapsille vanhoja kaupunkikortteleita terveellisempiä ja turvallisempia leikkiympäristöjä.

Otto I. Meurman kirjoitti Asemakaavaopissaan (1947) rakentamattomien tonttien lapsille tarjoamista monista leikkimahdollisuuksista.[16] Näiden lisäksi Meurman kirjoitti myös rakennettujen leikkiympäristöjen tarpeesta. Hänen mukaansa 1–5-vuotiaat lapset tarvitsivat leikkipaikan 150 metrin päähän korkeasta kerrostalosta, 200 metrin päähän matalasta ja 350 metrin päähän omakotitaloalueesta. Näihin leikkipaikkoihin hän suositteli perinteisiä hiekkaläjiä, kiikkuja ja muuta leikkikalustoa. Lisäksi pienten lasten hiekkaläjiä tuli hänen mukaansa olla kerrostaloalueella mieluiten joka korttelissa. Kouluikäisille Meurman suositteli pallo- ja urheilukenttiä niin ikään asumisen yhteyteen.

Kuva: 04_Tapiola_1950_VM.jpg

Tapiolassa ja monissa muissa suomalaisissa lähiöissä rakennetut ja rakentamattomat leikin paikat limittyivät. Tapiola, As Oy Karhunpojat, 1957. Valokuvaamo Havas / Espoon kaupunginmuseo, Asuntosäätiön kokoelma. CC BY-ND 4.0.

Leikkikentät lisääntyvät 1950- ja 1960-luvuilla

Leikkikentät yleistyivät 1950- ja 1960-luvuilla koko maassa. Erityisen ahkerasti niitä rakennettiin siellä missä rakennettiin muutenkin eli uusissa asumalähiöissä. 1950-luvun leikkikenttien ympäristö ja välineistö vaihteli. Toisinaan kentällä oli menneiden vuosikymmenten tapaan vain hiekkalaatikko ja keinut. Osalla kentistä oli runsaasti leikkivälineitä, kuten leikkikaari, karuselli, keinuja ja etenkin kesäisin täytettävä kahluuallas. Ohjatuilla leikkikentillä lapset pääsivät leikkimään usein myös kärryillä, nukeilla, autoilla ja muilla irtovälineillä.

Kuva: 05_Uumajanpuisto_1950_VM.jpg

Uumajanpuisto Oulun Karjasillalla n. 1950–60-luvuilla. Pohjois-Pohjanmaan museo, Uuno Laukan kokoelma.

Vuoden 1958 rakennuslain mukaisesti puistoja ja muita virkistysalueita tuli järjestää riittävästi kaupungin eri osiin eikä niihin varattua alaa tullut ilman erityistä syytä supistaa.[17] Rakennuslain epätarkka lasten leikkipaikkojen määrittely, erityisesti suhteessa huolellisesti huomioituihin parkkipaikkatarpeisiin, herätti seuraavilla vuosikymmenillä kritiikkiä.

Kuva: 06_Saukonpuisto_1950_VM.jpg

Lapsia kiipeilemässä Tampereen Saukonpuistoon tuodulla lentokoneella, 1952, Vapriikin kuva-arkisto. CC BY 4.0.

Työtä leikkikenttien eteen tehtiin kaupungeissa tiettävästi ahkerasti. Esimerkiksi Helsingissä jo 1940-luvulla perustetun leikkikenttäkomitean suppea mietintö valmistui 1950. Leikkikentät luokiteltiin mietinnössä kolmeen: [18]

  1. Ensimmäisen luokan leikkikentän tuli olla ainakin hehtaarin laajuinen alue, josta noin kolmannes olisi tasoitettava kentäksi juoksu- ja palloleikkejä varten varttuneemmille lapsille ja osa taas eristettävä ja varustettava 0–3-vuotiaille lapsille. Kaitsijalle tuli olla oma rakennus, lapsille lämmittelyhuone ja irtoleikkivälineille säilytyshuone. Leikkikentille suositeltiin rakentamaan kahluulammikko, rakentelualue pojille ja ”kotipiiri” tytöille, juomapostit ja käymälä. Kiinteistä leikkivälineistä mainittiin mm. keinut, karusellit ja liukuradat. Talvella leikkikentille suositeltiin luistinradan jäädyttämistä, hiihtolatua ja kelkkamäkeä.
  2. Toisen luokan leikkikentän tuli olla vähintään 1 500 m², josta 600 m² tuli olla tasaista juoksualuetta. Epätasaisuutta kannustettiin luomaan ajamalla jätemaata pihalle, jolloin lapsilla olisi kiipeilypaikka ja talvisin kelkkamäki. Leikkivälineiksi suositeltiin vähintään kahta erilaista keinua, potkulautarataa, alustaa ruutuhyppelylle sekä hiekkakehiötä.
  3. Kolmannen luokan leikkipaikan tuli olla edellisen kaltainen, mutta pienempi. Leikkivälineenä tuli olla vähintään keinu, hiekkalaatikko ja kiipeilyteline aivan pieniä varten. Puita pidettiin leikkipuistosuunnittelussa tärkeänä. Jos puita ei kasvanut alueella, tuli niitä istuttaa leikkialueen keskelle ja sen reunamille.

Myös Suomen muissa kaupungeissa leikkikenttien kehittäminen lisääntyi. 1960-luku näyttäytyy ainakin leikkiympäristöjä koskevien raporttien valossa vielä hiljaisena, kun taas 1970-luku oli aktiivista leikkikenttien kehittämisen aikaa. Esimerkiksi Oulun kaupunginhallitus asetti lokakuussa 1971 moniammatillisen leikkikettätoimikunnan selvittämään kaupungin leikkiympäristöjen tilaa sekä laatimaan toimenpidesuositusta seuraavalle kymmenvuotiskaudelle. Jyväskylän kaupunginhallitus asetti vastaavan toimikunnan seuraavana vuonna. Kaupungit jakoivat huolen leikkikenttien liian vähäisestä määrästä, yksipuolisuudesta ja huonosta saavutettavuudesta.[19]

Kuva: 07_P-Haaga_1969-75_VM.jpg

Lapsia Pohjois-Haagan leikkikentällä kuvattuna 1969–75. Teuvo Kanerva / Museovirasto. CC BY 4.0

Suomalaisissa leikkikenttien rakennusohjeissa viitataan ahkerasti ruotsalaisiin suunnitteluohjeisiin. Ruotsalaisarkkitehti Hans Wohlinin suosituksilla oli Suomessa paljon painoarvoa. Wohlin esitti, että lähimmän leikkipaikan tuli sijaita 50 metrin, korttelipihan leikkialueen enimmillään 150 metrin ja ohjatun leikkipuiston noin 400 metrin päässä lapsen kotiovelta.[20] Hän esitti myös suositukset siitä, minkä kokoinen kunkin leikkipaikan tuli olla ja kuinka suurta lapsi- ja perhemäärää kunkin leikkipaikan tuli palvella. Samankaltaiset suositukset esitettiin vuoden 1964 God Bostad -ohjekirjassa[21] sekä Mannerheimin lastensuojeluliiton Leikkipaikkasuosituksessa.[22] Liitto osallistui aktiivisesti keskusteluun lasten kaupunkiympäristöstä etenkin 1970-luvulla ja halusi vaikuttaa lapsiystävällisemmän lainsäädännön muotoutumiseen sekä parantaa lasten elinympäristöjä.[23]

Kohti kansallisia leikkipaikkanormeja – leikkikenttien 1970-luku

Kuva: 08_Vantaa_1971_VM.jpg

Leikkikenttä Vantaalla, 1971. Vantaan kaupunginmuseo, CC BY 4.0.

Kun vuonna 1945 miltei 70 prosenttia suomalaisista asui maaseudulla, 1980-luvulle tultaessa tilanne oli kääntynyt päälaelleen ja melkein 60 prosenttia asui kaupungeissa. Kerrostaloasunto korvasi nopeasti maaseudun puutalon suomalaisten tyypillisimpänä kotina.[24] Lähiöiden myötä asumisen painopiste muuttui myös kaupunkien sisällä.

Vuosi 1973 oli lasten ympäristöjen kannalta tärkeä, sillä rakennusasetukseen lisättiin maininta riittävistä alueista leikkipaikoille ja oleskelulle.[25] Samana vuonna voimaan tullut päivähoitolaki määritteli sisällä ja ulkona tapahtuvan lasten leikkitoiminnan järjestämisen ja valvomisen kunnan tai kaupungin päivähoitotoimen tehtäväksi.[26] Tämä tarkoitti uudenlaista panostamista myös ohjattuihin leikkikenttiin, joita rakennettiin ahkerasti 1970–80-luvuilla. Ohjattu leikkikenttätoiminta oli tärkeä päivähoidon tarjoaja aikana, jolloin päiväkotiverkko oli vasta rakentumassa.

1970-luvun kaupunkiympäristöissä lasten leikkimisen ja liikkumisen näkökulmasta suurin uhka kaupungeissa oli ajoneuvoliikenteen ja liikenneonnettomuuksien voimakas kasvu. Tämä huomioitiin myös sisäministeriön Leikkialueiden suunnittelu -kaavoitusohjeissa (1974):

”Lasten leikki- ja liikkumismahdollisuudet ovat kaupungistumisen, kaupunkirakenteen hajoamisen ja ajoneuvoliikenteen kasvun myötä huomattavasti heikentyneet. Rakennuslainsäädännössä olevia yksityiskohtaisia autopaikkamääräyksiä vastaavien leikkipaikkanormien puuttuminen on osaltaan johtanut autopaikkojen merkityksen painottumiseen leikkipaikkojen kustannuksella.”[27]

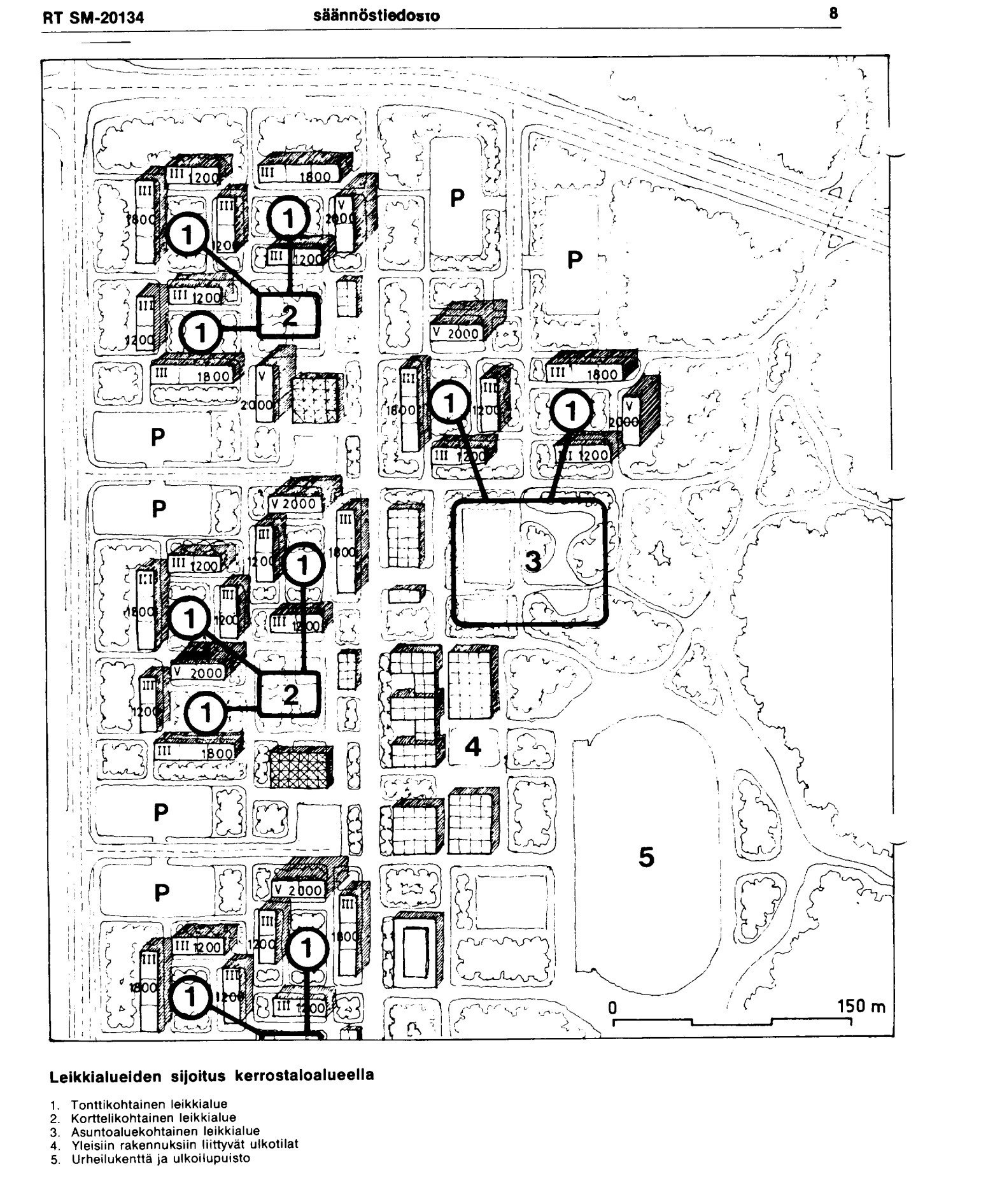
Kuva: 09_Rakennustieto_1978_VM.jpg

Vuoden 1978 Rakennustietokortti, joka perustui sisäministeriön leikkipaikkasuositukseen vuodelta 1974. RT SM-20134, 1978 copyright Rakennussäätiö RTS 2024.

Ohjeissa esitettiin suositukset tontti-, kortteli- ja asuinaluekohtaisten leikkialueiden järjestämisestä edellä mainittujen ruotsalaisohjeiden tapaan. Kolmen erityyppisen leikkipaikan taustalla oli ajatus eri-ikäisten lasten kyvyistä liikkua ympäristössään. Leikkialueiden koon tuli vastata lasten leikkien vaatimaa tilaa ja alueiden varusteiden eri-ikäisten lasten leikkimistarpeita. Leikkialueiden tuli myös täyttää terveellisyyden ja turvallisuuden vaatimukset.

Käsitys lasten leikistä oli ajan suunnitteluohjeissa monipuolista eikä leikkitilan tarpeen katsottu rajoittuvan vain rakennettuihin leikkiympäristöihin. Tietoa lasten tarpeista oli runsaasti ja halu edistää lasten leikkiasiaa selvä. Samalla voimakkaasti kasvanut moottoriliikenne pakotti rajoittamaan ja rajaamaan lasten liikkumista ja leikkiä aiempaa enemmän.

1970-luvun leikkikentät eli asuinaluekohtaiset leikkikentät olivat tyypillisesti laajoja puistoalueita, joissa maasto oli tasaista tai lievästi kumpuilevaa ja aluetta reunusti kasvillisuus. Leikkikentällä oli hiekkalaatikko, keinu ja palloilualue. Lisäksi monella kentällä oli kahluuallas, karuselli ja liukumäki. Kiinteiden välineiden lisäksi ohjatuilla kentillä oli lainattavia leikkivälineitä ja pelejä, joita säilytettiin huolto- ja välinerakennuksissa.[28]

Tavoitteena lapsille hyvä asuinympäristö – 1980-luvun leikkipuistot

Tarkkaa tietoa siitä miten hyvin tai nopeasti 1970-luvun leikkipaikkaohjeita noudatettiin ei ole saatavilla. Suomalaisia asuntoalueita 1960–75. Asuntoalueiden ympäristön laatu verrattuna asuinympäristön suunnitteluperiaate -raportti (1977) maalaa tilanteesta melko huolestuneen kuvan ja osoittaa, etteivät edes minimisuositukset leikkipaikkojen määrien ja laadun osalta usein toteutuneet ainakaan aikataulussa. Esimerkiksi tonttikohtaiset leikkipaikat olivat usein välineistön, maaston ja kasvillisuuden osalta yksitoikkoisia ja virikkeettömiä. Myös leikkipaikkojen turvallisessa saavutettavuudessa oli raportin mukaan parannettavaa. Lisäksi vain osaan lähipuistoista oli toteutettu leikkikenttä.[29] Samalla monista leikkiympäristöjä kritisoitiin keskenään liian samankaltaisina.[30]

1980-luvun lasten ympäristöjä koskevissa keskusteluissa näkyy pyrkimys irrottautua edellisten vuosikymmenten liian mekanistiseksi katsotusta lähestymisestä leikkiympäristöjen suunnitteluun.[31] Kaupungit julkaisivat kunnianhimoisia leikkiympäristöjen kehittämisohjelmia.[32] Myös kasvavan leikkivälineteollisuuden uudet välineet näkyivät lisääntyvästi puistojen suunnittelussa ja rakennetussa ympäristössä. Helsingissä päätettiin luopua leikkikenttä-nimityksestä ja korvata se puistomaista ympäristöä paremmin kuvaavalla leikkipuistolla. Lisäksi leikkipuistoja suunniteltiin ja kehitettiin entistä tiiviimmässä yhteistyössä kaupungin eri toimialojen kanssa. Leikkiympäristön ohella pidettiin tärkeänä kehittää laajemmin asuinympäristöjen lapsiystävällisyyttä. 1980-luku näyttäytyykin monessa mielessä leikkipuistojen kultakautena. Sitä se todennäköisesti olikin ainakin laman tuomien vaikeuksien täyttämään 1990-lukuun verrattuna.

Kuva: 10_Puotinharju_1982_VM.jpg

Helsingin Puotinharjun leikkipuisto 1983. Ympärivuotisille, ohjatuille leikkikentille rakennettiin 1950-luvulta alkaen usein myös sisätilat. Alkuun tilat toimivat enimmäkseen välinevarastona, sittemmin ne suunniteltiin ja rakennettiin erilaisia sisällä järjestettävää toimintaa varten. Kari Hakli / Helsingin kaupunginmuseo CC BY 4.0.

”Lasten vuosisadaksi”[33] kutsutulla 1900-luvulla lasten asema koheni monella elämän osa-alueella. Lasten entistä tärkeämmästä yhteiskunnallisesta roolista kertovat myös kaupunkiin rakennetut, varta vasten lapsille osoitetut leikkipaikat. Niiden määrät kasvoivat ja suunnitteluun panostettiin lisääntyvästi. Aikuisten pyrkimykset ohjata lasten leikkiä erityisesti lapsille suunniteltuihin tiloihin kertoo paitsi halusta taata lapsille monipuolisia leikkiympäristöjä myös halusta hallita lasten tilankäyttöä.

Kirjoittaja

Veera Moll, väitöskirjatutkija, artikkeli perustuu tekijän väitöskirjatutkimukseen ”Lapset kaupunkisuunnittelukysymyksenä 1950–1970-lukujen Helsingissä”

Lähteet

Asetus rakennusasetuksen muuttamisesta 791/1973. Asetus rakennusasetuksen muuttamisesta 791/1973 - Säädökset alkuperäisinä - FINLEX ®

Alanen, Leena 2009. Johdatus lapsuudentutkimukseen. Teoksessa Lapsuus, lapsuuden Instituutiot ja lasten toiminta. Toim. Leena Alanen ja Kirsti Karila. Tampere: Vastapaino.

Asemakaavalaki 145/1931. HE 46/1930 II vp (edilex.fi).

Collan, Anni 1916: Leikkikenttätoiminnan järjestely. Valvoja 3/1916. 01.03.1916 Valvoja no 3 - Digitaaliset aineistot - Kansalliskirjasto

God Bostad i Dag Och i Morgon 1964. Stockholm: Kungliga Bostadsstyrelsen.

Jouhki, Essi 2023: Politics in Play: The Playground Movement as a Socio-Political Issue in Early Twentieth-Century Finland.” Paedagogica Historica 60:4. https://doi.org/10.1080/00309230.2022.2155481.

Jouhki, Essi ja Veera Moll 2023: ”Niukasti elävän perheen lapselle huvipuisto” – Leikkikentät lasten hyvinvoinnin rakentajina, noin 1950–1970.” Historiallinen Aikakauskirja, 122:4.

Jung, Bertel 1914. Helsingin kaupungin yleisten töiden hallitus, Bertel Jungin promemoria. Helsingin kaupunki. Helsingin kaupunginvaltuuston painetut asiakirjat 1914:2

Juntto, Anneli ja Anni Vilkko 2005. Monta kotia: suurten ikäluokkien asumishistoriat. Teoksessa Suuret Ikäluokat. Toim. Antti Karisto. Tampere: Vastapaino.

Katsavounidou, Garyfallia 2021. Child, play, and urban space: a historical overview and a holistic paradigm for child-centered urbanism. Journal of Urbanism: International Research on Placemaking and Urban Sustainability 16:4. https://www.tandfonline.com/doi/full/10.1080/17549175.2021.2005120#abstract.

Key, Ellen 1900. Barnets Århundrade. Tukholma: Albert Bonniers förlag. Saatavilla: https://archive.org/details/barnetsrhundrade01ellenkey/page/n7/mode/2up.

Kotioja, Eeva 2020. Hyvän lapsuuden rakentajat: Mannerheimin Lastensuojeluliitto 1920–2020. Helsinki: Kustannusosakeyhtiö Siltala, 2020.

Lapsen leikit ja asuinympäristö 1985. Asuntohallitus, teknillinen osasto, opasjulkaisu 7.

Leikin ympäristö. Lasten ulkoleikkimahdollisuudet Helsingissä. Leikkialueprojektin perusselvitys 1982. Helsinki: Helsingin kaupungin kaupunkisuunnitteluvirasto, Asemakaavaosasto, Liikennesuunnitteluosasto.

Leikkialueiden suunnittelu 1974. Helsinki: Sisäasiainministeriö.

Malinen, Antti 2014. Perheet ahtaalla: asuntopula ja siihen sopeutuminen toisen maailmansodan jälkeisessä Helsingissä 1944–1948. https://jyx.jyu.fi/handle/123456789/44416.

Mattinen, Maire 1977. Suomalaisia asuntoalueita 1960–75: Asuntoalueiden ympäristön laatu verrattuna Asuinympäristön Suunnitteluperiaate-kirjan tavoitteisiin. Helsinki: Sisäasiainministeriö.

Moll, Veera, ja Essi Jouhki 2021. Leikin Paikka: Rakennettujen Leikkiympäristöjen Kehitys 1970-Luvun Helsingissä. Yhdyskuntasuunnittelu 59:1. https://doi.org/10.33357/ys.99337.

Moll, Veera, ja Hanna Kuusi 2021. From City Streets to Suburban Woodlands: The Urban Planning Debate on Children’s Needs, and Childhood Reminiscences, of 1940s–1970s Helsinki. Urban History 48:1. https://doi.org/10.1017/S096392681900083X.

Periäinen, Tapio ja Mauri Upanne 1974 [1972]. Leikkipaikkasuositus. 3. painos. Helsinki: Mannerheimin lastensuojeluliitto.

Päivähoitolaki 1973. 36/1973. https://www.finlex.fi/fi/laki/alkup/1973/19730036

Rakennuslaki 1958. 370/1958. https://finlex.fi/fi/laki/alkup/1958/19580370.

Saarikangas, Kirsi 2002. Asunnon muodonmuutoksia. Puhtauden estetiikka ja sukupuoli modernissa arkkitehtuurissa. Helsinki: Suomalaisen Kirjallisuuden Seura.

Saarikangas, Kirsi, Veera Moll ja Matti Hannikainen 2023. Lived, Material and Planned Welfare: Mass-Produced Suburbanity in 1960s and 1970s Metropolitan Finland. Teoksessa Experiencing Society and the Lived Welfare State. Toim. Haapala, Pertti, Minna Harjula ja Heikki Kokko. Cham: Springer International Publishing, 2023.

Salmela, Ulla 2004. “Leikin ja urheilun tilat osana Viipurin kaupunkisuunnittelua.” Teoksessa Olympialaiset. Suomen urheiluhistoriallisen seuran vuosikirja. Jyväskylä: Atena kustannus. https://www.suhs.fi/wp-content/uploads/2017/05/Salmela-Ulla-Leikin-ja-urheilun-tilat-osana-Viipurin-kaupunkisuunnittelua-SUHS-vsk-2004-IK.pdf .

Viitteet

[1] Katsavounidou 2021, 436.

[2] Salmela 2004, 152.

[3] Alanen, 2009, 14.

[4] Helsingissä ensimmäiset leikkikentät sijoitettiin Kaisaniemen puistoon ja Kaivopuistoon vuonna 1899.

[5] Leikin Ympäristö 1981, 62.

[6] Eniten Jung keskittyi Chicagon leikkipuistoihin. Jung kuvaili mm. puiden ja kävelytien ympäröimää pallopelikenttää, joka toimi kylmällä ilmalla luistinratana. Lisäksi Jung mainitsi voimistelukojein varustetut ulkovoimistelukentät, toiset miehille ja pojille ja toiset naisille ja tytöille. Näitä ympäröivät pikajuoksuradat. Pienille lapsille oli Chicagon puistoissa varattu omaksi leikkipaikaksi nurmikko, jossa oli kahlaamiseen soveltuva matala puro ja uima-allas. Tämän ympärillä olivat tilat hiekka-, aurinko- ja ”ryöppykylpyjä” eli suihkuja varten. Jung kirjoitti myös karuselleista, mäenlaskuradoista, keinulaudoista, pienimpien lasten ”hiekkapihoista” ja koristelluista juomavesiputkista. Kiinnostavia ovat myös Jungin kuvailemat puistojen julkiset ”seurustelurakennukset”, jotka tekivät puiston käytön mahdolliseksi myös huonolla säällä. Ks. Jung 1914.

[7] Pienten lasten leikkialueen tuli sijaita enintään 400 metrin päässä kotiovelta eikä reitin kentälle tullut kulkea raitiotien yli. Pinta-alan tuli Collanin suosituksen mukaisesti olla 4 000m². 6–12-vuotiaiden leikkipaikan tuli sijaita enintään 800 metrin päässä ja olla kooltaan moninkertainen pienten lasten kenttään verrattuna. Lisäksi niille 12–17-vuotiaille, jotka eivät voineet saada kotoaan raitiotiemaksua, tuli tarjota kenttä enimmillään 1200 metrin päähän kotiovelta. Collan 1916.

[8] Jouhki 2023, 679.

[9] Jouhki 2023.

[10] Jouhki 2023, 675.

[11] Asemakaavalaki 145/1931.

[12] Salmela 2004, 150; Saarikangas 2002.

[13] Malinen 2014, 21; Moll ja Kuusi 2021, 138.

[14] Juntto ja Vilkko 2005.

[15] Moll ja Kuusi 2021.

[16] Meurman arvioi rakentamattomat tontit paremmiksi leikkipaikoiksi kuin kaupungin viranomaisten kunnostamat, ”usein liian laajat hiekkakentät, joihin ei kätkeydy mitään salaperäistä taikka mielikuvitusta kannustavaa”. Meurman kannusti katsomaan lasten virkistystarvetta heidän omilla silmillään ja suunnittelemaan sen mukaisesti. Meurman 1947, 354–55.

[17] Rakennuslaki 370/1958.

[18] Leikin Ympäristö 1982, 68.

[19] Jouhki ja Moll 2023, 361–362.

[20] Leikin Ympäristö 1982, 33.

[21] God Bostad i Dag Och i Morgon 1964, 47.

[22] Periäinen ja Upanne 1974[1972], 66–78; Moll ja Jouhki 2021, 18.

[23] Kotioja 2020, 236.

[24] Saarikangas, Moll ja Hannikainen 2023, 202–203.

[25] Asetus rakennusasetuksen muuttamisesta 1973; Leikin Ympäristö 1982, 34.

[26] Päivähoitolaki 1973/36.

[27] Leikkialueiden suunnittelu 1974, 5.

[28] Moll ja Jouhki 2021, 24–25.

[29] Suomalaisia asuntoalueita 1977, 10–13.

[30] Leikin Ympäristö 1982, 35; Jansson, Bucht ja Borelius 2016, 82.

[31] Lapsen leikit ja asuinympäristö 1985.

[32] Leikin Ympäristö 1982.

[33] Key 1900.

_Sivuston evästeet