
Meilahden tornisairaala – näkökulmia peruskorjaukseen
Sakari Forsman, Arkkitehtitoimisto SARC Oy
Meilahden tornisairaalan peruskorjaus valmistui 2014, ja rakennus on jälleen toimiva osa maamme suurinta yliopistollista sairaalaa. Korjaushankkeessa sairaala uudistettiin täysin niin teknisesti kuin toiminnallisestikin. Kaupunkikuvallisesti merkittävän rakennuksen peruskorjaaminen asetti poikkeuksellisia vaatimuksia julkisivu- ja vesikattorakenteiden suunnittelulle sekä uuden talotekniikan ja vanhan rakennusrungon yhteensovitukselle. Se onnistuu huolellisella hankevalmistelulla, alkuperäisen rakennuksen suunnitteluratkaisujen kunnioittamisella ja ammattitaitoisella soveltamisella sekä ajanmukaisilla suunnitteluprosesseilla. Käyttäjä- ja viranomaisyhteistyöllä on tiloja suunniteltaessa ja niitä toteutettaessa olennainen rooli.
Lähtötilanne – tornisairaalan historia ja ominaispiirteet
Helsingin Meilahden kaupunginosassa sijaitsevan yliopistollisen sairaalakampuksen korkeimmalla kohdalla kohoavan Meilahden sairaalan rakennustyöt aloitettiin joulukuussa 1962 ja ne valmistuivat kesällä 1965.[1] Sairaalan vihki käyttöön presidentti Urho Kekkonen 20.11.1965. Ensimmäinen leikkaus uudessa aikansa huippusairaalassa tehtiin tammikuussa 1966.[2]
Meilahden sairaalan arkkitehtisuunnittelija on useita keskussairaaloita ja muita terveydenhuollon alan rakennuksia suunnitellut Arkkitehtitoimisto Reino Koivula ja Jaakko Paatela.
Meilahden sairaala oli valmistuessaan Suomen suurin sairaalarakennus ja rakennusta pidettiin hyvin edustavana. Sitä esiteltiinkin mm. valtiovierailujen yhteydessä. Uudessa, hohtavassa pääaulassa kuvattiin jopa takaa-ajokohtaus elokuvaan ”Vodkaa komisario Palmu”.[3]
Meilahden sairaalan alkuperäinen kokonaisuus rakentui matalasta jalustasta eli toimenpide- ja laboratorio-osasta sekä niiden päälle toteutetusta 16-kerroksisesta vuodeosastotornista. Rakennustyyppi edustaa tyylipuhdasta ”torni jalustalla” -ratkaisutapaa.
Valittuun suunnitteluratkaisuun vaikuttivat rakennuspaikan rajat, pyrkimys luoda lyhyet yhteydet eri toimintojen välille sekä ”otollinen tilaisuus avata ihastuttavat näköalat potilashuoneista Suomenlahdelle ja saaristoon”, kuten konseptia on sen suunnittelun yhteydessä kuvailtu.[4]
Sairaalan torniosa on ensimmäinen suomalainen pilvenpiirtäjämäisyyttä tavoitellut korkea sairaala. Siihen on toteutettu yksi maamme ensimmäisistä, ei-kantavista ns. curtain wall –julkisivurakenteista. Rakennuksen runko on rakentamisajankohtana vallinneesta elementtitoteuttamisen ihannoinnista huolimatta tehty paikallavaletusta betonista.
Meilahden sairaalakampuksen jatkuva kehitys ja uudet rakentamisprojektit ovat vähitellen haudanneet alkuperäisen jalustaosan lähes näkymättömiin, mutta sairaalan torniosalla on yhä kaupunkikuvassa huomattava rooli. Se on pitkien kaupunkinäkymien päätteenä ja maamerkkinä erityisesti pääkaupunkia lännestä tai pohjoisesta lähestyttäessä.
Sairaalan torniosalle oli jo vuoden 2006 asemakaavassa annettu suojelumerkintä sr-2. Kaavamääräyksen mukaan rakennusta tai sen osaa ei saanut purkaa, eikä siinä saanut suorittaa sellaisia lisärakentamis-, korjaus- tai muutostöitä, jotka tärvelisivät julkisivujen tyyliä tai vesikaton perusmuotoa.[5]
Asemakaava on sittemmin päivitetty (2015) Meilahden sairaala-alueen lukuisten uudisrakennus- ja korjaushankkeiden tarpeita varten. Tornisairaalan suojelumerkintä on kuitenkin säilytetty myös uudessa kaavassa.
Tornisairaalan ensimmäisen julkisivukorjauksen elinkaari jäi lyhyeksi
Rakennukseen on sen historian aikana tehty sairaaloille tyypilliseen tapaan lukuisia muutoksia. Huomattavimpia oli torniosan alkuperäisen julkisivurakenteen vaiheittainen peruskorjaus 1980–1996. Rakennuksen ikkunat ja julkisivulevytys vaihdettiin ja ulkoseinää lisäeristettiin.
Peruskorjauksesta huolimatta julkisivuissa esiintyi useita ulkokautta tapahtuneita vesivuotoja. Seinärakenne kärsi kosteusvaurioista. Vesivuodot ja ilmavuodot yhdessä aiheuttivat rakennuksessa sisäilmaongelmia.[6]
Alkuperäisen lasisen julkisivuverhoilun tilalle asennettiin alumiiniset julkisivulevyt, jotka menettivät varsin nopeasti alkuperäisen lasituksen väriä mukailleen tummansinisen värisävynsä.
Peruskorjausta valmistellaan pitkään
Jo 1990-luvulta alkaen oli laadittu sarja suunnitelmia ja selvityksiä tornisairaalan peruskorjaamisesta. Julkisivujen aiheuttamien ongelmien lisäksi talotekniset järjestelmät olivat monin osin vanhentuneita eikä niiden kapasiteetti riittänyt täyttämään ajanmukaisen sairaalatoiminnan ilmanvaihdolle, sähkötekniikalle ja tieto- ja lääkintätekniikalle asettamia vaatimuksia.
Helsingin ja Uudenmaan sairaanhoitopiiri HUS teetti vuonna 2002 tornisairaalan tilanteesta teknisen selvityksen, jossa tutkittiin erilaisia julkisivuratkaisuja, sisäilman laatua, julkisivurakenteen kuntoa ja uuden talotekniikan tilavarauksia ja reittejä. Tämän yhteydessä kaupunkisuunnitteluvirasto antoi lausunnon, jonka perusteella rakennuksen korottaminen ilmanvaihtokonehuoneen tarpeita varten olisi mahdollista. Myös kaksoisjulkisivun periaate hyväksyttiin tämän selvityksen perusteella.
Teknisen ja toiminnallisen peruskorjauksen hankesuunnitelma valmistuu
Tornisairaalan peruskorjaushankkeeseen ryhtymisestä päätti Helsingin ja Uudenmaan sairaanhoitopiirin eli HUS:n valtuusto loppuvuodesta 2008. Enimmäiskustannuksiksi asetettiin 103 miljoonaa euroa, johon sisältyi väistötilojen varmistaminen. Tornisairaala oli tyhjennettävä potilaista koko peruskorjaushankkeen ajaksi. Tätä varten oli toteutettava väliaikainen vuodeosastosiipi.[7] Myös uuden Kolmiosairaalan tuli hankkeen aloittamiseksi olla käytettävissä väistötiloina. Eri erikoisalojen vuodeosastoja ja poliklinikoita sisältävä Kolmiosairaala valmistuikin Meilahden kampukselle tornisairaalan viereen 2010. Sairaalat toimivat tiiviissä yhteistyössä ja niillä on yhteinen pääsisäänkäynti.
HUS:n hallitus oli energiankäytön tehostamissuunnitelmassaan nimennyt peruskorjaushankkeen energiatehokkuutta edistävän peruskorjaamisen pilottikohteeksi. Tämä asetti korkean, uudisrakentamista vastaavan vaatimustason uusille rakenne- ja talotekniikkaratkaisuille.
Tornisairaalan peruskorjauksen hankesuunnitelman laati HUS, Tilakeskus-yksikkönsä toimesta. Hankesuunnitelmaan sisältyvät tekniset toimenpiteet kustannuksineen, sairaalan kapasiteettianalyysi ja toiminnalliset ratkaisut sekä arvio henkilöstömäärän kehityksestä hankkeen valmistuttua. Rakennussuunnittelun osalta hankesuunnitelma perustui hankkeen arkkitehtisuunnittelijaksi valitun, Arkkitehtitoimisto SARC Oy:n ja Arkkitehtiryhmä Reino Koivula Oy:n muodostaman työyhteenliittymän laatimaan ehdotussuunnitelmaan. Pääsuunnittelijana toimi Antti-Matti Siikala Arkkitehtitoimisto SARCista. Hankesuunnitelma julkaistiin toukokuussa 2010. Peruskorjaushankkeen kokonaislaajuudeksi muodostui 35 620 brm², tilaohjelman mukainen hyötyala oli 14 684 hym² ja tilavuus 115 231 m³, mikä suuruusluokaltaan vastaa eduskuntatalon tilavuutta.
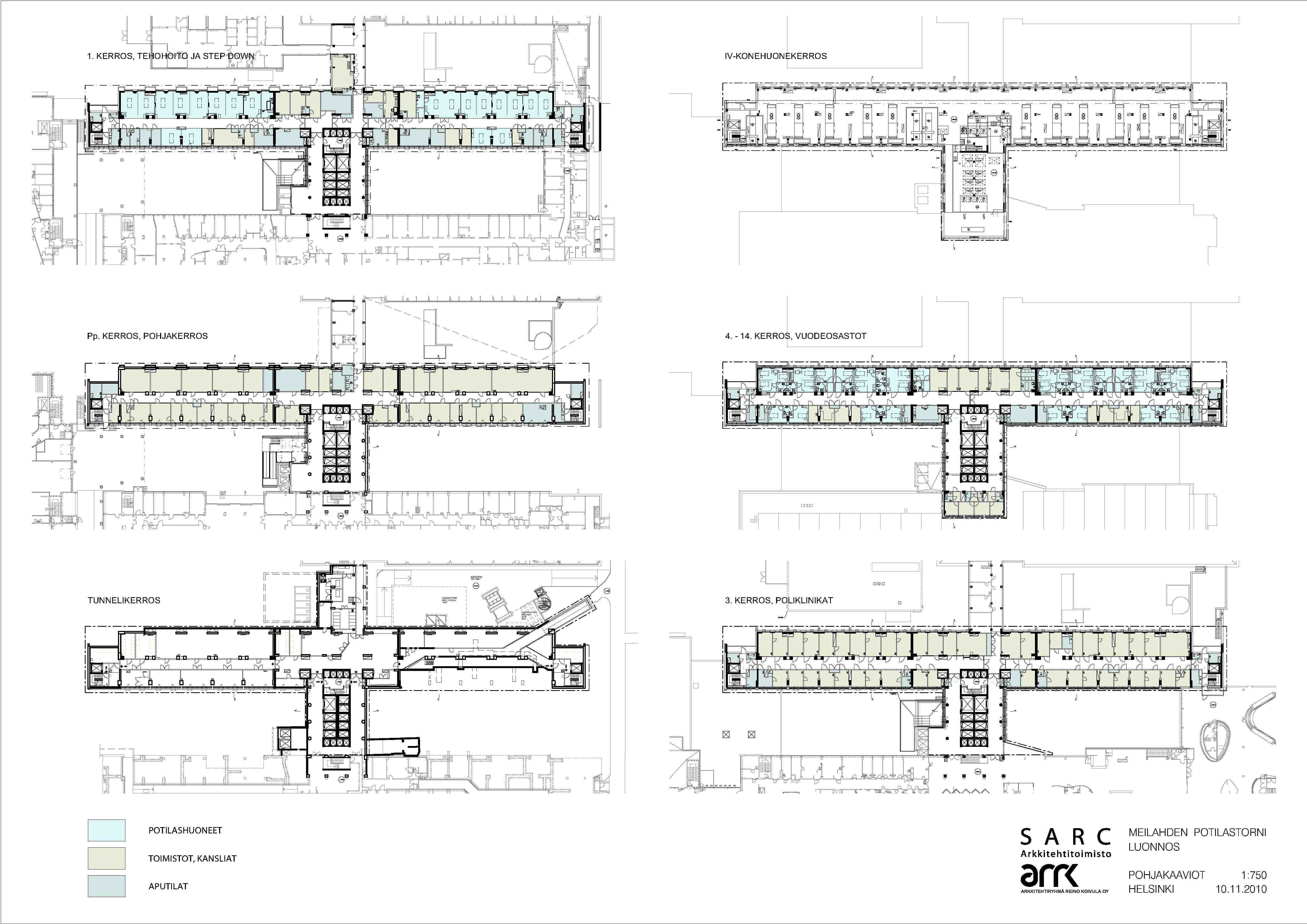
Teknisen peruskorjauksen lisäksi myös sairaalan toiminnallisuus tuli hankkeen yhteydessä uudistaa kokonaan. Alkuperäiset, pääosin kuuden potilaan yhteishuoneet ilman huonekohtaisia wc- ja suihkutiloja eivät vastanneet uusia näkemyksiä laadukkaasta hoitoympäristöstä.
Tilaaja oli ennen hankkeen alkamista analysoinut toimintojen kehitys- ja tilatarpeet ja laatinut mallivuodeosastoraportin, jonka mukaisesti vuodeosastot tuli suunnitella keskenään samanlaisiksi ja siten, että ne soveltuisivat joustavasti eri erikoisalojen käyttöön. Kaikki potilashuoneet tuli varustaa omilla wc- ja suihkutiloilla. Vuodeosastoiksi suunniteltiin 11 kerrosta, joissa kaikissa on 32 sairaansijaa. Yhteensä hankesuunnitelman mukaisessa ratkaisussa oli 336 sairaansijaa vuodeosastoilla ja 51 teho- ja valvontapaikkaa. Torniin suunniteltiin sijoitettavaksi vuodeosastojen lisäksi kaksi teho-osastoa, neurologian poliklinikka sekä toimisto-, opetus- ja neuvottelutiloja.[8]
Toteutussuunnittelu - lasijulkisivuille uudet alkuperäisen kaltaiset ratkaisut
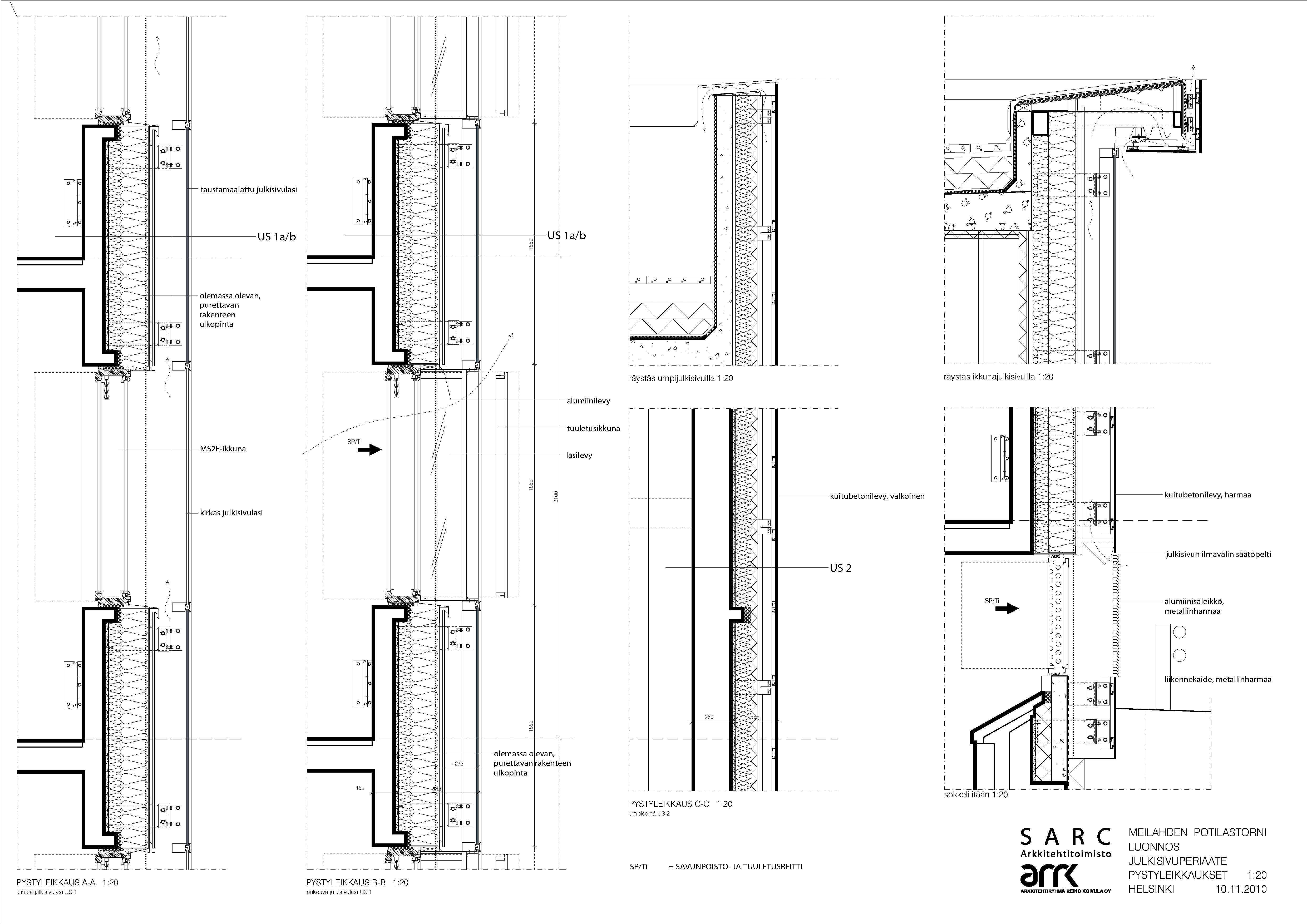
Hankesuunnitelman tultua hyväksytyksi HUS:n valtuustossa eteni hanke kohti toteutussuunnittelua. Työmaa käynnistyi syksyllä 2011. Ulkovaipan peruskorjauksen tärkeimpänä tavoitteena oli toteuttaa rakenne, joka mahdollisimman hyvin kestää Meilahden sairaalan sijainnista ja korkeudesta johtuvan voimakkaan ilmastorasituksen. Rakenteen tuli myös parantaa alun perin kevytbetonireikäharkoilla eristetyn ja myöhemmin ohuella lisäeristyksellä paikatun ulkovaipan heikkoa energiatehokkuutta ja toisaalta estää liiallinen lämpösäteily hoitotiloihin. Näiden ominaisuuksien osalta hankkeelle asetettu tavoitetaso vastasi uudisrakentamista.
Uuden julkisivurakenteen haluttiin teknisen toimivuuden lisäksi palauttavan rakennukselle sen alkuperäisen komean tumman siniharmaan värityksen ja – ulkovaipparakenteen täydellisestä uusimisesta huolimatta - kaavan suojelumääräyksen mukaisesti säilyttävän tornisairaalan kaupunkikuvallisen perushahmon ja julkisivujaon.
_Oik.: Tornisairaalan uuden ulkoseinärakenteen malli katselmoitavana ennen toteutuksen alkua. Kuva: Arkkitehtitoimisto SARC Oy.
Julkisivuratkaisujen suunnittelun aikana kuultiin kaupunkisuunnittelu- ja museoviranomaisia ja pohdittiin erilaisten julkisivuratkaisujen toimivuutta paitsi teknisesti, myös kaupunkikuvallisesti ja rakennushistoriallisesti. Ulkovaippa visualisoitiin huolellisesti, myös detaljitasolla, jotta sen toteutettavuudesta myös näistä näkökulmista voitiin varmistua. Ennen julkisivurakenteen toteutusta siitä tehtiin 1:1 -malli, jossa rakennusosien yhteensopivuus ja ilme päästiin arvioimaan ja varmistamaan ennen toteutusta. Malli katselmoitiin myös kaupunkikuvatoimikunnan toimesta ennen varsinaisen toteutuksen aloittamista.
Vanhat villa- ja harkkoeristeet purettiin kokonaan pois kantavaan betonisisäkuoreen saakka. Paljastuneet betonipinnat käsiteltiin mikrobit poistavalla desinfiointiaineella ennen uuden rakenteen toteuttamista. Myös kaikki 80-luvun peruskorjauskierroksella uusitut ikkunat purettiin niiden huonon teknisen kunnon ja vaatimattomien käyttö- ja ulkonäköominaisuuksien johdosta.
Uusi julkisivu toteutettiin aikaisempien teknisten selvitysten perusteella kahdesta toisistaan irti olevana rakennekerroksena eli ns. kaksoisjulkisivuna, jossa molemmat kerrokset ovat täysin ilmastorasituksen kestäviä. Uloin lasitusrakenne noudattaa mitoitukseltaan alkuperäistä julkisivujakoa ja on myös detaljimitoitukseltaan hyvin lähellä sitä. Lasituslistat teetettiin hanketta varten vanhojen alumiinilistojen leikkausprofiilin ja mittojen mukaan.
_Oik.: Lasien värisävyä haettiin mallipaloilla. Kuva: Arkkitehtitoimisto SARC Oy.
Siniharmaita alkuperäisiä julkisivulaseja oli vielä säilynyt sairaalan matalissa osissa ja niitä mallina käyttäen saatiin maalilaboratoriossa selvitettyä oikea värisävy uusille lasilevyille. Lasina käytettiin rautaoksidivapaata lasia, jotta maalin sävy olisi mahdollisimman hyvin hallittavissa.
Uuden ulkovaipan kahden rakennekerroksen väliin jäävä noin 20 cm ilmatila on avoin koko rakennuksen korkeudelta. Sen ilmavirtausta voidaan säädellä sen alareunassa olevilla, rakennusautomaation ohjaamilla säätöpeltirakenteilla ja näin reagoida erilaisiin lämpökuormitustilanteisiin. Sairaalatoiminnassa ajoittain tarvittava tehotuuletusmahdollisuus suoraan ulos järjestettiin molemmat ulkovaipan kerrokset läpäisevänä lasiseinäisenä ”putkena”. Ulomman lasivaipan avaukseen käytettiin suoraan ulospäin aukeavaa, julkisivuun ilman listoja liittyvää luukkua.
Sisempi ulkoseinärakenne toimii varsinaisena teknisenä, lämpöä eristävänä ulkoseinärakenteena. Rakenteeksi valikoitui mineraalivillaeristeen päälle toteutettu rappausjulkisivu, joka mahdollisti erilaisten liitos- ja läpivientidetaljien tiiviyden hyvän hallinnan.
Uusi kaksoisjulkisivu eristeineen on vanhaa ulkoseinärakennetta noin 30 cm paksumpi. Suhteessa rakennuksen kokoon on muutoksen vaikutus kaupunkikuvassa varsin pieni.
Uudet ikkunat ovat kaksipuitteisia puu-alumiini-ikkunoita. Kaksipuitteisen ikkunarakenteen suuri etu sairaalakäytössä on sen tarjoama pölytön asennustila sälekaihtimille. Ikkunoiden heloitus estää niiden avaamisen ilman henkilökunnan apua.
Umpinaisten päätyjulkisivujen korjaus
Rakennuksen päädyt ovat umpinaiset ja alun perin ne ovat olleet aaltoprofiloidulla minerit-levyllä verhoiltuja. Edellisessä peruskorjauksessa tämä levytys oli vaihdettu pelliksi. Myös nämä päätyjen julkisivurakenteet purettiin peruskorjaushankkeessa kokonaan. Lämmöneristys parannettiin ajanmukaiseksi ja julkisivuverhoiluksi valittiin kuitubetonilevyt piiloankkurikiinnityksellä.
Koska rakennuksen ulkoverhoilujen toteutus ylipäätään ei ollut täysin alkuperäisen ratkaisun mukainen, myös päätyverhoilut toteutettiin rakennuksen alkuperäisiä materiaalivalintoja kunnioittaen, mutta uudella detaljiikalla. Levyjen kiinnitys piiloankkurein oli kaupunkikuvallisesti tärkeä detalji ja teknisesti erittäin vaativa ja suurta mittatarkkuutta vaativa työvaihe.
Levyverhoilun asennuksen mitoitusta tarkastetaan. Kuva: Arkkitehtitoimisto SARC Oy.
Talotekniikan ja rakennussuunnittelun yhteensovitus on vaativaa
Tärkeä osa hanketta oli varmistaa riittävät asennustilat uudelle talotekniikalle ja erityisesti ilmanvaihtotekniikalle. Vanhat ilmanvaihtokonehuoneet olivat auttamattoman pienet eikä vanhaa ullakkoa ja sen kuparikattoa voitu sellaisenaan hyödyntää vaan rakennuksen ylintä, ilmanvaihtotekniikalle varattua kerrosta oli korotettava kolmella metrillä. Alkuperäistä kuparipellitettyä harjakattoa vastaavaa ratkaisua ei katsottu olevan perusteltua toteuttaa sellaisenaan uudestaan perusteiltaan muuttuneessa tilanteessa. Vesikaton ilme muutettiin sitä nostettaessa suorakulmaiseksi, rakennuksen alkuperäistä, levymäisistä rakennusosista koostuvaa kokonaishahmoa kunnioittaen ja sitä tukien.
Sairaalan koko talotekniikka uusittiin ajanmukaiselta sairaalarakennukselta edellytettävälle tasolle. Suuren haasteen tälle osa-alueelle asetti tornisairaalan alkuperäinen paikallavalettu betonirunko ja sen mitoituksen sopimattomuus lukuisille uuden sairaalan tarvitsemille teknisille järjestelmille: Rungon kerroskorkeus vuodeosastokerroksissa on 3,1 metriä ja pääpalkkilinjojen alla vain 2,1 metriä. Näiden mittojen yhdistäminen uusiin ilmamäärätarpeisiin sekä muiden järjestelmien yhteensovittamiseen ei mahdollistanut keskitettyjen nousukuilujen ja niistä vaakasuuntaisesti haarautuvien kanavareittien käyttöä.
Tornisairaalan länsijulkisivussa näkyviä levyrakenteisia, pystysuuntaisia koteloita oli alun perin hyödynnetty paitsi julkisivua jäsentävinä elementteinä myös sadevesiviemärireitteinä. Alustavissa teknisissä selvityksissä oli tutkittu sijoitusmahdollisuuksia ulkoseinän ulkopuolella myös muulle tekniikalle.[9]
Peruskorjaushankkeessa talotekniikan sijoitus ulkovaipparakenteen ulkopuolelle kuitenkin hylättiin. Sekä toteutuksen että rakennuksen elinkaaren kannalta paremmaksi katsottiin toteuttaa useita pienempiä nousukuiluja kerrostasoille, ulkovaipan sisäpuolelle. Nousukuilujen hajautetusta sijoituksesta seurannut haaroituskanavien ja -putkien pienempi koko mahdollisti toteutuskelpoiset asennusreitit. Ratkaisun edellyttämä tekniikkakuilujen ja tilasuunnitelmien yhteensovittaminen oli toteutettavissa tornisairaalaan suunnitellun uuden huonejaon johdosta.
Talo- ja sairaalateknisten järjestelmien yhteensovitus tietomallissa, yhteispalavereissa ja työmaalla
Rakennusrunko inventoitiin laserkeilaamalla heti kevyiden rakenteiden purkutöiden valmistuttua, jotta tekniikan rungon sovitus voitiin tarkastella tietomallipohjaisesti. Betonirungon laattoihin ja erityisesti palkistoihin tarvittiin valtava määrä erilaisia uusia reikävarauksia, joiden toteutettavuutta ja lisätuentoja tutkittiin tietomallipohjaisesti.
Nousukuilujen joustavasta sijoitusratkaisusta huolimatta talo- ja sairaalateknisten järjestelmien yhteensovitus oli erittäin haastava, työläs ja myös pitkäkestoinen suunnitteluvaihe. Tämän prosessin kaikkien osapuolien kesken yhdessä tehty aikatauluttaminen ja systemaattinen läpikäynti oli onnistuneen lopputuloksen kannalta olennaisen tärkeää ja edellytti suuren työpanoksen kaikilta suunnittelualoilta ja myös hankkeen toteuttajilta.
Taloteknisten järjestelmien mahduttaminen rakennusrunkoon edellytti jatkuvaa suunnittelijoiden välistä yhteistyötä ja yhteensovitusratkaisujen tekemistä arkkitehdin laatimien, tietomallista saatujen tarkastusraporttien ja tilannekuvausten pohjalta. Yhteensovitussuunnittelua tehtiin paljon työpajatyyppisissä yhteispalavereissa ja usein tilanteita katselmoitiin suunnitteluryhmän voimin myös työmaalla.
Onnistuneen lopputuloksen avaimet
Peruskorjaushanke valmistui kesällä 2014 ja sairaalan toiminta käynnistyi vuoden 2015 aikana, kalustamisen ja varustamisen sekä henkilökunnan perehdyttämisen jälkeen.
Sairaalan peruskorjaus on paljon etukäteisvalmistelua ja rinnakkaisia, usein huomattavan suuria varsinaista hanketta tukevia väistötoimenpiteitä vaativa hanke. Meilahdessa tornisairaalan peruskorjaamisen edellytyksenä oli sen toiminnalle ja potilaille väistötilat tarjonneiden Kolmiosairaalan sekä vuodeosastosiiven toteuttaminen. Sairaalatoiminnan poikkeuksellisista turvallisuus- ja riskienhallintavaatimuksista johtuen käyttäjä- ja viranomaisyhteistyö on sekä tiloja suunniteltaessa, että niitä toteutettaessa olennaisessa roolissa.
Monet keskussairaaloistamme ovat 2010-luvun päättyessä niiden kiinteistökannan laajan uudistamisen edessä tai jo sen keskellä. Jatkuvasti kehittyvät toimintatavat, vanhojen kiinteistöjen runkomitoituksen ja muiden teknisten ominaisuuksien aiheuttamat haasteet sekä vaikeat ja kalliit väistöliikkeet niitä peruskorjattaessa johtavat usein joko kokonaan tai osittain uudisrakentamiseen perustuviin ratkaisuihin.
Huolellisella hankevalmistelulla, alkuperäisen rakennuksen suunnitteluratkaisujen kunnioittamisella ja ammattitaitoisella soveltamisella sekä ajanmukaisilla suunnitteluprosesseilla voidaan kuitenkin kestävällä tavalla hyödyntää ja samalla tallentaa rakenteita ja rakennuksia, jotka ovat iso osa yhteistä julkista rakennuskantaamme.
Kirjoittaja
Arkkitehti SAFA Sakari Forsman toimi Meilahden tornisairaalan peruskorjauksen projektiarkkitehtina.
Artikkeli on julkaistu 2020.
Lähteet
Haapiainen Reijo; Rintala Paula & Lehtonen Timo 2008. Meilahden sairaala. Teoksessa Huippuosaajien yhteisö – 50 vuotta kirurgiaa ja anestesiologiaa Hyksissä. Toim. Reijo Haapiainen, Caj Haglund, Eero Hirvensalo, Krister Höckerstedt, Olli Kirvelä, Johanna Kojola, Timo Lehtonen, Ari Leppäniemi, Vesa Perhoniemi, Paula Rintala, Arto Sivula, Pär Slätis, Minna Sutinen, Olli Takkunen, Tapani Tammisto, Arja Tuokko & Märta Wessman. Helsinki: HYKS operatiivinen tulosyksikkö, HUS-kuntayhtymä.
Meilahden sairaalan potilastornin peruskorjaus – Hankesuunnitelma. Helsingin ja Uudenmaan sairaanhoitopiiri HUS Tilakeskus. Helsinki 2010.
Asemakaava no. 11405. Helsingin kaupunkisuunnitteluvirasto. Helsinki 2006.
Viitteet
[1] Haapiainen, Rintala, Lehtonen 2008. s. 45.
[2] Haapiainen, Rintala, Lehtonen 2008. s. 46.
[3] Haapiainen, Rintala, Lehtonen 2008. s. 46.
[4] Haapiainen, Rintala, Lehtonen 2008. s. 46.
[5] Asemakaava no. 11405 Helsingin kaupunkisuunnitteluvirasto 21.04.2006
[6] Meilahden sairaalan potilastornin peruskorjaus – Hankesuunnitelma 2010. s. 5.
[7] Meilahden sairaalan potilastornin peruskorjaus – Hankesuunnitelma 2010. s. 2.
[8] Meilahden sairaalan potilastornin peruskorjaus – Hankesuunnitelma 2010. s. 6.
[9] Meilahden sairaalan potilastornin peruskorjaus – Hankesuunnitelma 2010. s. 5.