
Ollinsaaren lähiö Raahessa
Juho Rajaniemi
Ollinsaaren lähiö Raahessa on edustava kaupunkisuunnittelukohde, joka on mainittu 1960-luvun Pohjois-Pohjanmaan lähiöistä laadukkaimpana ja jonka vertaamista Tapiolaan on pidetty oikeutettuna. Myös Raahen kaupungin viranhaltijat ovat kiittäneet aluetta. Alue näyttää olleen lähiön asemakaavan ja suurimman osan rakennuksista suunnitelleelle arkkitehti Olli Kiviselle itselleenkin tärkeä, sillä hänen arkistostaan löytyy kansio, johon on kerätty Ollinsaareen liittyviä lehtileikkeitä vuodesta 1963 vuoteen 1982 asti. Kivistä on näyttänyt kiinnostaneen jopa alueen asuntojen myynti-ilmoitukset ja työpaikkailmoitukset.
Rautaruukki ja Ollinsaari – kaupungin kasvun syy ja seuraus
Ollinsaari sijaitsee noin 1,5 kilometriä kaakkoon Raahen keskustasta ja viitisen kilometriä terästehtaasta koilliseen. Alueen suunnittelu ja rakentaminen liittyvät saumattomasti Rautaruukki Oy:n (nykyisin SSAB) Raahen tehtaan perustamiseen ja kehitykseen. Presidentti Urho Kekkonen vaikutti olennaisesti tehtaan sijoittamispäätökseen, jonka valtioneuvosto vahvisti joulukuussa 1960. Asian kerrotaan ratkenneen jo tammikuussa, jolloin Kekkonen vakuuttui terästehtaan sijaintipaikasta Perämeren jäällä Raahen edustalla tekemällään hiihtoretkellä.[1]
Rautaruukki oli tärkeä osa Kekkosen teollisuusinvestointiohjelmaa. Kekkonen julisti jo ennen presidenttiyttään 1952: ”Se ylimalkainen, ponneton harrastus teollisuuden kasvua kohtaan, jota kieltämättä kaikissa piireissä on olemassa, ei nyt riitä; nyt tarvitaan uusi positiivinen, aktiivinen suhtautumistapa teollisuuden nopeassa tahdissa tapahtuvaa laajentamista kohtaan.”[2]
Suunnitelmien mukaan terästehtaan henkilöstömäärä nousisi vuoteen 1967 mennessä lähes 2000 henkeen. Lisääntyvälle väestölle tarvittiin paljon uusia asuntoja. Rautaruukki Oy perusti Raahen ja Saloisten Seudun Asuntosäätiön, jonka tarkoituksena oli ”tehdä mahdolliseksi tutkia Raahen ja Saloisten Seudun teollistamisesta aiheutuvia muutoksia sanottujen paikkakuntien asuntotilanteessa sekä kehittää […] asuntotilanteen ratkaisemiseksi välttämättömiä ja tarkoituksenmukaisia menettelytapoja, esimerkiksi edistää tarvittavien asuntoalueiden hankintaa ja suunnittelua sekä rakentamista”. Säätiön hallitukseen kuului neljä Rautaruukki Oy:n edustajaa, yksi Rautaruukin työntekijöiden ja yksi toimihenkilöiden edustaja sekä yksi Raahen kaupungin ja yksi Saloisten kunnan valitsema edustaja. Vuoteen 1981 mennessä säätiö rakensi Ollinsaaren lähiöön 801 asuntoa.[3]
Rautaruukkilaisten asuinalue
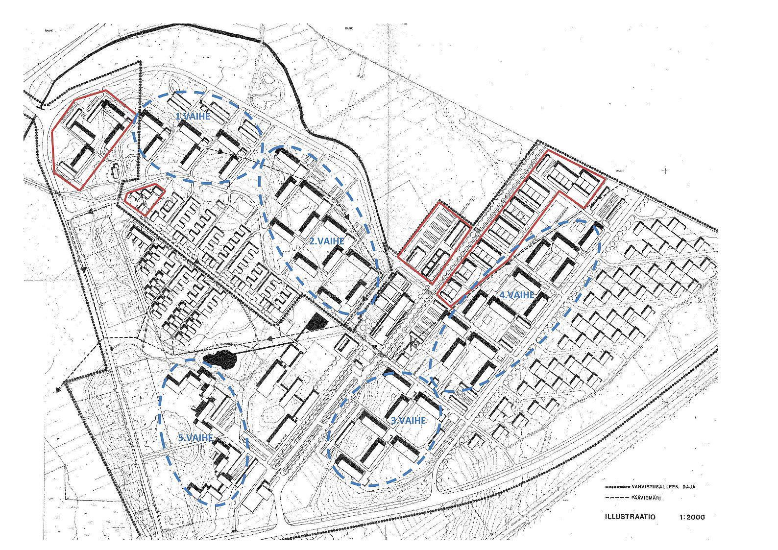
Asuntosäätiö osti 1963 yksityishenkilöiltä 60 hehtaarin alueen Ollinsaaren kartanon mailta asuntotuotantoa varten. Rautaruukki-taustaisen säätiön toiminnan myötä Ollinsaaresta tuli leimallisesti terästehtaan työntekijöiden ja heidän perheidensä asuinalue, vaikka sinne muutti jonkin verran muitakin asukkaita. Ollinsaareen oli määrä rakentaa asuntoja 2 500:lle, joista pääosa kerrostaloihin ja kolmasosa rivi- ja omakotitaloihin. Myöhemmin asukastavoite nousi 4 000:een viereisen Mestauskallion omakotitaloalue mukaan lukien.
Asuntosäätiön hallitus halusi, että Ollinsaaren tuleva asutus sopisi hyvin ympäristöönsä ja että alueen suunnittelisivat maan parhaat suunnittelijat. Alueen rakennuskaavan suunnittelu annettiin Olli Kivisen tehtäväksi.[4] Vuonna 1998, pari kuukautta ennen kuolemaansa, Kivinen kertoi alueen suunnittelun olleen nuorelle arkkitehdille merkittävä kokemus ja tilaajalta suuri luottamuksen osoitus.[5] Kivinen tosin oli Ollinsaaren suunnittelun alkaessa 42-vuotias Teknillisen korkeakoulun asemakaavaopin professori sekä kokenut ja arvostettu kaupunkisuunnittelija.
Ollinsaaren suunnittelutavoite: asukkainen viihtyminen
Ollinsaaren suunnittelun aikoihin lähiösuunnittelua hallitsi uusruutukaava. Ollinsaaren rakennusten lounais-koilliskoordinaatiston voi nähdä myönnytyksenä tälle periaatteelle. Toisaalta puutarhapalstoineen ja suurine viheralueineen alue on Tapiola-tyyppisen puutarhalähiön ruumiillistuma.[6] Ollinsaari on kerrostalovaltainen, mutta rivitaloille ja omakotitaloille on omat korttelinsa. Alueella ovat julkiset ja kaupalliset peruspalvelut. Suunnittelun lähtökohtana oli asukkaiden suuretkin vaatimukset täyttävä viihtyisyys,[7] johon sisältyivät väljyys, luonnonläheisyys, liikenneturvallisuus, leikki- ja urheilupaikat sekä asukkaiden viljelemät puutarhapalstat.
Asuinrakennukset ovat kahdella mäenharjanteella, joiden väliselle alavalle peltoalueelle kaavoitettiin nauhamaisesti palvelukeskus. Jalankulkuväylät yhdistävät asuin- ja palvelukorttelit toisiinsa. Kokonaisratkaisu on keuhkokaavion mukainen. Pohjolan Työ -lehden julkaistavaksi tarkoitetussa käsikirjoituksessa kuvataan länsiosan liikenneratkaisuja: ”Suunnitelmassa on onnistuttu ohjaamaan autojen ajoliikenne kokonaan alueen laidoille, keskustaan ei ole autoilla asiaa ja vanhemmat voivat huoletta sallia lastensa kirmata asuntoalueen sisäisillä teillä ja leikkipaikoilla, kun ei tarvitse pelätä autojen päälleajoa.” Kirjoittaja kehottaa paikkakuntalaisia ”ohjaamaan ilta- ja sunnuntaikävelyt Ollinsaareen katsomaan miten uusasiallisesti suunnitellussa puistokaupunginosassa asutaan ja jos se miellyttää, pyrkimään sinne kotiutumaan”.[8]
[KUVA 3. Ollinsaaren lähiön periaatekaavio vuoden 1972 rakennuskaavasta.]
Kivinen toimistoineen suunnitteli Ollinsaaren lähiöön sekä rakennuskaavat että lähes kaikki rakennukset. Rakennussuunnitelmia laadittiin aluksi kovan asuntopulan takia yhtä aikaa kaavasuunnittelun kanssa, mikä mahdollisti samanaikaisen rakennuskaavan kehittämisen ja rakennusten sijoittamisen maaston mukaisesti.[9] Kaavasuunnitelmasta toteutettiin noin 90 %.[10]
[KUVA 4. Ollinsaaren rakennuskaavan illustraatiokuva. Punaisella viivalla on rajattu toteutumattomat korttelit. Sinisellä katkoviivalla on esitetty asuinkerrostalojen viisi rakentamisvaihetta.]
Ensimmäinen vaihe: viihtyisää arkea rautaruukkilaisille
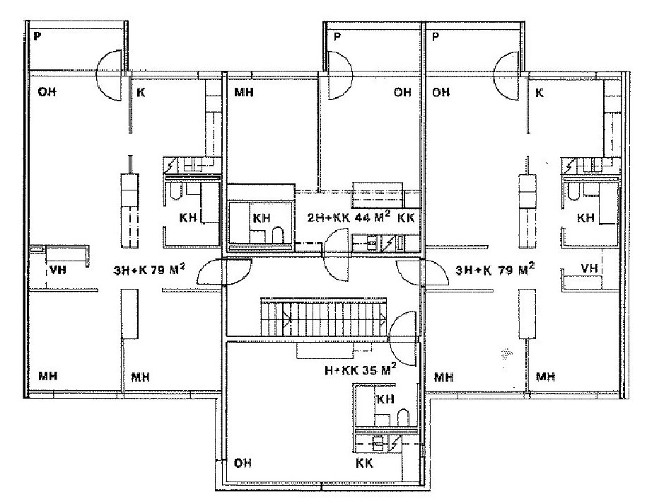
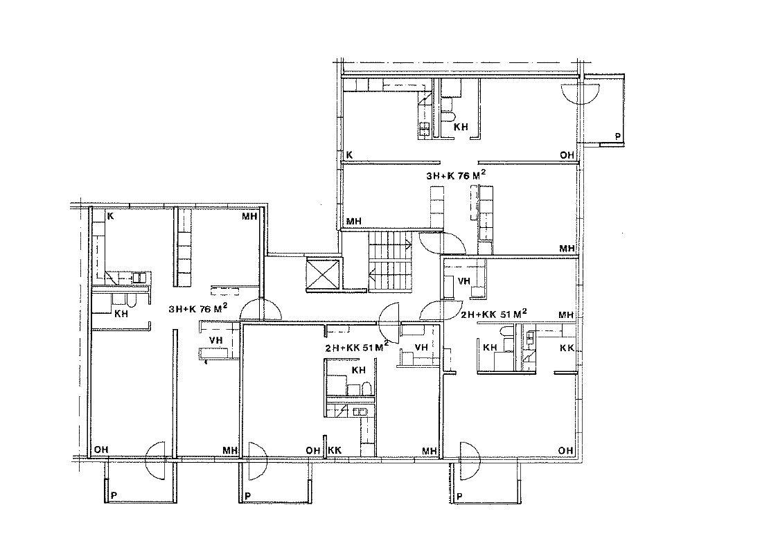
Ensimmäisessä vaiheessa valmistui kuusi 2-3-kerroksista pienkerrostaloa, jotka muodostavat kolme ilta-auringon suuntaan avautuvaa pihaa. Pihoista näkee alueen läpi kulkevalle kävelyväylälle, jolta Kivisen mukaan Ollinsaarta tuleekin katsoa.[11] Autokatokset ovat korttelipihojen ja kaarevan kokoojakadun, Ollinsaarentien, välissä, jossa ne ovat rajoittavia ja rauhoittavia elementtejä. Rakennukset valmistuivat 1967, ja niissä on 66 asuntolainoitettua vuokra- ja omistusasuntoa. Asuntojen keskipinta-ala on 69 neliötä. Asunnot ulottuvat talon läpi, ja kekseliäs julkisivuaukotus tekee niistä valoisia. Julkisivumateriaaleja on vähän ja ne ovat maanläheisiä: punatiili, raakabetoni ja vaakalauta muutamin yksityiskohdin höystettynä. Sisääntulojulkisivuissa maasta räystäslinjaan ulottuvat pilasterimaiset tiiliseinäpäädyt luovat klassiseen arkkitehtuuriin viittaavaa rytmiä ja arvokkuutta. Arkkitehtuurista Kivinen on kiittänyt toimistossa työskennellyttä arkkitehti Markku Niemeä.[12]
[KUVA 5. Ensimmäisen vaiheen pienkerrostalon sisääntulojulkisivu. vuoden 2018 toukokuussa]
Ensimmäisen vaiheen pienkerrostalojen suunnittelussa Kivinen kiinnitti erityistä huomiota ääneneristykseen. Hyvällä ääneneristyksellä hän todennäköisesti ajatteli rautatehtaan vuorotyöläisten tarpeita, kuten myöhäisiä ja varhaisia kotiintulo- ja töihinlähtöaikoja, sekä päiväaikaisen levon tarvetta. Asuntojen sisäänkäynti on kylmästä porrashuoneesta, jota suojaa kaareva betonikierreporras. Portaiden runko on erotettu muun rakennusten rungosta, jotta askeläänet eivät häiritsisi. Betoniväliseinät ja välipohjalaatat rakennettiin normaalia paksummiksi paremman ääneneristävyyden saavuttamiseksi.[13] Lisäksi suuremmissa asunnoissa yksi makuuhuone on eristetty muusta huoneistosta kahdella ovella. Kivinen piti ensiarvoisena sitä, että asumisolosuhteet tarjoavat inhimillisen vastapainon terästehtaassa työskentelylle.[14]
[KUVA 7. Ensimmäisen vaiheen (1967) pienkerrostalolamellin pohjapiirros. Kuva: Arkkitehti 1977/7.]
Ensimmäiseen rakennusvaiheeseen kuului myös 20 rivitaloasuntoa, jotka sijaitsevat pienten kujien molemmin puolin siten, että jokaisella asunnolla on suljettu takapiha. Takapihojen välissä on noin 20 metrin levyinen puistokaistale, jonka rivitalojen asukkaat ovat ottaneet osin käyttöönsä. Rivitaloja kutsutaan paikkakunnalla niiden pohjamuodon johdosta ”kampataloiksi”.
[KUVA 8. Näkymä rivitalokujalle vuoden 2018
Toinen vaihe: kustannussäästöjä ja viherympäristöä
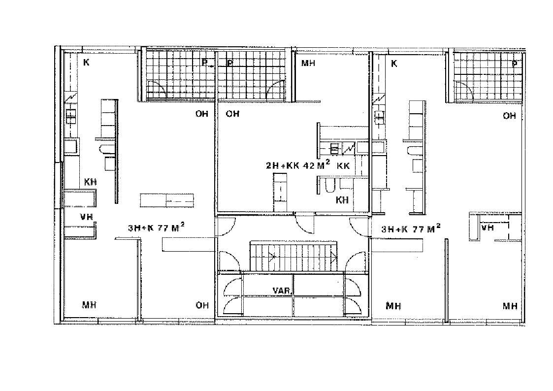
Toisessa vaiheessa, jota Kivisen toimisto suunnitteli 1967–69, jouduttiin kustannussyistä luopumaan joistakin ensimmäisen vaiheen hienoista ratkaisuista. Välipohjalaattojen pitkät jännevälit, kylmä porrastila ja kaksikerroksinen rakentaminen nostivat liikaa kustannuksia. Tämän vuoksi päädyttiin kolmikerroksiseen rakentamiseen osittain maanpäällisin kellaritiloin.[15] Asuntojen keskikoko laski 66 neliöön. Pääjulkisivumateriaalit olivat samat kuin ensimmäisessä vaiheessa, mutta julkisivujäsentely muuttui tavanomaisemmaksi.
[KUVA 9. Toisen vaiheen (1968) kerrostalolamellin pohjapiirros. Kuva: Arkkitehti 1977/7.]
Korttelit muutettiin neljältä sivulta rajatuiksi, nurkistaan hieman avatuiksi umpikortteleiksi, joiden keskellä on suuri piha-alue, noin 60 x 50 metriä. Korttelirakenne on tuulimyllykorttelista kehitetty uusi versio, jossa rakennusmassojen suhde pihapiiriin on harmoninen. Tuulimyllykorttelin alkuperäisistä periaatteista on tunnistettavissa korttelin keskusalueen suuri ruohokenttä. Autopaikat toimivat edelleen puskurina Ollinsaarentien ja asuinkorttelien välillä.
[KUVA 10. Näkymä toisen vaiheen pihapiiristä vuoden 2018 toukokuussa.]
Toisen rakentamisvaiheen ensimmäiset kaksi tonttia ja niiden 112 asuntoa valmistuivat 1968. Kolmas vaihe valmistui viiveellä 1971. Ollinsaareen oli muutettu oletettua hitaammin, joten rakentamisen aloittamista lykättiin. Helsingin Sanomissa uutisoitiin 1968 Ollinsaaressa olleen vuoden verran tyhjillään yli 80 uutta huoneistoa.[16] Raahen Seutu korjasi uutista ja totesi: ”huomattava osa Rautaruukin työntekijöistä on poikamiehiä, jotka naimisiin mennessään tarvitsevat oman asunnon”.[17] Rakentamisen tauolla parannettiin valaistusta, katuverkkoa ja istutettiin 3 000 koivua ja 1 300 koristepensasta. Puistomaisuus oli alkuperäisen suunnitelman mukaista.
Ollinsaaren rakentaminen oli sidoksissa rautatehtaan rakentamisen vaiheisiin. Kolmas tontti ja sen 56 asuntoa lähtivät rakenteille 1970, jolloin Rautaruukin terästehdas käynnisti laajennushankkeita.[18]
Kolmas ja neljäs vaihe: tavoitteena edullisemmat rakennuskustannukset
Palvelukeskuksen ja Pajuniityntien kaakonpuoleisen rinteen rakennusvaiheissa vaadittiin edullisempia suunnitteluratkaisuja. Puun ja punatiilen sijaan tulivat Siporex-elementit, jotka eivät käytännössä osoittautuneet juurikaan edullisemmiksi. Kerrosluku säilyi kolmena, asuntojen pohjapiirrosten uutuus oli porraskäytävien yhteyteen kerroksittain sijoitetut varastot.[19]
[KUVA 11. Kolmannen vaiheen kerrostalolamellin pohjapiirros. Kuva: Arkkitehti 1977/7.]
Neljännessä vaiheessa (1973–75) osa taloista tehtiin nelikerroksisina betonielementtitaloina. Raahen Seudun Asuntosäätiö tuki ratkaisulla seudun betonielementtitehtaiden työllisyyttä. Asuntojen keskikoko laski ensin 65 neliöön ja sitten 57 neliöön. Kolmannessa vaiheessa valmistui 113 asuntoa ja neljännessä 292 asuntoa.[20]
[KUVA 12. Neljännen vaiheen kerrostalolamellin pohjapiirros. Kuva: Arkkitehti 1977/7.]
Arkkitehtuurissa on linjakas horisontaalinauha ja selkeä julkisivupinta. Yleisilme on ajankohdalle ominaista elementtikerrostalorakentamista. Sisäpihoilta on suora yhteys pysäköintialueelle, joka on kortteleiden reunoilla.
[KUVAT 13 ja 14. Näkymä neljännen vaiheen pihapiiristä talvella 1976 ja toukokuussa 2018. Kuva 13: Aarre Aunola.]
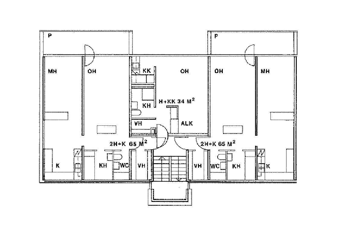
Viides vaihe: rakentamista laadun kustannuksella
Viimeinen rakentamisvaihe valmistui 1976 ja 1977 Ollinsaaren lounaiskulmaan. Kustannusnousun välttämiseksi betonijulkisivut maalattiin ja rakennusten muoto yksinkertaistettiin. Kaikkiaan 142 asunnon keskipinta-ala on 60 neliötä.[21]
[KUVA 15. Viidennen vaiheen kerrostaloja toukokuussa 2018. Kuva: Arkkitehti 1977/7.]
Kaavassa kerrosluku oli seitsemän. Rakennusten tuli olla maamerkkejä alueen saapumissuunnan reunalla ja keskusta-akselin päätteessä, Kivisen sanoin: ”tunnistamisdominantin, joka elävöittäisi ympäristöä.”[22] Toteutunut kerrosluku on 3–5 ja elävöittämisen sijaan julkisivuelementit ja -sommittelu ovat yksitoikkoisia. Pihat aukeavat metsäiseen mäkeen, ja pysäköintialueet ovat kortteleiden reunoilla.
Asuntomäärä kerrostalopihaa kohden on 70. Ensimmäisessä vaiheessa luku oli 22 ja seuraavissa viitisenkymmentä. Vastaavasti nousi rappukäytävän kunkin kerrostason asuntomäärä. Ensin se oli kaksi, sitten kolme ja lopuksi neljä.
[KUVA 16. Viidennen vaiheen kerrostalolamellin pohjapiirros.]
Olli Kivisen johdolla hänen arkkitehtitoimistonsa vastasi Ollinsaaren suunnittelusta alusta loppuun. Rakennusvaiheiden arkkitehtoninen laatu heikkeni 1960-luvun puolivälistä 1970-luvun loppupuolelle. Tehokkuudesta tuli arvo ja kustannussäästöstä suunnittelun tärkeä mittari. Rakentaminen oli liiketoimintaa, joka tuotti pelkistettyä arkkitehtuuria.[23] Arkkitehdit Olli Kivinen ja Lauri Tiihonen tilittivät alueen valmistuttua: ”Kohoavat rakennuskustannukset muuttivat alun perin suunnittelijan tähtäimessä ollutta miljöökokonaisuutta kohti asuntolainoitetulle kerrostalorakentamiselle tyypillistä yksiviivaisuutta ja pitäytymistä kaikkialla toistuviin rakennustyyppeihin, joita ainoastaan rakennusten vaihtuminen rivi- ja omakotitaloihin jossain määrin saattoi elävöittää.”[24]
Ihmisläheinen ja luonnonläheinen Ollinsaari
Suuren alueen toteuttaminen 10 vuodessa oli Raahen pienessä kaupungissa melkoinen saavutus, etenkin kun rakennustyössä oli parin vuoden katko. Tuloksena syntyi asuinalue, joka on kaupunkirakennustaiteellinen kokonaistaideteos.
Ollinsaaren rakennuskanta on jokseenkin kertaalleen peruskorjattu. Rakennusten autenttisuuden kannalta jotkut korjausratkaisut ovat onnistuneet hyvin. Joissakin on toivomisen varaa: kattoja on muutettu tasakatoista harjakatoiksi, julkisivupintoja on korvattu teräskaseteilla ja parvekkeiden yhteyteen on lisätty alkuperäiselle arkkitehtuurille vieraita elementtejä. ”Vain runko jätettiin, kaikki muu on rakennettu ja sisustettu uusiksi”, kerrottiin paikallislehdessä toisen rakennusvaiheen korttelissa sijaitsevan kolmen kerrostalon remontista.[25] Kivisen mielestä kolmannen vaiheen rakennusten korjauksissa on alkuperäisyyttä säilytetty ja alueella on ”erittäin hyvää ihmisläheistä asumista”.[26]
[KUVA 17. Kolmannen rakennusvaiheen peruskorjattuja taloja (toukokuu 2018).]
Tulevissa asemakaavamuutoksissa pohdittavana on alueen suojelun ja rakennussuojelun tarve ja kattavuus. Ensimmäisen rakennusvaiheen pienkerrostalot, arkkitehtonisesti Ollinsaaren korkeatasoisimmat, ovat säilyneet ulkonäöltään alkuperäisinä ja viehättävinä. Alueen identiteetin keskeiset periaatteet, väljyys ja luonnonläheisyys, tulee jatkossakin säilyttää. Saman aikakauden lähiöissä nämä kantavat ideat on usein tuhottu liialla täydennysrakentamisella. Tiiviin ja monikäyttöisen kaupunkiympäristön tavoittelussa unohtuu, että lähiösuunnittelun keskeiset aatteet olivat päinvastaiset; haluttiin väljyyttä ja toimintojen erottelua toisistaan.
”Kaikki kaupunkimaisen asutuksen epäkohdat pohjautuvat lopulta asutuksen liialliseen kasautumiseen ahtaalle alueelle”, kirjoitti professori Otto-Iivari Meurman Asemakaavaopissa 1947.[27] Ollinsaari on 1960- ja 70-lukujen yhteiskunnallisten arvojen ja lähiösuunnitteluideologian tuote. Sellaisena se on yksi Suomen edustavimmista lähiöistä, jossa toteutuu Kivisen ensisijaisena tavoitteena ollut viihtyisyys.
Kirjoittaja
Juho Rajaniemi, tekniikan tohtori, yhdyskuntasuunnittelun professori, Tampereen ylipisto. Artikkeli perustuu tekijän väitöskirjaan Kasvun kaavoitus. Tapaus Raahe 1961–1996 sekä tätä artikkelia varten tehtyyn tutkimustyöhön.
Artikkeli on julkaistu 2019.
Lähteet
Aunola, Auno 2012: Edelläkävijä. Raahen Seudun Asuntosäätiö 50 vuotta. Raahe, Raahen Seudun Asuntosäätiö.
Helaakoski, Anne 1998: Ollinsaaren peruskorjaus sai Ollin siunauksen. Raahen Seutu 25.9.1998.
Jaatinen, Sari 2015: Ollinsaari, maakunnan arvokkain lähiö. Raahen Seutu 16.9.2015.
Kautto, Jussi 1990: Haastattelussa Olli Kivinen. Kaupunkisuunnittelun professori ja kaupunkirakenteen hahmottaja. Teoksessa Suomalaista kaupunkiarkkitehtuuria. Toim. Jussi Kautto, Ilkka Holmila & Jukka Turtiainen. Helsinki: Suomen rakennustaiteen museo ja Ympäristöministeriö, 72–76.
Kekkonen, Urho 1952: Onko maallamme malttia vaurastua? Helsinki: Otava.
Kivinen, Olli 1968: Saloinen. Ollinsaaren alue. Rakennuskaavan selostus.
Kivinen, Olli 1972: Saloinen. Ollinsaari. Rakennuskaava ja rakennuskaavan muutoksen selostus.
Kivinen, Olli & Tiihonen, Lauri 1977: Ollinsaari / Rautaruukin asuntoalue. Arkkitehti 7/1977, 34–37.
Meurman, Otto-I. 1947: Asemakaavaoppi. Helsinki: Otava.
Nousiainen, Tuulikki 2003: Kerrostaloihin remontoitiin ylellisyyttä. Raahen Seutu 29.8.2003.
Nyman, Kaj 2003: Sinisilmäisyyden aika. Suunnittelun myyttejä 1950–2000. Helsinki: Rakennusalan Kustantajat RAK ja Kustantajat Sarmala Oy.
Pentinpuro, Leila 1968: Raahessa ei tunneta asuntopulaa. Helsingin Sanomat 22.1.1968.
Raahen Seutu 24.11.1966. Asukkaiden viihtyisyys otettu lähtökohdaksi Ollinsaaren asuntoalueen suunnittelussa.
Raahen Seutu 25.1.1968. Pääkaupunkilaislehden kirjoitus Raahen ja Ollinsaaren asuntotilanteesta harhauttava.
Rajaniemi, Juho 2006: Kasvun kaavoitus. Tapaus Raahe 1961–1996. Kankaanpää: Messon Oy.
Vahtera, Kalle & Vahtera, Ulla 2008: Kivinen. Rakennettu ympäristö RY 1/2008, 42–46.
Viitteet
[1] Virallisen sijoittamispäätöksen teki Rautaruukki Oy:n hallintoneuvosto 17.2.1961. Rajaniemi 2006, 27; Aunola 2012, 9-11.
[2] Kekkonen 1952, 74.
[3] Raahen ja Saloisten Seudun Asuntosäätiö merkittiin säätiörekisteriin tammikuussa 1962. Säätiön nimi muutettiin Raahen Seudun Asuntosäätiöksi Raahen kaupungin ja Saloisten kunnan yhdistyttyä 1973. Aunola 2012, 20–21, 63, 79, 212–14.
[4] Aunola 2012, 30–35, 218.
[5] Helaakoski 1998.
[6] Rajaniemi 2006, 120–121.
[7] Raahen Seutu 24.11.1966.
[8] Testamenttiarkistosta löytynyt kirjoitus. Allekirjoittamattomassa ja vuodelle 1968 päivätyssä käsikirjoituksessa mahdollisesti Kivinen itse kuvailee alueen länsiosan liikenneratkaisuja. Kirjoittajan henkilöllisyys jää epävarmaksi, sillä pitkälti samansisältöinen kirjoitus julkaistiin Raahen Seudussa jo 31.8.1967.
[9] Kivinen & Tiihonen 1977, 34; Kivinen 1968, 3–4.
[10] Toteuttamatta jäivät neljän kerrostalon kortteli luoteisnurkassa, viereinen tontti kolmelle pientalolle, keskusakselin pohjoisin kortteli (seurakuntasali, kerhotiloja ja pienteollisuusrakennus), tämän kaakkoispuolelle suunniteltu kahdeksan rivitalon kokonaisuus. Nämä korttelit olivat lähes kokonaan yksityisomistuksessa. Kivinen 1972, liitekartta maanomistuksesta.
[11] Kautto, Holmila & Turtiainen 1990, 74.
[12] Kautto, Holmila & Turtiainen 1990, 75.
[13] Raahen Seutu 24.11.1966.
[14] Vahtera & Vahtera 2008, 44.
[15] Kivinen & Tiihonen 1977, 34.
[16] Helsingin Sanomat 22.1.1968. Pentinpuro 1968.
[17] Raahen ja Saloisten Seudun Asuntosäätiön rakennustoimikunnan puheenjohtajan yli-insinööri Toivo Härkösen haastattelu: ensimmäiset 66 kerrostaloasuntoa olivat käytössä, mutta 20 rivitaloasunnosta 12 oli vielä vapaana. Toisessa rakennusvaiheessa valmistuvista 112 kerrostaloasunnosta vapaana oli yli puolet. Raahen Seutu 25.1.1968.
[18] Helsingin Sanomat 22.1.1968. Aunola 2012, 46, 49.
[19] Syynä huoneistokokojen laskuun oli ilmeisesti asuntolainoitettujen talojen vuokrien kohoaminen. Kivinen & Tiihonen 1977, 34.
[20] Porrashuoneiden yhteistilat siirrettiin kellarikerroksiin. Kivinen & Tiihonen 1977, 34.
[21] Kivinen & Tiihonen 1977, 34.
[22] Kivinen 1972, 4.
[23] Nyman 2003, 65–67.
[24] Kivinen & Tiihonen 1977, 34.
[25] Nousiainen 2003.
[26] Helaakoski 1998.
[27] Meurman 1947, 309.
Rautaruukkilaisten asuinalue
Asuntosäätiö osti 1963 yksityishenkilöiltä 60 hehtaarin alueen Ollinsaaren kartanon mailta asuntotuotantoa varten. Rautaruukki-taustaisen säätiön toiminnan myötä Ollinsaaresta tuli leimallisesti terästehtaan työntekijöiden ja heidän perheidensä asuinalue, vaikka sinne muutti jonkin verran muitakin asukkaita. Ollinsaareen oli määrä rakentaa asuntoja 2 500:lle, joista pääosa kerrostaloihin ja kolmasosa rivi- ja omakotitaloihin. Myöhemmin asukastavoite nousi 4 000:een viereisen Mestauskallion omakotitaloalue mukaan lukien.
Asuntosäätiön hallitus halusi, että Ollinsaaren tuleva asutus sopisi hyvin ympäristöönsä ja että alueen suunnittelisivat maan parhaat suunnittelijat. Alueen rakennuskaavan suunnittelu annettiin Olli Kivisen tehtäväksi.[4] Vuonna 1998, pari kuukautta ennen kuolemaansa, Kivinen kertoi alueen suunnittelun olleen nuorelle arkkitehdille merkittävä kokemus ja tilaajalta suuri luottamuksen osoitus.[5] Kivinen tosin oli Ollinsaaren suunnittelun alkaessa 42-vuotias Teknillisen korkeakoulun asemakaavaopin professori sekä kokenut ja arvostettu kaupunkisuunnittelija.
Ollinsaaren suunnittelutavoite: asukkainen viihtyminen
Ollinsaaren suunnittelun aikoihin lähiösuunnittelua hallitsi uusruutukaava. Ollinsaaren rakennusten lounais-koilliskoordinaatiston voi nähdä myönnytyksenä tälle periaatteelle. Toisaalta puutarhapalstoineen ja suurine viheralueineen alue on Tapiola-tyyppisen puutarhalähiön ruumiillistuma.[6] Ollinsaari on kerrostalovaltainen, mutta rivitaloille ja omakotitaloille on omat korttelinsa. Alueella ovat julkiset ja kaupalliset peruspalvelut. Suunnittelun lähtökohtana oli asukkaiden suuretkin vaatimukset täyttävä viihtyisyys,[7] johon sisältyivät väljyys, luonnonläheisyys, liikenneturvallisuus, leikki- ja urheilupaikat sekä asukkaiden viljelemät puutarhapalstat.
Asuinrakennukset ovat kahdella mäenharjanteella, joiden väliselle alavalle peltoalueelle kaavoitettiin nauhamaisesti palvelukeskus. Jalankulkuväylät yhdistävät asuin- ja palvelukorttelit toisiinsa. Kokonaisratkaisu on keuhkokaavion mukainen. Pohjolan Työ -lehden julkaistavaksi tarkoitetussa käsikirjoituksessa kuvataan länsiosan liikenneratkaisuja: ”Suunnitelmassa on onnistuttu ohjaamaan autojen ajoliikenne kokonaan alueen laidoille, keskustaan ei ole autoilla asiaa ja vanhemmat voivat huoletta sallia lastensa kirmata asuntoalueen sisäisillä teillä ja leikkipaikoilla, kun ei tarvitse pelätä autojen päälleajoa.” Kirjoittaja kehottaa paikkakuntalaisia ”ohjaamaan ilta- ja sunnuntaikävelyt Ollinsaareen katsomaan miten uusasiallisesti suunnitellussa puistokaupunginosassa asutaan ja jos se miellyttää, pyrkimään sinne kotiutumaan”.[8]
Kivinen toimistoineen suunnitteli Ollinsaaren lähiöön sekä rakennuskaavat että lähes kaikki rakennukset. Rakennussuunnitelmia laadittiin aluksi kovan asuntopulan takia yhtä aikaa kaavasuunnittelun kanssa, mikä mahdollisti samanaikaisen rakennuskaavan kehittämisen ja rakennusten sijoittamisen maaston mukaisesti.[9] Kaavasuunnitelmasta toteutettiin noin 90 %.[10]
Ensimmäinen vaihe: viihtyisää arkea rautaruukkilaisille
Ensimmäisessä vaiheessa valmistui kuusi 2-3-kerroksista pienkerrostaloa, jotka muodostavat kolme ilta-auringon suuntaan avautuvaa pihaa. Pihoista näkee alueen läpi kulkevalle kävelyväylälle, jolta Kivisen mukaan Ollinsaarta tuleekin katsoa.[11] Autokatokset ovat korttelipihojen ja kaarevan kokoojakadun, Ollinsaarentien, välissä, jossa ne ovat rajoittavia ja rauhoittavia elementtejä. Rakennukset valmistuivat 1967, ja niissä on 66 asuntolainoitettua vuokra- ja omistusasuntoa. Asuntojen keskipinta-ala on 69 neliötä. Asunnot ulottuvat talon läpi, ja kekseliäs julkisivuaukotus tekee niistä valoisia. Julkisivumateriaaleja on vähän ja ne ovat maanläheisiä: punatiili, raakabetoni ja vaakalauta muutamin yksityiskohdin höystettynä. Sisääntulojulkisivuissa maasta räystäslinjaan ulottuvat pilasterimaiset tiiliseinäpäädyt luovat klassiseen arkkitehtuuriin viittaavaa rytmiä ja arvokkuutta. Arkkitehtuurista Kivinen on kiittänyt toimistossa työskennellyttä arkkitehti Markku Niemeä.[12]
[KUVA 5. Ensimmäisen vaiheen pienkerrostalon sisääntulojulkisivu. vuoden 2018 toukokuussa]
Ensimmäisen vaiheen pienkerrostalojen suunnittelussa Kivinen kiinnitti erityistä huomiota ääneneristykseen. Hyvällä ääneneristyksellä hän todennäköisesti ajatteli rautatehtaan vuorotyöläisten tarpeita, kuten myöhäisiä ja varhaisia kotiintulo- ja töihinlähtöaikoja, sekä päiväaikaisen levon tarvetta. Asuntojen sisäänkäynti on kylmästä porrashuoneesta, jota suojaa kaareva betonikierreporras. Portaiden runko on erotettu muun rakennusten rungosta, jotta askeläänet eivät häiritsisi. Betoniväliseinät ja välipohjalaatat rakennettiin normaalia paksummiksi paremman ääneneristävyyden saavuttamiseksi.[13] Lisäksi suuremmissa asunnoissa yksi makuuhuone on eristetty muusta huoneistosta kahdella ovella. Kivinen piti ensiarvoisena sitä, että asumisolosuhteet tarjoavat inhimillisen vastapainon terästehtaassa työskentelylle.[14]
[KUVA 7. Ensimmäisen vaiheen (1967) pienkerrostalolamellin pohjapiirros. Kuva: Arkkitehti 1977/7.]
Ensimmäiseen rakennusvaiheeseen kuului myös 20 rivitaloasuntoa, jotka sijaitsevat pienten kujien molemmin puolin siten, että jokaisella asunnolla on suljettu takapiha. Takapihojen välissä on noin 20 metrin levyinen puistokaistale, jonka rivitalojen asukkaat ovat ottaneet osin käyttöönsä. Rivitaloja kutsutaan paikkakunnalla niiden pohjamuodon johdosta ”kampataloiksi”.
[KUVA 8. Näkymä rivitalokujalle vuoden 2018
Toinen vaihe: kustannussäästöjä ja viherympäristöä
Toisessa vaiheessa, jota Kivisen toimisto suunnitteli 1967–69, jouduttiin kustannussyistä luopumaan joistakin ensimmäisen vaiheen hienoista ratkaisuista. Välipohjalaattojen pitkät jännevälit, kylmä porrastila ja kaksikerroksinen rakentaminen nostivat liikaa kustannuksia. Tämän vuoksi päädyttiin kolmikerroksiseen rakentamiseen osittain maanpäällisin kellaritiloin.[15] Asuntojen keskikoko laski 66 neliöön. Pääjulkisivumateriaalit olivat samat kuin ensimmäisessä vaiheessa, mutta julkisivujäsentely muuttui tavanomaisemmaksi.
[KUVA 9. Toisen vaiheen (1968) kerrostalolamellin pohjapiirros. Kuva: Arkkitehti 1977/7.]
Korttelit muutettiin neljältä sivulta rajatuiksi, nurkistaan hieman avatuiksi umpikortteleiksi, joiden keskellä on suuri piha-alue, noin 60 x 50 metriä. Korttelirakenne on tuulimyllykorttelista kehitetty uusi versio, jossa rakennusmassojen suhde pihapiiriin on harmoninen. Tuulimyllykorttelin alkuperäisistä periaatteista on tunnistettavissa korttelin keskusalueen suuri ruohokenttä. Autopaikat toimivat edelleen puskurina Ollinsaarentien ja asuinkorttelien välillä.
[KUVA 10. Näkymä toisen vaiheen pihapiiristä vuoden 2018 toukokuussa.]
Toisen rakentamisvaiheen ensimmäiset kaksi tonttia ja niiden 112 asuntoa valmistuivat 1968. Kolmas vaihe valmistui viiveellä 1971. Ollinsaareen oli muutettu oletettua hitaammin, joten rakentamisen aloittamista lykättiin. Helsingin Sanomissa uutisoitiin 1968 Ollinsaaressa olleen vuoden verran tyhjillään yli 80 uutta huoneistoa.[16] Raahen Seutu korjasi uutista ja totesi: ”huomattava osa Rautaruukin työntekijöistä on poikamiehiä, jotka naimisiin mennessään tarvitsevat oman asunnon”.[17] Rakentamisen tauolla parannettiin valaistusta, katuverkkoa ja istutettiin 3 000 koivua ja 1 300 koristepensasta. Puistomaisuus oli alkuperäisen suunnitelman mukaista.
Ollinsaaren rakentaminen oli sidoksissa rautatehtaan rakentamisen vaiheisiin. Kolmas tontti ja sen 56 asuntoa lähtivät rakenteille 1970, jolloin Rautaruukin terästehdas käynnisti laajennushankkeita.[18]
Kolmas ja neljäs vaihe: tavoitteena edullisemmat rakennuskustannukset
Palvelukeskuksen ja Pajuniityntien kaakonpuoleisen rinteen rakennusvaiheissa vaadittiin edullisempia suunnitteluratkaisuja. Puun ja punatiilen sijaan tulivat Siporex-elementit, jotka eivät käytännössä osoittautuneet juurikaan edullisemmiksi. Kerrosluku säilyi kolmena, asuntojen pohjapiirrosten uutuus oli porraskäytävien yhteyteen kerroksittain sijoitetut varastot.[19]
[KUVA 11. Kolmannen vaiheen kerrostalolamellin pohjapiirros. Kuva: Arkkitehti 1977/7.]
Neljännessä vaiheessa (1973–75) osa taloista tehtiin nelikerroksisina betonielementtitaloina. Raahen Seudun Asuntosäätiö tuki ratkaisulla seudun betonielementtitehtaiden työllisyyttä. Asuntojen keskikoko laski ensin 65 neliöön ja sitten 57 neliöön. Kolmannessa vaiheessa valmistui 113 asuntoa ja neljännessä 292 asuntoa.[20]
[KUVA 12. Neljännen vaiheen kerrostalolamellin pohjapiirros. Kuva: Arkkitehti 1977/7.]
Arkkitehtuurissa on linjakas horisontaalinauha ja selkeä julkisivupinta. Yleisilme on ajankohdalle ominaista elementtikerrostalorakentamista. Sisäpihoilta on suora yhteys pysäköintialueelle, joka on kortteleiden reunoilla.
[KUVAT 13 ja 14. Näkymä neljännen vaiheen pihapiiristä talvella 1976 ja toukokuussa 2018. Kuva 13: Aarre Aunola.]
Viides vaihe: rakentamista laadun kustannuksella
Viimeinen rakentamisvaihe valmistui 1976 ja 1977 Ollinsaaren lounaiskulmaan. Kustannusnousun välttämiseksi betonijulkisivut maalattiin ja rakennusten muoto yksinkertaistettiin. Kaikkiaan 142 asunnon keskipinta-ala on 60 neliötä.[21]
[KUVA 15. Viidennen vaiheen kerrostaloja toukokuussa 2018. Kuva: Arkkitehti 1977/7.]
Kaavassa kerrosluku oli seitsemän. Rakennusten tuli olla maamerkkejä alueen saapumissuunnan reunalla ja keskusta-akselin päätteessä, Kivisen sanoin: ”tunnistamisdominantin, joka elävöittäisi ympäristöä.”[22] Toteutunut kerrosluku on 3–5 ja elävöittämisen sijaan julkisivuelementit ja -sommittelu ovat yksitoikkoisia. Pihat aukeavat metsäiseen mäkeen, ja pysäköintialueet ovat kortteleiden reunoilla.
Asuntomäärä kerrostalopihaa kohden on 70. Ensimmäisessä vaiheessa luku oli 22 ja seuraavissa viitisenkymmentä. Vastaavasti nousi rappukäytävän kunkin kerrostason asuntomäärä. Ensin se oli kaksi, sitten kolme ja lopuksi neljä.
[KUVA 16. Viidennen vaiheen kerrostalolamellin pohjapiirros.]
Olli Kivisen johdolla hänen arkkitehtitoimistonsa vastasi Ollinsaaren suunnittelusta alusta loppuun. Rakennusvaiheiden arkkitehtoninen laatu heikkeni 1960-luvun puolivälistä 1970-luvun loppupuolelle. Tehokkuudesta tuli arvo ja kustannussäästöstä suunnittelun tärkeä mittari. Rakentaminen oli liiketoimintaa, joka tuotti pelkistettyä arkkitehtuuria.[23] Arkkitehdit Olli Kivinen ja Lauri Tiihonen tilittivät alueen valmistuttua: ”Kohoavat rakennuskustannukset muuttivat alun perin suunnittelijan tähtäimessä ollutta miljöökokonaisuutta kohti asuntolainoitetulle kerrostalorakentamiselle tyypillistä yksiviivaisuutta ja pitäytymistä kaikkialla toistuviin rakennustyyppeihin, joita ainoastaan rakennusten vaihtuminen rivi- ja omakotitaloihin jossain määrin saattoi elävöittää.”[24]
Ihmisläheinen ja luonnonläheinen Ollinsaari
Suuren alueen toteuttaminen 10 vuodessa oli Raahen pienessä kaupungissa melkoinen saavutus, etenkin kun rakennustyössä oli parin vuoden katko. Tuloksena syntyi asuinalue, joka on kaupunkirakennustaiteellinen kokonaistaideteos.
Ollinsaaren rakennuskanta on jokseenkin kertaalleen peruskorjattu. Rakennusten autenttisuuden kannalta jotkut korjausratkaisut ovat onnistuneet hyvin. Joissakin on toivomisen varaa: kattoja on muutettu tasakatoista harjakatoiksi, julkisivupintoja on korvattu teräskaseteilla ja parvekkeiden yhteyteen on lisätty alkuperäiselle arkkitehtuurille vieraita elementtejä. ”Vain runko jätettiin, kaikki muu on rakennettu ja sisustettu uusiksi”, kerrottiin paikallislehdessä toisen rakennusvaiheen korttelissa sijaitsevan kolmen kerrostalon remontista.[25] Kivisen mielestä kolmannen vaiheen rakennusten korjauksissa on alkuperäisyyttä säilytetty ja alueella on ”erittäin hyvää ihmisläheistä asumista”.[26]
[KUVA 17. Kolmannen rakennusvaiheen peruskorjattuja taloja (toukokuu 2018).]
Tulevissa asemakaavamuutoksissa pohdittavana on alueen suojelun ja rakennussuojelun tarve ja kattavuus. Ensimmäisen rakennusvaiheen pienkerrostalot, arkkitehtonisesti Ollinsaaren korkeatasoisimmat, ovat säilyneet ulkonäöltään alkuperäisinä ja viehättävinä. Alueen identiteetin keskeiset periaatteet, väljyys ja luonnonläheisyys, tulee jatkossakin säilyttää. Saman aikakauden lähiöissä nämä kantavat ideat on usein tuhottu liialla täydennysrakentamisella. Tiiviin ja monikäyttöisen kaupunkiympäristön tavoittelussa unohtuu, että lähiösuunnittelun keskeiset aatteet olivat päinvastaiset; haluttiin väljyyttä ja toimintojen erottelua toisistaan.
”Kaikki kaupunkimaisen asutuksen epäkohdat pohjautuvat lopulta asutuksen liialliseen kasautumiseen ahtaalle alueelle”, kirjoitti professori Otto-Iivari Meurman Asemakaavaopissa 1947.[27] Ollinsaari on 1960- ja 70-lukujen yhteiskunnallisten arvojen ja lähiösuunnitteluideologian tuote. Sellaisena se on yksi Suomen edustavimmista lähiöistä, jossa toteutuu Kivisen ensisijaisena tavoitteena ollut viihtyisyys.
Kirjoittaja
Juho Rajaniemi, tekniikan tohtori, yhdyskuntasuunnittelun professori, Tampereen ylipisto. Artikkeli perustuu tekijän väitöskirjaan Kasvun kaavoitus. Tapaus Raahe 1961–1996 sekä tätä artikkelia varten tehtyyn tutkimustyöhön.
Artikkeli on julkaistu 2019.
Lähteet
Aunola, Auno 2012: Edelläkävijä. Raahen Seudun Asuntosäätiö 50 vuotta. Raahe, Raahen Seudun Asuntosäätiö.
Helaakoski, Anne 1998: Ollinsaaren peruskorjaus sai Ollin siunauksen. Raahen Seutu 25.9.1998.
Jaatinen, Sari 2015: Ollinsaari, maakunnan arvokkain lähiö. Raahen Seutu 16.9.2015.
Kautto, Jussi 1990: Haastattelussa Olli Kivinen. Kaupunkisuunnittelun professori ja kaupunkirakenteen hahmottaja. Teoksessa Suomalaista kaupunkiarkkitehtuuria. Toim. Jussi Kautto, Ilkka Holmila & Jukka Turtiainen. Helsinki: Suomen rakennustaiteen museo ja Ympäristöministeriö, 72–76.
Kekkonen, Urho 1952: Onko maallamme malttia vaurastua? Helsinki: Otava.
Kivinen, Olli 1968: Saloinen. Ollinsaaren alue. Rakennuskaavan selostus.
Kivinen, Olli 1972: Saloinen. Ollinsaari. Rakennuskaava ja rakennuskaavan muutoksen selostus.
Kivinen, Olli & Tiihonen, Lauri 1977: Ollinsaari / Rautaruukin asuntoalue. Arkkitehti 7/1977, 34–37.
Meurman, Otto-I. 1947: Asemakaavaoppi. Helsinki: Otava.
Nousiainen, Tuulikki 2003: Kerrostaloihin remontoitiin ylellisyyttä. Raahen Seutu 29.8.2003.
Nyman, Kaj 2003: Sinisilmäisyyden aika. Suunnittelun myyttejä 1950–2000. Helsinki: Rakennusalan Kustantajat RAK ja Kustantajat Sarmala Oy.
Pentinpuro, Leila 1968: Raahessa ei tunneta asuntopulaa. Helsingin Sanomat 22.1.1968.
Raahen Seutu 24.11.1966. Asukkaiden viihtyisyys otettu lähtökohdaksi Ollinsaaren asuntoalueen suunnittelussa.
Raahen Seutu 25.1.1968. Pääkaupunkilaislehden kirjoitus Raahen ja Ollinsaaren asuntotilanteesta harhauttava.
Rajaniemi, Juho 2006: Kasvun kaavoitus. Tapaus Raahe 1961–1996. Kankaanpää: Messon Oy.
Vahtera, Kalle & Vahtera, Ulla 2008: Kivinen. Rakennettu ympäristö RY 1/2008, 42–46.
Viitteet
[1] Virallisen sijoittamispäätöksen teki Rautaruukki Oy:n hallintoneuvosto 17.2.1961. Rajaniemi 2006, 27; Aunola 2012, 9-11.
[2] Kekkonen 1952, 74.
[3] Raahen ja Saloisten Seudun Asuntosäätiö merkittiin säätiörekisteriin tammikuussa 1962. Säätiön nimi muutettiin Raahen Seudun Asuntosäätiöksi Raahen kaupungin ja Saloisten kunnan yhdistyttyä 1973. Aunola 2012, 20–21, 63, 79, 212–14.
[4] Aunola 2012, 30–35, 218.
[5] Helaakoski 1998.
[6] Rajaniemi 2006, 120–121.
[7] Raahen Seutu 24.11.1966.
[8] Testamenttiarkistosta löytynyt kirjoitus. Allekirjoittamattomassa ja vuodelle 1968 päivätyssä käsikirjoituksessa mahdollisesti Kivinen itse kuvailee alueen länsiosan liikenneratkaisuja. Kirjoittajan henkilöllisyys jää epävarmaksi, sillä pitkälti samansisältöinen kirjoitus julkaistiin Raahen Seudussa jo 31.8.1967.
[9] Kivinen & Tiihonen 1977, 34; Kivinen 1968, 3–4.
[10] Toteuttamatta jäivät neljän kerrostalon kortteli luoteisnurkassa, viereinen tontti kolmelle pientalolle, keskusakselin pohjoisin kortteli (seurakuntasali, kerhotiloja ja pienteollisuusrakennus), tämän kaakkoispuolelle suunniteltu kahdeksan rivitalon kokonaisuus. Nämä korttelit olivat lähes kokonaan yksityisomistuksessa. Kivinen 1972, liitekartta maanomistuksesta.
[11] Kautto, Holmila & Turtiainen 1990, 74.
[12] Kautto, Holmila & Turtiainen 1990, 75.
[13] Raahen Seutu 24.11.1966.
[14] Vahtera & Vahtera 2008, 44.
[15] Kivinen & Tiihonen 1977, 34.
[16] Helsingin Sanomat 22.1.1968. Pentinpuro 1968.
[17] Raahen ja Saloisten Seudun Asuntosäätiön rakennustoimikunnan puheenjohtajan yli-insinööri Toivo Härkösen haastattelu: ensimmäiset 66 kerrostaloasuntoa olivat käytössä, mutta 20 rivitaloasunnosta 12 oli vielä vapaana. Toisessa rakennusvaiheessa valmistuvista 112 kerrostaloasunnosta vapaana oli yli puolet. Raahen Seutu 25.1.1968.
[18] Helsingin Sanomat 22.1.1968. Aunola 2012, 46, 49.
[19] Syynä huoneistokokojen laskuun oli ilmeisesti asuntolainoitettujen talojen vuokrien kohoaminen. Kivinen & Tiihonen 1977, 34.
[20] Porrashuoneiden yhteistilat siirrettiin kellarikerroksiin. Kivinen & Tiihonen 1977, 34.
[21] Kivinen & Tiihonen 1977, 34.
[22] Kivinen 1972, 4.
[23] Nyman 2003, 65–67.
[24] Kivinen & Tiihonen 1977, 34.
[25] Nousiainen 2003.
[26] Helaakoski 1998.
[27] Meurman 1947, 309.
Ensimmäisen vaiheen pienkerrostalojen suunnittelussa Kivinen kiinnitti erityistä huomiota ääneneristykseen. Hyvällä ääneneristyksellä hän todennäköisesti ajatteli rautatehtaan vuorotyöläisten tarpeita, kuten myöhäisiä ja varhaisia kotiintulo- ja töihinlähtöaikoja, sekä päiväaikaisen levon tarvetta. Asuntojen sisäänkäynti on kylmästä porrashuoneesta, jota suojaa kaareva betonikierreporras. Portaiden runko on erotettu muun rakennusten rungosta, jotta askeläänet eivät häiritsisi. Betoniväliseinät ja välipohjalaatat rakennettiin normaalia paksummiksi paremman ääneneristävyyden saavuttamiseksi.[13] Lisäksi suuremmissa asunnoissa yksi makuuhuone on eristetty muusta huoneistosta kahdella ovella. Kivinen piti ensiarvoisena sitä, että asumisolosuhteet tarjoavat inhimillisen vastapainon terästehtaassa työskentelylle.[14]
Ensimmäiseen rakennusvaiheeseen kuului myös 20 rivitaloasuntoa, jotka sijaitsevat pienten kujien molemmin puolin siten, että jokaisella asunnolla on suljettu takapiha. Takapihojen välissä on noin 20 metrin levyinen puistokaistale, jonka rivitalojen asukkaat ovat ottaneet osin käyttöönsä. Rivitaloja kutsutaan paikkakunnalla niiden pohjamuodon johdosta ”kampataloiksi”.
Toinen vaihe: kustannussäästöjä ja viherympäristöä
Toisessa vaiheessa, jota Kivisen toimisto suunnitteli 1967–69, jouduttiin kustannussyistä luopumaan joistakin ensimmäisen vaiheen hienoista ratkaisuista. Välipohjalaattojen pitkät jännevälit, kylmä porrastila ja kaksikerroksinen rakentaminen nostivat liikaa kustannuksia. Tämän vuoksi päädyttiin kolmikerroksiseen rakentamiseen osittain maanpäällisin kellaritiloin.[15] Asuntojen keskikoko laski 66 neliöön. Pääjulkisivumateriaalit olivat samat kuin ensimmäisessä vaiheessa, mutta julkisivujäsentely muuttui tavanomaisemmaksi.
[KUVA 9. Toisen vaiheen (1968) kerrostalolamellin pohjapiirros. Kuva: Arkkitehti 1977/7.]
Korttelit muutettiin neljältä sivulta rajatuiksi, nurkistaan hieman avatuiksi umpikortteleiksi, joiden keskellä on suuri piha-alue, noin 60 x 50 metriä. Korttelirakenne on tuulimyllykorttelista kehitetty uusi versio, jossa rakennusmassojen suhde pihapiiriin on harmoninen. Tuulimyllykorttelin alkuperäisistä periaatteista on tunnistettavissa korttelin keskusalueen suuri ruohokenttä. Autopaikat toimivat edelleen puskurina Ollinsaarentien ja asuinkorttelien välillä.
[KUVA 10. Näkymä toisen vaiheen pihapiiristä vuoden 2018 toukokuussa.]
Toisen rakentamisvaiheen ensimmäiset kaksi tonttia ja niiden 112 asuntoa valmistuivat 1968. Kolmas vaihe valmistui viiveellä 1971. Ollinsaareen oli muutettu oletettua hitaammin, joten rakentamisen aloittamista lykättiin. Helsingin Sanomissa uutisoitiin 1968 Ollinsaaressa olleen vuoden verran tyhjillään yli 80 uutta huoneistoa.[16] Raahen Seutu korjasi uutista ja totesi: ”huomattava osa Rautaruukin työntekijöistä on poikamiehiä, jotka naimisiin mennessään tarvitsevat oman asunnon”.[17] Rakentamisen tauolla parannettiin valaistusta, katuverkkoa ja istutettiin 3 000 koivua ja 1 300 koristepensasta. Puistomaisuus oli alkuperäisen suunnitelman mukaista.
Ollinsaaren rakentaminen oli sidoksissa rautatehtaan rakentamisen vaiheisiin. Kolmas tontti ja sen 56 asuntoa lähtivät rakenteille 1970, jolloin Rautaruukin terästehdas käynnisti laajennushankkeita.[18]
Kolmas ja neljäs vaihe: tavoitteena edullisemmat rakennuskustannukset
Palvelukeskuksen ja Pajuniityntien kaakonpuoleisen rinteen rakennusvaiheissa vaadittiin edullisempia suunnitteluratkaisuja. Puun ja punatiilen sijaan tulivat Siporex-elementit, jotka eivät käytännössä osoittautuneet juurikaan edullisemmiksi. Kerrosluku säilyi kolmena, asuntojen pohjapiirrosten uutuus oli porraskäytävien yhteyteen kerroksittain sijoitetut varastot.[19]
[KUVA 11. Kolmannen vaiheen kerrostalolamellin pohjapiirros. Kuva: Arkkitehti 1977/7.]
Neljännessä vaiheessa (1973–75) osa taloista tehtiin nelikerroksisina betonielementtitaloina. Raahen Seudun Asuntosäätiö tuki ratkaisulla seudun betonielementtitehtaiden työllisyyttä. Asuntojen keskikoko laski ensin 65 neliöön ja sitten 57 neliöön. Kolmannessa vaiheessa valmistui 113 asuntoa ja neljännessä 292 asuntoa.[20]
[KUVA 12. Neljännen vaiheen kerrostalolamellin pohjapiirros. Kuva: Arkkitehti 1977/7.]
Arkkitehtuurissa on linjakas horisontaalinauha ja selkeä julkisivupinta. Yleisilme on ajankohdalle ominaista elementtikerrostalorakentamista. Sisäpihoilta on suora yhteys pysäköintialueelle, joka on kortteleiden reunoilla.
[KUVAT 13 ja 14. Näkymä neljännen vaiheen pihapiiristä talvella 1976 ja toukokuussa 2018. Kuva 13: Aarre Aunola.]
Viides vaihe: rakentamista laadun kustannuksella
Viimeinen rakentamisvaihe valmistui 1976 ja 1977 Ollinsaaren lounaiskulmaan. Kustannusnousun välttämiseksi betonijulkisivut maalattiin ja rakennusten muoto yksinkertaistettiin. Kaikkiaan 142 asunnon keskipinta-ala on 60 neliötä.[21]
[KUVA 15. Viidennen vaiheen kerrostaloja toukokuussa 2018. Kuva: Arkkitehti 1977/7.]
Kaavassa kerrosluku oli seitsemän. Rakennusten tuli olla maamerkkejä alueen saapumissuunnan reunalla ja keskusta-akselin päätteessä, Kivisen sanoin: ”tunnistamisdominantin, joka elävöittäisi ympäristöä.”[22] Toteutunut kerrosluku on 3–5 ja elävöittämisen sijaan julkisivuelementit ja -sommittelu ovat yksitoikkoisia. Pihat aukeavat metsäiseen mäkeen, ja pysäköintialueet ovat kortteleiden reunoilla.
Asuntomäärä kerrostalopihaa kohden on 70. Ensimmäisessä vaiheessa luku oli 22 ja seuraavissa viitisenkymmentä. Vastaavasti nousi rappukäytävän kunkin kerrostason asuntomäärä. Ensin se oli kaksi, sitten kolme ja lopuksi neljä.
[KUVA 16. Viidennen vaiheen kerrostalolamellin pohjapiirros.]
Olli Kivisen johdolla hänen arkkitehtitoimistonsa vastasi Ollinsaaren suunnittelusta alusta loppuun. Rakennusvaiheiden arkkitehtoninen laatu heikkeni 1960-luvun puolivälistä 1970-luvun loppupuolelle. Tehokkuudesta tuli arvo ja kustannussäästöstä suunnittelun tärkeä mittari. Rakentaminen oli liiketoimintaa, joka tuotti pelkistettyä arkkitehtuuria.[23] Arkkitehdit Olli Kivinen ja Lauri Tiihonen tilittivät alueen valmistuttua: ”Kohoavat rakennuskustannukset muuttivat alun perin suunnittelijan tähtäimessä ollutta miljöökokonaisuutta kohti asuntolainoitetulle kerrostalorakentamiselle tyypillistä yksiviivaisuutta ja pitäytymistä kaikkialla toistuviin rakennustyyppeihin, joita ainoastaan rakennusten vaihtuminen rivi- ja omakotitaloihin jossain määrin saattoi elävöittää.”[24]
Ihmisläheinen ja luonnonläheinen Ollinsaari
Suuren alueen toteuttaminen 10 vuodessa oli Raahen pienessä kaupungissa melkoinen saavutus, etenkin kun rakennustyössä oli parin vuoden katko. Tuloksena syntyi asuinalue, joka on kaupunkirakennustaiteellinen kokonaistaideteos.
Ollinsaaren rakennuskanta on jokseenkin kertaalleen peruskorjattu. Rakennusten autenttisuuden kannalta jotkut korjausratkaisut ovat onnistuneet hyvin. Joissakin on toivomisen varaa: kattoja on muutettu tasakatoista harjakatoiksi, julkisivupintoja on korvattu teräskaseteilla ja parvekkeiden yhteyteen on lisätty alkuperäiselle arkkitehtuurille vieraita elementtejä. ”Vain runko jätettiin, kaikki muu on rakennettu ja sisustettu uusiksi”, kerrottiin paikallislehdessä toisen rakennusvaiheen korttelissa sijaitsevan kolmen kerrostalon remontista.[25] Kivisen mielestä kolmannen vaiheen rakennusten korjauksissa on alkuperäisyyttä säilytetty ja alueella on ”erittäin hyvää ihmisläheistä asumista”.[26]
[KUVA 17. Kolmannen rakennusvaiheen peruskorjattuja taloja (toukokuu 2018).]
Tulevissa asemakaavamuutoksissa pohdittavana on alueen suojelun ja rakennussuojelun tarve ja kattavuus. Ensimmäisen rakennusvaiheen pienkerrostalot, arkkitehtonisesti Ollinsaaren korkeatasoisimmat, ovat säilyneet ulkonäöltään alkuperäisinä ja viehättävinä. Alueen identiteetin keskeiset periaatteet, väljyys ja luonnonläheisyys, tulee jatkossakin säilyttää. Saman aikakauden lähiöissä nämä kantavat ideat on usein tuhottu liialla täydennysrakentamisella. Tiiviin ja monikäyttöisen kaupunkiympäristön tavoittelussa unohtuu, että lähiösuunnittelun keskeiset aatteet olivat päinvastaiset; haluttiin väljyyttä ja toimintojen erottelua toisistaan.
”Kaikki kaupunkimaisen asutuksen epäkohdat pohjautuvat lopulta asutuksen liialliseen kasautumiseen ahtaalle alueelle”, kirjoitti professori Otto-Iivari Meurman Asemakaavaopissa 1947.[27] Ollinsaari on 1960- ja 70-lukujen yhteiskunnallisten arvojen ja lähiösuunnitteluideologian tuote. Sellaisena se on yksi Suomen edustavimmista lähiöistä, jossa toteutuu Kivisen ensisijaisena tavoitteena ollut viihtyisyys.
Kirjoittaja
Juho Rajaniemi, tekniikan tohtori, yhdyskuntasuunnittelun professori, Tampereen ylipisto. Artikkeli perustuu tekijän väitöskirjaan Kasvun kaavoitus. Tapaus Raahe 1961–1996 sekä tätä artikkelia varten tehtyyn tutkimustyöhön.
Artikkeli on julkaistu 2019.
Lähteet
Aunola, Auno 2012: Edelläkävijä. Raahen Seudun Asuntosäätiö 50 vuotta. Raahe, Raahen Seudun Asuntosäätiö.
Helaakoski, Anne 1998: Ollinsaaren peruskorjaus sai Ollin siunauksen. Raahen Seutu 25.9.1998.
Jaatinen, Sari 2015: Ollinsaari, maakunnan arvokkain lähiö. Raahen Seutu 16.9.2015.
Kautto, Jussi 1990: Haastattelussa Olli Kivinen. Kaupunkisuunnittelun professori ja kaupunkirakenteen hahmottaja. Teoksessa Suomalaista kaupunkiarkkitehtuuria. Toim. Jussi Kautto, Ilkka Holmila & Jukka Turtiainen. Helsinki: Suomen rakennustaiteen museo ja Ympäristöministeriö, 72–76.
Kekkonen, Urho 1952: Onko maallamme malttia vaurastua? Helsinki: Otava.
Kivinen, Olli 1968: Saloinen. Ollinsaaren alue. Rakennuskaavan selostus.
Kivinen, Olli 1972: Saloinen. Ollinsaari. Rakennuskaava ja rakennuskaavan muutoksen selostus.
Kivinen, Olli & Tiihonen, Lauri 1977: Ollinsaari / Rautaruukin asuntoalue. Arkkitehti 7/1977, 34–37.
Meurman, Otto-I. 1947: Asemakaavaoppi. Helsinki: Otava.
Nousiainen, Tuulikki 2003: Kerrostaloihin remontoitiin ylellisyyttä. Raahen Seutu 29.8.2003.
Nyman, Kaj 2003: Sinisilmäisyyden aika. Suunnittelun myyttejä 1950–2000. Helsinki: Rakennusalan Kustantajat RAK ja Kustantajat Sarmala Oy.
Pentinpuro, Leila 1968: Raahessa ei tunneta asuntopulaa. Helsingin Sanomat 22.1.1968.
Raahen Seutu 24.11.1966. Asukkaiden viihtyisyys otettu lähtökohdaksi Ollinsaaren asuntoalueen suunnittelussa.
Raahen Seutu 25.1.1968. Pääkaupunkilaislehden kirjoitus Raahen ja Ollinsaaren asuntotilanteesta harhauttava.
Rajaniemi, Juho 2006: Kasvun kaavoitus. Tapaus Raahe 1961–1996. Kankaanpää: Messon Oy.
Vahtera, Kalle & Vahtera, Ulla 2008: Kivinen. Rakennettu ympäristö RY 1/2008, 42–46.
Viitteet
[1] Virallisen sijoittamispäätöksen teki Rautaruukki Oy:n hallintoneuvosto 17.2.1961. Rajaniemi 2006, 27; Aunola 2012, 9-11.
[2] Kekkonen 1952, 74.
[3] Raahen ja Saloisten Seudun Asuntosäätiö merkittiin säätiörekisteriin tammikuussa 1962. Säätiön nimi muutettiin Raahen Seudun Asuntosäätiöksi Raahen kaupungin ja Saloisten kunnan yhdistyttyä 1973. Aunola 2012, 20–21, 63, 79, 212–14.
[4] Aunola 2012, 30–35, 218.
[5] Helaakoski 1998.
[6] Rajaniemi 2006, 120–121.
[7] Raahen Seutu 24.11.1966.
[8] Testamenttiarkistosta löytynyt kirjoitus. Allekirjoittamattomassa ja vuodelle 1968 päivätyssä käsikirjoituksessa mahdollisesti Kivinen itse kuvailee alueen länsiosan liikenneratkaisuja. Kirjoittajan henkilöllisyys jää epävarmaksi, sillä pitkälti samansisältöinen kirjoitus julkaistiin Raahen Seudussa jo 31.8.1967.
[9] Kivinen & Tiihonen 1977, 34; Kivinen 1968, 3–4.
[10] Toteuttamatta jäivät neljän kerrostalon kortteli luoteisnurkassa, viereinen tontti kolmelle pientalolle, keskusakselin pohjoisin kortteli (seurakuntasali, kerhotiloja ja pienteollisuusrakennus), tämän kaakkoispuolelle suunniteltu kahdeksan rivitalon kokonaisuus. Nämä korttelit olivat lähes kokonaan yksityisomistuksessa. Kivinen 1972, liitekartta maanomistuksesta.
[11] Kautto, Holmila & Turtiainen 1990, 74.
[12] Kautto, Holmila & Turtiainen 1990, 75.
[13] Raahen Seutu 24.11.1966.
[14] Vahtera & Vahtera 2008, 44.
[15] Kivinen & Tiihonen 1977, 34.
[16] Helsingin Sanomat 22.1.1968. Pentinpuro 1968.
[17] Raahen ja Saloisten Seudun Asuntosäätiön rakennustoimikunnan puheenjohtajan yli-insinööri Toivo Härkösen haastattelu: ensimmäiset 66 kerrostaloasuntoa olivat käytössä, mutta 20 rivitaloasunnosta 12 oli vielä vapaana. Toisessa rakennusvaiheessa valmistuvista 112 kerrostaloasunnosta vapaana oli yli puolet. Raahen Seutu 25.1.1968.
[18] Helsingin Sanomat 22.1.1968. Aunola 2012, 46, 49.
[19] Syynä huoneistokokojen laskuun oli ilmeisesti asuntolainoitettujen talojen vuokrien kohoaminen. Kivinen & Tiihonen 1977, 34.
[20] Porrashuoneiden yhteistilat siirrettiin kellarikerroksiin. Kivinen & Tiihonen 1977, 34.
[21] Kivinen & Tiihonen 1977, 34.
[22] Kivinen 1972, 4.
[23] Nyman 2003, 65–67.
[24] Kivinen & Tiihonen 1977, 34.
[25] Nousiainen 2003.
[26] Helaakoski 1998.
[27] Meurman 1947, 309.
Toisen rakentamisvaiheen ensimmäiset kaksi tonttia ja niiden 112 asuntoa valmistuivat 1968. Kolmas vaihe valmistui viiveellä 1971. Ollinsaareen oli muutettu oletettua hitaammin, joten rakentamisen aloittamista lykättiin. Helsingin Sanomissa uutisoitiin 1968 Ollinsaaressa olleen vuoden verran tyhjillään yli 80 uutta huoneistoa.[16] Raahen Seutu korjasi uutista ja totesi: ”huomattava osa Rautaruukin työntekijöistä on poikamiehiä, jotka naimisiin mennessään tarvitsevat oman asunnon”.[17] Rakentamisen tauolla parannettiin valaistusta, katuverkkoa ja istutettiin 3 000 koivua ja 1 300 koristepensasta. Puistomaisuus oli alkuperäisen suunnitelman mukaista.
Ollinsaaren rakentaminen oli sidoksissa rautatehtaan rakentamisen vaiheisiin. Kolmas tontti ja sen 56 asuntoa lähtivät rakenteille 1970, jolloin Rautaruukin terästehdas käynnisti laajennushankkeita.[18]
Kolmas ja neljäs vaihe: tavoitteena edullisemmat rakennuskustannukset
Palvelukeskuksen ja Pajuniityntien kaakonpuoleisen rinteen rakennusvaiheissa vaadittiin edullisempia suunnitteluratkaisuja. Puun ja punatiilen sijaan tulivat Siporex-elementit, jotka eivät käytännössä osoittautuneet juurikaan edullisemmiksi. Kerrosluku säilyi kolmena, asuntojen pohjapiirrosten uutuus oli porraskäytävien yhteyteen kerroksittain sijoitetut varastot.[19]
Neljännessä vaiheessa (1973–75) osa taloista tehtiin nelikerroksisina betonielementtitaloina. Raahen Seudun Asuntosäätiö tuki ratkaisulla seudun betonielementtitehtaiden työllisyyttä. Asuntojen keskikoko laski ensin 65 neliöön ja sitten 57 neliöön. Kolmannessa vaiheessa valmistui 113 asuntoa ja neljännessä 292 asuntoa.[20]
[KUVA 12. Neljännen vaiheen kerrostalolamellin pohjapiirros. Kuva: Arkkitehti 1977/7.]
Arkkitehtuurissa on linjakas horisontaalinauha ja selkeä julkisivupinta. Yleisilme on ajankohdalle ominaista elementtikerrostalorakentamista. Sisäpihoilta on suora yhteys pysäköintialueelle, joka on kortteleiden reunoilla.
[KUVAT 13 ja 14. Näkymä neljännen vaiheen pihapiiristä talvella 1976 ja toukokuussa 2018. Kuva 13: Aarre Aunola.]
Viides vaihe: rakentamista laadun kustannuksella
Viimeinen rakentamisvaihe valmistui 1976 ja 1977 Ollinsaaren lounaiskulmaan. Kustannusnousun välttämiseksi betonijulkisivut maalattiin ja rakennusten muoto yksinkertaistettiin. Kaikkiaan 142 asunnon keskipinta-ala on 60 neliötä.[21]
[KUVA 15. Viidennen vaiheen kerrostaloja toukokuussa 2018. Kuva: Arkkitehti 1977/7.]
Kaavassa kerrosluku oli seitsemän. Rakennusten tuli olla maamerkkejä alueen saapumissuunnan reunalla ja keskusta-akselin päätteessä, Kivisen sanoin: ”tunnistamisdominantin, joka elävöittäisi ympäristöä.”[22] Toteutunut kerrosluku on 3–5 ja elävöittämisen sijaan julkisivuelementit ja -sommittelu ovat yksitoikkoisia. Pihat aukeavat metsäiseen mäkeen, ja pysäköintialueet ovat kortteleiden reunoilla.
Asuntomäärä kerrostalopihaa kohden on 70. Ensimmäisessä vaiheessa luku oli 22 ja seuraavissa viitisenkymmentä. Vastaavasti nousi rappukäytävän kunkin kerrostason asuntomäärä. Ensin se oli kaksi, sitten kolme ja lopuksi neljä.
[KUVA 16. Viidennen vaiheen kerrostalolamellin pohjapiirros.]
Olli Kivisen johdolla hänen arkkitehtitoimistonsa vastasi Ollinsaaren suunnittelusta alusta loppuun. Rakennusvaiheiden arkkitehtoninen laatu heikkeni 1960-luvun puolivälistä 1970-luvun loppupuolelle. Tehokkuudesta tuli arvo ja kustannussäästöstä suunnittelun tärkeä mittari. Rakentaminen oli liiketoimintaa, joka tuotti pelkistettyä arkkitehtuuria.[23] Arkkitehdit Olli Kivinen ja Lauri Tiihonen tilittivät alueen valmistuttua: ”Kohoavat rakennuskustannukset muuttivat alun perin suunnittelijan tähtäimessä ollutta miljöökokonaisuutta kohti asuntolainoitetulle kerrostalorakentamiselle tyypillistä yksiviivaisuutta ja pitäytymistä kaikkialla toistuviin rakennustyyppeihin, joita ainoastaan rakennusten vaihtuminen rivi- ja omakotitaloihin jossain määrin saattoi elävöittää.”[24]
Ihmisläheinen ja luonnonläheinen Ollinsaari
Suuren alueen toteuttaminen 10 vuodessa oli Raahen pienessä kaupungissa melkoinen saavutus, etenkin kun rakennustyössä oli parin vuoden katko. Tuloksena syntyi asuinalue, joka on kaupunkirakennustaiteellinen kokonaistaideteos.
Ollinsaaren rakennuskanta on jokseenkin kertaalleen peruskorjattu. Rakennusten autenttisuuden kannalta jotkut korjausratkaisut ovat onnistuneet hyvin. Joissakin on toivomisen varaa: kattoja on muutettu tasakatoista harjakatoiksi, julkisivupintoja on korvattu teräskaseteilla ja parvekkeiden yhteyteen on lisätty alkuperäiselle arkkitehtuurille vieraita elementtejä. ”Vain runko jätettiin, kaikki muu on rakennettu ja sisustettu uusiksi”, kerrottiin paikallislehdessä toisen rakennusvaiheen korttelissa sijaitsevan kolmen kerrostalon remontista.[25] Kivisen mielestä kolmannen vaiheen rakennusten korjauksissa on alkuperäisyyttä säilytetty ja alueella on ”erittäin hyvää ihmisläheistä asumista”.[26]
[KUVA 17. Kolmannen rakennusvaiheen peruskorjattuja taloja (toukokuu 2018).]
Tulevissa asemakaavamuutoksissa pohdittavana on alueen suojelun ja rakennussuojelun tarve ja kattavuus. Ensimmäisen rakennusvaiheen pienkerrostalot, arkkitehtonisesti Ollinsaaren korkeatasoisimmat, ovat säilyneet ulkonäöltään alkuperäisinä ja viehättävinä. Alueen identiteetin keskeiset periaatteet, väljyys ja luonnonläheisyys, tulee jatkossakin säilyttää. Saman aikakauden lähiöissä nämä kantavat ideat on usein tuhottu liialla täydennysrakentamisella. Tiiviin ja monikäyttöisen kaupunkiympäristön tavoittelussa unohtuu, että lähiösuunnittelun keskeiset aatteet olivat päinvastaiset; haluttiin väljyyttä ja toimintojen erottelua toisistaan.
”Kaikki kaupunkimaisen asutuksen epäkohdat pohjautuvat lopulta asutuksen liialliseen kasautumiseen ahtaalle alueelle”, kirjoitti professori Otto-Iivari Meurman Asemakaavaopissa 1947.[27] Ollinsaari on 1960- ja 70-lukujen yhteiskunnallisten arvojen ja lähiösuunnitteluideologian tuote. Sellaisena se on yksi Suomen edustavimmista lähiöistä, jossa toteutuu Kivisen ensisijaisena tavoitteena ollut viihtyisyys.
Kirjoittaja
Juho Rajaniemi, tekniikan tohtori, yhdyskuntasuunnittelun professori, Tampereen ylipisto. Artikkeli perustuu tekijän väitöskirjaan Kasvun kaavoitus. Tapaus Raahe 1961–1996 sekä tätä artikkelia varten tehtyyn tutkimustyöhön.
Artikkeli on julkaistu 2019.
Lähteet
Aunola, Auno 2012: Edelläkävijä. Raahen Seudun Asuntosäätiö 50 vuotta. Raahe, Raahen Seudun Asuntosäätiö.
Helaakoski, Anne 1998: Ollinsaaren peruskorjaus sai Ollin siunauksen. Raahen Seutu 25.9.1998.
Jaatinen, Sari 2015: Ollinsaari, maakunnan arvokkain lähiö. Raahen Seutu 16.9.2015.
Kautto, Jussi 1990: Haastattelussa Olli Kivinen. Kaupunkisuunnittelun professori ja kaupunkirakenteen hahmottaja. Teoksessa Suomalaista kaupunkiarkkitehtuuria. Toim. Jussi Kautto, Ilkka Holmila & Jukka Turtiainen. Helsinki: Suomen rakennustaiteen museo ja Ympäristöministeriö, 72–76.
Kekkonen, Urho 1952: Onko maallamme malttia vaurastua? Helsinki: Otava.
Kivinen, Olli 1968: Saloinen. Ollinsaaren alue. Rakennuskaavan selostus.
Kivinen, Olli 1972: Saloinen. Ollinsaari. Rakennuskaava ja rakennuskaavan muutoksen selostus.
Kivinen, Olli & Tiihonen, Lauri 1977: Ollinsaari / Rautaruukin asuntoalue. Arkkitehti 7/1977, 34–37.
Meurman, Otto-I. 1947: Asemakaavaoppi. Helsinki: Otava.
Nousiainen, Tuulikki 2003: Kerrostaloihin remontoitiin ylellisyyttä. Raahen Seutu 29.8.2003.
Nyman, Kaj 2003: Sinisilmäisyyden aika. Suunnittelun myyttejä 1950–2000. Helsinki: Rakennusalan Kustantajat RAK ja Kustantajat Sarmala Oy.
Pentinpuro, Leila 1968: Raahessa ei tunneta asuntopulaa. Helsingin Sanomat 22.1.1968.
Raahen Seutu 24.11.1966. Asukkaiden viihtyisyys otettu lähtökohdaksi Ollinsaaren asuntoalueen suunnittelussa.
Raahen Seutu 25.1.1968. Pääkaupunkilaislehden kirjoitus Raahen ja Ollinsaaren asuntotilanteesta harhauttava.
Rajaniemi, Juho 2006: Kasvun kaavoitus. Tapaus Raahe 1961–1996. Kankaanpää: Messon Oy.
Vahtera, Kalle & Vahtera, Ulla 2008: Kivinen. Rakennettu ympäristö RY 1/2008, 42–46.
Viitteet
[1] Virallisen sijoittamispäätöksen teki Rautaruukki Oy:n hallintoneuvosto 17.2.1961. Rajaniemi 2006, 27; Aunola 2012, 9-11.
[2] Kekkonen 1952, 74.
[3] Raahen ja Saloisten Seudun Asuntosäätiö merkittiin säätiörekisteriin tammikuussa 1962. Säätiön nimi muutettiin Raahen Seudun Asuntosäätiöksi Raahen kaupungin ja Saloisten kunnan yhdistyttyä 1973. Aunola 2012, 20–21, 63, 79, 212–14.
[4] Aunola 2012, 30–35, 218.
[5] Helaakoski 1998.
[6] Rajaniemi 2006, 120–121.
[7] Raahen Seutu 24.11.1966.
[8] Testamenttiarkistosta löytynyt kirjoitus. Allekirjoittamattomassa ja vuodelle 1968 päivätyssä käsikirjoituksessa mahdollisesti Kivinen itse kuvailee alueen länsiosan liikenneratkaisuja. Kirjoittajan henkilöllisyys jää epävarmaksi, sillä pitkälti samansisältöinen kirjoitus julkaistiin Raahen Seudussa jo 31.8.1967.
[9] Kivinen & Tiihonen 1977, 34; Kivinen 1968, 3–4.
[10] Toteuttamatta jäivät neljän kerrostalon kortteli luoteisnurkassa, viereinen tontti kolmelle pientalolle, keskusakselin pohjoisin kortteli (seurakuntasali, kerhotiloja ja pienteollisuusrakennus), tämän kaakkoispuolelle suunniteltu kahdeksan rivitalon kokonaisuus. Nämä korttelit olivat lähes kokonaan yksityisomistuksessa. Kivinen 1972, liitekartta maanomistuksesta.
[11] Kautto, Holmila & Turtiainen 1990, 74.
[12] Kautto, Holmila & Turtiainen 1990, 75.
[13] Raahen Seutu 24.11.1966.
[14] Vahtera & Vahtera 2008, 44.
[15] Kivinen & Tiihonen 1977, 34.
[16] Helsingin Sanomat 22.1.1968. Pentinpuro 1968.
[17] Raahen ja Saloisten Seudun Asuntosäätiön rakennustoimikunnan puheenjohtajan yli-insinööri Toivo Härkösen haastattelu: ensimmäiset 66 kerrostaloasuntoa olivat käytössä, mutta 20 rivitaloasunnosta 12 oli vielä vapaana. Toisessa rakennusvaiheessa valmistuvista 112 kerrostaloasunnosta vapaana oli yli puolet. Raahen Seutu 25.1.1968.
[18] Helsingin Sanomat 22.1.1968. Aunola 2012, 46, 49.
[19] Syynä huoneistokokojen laskuun oli ilmeisesti asuntolainoitettujen talojen vuokrien kohoaminen. Kivinen & Tiihonen 1977, 34.
[20] Porrashuoneiden yhteistilat siirrettiin kellarikerroksiin. Kivinen & Tiihonen 1977, 34.
[21] Kivinen & Tiihonen 1977, 34.
[22] Kivinen 1972, 4.
[23] Nyman 2003, 65–67.
[24] Kivinen & Tiihonen 1977, 34.
[25] Nousiainen 2003.
[26] Helaakoski 1998.
[27] Meurman 1947, 309.
Arkkitehtuurissa on linjakas horisontaalinauha ja selkeä julkisivupinta. Yleisilme on ajankohdalle ominaista elementtikerrostalorakentamista. Sisäpihoilta on suora yhteys pysäköintialueelle, joka on kortteleiden reunoilla.
_Oik.: Näkymät neljännen vaiheen pihapiiristä 2018. Kuva 14: Juho Rajaniemi.
Viides vaihe: rakentamista laadun kustannuksella
Viimeinen rakentamisvaihe valmistui 1976 ja 1977 Ollinsaaren lounaiskulmaan. Kustannusnousun välttämiseksi betonijulkisivut maalattiin ja rakennusten muoto yksinkertaistettiin. Kaikkiaan 142 asunnon keskipinta-ala on 60 neliötä.[21]
Kaavassa kerrosluku oli seitsemän. Rakennusten tuli olla maamerkkejä alueen saapumissuunnan reunalla ja keskusta-akselin päätteessä, Kivisen sanoin: ”tunnistamisdominantin, joka elävöittäisi ympäristöä.”[22] Toteutunut kerrosluku on 3–5 ja elävöittämisen sijaan julkisivuelementit ja -sommittelu ovat yksitoikkoisia. Pihat aukeavat metsäiseen mäkeen, ja pysäköintialueet ovat kortteleiden reunoilla.
Asuntomäärä kerrostalopihaa kohden on 70. Ensimmäisessä vaiheessa luku oli 22 ja seuraavissa viitisenkymmentä. Vastaavasti nousi rappukäytävän kunkin kerrostason asuntomäärä. Ensin se oli kaksi, sitten kolme ja lopuksi neljä.
Olli Kivisen johdolla hänen arkkitehtitoimistonsa vastasi Ollinsaaren suunnittelusta alusta loppuun. Rakennusvaiheiden arkkitehtoninen laatu heikkeni 1960-luvun puolivälistä 1970-luvun loppupuolelle. Tehokkuudesta tuli arvo ja kustannussäästöstä suunnittelun tärkeä mittari. Rakentaminen oli liiketoimintaa, joka tuotti pelkistettyä arkkitehtuuria.[23] Arkkitehdit Olli Kivinen ja Lauri Tiihonen tilittivät alueen valmistuttua: ”Kohoavat rakennuskustannukset muuttivat alun perin suunnittelijan tähtäimessä ollutta miljöökokonaisuutta kohti asuntolainoitetulle kerrostalorakentamiselle tyypillistä yksiviivaisuutta ja pitäytymistä kaikkialla toistuviin rakennustyyppeihin, joita ainoastaan rakennusten vaihtuminen rivi- ja omakotitaloihin jossain määrin saattoi elävöittää.”[24]
Ihmisläheinen ja luonnonläheinen Ollinsaari
Suuren alueen toteuttaminen 10 vuodessa oli Raahen pienessä kaupungissa melkoinen saavutus, etenkin kun rakennustyössä oli parin vuoden katko. Tuloksena syntyi asuinalue, joka on kaupunkirakennustaiteellinen kokonaistaideteos.
Ollinsaaren rakennuskanta on jokseenkin kertaalleen peruskorjattu. Rakennusten autenttisuuden kannalta jotkut korjausratkaisut ovat onnistuneet hyvin. Joissakin on toivomisen varaa: kattoja on muutettu tasakatoista harjakatoiksi, julkisivupintoja on korvattu teräskaseteilla ja parvekkeiden yhteyteen on lisätty alkuperäiselle arkkitehtuurille vieraita elementtejä. ”Vain runko jätettiin, kaikki muu on rakennettu ja sisustettu uusiksi”, kerrottiin paikallislehdessä toisen rakennusvaiheen korttelissa sijaitsevan kolmen kerrostalon remontista.[25] Kivisen mielestä kolmannen vaiheen rakennusten korjauksissa on alkuperäisyyttä säilytetty ja alueella on ”erittäin hyvää ihmisläheistä asumista”.[26]
[KUVA 17. Kolmannen rakennusvaiheen peruskorjattuja taloja (toukokuu 2018).]
Tulevissa asemakaavamuutoksissa pohdittavana on alueen suojelun ja rakennussuojelun tarve ja kattavuus. Ensimmäisen rakennusvaiheen pienkerrostalot, arkkitehtonisesti Ollinsaaren korkeatasoisimmat, ovat säilyneet ulkonäöltään alkuperäisinä ja viehättävinä. Alueen identiteetin keskeiset periaatteet, väljyys ja luonnonläheisyys, tulee jatkossakin säilyttää. Saman aikakauden lähiöissä nämä kantavat ideat on usein tuhottu liialla täydennysrakentamisella. Tiiviin ja monikäyttöisen kaupunkiympäristön tavoittelussa unohtuu, että lähiösuunnittelun keskeiset aatteet olivat päinvastaiset; haluttiin väljyyttä ja toimintojen erottelua toisistaan.
”Kaikki kaupunkimaisen asutuksen epäkohdat pohjautuvat lopulta asutuksen liialliseen kasautumiseen ahtaalle alueelle”, kirjoitti professori Otto-Iivari Meurman Asemakaavaopissa 1947.[27] Ollinsaari on 1960- ja 70-lukujen yhteiskunnallisten arvojen ja lähiösuunnitteluideologian tuote. Sellaisena se on yksi Suomen edustavimmista lähiöistä, jossa toteutuu Kivisen ensisijaisena tavoitteena ollut viihtyisyys.
Kirjoittaja
Juho Rajaniemi, tekniikan tohtori, yhdyskuntasuunnittelun professori, Tampereen ylipisto. Artikkeli perustuu tekijän väitöskirjaan Kasvun kaavoitus. Tapaus Raahe 1961–1996 sekä tätä artikkelia varten tehtyyn tutkimustyöhön.
Artikkeli on julkaistu 2019.
Lähteet
Aunola, Auno 2012: Edelläkävijä. Raahen Seudun Asuntosäätiö 50 vuotta. Raahe, Raahen Seudun Asuntosäätiö.
Helaakoski, Anne 1998: Ollinsaaren peruskorjaus sai Ollin siunauksen. Raahen Seutu 25.9.1998.
Jaatinen, Sari 2015: Ollinsaari, maakunnan arvokkain lähiö. Raahen Seutu 16.9.2015.
Kautto, Jussi 1990: Haastattelussa Olli Kivinen. Kaupunkisuunnittelun professori ja kaupunkirakenteen hahmottaja. Teoksessa Suomalaista kaupunkiarkkitehtuuria. Toim. Jussi Kautto, Ilkka Holmila & Jukka Turtiainen. Helsinki: Suomen rakennustaiteen museo ja Ympäristöministeriö, 72–76.
Kekkonen, Urho 1952: Onko maallamme malttia vaurastua? Helsinki: Otava.
Kivinen, Olli 1968: Saloinen. Ollinsaaren alue. Rakennuskaavan selostus.
Kivinen, Olli 1972: Saloinen. Ollinsaari. Rakennuskaava ja rakennuskaavan muutoksen selostus.
Kivinen, Olli & Tiihonen, Lauri 1977: Ollinsaari / Rautaruukin asuntoalue. Arkkitehti 7/1977, 34–37.
Meurman, Otto-I. 1947: Asemakaavaoppi. Helsinki: Otava.
Nousiainen, Tuulikki 2003: Kerrostaloihin remontoitiin ylellisyyttä. Raahen Seutu 29.8.2003.
Nyman, Kaj 2003: Sinisilmäisyyden aika. Suunnittelun myyttejä 1950–2000. Helsinki: Rakennusalan Kustantajat RAK ja Kustantajat Sarmala Oy.
Pentinpuro, Leila 1968: Raahessa ei tunneta asuntopulaa. Helsingin Sanomat 22.1.1968.
Raahen Seutu 24.11.1966. Asukkaiden viihtyisyys otettu lähtökohdaksi Ollinsaaren asuntoalueen suunnittelussa.
Raahen Seutu 25.1.1968. Pääkaupunkilaislehden kirjoitus Raahen ja Ollinsaaren asuntotilanteesta harhauttava.
Rajaniemi, Juho 2006: Kasvun kaavoitus. Tapaus Raahe 1961–1996. Kankaanpää: Messon Oy.
Vahtera, Kalle & Vahtera, Ulla 2008: Kivinen. Rakennettu ympäristö RY 1/2008, 42–46.
Viitteet
[1] Virallisen sijoittamispäätöksen teki Rautaruukki Oy:n hallintoneuvosto 17.2.1961. Rajaniemi 2006, 27; Aunola 2012, 9-11.
[2] Kekkonen 1952, 74.
[3] Raahen ja Saloisten Seudun Asuntosäätiö merkittiin säätiörekisteriin tammikuussa 1962. Säätiön nimi muutettiin Raahen Seudun Asuntosäätiöksi Raahen kaupungin ja Saloisten kunnan yhdistyttyä 1973. Aunola 2012, 20–21, 63, 79, 212–14.
[4] Aunola 2012, 30–35, 218.
[5] Helaakoski 1998.
[6] Rajaniemi 2006, 120–121.
[7] Raahen Seutu 24.11.1966.
[8] Testamenttiarkistosta löytynyt kirjoitus. Allekirjoittamattomassa ja vuodelle 1968 päivätyssä käsikirjoituksessa mahdollisesti Kivinen itse kuvailee alueen länsiosan liikenneratkaisuja. Kirjoittajan henkilöllisyys jää epävarmaksi, sillä pitkälti samansisältöinen kirjoitus julkaistiin Raahen Seudussa jo 31.8.1967.
[9] Kivinen & Tiihonen 1977, 34; Kivinen 1968, 3–4.
[10] Toteuttamatta jäivät neljän kerrostalon kortteli luoteisnurkassa, viereinen tontti kolmelle pientalolle, keskusakselin pohjoisin kortteli (seurakuntasali, kerhotiloja ja pienteollisuusrakennus), tämän kaakkoispuolelle suunniteltu kahdeksan rivitalon kokonaisuus. Nämä korttelit olivat lähes kokonaan yksityisomistuksessa. Kivinen 1972, liitekartta maanomistuksesta.
[11] Kautto, Holmila & Turtiainen 1990, 74.
[12] Kautto, Holmila & Turtiainen 1990, 75.
[13] Raahen Seutu 24.11.1966.
[14] Vahtera & Vahtera 2008, 44.
[15] Kivinen & Tiihonen 1977, 34.
[16] Helsingin Sanomat 22.1.1968. Pentinpuro 1968.
[17] Raahen ja Saloisten Seudun Asuntosäätiön rakennustoimikunnan puheenjohtajan yli-insinööri Toivo Härkösen haastattelu: ensimmäiset 66 kerrostaloasuntoa olivat käytössä, mutta 20 rivitaloasunnosta 12 oli vielä vapaana. Toisessa rakennusvaiheessa valmistuvista 112 kerrostaloasunnosta vapaana oli yli puolet. Raahen Seutu 25.1.1968.
[18] Helsingin Sanomat 22.1.1968. Aunola 2012, 46, 49.
[19] Syynä huoneistokokojen laskuun oli ilmeisesti asuntolainoitettujen talojen vuokrien kohoaminen. Kivinen & Tiihonen 1977, 34.
[20] Porrashuoneiden yhteistilat siirrettiin kellarikerroksiin. Kivinen & Tiihonen 1977, 34.
[21] Kivinen & Tiihonen 1977, 34.
[22] Kivinen 1972, 4.
[23] Nyman 2003, 65–67.
[24] Kivinen & Tiihonen 1977, 34.
[25] Nousiainen 2003.
[26] Helaakoski 1998.
[27] Meurman 1947, 309.